Établi de bricolage dans le garage : guide de montage à la maison

Établi dans le garage: comment le faire soi-même, dessins et dimensions, outils et matériaux

Quel matériau est préférable de faire un établi dans le garage de vos propres mains

Il existe plusieurs options pour créer un bureau. Selon le type de matériel utilisé pour la fabrication des établis, il existe :

  • en bois;
  • métal;
  • combiné.

Les établis combinés utilisent une base en bois et une tôle comme renfort du plan de travail. De plus, la conception contient des peignes en métal, ainsi que des vis filetées. Les appareils combinés comprennent des tables en métal avec des tiroirs et des étagères à outils en bois.

Avantages et inconvénients d'un établi en bois dans le garage

Le choix du matériau pour la fabrication de la table est principalement déterminé par son objectif. Un établi en bois dans le garage est généralement installé dans les cas où vous devez organiser rapidement un lieu de travail pour des opérations simples. Pour créer la partie cadre, vous pouvez utiliser des planches de 4 x 8 cm ou une barre de 5 x 10 cm.La base rectangulaire est assemblée en tenant compte des dimensions standard et ses composants sont fixés avec des clous ou des vis autotaraudeuses.

Établi de bricolage dans le garage : guide de montage à la maison

Un établi en bois est installé dans les cas où il est nécessaire d'organiser rapidement un lieu de travail

Pour renforcer la structure, des entretoises en bois sont installées dans les parties supérieure et inférieure entre les jambes. Les plus bas, situés à une hauteur de 15 cm du sol, peuvent servir de base à une étagère. Pour assembler le comptoir, une planche à rainure et languette rabotée en chêne ou en hêtre convient. Vous pouvez également utiliser une paire de feuilles de contreplaqué résistant à l'humidité de 1,8 cm d'épaisseur, qui sont collées ensemble et gainées le long du bord.

Pour créer un établi de bricolage dans un garage en bois, vous n'avez pas besoin de beaucoup d'efforts et de compétences pour manipuler une machine à souder. L'ensemble d'outils est minimal (une scie sauteuse électrique et une perceuse), et le processus lui-même prend beaucoup moins de temps que la fabrication d'une structure métallique.

En revanche, une table en bois présente de nombreux inconvénients :

  • incapable de supporter des charges de puissance importantes;
  • la surface de travail n'est pas destinée à l'installation de plusieurs outils, ce qui ne permet pas l'utilisation simultanée d'étau de ferronnerie lourde et d'affûtage ou de perçage ;
  • le lit en bois est éphémère ;
  • le bois réagit mal à l'humidité et au contact de diverses peintures, huiles et autres substances;
  • il y a un risque d'incendie.

Établi de bricolage dans le garage : guide de montage à la maison

L'inconvénient d'un établi en bois est son incapacité à supporter des charges de puissance importantes.

Avantages et inconvénients d'un établi en métal pour un garage

Pour assembler une table de soudeur de vos propres mains, vous aurez besoin d'un équipement spécial et de compétences pour la manipuler. Les éléments de l'établi sont reliés par soudure. Réaliser qualitativement une structure métallique est loin d'être possible pour tous les maîtres. De plus, la table s'avère très lourde et le matériau lui-même, contrairement au bois, n'est pas bon marché.

Article associé:

D'autre part, les établis dans un garage métallique présentent de nombreux avantages que de nombreux propriétaires de voitures apprécieront :

  • compacité avec un haut degré de fiabilité;
  • la capacité de résister à des contraintes mécaniques sévères;
  • augmentation du poids de la structure, la rendant plus stable;
  • un grand choix de modifications (la conception peut être pliante, mobile, raccourcie ou avec un plateau pliant);
  • force et fiabilité de toutes les connexions;
  • la sécurité incendie;
  • durabilité et facilité d'entretien;
  • l'absence d'angles vifs rend le comptoir sûr;
  • la surface de travail vous permet d'installer deux jeux d'étaux;
  • en raison de la haute résistance du matériau sur la table, il est possible de couper et de scier, ainsi que de meuler et de tourner des pièces en métal et en bois;
  • l'espace sous le comptoir peut être utilisé pour installer des étagères, des organisateurs, des grilles et des boîtes à outils ;
  • les copeaux de métal n'endommagent pas la surface.

Caractéristiques d'installation et de montage

Le modèle fixe et mobile de l'établi est assemblé de la même manière qu'une table ordinaire.Les parois latérales et les guides auxiliaires, le profil sont fournis avec des trous du diamètre approprié. Toutes les pièces sont typiques, sans aucun problème, elles sont connectées et fixées ensemble avec des vis autotaraudeuses selon le schéma joint au produit.

La fixation au mur de la table pliante s'effectue en 3 étapes :

Découvrez la boîte à outils :

  • perforateur (murs de garage brique, béton), perceuse;
  • poinçon pour trous de ferronnerie, marteau;
  • clé (à fourche) 8 mm, 10 mm ;
  • clés : hexagonales (2,5 mm), tubulaires ;
  • Tournevis cruciforme, niveau pour le marquage.

Préparation au travail :

  • Posez le cadre de la table sur une surface plane, en conservant les attaches en plastique d'usine jusqu'à ce que l'installation soit terminée.
  • Retirez les 2 charnières centrales du cadre pivotant, dévissez et retirez les boulons, les écrous sur les deux pieds du cadre mural, retirez-le des charnières.
  • Vérifiez l'emplacement de la douille extérieure de la cheville, la douille d'expansion doit être tournée vers l'écrou d'expansion.
  • Faites des marques sur le mur où le cadre mural doit être monté.

Établi de bricolage dans le garage : guide de montage à la maison

  • À l'aide d'une perceuse de 8 mm, percez un trou de 15 mm plus long que l'ancre.
  • Insérez l'ancre dans le trou du cadre, approfondissez-la dans le mur jusqu'au bout, fixez l'écrou en laissant le cadre mobile.
  • Vérifiez le niveau de la position horizontale de la poutre supérieure, fixez le cadre avec des ancres, percez les trous restants pour les fixations à travers celui-ci.
  • Insérez et serrez alternativement les ancres, avec un grand espace entre l'ancre et le mur, utilisez des joints de montage.
  • Installez le cadre pivotant (après avoir libéré 2 pieds) sur les charnières du cadre mural, fixez-les avec des boulons.
  • En soulevant le cadre de la balançoire en position horizontale, mettez et boulonnez les charnières précédemment retirées.
  • Abaissez la table dans sa position de travail, installez le plateau, fixez-le avec des vis autotaraudeuses au cadre pivotant.

Assemblage et installation

Établi de bricolage dans le garage : guide de montage à la maison

Photo d'un garage avec un atelier équipé d'établis GarageTek

Après avoir terminé tous les travaux préparatoires, vous pouvez commencer à assembler la base de l'établi. Pour ce faire, prenez 4 supports d'une poutre en bois ou d'un coin en acier. Pré-préparez les rainures et les pointes selon le dessin existant. Pour fixer les pièces, utilisez des vis autotaraudeuses, des boulons d'ancrage ou des soudures.

Installez des cavaliers horizontaux entre les pieds de l'établi et au milieu, sur toute la longueur de la structure, une barre étroite reliant les pièces pour stabiliser l'ensemble de la structure. Si nécessaire, montez des racks supplémentaires sur lesquels les étagères et les rails de tiroir seront fixés.

La prochaine étape est la fabrication de comptoirs pour l'établi. Les dimensions de la surface de travail sont déterminées en fonction des calculs effectués précédemment. Posez les planches sur le cadre, emboîtez-les fermement et fixez-les avec des boulons. Faites une série de trous pour les fixations autour du périmètre des pièces de raccordement de la base.

Une fois le plateau fixé, il est poli ou gainé de métal. Pour cela, le fer galvanisé est généralement utilisé. La tôle est découpée selon les dimensions indiquées sur le schéma, puis elle est fixée au plan de travail à l'aide de vis autotaraudeuses. Les bords du revêtement doivent être traités avec une lime à partir des entailles et des bavures qui se forment lors de la coupe du métal.

Au stade final, il est nécessaire d'équiper la table à outils dans le garage. Fixez d'abord l'étau à l'établi.Pour ce faire, des évidements dans le plan de travail doivent être prévus. Fixez le contreplaqué sur le site d'installation à l'intérieur de la toile de travail. Avant de monter l'étau, fixez-le à la table, marquez le lieu de fixation.

L'établi est complété par des étagères, des tiroirs et des fixations pour l'équipement. Vous pouvez monter un écran spécial sur lequel il est pratique de placer des pinces, des tournevis, des pinces coupantes et d'autres outils. Lors de l'installation de l'équipement sur un établi, vérifiez la solidité de toutes les fixations pour éviter les blessures accidentelles.

Un petit établi, fabriqué à la main et dans le respect de toutes les règles, peut remplacer temporairement le produit acheté

Mais si vous n'avez pas assez de temps pour concevoir et fabriquer votre propre bureau de garage, faites attention aux meubles GarageTek.

Autres conseils

  • Stockage de bateaux en PVC en hiver dans un garage sous le plafond, bon stockage d'un bateau en hiver
  • Comment faire des étagères dans le garage de vos propres mains, photos, options
  • Comment faire un rack pour ranger les roues dans le garage de vos propres mains, photos, idées

Sécurité

Assurez-vous de mettre l'établi à la terre. Le fait est que l'électromécanique sont principalement des moteurs, et pendant le fonctionnement, lorsque le courant est appliqué aux enroulements, un champ magnétique alternatif est induit dans les noyaux des bobines et des circuits. Ceci s'applique à tous les moteurs qui ne fonctionnent pas au courant continu - une tension pouvant atteindre plusieurs dizaines de volts apparaît entre le boîtier et la terre. Pour leur retrait, l'établi lui-même et tous ces appareils sont mis à la terre. La mise à la terre est possible à la fois par le renforcement du bâtiment et par une tôle séparée avec une barre de renforcement, enterrée dans le sol à côté du garage où travaille le maître.

Établi de bricolage dans le garage : guide de montage à la maison

Fixez un établi fixe (non mobile) au sol et aux murs - cela empêchera toute la structure de tomber soudainement lorsque le travail nécessite des efforts de balancement.

La section des fils doit être suffisante pour supporter une puissance, par exemple 5 à 10 kilowatts. Les principaux consommateurs sont une perforatrice, une meuleuse, une soudeuse et une scie.

Établi de bricolage dans le garage : guide de montage à la maisonÉtabli de bricolage dans le garage : guide de montage à la maison

Caractéristiques du modèle

Les établis produits en série sont pratiques dans la mesure où leurs caractéristiques sont définies lors de la production et correspondent à leur utilisation prévue. Selon les conditions techniques dans lesquelles tel ou tel établi fonctionnera, différents modèles peuvent avoir les paramètres suivants :

Matériau du dessus de table. Contreplaqué résistant à l'humidité ou MDF recouvert de métal galvanisé. L'épaisseur du plateau varie entre 24 et 30 mm.

Établi de bricolage dans le garage : guide de montage à la maison
Approche professionnelle

  • Charge admissible sur le plateau. Les modèles de série permettent une charge de 300 à 350 kg. L'établi de la série renforcée est calculé sur 400 kg et plus.
  • La charge admissible sur une étagère dans un piédestal est de 20 à 30 kg, sur une étagère de banc - jusqu'à 40 à 50 kg.
  • Protection. Une serrure, clé ou : haute sécurité (goupille) peut être installée sur l'armoire.
  • Accessoires. Divers étagères, supports, écrans et crochets.

Les établis fabriqués en usine sont livrés non assemblés ; De par leur conception, ils peuvent être divisés en trois groupes :

Bestumbovy. Le petit établi parfait pour un garage de taille modeste. La conception facile à assembler se caractérise par une taille suffisante de la surface de travail, qui, si nécessaire, est pliée (établi pliant). La stabilité est assurée par des pieds réglables. Les modèles autonomes peuvent être équipés en plus de tiroirs sur des guides de roulement.

Description de vidéo

A propos de l'organisation du lieu de travail dans la vidéo suivante:

  • Socle unique. Structure préfabriquée robuste avec un dessus renforcé et un poids de 96-105 kg. Un tel établi est équipé à la fois d'une surface de travail confortable et d'une armoire avec chauffeurs (tiroirs sur guides à billes de différentes hauteurs) ou étagères réglables. Les tiroirs sont verrouillés avec une serrure centrale. Certains modèles sont équipés d'une barre d'outils.
  • Deux socles. Le poids de ces modèles est de 100 à 115 kg; ils sont complétés par deux conducteurs avec des tiroirs de différentes hauteurs. La charge maximale autorisée par tiroir (si répartie uniformément) est de 30 kg. Le kit peut inclure un écran perforé - un panneau conçu pour accueillir des supports et des crochets.

Établi de bricolage dans le garage : guide de montage à la maison
Etabli combiné

Conclusion

Une table de travail de garage est un type de meuble industriel qui doit être durable et confortable au quotidien. Ces propriétés aident le propriétaire à se concentrer pleinement sur le travail, réduisant ainsi le risque de blessure accidentelle. Un établi pour un garage sera aussi efficace que possible si ses caractéristiques (capacité de charge, dimensions, équipement) correspondent aux tâches à résoudre.

Travail préparatoire

Établi de bricolage dans le garage : guide de montage à la maison

La préparation de l'assemblage de l'établi consiste à déterminer les caractéristiques de conception, à choisir les dimensions et l'emplacement d'installation de la structure. Pour qu'aucun instant n'échappe à l'attention et ne soit oublié, il est recommandé de créer un dessin d'exécution d'un établi, réalisé à l'échelle en référence aux dimensions du garage

Une attention particulière doit être portée à la hauteur du comptoir - elle diffère considérablement de la hauteur d'une table à manger ordinaire.La meilleure option est la hauteur du sol au pli des coudes d'une personne debout droite

Étant donné la différence de taille entre différentes personnes, assembler soi-même l'établi optimal peut être un événement très enrichissant.

De plus, il faut se rappeler que la largeur du comptoir ne doit pas être trop grande. La taille du garage est relativement petite, vous devez souvent travailler à côté de la voiture qui se trouve à l'intérieur.

Vous aurez besoin d'un endroit pour qu'une personne puisse passer, donc 50 cm est considéré comme la largeur optimale.Vous devez également décider de la taille du bouclier pour les outils qui sont le plus souvent utilisés.

Lire aussi :  Quel RCD mettre dans une maison particulière : un exemple de sélection + des conseils pour choisir

Les outils à portée de main permettront d'économiser du temps et des efforts pour trouver les éléments nécessaires dans les tiroirs et les étagères.

Matériaux utilisés

Pour fabriquer de vos propres mains un établi dans le garage, deux matériaux sont utilisés: le bois et le métal. La différence entre ces conceptions résidera dans la fiabilité et la résistance à diverses forces et influences mécaniques. À cet égard, un établi en métal surpassera considérablement un établi en bois. Il y a d'autres points à mentionner :

Il est difficile de fabriquer une structure métallique de vos propres mains, car vous devrez effectuer des travaux de soudure et vous devez également avoir des compétences dans le travail du métal. Il est également assez difficile de traiter une billette de fer. Par conséquent, pour créer un bureau de ce type de vos propres mains, vous aurez besoin d'un équipement spécial et de connaissances spécifiques.
Un arbre est une tout autre affaire. Pour fabriquer de vos propres mains un établi en bois pour le garage, vous n'aurez besoin que d'un ensemble standard d'outils domestiques - une meuleuse, un tournevis, une scie sauteuse électrique, un marteau, etc.ré

Vous pouvez même utiliser uniquement une scie à main, mais le travail dans ce cas deviendra un peu plus compliqué.
Si l'on prend en compte les aspects opérationnels et techniques d'un bureau fait d'un matériau particulier, il faut alors souligner le poids important d'un produit métallique et la résistance plutôt faible d'un établi en bois. L'option idéale serait de combiner ces deux matériaux en un seul produit, par exemple, fabriquer un établi en bois et recouvrir son plan de travail d'une fine couche de fer

Dans ce cas, même l'utilisation d'un étau et d'autres appareils similaires ne pourra pas lui nuire.

Ainsi, la combinaison de matériaux est la solution idéale pour fabriquer de vos propres mains un établi dans le garage. Cependant, si le bureau ne sera pas utilisé trop souvent, mais de temps en temps, il est préférable de se contenter d'une structure entièrement en bois.

Travail préparatoire

Lors de l'équipement d'un garage de vos propres mains, il est très important de choisir le bon endroit où l'établi sera installé. La meilleure option serait considérée comme une partie du garage où il y a un bon éclairage et où des prises électriques sont équipées.

Il est nécessaire de prendre en compte un moment tel que la direction de la lumière naturelle. La lumière doit tomber du côté gauche ou droit devant. Dans ce cas, la surface de travail sera toujours éclairée.

La longueur du comptoir doit être telle qu'elle puisse facilement accueillir les outils et les grandes pièces nécessaires au travail. Sa largeur ne doit pas dépasser 50 à 60 cm, ce qui vous permet d'atteindre facilement le bord opposé. Un côté peut être équipé pour travailler avec un outil de coupe électrique : une scie circulaire, une scie sauteuse, etc.À cette fin, la planche est fixée de manière à dépasser le bord de l'établi de 200 à 300 mm.

De plus, avant de créer un établi dans le garage de vos propres mains, vous devez clarifier un autre paramètre - sa hauteur. La commodité d'effectuer le travail dépend de la précision avec laquelle il sera déterminé. Pour déterminer la hauteur, vous devez vous tenir droit, plier les bras au niveau des coudes et vous appuyer mentalement sur une table imaginaire. La distance entre le sol et les bras pliés sera la hauteur idéale pour la construction future.

Outils et matériaux nécessaires

Pour fabriquer un établi dans le garage, vous aurez besoin des outils suivants :

  • une meuleuse avec un disque de meulage et un cercle pour couper le métal;
  • niveau;
  • Tournevis;
  • perceuse;
  • machine à souder et électrodes ;
  • roulette;
  • scie sauteuse pour couper le contreplaqué.

Matériaux:

  • coin de 4 mm d'épaisseur;
  • feuillard d'acier de 4 mm d'épaisseur;
  • tôle d'acier nécessaire à la fabrication de supports pour boîtes de 2 mm d'épaisseur;
  • contreplaqué pour la fabrication du dos, des parois latérales de la table et des tiroirs de 15 mm d'épaisseur;
  • des vis;
  • des boulons d'ancrage;
  • tube carré de 2 mm d'épaisseur;
  • tôle d'acier à utiliser pour le plan de travail, épaisseur 2 mm ;
  • planches en bois pour plans de travail de 50 mm d'épaisseur;
  • guides pour tiroirs;
  • vis autotaraudeuses pour le métal;
  • peinture pour métal et bois.

La conception faite de ces matériaux sera fiable et très durable. Des planches seront utilisées pour les niches et les étagères, et des bandes d'acier seront nécessaires pour créer des rebords sur la surface de la table.

Comment faire un établi de vos propres mains

Outils pour fabriquer un établi en métal

Pour une table standard, un certain nombre de pièces sont préparées. Les racks verticaux sont coupés en deux tailles : 90 et 150 cm.La différence vient de la nécessité d'équiper un écran pour ranger les outils, plus haut que les pieds.

Détails de préparation :

  • supports pour jambes - 4 pièces;
  • supports transversaux - 5 pcs. 60 cm;
  • courses horizontales - 2 pcs. 2 m pour le haut du cadre ;
  • poutres de connexion - 2 pcs. 60 cm pour le fond.

Des éléments horizontaux relient les poteaux de support en haut et servent de base au plateau de table. En bas, les pieds sont reliés par des poutres sur deux côtés, des entretoises sont fixées. Les éléments en acier sont assemblés par soudage; une connexion boulonnée avec des écrous peut être utilisée. Pour le tableau de bord, du contreplaqué épais est utilisé, dans le corps duquel des crochets sont insérés pour suspendre, des conteneurs amovibles et fixes sont fixés à la surface.

L'établi est connecté à une boucle de masse commune. Les étagères supérieures et le bouclier avec fixations sont solidement fixés aux murs et au sol. Des ancrages métalliques sont utilisés et les vis et vis autotaraudeuses ne résisteront pas à l'effort. L'électricien est caché dans des goulottes en fil de PVC ou des tuyaux spéciaux ondulés. L'éclairage se fait par le haut et sur le côté gauche.

Équipement de base

L'ossature métallique (châssis) est une structure porteuse pouvant supporter un poids allant jusqu'à 350 kg, selon la structure et la configuration. L'établi comprend divers modules et pièces de renfort. Les tables pour l'entretien des grandes pièces automobiles, telles que les agrégats ou les roues, sont renforcées par une paire supplémentaire de diagonales.

Le plateau est fabriqué en fonction du type de travail. En fonction de cela, le matériau de la plaque et le type de revêtement sur le plan de travail sont sélectionnés. Un étau est installé pour fixer les pièces et les pièces pendant le travail du métal et l'assemblage

Tenez compte de la taille des mâchoires, de la profondeur de capture et de la plage de travail, tenez compte des dimensions de l'appareil et de son poids.Distinguer étau fixe et rotatif

Lire aussi :  Gerbeurs et autres équipements de stockage

Étapes de montage

Pour la fabrication du cadre, il faudra une expérience de soudage

Le cadre est soudé en premier. Pour ce faire, créez une plate-forme de base sous le comptoir.

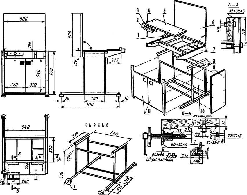
Un schéma par étapes pour assembler et organiser un établi de garage:

  1. La plate-forme de support est retournée, le cadre de la table de chevet et les porte-jambes y sont soudés. Tous les supports sont reliés par des entretoises, des amplificateurs longitudinaux et diagonaux (arrière).
  2. Pour niveler et nettoyer les coutures, utilisez une meuleuse, éliminez les bavures sur les bords, lissez les arêtes vives du fer à découper.
  3. L'établi est retourné dans la position habituelle et fixé à l'endroit choisi. Le comptoir est en bois ou en métal. Les planches sont fixées au support avec des boulons et le couvercle en acier est soudé.
  4. Ils installent et fixent le mur du fond, dessinent le remplissage interne des armoires latérales, des racks.

Les principales étapes sont répertoriées, mais des processus supplémentaires peuvent être ajoutés en fonction de la conception.

Emplacement d'installation

Le choix de l'emplacement est déterminé par la taille de l'établi. Si vous devez faire certains travaux de temps en temps, une petite table fera l'affaire, il lui sera plus pratique de choisir un endroit. La nécessité d'un travail constant entraîne une augmentation des dimensions; pour cela, une surface importante est allouée dans l'espace du garage.

Critères de choix d'un poste de travail :

  • suffisamment d'espace libre pour maintenir même un établi pliant dans une position prête à l'emploi et ne pas le retirer une fois le travail terminé;
  • la structure est placée perpendiculairement à la source lumineuse ou à l'ouverture de la fenêtre ;
  • il est possible d'étirer le filet de sécurité en fer lors du meulage, du fraisage, du tournage;
  • à l'avant de la table se trouve une bande de 50 cm de large ou plus pour la libre circulation d'une personne pendant le travail.

Travail final

Après avoir terminé les travaux, l'établi doit être peint

La finition consiste à traiter avec un apprêt pour le métal ou le bois, s'il s'agit de pièces en bois. L'apprêt sèche complètement, après quoi la surface de la structure est recouverte d'huile, d'émail, de peinture au latex. Il est recommandé d'appliquer 2 couches.

La peinture protège la surface métallique de la corrosion, de la rouille et le bois n'absorbe pas l'humidité. Vous pouvez vernir l'établi par dessus.

But et conception d'un établi de menuiserie typique

Un établi de menuiserie robuste et fiable offrira commodité et confort lors de longs travaux avec des pièces en bois

L'établi du menuisier est en fait une table massive et fiable pour le traitement de produits en bois de toutes tailles. Les principales exigences pour ce type d'équipement sont la résistance et la stabilité. De plus, la machine doit être équipée d'au moins un ensemble minimum de fixations pour fixer et maintenir les pièces à usiner. Les dimensions de la table de travail sont choisies en fonction de la taille et du poids des pièces à traiter, ainsi que de l'espace libre dans l'atelier ou le garage. À propos, il existe des modèles d'établis compacts qui peuvent être placés même sur le balcon.

La conception d'un établi de menuiserie avec un plan de travail de composition. Dans la figure: 1 - base ou banc; 2 - établi; 3 - boîte à onglets; 4 - coupleur ; 5 - vice; 6 - poutre de support

Étant donné que le travail effectué sur la machine de menuiserie est effectué à l'aide d'outils manuels et électriques, l'établi est constitué de bois massif et de planches épaisses.Soit dit en passant, la surface de travail, ou d'une autre manière l'établi, est assemblée uniquement à partir de bois dur. Dans la fabrication des plans de travail, des planches sèches en chêne, hêtre ou charme d'une épaisseur d'au moins 60 mm sont utilisées. Si le comptoir est en pin, aulne ou tilleul, sa surface s'usera rapidement et nécessitera une mise à jour périodique. Souvent, une couverture de banc est assemblée à partir de plusieurs planches étroites et épaisses, en les plaçant sur le bord.

Afin de faciliter la construction, les pieds de support du bureau, au contraire, sont en bois tendre. Entre eux, les supports verticaux sont reliés par une poutre installée longitudinalement pour augmenter la stabilité du produit.

Schéma typique d'un établi de menuiserie

Un étau spécialement conçu est suspendu à l'avant et sur le côté de l'établi pour fixer les pièces. De plus, sur les machines globales, des dispositifs de serrage séparés pour les grandes et les petites pièces sont montés. L'emplacement optimal pour l'étau de menuiserie est le côté gauche du tablier avant et la partie proche de la paroi latérale droite.

Pour plus de commodité, un évidement est fait à l'arrière du comptoir pour les raccords et les petites pièces. Souvent, un évidement difficile à fabriquer est remplacé par un cadre renversé à partir de lattes de bois.

Bureau en bois à faire soi-même dans le garage - instructions photo et vidéo étape par étape

Pour sa fabrication, il est nécessaire de préparer du matériel photo et un projet. Des photos et des dessins de la table dans le garage de vos propres mains vous aideront à comprendre de quoi et comment est fait l'établi. Lors de la construction d'un établi en bois, vous aurez besoin des outils suivants:

  • Bulgare avec un ensemble de cercles,
  • Appareil de soudage et jeu d'électrodes,
  • Niveau et ruban à mesurer de 2 à 5 mètres,
  • Vis autotaraudeuses avec un tournevis,
  • Scie sauteuse manuelle pour couper la feuille de contreplaqué,
  • Perceuse électrique.

Pré-préparez également les matériaux pour la table pliante de travail dans le garage :

  • Plusieurs cornières 50x50 mm avec une épaisseur d'étagère de 4 mm et une longueur de 5 m,
  • Tube carré 60x40 mm,
  • Bande acier pour costière d'une largeur de 40 mm et d'une épaisseur de 4 mm,
  • Tôle pour la surface de la table 2,2x0,75 m,
  • Planches pour caisses en bois (poutre 50x50 mm),
  • Pièces de contreplaqué pour tiroirs et murs de bureau,
  • Guides métalliques pour les armoires et un ensemble de vis / vis autotaraudeuses pour connecter tous les éléments.

Le but de l'établi dans le garage

Établi de bricolage dans le garage : guide de montage à la maisonSi vous envisagez d'utiliser le garage comme atelier, vous ne pouvez pas vous passer d'un établi.

Un établi est un bureau pratique pour effectuer diverses opérations techniques. L'objectif principal est le travail de serrurerie à l'aide d'outils manuels ou électriques, le traitement de pièces, le montage ou le démontage de mécanismes, la fabrication ou la réparation de pièces individuelles, etc.

De plus, l'établi est un endroit pour ranger les outils. S'il est correctement organisé, tous les outils et appareils manuels ou électriques sont bien en vue et situés de la manière la plus pratique, il vous suffit de tendre la main. Des douilles pour outils électriques, un étau pour la fixation de pièces et d'autres éléments de l'arrangement sont installés à proximité.

Le résultat de l'exécution de tout travail dépend directement des conditions dans lesquelles il a été effectué, de sorte que l'établi vous permet d'obtenir des résultats de haute qualité et attendus de vos efforts.

Évaluation
Site sur la plomberie

Nous vous conseillons de lire

Où remplir la poudre dans la machine à laver et combien de poudre verser