- A quoi devez-vous faire attention ?
- À propos des moulins à vent faits maison pour la maison
- A quoi devez-vous faire attention ?
- Éolienne maison : avantages et inconvénients
- Principe d'opération
- Comment se déroule le processus de conversion d'un générateur de voiture en éolienne
- Conditions de fonctionnement des éoliennes
- Choix de conception
- Schémas et dessins
- Variétés de générateurs
- Selon l'emplacement du générateur, l'appareil peut être horizontal ou vertical
- Par tension nominale générée
- Entretien de l'appareil
- Entretien de l'appareil
- Possibilités de fabrication
- Choix de conception
- Utilisation d'un ancien refroidisseur d'ordinateur
- Test du générateur
- Conclusions et vidéo utile sur le sujet
A quoi devez-vous faire attention ?
Lors du choix d'une éolienne pour un usage domestique, vous devez faire attention au facteur d'utilisation du vent et, bien sûr, la chose la plus importante est la puissance. Dans les bonnes options d'éoliennes domestiques, le coefficient atteint jusqu'à 45%, ce qui est très productif.
La mise sous tension des appareils électroménagers commence de 300 W à 10 kW (le deuxième indicateur suffit pour s'assurer que tous les appareils électriques fonctionnent dans votre maison).
Un aspect très important lors du choix d'une éolienne pour une maison est sa vitesse. Dans les versions standard, il varie de 5 à 7 unités.Par exemple, si vous avez choisi une éolienne avec une unité de vitesse de "5", cela signifie qu'avec un vent de 10 mètres par seconde, votre hélice tournera à une vitesse 5 fois plus rapide, soit 50 mètres par seconde.
Les deux éoliennes standard avec un axe de rotation horizontal et celles orientées verticalement sont créées, leur vis n'est pas une roue verticale, mais une roue horizontale. Lors du choix d'un deuxième appareil, vous n'avez pas besoin de vous concentrer sur la direction du vent, mais ils sont plus difficiles à fabriquer, à installer et à utiliser, ils ne sont donc pas très populaires.
De de quoi dépend l'efficacité œuvres:
- Conceptions d'une unité spécifique. Cela dépend beaucoup de cela, car chaque éolienne a ses propres caractéristiques dans l'assemblage, par conséquent, chacune d'elles aura des performances différentes. Tout dépend de la taille du moulin à vent lui-même et de la légèreté de ses pales. Le générateur lui-même (le cœur de toute la structure) joue également un rôle important.
- Les conditions météorologiques de la zone où l'éolienne est installée. Comme mentionné précédemment, il est inutile d'installer cette chose dans une zone non venteuse. Si vous l'installez dans des conditions de vent faible, vous n'en tirerez aucun avantage.
À propos des moulins à vent faits maison pour la maison
Un intérêt particulier pour l'énergie éolienne se manifeste au niveau de la sphère domestique. C'est compréhensible si vous regardez la prochaine facture d'énergie consommée du coin de l'œil. Par conséquent, toutes sortes d'artisans sont activés, utilisant toutes les possibilités d'obtenir de l'électricité à peu de frais.
L'une de ces possibilités, bien réelle, est étroitement liée au moulin à vent d'un générateur de voiture.Un appareil prêt à l'emploi - un générateur de voiture - doit simplement être équipé de lames correctement fabriquées afin de pouvoir retirer une certaine valeur de l'énergie électrique des bornes du générateur.
Certes, cela ne fonctionnera efficacement que s'il y a du vent.
Un exemple de la pratique de l'utilisation domestique des éoliennes. Une conception pratique bien conçue et assez efficace d'un moulin à vent. Une hélice tripale est installée, ce qui est rare pour les appareils électroménagers
L'utilisation de pratiquement n'importe quel générateur automobile est acceptable pour la construction d'éoliennes. Mais ils essaient généralement de choisir un modèle commercial puissant, capable de fournir des courants importants. Ici, au sommet de la popularité, la conception de générateurs de camions, de gros bus de passagers, de tracteurs, etc.
En plus du générateur pour la fabrication d'une éolienne, un certain nombre d'autres composants seront nécessaires :
- hélice à deux ou trois pales ;
- batterie de voiture;
- câble électrique;
- mât, éléments de support, attaches.
La conception de l'hélice à deux ou trois pales est considérée comme la plus optimale pour une éolienne classique. Mais un projet domestique est souvent loin des classiques de l'ingénierie. Par conséquent, le plus souvent, ils essaient de ramasser des vis prêtes à l'emploi pour la construction de maisons.
Une turbine de ventilateur de voiture qui sera utilisée comme hélice pour une éolienne domestique. La légèreté et une grande surface utilisable pour l'armée de l'air permettent l'utilisation de telles options
Tel, par exemple, peut être une turbine d'une unité externe d'un système de climatisation split ou d'un ventilateur de la même voiture.Mais lorsque l'on souhaite suivre les traditions de conception des éoliennes, vous devrez construire une hélice d'éolienne du début à la fin de vos propres mains.
Avant de décider de l'assemblage et de l'installation d'une éolienne, il convient d'évaluer les données climatiques du site et de calculer le retour sur investissement. Une aide significative à cet égard sera fournie par les informations d'un article très intéressant, que nous recommandons pour examen.
A quoi devez-vous faire attention ?
Lors du choix d'une éolienne pour un usage domestique, vous devez faire attention au facteur d'utilisation du vent et, bien sûr, la chose la plus importante est la puissance. Dans les bonnes options d'éoliennes domestiques, le coefficient atteint jusqu'à 45%, ce qui est très productif.
La mise sous tension des appareils électroménagers commence de 300 W à 10 kW (le deuxième indicateur suffit pour s'assurer que tous les appareils électriques fonctionnent dans votre maison).
Un aspect très important lors du choix d'une éolienne pour une maison est sa vitesse. Dans les versions standard, il varie de 5 à 7 unités. Par exemple, si vous avez choisi une éolienne avec une unité de vitesse de "5", cela signifie qu'avec un vent de 10 mètres par seconde, votre hélice tournera à une vitesse 5 fois plus rapide, soit 50 mètres par seconde.
Les deux éoliennes standard avec un axe de rotation horizontal et celles orientées verticalement sont créées, leur vis n'est pas une roue verticale, mais une roue horizontale. Lors du choix d'un deuxième appareil, vous n'avez pas besoin de vous concentrer sur la direction du vent, mais ils sont plus difficiles à fabriquer, à installer et à utiliser, ils ne sont donc pas très populaires.
Ce qui détermine l'efficacité du travail:
- Conceptions d'une unité spécifique. Cela dépend beaucoup de cela, car chaque éolienne a ses propres caractéristiques dans l'assemblage, par conséquent, chacune d'elles aura des performances différentes. Tout dépend de la taille du moulin à vent lui-même et de la légèreté de ses pales. Le générateur lui-même (le cœur de toute la structure) joue également un rôle important.
- Les conditions météorologiques de la zone où l'éolienne est installée. Comme mentionné précédemment, il est inutile d'installer cette chose dans une zone non venteuse. Si vous l'installez dans des conditions de vent faible, vous n'en tirerez aucun avantage.
Éolienne maison : avantages et inconvénients
L'installation d'une éolienne peut être nécessaire si votre site n'est pas alimenté en électricité, s'il y a des interruptions constantes du réseau électrique ou si vous souhaitez économiser sur vos factures d'électricité. Le moulin à vent peut être acheté ou vous pouvez fabriquer le vôtre.

Une éolienne artisanale présente les avantages suivants :
- Il permet de faire des économies sur l'achat d'un appareil d'usine, car la fabrication est le plus souvent réalisée à partir de pièces improvisées ;
- Idéal pour vos besoins et conditions de fonctionnement, car vous calculez vous-même la puissance de l'appareil, en tenant compte de la densité et de la force du vent dans votre région ;
- Il s'harmonise mieux avec la conception de la maison et l'aménagement paysager, car l'apparence du moulin à vent ne dépend que de votre imagination et de vos compétences.
Les inconvénients des appareils faits maison incluent leur manque de fiabilité et leur fragilité : les produits faits maison sont souvent fabriqués à partir de vieux moteurs d'appareils électroménagers et de voitures, ils tombent donc rapidement en panne. Cependant, pour que l'éolienne soit efficace, il est nécessaire de calculer correctement la puissance de l'appareil.
Principe d'opération

Lorsque la force de levage commence à agir, le rotor du générateur commence à tourner. Cette force apparaît lorsque les pales commencent à tourner autour du vent. Dans ces circonstances, le générateur commence à produire des flux de courant variables et instables, qui sont redressés dans le contrôleur.
Ce courant est utilisé pour charger les batteries. Dans le même temps, un deuxième appareil est connecté aux batteries - il s'agit d'un onduleur qui convertit la tension continue de l'équipement de batterie en courant alternatif monophasé ou triphasé, qui est utilisé par le consommateur.
L'éolienne fait normalement son travail avec le contrôleur et l'onduleur, mais il existe d'autres façons de l'utiliser :
- Fonctionnement automatique sur batterie.
- Fonctionnement automatique avec batterie et batterie solaire.
- Fonctionnement automatique avec batterie et générateur de secours diesel.
- Une éolienne qui fait son travail en parallèle avec le réseau.
Les avantages de l'énergie éolienne sont certainement bons. L'énergie éolienne est abondante, ne nuit pas à l'environnement, est totalement sûre et fiable en tant que ressource pour la production d'électricité.
Composants sans lesquels une éolienne ne peut pas faire :
- base de fondation;
- armoire électrique;
- tours;
- escaliers;
- mécanisme rotatif;
- gondoles;
- générateur électrique;
- anémomètre;
- système de freinage;
- transmissions;
- lames;
- des systèmes de modification des angles d'attaque des pales ;
Outils requis :
- perceuse électrique avec perceuses (5,5 - 7,5 mm);
- gaz et clé à molette;
- scie sauteuse électrique avec scie à métaux;
- Tournevis;
- roulette;
- rapporteur;
- boussole;
- marqueur;
- Prise ¼ ×20 ;
Comment se déroule le processus de conversion d'un générateur de voiture en éolienne
Le coût des éoliennes industrielles étant élevé, il est préférable de les fabriquer soi-même. Dans ce cas, un générateur de voiture est utile, que l'on trouve chez presque tous les automobilistes. Même une unité défectueuse fera l'affaire, car certaines de ses pièces peuvent encore fonctionner.
Pour obtenir une bonne éolienne d'une voiture générateur de bricolage, il est nécessaire de refaire correctement un tel appareil. Sinon, il ne fournira pas la vitesse nécessaire et sera inefficace. Pour obtenir un moulin à vent, vous devez acheter ou trouver des appareils supplémentaires :
- manette;
- onduleur;
- la batterie.


Compte tenu de la conception d'un moulin à vent fait maison, il est clair qu'il ne sera pas bon marché. Il ne faut pas oublier que pendant son fonctionnement il est nécessaire de changer périodiquement les piles.
Conditions de fonctionnement des éoliennes
Un parc éolien est un appareil qui convertit l'énergie éolienne en électricité. Il existe 2 types de parcs éoliens :
- où le rotor est situé horizontalement ;
- où le rotor est vertical.

Le plus souvent, des générateurs du premier type sont utilisés. Ils se caractérisent par une efficacité élevée (efficacité - jusqu'à 50%). Leurs principaux inconvénients sont :
- degré élevé de bruit et de vibrations ;
- leur installation nécessite un espace libre important (jusqu'à 100 m) ou la présence d'un mât de six mètres de haut.
L'efficacité d'une éolienne à rotor vertical est trois fois inférieure à celle d'une éolienne horizontale.
Schéma d'éolienne verticale à faire soi-même
Le fonctionnement d'une éolienne se compose de 5 étapes clés :
- Sous l'influence du vent, les pales de l'éolienne commencent à tourner.
- En conséquence, le générateur électrique et le rotor commencent à fonctionner.
- L'énergie générée est transférée au convertisseur de charge, puis à la batterie de la voiture.
- Ensuite, l'énergie va aux onduleurs et elle est convertie de 12 (24) Volts à 220 (380) V.
- L'électricité est transférée au réseau électrique.
Choix de conception

Une éolienne à turbine rotative est constituée de deux, parfois quatre pales. Cette conception est simple en raison du fait que des matériaux improvisés sont utilisés. Une maison à deux étages avec une telle éolienne ne peut bien sûr pas être fournie.
Convient pour l'éclairage des dépendances, des lanternes et pour l'alimentation en énergie des petits appareils électroménagers. De tels générateurs dureront longtemps et ne créeront pas de problèmes. Les avantages incluent un faible prix initial pour la fabrication et la réparation. Selon le niveau de bruit, cette conception appartient à faible bruit.
La conception axiale des éoliennes est réalisée à l'aide d'aimants en néodyme. L'élément structurel principal est le moyeu de roue de la voiture avec les disques de frein. Étant donné que les aimants sont récemment devenus moins chers, cette conception peut également être attribuée au budget. Il diffère du type rotatif en ce qu'il génère plus d'électricité.
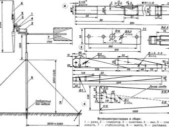
Schémas et dessins
Le générateur en tant qu'appareil génère du courant alternatif, qui doit être converti en courant continu, porté à la tension requise. Si le moteur-générateur produit, disons, 40 volts, il est peu probable que ce soit une valeur appropriée pour la plupart des appareils électroniques grand public qui consomment 5 ou 12 volts CC ou 127/220 volts CA.
Éprouvé par le temps et des millions d'utilisateurs, le schéma de l'ensemble de l'installation comprend un redresseur, un contrôleur, une batterie et un onduleur.Une batterie de voiture d'une capacité de 55 à 300 ampères-heures est utilisée comme stockage tampon de l'énergie stockée. Sa tension de fonctionnement est de 10,9-14,4 V avec une charge cyclique (cycle complet de charge-décharge) et de 12,6-13,65 avec un tampon (portionné, dosé, lorsqu'il faut recharger une batterie partiellement déchargée).

Le contrôleur convertit, par exemple, les mêmes 40 volts en 15. Son efficacité en termes de volt-ampère varie de 80 à 95% - sans tenir compte des pertes dans le redresseur.
Un générateur triphasé a le rendement le plus élevé - sa puissance est 50% supérieure à celle d'un générateur monophasé, il ne vibre pas pendant le fonctionnement (les vibrations desserrent la structure, ce qui la rend de courte durée).
Les bobines de l'enroulement de chacune des phases alternent les unes avec les autres et sont connectées en série - comme les pôles des aimants, face à l'un des côtés des bobines.

Les appareils électroménagers et électroniques modernes sont capables de fonctionner à partir de 110 volts (la norme américaine pour les réseaux domestiques) jusqu'à 250 - il n'est pas recommandé de donner plus aux appareils et appareils réseau. Tous les convertisseurs sont à impulsions, par rapport aux convertisseurs linéaires, leurs pertes de chaleur sont bien moindres.

Variétés de générateurs
Avant de décider comment fabriquer une éolienne de vos propres mains, considérez les caractéristiques de conception:
Selon l'emplacement du générateur, l'appareil peut être horizontal ou vertical
- La conception classique - l'axe de rotation est parallèle au sol, le plan des pales est perpendiculaire. Un tel schéma prévoit une rotation libre autour de l'axe vertical, pour le positionnement "sous le vent". Pour que le plan de rotation occupe toujours une position effective perpendiculaire à la direction du vent, une unité de queue est nécessaire, qui fonctionne sur le principe d'une girouette.Le principe de fonctionnement est simple: le vent change de direction, affecte l'empennage, l'axe de rotation du générateur est toujours situé le long du mouvement du flux d'air. La seule difficulté est de brancher les câbles d'alimentation. Si le boîtier du générateur fait plusieurs tours autour de l'axe vertical, les fils s'enrouleront autour du mât et se rompront. Un limiteur est donc nécessaire. Il ne permet pas un tour complet, mais conduit au gel) du corps dans les zones mortes. Les conceptions industrielles ont un contrôleur de suivi de direction électronique et font tourner le corps à l'aide d'un moteur électrique intégré. Le problème peut être résolu à l'aide d'une hélice cylindrique qui reçoit le flux d'air à travers et le long de l'axe de rotation. Certes, l'efficacité dépend de l'angle d'attaque. Plus le vent dévie d'un angle de 90 °, plus l'efficacité est faible, mais une telle conception est difficile à réaliser de vos propres mains, en raison des difficultés d'aérodynamisme du moteur.
- La meilleure option est les générateurs verticaux (c'est-à-dire que l'axe de rotation de l'arbre est perpendiculaire au sol). Avec cette disposition de la propulsion aérodynamique, vous ne dépendez plus du tout de la direction du vent. La rotation est tout aussi efficace et ne dépend que de la force du flux d'air.La forme des pales peut être très différente, il y a de la place pour l'ingénierie. Il existe de nombreux projets aérodynamiques intéressants développés par des institutions scientifiques. De plus, les dessins de la plupart d'entre eux sont disponibles gratuitement.De plus, les conceptions publiées dans la littérature technique de l'époque de l'URSS s'avèrent parfois les plus rationnelles.Les vis du rotor présentent un avantage indéniable : la génératrice verticale est fixée statiquement, ce qui simplifie le raccordement électrique. Il n'est pas nécessaire d'installer des arrêts de rotation, comme dans les schémas horizontaux.
Par tension nominale générée
- Les éoliennes à monter soi-même pour 220 volts ne nécessitent pas de convertisseurs de tension supplémentaires et sont des conceptions à usage direct. Cependant, leur travail dépend de la force du vent. Au minimum, un stabilisateur de sortie est nécessaire, qui agit comme un régulateur à différentes vitesses d'arbre. En l'absence de vent, le système ne fonctionne tout simplement pas.Les avantages sont indéniables: en règle générale, un moteur électrique puissant est utilisé, sur lequel une vis peut être installée, en la fixant directement à l'arbre du rotor. Les modifications sont minimes en termes de coûts de main-d'œuvre, ces moteurs ont déjà un socle pratique, il ne reste plus qu'à créer une plate-forme de support.Les moteurs électriques peuvent être trouvés avec des coûts financiers minimes: à partir de n'importe quelle installation électrique mise hors service. Par exemple, un ventilateur industriel. Les moteurs des appareils électroménagers conviennent également: machines à laver, aspirateurs.
- 12 volts (rarement 24 volts). La conception la plus populaire est une éolienne à faire soi-même à partir d'un générateur de voiture. De plus, il est démonté de la voiture donneuse avec un convertisseur de tension. Aucune modification du circuit n'est nécessaire : en sortie on obtient soit 14 volts (dans une voiture, la batterie est chargée avec cette tension), soit les 12 volts nécessaires pour alimenter votre système d'alimentation.La présence d'une poulie vous permet de concevoir une transmission par courroie avec le rapport de révolutions requis. La contrepartie peut également être retirée de la voiture donneuse.Si vous le souhaitez, les pales sont montées directement sur l'arbre.Ces éoliennes peuvent être utilisées à la fois pour une connexion directe au consommateur et en mode voiture, reproduisant le système de charge complet avec batterie. Si 12 volts sont nécessaires pour l'alimentation, l'alimentation est prise directement aux bornes de la batterie. Pour obtenir 220 volts, un convertisseur est utilisé. Une option appropriée est une alimentation sans coupure.Le système fonctionne comme suit : si la puissance absorbée est inférieure à ce que le générateur peut fournir, les batteries sont chargées. Si le seuil est dépassé, l'énergie est générée à partir de la batterie.
Entretien de l'appareil
Pour faire fonctionner l'éolienne pendant de nombreuses années et sans interruption, il est nécessaire d'effectuer un contrôle technique et un entretien périodiques.
- Nettoyer, lubrifier et régler le collecteur de courant une fois tous les 2 mois.
- Réparez les lames si des vibrations et un déséquilibre se produisent pendant la rotation.
- Une fois tous les 3 ans, peindre les éléments métalliques avec une peinture anti-corrosion.
- Vérifiez et ajustez les ancres de mât et le câble.
L'efficacité du dispositif est affectée par la zone d'implantation de l'éolienne (terrain vague, présence de vents). Mais dans tous les cas, disposer de cette source d'énergie, indépendante d'une alimentation fixe, ne sera jamais superflu.
Entretien de l'appareil
Pour faire fonctionner l'éolienne pendant de nombreuses années et sans interruption, il est nécessaire d'effectuer un contrôle technique et un entretien périodiques.
- Nettoyer, lubrifier et régler le collecteur de courant une fois tous les 2 mois.
- Réparez les lames si des vibrations et un déséquilibre se produisent pendant la rotation.
- Une fois tous les 3 ans, peindre les éléments métalliques avec une peinture anti-corrosion.
- Vérifiez et ajustez les ancres de mât et le câble.
L'efficacité du dispositif est affectée par la zone d'implantation de l'éolienne (terrain vague, présence de vents). Mais dans tous les cas, disposer de cette source d'énergie, indépendante d'une alimentation fixe, ne sera jamais superflu.
Possibilités de fabrication
Depuis longtemps de l'existence des énergies alternatives, des générateurs électriques de différentes conceptions ont été créés. Ils peuvent être fabriqués à la main. La plupart des gens pensent que cela est difficile, car cela nécessite un certain nombre de connaissances, divers matériaux coûteux, etc. Dans ce cas, les générateurs seront de très faibles performances en raison du grand nombre d'erreurs de calcul. Ce sont ces pensées qui poussent ceux qui veulent abandonner l'idée de fabriquer un moulin à vent de leurs propres mains. Mais toutes les déclarations sont absolument fausses, et maintenant nous allons le montrer.
Les artisans créent le plus souvent des générateurs électriques pour un moulin à vent de deux manières :
- Depuis le hub ;
- Le moteur fini est converti en générateur.
Examinons ces options plus en détail.
Choix de conception
Il existe de nombreuses conceptions, l'article en considérera deux types : une conception de type rotor et une conception axiale avec des aimants.
Une éolienne à turbine rotative est constituée de deux, parfois quatre pales. Cette conception est simple en raison du fait que des matériaux improvisés sont utilisés. Une maison à deux étages avec une telle éolienne ne peut bien sûr pas être fournie.
Convient pour l'éclairage des dépendances, des lanternes et pour l'alimentation en énergie des petits appareils électroménagers. De tels générateurs dureront longtemps et ne créeront pas de problèmes. Les avantages incluent un faible prix initial pour la fabrication et la réparation. Selon le niveau de bruit, cette conception appartient à faible bruit.
La conception axiale des éoliennes est réalisée à l'aide d'aimants en néodyme. L'élément structurel principal est le moyeu de roue de la voiture avec les disques de frein. Étant donné que les aimants sont récemment devenus moins chers, cette conception peut également être attribuée au budget. Il diffère du type rotatif en ce qu'il génère plus d'électricité.
Utilisation d'un ancien refroidisseur d'ordinateur
Pour fabriquer une éolienne, il faut une grande glacière, elle donne les meilleurs résultats et est facile à utiliser. Tout d'abord, vous devez le démonter. L'autocollant est retiré, le bouchon et la bague de retenue sont retirés. Après cela, le refroidisseur peut être facilement démonté le long de l'axe de rotation en deux moitiés d'environ la même taille.
L'un d'eux est un rotor dont les pales devront être remplacées par des plus grandes. Pour ce faire, les anciennes lames sont soigneusement cassées ou coupées, les nouvelles sont fabriquées à partir d'une bouteille en plastique, environ 4 fois plus longue que les précédentes. Il est plus pratique de faire trois pièces, elles auront une surface de base suffisante pour un collage solide.
Le stator a quatre enroulements. Ils peuvent être laissés intacts ou le nombre de tours peut être modifié. Un fil plus fin est pris et enroulé sur toutes les bobines à tour de rôle, de plus, dans une direction différente. Les bobines sont connectées en conséquence.
Après cela, il est nécessaire de fabriquer un redresseur pour lequel quatre diodes sont nécessaires. Ils sont connectés par paires en série, puis en parallèle.Les fils sont connectés, l'appareil est prêt. Pour l'installer dans le vent, vous aurez besoin d'un support ou d'un petit mât, le plus simple à réaliser en coupant un tube métallique. Pour que l'éolienne puisse se diriger indépendamment face au vent, vous avez besoin d'un stabilisateur de queue, comme une queue d'avion.
Pour vérifier les performances, un testeur ou une lampe de poche LED est attaché.
Test du générateur
Vous pouvez tester l'éolienne sur un tour. Pour 125 tr/min, l'indicateur de tension doit être de 15,5 V et à 630 tr/min - 85,7 V.
Avec une charge sur le fil nichrome à 630 tr/min, l'indicateur de tension sera de 31,2 V et le niveau de courant sera de 13,5 A.
Dans le but de créer une centrale éolienne, il est recommandé d'utiliser un autogénérateur avec autant de puissance que possible. Vous pouvez utiliser un générateur d'un camion ou d'un tracteur, ainsi qu'une batterie et un relais.
Il est souhaitable d'installer une éolienne sur une colline ou dans des zones où il n'y a pas de bâtiment dense qui interfère avec les flux de vent.
Conclusions et vidéo utile sur le sujet
Même un tournevis électrique ordinaire peut devenir un moulin à vent si vous connaissez les bases d'une éolienne.
L'intérêt pour les éoliennes ne diminue pas. Au contraire, cette option de production d'énergie électrique est de plus en plus envisagée au niveau des propriétaires de biens immobiliers périurbains.
Évidemment, si vous combinez plusieurs types d'énergie à la fois - éolienne, solaire, turbines hydrauliques ou centrales nucléaires, une telle combinaison peut avoir un effet économique. Dans le même temps, les risques que l'utilisateur se retrouve sans électricité sont réduits à zéro.
Voulez-vous parler de comment construire une eolienne fournir l'électricité au chalet? Vous souhaitez partager des informations utiles non mentionnées dans l'article ? Veuillez écrire des commentaires dans le bloc ci-dessous, partager vos impressions, des nuances techniques connues de vous seul et des photos sur le sujet de l'article.













































