L'appareil d'un plancher d'eau chaude de vos propres mains: à quoi devrez-vous faire face lors de l'installation?

Schémas de câblage pour la pose d'un plancher d'eau chaude: conception et calculs

Principes de conception

Lors du calcul d'un plancher chauffant à l'eau, vous devez considérer :

  • uniquement la zone active du système, sous laquelle se trouvent les tuyaux chauffés, et non toute la quadrature de la pièce;
  • étape et procédé de pose d'une conduite d'eau dans du béton ;
  • épaisseur de la chape - au moins 45 mm au-dessus des tuyaux ;
  • les exigences relatives à la différence de température dans l'alimentation et le retour - 5–10 0С sont considérées comme des valeurs optimales;
  • l'eau doit se déplacer dans le système à une vitesse de 0,15 à 1 m / s - une pompe doit être sélectionnée qui répond à ces exigences;
  • la longueur des tuyaux dans un circuit TP séparé et l'ensemble du système de chauffage.

Chaque 10 mm de chape représente environ 5 à 8 % de la perte de chaleur pour le chauffage du béton. Il vaut la peine de le verser avec une couche de plus de 5 à 6 cm au-dessus des tuyaux uniquement en dernier recours, lorsqu'une résistance accrue de la base rugueuse est requise.

Façons d'ajuster les contours

Les tuyaux du circuit de chauffage au sol sont posés:

  • serpent (boucles);
  • spirale (escargot);
  • double hélice;
  • de manière combinée.

La première option est la plus facile à mettre en œuvre. Cependant, lors de la pose de tuyaux avec un «serpent», la température de l'eau au début du circuit et à la fin différera de 5 à 10 0С. Et c'est une différence assez notable, qui se ressent pieds nus. Par conséquent, dans la plupart des cas, il est recommandé de choisir une «spirale» ou de combiner des méthodes pour garantir que l'ensemble du sol présente des conditions de température à peu près égales.

L'appareil d'un plancher d'eau chaude de vos propres mains: à quoi devrez-vous faire face lors de l'installation?

Méthodes de pose

isolation

En tant que matériau d'isolation thermique sous les tuyaux, il est préférable de mettre de la mousse de polystyrène extrudée (EPS). Il s'agit d'un isolant résistant à l'humidité et durable, facile à installer et qui tolère facilement le contact avec un mortier de ciment alcalin.

L'épaisseur des panneaux XPS est sélectionnée comme suit :

  • 30 mm - si le sol en dessous est une pièce chauffée;
  • 50 mm - pour les premiers étages;
  • 100 mm ou plus - si les sols sont posés au sol.

L'appareil d'un plancher d'eau chaude de vos propres mains: à quoi devrez-vous faire face lors de l'installation?

Isolation du sol

Collecteur-mélangeur

L'un des éléments principaux du plancher d'eau est une unité de mélange avec un collecteur, des vannes d'arrêt, un purgeur d'air, un thermomètre, un thermostat et une dérivation. Une pompe de circulation est placée directement dans sa composition ou devant celle-ci.
Si le TP est réglé manuellement dans les plans, alors le raccordement des circuits au collecteur peut se faire par de simples vannes. Sinon, vous devrez installer des thermostats et des vannes électriques sur chaque sortie.

Le collecteur et le groupe mélangeur permettent un contrôle précis de la température de l'eau dans chaque circuit et, grâce au by-pass, protègent la chaudière contre la surchauffe. Il est installé dans un placard spécial ou une niche dans une pièce avec un sol chaud. De plus, si le réglage de cet appareil n'est pas effectué correctement, une poêle à frire chaude peut se transformer sous vos pieds, mais il n'y aura pas assez de chaleur dans la pièce. C'est de lui que dépend l'efficacité de l'ensemble du système de chauffage par le sol.

L'appareil d'un plancher d'eau chaude de vos propres mains: à quoi devrez-vous faire face lors de l'installation?

Assemblage du collecteur

Types de planchers d'eau et caractéristiques de l'appareil

L'élément principal du système d'un tel chauffage par le sol sont les tuyaux à travers lesquels circule l'eau de refroidissement. Ils peuvent être à la fois métalliques et constitués de matériaux polymères. Les premiers se distinguent par un prix élevé et la complexité des connexions, tandis que les seconds sont beaucoup plus faciles à poser, et ils sont moins chers. En plus des tuyaux, d'autres éléments de ce système seront nécessaires. Il s'agit d'un socle sous forme de dalle béton ou polystyrène, d'une couche d'étanchéité, d'une couche d'isolation thermique, d'une chape béton. Sur ce gâteau, le revêtement de finition est posé directement. En général, l'épaisseur de toute la structure sera d'environ 7 à 15 cm.

L'appareil d'un plancher d'eau chaude de vos propres mains: à quoi devrez-vous faire face lors de l'installation?

La structure du plancher chauffant à eau

Selon la manière dont l'agencement du chauffage par le sol est réalisé, il existe plusieurs types de construction de base.

Table. Types de planchers d'eau.

lourd
C'est l'option la plus courante, caractérisée par une grande fiabilité.

Ici, il est important de préparer soigneusement la surface rugueuse (sol ou sols rugueux), puis de poser les couches de chaleur et d'étanchéité, puis la couche de treillis d'armature, à laquelle le circuit de chauffage lui-même des tuyaux sera fixé avec des colliers. Après cela, il reste à tout remplir avec une chape, à le sécher et le sol chaud est prêt à l'emploi.

Les sols à eau lourde sont également appelés sols en béton ou sols humides. Ce dernier est dû au fait qu'il est nécessaire d'effectuer des travaux de coulage de la chape. Il est important de comprendre que la couche de chape au-dessus des tuyaux eux-mêmes ne doit pas être inférieure à 3 cm.
Poumons
Dans ce cas, une plaque spéciale en mousse de polystyrène est utilisée comme base pour les tuyaux. Il est vendu prêt à l'emploi. Lors de l'installation, il doit être posé sur le sous-plancher et posé le long de celui-ci conformément au schéma du tuyau de chauffage par le sol. Ils n'auront pas besoin de fixation supplémentaire, car il y a des saillies spéciales sur la plaque elle-même qui vous permettent de fixer solidement les tuyaux. Ensuite, des plaques spéciales de répartition de la chaleur sont placées sur le dessus, sur lesquelles le revêtement de finition est monté. ce bonne option pour l'ameublement plancher d'eau dans des conditions d'impossibilité de le monter selon le schéma standard en raison du poids élevé de la chape standard.

L'appareil d'un plancher d'eau chaude de vos propres mains: à quoi devrez-vous faire face lors de l'installation?

L'installation d'un sol chaud en soi est considérée comme une tâche d'ingénierie complexe.

Il existe également une autre option pour aménager un système de chauffage par le sol - le long de lattes de bois. C'est-à-dire qu'un arbre sera utilisé comme base pour un tel sol, auquel les tuyaux sont attachés, et sur le dessus ils sont recouverts de fibre de gypse et d'un revêtement de finition. Cette option est utilisée extrêmement rarement et n'est pas fiable.

Avantages et inconvénients

Si l'on compare le chauffage de l'eau aux radiateurs et convecteurs standard, le sol chaud présente un certain nombre d'avantages indéniables: efficacité, sécurité, confort et esthétique de l'intérieur.

  1. Étant donné que la température moyenne du caloporteur est basse et peut atteindre 50 ºС, la consommation d'énergie est réduite de 25%. Dans les pièces équipées de hauts plafonds, ce chiffre atteint plus de 55% du fait que le chauffage n'est effectué que jusqu'à une hauteur de 2,5 m.L'économie est le principal avantage de ce système.
  2. L'inaccessibilité des éléments chauffants, il n'y a aucune possibilité de se brûler ou de se blesser sur le liquide de refroidissement, même pour les enfants.
  3. Le réchauffement s'effectue progressivement et uniformément sur toute la surface, créant des conditions confortables et saines pour rester dans la pièce. Un petit enfant n'aura pas froid en jouant par terre.
  4. Lors de la planification et de la conception d'une pièce, il n'y aura aucune interférence sous la forme de convecteurs ou d'autres éléments chauffants qui doivent être cachés derrière des panneaux décoratifs ou modifiés en fonction du style.

L'appareil d'un plancher d'eau chaude de vos propres mains: à quoi devrez-vous faire face lors de l'installation?

plancher d'eau

Il convient de noter que le chauffage au sol a ses inconvénients.

  1. Le principal inconvénient est la complexité de l'installation. La surface de la base doit être pré-préparée et nivelée. La conception multicouche n'ajoute pas non plus de facilité d'installation.
  2. Possibilité de fuite. La recherche de fuite peut être difficile du fait de la longueur des canalisations, parfois elle peut atteindre 70-80m. Pour résoudre ce problème, vous devrez retirer le revêtement de sol.
  3. Ce type de chauffage ne peut efficacement servir de source de chaleur principale que dans des pièces bien isolées thermiquement, dotées de fenêtres et de portes à double vitrage fiables.Si les pertes de chaleur ne peuvent pas être minimisées, et également dans les endroits où il est impossible de poser un plancher d'eau (escaliers, couloirs), des sources de chaleur supplémentaires devront être installées.

L'appareil d'un plancher d'eau chaude de vos propres mains: à quoi devrez-vous faire face lors de l'installation?

Schéma de raccordement à une chaudière à plancher chauffant à eauSchéma de raccordement à une chaudière à plancher chauffant à eau

Plancher chauffant en bois avec liquide de refroidissement

Dans le cas où vous avez des sols en bois, il est conseillé d'utiliser un design différent du sol chaud.

Il existe deux principaux types de revêtements de sol en bois chaud : à lattes et modulaires.

Lors de la pose d'un sol modulaire, des éléments préfabriqués en panneaux de particules sont utilisés, dans lesquels des rainures sont déjà réalisées en usine pour l'installation de tuyaux caloporteurs.

L'installation d'un plancher en caillebotis avec chauffage au sol se fait comme suit :

  1. Tout d'abord, des bandes de panneaux de particules d'une largeur de 15 à 40 centimètres sont posées sur le sol. Les dalles sont fixées au plafond avec des vis autotaraudeuses par incréments d'environ 2 centimètres.
  2. Un espace est laissé entre les plaques pour la déformation thermique et pour la pose des tuyaux de liquide de refroidissement. Le même espace subsiste entre les plaques et les murs de la pièce.
  3. Un profilé en aluminium est placé dans les rainures entre les plaques d'aggloméré, qui constitue la base des tubes caloporteurs.
  4. Les tuyaux de chauffage par le sol sont situés à l'intérieur du profilé en aluminium.
Lire aussi :  Test de l'aspirateur Samsung SC4520 : l'assistant parfait pour donner - simple, puissant et pas cher

Il est également possible de poser des canalisations de chauffage de l'eau dans le sol sur des bûches.

L'appareil d'un plancher d'eau chaude de vos propres mains: à quoi devrez-vous faire face lors de l'installation?

Pose d'un plancher chauffant à l'eau sur un plancher en rondins

1. La première étape de la construction d'un tel sol est la pose d'une couche d'isolation thermique en mousse polymère.

2. Ensuite, des bûches de bois sont installées.

3.Selon le schéma prévu, une structure en aluminium bouclée est posée, qui servira de lit pour le liquide de refroidissement et reflétera en même temps le flux de chaleur.

4. Une isolation thermique supplémentaire est posée entre les décalages et les tuyaux.

5. Une couche absorbant l'humidité est placée au-dessus de cette structure. Comme il peut être utilisé du polyéthylène expansé ou du carton ordinaire.

6. Au-dessus de la structure des rondins de bois, des profilés en aluminium et des tuyaux caloporteurs, un plancher de tirage est posé, par exemple, à partir de panneaux de particules ou de plaques de fibres de gypse. Assurez-vous de laisser un espace entre les plaques pour la dilatation thermique. Un espace similaire doit être laissé entre les plaques et les murs.

7. Un revêtement de finition est monté sur le sous-plancher - carreaux.

Afin de vous familiariser plus en détail avec l'algorithme étape par étape pour installer de vos propres mains un plancher chauffant à l'eau sous un carrelage, nous vous suggérons de regarder les instructions vidéo:

Caractéristiques de l'installation

Après avoir appris combien il en coûtera pour fabriquer un sol chaud, de nombreuses personnes réfléchissent à la manière de faire ce travail par elles-mêmes. Il y a un grain rationnel dans ce désir, mais en réalité il faudra faire face à des tâches plutôt difficiles de nature technique qui nécessiteront à la fois des connaissances et des compétences pratiques. En raison des différences technologiques entre les différents types de chauffage au sol, leur installation est également différente. Nous vous proposons de comprendre les caractéristiques de l'aménagement d'un sol chaud dans chaque cas.

Chacun des systèmes ci-dessus comprendra des éléments chauffants, des capteurs de température et des thermostats. L'installation est plus pratique à effectuer soit immédiatement lors de la construction de la maison, soit lors de réparations majeures.

Règles pour la version du câble de l'appareil

Comme mentionné ci-dessus, différents types de câbles servent d'élément chauffant dans ce système. Ils sont posés soit dans une chape, soit dans une couche de colle à carrelage si un câble fixé avec un treillis spécial est utilisé. L'installation s'effectue dans l'ordre suivant :

  • Au stade initial, un schéma de pose des câbles est établi et l'emplacement du capteur, du thermostat, ainsi que le point de raccordement pour le chauffage par le sol sont déterminés.
  • Ensuite, une isolation thermique avec un réflecteur est montée sur la base.
  • Ensuite, selon le schéma, des câbles sont posés et un système de thermorégulation est installé, ce qui protégera le système de la surchauffe.
  • Après cela, le sol est rempli de mortier de ciment. La principale exigence à ce stade est d'éviter la formation de vides.
  • Après 30 jours (au moins) après l'achèvement de la chape, le fonctionnement du système est vérifié.

Le chauffage au sol par câble se pose soit dans une chape, soit dans une couche de colle à carrelage

Installation de plancher de film infrarouge

L'installation de ce système est peut-être la meilleure option pour ceux qui ne savent pas comment réchauffer un sol en bois, bien que ce soit également une excellente solution pour les sols en béton. Il est également captivant de pouvoir y poser les types de revêtements de sol que vous aimez, sans limiter votre imagination. Et la meilleure partie est que même une personne qui n'est pas très expérimentée en matière de réparation s'occupera de l'installation.

Principales étapes de travail :

  • Démontage du revêtement de sol existant et préparation de la base. En cas de défauts de surface graves, il est préférable de faire une chape et d'attendre qu'elle sèche complètement.
  • Ensuite, un film avec des éléments chauffants est posé et un thermostat et un capteur sont connectés.
  • L'étape suivante consiste à vérifier les performances du système et à dépanner le cas échéant.
  • Après vérification, les éléments thermiques sont recouverts d'un film protecteur (installation sèche) ou remplis d'une solution (humide). Lors de la coulée, vous devez attendre un mois jusqu'à ce qu'il sèche complètement.
  • La dernière étape est la pose du revêtement de sol, selon la technologie.

Ceci n'est qu'une brève description du processus, une consultation spécialisée fournira beaucoup plus d'informations, mais si ce n'est pas possible, alors il sera utile de regarder la vidéo ci-dessous :

Système de chauffage à eau au sol

Cette option de chauffage par le sol, bien que captivante par sa praticité et son efficacité, n'est pas très courante dans les appartements, car le liquide de refroidissement (eau chaude) est prélevé sur les conduites de chauffage central à eau, ce qui peut affecter négativement la température des radiateurs. De plus, ce type de chauffage au sol est assez laborieux en termes d'installation, nécessite des compétences professionnelles et des coûts de matériel importants. Un autre petit inconvénient, qui peut également jouer un rôle - lors de la réalisation d'une chape, jusqu'à 10 cm de la hauteur de la pièce sont cachés.

L'installation d'un plancher chauffant à l'eau est assez laborieuse, nécessite des compétences professionnelles et des coûts de matériel importants.

Si vous êtes toujours intéressé par la manière de réaliser tous les travaux, nous énumérerons les principales étapes:

  • Ils commencent tous par l'installation d'une colonne montante en polypropylène, si le remplacement n'a pas été effectué auparavant.
  • Ensuite, un schéma de tuyauterie est établi.
  • Après cela, un autre point important est la pose d'une imperméabilisation spéciale fiable, dont les bandes se chevauchent au mieux et les coutures sont extrêmement étroitement liées.
  • Ensuite, une chape rugueuse est réalisée, dont le niveau doit être d'environ 5 cm en dessous du niveau attendu du sol fini, et laisser sécher.
  • L'étape suivante est l'isolation en feuille, dont les joints doivent être collés avec du ruban adhésif en aluminium.
  • Et, enfin, l'installation d'un tuyau en polypropylène selon le schéma, le reliant aux colonnes montantes d'alimentation et de retour via une vanne de régulation.
  • Vérification du système pour les fuites. Ensuite, l'eau doit être évacuée.
  • Réalisez la chape finale, qui doit être parfaitement plane. Laisser sécher et acquérir la force nécessaire.

Calcul d'un plancher d'eau chaude

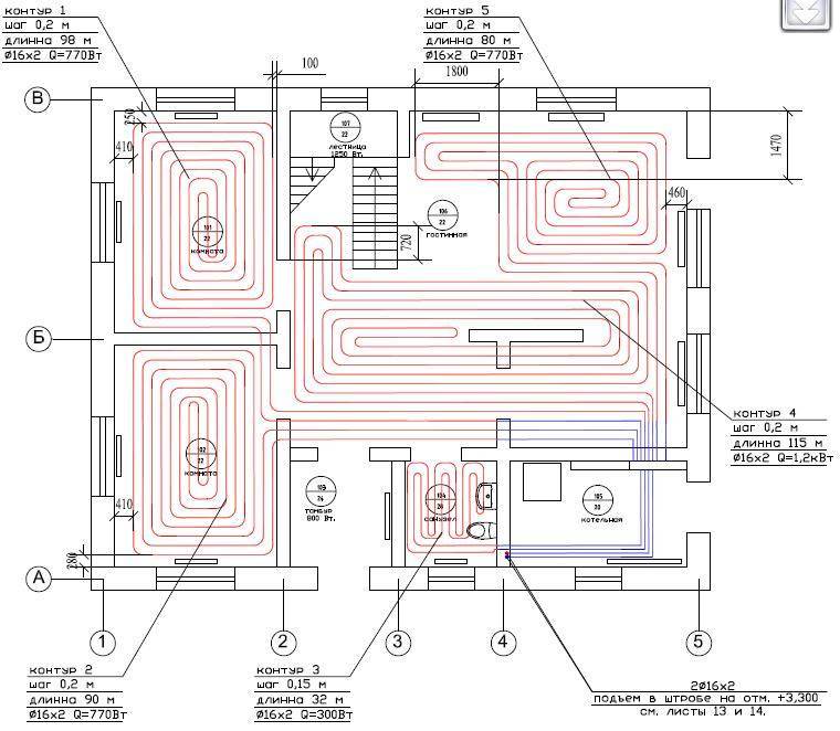
Avant l'installation et l'achat des matériaux, il est impératif de calculer le chauffage au sol. Pour ce faire, ils dessinent un schéma avec contours, qui leur sera ensuite utile lors des travaux de réparation afin de connaître la position des canalisations.

  • Si vous êtes sûr que les meubles ou la plomberie se trouveront toujours à un certain endroit, les tuyaux ne sont pas posés à cet endroit.
  • La longueur du circuit d'un diamètre de 16 mm ne doit pas dépasser 100 m (le maximum pour 20 mm est de 120 m), sinon la pression dans le système sera mauvaise. Ainsi, chaque circuit n'occupe pas plus de 15 mètres carrés environ. M.
  • La différence entre la longueur de plusieurs circuits doit être faible (moins de 15 m), c'est-à-dire qu'ils doivent tous être de longueur uniforme. Les grandes salles, respectivement, sont divisées en plusieurs circuits.
  • L'espacement optimal des tuyaux est de 15 cm en cas d'utilisation d'une bonne isolation thermique. Si en hiver il y a souvent des gelées inférieures à -20, le pas est réduit à 10 cm (uniquement possible sur les murs extérieurs). Et dans le nord, vous ne pouvez pas vous passer de radiateurs supplémentaires.
  • Avec une étape de pose de 15 cm, la consommation de tuyaux est d'environ 6,7 m pour chaque carré de la pièce, lors de la pose tous les 10 cm - 10 m.

En général, la question de savoir comment calculer un plancher d'eau chaude nécessite un examen séparé, car de nombreuses nuances sont prises en compte lors de la conception: perte de chaleur, puissance, etc.

Le graphique montre la dépendance de la densité de flux sur la température moyenne du liquide de refroidissement.Les lignes pointillées indiquent des tuyaux d'un diamètre de 20 mm et des lignes pleines - 16 mm.

  • Pour trouver la densité de flux, la somme de la perte de chaleur de la pièce en watts est divisée par la zone de pose du tuyau (la distance des murs est soustraite).
  • La température moyenne est calculée comme la valeur moyenne à l'entrée du circuit et à la sortie du retour.

Pour calculer la longueur du circuit, la surface de chauffage active en mètres carrés est divisée par le pas de pose en mètres. A cette valeur s'ajoutent la taille des coudes et la distance au collecteur.

Selon le schéma ci-dessus, vous ne pouvez effectuer qu'un calcul approximatif et effectuer le réglage final en raison de l'unité de mélange et des thermostats. Pour une conception précise, assurez-vous de contacter des chauffagistes professionnels.

Un exemple de plancher d'eau chaude

L'appareil d'un plancher d'eau chaude de vos propres mains: à quoi devrez-vous faire face lors de l'installation?

Un exemple de plancher d'eau chaude

Avant d'effectuer des travaux, vous devez savoir que l'appareil d'un tel système occupera un espace d'environ 8 cm du sol de la pièce. La disposition progressive d'un sol chaud comprend les points suivants:

Travailler avec la base

Au départ, toutes les taches de saleté, de débris, de graisse et d'huile sont éliminées de la surface du sous-plancher, puis elles commencent à disposer la première couche. En règle générale, une chape à base d'un mélange de sable et de ciment est utilisée dans la maison. Il est posé dans le strict respect de l'horizontalité - le long des phares. Il est permis d'installer des sols autonivelants à l'aide de mélanges autonivelants modernes. Pour que la chaleur soit répartie uniformément, vous devez rendre la surface parfaitement plane.

Pose du contour

L'appareil d'un plancher d'eau chaude de vos propres mains: à quoi devrez-vous faire face lors de l'installation?

Pose du contour

Selon le schéma que vous avez établi, disposez les tuyaux. Au début, ne les serrez pas trop fort.

Installation du collecteur

Schéma-exemple de raccordement d'un plancher chauffant à l'eau

L'espace alloué aux composants d'amarrage qui relient les tuyaux de chauffage et le système d'alimentation en chaleur de la maison doit être caché dans une armoire spéciale. Il est préférable de faire une niche afin de gagner de la place. Dimensions approximatives de l'armoire : 600x400x120 mm. Il s'agit d'armoires de distribution standard disponibles dans le commerce. Les articulations et certains systèmes de régulation peuvent y être placés.

Connexion armoire

L'appareil d'un plancher d'eau chaude de vos propres mains: à quoi devrez-vous faire face lors de l'installation?

Groupe collecteur d'un plancher d'eau chaude

Accéder au tuyau de retour et au tuyau d'alimentation de la chaudière dans l'armoire. Fixez-y des vannes d'arrêt. Connectez le collecteur et placez un bouchon à son extrémité. Une excellente option serait d'installer un séparateur.

Pose d'une couche d'isolation thermique et d'étanchéité

  1. Il est nécessaire de poser des feuilles de papier d'aluminium ou de polyéthylène sur une base en béton :
  2. Fixez le ruban amortisseur le long du périmètre à 2 cm au-dessus du niveau de la chape.
  3. En tant que matériau isolant thermique, prenez des dalles de laine minérale, de mousse de polystyrène, de mousse de polystyrène, de liège, de béton mousse, de mousse plastique. À votre demande, le composant sélectionné doit être caractérisé par une valeur suffisante de résistance à la température, qui dépassera généralement tous les indicateurs des couches chauffantes.
  4. Une imperméabilisation supplémentaire n'est pas nécessaire si vous avez pris du polystyrène avec du papier d'aluminium comme matériau d'isolation thermique.
  5. L'épaisseur de la couche est prise en fonction de la puissance du système de chauffage autonome, de la présence ou non d'une pièce chauffée à l'étage inférieur, et de la résistance thermique de l'étage.
  6. Il est logique d'acheter un isolant thermique pour les sols à eau chaude, car il comporte des saillies pour les tuyaux d'un côté.

Vérification des travaux et réalisation de la chape en béton

Il est important de vérifier la fonctionnalité du système avant d'effectuer la chape.Ce n'est qu'après avoir vérifié le bon fonctionnement de l'ensemble du système que le sol autonivelant ou le mortier de ciment peut être posé, rendant la surface parfaitement plane le long des balises installées.

Une fois le mélange durci, vous devez effectuer une autre vérification du système et ensuite seulement prendre le dispositif de revêtement de sol.

L'appareil d'un plancher d'eau chaude de vos propres mains: à quoi devrez-vous faire face lors de l'installation?

Profitez de la chaleur du sol

Mélange pour chape coulée

Le remplissage du sol ou de la chape est une procédure qui nécessite beaucoup de soin et de précision. Il est possible d'éviter la fissuration du sol pendant le séchage et pendant le fonctionnement du système en observant attentivement le régime de température et en suivant strictement les instructions de préparation des solutions.

Pour verser, des mélanges autonivelants prêts à l'emploi sont utilisés. pour chauffage au sol ou auto-mélangé sur une base en béton.

Dans le premier cas, les mélanges sont faits à base de gypse, ils nécessitent une dilution avec de l'eau jusqu'à la consistance de la crème sure. Le temps de séchage du sol dans ce cas est de 3 à 5 jours. Pendant cette période, il est recommandé de minimiser l'humidité de l'air.

De l'utilisation de ces solutions pour chape dans des pièces constamment exposées à l'eau (salle de bain, cave), mieux vaut s'abstenir.

Les mélanges faits maison sont fabriqués à base de ciment. La marque recommandée est M300 et supérieure. La composition du mélange est la suivante :

  1. Ciment - 1 partie.
  2. Sable à grain fin - 4 parties.
  3. Eau. De l'eau est ajoutée jusqu'à ce que le mélange ait la consistance d'une pâte. Lors de l'ajout d'eau, une agitation constante est nécessaire.
  4. plastifiant. Il facilite le ragréage, s'applique dans les concentrations recommandées par le fabricant, allant de 1 à 10 % en volume.
    Le critère de la consistance correcte du mélange est la capacité d'en sculpter des grumeaux qui ne s'effritent pas et ne se propagent pas.Si la plasticité de la composition n'est pas suffisante, la bille se fissure, ce qui signifie qu'il y a peu de liquide dans le mélange. Si le mélange est trop liquide, il faut ajouter du sable avec du ciment.

L'appareil d'un plancher d'eau chaude de vos propres mains: à quoi devrez-vous faire face lors de l'installation?Avant de couler, le périmètre de la pièce est recouvert d'un ruban amortisseur, qui sert à insonoriser et à empêcher la fissuration du sol lorsqu'il est chauffé.

Les tuyaux et les câbles sont fixés avec des colliers rigides.

La chape est réalisée à une température de l'air de 5° à 30° (un certain nombre de mélanges professionnels permettent une pose à des températures plus basses, ils ont un marquage spécial).

La surface maximale pour une coulée unique est de 30 m² Il est préférable de diviser les grands espaces en sections. Aux endroits où la surface est divisée en sections, des tuyaux ondulés de protection sont placés sur les tuyaux.

La durée de conservation de la solution finie est de 1 heure, après quoi elle ne peut plus être utilisée.

Le remplissage d'une section s'effectue rapidement et en une seule étape.

Immédiatement après la procédure, le mélange doit être percé à plusieurs endroits avec un poinçon ou une fine aiguille à tricoter pour assurer la libération des bulles d'air. Aux mêmes fins et pour un alignement supplémentaire, un rouleau à pointes ou une brosse dure est utilisé. L'aiguille doit être plus longue que l'épaisseur de la couche de solution.

Le séchage des mélanges faits maison se produit dans les 20 à 30 jours et présente un certain nombre de caractéristiques :

  1. Les changements soudains de température dans la pièce, l'exposition directe au soleil sont inacceptables. Cela se traduit par un séchage inégal et une déformation ultérieure.

Il est préférable de recouvrir la surface du sol d'une pellicule plastique et de l'humidifier périodiquement (tous les quelques jours) avec du liquide.

Après séchage, il est recommandé d'allumer le système de chauffage pendant plusieurs heures en mode d'apport de chaleur modéré.

L'humidité de l'air recommandée est de 60 à 85 %.

Avant de poser du carrelage, du linoléum, du parquet ou du parquet, le chauffage doit être éteint.

Lors de l'utilisation de matériaux sujets à la fissuration et au gonflement, l'humidité de l'air doit être réduite à 65 %.

Le carreau se tient à l'intérieur sur de la colle à carrelage, un tapis, du linoléum et un stratifié directement sur un coupleur.

L'auto-installation d'un plancher d'eau chaude n'est possible que s'il y a suffisamment de temps, un respect précis et précis de toutes les instructions et règles.

Nous vous proposons de regarder une vidéo qui raconte en détail l'installation de planchers chauffants à l'eau :

Matériaux pour un plancher d'eau chaude

Le plus souvent, ils fabriquent un sol chauffé à l'eau dans une chape. Sa structure et les matériaux nécessaires seront discutés. Le schéma d'un plancher d'eau chaude est présenté sur la photo ci-dessous.

Schéma d'un sol à eau chaude avec une chape

Tous les travaux commencent par le nivellement de la base : sans isolation, les coûts de chauffage seront trop élevés et l'isolation ne pourra être posée que sur une surface plane. Par conséquent, la première étape consiste à préparer la base - ils forment une chape rugueuse. Ensuite, nous décrivons étape par étape la procédure de travail et les matériaux utilisés dans le processus :

  • Un ruban amortisseur est également enroulé autour du périmètre de la pièce. Il s'agit d'une bande de matériau calorifuge, d'une épaisseur maximale de 1 cm, qui évite les déperditions de chaleur pour le chauffage des murs. Sa deuxième tâche est de compenser la dilatation thermique qui se produit lorsque les matériaux sont chauffés. Le ruban peut être spécial et vous pouvez également poser de la mousse fine coupée en bandes (pas plus de 1 cm d'épaisseur) ou un autre isolant de la même épaisseur.
  • Une couche de matériaux calorifuges est posée sur la chape rugueuse. Pour le chauffage au sol, le meilleur choix est la mousse de polystyrène. Le meilleur est extrudé. Sa densité doit être d'au moins 35kg/m2.Il est suffisamment dense pour supporter le poids de la table et des charges d'exploitation, offre d'excellentes performances et une longue durée de vie. Son inconvénient est qu'il est cher. D'autres matériaux moins chers (polystyrène, laine minérale, argile expansée) présentent de nombreux inconvénients. Si possible, utilisez de la mousse de polystyrène. L'épaisseur de l'isolation thermique dépend de nombreux paramètres - de la région, des caractéristiques du matériau de fondation et de l'isolation, de la méthode d'organisation du sous-plancher. Par conséquent, il doit être calculé pour chaque cas.

  • De plus, un treillis d'armature est souvent posé par incréments de 5 cm, auquel sont également attachés des tuyaux - avec des pinces en fil ou en plastique. Si du polystyrène expansé a été utilisé, le renforcement peut être supprimé - vous pouvez le fixer avec des supports en plastique spéciaux qui sont enfoncés dans le matériau. Pour les autres appareils de chauffage, un treillis de renforcement est requis.
  • Des balises sont installées sur le dessus, après quoi la chape est coulée. Son épaisseur est inférieure à 3 cm au-dessus du niveau des canalisations.
  • Ensuite, un revêtement de sol propre est posé. Tout approprié pour une utilisation dans un système de chauffage par le sol.

Ce sont toutes les couches principales qui doivent être posées lorsque vous fabriquez un plancher chauffé à l'eau à faire soi-même.

Tuyaux de chauffage au sol et schémas de pose

L'élément principal du système est constitué de tuyaux. Le plus souvent, on utilise des polymères - en polyéthylène réticulé ou en métal-plastique. Ils se plient bien et ont une longue durée de vie. Leur seul inconvénient évident n'est pas une conductivité thermique trop élevée. Cet inconvénient n'est pas présent dans les tuyaux en acier inoxydable ondulé récemment apparus. Ils se plient mieux, ne coûtent pas plus cher, mais en raison de leur faible popularité, ils sont encore rarement utilisés.

Lire aussi :  Comment éliminer les tuyaux bouchés à la maison : les meilleurs outils et méthodes de nettoyage

Le diamètre des tuyaux pour le chauffage au sol dépend du matériau, mais il est généralement de 16 à 20 mm. Ils s'inscrivent dans plusieurs schémas. Les plus courants sont la spirale et le serpent, il existe plusieurs modifications qui tiennent compte de certaines caractéristiques des locaux.

Schémas de pose de tuyaux d'un plancher d'eau chaude

La pose avec un serpent est la plus simple, mais en passant par les tuyaux, le liquide de refroidissement se refroidit progressivement et à la fin du circuit, il fait déjà beaucoup plus froid qu'il ne l'était au début. Par conséquent, la zone où le liquide de refroidissement entre sera la plus chaude. Cette fonctionnalité est utilisée - la pose commence à partir de la zone la plus froide - le long des murs extérieurs ou sous la fenêtre.

Cet inconvénient est presque dépourvu de double serpent et de spirale, mais ils sont plus difficiles à poser - vous devez dessiner un schéma sur papier pour ne pas vous tromper lors de la pose.

Chape

Peut être utilisé pour verser de l'eau chaude le sol est un mortier ciment-sable classique à base de ciment Portland. La marque de ciment Portland doit être élevée - M-400 et de préférence M-500. Qualité du béton - pas inférieure à M-350.

Chape semi-sèche pour chauffage au sol

Mais les chapes «humides» ordinaires acquièrent leur résistance de conception pendant très longtemps: au moins 28 jours. Pendant tout ce temps, il est impossible d'allumer le sol chaud: des fissures apparaîtront pouvant même casser les tuyaux. Par conséquent, les chapes dites semi-sèches sont de plus en plus utilisées - avec des additifs qui augmentent la plasticité de la solution, réduisant considérablement la quantité d'eau et le temps de "vieillissement". Vous pouvez les ajouter vous-même ou rechercher des mélanges secs aux propriétés appropriées. Ils coûtent plus cher, mais ils posent moins de problèmes: selon les instructions, ajoutez la quantité d'eau requise et mélangez.

Il est réaliste de fabriquer un plancher chauffé à l'eau de vos propres mains, mais cela prendra un temps décent et beaucoup d'argent.

Sélection et installation des tuyaux

Les types de tuyaux suivants conviennent à un plancher chauffé à l'eau:

  • Cuivre;
  • polypropylène;
  • Polyéthylène PERT et PEX ;
  • métal-plastique;
  • Acier inoxydable ondulé.

L'appareil d'un plancher d'eau chaude de vos propres mains: à quoi devrez-vous faire face lors de l'installation?

Ils ont leurs forces et leurs faiblesses.

Caractéristique

Matériel

Rayon

pliant

Transfert de chaleur Élasticité Conductivité électrique Durée de vie* Prix ​​pour 1 m.** commentaires
Polypropylène Ø 8 Bas Haute Pas 20 ans 22 r Ils ne se plient qu'avec la chaleur. Résistant au gel.
Polyéthylène PERT/PEX Ø 5 Bas Haute Pas 20/25 ans 36/55 r Ne supporte pas la surchauffe.
métal-plastique Ø 8 En dessous de la moyenne Pas Pas 25 ans 60 r Pliage uniquement avec un équipement spécial. Non résistant au gel.
Cuivre Ø3 Haute Pas Oui, nécessite une mise à la terre 50 ans 240 r Une bonne conductivité électrique peut provoquer de la corrosion. Mise à la terre requise.
Acier inoxydable ondulé Ø 2,5-3 Haute Pas Oui, nécessite une mise à la terre 30 ans 92 r

Noter:

* les caractéristiques des tuyaux sont prises en compte lors de l'utilisation dans des planchers chauffés à l'eau.

** Les prix sont tirés de Yandex.Market.

Le choix est très difficile si vous essayez d'économiser sur vous-même. Bien sûr, vous ne pouvez pas prendre en compte le cuivre - c'est très cher. Mais l'acier inoxydable ondulé, à un prix plus élevé, a une dissipation thermique exceptionnellement bonne. La différence de température dans le retour et l'alimentation, ils ont le plus grand. Cela signifie qu'ils dégagent mieux la chaleur que leurs concurrents. Compte tenu du petit rayon de courbure, de la facilité d'utilisation et des performances élevées, c'est le choix le plus valable.

La pose de tuyaux est possible avec une spirale et un serpent. Chaque option a des avantages et des inconvénients :

  • Serpent - installation simple, il y a presque toujours un "effet zèbre".
  • Escargot - chauffage uniforme, la consommation de matériau augmente de 20%, la pose est plus laborieuse et laborieuse.

Mais ces méthodes peuvent être combinées au sein d'un même circuit. Par exemple, le long des murs "regardant" la rue, le tuyau est posé avec un serpent et dans le reste de la zone avec un escargot. Vous pouvez également modifier la fréquence des virages.

L'appareil d'un plancher d'eau chaude de vos propres mains: à quoi devrez-vous faire face lors de l'installation?

Il existe des normes généralement acceptées par lesquelles les professionnels sont guidés :

  • Étape - 20 cm;
  • La longueur du tuyau dans un circuit ne dépasse pas 120 m;
  • S'il y a plusieurs contours, leur longueur doit être la même.

Sous les articles intérieurs fixes et de grande taille, il est préférable de ne pas démarrer les tuyaux. Par exemple, sous une cuisinière à gaz.

IMPORTANT : veillez à dessiner le schéma de pose à l'échelle. La pose commence à partir du collecteur

Déroulement du correctif de la baie tuyau selon le schéma. Pour la fixation, il est pratique d'utiliser des pinces en plastique

La pose commence à partir du collecteur. En déroulant la baie, fixez le tuyau selon le schéma. Pour la fixation, il est pratique d'utiliser des pinces en plastique.

L'acier inoxydable ondulé est produit en bobines de 50 m.Pour sa connexion, des raccords de marque sont utilisés.

L'appareil d'un plancher d'eau chaude de vos propres mains: à quoi devrez-vous faire face lors de l'installation?

Le dernier élément posé entre les spires des tuyaux est le capteur de température. Il est poussé dans le tuyau ondulé, dont l'extrémité est bouchée et attachée au treillis. La distance au mur est d'au moins 0,5 m N'oubliez pas : 1 circuit - 1 capteur de température. L'autre extrémité du tuyau ondulé est amenée au mur puis, le long du chemin le plus court, est amenée au thermostat.

Pourquoi l'air doit être évacué

La formation de vides réduit l'efficacité du système de chauffage. L'équipement de pompage, comme les autres composants, fonctionne moins efficacement. Pour fournir des conditions de température confortables aux utilisateurs dans les locaux, davantage de ressources doivent être dépensées.

Avec une augmentation de ces vides, la pression diminue progressivement. Après avoir atteint le niveau minimum limite, le signal correspondant est envoyé à la régulation de la chaudière.En plus des appareils électroniques, des moyens mécaniques ayant un but similaire sont utilisés. Il s'agit d'une urgence, donc l'automatisation coupe l'alimentation en gaz ou autre combustible.

Pour l'inclusion ultérieure, il est nécessaire d'augmenter manuellement la pression. Mais il y a beaucoup d'inclusions gazeuses dans l'eau douce, donc les processus négatifs sont accélérés. L'équipement s'éteindra plus souvent.

Rappelons que l'oxydation, qui détruit les métaux, se produit en présence d'eau et d'oxygène. L'ajout d'un nouveau liquide de refroidissement active les processus négatifs correspondants. Dans ce mode de fonctionnement, la durabilité des équipements de chauffage est réduite.

L'apparition de "bouchons" d'air dans les unités d'échange de chaleur des chaudières doit être exclue. Ces pièces sont exposées à des températures très élevées.

Avec un chauffage insuffisamment uniforme, l'échangeur de chaleur sera endommagé de manière irréparable

Les raisons énumérées ci-dessus suffisent à comprendre la nécessité de mesures préventives. Leur mise en œuvre évitera les pannes complexes et les coûts liés aux travaux de restauration.

Choisir l'étape optimale

Après avoir sélectionné le matériau et la méthode de placement des tuyaux, vous devez déterminer la distance entre les tours adjacents du circuit. Cela ne dépend pas du type de placement des liquides de refroidissement, mais est directement proportionnel au diamètre des tuyaux. Pour les grandes sections, un pas trop petit est inacceptable, tout comme pour les tuyaux de petit diamètre, un grand. Les conséquences peuvent être une surchauffe ou des vides thermiques, qui ne caractériseront plus le plancher chaud comme un système de chauffage unique.

Vidéo - Plancher chaud "Valtek". Instructions de montage

Une étape correctement sélectionnée affecte la charge thermique du circuit, l'uniformité du chauffage de toute la surface du sol et le bon fonctionnement de l'ensemble du système.

  1. Selon le diamètre du tuyau, le pas peut aller de 50 mm à 450 mm. Mais les valeurs préférées sont 150, 200, 250 et 300 mm.
  1. L'espacement des caloporteurs dépend du type et de la destination de la pièce, ainsi que de l'indicateur numérique de la charge thermique calculée. Le pas optimal pour une charge de chauffage de 48-50 W/m² est de 300 mm.
  2. Avec une charge système de 80 W / m² et plus, la valeur de pas est de 150 mm. Cet indicateur est optimal pour les salles de bains et les toilettes, où le régime de température du sol, selon des exigences strictes, doit être constant.
  3. Lors de l'installation d'un sol chaud dans des pièces de grande surface et de hauts plafonds, l'étape de pose du caloporteur est égale à 200 ou 250 mm.

L'appareil d'un plancher d'eau chaude de vos propres mains: à quoi devrez-vous faire face lors de l'installation?

Projet d'installation de chauffage au sol

En plus d'un pas constant, les constructeurs ont souvent recours à la technique consistant à faire varier le placement des tuyaux sur le sol. Il consiste à placer plus fréquemment des liquides de refroidissement dans une certaine zone. Le plus souvent, cette technique est utilisée le long des murs extérieurs, des fenêtres et des portes d'entrée - dans ces zones, la perte de chaleur maximale est notée. La valeur du pas accéléré est déterminée à 60-65% de la valeur normale, l'indicateur optimal est de 150 ou 200 mm avec un diamètre extérieur du tuyau de 20-22 mm. Le nombre de rangées est déjà déterminé lors de la pose et le facteur de sécurité calculé est de 1,5.

L'appareil d'un plancher d'eau chaude de vos propres mains: à quoi devrez-vous faire face lors de l'installation?

Schémas de chauffage amélioré des murs extérieurs

Un pas de pose variable et combiné est pratiqué dans les pièces externes et périphériques en raison du besoin urgent de chauffage supplémentaire et des pertes de chaleur importantes. Dans toutes les pièces internes, la méthode habituelle de placement des caloporteurs est utilisée.

Le processus de pose des tuyaux de chauffage par le sol est effectué en stricte conformité avec le projet

Évaluation
Site sur la plomberie

Nous vous conseillons de lire

Où remplir la poudre dans la machine à laver et combien de poudre verser