Comment les prises de comptoir rétractables sont disposées et comment les installer vous-même

Comment les prises de comptoir rétractables sont disposées et comment les installer vous-même

Elaboration d'un agencement de points de vente

Lors de la planification d'une refonte majeure de la cuisine, vous devez prendre soin d'établir un plan d'implantation pour l'emplacement des prises afin d'éviter les fils suspendus inutiles, ainsi que les désagréments lors du raccordement des appareils électriques.

Détermination du nombre de points de vente requis

Pour déterminer le nombre de prises dans la cuisine, vous devez additionner tous les appareils électroménagers que vous prévoyez d'utiliser et ajouter 20 % supplémentaires comme marge. Les consommateurs de cuisine les plus courants sont :

  • cagoules;
  • assiettes;
  • frigo;
  • appareils encastrés;
  • bouilloire, mélangeur, etc.

À la liste qui en résulte, il convient également d'ajouter des appareils pouvant être utilisés à l'avenir. Tous les calculs doivent être effectués au stade du câblage, c'est-à-dire avant le début des travaux de finition, car il ne sera pas facile d'installer des prises supplémentaires ultérieurement.

Le nombre de prises à chaque point de connexion dans la cuisine dépend directement du nombre d'appareils électriques qui seront utilisés à proximité immédiate de celui-ci.

Emplacement des prises pour chaque type d'appareils électroménagers

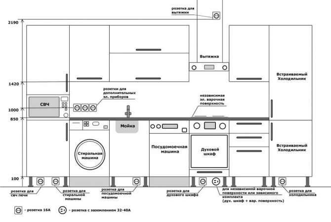
Selon le consommateur, la prise doit être située à un certain niveau du sol :

  1. Plaque. La règle principale est que les prises ne doivent pas être placées au-dessus des brûleurs ou derrière le four. La distance optimale par rapport au sol est de 15 cm avec une certaine indentation sur le côté afin que la fiche soit accessible, mais la prise n'est pas visible.
  2. Frigo. Les recommandations sont généralement les mêmes. De plus, il convient de garder à l'esprit que certains modèles de réfrigérateurs ont un cordon d'alimentation court, ce qui ne vous permettra pas de placer la prise très loin.
  3. Lave-linge et lave-vaisselle. Cette technique comporte des trous à l'arrière pour l'alimentation et l'évacuation de l'eau, de sorte que la sortie doit être située à une certaine distance. Il est préférable de le placer du côté opposé des tuyaux à une hauteur de 15 à 20 cm du sol.
  4. Capot. Étant donné que cet appareil est installé assez haut, la prise doit également être située plus près du plafond, généralement à 2 m du sol.
  5. Sur un tablier.En règle générale, cet emplacement est une zone de travail pour la cuisine, de sorte que le raccordement des appareils électriques de la cuisine peut être nécessaire assez souvent. Pour que la prise puisse être allumée et éteinte sans difficulté, la prise est placée à 10–15 cm du bord du plan de travail ou à 110–115 cm du sol. Vous ne devez pas le placer trop haut, car le tablier est un endroit visible dans la cuisine et les fils bien en vue ne feront que gâcher l'intérieur.

Dans la zone de la cuisine où sont installés le canapé, la table et les chaises, la présence d'une prise est également extrêmement importante, par exemple pour brancher un aspirateur, recharger un téléphone ou un ordinateur portable. Dans ce cas, il est préférable de mettre une paire de prises doubles à une hauteur de 20-30 cm du sol

À un endroit plus élevé, les fils seront visibles.

Règles de câblage

Le raccordement des prises dans la cuisine est effectué en respectant les règles suivantes:

  1. La puissance totale des consommateurs connectés à la prise ne doit pas dépasser le maximum autorisé.
  2. Lors de l'utilisation d'équipements à forte puissance, il est nécessaire d'y apporter une ligne dédiée et d'installer une machine séparée.
  3. S'il y a des appareils électriques avec un boîtier métallique, ils doivent être mis à la terre.
  4. Il est déconseillé d'installer des prises derrière des appareils électriques générant de la chaleur (fours, réfrigérateurs, etc.).
  5. Avant de commencer l'installation, vous devez établir un plan.

Tableau : puissance et section des fils pour connecter les appareils de cuisine

Type d'équipement Consommation électrique maximale Prise Section de câble Automatique dans le bouclier
Connexion monophasée Connexion triphasée
Kit dépendant : tableau électrique plus four environ 11kW Calculé pour la consommation électrique du kit Jusqu'à 8,3 kW/4 mm² (PVA 3*4)
8,3–11 kW/6 mm²
(PVA 3*6)
Jusqu'à 9 kW/2,5 mm² (PVA 3*2,5)
9–15/4 mm²
(PVA 3*4)
séparé, pas moins de 25 A
(seulement 380 V) plus RCD
Tableau électrique (indépendant) 6–11kW Évalué pour la consommation d'énergie du panneau Jusqu'à 8,3 kW/4 mm² (PVA 3*4)
8.3-11kW/6mm² (PVA 3*6)
Jusqu'à 9 kW/2,5 mm² (PVA 3*2,5)
9–15/4 mm²
(PVA 3*4)
séparé, au moins 25 A plus RCD
Four électrique (indépendant) 3,5 à 6 kW prise euro Jusqu'à 4 kW/2,5 mm² (PVA 3*2,5)
de 4 à 6 kW/4 mm² (PVA 3*4)
16 A
25 A
plaque de cuisson à gaz prise euro 1,5 mm² (PVA 3*1,5) 16A
Four à gaz prise euro 1,5 mm² (PVA 3*1,5) 16A
Machine à laver 2,5kW
7 kW avec sécheur
prise euro 2,5 mm² (PVA 3*2,5)
7 kW/4 mm² (PVA 3*4)
séparé, 16 A
séparé, 32 A
Lave-vaisselle 2–2,5kW prise euro 2,5 mm² (PVA 3*2,5) séparé, 16 A
Réfrigérateur, congélateur moins de 1kW prise euro 1,5 mm² (PVA 3*1,5) 16 A
Capot moins de 1kW prise euro 1,5 mm² (PVA 3*1,5) 16 A
Machine à café, cuiseur vapeur, four à micro-ondes jusqu'à 2kW prise euro 1,5 mm² (PVA 3*1,5) 16 A

Variétés

Ainsi, les modules intégrés pour la cuisine sont utilisés au niveau intermédiaire pour les appareils allumés de manière irrégulière, agissant comme des rallonges et des tés. Les fabricants proposent 2 options :

Sortie de cuisine rétractable verticale. Il s'élève du dessus de table comme une colonne, de sorte que même pendant le fonctionnement, la structure occupe un minimum d'espace. Lorsqu'il est fermé, il s'agit d'un couvercle rond d'un diamètre de 6 à 10 cm.Le bloc est retiré après avoir appuyé sur le dessus. De nombreuses structures tournent autour de leur axe.

INFO UTILE : Quelle est la tension dans la prise ?

Comment les prises de comptoir rétractables sont disposées et comment les installer vous-même

Module de prise pivotant. Il s'agit d'une disposition horizontale.Dans ce cas, un couvercle rectangulaire est installé sur le dessus de table qui, après avoir appuyé, se lève et des prises sont montrées sous celui-ci.

Comment les prises de comptoir rétractables sont disposées et comment les installer vous-même

Transfert de budget à faire soi-même

Parfois, des erreurs de calcul se produisent et la question se pose de savoir comment fabriquer des prises dans la cuisine ailleurs. Selon GOST, cela ne peut pas être fait en prolongeant les fils d'une prise précédemment installée, mais il est nécessaire de réaliser un câblage séparé de la boîte de jonction le long du plafond, et le parcours lui-même doit être posé strictement verticalement et horizontalement.

Lorsqu'ils décident comment fabriquer eux-mêmes des prises de courant dans la cuisine à un autre endroit, peu de personnes se conforment à la réglementation - la connexion est établie directement à partir de l'ancien point le long du chemin le plus court. L'outil principal pour effectuer le travail est un perforateur (généralement, un chasseur de mur ou une meuleuse est nécessaire, des couronnes d'un diamètre de 6 cm. Pour percer des trous pour la boîte).

  • À l'aide d'un crayon, tracez une ligne jusqu'au point voulu. Avec une perceuse à béton, nous forons de petites empreintes le long de la ligne par incréments d'environ 1 cm.
  • Nous changeons la perceuse dans le perforateur en une lame et alignons le stroboscope terminé sur toute la longueur.
  • Nous dessinons le contour du cercle sous la boîte à douilles avec un crayon sur le mur, perçons des trous autour de son périmètre (pour faciliter le travail, il peut être nécessaire de percer des trous supplémentaires dans le cercle), puis nous frappons le renfoncement nécessaire avec un perforateur avec une spatule.
  • Nous démontons l'ancienne prise, ne laissant que la boîte, nous libérons les fils. Nous leur fixons un bornier adaptateur spécial.
  • Nous mettons le nouveau fil dans la porte, le faisons passer dans le trou de la boîte et le connectons à l'ancien fil du bornier en serrant les vis.
  • Nous insérons la boîte pour le nouveau point dans le trou défoncé de la prise, enfilons le fil à travers le trou latéral.
  • Nous humidifions le stroboscope et tous les évidements du mur avec de l'eau, fixons le fil et le boîtier, puis recouvrons tous les évidements d'albâtre, de gypse ou de mastic, après avoir préalablement protégé la connexion terminale.
  • Une fois la solution sèche, nous montons une nouvelle prise dans la boîte en y vissant le fil.

Variétés

Étant donné que l'utilisation de rallonges dans la cuisine crée des inconvénients lors du déplacement et de la cuisson, les prises encastrées sont populaires auprès des femmes au foyer. Ces appareils, selon l'emplacement, sont divisés en deux types:

  • vertical;
  • horizontal.
Lire aussi :  10 maisons de films et d'émissions de télévision que tous les fans rêvent de visiter

Les prises installées verticalement peuvent avoir différentes configurations de connecteurs. Dans les modèles inférieurs, les emplacements des fourches peuvent être situés sur toute la circonférence, tandis que dans les modèles supérieurs, ils vont simplement de haut en bas.

Comment les prises de comptoir rétractables sont disposées et comment les installer vous-mêmeComment les prises de comptoir rétractables sont disposées et comment les installer vous-même

Avec une disposition horizontale, il peut y avoir plusieurs emplacements pour une prise classique. Mais il existe des types de prises avec un connecteur pour une prise standard et des ports USB supplémentaires, c'est-à-dire des emplacements pour connecter les sorties Internet et HDMI.

Il existe également une division des prises intégrées dans le comptoir en fonction du type de caractéristiques de conception :

  • rétractable;
  • rotatif.

Les modèles rétractables peuvent faire un tour complet autour de son axe de 360 ​​degrés et ne peuvent tourner qu'à mi-chemin - de 180 degrés. Ces types d'appareils ont souvent un rétroéclairage intégré.

Comment les prises de comptoir rétractables sont disposées et comment les installer vous-mêmeComment les prises de comptoir rétractables sont disposées et comment les installer vous-même

Quel que soit le type, les prises intégrées présentent un certain nombre d'avantages par rapport à une rallonge. Et le principal est la capacité d'organiser efficacement l'espace de travail sur la table de la cuisine, même si ses dimensions sont petites et la configuration non standard. Dans le même temps, l'apparence d'un tel appareil est beaucoup plus moderne et esthétique.La disposition fonctionnelle des prises intégrées est d'un ordre de grandeur supérieur, tout comme le niveau de sécurité

Et ceci est particulièrement important dans des conditions où de l'humidité est périodiquement présente à proximité de l'appareil. La sécurité est également importante lorsqu'il y a de jeunes enfants dans la maison.

Quelles prises sont les meilleures pour la cuisine

Outre la hauteur sous plafond et la disposition, cette pièce présente les caractéristiques suivantes.

  1. Pendant la cuisson, il y a une augmentation de l'humidité.
  2. Il y a des fluctuations de température.
  3. Consommation régulière d'électricité, si nécessaire des appareils électroménagers sont utilisés pour cuisiner.

Comment les prises de comptoir rétractables sont disposées et comment les installer vous-même

Planifiez toujours l'emplacement des prises après l'approbation de la conception de la cuisine, sinon il pourrait y avoir des problèmes.

Les prises situées dans la cuisine doivent être protégées de l'humidité. Choisissez les modèles avec le meilleur indice de protection, lié à la classe IP44.

Comment les prises de comptoir rétractables sont disposées et comment les installer vous-même

Suivez la règle - pour chaque appareil de cuisine fixe, prévoyez votre prise + 2 blocs le long des bords du comptoir + 1 pc près de la table à manger.

Il est particulièrement important de placer ces prises là où le liquide peut pénétrer: il s'agit d'un espace de travail, d'un évier, d'une cuisinière. Les zones de la pièce où ce risque n'existe pas, par exemple la salle à manger, peuvent être équipées de prises conventionnelles

Comment les prises de comptoir rétractables sont disposées et comment les installer vous-même

La catégorie des équipements fixes comprend un réfrigérateur, une hotte aspirante, une plaque de cuisson et un four, un micro-ondes, un lave-vaisselle, un broyeur à déchets.

Si les finances le permettent, vous pouvez choisir des appareils plus modernes pour l'installation: rétractables, intégrés, avec protection pour enfants, avec un canal USB pour connecter des appareils mobiles.

Emplacement des prises dans la cuisine

Placez des blocs de prises dans la cuisine de manière à ce que tous les appareils électriques soient sur 3 niveaux :

  • plus bas,
  • moyen,
  • plus haut.

Comment les prises de comptoir rétractables sont disposées et comment les installer vous-même

Disposition approximative

Le niveau inférieur comprend des appareils qui peuvent être intégrés dans les armoires inférieures :

  • plaque de friture,
  • Machine à laver,
  • four,
  • Lave-vaisselle.

La technologie intermédiaire est :

  • Bouilloire électrique,
  • machine à café,
  • robot culinaire,
  • grille-pain électrique,
  • mixeur,
  • four micro onde,
  • autres appareils installés sur le comptoir.

Les appareils haut de gamme comprennent les appareils qui se trouvent au-dessus de la table de la cuisine,

  • les systèmes d'échappement,
  • rétro-éclairage,
  • climatiseur.

Pour les appareils du niveau inférieur, les prises sont installées à partir du sol à une distance de 10-15 cm.Pour un lave-linge et un lave-vaisselle, pour un réfrigérateur, des prises avec mise à la terre sont nécessaires.

Comment les prises de comptoir rétractables sont disposées et comment les installer vous-même
Pour les appareils de niveau intermédiaire, des prises ont été installées dans le comptoir ces dernières années. Leurs connecteurs sont à l'abri des regards indiscrets. Ils s'installent directement sur le plan de travail ou sur le tablier. Ce type d'appareils coulissants pour la cuisine se compose le plus souvent de blocs comprenant 3 prises ou plus. Ils s'enfoncent dans le placard. Pour les retirer, appuyez légèrement sur le couvercle avec vos doigts.

Les appareils du niveau supérieur sont raccordés à des prises installées à 10 cm au-dessus des armoires.

Les blocs de prises rétractables intégrés au plan de travail présentent un certain nombre d'avantages par rapport aux points de commutation conventionnels pour les appareils. Leurs avantages incluent :

  • un gain de temps et d'espace,
  • sécurité,
  • Fonctionnalité,
  • esthétique.

Comment les prises de comptoir rétractables sont disposées et comment les installer vous-même
Gain de temps car il n'est pas nécessaire de tirer des rallonges. Cette circonstance économise de l'espace. Les fils ne s'emmêlent pas sous vos pieds. Les prises intégrées ne conviennent pas aux jeunes enfants. Ils sont protégés contre les infiltrations d'eau, de sorte que la possibilité d'un court-circuit est réduite à zéro.La prise escamotable est fonctionnelle, car vous pouvez allumer plusieurs appareils en même temps. Cela ne gâche pas l'apparence de la cuisine. Après utilisation, il se cache soigneusement dans le plan de travail (Fig. 3). De nombreux habitants ont déjà installé de tels appareils chez eux et les ont appréciés.

Installation de prises encastrées dans le comptoir

Les blocs de prises rétractables encastrables peuvent être installés à différents endroits de la cuisine. Pour cela, tous les meubles, principalement les comptoirs, sont utilisés. Cette option est très pratique, car vous pouvez poser en toute sécurité de la vaisselle et d'autres articles sur le couvercle fermé.

Il est recommandé de commencer à encastrer une sortie escamotable en découpant un trou du diamètre souhaité dans le plan de travail, correspondant à la taille du bloc. Ensuite, toute la structure doit être insérée dans le trou et fixée par le bas avec une rondelle spéciale fournie avec le produit. Les dimensions du trou doivent être aussi proches que possible de l'unité à monter.

Si le comptoir est en pierre artificielle ou en d'autres matériaux à haute résistance, dans lesquels il est très difficile de couper ou de percer un trou, il est nécessaire de commander ce travail au fabricant à l'avance. Les recommandations d'experts peuvent grandement faciliter le processus d'installation. Dans la mesure du possible, l'emplacement des points de vente doit être pris en compte au stade de la conception. Cela est particulièrement vrai lors du remplacement du câblage, ce qui vous permet d'assurer l'accès normal des produits intégrés au réseau électrique.

Recommandations d'installation :

  • Il doit y avoir un espace libre dans le meuble pour accéder au lieu de fixation de la structure. Tous les éléments qui interfèrent avec le libre accès doivent être démontés si possible.
  • Il est recommandé de ne raccorder la prise au réseau électrique qu'après son installation. Si le fil n'est pas assez long, il doit être rallongé ou complètement remplacé.
  • La partie escamotable de l'appareil, lorsqu'elle est immergée, doit s'insérer complètement à l'intérieur du meuble où elle est construite.

Les points les plus pratiques où les blocs de prises rétractables peuvent être installés sont, tout d'abord, les lieux de concentration dans un grand nombre d'appareils électroménagers différents. Le plus souvent, ils sont montés dans la zone de travail et sur le plan de travail, ils doivent avoir des prises avec une certaine marge et correspondre à la charge attendue.

Règles pour l'emplacement des prises dans la cuisine: photos, schémas et recommandations

Avant de commencer à choisir des lieux, ainsi qu'à installer des prises, vous devez faire quelques calculs qui vous aideront à tout faire correctement. Tout d'abord, vous devez écrire tous les appareils que vous prévoyez d'utiliser dans un proche avenir, ainsi que leur puissance approximative. Bien sûr, les indicateurs de puissance seront individuels, cependant, à titre d'exemple, on peut considérer les indicateurs moyens suivants :

  • réfrigérateur - jusqu'à 1 kW;
  • chauffe-eau - à partir de 1,5 kW;
  • table de cuisson - de 1 à 1,5 kW;
  • lave-linge - environ 1,5 kW;
  • four électrique - à partir de 2,5 kW.

Comment les prises de comptoir rétractables sont disposées et comment les installer vous-même

Un exemple de l'emplacement correct de la prise pour le réfrigérateur

Ce sont tous des éléments de gros appareils électroménagers qui créent la charge principale sur le réseau. Les petits appareils, qui comprennent un four à micro-ondes, un mixeur, une cafetière, une bouilloire, etc., consomment en règle générale de 300 à 800 kW, selon le modèle.

Comment organiser les prises dans la cuisine: règles de base

Voici quelques règles de base à suivre lors de l'aménagement des prises dans la cuisine :

la puissance totale de tous les appareils qui seront connectés à une prise ne doit pas dépasser celle autorisée. Autrement dit, vous devez voir à l'avance la puissance de chaque appareil (elle est indiquée dans la fiche technique). Habituellement, seuls de gros appareils tels qu'une bouilloire électrique et un four à micro-ondes ne peuvent pas être connectés à une seule prise, et d'autres combinaisons sont tout à fait acceptables;

Comment les prises de comptoir rétractables sont disposées et comment les installer vous-même

La disposition des prises électriques et les conclusions dans la cuisine

  • il devrait y avoir suffisamment de lignes électriques pour les prises dans la cuisine afin qu'il y en ait assez pour toutes les prises avec une double marge. Pour ce faire, divisez conditionnellement l'espace en plusieurs zones, en fonction de l'emplacement des appareils, puis divisez la puissance requise pour les alimenter en groupes de prises. En multipliant le résultat par deux dans chacun des groupes, vous obtiendrez l'image la plus complète du nombre de sources qui seront nécessaires ;
  • afin d'alimenter de gros appareils, il est conseillé de leur apporter des lignes séparées, dont la section sera adaptée. Ceci s'applique aux cuisinières électriques et autres gros appareils pour lesquels une protection automatique individuelle séparée sur le panneau électrique n'interférera pas ;
  • si l'appareil a un boîtier métallique, il doit être mis à la terre et les prises dans ce cas doivent être connectées via un RCD ou un disjoncteur différentiel;
Lire aussi :  Comment utiliser des moyens improvisés pour nettoyer la maison pour gagner du temps

Comment les prises de comptoir rétractables sont disposées et comment les installer vous-même

Dans une grande cuisine, il est préférable de disposer des blocs avec moins de prises, mais avec un intervalle plus fréquent.

  • selon la réglementation, l'installation de prises directement au-dessus d'appareils électriques (réfrigérateur, four, hotte aspirante, etc.) est strictement interdite. Ils doivent être situés strictement sur le côté et à une distance d'au moins 20 cm;
  • Un autre point important concerne l'installation à l'emplacement du tablier. Les prises de courant dans la cuisine doivent s'élever au-dessus du plan de travail d'au moins 10-15 cm pour éliminer le risque de gouttes d'eau et de graisse.

Comment les prises de comptoir rétractables sont disposées et comment les installer vous-même

Les prises encastrées ne doivent pas être placées près de l'évier pour éviter que l'eau ne pénètre dans l'appareil

Vous pouvez comprendre à quelle puissance telle ou telle prise est destinée en prêtant attention au marquage fourni par le fabricant. Il existe deux options : 10 ampères - 2,2 kW et 16 ampères, ce qui correspond à 3,5 kW

Disposition des prises dans la cuisine: principes de compilation

Il est plus facile d'installer correctement les prises dans la cuisine si vous utilisez le schéma préparé

Vous pouvez en utiliser un prêt à l'emploi, mais il vaut mieux prendre le temps de le compiler vous-même, car c'est le seul moyen de prendre en compte toutes les subtilités et caractéristiques d'une cuisine et d'appareils particuliers. Il vaut la peine d'utiliser les schémas proposés sur Internet plutôt comme exemples et lignes directrices.

La commodité de leur utilisation, ainsi que l'aspect esthétique du problème, dépendront du soin apporté au système de localisation des prises.

Comment les prises de comptoir rétractables sont disposées et comment les installer vous-même

Schéma de câblage électrique de la cuisine pour le raccordement des appareils électroménagers

Avantages des prises cachées

Les prises encastrées sont des appareils ergonomiques qui permettent de se débarrasser des fils inutiles dans la cuisine. Ils sont absolument sans danger pour l'utilisateur, sans entretien et adaptés à une utilisation dans des pièces très humides. En raison de l'absence de fils des unités de réseau dans le domaine public, la sécurité électrique globale augmente.

Comment les prises de comptoir rétractables sont disposées et comment les installer vous-mêmeLes blocs réseau intégrés vous permettent de cacher les fils bien en profondeur dans le casque, ce qui minimise le risque de dommages accidentels ou délibérés

Les enfants ou les animaux domestiques ne peuvent pas atteindre le cordon. Les dessins secrets sont généralement bien protégés des enfants. Cela est particulièrement vrai pour les modèles équipés d'un mécanisme d'ouverture électromécanique (bouton).

Les modèles modernes de blocs de réseau sont multifonctionnels. Ils peuvent être facilement intégrés dans des systèmes tels que Smart Homes.

Les appareils sont équipés de :

  • connecteurs USB et HDMI ;
  • servos contrôlés par un interrupteur tactile spécial;
  • module de télécommande de la télécommande ;
  • rétro-éclairage, etc...

Les prises intégrées au plan de travail peuvent être installées une fois la réparation et l'installation de l'unité de cuisine terminées. Ils fonctionnent comme une rallonge, et donc leur installation ne nécessite pas de changement de câblage. Grâce à leur design high-tech spectaculaire, ces unités réseau s'intègrent facilement dans n'importe quel intérieur design.

Où ne pas installer

Les connecteurs électriques qui fuient pour connecter une alimentation électrique domestique ne sont pas en mesure de fournir une protection contre la pénétration d'humidité dans la jonction des contacts, ce qui signifie qu'il est absolument impossible de faire une prise:

  • Au-dessus de l'évier à moins de 50-60 cm de l'endroit où le jet d'eau peut arriver ;
  • Dans les armoires sous l'évier de la cuisine, à proximité des points de raccordement d'eau chaude et froide, à proximité des appareils de purification d'eau.

Ceci est dû à la sécurité des appareils électriques et des personnes, en cas de fuite, l'eau ne doit pas arriver sur les contacts.

Comment les prises de comptoir rétractables sont disposées et comment les installer vous-même

À proximité:

  • Conduites de gaz, à moins de 0,5 mètre ;
  • Au-dessus de la cuisinière à gaz;
  • À moins de 0,5 mètre d'une flamme nue.

Une distance trop proche de la cuisinière à gaz peut entraîner la perte d'élasticité de l'isolant en PVC, sa fissuration et l'exposition des fils conducteurs.Eh bien, comme pour les conduites de gaz et les appareils, toute fuite de gaz peut provoquer un incendie.

Nombre de prises dans la cuisine

En ce qui concerne les appareils fixes, il n'y a généralement pas de questions ici - ce qui proviendra des appareils de cuisine «principaux» est toujours clair à l'avance: une cuisinière ou une plaque de cuisson, un four, un réfrigérateur, un lave-vaisselle, un four micro-ondes et d'autres appareils encastrés. Sous chacun de ces appareils électroménagers, une prise séparée est naturellement nécessaire.

Comment les prises de comptoir rétractables sont disposées et comment les installer vous-même

Si nous parlons de prises fournies pour les petits appareils électroménagers tels qu'un mixeur ou un moulin à café, pensez à l'avance au nombre d'appareils électroménagers dont vous pourriez avoir besoin en même temps pour cuisiner. Sous cela, et calculez le nombre de points de vente supplémentaires. Si vous êtes perdu à ce sujet, utilisez l'une de nos recommandations.

Comment les prises de comptoir rétractables sont disposées et comment les installer vous-même

Le premier d'entre eux: pour chaque mètre linéaire de la surface de travail, il doit y avoir au moins une sortie. Cela ne signifie pas que les prises doivent être installées tous les mètres, elles peuvent très bien être regroupées en plusieurs morceaux.

Vous pouvez le faire encore plus facilement et installer 2-3 prises sur le "tablier" de la cuisine au-dessus de chaque comptoir libre. Habituellement, il s'agit de deux ou trois groupes de points de vente.

Comment les prises de comptoir rétractables sont disposées et comment les installer vous-même

N'oubliez pas de placer une ou deux prises dans la zone de la table à manger. Il sera utile s'il est nécessaire d'utiliser des appareils de cuisine sur la table, de charger un téléphone portable ou de connecter, par exemple, un ordinateur portable.

Comment les prises de comptoir rétractables sont disposées et comment les installer vous-même
Une autre prise située immédiatement à l'entrée de la cuisine créera une commodité pour allumer un aspirateur ou un autre équipement, éliminant ainsi le besoin de faire glisser le fil vers une prise libre à l'arrière de la pièce.

Les douilles rétractables et leurs caractéristiques

Comment les prises de comptoir rétractables sont disposées et comment les installer vous-même

Il existe 2 types de prises encastrées dans le plan de travail (selon le type de bloc) : horizontales et verticales.

Les blocs horizontaux comportent de 1 à 5 connecteurs d'alimentation. En plus des prises standard, ils peuvent également fournir des connexions USB, HDMI et Internet.

Les modèles verticaux avec 2 fentes ou plus varient également en fonctionnalité et en hauteur de tiroir. Les connecteurs sont situés les uns après les autres en hauteur.

Comment les prises de comptoir rétractables sont disposées et comment les installer vous-même

Selon les caractéristiques de conception, les blocs de prises intégrés au comptoir sont divisés en:

  1. Rétractable. Selon le modèle spécifique, ils tournent autour de leur axe de 180° ou 360°. Certains fabricants produisent des blocs rétroéclairés.
  2. Pivot. Ils sont considérés comme plus durables et plus fiables en fonctionnement. Leur principal inconvénient est la difficulté d'actionner des équipements de type fourche latérale.

En plus du comptoir, des prises encastrées sont placées dans des armoires murales, des tables et des armoires, dans la gouttière entre le comptoir et le mur. Il n'y a pas de différence fondamentale dans l'emplacement d'installation de ces modèles.Comment les prises de comptoir rétractables sont disposées et comment les installer vous-même

Français ou schuko

Dans la documentation des appareils, il existe des concepts tels que le français et le shuko. Ce sont des désignations pour les fiches et prises d'alimentation CA. Les shuko (ou agrafes) sont le type le plus courant en Russie.

Dans ce type d'appareil, de petits supports de mise à la terre dépassent sur les bords de la prise. La plupart des prises mises à la terre de votre maison sont probablement des shuko.

Le français (ou broche) est une douille avec une broche métallique dépassant de la douille. Bien que ce type de prise ne soit pas courant dans notre pays, il convient à tous les appareils électriques modernes. Ils sont équipés de fourches avec un trou pour la goupille.

Sélection et installation de prises encastrées

Le choix des dispositifs de connexion des consommateurs d'électricité est une question qui nécessite une attention particulière.Avant d'acheter le produit, vous devez l'inspecter soigneusement. Il ne peut y avoir aucun dommage mécanique dessus. La prise rétractable peut être tournée dans le plateau de table dans n'importe quelle direction. La couleur du produit peut être choisie selon vos goûts. Il existe des modèles avec éclairage multicolore.

Avant d'installer vous-même l'appareil, vous devez couper l'électricité dans le bouclier. Un trou est marqué dans le comptoir et découpé avec une scie sauteuse. Ensuite, le produit est inséré dans le trou et fixé dedans. Les produits Legrand de France sont de très haute qualité.

Lire aussi :  Test de l'aspirateur Thomas Twin XT : maison propre et air frais garantis

Ils sont protégés de l'humidité et de la poussière, antichoc. Le couvercle du bloc est à ressort, il est capable de s'ouvrir à un angle de 180º. Le produit a un éclairage LED. Encastrer un tel bloc, c'est se libérer à jamais des fils qui s'emmêlent sous les pieds.

Ces produits présentent de nombreux avantages. Mais il y a aussi des inconvénients :

  • ils sont totalement inadaptés pour y connecter des équipements fixes,
  • les dispositifs coulissants verticaux pour les plans de travail se desserrent rapidement,
  • les blocs horizontaux ne sont pas pratiques pour connecter les fourches latérales.

Lorsqu'un réfrigérateur ou un four est connecté, l'appareil reste ouvert. Les blocs verticaux doivent être tenus à la main lors de la mise en marche et de l'arrêt des appareils. Mieux encore, un panneau horizontal intégré. Mais cela crée également des inconvénients pour les unités à fourches latérales. Leur cordon repose sur le couvercle ou sur le plan de travail.

Choix d'un emplacement pour l'installation de modules de prises intégrés

Au stade où le nombre de points de connexion requis sera compté, il convient de décider de l'emplacement des blocs de prises

Tout d'abord, vous devez faire attention à la commodité et à la bonne accessibilité des prises.

Si les unités encastrées sont installées dans la cuisine, il convient de garder à l'esprit que les appareils électroménagers peuvent être situés sur trois niveaux.

Le niveau inférieur est la zone des armoires au sol, à côté de laquelle sont installés le lave-linge, le lave-vaisselle et le four. Les prises pour ces appareils sont généralement installées individuellement fixées et montées à 150÷200 mm de la surface du sol. Pour les équipements puissants, en règle générale, des lignes séparées sont fournies avec un câble de la section appropriée, équipé à la fois d'une boucle de masse et d'un RCD. Bien sûr, vous ne devez pas connecter de tels équipements aux prises intégrées aux plans de travail.

Le niveau moyen de placement des appareils électroménagers dans la cuisine.

  • Le niveau intermédiaire est constitué de plans de travail sur lesquels sont placés de petits appareils électroménagers, notamment un robot culinaire, une bouilloire électrique, une cafetière, un mixeur, etc. Autrement dit, juste notre cas - les blocs intégrés sont parfaits pour ces appareils. De plus, les prises ordinaires installées sur le "tablier" de la cuisine ne feront que gâcher sa conception. Par conséquent, de nombreux propriétaires ont tendance à masquer les points de connexion en les encastrant dans le comptoir.
  • Le troisième niveau s'étend à environ 800÷1000 mm au-dessus du plan de travail. Peu d'équipements se trouvent ici - il s'agit d'une hotte aspirante et d'un four à micro-ondes. S'ils sont dans la même rangée avec des armoires murales, des unités escamotables ou rotatives peuvent être montées dans les murs ou le bas de ces derniers. Vous pouvez installer des prises pour connecter les appareils ci-dessus au-dessus des armoires murales, en reculant de leur surface de 100÷120 mm. Ces connecteurs conviennent également au raccordement d'un ventilateur ou d'un climatiseur.C'est-à-dire qu'ils se débrouillent généralement à nouveau avec des prises fixes.

Sur la table de bureau (ordinateur) - un peu plus facile. Il prend en compte le nombre de périphériques éventuels nécessitant une connexion à une alimentation électrique ou autre commutation (IP, HDMI, USB, etc.), l'emplacement est choisi pour des raisons de confort maximum pour l'utilisateur. Puisqu'il ne devrait pas y avoir de contact avec l'eau, il n'y a pas d'autres restrictions.

Mesures pour un fonctionnement sûr

Il faut bien comprendre que l'essence même des blocs de prises rétractables et rotatifs intégrés est qu'ils sont utilisés pour connecter des appareils à faible puissance, et selon les besoins. Le reste du temps, le module est dans un état caché. Autrement dit, comme déjà mentionné, des appareils toujours allumés tels qu'un réfrigérateur, un four à micro-ondes, un lave-linge ou un lave-vaisselle, une cuisinière ou un four, un ordinateur de bureau ou un téléviseur doivent être connectés à des prises ordinaires spécialement placées pour eux dans un endroit pratique.

Ne montez pas les éléments encastrés de manière à ce qu'ils soient ouverts ou fermés au-dessus ou au-dessous de la table de cuisson, de l'évier ou sur le plan de travail, mais trop près de ces zones de cuisine.

Ces exigences sont déterminées par des règles de sécurité, car la pénétration d'eau ou de vapeur dans le module peut entraîner un court-circuit et une surchauffe de l'unité peut entraîner sa fusion et sa déformation. La distance à respecter entre les appareils nommés et le boîtier de prises est d'au moins 600 mm.

  • De plus, il faut savoir que de l'eau renversée abondamment sur le couvercle du bloc peut encore pénétrer à l'intérieur du mécanisme.Par conséquent, avant de pousser l'appareil sous le comptoir, n'oubliez pas d'appuyer sur le bouton pour l'éteindre du secteur - cela le protégera des courts-circuits en cas d'urgence.
  • Si de l'eau pénètre à l'intérieur de l'appareil lorsqu'il a été éteint (en appuyant sur le bouton), il doit être complètement débranché du secteur. Ensuite, vous devez inviter un électricien qui déterminera la santé de l'appareil et la possibilité de son fonctionnement ultérieur.
  • Vous ne devez pas définir la charge maximale pour la prise, surtout si le fabricant du produit est inconnu, ce qui signifie qu'il n'y a aucune garantie de sa qualité.
  • Lorsque vous allumez et éteignez la prise de l'unité verticale rétractable, tenez-la à la main. Sinon, vous pouvez rapidement désactiver la "mécanique" du module.

Dans les passeports de produit, les fabricants donnent toujours leurs propres recommandations pour le fonctionnement en toute sécurité de ces appareils. Ne lésinez jamais sur ces conseils !

Points de conception importants

Pour éviter la survenue d'urgences, vous devez tenir compte d'un certain nombre de règles:

  • La puissance des lignes d'alimentation amenées dans la pièce doit être le double des besoins de tous les appareils connectés. Pour déterminer cela, nous divisons la pièce en sections, chacune ayant un groupe de prises. On calcule sa puissance, double le résultat. Nous additionnons les valeurs obtenues.
  • Nous répartissons les consommateurs d'énergie de manière à ce que la puissance totale des équipements connectés à une source ne dépasse pas les valeurs autorisées.
  • Les équipements électriques à haute puissance sont mieux alimentés par des lignes séparées avec une automatisation de protection. Par conséquent, il vaut la peine d'amener le nombre requis de telles lignes dans la pièce depuis le standard. Pour faciliter la compréhension du câblage, chaque machine peut être signée.

Comment les prises de comptoir rétractables sont disposées et comment les installer vous-mêmeInstagram

Pour les appareils électroménagers dans un boîtier métallique, une mise à la terre est requise. Par conséquent, les blocs de prises qui lui sont destinés doivent être correctement connectés via le RCD ou les disjoncteurs différentiels

La meilleure option serait de calculer la consommation approximative de tous les appareils. Pour ce faire, vous pouvez utiliser les valeurs moyennes suivantes :

  • éclairage 150-200 W;
  • réfrigérateur 100 W;
  • bouilloire 2000 W;
  • four micro-ondes 2000 W ;
  • table de cuisson 3000-7500 W;
  • four 2000 W;
  • lave-vaisselle 1000-2000 W.

Il est nécessaire de calculer la puissance totale de l'équipement. Elle doit être comprise entre 10 et 15 kW. Dans le même temps, tous les équipements ne s'allument pas, vous ne devez donc pas compter sur le câblage pour de telles valeurs. Cependant, il est nécessaire de déterminer la puissance maximale possible lorsque plusieurs pantographes sont connectés. Si elle dépasse 7 kW, il convient de penser à raccorder une ligne 380 V et à répartir la charge phase par phase.

Conclusion

Nous avons donc réfléchi à la hauteur des prises au-dessus du plan de travail de la cuisine et aux règles de connexion. On peut en conclure qu'avant d'installer ces appareils, vous devez lire toutes les recommandations afin de les installer correctement et au bon endroit. Il s'agit d'une procédure tout à fait simple qui ne prend pas beaucoup de temps et permet d'économiser de l'argent, car vous n'avez pas à payer d'assistant pour l'installation. Néanmoins, s'il n'y a absolument aucune expérience en matière d'installation, il vaut mieux ne pas prendre de risques et faire appel à un spécialiste qui fera tout rapidement et efficacement. En outre, le maître peut indiquer les emplacements d'installation corrects pour les prises, ce qui évitera aux propriétaires de la maison des problèmes inutiles.

conclusion

Les prises sur un tablier de cuisine en verre sont une chose nécessaire dans l'arsenal de toute femme au foyer moderne.L'essentiel est d'aborder la question de manière responsable et de prendre en compte les éventuelles erreurs. La phase de planification est très importante même au stade du début de la réparation, alors tout le travail se déroulera comme sur des roulettes.

Vous êtes préoccupé par la question : comment installer des prises sur un tablier en verre ? Le studio de verrerie intérieure InterGlass à Ekaterinbourg vous y aidera. Nos maîtres mesureront et installeront des panneaux muraux en verre trempé avec toutes les découpes nécessaires.

Évaluation
Site sur la plomberie

Nous vous conseillons de lire

Où remplir la poudre dans la machine à laver et combien de poudre verser