Qu'est-ce qu'un bac à graisse et pourquoi est-il nécessaire ?

Piège à graisse à faire soi-même - instructions avec photos, dessins et vidéos

Bac à graisse pour évier : création et installation DIY

Bacs à graisses : dispositif et principe de fonctionnement

L'installation de bacs à graisse dans les installations industrielles et alimentaires est due à la présence de normes et règles sanitaires en vigueur, mais en ce qui concerne l'usage domestique, cet appareil est-il vraiment nécessaire dans la maison ? Pour ce faire, vous devez comprendre l'effet des corps gras sur le réseau d'égouts :

  • Une fois refroidis, les acides gras se transforment en une masse floconneuse, qui se dépose sur les parois des tuyaux et finit par provoquer un colmatage, réduisant le débit d'eau. Au fil du temps, le système devient complètement infranchissable et doit être nettoyé (dans le pire des cas, réparé).
  • Les graisses entraînent la formation progressive de substances caustiques qui ont une odeur fétide persistante.
  • Au fil du temps, les dépôts graisseux oxydent et corrodent le système d'égout de l'intérieur, le rendant complètement inutilisable.

Qu'est-ce qu'un bac à graisse et pourquoi est-il nécessaire ?

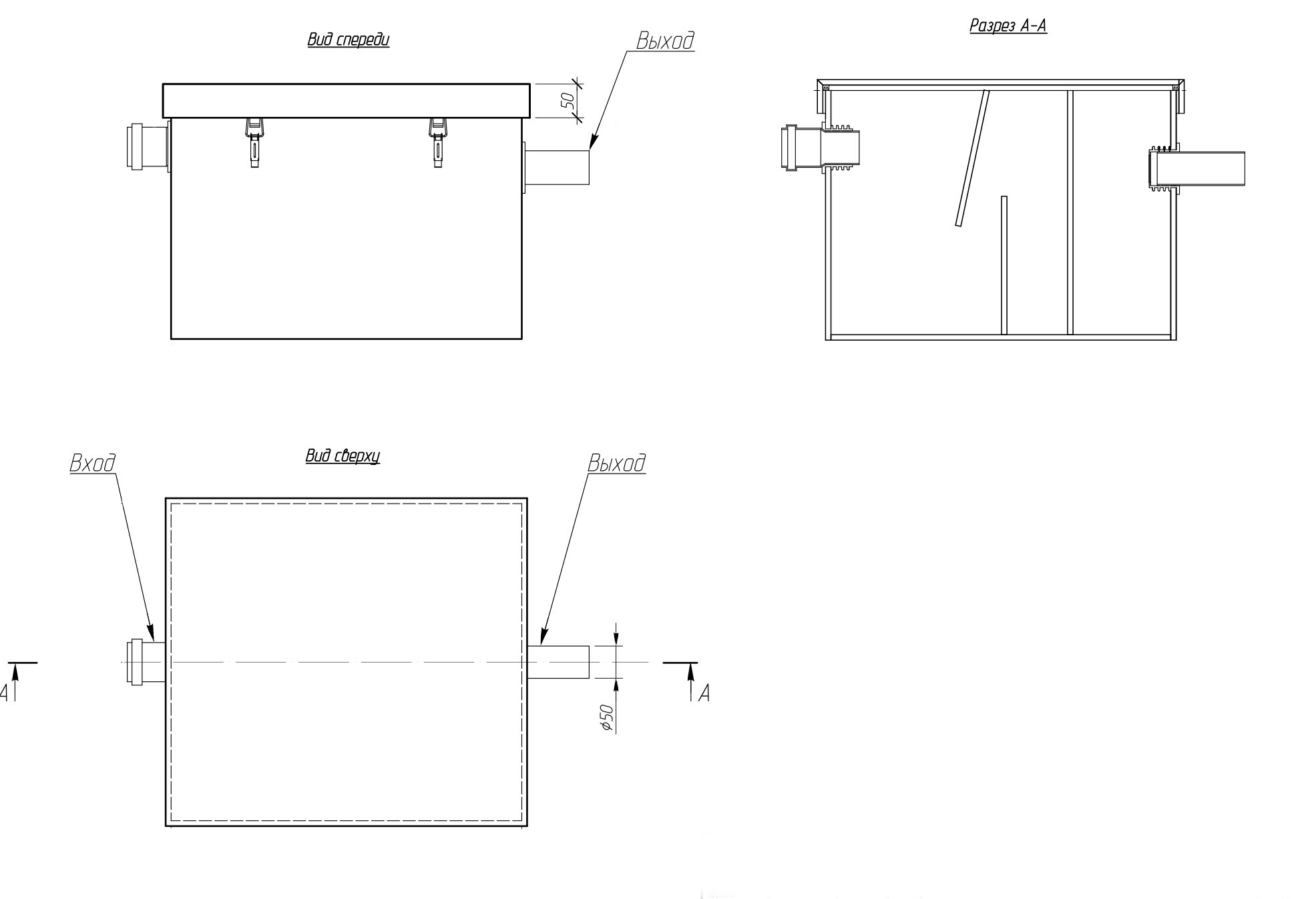
Comme vous pouvez le voir, l'utilisation d'un bac à graisse est tout à fait justifiée même à la maison. Considérons brièvement le dispositif d'une installation domestique. Le bac à graisse est un récipient complètement étanche avec un couvercle amovible, en plastique de qualité alimentaire et divisé en plusieurs sections. Les tuyaux de branchement sont connectés aux extrêmes, qui coupent dans la canalisation d'égout. Installé sous l'évier.

Le bac à graisse est classé comme une fosse septique. Toute l'eau utilisée y passe. Le principe de base du fonctionnement de l'installation est la différence entre les densités d'eau et de graisse. Tout d'abord, les effluents entrent dans le réservoir par le tuyau d'admission. La graisse étant moins dense, ses particules flottent à la surface de l'eau et, grâce aux cloisons installées à travers elles, sont évacuées de là vers un réservoir de stockage spécial. La graisse accumulée dans le bac à graisse ménager ne peut être éliminée que manuellement.

Fabriquer un bac à graisse à faire soi-même

Le plus souvent, des matériaux tels que l'acier, le plastique de qualité alimentaire, la fibre de verre et le polypropylène sont utilisés pour la fabrication de cette unité. Nous considérerons l'option la plus simple - la fabrication d'un appareil en plastique.

Conseils. Si vous avez des produits inutiles en plastique inoffensif sur votre ferme, vous pouvez les utiliser en toute sécurité pour créer la capacité de l'unité.

Avant de procéder directement à la création de la conception, il est important d'effectuer des calculs de base qui aideront à calculer le volume d'installation optimal pour un système d'alimentation en eau particulier. Tout d'abord, calculons les performances de l'unité créée

Nous utilisons donc la formule suivante : Р=nPs, où

  • P - performance de la fosse septique, l / s;
  • n est le nombre de lavabos dans la pièce ;
  • Ps - débit d'alimentation en eau (généralement égal à 0,1 l / s).

Après avoir connu la capacité de l'unité en cours de conception, nous déterminons le volume requis de la structure à l'aide de la formule : V=60Pt, où

  • t est la durée moyenne de sédimentation des acides gras (environ 6 minutes) ;
  • P est la performance de l'unité que nous connaissons déjà.

Qu'est-ce qu'un bac à graisse et pourquoi est-il nécessaire ?

Nous réalisons un plan de l'installation en fonction des cotes obtenues. Vous pouvez maintenant commencer à préparer l'outil et les matériaux :

  • matériau du corps de l'installation (dans notre cas, plastique alimentaire) ;
  • silicone sanitaire;
  • colle de construction;
  • un morceau de tuyau thermoplastique d'un diamètre de 5 cm;
  • coude thermoplastique d'un diamètre de 5 cm;
  • Té en thermoplastique d'un diamètre de 5 cm.

La première étape consiste à couper les pièces pour le corps. Nous utilisons une scie à métaux / scie sauteuse. Tout d'abord, nous collons les côtés (corps) de notre conception, puis nous fixons le fond. Ensuite, nous installons des cloisons internes (leur hauteur doit être de 2/3 de la hauteur des parois latérales).Les joints sont scellés avec du silicone.

Nous installons un coude dans la structure assemblée (il servira de tuyau d'entrée). À partir d'un morceau de tuyau et d'un té, nous fabriquons un tuyau de sortie. Il reste le cas pour les petits - le capot supérieur pour la conception. Aux endroits de son contact avec le corps, nous fixons le joint en caoutchouc. Vous pouvez procéder à l'installation de l'unité dans la zone de travail.

Caractéristiques de l'installation de la structure

L'installation d'un bac à graisse est une opération assez simple, mais elle nécessite de respecter certaines règles :

Qu'est-ce qu'un bac à graisse et pourquoi est-il nécessaire ?

  1. Tout d'abord, nous déterminons le lieu d'installation de l'unité.
  2. Nous vérifions et préparons la surface sur laquelle nous installerons la structure (elle doit être absolument horizontale).
  3. Nous préparons toutes les fixations pour fixer l'unité à la canalisation (colliers, raccords, etc.).
  4. Nous apportons le tuyau d'entrée au drain d'égout et le tuyau de sortie au système de drainage.
  5. Nous testons l'installation, en attendant le premier nettoyage. Si l'unité a réussi le test, vous pouvez fermer l'installation.

C'est en fait tout. En fait, comme vous pouvez le voir, il est assez facile de construire et d'installer un bac à graisse pour un usage domestique. L'essentiel est d'être prudent, attentif et précis. Bonne chance!

Comment nettoyer le bac à graisse ?

Les appareils ménagers installés à l'intérieur de la maison sont nettoyés manuellement. A cet effet, les séparateurs sont équipés d'une lame spéciale. Ce processus est assez simple, ne prend pas beaucoup de temps, mais est quelque peu désagréable. L'algorithme des actions est le suivant :

  • Ouvrez le capot supérieur.
  • Nous récupérons la graisse accumulée avec une spatule.Il est à noter que les déchets gras lors du déchargement des bacs à graisse font l'objet d'une élimination obligatoire, mais ces normes ne s'appliquent pas encore aux appareils électroménagers.
  • Nous vérifions les buses et, si nécessaire, en retirons les grosses particules accumulées.
  • Nous enlevons les sédiments accumulés du fond. Il peut être nettoyé avec n'importe quel détergent.
  • Nous rinçons le système avec de l'eau chaude, ce qui éliminera les particules de graisse et d'huile des tuyaux pouvant entraîner un colmatage.
  • Fermez le couvercle et continuez à utiliser le séparateur.

Pour pomper l'accumulation de graisses du séparateur de rue, un équipement spécial sera nécessaire.

Le nettoyage doit être effectué régulièrement, sinon le système risque de se boucher.

Pièges à graisse pour le traitement des eaux usées à grand volume

Une capacité d'au moins 2 m³ / h, des dimensions impressionnantes et la présence obligatoire d'électronique (des capteurs aux unités de contrôle) distinguent les unités industrielles. Les modèles pour une utilisation intérieure ou extérieure sont raccordés à l'égout pour éviter le colmatage de l'égout de la ville et assurer le traitement des eaux usées dans des systèmes autonomes.

6. KS-Zh-2V

Qu'est-ce qu'un bac à graisse et pourquoi est-il nécessaire ?

KS-Zh - une gamme de trappes à graisse non volatiles de type puits. Conçu pour traiter les eaux usées industrielles avant leur rejet à l'égout de la ville. "2V" - disposition verticale de l'appareil. Installé dans le sol, nettoyé à travers la trappe.

Les avantages du modèle "plus jeune" de la gamme KS-Zh sont les performances et le volume de travail de l'appareil. Grâce à quoi le débit jusqu'à 300 litres par minute est traité efficacement. L'intervalle d'entretien minimum de l'appareil est de six mois.

Parmi les inconvénients - des investissements constants seront nécessaires: pour le calcul - au concepteur, pour la préparation du site et l'installation de l'appareil - aux artisans spécialisés, pour le nettoyage - à un aspirateur professionnel.
Pour contrôler le niveau de graisse actuel, il est préférable d'utiliser un capteur personnalisable, qui est proposé par le fabricant en option.

Spécifications KS-Zh-2V
Caractéristique Sens
Productivité, m³/h 7.2
Débit de pointe, l/min 300
Dimensions (hauteur/diamètre), mm 1300/800
équipement électrique Des capteurs de densité moyenne non volatils sont montés en option.
Pays producteur Russie

Industrial KS-Zh dans la vidéo du fabricant :

7. Lipateur ACO

Qu'est-ce qu'un bac à graisse et pourquoi est-il nécessaire ?

Equipement autonome et volatil ACO Lipator dans un boîtier en acier inoxydable. Le Lipator scellé est conçu pour un fonctionnement continu dans les usines de fabrication et de transformation, les restaurants et les cuisines de navires. Convient aux établissements de restauration situés aux étages supérieurs ou aux niveaux souterrains des bâtiments - où l'élimination des eaux usées non traitées est interdite, ou il n'est pas possible d'organiser une route d'accès pour un camion d'eaux usées.

Lire aussi :  Remplacement de l'égout dans l'appartement de vos propres mains: instructions détaillées pour remplacer la colonne montante et les tuyaux

Le principal avantage est que les graisses et les boues rejetées par les eaux usées sont pompées dans des conteneurs de 60 litres, dans lesquels elles sont transférées pour élimination. La conception de l'appareil est pliable, il n'y a donc aucune difficulté de livraison ou d'installation.Le seul inconvénient d'un tel équipement est son coût élevé.

A noter qu'ACO propose le Lipator en deux configurations : avec équipement d'extraction automatique ou manuel des graisses et des boues.

Spécifications ACO Lipator
Caractéristique Sens
Productivité, m³/h 72
Débit de pointe, l/min 2080
Poids (kg 640
Dimensions (diamètre x hauteur), mm 1830x600
Hauteur du tuyau de dérivation (entrée/sortie), mm 1900x1830
équipement électrique Entraînement électrique de l'agitateur (230 V)
Pays producteur Allemagne

Schéma de la batterie ACO Lipator :

Le choix des éditeurs

Dans une petite cuisine typique avec un évier et un lave-vaisselle domestique, Onyx 0,5-15 serait l'option la plus rentable. La principale règle de fonctionnement est de ne pas utiliser tous les équipements sanitaires en même temps.

La réinitialisation de pointe du dispositif "auto-collecte" PE 1.5-100 permet de connecter simultanément deux bains de lavage et un lave-vaisselle professionnel. Un modèle pratique pour le service traiteur d'un café ou d'un snack-bar, adapté aux locaux de production d'un magasin culinaire.
Les meilleures conditions pour le fonctionnement stable d'un restaurant de grande hauteur, souterrain ou sous-marin sont créées par les modèles autonomes ACO de la gamme Lipator. Les graisses et les boues sont collectées pour le traitement, le liquide purifié est rejeté dans le système d'égout local.

Compte tenu des caractéristiques des modèles populaires décrits dans l'examen, vous sélectionnerez le bon équipement pour des conditions de fonctionnement spécifiques. Après tout, dans la gamme proposée en Russie, les caractéristiques techniques et les dimensions des modèles changent par petits incréments. Dans les cas où les solutions standard ne sont pas justifiées, certains fabricants proposent de fabriquer des pièges à graisse pour les besoins individuels de votre entreprise.

Qu'est-ce qu'un bac à graisse, son dispositif et son principe de fonctionnement

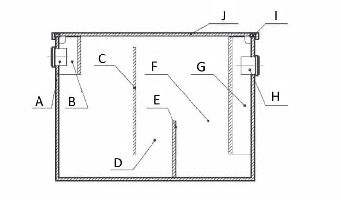
Ce sont des cuves spéciales servant à éliminer les graisses contenues dans les canalisations. Un schéma simplifié d'un tel dispositif est présenté ci-dessous.

Qu'est-ce qu'un bac à graisse et pourquoi est-il nécessaire ?Conception du bac à graisse

Désignations :

  • A - tuyau installé à l'entrée;
  • B - cloison, joue le rôle d'un amortisseur de flux;
  • C - la première cloison de séparation ;
  • D - chambre de séparation ;
  • E - la deuxième cloison de séparation ;
  • F - compartiment de décantation ;
  • G - compartiment de distribution de sortie ;
  • H - tuyau de dérivation pour l'évacuation des eaux usées traitées ;
  • I - un mastic qui assure l'étanchéité de la structure;
  • J - couvercle du réservoir.

La méthode la plus courante de séparation des graisses est mécanique. Des cloisons séparatrices sont installées dans la cuve, ce qui permet de ralentir le mouvement des effluents et de les refroidir. En conséquence, les formations grasses qu'ils contiennent, en raison du passage à un état non émulsionné, sont collectées à la surface de l'eau. Avec l'accumulation d'une certaine quantité de graisse, un nettoyage est effectué. Un schéma visuel du fonctionnement de l'appareil est présenté ci-dessous.

Qu'est-ce qu'un bac à graisse et pourquoi est-il nécessaire ?Schéma de fonctionnement du bac à graisse

Désignations :

  • A - alimentation en eaux usées du réservoir;
  • B - sédiments provenant d'une forte pollution ;
  • C - graisse accumulée à la surface de l'eau;
  • D - cloisons de séparation;
  • E - ligne de niveau d'eau;
  • F - sortie à l'égout.

Les principales caractéristiques techniques des séparateurs sont déterminées par leurs dimensions, leurs performances, leur volume de pointe de décharge et leur mode d'installation.

Pose de bac à graisse

Installer un bac à graisse sous l'évier

L'installation du bac à graisse est assez simple. À monter soi-même l'appareil, vous devez suivre les instructions ci-dessous :

  1. Le lieu d'installation d'un séparateur est choisi. Il doit s'agir d'une surface plane et solide, facile d'accès. Le plus souvent, le bac à graisse est installé directement sous l'évier ou à proximité du lave-vaisselle.
  2. Un filtre à graisse est installé.
  3. Le tuyau d'entrée du séparateur est relié au tuyau d'égout de l'évier ou au tuyau où l'évier et l'équipement de lavage sont connectés. Au point de connexion, un joint en caoutchouc est utilisé, qui est fourni avec l'appareil.
  4. Le tuyau de sortie est déversé à l'égout. Pour connecter les tuyaux, de la même manière que dans le paragraphe précédent, un joint est utilisé.
  5. Le bac à graisse est rempli d'eau pour vérifier l'étanchéité de ses connexions avec les tuyaux.
  6. Le système est fermé par le couvercle de l'appareil.

Qu'est-ce qu'un bac à graisse et pourquoi est-il nécessaire ?

Exemple d'instrument correctement installé

Le séparateur est connecté et testé. L'appareil peut être utilisé.

Installation d'un bac à graisse dans le jardin

L'installation d'un séparateur sur une parcelle personnelle est une tâche plus difficile que l'installation d'un appareil à la maison. Pour l'installer vous-même, vous devez effectuer les étapes suivantes :

Dans un premier temps, choisissez un endroit pour installer le filtre

Il est important de prendre en compte la poursuite de l'aménagement du site et d'éventuels aménagements paysagers.
Un trou de la taille requise est creusé. Lors de l'exécution de ces travaux, il convient de tenir compte du fait qu'au fond de la cavité, il doit y avoir un remblai solide et que le couvercle du séparateur doit dépasser de 3 à 4 cm au-dessus du niveau du sol.
Au fond de la fosse, un coffrage solide est réalisé à partir d'un mélange de sable et de ciment. Si le site a des sols sableux ou limoneux, le mélange utilisé est dilué dans un rapport de 1: 5

Si le sol est plus instable, la quantité de ciment dans la solution doit être augmentée. Une fois la base préparée complètement durcie, vous pouvez poursuivre l'installation de l'appareil.
Le corps du bac à graisse, pour la stabilité et éviter les déformations, est fixé à une base solide avec des boulons d'ancrage.
Un coffrage en contreplaqué est construit autour du bac à graisse pour empêcher l'effusion de terre.L'utilisation de l'instrument dans des climats froids nécessitera l'utilisation de tout matériau d'isolation thermique tel que la laine minérale ou la mousse.

Si le site a des sols sableux ou limoneux, le mélange utilisé est dilué dans un rapport de 1:5. Si le sol est plus instable, la quantité de ciment dans la solution doit être augmentée. Une fois la base préparée complètement durcie, vous pouvez poursuivre l'installation de l'appareil.
Le corps du bac à graisse, pour la stabilité et éviter les déformations, est fixé à une base solide avec des boulons d'ancrage.
Un coffrage en contreplaqué est construit autour du bac à graisse pour empêcher l'effusion de terre. L'utilisation de l'instrument dans des climats froids nécessitera l'utilisation de tout matériau d'isolation thermique tel que la laine minérale ou la mousse.

Qu'est-ce qu'un bac à graisse et pourquoi est-il nécessaire ?

La laine minérale et la mousse plastique sont des matériaux d'isolation thermique appropriés

  1. Le tuyau d'entrée de l'appareil est relié au tuyau d'égout. Après le raccordement, il est recommandé de traiter le joint avec un scellant.
  2. Le tuyau de sortie du séparateur est relié à un autre système de drainage. La jonction des tuyaux est également traitée avec un scellant.
  3. L'espace restant de la fosse est recouvert de terre excavée (la méthode de remblayage est utilisée, dans laquelle la terre extraite de cet endroit particulier est utilisée).

Qu'est-ce qu'un bac à graisse et pourquoi est-il nécessaire ?

Installation de bac à graisse extérieur

Lors de l'installation du bac à graisse dans la rue, des colonnes montantes de ventilateur sont nécessaires. Ces tuyaux sont utilisés pour éliminer les accumulations de gaz en excès du système d'égout qui peuvent endommager l'équipement.S'il est prévu de passer beaucoup de temps sur la parcelle et dans une grande entreprise, c'est-à-dire qu'il y aura beaucoup d'eaux usées, il est recommandé d'utiliser non seulement le tuyau principal, mais également un tuyau de ventilateur supplémentaire.

Si, lors de l'installation du séparateur de graisse, toutes les règles et exigences de base sont respectées, il n'y aura jamais de problèmes de fonctionnement et d'entretien ultérieur de l'appareil.

Que propose le marché ?

Aujourd'hui, il existe de nombreux produits d'entreprises qui produisent des séparateurs de graisse pour éviers de cuisine sur le marché des appareils sanitaires de la Fédération de Russie. Parmi eux parmi les dirigeants :

  1. Produits de la société "The Fifth Element".
    Il peut être trouvé dans quatre modifications de mise en page "standard", "pro", "auto-assemblage", "acier". Dans chacune de ces dispositions, il est possible de choisir un bac à graisse correspondant aux tâches qui lui sont assignées. Le choix peut être influencé par les paramètres suivants: productivité - 0,5-1,5 m3 / h, débit d'eau de pointe - 25-175 l, nombre d'éviers connectés - 1-3, matériau du réservoir de travail - polypropylène ou acier. Cependant, la commodité de l'entretien est également importante, ce qui est assuré par des plaques ou des bidons amovibles pour la graisse, ainsi que des bacs à déchets dans des modifications séparées. L'appareil le plus compact a des dimensions de 420*320*370 mm (L*W*H).
  2. Les séparateurs "Evostok OIL" sont également représentés par des modèles - du plus petit, conçu pour être installé sous des éviers dans des appartements standard, à de grande taille, capable de nettoyer les canalisations de grands chalets, cantines, restaurants, etc. Ils se distinguent par la simplicité du dispositif interne, assemblé dans un boîtier en polypropylène selon un schéma à deux chambres. Dimensions du plus petit modèle - 420 * 320 * 370 mm.
  3. La marque Termit ne propose que quatre tailles standard de ses séparateurs, couvrant le segment le plus populaire, installés sous les bacs à graisse. Les conteneurs d'instruments sont fabriqués en polyéthylène haute pression dans une conception à trois chambres. Une option supplémentaire dans leur configuration peut être un bac pour les ordures et les gros déchets. Il s'agit d'un récipient en plastique amovible facile à retirer et à rincer une fois rempli. La plus petite installation est de 450x350x395 mm.
  4. Les nettoyeurs Triton-PM sont des unités fiables de la marque russe. Sont délivrés dans des étuis polymères coulés à deux chambres. Leurs modèles occupent toute la gamme fonctionnelle en termes de débit de fonctionnement et de décharge de pointe pour une utilisation dans la vie quotidienne, ainsi que dans les mini-productions (cafés, cantines, restaurants). Bien que les dimensions du plus petit produit typique soient de 420 * 320 * 370 mm, le fabricant est prêt à fabriquer une installation de plomberie de séparation pour les demandes individuelles des clients.
Lire aussi :  Installation et raccordement d'un système d'égout écologique

A titre d'exemple contrasté, on peut considérer l'équipement de dégraissage automatique Hydrig. Il s'agit de produits en acier inoxydable assez complexes et coûteux destinés à être utilisés principalement dans des établissements de restauration.

Bac à graisse "Hydrig"

En eux, le processus technologique de séparation se déroule grâce au chauffage électrique des eaux usées, suivi de la séparation mécanique et de la collecte des graisses. L'équipement est volatil, mais fournit le plus haut degré de purification par rapport aux installations gravitationnelles décrites ci-dessus. Les dimensions de l'unité principale du plus petit modèle sont de 590*500*335 mm.

Technologie d'installation d'équipement

Le processus d'installation du séparateur de graisse peut être effectué de différentes manières. Il est nécessaire de choisir le type d'installation optimal en fonction du type et des caractéristiques du piège à graisse. Considérez plusieurs options pour le montage des séparateurs.

Installation d'un bac à graisse de rue

La procédure de montage d'un piège à graisse industriel est complexe et prend du temps. Par conséquent, la plupart des acheteurs de trappes préfèrent confier l'installation des équipements à des spécialistes.

Afin d'effectuer vous-même l'installation, vous devez effectuer un certain nombre de travaux préparatoires:

  • Nous sélectionnons un lieu d'installation. Lors du choix, il convient de prendre en compte les caractéristiques de l'aménagement du site, ainsi que la possibilité d'effectuer des travaux paysagers à l'avenir.
  • Nous déterminons la taille de la fosse pour le montage de l'appareil - sa profondeur doit être telle que le couvercle du piège à graisse soit environ 4 cm plus haut que la surface du sol.
  • Nous creusons un trou. Tout en bas, nous équipons un coffrage solide dans lequel nous versons un mélange de sable et de ciment. Pour les sols sableux et limoneux, une solution préparée dans un rapport de 1: 5 est optimale.
  • Nous attendons que la solution durcisse, au minimum 14 jours.

Lorsque la préparation de la base pour l'installation est terminée, vous pouvez procéder directement à l'installation de l'équipement. Pour ce faire, nous installons le corps du piège à graisse sur une base de béton et fixons solidement l'appareil aux boucles encastrées dans une dalle de béton artisanale pendant la période de coulage. Si vous avez oublié de mettre les charnières, elles peuvent être fixées avec des boulons d'ancrage.

Maintenant, autour de l'équipement installé dans la fosse, nous construisons des murs en contreplaqué particuliers. Ce processus est nécessaire pour empêcher la perte de terre. S'il est prévu de faire fonctionner le séparateur dans un climat froid, il doit être recouvert d'un matériau d'isolation thermique.Pour cela, la laine minérale ou le polystyrène conviennent.

Il reste à connecter le piège à graisse aux réseaux de communication. Pour ce faire, le tuyau de sortie de l'équipement doit être raccordé au système de drainage. Les joints doivent être traités avec du mastic. Et nous connectons le tuyau d'entrée de l'appareil au tuyau d'égout. Nous enduisons le lieu de jonction des éléments avec du mastic.

Tout l'espace libre formé autour du corps du bac à graisse est recouvert de terre. Le remblayage est généralement utilisé, au cours duquel il est nécessaire de remplir l'ouverture avec de la terre excavée à cet endroit au stade du creusement d'un trou.

Il ne faut pas oublier la nécessité d'installer une colonne montante de ventilateur. Il est nécessaire d'éliminer les gaz en excès accumulés dans le système d'égout. S'il y a une forte charge sur le système de drainage, il est préférable d'installer plusieurs colonnes montantes à la fois. Le capteur d'accumulation de graisse, installé à l'intérieur de l'équipement, vous avertira de la nécessité d'une procédure de nettoyage.

Qu'est-ce qu'un bac à graisse et pourquoi est-il nécessaire ?
Les bacs à graisse de rue sont plus souvent nettoyés par des spécialistes d'entreprises spécialisées utilisant des pompes ou des équipements spéciaux

Il est recommandé d'effectuer l'installation et l'installation de pièges à graisse industriels avec la participation d'installateurs professionnels. Ils doivent également avoir des permis pour effectuer toute la gamme de travaux.

De plus, les spécialistes professionnels ont le nécessaire pour le montage d'engins de chantier, afin qu'ils puissent effectuer les procédures nécessaires pour un fonctionnement stable et à long terme de l'équipement.

Installation du bac à graisse à l'intérieur

L'installation d'un séparateur domestique sous l'évier est un processus plus facile que l'installation d'équipements à l'extérieur. Pour ce faire, vous devez d'abord choisir l'endroit optimal pour l'installation de l'équipement.

Il doit être situé sur une surface facilement accessible, dure et aussi plane que possible, à proximité des appareils de plomberie.

Il reste à effectuer une série d'actions séquentielles:

  • Nous apportons le tuyau de sortie de l'équipement dans le système d'égouts. Au point de connexion, vous devez installer un joint en caoutchouc fourni avec l'appareil.
  • Nous connectons le tuyau d'entrée du siphon au tuyau de sortie de l'équipement de plomberie ou à la canalisation (à la jonction de l'évier et de l'équipement de lavage), sans oublier de mettre un joint spécial.
  • Nous recueillons la quantité d'eau nécessaire dans le bac à graisse pour vérifier l'étanchéité de l'appareil.

Si la vérification est réussie, vous pouvez installer un couvercle sur le piège à graisse. Avec l'installation du couvercle, l'installation de l'équipement peut être considérée comme terminée.

Pour plus d'informations sur la façon de choisir et d'installer un bac à graisse sous l'évier, lisez ce document.

Comment nettoyer le bac à graisse ?

Les appareils ménagers installés à l'intérieur de la maison sont nettoyés manuellement. A cet effet, les séparateurs sont équipés d'une lame spéciale. Ce processus est assez simple, ne prend pas beaucoup de temps, mais est quelque peu désagréable. L'algorithme des actions est le suivant :

  • Ouvrez le capot supérieur.
  • Nous récupérons la graisse accumulée avec une spatule. Il est à noter que les déchets gras lors du déchargement des bacs à graisse font l'objet d'une élimination obligatoire, mais ces normes ne s'appliquent pas encore aux appareils électroménagers.
  • Nous vérifions les buses et, si nécessaire, en retirons les grosses particules accumulées.
  • Nous enlevons les sédiments accumulés du fond. Il peut être nettoyé avec n'importe quel détergent.
  • Nous rinçons le système avec de l'eau chaude, ce qui éliminera les particules de graisse et d'huile des tuyaux pouvant entraîner un colmatage.
  • Fermez le couvercle et continuez à utiliser le séparateur.

Pour pomper l'accumulation de graisses du séparateur de rue, un équipement spécial sera nécessaire.

Le nettoyage doit être effectué régulièrement, sinon le système risque de se boucher.

Comment ça marche?

Les bacs à graisse fonctionnent sur le principe de la décantation gravitationnelle. Un séparateur de graisse domestique est un récipient en plastique divisé à l'intérieur par des cloisons en chambres. Dans le premier et le dernier compartiment, il y a des tuyaux de branchement pour les tuyaux de raccordement.

Qu'est-ce qu'un bac à graisse et pourquoi est-il nécessaire ?

La conception a une couverture amovible. Le principe de séparation repose sur le fait que lors de la décantation, le liquide se divise en couches en fonction de la densité. Le processus se déroule comme suit :

  • le liquide pollué entrant dans la vidange de l'évier pénètre dans la première chambre du bac à graisse par le tuyau d'admission ;
  • des séparateurs installés dans le sens transversal séparent une partie des impuretés grasses remontant ;
  • le flux d'eau se déplace vers le compartiment suivant, où l'élimination des graisses se poursuit ;
  • la graisse collectée est déplacée vers le lecteur ;
  • de temps en temps, la chambre de stockage doit être débarrassée de la graisse.

De quoi sont-ils faits?

Les bacs à graisse peuvent être fabriqués à partir de différents matériaux :

  • acier inoxydable;
  • Plastique;
  • fibre de verre.

Les modèles domestiques sont fabriqués principalement à partir de matériaux polymères (polypropylène), car ce matériau est le moins cher et le plus pratique. Les bacs à graisse industriels peuvent également être en acier.

Lire aussi :  Un exemple du dispositif d'égout correct pour une maison privée

Qu'est-ce qu'un bac à graisse et pourquoi est-il nécessaire ?

Les types

Selon le lieu d'installation, on distingue les options suivantes :

  • modèles à installer sous l'évier;
  • trappes à graisse à installer dans la pièce voisine;
  • option d'installation à la sortie de l'égout de la maison;
  • appareils extérieurs.

Performance

Un critère important pour le choix d'un bac à graisse est la performance du modèle. Plus la consommation l'eau, plus le débit du bac à graisse doit être important. Dans des conditions domestiques, des installations d'une capacité de 0,1 à 2 litres par seconde sont utilisées. Les modèles à productivité plus élevée sont classés comme industriels.

Matériaux pour la fabrication de bacs à graisse

Les matériaux les plus populaires à partir desquels les séparateurs de graisse sont fabriqués sont la fibre de verre, le plastique, l'acier galvanisé ou l'acier inoxydable. Leurs appareils diffèrent par leur résistance, leur durabilité et leur prix. Lors du choix d'un appareil pour une cuisine particulière, vous devez décider des priorités et vous concentrer sur les conditions de fonctionnement.

Récipient en plastique pour bac à graisse

Option #1 : plastique ↑

Les bacs à graisse ménagers sous l'évier sont le plus souvent en plastique. C'est un matériau peu coûteux qui ne craint pas la corrosion, les produits chimiques et qui peut durer jusqu'à 30 ans. Les avantages du plastique devraient également inclure la facilité d'entretien. Les inconvénients sont une faible résistance aux dommages mécaniques.

Il existe des modèles de différentes formes, tailles, avec différents débits. Ils sont achetés pour être installés dans des appartements, des maisons privées, des petits restaurants, des cafés, des pubs. Les séparateurs de graisse en plastique de la marque nationale "The Fifth Element" ont fait leurs preuves.

Bac à graisse en plastique

Option #2 : fibre de verre ↑

Un bon choix est les pièges à graisse pour éviers en fibre de verre. Il s'agit d'une option pour les systèmes d'égouts autonomes dans les établissements de restauration publics, les installations industrielles ou les maisons privées où un séparateur de graisse de grande capacité est nécessaire.

Le principal avantage des boîtiers en fibre de verre est leur haute résistance aux influences extérieures.Le matériau est si durable que les appareils peuvent être installés à l'extérieur. Les pièges à graisse en fibre de verre sont légers. Ils sont très faciles à installer, à utiliser et à nettoyer.

Quant aux fabricants, une attention particulière doit être portée aux modèles de la société "Ecoline"

Piège à graisse en fibre de verre

Option #3 : acier ↑

Généralement, les séparateurs de graisse sont en acier inoxydable, moins souvent en acier galvanisé. Les avantages du matériau sont évidents: il est durable, résistant aux dommages mécaniques, aux attaques chimiques. Les appareils en acier inoxydable sont plus chers, mais ils sont aussi de meilleure qualité que les électroménagers. en acier galvanisé.

Modèle en acier inoxydable

L'acier inoxydable a une belle apparence, de sorte que les pièges à graisse peuvent être placés sans masque non seulement sous l'évier, mais également à distance de celui-ci. Ces modèles sont résistants à la corrosion, ils peuvent donc servir pendant des décennies sans réparations. Les inconvénients comprennent une masse relativement importante. Les bacs à graisse en acier sont plus difficiles à installer que ceux en plastique et en fibre de verre.

Lors du choix d'une marque, vous devez faire attention aux produits du groupe ASO. Ce ne sont pas des séparateurs de graisse bon marché, mais il n'y a rien à redire sur leur qualité.

La gamme de produits de l'entreprise comprend des modèles domestiques et industriels conçus pour une installation intérieure et extérieure.

Modèle en acier ASO

Critères de sélection et principaux fabricants

Pour sélectionner l'appareil nécessaire, il faut tout d'abord partir de son objectif. Les paramètres de fonctionnement des séparateurs en dépendent. Par exemple, à des fins domestiques, les performances seront suffisantes dans la plage de 0,1 à 2 litres par seconde.Mais ces caractéristiques sont totalement inadaptées au nettoyage des eaux usées entrant dans les égouts d'une cantine, d'un café ou d'un restaurant; des modèles industriels avec les caractéristiques techniques appropriées seront nécessaires pour cette tâche.

Il convient de noter que de nombreux modèles industriels (par exemple, pour les ateliers où la production de produits laitiers est établie) sont équipés d'équipements supplémentaires qui augmentent l'efficacité du service. Il peut s'agir de pompes automatiques pour le pompage des eaux usées, de capteurs de remplissage, etc.

Un facteur important est le matériau à partir duquel le corps du réservoir est fabriqué, il peut s'agir de plastique, de fibre de verre ou d'acier inoxydable. Dans les appareils industriels, le puits est souvent en béton.

Les nettoyants ménagers sont généralement en plastique, ce qui s'explique par le faible coût du matériau, ainsi que par ses propriétés utiles suivantes :

  • poids léger, ce qui simplifie grandement l'installation et la maintenance;
  • longue durée de vie (au moins 30 ans);
  • innocuité pour l'homme.

Qu'est-ce qu'un bac à graisse et pourquoi est-il nécessaire ?

De tels appareils sont destinés à un usage domestique ou à être installés dans de petits établissements de restauration.

Séparateurs en fibre de verre. Une caractéristique distinctive de ces boîtiers est une résistance mécanique élevée et une résistance aux produits chimiques agressifs.

De telles caractéristiques sont bien adaptées aux modèles industriels, en particulier compte tenu du fait que l'installation à l'extérieur est autorisée.

Qu'est-ce qu'un bac à graisse et pourquoi est-il nécessaire ?

Les coques en fibre de verre sont résistantes aux intempéries, légères et faciles à nettoyer.

Les boîtiers en acier inoxydable sont généralement utilisés pour les séparateurs industriels. Les caractéristiques:

  • longue durée de vie;
  • propriétés hygiéniques élevées;
  • aspect présentable.

Ces caractéristiques répondent au mieux aux exigences des établissements de restauration collective.

Qu'est-ce qu'un bac à graisse et pourquoi est-il nécessaire ?

Le seul inconvénient qui limite l'utilisation d'un tel boitier est son prix élevé.

Lors du choix d'un fabricant, nous vous recommandons de privilégier les marques connues, telles que Ecoline, Alta, The Fifth Element, Thermite, etc. Nous notons également que les produits nationaux ne sont pas de qualité inférieure aux produits étrangers, mais sont nettement moins chers. Quant aux fabricants inconnus de l'Empire du Milieu, ici, comme toujours, la qualité doit être vérifiée sur place.

Lors du choix d'un modèle de séparateur, il est nécessaire de prendre en compte le lieu de son installation. Il existe des modèles conçus pour une installation à l'intérieur et/ou à l'extérieur.

Il existe trois options d'installation à domicile :

  • sous l'évier ou l'évier;
  • au sous-sol;
  • dans l'espace prévu à cet effet.

Dans la vie de tous les jours, en règle générale, utilisez la première option. Décrivez brièvement la séquence d'actions lors de l'installation d'un séparateur domestique :

  • Choisissez l'emplacement de l'appareil. Pour cela, toute surface avec un revêtement lisse et dur convient. Étant donné que le bac à graisse nécessite un nettoyage régulier pendant le fonctionnement, il est nécessaire de lui permettre un accès libre. La meilleure option est une place sous l'évier ou à côté.
  • Nous installons le séparateur à l'endroit choisi.
  • Nous connectons le tuyau de vidange de l'évier au tuyau d'arrivée. Pour assurer l'étanchéité du joint, nous utilisons des joints en caoutchouc (généralement fournis avec l'appareil), comme mesure de sécurité supplémentaire, vous pouvez utiliser du mastic silicone.
  • Nous raccordons le tuyau de vidange à l'égout (il est préférable d'utiliser un tuyau ondulé du diamètre approprié à cet effet), sans oublier les joints en caoutchouc.
  • Nous remplissons la structure avec de l'eau afin de vérifier l'étanchéité. Si une fuite est détectée, réparez-la.
  • Fermez le capot supérieur, après quoi l'appareil est prêt à l'emploi.

Un bac à graisse extérieur vertical ou conventionnel est monté dans le sol selon le même principe qu'une fosse septique, une description de ce procédé se trouve sur notre site internet.

Conclusions et vidéo utile sur le sujet

Les qualités utiles des bacs à graisse sont décrites dans la vidéo :

Le bac à graisse peut être nettoyé par vous-même. Comment faire cela, dites au clip vidéo:

Les principes de fonctionnement des équipements de dégraissage pour les besoins de la production sont décrits dans la vidéo :

Le bac à graisse permet de réduire considérablement les risques de corrosion sur les canalisations et de colmatage du réseau d'égouts. L'équipement ne nécessite pas de soins particuliers, il suffit de nettoyer le filtre en temps opportun.

Avec compétence sélectionné et correctement installé le piège à graisse purifiera efficacement l'eau et protégera le système d'évacuation des eaux usées de la pollution mondiale.

Vous avez déjà une expérience personnelle de l'utilisation des bacs à graisse pour les égouts ? Dites-nous quel appareil vous préférez Êtes-vous satisfait de son travail ?? Peut-être y a-t-il certaines fonctionnalités d'utilisation de cet appareil? Laissez vos commentaires, posez des questions dans le bloc ci-dessous.

Évaluation
Site sur la plomberie

Nous vous conseillons de lire

Où remplir la poudre dans la machine à laver et combien de poudre verser