- Exploitation
- Installation d'un puits avec un fond de filtration
- Méthodes de connexion
- Aménagement à faire soi-même des eaux usées autonomes dans une maison privée: vidéos et recommandations
- Combien coûtera la construction d'un système d'égouts dans une maison privée: prix clé en main
- Conseils pour installer un égout autonome à leur chalet d'été
- Quel est le diamètre des tuyaux d'égout pour la maison
- Étapes de construction
- Histoire
- Problèmes possibles
- Installation de système d'égout
- Littérature
- Choix et installation du site
- Liste des documents
- Les principales étapes du raccordement d'un immeuble résidentiel au système d'égout central
- Raccordement aux réseaux d'égouts, quels documents sont nécessaires
- Causes de colmatage et solutions
- Types de systèmes d'égouts
Exploitation
Après avoir résolu avec succès le problème de la connexion d'une maison privée au réseau central, beaucoup respirent et, pour une raison quelconque, pensent que tout fonctionnera désormais comme sur des roulettes. Cependant, il est nécessaire de surveiller ces égouts. Pour que sa durée de vie ne diminue pas, vous devez suivre des règles simples, dont les principales sont:
- Essayez d'empêcher les gros débris durables de pénétrer dans le drain, tels que les déchets solides de cuisine, les articles d'hygiène personnelle, les cheveux, le papier, etc.
- Rincer régulièrement les siphons de la cuisine.
- Utilisez une ventouse pour nettoyer les toilettes.
Vidéo associée :
Installation d'un puits avec un fond de filtration
Une caractéristique du puits de filtration est la capacité de purifier les effluents grâce à l'activité des micro-organismes du sol. Dans le même temps, les volumes de drains sont limités (1 m3 par jour), le puits lui-même n'est pas placé à moins de 5 m d'un immeuble résidentiel.
puits de filtration
Étape 1. Ils creusent une fosse d'une taille de 2x2 m et d'une profondeur de 2,5 m, ses parois sont recouvertes de géotextiles et 0,5 m de sable à gros grains est versé sur le fond.
Fosse pour puits avec fond de filtration
Étape 2. Une couche de pierre concassée de 0,5 m est coulée sur le sable, un puits de filtration en plastique est nivelé et installé avec perforation des murs dans le tiers inférieur de sa hauteur. Les parois du puits sont également enveloppées de géotextiles.
Remblayage de pierre concassée au fond de la fosse
Étape 3. Les parois de la fosse préparée pour le puits de drainage sont enveloppées de géotextile. Une couche de sable de 0,4 à 0,5 m d'épaisseur est coulée sur le fond, puis une couche de pierre concassée de même épaisseur. Un puits de drainage est installé à partir d'anneaux de béton perforés. Un tuyau Ø50 mm est inséré dans le puits de filtration, offrant une pente de 3 cm par 1 mètre de longueur de tuyau. Le remblayage est effectué d'abord avec de la pierre concassée et les 0,3 à 0,4 m supérieurs avec de la terre excavée lors de la préparation de la fosse. Équipez le puits d'un couvercle avec une trappe et un tuyau de ventilation.
Installation d'un puits de filtration
Méthodes de connexion
Selon le type de réseau centralisé, ils y sont connectés de manière séparée ou mixte. Le premier est utilisé s'il est nécessaire de raccorder séparément les égouts domestiques et pluviaux. Dans la deuxième option, il n'est pas nécessaire de relier deux autoroutes distinctes.
L'autorisation de poser des conduites d'égout vers le réseau municipal n'est délivrée que si un puits d'inspection ou de débordement est installé à proximité.Il doit être connecté à la canalisation du bâtiment
Tenez compte du fait que la section de tuyau s'étendant d'une maison privée doit entrer dans le puits à un angle au-dessus du niveau du drain
La pose de l'autoroute est réalisée à la profondeur requise. La profondeur est déterminée en fonction du point de congélation du sol : de 1,25 au sud à 3,5 m au nord. La valeur moyenne est de 2 m.
Posez le pipeline comme suit :
- Le fond du fossé creusé est nivelé et soigneusement percuté.
- Un coussin de sable et de gravier est coulé avec une couche d'environ 15 cm.Un compactage sur toute la longueur de la tranchée n'est pas nécessaire. Seulement près de l'entrée de l'autoroute et à une distance de deux mètres du puits, il est nécessaire de compacter la couche.
- Les tuyaux sont posés dans une tranchée de la maison sous une pente avec une cloche vers le bas. Les joints des éléments de tuyau sont nettoyés de la saleté.
- Le bord lisse de la section de tuyau et la bague de douille sont lubrifiés avec du silicone.
- Mesurez la longueur pour laquelle vous souhaitez insérer la section de tuyau dans la douille, faites une marque.
- Le tuyau est inséré dans la douille jusqu'à ce qu'il s'arrête.
Une méthode similaire est utilisée pour poser l'ensemble du pipeline. Après le montage, il est impératif de vérifier l'angle d'inclinaison, après quoi vous pourrez remplir la tranchée. Tout d'abord, une couche de sable et de gravier est coulée. L'oreiller doit être de 5 à 10 cm plus haut que le pipeline, puis la couche de gravier et de sable est abondamment arrosée d'eau pour un bon retrait. Le matériau déposé protégera les tuyaux de la pression du sol et des pierres et ne leur permettra pas d'endommager le pipeline. Cela augmentera la durée de vie de la conduite d'égout. Après la couche de sable, le reste du fossé est recouvert de terre.
Aménagement à faire soi-même des eaux usées autonomes dans une maison privée: vidéos et recommandations
En tant que matériau pour la fabrication d'égouts autonomes, on utilise du polypropylène, qui se caractérise par son faible poids, son respect de l'environnement, sa résistance et sa conductivité thermique élevée. Le traitement des eaux usées est assuré par certains types de bactéries qui se nourrissent de déchets organiques. L'accès à l'oxygène est une condition préalable à la vie de ces micro-organismes. Le prix d'un système d'égout autonome dans une maison privée est beaucoup plus élevé que le coût d'aménagement d'une fosse septique conventionnelle.
Les éléments constitutifs du système autonome d'assainissement
Cela est dû aux nombreux avantages des systèmes de type autonome :
- niveau élevé de traitement des eaux usées ;
- système unique de nettoyage par aération ;
- pas de frais d'entretien ;
- pas besoin d'acquisition supplémentaire de micro-organismes;
- dimensions compactes ;
- pas besoin d'appeler un camion d'égout;
- la possibilité d'installation à un niveau élevé d'eau souterraine;
- manque d'odeurs;
- longue durée de vie (jusqu'à 50 cm).
Combien coûtera la construction d'un système d'égouts dans une maison privée: prix clé en main
Les possibilités des égouts autonomes Unilos Astra 5 et Topas 5 sont considérées comme les plus optimales pour les chalets d'été. Ces conceptions sont fiables, elles sont capables de fournir une vie confortable et les commodités nécessaires aux résidents d'une maison de campagne. Ces fabricants proposent d'autres modèles tout aussi efficaces.
Le prix moyen des égouts autonomes Topas:
| Nom | prix, frotter. |
| Topas 4 | 77310 |
| Topas-S 5 | 80730 |
| Topas 5 | 89010 |
| Topas-S 8 | 98730 |
| Topas-S 9 | 103050 |
| Topas 8 | 107750 |
| Topas 15 | 165510 |
| Topaéro 3 | 212300 |
| Topaéro 6 | 341700 |
| Topaéro 7 | 410300 |
Le prix moyen des égouts autonomes Unilos :
| Nom | prix, frotter. |
| Astra 3 | 66300 |
| Astre 4 | 69700 |
| Astra 5 | 76670 |
| Astra 8 | 94350 |
| Astra 10 | 115950 |
| Scarabée 3 | 190000 |
| Scarabée 5 | 253000 |
| Scarabée 8 | 308800 |
| Scarabée 10 | 573000 |
| Scarabée 30 | 771100 |
Les tableaux indiquent le coût standard du système. Le prix final pour l'installation d'un système d'égout autonome clé en main est formé en tenant compte des prix de pose d'une canalisation externe et d'autres points affectant les travaux de terrassement et d'installation en général.
Le prix moyen des égouts autonomes de type réservoir:
| Nom | prix, frotter. |
| Bioréservoir 3 | 40000 |
| Bioréservoir 4 | 48500 |
| Bioréservoir 5 | 56000 |
| Bioréservoir 6 | 62800 |
| Bioréservoir 8 | 70150 |
Conseils pour installer un égout autonome à leur chalet d'été
Comme dans tout autre système, il est recommandé d'installer la canalisation en biais de la maison vers le réservoir d'épuration. L'angle optimal se situe entre 2 et 5° par mètre. Si vous ne respectez pas cette exigence, l'évacuation complète des eaux usées par un égout autonome pour une résidence d'été deviendra impossible.
Lors de la pose de la route, il convient de veiller à fixer solidement ses éléments. Pour éliminer le risque de déformation et de déplacement des conduites lors de l'affaissement du sol, le sol au fond des tranchées doit être soigneusement compacté. Si vous remplissez le fond de béton, vous obtenez une base fixe plus fiable. Lors de l'installation des tuyaux, il est souhaitable de respecter un chemin rectiligne.
Assurez-vous de vérifier l'étanchéité des joints. L'argile liquide est généralement utilisée pour l'amarrage. Il est permis d'utiliser des produits spécialisés recommandés par le fabricant de tuyaux. Si une ligne est installée sur la base d'éléments d'un diamètre de 50 mm, la longueur maximale autorisée des sections droites du système est de 5 m. Lors de l'utilisation de produits d'un diamètre de 100 mm, ce chiffre est de 8 m maximum.
Lors du choix d'un emplacement pour une fosse septique sur le site, il faut tenir compte du fait qu'il doit rester au moins cinq mètres avant la clôture
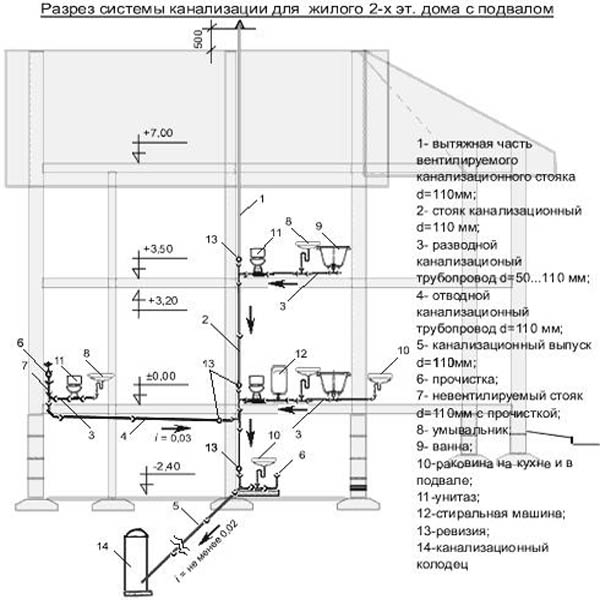
Quel est le diamètre des tuyaux d'égout pour la maison
Les codes du bâtiment permettent d'aménager un système d'égout principal à partir de tuyaux en fonte, en amiante-ciment, en céramique et en plastique. Cette dernière variété est la plus populaire en raison de ses qualités inertes et de sa résistance. Les dimensions des tuyaux sont calculées au stade de la planification. Leur diamètre ne dépend pas du matériau de fabrication.
Dans la maison, des tuyaux d'une section minimale de 50 millimètres sont utilisés pour assurer une vitesse de fluide optimale. Dans ce cas, le mouvement des masses peut se faire par gravité, par dépression ou par voie forcée. Les mêmes produits conviennent au raccordement aux siphons d'évier. Dans les colonnes montantes, les tuyaux de ventilateur et dans les lieux de raccordement aux cuvettes de toilettes, des tuyaux d'égout d'un diamètre de 110 mm sont utilisés.

Lors de la détermination de la taille des canalisations pour la section reliant la colonne montante interne au dispositif de traitement, les conditions du terrain sont évaluées : topographie, niveau de la nappe phréatique. Les pipelines existants ont également un impact. Pour tracer une ligne de gravité pour un bâtiment avec une pente de 3 degrés, il reste des tuyaux de 110 mm. Pour un village de chalets, la canalisation commune doit avoir un diamètre de 150 mm.

Étapes de construction
L'installation du complexe dépend de plusieurs facteurs:
- type de réseau d'égouts;
- composition des déchets liquides ;
- nombre d'actions.
Sur la base de ces facteurs, un travail de conception est effectué. Produit :
- calcul de paramètres complexes;
- choix de la méthode de traitement liquide ;
- choix du matériel.
Les travaux d'installation déterminent l'agencement des installations de traitement
égouts.Selon la technologie choisie, des équipements sont installés.
Le kit comprend des réservoirs d'une certaine taille, des réservoirs ouverts ou
aérotanks. Il existe des systèmes qui traitent simultanément les tempêtes et les ménages
drains. Ils sont capables d'effectuer différentes méthodes de nettoyage en parallèle.
Schéma d'assemblage du système d'exploitation des égouts
comprend les travaux suivants :
- préparation;
- marquage, préparation de la fosse ;
- assemblage et installation de conteneurs;
- connexion des succursales entre elles par des pipelines;
- installation de pompes, installations d'aération et autres équipements ;
- travaux de mise en service.
La procédure est parfois complétée
ou étendre, mais n'apportez pas de changements fondamentaux.
La construction de VOC est réalisée pour
entretien d'un petit système d'une maison privée ou d'un chalet. Volumes de déchets en
de tels cas sont beaucoup moins nombreux. Cependant, la procédure est pratiquement
diffère du schéma de construction des grandes gares urbaines. Le même
travaux de conception, d'excavation et d'installation. La différence est dans le total
les coûts de main-d'œuvre. Il est nécessaire d'installer le conteneur à une profondeur donnée et de l'isoler. Alors
il est nécessaire de connecter le réservoir avec des tuyaux et de connecter l'alimentation électrique.
Pour configurer le fonctionnement du LOS, il est nécessaire de coordonner l'apport d'air frais, de vérifier l'étanchéité de toutes les connexions et d'organiser le contrôle automatique du mode de fonctionnement. De plus, ils exécutent toutes les procédures nécessaires spécifiées par le fabricant de la station.
Il est important de vérifier constamment vos actions avec les instructions, ou d'inviter à lancer techniciens autorisés du centre de service
Histoire
Égout parisien
Les premières structures qui servaient d'égouts ont été trouvées dans les villes de la civilisation de l'Indus : à Mohenjo-Daro, qui naquit vers 2598 av.e., presque les premières toilettes publiques connues des archéologues, ainsi que le système d'égouts de la ville, ont été découverts.
Des structures d'égouts ont également été trouvées dans l'ancienne Babylone, la deuxième plus ancienne.
Dans la Rome antique, un projet grandiose d'ingénierie des eaux usées - le Grand Cloaque - a été créé sous le cinquième roi de la Rome antique, Lucius Tarquinius Priscus.
Dans la Chine ancienne, des égouts existaient dans plusieurs villes, par exemple à Linzi.
Problèmes possibles
Des difficultés de connexion peuvent survenir en raison de l'emplacement d'autres réseaux de communication sur le site d'assainissement : une canalisation de chaleur, un réseau électrique, une canalisation de gaz.
Il n'est pas possible de se connecter au réseau de la ville dans les circonstances suivantes :
- en présence de plusieurs fils de communication sur le site ;
- l'inadaptation du réseau public d'assainissement causée par sa vétusté ;
- prix élevé pour un réseau privé de raccordement situé en sous-sol sur le site.
Dans ce cas, la possibilité d'installer un égout autonome demeure. Les fosses septiques sont un élément du système de traitement des eaux usées et des services publics. Ce type de système de drainage présente plusieurs avantages :
- le plastique utilisé pour eux n'est pas sujet à la corrosion et à la déformation;
- la durée d'utilisation atteint 50 ans;
- ne nécessite pas de procédures spéciales pendant le fonctionnement;
- La conception est facile à installer et nécessite peu d'espace.
Instructions pour l'installation d'une fosse septique
L'inconvénient des stations autonomes d'évacuation des eaux usées est la dépendance au réseau électrique. Avant d'installer une fosse septique, vous devez calculer son volume requis, en fonction du nombre de personnes vivant dans la maison.
Installation de système d'égout

Installation de système d'égout
Et maintenant, nous allons répondre à la question de savoir comment installer un égout dans le pays.
Tout d'abord, nous déterminerons l'endroit où placer le réservoir de collecte
Et peu importe ce que ce sera - une fosse, un puits ou un récipient en plastique. L'emplacement optimal est au point le plus bas du site. Mais gardez à l'esprit que si vous avez choisi les deux premières options et que vous prévoyez de nettoyer le réservoir de collecte à l'aide d'un camion d'égout, vous devrez alors prendre soin de la route d'accès.
Mais gardez à l'esprit que si vous avez choisi les deux premières options et que vous envisagez de nettoyer le réservoir de collecte à l'aide d'un camion d'égout, vous devrez alors prendre soin de la route d'accès.
Une fois le lieu établi, nous commençons les travaux de terrassement. Parfois, leur volume est si important qu'il faut utiliser une excavatrice. Si vous décidez de tout faire manuellement, il est préférable de creuser un trou sous le réservoir et les tranchées en même temps.
La profondeur de pose des conduites d'égout doit être supérieure de 10 à 15 centimètres au niveau de gel du sol. C'est la loi.
Certes, dans certaines régions du nord, ce chiffre peut atteindre plus de 2,5 mètres. Dans de tels cas, il est nécessaire d'utiliser des matériaux d'isolation thermique ou d'installer un câble chauffant afin de ne pas creuser en profondeur.
C'est de la profondeur des conduites d'égout que dépendra également la profondeur de la fosse sous le réservoir de collecte. Le fait est que les tuyaux d'égout doivent avoir une pente de la maison vers le réservoir. Il est de 2 à 3 centimètres pour 1 mètre de longueur du réseau d'égouts. Et plus la collection est éloignée de la maison, plus elle devra être enterrée profondément dans le sol.
Pour les eaux usées des pays, le matériau optimal pour les tuyaux est un polymère. Et leur diamètre devrait être de 110 millimètres. Ces tuyaux sont reliés par des raccords.Mais s'il y a des circuits latéraux, par exemple, les égouts d'un bain ou d'une piscine, la connexion est établie avec des tés ou des croix.
Avant de poser les tuyaux, la tranchée doit être recouverte de sable, formant une sorte d'oreiller. Mais en même temps, vous ne pouvez pas changer la pente.

Installation de réservoirs et de canalisations d'égout
Et quelques touches finales. Il reste à connecter le réservoir de collecte et les tuyaux d'égout, ainsi que deux parties du système d'égout - interne et externe. Et maintenant, vous pouvez remplir les tuyaux et les conteneurs avec de la terre.
Comme vous pouvez le voir, le dispositif d'assainissement du pays a un schéma assez simple, mais il est nécessaire de suivre les règles pour les travaux d'installation.
Et enfin, nous rappelons ces points clés, sans lesquels il est impossible de construire un système d'assainissement du pays. Vous serez:
- Le choix du type de réseau d'égouts.
- Le choix d'un réservoir préfabriqué, dont dépend la qualité de l'ensemble du système.
- Le choix des matériaux à partir desquels les conteneurs, les tuyaux, les accessoires et les produits supplémentaires sont fabriqués.
- Bonne exécution du processus d'installation et des travaux de terrassement, en particulier le respect de la pente.
- Détermination de la profondeur des eaux souterraines et du niveau de gel du sol.
- Préparation de la route d'accès, si vous envisagez d'utiliser les services des entreprises d'égouts pour le pompage.
Bien sûr, ce ne sont pas des choses mondiales, mais sans elles, cela n'a aucun sens de parler d'une installation de haute qualité et d'un fonctionnement ininterrompu des égouts du pays.
Littérature
- Assainissement // Dictionnaire encyclopédique de Brockhaus et Efron : en 86 volumes (82 volumes et 4 supplémentaires). — SPb., 1890—1907.
- Assainissement //: / ch. éd. A. M. Prokhorov. - 3e éd. — M : Encyclopédie soviétique, 1969-1978.
- Dictionnaire de l'eau. - M., 1974
- SNiP 2.04.01-85* - Approvisionnement en eau et assainissement internes des bâtiments ;
- SNiP 2.04.02-84 - Approvisionnement en eau. Réseaux et installations externes ;
- SNiP 2.04.03-85 - Égouts. Réseaux et installations externes ;
- STO 02494733 5.2-01-2006 - Approvisionnement en eau interne et assainissement des bâtiments ;
- S. V. Yakovlev, Yu. M. Laskov. Assainissement (drainage et traitement des eaux usées). 7e éd. — M. : Stroyizdat, 1987.
- G. S. Safarov, V. F. Veklich, A. P. Medved, I. D. Yudovsky Nouvelles technologies dans le logement et les services communaux - Kyiv : Budivelnik, 1988. - 128, p. : il; 17 cm - Bibliographie : p. 124-129 (68 titres). - 3000 exemplaires. — ISBN 5-7705-0097-2
Choix et installation du site
Avant l'installation, vous devez vous assurer que l'emplacement sous la fosse septique, la station de traitement ou la fosse de stockage respecte les normes sanitaires. Énumérez brièvement les principales exigences :
- un emplacement pour une structure de stockage ou de traitement des eaux usées doit être situé à une distance d'au moins 50 m des puits ou puits d'eau potable;
- des réservoirs - 30 m, rivières et ruisseaux - 10 m;
- de la limite du territoire du site, maison, route - 5 m, arbres - 3 m.
Il est également nécessaire de prendre en compte la possibilité d'accéder au dispositif de nettoyage ou de stockage d'équipements spéciaux pour le nettoyage.
Vidéo associée :
L'organisation d'un réseau d'assainissement local externe commence par la phase de terrassement. Il est nécessaire de préparer une fosse de fondation pour la structure, d'y apporter des tranchées, où des tuyaux seront posés, à travers lesquels l'eau coulera et sera évacuée. Si vous envisagez d'organiser un système de drainage, préparez-lui un emplacement.
Cette étape est la plus chronophage et prend beaucoup de temps, des équipements spéciaux peuvent intervenir pour l'accélérer si le budget le permet.
Il est recommandé d'effectuer les travaux de terrassement pendant la saison sèche afin que la fosse excavée ne soit pas remplie d'eau de pluie, ce qui peut entraîner l'effondrement de ses parois. De plus, il ne faut pas oublier le niveau des eaux souterraines. Leur proximité avec la surface peut également entraîner des inondations.
Après l'achèvement des travaux de terrassement (lorsque la fosse est creusée, son fond est nivelé et les tranchées sont résumées), la structure est installée. Les petites fosses septiques peuvent être installées par deux ou trois personnes, les grandes et lourdes nécessiteront un équipement spécial.

Si l'installation est réalisée dans des sols gelés, il faudra assurer l'isolation des canalisations et d'une fosse septique.
Après l'installation de la structure, les tuyaux sont posés et connectés. A la dernière étape (lorsque tout est raccordé), la fosse septique, le puits de stockage ou la station d'épuration est recouverte de terre. Dans le même temps, il est nécessaire de laisser l'accès aux trappes par lesquelles un nettoyage préventif sera effectué. Après cela, le système d'égout local est prêt à fonctionner.
Liste des documents
Au moment de décider de rédiger indépendamment le côté juridique de la question, il est nécessaire de préparer les documents suivants:
- Plan du site préparé par une société d'arpentage, avec une maison marquée dessus et un schéma de pose de tuyaux pour les communications d'égout.
- Preuve de propriété de la maison et du terrain.
- La documentation spécifiant les exigences techniques est préparée par un organisme spécialisé dans le service d'assainissement.
- Plan de raccordement d'une canalisation privée au réseau central, élaboré par un concepteur qualifié.
- Le schéma est composé d'un profil en long, d'un schéma général et d'un schéma directeur des réseaux.
- Autorisation d'assainissement dans une maison privée, convenue conformément à la conception architecturale.
- Application à la société exécutive.
Au cours de la dernière étape, vous devez collecter un paquet de papiers nécessaires, vous devez choisir une entreprise qui se chargera de l'installation des égouts dans une maison privée aux communications de la ville.
Les principales étapes du raccordement d'un immeuble résidentiel au système d'égout central
Toutes les étapes du travail peuvent être divisées en:
- Collecte des documents nécessaires et coordination avec les voisins ;
- Aménagement d'une aire attenante à la maison située devant la conduite d'égout centrale ;
- Connexion directe au système d'égout central;
- Mise en service de l'égout.
- En principe, tout cela peut être confié à des spécialistes, y compris la collecte des documents. Ou vous pouvez essayer d'économiser un montant assez considérable et le prendre vous-même. Mais cela vaut la peine de se préparer à certains travaux et temps, ainsi qu'à des coûts nerveux.
Le paquet principal de documents lors du raccordement au réseau d'égouts municipal comprend une autorisation notariée des propriétaires à proximité des maisons menteuses.
Raccordement aux réseaux d'égouts, quels documents sont nécessaires
Plan de maison terminé. Obligatoire, sur papier, un schéma de pose d'une canalisation d'égout doit être présenté. Ce processus est réalisé avec l'aide d'une société qui réalise une expertise géodésique.
Toutes les conditions techniques pour le raccordement à l'égout. Toutes ces questions sont prises en compte par l'organisation.
Le schéma sur lequel le plan sera indiqué, c'est en fonction de celui-ci qu'il faut raccorder l'égout.Ce document doit être fourni par un spécialiste qui conçoit et installe les fonctions techniques. Il s'appuie sur le cahier des charges, produisant ainsi un nouveau plan.
Le projet, qui est préparé dans le service des eaux, avec leur approbation. Ce processus est effectué par la direction architecturale.
Il est également nécessaire de rappeler une nuance principale. Avant de procéder à des travaux de construction, vous devez obtenir l'autorisation de vos riverains. Ils sont tenus de signer leur consentement. Si des questions supplémentaires se posent concernant le pipeline qui traversera les endroits où d'autres réseaux électriques ou thermiques ont déjà été posés, alors dans ce cas, il est nécessaire de prendre un autre permis. Il est nécessaire d'exiger un document spécial dans l'organisation. Si le propriétaire ne respecte pas certaines exigences, il devra payer une énorme amende.
Pour poser le pipeline vers l'autoroute centrale, vous devez obtenir une autorisation. S'il y a un puits à proximité. Le tuyau qui traversera le site jusqu'au puits sera dirigé selon une certaine pente et un certain angle. Pour déterminer la profondeur de pose avec précision, il est nécessaire d'utiliser les valeurs spéciales fournies par les données dans SNiP.
Il y a aussi un conseil principal à garder à l'esprit. Cette question concerne l'existence de courbes existantes sur la voie. Comme le montre la pratique, les virages sur la piste ne devraient pas exister, mais si un tel problème survient soudainement, il est alors nécessaire de tourner l'autoroute de quelques degrés, environ 90. Il est également recommandé d'installer un puits d'inspection. Puisque, dans ce cas, le puits remplit la fonction de contrôle de ce système.
Un rôle important est joué par le choix correct de la hauteur de creusement de la tranchée. Certains éléments doivent être pris en compte. Le diamètre du tuyau doit être supérieur au diamètre intérieur. La taille habituelle est jusqu'à 250 mm. Fondamentalement, des tuyaux d'un diamètre de 150 à 250 mm sont utilisés. Une fois que le spécialiste a décidé de la taille des tuyaux, il est nécessaire de creuser le fond de la tranchée. Dès que le processus est terminé, l'oreiller peut être fourni pour la pose du pipeline.
Causes de colmatage et solutions
Les eaux usées domestiques et fécales sont un système très complexe, mais il peut aussi échouer. Il s'exprime par des canalisations bouchées dans n'importe quelle partie du réseau. Cela se produit pour plusieurs raisons :
- Initialement, les tuyaux n'étaient pas installés correctement, à savoir que des briques étaient placées sous les joints de tuyaux fonctionnant horizontalement. En conséquence, le joint a coulé et l'écoulement normal des eaux usées s'est arrêté. Ce problème est éliminé en rétablissant la connexion normale des tuyaux. Sous le joint, un support normal et uniforme de leur béton est monté.
- Affaissement du sol sous des tuyaux posés horizontalement. Dans ce cas, le blocage se produit dans les endroits de forte flexion du tracé de tuyau auparavant plat. Pour éliminer le problème, le lieu de pose inégale est déterminé et le niveau normal du sol est restauré en dessous.
- Fracture ou rugosité dans les plateaux des puits collecteurs. De petits débris et excréments se coincent sur les bosses, créant des blocages d'eau. La solution au problème est de réparer le plateau ou de remplacer son segment détruit.
- Calcul incorrect de la pente du tuyau horizontal. S'il est trop petit, le débit d'eau et d'excréments sera lent, ce qui entraînera un blocage. Pour éliminer le problème, les tuyaux ou les plateaux sont décalés en tenant compte de l'angle d'inclinaison d'au moins 2 degrés.
Avant de réparer une section de l'égout, le blocage est d'abord dégagé avec un long fil d'acier ou un câble spécial. Assurez-vous de couvrir la zone endommagée. Et seulement après cela, les travaux de réparation commencent.
Types de systèmes d'égouts
Tous les types de communications de drain peuvent être divisés en deux types - autonomes et centralisés. La première option est caractérisée par une fosse de vidange ou une fosse septique, une station d'épuration. Les déchets ménagers et organiques qui en découlent sont soit pompés et acheminés vers des zones désignées pour traitement et transformation, soit nettoyés sur place à l'aide d'un système de filtres et de décanteurs. Lors de l'installation d'un système d'assainissement centralisé, les effluents sont acheminés vers le système de la ville (rural, canton).
Étant donné qu'une installation centralisée d'assainissement dans une maison particulière est relativement rare, uniquement dans les zones urbaines ou rurales denses, notre article considérera principalement un système autonome.
Attribuer des options :
- fosse de vidange à usage temporaire. C'est typique des toilettes de rue, où, en plus des déchets biologiques, des déchets ménagers liquides sont également envoyés. La fosse dans ce cas, après remplissage, est creusée et creusée à un autre endroit. Applicable uniquement pour une utilisation rare par des personnes sans prétention;
- fosse de vidange avec pompage. C'est possible aussi bien pour les toilettes installées à l'intérieur de la maison et les évacuations du lavabo/baignoire/lavabo/lave-linge et lave-vaisselle, que pour les « aménagements » extérieurs. Il est obligatoire d'imperméabiliser les parois d'un conteneur en béton ou en briques;
- puisard avec dispositifs de clarification partielle des eaux de drainage. Un puits filtrant ou une fosse septique à chambre unique est utilisé comme élément de travail.Le puits/fosse septique accumule périodiquement des déchets solides à éliminer ;
- fosses septiques multichambres (sinon stations de filtration ou de traitement). Le niveau de traitement des eaux usées de ces appareils vous permet de déverser les déchets clarifiés directement dans le sol ou dans un plan d'eau à proximité.
Un système d'égout autonome pour une maison privée peut être aménagé selon l'une des options, mais il est nécessaire de prendre en compte les restrictions sur la quantité de déchets pouvant être traités ou autorisés à être déversés:
- une fosse de drainage temporaire est en fait une structure "jetable". Son volume dépasse rarement 5 ... 10 mètres cubes, donc immédiatement après le remplissage, il cesse d'être utilisable;
- avec un pompage en temps opportun, des fosses de drainage sous la forme d'un conteneur en béton ou en brique avec étanchéité peuvent être utilisées pour desservir une petite maison privée / chalet / dépendance d'invités. Le volume de ces fosses est également de 5 ... 15 mètres cubes, de sorte que l'utilisation d'un lave-linge / lave-vaisselle et le fonctionnement actif de la douche / baignoire devront être limités;
- les performances des fosses septiques ou des puits filtrants à chambre unique sont limitées par leur volume et leur conception, mais avec le bon choix d'appareil, elles conviennent à une famille de 2 à 5 personnes utilisant l'eau en mode normal;
- les fosses septiques à chambres multiples et les stations d'épuration sont conçues pour une utilisation active de l'eau, la variété de leurs modèles vous permet de choisir un appareil spécifique pour le volume d'eaux usées prévu.
Bien entendu, l'assainissement à faire soi-même dans une maison privée est le plus simple et le plus rapide à organiser selon les première et deuxième options. L'installation de fosses septiques nécessite soit des compétences suffisantes dans la construction et la pose des communications, soit l'intervention de spécialistes.















































