- Instruction pour changer la prescription de fonction
- Où aller
- Rédaction et approbation du projet
- Préparation de documents
- Obtenir l'autorisation
- Les coûts financiers
- Horaire
- Apporter des modifications au plan cadastral
- Avantages d'un bureau combiné
- Mobilier de bureau
- Éclairage
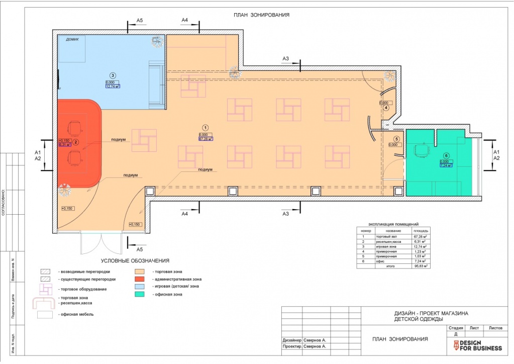
- Principales raisons du zonage
- Règles de base pour l'organisation de l'espace de planification de bureau
- Enseignes, types et classification des locaux non résidentiels
- Définir les limites et les règles
- Aménagement de l'espace bureau
- Divisions d'employés
- Siège social
- Salle de réunion
- Salle de repos
- Types de cloisons pour bureau
- Quelle est la réponse à quoi ?
- Réceptionniste
- Salle de conférence
- Bureau du chef
- Zone de libération émotionnelle
- Lieu de travail
Instruction pour changer la prescription de fonction
Le propriétaire du bien, ainsi que le locataire en accord avec le propriétaire, peuvent modifier la destination, alors qu'il existe deux options pour modifier la destination des locaux non résidentiels :
- Transfert de l'objet au résidentiel (conformément au chapitre 3 du Code du logement de la Fédération de Russie).
- Changement de type d'activité.
Les grandes étapes du reprofilage des locaux :
- rédiger un projet;
- sa coordination avec les services municipaux (gorvodokanal, SES, ministère des Situations d'urgence, etc.) ;
- préparation des documents et leur soumission aux organes autorisés de l'administration de l'État ;
- réalisation des travaux correspondant à la documentation de conception et mise en service du bâtiment ;
- enregistrement d'un passeport technique par un représentant RTC ;
- obtenir un nouveau passeport cadastral;
- demander à l'autorité d'enregistrement d'obtenir un nouveau certificat de propriété.
Où aller

Quelle que soit la direction des travaux, une coordination avec l'autorité nationale de surveillance des incendies sera nécessaire. Pour ce faire, contactez le service d'incendie du district. Pour confirmer le respect des normes sanitaires et épidémiologiques, vous devez obtenir l'autorisation de Rospotrebnadzor. BTI préparera des plans d'étage pour les pièces au-dessous et au-dessus de l'installation.
La documentation, accompagnée de la demande du propriétaire, est soumise à la préfecture du comté. Après une décision positive, le propriétaire s'adresse à l'USRR, où un nouvel enregistrement des locaux est effectué.
Rédaction et approbation du projet
Avant de contacter le bureau d'études, vous devez vous renseigner sur l'état des structures porteuses, des planchers, des câblages, des systèmes d'alimentation en eau, et également si un réaménagement est possible dans ce bâtiment. Disposant de la documentation nécessaire et des résultats d'une enquête préliminaire, vous pouvez commencer à rédiger un projet.
Si nécessaire, des sections supplémentaires peuvent être incluses dans le document :
- Décisions constructives ;
- projet de façade;
- chauffage, ventilation;
- évacuation de l'eau et approvisionnement en eau, etc.
L'élaboration d'un projet est l'étape la plus difficile et la plus responsable. La négociation se déroule dans l'ordre suivant :
- Inspection du logement.
- Surveillance incendie.
- Surveillance sanitaire et épidémiologique.
- cabinet d'experts.
- Département d'architecture (si la façade du bâtiment est touchée).
Préparation de documents

Pour changer la destination des locaux, vous devez préparer les documents suivants:
- déclaration;
- documents le'gaux;
- plan technique (lisez la différence entre un plan technique et un passeport technique ici);
- explication;
- projet de réaménagement;
- certificats du RTC sur l'état technique, la valeur d'inventaire ;
- certificat d'absence de dettes d'utilité.
Obtenir l'autorisation
Après avoir soumis les documents, les autorités locales étudient l'objet et envisagent la possibilité de le réutiliser dans un délai maximum de six jours. En cas de décision positive, le demandeur se voit délivrer un permis d'une durée de validité illimitée. Si des violations sont identifiées, un délai de 10 jours est accordé pour les éliminer, après quoi la demande est réexaminée.
Les coûts financiers
Les principales charges financières visent à :
- Préparation de la documentation du projet.
- Paiement des services de l'Inspection du logement.
- Prise en charge du coût des travaux de construction.
- Paiement des droits de l'État.
Le prix approximatif des services à Moscou et dans la région est de :
Horaire

Il faut généralement 1 à 2 jours pour préparer un avis technique. Selon la complexité, le projet est préparé de plusieurs jours à deux mois.
En moyenne, il faut compter de 10 à 30 jours pour préparer les certificats RTC et faire appel à un spécialiste. Travailler avec un architecte prend jusqu'à deux semaines et apporter des modifications à la documentation ne prend pas plus de 30 jours.
Apporter des modifications au plan cadastral
Les modifications de la documentation cadastrale sont effectuées sur la base d'un plan technique avec un dessin et une description des principaux paramètres de l'objet. Cette procédure peut prendre de trois à dix-huit jours, selon la complexité et l'étendue du changement. Le résultat est un passeport cadastral rempli avec une disposition mise à jour de l'installation.
Les locaux non résidentiels ont leur destination, conformément à laquelle ils sont utilisés.Si le propriétaire ou le locataire décide de changer de type d'activité, il est nécessaire de mettre les locaux en conformité avec les nouvelles normes et exigences. Pour ce faire, sa vocation évolue. La procédure est longue et coûteuse, nécessite certaines connaissances et un algorithme d'actions.
Si vous trouvez une erreur, veuillez sélectionner un morceau de texte et appuyez sur Ctrl+Entrée.
Vous n'avez pas trouvé de réponse à votre question ? Découvrez comment résoudre votre problème particulier - appelez dès maintenant :
Avantages d'un bureau combiné
L'option préférée pour un bureau moderne est une conception combinée. Dans ces installations, des chambres séparées sont attribuées au chef, à la salle de réunion et à la réception. Les employés de tous les départements travaillent dans la même pièce, séparés par des cloisons fixes et mobiles.
La conception combinée du bureau est choisie non seulement en raison du manque de pièces séparées. Cette option présente plusieurs avantages évidents. Il:
- économise sur les coûts de zonage ;
- vous permet de créer une mise en page optimale ;
- offre la possibilité de modifier l'emplacement des zones;
- réduit les coûts d'entretien ;
- fournit des conditions confortables pour la communication des employés.

Conception de bureaux combinés
L'acquisition, l'installation d'écrans de bureau, de cloisons mobiles et fixes est beaucoup moins chère que l'érection de murs, créant des bureaux séparés. Il n'est pas nécessaire de créer des communications dans chaque pièce, d'installer des portes intérieures, etc.
La création de murs vierges réduit considérablement la surface totale, ne vous permet pas de créer une disposition qui correspond idéalement aux spécificités du travail. En installant des cloisons, vous pouvez mettre en œuvre n'importe quel projet, offrir à chaque employé d'excellentes conditions.
Chaque bureau a besoin d'un relooking. Les départements peuvent augmenter, diminuer le nombre d'employés, avoir besoin de créer une nouvelle zone ou d'en supprimer une existante, etc. Vous pouvez apporter des modifications lors du zonage avec des partitions sans frais supplémentaires. Ces structures sont enlevées, transférées rapidement sans endommager les locaux eux-mêmes.

Les cloisons vous permettront d'apporter des modifications au zonage du bureau sans frais supplémentaires
Le coût d'entretien d'un bureau combiné est d'un ordre de grandeur inférieur au coût d'une installation traditionnelle. Dans une grande pièce, il est plus facile de créer des systèmes de ventilation et de climatisation, d'installer un réseau électrique pratique et fiable. L'absence d'éléments inutiles des systèmes de chauffage et d'éclairage réduit considérablement le paiement de ces services.
L'espace ouvert crée d'excellentes conditions pour la communication des employés, les activités de groupe productives. Par exemple, les cloisons vitrées dans un bureau offrent une excellente visibilité, mais procurent la sensation de « dos fermé » nécessaire pour un travail confortable. L'absence d'armoires et de portes séparées simplifie le processus de déplacement dans le bureau. Une bonne vue d'ensemble permet aux chefs de service de contrôler la progression du flux de travail.

Les cloisons vitrées du bureau offrent une bonne vue d'ensemble
Mobilier de bureau
Une organisation adéquate de l'espace de bureau nécessite une conception ergonomique et une construction de mobilier robuste.
Lors du choix des meubles, une attention particulière est accordée non seulement à la qualité des fixations et des ferrures, mais également au respect de l'environnement des matériaux. Parmi les éléments obligatoires de l'aménagement intérieur du bureau devraient apparaître:
1. Tableaux.Ce ne sont pas seulement des lieux de travail, mais aussi des éléments d'ameublement des salles de réunion, du bureau du patron, des cuisines, des salles d'attente et de loisirs.
2. Des endroits pour s'asseoir, tels que des fauteuils confortables et des fauteuils confortables. Dans les zones de détente, ils peuvent être remplacés par des coins mous

Des chaises confortables pour un travail confortable
3. Systèmes de stockage. Le plus souvent, les étagères sont prises pour leur rôle, bien que s'il y a de la place pour des armoires spacieuses, elles ne doivent pas être abandonnées.
4. Armoires au sol. Les employés pourront ranger la papeterie et les effets personnels dans leurs tiroirs.

Armoires de sol pour ranger la papeterie
Trouver des meubles élégants pour un grand bureau peut être délicat. Le commander à l'unité coûte cher. C'est pourquoi la plupart des gestionnaires meublent la pièce avec des ensembles prêts à l'emploi de conception standard.
Idéalement, utilisez des meubles mobiles, qui comprennent des roues. Cela permettra, si nécessaire, de déplacer rapidement l'article ou de le placer dans une position pratique pour son utilisation. La conception d'un bureau moderne devrait également inclure des chaises modernes. Il est conseillé de choisir des modèles dynamiques, où il est possible de régler la hauteur du siège, de corriger l'angle du dossier, la rotation et le mouvement.

Les meubles de bureau sur roulettes peuvent être déplacés rapidement si nécessaire
Il y a des avantages aux nouveaux modèles de tables de bureau
Outre le fait qu'elles sont prêtes à cacher les fils de communication, ce qui est très important pour l'aménagement intérieur des bureaux, les tables peuvent être transformées. Vous pouvez travailler derrière eux non seulement assis, mais aussi debout.
Les modèles de salles de réunion d'un seul grand design se transforment instantanément en plusieurs tables compactes pour les formations de groupe.

Table de transformation pratique pour le bureau
Les armoires peuvent avoir une conception modulaire, ce qui les rendra plus pratiques à utiliser comme systèmes de stockage de documents. Il est souhaitable que les modèles aient des serrures de sécurité.
Si vous le souhaitez, à partir de meubles de grande taille dans le bureau, vous pouvez créer une sorte de composition spatiale
Éclairage
Une lumière bien utilisée peut transformer considérablement l'intérieur du bureau, le rendre plus confortable et augmenter l'efficacité du personnel. Le manque de lumière entraîne une fatigue rapide. L'éclairage de l'espace de bureau doit être conçu dans le même style. Vous ne pouvez pas utiliser des lustres, des lampes appartenant à des styles différents en même temps. C'est un signe de mauvais goût. Le style des luminaires doit être en harmonie avec le reste de l'intérieur.

Le nombre et l'emplacement requis des luminaires doivent être pris en compte lors de la conception d'un bureau

Les employés ne doivent pas ressentir d'inconfort causé par un faible éclairage ou le scintillement constant d'une lampe grillée
Chaque zone de travail doit être bien éclairée. Pour ce faire, vous pouvez utiliser non seulement la lumière principale. Les tables de travail peuvent en outre être éclairées par des projecteurs.

La charge sur la vision sera considérablement réduite lors de l'utilisation de différents types de sources lumineuses - directe et diffuse, artificielle ou lumière du jour

La recherche montre que des bureaux lumineux et spacieux motivent le personnel et augmentent la productivité
De plus, lors du choix d'une solution d'éclairage, il est important de tenir compte de la palette de couleurs du design. Si la palette est chaude, n'utilisez pas de lumière froide.
C'est une grosse erreur des gens qui sont loin de la sphère du design. La lumière froide sera pertinente dans les locaux de l'usine.Il mettra en valeur l'intérieur industriel, donnera à l'atmosphère la rigueur nécessaire, car le processus de production exige de la discipline. Le chef peut souligner l'atmosphère créative avec l'utilisation d'une lumière chaude. Cela encouragera le personnel à créer de nouveaux projets, à développer des idées.
Principales raisons du zonage
Même si vous pensez que le zonage de couleur ou de texture des intérieurs de maison est un caprice, pas une nécessité, vous aurez raison. Cette méthode joue, tout d'abord, rôle esthétique
, et les cloisons, les étagères et les meubles ont longtemps été utilisés pour mettre en valeur des zones individuelles.
Mais simultané coller vous permettra non seulement de rendre la pièce plus dynamique
: grâce à un travail minutieux, chaque zone de l'intérieur de la maison conservera sa propre atmosphère.
La séparation des zones par papier peint est réalisée pour plusieurs raisons:
- le but différent des différentes parties de la pièce nécessite la formation d'un design spécial: un style unique n'est pas toujours capable de souligner l'individualité de chaque zone
; - souvent même un petit espace de la chambre, du salon et d'autres pièces nécessite une séparation visuelle
. Des armoires ou des cloisons massives «dévoreront» une zone déjà petite, et des stores muraux correctement sélectionnés peuvent même fournir une expansion visuelle de l'intérieur; - fournir un zonage avec du papier peint est également utile si vous ne savez pas comment combiner des meubles appartenant à différents
. Le plus souvent, cela est typique du salon: mettez en valeur la zone de réception à l'aide de meubles anciens - et avec la bonne délimitation des couleurs de l'espace, une telle conception ne contredira pas l'équipement moderne du reste de la pièce; - l'utilisation est utile quand il le faut souligner la partie principale de n'importe quelle pièce
. Des papiers peints plus ou à motifs sont collés sur un mur libre et forment un accent lumineux qui fait de cette partie de l'intérieur la principale; - zoner l'intérieur avec du papier peint est utile dans les pièces où vivent plusieurs personnes
(par exemple, dans une crèche). Cette approche permet à chacun de décorer les murs selon ses propres goûts et préférences.
Conseils:
pour que l'effet de zonage soit plus perceptible, essayez de ne pas combiner des papiers peints de la même palette et du même niveau de saturation. Cette approche n'est acceptable que lorsque l'un des fonds d'écran contient un grand motif accrocheur.

Vous trouverez de nombreux fonds d'écran de zonage photo montrant comment cette méthode contribue à la correction de l'espace
. Par exemple, les intérieurs étroits, décorés de plusieurs papiers peints pour les murs à la fois, conformément aux règles de conception du collage, seront perçus comme plus proportionnels. Pièces excessivement spacieuses qui causent de l'inconfort, vous pouvez réduire visuellement leur taille et les rendre plus confortables.
Règles de base pour l'organisation de l'espace de planification de bureau
La question de savoir quelle devrait être la zone de travail est complexe et ambiguë. Différentes entreprises y réagissent différemment. C'est pourquoi les développeurs préfèrent souvent confier complètement la solution à ce problème entre les mains de l'entreprise.
Et c'est la raison pour laquelle la disposition libre du bureau est si populaire en ce moment - c'est-à-dire un vaste territoire sans cloisons, où seule la position des salles de bains et des communications verticales est rigidement fixée. Sinon, le propriétaire de l'entreprise est libre de décider comment organiser l'aménagement.
Dans le même temps, il ne faut pas oublier plusieurs principes de base pour la formation de l'intérieur de ce type de locaux.Premièrement, les dimensions globales et la configuration de la zone à équiper ne permettent généralement pas à toutes les pièces de bénéficier de la lumière naturelle.
Deuxièmement, les accents de couleurs vives dans un lieu destiné au travail ne sont pas toujours appropriés. Ils peuvent servir d'irritant supplémentaire.
Cependant, les grandes salles sans accents dans la conception ont également un effet déprimant sur le psychisme, elles semblent monotones. Ici, vous devez en quelque sorte trouver le bord, en introduisant la couleur très soigneusement. Cela peut et doit être fait dans les salles de réunion, les salons et les halls.
Enseignes, types et classification des locaux non résidentiels

Les relations marchandes étant actuellement très développées, la notion de transaction immobilière s'est largement répandue. Mais dans la législation russe, il n'y a pas de concept clair pour de telles actions, ce qui pose certaines difficultés.
Ce problème inquiète les hommes d'affaires qui veulent transformer l'immobilier résidentiel en non résidentiel à des fins commerciales. Cette question se pose souvent pour les résidents des maisons qui confondent les locaux non résidentiels avec la propriété commune dans le processus de calcul des factures de services publics. Découvrez les types et les caractéristiques de ces locaux ci-dessous.
Chers lecteurs! Nos articles parlent des moyens typiques de résoudre les problèmes juridiques, mais chaque cas est unique.
Définir les limites et les règles
La délimitation des zones fonctionnelles est établie en tenant compte de la destination du site. En règle générale, selon le type de destination, les territoires à l'intérieur des limites de la ville sont divisés selon les types suivants :
- adapté au développement résidentiel;
- attribués à des groupes spéciaux ;
- optimal pour l'agencement de la production;
- nécessaire au maintien de la vie, c'est-à-dire à l'ingénierie, aux réseaux de transport.
Les règles qui guident le zonage des territoires libres sont énoncées dans le Code d'urbanisme de la Fédération de Russie, à l'article 35.
Habituellement, les zones fonctionnelles du plan directeur d'une agglomération urbaine ou autre sont territorialement limitées aux rues, autoroutes et autoroutes. Ils peuvent occuper n'importe quelle zone à la fois dans un quartier et dans plusieurs quartiers.
Les principaux paramètres par lesquels les limites des zones fonctionnelles sont déterminées lors de la planification initiale, c'est-à-dire dans le cas de la mise en service de nouvelles parcelles libres, sont précisés dans un ensemble de règlements appelés "Urbanisme". Planification et développement des établissements urbains et ruraux. Le document a été approuvé en tant que guide fondamental pour les développeurs en 2016 par le ministère de la Construction, du Logement et des Services communaux de la Fédération de Russie.
Habituellement, cet ensemble d'actes normatifs et de prescriptions est appelé plus brièvement dans la vie quotidienne - "Règles". C'est ce document qui indique ce qu'il est permis de placer, où cela peut être fait et où non. Par exemple, cela pourrait ressembler à ceci. Supposons qu'au début du siècle dernier, une usine a été construite, qui a été préservée avec succès à ce jour et continue de fonctionner. Bien sûr, cette production est devenue une production urbaine, la colonie s'est développée autour d'elle. Cependant, selon l'ensemble des réglementations, les nouveaux développements à proximité du bâtiment de production ne sont pas autorisés et les logements déjà situés à côté doivent être progressivement mis hors service, c'est-à-dire réinstallés et démolis ou utilisés pour d'autres besoins.

Bien sûr, la définition des limites d'une zone particulière est également influencée par sa destination. Certains des types secondaires, en principe, ne peuvent pas avoir un cadre clair. Par exemple, les réseaux électriques sur les plans de zonage fonctionnel urbain sont indiqués par des lignes fines traversant tous les territoires sans exception. Il en va de même pour les infrastructures de transport, les routes, les égouts et divers services publics. C'est-à-dire que ces zones fonctionnelles, dont le but est de répondre aux besoins fondamentaux de la population, n'ont pas de limites claires. En principe, ils ne peuvent être limités par rien. Mais cela ne signifie pas du tout qu'il n'y a pas d'instructions claires quant à leur emplacement pour ces zones secondaires. C'est-à-dire que les poteaux avec des fils électriques ne sont pas installés au centre de la chaussée et que les câbles ne sont pas enterrés plus profondément que prévu dans les règles.
L'emplacement et l'aménagement de ces zones sont régis non seulement par des règlements d'urbanisme, mais également par un certain nombre d'autres règlements législatifs, dont la liste dépend directement de l'utilisation prévue de certaines zones fonctionnelles. Par exemple, l'aménagement et l'emplacement des cimetières, des égouts, des caniveaux avec eaux usées et autres installations similaires sont également coordonnés avec les réglementations sanitaires et environnementales.
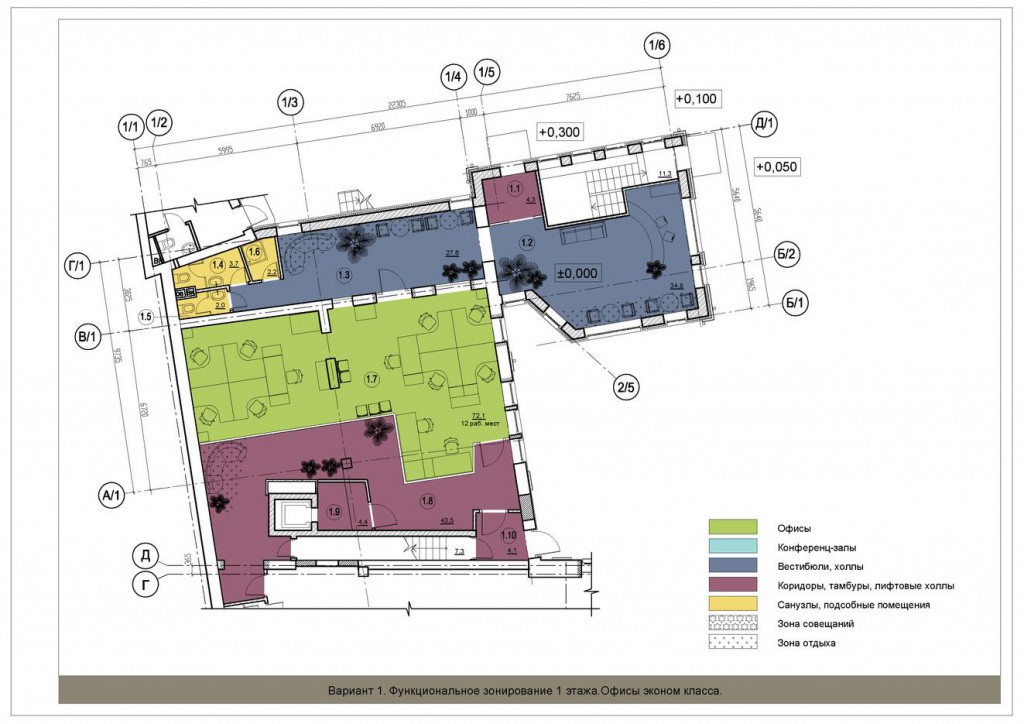
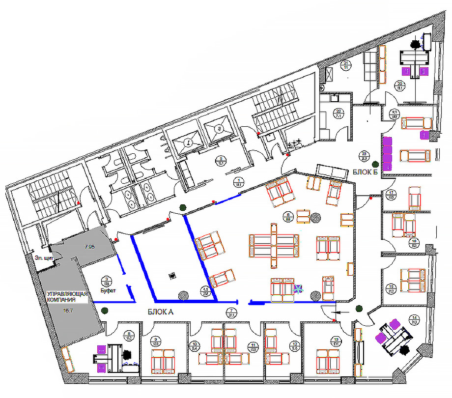
Aménagement de l'espace bureau
Les locaux de bureaux peuvent être de différentes tailles et configurations. La superficie des plus petits bureaux-bureaux dans les centres d'affaires russes est de 17 à 25 m². M. C'est un endroit pour travailler 3-4 personnes. Les plus populaires sont les bureaux d'une superficie de 28 à 35 mètres carrés. m - ils peuvent être aménagés de manière créative à leur manière, en utilisant efficacement chaque mètre.Si vous avez deux ou trois bureaux adjacents, vous pouvez organiser un espace ouvert en supprimant simplement les murs supplémentaires, ou un seul d'entre eux - un type de bureau mixte. Selon les statistiques en Russie, environ 15% des espaces de bureaux ne sont pas utilisés de manière rationnelle, en raison d'une planification initialement infructueuse. Dans les pays occidentaux, presque tous les bureaux sont conçus selon le principe de l'Open Space, seule la direction dispose de bureaux.
Divisions d'employés
Il est important de considérer que pour différents types de travail, sur différents équipements, une certaine zone et d'autres paramètres sont requis pour chaque lieu de travail :
- si le travail est effectué sur d'anciens ordinateurs, chaque personne se voit attribuer environ 6 mètres carrés;
- sur les écrans modernes à cristaux liquides ou plasma - 4,5 à 5 mètres carrés;
- la distance entre l'écran et l'écran des moniteurs se tenant l'un après l'autre - 2 m;
- lors de l'exécution de travaux créatifs ou exigeants, les lieux doivent être séparés les uns des autres par des cloisons jusqu'à 2 m de haut.

Le concept de "lieu de travail des employés" n'inclut pas les meubles ou les allées - c'est un espace supplémentaire qui doit être optimisé. Les tables à double face pour deux travailleurs prendront beaucoup moins de place que deux tables séparées. Les armoires et les racks sont remplacés par de nombreuses étagères, ce qui permet d'économiser de l'espace utilisable.
Selon les spécificités du travail, un ordinateur et un téléphone peuvent être situés sur chaque table, et une imprimante, un fax, un copieur - dans un endroit bien en vue, mais à l'usage de toute l'unité. Les appareils bruyants doivent être placés à côté de panneaux insonorisants. L'équipement de serveur est mieux placé dans une buanderie séparée. Les documents papier sont stockés dans une archive - il peut s'agir d'un petit coffre-fort ou d'une pièce entière.La comptabilité, la réception, le service du personnel, le chef d'entreprise peuvent être situés dans des pièces séparées. Pour chacun des locaux, un certain ensemble de meubles est fourni - tables de travail avec chaises, armoires pour vêtements d'extérieur et documentation, ordinateurs, matériel de bureau.

Siège social
La direction est presque toujours dans un bureau séparé - c'est calme, confortable, beau, il y a un niveau d'intimité suffisant pour un travail sérieux. Il s'agit généralement d'une pièce d'une superficie de 10 à 15 mètres carrés, jusqu'à quatre personnes peuvent y travailler en même temps. L'intérieur reflète les activités de l'entreprise, est conçu en utilisant des éléments d'identité d'entreprise. Le bureau du patron est de préférence large, avec de nombreux tiroirs, de préférence aux bords arrondis pour que l'ambiance ne paraisse pas trop stricte. Parfois, la salle du directeur n'est clôturée que par une cloison vitrée haute avec une visibilité à sens unique, de sorte qu'il est facile d'observer les subordonnés.
Salle de réunion
Dans un espace séparé, le plus souvent fermé, se trouve une salle de négociation ou une salle de conférence. Un attribut obligatoire ici est une grande table. Il peut être en forme de T, rectangulaire - alors le réalisateur est devant tout le monde. Pour les négociations avec des partenaires égaux, les psychologues recommandent rond ou ovale, car cette forme vous permet de ne distinguer personne séparément. Des meubles rembourrés luxueux souligneront également la solidité de l'entreprise. Un attribut obligatoire d'une salle de conférence est un équipement d'interphone, de préférence des appareils multimédias intégrés.
Salle de repos
Les aires de loisirs peuvent être situées dans un endroit séparé de la salle commune ou dans une pièce séparée. Les employés doivent pouvoir se reposer pendant le déjeuner et les autres pauses.

Les salles de repos doivent avoir :
- canapés;
- les fauteuils;
- table pour la nourriture;
- table à café.
Tout cela ressemble à un environnement strict ou "business mess", il peut y avoir des plantes d'intérieur, des fontaines décoratives, des jeux de société. L'éclairage doit être doux, relaxant. L'insonorisation de la chambre est également souhaitable.
Types de cloisons pour bureau
Les cloisons de bureau sont divisées en trois types principaux : fixes, mobiles et coulissantes. Une option appropriée est sélectionnée en fonction de l'objectif du zonage et du type de bureau. Examinons de plus près chacun de ces types.
Cloisons fixes
Lors du choix des cloisons fixes pour le bureau, il ne faut pas oublier qu'après l'installation, elles ne peuvent pas être déplacées si l'on souhaite réaménager, car elles deviendront inutilisables
Par conséquent, il est important d'examiner attentivement à l'avance comment organiser chaque zone dans les locaux.
Il existe de nombreuses variétés de cloisons fixes. Ils peuvent être tout en verre, en aluminium, en simple/double vitrage ou en polycarbonate alvéolaire, en MDF, en aggloméré et autres matériaux similaires. Les modèles combinés sont également courants. Avec l'aide de cloisons en verre, vous pouvez rendre le bureau plus spacieux. Le verre permet à la lumière du soleil d'entrer librement dans n'importe quel coin de la pièce. Les cadres en aluminium avec une finition chromée impressionnante ajoutent de la sophistication au décor de bureau. De plus, des cloisons vitrées sont installées bout à bout, grâce auxquelles il est possible de créer des murs esthétiques et faciles à ériger.
Si, dans le bureau, vous devez enfermer complètement une pièce, par exemple une salle de réunion, afin que les étrangers ne puissent pas seulement entendre, mais aussi voir ce qui s'y passe, les cloisons solides sans vitrage sont parfaites à cet effet. L'option la plus économique consiste en des structures en polycarbonate cellulaire, en MDF et en aggloméré. Ils divisent non seulement le bureau en zones, mais assurent également une isolation phonique optimale dans la pièce.
Cloisons mobiles
Le zonage d'espaces de bureaux à l'aide de structures mobiles est simple et rapide. De telles cloisons sont un système de sections, dans lequel des éléments de fixation sous la forme de crémaillères de connexion sont prévus.
Un avantage important de ces structures par rapport à leurs homologues fixes est qu'elles peuvent être déplacées si nécessaire. Ils sont rapidement démontés et assemblés sans nécessiter de compétences particulières.
Les cloisons mobiles peuvent être entièrement vitrées, pleines ou combinées. Quel que soit le choix des modifications de conception, elles aident à diviser efficacement l'espace de bureau en pièces séparées. Dans la production de telles cloisons, divers matériaux sont utilisés: polycarbonate cellulaire, MDF, aggloméré, verre, etc. De plus, les structures mobiles ont des tailles différentes. Contrairement à leurs homologues fixes, ils ne sont pas montés du sol au plafond, mais peuvent avoir n'importe quelle configuration.
Cloisons coulissantes
Fondamentalement, les cloisons coulissantes sont utilisées dans les bureaux où il est prévu de déplacer un flux important d'employés d'un bureau à un autre. Avec leur aide, vous pouvez transformer la pièce d'une pièce commune en plusieurs zones distinctes.Si nécessaire, les cloisons coulissantes se déplient ou se replient rapidement dans leur forme d'origine. Ils sont parfaits pour organiser des événements d'entreprise ou des négociations, ainsi que pour organiser un lieu temporaire de détente pour les employés.
Quelle est la réponse à quoi ?
Réceptionniste
La zone de présentation doit familiariser les clients avec les activités de l'entreprise et ses valeurs d'entreprise. Une personne devrait avoir des émotions purement positives concernant cette question. Pour rendre l'atmosphère mémorable, dans la conception du bureau pour cette partie, ils n'utilisent pas de cloisons et les racks habituels. Le rôle de barrières peut être parfaitement assuré par des plantes globales en bacs et tables profilées. Il est nécessaire de prendre soin du confort des visiteurs et de créer une zone d'attente confortable, en la garnissant de meubles rembourrés confortables.

Espace de présentation du bureau
Salle de conférence
La salle de réunion doit accueillir un grand nombre de participants. Son design d'intérieur au bureau se distingue par une élégante austérité. Ici, rien ne doit détourner l'attention des questions à l'étude. La table de négociation deviendra le centre de la composition intérieure. Ce meuble de bureau doit être de conception respectable et de grandes dimensions. Il est souhaitable que la conception n'ait pas de coins. Cela éliminera la possibilité de domination de quelqu'un qui leur parle, ce qui est tout à fait possible à une table traditionnellement rectangulaire.

La conception de la salle de conférence ne doit pas détourner l'attention des questions à l'étude
Bureau du chef
Étant donné que l'étiquette commerciale permet au responsable de recevoir des VIP non pas dans la salle de conférence, mais dans son propre bureau, il est alors nécessaire de prévoir dans son agencement un coin où il serait possible de parler "sur un pied d'égalité".Recevoir des clients importants assis à votre bureau, même s'il a l'air luxueux, est une mauvaise manière.

Dans le bureau du directeur, fournir un lieu de rencontre pour les clients
Zone de libération émotionnelle
L'agencement de cette partie dans la conception du bureau doit être abordé avec une sincérité particulière. Ici, vous devez avoir des meubles rembourrés, une table basse, une décoration agréable. Vous pouvez interpréter le site comme un jardin d'hiver et même l'équiper d'un système de cascades. Le bruit de l'eau courante est très utile pour soulager la tension.

Zone de loisirs à l'intérieur du bureau
Lieu de travail
Lors de la planification de l'espace de bureau, les employés ordinaires sont de plus en plus placés dans un espace commun, plutôt que assis dans des pièces séparées. C'est bon dans tous les sens. Tout d'abord, l'espace est économisé, ainsi que l'interaction des employés est optimisée.

Hébergement des employés dans l'espace commun
Pour éliminer la tentation d'engager des conversations inutiles, des délimiteurs de zones personnelles sont introduits, qui peuvent être à la fois des meubles dans le bureau et:
- cloisons;
- écrans;
- stores;
- panneaux coulissants.

Zonage des lieux de travail avec cloisons
Le design intérieur du bureau dans cette partie doit être extrêmement concis et le lieu de travail lui-même doit être confortablement organisé. Il ne doit pas être trop spacieux ou exigu. La psychologie de bureau insiste sur le maintien des normes. L'entassement provoque une atmosphère tendue dans l'équipe.










































