- Caractéristiques des systèmes de transport pneumatique
- Vidéo : Systèmes d'aspiration Ecovent
- Types de systèmes d'aspiration
- Installation de systèmes d'aspiration
- Évaluation du travail d'aspiration dans l'atelier
- Le système d'aspiration peut avoir différents types
- Caractéristiques de l'installation de telles structures
- Avantages des systèmes d'aspiration
- 3 étapes de conception
- Le principe de fonctionnement et le fonctionnement de l'unité d'aspiration
- Le principe de fonctionnement de la centrifugeuse
- Le principe de fonctionnement du générateur de vide
- Travail propre de A à Z
- Comment ça fonctionne
- Classification
- Selon la disposition des éléments constitutifs :
- Caractéristiques de conception des systèmes d'aspiration
- La nature de la circulation de l'air
- Processus d'aspiration
- Équipements pour installations d'aspiration
- Calcul du système
Caractéristiques des systèmes de transport pneumatique
De tels dispositifs collectent et éliminent non seulement les déchets industriels, mais sont également capables de fournir des matériaux en vrac pour leur traitement ultérieur. Il ne s'agit pas seulement de sciure ou d'autres déchets de bois, mais aussi de cultures.
Une vanne de dérivation peut être installée sur le transport pneumatique. Ensuite, les déchets peuvent effectivement être envoyés vers différents lieux de déchargement.
Des exigences strictes sont imposées à la qualité des unités de transport pneumatique. Ainsi, ils doivent être résistants à l'usure des conduits d'air, ils ne doivent pas être bouchés.Si un blocage ou un blocage se forme dans le système de transport pneumatique, cela arrêtera le fonctionnement de tous les équipements de ventilation. Pour remédier rapidement à la situation, des trappes de nettoyage urgent sont équipées aux endroits de possibles blocages.
Les systèmes d'aspiration et de transport pneumatique nécessitent une conception et une installation précises. Sinon, un accident peut survenir ou la santé des employés de l'entreprise en souffrira. Cette tâche ne peut être confiée qu'à des professionnels. Cela est particulièrement vrai pour les grandes entreprises où il est nécessaire d'installer des systèmes de ventilation centralisés avec la connexion de plusieurs machines à la fois.
Vidéo : Systèmes d'aspiration Ecovent
- Mikhail, Lipetsk — Quels disques pour la coupe du métal faut-il utiliser ?
- Ivan, Moscou — Qu'est-ce que le GOST de la tôle d'acier laminée ?
- Maksim, Tver — Quels sont les meilleurs racks pour le stockage de produits métalliques laminés ?
- Vladimir, Novossibirsk — Que signifie le traitement des métaux par ultrasons sans l'utilisation de substances abrasives ?
- Valery, Moscou — Comment forger un couteau à partir d'un roulement de vos propres mains?
- Stanislav, Voronezh — Quel équipement est utilisé pour la production de conduits d'air en acier galvanisé ?
Types de systèmes d'aspiration
Selon la conception, les systèmes de ventilation par aspiration sont divisés en deux types : monobloc et modulaire.
Une unité d'aspiration monobloc est une unité qui combine tous les composants du système et qui est terminée en usine. L'équipement est livré avec des caractéristiques spécifiées, par conséquent, pour équiper une installation particulière, il est nécessaire de sélectionner un modèle avec des caractéristiques adaptées. Les avantages de ce type de systèmes d'aspiration comprennent:
- petit, en comparaison avec le prix de l'installation modulaire;
- facilité d'installation et de connexion;
- dimensions compactes ;
- préparation à l'opération.
En règle générale, les monoblocs sont de petites unités d'aspiration conçues pour desservir les installations de production avec une quantité relativement faible d'émission de poussière. L'appareil étant livré dans un kit prêt à l'emploi, il peut être difficile de choisir un équipement dont les caractéristiques correspondent à un objet particulier. Les inadéquations de performances peuvent affecter négativement les performances de l'équipement.
Le système d'aspiration modulaire est conçu spécifiquement pour un objet spécifique, en tenant compte de ses paramètres individuels :
- le volume des locaux faisant l'objet de discussions;
- processus technologiques qui s'y déroulent;
- qualité de l'air, composition des polluants, etc.
Cela permet d'obtenir un haut niveau d'efficacité du système d'aspiration. Il correspond à l'installation de production où il est installé, assure un nettoyage de haute qualité sans consommation d'énergie excessive. Ce type de système d'aspiration convient aux moyennes et grandes entreprises industrielles, pour lesquelles l'utilisation de monoblocs n'est pas pratique. Les inconvénients comprennent un niveau assez élevé de dépenses en capital pour la conception et l'installation, la complexité des travaux de mise en œuvre et un temps de mise en service prolongé.
De plus, les systèmes d'aspiration d'air sont classés en fonction de la pression développée par le ventilateur dans les classes suivantes :
- basse pression - niveau de pression jusqu'à 7,5 kPa;
- moyenne pression - pression comprise entre 7,5 kPa et 30 kPa;
- haute pression - pression supérieure à 30 kPa.
Installation de systèmes d'aspiration
Afin de commencer la phase d'installation du système de filtration, un travail de conception est d'abord effectué
Ce processus est très important et une attention particulière y est donc accordée.
Il est important de dire tout de suite qu'une étape de conception et de calcul mal réalisée ne pourra pas fournir la purification et la circulation de l'air nécessaires, ce qui entraînera de mauvaises conséquences. Pour réussir la rédaction et l'installation ultérieure du système, plusieurs points doivent être pris en compte:
Pour réussir la rédaction et l'installation ultérieure du système, plusieurs points doivent être pris en compte:
Il est important de déterminer la quantité d'air consommée par cycle d'aspiration, ainsi que la perte de charge à chaque point de son admission.
Il est important de déterminer correctement le type de dépoussiéreur. Pour ce faire, vous devez le choisir correctement en fonction de ses propres paramètres. Effectuer des calculs et rédiger un projet n'est pas une liste complète de ce qui doit être fait avant de commencer le processus d'installation du système
En d'autres termes, nous pouvons dire que l'installation de filtres est la chose la plus simple et la dernière entreprise par les professionnels.
Faire des calculs et rédiger un projet n'est pas une liste complète de ce qui doit être fait avant de commencer le processus d'installation du système. En d'autres termes, nous pouvons dire que l'installation de filtres est la chose la plus simple et la dernière entreprise par les professionnels.
Les exigences en matière de protection du travail et d'état écologique de l'environnement autour des entreprises en activité augmentent constamment. Les systèmes de nettoyage sont également améliorés. Cet article traite brièvement du processus d'aspiration, des types de systèmes et du principe de fonctionnement.
Un système d'aspiration est un type de filtration et de purification de l'air utilisé dans les ateliers de production avec des procédés technologiques très polluants.
Il s'agit tout d'abord de la métallurgie, des mines, de la peinture et du vernis, de l'ameublement, de la chimie et d'autres industries dangereuses.La principale différence entre l'aspiration et la ventilation de l'air est que la pollution est collectée directement sur le lieu de travail, la distribution mondiale dans tout l'atelier n'est pas autorisée.
Évaluation du travail d'aspiration dans l'atelier
L'évaluation des performances d'aspiration en production industrielle est donnée par :
- par la quantité totale de déchets éliminés ;
- par rapport à la "non-élimination de la nocivité" par rapport à la "nocivité initiale" du procédé technologique. C'est-à-dire que dans le volume d'air qui a traversé le système de nettoyage en profondeur, la quantité de poussière qui a échappé à l'élimination est déterminée.
Fondamentalement, les performances du système d'aspiration sont réduites par toutes sortes de fuites dans les raccords du système de tuyauterie et des manchons de filtration. Ils créent jusqu'à 15 à 20% de perte d'efficacité d'aspiration et rendent nécessaire l'installation de moteurs électriques plus puissants sur les ventilateurs cyclones. Par conséquent, il est nécessaire d'effectuer périodiquement des inspections et des réparations préventives programmées sur les systèmes d'exploitation pour éliminer les défauts au niveau des joints des canalisations et des manchons de filtration.
Le système d'aspiration peut avoir différents types
Aujourd'hui, un système d'aspiration de type modulaire ou un système de dépoussiérage monobloc peut être utilisé dans une entreprise. La conception monobloc est mobile et complètement autonome - un tel système d'aspiration est généralement situé à proximité immédiate du site de collecte des déchets. S'il est nécessaire de concevoir une conception en fonction de la commande individuelle du client, un système d'aspiration modulaire est utilisé - dans la plupart des cas, il comprend des ventilateurs basse pression, des conduits d'air, des séparateurs.
Le système d'aspiration sous la forme d'un complexe automatisé centralisé dépasse largement les installations individuelles des magasins en termes d'efficacité.
Le nettoyage des émissions dans l'atmosphère est une partie nécessaire de toute production respectueuse de l'environnement.
A noter que le système d'aspiration peut être à recirculation ou à flux direct :
- Le système de nettoyage des poussières et des gaz par aspiration de recirculation renvoie l'air en tout ou en partie après le nettoyage dans la salle de production.
- Les systèmes d'aspiration à flux direct captent l'air pollué de l'atelier, le purifient dans des dépoussiéreurs puis le rejettent dans l'atmosphère.
Cependant, quel que soit le type, le système d'aspiration est développé en tenant compte de la puissance requise, ce qui implique l'élaboration précise d'un schéma planaire, où les spécifications et les caractéristiques environnementales des conduits d'air sont indiquées sans faute. Si le projet - un aspirateur central est compilé correctement, cet équipement nettoiera non seulement l'atelier des émissions nocives et de la poussière, mais renverra également l'air purifié chaud dans la pièce, ce qui peut réduire considérablement les coûts de chauffage.
Systèmes de dépoussiérage dans une entreprise de menuiserie - un compartiment pour filtres à manches avec déchargement dans des sacs de stockage.
Dépoussiérage et dégazage d'un atelier de métallurgie en production industrielle - 3 ans de travail effectif.
Caractéristiques de l'installation de telles structures
Étant donné que des quantités importantes de contaminants sont transportées par les conduits d'air des systèmes d'aspiration, ces structures sont également soumises à des exigences accrues en matière de résistance, contrairement aux systèmes de ventilation d'alimentation.
Pour leur fabrication, on utilise de l'acier d'une épaisseur de 1,2 à 5,0 mm et, pour les raccords, il est recommandé de prendre de l'acier dont l'épaisseur est supérieure de 1,0 mm au matériau du conduit.

Pour les conduits d'air des systèmes d'aspiration, une tôle d'acier solide, d'au moins 1,2 mm d'épaisseur, doit être utilisée. Les connexions détachables faciliteront le processus de nettoyage du système de la contamination
Il est interdit de fixer les conduits d'aspiration avec des colliers sur la suspension. Il est uniquement autorisé d'utiliser des pinces fixées avec des supports, dans certains cas des chaînes sont utilisées comme attaches.
La distance maximale entre les supports doit être de trois mètres pour les tuyaux d'un diamètre supérieur à 40 mm et de quatre mètres pour les structures d'un diamètre inférieur ou égal à 400 mm. Ces paramètres assureront une résistance structurelle suffisante et réduiront le risque de rupture de conduit pendant le fonctionnement.
Une autre caractéristique des conduits d'aspiration est qu'ils doivent souvent être démontés afin de les nettoyer des salissures accumulées sur les parois. De plus, en raison de l'usure rapide, les éléments individuels doivent être remplacés périodiquement.
Pour cette raison, il est recommandé d'utiliser des éléments de connexion à dégagement rapide pour les structures de montage, plutôt que des brides traditionnelles, qui échouent rapidement en raison de démontages et de montages fréquents.

Afin d'éviter l'accumulation de pollution dans la conception du système d'aspiration, il est nécessaire de donner aux conduits d'air la pente correcte, qui dépend de la vitesse calculée de déplacement des masses d'air
Pour ajuster le débit d'air, des registres obliques sont utilisés, qui présentent moins de résistance au débit et empêchent mieux l'accumulation de contaminants.L'utilisation de vannes d'étranglement de régulation dans les systèmes d'aspiration n'est pas recommandée.
Il est très important que les conduits d'air soient situés à angle droit.
La position de la structure dépend du débit d'air réglé, qui est déterminé par la nature des contaminants éliminés. Ainsi, pour assurer une vitesse d'environ 20 m/s, il faut une pente de 60°, pour une vitesse de 45 m/s - un angle inférieur à 60°, etc.
Si la nature de la pollution permet de prédire l'accumulation de poussière collante dans les conduits d'air, il est alors recommandé de concevoir initialement de tels systèmes d'aspiration industriels en s'attendant à la vitesse maximale de déplacement des masses d'air.

Dans les petits systèmes d'aspiration, un tuyau en polyéthylène d'un diamètre approprié peut être utilisé pour les dispositifs d'aspiration. C'est un élément pratique, mais pas trop durable, qui devra éventuellement être remplacé.
Pour faciliter le processus de nettoyage de la structure, des inserts spéciaux en film, papier et autres matériaux appropriés sont insérés à l'intérieur des conduits d'air. Les ventilateurs domestiques ordinaires et même certains ventilateurs industriels ne conviennent pas aux systèmes d'aspiration, même s'ils ont des performances suffisamment élevées.
Nous avons besoin d'appareils avec une résistance accrue à l'usure, qui peuvent fonctionner longtemps sous une charge élevée sans interruption.
Un problème courant avec les systèmes d'aspiration à faible efficacité est la perte d'air. Pour éviter ce phénomène, les experts recommandent de choisir des ventilateurs avec une certaine réserve de marche. Les pertes d'air en pratique peuvent atteindre 30% par rapport aux données calculées.
Un choix incorrect de l'aspiration locale peut affecter négativement l'ensemble du système. Il est impossible de choisir un tel élément sans tenir compte des caractéristiques du processus technologique.
Dans certains cas, un abri de type parapluie sera efficace, dans d'autres - une «vitrine», une hotte aspirante, une cabine, etc. Ce point doit être convenu avec le technologue d'une production particulière.
La plupart des installations d'aspiration sont conçues pour déplacer de l'air purifié dans l'atmosphère, mais parfois ces masses d'air sont renvoyées dans la salle de production (+)
Pour le nettoyage grossier de l'air de la poussière, des sacs à poussière, des chambres à poussière non perméables, des conduits de gaz en soute, des cyclones secs et d'autres dispositifs similaires sont utilisés, en fonction de la nature de la poussière.
Pour le nettoyage moyen, des épurateurs sont souvent utilisés, tandis que le nettoyage fin est effectué avec un ensemble d'outils pouvant inclure un précipitateur électrostatique de type cyclone et un filtre à manches, dans certains cas un venturi haute pression ou d'autres unités appropriées sont utilisées.
Avantages des systèmes d'aspiration
Le fonctionnement d'un système d'aspiration de haute qualité est directement lié aux économies d'énergie. Comment? Les ateliers qui ne sont pas équipés de tels équipements sont contraints de ventiler simplement la pièce. Sinon, la poussière obstruera considérablement les voies respiratoires des travailleurs et gênera le travail. Les travailleurs tomberont souvent malades. Les vapeurs fortes provenant, par exemple, des peintures, des adhésifs et des solvants nuisent au métabolisme du corps.
Une personne qui travaille dans de mauvaises conditions commencera sûrement à ressentir une faiblesse désagréable dans quelques semaines. Autrement dit, vous ne pouvez pas quitter la pièce avec de l'air pollué. La ventilation semble être un moyen bon marché de résoudre le problème. Mais en réalité, cela coûtera beaucoup plus cher.Pendant les saisons froides, des millions de joules d'énergie sont littéralement jetés dans le vent chaque heure, qui ont été dépensés pour chauffer la pièce et à différentes étapes de la production. Le système de nettoyage permet :
- Économisez de l'énergie pour le chauffage grâce au système d'aspiration;
- Offrir aux travailleurs des conditions normales de travail;
- Protégez l'équipement en enlevant la poussière de l'air;
- Renvoyez l'air purifié dans la pièce ;
- Enlevez non seulement les petits copeaux, mais aussi les microparticules de bois et autres poussières.
Les déchets de bois broyés doivent être retirés de l'atmosphère. De plus, les installations modernes sont capables de capturer des particules jusqu'à 5 micromètres. Certains systèmes sont capables de nettoyer l'atmosphère de la poussière à 99%, donnant un air presque pur à la sortie.
la source
3 étapes de conception
La conception appropriée d'un système modulaire est la clé de son fonctionnement efficace. Avant de commencer à créer un projet, vous devez évaluer l'état technique de la pièce où sera située l'installation, vérifier les performances du système de ventilation existant.
Le volume d'air qui traversera la structure d'aspiration est le principal indicateur de son fonctionnement. Plus il est grand, plus l'installation et le fonctionnement du système de nettoyage coûteront cher.
Dans le processus de planification, il est important de choisir les bons composants afin de réduire les coûts initiaux et d'exploitation.
Une approche plus rationnelle implique un calcul préalable de la répartition des débits d'alimentation, le choix des filtres et un dispositif d'aspiration d'air (aspiration embarquée, structures type « abri », « parapluie » et autres). Cela permettra de créer une unité qui aspirera efficacement l'air même dans une production fortement polluée, tandis que la charge sur le système ne sera pas excessive, la durée de vie des ventilateurs augmentera et les filtres ne devront pas être changés aussi souvent.
Le principe de fonctionnement et le fonctionnement de l'unité d'aspiration
Près du site d'atterrissage, sur un support universel, les tubes (embouts) d'un aspirateur et un appareil pour taon salivaire sont fixés. Une pointe spéciale est insérée dans le fragment supérieur des tubes. L'effet de l'élimination de la salive est dû au vide créé par toutes les méthodes ci-dessus.
La suspension d'aspiration, déjà nettoyée, passe par la sortie et le séparateur. Il finit ensuite à l'égout. Si vous retirez un embout buccal de la base du support, tous les tubes du système d'aspiration seront dépressurisés. Pour que la salive passe par l'embout sélectionné, les canaux restants doivent être solidement bloqués. Les unités de drainage par aspiration ont trouvé une application dans tous les cabinets dentaires et cliniques.
Le principe de fonctionnement de la centrifugeuse
Les pompes à vide fonctionnent longtemps et de manière fiable si la suspension usée avec masse d'air n'y pénètre pas. Le séparateur résout de manière fiable ce problème. Son composant principal est la cuve de séparation. Le liquide sous l'influence des forces d'aspiration pénètre dans le réservoir par l'entrée et le filtre, qui le sépare de la masse d'air.Par la sortie, l'air pénètre dans la pompe et la boue (qui a un poids plus lourd) se dépose au fond.
La dépression créée dans le récipient par la pompe ou la pompe ferme le clapet de sortie situé tout en bas du canister. Lorsque le dentiste remet l'embout buccal dans le support, l'accélérateur s'ouvre automatiquement et la suspension s'écoule d'elle-même dans les égouts. Le liquide peut être expulsé avec une pompe.
Un capteur est intégré dans le conteneur, qui détermine la hauteur de la colonne de remplissage, ce qui empêchera le réservoir de déborder. Si le niveau de liquide atteint le compteur, la pompe arrête son fonctionnement et le processus de pompage de la suspension commence. Lorsque la colonne d'eau descend à une certaine valeur, un autre capteur se déclenche et le processus d'aspiration se poursuit. Ce système présente un gros inconvénient, car il interrompt automatiquement le processus d'aspiration, ce qui peut interférer avec le fonctionnement du patient. Il s'avère que plus la capacité du séparateur est grande, moins le travail sera interrompu.
Les experts estiment que les meilleurs systèmes d'aspiration sont les produits de Cattani (Italie). Les unités de cette marque sont considérées comme les plus équilibrées en termes de prix et de qualité.
Le principe de fonctionnement du générateur de vide
Ces dispositifs, comme mentionné ci-dessus, ont une structure différente. Par conséquent, le principe de fonctionnement des différents générateurs de vide a ses propres caractéristiques. Par exemple, une dynamo à air a ses propres caractéristiques distinctives. Ici, le système d'aspiration commence son travail immédiatement après avoir été retiré du support d'embout buccal. Le tuyau d'air est fixé à l'entrée directement à partir de l'unit dentaire.
Si le générateur est fabriqué en usine de manière standard, les masses d'air utilisées seront évacuées par le silencieux. Pour les jeter, le médecin devra connecter un tuyau spécial et l'emmener à l'extérieur. Si le système d'aspiration a une conception centralisée, des pompes et des générateurs du même type sont utilisés, mais la puissance de ces appareils sera beaucoup plus élevée.

Travail propre de A à Z
NZMK propose une gamme complète de services pour la conception d'équipements, de systèmes d'automatisation et d'équipements électriques - à partir d'un seul fournisseur. Dans le domaine des systèmes d'aspiration, nous proposons :
- Concevoir
- Fabrication
- Montage
- Mise en service
- Modernisation
- Entretien des services
Le système d'aspiration fabriqué chez NZMK est une solution complète et efficace pour vos tâches de production. Une large gamme de composants standard, ainsi que la conception modulaire de l'équipement, vous permettent de concevoir et d'installer un système d'aspiration qui répond pleinement à vos exigences.
Comment ça fonctionne
La pollution de l'air fait inévitablement partie de nombreux procédés de fabrication. Pour respecter les normes sanitaires établies en matière de pureté de l'air, des procédés d'aspiration sont utilisés. Avec leur aide, la poussière, la saleté, les fibres et autres impuretés similaires peuvent être efficacement éliminées.
L'aspiration est une aspiration qui s'effectue en créant une zone de basse pression à proximité immédiate de la source de pollution.
Pour créer de tels systèmes, il faut de sérieuses connaissances spéciales et une expérience pratique.Bien que le fonctionnement des dispositifs d'aspiration soit étroitement lié au fonctionnement des systèmes de ventilation, tous les spécialistes de la ventilation ne seront pas en mesure de concevoir et d'installer ce type d'équipement.
Pour atteindre une efficacité maximale, les méthodes de ventilation et d'aspiration sont combinées. Le système de ventilation de la salle de production doit être équipé d'un complexe d'alimentation et d'évacuation pour assurer un apport constant d'air frais de l'extérieur.
L'aspiration est largement utilisée dans les industries suivantes :
- production de broyage ;
- transformation du bois;
- fabrication de produits de consommation;
- d'autres processus qui s'accompagnent de la libération d'une grande quantité de substances nocives à l'inhalation.
Il est loin d'être toujours possible d'assurer la sécurité des employés avec un équipement de protection standard, et l'aspiration peut être le seul moyen d'établir un processus de production sûr dans l'atelier.
L'élimination des contaminants à l'aide de systèmes de ce type est effectuée par des conduits d'air spéciaux qui ont un grand angle d'inclinaison. Cette position évite l'apparition de zones dites de stagnation.
Un indicateur de l'efficacité d'un tel système est le degré de non-assommage, c'est-à-dire le rapport entre la quantité de contaminants qui ont été éliminés et la masse de substances nocives qui n'ont pas pénétré dans le système.
Il existe deux types de systèmes d'aspiration :
- systèmes modulaires - appareil fixe ;
- monoblocs - installations mobiles.
De plus, les systèmes d'aspiration sont classés selon le niveau de pression :
- basse pression - moins de 7,5 kPa;
- moyenne pression - 7,5-30 kPa;
- haute pression - plus de 30 kPa.
L'ensemble complet du système d'aspiration de type modulaire et monobloc diffère.
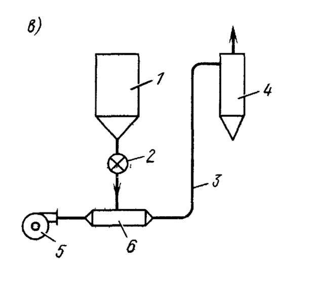
Les monoblocs sont constitués des éléments suivants :
- ventilateur;
- séparateur;
- accumulateur de déchets.
Le séparateur est un filtre permettant d'épurer l'air traversant l'appareil. L'accumulateur de déchets peut être à la fois fixe, c'est-à-dire monobloc intégré et amovible.
Une telle unité peut être achetée prête à l'emploi et simplement installée dans un endroit approprié pour effectuer des procédures d'aspiration. Dans le même temps, il n'est pas difficile de les connecter aux systèmes centralisés existants.
Les systèmes modulaires sont plus difficiles à installer et plus chers, mais leur utilisation est beaucoup plus efficace que lors de l'utilisation de structures monoblocs. De tels systèmes ne sont pas typiques, ils sont d'abord conçus en tenant compte des conditions et des tâches spécifiques.
Cela prend en compte un certain nombre de facteurs :
- caractéristiques de l'installation de production ;
- caractéristiques du processus technologique;
- la qualité du milieu transporté, etc.
Il s'agit généralement d'un système centralisé, composé d'un ensemble de conduits d'air et d'une unité d'aspiration. Pour les grandes entreprises, un système avec non pas un, mais avec deux ou plusieurs de ces blocs peut être utilisé.
Le matériau des conduits d'air peut être différent, selon la nature et la quantité de pollution censée être transportée à travers eux.
Les structures en métal ferreux sont considérées comme les plus durables, mais elles sont aussi les plus chères. Dans tous les cas, les sections individuelles de la conduite d'air sont reliées hermétiquement à l'aide de brides boulonnées.
Parmi les avantages des systèmes d'aspiration figurent:
- relative simplicité de conception;
- compatibilité avec divers types d'équipements de production;
- sécurité pour l'environnement;
- la possibilité d'automatiser le travail;
- augmenter la sécurité incendie des locaux, etc.
Les inconvénients de telles installations comprennent, tout d'abord, l'augmentation des coûts énergétiques, en particulier avec une conception inappropriée, ainsi que la faible résistance des conduits d'air métalliques à l'usure. Ces points doivent être pris en compte lors du choix d'une conception appropriée.
Classification
Les systèmes d'aspiration sont classés :
Selon la disposition des éléments constitutifs :
Systèmes d'aspiration. Ce schéma est le plus rationnel, car l'air déjà purifié passe à travers le ventilateur. Mais de tels systèmes d'aspiration sont limités par des pertes de charge jusqu'à un ventilateur de 9,5 kPa.

Système d'aspiration aspiration-pression. Ce schéma est utilisé pour les pertes de charge importantes dans le système de ventilation. Il n'utilise que des ventilateurs à poussière, car l'air qui n'a pas encore été purifié passe à travers le ventilateur et l'air ordinaire ne le supporte pas.

Système d'aspiration sous pression. Un tel schéma du système d'aspiration est utilisé lorsque le passage de la masse d'air à travers le ventilateur est inacceptable.

Caractéristiques de conception des systèmes d'aspiration
Selon les caractéristiques de conception, les systèmes d'aspiration sont divisés en:
Collectionneur. Ceux-ci incluent les trois régimes précédents.

Artisanale. La portée du schéma artisanal est limitée et ne dépasse pas 30m.

Le schéma de collecteur le plus couramment utilisé.
La nature de la circulation de l'air
La nature de la circulation de l'air
- Flux direct. Dans de tels systèmes d'aspiration, l'air, après avoir été dépoussiéré dans une unité de dépoussiérage, est libéré dans l'atmosphère.
- Recirculation.Dans ces systèmes d'aspiration, l'air, après nettoyage dans le dépoussiéreur, est totalement ou partiellement réutilisé, c'est-à-dire renvoyé dans la pièce. Cela permet de réduire les coûts de chauffage, car cela réduit les pertes de chaleur.
Processus d'aspiration
Le dispositif d'aspiration fournit une entrée d'air polluée par la poussière et les substances nocives. Le taux d'aspiration dépend du système choisi et de ses principaux composants. L'unité de purification rapide d'oxygène est un système d'aspiration et de filtrage autonome qui assure le bon débit d'air dans la pièce.
L'aspiration est un processus simple d'élimination de la poussière et des gaz générés par la production principale.
Le système de ventilation dans certaines parties de la salle de production peut être éteint de la mine de nettoyage général. Le nombre de vannes et de ventilateurs dépend du degré de contamination de la pièce dans laquelle se trouvent l'équipement ou d'autres appareils. L'unité d'aspiration fonctionne correctement avec une entrée constante de masses d'air de la pièce. Le système est surveillé une fois tous les six mois en cas de panne d'urgence ou de panne du système.
Le dispositif d'aspiration pénètre dans le conduit d'air, ce qui assure une filtration complète de l'air dans le bâtiment. Le taux d'aspiration dépend de la puissance de l'appareil installé. La qualité des masses d'air détermine le bien-être des ouvriers et du personnel de maintenance qui se trouvent quotidiennement dans l'atelier ou dans l'entreprise.
Le bien-être des travailleurs et du personnel de maintenance travaillant dans l'entreprise dépend de la qualité des masses d'air.
Les éléments constitutifs de la ventilation assurent l'admission des masses d'air et le dépoussiérage des locaux.Le démarrage inverse de l'oxygène purifié se produit automatiquement. La conception du futur atelier n'est pas complète sans l'aménagement du conduit d'air, comme une structure globale et complexe. Le taux d'aspiration est calculé au stade du travail excusable.
Équipements pour installations d'aspiration
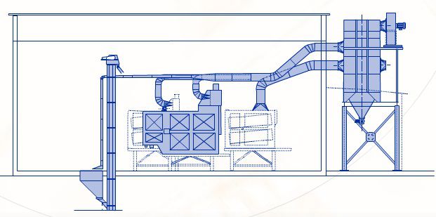
Aspiration monobloc dans un atelier de menuiserie
Pour chaque atelier spécifique, à la fois le système de ventilation qui crée et contrôle les flux d'air dans la pièce, et les unités d'aspiration, qui sont engagées dans l'élimination directe des plus petites particules solides avant qu'elles ne pénètrent dans l'espace d'air de l'atelier ou dans l'atmosphère, sont élaborés conjointement.
Les unités d'aspiration d'air profond sont de deux types :
- Monobloc, lorsqu'une installation complètement autonome est créée avec un processus fermé pour la sélection, la collecte et l'élimination des particules de poussière sèche. Par conséquent, il se compose généralement d'un ou plusieurs ventilateurs, filtres et d'un conteneur spécial pour la concentration des déchets sélectionnés.
- Modulaire, lorsqu'un seul système est conçu avec des conduits d'air reliés à différents postes de travail, des ventilateurs basse et haute pression, des séparateurs, des conteneurs pour la collecte et le stockage des déchets. De tels systèmes peuvent être créés à la fois pour un atelier séparé et pour l'ensemble des installations de production de l'usine.
Les principaux équipements des usines d'aspiration comprennent:
- Cyclone. Il s'agit d'un dispositif de ventilation à deux chambres qui crée un degré élevé de raréfaction centrifuge de l'air : les grosses particules sont concentrées dans la chambre extérieure et les petites particules s'accumulent à la surface de la chambre intérieure.
- Manchons et canalisations de filtration. En les traversant, le flux d'air pollué perd une part importante des inclusions solides sur leurs parois.
- Filtres et colons.Ils peuvent être installés à la place des cyclones atmosphériques et sur les canalisations aux transitions vers la ventilation.
- Capteurs pour grosses particules et copeaux de métal. Ils sont installés directement à proximité du lieu de travail, par exemple à côté des machines.
- Presse et conteneurs de déchets.
Calcul du système
Pour que le fonctionnement du système d'aspiration soit efficace, il est nécessaire d'effectuer son calcul correct. Comme ce n'est pas une tâche facile, cela devrait être fait par des spécialistes possédant une vaste expérience.
Si les calculs sont effectués de manière incorrecte, le système ne fonctionnera pas normalement et beaucoup d'argent sera dépensé en retouches.
Par conséquent, afin de ne pas risquer de perdre du temps et de l'argent, il est préférable de confier cette question à des spécialistes pour qui la conception des systèmes d'aspiration et de transport pneumatique est le travail principal.
Lors du calcul, vous devez prendre en compte de nombreux facteurs. Considérons quelques-uns d'entre eux.
- Nous déterminons le débit d'air et la perte de charge à chaque point d'aspiration. Tout cela peut être trouvé dans la littérature de référence. Après avoir déterminé tous les coûts, un calcul est effectué - vous devez les additionner et les diviser par le volume de la pièce.
- Dans la littérature de référence, vous devez prendre des informations sur la vitesse de l'air dans le système d'aspiration pour différents matériaux.
- Le type de dépoussiéreur est déterminé. Cela peut être fait en connaissant les performances de débit d'un dispositif de dépoussiérage particulier. Pour calculer les performances, vous devez ajouter le débit d'air à tous les points d'aspiration et augmenter la valeur résultante de 5 %.
- Calculer les diamètres des conduits. Cela se fait à l'aide d'un tableau, en tenant compte de la vitesse de déplacement de l'air et de son débit. Le diamètre est déterminé individuellement pour chaque section.
Même cette petite liste de facteurs indique la complexité du calcul du système d'aspiration.Il existe également des indicateurs plus complexes, qui ne peuvent être calculés que par une personne ayant une formation supérieure spécialisée et une expérience professionnelle.
L'aspiration est simplement nécessaire dans la production moderne. Il vous permet de respecter les exigences environnementales et de maintenir la santé du personnel.

















































