- Détermination de la quantité de dangers émis dans la salle de production.
- La partie graphique
- Principaux avantages de conception
- DOCUMENT DE TRAVAIL
- Caractéristiques de la documentation du projet
- Calculs
- Types de documentation de projet
- Calcul du système de ventilation
- La procédure de réaménagement
- Étape 1 - rédaction d'une demande de transfert de plaque
- Étape 2 - obtenir une conclusion et son approbation
- Étape 3 - contacter l'inspection du logement
- Normes pour déterminer les paramètres d'échange d'air
- Documents et actes de la Fédération de Russie
- Normes de qualité de ventilation étrangères
- La nécessité d'un projet de ventilation
- Étapes de la conception de la ventilation
- Composition du projet de ventilation
- But de la ventilation
- Que devez-vous savoir sur la conception de la ventilation des bâtiments ?
- conclusion
Détermination de la quantité de dangers émis dans la salle de production.
Ce degré de nocivité est déterminé
à la fois des données expérimentales et
par des méthodes connues.
Selon le type de danger
diverses méthodes sont appliquées. Pour
Par exemple, considérons deux types de dangers.
Lorsque la chaleur est dégagée de l'extérieur
surfaces d'équipement
(1.1)
où Q est la quantité de chaleur,
libéré dans la salle, J / s;
– coefficient de transfert de chaleur, W/(m2K) ;
Ft- carré
surface de dégagement de chaleur de l'équipement,
m2 ;
tn- Extérieur
température de la paroi de l'équipement,С ;
tsur –
température de l'air ambiant, С.
Lorsque des substances nocives s'évaporent à l'air libre
surfaces
G=WFet,
kg/s (1,2)
où G est la masse de nocifs
substances rejetées dans la pièce, kg/s ;
W– taux d'évaporation
substances de la surface, kg/(sm2);
Fet –
zone d'évaporation, m2.
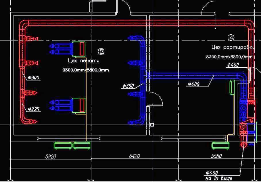
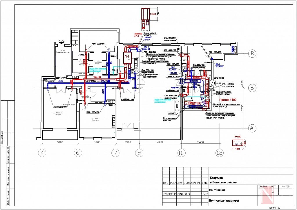
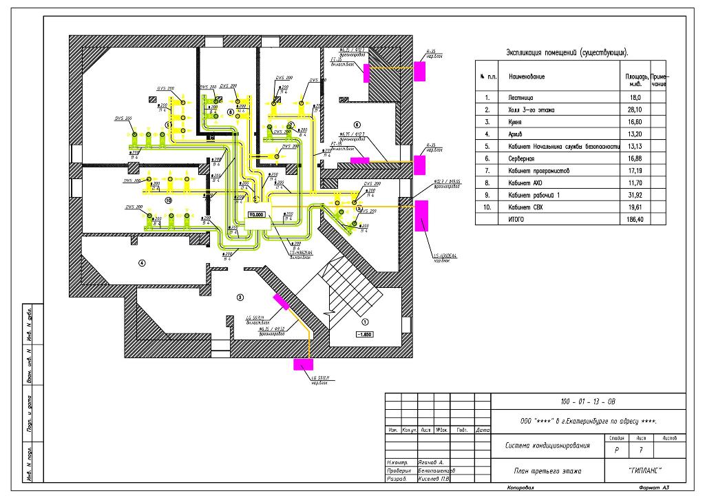
La partie graphique
La partie graphique se compose de plans d'étage, de coupes et de fragments de pièces avec des éléments qui leur sont appliqués : conduits d'air, ventilateurs, répartiteurs d'air, etc.
Sur une note!
L'utilisation d'un système de dispatching automatisé entraîne une réduction significative des coûts d'exploitation !
Le processus de création de la documentation de projet dans notre entreprise est réalisé par des ingénieurs hautement qualifiés utilisant des technologies logicielles avancées, ce qui nous permet d'automatiser les calculs et d'optimiser les solutions techniques pour obtenir une documentation de projet de haute qualité.
Toutes les solutions de conception sont réalisées conformément aux exigences des codes et règlements du bâtiment, GOST, sanitaires et hygiéniques, incendie et autres normes en vigueur sur le territoire de la Fédération de Russie.
Étapes du travail de conception :
- Préparation de l'avant-projet (élaboration des spécifications techniques du projet) ;
- Projet, étude de faisabilité (étude de faisabilité);
- Document de travail;
- Documentation exécutive (de travail) (développée après l'achèvement des travaux d'installation).
Principaux avantages de conception
La rédaction du projet se termine par la remise d'un document au client, qui présente le concept d'un système de ventilation pour un appartement, une maison privée, un bureau ou tout autre local.Le projet détermine l'emplacement exact des conduits d'air, des grilles de ventilation, ainsi que d'autres équipements.
À l'aide du plan, vous pouvez également connaître les caractéristiques des composants et équipements individuels du système de ventilation, coordonner le placement des éléments, en tenant compte de l'intérieur et de la conception de la pièce.
L'une des principales lacunes dans la conception de la ventilation lors de la reconstruction d'une structure est la préparation d'un plan sans le départ de spécialistes pour inspecter l'installation. En conséquence, la puissance du système résultant ne couvre pas le volume d'une pièce donnée et une charge accrue accélère la défaillance de l'équipement.
Le projet minimise les situations de conflit supplémentaires entre le client et l'entrepreneur, vous permet d'évaluer l'exactitude de la future installation. La présence du document permet d'évaluer l'exactitude des options proposées.
DOCUMENT DE TRAVAIL
L'ébauche de travail est la dernière étape, qui est destinée à l'élaboration de la version finale de la documentation pour l'assemblage du système de ventilation et pour les tests et la mise en service ultérieurs. L'ébauche de travail doit contenir les informations les plus détaillées nécessaires à la mise en œuvre de la tâche dans le cadre de l'ébauche de travail :
- note explicative
- Dessins de travail
La notice explicative contient les données suivantes : description de l'objet, liste et caractéristiques des équipements de ventilation, paramètres d'échange d'air, spécificités du système de ventilation.
Un ensemble de dessins d'exécution consiste en un plan de construction avec des conduits de ventilation et une indication des chambres de ventilation ; dessins en coupe des chambres de ventilation ; dessins détaillés des équipements non standard faisant partie de la future ventilation.
dessin de travail
Caractéristiques de la documentation du projet
La documentation du projet peut être divisée en trois parties :
- note explicative;
- ensemble de dessins;
- Informations Complémentaires.
La note explicative contient une brève description de la ventilation, les spécifications techniques pour la disposition des conduits de ventilation, la consommation électrique et thermique, la valeur de l'échange d'air dans le contexte des locaux.
L'ensemble de dessins comprend un schéma de distribution des équipements de ventilation avec des détails sur les nœuds et un schéma structurel, des dessins de nœuds, des plans d'implantation des itinéraires, des conduits d'air. Cette partie du projet comprend également les règles de maintien des communications et des informations supplémentaires pour l'installation d'un système de ventilation.
Un ensemble complet de documentation de projet est impossible sans informations supplémentaires - certificats, licences, tableaux d'intégration, schémas axonométriques et spécifications de l'équipement.
Calculs
Un calcul compétent de la ventilation d'alimentation et d'extraction implique la détermination de ses paramètres suivants:
- débit d'air total ;
- pression normale dans le système ;
- Puissance de chauffage;
- aire de la section transversale ;
- la taille des trous d'entrée et de sortie ;
- consommation d'énergie électrique (pour les systèmes mécaniques).
La productivité est calculée à partir de données sur la hauteur et la superficie des locaux, sur l'utilisation de chaque site et sur sa charge de travail. Lors du choix de la fréquence de passage de l'air dans la ventilation, il ne faut pas s'écarter des valeurs prescrites par SNiP. Si nécessaire, seules des corrections sont apportées aux caractéristiques de chauffage et au nombre de personnes présentes. Pour la plupart des appartements résidentiels, il est nécessaire d'assurer l'approvisionnement de 100 à 500 mètres cubes. m d'air en 60 minutes. Et si la superficie de l'appartement est grande (ou si vous avez besoin de ventiler une maison privée), ce chiffre sera déjà de 1 à 2 000 mètres cubes. M.
Pour un aperçu de la conception des systèmes de ventilation, voir la vidéo suivante.
Types de documentation de projet
La législation distingue plusieurs types de projets qui diffèrent par les approches et les objets par rapport auxquels ils sont développés. Nous distinguons les principaux types de documentation de projet :
- La conception individuelle est un travail réalisé avec des méthodes et des moyens en relation avec une structure spécifique.
- Création d'un projet de structure d'information économique. Cela implique la construction de nouveaux systèmes ou la restauration de systèmes existants. Nécessite un débogage dans les actions et la mise en œuvre d'une gamme complète de travaux.
- La conception typique est la décomposition du système en un certain nombre d'éléments, son affectation à différents types et la création d'un projet final pour chacun de leurs éléments. Le principe de division du système en parties peut être différent selon le type de conception utilisé.
Il met également l'accent sur le prototypage des systèmes d'information et la modélisation de domaine. Nous n'approfondirons pas ces types de conception, car ils sont peu utilisés et ne concernent pas la conception classique.
Calcul du système de ventilation
La conception du système de ventilation commence tout d'abord par le calcul des performances du système de ventilation. Pour cela, un échange d'air suffisant dans la pièce et sa multiplicité sont déterminés: c'est-à-dire combien de remplacements complets de l'air évacué dans la pièce sont nécessaires par unité de temps, 1 heure. Pour chaque pièce (pièce), en fonction de son objectif, sur la base des exigences de l'état stipulées, un indicateur individuel est calculé, puis les résultats sont résumés.
Les calculs commencent après la création d'un dessin de travail
Pour différentes pièces, les exigences relatives à la fréquence d'échange d'air sont différentes. Par exemple, pour les pièces à vivre où il n'y a pas de ventilation naturelle par personne, 60 m3/heure sont nécessaires. Dans les chambres, le chiffre est inférieur, car. une personne endormie a besoin de moins d'oxygène, 303/heure. Seul le nombre de personnes qui séjourneront en permanence dans la chambre est pris en compte. Ceux. vous ne devez pas augmenter le chiffre pour le salon ou la cuisine, car des invités viennent parfois à vous et vous les recevez dans cette pièce.
Ainsi, le calcul doit se faire selon deux indicateurs : le nombre de personnes et la multiplicité. Vous devez compter selon les deux formules, puis vous concentrer sur une valeur plus grande.
Pour calculer le renouvellement d'air requis dans une pièce (L) par quantité, multipliez le nombre de personnes (N) par la quantité d'air qu'elles consomment (LOrdinaire)
L=N*LOrdinaire
Pour déterminer le même indicateur par la multiplicité, le taux de renouvellement d'air requis (n) est multiplié par le volume de la pièce (V)
L=n*V
Selon la destination de la pièce, l'indicateur n est :
- pour la salle de bain - 7;
- pour la cuisine - de 5 à 10;
- pour un salon - jusqu'à 2;
- pour le bureau - jusqu'à 3.
En additionnant les résultats individuels de chaque pièce, nous obtenons les performances globales du système de ventilation.
Il est important de considérer l'étape de filtration lors du calcul de la vitesse de l'air
Plus la taille du conduit est petite, plus la vitesse d'écoulement à l'intérieur est élevée, cependant, cela augmente la résistance et le niveau de bruit pendant le fonctionnement du système. La vitesse optimale sera de 3-4 m3/heure. Les conduits plus grands fournissent plus d'air et sont plus silencieux, mais peuvent être plus difficiles à cacher.Vous pouvez économiser de l'espace à l'aide de canaux à section rectangulaire, car leur hauteur est égale à la moitié de la largeur, ils sont donc également appelés plats. Les conduits ronds sont plus faciles à installer, ont de meilleures performances aérodynamiques, mais ils prennent plus de place et il sera plus difficile de les masquer.
Pour calculer la section transversale, c'est-à-dire la taille des conduits. Pour le déterminer, vous devez connaître la vitesse de déplacement de l'air à l'intérieur du conduit d'air, ainsi que le volume d'air traversant le conduit d'air par unité de temps. Les calculs sont effectués selon des formules, cependant, si vous n'êtes pas fort dans les opérations mathématiques, utilisez la calculatrice en ligne pour calculer la ventilation. Il vous suffit de saisir vos données dans les champs appropriés, le calcul se fera automatiquement.
De la même manière, vous pouvez calculer le nombre requis de diffuseurs, de grilles de ventilation, de puissance de chauffage et même de coûts mensuels d'électricité.
De tels services aident à faciliter le processus de calcul, mais il sera toujours préférable que le projet de ventilation soit élaboré par un spécialiste expérimenté. Des erreurs dans les calculs entraîneront des violations du système de ventilation, la complexité de sa réparation et de son entretien. Une ventilation mal calculée peut tout simplement être inutile, et les calculs et l'installation devront être refaits.
La procédure de réaménagement
Tout réaménagement important doit commencer par une approbation. Tout. quant aux équipements à gaz, il s'agit de travaux présentant un danger accru. Par conséquent, les interférences et les écarts par rapport à la norme peuvent être considérés comme une violation grave et entraîner divers types de conséquences, pouvant aller jusqu'à une sanction administrative.Par conséquent, afin de transférer correctement la cuisinière à gaz à un autre endroit, il est nécessaire de respecter toutes les normes prescrites par la législation.
Il ne faut pas oublier que les équipements à gaz sont techniquement complexes et que tous les travaux liés à l'installation sont extrêmement dangereux. Seuls les spécialistes de la compagnie de gaz doivent effectuer de tels travaux.
Pour commencer le réaménagement, vous devez vous familiariser avec les normes applicables aux systèmes d'alimentation en gaz, qui sont prescrites par le SNiP 41-01-2003. Ce document, développé en Union soviétique, a subi un certain nombre de modifications à l'heure actuelle et réglemente la procédure de pose des conduites de gaz et de placement d'une cuisinière à gaz dans la cuisine.
L'éclairage naturel dans la cuisine est un must. Les dimensions minimales autorisées des ouvertures de portes et de fenêtres sont prescrites dans SanPiN 2.2.1 2.1.1.1278-03. Ils sont conçus en fonction des besoins du système visuel humain.
Ainsi, même pour transférer l'alimentation en gaz au poêle de l'appartement, il est nécessaire de se conformer à toutes les exigences et à l'appel obligatoire de spécialistes pour effectuer les travaux.
L'obtention d'un permis de réaménagement comporte plusieurs étapes. Considérons-les plus en détail.
Étape 1 - rédaction d'une demande de transfert de plaque
vous devez d'abord rédiger une demande de transfert et effectuer une enquête sur les locaux pour la possibilité de réaménagement.
Après inspection par un spécialiste et établissement d'un schéma de transfert de la plaque, il sera nécessaire de contacter le BTI. Là, une conclusion est émise sur l'état du bâtiment à l'heure actuelle, sur la base de laquelle une analyse est effectuée possibilités de réaménagement.
Il sera également nécessaire d'acheter un plan d'étage, qui sera utilisé dans la formation du projet.
Étape 2 - obtenir une conclusion et son approbation
Ensuite, vous devez obtenir un avis du département des réparations majeures de l'administration de la colonie. Cette conclusion est basée sur un document du BTI.
Ceci est suivi d'une coordination de la conclusion avec l'autorité de surveillance incendie. C'est une étape nécessaire qui ne doit pas être ignorée, car c'est cette instance qui peut non seulement amende, mais aussi interdire complètement le réaménagement. Pour approbation, en plus de la conclusion, un plan de réaménagement sera nécessaire.
Les documents suivants seront requis pour l'approbation :
- le passeport;
- un document confirmant la propriété de l'appartement;
- plan d'étage de la maison;
- plan de réaménagement prévu;
- un contrat de réalisation de travaux de réaménagement ;
- extrait du livre de la maison;
- consentement écrit au réaménagement de tous les locataires de l'appartement
- conclusion technique de RTC ;
- un extrait du compte personnel confirmant l'absence de dettes pour les services publics.
La préparation des documents et leur signature peuvent prendre de un à trois mois. Mais l'obtention d'une autorisation de réaménagement aide à l'avenir à ne pas rencontrer de problèmes indésirables.
Obtention du permis d'urbanisme et cuisinière à gaz mobile est un préalable. En l'absence d'autorisation et de réaménagement, la vente ultérieure de l'appartement avec réenregistrement ne sera pas possible
Étape 3 - contacter l'inspection du logement
La dernière étape est un appel à l'inspection du logement et au département d'architecture sous l'administration de la colonie. Ces autorités prennent la décision finale sur la possibilité de réaménagement.
Obtenir une autorisation est une opération assez compliquée. Cependant, le passage clair de ces étapes bureaucratiques à l'avenir vous évitera des problèmes inutiles.
Normes pour déterminer les paramètres d'échange d'air
Étant donné que le système de ventilation affecte la qualité de la vie humaine, ses paramètres admissibles sont prescrits dans les documents réglementaires. Le respect de ces exigences est obligatoire dans le cas d'une utilisation commerciale des locaux, ainsi que lors de l'acceptation d'immeubles à plusieurs appartements.
Lors de la conception de la ventilation à l'intérieur d'un appartement ou d'une maison privée par le propriétaire, elles peuvent être adoptées au niveau des recommandations.
Documents et actes de la Fédération de Russie
La législation russe établit diverses normes de ventilation et de climatisation, en fonction du type et de la destination des locaux. Ils sont inclus dans les codes de pratique (SP), les normes d'État (GOST) et les règles et normes sanitaires (SanPiN).
Selon les règles, les locaux résidentiels et domestiques sont ventilés pour atteindre les objectifs suivants:
- Maintien du régime d'oxygène. Une diminution de sa concentration aggrave le bien-être d'une personne. Ce problème est plus facile à résoudre avec l'aide de l'air de la rue.
- Élimination des gaz et aérosols indésirables. L'accumulation de dioxyde de carbone, de produits de combustion ou de poussière est dangereuse pour la santé.
- Régulation des paramètres du microclimat. Le maintien de l'humidité dans une plage donnée à l'aide de la ventilation est une méthode courante et efficace qui est souvent utilisée non seulement dans les zones résidentielles, mais également dans les entrepôts et les sous-sols à diverses fins.
Dans les normes russes, le calcul du débit d'air soufflé est déterminé par de nombreux paramètres, après quoi ils prennent le taux le plus élevé possible.En pratique, tous ne sont pas souvent utilisés, cette approche soulève donc de nombreuses questions chez les spécialistes.
Il existe 8 documents réglementant les taux de renouvellement d'air, les paramètres de microclimat admissibles, ainsi que les règles d'installation et de fonctionnement des systèmes de ventilation
Normes de qualité de ventilation étrangères
Lors de l'installation d'un système de ventilation pour un chalet ou votre propre appartement, il n'est pas nécessaire d'utiliser les documents réglementaires russes en vigueur. Alternativement, vous pouvez appliquer dans les calculs les dispositions des normes étrangères qui réglementent la qualité de l'air intérieur.

Fondée en 1894, la communauté d'ingénieurs ASHRAE possède une vaste expérience scientifique et pratique dans le domaine de la ventilation et de la climatisation.
L'ASHRAE a élaboré les documents suivants :
- ASHRAE 62.1 - exigences pour les systèmes de ventilation et de climatisation ;
- ASHRAE 55 - exigences pour le microclimat et le confort thermique de la pièce.
Les études de cette American Society of Engineers sont souvent utilisées pour calculer des normes de qualité internationales et nationales.
La norme 62.1 utilise des méthodologies basées sur les éléments suivants pour déterminer les débits de ventilation minimaux :
- taux de renouvellement d'air (VRP), où les positions des dispositifs d'alimentation et d'extraction sont régulées et la puissance des flux varie en fonction des indicateurs de microclimat;
- la qualité de l'air intérieur (IAQP), qui propose des moyens de réduire la concentration des aérosols indésirables en les filtrant ;
- dimensions et position des ouvertures pour la ventilation naturelle (NVP).
L'utilisation intégrée des trois approches peut réduire considérablement les coûts d'exploitation.
Il existe également des travaux du Comité Européen de Normalisation (CEN) dédiés à la ventilation des bâtiments :
- norme EN 13779 - exigences pour les systèmes de ventilation et de conditionnement d'air ;
- norme EN 15251 - exigences pour les paramètres de microclimat;
- loi CR 1752 - critères de calcul de la ventilation des bâtiments.
Les deux ensembles de normes concernent directement la santé et le confort des utilisateurs. Le volume d'air soufflé requis est déterminé par l'émission de dioxyde de carbone, car il n'y a pas d'autres sources importantes de pollution.

Pour les locaux techniques, comme une chaufferie à gaz, le calcul du volume d'échange d'air est effectué dans un souci de sécurité et non de qualité de vie
Vous pouvez commander le calcul des paramètres de ventilation d'un appartement ou d'une maison selon les normes américaines ou européennes. Ce sera raisonnable, compte tenu de la longue expérience étrangère et des exigences plus strictes en matière de qualité de vie.
La nécessité d'un projet de ventilation
La ventilation est l'un des systèmes de survie les plus importants, et le confort et la fraîcheur de l'air dans la maison dépendront de sa conception et de son installation appropriées. Ce sont les conduits de ventilation qui fournissent de l'air pur toute l'année sans ouvrir constamment les fenêtres, à travers lesquelles la poussière, les allergènes et les bruits étrangers pénètrent également dans la maison.
En fonction de l'objectif fonctionnel du bâtiment et d'autres facteurs, il existe des systèmes simples de ventilation, d'alimentation et d'évacuation avec refroidissement par apport, ainsi qu'une ventilation d'alimentation et d'extraction avec refroidissement par apport et la possibilité de contrôler la température dans les pièces.
L'élaboration d'un projet compétent garantira un fonctionnement durable et fiable des équipements de ventilation, ainsi qu'un confort et un séjour agréable dans le bâtiment pour les personnes.
Étapes de la conception de la ventilation
Selon la complexité de l'objet, le contenu et la portée du projet changeront, mais les points suivants resteront ses principaux éléments :
- Etude de faisabilité (projet technique). Il s'agit essentiellement d'une étape préliminaire au cours de laquelle des spécialistes de la conception se rendent dans l'installation pour enregistrer les données initiales nécessaires: le but et les fonctions du bâtiment ou des locaux, la superficie de l'installation, le nombre de personnes qui s'y trouvent.
Au même stade, la sélection de l'équipement nécessaire, son type et ses principales caractéristiques sont effectuées. Des décisions sont également prises pour optimiser le schéma d'interaction de la ventilation avec d'autres systèmes d'ingénierie.
- La deuxième étape sera la répartition rationnelle des ressources matérielles disponibles pour l'achat de matériels et d'équipements. Le marché moderne offre le plus grand choix d'appareils et d'équipements de divers fabricants avec des politiques de prix différentes.
Avant d'acheter du matériel, les calculs nécessaires sont effectués:
- Capacité d'air (m3/h), qui nécessitera un plan d'étage du bâtiment indiquant la destination et la superficie de chaque pièce ;
- La puissance d'un radiateur qui ne fonctionne que pendant la saison froide pour chauffer le bâtiment. Pour trouver cette valeur, vous avez besoin de la capacité requise par la température de l'air de sortie du système et la température ambiante minimale.
- La pression de travail, qui est déterminée en fonction des paramètres techniques du ventilateur, du diamètre et du type de conduits d'air, du nombre de coudes et de transitions d'un diamètre à l'autre, ainsi que du type de répartiteurs d'air. Autrement dit, plus la piste est longue et difficile, plus la pression doit être créée par le ventilateur.
- Débit d'air. La valeur de cette valeur dépendra du diamètre des canaux d'air.
- Le niveau de bruit, qui est directement lié à la vitesse de l'air : plus il est élevé, plus le niveau de bruit est fort.
Après avoir effectué tous les calculs, terminé les plans généraux des locaux et dessiné dessus les futurs conduits de ventilation, le budget du projet est calculé et les termes de référence pour la production de la documentation d'accompagnement sont établis.
Chaque élément du projet doit être approuvé par le client et les autorités compétentes. La documentation de conception est réalisée dans le strict respect des exigences réglementaires.
Composition du projet de ventilation
En fin de compte, la documentation de conception du système de ventilation devrait contenir les éléments suivants :
- Notice explicative comprenant :
- couverture et page de titre;
- brève description des solutions techniques pour les systèmes de ventilation ;
- termes de référence pour la pose des conduits de ventilation;
- caractéristiques du système de ventilation;
- consommation de chaleur et puissance des équipements ;
- valeurs d'échange d'air ambiant.
- Jeu de dessin contenant :
- schémas de distribution des équipements de ventilation dans les chambres de ventilation avec des détails séparés de tous les nœuds et son schéma fonctionnel ;
- disposition des terminaux, dessins de leurs unités principales;
- plans pour le placement des conduits d'air, des itinéraires et d'autres composants de ventilation ;
- dimensions et domaines de service des communications ;
- instructions d'installation du système.
- Données supplémentaires pour obtenir un ensemble complet de documentation de projet :
- tableau d'intégration ;
- licences, certificats pour la conception et l'installation du système de ventilation ;
- spécifications requises ;
- schémas axonométriques du système de ventilation.
Pour obtenir le résultat souhaité, c'est-à-dire un projet réussi et compétent, il est préférable de contacter une entreprise de conception, où des spécialistes appliquent une approche individuelle à chaque client et étudient en détail toutes les caractéristiques d'un objet particulier.
But de la ventilation

De tels systèmes remplissent plusieurs fonctions à la fois. Ils aident :
- Maintenir un haut niveau d'oxygène dans les locaux. Une quantité insuffisante affecte inévitablement le bien-être des personnes, de sorte que le problème du manque d'air frais est résolu en organisant des canaux d'approvisionnement.
- Éliminer l'air d'échappement et les produits de combustion. Le dioxyde de carbone, les produits de combustion et les accumulations de poussière sont également dangereux. Les premiers provoquent une baisse d'activité, des malaises, la poussière peut provoquer des allergies, de l'asthme.
- Garantir un microclimat optimal pour les résidents. L'une des tâches principales de la ventilation est de maintenir des valeurs d'humidité normales. Il est nécessaire non seulement pour les résidences, mais également pour les sous-sols, les installations de stockage.
Le microclimat idéal dans la maison ne sera fourni que par le système de ventilation le plus efficace, par conséquent, son installation peut être considérée comme l'étape la plus importante. Le processus d'assemblage peut être confié à des professionnels, mais maintenant de nombreux propriétaires préfèrent faire tout le travail par eux-mêmes.
Que devez-vous savoir sur la conception de la ventilation des bâtiments ?
Sans aucun doute, seul un ingénieur qualifié peut élaborer le meilleur projet de ventilation pour vous. De plus, la plupart des nouvelles maisons sont déjà équipées d'un système d'évacuation et d'alimentation en air prêt à l'emploi, vous n'avez donc rien à faire de plus ici. Cependant, lors de la construction de votre propre maison ou magasin, d'un hôtel ou de toute autre structure, vous souhaitez souvent économiser sur les services coûteux de professionnels. Le désir est tout à fait compréhensible et il existe des programmes informatiques spéciaux. Mais avant de commencer une conception indépendante, vous devez comprendre certaines des nuances du processus.
conclusion
Le système de chauffage permet de maintenir la bonne température dans le bâtiment et ses locaux. Le système comprend des pipelines, des sources de chaleur, des appareils de mesure, des équipements de chauffage et d'autres appareils. Lors de la conception de la construction, de la reconstruction ou des réparations majeures, le projet prévoit toujours la sous-section «Système de chauffage, de ventilation et de climatisation». Vous pouvez également commander directement la documentation de travail pour la réparation des réseaux d'ingénierie.
Vous pouvez commander des projets de conception aux conditions les plus avantageuses auprès de Smart Way. Contactez-nous, nous vous aiderons à établir la documentation du système de chauffage, même pour les objets les plus complexes.













































