- Conception d'un poêle à ventre: caractéristiques, principe de fonctionnement, conception des échangeurs de chaleur
- Galerie de photos : types courants d'échangeurs de chaleur
- Calcul des principaux paramètres d'un poêle à ventre avec un circuit d'eau
- Cheminée pour poêle ventru
- Matériel pour la fabrication de la cheminée
- Faire une cheminée en métal pour un poêle à ventre plat
- Installation de tuyaux
- Entretien des tuyaux
- brique chaude
- Quel est le meilleur choix
- Dessins et schémas
- Caractéristiques de montage
- Entretien de la cheminée
- Vote : quel est le meilleur poêle-poêle moderne ?
- CHIEN DE FER DE BRUNNER
- Fixation du tuyau
- Étanchéité des coutures
- Types de conduits de cheminée
- Fabrication et installation de la structure: comment faire une cheminée
- Installation progressive d'une cheminée 100, 110 mm à travers le mur: comment calculer le diamètre du tuyau
- Conclusion
Conception d'un poêle à ventre: caractéristiques, principe de fonctionnement, conception des échangeurs de chaleur
Un poêle à ventre avec un circuit d'eau fonctionne comme suit :
- Le bois de chauffage est chargé dans le four.
- Ils allument un feu, la chaleur est transférée directement au réservoir d'eau ou au serpentin de l'échangeur de chaleur.
- L'eau chaude pénètre dans le système de chauffage ou d'alimentation en eau.
- Les restes de chaleur et les gaz combustibles sont évacués de la pièce par la cheminée.
- Les cendres tombent à travers les grilles dans le cendrier.
Dans la conception de l'unité avec un circuit d'eau, deux principes de récupération d'énergie sont utilisés :
-
Collecte directe d'énergie thermique. Le circuit de l'échangeur de chaleur est situé à l'intérieur du poêle.Dès le contact d'une flamme nue et des tubes de la chaudière, le transfert de chaleur commence immédiatement. L'eau du radiateur bout et pénètre dans le système de chauffage. De là, il est envoyé aux conduites d'alimentation en eau. L'échangeur de chaleur subit de grandes différences de température (contraste entre la température de l'eau et la chaleur à l'intérieur du four).
-
Collecte du rayonnement secondaire du réchauffeur. Le circuit de la chaudière est situé à l'extérieur de l'appareil de chauffage. Étant à l'extérieur, il capte le rayonnement thermique secondaire d'une surface métallique chauffée. Le degré de chauffage de l'échangeur de chaleur est inférieur à celui du cas précédent, les différences de température ne sont pas si importantes. L'eau dans le circuit de l'appareil commence à chauffer après avoir chauffé le poêle.
Galerie de photos : types courants d'échangeurs de chaleur
Des sels minéraux se forment à l'intérieur de la chaudière. Par conséquent, au lieu d'eau, il est plus conseillé d'utiliser de l'antigel ou de l'antigel, qui contiennent des additifs qui empêchent la formation de dépôts minéraux.
Les conceptions les plus courantes d'échangeurs de chaleur :
- un réservoir d'eau intégré au poêle - une chaudière capacitive;
- chaudière à tubes - un réservoir sous la forme d'une chemise d'eau autour d'un poêle ou d'une cheminée - un échangeur de chaleur capacitif;
- chaudières principales - un serpentin d'un serpentin ou d'un conduit passant dans la zone de transfert de chaleur active.
Calcul des principaux paramètres d'un poêle à ventre avec un circuit d'eau
Pour calculer les dimensions d'un poêle avec un circuit d'eau, un dessin, un dessin ou un croquis d'un futur appareil est nécessaire. Cela permettra d'éviter les erreurs de fabrication.
Après avoir choisi un projet approprié, nous déterminons les paramètres: longueur, hauteur, largeur. Nous considérons les dimensions du compartiment du four, la longueur et le diamètre du tuyau, la hauteur au-dessus du sol.
Les poêles Potbelly se caractérisent par des températures élevées à l'intérieur de la chaudière, il convient donc d'utiliser du métal d'une épaisseur supérieure à 3 mm. Ou une fois tous les 2-3 ans pour effectuer les réparations programmées.

Dans la fabrication des poêles à ventre de pot, un métal allié à paroi épaisse est utilisé.
Cheminée pour poêle ventru
Matériel pour la fabrication de la cheminée
Avant de procéder à la fabrication du tuyau de cheminée, qui sera installé sur le poêle à ventre, il est nécessaire de déterminer le matériau qui sera utilisé.
Tenant compte du fait que le poêle ventru est un poêle portatif, on refuse d'emblée les cheminées en briques. Dans ce cas, nous avons peu d'options : soit des tuyaux en amiante-ciment, soit des tuyaux métalliques. La plupart des chauffagistes recommandent encore d'utiliser des cheminées métalliques : elles sont à la fois plus légères et plus faciles à fabriquer.
C'est d'eux que nous parlerons plus en détail.
La plupart des chauffagistes recommandent encore l'utilisation de cheminées métalliques : elles sont à la fois plus légères et plus faciles à fabriquer. C'est d'eux que nous parlerons plus en détail.

Poêle en fonte avec cheminée en acier
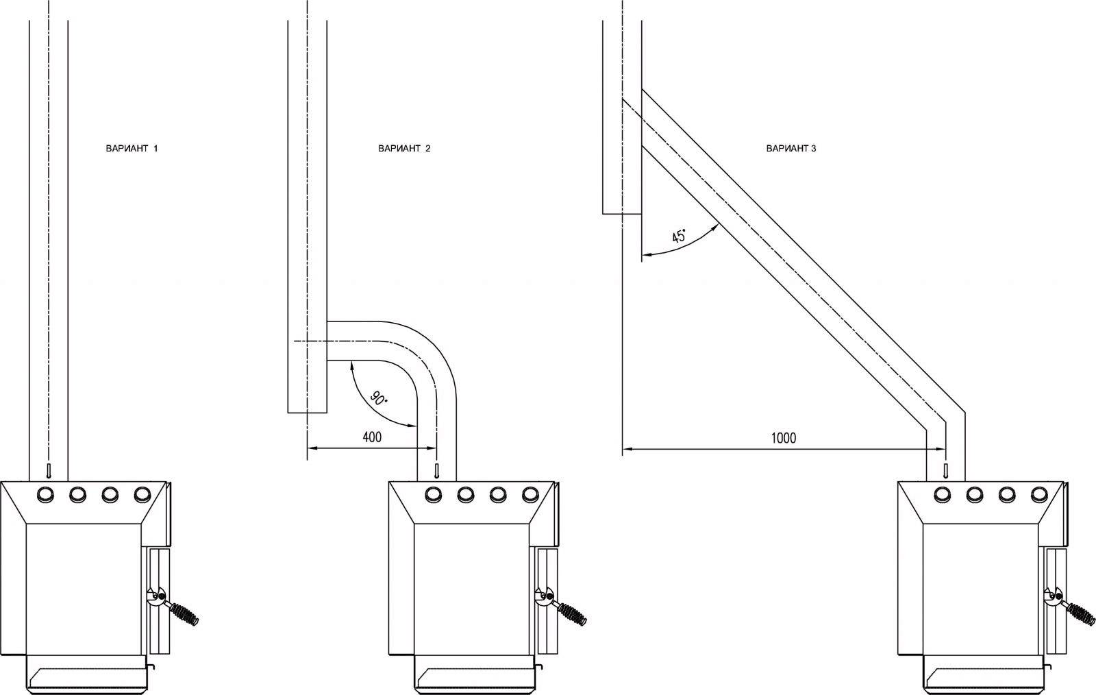
Faire une cheminée en métal pour un poêle à ventre plat
Nous avons donc décidé du matériau - nous allons fabriquer une cheminée à partir d'un tuyau en métal (acier inoxydable). Cependant, il ne suffit pas de coller le tuyau de cheminée dans le trou correspondant du poêle à ventre - la cheminée doit être correctement installée et placée de manière optimale.

Poêle Potbelly dans la rue
En règle générale, une simple cheminée pour un poêle à ventre installé à l'intérieur se compose de deux parties - interne et externe. Ces pièces se raccordent dans les combles ou au niveau des combles.
Une telle conception à «double coude» permet de remplacer relativement facilement le segment inférieur brûlé de la cheminée sans démonter l'ensemble du système.
Soit dit en passant, vous ne pouvez pas acheter de tuyaux en acier, mais les plier à partir d'une tôle d'acier, mais cela nécessitera certaines compétences de votre part. D'un autre côté, vous pouvez fabriquer un tuyau pour un poêle à ventre exactement du diamètre dont vous avez besoin.
Installation de tuyaux
Pour installer une cheminée de dimensions standard, nous avons besoin des matériaux suivants :
- Genou 100x1200mm (1 pc.)
- Genou 160x1200 mm (2 pièces)
- Coude bout à bout 160x100 mm (3 pièces)
- Té 160 mm avec bouchon
- Champignon 200 mm
Aussi, selon les caractéristiques de la pièce dans laquelle sera installé le poêle ventru avec notre cheminée, vous aurez peut-être besoin d'une vitre de passage, d'un pare-pluie, d'une isolation thermique, etc.
De plus, pour sceller les joints entre les tuyaux, nous aurons peut-être besoin d'un cordon d'amiante ou d'un scellant spécial.
Une fois que tous les matériaux sont prêts, nous procédons à l'assemblage du tuyau pour le poêle à ventre:
- Nous fixons la première section du tuyau sur la cheminée ou le tuyau de la fournaise.
- Nous construisons le coude du tuyau jusqu'au chevauchement.

Trou de cheminée
- Dans la dalle de sol, nous faisons un trou d'un diamètre d'au moins 160 mm pour la sortie de la cheminée. Nous enlevons l'isolation thermique le long des bords du trou pour empêcher son inflammation.
- Nous insérons un verre de passage dans le trou, puis nous y passons le tuyau du poêle à ventre.
- Nous joignons le tuyau avec une cheminée externe.
- Pour assurer un fonctionnement optimal de la cheminée, nous fournissons une isolation thermique de la partie extérieure de la cheminée, en l'enveloppant d'un isolant thermique et en l'enduisant de bitume.

Sortie de cheminée par la fenêtre
Nous renforçons le champignon au sommet de la cheminée, ce qui protège le tuyau des précipitations et des petits débris qui pénètrent à l'intérieur.
Entretien des tuyaux
Pour que la cheminée (et avec elle le poêle à ventre lui-même) fonctionne correctement, il faut en prendre soin :
- Au moins une fois par an, nous vérifions la surface extérieure du tuyau pour détecter les défauts - brûlures, rouille, fissures.
- De même, le tuyau doit être nettoyé annuellement. Pour ce faire, vous pouvez soit utiliser des composés chimiques spéciaux qui sont brûlés dans la chambre de combustion avec du bois de chauffage, soit simplement brûler quelques bûches de tremble dans un poêle à ventre. Aspen donne une température très élevée, qui brûle parfaitement la suie.
- Il est peu probable qu'il soit possible d'utiliser des agents de nettoyage mécaniques (ruff, poids, etc.), car la cheminée du poêle à ventre n'est pas très durable.
La fabrication et l'agencement du four lui-même et des tuyaux du poêle à ventre ne sont une tâche difficile qu'à première vue. Bien sûr, vous devrez transpirer et étudier attentivement les instructions proposées - néanmoins, il est tout à fait possible de le faire sans recourir à l'aide de spécialistes. Alors continuez comme ça !
brique chaude
Un poêle à ventre rond au bois, au charbon et à d'autres types de combustibles peut augmenter considérablement son efficacité. Pour ce faire, il suffit de construire un écran de briques d'argile cuite autour de ses propres mains. Si vous regardez attentivement les dessins d'un tel mini-bâtiment, vous pouvez voir que les briques sont posées à une courte distance des murs du poêle (environ 10-15 cm) et, si vous le souhaitez, autour de la cheminée.
Les briques ont besoin d'une fondation. Voulez-vous que la maçonnerie dure longtemps? Versez ensuite la base à la fois pour former un monolithe. Le matériau de la fondation est préférable de prendre du béton, qui doit être renforcé avec une armature en acier de vos propres mains. Il est souhaitable de réaliser une couche de renforcement à une distance d'environ 5 cm de la surface du socle en béton.
Des trous de ventilation sont pratiqués en bas et en haut de la maçonnerie, ce qui assurera la circulation de l'air (les masses chauffées monteront, l'air froid s'écoulera par le bas). La ventilation prolonge également la durée de vie des parois métalliques du poêle ventru, retardant le moment de leur épuisement dû au refroidissement par circulation d'air.
Les briques posées autour du poêle accumulent de la chaleur, puis la dégagent pendant longtemps, réchauffant l'air de la pièce même après l'extinction du poêle à ventre. De plus, la maçonnerie protège également les objets entourant le poêle du feu.
Si vous le souhaitez, le poêle peut être entièrement en brique. Une telle structure est avantageuse en ce sens qu'elle durera de nombreuses années sans effort supplémentaire de la part du propriétaire. Cependant, il y a aussi certains inconvénients. Les inconvénients de cette option incluent les suivants :
- le processus de pose d'un tel poêle est assez laborieux et ne convient qu'aux personnes ayant une expérience de la maçonnerie de leurs propres mains;
- un poêle à ventre en brique coûte assez cher, car il nécessite l'utilisation de matériaux réfractaires, notamment des briques en argile réfractaire et de l'argile spéciale pour le mortier.
Pour obtenir un petit poêle à ventre sur bois, il suffit de disposer un cône mesurant 2 par 2,5 briques, 9 briques de haut. Dans la chambre de combustion, 2 à 4 rangées sont disposées en briques réfractaires. La brique cuite en argile ordinaire convient à une cheminée, dans laquelle vous devez vous rappeler d'insérer un manchon en acier inoxydable.
Quelle que soit la méthode de fabrication d'un poêle miniature ou d'un poêle à ventre de vos propres mains, vous les fabriquez selon un dessin ou à l'œil nu, l'essentiel est qu'à la sortie vous obteniez un appareil de chauffage efficace, et dans une configuration étendue également une plaque de cuisson pour cuisiner.Cherchez des matériaux adaptés (fûts, tôles, etc.) et dirigez-vous vers votre propre poêle fait maison ou même vers une cheminée ventrale !
Comment fabriquer une fendeuse à bois de vos propres mains? Comment installer une cheminée sandwich de vos propres mains Il n'est pas difficile de construire une cheminée pour une chaudière de vos propres mains Poêle en métal à faire soi-même Comment fabriquer soi-même un fumoir à la maison ou à la campagne
Quel est le meilleur choix
Les facteurs:
- type de poêle à ventre;
- le volume du département du four;
- méthode de fixation à la structure;
- emplacement dans la chambre;
- la nécessité de transporter le poêle;
- matériel de cheminée;
- exigences de conception des tuyaux.
En fait, la cheminée est déjà sélectionnée pour un type de poêle spécifique, et non l'inverse. Sinon, le fonctionnement du système de chauffage sera incorrect. Cela est particulièrement vrai pour l'exigence de diamètre minimal de tuyau.
Si vous avez de l'expérience, vous pouvez fabriquer indépendamment le type de cheminée nécessaire. Mais il est nécessaire de respecter strictement toutes les règles de base pour le calcul et la conception. S'il n'y a pas d'expérience ou s'il ne suffit pas de respecter pleinement toutes les conditions de fabrication et d'installation, il est préférable de commander.
Il convient de noter que le travail d'installation déjà avec le matériel existant a également ses propres nuances et caractéristiques.
Le choix des matériaux dépend du poêle à ventre lui-même, ainsi que de leur disponibilité. Le choix du matériau est basé sur les caractéristiques structurelles requises et la nature du système de chauffage, c'est-à-dire s'il est fixe ou mobile.
La pierre ou la brique est utilisée pour une installation permanente. Un matériau moins cher sera un tuyau galvanisé, qui a des propriétés améliorées par rapport à l'étain ordinaire. C'est ce matériau qui doit être utilisé pour les options de conception pliables, ainsi que, si nécessaire, pour le remplacement pratique des segments.
Le matériau le moins cher est considéré comme l'étain ordinaire. Il y a une nuance sous la forme d'une exigence pour la taille du mur. Le tuyau doit avoir une épaisseur supérieure à 0,5 cm, sinon il ne peut pas être installé à l'intérieur conformément aux réglementations de sécurité incendie.
Dessins et schémas
Le dessin est un schéma préliminaire sous forme de dessin. Mais il doit indiquer les dimensions réelles requises, ce qui aidera à effectuer l'installation correcte en fonction de toutes les règles et instructions. Le dessin est réalisé sous n'importe quelle forme avant l'installation. Il est nécessaire d'installer une cheminée selon les règlements du mini projet de construction.
L'ensemble du système est construit sur la base d'une proportion de 1 à 2,7, car c'est une condition préalable à une traction à part entière.
Le volume est multiplié par 2,7 et nous obtenons le résultat en millimètres Exemple : le four a un volume de 50 litres. Multipliez 50 par 2,7 = 135 mm.Pour plus de commodité, vous pouvez ajouter jusqu'à 5 mm, c'est-à-dire qu'un diamètre de tuyau de 13,5 à 14 cm convient.
Caractéristiques de montage
Parmi l'installation, plusieurs fonctionnalités sont prises en compte lors du travail. Règles:
- l'installation commence par les sections inférieures ;
- le passage à travers les murs est traité avec des matériaux isolants jusqu'à ce que le tuyau y soit installé;
- les réglementations relatives à l'emplacement des joints par rapport aux murs et au plafond sont respectées ;
- un diamètre est utilisé pour les tuyaux de toute la cheminée.
La règle principale d'installation est le respect total de toutes les règles de construction et de sécurité.
En outre, un problème est le non-respect de toutes les réglementations relatives à la construction et à l'agencement du système de chauffage. Toutes ces erreurs de calcul affectent le résultat final.
Entretien de la cheminée
Tout d'abord, un bon entretien du tuyau d'évacuation des fumées du poêle à ventre garantit la sécurité des personnes et des biens dans la pièce.
Il donne également une propriété tout aussi importante - un bon transfert de chaleur de la cheminée et de la traction. Et pour que la cheminée serve fidèlement toute la période qui lui est impartie, au moins une fois tous les six mois, il est nécessaire d'effectuer une inspection visuelle du tuyau de cheminée. Le métal ne doit pas montrer de signes de brûlure, de corrosion, il ne doit pas brûler, se fissurer ou rouiller.
Le métal ne doit pas montrer de signes de brûlure, de corrosion, il ne doit pas brûler, se fissurer ou rouiller.
La présence de l'un de ces défauts indique la nécessité de remplacer d'urgence la zone endommagée: la fumée pénétrera dans la pièce par les fissures, ce qui, au moins, affectera négativement la santé des personnes qui s'y trouvent. De plus, en brûlant et en se fissurant à certains endroits, le métal de la cheminée peut se relâcher et tout le tuyau s'effondrera bientôt.
Les méthodes de nettoyage folkloriques seront utiles ici - vous pouvez utiliser la méthode de nettoyage de la cheminée avec des peaux de pommes de terre. Il est strictement interdit d'utiliser un moyen original mais dangereux d'élever la température à la limite afin que la suie brûle et s'envole: des températures élevées contribuent non seulement à l'usure rapide du métal mince, mais peuvent également facilement provoquer un incendie.
Poêle Potbelly - la meilleure option pour ceux qui ont besoin d'un poêle portable et pratique
Et le seul problème - la construction de la cheminée - n'est plus un problème ! Il s'avère que fabriquer une cheminée de haute qualité et efficace pour un poêle à ventre est assez facile, il est seulement important de suivre la technologie. Une cheminée prête à l'emploi ne nécessite pas d'attention accrue, seulement des soins réguliers mais rares, qu'elle récompensera par des années de bon travail !Pour que le poêle-poêle à ventre ait toujours un bon tirage et qu'il n'y ait pas de fumée dans la pièce, il est nécessaire de prendre des mesures préventives qui aideront à garder la cheminée en ordre
Pour que le poêle à ventre plat ait toujours un bon tirage et qu'il n'y ait pas de fumée dans la pièce, il est nécessaire de prendre des mesures préventives qui aideront à maintenir la cheminée en ordre.
Toute cheminée nécessite un entretien préventif périodique :
Pour que le tuyau soit exempt de dépôts de suie, il est nécessaire d'ajouter périodiquement des produits chimiques spécialement conçus pour détacher la suie du bois de chauffage brûlé. Aux mêmes fins, du bois de chauffage en tremble est également utilisé, ce qui aide à nettoyer les murs intérieurs. Pour nettoyer le tuyau avec leur aide, seul le bois de chauffage en tremble est utilisé pour les foyers préventifs. Il est souhaitable qu'ils ne brûlent pas rapidement, mais qu'ils couvent le plus longtemps possible dans le four. Pour créer de telles conditions, le tirage est artificiellement réduit en fermant le ventilateur après que le bois de chauffage se soit bien enflammé. Effectuez chaque année un nettoyage mécanique du tuyau contre les dépôts de carbone et la rouille. Pour ce faire, vous pouvez utiliser une brosse de nettoyage spéciale avec une charge.
Après chaque nettoyage, assurez-vous de réviser la surface en abaissant soigneusement l'ampoule dans la cheminée. Cela est nécessaire pour détecter à temps les brûlures ou les fissures.
Étant donné que toute cheminée doit être de la plus haute fiabilité et que tous les segments doivent correspondre parfaitement les uns aux autres lorsqu'ils sont joints pour les sceller, il est recommandé d'installer des pièces fabriquées exclusivement à un niveau professionnel.Il faut se rappeler que la pénétration de monoxyde de carbone dans la pièce à partir de joints mal scellés ou de trous brûlés est, sans exagération, un danger mortel.
Tags : poêle ventru, chalet, cheminée
Vote : quel est le meilleur poêle-poêle moderne ?
| Une photo | Nom | Évaluation | Prix | |
|---|---|---|---|---|
| Les meilleurs modèles d'usine de poêles de fabrication russe | ||||
| #1 | Poêle à ventre rond POV-57 | 99 / 1005 - voix | Apprendre encore plus | |
| #2 | Termofor Feu-batterie 5B | 98 / 100 | Apprendre encore plus | |
| #3 | META Gnome 2 | 97 / 100 | Apprendre encore plus | |
| #4 | Four Poêle Potbelly Teplostal | 96 / 1003 - voix | Apprendre encore plus | |
| Poêles à ventre populaires de marques mondiales | ||||
| #1 | Keddy | 99 / 100 | Apprendre encore plus | |
| #2 | Guca Lave | 98 / 100 | Apprendre encore plus | |
| #3 | Moulages du Vermont | 97 / 1001 - voix | Apprendre encore plus | |
| #4 | JOTUL | 96 / 1001 - voix | Apprendre encore plus | |
| #5 | CHIEN DE FER DE BRUNNER | 95 / 100 | Apprendre encore plus |
Que choisiriez-vous parmi les poêles bourgeois modernes ou conseilleriez-vous d'acheter ?
CHIEN DE FER DE BRUNNER
Enregistrez les résultats du vote pour ne pas les oublier !
Vous devez voter pour voir les résultats
Une fois le poêle à ventre plat installé et prêt à fonctionner, il est nécessaire d'installer une cheminée qui peut fonctionner correctement, conserver la chaleur dans la pièce et en même temps empêcher les déchets de combustion de pénétrer dans l'air de la pièce où le poêle est installé. Pour ce faire, vous devez calculer correctement le diamètre du tuyau, sa longueur et réfléchir à la façon dont il apportera de la fumée à l'air frais.
La sortie du tuyau au-dessus du toit doit être située selon certaines règles:
- La cheminée est située à une distance maximale de 1500 millimètres du faîte du toit, ce qui signifie que la sortie du tuyau doit être située à une hauteur de 50 centimètres au-dessus du sommet du faîte,
- Avec une distance à la visière de 150 à 300 centimètres, la sortie du pipeline peut être placée au même niveau que celle-ci,
- Si la cheminée est située près du bord du toit, sa sortie doit être légèrement inférieure à la crête ou au même niveau que celle-ci,
La deuxième option pour la sortie du tuyau est à travers le mur et non à travers le toit. Dans ce cas, l'extrémité de la cheminée doit être située juste en dessous du sommet du faîte du toit.
Les travaux d'installation à faire soi-même doivent commencer par le choix d'un endroit où les éléments extérieurs et intérieurs du four doivent être connectés. Un grenier ou un espace sous le toit est parfait à cet effet. Le premier élément de la future cheminée est installé sur le poêle à ventre lui-même, sur lequel les deuxième, troisième et ainsi de suite sont placés ensuite (en fonction du nombre de sections que la cheminée comprendra).
Il est nécessaire de prolonger le conduit de fumée jusqu'à ce qu'il atteigne l'endroit préalablement déterminé à la jonction des deux éléments.
Dans le plafond, vous devez faire un trou dont le diamètre sera supérieur de 5 à 10 cm au diamètre du tuyau: cela sera nécessaire pour recouvrir le tuyau au point où il traverse les sols avec de la chaleur -matériau isolant. S'il y a des matériaux isolants ou d'autres objets facilement inflammables dans les fissures entre les plafonds ou à proximité du tuyau, ils doivent être retirés : lorsque le tuyau se réchauffe à cause de la fumée et que sa température augmente, le risque d'incendie du matériau calorifuge augmenter avec elle.
Un verre de passage est inséré dans le trou découpé dans le plafond, à travers lequel le tuyau de cheminée doit être passé. Ensuite, vous devez ancrer le tuyau provenant de l'intérieur de la pièce avec l'extérieur de la cheminée. La cheminée doit se terminer au-dessus du niveau du toit, environ 10 cm au-dessus.L'endroit où sera découpé le trou pour la sortie du tuyau est équipé selon le même principe que la sortie du tuyau à l'intérieur du bâtiment :
- le trou doit être plus grand que le tuyau de cheminée lui-même;
- une couche de matériau calorifuge doit être placée entre les matériaux de toiture et le tuyau.
Fixation du tuyau
Le tuyau d'évacuation des fumées est passé à travers un trou dans le toit et fixé avec une feuille d'étain ou d'un autre métal. Comme alternative à l'étain, vous pouvez également utiliser un autre fixateur non combustible - des briques, qui sont installées dans l'espace entre la cheminée et le toit. Cependant, pour que les briques maintiennent fermement le tuyau, un support doit être construit pour elles de l'intérieur. Toutes les fissures à cet endroit sont recouvertes d'argile ordinaire.
Étanchéité des coutures
Une fois toute la structure assemblée, vous devez prendre le mastic et, sans l'épargner, lubrifier tous les joints et coutures pour empêcher la fumée de pénétrer dans le salon par la cheminée
Le mastic à ces fins doit être sélectionné avec une attention particulière - un seul qui n'a pas peur des températures élevées convient
Malheureusement, certains produits d'étanchéité "fondent" simplement sur un tuyau chaud, tandis que d'autres sèchent facilement. D'une manière ou d'une autre, mais le mastic, qui est instable aux températures élevées, perdra ses propriétés et ne pourra pas protéger la pièce de la fumée.
Types de conduits de cheminée
Divers matériaux sont utilisés pour la fabrication d'une canalisation d'évacuation des fumées.
Au départ, selon le matériau de fabrication, il y a 2 options :
- Prenez des tuyaux finis fabriqués en usine ;
- Fabriquez des tuyaux à partir de feuilles d'acier inoxydable ou d'autres tôles.
Le moyen le moins cher est de fabriquer vous-même des tuyaux
Ici, l'avantage incontestable est que le tuyau aura le diamètre souhaité, ce qui est particulièrement important pour les poêles faits maison.
Le deuxième avantage des pipes faites maison est le coût. Pour leur fabrication, vous pouvez utiliser du matériel improvisé ou acheter des tôles d'une épaisseur de 0,6 mm ou plus. Et mieux en 1 mm.
Une option élémentaire pour l'assemblage d'une cheminée pour un poêle à ventre implique l'utilisation de tuyaux en acier finis et d'un élément d'angle. Un canal de fumée est assemblé à partir d'eux et soudé à un poêle fait maison:
- Un tuyau de dérivation est soudé au sommet du poêle, construit à partir d'une bouteille de gaz usagée. Le diamètre intérieur du tuyau doit être égal au diamètre extérieur du tuyau qui y est installé
- Selon les dimensions de conception, un canal de fumée est assemblé. L'assemblage utilise un tuyau de 108 mm et un coude, les composants de l'exemple sont reliés par soudure
- Une cheminée assemblée est installée sur le poêle à ventre. À travers un trou dans le mur, connectez la partie extérieure du tuyau et soudez-la au principal
La partie extérieure du tuyau est assemblée à partir de liens séparés, en tenant compte de la hauteur standard. Le tuyau doit être à au moins 50 cm au-dessus du toit, situé à proximité de grands bâtiments ou d'arbres.
Étape 2 : Assemblage du conduit de fumée
Étape 3 : Sortir la cheminée du poêle ventru
Étape 4 : Construction de la partie extérieure du tuyau
Parmi les matériaux les plus courants, on retrouve les suivants :
En plus de ces options, le marché propose de nombreux autres produits. Ainsi, vous pouvez trouver des tuyaux en verre résistant à la chaleur, à partir desquels il est tout à fait possible de construire une cheminée exotique. Mais cela se fait extrêmement rarement - des compétences sont nécessaires pour installer et connecter des éléments structurels individuels les uns aux autres.
Très souvent, il arrive que le tuyau de cheminée chauffe à des températures incroyablement élevées.
Cela comporte un danger, car le risque d'incendie augmente plusieurs fois !
Afin de le minimiser, vous devez tout d'abord isoler tous les éléments combustibles à proximité.
Ensuite, l'isolant est posé autour du tuyau de cheminée.
Cela doit être fait sans faute, car sans une couche d'isolation thermique de haute qualité autour de la cheminée, vous risquez votre vie et votre santé tous les jours.
Alors, regardons les principales causes du problème:
- La cheminée est constituée d'un tuyau métallique à simple paroi sans isolant thermique, ce qui est totalement inacceptable. Il est obligatoire de remplacer les sections de cheminée monocouche par des tuyaux sandwich, ou simplement de les compléter par une couche calorifuge;
- Il peut y avoir des erreurs dans la conception du tube sandwich. Il convient de rappeler que cette conception est installée de manière à ce que le condensat formé à l'intérieur ne puisse pas atteindre la surface extérieure de la cheminée.
Les tuyaux pour le système de cheminée peuvent être fabriqués à la main ou achetés dans un magasin spécialisé. Le principal avantage des tuyaux fabriqués à la main est leur faible coût. De plus, il devient possible de fabriquer un tuyau du diamètre requis, ce qui est parfait pour tout poêle fait maison.
Pour la fabrication, vous avez besoin d'une tôle d'une épaisseur de 0,6 à 1 mm. Une feuille de métal est pliée dans un tube et fixée le long de la couture, à l'aide de rivets et d'un scellant résistant à la chaleur. Cependant, il est beaucoup plus facile d'acheter un produit fini. Des tuyaux de cheminée en divers matériaux sont sur le marché:
- devenir;
- briques;
- céramique;
- vermiculite;
- amiante-ciment.
Vous ne devez pas opter pour des tuyaux en amiante-ciment bon marché, car l'amiante-ciment n'est pas destiné à être utilisé à des températures supérieures à 300 ° C. Un tuyau fait de ce matériau est très lourd, ce qui causera des inconvénients lors de l'assemblage du système. De plus, le produit en amiante-ciment absorbe le condensat, ce qui peut nuire à la fonctionnalité de la cheminée.
La construction d'une cheminée en brique entraînera des coûts importants. Faire la bonne pose d'une cheminée pour un poêle à ventre de vos propres mains est très problématique, vous devrez donc contacter des spécialistes. La structure en brique a un poids considérable, ce qui nécessitera un renforcement supplémentaire de la fondation.
Pour l'appareil d'un poêle à ventre, les tuyaux métalliques en acier inoxydable ou en acier allié sont les mieux adaptés. Les produits métalliques présentent de nombreux avantages :
- poids léger;
- facilité de montage;
- longue durée de vie.
Fabrication et installation de la structure: comment faire une cheminée
Les poêles bourgeois sont de conception simple, donc pour de tels systèmes de chauffage, il ne vaut pas la peine d'équiper une cheminée en brique. Il s'agit d'une option coûteuse et non rentable pour ce type de four. Vous pouvez faire une cheminée pour un poêle à ventre avec des tuyaux en amiante-ciment de vos propres mains. Cependant, de tels conduits de fumée présentent un certain nombre d'inconvénients:
- Faible résistance aux hautes températures. La température maximale autorisée à l'intérieur du tuyau est de 280C.
- En raison de la surface rugueuse des parois intérieures du tuyau, il existe un problème d'accumulation de créosote dans les produits de combustion.
- Risque d'inflammation. En raison des résistances à basse température et de la suie accumulée, un feu de canalisation peut se produire.
- Sensibilité à la corrosion acide.À la suite de la combustion des produits combustibles, des oxydes sont libérés qui détruisent les parois internes de la structure.
- Mauvaise résistance à la condensation. Par la suite, il y a une odeur fétide d'humidité et de taches dans la zone du canal d'évacuation.
Cheminée pour poêle à ventre avec volet
Le poêle à ventre est de taille compacte, par conséquent, le meilleur matériau pour installer une cheminée est un tuyau en métal.
L'auto-installation d'une cheminée en métaux ferreux est réalisée dans le strict respect des règles et des mesures de sécurité. Pour souder les joints d'éléments individuels d'une cheminée en métal, vous avez besoin d'un outil tel qu'une machine à souder.
Installation progressive d'une cheminée 100, 110 mm à travers le mur: comment calculer le diamètre du tuyau
Pour installer la cheminée sur le poêle à ventre plat, nous effectuons les étapes suivantes :
- Tout d'abord, vous devez calculer le diamètre qui convient pour se connecter à la paroi arrière du four.
- Si le poêle à ventre est situé à l'extérieur, nous découpons un trou dans le mur du diamètre approprié et soudons la cheminée avec un coude ou la connectons à travers le tuyau.
- Pour l'installation dans les locaux, nous préparons au préalable une axonométrie de la future cheminée (projet ou dessin sur papier). Nous assemblons la structure, puis la connectons par le tuyau au poêle à ventre.
- Si le poêle est situé dans la cuisine, où il y a un système d'échappement, un tuyau ondulé spécial est utilisé, qui est relié par un té.
- L'étape la plus importante est le passage du plafond. Un verre de passage spécial est installé entre le plafond et le grenier, dont la taille doit être supérieure à la section transversale du plafond.Pour éliminer le risque d'incendie et les effets négatifs de la température, un cordon d'amiante est utilisé pour les fournaises, qui enveloppe le tuyau dans le plafond.
- Nous utilisons un scellant de four résistant à la chaleur pour pré-lubrifier chaque joint et contact mural.
- À la fin, vous pouvez installer un pare-étincelles sur le tuyau d'échappement. Cet appareil sécurisera les matériaux inflammables à proximité.
Conclusion
L'installation d'un tuyau d'échappement pour un poêle à ventre n'est pas un processus difficile et peut être réalisée de manière indépendante, sans l'intervention de spécialistes. L'essentiel est de suivre les règles de sécurité incendie, de ne pas laisser la cheminée entrer en contact avec des matériaux facilement inflammables et de surveiller l'étanchéité de la structure.
Avec une approche responsable de l'installation d'un poêle à ventre et de l'installation d'une cheminée, ainsi qu'un bon fonctionnement, il n'y aura aucun problème lors de l'utilisation du système de chauffage. Si l'installation de l'ensemble du système est incorrecte, alors comme une chaudière ou une cheminée, un poêle à ventre peut provoquer un incendie.













































