- Raccordement à l'eau
- Principaux types de puits
- Puits ordinaire
- Puits abyssin
- profondeur moyenne
- Artésien
- Démarrage de la station de pompage
- Raccordement à l'eau
- Systèmes et éléments automatiques qui assurent le contrôle et le fonctionnement fiable du système de la station de pompage
- Quel équipement est nécessaire pour organiser la structure
- Ordre de connexion : instructions étape par étape
- Sélection d'un emplacement d'installation
- Comment déterminer la profondeur d'aspiration
- Considérations de sécurité
- Commodité et conditions de fonctionnement
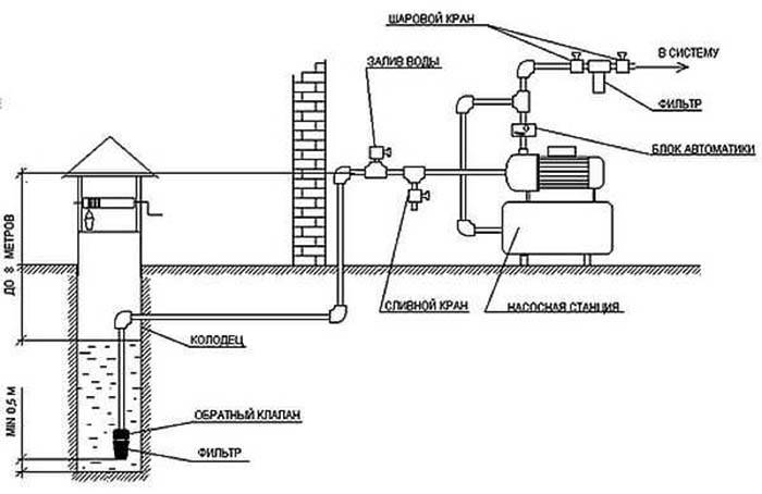
Raccordement à l'eau
Raccordement de la station de pompage à l'alimentation en eau. (Cliquez pour agrandir)
En règle générale, la station de pompage est connectée à l'alimentation en eau en cas de pression insuffisante pour l'équipement de chauffage.
Pour connecter le système à l'alimentation en eau, vous avez besoin de:
- Le tuyau d'eau doit être déconnecté à un certain point.
- L'extrémité du tuyau qui vient de la ligne centrale est reliée au réservoir de stockage.
- Le tuyau du réservoir est relié à l'entrée de la pompe et le tuyau qui est relié à sa sortie va au tuyau qui mène à la maison.
- Poser le câblage électrique.
- Réglage de l'équipement.
Principaux types de puits
À ce jour, il existe plusieurs structures massives et éprouvées qui assureront l'écoulement de l'eau des travaux dans le sol.La sélection du type de puits est une question responsable, qui devrait être basée sur les résultats des études hydrogéologiques. L'utilisation du type de puits est dictée, ainsi que les conditions du site, par les besoins en eau des propriétaires. Après tout, les schémas d'approvisionnement en eau d'une maison de campagne d'été avec jardin et potager et d'une maison à deux étages pour vivre toute l'année de deux familles seront très différents.
Puits ordinaire
Cet attribut de la vie à la campagne, familier à tout le monde au moins dans les films et les dessins animés, est le moyen le plus simple d'obtenir de l'eau. Sa profondeur dépasse rarement 4-5 mètres, deux ou trois cubes d'eau s'accumulent toujours au fond. Lors du raccordement d'une pompe submersible et d'un équipement de conduite d'eau à la maison, il est tout à fait possible d'utiliser un puits pour l'approvisionnement en eau. Certes, l'utilisation intensive d'une telle eau ne fonctionnera pas et sa qualité laisse beaucoup à désirer.
Puits abyssin
Ce nom cache un système de tuyaux à paroi épaisse avec un filtre à mailles ou perforé à l'extrémité. Les tuyaux sont martelés dans le sol par un dispositif spécial, familièrement appelé une "femme". L'extrémité d'admission avec le filtre atteint l'aquifère. Au sommet, une pompe manuelle ou électrique est disposée. Les performances de ce puits à aiguille sont légèrement supérieures à celles d'un puits standard, et son installation est moins chère, mais comme il n'y a pas de stockage dans le système, il faudra oublier le débit intensif.
Il est généralement admis que l'eau du puits abyssin est technique et ne convient qu'à l'irrigation. Cependant, avec une situation hydrogéologique favorable, il pourrait bien être propre. Bien sûr, vous ne devez pas le boire sans filtration ni ébullition, mais vous devez le laver et le laver, car il est assez doux.
profondeur moyenne
Son deuxième nom est un puits dans le sable.Pour cela, le forage est déjà utilisé pour la couche sableuse de l'aquifère. En règle générale, la profondeur de cette formation est de 15 à 30 mètres. Pour renforcer la structure, des tuyaux de tubage sont utilisés - en acier, et maintenant des tuyaux en polymère moins chers et non corrosifs. Les puits dans le sable fournissent une eau assez propre, mais il est également préférable de la faire passer à travers un filtre et un désinfectant. Un puits de profondeur moyenne a sa propre durée de vie. Sa défaillance n'est même pas liée à la résistance de la structure, mais au fait que le filtre de la prise d'eau est envasé. Avec le temps, il devient impossible de le nettoyer, et il faut forer un nouveau puits. La durée de vie normale moyenne est d'environ dix ans. Avec une utilisation active, il est réduit.
Artésien
Le plus profond des puits domestiques et sert beaucoup plus longtemps que tous les autres - environ 80 ans, voire plus. Mais il a un inconvénient tangible - une grande complexité et une grande quantité de travail rendent le prix très élevé. Tout dépend de la profondeur à laquelle le forage est effectué. Un puits artésien atteint une profondeur de plus de 100 m et traverse plusieurs couches molles et dures - limon, argile, sable aquifère, jusqu'à ce qu'il atteigne du calcaire ou même des roches plus dures avec des aquifères.
Un puits profond dans une pierre n'a pas besoin de tubage d'extrémité ni de filtres - après tout, l'eau provient directement des roches, où le sable ne se trouve plus. De plus, à une telle profondeur, l'eau est sous pression et pénètre dans le système par gravité - une pompe est déjà nécessaire pour alimenter la pièce en eau. D'autre part, un tel prélèvement d'eau nécessite déjà un enregistrement par l'État. Eh bien, la complexité des travaux effectués détermine leur coût élevé.
Démarrage de la station de pompage
Afin de mettre la station de pompage en service, il est nécessaire de la remplir complètement ainsi que la canalisation d'alimentation en eau. A cet effet, il y a un trou de remplissage spécial dans le corps. Versez de l'eau dedans jusqu'à ce qu'il apparaisse. Nous tournons la fiche en place, ouvrons le robinet à la sortie des consommateurs et démarrons la station. Au début, l'eau va avec l'air - des bouchons d'air sortent, qui se sont formés lors du remplissage de la station de pompage. Lorsque l'eau coule dans un flux régulier sans air, votre système est entré en mode de fonctionnement, vous pouvez le faire fonctionner.
Si vous avez rempli d'eau et que la station ne démarre toujours pas - l'eau ne pompe pas ou arrive par à-coups - vous devez le comprendre. Il y a plusieurs raisons possibles :
- il n'y a pas de clapet anti-retour sur la canalisation d'aspiration descendue dans la source, ou elle ne fonctionne pas ;
- quelque part sur le tuyau, il y a une connexion qui fuit à travers laquelle l'air fuit;
- la résistance du pipeline est trop élevée - vous avez besoin d'un tuyau de plus grand diamètre ou avec des parois plus lisses (dans le cas d'un tuyau métallique);
- le miroir d'eau est trop bas, pas assez de puissance.
Pour éviter d'endommager l'équipement lui-même, vous pouvez le démarrer en abaissant le court tuyau d'alimentation dans une sorte de conteneur (réservoir d'eau). Si tout fonctionne, vérifiez la ligne, la profondeur d'aspiration et le clapet anti-retour.
Raccordement à l'eau
Raccordement de la station de pompage à l'alimentation en eau. (Cliquez pour agrandir)
En règle générale, la station de pompage est connectée à l'alimentation en eau en cas de pression insuffisante pour l'équipement de chauffage.
Pour connecter le système à l'alimentation en eau, vous avez besoin de:
- Le tuyau d'eau doit être déconnecté à un certain point.
- L'extrémité du tuyau qui vient de la ligne centrale est reliée au réservoir de stockage.
- Le tuyau du réservoir est relié à l'entrée de la pompe et le tuyau qui est relié à sa sortie va au tuyau qui mène à la maison.
- Poser le câblage électrique.
- Réglage de l'équipement.
Systèmes et éléments automatiques qui assurent le contrôle et le fonctionnement fiable du système de la station de pompage
Il est nécessaire de parler plus en détail des systèmes modernes dans le cadre des stations de pompage qui assureront un approvisionnement en eau ininterrompu de votre maison, ainsi que garantiront le fonctionnement à long terme de la pompe.
Ainsi, lors de la mise en place d'une station de pompage de tout type, il est nécessaire de mettre en place les automatismes suivants : - Protection contre la marche à sec de la pompe (« Protection contre la marche à sec » pour une pompe de puits par pressostat et capteurs de niveau.
Circuit électrique de protection de la pompe contre le "marche à sec" );
- L'utilisation d'un pressostat ou d'un manomètre à électrocontact (signalisation) pour maintenir la pression dans le système d'alimentation en eau ("Pressostat d'eau (installation, caractéristiques, conception, configuration)" et l'article "Manomètre à électrocontact (signalisation) (principe de fonctionnement, application, conception, marquage et types) pour les systèmes d'approvisionnement en eau ».
De plus, si vous assemblez une station de pompage, qui est dite de A à Z, alors des informations sur le choix d'un récepteur "Récepteur hydraulique (accumulateur hydraulique) pour une station de pompage d'eau domestique (sélection, conception)", ainsi que des informations sur installation de tuyaux «Installation de tuyaux métal-plastique (métal-polymère) avec raccords filetés», «Soudage à faire soi-même de tuyaux en plastique (polypropylène)».
Maintenant, ayant déjà une certaine quantité d'informations et, par conséquent, des connaissances, nous espérons que la sélection des composants, ainsi que l'assemblage et la connexion de votre station de pompage se feront plus délibérément, plus rapidement, et aussi avec un minimum d'écarts et d'erreurs .
Le problème de l'approvisionnement en eau est au premier plan pour créer un cadre de vie confortable dans le pays. Cela permet le plus souvent de résoudre le problème de raccordement de la station de pompage à l'eau. Les communications pour fournir une maison ne sont pas seulement une installation de plomberie banale avec Gander liquide, après tout, un système complet d'approvisionnement en eau à domicile.
Le besoin d'un approvisionnement en eau indépendant, les besoins fondamentaux des habitants des zones rurales, conduit à l'utilisation constante d'eau pour la cuisine, l'usage sanitaire et domestique, ainsi que des réfrigérants dans le système de chauffage.
Les pompes domestiques ne sont pas toujours confrontées à une telle variété de fonctions de travail.
De plus, l'installation d'une station de pompage chez un particulier permet l'évacuation et l'alimentation en eau pour augmenter la pression du système si la pompe existante n'est pas assez puissante pour acheminer les liquides au bon endroit en surface, dans le jardin, dans le jardin ou à la maison . Elle propose différents modèles sur le marché, mais seulement quelques composants pour une répartition suffisante du modèle de base, ce qui se reflète dans chaque système d'installation de pompe :
- réservoir de stockage;
- pompe;
- relais de contrôle;
- clapet anti-retour qui ne permet pas les fuites ;
- filtre.
Un filtre est nécessaire, sinon le grain des grains entraînera une usure abrasive rapide des pièces de la machine.
Emplacement de l'équipement
L'installation et l'exploitation de la station de pompage garantissent un fonctionnement fiable à long terme de l'équipement, sous réserve des conditions suivantes :
- lors de l'installation de la station dans un bunker, elle est placée sous le niveau de gel du sol en hiver, qui est d'au moins deux mètres;
- Le lieu d'installation de la station (sous-sol ou cassone) doit être chauffé en hiver ;
- Lors de l'assemblage manuel du plan de raccordement, il est nécessaire de préparer un support, qui est ensuite installé sur la station afin d'éviter les inondations des eaux souterraines.
C'est important!
Ne touchez pas l'équipement avec des murs afin que les vibrations mécaniques du mécanisme de fonctionnement n'affectent pas la pièce.
Quel équipement est nécessaire pour organiser la structure
Pour équiper un puits artésien de vos propres mains, vous aurez besoin de:
- équipement de levage d'eau;
- casquette;
- réservoir hydraulique ;
- équipement supplémentaire pour le contrôle de la pression, du niveau et du débit d'eau;
- hors gel : fosse, caisson ou adaptateur.
Lors de l'achat d'une pompe submersible, il est important de calculer correctement la puissance requise. Le modèle est sélectionné en fonction des performances et du diamètre. Vous ne pouvez pas économiser sur cet équipement, car
la performance de l'ensemble du système d'alimentation en eau du site en dépend
Vous ne pouvez pas économiser sur cet équipement, car. la performance de l'ensemble du système d'alimentation en eau du site en dépend.
La meilleure option est un modèle dans un boîtier hermétique à haute résistance, équipé de capteurs, d'unités de filtrage et d'automatisation. En ce qui concerne les marques, les équipements de relevage d'eau Grundfos méritent une attention particulière.
En règle générale, une pompe submersible est installée à une hauteur d'environ 1 à 1,5 m du bas de la structure hydraulique, cependant, dans un puits artésien, elle peut être située beaucoup plus haut, car. les eaux sous pression s'élèvent au-dessus de l'horizon.
La profondeur d'immersion d'une source artésienne doit être calculée sur la base des indicateurs de niveaux d'eau statiques et dynamiques.
Pour garder l'eau artésienne limpide, le tuyau de production doit être protégé des débris, des eaux de surface et d'autres facteurs environnementaux défavorables. Cet élément structurel est utilisé pour fixer solidement le câble de la pompe submersible.
La tête se compose d'un couvercle, de pinces, d'un mousqueton, d'une bride et d'un joint. Les modèles de production industrielle n'ont pas besoin d'être soudés au tubage, ils sont fixés avec des boulons qui pressent le couvercle contre le joint, assurant ainsi une étanchéité complète de la tête de puits. Les caractéristiques de montage des têtes maison dépendent de la conception des appareils.
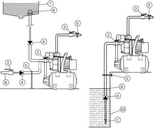
L'accumulateur hydraulique est une unité importante d'un système d'approvisionnement en eau autonome. Il est nécessaire d'assurer le fonctionnement normal de l'alimentation en eau, de protéger la pompe des marches-arrêts constants et d'éviter les coups de bélier. La batterie est un réservoir d'eau, équipé en outre de capteurs de pression et d'automatisation.
Lorsque la pompe est allumée, l'eau pénètre d'abord dans le réservoir et est acheminée vers les points de puisage. Les niveaux d'eau auxquels la pompe s'allume et s'éteint peuvent être ajustés à l'aide de capteurs de pression. En vente, il existe des réservoirs hydrauliques d'une capacité de 10 à 1000 litres. Chaque propriétaire de puits peut choisir le modèle qui convient le mieux à son système.
Le puits doit être protégé du gel. À ces fins, vous pouvez faire une fosse, installer un caisson, un adaptateur. L'option traditionnelle est une fosse. C'est une petite fosse dont les murs sont renforcés de béton ou de briques.D'en haut, la structure est fermée par un couvercle lourd avec une trappe. Il n'est pas souhaitable d'installer un équipement dans la fosse, car même avec une bonne étanchéité, les murs laissent encore passer l'humidité, la conception n'est pas étanche.
Un analogue plus moderne et technologique de la fosse est le caisson. Cette conception est mieux achetée dans un magasin spécialisé. Les caissons de production industrielle sont pré-conçus pour accueillir tous les équipements nécessaires. Les modèles en plastique sont bien isolés et hermétiques. Les caissons métalliques nécessitent souvent une isolation supplémentaire.
Pour un puits artésien monotube, un agencement utilisant un adaptateur sans fosse convient. Dans ce cas, la fonction de structure de protection est assurée par le tubage lui-même. L'adaptateur ne peut être installé que si la colonne est en métal. Le fonctionnement d'un tuyau en plastique pose de sérieuses difficultés et la durée de vie de la structure peut être de courte durée.
Ordre de connexion : instructions étape par étape
Tout le monde ne sait pas comment connecter correctement une station de pompage. Lors de l'installation d'équipements de bloc, l'assemblage implique la combinaison de conduites de pression et d'aspiration. Un filtre avec vannes est connecté au tuyau immergé dans le puits, il est sorti à travers un adaptateur ou une tête.
La conduite d'aspiration est soigneusement scellée. Sinon, de l'air pénétrera dans le système d'alimentation en eau, ce qui désactivera la pompe. La partie pression est fournie avec une vanne.
12 étapes pour raccorder une station de pompage :
Il convient de considérer la manière dont la station de pompage est connectée au puits lors du choix d'un équipement modulaire. Le raccordement d'un puits à une station de pompage comprend les étapes suivantes :
- Harnais d'accumulateur hydraulique. Tout d'abord, un raccord avec 5 buses est monté.Il est connecté directement. Après cela, ils mettent en place et installent un relais de protection, un manomètre et une arrivée d'eau. La sortie restante est utilisée pour connecter le tuyau de pression. Les pompes submersibles sont installées dans des puits d'une profondeur supérieure à 10 m. On évite ainsi les problèmes engendrés par la nécessité d'installer un éjecteur et une pièce d'aspiration.
- Sortie de canalisation. Produit par le chef de la source. Des tuyaux sous pression sont posés dans une tranchée menant à la maison. Les éléments doivent être situés sous la profondeur de congélation du sol.
- Raccordement au réseau électrique. Pendant le processus d'installation, le bloc de départ de la station est installé, la sortie y est connectée avec des fils de cuivre. La pompe doit être alimentée par un interrupteur automatique séparé.
Une fois le processus d'assemblage terminé, l'étanchéité des joints est évaluée. Pour la première fois, l'accumulateur se remplit lentement afin de ne pas violer l'intégrité de la membrane.
Sélection d'un emplacement d'installation
Les stations de pompage sont installées près d'une source d'eau - un puits ou un puits - dans une fosse spécialement équipée - un caisson. La deuxième option est dans la buanderie de la maison. Le troisième est sur une étagère dans le puits (un tel nombre ne fonctionnera pas avec un puits) et le quatrième est dans le sous-sol.
Installation d'une station de pompage dans le sous-champ - le bruit de son fonctionnement peut être trop fort
Comment déterminer la profondeur d'aspiration
Lors du choix d'un emplacement, ils sont principalement guidés par des caractéristiques techniques - la profondeur d'aspiration maximale de la pompe (d'où la pompe peut soulever de l'eau). Le fait est que la profondeur de levage maximale des stations de pompage est de 8 à 9 mètres.
Profondeur d'aspiration - la distance entre la surface de l'eau et la pompe.La canalisation d'alimentation peut être abaissée à n'importe quelle profondeur, elle pompera l'eau du niveau du miroir d'eau.
Les puits ont souvent une profondeur supérieure à 8-9 mètres. Dans ce cas, vous devrez utiliser un autre équipement - une pompe submersible ou une station de pompage avec éjecteur. Dans ce cas, l'eau peut être fournie à partir de 20 à 30 mètres, ce qui est généralement suffisant. L'inconvénient de cette solution est un équipement coûteux.
Profondeur d'aspiration - une caractéristique qui détermine la méthode d'installation
Si vous n'êtes qu'à un mètre de pouvoir installer un équipement classique, vous pouvez placer la station dans un puits ou au-dessus d'un puits. Une étagère est fixée au mur dans le puits, dans le cas d'un puits, une fosse est approfondie.
Lors du calcul, n'oubliez pas que le niveau du miroir d'eau "flotte" - en été, il baisse généralement. Si votre profondeur d'aspiration est sur le point, il se peut qu'il n'y ait tout simplement pas d'eau pendant cette période. Plus tard, lorsque le niveau montera, l'approvisionnement en eau reprendra.
Considérations de sécurité
Un autre point à considérer est la sécurité de l'équipement. Si l'installation d'une station de pompage est censée être à proximité d'une maison avec résidence permanente, les problèmes sont moins nombreux - vous pouvez choisir n'importe quelle option, même dans un petit hangar. Une seule condition - il ne doit pas geler en hiver.
L'installation d'une station de pompage dans une grange convient à la résidence permanente et à l'état d'isolation / chauffage pour l'hiver
S'il s'agit d'une datcha où ils ne vivent pas en permanence, la question est plus compliquée - il est nécessaire d'aménager une pièce qui ne soit pas frappante. La façon la plus sûre d'installer une station de pompage est dans la maison. Bien qu'ils puissent l'emporter dans ce cas.
Le deuxième endroit où vous pouvez installer une station de pompage est un caisson enterré camouflé.
Schéma d'installation d'une station de pompage dans un puits
Le troisième est sur une étagère dans le puits. Seulement dans ce cas, la maison traditionnelle pour le puits ne vaut pas la peine d'être faite. Vous avez besoin d'un couvercle en acier, qui est verrouillé avec un verrou fiable (soudez des boucles à l'anneau, faites des fentes dans le couvercle, sur lesquelles accrocher la constipation). Cependant, une bonne couverture peut également être cachée sous la maison. Seul le design doit être pensé pour qu'il n'interfère pas.
Commodité et conditions de fonctionnement
L'installation d'une station de pompage dans la maison est bonne pour tout le monde, sauf que l'équipement fait du bruit pendant le fonctionnement. S'il y a une pièce séparée avec une bonne isolation phonique et que c'est possible selon les caractéristiques techniques, il n'y a pas de problème. Souvent, ils font une pièce similaire au sous-sol ou au sous-sol. S'il n'y a pas de sous-sol, vous pouvez faire une boîte dans le sous-sol. L'accès se fait par une trappe. Cette boîte, en plus de l'isolation acoustique, doit également avoir une bonne isolation thermique - la plage de température de fonctionnement commence à partir de + 5 ° C.
Pour réduire le niveau sonore, la station peut être placée sur du caoutchouc épais pour amortir les vibrations (créées par un ventilateur de refroidissement). Dans ce cas, même l'installation dans la maison est possible, mais le son le sera certainement toujours.
Caisson à partir d'anneaux en béton
Si vous vous êtes arrêté à l'installation d'une station de pompage dans un caisson, celle-ci doit également être isolée et également étanche. Habituellement, des conteneurs en béton armé prêts à l'emploi sont utilisés à ces fins, mais un caisson peut être constitué d'anneaux en béton (comme un puits). Installez l'anneau avec le bas vers le bas, l'anneau avec le couvercle vers le haut. Une autre option consiste à le poser en brique, à couler du béton sur le sol. Mais cette méthode convient aux zones sèches - le niveau de la nappe phréatique doit être inférieur d'un mètre sous la profondeur du caisson.
La profondeur du caisson est telle que l'équipement est installé en dessous du niveau de congélation. Isolation en polystyrène expansé. Mieux extrudé.Ensuite, vous obtenez également l'imperméabilisation en même temps.
Pour un caisson d'anneaux en béton, il est pratique d'utiliser une coque (si vous trouvez un diamètre approprié). Mais vous pouvez également plaquer de la mousse de polystyrène, la découper en bandes et la coller. Pour les fosses et les structures rectangulaires, les dalles appropriées peuvent être collées aux murs à l'aide de mastic bitumineux. Lubrifiez le mur, appliquez l'isolant, vous pouvez également le fixer avec une paire de clous / chevilles.



































