- Normes de la pièce pour l'installation d'une chaudière à gaz, où il est préférable d'installer l'appareil
- Normes d'installation de l'appareil dans la cuisine des maisons en bois et autres types
- Exigences pour une chaufferie séparée
- Cheminées et ventilation
- Exigences techniques pour l'équipement
- Nuances et exigences pour les locaux attenants à la chaudière
- Types d'appareils
- Conformité des dimensions du bâtiment gazéifié aux normes
- Exigences d'installation de l'unité
- Distance entre la chaufferie et un bâtiment résidentiel et des bâtiments publics
- Installation : préconisations et schémas, les grandes étapes de l'installation de la cheminée
- Exigences générales
- Étapes d'installation
- Description de vidéo
- Raccordement d'une cheminée en céramique
- Description de vidéo
- Exigences pour la pièce où se trouve la chaudière à gaz
- Normes ambiantes pour un appareil à chambre de combustion ouverte
- Normes d'ambiance pour une chaudière à foyer fermé
- Exigences pour les différentes pièces
- Que faut-il guider
- chaudières à gaz
- Chaudières électriques
- Chaudières à combustible solide
- Chaudières au fioul
- Normes de base
- Réglementation et documentation du projet
Normes de la pièce pour l'installation d'une chaudière à gaz, où il est préférable d'installer l'appareil

Les exigences les plus strictes sont imposées aux locaux où l'installation d'une unité à gaz est prévue.
Selon la réglementation en vigueur, il est permis de procéder à leur installation dans des locaux non résidentiels, équipés d'une ventilation de haute qualité.
Outre la présence d'une ventilation, la superficie de la pièce doit correspondre à la puissance de l'appareil et à la conception de la chambre de combustion. Lorsque la chaudière et la colonne de gaz sont installées ensemble, leurs capacités sont additionnées.
Important! Selon les normes en vigueur, il est permis d'installer deux appareils à gaz dans une même pièce. Les normes suivantes ont été établies : Les normes suivantes ont été établies :
Les normes suivantes ont été établies :
- les chaudières à gaz d'une puissance inférieure à 30 kW peuvent être installées dans des pièces d'un volume d'au moins 7,5 m³;
- les chaudières d'une capacité de 30 à 60 kW nécessitent un espace de plus de 13,5 m³;
- pour l'installation d'équipements de chaudière plus performants, le volume minimum est de 15 m³.
Normes d'installation de l'appareil dans la cuisine des maisons en bois et autres types
Pour les propriétaires qui envisagent de placer des équipements dans la cuisine, il est important de savoir qu'il existe des réglementations particulières pour cette pièce :
- La superficie est supérieure à 15 m².
- La hauteur des murs est d'au moins 2,2 m.
- Une fenêtre qui s'ouvre vers l'extérieur, équipée d'un vantail. Il doit y avoir 0,03 m² de surface de fenêtre pour 1 m³ de volume de la pièce.

Photo 1. Chaudière à gaz située dans la cuisine. L'appareil est installé dans une armoire spéciale fermée par une porte en treillis.
- Si le bâtiment est en bois, le mur adjacent à la chaudière est recouvert d'un bouclier ignifuge. La taille du bouclier est déterminée pour qu'il dépasse de 10 cm au-delà de la chaudière en bas et sur les côtés, et couvre 80 cm du mur d'en haut.
- Lors du choix d'un modèle de sol, une base en matériau résistant au feu (brique, carreau de céramique) est installée en dessous, dépassant de 10 cm de tous les côtés de la chaudière.
- En plus de la présence d'une ventilation par aspiration, un espace est prévu au bas de la porte pour permettre à l'air frais d'entrer. Il assure une circulation d'air constante.
- Lors de l'installation de l'unité de chauffage, une certaine distance entre le mur et la chaudière doit être respectée (plus de 10 cm).
Exigences pour une chaufferie séparée

Lors de l'édification, pour le placement d'équipements de chaudière, d'une extension au bâtiment principal, les conditions suivantes doivent être respectées :
- la fondation de l'extension est réalisée séparément du bâtiment principal ;
- la conception est faite de matériaux résistants au feu, les mêmes exigences sont imposées à la décoration intérieure;
- le mortier est pétri sur du sable;
- la fondation pour l'installation de la chaudière est coulée séparément, après l'achèvement de l'extension;
- la base destinée à l'installation de l'équipement est à 15-20 cm au-dessus de la surface du sol.
D'autres exigences correspondent aux conditions d'installation de chaudières dans des locaux non résidentiels:
- un système de ventilation qui assure trois renouvellements d'air en une heure ;
- la distance entre le sol et le plafond est d'au moins 2,5 mètres ;
- le volume de la chaufferie est supérieur à 15 m³, un volume plus important assure le confort d'entretien de tous les éléments de l'équipement;
- l'eau est nécessairement réalisée et un drain est aménagé dans le sol;
- toutes les prises électriques disponibles dans la chambre sont mises à la terre ;
- lumière du jour;
- lors du placement de la chaudière, une approche libre de l'unité est prévue.

Photo 2. Chaufferie avec deux chaudières à gaz. Les appareils sont installés sur un socle spécial, l'accès à la lumière du soleil est fourni.
Certaines exigences sont également imposées aux équipements utilisés dans le fonctionnement de la chaudière:
- les gazoducs sont utilisés uniquement en métal;
- l'appareil est mis à la terre à l'aide d'une boucle de terre séparée ;
- sans compteur de gaz, vanne automatique qui coupe l'alimentation en gaz en cas de fuite et analyseur de gaz, l'équipement n'est pas accepté pour le fonctionnement.
Référence. Les unités à gaz modernes sont équipées d'une automatisation de protection de complexité variable, qui coupe l'alimentation en gaz en cas de dysfonctionnement.
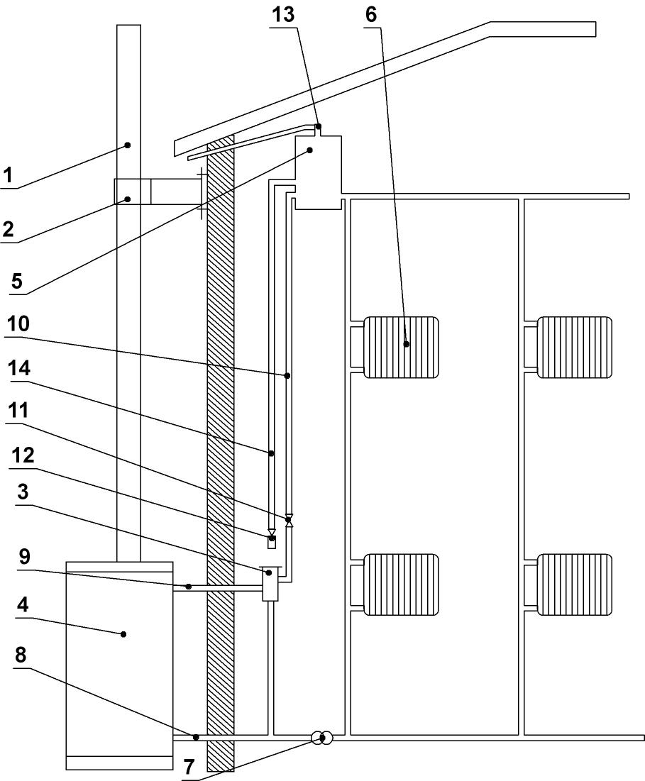
Cheminées et ventilation
Les réglementations nationales existantes pour le placement de chaudières à gaz dans le secteur privé prévoient les exigences pour l'organisation sûre de l'échange d'air, par exemple, le système de ventilation doit assurer un renouvellement ininterrompu de l'environnement aérien trois fois en une heure, sinon le fonctionnement de l'unité sera arrêté en raison d'un manque d'oxygène lors de la préparation du mélange gaz-air. Un échange d'air insuffisant provoque la formation d'une grande quantité de monoxyde de carbone, ce qui est dangereux pour les autres.
Une ventilation forcée est installée dans la pièce, fournissant de l'air pur et éliminant le monoxyde de carbone. Le conduit d'alimentation est disposé à l'opposé de l'unité, aussi près que possible de l'ouverture de la porte avant. Le diamètre intérieur du conduit de fumée doit être égal au conduit de fumée de sortie de la chaudière et être d'au moins 110,0 mm.
Les 5 premiers mètres du conduit de fumée à la sortie de la chaudière sont en métal résistant à la chaleur, puis d'autres matériaux résistants à la chaleur et aux produits chimiques sont utilisés. Selon les exigences du SES dans les locaux d'habitation, l'utilisation de matériaux contenant de l'amiante est interdite.
Exigences techniques pour l'équipement
La tuyauterie du système de tuyauterie de la chaudière est également réglementée par :
- Installez les réservoirs sur la base et fixez-les avec des boulons d'ancrage.
- S'il y a deux pompes de circulation - l'une est placée sur la conduite de retour entre la chaudière et le séparateur, et la seconde - sur la conduite d'alimentation après la colonne du séparateur.
- Une soupape de décharge de sécurité est installée sur la ligne d'alimentation du liquide de refroidissement chaud de la chaudière pour protéger l'équipement contre les surpressions.
- La ligne de drainage pour la vidange d'urgence de la chaudière ne doit pas être raccordée à un égout en plastique.
- Pour le réapprovisionnement automatique du circuit de chauffage, un régulateur de réapprovisionnement est installé sur l'alimentation en eau.
- Les conduites de gaz sont montées uniquement en métal.
- L'installation d'un compteur de gaz sur la chaudière est obligatoire.
- L'équipement de la chaudière doit être bien mis à la terre, la qualité de la mise à la terre doit être vérifiée annuellement par un organisme spécialisé.
- Un analyseur de gaz est obligatoirement installé dans la chaufferie pour prévenir d'une fuite de gaz. En cas de danger, il transmet un signal à une vanne d'arrêt automatique pour un arrêt d'urgence de l'alimentation en gaz.
Nuances et exigences pour les locaux attenants à la chaudière
Le plein respect des normes et des exigences de l'État pour les locaux d'installation d'une chaudière à gaz aidera le propriétaire à éviter les amendes, les autorités de surveillance, mais également à prévenir l'apparition de situations explosives pendant le fonctionnement. Lors de l'installation d'une chaufferie dans des sous-sols ou des sous-sols, cela oblige les propriétaires à installer une porte dans une telle pièce avec une sortie séparée sur la rue.
Lors de l'installation d'une chaudière à gaz au sous-sol, il est nécessaire d'installer une porte avec une sortie séparée
L'installation d'une chaudière à gaz dans une extension nécessite de la placer contre le mur de la maison qui ne possède pas de vitrage. Les exigences du SNiP 41-01-2003 et du MDS 41-2.2000 établissent la distance minimale d'une telle unité à la fenêtre - au moins 4 m.Le fabricant d'équipements gaz pour circuits de chaudières a pris soin d'indiquer les schémas exacts d'installation de la chaudière pour différents types de locaux. Ces informations sont obligatoirement transmises à l'utilisateur avec un passeport et des instructions d'utilisation.
Types d'appareils
Selon la méthode de combustion du combustible, les chaudières à combustion longue à double circuit peuvent être divisées en:
- Pyrolyse. Équipé de deux chambres de combustion. Dans l'un d'eux, le processus de combustion lente et de dégagement de gaz pour la pyrolyse se produit, dans l'autre, le gaz résultant est mélangé à de l'oxygène et brûlé. Les équipements de ce type se caractérisent par un haut respect de l'environnement - une quantité minimale de substances nocives est rejetée dans l'atmosphère. Lors de la combustion, peu de suie est produite. Si la chaudière est équipée d'un automatisme, il sera possible de régler la puissance.
- Avec chambre de combustion supérieure. Ces chaudières sont très faciles à entretenir. La quantité d'automatisation pour leur fonctionnement stable est minime, il est possible de fonctionner hors ligne sans électricité. Il y a aussi des inconvénients - beaucoup de cendres se forment pendant le fonctionnement, il existe une liste d'exigences pour les types de carburant. Par exemple, les petits copeaux ou la sciure de bois ne conviennent pas au petit bois.
- Pastille. Pour allumer ces équipements, des pellets spéciaux ou des briquettes de combustible comprimé sont utilisés. Ces chaudières sont écologiques, économiques et efficaces, ont une longue durée de vie. L'un des principaux inconvénients est le prix élevé de la chaudière et les conditions particulières qu'il faudra maintenir pour le stockage du combustible. La pièce doit être sèche, une humidité élevée contribuera à la détérioration des granulés.

Conformité des dimensions du bâtiment gazéifié aux normes
Lors de la conception d'une chaufferie au gaz, la puissance de l'unité de chauffage est prise en compte. Selon ce paramètre, le volume du compartiment du four est calculé.
Le tableau indique le volume minimum et l'emplacement de l'équipement du four, correspondant à une certaine puissance de l'appareil de chauffage:
| Alimentation de l'appareil | Volume de la pièce | Emplacement de l'unité |
| Jusqu'à 30kW | 7,5 mètres cubes | bureau ou cuisine intégré |
| 30-60kW | 13,5 mètres cubes | dépendance, pièce indépendante dans la maison |
| 60-200kW | 15 mètres cubes | bâtiment indépendant, extension, sous-sol ou sous-sol |
Le tableau montre qu'il est permis d'installer des appareils d'une puissance ne dépassant pas 30 kW dans la cuisine. Dans le même temps, sa superficie devrait être d'environ 4 m².
Si l'équipement de chauffage est situé au sous-sol ou sur le plancher du sous-sol, les murs et les plafonds adjacents aux autres pièces doivent être étanches à la vapeur et au gaz. De plus, lors de l'utilisation d'appareils de chauffage d'une puissance allant jusqu'à 300 kW, il est nécessaire de prévoir une sortie séparée vers la rue.
Exigences d'installation de l'unité
Lors de l'installation d'une chaudière à gaz, le propriétaire doit respecter strictement un certain nombre de règles réglementaires:
- la chaudière est installée de manière à pouvoir s'approcher librement de n'importe quel côté;
- la taille de la porte d'entrée de la chaufferie où l'appareil est installé ne peut pas avoir une largeur inférieure à 80 centimètres ;
- la superficie de la chaufferie ou autre pièce ne peut être inférieure à quatre mètres carrés ;
- la chaufferie doit avoir une fenêtre d'une superficie d'au moins 30 cm² par 10 m³ de volume - pour assurer l'éclairage en toute situation;
- le plafond de cette pièce doit avoir une hauteur d'au moins deux mètres et demi;
- l'eau doit être fournie à la chaufferie;
- la boucle de terre est obligatoire si le fonctionnement de la chaudière est lié à la consommation d'électricité ;
- les murs de la chaufferie doivent être enduits;
- la cheminée doit avoir une section correspondant à la puissance de l'appareil.
Après avoir examiné les exigences, nous pouvons conclure qu'une cuisine peut être une pièce suffisante pour installer une chaudière à charnière, s'il n'est pas possible d'aménager une chaufferie. Là, il peut être placé à côté de la cuisinière à gaz.

La chaudière murale compacte peut s'intégrer même dans la cuisine
Un avantage supplémentaire de l'installation d'une chaudière dans la cuisine est qu'elle répond à toutes les exigences ci-dessus - il s'agit de la ventilation, de l'alimentation en gaz, de la zone appropriée de la pièce, de l'alimentation en eau froide. De plus, en y installant une chaudière, vous pouvez économiser beaucoup sur les tuyaux et garder plus d'un mur intact.
La chaudière au sol, qui a des dimensions massives et une puissance de 150 kW ou plus, doit être installée dans une pièce séparée - la chaufferie. Il convient de tenir compte du fait qu'un appareil d'une puissance allant jusqu'à 60 kW peut être installé dans une pièce d'un volume d'au moins 27 m³, ce qui signifie qu'il peut être installé dans la cuisine.

Pour l'extérieur, il est préférable d'attribuer une pièce séparée
Mais vous devez être conscient que les chaudières au sol sont assez bruyantes, donc si vous envisagez d'installer l'unité dans un appartement, il est préférable de choisir une option murale.
Si la chaudière est accrochée ou installée contre un mur en matériau combustible, elle doit être protégée par un isolant résistant à la chaleur, par exemple, une cloison sèche spéciale ou une feuille d'amiante fera l'affaire.
Distance entre la chaufferie et un bâtiment résidentiel et des bâtiments publics
La norme SanPiN réglemente la distance entre la chaufferie et le bâtiment d'habitation en fonction du type de bâtiment et du combustible utilisé, ainsi que de la destination du bâtiment. Pour gaz, industriels, exigences cardinales autonomes - 300 m.
- La distance entre le bâtiment résidentiel et la chaufferie peut varier selon les normes SNiP. Lors de l'utilisation de combustibles solides, des calculs séparés sont effectués. Il faut prévoir l'installation en tenant compte du bruit de fond. Il est également nécessaire de prendre en compte les degrés entrants de pollution de l'air par les produits de combustion. Pour les extensions, il est interdit de construire sous les fenêtres des appartements (au moins 4 mètres sont laissés horizontalement depuis les fenêtres, et 8 mètres verticalement). Une extension ne peut être érigée à partir de la façade du bâtiment.
- Des jardins d'enfants et des établissements scolaires de différents types, ainsi que des installations médicales, les normes prévoient des projets développés. Seules les pièces détachées sont autorisées, à condition que les murs de la chaufferie atteignent les degrés de résistance au feu requis et que la distance entre les pièces soit déterminée par le type de combustible et l'équipement nécessaire de la chaudière. Dans de tels établissements, il est interdit de construire des chaufferies sur le toit, encastrées ou attenantes en raison de la nécessité d'un entrepôt de combustible, à savoir le charbon, la tourbe ou les liquides inflammables. Les normes sanitaires déterminent la distance requise par rapport à la fenêtre la plus proche (en raison des produits de combustion et du bruit de fond), et la distance autorisée par rapport au stockage du combustible et à la chaufferie est calculée en fonction des distances minimales d'incendie.
- La construction de chaudières encastrées, attenantes et de toit dans les bâtiments administratifs est autorisée par la loi fédérale si les normes établies pour la température ou la pression de l'eau sont respectées.Il est également nécessaire d'avoir des accès ou des zones ouvertes pour l'entretien. Dans les types ci-dessus, les combustibles liquides sont interdits.
En production
| Nbre p/p | Règlement de construction | Un ensemble de règles |
| 1 | SNiP 30-02-97 | SP 53.13330.2011 |
| 2 | SNiP 2.07.01-89 | SP 42.13330.2011 |
L'une des conditions indispensables est la présence d'une clôture entre la chaufferie et la zone urbaine, qui est conçue selon le SNiP 2.07.01-89 «Urbanisme. Planification et développement des établissements urbains et ruraux. La distance minimale de la clôture est calculée selon les normes SanPiN, en tenant compte du bruit et de la pollution du processus en cours. Ceci s'applique également aux quartiers avec des bâtiments résidentiels et publics.
Variante standard
Installation : préconisations et schémas, les grandes étapes de l'installation de la cheminée
L'installation de la cheminée est divisée en plusieurs étapes - il s'agit des travaux préparatoires, de l'installation elle-même, puis de la connexion, du démarrage et, si nécessaire, du débogage de l'ensemble du système.
Exigences générales
Lors de la combinaison de plusieurs installations de production de chaleur, une cheminée distincte est créée pour chacune d'elles. Dans des cas exceptionnels, un raccordement à une cheminée commune est autorisé, mais en même temps, une différence de hauteur d'au moins un mètre doit être observée.
Tout d'abord, les paramètres de la cheminée sont conçus et calculés, sur la base des recommandations des fabricants de chaudières à gaz.
Lors de la somme du résultat calculé, la section intérieure du tuyau ne peut pas être inférieure au diamètre du tuyau de sortie de la chaudière. Et selon le contrôle selon NPB-98 (normes de sécurité incendie), la vitesse initiale du flux de gaz naturel doit être de 6 à 10 m / s. Et d'ailleurs, la section d'un tel canal doit correspondre aux performances globales de l'unité (8 cm2 pour 1 kW de puissance).
Étapes d'installation
Les cheminées pour chaudières à gaz sont montées à l'extérieur (système complémentaire) et à l'intérieur du bâtiment. Le plus simple est l'installation du tuyau extérieur.
Installation d'une cheminée extérieure
L'installation d'une cheminée sur une chaudière murale se fait comme suit:
- Un trou est percé dans le mur. Ensuite, un morceau de tuyau y est inséré.
- Une colonne montante verticale est assemblée.
- Les joints sont scellés avec un mélange réfractaire.
- Fixé avec des supports muraux.
- Un parapluie est attaché au sommet pour le protéger de la pluie.
- Un revêtement anti-corrosion est appliqué si le tuyau est en métal.
Une bonne installation de la cheminée garantit son imperméabilité, un bon tirage et évite l'accumulation de suie. L'installation effectuée par des spécialistes réduira considérablement le coût de maintenance de ce système.
Dans le cas de l'aménagement d'une ouverture pour un tuyau dans le toit d'une maison, des boîtes spéciales avec des tabliers sont utilisées. Dans ce cas, la conception dans son ensemble est influencée par des facteurs tels que :
- Le matériau à partir duquel le tuyau est fabriqué.
- Conception extérieure de la cheminée.
- Type de toiture.
Le principal facteur influençant le choix de la conception est la température du gaz qui traverse le tuyau. Dans le même temps, selon les normes, la distance entre le tuyau de cheminée et les matériaux combustibles doit être d'au moins 150 mm. Le plus avancé est le système d'assemblage par segments, où tous les éléments sont assemblés par formage à froid.
Description de vidéo
Comment le tuyau de cheminée est installé, voir la vidéo suivante:
Raccordement d'une cheminée en céramique
Les cheminées en céramique elles-mêmes sont presque éternelles, mais comme il s'agit d'un matériau plutôt fragile, vous devez imaginer clairement comment la connexion (amarrage) de la partie métallique de la cheminée et de la céramique est correctement effectuée.
L'amarrage ne peut se faire que de deux manières :
Par la fumée - un tuyau métallique est inséré dans une céramique
Il est important de rappeler ici que le diamètre extérieur du tuyau métallique doit être inférieur à celui du tuyau en céramique. Étant donné que la dilatation thermique du métal est bien supérieure à celle de la céramique, sinon le tuyau en acier, lorsqu'il est chauffé, cassera simplement celui en céramique.
Pour le condensat - un tuyau en métal est posé sur un tuyau en céramique.
Pour les deux méthodes, les spécialistes utilisent des adaptateurs spéciaux qui, d'une part, sont équipés d'un joint pour le contact avec un tuyau métallique et, d'autre part, qui entrent directement en contact avec la cheminée, sont enveloppés d'un cordon en céramique.
L'amarrage doit être effectué à travers un tuyau à paroi simple - il a un coefficient de transfert de chaleur plus élevé. Cela signifie que la fumée aura le temps de refroidir un peu avant d'atteindre l'adaptateur, ce qui prolonge finalement la durée de vie de tous les matériaux.
Description de vidéo
En savoir plus sur le raccordement à une cheminée en céramique dans la vidéo suivante :
VDPO montre de grandes exigences pour les cheminées pour chaudières à gaz, de ce fait, il doit être installé par des équipes spécialisées. Étant donné qu'une installation compétente garantit non seulement le fonctionnement à long terme de l'appareil, mais sécurise également les conditions de vie dans une maison privée.
Exigences pour la pièce où se trouve la chaudière à gaz
Selon la puissance et le type de chambre de combustion, les normes de la pièce pour l'installation d'une chaudière à gaz peuvent différer.
Normes ambiantes pour un appareil à chambre de combustion ouverte
Comme déjà mentionné, une chaudière à gaz avec foyer ouvert doit être située dans une pièce séparée, qui est équipée et équipée conformément à toutes les normes. La chaufferie doit répondre aux exigences suivantes :
- La pièce pour l'installation de l'unité peut être attribuée à n'importe quel étage d'une maison privée, au sous-sol ou dans le grenier. Il est interdit de monter un tel appareil dans une salle de bain ou des toilettes.
- Si la puissance de la chaudière à gaz ne dépasse pas 30 kW, le volume de la chaufferie doit être d'au moins 7,5 m³. Si les performances de l'appareil sont comprises entre 31 et 60 kW, la taille requise est de 13,5 m³. Avec une puissance de 61 à 200 kW - 15 m³.
- Hauteur sous plafond - 2-2,5 m.
- La largeur des portes n'est pas inférieure à 0,8 m.
- La porte de la chaufferie ne doit pas être fermée hermétiquement. Il est nécessaire de laisser un espace entre le vantail de la porte et le sol d'une largeur de 2,5 cm.
- Une fenêtre ouvrante d'une superficie d'au moins 0,3 × 0,3 m², équipée d'une fenêtre, doit être prévue. Il fournit un éclairage suffisant de la chaufferie.
- Avoir un conduit de ventilation.
- Interrupteurs électriques situés à l'extérieur de la chaufferie.

Normes d'ambiance pour une chaudière à foyer fermé
Les normes techniques d'installation d'une chaudière à gaz à chambre de combustion fermée ne sont pas aussi strictes. Dans cet appareil, les gaz de combustion sont évacués d'un four fermé dans une cheminée coaxiale et de l'air forcé est fourni par le même tuyau. Par conséquent, les chaudières à gaz à chambre de combustion fermée d'une puissance allant jusqu'à 60 kW peuvent être installées dans tous les locaux non résidentiels répondant aux exigences suivantes:
- hauteur sous plafond supérieure à 2 m ;
- volume - pas moins de 8 m²;
- bien aéré;
- la surface des murs est en matériaux ignifuges.
Il est même permis d'encastrer des unités turbocompressées dans les meubles de cuisine.

…
Exigences pour les différentes pièces
Lors de la conception d'une chaufferie, au moins trois ensembles de règles (SP) doivent être suivis :
- 62.13330 (valable depuis 2011, dédié aux systèmes de distribution de gaz) ;
- 402.1325800 (mis en circulation depuis 2018, reflète les normes de conception des complexes gaziers dans les bâtiments résidentiels) ;
- 42-101 (en vigueur depuis 2003, sur un mode de recommandation décrit la procédure de conception et de préparation des systèmes de distribution de gaz à base de canalisation non métallique).
Séparément, il convient de mentionner une autre instruction consultative, qui fait référence à l'installation d'unités de chauffage chargées de chauffer et de fournir de l'eau chaude dans des logements individuels et des blocs. Lors de l'élaboration de projets précis, ils sont guidés par tous ces documents, par exemple, afin d'étirer correctement les tuyaux et de positionner correctement tous les points de connexion. Lors de la détermination de la taille de la chaufferie, ils sont également guidés par les normes en termes de distances entre les composants, en termes de taille des passages.


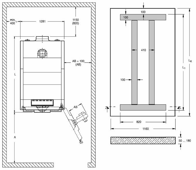
Si vous installez tout l'équipement nécessaire le long d'un des murs, les appareils occupent généralement 3,2 m de long et 1,7 m de large, en tenant compte des passages ou distances requis. Bien sûr, dans un cas particulier, il peut y avoir d'autres paramètres, et donc on ne peut de toute façon pas se passer de consulter des ingénieurs. Il faut comprendre que les dimensions estimées des équipements et plateformes sont toujours données sans tenir compte de l'espace d'ouverture des portes et fenêtres.
Pour votre information : vous ne devez pas vous laisser guider par les normes du SP 89. Elles ne s'appliquent qu'aux installations de production de chaleur d'une puissance supérieure à 360 kW. Dans le même temps, les bâtiments de ces chaufferies occupent déjà au moins 3000 mètres carrés. M. Par conséquent, les références à une telle norme lors de la conception du système de chauffage d'une maison privée sont tout simplement illégales. Et s'ils essaient de les introduire, c'est un signe de manque de professionnalisme des ingénieurs ou même d'arnaque.
Le volume de 15 m3 évoqué ci-dessus est en réalité extrêmement réduit. Le fait est qu'en réalité il ne fait que 5 mètres carrés. m, et pour l'installation d'équipements, c'est très petit.Idéalement, vous devriez vous concentrer sur au moins 8 mètres carrés. m ou en termes de volume de 24 mètres cubes. M.


La hauteur de la chaufferie doit impérativement être d'au moins 2,2 m. Dans diverses pièces, il doit y avoir au moins 9 m entre le sol de la chaufferie et la fenêtre de l'étage supérieur. Cela signifie qu'il est interdit d'équiper fenêtres au-dessus de l'extension de la chaudière, et avec elles les pièces à vivre. D'une superficie totale de moins de 350 m². m, vous pouvez, en général, abandonner l'équipement d'une chaufferie séparée au sens plein du terme, en prenant la cuisine (cuisine-salle à manger) sous la chaudière. Les inspecteurs de l'État vérifieront uniquement que la puissance de l'équipement n'est pas supérieure à 50 kW et que le volume de la cuisine est d'au moins 21 mètres cubes. m (avec une superficie de 7 m2); pour la cuisine-salle à manger, ces chiffres seront d'au moins 36 mètres cubes. m et 12 m2 respectivement.
Lors de l'installation de la chaudière dans la cuisine, la partie principale de l'équipement auxiliaire (chaudières, pompes, mélangeurs, collecteurs, vases d'expansion) est placée sous les escaliers ou dans une armoire de 1x1,5 m.Mais lors de la caractérisation de la taille de la pièce pour la chaudière, il ne faut pas oublier les exigences relatives aux dimensions des vitrages. Ils sont sélectionnés de manière à ce que la maison ne subisse absolument pas d'explosions ou ne souffre que très peu. La surface vitrée totale (hors cadres, boulons et autres) est d'au moins 0,8 mètre carré. m même dans la salle de contrôle de 8 à 9 m2 de surface.
Si l'espace total de la chaufferie dépasse 9 m². m, le calcul est également simple. Pour chaque mètre cube de la structure thermique, 0,03 m2 de couverture de verre propre est alloué. Il n'est pas nécessaire de considérer exprès une dimension de fenêtre type, il suffit de se laisser guider par un simple ratio :
- salle jusqu'à 10 places - vitrage 150x60 cm;
- complexe pour 10,1-12 carrés - 150x90 cm;
- 12,1-14 m2 - correspondent au verre 120x120 cm;
- 14,1-16 m2 - cadre 150 par 120 cm.
Les données ci-dessus pour une porte de 80 cm de large sont généralement correctes, mais parfois elles ne suffisent pas. Il est plus correct de partir du fait que la porte doit être 20 cm plus large que la chaudière ou la chaudière. En cas de divergence, leurs valeurs sont guidées par un appareil plus large. Sinon, vous ne pouvez vous limiter qu'à des considérations de commodité et d'aspect pratique. Un sujet distinct est la taille du conduit de ventilation (qui est également directement liée à la puissance de la chaudière):
- jusqu'à 39,9 kW inclus - 20x10 cm;
- 40-60kW - 25x15 cm;
- 60-80kW - 25x20 cm;
- 80-100 kW - 30x20 cm.
Dimensions des chaudières à gaz chez les particuliers dans la vidéo ci-dessous.
Que faut-il guider
Lorsqu'on leur demande comment choisir une chaudière de chauffage, ils répondent souvent que le critère principal est la disponibilité d'un combustible particulier. Dans ce cadre, on distingue plusieurs types de chaudières.
chaudières à gaz
Les chaudières à gaz sont les types d'équipements de chauffage les plus courants. Cela est dû au fait que le combustible pour de telles chaudières n'est pas très cher, il est disponible pour un large éventail de consommateurs. Que sont les chaudières à gaz ? Ils diffèrent les uns des autres en fonction du type de brûleur - atmosphérique ou gonflable. Dans le premier cas, les gaz d'échappement passent par la cheminée et dans le second, tous les produits de combustion sortent par un tuyau spécial à l'aide d'un ventilateur. Bien sûr, la deuxième version sera un peu plus chère, mais elle ne nécessitera pas de désenfumage.
Chaudière à gaz murale
En ce qui concerne la méthode de placement des chaudières, le choix d'une chaudière de chauffage suppose la présence de modèles au sol et muraux. Quelle chaudière de chauffage est la meilleure dans ce cas - il n'y a pas de réponse. Après tout, tout dépendra des objectifs que vous poursuivez.Si, en plus du chauffage, vous devez conduire de l'eau chaude, vous pouvez installer des chaudières de chauffage murales modernes. Vous n'aurez donc pas besoin d'installer une chaudière pour chauffer l'eau, et c'est une économie financière. De plus, dans le cas des modèles muraux, les produits de combustion peuvent être évacués directement dans la rue. Et la petite taille de tels appareils leur permettra de s'intégrer parfaitement à l'intérieur.
L'inconvénient des modèles muraux est leur dépendance à l'énergie électrique.
Chaudières électriques
Ensuite, pensez aux chaudières de chauffage électrique. S'il n'y a pas de gaz de ville dans votre région, une chaudière électrique peut vous faire économiser. Ces types de chaudières de chauffage sont de petite taille, elles peuvent donc être utilisées dans de petites maisons, ainsi que dans des chalets à partir de 100 m². Tous les produits de combustion seront inoffensifs d'un point de vue environnemental. Et l'installation d'une telle chaudière ne nécessite pas de compétences particulières. Il convient de noter que les chaudières électriques ne sont pas très courantes. Après tout, le carburant coûte cher et ses prix ne cessent d'augmenter. Si vous demandez quelles chaudières pour le chauffage sont les meilleures en termes d'économie, alors ce n'est pas une option dans ce cas. Très souvent, les chaudières électriques servent d'appareils de rechange pour le chauffage.
Chaudières à combustible solide
Il est maintenant temps d'examiner ce que sont les chaudières à combustible solide. Ces chaudières sont considérées comme les plus anciennes, un tel système est utilisé depuis longtemps pour le chauffage des locaux. Et la raison en est simple - le carburant pour de tels appareils est disponible, il peut s'agir de bois de chauffage, de coke, de tourbe, de charbon, etc.Le seul inconvénient est que ces chaudières ne peuvent pas fonctionner hors ligne.
Chaudière à combustible solide génératrice de gaz
La modification de ces chaudières sont des appareils générateurs de gaz. Une telle chaudière diffère en ce qu'il est possible de contrôler le processus de combustion et que les performances sont régulées entre 30 et 100%. Lorsque vous réfléchissez au choix d'une chaudière de chauffage, sachez que le combustible utilisé par ces chaudières est du bois de chauffage, leur humidité ne doit pas être inférieure à 30%. Les chaudières à gaz dépendent de la fourniture d'énergie électrique. Mais ils présentent également des avantages par rapport aux propergols solides. Ils ont un rendement élevé, qui est deux fois plus élevé que les appareils à combustible solide. Et du point de vue de la pollution de l'environnement, ils sont respectueux de l'environnement, car les produits de combustion n'entreront pas dans la cheminée, mais serviront à former du gaz.
Le classement des chaudières de chauffage montre que les chaudières à gaz à circuit unique ne peuvent pas être utilisées pour chauffer l'eau. Et si nous considérons l'automatisation, alors c'est génial. Vous pouvez souvent trouver des programmeurs sur de tels appareils - ils régulent la température du caloporteur et émettent des signaux en cas de danger d'urgence.
Les chaudières à gaz dans une maison privée sont un plaisir coûteux. Après tout, le coût d'une chaudière de chauffage est élevé.
Chaudières au fioul
Examinons maintenant les chaudières à combustible liquide. En tant que ressource de travail, ces appareils utilisent du carburant diesel. Pour le fonctionnement de telles chaudières, des composants supplémentaires seront nécessaires - des réservoirs de carburant et une pièce spécialement pour la chaudière. Si vous réfléchissez à la chaudière à choisir pour le chauffage, nous notons que les chaudières à combustible liquide ont un brûleur très coûteux, qui peut parfois coûter autant qu'une chaudière à gaz avec un brûleur atmosphérique.Mais un tel appareil a des niveaux de puissance différents, c'est pourquoi il est intéressant de l'utiliser d'un point de vue économique.
En plus du carburant diesel, les chaudières à combustible liquide peuvent également utiliser du gaz. Pour cela, des brûleurs remplaçables ou des brûleurs spéciaux sont utilisés, capables de fonctionner avec deux types de combustible.
Chaudière au fioul
Normes de base
Les équipements de chauffage sont principalement installés dans les chaufferies domestiques, mais il faut comprendre que de tels appareils peuvent être dangereux. Les exigences strictes inscrites dans les SNiP doivent être prises en compte. En règle générale, les équipements de chauffage sont situés dans :
- greniers;
- dépendances indépendantes;
- conteneurs autonomes (type modulaire);
- les locaux de la maison elle-même;
- extensions de bâtiments.
La taille minimale d'une chaudière à gaz dans une maison privée est de:
- 2,5 m de hauteur ;
- 6 m² m de superficie ;
- 15 pi. m en volume total.
Mais la liste des règles ne s'arrête pas là. Les normes introduisent également des réglementations pour les différentes parties des locaux. Ainsi, la surface des fenêtres de la cuisine doit être d'au moins 0,5 m2. La plus petite largeur du vantail de la porte est de 80 cm et la taille des canaux de ventilation naturelle est d'au moins 40x40 cm.
De plus, vous devez faire attention à :
- SP 281.1325800 (5e section sur les normes de chambre);
- 4e partie du règlement 41-104-2000 (une version antérieure du document précédent avec des normes un peu plus strictes);
- paragraphes 4.4.8, 6.2, 6.3 du code des règles 31-106 de 2002 (instructions d'installation et d'équipement de la chaudière) ;
- SP 7.13130 tel que modifié en 2013 (règlements sur le retrait de la partie cheminée sur le toit);
- ensemble de règles 402.1325800 dans la version 2018 (ordre d'emplacement des appareils à gaz dans les cuisines et les chaufferies) ;
- SP 124.13330 de 2012 (normes concernant le réseau de chauffage lors du placement d'une chaufferie dans un bâtiment séparé).


Réglementation et documentation du projet
Absolument toutes les exigences relatives à l'installation de chaudières à gaz sont disponibles gratuitement dans les codes et réglementations du bâtiment suivants :
- SNiP 31-02-2001 ;
- SNiP 2.04.08-87 ;
- SNiP 41-01-2003 ;
- SNiP 21-01-97 ;
- SNiP 2.04.01-85.
En outre, des données et des chiffres tirés des SNiP pertinents sont utilisés.
1. Vous devez commencer par déposer une demande d'approbation de cahier des charges. La présence de ce document autorise le demandeur à commencer l'installation et le raccordement des équipements de chauffage à la conduite centrale de gaz. La demande est faite au service du gaz, où elle est examinée par des spécialistes dans un délai de trente jours calendaires.
Afin d'accélérer la réception du document ci-dessus et d'éviter d'éventuels retards, la demande doit indiquer le volume journalier moyen estimé de gaz naturel qui sera nécessaire pour répondre aux besoins de chauffage. Ce chiffre est calculé individuellement selon les normes indiquées dans le premier des SNiP répertoriés.
- Pour une chaudière à gaz domestique avec circuit d'eau chaude et utilisée dans le centre de la Russie, la consommation de combustible est de 7 à 12 m3 / jour.
- Un réchaud à gaz pour cuisiner consomme 0,5 m³/jour.
- L'utilisation d'un réchauffeur à gaz circulant (réducteur) consomme 0,5 m³/jour.
Pour diverses raisons, après examen par le service du gaz d'une demande d'autorisation de raccordement, un refus peut être prononcé. Dans le même temps, l'autorité responsable est tenue de délivrer un document au propriétaire d'une maison privée, qui indique officiellement toutes les raisons du refus. Après leur élimination, la demande est soumise à nouveau.
2.La prochaine étape après avoir reçu les spécifications techniques est un processus encore plus long, mais nécessaire - la création d'un projet. La partie principale de ce document est un schéma de plan, qui indique l'emplacement de la chaudière, des équipements de comptage, des conduites de gaz, ainsi que tous les points de connexion.
Un spécialiste approprié est toujours impliqué dans la préparation du projet. Il doit avoir l'autorisation de faire ce travail. Il n'est pas possible de développer un projet seul. Dans tous les cas, le service gaz ne prendra pas en considération un document préparé par un non-spécialiste.
Après avoir rédigé le projet, il doit être soumis pour approbation. Cela est fait par le département du service du gaz, qui contrôle l'approvisionnement en gaz dans une localité ou une zone particulière. En règle générale, il faut jusqu'à 90 jours pour convenir d'un projet, et ce n'est qu'après avoir reçu une réponse positive que les travaux peuvent commencer sur l'aménagement de la chaufferie et l'installation de l'unité de chauffage.
Avec le projet et la demande d'examen, les documents suivants doivent être joints :
- passeport technique (disponible avec l'équipement);
- manuel d'instructions officiel (vous pouvez copier);
- certificats;
- un document confirmant la conformité d'équipements spécifiques aux exigences de sécurité.
Il est également recommandé de consulter le spécialiste qui a rédigé le projet. Il fournira les informations les plus récentes sur ces questions, parlera des innovations possibles, des changements de législation et des pièges courants. Cette connaissance est garantie pour vous faire économiser beaucoup de temps et de nerfs.
L'approbation du projet, de même que la réception des spécifications techniques, peut se solder par un échec.Dans le même temps, le propriétaire reçoit une ordonnance dans laquelle les erreurs, les lacunes ou les incohérences qui doivent être éliminées sont indiquées. Après corrections, la demande est soumise et examinée à nouveau.












































