Chaudière à gaz pour saunas et bains: types d'équipements pour organiser le chauffage au gaz

Chaudière pour un bain: types de fabrication d'une chaudière de vos propres mains

Chaudière pour un bain avec un réservoir

C'est aussi une option assez simple mais fiable pour chauffer l'eau. Structurellement composé de deux parties :

  • Celui du bas est conçu pour brûler du bois de chauffage, d'autres combustibles solides (mais pas du charbon);
  • La partie supérieure est un réservoir. qui réchauffe le contenu grâce à la chaleur du tuyau de cheminée passant à l'intérieur du récipient.

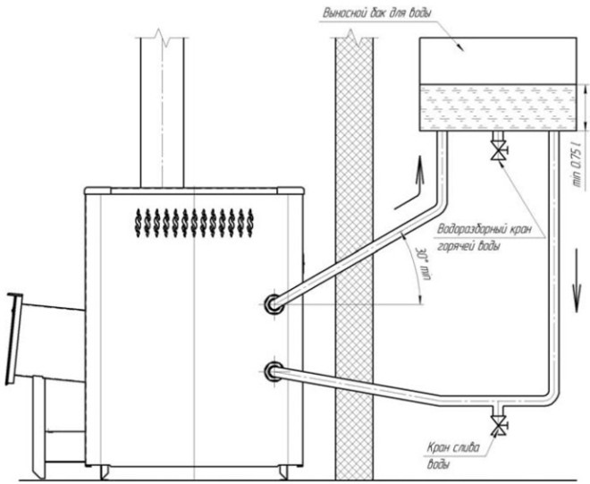
Il est relié au système d'alimentation en eau froide ou équipé d'un récipient séparé installé sur le toit du bain.Sous l'action des forces physiques, le liquide chaud est déplacé par le liquide froid lourd pendant le processus de lavage. Le réservoir d'eau doit toujours être rempli pendant l'utilisation.

Une chaudière à bois pour un bain d'une capacité est équipée d'une pomme de douche, d'un robinet d'un appareil spécial, que le fabricant interdit de remplacer par des mélangeurs ordinaires.

Avantages d'une chaudière à bois : compacité, efficacité, facilité d'utilisation, une faible quantité de combustible solide est nécessaire.

Chaudière à gaz pour saunas et bains: types d'équipements pour organiser le chauffage au gaz

Types d'échangeurs de chaleur

Échangeurs de chaleur

Un échangeur de chaleur est un appareil utilisé pour chauffer l'eau. Plus il fonctionne efficacement (plus le rendement est élevé), mieux le poêle chauffe, plus la température dans les pièces peut être élevée. Le coefficient de transfert de chaleur dépend du matériau de fabrication et de la surface totale.

Exemple d'échangeur de chaleur en cuivre

Il est préférable de fabriquer des échangeurs de chaleur en cuivre, mais cette option présente trois inconvénients importants :

  • coût élevé du cuivre. Pour un échangeur de chaleur, un grand nombre de tuyaux en cuivre à paroi épaisse sont nécessaires; aux prix actuels, le coût d'un tel matériau peut être égal au coût de l'ensemble de la chaudière;
  • complexité de fabrication. Le cuivre ne peut être soudé que dans un environnement de gaz inerte, il est impossible de le faire à la maison. Une autre méthode de fabrication d'un échangeur de chaleur en cuivre est la soudure. Malheureusement, de tels joints n'ont pas d'indicateurs de résistance satisfaisants, en particulier à des températures élevées ;

    Soudage (brasage) du cuivre

  • le cuivre sous l'influence d'une flamme nue s'oxyde rapidement, devient fragile et brûle.

Échangeur de chaleur à tuyaux en cuivre

Pour les échangeurs de chaleur des chaudières à combustible solide, il est optimal d'utiliser des matériaux en tôle d'acier au carbone de qualité ordinaire d'une épaisseur d'au moins un millimètre.

Tuyaux à paroi épaisse

Un facteur important dans l'efficacité de la chaudière est la surface de l'échangeur de chaleur. Il y a deux options pour résoudre le problème ici.

Échangeur de chaleur tubulaire

Prix ​​des échangeurs de chaleur

échangeur de chaleur

La première. Augmentez la surface interne du four et donc les dimensions de l'échangeur de chaleur. L'option est bonne, mais difficile à mettre en œuvre. Un grand foyer n'est pas toujours approprié dans un poêle de sauna, une augmentation de ses dimensions entraîne des difficultés importantes lors de la fabrication, un gaspillage de matériaux, etc.

Deuxième. Augmentez la surface de l'échangeur de chaleur. Les échangeurs de chaleur peuvent se présenter sous la forme de conteneurs à parois planes ou être tubulaires. La deuxième option augmente considérablement la surface d'échange de chaleur effective, l'eau se réchauffe plus rapidement, l'efficacité augmente considérablement.

Échangeur de chaleur - photo

Quel poêle pour un bain est préférable de choisir - bois, électrique ou gaz

À l'ère de la technologie moderne et de l'innovation, les fabricants de poêles de sauna ont rapidement trouvé une alternative aux poêles à bois habituels. Quel poêle pour un bain est préférable de choisir? Essayons de comprendre.

Électrique - facile à installer et à utiliser, n'a pas besoin de bois de chauffage, chauffe la pièce rapidement. Ils peuvent être activés et désactivés à tout moment. Une excellente option pour les citadins toujours pressés. Mais! Ils consomment beaucoup d'électricité, ils ne peuvent chauffer qu'une petite pièce.

Chaudière à gaz pour saunas et bains: types d'équipements pour organiser le chauffage au gaz

Photo du site

Gaz - ont une vitesse de chauffage rapide, sont capables de maintenir un niveau de température donné dans le hammam. Parmi les lacunes - elles nécessitent une connexion au système de chauffage central au gaz, sinon la consommation de bouteilles de gaz sera trop élevée et ne remboursera pas les coûts.

Chaudière à gaz pour saunas et bains: types d'équipements pour organiser le chauffage au gaz

Photo du site Confortable dans la maison

Chauffage au bois - sont considérés comme la meilleure option. Ils sont en métal et en brique, chauffés au bois

Comment choisir un poêle à bois pour sauna ? Ici, il convient de prêter attention à tous les paramètres que nous avons énumérés ci-dessus - le type d'appareil de chauffage, le four, le principe de fonctionnement et le matériau à partir duquel il est fabriqué

Chaudière à gaz pour saunas et bains: types d'équipements pour organiser le chauffage au gaz

Photo du site Poêles Narvi Narvi et fumoirs en gros

Types et caractéristiques des chaudières de bain

Les chaudières pour un bain sont divisées en deux catégories principales: les unités conçues pour chauffer un hammam et les modèles pour chauffer l'ensemble du bain. Il existe des chaudières à combustible solide, à combustible liquide, à gaz, électriques et combinées. Par type d'échangeur de chaleur, les unités sont :

  • circuit unique - ils ne chauffent que le hammam;
  • double circuit - ils chauffent les locaux et chauffent l'eau de la salle de lavage;
  • trois circuits - ils chauffent les sols du bain et des piscines.

La chaudière du sauna se compose d'une chambre de combustion au fond de laquelle se trouve une grille. Un cendrier est placé en dessous: à travers lui, l'air nécessaire à la combustion du carburant est pompé. Un autre élément important est le radiateur, qui chauffe le hammam. Il existe des modèles sans cela, mais il sera inconfortable de se baigner dans un bain sans chauffage. Chaudières pour un bain sur bois avec réservoir d'eau donner une vapeur très dense et lourde. Les produits de combustion sont expulsés par la cheminée du poêle.

De nombreuses unités de bain sont en acier, mais les produits sont également en fonte. Ils résistent aux températures élevées et ont une durée de vie plus longue. Mais de tels modèles ont un inconvénient important : ils deviennent très fragiles lorsque de l'eau pénètre sur leur surface chaude. Par conséquent, les chaudières en fonte sont revêtues de brique ou de pierre.

Poêle de sauna à combustion longue

Les poêles à combustion longue brûlent le combustible très lentement. En raison du fait que les flux d'air y sont régulés, le bois de chauffage qu'ils contiennent ne brûle pas, mais seulement couve.La chambre de combustion de ces fours est complètement scellée et de l'air y est forcé. Les avantages de ces fours incluent :

  • haut niveau d'efficacité - 75-80%;
  • le temps de combustion d'une recharge de bois de chauffage est d'environ 10 heures ;
  • la possibilité d'utiliser n'importe quel combustible solide;
  • chargement accru de bois de chauffage;
  • avoir l'automatisation du contrôle ;
  • durée de vie - jusqu'à 30 ans.

Les inconvénients des poêles de sauna à combustion longue incluent :

  • ne fonctionne pas avec du carburant liquide ;
  • la cheminée ne doit être droite (pas de coudes) en raison du faible tirage ;
  • forme une grande quantité de suie et de condensat dans le tuyau, il nécessite donc un nettoyage régulier.
Lire aussi :  Exigences de sécurité incendie pour les chaufferies à gaz : les subtilités de l'aménagement des locaux pour les chaufferies à gaz

Pour brûler le condensat, l'unité doit être fortement chauffée une fois par semaine à haute puissance. Cette mesure empêchera le décrassage du four.

Chaudière à gaz pour saunas et bains: types d'équipements pour organiser le chauffage au gaz

Appareils de chauffage par pyrolyse

L'unité de pyrolyse se distingue des autres fours à combustion longue durée par une plus grande efficacité. Le terme "pyrolyse" désigne la décomposition d'un combustible solide en éléments combustibles sous l'influence de températures élevées avec un manque d'oxygène. L'efficacité accrue des chaudières à pyrolyse est assurée par le fait que le gaz de bois qui se dégage lors de la décomposition du combustible est toujours post-brûlé. Par conséquent, la suie ne se forme pas dans de tels poêles. Mais ces chaudières ne sont pas recommandées pour chauffer le hammam en raison d'un transfert de chaleur insuffisant dans la gamme infrarouge.

Chaudière à gaz pour saunas et bains: types d'équipements pour organiser le chauffage au gaz

Chaudières de bain électriques

Ces unités sont considérées comme les plus respectueuses de l'environnement. Ils prennent peu de place dans la pièce et ne nécessitent pas l'installation d'une cheminée. Les chaudières électriques sont constituées d'un boîtier métallique dans lequel sont installés des éléments chauffants.Ils chauffent les pierres, qui dégagent ensuite de la chaleur dans la pièce. Ces modèles sont également appelés radiateurs électriques. Ils sont souvent utilisés dans les saunas. Ils fonctionnent automatiquement et sont faciles à gérer. Mais pour de telles unités, une alimentation triphasée à partir de réseaux électriques est requise. Il existe des chaudières qui utilisent du 220 V.

Chaudière à gaz pour saunas et bains: types d'équipements pour organiser le chauffage au gaz

chaudières à gaz

L'unité à gaz est une alternative aux poêles à bois. L'installation nécessitera une autorisation supplémentaire d'organisations spéciales. Les équipements de cette catégorie se caractérisent par des dimensions compactes et un fonctionnement économique. Un brûleur est monté à l'intérieur du corps du four, qui est conçu pour un certain débit de gaz.

Le four où le combustible est brûlé est situé sous le poêle. En conséquence, les pierres chauffent rapidement et fournissent la température souhaitée dans le hammam. Pendant le fonctionnement du chauffage au gaz, aucune odeur désagréable n'est émise. Si le feu s'éteint soudainement, le fusible intégré arrête automatiquement l'alimentation en gaz. Ces chaudières, comme celles à bois, nécessitent une cheminée.

Chaudière à gaz pour saunas et bains: types d'équipements pour organiser le chauffage au gaz

Autres types de chaudières

Les unités fonctionnant au diesel ou à l'huile usée sont considérées comme efficaces et pratiques à utiliser. Mais ils ont un inconvénient très important : pendant le fonctionnement, ils dégagent une odeur forte et persistante. Par conséquent, pour l'installation de poêles à combustible liquide, il est nécessaire d'équiper une pièce séparée.

Électrique

Et enfin, nous analyserons plusieurs façons d'utiliser l'électricité pour chauffer un bain. Je dois dire tout de suite : occupez-vous de l'électricien dans ce cas. Étant donné que la charge des appareils électriques thermiques est importante, la qualité du câblage électrique ne doit pas être mise en doute.Tenez compte de la charge totale, de la taille des fils, du schéma de câblage et de la qualité des travaux électriques.

Chaudière à gaz pour saunas et bains: types d'équipements pour organiser le chauffage au gazChauffage électrique

Tout d'abord, votre pièce peut être chauffée avec un radiateur électrique. Certes, dans ce cas, vous devrez prendre soin de chauffer l'eau de la salle de douche à l'avance (par exemple, en installant une chaudière à chauffage direct ou indirect). Ce type d'appareil de chauffage ne nécessite pas d'aménagement supplémentaire de la cheminée et est considéré comme respectueux de l'environnement.

Deuxièmement, la salle de sauna (en particulier la salle de repos) peut être chauffée à l'aide de convecteurs électriques placés sur les murs.

Et, troisièmement, le film infrarouge peut vous venir en aide - le dernier type de chauffage qui vous permet de réchauffer facilement et rapidement les sols à la fois dans la maison et dans les bains publics. La technologie détaillée des appareils de chauffage par le sol est abordée dans d'autres articles.

Il est tout à fait possible d'utiliser des radiateurs infrarouges comme source de chaleur supplémentaire. Je l'ai accroché au plafond et j'ai oublié.

Chaudière à gaz pour saunas et bains: types d'équipements pour organiser le chauffage au gazRadiateurs infrarouges

L'utilisation de l'électricité pour chauffer le bain a bien sûr ses avantages. Vous pouvez utiliser en toute sécurité tous les éléments structurels (chauffage, plancher chauffant, chaudière) à tout moment de l'année. En même temps, vous n'avez pas à vous soucier du carburant ni à craindre le gel des tuyaux. Le seul inconvénient sérieux peut être considéré comme une consommation d'énergie élevée.

Installation à faire soi-même d'une chaudière à gaz dans un bain

Avant de connecter l'équipement, il est nécessaire de délivrer les autorisations appropriées et de coordonner le projet avec les autorités. Développer un projet d'approvisionnement en gaz dans un service spécialisé, puis l'envoyer et les documents connexes pour approbation, par exemple à Gorgaz.Vous aurez besoin de papiers du fabricant : fiche technique du matériel, notice, certificat de conformité.

Les travaux avec des équipements à gaz sont effectués par des spécialistes conformément aux règles et réglementations acceptées: SNiP 42-01-2002 et II-35-76, ensemble de règles: SP-41-104-2000. Ils donnent une description détaillée de la façon d'effectuer correctement ces travaux, et ce qu'il faut faire est strictement interdit. Par exemple, le diamètre de la cheminée est sélectionné en fonction de la puissance de l'appareil à l'aide de formules spéciales.

Chaudière à gaz pour saunas et bains: types d'équipements pour organiser le chauffage au gaz

Après avoir reçu les autorisations nécessaires, vous pouvez commencer les travaux: apporter le gazoduc et l'alimentation en eau, tapisser le mur avec du matériel anti-incendie, faire un trou pour la cheminée.

  • Rincer le système de tubulure de l'appareil.
  • Fixez les fixations murales aux lattes.
  • Faites des trous dans le mur, fixez les planches avec des chevilles ou des vis autotaraudeuses.
  • Fixez la chaudière sur les supports de montage.
  • Fixez les robinets, les filtres aux tuyaux ;
  • Connectez les robinets à l'entrée, à la sortie ;
  • Installez les éperons ;
  • Connectez le système de chauffage;
  • Connectez la raclette avec chauffage;
  • Connectez l'alimentation en eau ;
  • Connectez la cheminée.

Un local séparé est réservé aux équipements extérieurs. Les murs et le sol sont recouverts de matériaux spéciaux anti-incendie. L'ensemble est vissé au sol. Le reste du schéma de connexion est identique à la version murale.

Nouvelle qualité d'une chaudière à gaz

D'un point de vue économique, il est conseillé d'utiliser du gaz en bouteille pour les petits et minuscules hammams, par exemple, pour un sauna sur une roulotte ou un sauna dans une maison de pêcheur.

Chaudière à gaz pour saunas et bains: types d'équipements pour organiser le chauffage au gaz

L'utilisation d'une chaudière à gaz pour un sauna ou un bain permet de résoudre plusieurs problèmes sérieux :

  • Débarrassez-vous des fumées et de l'odeur de tartre qui accompagnent presque tous les poêles à bois.Les produits de combustion du gaz combustible sont constitués à 99 % de dioxyde de carbone et d'eau inoffensifs ;
  • Assurer un chauffage doux et précis de l'air dans le bain ; dans de nombreuses chaudières à gaz modernes pour saunas, l'automatisation peut maintenir la température avec encore plus de précision que dans le cas des radiateurs électriques ;
  • Obtenez la compacité souhaitée des équipements à gaz. Une chaudière à gaz moderne dans ses dimensions n'est que légèrement plus grande que la taille d'un radiateur électrique.

Chaudière à gaz pour saunas et bains: types d'équipements pour organiser le chauffage au gaz
Noter! La température du front de combustion du combustible méthane dans le four à gaz de la chaudière n'est que de 850 ° C, tandis que la formation intensive de monoxyde de carbone mortel, la libération de suie fine commence à 1000-1100 ° C. A titre de comparaison, le bois de chauffage lors de la combustion donne une flamme supérieure de 150 à 200 ° C à celle du gaz combustible. Cela signifie qu'une chaudière à gaz de marque est beaucoup plus sûre que n'importe quel poêle à bois. Si vous n'interférez pas avec le fonctionnement des brûleurs et des équipements de contrôle installés par un spécialiste spécialisé, la cheminée restera stérile et le risque d'incendie ou d'empoisonnement est pratiquement nul.

Chaudière à gaz pour saunas et bains: types d'équipements pour organiser le chauffage au gaz

Four à gaz dans le bain

Fondation pour une fournaise au gaz

Nous construisons la fondation du four à gaz du bain dans l'ordre suivant:

  • Nous essaimons une fosse d'une profondeur de 70 cm, étant donné que le fond de la fosse doit être légèrement plus large que la base.
  • Nous remplissons le fond de la fosse avec du sable de 15 cm d'épaisseur, le remplissons d'eau et attendons que l'eau soit absorbée.
  • Après absorption de l'eau, sur environ 20 cm d'épaisseur, nous coulons des morceaux de brique et de pierre.
  • Couvrons tout cela de gravats.
  • Nous réalisons des coffrages et créons une ossature renforcée.
  • Nous le remplissons de béton et attendons qu'il durcisse un peu, puis nous retirons le coffrage.
  • Nous couvrons la surface en plusieurs couches avec du goudron.
  • Nous couvrons l'endroit où se trouvait le coffrage avec un mélange de sable et de gravier fin.
  • Nous mettons une isolation contre l'humidité - et la fondation est prête pour la construction d'une fournaise à gaz.
Lire aussi :  Four hollandais : un guide de fabrication pour un artisan à domicile

Construction d'un four à gaz pour un bain

La procédure de fabrication d'une cuisinière à gaz pour un bain ressemble à ceci:

  1. Nous préparons une solution de sable et d'argile dans un rapport de 1: 1. Mélangez tout cela avec de l'eau jusqu'à ce qu'une masse homogène sans grumeaux se forme.
  2. Faire tremper les briques dans l'eau pendant 10 minutes avant la pose.
  3. Nous posons la première couche de brique sur le bitume, que nous avons préalablement placé sur la fondation. Après avoir posé la première rangée de briques sur le mortier, laissez-la reposer quelques minutes.
  4. La deuxième rangée et les rangées suivantes sont posées de manière à ce que chaque brique repose sur le joint entre deux briques de la rangée précédente. Assurez-vous que les coutures ont une épaisseur maximale de 5 mm.
  5. Lors de la pose de la troisième rangée, vous pouvez créer une porte pour le ventilateur. Utilisez des bandes d'acier ou de fil galvanisé pour fixer la porte.
  6. Dans la quatrième rangée, nous créons un trou pour les cendres d'un centimètre de taille.
  7. Au sixième rang, nous terminons par l'installation d'un ventilateur et au septième, nous installons la porte du foyer et de la grille.
  8. Huitième rangée - nous faisons une cloison pour la cheminée et continuons à poser des briques jusqu'à ce que les canaux soient placés dans la 14e rangée.
  9. Nous installons un réservoir d'eau sur les canaux, de sorte qu'il soit situé sur la paroi avant et que les parois latérales le soutiennent verticalement.
  10. La quinzième rangée est la base d'un mur séparé, nous l'avons donc mis dans une demi-brique. Nous mettons également les trois rangées suivantes.
  11. Nous avons mis la porte pour libérer la vapeur dans la dix-neuvième rangée.
  12. Entre 20 et 21 rangées nous mettons des bandes d'acier, puis nous mettons un ballon pour l'eau chaude.
  13. La cheminée est installée à partir du 23e rang.N'oubliez pas que le tuyau doit s'élever d'un demi-mètre au-dessus du toit et que l'épaisseur du tuyau lui-même doit être d'une demi-brique.

Lorsque les travaux de pose du four sont terminés, nous procédons au plâtre. Nous nettoyons les parois du four de l'excès de mortier et de plâtre avec un mélange de sable, d'argile, de gypse et d'albâtre.

Utiliser une cuisinière à gaz dans un bain

  • Nous vous recommandons d'enterrer une bouteille de gaz liquéfié dans la rue près des bains publics.
  • Assurez-vous d'installer un système d'automatisation qui régulera l'alimentation en carburant et le moment de l'éteindre.
  • Une fois le poêle prêt, laissez-le sécher pendant au moins deux semaines et, après le premier allumage, ne le portez pas immédiatement à des températures élevées.
  • Assurez-vous que la base réfractaire sous le poêle dépasse de 100 mm les limites du poêle.
  • La conduite de gaz vers le poêle doit être en acier ou en cuivre.

Appareil four à gaz

Ce qui précède déjà, pour ainsi dire, faisait allusion au fait qu'un poêle à gaz n'est pas très différent d'un poêle à bois. Et en effet : si vous le souhaitez, vous pouvez refaire le poêle à bois existant en y installant un brûleur à gaz.

Noter! Il y a des limites, par exemple, il vaut mieux installer un brûleur microtorche pour que le métal ne brûle pas, il faut s'assurer que la flamme ne touche pas les parois et le dessus.

Un réchauffeur interne peut également devenir une source de problèmes - coulant ou fermé, il n'est pas conçu pour une température de torche de 1600 degrés.

Gardez à l'esprit! Même dans le cas où le gaz est complètement brûlé dans l'air, des problèmes subsistent. Après tout, toute la chaleur monte et la partie inférieure n'est pas chauffée. Par conséquent, le hammam chauffe de manière inégale, et donc plus longtemps.

Soit dit en passant, les dimensions du compartiment à combustible dans le poêle à gaz initial seront toujours plus petites que dans le poêle à bois, mais cela est compréhensible - le bois de chauffage est volumineux, donc un espace supplémentaire dans le four leur a été alloué. Le gaz n'a pas besoin de beaucoup d'espace. Il n'a besoin que d'air.

IMPORTANT! Mais c'est un point vraiment important : pour une combustion complète, le gaz a besoin d'un apport d'air frais et oxygéné. Parce que toute combustion est une oxydation, l'interaction avec l'oxygène

Si cela ne suffit pas, la combustion sera incomplète, et les produits incomplets sont dangereux pour l'homme !

Pour mieux comprendre ce problème, regardons la structure de la partie principale d'un poêle de sauna à gaz :

A ce jour, il existe deux types de brûleurs :

  • atmosphérique;
  • suralimenté.

atmosphérique

Une sorte de brûleur à gaz bon marché, car il est agencé assez simplement. C'est un tube ou des tubes à travers lesquels l'un ou l'autre gaz naturel circule sous pression. Avant de brûler, il doit être mélangé avec de l'air, et l'air dans ce type de brûleur est fourni uniquement par tirage. Et s'il n'y a pas de ventilation bien conduite, il vaut mieux ne pas expérimenter avec de tels brûleurs.

Chaudière à gaz pour saunas et bains: types d'équipements pour organiser le chauffage au gaz

Eh bien, si vous êtes sûr que votre ventilation est bonne, le tirage fonctionnera correctement, alors le brûleur atmosphérique sera bon - il est silencieux, ne dépend pas de l'électricité.

Certes, cela dépend du mouvement de l'air dans la pièce elle-même - cela modifie les proportions du mélange de gaz et d'air. Le résultat est un chauffage inégal. Oui, et l'efficacité en souffre - beaucoup de chaleur pénètre dans le tuyau au sens littéral. De plus, la combustion du gaz est souvent incomplète.

suralimenté

Le deuxième type diffère considérablement du premier par sa conception. Le sens des différences est d'uniformiser la poussée.Pour cela, il vous faut un ventilateur, et donc de l'électricité.

Chaudière à gaz pour saunas et bains: types d'équipements pour organiser le chauffage au gaz

Comme dans un brûleur atmosphérique, dans un brûleur sous pression, le gaz doit d'abord être mélangé à de l'air. Le ventilateur est réglé pour que le rapport soit optimal. Lorsque cela est réalisé, la dépendance au mouvement de l'air dans le hammam disparaît, et avec elle les irrégularités dans la formation du mélange et sa combustion.

Il convient de mentionner tout de suite les avantages et les inconvénients des ventilateurs soufflants ou des ventilateurs (oui, ce sont aussi des options qui sont structurellement la même chose). Il est clair que la dépendance à l'électricité est difficile à attribuer à des avantages.

IMPORTANT! Si quelqu'un a des problèmes d'électricité, il est préférable de sécuriser le ventilateur du four à gaz avec une source d'alimentation de secours.

Le deuxième inconvénient, moins important, est le bruit. Le troisième est le coût, qui est 2 à 3 fois plus élevé que le coût d'un brûleur atmosphérique. Quant à ce dernier, il convient d'estimer la rapidité avec laquelle le choix sera payant, car le brûleur sous pression a un gros avantage : il est deux fois (!) Plus économique que l'atmosphérique.

De plus, les brûleurs à tirage forcé sont normalement installés dans les poêles à bois. Mais ici, c'est au propriétaire de décider, car le passage d'un poêle à bois au gaz peut réduire considérablement sa durée de vie en raison de l'épuisement du métal.

Lire aussi :  Comment choisir une chaudière de chauffage à granulés de combustible solide

Parmi les avantages, une dernière chose mérite d'être mentionnée : la possibilité de régler la puissance.

Les brûleurs sous pression fonctionnent aussi bien au gaz principal qu'au gaz liquéfié. Dans le même temps, la transition d'un type à l'autre est assez simple.

Vidéo

Pour mieux comprendre le sujet, regardez la vidéo, qui montre clairement le fonctionnement d'un brûleur à tirage forcé installé dans un poêle de sauna en métal.

Comme vous pouvez le constater, tout n'est pas si simple avec une cuisinière à gaz, comme le disent les vendeurs. Par conséquent, il convient de comparer les avantages de tous les types de fours existants.

Choix

En quoi les cuisinières à gaz conçues pour un bain peuvent-elles différer?

des pierres

Le poêle traditionnel pour un bain russe - un radiateur - se distingue par un grand nombre de pierres arrondies posées dans une palette. La palette est située au-dessus du four et après avoir allumé le four, elle chauffe assez rapidement; les pierres sont chauffées à une température de 200 degrés ou plus.

Ils remplissent une double fonction :

  1. En accumulant de la chaleur, les pierres maintiennent une température élevée dans le hammam après l'épuisement du bois de chauffage.
  2. Le nom même de "hammam" implique la présence de vapeur. Le régime traditionnel pour un bain russe est de 60 degrés avec une humidité très élevée. Pour donner de la vapeur, il suffit de projeter de l'eau d'un seau sur les pierres.

Chauffage au gaz Ermak.

Si vous êtes fan du bain russe, le radiateur est votre choix évident. Si vous souhaitez utiliser un sauna caractérisé par une température élevée avec une humidité minimale, les pierres ne sont pas nécessaires. Le stockage de la chaleur dans le cas du gaz, vous comprenez, n'a aucune valeur.

Emplacement du réservoir d'eau

Il peut être situé dans le corps de la fournaise ou encercler la cheminée. Dans le premier cas, la source de chaleur pour chauffer l'eau est la flamme du brûleur, dans le second cas, les produits de combustion. De l'humble avis de l'auteur, la deuxième option est préférable: le réservoir refroidit en outre les produits de combustion, augmentant ainsi l'efficacité de l'appareil.

Poêles à gaz

Si vous utilisez du gaz en bouteille, un four combinant deux types de combustible est une excellente solution pour vous. Lorsque le réservoir est épuisé, vous pouvez allumer du bois dans le poêle.

Brûleur

Souvent, il est acheté séparément.

À quoi faut-il faire attention lors de l'achat ?

  • Avec un volume de hammam de 18 m3, une consommation maximale raisonnable de gaz par le brûleur est de 1,5 m3 par heure. Il est facile de recalculer les performances requises pour votre volume.
  • Le certificat d'immatriculation et le marquage doivent être présents. L'arrêt automatique lorsque la flamme s'éteint est obligatoire (en fait, maintenant c'est presque partout).
  • Tout dommage, même extérieurement non critique, met fin à l'appareil. Gros et gras. Il s'agit de la vie et de la santé des gens.

Brûleur domestique Teplofor.

Four à tôle

Four à tôle

Considérez une autre version du poêle pour un bain - un radiateur en métal ouvert doublé de briques.

Étape 1. Préparer tout ce dont vous avez besoin

La plupart des consommables peuvent être achetés dans une quincaillerie, mais les composants du foyer ne sont vendus que dans des points de vente spécialisés. Donc, dans le travail dont vous avez besoin:

  • tôle d'acier (5 mm) pour les murs de la structure ;
  • acier (10 mm) pour le fond - il devrait être plus épais, car la partie inférieure de la chaudière est généralement plus exposée aux températures élevées;
  • éléments d'usine de la chaudière (portes, robinets, réservoir, etc.);
  • tiges de renforcement ø3 mm - un treillis pour les pierres en sera construit;
  • canaux ;
  • Étain de 1,5 mm d'épaisseur pour la fabrication d'une cheminée (plus précisément sa partie inférieure);
  • amiante pour le haut du tuyau.

Étape 2. Assemblage de la structure

Poêles Kamenka avec réservoir d'eau intégré: a - poêle à simple paroi; b - un appareil de chauffage avec une paroi latérale en forme de réservoir d'eau; c - un radiateur avec des réservoirs d'eau et une lame d'air dans le mur

Étape 1. Tout d'abord, un dessin de la future chaudière est créé - il s'agit d'une étape de travail très importante et obligatoire.Le dessin doit contenir: une vue de dessus, de côté et en coupe de la structure, les principaux paramètres de tous les éléments séparément (en millimètres), des croquis des nœuds les plus importants, etc.

Pour ce faire, vous devez comprendre clairement le principe de fonctionnement de la chaudière, ses propres termes spéciaux et le "langage" du schéma.

Marquage d'une tôleSoudage de la caisse à partir de tôles découpées selon le marquageSoudage de la caisseSoudage de la caisse

Étape 2. Achetez tout ce dont vous avez besoin (cela a été décrit dans la section précédente).

Étape 3. Le métal est coupé. Une boîte à paroi épaisse est formée de tôle d'acier, qui servira de corps à la chaudière.

Étape 4. Les tôles découpées sont soudées. Pour ce faire, vous devez être un soudeur professionnel ou en embaucher un (moyennant des frais appropriés), car les soudures doivent être parfaites.

Nous soudons une section de tuyau dans le corps du four Nous soudons une section de tuyau dans le corps du four Nous formons un réservoir d'eau. Nous découpons un trou pour la cheminée dans la chambre de combustion Réservoir d'eau et cheminée avec une vanne Nous équipons la fournaise d'une porte de four Nous soudons un tuyau à la chaudière à l'arrière pour connecter le robinet

Étape 5. Un écran de briques est en cours de construction. Il est nécessaire d'atténuer les effets des températures élevées, dont la source sera une structure métallique. Une sorte de boîte en brique est en cours de construction avec des trous de ventilation autour du périmètre (comme dans la version précédente).

Un exemple de revêtement d'un poêle dans un bain avec des briques Un exemple de revêtement d'un poêle dans un bain avec des briques

Conclusions et vidéo utile sur le sujet

Tous les détails les plus intéressants sur les radiateurs électriques pour saunas et hammams domestiques.

Comment poser correctement des pierres dans un bain électrique et un poêle de sauna - précieux conseils d'un utilisateur expérimenté.

Ce qu'il faut rechercher lors du choix d'un poêle de sauna domestique.

L'installation d'un radiateur électrique dans un sauna ou un bain domestique augmente le niveau de confort de votre maison et vous permet de profiter de traitements à la vapeur à tout moment. Vous pouvez placer l'appareil sur le sol ou sur le mur.

Pour une installation correcte, il n'est pas nécessaire d'inviter un spécialiste spécialisé. Le propriétaire de la maison peut facilement faire face à la tâche. L'essentiel est de tout faire sans hâte et de respecter strictement les règles de sécurité incendie en vigueur et les instructions du fabricant lors du processus d'installation. Ainsi, certains modèles proposent, lors du raccordement, l'installation d'un RCD et d'un automate sur une ligne affectée à un radiateur électrique. Et d'autres interdisent catégoriquement l'installation d'un RCD, auquel cas vous pouvez installer un difavtomat.

Vous choisissez une fournaise électrique, mais avez-vous un certain nombre de problèmes que nous n'avons pas abordés dans ce document ? N'hésitez pas à demander conseil à d'autres utilisateurs ou à nos experts - posez vos questions dans la section des commentaires.

Si vous utilisez un radiateur électrique, rendez-vous dans les commentaires et racontez votre expérience aux débutants, ajoutez une photo montrant le modèle de votre poêle, partagez vos impressions d'utilisation.

Évaluation
Site sur la plomberie

Nous vous conseillons de lire

Où remplir la poudre dans la machine à laver et combien de poudre verser