- Règles d'emplacement de l'appareil : choisissez un emplacement pour l'installation
- Dans la chambre
- Pour la cuisine
- Dans la chambre des enfants
- Dans le salon
- Ordre d'installation
- Equipement interne
- module extérieur
- Installation en coin du climatiseur
- Démarrage du système
- entrée de fréon
- Pompe à vide
- Conclusion
- Comment installer un climatiseur: installation d'unités extérieures et intérieures
- La deuxième étape de l'installation d'un climatiseur de vos propres mains: blocs de connexion
- Comment connecter un climatiseur: connecter des tuyaux en cuivre
- Comment faire soi-même son ménage : entretien de la climatisation à la maison
- Efficacité du climatiseur
- 1 Le principe de fonctionnement de l'unité
- Combien de temps pour passer l'aspirateur ?
- Blocs de connexion
- Drainage
- Système de circulation de fréon
- roulant
- Connexion portuaire
- Vue d'ensemble de la conception de l'unité extérieure avant de connecter le climatiseur: schéma et structure
- Raccordement du climatiseur au secteur
- Emplacement de plusieurs climatiseurs dans les pièces principales
- Procédure d'installation du climatiseur
- Installation de systèmes SPLIT
Règles d'emplacement de l'appareil : choisissez un emplacement pour l'installation
Avant d'installer un système split dans un appartement, vous devez vous familiariser avec les caractéristiques de son emplacement. Cela aidera à ne pas gâcher la façade de l'immeuble et à placer le climatiseur dans un endroit approprié.
Dans la chambre
Les personnes qui vivent dans un appartement d'une pièce installent souvent des systèmes dans la chambre à coucher. Lors du choix d'un lieu approprié, plusieurs règles sont prises en compte:
- Il est impossible que de l'air froid pénètre dans un lieu de couchage ou un espace de travail, car cela peut provoquer un rhume.
- Il n'est pas recommandé d'installer un système divisé au-dessus du téléviseur et d'autres appareils électroniques.
- Le climatiseur doit être situé à une distance de 10 à 15 centimètres du plafond.
- Il est contre-indiqué de placer des appareils au-dessus des batteries et derrière des rideaux qui entravent la sortie d'air froid.
Pour la cuisine
Certaines personnes ne savent pas où installer le climatiseur dans la cuisine. Il est recommandé de le placer de manière à ce qu'il ne soit pas au-dessus de la cuisinière à gaz et de la table à manger. Certains experts conseillent de le placer au-dessus de la fenêtre. Dans ce cas, il est préférable d'utiliser des modèles compacts qui ne prennent pas beaucoup d'espace libre.

Dans la chambre des enfants
Il est déconseillé d'installer un tel appareil dans une crèche, car les enfants sont sensibles au froid et s'enrhument rapidement. Cependant, de nombreux parents, en raison de la chaleur intense de l'été, installent encore des systèmes de refroidissement par air dans la crèche. Les experts recommandent d'acheter des modèles mobiles pouvant être installés n'importe où dans la pièce. Ils doivent être placés de manière à ce que l'air froid ne pénètre pas dans le berceau.
Dans le salon
Le salon est considéré comme la plus grande pièce de l'appartement et il est donc plus facile d'y placer un climatiseur. Il est installé dans le coin le plus éloigné du canapé, des fauteuils et des autres endroits où les gens s'assoient souvent.
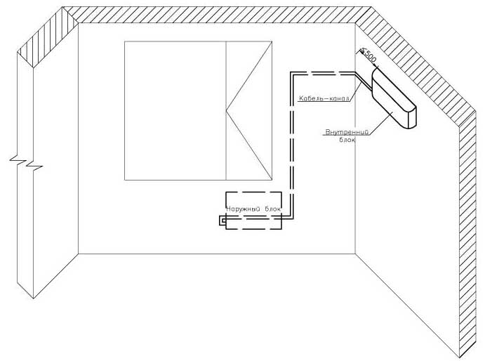
Ordre d'installation
Afin d'installer correctement et efficacement un système divisé de vos propres mains, vous devez le faire dans cet ordre:
- vous devez d'abord installer l'équipement interne;
- puis préparer les canaux de communication ;
- poser des lignes de connexion dans les canaux ;
- installer une unité extérieure ;
- raccorder les blocs aux réseaux électriques et gaziers ;
- évacuer le système et vérifier son étanchéité ;
- remplissez le système de réfrigérant (fréon).


Equipement interne
L'unité intérieure est fixée au mur à l'aide du cadre en acier fourni. Habituellement, il y a un dessin dans les instructions, qui indique l'emplacement des trous sur la surface d'appui du mur. Mais il est plus facile de prendre le cadre lui-même et de marquer les points de fixation au mur le long de celui-ci.
Prenez le cadre de montage et placez-le sur le mur où vous prévoyez de monter l'unité intérieure. Utilisez un niveau à bulle pour vous assurer que le cadre est de niveau. Si le cadre est incliné vers la gauche ou la droite, l'humidité à l'intérieur du climatiseur peut s'accumuler à une extrémité et ne pas atteindre le tuyau d'évacuation des condensats.
Après vous être assuré que le cadre est horizontal, en l'utilisant comme gabarit, faites des marques sur le mur. À l'aide d'un perforateur, faites des trous dans le mur du diamètre requis en utilisant les marques. Fixez le cadre de support au mur avec des chevilles, des vis ou des vis.

Une fois le cadre porteur fixé, il est nécessaire de préparer les canaux à travers lesquels passeront les lignes de connexion. Tout d'abord, marquez une ligne sur le mur le long de laquelle les communications doivent passer. Entre autres choses, il y aura un tube de drainage. Pour que l'eau coule librement dans la rue, la ligne des autoroutes doit avoir une légère pente, qui est vérifiée par le niveau du bâtiment.
Vous pouvez approfondir les lignes dans le mur. Pour ce faire, à l'aide d'une rainureuse murale, vous devrez réaliser des canaux de 35 à 40 mm de profondeur et de 50 à 75 mm de large.C'est mauvais car si vous devez réparer le climatiseur, vous devrez ruiner le mur.
Il est plus facile de poser des lignes dans une boîte en plastique. Un canal de câble standard avec une section de 60x80 mm est bien adapté. Les boîtes en plastique sont fixées au mur avec des vis ou des chevilles. Parfois, les canaux de câbles sont fixés au béton avec un adhésif de construction, mais cela ne convient pas à l'installation de systèmes de climatisation. Le fait est que les lignes de cuivre et les fils électriques sont assez lourds.
module extérieur
Il est assez difficile d'installer soi-même la partie externe du système split. Le module extérieur a un poids important et des dimensions importantes. La chose est compliquée par le fait que les travaux devront être effectués à l'extérieur des locaux, de plus, à une hauteur considérable.
Tout d'abord, préparez un trou pour le montage supérieur de l'un des supports. Fixez le haut du support et, après l'avoir installé strictement verticalement, marquez l'emplacement de la fixation inférieure. Une fois qu'un support est fixé, vous pouvez marquer l'emplacement du second.


A l'aide du niveau du bâtiment, tracez un repère sur le mur pour que la deuxième équerre soit à la bonne distance de la première, strictement au même niveau. Attachez-le de la même manière que vous avez attaché le premier.
Le plus difficile est d'installer le module extérieur sur les supports. Du fait qu'il y a un compresseur à l'intérieur, le module extérieur peut peser jusqu'à 20 kg. Au cas où, attachez le module avec du ruban adhésif solide ou une corde et ne retirez pas cette assurance avant d'avoir complètement fixé le module aux supports.


Installation en coin du climatiseur
Vous pouvez installer le climatiseur dans le coin de la pièce où une autre méthode est tout simplement impossible en raison des caractéristiques architecturales ou de la taille de la pièce.Certains fabricants proposent des modèles d'angle de systèmes divisés au design très attrayant et aux dimensions compactes. Mais c'est l'emplacement le moins souhaitable du climatiseur dans la cuisine ou la pièce, car dans tous les cas, l'uniformité de la distribution en souffrira et la formation de différentes zones de température ne pourra être évitée.
Dans le même temps, la question se pose parfois de savoir où placer le climatiseur dans la pièce, s'il y a une ouverture de 70 cm de large entre le cadre de la fenêtre et le mur, et qu'il n'y a pas d'autre endroit à choisir. Dans ce cas, le montage en angle est justifié. Lorsque le propriétaire choisit cette option, l'emplacement de la porte doit être pris en compte - vous ne pouvez pas accrocher l'appareil devant lui, car l'air ira dans une autre pièce.
Démarrage du système
Après avoir terminé tous les travaux de commutation, passez au lancement. Le système doit être préparé en éliminant tout l'air, l'azote et l'humidité qu'il contient. Ils pénètrent dans les canalisations lors de leur installation. Si le système n'est pas nettoyé des gaz étrangers, la charge sur le compresseur augmentera et sa durée de vie diminuera.
L'humidité a également un effet négatif sur les performances du système. La composition du fréon pompé dans le climatiseur contient des huiles. Il est conçu pour lubrifier les éléments internes du système. Étant donné que l'huile a une structure hygroscopique, elle perdra son efficacité lorsqu'elle sera mélangée à de l'eau. Cela entraînera à son tour une usure prématurée des éléments du système.
Il devient clair que cette opération est nécessaire. Le système démarrera, bien sûr, mais pour une courte période. L'élimination de l'air et des autres corps étrangers s'effectue de deux manières :
- l'entrée de fréon dans le système ;
- pompe à vide.
La première méthode peut être réalisée grâce à une petite alimentation supplémentaire de fréon pompée dans l'unité intérieure.Il ne convient que pour les sentiers ne dépassant pas 6 mètres. C'est pourquoi une pompe à vide est nécessaire pour des communications plus longues. Si vous soufflez un long système hors de l'unité intérieure, il ne restera plus de fréon pour son fonctionnement.
Vanne de régulation en bas du bloc
entrée de fréon
Avant de commencer l'opération sur l'unité extérieure, les bouchons et les couvercles des vannes sont dévissés. Ensuite, la vanne de l'unité intérieure sur le tuyau de plus grand diamètre s'ouvre pendant 1 seconde. Ceci est fait en fonction de la conception de la vanne. Généralement, une clé hexagonale est utilisée.
Après avoir fourni du fréon dans le système et créé une surpression, il est nécessaire de le soulager. Cela se fait à l'aide d'une bobine sur le même tuyau, en pinçant avec un doigt. Dans le même temps, vous devez laisser une petite quantité de fréon dans le système afin que l'air frais n'y pénètre pas. Cette procédure est répétée plusieurs fois.
Une fois terminé, un bouchon est vissé sur la bobine et les vannes des deux canalisations sont complètement ouvertes. Pour vérifier la qualité des joints, vous pouvez les enduire de mousse de savon.
Pompe à vide
Cette procédure nécessite non seulement une pompe à vide, mais également un tuyau haute pression. Vous aurez également besoin de deux manomètres - pour la basse pression et la haute pression.
Le tuyau est connecté à la bobine de la canalisation épaisse. Dans ce cas, les deux vannes doivent être fermées. Après avoir commuté la pompe à vide sur le système, elle est allumée et laissée fonctionner pendant 15 à 30 minutes. Ce temps est tout à fait suffisant pour pomper l'air et les autres impuretés des pipelines.
Pompe à vide avec manomètre
Après avoir éteint la pompe, celle-ci doit être laissée connectée à la canalisation avec la vanne fermée.Dans cette position, le système doit rester debout pendant environ 30 minutes. Pendant cette période, des indicateurs de pression sont surveillés. Si toutes les connexions sont serrées, les flèches de l'instrument doivent rester en place.
Si les lectures commencent à changer - quelque part une étanchéité de mauvaise qualité. En règle générale, ce sont les endroits où les tuyaux sont connectés aux blocs. Leur broche supplémentaire élimine le problème. Si cela n'aide pas, la fuite est détectée avec de la mousse de savon.
Contrôle de la pression du système
Si l'étanchéité complète du système est confirmée, en laissant la pompe connectée, la vanne sur la canalisation épaisse s'ouvre. Une fois que les sons caractéristiques se sont estompés, indiquant que les tuyaux sont remplis de fréon, le tuyau de la pompe est dévissé. Il est préférable de le faire avec des gants pour ne pas avoir de gelures à cause des résidus de fréon. Vous pouvez maintenant ouvrir la vanne sur la fine canalisation. Tout est prêt - le système peut être allumé.
Dans la vidéo, voyez comment s'effectue l'évacuation du nez:
Conclusion
En conclusion, je voudrais noter que l'installation et le lancement des climatiseurs et des systèmes split est une entreprise assez compliquée. Il est nécessaire d'avoir les compétences des travaux de construction et d'installation, de comprendre la documentation technique et les matériaux. C'est pourquoi, dans la plupart des cas, des spécialistes sont impliqués dans de tels travaux.
De plus, certains grands systèmes divisés ne sont installés que par des représentants de l'usine du fabricant. Sinon, la garantie de service sera annulée.
Nous notons également que le lancement de systèmes de climatisation utilisant des pompes à vide est effectué en Russie et dans les pays voisins. Dans la pratique mondiale, ils ne sont pas utilisés. Par exemple, le même Israël où les climatiseurs ne sont pas éteints toute l'année. Pourquoi cela est fait est une question pour les experts étrangers.
La source
Comment installer un climatiseur: installation d'unités extérieures et intérieures
Vous devez d'abord déterminer les endroits où seront placés les blocs, la piste et les autres éléments de l'équipement climatique. Pour ce faire, vous devez parcourir tout le parcours avec un appareil conçu pour détecter le câblage et appliquer des marquages préliminaires.
Après cela, une plaque est fixée au mur pour fixer l'unité intérieure. Cet élément est placé strictement en position horizontale, par conséquent, en cours de travail, il est impératif d'utiliser le niveau du bâtiment.
Le choix des supports pour le montage des unités extérieures doit être abordé de manière très responsable.
Comment installer l'unité intérieure :
La plaque est appliquée au mur, nivelée et les endroits où les fixations seront placées sont marqués.
La plaque est retirée et des trous sont percés aux points marqués avec une perceuse.
Les fixations sont installées. Dans les maisons en bois, vous pouvez utiliser des vis autotaraudeuses ; pour les bâtiments en béton et en brique, il est préférable de prendre des chevilles.
La plaque est mise en place et solidement fixée
Une attention particulière doit être accordée aux loquets qui maintiennent l'unité au fond.
Il ne reste plus qu'à vérifier l'horizontalité de la plaque et à y fixer l'évaporateur.
Ensuite, vous devez installer le climatiseur de vos propres mains de l'extérieur. Pour ce faire, en tenant compte des normes, des marquages sont appliqués, conformément à celles-ci, des coins ou des supports métalliques sont installés. Des boulons d'ancrage en acier inoxydable de 10x1 cm peuvent être utilisés comme fixations.Le choix des supports doit être abordé de manière très responsable. Ces éléments doivent non seulement supporter le poids de l'unité extérieure, mais également faire face aux charges de vent et de neige.
Après s'être assuré que les supports sont installés uniformément, l'unité extérieure y est fixée à l'aide de boulons. Le compresseur dans la zone d'installation doit être abaissé très soigneusement, après l'avoir préalablement attaché avec des cordes. À l'endroit où les communications traverseront le mur, un trou traversant de la taille requise est fait avec un perforateur.
N'installez pas le climatiseur près du plafond ou des parois latérales
La deuxième étape de l'installation d'un climatiseur de vos propres mains: blocs de connexion
Pour connecter les unités extérieure et intérieure, un câble et des tuyaux en cuivre de deux diamètres sont utilisés. Les dimensions des éléments de connexion sont généralement indiquées dans les instructions fournies avec le système de séparation. La longueur est calculée en tenant compte du placement des blocs. Ajouter 30 cm à la valeur obtenue.
Traitement des tubes en cuivre :
- une coupe de la longueur requise est faite à partir de la baie;
- les bords sont redressés et toutes les bavures sont éliminées;
- des bouchons et des bouchons sont installés aux extrémités;
- une isolation thermique est mise en place.
Après cela, les tuyaux doivent être sortis à travers le trou dans le mur et pliés aux bons endroits à l'aide d'une cintreuse. Des cosses à sertir sont installées sur le câble des deux côtés, après quoi il est inséré dans le trou et connecté conformément aux instructions.
Lors de l'installation d'un système divisé, le tube de drainage est connecté à l'unité intérieure de vos propres mains (une sortie spéciale est prévue à cet effet) et ressort à une distance d'environ 80 cm du mur.Pour éviter l'affaissement, il doit être fixé à chaque mètre. Avant de déposer les communications dans une boîte en plastique, elles doivent être liées en un faisceau à l'aide de ruban métallisé ou d'attaches.
L'unité extérieure est installée en premier, puis le système est monté à l'intérieur
Comment connecter un climatiseur: connecter des tuyaux en cuivre
Tout d'abord, les tuyaux sont connectés à l'unité intérieure. Sur sa paroi latérale, il y a deux ports avec des raccords de diamètres différents. D'eux, vous devez tordre les noix. À la suite de cela, un sifflement apparaîtra, indiquant que l'azote, qui a été pompé par le fabricant, sort du bloc. Il est nécessaire de protéger les pièces internes des processus oxydatifs.
Ensuite, retirez les bouchons des tubes et vérifiez à nouveau leurs bords pour détecter les défauts. La surface doit être plane. Après cela, des écrous-raccords peuvent être mis sur les tuyaux.
Ensuite, les bords des tubes doivent être évasés. Lors de l'exécution de cette procédure, vous devez tenir le produit avec le trou vers le bas afin que la poussière et les petits copeaux ne pénètrent pas à l'intérieur. Le tube est serré dans le support de sorte qu'il reste 2 mm à l'extérieur. Ensuite, le rouleau est installé, la vis est serrée. Ceci est fait jusqu'à ce que le cylindre cesse de descendre. En conséquence, une "jupe" se forme sur le produit.
Le tube est relié à la sortie de l'unité intérieure par un bord évasé. Un écrou-raccord est utilisé comme élément de liaison, qui est serré avec une clé. Il n'est pas nécessaire d'utiliser des matériaux d'étanchéité. Les tubes sont raccordés à l'unité extérieure de la même manière.
Les tuyaux en cuivre sont connectés à l'unité intérieure du climatiseur
Comment faire soi-même son ménage : entretien de la climatisation à la maison
Pour réaliser des économies, de nombreux propriétaires d'appartements ont recours à l'auto-entretien des équipements climatiques après avoir installé le climatiseur de leurs propres mains. Les vidéos du réseau contiennent de nombreuses informations utiles sur ce problème, il n'y a donc pas de problèmes particuliers.
La méthode de nettoyage la plus simple est le rinçage à la mousse.Pour cela, un détergent spécial est utilisé, qui est vendu sous forme de bombe aérosol.
La procédure de nettoyage du split system avec de la mousse :
- Débranchez le climatiseur du secteur, ouvrez son couvercle et retirez les filtres.
- Rincer les filtres sous l'eau courante et laisser sécher.
- Traitez les ailettes de l'évaporateur avec de la mousse provenant d'un bidon et attendez le temps indiqué dans les instructions du fabricant (10-30 minutes).
- Réinstallez les filtres et allumez le climatiseur en le réglant en mode ventilation ou chauffage (le choix du mode dépend des recommandations du fabricant de mousse).
- Après 30 min. le climatiseur peut être éteint et la pièce ventilée.

La méthode la plus courante pour nettoyer le climatiseur est le rinçage à la mousse.
Sur la vidéo "Comment nettoyer un système divisé à la maison", ce processus peut être trouvé plus en détail. Cette méthode convient pour éliminer les impuretés de l'échangeur de chaleur. Pour nettoyer le bac de vidange, le ventilateur et les zones cachées du climatiseur, vous devrez le démonter.
Efficacité du climatiseur
L'efficacité de l'équipement et la quantité d'électricité dépensée dépendent des conditions de fonctionnement spécifiques.
Condition un. Supposons qu'un appareil de chauffage soit installé à côté du climatiseur. Puis le compresseur :
- fonctionnera presque continuellement;
- consommera beaucoup d'énergie;
- sera bientôt en panne.
Condition deux. La poussière ordinaire qui a pénétré dans le système peut réduire les performances du climatiseur et même le désactiver. Vous devez donc effectuer régulièrement et soigneusement un nettoyage humide.
Condition trois.Il est interdit de mettre des objets sur la surface du bloc.
Condition quatre. Ne couvrez pas le climatiseur.
Condition cinq. L'évaporation du réfrigérant peut être éliminée si, lors de l'installation du système, scellez soigneusement tous les joints et joints.
Condition six. L'unité extérieure doit être plus basse que l'unité intérieure. Pour son installation, il est nécessaire de choisir la zone la plus froide du côté extérieur du mur. Par exemple, un débord de toit peut former une ombre éternelle.
Si toutes les conditions ci-dessus pour l'installation du climatiseur sont respectées, le système fonctionnera sans problème, créant le confort souhaité dans les locaux.
1 Le principe de fonctionnement de l'unité
Tous les modèles de systèmes split proposés à la vente sont construits et fonctionnent selon le même principe. Ils se composent d'un compresseur et d'un évaporateur. Pour les connecter, des tuyaux spéciaux sont utilisés. L'unité extérieure est montée à l'extérieur du mur.
Appareil unitaire
Un évaporateur est installé à l'intérieur de la chambre. Les modèles plus productifs et coûteux sont équipés de plusieurs unités intérieures avec un compresseur commun.
Le principe de fonctionnement du climatiseur à la maison:
- 1. Le réfrigérant haute pression (fréon) est fourni par une buse dont le diamètre correspond aux tuyaux de sortie.
- 2. Il va à l'intérieur de l'évaporateur, où il se dilate progressivement et, après un certain temps, il bout complètement. La vapeur générée absorbe activement la chaleur.
- 3. Lors du processus d'absorption, le condensat est certainement libéré sous forme d'eau, qui se dépose à la surface du radiateur.
- 4. L'humidité est transférée dans le réservoir, puis évacuée à l'extérieur des murs de la maison.
Si l'installation du climatiseur est effectuée de manière professionnelle et correcte, le compresseur pompera constamment les vapeurs de fréon de la chambre interne, tandis que la pression interne augmentera en parallèle. En conséquence, le réfrigérant se réchauffe, ce qui contribue à sa transformation en un brouillard dense.
Le réfrigérant est redirigé vers la chambre de condensation, où il est refroidi par un ventilateur intégré, se transformant en liquide. Dans cet état, il est envoyé à l'évaporateur (par la buse) et tout se ferme en cercle.
Même la poussière ordinaire peut entraîner la rupture de l'unité climatique. Le nettoyage humide est non seulement nécessaire, mais également prescrit et minutieux, régulier et minutieux. A l'intérieur, il est strictement interdit de poser des produits ou objets sur l'appareil lui-même. Il est également impossible de le recouvrir d'une nappe.
Plan de travail
L'installation à faire soi-même d'un climatiseur implique nécessairement de sceller tous les éléments de raccordement et les joints, ce qui éliminera le risque d'évaporation du réfrigérant. Les experts recommandent de placer l'unité extérieure de manière à ce qu'elle soit plus basse que l'unité intérieure. L'installation standard du climatiseur implique l'emplacement de l'unité extérieure dans un endroit frais, à l'ombre.
Nous vous recommandons de regarder une vidéo visuelle sur le fonctionnement du climatiseur.
Combien de temps pour passer l'aspirateur ?
La durée du processus dépend des capacités de l'équipement de vide. Un indicateur du degré d'aspiration est la puissance de l'équipement, les aspirateurs à un étage sont moins puissants, adaptés aux systèmes split correspondants. L'acte de scellement peut durer environ 30 minutes.
La pompe à deux étages est un équipement plus puissant, elle peut atteindre le vide même en une minute.Les 15 à 20 minutes suivantes sont nécessaires pour vérifier l'étanchéité du système.
Vous pouvez surveiller le niveau de pression à l'aide d'un collecteur monométrique ou d'une unité de vide. Des indicateurs plus précis de l'étanchéité du circuit sont obtenus par sertissage haute pression (40 bar).
Blocs de connexion
Ici, en général, il n'y a pas de secrets particuliers. Les communications tendues à travers le trou dans le mur sont connectées aux connecteurs appropriés. La connexion du câble ne pose aucun problème - connectez les fils de la même couleur aux bornes qui leur sont déjà connectées. Dans ce cas, vous ne pouvez pas vraiment vous tromper.
Si la différence de hauteur dans l'installation des blocs dépasse 5 mètres, il est nécessaire de faire une boucle pour récupérer l'huile (nous posons ainsi des tuyaux en cuivre) dissoute dans le fréon. Si le drop est plus faible, on ne fait pas de boucles.
Pose du chemin entre l'unité intérieure et l'unité extérieure du système split
Drainage
Il existe deux façons de détourner le drainage du système divisé - dans les égouts ou juste à l'extérieur, par la fenêtre. La deuxième méthode est plus courante chez nous, bien qu'elle ne soit pas très correcte.
C'est la sortie de vidange de l'unité intérieure (pratique)
Le raccordement du tuyau de vidange est également facile. Un tuyau ondulé est facilement tiré sur la sortie du système de drainage de l'unité intérieure (un tube avec un embout en plastique au bas de l'unité). Pour le maintenir en sécurité, vous pouvez serrer la connexion avec une pince.
Il en va de même pour le drainage de l'unité extérieure. Sortez-le en bas. Souvent, ils laissent tout tel quel et l'eau s'égoutte, mais il est probablement préférable de mettre également un tuyau de drainage et d'évacuer l'humidité des murs.
Vidange de l'unité extérieure
Si ce n'est pas un tuyau flexible qui est utilisé, mais un tuyau en polymère, il faudra sélectionner un adaptateur qui vous permettra de connecter la sortie du climatiseur et le tube.Il faudra surveiller sur place, car les situations sont différentes.
Lors de la pose d'un tuyau de drainage, il est préférable d'éviter les virages serrés et certainement de ne pas permettre l'affaissement - la condensation s'accumulera à ces endroits, ce qui n'est pas bon du tout. Comme cela a été dit plus d'une fois, le tube est disposé avec une pente. Optimal - 3 mm par mètre, minimum - 1 mm par mètre. Tout au long, il est fixé au mur, au moins tous les mètres.
Système de circulation de fréon
Il est un peu plus difficile de raccorder des tuyaux en cuivre. Ils sont soigneusement disposés le long des murs, en évitant les plis et les plis. Pour le cintrage, il est préférable d'utiliser une cintreuse, mais vous pouvez vous débrouiller avec une cintreuse à ressort. Dans ce cas, les virages serrés doivent également être évités, mais afin de ne pas plier les tubes.
Les ports de l'unité extérieure ressemblent à ceci. Idem à l'intérieur.
Dès le début, nous connectons les tubes dans l'unité intérieure. Sur celui-ci, nous tordons les écrous des ports. Lorsque les écrous se desserrent, un sifflement se fait entendre. C'est de l'azote qui sort. C'est normal - de l'azote est pompé à l'usine afin que l'intérieur ne s'oxyde pas. Lorsque le sifflement s'arrête, retirez les bouchons, retirez l'écrou, placez-le sur le tube, puis commencez à rouler.
roulant
Tout d'abord, retirez les bouchons des tuyaux et vérifiez le bord. Il doit être lisse, rond, sans bavures. Si la section n'est pas ronde lors de la coupe, utilisez un calibrateur. Il s'agit d'un petit appareil que l'on peut trouver dans le magasin du front. Il est inséré dans le tuyau, défilé, alignant la section.
Les bords des tubes sont soigneusement alignés sur 5 cm, après quoi les bords sont évasés afin de pouvoir être connectés à l'entrée / sortie des blocs, créant un système fermé. La bonne exécution de cette partie de l'installation est très importante, car le système de circulation du fréon doit être étanche.Ensuite, le ravitaillement en carburant du climatiseur ne sera plus nécessaire de sitôt.
Tuyaux en cuivre expansibles pour installation de climatisation
Lors de l'évasement, maintenez le tuyau avec le trou vers le bas. Encore une fois, pour que les particules de cuivre ne pénètrent pas à l'intérieur, mais se répandent sur le sol. Dans le support, il est serré de sorte qu'il dépasse de 2 mm vers l'extérieur. C'est vrai, ni plus, ni moins. Nous serrons le tube, posons le cône évasé, le tordons en appliquant des efforts solides (le tube est à paroi épaisse). L'évasement est terminé lorsque le cône n'avance plus. On réitère l'opération de l'autre côté, puis avec l'autre tube.
C'est ce que le résultat devrait être
Si vous n'avez jamais roulé de tuyaux auparavant, il est préférable de s'entraîner sur des pièces inutiles. Le bord doit être lisse, avec une bordure continue claire.
Connexion portuaire
Nous connectons le bord évasé du tuyau à la sortie correspondante, serrons l'écrou. Aucun joint, produit d'étanchéité, etc. supplémentaire ne doit être utilisé (interdit). Pour cela, ils utilisent des tubes spéciaux en cuivre de haute qualité, de sorte qu'ils assurent l'étanchéité sans fonds supplémentaires.
Principe de connexion du tube en cuivre avec le port du climatiseur
Vous devez faire un effort sérieux - environ 60 à 70 kg. Seulement dans ce cas, le cuivre s'aplatira, serrera le raccord, la connexion deviendra presque monolithique et scellée avec précision.
La même opération est répétée avec les quatre sorties.
Vue d'ensemble de la conception de l'unité extérieure avant de connecter le climatiseur: schéma et structure
Lors de l'installation d'un climatiseur de vos propres mains, il sera utile de vous familiariser avec sa structure. Cela permettra d'éviter les erreurs dans le processus de travail et de mieux maîtriser la technologie.
La conception de l'unité extérieure comprend les composants suivants :
- ventilateur
- compresseur;
- condenseur;
- vanne à quatre voies ;
- filtre;
- tableaux de contrôle;

Pour installer un climatiseur de vos propres mains, vous devez vous familiariser avec sa structure
- connexions de type union ;
- housse de protection avec conception à dégagement rapide.
Le ventilateur génère des courants d'air qui soufflent autour du condenseur. Dans celui-ci, le fréon est soumis à un refroidissement et sa condensation se produit. L'air qui est soufflé à travers ce radiateur, au contraire, se réchauffe. La fonction principale du compresseur est de comprimer le fréon et de le maintenir en mouvement à l'intérieur du circuit de réfrigération.
Il existe deux types de compresseurs :
- spirale;
- piston.
Les compresseurs à piston sont moins chers, mais moins fiables. Contrairement aux spirales, ils réagissent moins bien aux effets des basses températures pendant la saison froide. Lors de la connexion d'un climatiseur à onduleur, la carte de commande est généralement située dans l'unité extérieure. Si le modèle n'est pas un onduleur, tous les composants électroniques sont placés dans la partie du système split qui est installée à l'intérieur. Ceci est fait afin de protéger le tableau de commande de l'humidité et des températures extrêmes.

La conception de l'unité extérieure comprend les unités suivantes : compresseur, vanne, ventilateur
Les vannes à quatre voies se trouvent couramment dans les types de climatiseurs réversibles. De tels systèmes split fonctionnent en deux modes : « chaud » et « froid ». Lorsque le climatiseur est réglé sur chauffage, cette vanne modifie le sens du flux de réfrigérant. En conséquence, la fonctionnalité des blocs change: l'intérieur commence à chauffer la pièce et l'extérieur fonctionne pour le refroidissement.Les raccords union sont utilisés pour connecter les tuyaux en cuivre qui relient les unités intérieures et extérieures.
Le filtre du système fréon empêche les copeaux de cuivre et autres particules de pénétrer dans le compresseur. Lors du processus d'installation du climatiseur de vos propres mains, de petits débris sont générés. Le filtre piège les particules avant d'entrer dans le compresseur.
Le couvercle à dégagement rapide est conçu pour protéger le bornier destiné au raccordement des fils et aux raccords de montage. Dans certains modèles, il offre une protection partielle en ne recouvrant que le bornier.

Quel que soit le type de structure auquel appartient le système split, son module extérieur a toujours les mêmes unités de travail
Raccordement du climatiseur au secteur
Pour terminer avec l'unité intérieure, nous procédons au raccordement des câbles d'alimentation.
Après avoir ouvert le capot avant de l'unité intérieure, dévisser le bouchon en plastique pour connecter le câble.
Après avoir inséré le câble, connectez-le conformément au schéma électrique. Pour cela, recherchez les désignations sur le bornier :
Phase L
N-zéro
icône de la terre
Vérifiez sur le câble d'alimentation où vous avez la phase et le zéro et connectez les extrémités correspondantes à vos bornes.
Lors de la connexion d'un climatiseur de faible puissance (jusqu'à 2,5 kW) directement à partir d'une salle de contrôle sans prise, un câble à trois conducteurs VVGng-Ls 3 * 2,5 mm2 doit être posé dans votre stroboscope.
Une machine 16A est installée dans le bouclier.
Avec un conduit de faible puissance jusqu'à 1 kW, vous pouvez bien sûr utiliser une section transversale et 1,5 mm2 + 10A automatique, mais 2,5 mm2 est une option plus polyvalente et vous permettra de changer le système divisé pour plus de puissance sans problèmes dans le avenir.
Si le climatiseur doit être connecté via une prise existante, utilisez un fil avec une prise PVA 3 * 2,5 mm2.
Pour connecter les unités intérieures et extérieures les unes aux autres, il n'y a également rien de compliqué. Ici, en règle générale, un câble 4*2,5 mm2 ou 5*2,5 mm2 est utilisé. Les marquages des bornes sur ces blocs sont les mêmes.
En conséquence, vous jetez un câble entre eux (pas un fil PVS, mais un câble VVGng!) Et connectez les fils de la même couleur aux bornes L1 sur l'unité intérieure et L1 sur l'extérieur, N - sur l'intérieur et N - sur l'extérieur, etc. Suivez simplement le schéma de connexion et les étiquettes.
Parfois, le climatiseur lui-même dans la pièce est alimenté non pas par la prise, mais par l'unité extérieure (le plus souvent pour les modèles à onduleur). Dans ce cas, l'extérieur disposera de quelques bornes supplémentaires.
C'est la phase zéro-terre. Ensuite, le câble d'alimentation de la prise ou du diffuseur dans le tableau de distribution, posez-le à l'extérieur et non à l'unité intérieure.
La connexion des tubes de route de fréon de l'extérieur est similaire à la connexion de la pièce.
Emplacement de plusieurs climatiseurs dans les pièces principales
Cette option pour placer un "split" présente 3 avantages importants :
- Dans la pièce souhaitée (avec portes fermées), la température qui vous convient sera maintenue avec le plus de précision. Ajuster précisément la température pendant le sommeil est TRÈS IMPORTANT pour la santé, et pas seulement pour le confort.
- Si des «conders» (avec une puissance correctement sélectionnée) sont installés dans les pièces principales, l'ensemble de l'appartement (y compris le couloir) bénéficiera de la fraîcheur en cas de besoin.
- Pendant la journée, seules les pièces dans lesquelles vous passez le plus de temps seront rafraîchies. Cela n'a aucun sens "d'étudier" tout l'appartement lorsque vous passez toute la journée dans une seule pièce. Par exemple, lorsque vous rencontrez des invités, vous pouvez fournir de la fraîcheur à tout l'appartement et maintenir la température la nuit uniquement dans les chambres.
Procédure d'installation du climatiseur
Les travaux d'installation sont effectués selon l'algorithme développé. Toutes les exigences et règles sont prises en compte. Comment installer le climatiseur :
- Le câblage électrique est en cours de pose pour connecter le système au réseau.
- Installation de l'unité à l'extérieur de la pièce.
- sélection de l'endroit optimal pour l'installation, qui sera situé au-dessus de 2 m du niveau du sol;
- fixer les supports aux boulons d'ancrage sélectionnés ;
- installation du bloc sur la place préparée (supports);
- création de trous principaux dans le mur dont le diamètre est de 50 à 60 mm pour toutes les communications;
- installation d'un cylindre d'étanchéité dans les trous et communications de raccordement.
- Installation de l'unité à l'intérieur :
- sélection de l'emplacement optimal, selon les exigences décrites ci-dessus ;
- installation de supports pour la climatisation;
- installation de l'unité intérieure à sa place.
- Connexion de câblage :
- installation d'un boîtier interne ou externe ;
- joindre des tuyaux en cuivre à travers lesquels le fréon circulera, connecter des fils électriques;
- évacuation - l'air et toute l'humidité sont éliminés du système. Un équipement spécial vous permettra d'effectuer l'opération en 45 minutes environ, rien de moins.
- Testez le fonctionnement du climatiseur installé. À cette fin, des équipements matériels et logiciels spéciaux sont utilisés.
Le climatiseur est installé et prêt à fonctionner.
Installation de systèmes SPLIT

Dans l'industrie de la climatisation, l'un des types les plus couramment utilisés sont les climatiseurs split. Ces systèmes se composent de deux parties distinctes, une unité extérieure et une unité intérieure, qui sont reliées l'une à l'autre par une tuyauterie en cuivre pour former un circuit fermé.Actuellement, la plupart des fabricants proposent des climatiseurs split pouvant fonctionner en mode refroidissement ou chauffage. Le processus de chauffage est effectué par la pompe à chaleur en changeant le cycle. Pour garantir le mode de fonctionnement de conception, il est nécessaire de suivre les règles d'installation de l'unité extérieure du climatiseur et de choisir la bonne puissance.
Assemblage de climatiseurs split.
Choisissez le bon endroit pour installer les unités intérieures et extérieures. Lors du choix d'un emplacement, vous devez vous assurer d'une répartition uniforme de l'air dans la pièce et de la facilité d'utilisation du système. Les courants d'air excessifs ne doivent pas être autorisés dans la zone de présence permanente de personnes. Lors de l'installation de l'unité intérieure, pensez à accéder à l'unité pour nettoyer les filtres et désinfecter l'évaporateur. Après avoir sélectionné le bon emplacement d'installation, l'unité intérieure est d'abord assemblée. Il est monté sur le châssis, marquant le centre de la position, alignant et sécurisant la structure. Ensuite, un trou d'un diamètre de 65 mm est pratiqué dans le mur afin qu'il soit fermé par l'unité intérieure, à travers lequel l'installation des tuyaux, de l'évacuation électrique et du condensat sera effectuée. Le trou est fait avec une légère pente de l'extérieur. Il est recommandé d'installer un manchon de protection dans le trou et sur le côté du mur extérieur - une douille qui le ferme et augmente l'esthétique de l'installation. L'évacuation des condensats de l'unité intérieure doit toujours se faire naturellement, si possible, avec une pente de tuyau d'environ 3 %. Une solution avec une pompe à condensats ne doit être envisagée qu'en dernier recours. La pompe est une pièce mécanique qui sert à évacuer les condensats et à augmenter la fiabilité du système de climatisation.Après avoir installé le système d'évacuation des condensats, il est nécessaire de vérifier sa perméabilité en pompant environ 2 litres d'eau à travers le drain dans le bac de récupération. Si le climatiseur fonctionne toute l'année, un câble chauffant doit être installé dans le tuyau de vidange. Avant d'accrocher l'unité intérieure sur le rack installé au mur, il est nécessaire de lui connecter une unité de refroidissement
La connexion doit être réalisée sous la forme d'un raccord vissé, il faut donc faire particulièrement attention à ce que le système de réfrigération soit solide et étanche. Sur la surface extérieure de la douille, lors du serrage des raccords à vis, utilisez une pâte qui empêche les écrous de se tordre. Il est nécessaire d'isoler les raccords de tuyauterie sur l'unité intérieure pour éviter la condensation d'humidité sur la surface extérieure des tuyaux et des traînées sur le mur sous l'unité intérieure
L'unité extérieure est installée sur une structure de support de type L. L'appareil doit être installé à une distance de sécurité du mur pour permettre la libre circulation de l'air à travers le condenseur, son entretien et son nettoyage ultérieurs.
Il est nécessaire d'isoler les raccords de tuyauterie sur l'unité intérieure pour éviter la condensation d'humidité sur la surface extérieure des tuyaux et des traînées sur le mur sous l'unité intérieure. L'unité extérieure est installée sur une structure de support de type L. L'appareil doit être installé à une distance de sécurité du mur pour permettre la libre circulation de l'air à travers le condenseur, son entretien et son nettoyage ultérieurs.












































