- Comment installer soi-même un écran sous la baignoire
- Matériaux d'écran de bain
- Assemblage d'écran à partir de panneaux en plastique
- Le choix du matériau pour le cadre et les châssis
- Phase de finition des travaux
- Gaine en plastique
- Deuxième option - carrelage
- Fabricants
- Faire un cadre pour un écran sous la baignoire
- Types d'écrans de baignoire
- Sortes
- Matériel
- Plastique
- Métal
- MDF
- Polystyrène
- Cloison sèche
- PVC
- Acrylique
- Verre ou miroir
- Concevoir
- Sourd stationnaire
- Stationnaire amovible
- Avec portes battantes
- Modèle avec portes coulissantes
- Installation
- Armoire de salle de bain - caractéristiques et avantages
- Conseils de sélection
Comment installer soi-même un écran sous la baignoire
Dans un premier temps, il est nécessaire d'effectuer des mesures précises des paramètres de la salle de bain, à savoir sa largeur, sa longueur et sa hauteur. Il convient de noter que l'écran n'est pas une structure de support. Le cadre doit donc être solide et fiable, car il contiendra à la fois l'écran lui-même et des étagères spéciales, le cas échéant. De plus, les maîtres conseillent de l'installer à 7-10 cm, c'est-à-dire comme sous le rebord de la baignoire.


Ensuite, des trous sont percés pour la fixation future du revêtement. Ensuite, le matériau sélectionné est déjà fixé, qu'il s'agisse de cloisons sèches, de bois, de plastique, ou tout sera recouvert de carreaux décoratifs.

Pour chaque matériau, il existe des caractéristiques de fixation, considérez chacune d'entre elles.
Matériaux d'écran de bain
Les matériaux que vous utiliserez dans la salle de bain ne doivent pas avoir peur de l'eau et de l'humidité, des changements de température
Il est également important qu'ils ne soient pas sujets à une destruction rapide par des moisissures ou des champignons.
Vous pouvez fabriquer la base de l'écran à partir de presque tous les matériaux de construction, puis la finir à l'extérieur à votre guise. Pour le revêtement, des panneaux ou des tuiles en plastique sont utilisés.
Options d'écran maison :
-
Plastique;
-
revêtement en plaques de plâtre d'un cadre / profilé en bois ou en métal et finition ultérieure;
-
soubassement en brique avec revêtement frontal carrelé.
Le moyen le plus rapide consiste à recouvrir le cadre sous la salle de bain avec des panneaux MDF. Les bandes de plastique ou de MDF sont biologiquement neutres et pratiques. Ces matériaux sont faciles à couper et à assembler.
Après l'érection, la base en brique devra être gainée et plâtrée ou carrelée dessus. Et avant d'installer un cadre en bois, le bois doit être enduit d'une imprégnation spéciale pour le protéger de l'humidité.
Assemblage d'écran à partir de panneaux en plastique
Technologiquement, l'assemblage d'un écran en plastique est une tâche assez simple et consiste en ce qui suit. Tout d'abord, le long du périmètre du cadre de support le plus installé, la bande de départ est fixée avec des vis autotaraudeuses. Aux endroits où le produit jouxtera les éléments verticaux et horizontaux, une coupe est effectuée à un angle de 45 degrés. Après cela, des bandes sont découpées dans du plastique et insérées dans les rainures de la bande de départ préparée jusqu'à ce que l'écran soit complètement rempli. Les panneaux en plastique du paravent coulissant sont installés entre les guides et les poignées sont collées à l'extérieur. Les joints d'angle sont fermés avec des coins en plastique.
Panneau en plastique coulissant
En fin d'installation, une trappe de visite doit être installée sur les linteaux fixes (généralement côté siphon). Ces portes en plastique peuvent être achetées dans n'importe quelle quincaillerie ou fabriquées indépendamment des panneaux restants. Pour une protection supplémentaire contre la pénétration d'humidité dans l'écran, les espaces entre la surface du sol et les fixations du cadre sont remplis d'un mastic spécial de couleur neutre.
L'installation de panneaux sur un écran incurvé est quelque peu différente, car l'angle de flexion doit également être pris en compte.
- Tout d'abord, vous devez mesurer la hauteur du cadre du profil supérieur vers le bas. Ensuite, à l'aide d'une règle à charbon, mesurez la longueur requise et, si nécessaire, coupez une partie du panneau avec un couteau à gypse.
- Sur la première bande extrême, appliquez une petite couche de colle à ongles liquide et fixez la bande de départ de la même longueur.
- Chaque panneau en plastique suivant doit être inséré dans les rainures du panneau précédent. Par le haut, le plastique est fixé avec des «clous liquides» ou des agrafes, mais uniquement pour que le côté extérieur reste sans trous. Le bas du produit peut être fixé avec des vis autotaraudeuses à l'intérieur du profilé en aluminium.
- La dernière étape est la plus difficile et la plus responsable - l'installation du dernier panneau. Pour ce faire, il est nécessaire de mesurer la largeur de l'espace restant, d'appliquer tous les calculs au panneau en plastique et de découper la partie manquante de l'écran à l'aide du même couteau à gypse. Collez la bande de départ sur le côté du panneau adjacent au mur. « Enfoncez » doucement le panneau dans la bande supérieure et inférieure.
- Décorez le bas de l'écran avec un socle en plastique, en le collant sur la face inférieure avant de l'écran.
Le choix du matériau pour le cadre et les châssis
Ouvrages en plastique
L'écran est fabriqué à partir de différents matériaux. Des échantillons résistants à l'humidité sont nécessaires pour une utilisation dans la salle de bain. Le bois est traité avec un revêtement spécial. Les matériaux utilisés:
- Le plus pratique et le moins cher est le plastique. Il est résistant à l'humidité, facile à installer, facile à entretenir.
- Le MDF et les panneaux de particules avec un revêtement résistant à l'humidité sont souvent utilisés pour la fabrication de châssis et de portes.
- Les cloisons sèches sont pratiques à utiliser, pratiques, légères.
- Le bois traité avec un revêtement spécial est utilisé pour fabriquer le cadre et les châssis. La nécessité d'une ventilation fréquente.
- Les structures en aluminium sont résistantes à l'humidité, durables et légères. Ils sont simples à monter. Un cadre est généralement fabriqué à partir de celui-ci.
- Le plexiglas est léger et durable, idéal pour les environnements humides. Derrière les parois transparentes, il est facile de voir le contenu du casier.
- La cloison en tissu de nylon a un aspect inhabituel et original.
Phase de finition des travaux
Le squelette construit doit être fini avec un matériau décoratif. Ici, vous pouvez utiliser, par exemple, des panneaux en plastique, ils ont un prix relativement bas, mais sont pratiques et résistants à l'humidité.
Bien sûr, les carreaux sont souvent utilisés, mais pour cela, le cadre est pré-gainé de cloisons sèches avec une résistance accrue à l'humidité.
Gaine en plastique
Les panneaux en plastique doivent être coupés à la taille du cadre construit. Ils peuvent être installés à la fois verticalement et horizontalement, en fonction de leur longueur. L'édition à la taille requise est effectuée avec un couteau de montage. Les panneaux sont fixés avec des vis autotaraudeuses et n'oubliez pas de laisser une fenêtre sous la trappe pendant les travaux. Vous devez fixer la trappe sur un cadre métallique, qui doit d'abord être fixé avec des vis autotaraudeuses.Après avoir installé la trappe, vous devez installer la porte. Tout - l'appareil est prêt.

Souvent, un écran en plastique est fabriqué sous la forme d'une porte coulissante.
Deuxième option - carrelage
Si vous envisagez de fabriquer un appareil à écran en céramique, le processus de travail sera différent. Le toit ouvrant doit être installé en premier. Après cela, une cloison sèche résistante à l'humidité est fixée. Ce matériau est fixé avec des vis autotaraudeuses. Les fixations doivent être vissées strictement à angle droit. En règle générale, cela se fait avec un tournevis ordinaire.

L'écran, gainé de carreaux, s'intégrera certainement à l'intérieur de la salle de bain
La prochaine étape est la pose de carreaux de céramique. Ici, une colle spéciale est utilisée. Il est très pratique à utiliser. L'adhésif est appliqué sur la céramique avec une spatule en une couche uniforme. Le carreau est ensuite collé à la cloison sèche. Une fois le collage terminé, il est nécessaire d'essuyer les coutures.
Fabricants
Il vaut la peine de considérer les fabricants d'écrans de bain les plus populaires qui ont des critiques positives.
Le fabricant "MetaKam" produit des écrans fiables avec des cadres en PVC et des panneaux en polypropylène cellulaire. La vue de l'écran est très élégante, les modèles Metacam Coupé sont stylisés comme de la glace dans leurs couleurs. La conception a des portes coulissantes à deux ailes, la longueur est de 148 mm et la hauteur peut être ajustée de 55 à 60 cm.peut être lavé en toute sécurité, y compris les produits de nettoyage. Il y a des pieds réglables.
Le fabricant russe Alavann produit des pare-baignoires pratiques et très beaux en MDF laminé.Le modèle de compartiment à trois portes coulissantes a des dimensions de 1470x520x50 cm, la hauteur peut être augmentée jusqu'à 60 cm.L'appareil est équipé d'élégantes poignées chromées, peut être installé directement sur le sol ou sur des pieds réglables d'une hauteur maximale de 10 cm Le corps, le cadre et les portes sont fabriqués dans un matériau de haute qualité résistant à l'humidité, le produit bénéficie d'une garantie d'un an.
Les écrans frontaux Wannbock, fabriqués en PVC de haute qualité, aideront à fermer complètement l'espace sous la salle de bain avec une bonne étanchéité. Les modèles ont une longueur de 150 à 170 cm, équipés de portes coulissantes avec poignées chromées. Leur avantage est l'originalité du design et un grand nombre de dessins et de motifs à la mode sur les panneaux. Les produits peuvent être installés au sol ou sur des pieds amovibles, ils sont durables et faciles à installer.
Le fabricant de meubles de salle de bain Vod-ok propose des modèles d'écrans chics qui peuvent même s'intégrer dans un design d'élite. Il existe des options pour les textures "Chêne", "Wenge", "Blanc", en MDF de haute qualité. Les portes peuvent avoir 2 ou 3 vantaux, être battantes ou coulissantes. Les modèles sont équipés d'élégantes poignées chromées intégrées, il y a des pieds métalliques réglables. Il existe des options de différentes longueurs et largeurs, il est possible de choisir celle qui convient à tout intérieur de salle de bain. Le produit est garanti 2 ans.
Les écrans de bain Emmy sont très durables et ont un design unique qui s'intégrera dans n'importe quel décor de salle de bain. Les armoires sont constituées d'un cadre en aluminium, tandis que les parois et les portes coulissantes sont en MDF laminé coloré. Les matériaux ne sont pas sujets à la pourriture, au développement de champignons et de moisissures, n'ont pas peur de l'humidité et de la vapeur.Les modèles du fabricant Emmy "Malibu" ont 3 portes coulissantes avec de belles poignées en métal. Les écrans de protection Emmy "Blanca" ont deux portes larges, il existe différentes tailles, tous les produits sont garantis 3 ans.
Europlex produit des écrans de protection pour baignoires en MDF résistant à l'humidité. Les cadres et les guides des portes coulissantes sont en aluminium durable, il y a des pieds métalliques réglables et des poignées de porte chromées. Il est possible de choisir n'importe quel design et couleur que vous aimez : blanc, beige, wengé. La surface laminée du boîtier est brillante et très facile à nettoyer. La hauteur est réglable de 50 à 60 cm, différents modèles sont présentés en longueur.
Les produits Hammer sont des projets originaux de trappes furtives. Lorsqu'il est fermé, l'écran ressemble à un mur entier, sans aucun détail supplémentaire. Le couvercle s'ouvre très facilement, permettant d'accéder à l'espace sous la baignoire. Les produits sont équipés de pieds réglables amovibles en acier chromé, il existe différentes tailles. Les écrans "Hammer" ont de nombreuses options de couleurs, de textures et de designs, adaptés à tous les appartements.
Les panneaux Triton sont faits d'acrylique blanc et s'agenceront aux baignoires en acrylique du même nom. Il est possible de choisir la longueur souhaitée de 120 à 170 cm.Les écrans Triton ont une conception aveugle, c'est-à-dire qu'ils scellent complètement l'espace sous la salle de bain, l'humidité et la saleté n'y pénétreront pas. Tous les produits sont fabriqués dans leur forme originale avec un gaufrage volumétrique, une surface blanche brillante est facile à nettoyer et protégée contre les dommages mécaniques.
Les panneaux de protection pour les baignoires Santek sont produits dans différentes formes et tailles, il est possible d'installer des options d'angle pour ce fabricant. Les écrans ont une structure vierge, sont complètement scellés et ont une surface blanche brillante facile à nettoyer. Pour la fabrication d'acrylique de haute qualité, les produits sont très faciles à installer. Il existe des marchandises d'une longueur de 120 à 170 cm, tous les produits ont une garantie de qualité.
Faire un cadre pour un écran sous la baignoire
Donc, vous avez choisi la forme et le type d'écran dont vous avez besoin, la prochaine étape consiste à faire un cadre pour le prochain pose de panneaux plastiques. Pour mettre en œuvre ce travail, vous aurez besoin des détails suivants: une bande de départ (généralement la même palette de couleurs que l'écran), un profil, des chevilles, de la colle à ongles liquide et, en fait, les panneaux en plastique eux-mêmes. Le montage du cadre implique l'utilisation de tels outils: un couteau de bureau ou de construction, un tournevis électrique, un niveau de construction, un perforateur, une équerre et une agrafeuse.
Marquage
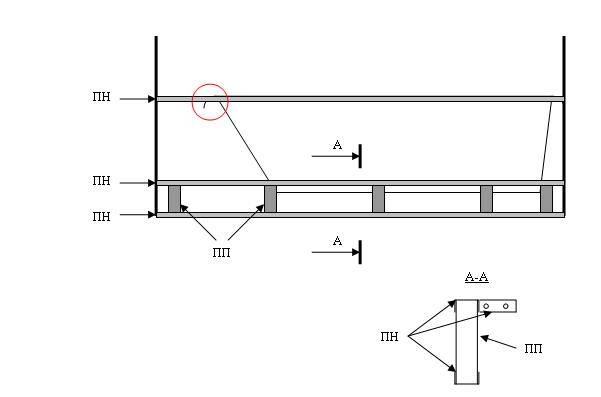
La première chose à faire est de marquer la future structure porteuse sur la surface du sol et des murs. À l'aide d'un niveau à bulle, tracez une ligne verticale à l'endroit où l'écran rencontrera la surface du mur. Considérez le bord supérieur de la baignoire comme point de départ. Des lignes latérales résultantes au côté, parallèles à l'emplacement de votre baignoire, tracez une autre ligne égale à l'épaisseur des panneaux de plastique préparés. Pour faciliter l'installation de la structure à partir des lignes de mur, il est nécessaire de poser des marques appropriées sur toute la longueur de la surface du sol sur toute la longueur de la baignoire.
Installation du cadre
Vient ensuite l'assemblage des éléments avant et latéraux du cadre.Pour ce faire, mesurez et coupez la longueur requise des barres ou du profilé, joignez-les selon les marques et fixez-les. Pour rendre le cadre plus rigide et durable, faites une ou deux attaches transversales supplémentaires à partir du profil. Dans le cas où le cadre est constitué de poutres en bois, des vis et des vis autotaraudeuses peuvent être utilisées comme fixations. Pour le profil, des fixations spécialisées sont utilisées.
Attention! Fixez le profilé au sol très soigneusement, sans trop forcer, afin de ne pas endommager le carreau.
Lors de l'installation du cadre, vous devez également prévoir une place pour une fenêtre de visualisation (si vous envisagez d'en créer une). Pour cela, il est nécessaire de faire des cavaliers supplémentaires à la place établie de la forme verticale: les auvents seront fixés sur le côté droit et les aimants de meubles sur la gauche.
Le cadre de l'écran coulissant avec étagères verticales nécessite des fixations supplémentaires sur lesquelles des vérins à gaz sont installés.
Cadre de pare-baignoire curviligne
Pour modéliser le cadre d'un écran incurvé sur la surface du sol, un niveau de bâtiment fait des marquages qui reprennent exactement les courbes de la baignoire elle-même. Un profil est posé en fonction des marquages appliqués - aux endroits de flexion le long du bord latéral, des coupes de 10 cm de long sont faites dessus. Après cela, un trou est percé dans le profil et la fixation se fait avec des chevilles et des vis au sol surface le long de la ligne tracée. Le profil supérieur est collé.
Types d'écrans de baignoire
À ce jour, vous pouvez trouver en vente une grande variété d'écrans pour le bain. Si vous voulez vous faire plaisir avec quelque chose d'inhabituel et surprendre vos invités, vous pouvez vous tourner vers le sur-mesure ou le fabriquer vous-même, en décorant le design à votre goût.La principale différence entre les écrans réside dans leurs caractéristiques de conception, ainsi que dans les matériaux de fabrication. Le choix de ce dernier mérite une attention particulière, car la durée de vie de l'écran dépendra de la qualité des matières premières.
Lors de l'achat d'un écran pour un bain, vous devez clairement comprendre que la structure sera constamment dans des conditions microclimatiques particulières - elle peut être affectée négativement par une humidité élevée et des changements de température constants. Les matières premières les plus acceptables aujourd'hui sont :
Métal - dans ce cas, nous parlons d'écrans en aluminium, qui ont un coût relativement faible, mais qui sont en même temps des structures assez durables. Il convient également de noter leur légèreté, leur facilité d'installation, ainsi que la possibilité de choisir la texture et la couleur de l'écran pour la conception de la salle de bain;
Le bois est le matériau le plus naturel de tous qui soit écologique et propre. Malgré le fait que l'arbre subit un traitement supplémentaire avec des antiseptiques et des imprégnations chimiques qui augmentent sa durée de vie, le bois reste une matière première assez propre;
Plastique - le principal avantage du plastique est son faible coût et un large choix de couleurs qui peuvent être simples ou imiter avec succès des matériaux naturels, tels que le marbre. La longue durée de vie est également remarquable - selon la plupart des fabricants, avec un bon fonctionnement, un écran de bain en plastique peut durer jusqu'à 30 ans.Certains ont peur d'utiliser le matériau dans des locaux résidentiels en raison du fait qu'il peut fondre et libérer des substances nocives, cependant, nous notons que de tels phénomènes sont possibles à des températures suffisamment élevées qui sont absentes dans la salle de bain;
Le MDF est un matériau peu coûteux, mais il n'a pas une résistance élevée à l'humidité. Au fil du temps, les plaques peuvent gonfler et perdre leur apparence, de sorte que la durée de vie est généralement limitée à trois ans. L'avantage est une variété de couleurs, la capacité d'imiter le bois, ainsi qu'un entretien simple;
Le verre est rarement utilisé. Malgré le fait que les écrans de bain en verre modernes sont faits d'un matériau trempé durable, beaucoup ont peur de les placer dans les plans inférieurs de la salle de bain. De plus, lors de l'utilisation de verre transparent, tous les "intérieurs" de l'espace du sous-sol seront visibles et certaines fonctions de l'écran seront perdues. C'est une tout autre affaire - des panneaux en verre coloré ou ayant des motifs, des images 3D. De tels modèles cacheront de manière fiable un mini-garde-manger des regards indiscrets et deviendront un magnifique décor de la pièce;
Un miroir est un type de design original que tout le monde ne peut pas se permettre. Oui, et il n'est pas facile de prendre soin de la surface du miroir. De plus, située dans la partie inférieure de la pièce, elle peut être soumise à des chocs et à d'autres influences mécaniques. Mais, malgré cela, il y a beaucoup de fans d'écrans miroirs. Les avantages des structures de miroir peuvent être appelés en toute sécurité une vue agréable, ainsi que la création d'un effet visuel d'expansion de l'espace;
La cloison sèche est un matériau qui fera un excellent écran de salle de bain si vous le choisissez correctement, à savoir, tenez compte de sa résistance à l'humidité.Les constructions en plaques de plâtre deviennent souvent une solution simple et économique pour assembler un pare-baignoire à faire soi-même, car le matériau est assez malléable. Les avions finis sont décorés avec divers matériaux de finition: carreaux de céramique, papier peint résistant à l'humidité, panneaux;
Le tissu est l'option la plus économique, qui est souvent fabriquée par des hôtesses à la maison, mais vous permet de décorer une pièce avec style et de cacher un espace disgracieux.
Outre les matériaux considérés, leurs combinaisons sont souvent trouvées. Par exemple, des portes de compartiment en plastique avec des guides métalliques, une construction à ossature en MDF et des panneaux en PVC, etc.





Sortes
Les écrans sont classés en fonction du matériau de fabrication et des caractéristiques de conception.
Matériel
Les panneaux de salle de bain sont fabriqués à partir de différents matériaux. Les produits en polystyrène, PVC et plastique sont considérés comme populaires. Moins souvent dans les salles de bains, des écrans en verre et en métal sont utilisés.
Plastique
Les modèles en plastique sont considérés comme les plus appréciés des consommateurs, ce qui s'explique par les avantages suivants des panneaux de ce type :
- bas prix;
- installation et fonctionnement simples ;
- longue durée de vie;
- résistance à l'humidité;
- une grande variété de couleurs et la possibilité d'appliquer des motifs.
Le principal inconvénient des modèles en plastique est qu'avec une légère application de force, le matériau se casse.
Métal
Les modèles en métal sont plus chers que ceux en plastique. Les panneaux faits de ce matériau sont très résistants aux dommages mécaniques. Comme dans le cas des écrans en plastique, une variété de motifs sont appliqués aux écrans métalliques, ce qui permet l'utilisation de tels produits dans divers intérieurs.Le principal inconvénient des modèles de ce type est qu'en raison des rayures et autres défauts, les panneaux deviennent rouillés.
MDF
Les modèles en MDF sont principalement installés dans les salles de bains de style classique. Les écrans de ce type sont sensibles à l'humidité. Par conséquent, pour la salle de bain, il est recommandé d'acheter des panneaux MDF recouverts d'un film protecteur.
Polystyrène
Le polystyrène ressemble beaucoup au plastique. Par conséquent, les écrans constitués des deux matériaux présentent les mêmes avantages et inconvénients.
Cloison sèche
Ce matériau est utilisé pour fabriquer la base pour la pose de carreaux de céramique. Séparément, les plaques de plâtre ne sont pas utilisées pour créer des écrans pour un bain.
PVC
Les panneaux en PVC se caractérisent par les avantages des produits en plastique. La principale différence entre ces écrans est que le PVC est plus résistant aux contraintes mécaniques.
Acrylique
Ce type d'écrans est fait de plastique, qui est ensuite recouvert d'une couche d'acrylique. Ces produits sont souvent livrés avec des salles de bains fabriquées à partir d'un matériau similaire. Les modèles en acrylique ont les mêmes propriétés que ceux en plastique, à la seule exception près : les motifs décoratifs ne sont pas appliqués sur ce type de panneau.
Verre ou miroir
Il est déconseillé d'installer des modèles en verre ou en miroir dans la salle de bain. Les panneaux de ce type, même avec des charges mineures, se cassent. L'installation de modèles de miroirs est recommandée dans les cas où il est nécessaire d'augmenter visuellement la taille de la pièce.
Concevoir
Sous les salles de bains, des écrans fixes ou des structures à portes mobiles (battantes ou coulissantes) sont installés. Les produits du premier type sont souvent fabriqués à partir de panneaux amovibles.Le choix en faveur d'un type particulier de construction dépend du but de l'installation de l'écran.
Sourd stationnaire
Les structures de ce type sont généralement construites à partir de matériaux durables tels que la brique ou le métal. Ces produits offrent un soutien supplémentaire au bain et résistent aux influences extérieures, y compris l'humidité. Parmi les inconvénients des structures fixes figurent les suivants:
- la charge au sol augmente;
- espace réduit dans la salle de bain;
- le démontage est impossible sans détruire la structure.
Les structures fixes ne sont pas installées sous les baignoires en acrylique.
Stationnaire amovible
Structurellement, ce type d'écrans ne diffère pas du précédent. La différence réside dans le fait que pour la fabrication de ces produits, on utilise principalement des panneaux en plastique, qui peuvent être retirés si nécessaire.
Avec portes battantes
L'utilisation d'écrans à portes battantes se justifie dans les grandes pièces. De telles conceptions offrent un accès pratique à l'espace sous la salle de bain.
Modèle avec portes coulissantes
Les panneaux coulissants sont montés sur des rails qui sont montés le long de la baignoire et du sol. Des conceptions similaires sont utilisées dans les petites pièces. L'utilisation de panneaux coulissants est également justifiée par le fait que le matériau, si nécessaire, peut être facilement retiré et remplacé par un nouveau. Le principal inconvénient de ces modèles est que lorsqu'ils sont pressés, les panneaux se déplacent immédiatement.
Installation
Le moyen le plus simple d'installer de vos propres mains est un écran coulissant, fourni assemblé. Tout d'abord, le bain est rempli d'eau, des poignées sont fixées aux vantaux de la porte du produit et des pieds amovibles sont fixés à la partie inférieure du corps. L'écran est placé sous la face avant de la baignoire de manière à ce qu'il soit situé strictement verticalement.Au final, il suffit d'ajuster les pieds à la hauteur souhaitée pour que l'ouverture soit complètement fermée.

Il est un peu plus difficile de fabriquer un moustiquaire de porte coulissante qui est vendu non assemblé. Vous devez d'abord marquer le sol et les murs aux endroits où se trouveront le corps et les rails de guidage. Pour le marquage, vous devez prendre un crayon ou un marqueur, un ruban à mesurer et un niveau de construction. Ensuite, les guides et les parties verticales du cadre sont fixés le long de la ligne tracée, les panneaux de façade et les châssis sont insérés vers l'intérieur, le système est ajusté en hauteur de sorte que les portes coulissent librement horizontalement. Lorsque cela est fait, la poursuite de l'installation se déroule de la même manière que pour l'écran assemblé.

Avec une forme de baignoire non standard, ou si vous souhaitez créer votre propre design unique, vous pouvez créer votre propre amortisseur de salle de bain. Pour le carrelage, vous devez choisir des options avec encoche pour les jambes ou incliné, un tel choix s'avérera très pratique pour longtemps encore. Pour l'installation, vous aurez besoin d'une certaine quantité de carreaux, combinés à la décoration de la pièce, de colle à carrelage, de profilés métalliques, de plaques de plâtre étanches.

Pour commencer, des profilés métalliques en forme de U sont marqués et installés sur les murs et le sol. Il est nécessaire de les fixer sur des vis avec des chevilles, les trous dans le béton sont faits avec un perforateur, les fixations sont torsadées avec un tournevis ou un tournevis. Des nervures verticales transversales de raidissement sont fixées au cadre à l'aide de vis métalliques autotaraudeuses. Ensuite, le morceau de cloison sèche requis est coupé et fixé au cadre métallique avec des vis spéciales. Une ouverture est pratiquée dans la cloison pour la porte.

Lorsque la surface verticale de l'écran est prête, passez à la finition décorative. La surface de la plaque de plâtre est apprêtée, la colle à carrelage est diluée, le carrelage est posé sur la cloison. À la fin, vous devez faire une porte ou une trappe et la fixer sur l'ouverture. Pour finir un tel écran non amovible, on prend généralement des carreaux muraux en céramique, les dimensions sont standard 15x15, 20x20 ou 20x30 cm.Vous pouvez choisir une couleur monotone pour correspondre à la couleur générale de la salle de bain et des meubles qu'elle contient, ou organiser un motif élégant. Tout dépend de l'imagination de conception du propriétaire.

Très simplement et sans frais financiers particuliers, vous pouvez installer un rideau de protection sous la salle de bain. Un matériau imperméable est pris pour cela: toile cirée, pellicule plastique ou tissu caoutchouté. Des trous sont découpés dans la partie supérieure de la toile, dans lesquels sont placées des boucles en métal ou en plastique. Ensuite, vous devez tirer la ligne de pêche, sur laquelle le rideau installé sera suspendu, pour cela, vous pouvez prendre un fil d'acier ou de nylon. Il est tiré sur des vis qui sont fixées aux murs opposés adjacents à la baignoire.

Une bonne solution pour un bain dans un appartement en ville ou une maison de campagne peut être la création d'un paravent fait maison en bois. L'avantage est que les lattes de bois sont très faciles à couper avec une scie à métaux et à fixer aux clous. Parmi les outils, vous n'avez besoin que d'un marteau, d'une scie et d'un ruban à mesurer. Vous pouvez choisir différents types de bois, l'essentiel est que les lattes soient bien polies et recouvertes d'un vernis imperméable.

Sans difficulté, il est possible de fabriquer un écran amovible à partir de feuilles de plastique ou de PVC. Il peut être à un, deux ou trois côtés selon les besoins.Pour la rigidité, un cadre est créé à partir de profilés métalliques ou plastiques, puis les feuilles sont découpées sur mesure et insérées dans le cadre. Il est facile de visser des pieds réglables à un tel écran par le bas. Pour créer une telle conception, environ 0,6 à 1,5 mètre carré sera nécessaire. m de tôle PVC et 3 à 5 mètres linéaires de profilés. L'avantage d'un écran en plastique fait maison est que vous pouvez créer n'importe quelle belle impression photo sur sa surface.

Armoire de salle de bain - caractéristiques et avantages

Une telle conception est classiquement désignée sous le nom d'armoire. Il ne prévoit pas tous les éléments de cadre standard dans la conception. Souvent, il ne s'agit que d'un système de façade, situé juste à côté des murs. Mais, comme l'écran vous permet de ranger des choses et d'équiper des sections d'étagères, on l'appelle souvent une armoire de bain.

Son installation offre de nombreux avantages :
- Les portes couvrent les sorties de tuyaux antipathiques sous l'espace de la baignoire ;
- Au lieu d'accumulations de poussière, vous obtenez un élément de design inhabituel ;
- Utilisation efficace du territoire tombant ;
- L'endroit standard pour le lavage se transformera en un meuble original.
Conseils de sélection
Choisir un écran coulissant pour une baignoire n'est pas aussi difficile qu'il n'y paraît. Lorsque la question se pose d'acheter un revêtement au lieu d'un rideau, il est nécessaire de s'appuyer sur les caractéristiques de conception d'une pièce particulière, les préférences personnelles des propriétaires de la maison et leurs capacités financières. Pour choisir un modèle de haute qualité et durable, vous devez écouter les principales recommandations des experts
Tout d'abord, il est important de faire attention au matériau du cadre. Il doit être durable et résistant aux contraintes mécaniques.
Dans le choix du matériau, vous pouvez privilégier les modèles combinés.Le nombre de portes coulissantes peut varier. L'essentiel est de penser à l'avance à quel point ce sera pratique après l'installation pour un bain spécifique. Il est conseillé d'acheter des produits fonctionnels avec des étagères (ils sont plus esthétiques). En ce qui concerne le verre, il convient de noter que l'option de type transparent perd le point d'achat, car elle ne remplit pas la fonction principale de cacher les tuyaux.
Si vous envisagez d'acheter de l'acrylique produits de taille non standard, l'écran doit être commandé à l'avance. Si vous le souhaitez, vous pouvez choisir une version prête à l'emploi avec un effet 3D. Lorsqu'il est décidé d'acheter un modèle en plastique, au cours du processus d'achat, il convient de décider du type de loquets dont il dispose: magnétique ou à ressort
Cette information est disponible sur les instructions d'usine, vous devez y prêter attention avant d'acheter le produit, car dans certains cas, la méthode d'encliquetage est particulièrement importante
Pour acheter le modèle correctement, vous devez vous rendre au magasin avec des mesures de la distance entre le côté de la salle de bain et le sol. Les bonnes options sont les produits avec des niches et trois pieds stables. Pour une baignoire en fonte, choisir un écran «coupé» aujourd'hui peut être problématique en raison de la faible demande. Le plus souvent, les propriétaires fabriquent eux-mêmes ces produits en utilisant des profilés métalliques.
Leurs châssis peuvent être en plastique ou en MDF. La deuxième option est appropriée lorsqu'il y a suffisamment d'espace dans la pièce. En ce qui concerne l'ombre de n'importe quel écran, il convient de partir de la couleur de fond de l'intérieur. Si vous le souhaitez, vous pouvez acheter un écran blanc, car cette couleur est combinée avec tous les tons de la palette de couleurs.


Dans ce cas, il est souhaitable de choisir un écran avec la possibilité de s'ajuster. En d'autres termes, vous devez prendre le modèle qui a des entretoises et des jambes. Cela simplifiera le processus d'installation du boîtier de protection de la baignoire.Il n'est pas souhaitable d'acheter des ensembles avec des poutres en bois, car l'arbre se caractérise par la possibilité d'expansion et de contraction.
Lors du choix d'un matériau, la ventilation peut également être prise en compte. S'il n'y a pas un tel système dans la salle de bain, cela n'a aucun sens d'acheter un produit MDF. Lorsqu'il y a une bonne hotte, l'humidité ne s'attardera pas dans la pièce, de sorte que la durée de vie de l'écran ne sera pas réduite.
















































