- Puisard fait d'autres matériaux
- Puisard en briques
- Puits de pneus
- Puisard en plastique
- Comment nettoyer un cloaque
- Étapes et caractéristiques des travaux d'installation
- Disposition des fosses
- Montage
- Fourniture de canalisations d'égout
- Dispositif de système de ventilation
- Étanchéité des joints entre les bagues et les tuyaux
- Pose de planchers et de remblai
- Étapes d'installation d'un puits pour l'assainissement
- Sélection de l'emplacement
- Calculs et schéma d'une fosse septique
- Parmi les trois chambres :
- Réalisation de calculs
- Travaux préliminaires
- Sélection de l'emplacement
- Calcul des volumes
- Sélection des matériaux
- Étapes de construction
- Description de vidéo
- Comment choisir le meilleur emplacement pour une fosse septique
- Préparation de la fosse
- Installation d'anneaux et de tuyaux d'égout
- Étanchéité et imperméabilisation
- Installation et remblai de regard
- Comment démarre la fosse septique
- Quelles règles doivent être respectées lors de l'entretien d'une fosse septique
- Les nuances du travail
- Comment créer un puits de filtration
- Étapes de construction à faire soi-même
- Préparation des matériaux et des outils
- Sélection de l'emplacement
- Préparation de la fosse
- Pose de bagues, tuyauterie
- Scellage
- Étanchéité
- Couvrir et remblayer le puits
- Disposition du fond du réservoir
Puisard fait d'autres matériaux
Outre la version la plus courante d'un puisard constitué d'anneaux en béton, il existe de nombreux analogues.Certains sont moins chers mais ne conviennent pas aux résidences permanentes, certains sont plus chers mais ont des restrictions d'utilisation dans certains types de sols.
Puisard en briques
Pour disposer les murs du puits avec des briques, il n'est pas nécessaire d'être maçon. Il suffit d'avoir un minimum de connaissances et d'acquérir des compétences de base en maçonnerie. Pour terminer le travail, vous aurez besoin de:
- pelle à baïonnette ordinaire - pour niveler le sol aux bons endroits;
- pelle pelle - pour ramasser et enlever l'excès de terre;
- escaliers - pour descendre et sortir de la fosse;
- ruban à mesurer - pour mesurer les dimensions requises;
- seaux - pour transporter du mortier et divers matériaux;
- truelle - pour appliquer le mortier sur la maçonnerie;
- niveau - vous permet de contrôler la stricte verticalité des murs.
Parmi les matériaux dont vous aurez besoin - brique, ciment, sable et eau.
Si vous posez un trou avec un fond scellé, vous devez d'abord préparer une base en béton. Pour ce faire, il est nécessaire de fabriquer un coussin de sable compacté d'une épaisseur d'au moins 20 cm.Après l'installation du coussin, vous pouvez commencer à couler le béton. L'épaisseur du fond en béton doit être d'au moins 5-7 cm, il est également possible de renforcer une telle base pour la rendre plus rigide.
Une fois le béton durci, vous pouvez commencer la construction de la maçonnerie. Dans le même temps, il n'y a pas d'exigences particulières pour la qualité de la brique ou la qualité de la maçonnerie elle-même, l'essentiel est de maintenir le niveau et l'absence de fissures dans la maçonnerie. La fosse peut être carrée ou ronde - tout dépend de votre imagination.
Si vous construisez un égout sans fond, alors en tant que semelle en brique, vous devez fabriquer un oreiller et couler du béton sous la forme d'un anneau afin que l'eau puisse s'échapper à l'intérieur.
Puits de pneus
Un puisard fabriqué à partir de pneus de voiture usagés se distingue par son faible coût et sa facilité de montage. Pour installer une telle fosse, vous aurez besoin de vieux pneus du diamètre souhaité, les pneus d'une voiture de tourisme conviennent à un petit volume, et pour un grand, vous pouvez prendre un camion ou même un tracteur.
Pour ajouter de la surface utilisable, les parties latérales des pneus doivent être coupées en cercle. Vous pouvez facilement le faire avec une scie sauteuse ou une meuleuse. Mais s'ils ne sont pas disponibles, un couteau ordinaire, seulement très tranchant, avec une lame rigide fera l'affaire.
Les pneus préparés sont empilés les uns sur les autres dans une fosse creusée à l'avance pour le diamètre des flans et fixés ensemble avec des attaches en plastique, des boulons avec des écrous, etc. Si nécessaire, les joints entre les pneus peuvent être scellés avec du bitume ou un autre adhésif.
Ce type de puisard est souvent utilisé pour collecter les eaux usées dans un bain public ou une cuisine d'été.
Puisard en plastique
La façon la plus simple de faire un trou de drainage est d'utiliser un récipient en plastique prêt à l'emploi que vous pouvez acheter au magasin. Il vous suffit de creuser une fosse et d'y installer le conteneur lui-même.
Les avantages incontestables de cette méthode sont que vous vous priverez d'une odeur désagréable et serez sûr à cent pour cent que les drains ne tomberont pas dans le sol et ne se mélangeront pas aux eaux souterraines. Mais au fur et à mesure qu'il se remplit, vous devrez appeler l'équipement d'égout pour le pompage, ce qui entraînera sans aucun doute des dépenses.
De plus, des restrictions pour de tels conteneurs sont imposées par le niveau des eaux souterraines, car à leur niveau élevé, le conteneur peut être évincé du sol.
Comment nettoyer un cloaque
Vous pouvez pomper le contenu du puisard en invitant des spécialistes avec un équipement qui ne doit pas être inférieur au volume de votre puisard en volume.Le tuyau d'une telle machine à eaux usées devrait être suffisant pour descendre complètement dans la fosse, et l'entrée de la fosse devrait être pratique.
Il existe également des produits spéciaux pour le nettoyage des puisards, qui sont des bactéries totalement sans danger pour la nature et les déchets de traitement. Vous pouvez acheter ces fonds dans n'importe quel magasin pour la maison et le jardin. Ces produits nettoient remarquablement même les parois et le fond de la fosse, transformant les déchets solides en boues, gaz et eau.
Ainsi, un puisard dans une maison privée est une option économique pour organiser les eaux usées, ne nécessitant une attention que quelques fois par an. L'avantage incontestable d'un puisard constitué d'anneaux en béton est sa durabilité, son faible coût et la possibilité d'installer un tel système de vos propres mains avec un minimum d'équipement.
Étapes et caractéristiques des travaux d'installation
Les principales étapes des travaux d'installation dans la construction d'une fosse septique à partir d'anneaux en béton:
- disposition de la fosse;
- installation d'anneaux en béton;
- fourniture de conduites d'égouts;
- dispositif du système de ventilation;
- joint d'étanchéité;
- pose de plafonds et remblais.
Disposition des fosses
Les travaux d'excavation peuvent être effectués à l'aide d'équipements spéciaux ou manuellement. Lors de la construction d'une nouvelle maison, il est préférable de creuser une fosse avec une excavatrice. Mais en même temps, une nuance doit être prise en compte: lors du creusement d'une fosse avec un seau, on obtient une fosse dont la forme et les dimensions sont beaucoup plus grandes que celles requises par une fosse septique constituée d'anneaux en béton. Il ne sera pas aisé de descendre soi-même des produits pesant 400 kg ou plus dans une telle fosse. Par conséquent, vous devrez utiliser les services d'une grue. Creuser à la main prend beaucoup plus de temps, mais vous permet de faire une fosse de fondation de taille exacte.
Les anneaux en béton avec un fond doivent être installés en premier dans la fosse, c'est-à-dire - le fond
Le fond de la fosse doit être bétonné pour empêcher la pénétration d'eaux usées non traitées dans le sol. Si la fosse septique est constituée d'anneaux en béton et que son dispositif implique l'utilisation de produits spéciaux à fond, le fond de la fosse n'a pas besoin d'être bétonné.
Si une version à trois chambres est construite à partir d'anneaux en béton pour un bain public ou une maison, un coussin de gravier et de sable de 50 cm d'épaisseur est fabriqué dans le troisième filtre.Au stade de creuser une fosse, des tranchées sont faites pour les tuyaux connecter les réservoirs et quitter la maison. Une couche de sable de 10 cm d'épaisseur est recouverte au fond des tranchées.
Montage
Comme les éléments en béton sont assez lourds, un camion-grue ou un treuil artisanal est utilisé pour les installer dans la fosse. Vous pouvez utiliser une autre méthode - l'installation séquentielle d'anneaux avec creusement, mais cette méthode demande beaucoup de travail. De plus, il est plutôt gênant de bétonner le fond de la fosse septique, dans lequel les anneaux sont déjà installés.
Après l'installation, les anneaux doivent être fixés ensemble avec un mortier ciment-sable. De plus, ils peuvent être fixés avec des supports métalliques.
Cette précaution évitera la formation de fissures dans les anneaux lors des mouvements de terrain saisonniers.
Fourniture de canalisations d'égout
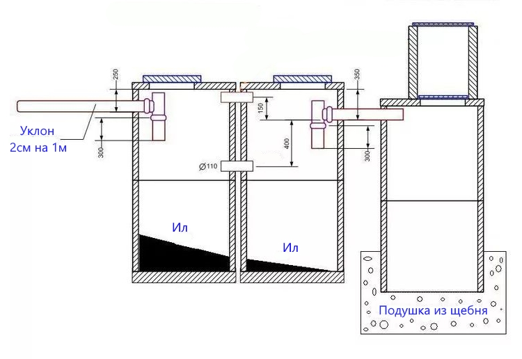
Des trous pour les tuyaux sont percés dans les anneaux montés. Le tuyau transportant les eaux usées vers le premier puits est placé légèrement incliné. Le tuyau qui relie le premier et le deuxième puits doit être 20 cm plus bas que le précédent, et le tuyau amenant les effluents traités au puits filtrant doit être installé encore 20 cm plus bas.
Dispositif de système de ventilation
Pour assurer la ventilation de la fosse septique, il est nécessaire de raccorder le tuyau d'égout à la colonne montante de ventilation, qui va jusqu'au toit du bâtiment. Le diamètre de la colonne montante ne doit pas être inférieur à celui du tuyau transportant les eaux usées domestiques vers la fosse septique.
Si le tuyau de ventilation est plus petit que le tuyau d'égout, les drains créeront un effet «piston», ce qui entraînera la disparition du joint d'eau dans les siphons des appareils de plomberie. En conséquence, les odeurs d'égout commencent à pénétrer dans la pièce.
Par conséquent, il est très important de construire une fosse septique à partir d'anneaux en béton, dont la ventilation effectuera le plus efficacement possible deux tâches principales:
- exclure la raréfaction de l'air dans les conduites d'égout;
- éliminer les odeurs désagréables des conduites d'égout et des puits.
Étanchéité des joints entre les bagues et les tuyaux
Le béton ordinaire, contrairement aux idées reçues, ne tient pas la route. Une fosse septique faite d'anneaux en béton ne fait pas exception.
L'imperméabilisation des surfaces internes et externes de la fosse septique doit être réalisée avec beaucoup de soin. Pour ce faire, utilisez une solution de verre liquide, de mastic bitumineux ou de mastics polymères éprouvés. Les meilleurs résultats pour décider comment fabriquer correctement une fosse septique à partir d'anneaux en béton avec la meilleure étanchéité sont donnés par une solution de béton avec des additifs spéciaux.
Pose de planchers et de remblai
Les puits d'égout montés sont recouverts de dalles de béton dans lesquelles des trous sont percés pour l'installation de trappes. Après l'installation des plaques, la fosse septique est remblayée. Pour ce faire, utilisez la terre retirée de la fosse. Une fois le remblayage terminé, la fosse septique est complètement prête à fonctionner.
Étapes d'installation d'un puits pour l'assainissement
Considérez comment faire un égout dans une maison privée avec vos propres mains à partir d'anneaux en béton.Et si la décision est prise de confier l'exécution des travaux à une organisation spécialisée, les informations reçues aideront à effectuer un contrôle de qualité sur l'avancement de l'installation et faciliteront la communication avec les employés.
Sélection de l'emplacement
L'emplacement de la fosse septique d'égout est choisi en tenant compte de certaines normes et exigences. Il ne doit pas être à moins de : 5 m - des limites du domaine ; 5-10 m - d'un immeuble résidentiel (pour ne pas laver les fondations); 30 m - du rivage du réservoir le plus proche; 20 m (50 m) - de la prise d'eau sur sol argileux (sableux); 3 m - des sentiers, routes, arbres, arbustes, potagers. Le fond du puits doit toujours être au-dessus du niveau de la nappe phréatique dans la région. À l'endroit choisi, une entrée doit être prévue ou aménagée ultérieurement pour le pompage périodique des masses limoneuses par un équipement spécial.
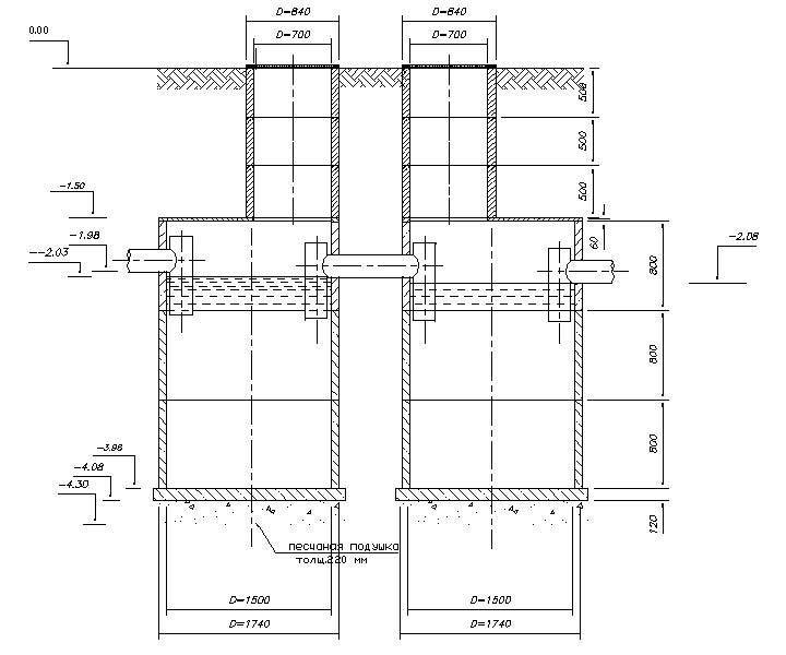
Calculs et schéma d'une fosse septique
Pour installer de vos propres mains un système d'égouts dans une maison privée à partir d'anneaux en béton, vous aurez besoin d'un schéma de construction établi selon des calculs préliminaires du volume de consommation d'eau par tous les résidents. Le volume de la fosse septique doit correspondre à la quantité d'eau consommée par les habitants en trois jours. Le tarif journalier pour un résident est de 200 litres. Le chiffre final du volume interne minimum de la fosse septique est obtenu par simple multiplication.
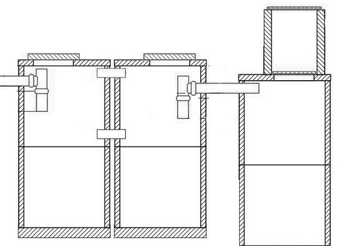
La valeur résultante est très importante si vous construisez de vos propres mains un égout dans une maison privée. Le schéma des anneaux prévoit la présence de 1 à 3 fosses septiques
Le nombre de puits dépend de la composition de la famille, du nombre d'appareils et de mécanismes à des fins sanitaires et de l'intensité de leur utilisation. Une fosse septique à trois chambres peut être considérée comme un véritable complexe biotechnique. Sa construction et son entretien coûteront plus cher, mais la productivité et la qualité du traitement des eaux usées sont considérablement augmentées.
Parmi les trois chambres :
- 1er - décantation des effluents acceptés ;
- 2ème - purification des liquides (déjà clarifiés) de la contamination;
- 3ème - chambre de filtrage.
Dans les chambres de traitement, l'anneau inférieur en béton doit être à fond aveugle pour protéger contre les fuites d'effluents liquides non encore nettoyés. La troisième chambre se distingue par la présence d'un anneau perforé inférieur, ainsi que d'une couche de drainage au fond du puits. Après avoir traversé le drainage, le liquide purifié est absorbé dans le sol. Dans les parois prédéterminées des anneaux, des entrées sont faites pour connecter les puits avec des tuyaux de trop-plein. Dans la première chambre de la fosse septique, un trou est également préparé pour le tuyau venant de la maison. Ce tuyau doit être en dessous du niveau de congélation du sol. Tous les tuyaux sont posés avec une pente pour assurer l'écoulement gravitaire des eaux usées.
Pour tous les puits, des dalles de béton rondes avec des trous pour
installation de trappes de visite et de tuyaux de ventilation.
L'élaboration d'un schéma préliminaire d'assainissement permet d'éviter
erreurs éventuelles, tracer l'ordre des travaux, faire un bilan qualité
préparation d'un complexe de construction
mesures, calculez le nombre de produits et de matériaux nécessaires.

Vous aimerez aussi: Égouts dans le pays - choix et appareil
Réalisation de calculs
Vous pouvez calculer le volume de réservoirs requis en utilisant l'exemple d'une famille de quatre personnes. En moyenne, chacun d'eux consomme 200 litres d'eau par jour, soit un volume total de 0,8 m³. Si des amis ou des parents visitent la maison, le débit total peut atteindre 1,5 m³. Lors de la conception, un indicateur égal à trois volumes quotidiens d'effluents est posé. C'est-à-dire qu'il est nécessaire de creuser un puits d'une capacité de 4,5 à 5,0 m³.
Ensuite, vous devez décider des anneaux.Leur capacité conditionnelle est calculée par une formule mathématique simple en multipliant le carré du rayon intérieur par 3,14.
En conséquence, nous obtenons les données suivantes pour des tuyaux standard de 90 cm de haut avec la section suivante :
- 100 cm - 0,7 m³;
- 150 cm - 1,4 m³;
- 100 cm - 2,8 m³.
Ainsi, le besoin d'anneaux uniquement pour collecter le liquide sera le suivant:
- 100 cm - 7 pièces ;
- 150 cm - 4 pièces ;
- 100 cm - 2 pièces.
C'est seulement le besoin de béton armé pour la construction du premier réservoir.
Pour bien construire un filtre, il vous faut 1 anneau de plus. Le produit inférieur sera utilisé pour remblayer la pierre concassée et le sable. C'est combien de ces matériaux sont nécessaires pour assurer un traitement des eaux usées de haute qualité.
Travaux préliminaires
Sélection de l'emplacement
L'installation de fosses septiques à partir d'anneaux en béton commence par le choix d'un emplacement pour cette station d'épuration. Bien sûr, de nombreuses personnes souhaitent réduire les coûts de main-d'œuvre pour la pose des tranchées de la maison au réservoir, mais néanmoins, certaines restrictions dues à la nécessité de maintenir un état sanitaire doivent être prises en compte sans faute.
Schéma montrant les principaux revers de la station d'épuration
Donc, nous avons une fosse septique :
- pas à moins de 5 m d'un bâtiment résidentiel;
- pas à moins de 50 m du point de prise d'eau (puits, puits);
- pas à moins de 5 m de la route;
- à moins de 3 m des arbres fruitiers et des arbustes à baies.
De plus, lors du choix d'un lieu, je conseillerais de rechercher une petite colline (sinon la fonte et l'eau de pluie s'écouleront dans la fosse septique à partir d'une grande surface).
Ne fais pas ça, c'est trop près de chez toi
Il sera également utile d'aménager une entrée pratique: même la fosse septique la plus efficace doit être pompée en cas de débordement, nous quittons donc le chemin des équipements d'égout sans faute.
Calcul des volumes
La prochaine étape est le calcul du volume requis des chambres de notre station d'épuration. Comprendre comment calculer une fosse septique est assez simple :
Deux anneaux, comme sur le schéma, peuvent ne pas suffire
Le volume est calculé par la formule :
V \u003d n x 3 x 0,2, où :
- V est la capacité requise de la fosse septique en mètres cubes;
- n - le nombre de personnes vivant dans une maison reliée à une fosse septique ;
- 3 - le nombre moyen de jours pendant lesquels une partie des déchets est complètement traitée ;
- 0,2 - le volume quotidien moyen d'eaux usées (en mètres cubes) par personne.
A titre d'exemple, on calcule le volume d'une fosse septique pour 3 personnes :
V \u003d 3 x 3 x 0,2 \u003d 1,8 m3. C'est le minimum à partir duquel vous pouvez commencer. Il s'avérera que vous en ferez plus - faites plus, moins souvent vous devrez pomper.
Calculons maintenant combien d'anneaux en béton de taille standard (1 m de haut et 1 m de diamètre) sont nécessaires pour équiper les alvéoles :
- Le volume d'un anneau est de 0,785 m3 ;
- On ne peut utiliser la bague supérieure que pour 1/3 du volume, c'est-à-dire sa capacité sera d'environ 0,26 m3 ;
- Par conséquent, pour un conteneur, nous avons besoin d'un minimum de 0,785 + 0,785 + 0,26 = 1,83 m3, c'est-à-dire trois anneaux.
Variantes avec différentes formes de puits, mais avec le même volume effectif
Enfin, nous décidons du nombre de caméras. En règle générale, une conception à deux chambres est suffisante pour une zone suburbaine - avec un puisard et un puits de filtration.Si nous construisons une fosse septique pour une grande maison qui utilise des volumes d'eau importants, il est conseillé d'installer une troisième chambre ou de fixer en plus un tuyau à la fosse septique pour la sortie vers le champ de filtration.
Sélection des matériaux
La technologie des fosses septiques n'implique pas l'utilisation de matériaux coûteux, cependant, compte tenu de la quantité de travail, je dois noter que le prix sera de toute façon très, très important.
C'est l'élément principal de la conception
Pour la construction d'une station d'épuration, nous aurons besoin de :
- anneaux en béton pour puits d'égout (taille standard);
- couvercles pour puits d'égout;
- regards d'égout avec couvercles (fonte ou polymère);
- gravier pour le drainage;
- sable pour le remblayage;
- ciment pour sceller les joints entre éléments et pour réaliser les semelles des fondations;
- matériaux d'étanchéité (matériau de toiture, mastic, verre liquide);
- tuyaux d'égout extérieurs.
Nous faisons des communications à partir de tuyaux pour les travaux extérieurs
De plus, pour le fonctionnement efficace de la fosse septique, il est souhaitable d'acheter une culture bactérienne spéciale contenant un complexe de micro-organismes pour une utilisation efficace de la matière organique.
Produit biologique pour la décomposition de la matière organique
Étapes de construction
L'installation s'effectue dans l'ordre suivant :
- Un lieu est sélectionné, un schéma d'installation est construit et les paramètres de la fosse septique sont calculés.
- Un trou est creusé.
- Les anneaux sont installés, les tuyaux sont connectés.
- Des travaux d'étanchéité et d'imperméabilisation sont en cours.
- Les couvertures sont installées.
- Le remblayage est en cours.
Description de vidéo
L'ordre des travaux et l'installation d'une fosse septique à partir d'anneaux en béton sur la vidéo:
Comment choisir le meilleur emplacement pour une fosse septique
La structure est montée au-dessus du niveau de la nappe phréatique.Le meilleur emplacement est à la distance maximale de la maison (au moins 7 mètres, mais pas plus de 20, afin de ne pas augmenter le coût de construction du pipeline). Il est logique d'avoir une fosse septique en bordure du site, à côté de la route. Cela réduira les coûts d'exploitation, car le coût de sortie du camion-citerne aspirateur est affecté par l'accès au système et la longueur du tuyau. De plus, avec le bon emplacement, le camion d'égout n'a pas besoin d'entrer dans la cour et les tuyaux ne rouleront pas sur les lits ou les chemins (sinon, lorsque le tuyau est enroulé, les déchets peuvent pénétrer dans le jardin).
Préparation de la fosse
Le travail au sol à l'aide d'une excavatrice prend 2 à 3 heures. La taille de la fosse doit être légèrement supérieure aux dimensions des puits. Cela est nécessaire pour l'installation en douceur des anneaux et leur étanchéité. Le fond est recouvert de gravats et bétonné.
Préparation d'une fosse pour une fosse septique à partir d'anneaux en béton
Installation d'anneaux et de tuyaux d'égout
Les anneaux pour une fosse septique sont installés à l'aide d'un équipement de levage, ce qui permet de gagner beaucoup de temps (par rapport à une installation manuelle). La fixation des coutures est assurée avec du mortier de ciment, des attaches métalliques (supports, plaques) sont également placées.
Le moment crucial est le processus d'installation des anneaux
Étanchéité et imperméabilisation
Le scellement des joints de la fosse septique à partir d'anneaux en béton est effectué des deux côtés de la structure. Pour cela, des solutions de protection de ciment et de revêtement sont utilisées. À l'intérieur du puits, vous pouvez installer des cylindres en plastique prêts à l'emploi. Ces surcoûts rendront le système 100% hermétique.
Dans le processus d'imperméabilisation des anneaux de béton pour une fosse septique, les joints sont traités avec du verre liquide, du mastic à base de bitume ou de polymère, un mélange de béton.Pour éviter le gel (et la destruction) de la structure en hiver, il est recommandé de l'isoler avec une couche de mousse de polystyrène.
Sceller les joints et imperméabiliser une fosse septique à partir d'anneaux de béton
Installation et remblai de regard
Les puits sont recouverts de dalles de béton, avec des trous pour les regards. Dans les deux premiers puits, une ventilation est nécessaire pour éliminer le méthane (le gaz apparaît suite à l'activité vitale des bactéries anaérobies). Pour le remblayage des planchers installés, le sol excavé de la fosse est utilisé (remblai).
Remblayage des puits finis
Comment démarre la fosse septique
Pour que le système commence à fonctionner efficacement, la fosse septique érigée doit être saturée de microflore anaérobie. Le processus d'accumulation naturelle prend plusieurs mois, il est donc accéléré en saturant la fosse septique avec une microflore importée. Vous pouvez le faire de deux manières :
- Une nouvelle fosse septique est remplie d'eaux usées et défendue pendant 10 à 14 jours. Il est ensuite chargé avec les boues d'une fosse septique anaérobie existante (2 seaux par mètre cube).
- Vous pouvez acheter des bioactivateurs prêts à l'emploi (souches bactériennes) dans le magasin (l'essentiel ici est de ne pas les confondre avec des aérobies destinés à d'autres systèmes de traitement).
Fosse septique prête à fonctionner à partir des anneaux
Quelles règles doivent être respectées lors de l'entretien d'une fosse septique
Il existe des règles simples qui soutiennent la qualité du système.
- Nettoyage. Deux fois par an, en plus du nettoyage des drains, la fosse septique doit être inspectée et les canalisations nettoyées. Une fois tous les 5 ans (et de préférence tous les 2-3 ans), les graisses lourdes du fond sont nettoyées. Le volume de boues ne doit pas dépasser 25 % du volume de la cuve. Lors du nettoyage, une partie des boues est laissée pour restaurer la microflore.
- Qualité de travail.L'effluent à la sortie du système doit être épuré à 70 %. L'analyse des eaux usées en laboratoire déterminera l'indice d'acidité, ce qui vous permettra de connaître la qualité du système de drainage.
- Mesures de sécurité:
- Les travaux à l'intérieur de la fosse septique ne sont autorisés qu'après une ventilation renforcée et l'utilisation d'une ceinture de sécurité (les gaz formés à l'intérieur peuvent être dangereux pour la vie humaine).
- Des mesures de sécurité accrues sont nécessaires lors du travail avec des outils électriques (environnement humide).
Une fosse septique constituée d'anneaux en béton rend le logement privé plus autonome et, malgré ses lacunes, c'est l'une des options les plus fiables et les plus durables pour les installations de traitement de l'immobilier de banlieue.
Les nuances du travail
Si le système d'égouts est construit de manière indépendante, plusieurs facteurs doivent être pris en compte afin d'organiser correctement les travaux.
L'un des problèmes est l'augmentation du sol sous l'influence de facteurs externes (soulèvement du sol). Ceci doit être pris en compte et, avant l'installation, créer une ceinture de sol (coussin de sable) d'une épaisseur d'au moins 30 cm.L'argile expansée ou similaire peut servir de matériau.
De plus, pour éviter les conséquences du soulèvement, selon le schéma d'installation standard pour éviter le cisaillement, ils sont interconnectés au moyen de plaques métalliques fixées avec des supports ou des boulons.
Un moyen légal vraiment efficace d'économiser de l'argent. Tout le monde doit le savoir !
Il vaut mieux se préparer à l'avance et louer une grue et un camion. Il est préférable de creuser les trois puits à l'avance et de réfléchir à l'entrée du lieu de travail.
Lors de l'installation, les éclats et les fissures dans le béton doivent être évités.
Une grande attention doit être portée à l'étanchéité afin que les eaux usées ne s'infiltrent pas par les deux premières cuves de traitement. Les oreillers et le verre liquide aideront à protéger correctement le sol contre les fuites.

Étapes d'assemblage d'une fosse septique à partir d'anneaux en béton de vos propres mains.
Après sélection, les schémas sont déterminés avec la zone où sera situé l'égout. Il est nécessaire de placer les conteneurs à une distance d'un mètre de la nappe phréatique. L'indicateur GWL est un problème caractéristique de presque toute la Russie centrale. Une fosse septique avec un niveau élevé d'eau souterraine est beaucoup plus difficile à installer et à utiliser. Par conséquent, lors de la planification d'un égout, vous devez tenir compte de l'état du sol de la région.
Un GWL élevé est considéré comme un paramètre inférieur à un mètre. L'indicateur maximum sera le plus objectif, il est donc préférable d'effectuer les mesures au printemps lorsque la neige fond ou à l'automne pendant la période des pluies. S'il y a un puits au sol alimenté par les eaux souterraines, le GWL est déterminé en mesurant la distance entre le niveau de liquide et la surface du sol.
S'il y a un problème avec le GWL, il faut accorder plus d'attention à l'étanchéité. Étant donné que les structures constituées d'éléments préfabriqués (anneaux en brique ou en béton) n'offrent pas une étanchéité adéquate, vous devez recourir à l'installation d'une fosse septique industrielle.
2. Creuser une fosse.
Le diamètre de la fosse pour une fosse septique en béton doit être plus large que les anneaux en béton, de sorte qu'après l'installation, il y ait de la place pour la pose d'une couche d'étanchéité. La forme de la fosse peut être carrée (sous une dalle de béton) ou ovale (sous une dalle de ciment).
3. Scellement de la fosse.
À l'intérieur, 0,3 m de sable est coulé et, après un prétraitement au mortier de ciment, des dalles ou des étirements sont posés.
4. Installation des anneaux.
Les anneaux descendent un par un.Les passages de tuyaux sont scellés pour éviter les fissures après retrait du béton, les joints entre les anneaux sont scellés avec du ciment et traités avec de la graisse de silicone pour l'étanchéité.
5. Puits de traitement des fosses septiques.
Des puits sont faits avec une profondeur de 1 m, des tuyaux y sont placés, à l'intérieur desquels de la pierre concassée est coulée pour protéger les murs de la plaque organique.
6. Tuyaux d'égout.
Il est nécessaire d'assurer le mouvement sans entrave de l'eau entre les réservoirs. Pour ce faire, le tuyau est amené dans le puits, le premier d'affilée, légèrement incliné, et dans chacun des suivants, il est placé 20 cm plus bas.
Les parois extérieures de l'égout sont traitées avec de l'argile.

Enfin, une trappe en plastique est posée sur une fosse septique constituée d'anneaux en béton.
Conseils pour l'installation d'une fosse septique pour vous donner :
- Pour que l'égout ne gèle pas, les anneaux doivent être isolés.
- Un trou de ventilation est souhaitable sur chaque conteneur d'une fosse septique en béton.
- La résistance de la structure est augmentée si les anneaux sont reliés par des supports métalliques.
- Un couvercle de regard permet de surveiller l'état de la fosse septique.
- La location d'équipements spéciaux facilitera la construction d'une fosse septique.
Tarifs d'installation professionnels
Le coût d'installation d'une fosse septique clé en main dépend de la taille de l'égout. En moyenne, le prix d'un anneau est de 2000. Le coût du travail est de 2500 roubles.
Le coût des éléments, roubles
Le coût du drainage est de 7 500 roubles, l'installation avec les tuyaux et l'isolation nécessaires - 14 000, l'installation de tuyaux dans la maison - 2 500 avec une fondation en colonne et 6 000 avec une fondation en bande.
De plus, une fois toutes les quelques années (selon l'intensité d'utilisation), les services d'entreprises de nettoyage de puisards seront requis. Les prix commencent à partir de 1000 roubles pour 1 m3.
Sous l'imperméabilisation du béton, on entend des mesures pour le protéger de l'humidité.
Les pierres à base de ciment (les briques sont une catégorie à part) par définition.
L'un des éléments importants d'une maison de campagne avec un aménagement de plus d'un étage.
Projets de maisons en béton cellulaire
Choisir une fondation pour une maison de blocs de mousse
Quel est le meilleur béton cellulaire ou béton cellulaire?
Avantages et inconvénients des blocs de béton cellulaire
Aperçu des qualités de béton
L'utilisation de DSP dans la construction
Comment créer un puits de filtration

Un puits de filtration peut être fabriqué en achetant du matériel prêt à l'emploi - plastique, béton, métal, ou vous pouvez le construire vous-même. Le schéma d'installation est similaire à une fosse septique, mais a ses propres différences. Configurons donc la séquence d'actions :
- Nous creusons un fossé;
- Nous installons un anneau doté de connecteurs d'un diamètre de 5 cm sur tout le périmètre;
- Nous remplissons l'anneau de gravier, de pierre concassée et de laitier avec une couche de 1 mètre;
- La partie extérieure de l'anneau doit avoir une distance au sol - 50 cm;
- Nous installons un tuyau pour les drains;
- Nous remplissons le puits de terre;
- Le bâtiment est recouvert d'un plafond, qui peut être en béton ou en bois, et nous laissons l'entrée pour le système de ventilation.
Maintenant, tout le système est prêt.
Étapes de construction à faire soi-même
L'installation pour la construction d'une fosse septique sur son site comprend plusieurs étapes. Tous les calculs ont été effectués, les schémas ont été approuvés - nous préparons du matériel.
Préparation des matériaux et des outils
Dimensions des anneaux en béton pour une fosse septique.
Lors de la préparation d'une liste pour l'achat de matériaux, nous écrivons les structures en béton dans le premier paragraphe. Connaissant le nombre et la hauteur des réservoirs, il est facile de calculer le nombre d'anneaux requis (hauteur 90 cm). L'achat d'anneaux inférieurs avec un fond prêt à l'emploi facilitera le travail. Outils requis :
- tuyaux en plastique;
- coins, tés;
- amiante, tuyaux de ventilation;
- ciment;
- matériau d'imperméabilisation;
- Pierre concassée;
- pelle, perforateur, échelle, scie à métaux, truelle.
Sélection de l'emplacement
L'emplacement des fosses septiques est d'une grande importance. La décision est influencée par les exigences sanitaires, épidémiologiques et de construction :
- calcul correct de la distance de la maison, la source d'eau potable;
- emplacement bas des eaux souterraines;
- disponibilité d'un accès gratuit pour le transport.
Il convient de savoir que le dispositif d'assainissement à une distance de plus de 20 m nécessite des coûts supplémentaires pour la canalisation d'alimentation et l'aménagement des puits de révision.
Préparation de la fosse
Préparation d'une fosse pour une fosse septique.
Tous les travaux préparatoires ont été effectués - un essaim de fosses. Pour creuser un trou, vous devez utiliser un équipement spécial, ce qui vous fera gagner du temps, ou creuser un trou vous-même. L'avantage du creusement manuel est que les dimensions requises sont immédiatement respectées, aucun ajustement de ces dimensions n'est nécessaire. La profondeur de la fosse est d'au moins deux mètres, creusez la largeur avec une marge afin que les côtés du fossé ne s'accrochent pas aux anneaux de béton.
Il est considéré comme une version classique de la fosse - une forme ronde. Cette affirmation est facile à réfuter. Une fosse de forme carrée est excellente, il est plus facile de la creuser et une dalle de béton de forme carrée reposera plus librement. Avec une fosse septique à trois chambres, nous creusons trois trous, avec une fosse septique à deux chambres - deux. Nous plaçons chaque trou suivant 20-30 cm plus bas.
Pose de bagues, tuyauterie
Plomberie à une fosse septique.
Il est interdit de faire rouler les anneaux sur la surface, des fissures apparaissent lors d'un tel transport. Il vaut la peine d'impliquer un équipement spécialisé dans l'installation, qui garantira que les anneaux sont alimentés en position verticale.Avant l'installation, il convient de préparer la base: un coussin de sable de 30 cm de haut et une chape en béton de 20 cm de haut.La base empêche le ruissellement de pénétrer dans le sol. La chape peut être remplacée par une dalle de béton solide ou des anneaux avec un fond en béton. Les fosses septiques à chambre unique ne sont pas bétonnées, un coussin de drainage suffit.
Scellage
Des anneaux sont posés sur le fond bétonné. Des trous pour le tuyau de trop-plein sont percés dans l'anneau, les conduites de raccordement sont soigneusement scellées avec du ciment. Des solutions de revêtement protecteur sont utilisées pour les finitions extérieures. S'il y a un potentiel financier, cela vaut la peine d'acheter des bouteilles en plastique et de les mettre à l'intérieur du puits pour empêcher les contaminants de pénétrer dans le sol. Vous pouvez commencer l'étape de l'imperméabilisation.
Étanchéité
Protéger la structure de la pénétration de l'eau est peut-être l'étape la plus cruciale. Malgré la croyance selon laquelle le béton n'absorbe pas l'eau, le puits est complètement étanche. Verre liquide. mastic bitumineux ou polymère, mélange de béton avec additifs - idéal pour un travail responsable. Les joints annulaires sont soigneusement traités.
Couvrir et remblayer le puits
Le dernier facteur de l'ouvrage principal est l'installation de chevauchements sur les anneaux. Les conteneurs sont recouverts d'une dalle de béton avec un trou pour la trappe. Le puits est recouvert de terre préalablement excavée mélangée à du sable. Répartir uniformément sur toute la surface et bien compacter.
Disposition du fond du réservoir
La plaque inférieure est conçue pour sceller et empêcher les déchets toxiques de pénétrer dans le sol.
Le fond est fait dans l'ordre suivant:
- Le sol est qualitativement nivelé et damé. S'il y a des racines de plantes, elles sont coupées et leurs sections sont traitées avec un antiseptique.
- Un géotextile est posé sur le sol. Cela empêchera la germination de l'herbe et l'érosion du sol sous le conteneur.
- À une hauteur de 15 cm, des trous d'un diamètre de 12 à 16 mm sont percés dans les murs. Des mesures sont prises, des broches de renforcement sont coupées. Ils sont insérés et fixés dans des trous, formant un treillis avec un maillage de 15-20 cm.
- Un mélange de sable et de gravier d'une hauteur de 10 à 12 cm est versé sur le géotextile, le matériau est mouillé et nivelé.
- Le béton est mélangé. La proportion de ciment, de sable et de gravier est prise 1:3:3. La solution est coulée jusqu'à ce qu'elle recouvre la cage d'armature d'une couche de 5 cm.Il faut au moins 14 jours pour que le béton gagne en résistance.
Cette technologie de fabrication du fond assurera sa résistance à la pression et son étanchéité.












































