Comment faire une fosse septique à partir d'anneaux de vos propres mains: schémas et options + instructions étape par étape

Fosse septique pour la maison et le jardin: des anneaux, sans pompage (vidéo) + avis

Comment organiser une fosse septique à partir d'anneaux en béton de vos propres mains, un schéma et des étapes de travail

Considérez les étapes de travail sur la construction d'une fosse septique à deux chambres. Le premier sera un puisard et le second un filtre de sol naturel. Le volume total des deux chambres doit être tel qu'il assure la réception d'un effluent en quantité égale au volume de liquide provenant de la maison en 3 jours.

Il est établi que chaque personne dépense 200 litres d'eau par jour. Cela signifie que pour une famille de 4 personnes, le volume minimum de la fosse septique sera d'environ 2,5 m³. Pour cela, seuls deux anneaux d'un mètre et demi suffisent. Cependant, la profondeur de gel du sol doit également être prise en compte. Par conséquent, vous aurez besoin d'au moins deux anneaux supplémentaires, qui seront au-dessus.

nous déchargeons les anneaux de la carrosserie de la voiture à l'endroit où nous prévoyons de creuser une fosse. Nous mettons deux anneaux directement en place. Nous faisons la distance entre eux pas plus de 1 m;

Comment faire une fosse septique à partir d'anneaux de vos propres mains: schémas et options + instructions étape par étapeFosse septique à faire soi-même en anneaux de béton

  • dans le deuxième anneau, à l'aide d'un perforateur, nous creusons de nombreux trous sur toute la surface. Ils sont nécessaires pour le drainage. Leur taille ne doit pas être inférieure à 50x50 mm, car les petites ont tendance à s'estomper avec le temps;
  • nous commençons à creuser le sol à l'intérieur de l'anneau. Au fur et à mesure que le sol est excavé, nous creusons sous les murs de l'anneau. Cela lui permettra de s'enfoncer progressivement dans le sol. Lorsque le bord supérieur est au niveau du sol, nous l'enduisons d'une solution de ciment et posons un deuxième anneau dessus. Nous continuons à creuser jusqu'à ce que le deuxième anneau soit dans le sol. Après cela, nous remplissons le fond de béton après l'avoir préalablement enfoncé. Une fois la solution durcie, nous organisons l'imperméabilisation du revêtement avec du mastic bitumineux, y compris au niveau des joints entre les anneaux;

Comment faire une fosse septique à partir d'anneaux de vos propres mains: schémas et options + instructions étape par étapeSchéma d'étanchéité des joints et des joints des anneaux en béton

  • nous fermons l'anneau supérieur avec un couvercle avec une trappe pour décharger le substrat, qui s'accumulera progressivement dans le compartiment. Nous plaçons les tuyaux d'égout dans un récipient sous le niveau de congélation du sol, ou nous les isolons thermiquement à fond avec un appareil de chauffage;
  • de même on creuse dans les anneaux du second puits. Seul le fond n'a pas besoin d'être bétonné, mais au contraire, il vaut la peine d'y verser une couche de gravats pour le drainage. Le tuyau entre les premier et deuxième compartiments est fait à la bonne profondeur pour qu'il ne puisse pas geler.

Comment faire une fosse septique à partir d'anneaux de vos propres mains: schémas et options + instructions étape par étapeVue de dessus - options de placement pour les anneaux septiques en béton

Conseil utile! Si beaucoup de personnes vivent dans la maison et que la consommation d'eau dépasse les volumes ci-dessus, vous ne devez pas creuser de fosses profondes. Ce n'est pas confortable.Il est beaucoup plus facile d'ajouter un troisième compartiment, en bétonnant le fond dans le second.

Les nuances du processus de construction d'un nettoyeur à partir d'anneaux en béton

Le schéma de fosse septique à faire soi-même à partir d'anneaux en béton implique la réalisation de travaux de bétonnage du fond. Il n'est pas produit uniquement dans le dernier puits. Pour le bétonnage, il est nécessaire de bien compacter le fond et d'y verser une couche de pierre concassée de 5 cm d'épaisseur.Ensuite, nous posons l'armature et la remplissons avec 5 cm de mortier supplémentaires.La couche totale de chape sera de 10 cm.

Comment faire une fosse septique à partir d'anneaux de vos propres mains: schémas et options + instructions étape par étapeFosse septique à une chambre et à deux chambres en anneaux de béton

Une caractéristique des tranchées pour les conduites d'égout est que pour chaque conduite suivante, la tranchée devra être creusée de 20 cm plus profondément pour assurer une différence de hauteur. Par conséquent, la profondeur des puits eux-mêmes est d'autant plus grande que leur numéro de série est élevé.

Les trous percés dans les anneaux pour les tuyaux sont soigneusement scellés avec n'importe quel mastic. Il est très important de le faire dans les points de vente. Les couvercles des puits doivent être équipés de regards d'égout. Cela vous permettra de réaliser confortablement leur entretien en cas de pollution. De plus, des trous d'un diamètre de 100 mm sont percés dans les couvercles et des tuyaux coupés de l'égout y sont insérés, équipés de parapluies sur le dessus. Ils jouent le rôle de tuyaux de ventilation.

Comment faire une fosse septique à partir d'anneaux de vos propres mains: schémas et options + instructions étape par étapeUn exemple d'aménagement d'une fosse septique en béton de vos propres mains

Après avoir terminé toutes les étapes proposées, nous allons construire une fosse septique pour une résidence d'été sans pomper de nos propres mains. Après tout, seuls les composants solides des déchets s'accumuleront et les liquides iront dans le sol sans nuire à l'environnement. Le processus de construction n'est pas difficile et le résultat satisfera pleinement les besoins de tout ménage.

Si vous n'avez pas le temps ou les compétences de base en construction, vous pouvez commander l'installation d'une fosse septique à anneau en béton clé en main. Dans ce cas, le coût des travaux effectués devra être ajouté au devis total de la construction.

Emplacement de l'ouvrage

Lors de la conception d'une fosse septique, la zone sanitaire est placée de manière à ce que les déchets organiques ne puissent pas pénétrer dans l'eau potable et le sol fertile. Pour ce faire, lors du choix d'un lieu, vous devez être guidé par les codes et règlements sanitaires et de construction.

L'emplacement correct du système de nettoyage sur le site est réglementé par :

  • SNiP 2.04.03.85. Il prescrit les règles de construction des structures d'égouts externes.
  • SanPiN 2.2.1/2.1.1.1200-03. Il énumère les exigences relatives à la création de zones dangereuses pour l'environnement.

Selon les normes, afin d'éviter de tremper les fondations en cas de fuites d'urgence, la fosse septique doit être placée plus bas que la maison.

Lire aussi :  Au lieu d'une serpillière - ce qui ne peut pas être lavé

Le non-respect de ces exigences peut entraîner le risque que des effluents non traités pénètrent dans les aquifères (+)

Lors du choix d'un lieu, vous devez absolument tenir compte de la présence de réservoirs d'eau courante, en gardant une distance de 5 m.La distance des arbres doit être de 3 m, des arbustes - réduite à un mètre.

Il est également nécessaire de savoir où est posé le gazoduc souterrain. La distance jusqu'à celle-ci doit être d'au moins 5 m.

Étant donné que la construction des chambres de nettoyage à partir des anneaux implique la construction d'une fosse et l'utilisation d'équipements spéciaux, lors du choix d'un lieu, il convient de prévoir un espace libre pour son entrée et ses manœuvres.

Mais gardez à l'esprit que les machines ne peuvent pas être placées directement au-dessus du lieu d'enfouissement de la station d'épuration. Avec leur poids, ils peuvent détruire toute la structure.

Conseils éclair

  1. Dans des conditions où la fosse septique doit être placée trop loin de la maison et que la canalisation entre elles dépasse 20 mètres de long, il est recommandé d'aménager des puits de révision spéciaux à des intervalles de 15 à 20 m, en particulier dans les virages. Ils vous permettront de surveiller l'état de la canalisation et, si nécessaire, de nettoyer rapidement et efficacement les canalisations sans avoir à les creuser et à les démonter sur toute la zone.
  2. En vente, vous pouvez acheter des cerceaux en béton avec un fond complètement vierge. Ils sont optimaux pour les bassins de décantation et ne nécessitent pas de bétonnage supplémentaire du fond.
  3. Pour réduire la fréquence d'appel des équipements de puisard, en raison du remplissage rapide du conteneur avec des déchets solides et pour réduire leur quantité, des additifs bioactifs spéciaux peuvent être utilisés.
  4. Pour économiser de l'argent et du temps, il est conseillé de creuser d'abord une fosse universelle pour un réservoir d'égout, puis de commander ensuite des anneaux en béton. Cela vous permettra d'utiliser immédiatement l'équipement de déchargement pour installer les anneaux de la machine directement dans la fosse.
  5. Comme sols en béton pour les puits, il est conseillé d'utiliser des dalles avec des trappes déjà intégrées. Cela permettra non seulement de surveiller en permanence le processus de remplissage de la fosse septique, en la nettoyant des impuretés jusqu'à ce qu'elles dépassent un niveau critique, mais également d'introduire dans la fosse des solutions contenant des bactéries spéciales, qui catalysent la décomposition des déchets et réduisent la puanteur.
  6. Pour une ventilation plus efficace de la structure, il est souhaitable d'amener des tuyaux de ventilation à chaque puits séparément.

Règles générales d'installation

Pour créer une structure de nettoyage solide et durable, vous devez être guidé par un certain nombre de règles de base :

  1. La distance entre les puits de la fosse septique doit être d'au moins un demi-mètre. L'espace rempli de bitume servira de tampon lorsque des mouvements de sol se produiront.
  2. La présence de pierre concassée ou coussin de gravier-sable. Une telle couche assurera l'immobilité de la structure même si le sol sous les réservoirs "marche". De plus, il est nécessaire de vidanger l'eau en cas de fuite des puits.
  3. Ne négligez pas l'étanchéité. Pour sceller les joints entre les anneaux adjacents, il est recommandé d'utiliser plusieurs types de matériaux isolants, traitant à la fois la surface intérieure et les parois extérieures des réservoirs.

Mieux les travaux préparatoires sont effectués et plus toutes les conditions d'installation sont observées avec soin, moins il sera nécessaire de faire appel à la réparation et au nettoyage du réservoir de réception.

Avantages et inconvénients des fosses septiques en béton

La popularité du béton anneaux pour la construction d'égouts autonomes associé non seulement aux traditions, mais aussi à plusieurs qualités positives :

  1. Les produits en béton ont un prix relativement bas. Les matériaux pour construire un réservoir sont moins chers qu'une station de nettoyage en plastique prête à l'emploi.
  2. Le béton est une pierre artificielle durable qui résiste aux températures extrêmes, à la pression du sol et aux décharges importantes.
  3. Ces anneaux sont durables et leurs conteneurs sont spacieux.

Les qualités négatives de telles fosses septiques ne sont pas moins:

  1. Pour la livraison et l'installation des anneaux en béton, en raison de leur poids important, il est nécessaire de louer un équipement spécial.
  2. Il est difficile de faire des trous pour les canalisations dans le béton.
  3. Des fissures et des éclats se forment dans les murs et les joints, ce qui conduit au ruissellement qui pénètre dans le sol.Par conséquent, une révision régulière du réservoir est nécessaire.
  4. En raison du grand diamètre, de telles installations de traitement nécessitent de grandes surfaces.
  5. Un problème commun avec ces fosses septiques est la puanteur.

Si pour vous les avantages des cuves de traitement en béton l'emportent sur les inconvénients, alors avant de procéder à l'achat des matériaux et à l'installation, il est nécessaire d'élaborer correctement un projet.

Schémas d'égouts à partir d'anneaux en béton

L'assainissement des anneaux de béton se fait selon différents schémas. Le type spécifique dépend de la saisonnalité de la résidence, de l'intensité de l'exploitation, des possibilités financières d'achat d'équipements supplémentaires et du paiement des frais d'exploitation.

Les options suivantes peuvent être distinguées :

  1. Septique de stockage. Derrière ce nom se cache un cloaque ordinaire avec un fond et des parois étanches. L'étanchéité est une exigence impérative dont le non-respect, selon le code administratif de la Fédération de Russie, est considéré comme un dommage au sol. Lorsque les drains remplissent le réservoir, ils appellent un camion d'égout.

Une fosse septique de stockage est simplement un récipient dans lequel les eaux usées sont collectées.

Plus la capacité est petite et plus l'intensité de fonctionnement des points connectés à l'égout est élevée, plus vous devez souvent appeler la voiture. C'est souvent ainsi qu'ils organisent les eaux usées du pays à partir d'anneaux en béton.

  1. Fosse septique anaérobie. Fosses septiques à deux chambres, moins souvent à chambre unique, dans des conteneurs scellés dont les eaux usées sont nettoyées par des bactéries anaérobies (sans oxygène). Le nombre de chambres et leur volume sont choisis de manière à ce que les drains à la sortie de la fosse septique soient nettoyés à 65-75%. Le post-traitement s'effectue dans des puits de filtration (« sans fond »), des tranchées ou des champs à bactéries aérobies (on parle alors de « traitement biologique »). Ce n'est qu'alors que l'effluent peut être rejeté dans le sol.Le schéma est très populaire parmi les propriétaires de maisons de campagne et de chalets en raison de la simplicité de l'appareil et de l'indépendance énergétique. L'inconvénient du système est qu'il est nécessaire de changer périodiquement le sable et le gravier dans les installations de filtrage, alors qu'elles doivent être ouvertes, et que le matériel utilisé doit être éliminé (bien que cela soit fait rarement).
Lire aussi :  Comment se débarrasser une fois pour toutes des mauvaises odeurs dans le réfrigérateur

Schéma d'une fosse septique anaérobie à partir d'anneaux en béton armé

  1. Fosses septiques aérobies et stations d'épuration biologique. Il existe également une phase d'accumulation primaire et de traitement partiel des matières fécales à l'aide de bactéries anaérobies. Le principe de fonctionnement consiste à clarifier les eaux usées en l'absence d'oxygène, et à les post-traiter dans la dernière chambre avec des bactéries aérobies dans des conditions d'injection d'air forcé. La pureté des eaux usées à la sortie est considérée comme étant de 95 à 98 % et elles peuvent être rejetées dans le sol ou utilisées pour l'irrigation. L'inconvénient est que les bactéries aérobies meurent si le compresseur d'alimentation en air ne fonctionne pas. Et cela se produit avec un mauvais réseau en raison de pannes de courant.

Le principe de fonctionnement des fosses septiques aérobies - l'électricité est nécessaire pour le fonctionnement

Caractéristiques et types

Comment faire une fosse septique à partir d'anneaux de vos propres mains: schémas et options + instructions étape par étape

Le tuyau flexible pour la plomberie est un tuyau de différentes longueurs, en caoutchouc synthétique non toxique. En raison de l'élasticité et de la douceur du matériau, il prend facilement la position souhaitée et permet une installation dans des endroits difficiles d'accès. Pour protéger le tuyau flexible, la couche de renfort supérieure est conçue sous la forme d'une tresse composée des matériaux suivants :

  • aluminium. Ces modèles ne résistent pas à plus de +80 ° C et conservent leur fonctionnalité pendant 3 ans. En cas d'humidité élevée, la tresse en aluminium est sujette à la rouille.
  • En acier inoxydable. Grâce à cette couche de renforcement, la durée de vie du flexible d'alimentation en eau est d'au moins 10 ans et la température maximale du fluide transporté est de +95 °C.
  • Nylon. Une telle tresse est utilisée pour la fabrication de modèles renforcés pouvant supporter des températures jusqu'à +110°C et destinés à un usage intensif pendant 15 ans.

Les paires écrou-écrou et écrou-mamelon sont utilisées comme attaches, qui sont en laiton ou en acier inoxydable. Les appareils avec différents indicateurs de température admissible diffèrent par la couleur de la tresse. Les bleus sont utilisés pour les raccordements d'eau froide et les rouges pour l'eau chaude.

Lors du choix d'une alimentation en eau, vous devez faire attention à son élasticité, à la fiabilité des fixations et à son objectif. Il est également obligatoire d'avoir un certificat qui exclut la libération de composants toxiques par le caoutchouc pendant le fonctionnement.

Le processus d'installation d'une fosse septique à partir d'anneaux en béton

Comment faire une fosse septique à partir d'anneaux de vos propres mains: schémas et options + instructions étape par étape

Où placer une fosse septique

Le volume de la fosse septique est calculé. Vous devez maintenant choisir le bon endroit pour son installation sur votre site. Dans ce cas, les codes sanitaires et du bâtiment prévoient les réglementations suivantes :

  • la fosse septique doit être retirée des sources d'eau souterraine de 50 m;
  • les arbres et arbustes ne doivent pas être à moins de 3 mètres de la fosse septique, car leurs racines peuvent la détruire;
  • la fosse septique doit être retirée de la fondation des bâtiments résidentiels d'au moins 5 mètres, mais pas plus de 10 m, afin d'éviter le colmatage de la canalisation d'alimentation;
  • le tuyau allant de la maison à la fosse septique, si possible, ne doit pas avoir de coudes.

Il est préférable de dessiner un schéma du site avec l'emplacement choisi, les communications et les bâtiments prévus et existants.Après cela, vous pouvez procéder à la sélection et à l'achat de matériaux et d'outils.

Vous trouverez ci-dessous une liste de tout ce dont vous avez besoin :

  • les anneaux eux-mêmes sont en béton, y compris le col ou les plafonds, ainsi que les anneaux à fond étanche ;
  • trappes pour fosses septiques;
  • canalisations pour la ventilation, raccordements pour les étapes de purification, drainage de la maison, ainsi que les éléments de raccordement ;
  • matériaux de construction pour le traitement des joints, vidage du filtre inférieur;
  • des outils pour couper et raccorder des tuyaux en plastique, ainsi qu'une pelle, une truelle, une brosse.

Il est également nécessaire de louer des équipements de creusement et de levage et de décider de leur accès au site d'installation.

Si vous avez traité tout ce qui précède, vous pouvez procéder à l'aménagement de la fosse.

Préparation de la fosse

Comment faire une fosse septique à partir d'anneaux de vos propres mains: schémas et options + instructions étape par étape

Le creusement d'une fosse est mieux confié à une excavatrice

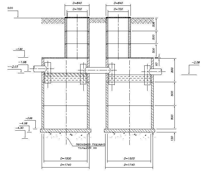
La configuration de l'excavation dépendra de s'il est prévu de disposer les fosses septiques en ligne droite ou en forme de triangle. Les dimensions de la fosse doivent être telles qu'il y ait au moins un demi-mètre entre les parois de la fosse et les réservoirs. Cela rendra le coffrage et facilitera la pose des anneaux.

De plus, la fosse septique elle-même doit être située en dessous du niveau de température zéro du sol, typique de la période hivernale, et chaque chambre suivante est installée à 0,2-0,3 m en dessous de la précédente.

S'il n'y a pas de fond en béton dans l'anneau inférieur des deux premières chambres de la future fosse septique, une base en béton est coulée au fond de la fosse. Pour un puits de filtration, qui ne doit pas avoir de fond, un coussin d'un demi-mètre de pierre concassée est coulé.

Au stade de la préparation de la fosse, une tranchée pour le tuyau d'égout est également généralement égouttée. Dans ce cas, il convient de tenir compte du fait que le pipeline doit passer avec une pente de 2-3 cm par mètre.

Fosse septique à faire soi-même en anneaux de béton. Installation

Comment faire une fosse septique à partir d'anneaux de vos propres mains: schémas et options + instructions étape par étape

Fosse septique à faire soi-même en anneaux de béton

La fosse est prête, vous pouvez procéder directement à l'installation.

Étape 1. Les anneaux sont installés strictement horizontalement les uns sur les autres avec une grue.

Comment faire une fosse septique à partir d'anneaux de vos propres mains: schémas et options + instructions étape par étape

Pose d'anneaux

Étape 2 Fermez les joints des anneaux avec du verre liquide mélangé à du ciment. Pour augmenter la résistance des coutures, vous pouvez également les enduire de bitume de l'intérieur de la fosse septique et également les fixer avec des agrafes qui ne permettront pas aux anneaux de se déplacer dans un plan horizontal.

Étape 3 Posez un tuyau d'égout externe de la maison à la fosse septique.

Comment faire une fosse septique à partir d'anneaux de vos propres mains: schémas et options + instructions étape par étape

Pose de canalisations d'égout

Étape 4. Des trous sont percés dans les anneaux libérés pour la canalisation d'alimentation et les tuyaux reliant les chambres de la fosse septique. Dans ce cas, le tuyau entre les deux premiers réservoirs de la fosse septique doit passer 0,3 mètre plus haut qu'entre la deuxième chambre et le puits de filtration. Les raccords pour tuyaux sont installés dans tous les trous.

Lire aussi :  Établi de bricolage dans le garage : guide de montage à la maison

Dans les anneaux libérés, des trous sont percés pour la canalisation d'alimentation et les tuyaux reliant les chambres de la fosse septique

Étape 5 Poser les tuyaux de raccordement.

Tuyaux de trop-plein

Étape 6. Toutes les canalisations sont reliées à la fosse septique par des raccords préparés et les joints sont traités avec un mastic à base de silicone ou du verre liquide.

Comment faire une fosse septique à partir d'anneaux de vos propres mains: schémas et options + instructions étape par étape

Connexion de tuyauterie

Étape 7. À l'extérieur, la fosse septique est recouverte d'un matériau de toiture.

Étape 8 Remblayer la fosse septique avec un mélange sable-sol jusqu'au bord de l'anneau supérieur. Au même stade, des tuyaux sont coulés.

Comment faire une fosse septique à partir d'anneaux de vos propres mains: schémas et options + instructions étape par étape

Remblayage d'une fosse septique

Étape 9. Installez le col ou la dalle de plancher, ainsi que la trappe.Les trous d'homme permettent l'entretien des fosses septiques, qui consiste à pomper les sédiments et les boues solides, à ajouter des produits biologiques, et dans le puits de filtration - en remplaçant la couche filtrante tous les 5 ans ou plus tôt si nécessaire.

Comment faire une fosse septique à partir d'anneaux de vos propres mains: schémas et options + instructions étape par étape

Col de fosse septique avec trou d'homme

Étape 10 Recouvrez la fosse septique d'isolant, recouvrez-la de terre et restaurez le paysage.

La fosse septique est prête.

Fosse septique en anneaux de béton : étapes de construction

L'assainissement avec une fosse septique constituée d'anneaux en béton se distingue par sa fiabilité, sa durabilité et un haut niveau de nettoyage des eaux usées domestiques. Le prix d'une telle structure sera relativement bas, et avec une excellente étanchéité et le bon schéma, il ne sera pas nécessaire de pomper souvent les réservoirs. Les difficultés de construction comprennent la nécessité d'attirer des équipements lourds et les particularités de l'installation de tuyaux entre les sections en béton.

Phase préparatoire

L'installation d'une fosse septique est effectuée dans le respect de toutes les règles et réglementations sanitaires et de construction. Ils réfléchissent à la conception de la station d'épuration, à l'implantation sur un site privé et coordonnent le plan avec les autorités compétentes. Ils décident quelle fosse septique est préférable d'installer afin que les égouts dans une maison privée soient rendus aussi confortables que possible. Calculez correctement le volume de la fosse septique et procédez à la construction.

Les fouilles

La fosse de la station d'épuration d'une maison privée doit être si grande que rien n'interfère avec l'installation des anneaux. Le fond des fosses d'aisance, au site d'installation des décanteurs, est bétonné. Cela empêche la pénétration d'eau non traitée dans le sol.

Fosse pour fosse septique

La base de la deuxième chambre ou des chambres suivantes est conçue de manière à ce que l'eau puisse pénétrer dans le sol. Pour ce faire, réalisez une nappe de filtration jusqu'à 1 mètre de profondeur à partir de gravier et de sable.

Conseils! Si, lors de l'installation d'une fosse septique, la fosse sous le puits de filtration atteint la couche sablonneuse du sol, l'eau la quittera aussi rapidement et facilement que possible.

La forme de la fosse ne doit pas nécessairement être ronde, une forme carrée standard convient également, l'essentiel est que les anneaux y pénètrent librement. De plus, une dalle de béton prête à l'emploi peut être posée au fond d'une fosse carrée, tandis que seule une chape en ciment peut être réalisée dans une fosse ronde. À ce stade des travaux, il convient également de rappeler que si chaque puits suivant est situé 20 à 30 cm plus bas que le précédent, la fosse septique et le système d'égout lui-même seront plus fonctionnels.

Livraison et pose d'anneaux en béton armé

Les anneaux sont livrés et installés par transport de marchandises, il vaut donc la peine de prévoir l'accès au chantier de construction à l'avance, de prendre en compte les coûts économiques supplémentaires et le rayon de braquage de la flèche de la grue, les communications gaz, téléphoniques ou électriques ne doivent pas l'interférer . Entre eux, les anneaux sont généralement reliés par des supports métalliques, les joints sont enduits d'une solution de ciment et de sable.

Installation d'anneaux en béton armé

Lorsque tous les puits sont installés, des trous y sont percés et des tuyaux de trop-plein sont installés, le système d'égout externe est relié à la station d'épuration par un tuyau de vidange pénétrant dans le premier réservoir. Les points d'entrée des tuyaux doivent être scellés. L'espace entre les anneaux installés et les parois de la fosse est recouvert de terre et soigneusement compacté en couches. Si la fosse septique est installée au-dessus du niveau de congélation du sol, elle est isolée, sinon le système d'égouts ne fonctionnera pas pendant la saison froide.

Étanchéité

Une bonne étanchéité d'une fosse septique est fondamentale pour son bon fonctionnement, chaque constructeur détermine quel scellant convient le mieux à cet effet. Habituellement, le mastic caoutchouc-bitume est utilisé pour traiter les joints, les mélanges de polymères sont moins courants. Pour un fonctionnement plus long des structures de puisard, une étanchéité interne des coutures du réservoir est également réalisée.

Étanchéité des couronnes de puits

Si l'étanchéité est mal faite, la pénétration de drains non traités dans le sol sera le moindre des maux. Les fosses septiques, en particulier lors du dégel printanier, seront remplies d'eau et tout son contenu s'écoulera par la plomberie de la maison. Des pompages répétés seront nécessaires.

Ventilation

Un tuyau d'évacuation jusqu'à 4 mètres de haut au-dessus du niveau de la fosse septique doit être installé sur la première fosse. Il est nécessaire pour que les gaz formés à la suite de la fermentation des effluents puissent s'échapper et qu'il n'y ait pas d'odeurs désagréables sur le site. Si possible, des tuyaux de ventilation sont installés sur chaque puits.

Ventilation fosse septique

Chevauchement d'une fosse septique

La tâche du chevauchement n'est pas seulement de fermer la fosse, elle doit assurer l'étanchéité des conteneurs. En règle générale, les chambres sont recouvertes de dalles en béton armé prêtes à l'emploi, sur lesquelles se trouve un trou pour une trappe en fonte ou en plastique épais. Ensuite, la structure est recouverte d'une petite couche de terre. Des trous d'homme sur chacun des puits permettront de surveiller l'état et le remplissage de la fosse septique, et permettront également d'ajouter périodiquement un mélange de bactéries actives pour puisards.

Évaluation
Site sur la plomberie

Nous vous conseillons de lire

Où remplir la poudre dans la machine à laver et combien de poudre verser