- Variétés de fours à briques
- poêle hollandais
- Poêles à briques de sauna sur bois
- Poêle russe
- Chauffage et cuisinière
- Mini-cuisinière russe à faire soi-même: photo
- Maçonnerie de four russe: conseils techniques et de construction
- Règles et nuances de fonctionnement
- Nettoyage (y compris de la suie)
- Poêles à bois faits maison pour un schéma de combustion longue durée et principe de fonctionnement
- Poêles traditionnels russes
- Avec un lit
- avec poêle
- Avec boîte à eau
- Principe de fonctionnement
- Commande d'un mini-poêle
- Le processus de pose du four Radonezh
- Vidéo - Fours de chauffage à faire soi-même
- Vidéo - Fours de chauffage à faire soi-même
- Commande du poêle
- Caractéristiques de la pose d'un four à briques de vos propres mains
- Matériaux qui seront nécessaires pour la pose du four.
- Construction de la fondation du four
- Cuisinière avec poêle - bâtiment multifonctionnel
- Comment choisir un siège
- Conclusions et vidéo utile sur le sujet
Variétés de fours à briques
Ensuite, nous examinerons tous les principaux modèles de fours. En même temps, vous apprendrez qu'ils peuvent non seulement cuisiner, mais aussi chauffer et cuisiner. Une autre variété est un poêle à bois pour sauna en brique (il peut être équipé d'un insert conventionnel ou d'une cheminée). Regardons-les de plus près.
poêle hollandais
C'est un four rugueux - le plus simple et le plus compact, c'est pourquoi son efficacité en souffre quelque peu.Par conséquent, une grande quantité de chaleur générée s'envole simplement dans le tuyau. Le chauffage au poêle à gros se caractérise par sa simplicité. Par exemple, une Néerlandaise peut tout simplement ne pas avoir de ventilateur - de cette façon, elle ressemble un peu à la cheminée la plus ordinaire. Mais afin d'augmenter l'efficacité, il est toujours recommandé de faire un ventilateur.
Mais un tel four en briques est extrêmement simple à poser - le schéma du poêle se distingue par sa simplicité. Pour cette raison, elle a gagné sa popularité. Mais il n'a pas de surface de cuisson. Et c'est aussi un plus, puisque l'appareil est compact. Des canaux pour le passage de la fumée y montent comme un serpent de bas en haut, situés les uns au-dessus des autres. Les principaux avantages de ce four :
- Compacité - si vous souhaitez créer un chauffage au poêle pour une maison privée d'une petite superficie, avec une superficie limitée de pièces, le poêle brut hollandais sera la meilleure option;
- Un schéma de maçonnerie simple est disponible pour un fabricant de poêles débutant;
- La possibilité de donner n'importe quelle forme - du rectangulaire au rond ou autre.
Il convient également de noter qu'il y a une petite charge sur la fondation - cela est dû au faible poids du four à briques hollandais au feu de bois. Par conséquent, une base solide ne peut pas être faite.
Poêles à briques de sauna sur bois
À certains égards, ils ressemblent aux grossiers décrits ci-dessus, mais ils diffèrent par une conception spéciale - dans leur conception, il y a des radiateurs remplis de pierres. La chambre de combustion en eux ne va pas dans le hammam, mais dans la pièce voisine. Si nécessaire, les portes des foyers sont en verre - grâce à cela, une cheminée est formée dans le dressing, qui constitue une excellente décoration.
Poêle russe
Compte tenu des schémas de fours à briques pour la maison, vous devez absolument faire attention au schéma du poêle à bois russe.Un tel poêle deviendra une décoration digne de la maison. Son utilisation est universelle - il agit comme un radiateur, est utilisé pour cuisiner (et directement dans la chambre de combustion) et est utilisé pour sécher les vêtements à la maison.
Et vous pouvez dormir dessus, en profitant de la chaleur qui s'en dégage.
Son utilisation est universelle - il agit comme un radiateur, est utilisé pour cuisiner (et directement dans la chambre de combustion) et est utilisé pour sécher les vêtements à la maison. Et vous pouvez dormir dessus, en profitant de la chaleur qui s'en dégage.
Dormir sur un poêle russe est un plaisir particulier, désormais presque inaccessible. Mais au moins une fois dans votre vie, vous devriez vous offrir un tel plaisir et dormir sur un poêle russe chauffé au bois de chauffage.
Chauffage et cuisinière
Le four à briques assemblé pour la maison de vos propres mains peut être fabriqué selon le schéma universel - selon le suédois. Un tel poêle (souvent appelé suédois) est à bois et est un appareil polyvalent. Il fonctionne comme une unité de chauffage, il peut chauffer de l'eau et cuire des tartes au four, il peut être utilisé pour cuire des aliments dans des plats traditionnels - à l'aide d'une simple plaque de cuisson.
Regardons les caractéristiques et les avantages d'un tel four à briques:
- Grande chambre de combustion pour la pose de bois de chauffage - fournit une combustion à long terme ;
- La présence d'un convecteur impressionnant - chauffage efficace des pièces;
- La possibilité d'intégrer des réservoirs d'eau et des fours - élargit la fonctionnalité du poêle;
- L'utilisation maximale de la chaleur générée - la température des produits de combustion ici est assez basse.
Il est assez difficile d'apporter un dessin typique spécifique du poêle, car les schémas de pose sont différents partout.Il existe également des différences de remplissage - des fours sont utilisés quelque part, et quelque part il y a des réservoirs intégrés pour chauffer l'eau.
Les tailles des fours à briques suédois sur bois peuvent être très différentes. Les options étroites incluent l'utilisation de la table de cuisson uniquement. Si vous avez besoin d'un four, la taille du poêle augmentera légèrement. Autrement dit, il peut être non seulement compact, littéralement de quelques briques de large, mais aussi assez globalement, occupant une surface décente.
Certains de ces fours à briques au feu de bois polyvalents nécessitent une base solide pour eux-mêmes, ce qui impose des restrictions sur la possibilité de leur construction.
Mini-cuisinière russe à faire soi-même: photo
Aujourd'hui, les dimensions des maisons privées, des datchas et des cottages ne permettent pas toujours d'accueillir pratiquement un poêle russe standard dans la cuisine. S'il n'y a pas de place pour une structure suffisamment grande, alors au lieu d'un four traditionnel, vous pouvez mettre un «Suédois». Un tel poêle ne prendra pas plus d'un mètre carré et, en même temps, il pourra parfaitement chauffer une pièce de 30 mètres carrés. Il existe plusieurs modifications du "Suédois".
Les options les plus courantes sont un mini-four avec une plaque de cuisson en fonte intégrée au four et un four à trois tours à part entière avec une cheminée, une plaque de cuisson, un four et une niche de séchage.
Il est assez difficile de construire soi-même un "Suédois". Pour que le bâtiment remplisse efficacement ses fonctions de cuisson et de chauffage, seuls des matériaux de haute qualité doivent être choisis pour les travaux. Cela aidera à compléter la maçonnerie instructions et recommandations étape par étape boulangers expérimentés.

Nous rendons solides les deux premières rangées de maçonnerie. En même temps, dans la 2ème rangée, nous installons une grille sous la cheminée.Dans la 3ème rangée du four, nous construisons une chambre à cendres, un canal vertical et une place pour le four, aménageons une chambre de combustion. Nous plaçons la rangée suivante comme 3ème, et dans la 5ème nous équipons un endroit pour monter la grille. Nous bloquons le passage entre le four et le canal vertical au 6ème rang.
En même temps, il ne faut pas oublier que nous mettons toujours des briques sur le bord entre le four et le foyer.
Dans la 7ème rangée au-dessus de la chambre de combustion, nous mettons des bandes métalliques (2 pcs.), Et nous faisons les 8ème et 9ème rangées de la même manière que la précédente. Nous équipons la cheminée pour nettoyer la cheminée avec un emplacement pour installer une plaque de cuisson au 10ème rang. Nous formons le creuset dans la 11e rangée. Le mur avant de la cheminée des 12e et 13e rangées est aménagé avec des briques taillées en oblique. Afin de créer une étagère dans la 14e rangée, nous prolongeons les briques de 2,5 cm, nous finissons de poser la niche de cuisson dans la 16e rangée et rendons les deux rangées suivantes identiques.
Nous disposons les rangées suivantes de la même manière et, dans la 26e rangée, nous connectons le canal vertical à la cheminée. Au 30e rang, nous poussons les briques de tous les côtés de 30 mm vers l'extérieur et nous commençons à poser le tuyau à partir du 32e rang.
Maçonnerie de four russe: conseils techniques et de construction
Pour plier un simple poêle russe, vous avez besoin de 1,5 à 2 000 briques. Les briques sont empilées en rangées. Un four standard comprend 25 à 31 rangs (hors cheminée).
Il est préférable de poser la première rangée du four avec des briques surchauffées imperméables. Nous posons les parois du creuset avec une épaisseur d'une brique et l'avant de la table de cuisson - la moitié moins. Dans l'ouverture du four, généralement, un coffrage en bois est placé. Lors de la pose des voûtes du four et du four, il est préférable d'utiliser des briques en forme de coin. Ils peuvent être facilement fabriqués de vos propres mains, car la fabrication comprend le traitement de briques ordinaires.
Règles et nuances de fonctionnement
Pour qu'un poêle soit économique, il doit être maintenu en bon état. Une fissure de seulement 2 mm de large dans la zone de la vanne entraînera une perte de chaleur de 10 % en raison d'un flux d'air incontrôlé à travers elle.
Vous devez également chauffer correctement le poêle. Avec un ventilateur très ouvert, de 15 à 20% de la chaleur peut s'envoler dans la cheminée, et si la porte de la fournaise est ouverte pendant la combustion du combustible, alors tous les 40%.
Pour que le four se réchauffe uniformément, l'épaisseur des bûches doit être la même - environ 8-10 cm.
Le bois de chauffage est disposé en rangées ou dans une cage, de sorte qu'il y ait un espace de 10 mm entre eux. Il doit y avoir une distance d'au moins 20 mm entre le haut du signet de combustible et le haut du foyer, encore mieux si le foyer est rempli aux 2/3.
L'allumage de la majeure partie du carburant est effectué avec une torche, du papier, etc. Il est interdit d'utiliser de l'acétone, du kérosène ou de l'essence.
Après l'allumage, vous devez couvrir la vue afin que la chaleur ne s'érode pas à travers la cheminée.
Lors du réglage du tirage pendant l'allumage, vous devez être guidé par la couleur de la flamme. Le mode de combustion optimal est caractérisé par la couleur jaune du feu ; s'il est devenu blanc - l'air est fourni en excès et une partie importante de la chaleur est rejetée dans la cheminée; la couleur rouge indique un manque d'air - le carburant ne brûle pas complètement et une grande quantité de substances nocives est libérée dans l'atmosphère.
Nettoyage (y compris de la suie)
Le nettoyage et la réparation de la fournaise sont généralement effectués en été, mais en hiver, il sera nécessaire de nettoyer la cheminée 2 à 3 fois. La suie est un excellent isolant thermique et avec une grande quantité, le poêle deviendra moins efficace.
Les cendres doivent être retirées de la grille avant chaque foyer.
Le tirage dans le four, et donc le mode de son fonctionnement, est régulé par une vue, une vanne et une porte soufflante. Par conséquent, l'état de ces appareils doit être surveillé en permanence. Tout dommage ou usure doit être réparé ou remplacé immédiatement.
Poêles à bois faits maison pour un schéma de combustion longue durée et principe de fonctionnement
Si l'alimentation en air est libre et le tirage est fort, le bois de chauffage sec brûle très rapidement.
Si, à pleine charge de bois de chauffage, en maîtrisant l'apport d'air, la combustion se transforme en couvant, alors le dégagement de chaleur va s'éterniser pendant des heures voire des jours.
Voici le dispositif d'un poêle à bois simple, mais plutôt efficace, orienté vers une longue combustion, qui reprend le schéma de la chaudière Stropuva. Chez les gens, ce poêle s'appelle "bubafonya" (d'après le nom de la personne qui a publié le schéma du poêle sur Internet pour la première fois).
Schéma d'un poêle à combustion longue fait maison.
Il n'est pas plus difficile de fabriquer un tel four qu'un poêle ventru plus familier au grand public.
Cependant, le principe de combustion et la conception d'un tel four sont totalement non standard. La combustion ne se fait pas de bas en haut, comme dans les poêles ordinaires, mais, à partir des couches supérieures, descend jusqu'à ce que le bois de chauffage brûle.
Le bois de chauffage sous la crêpe dans le foyer est allumé par le haut, grâce au tuyau d'alimentation en air. Lors de la combustion, les gaz s'infiltrent par les bords de la crêpe et sortent dans la cheminée. Crêpe pendant que le bois de chauffage brûle. Il est possible de contrôler l'alimentation en air avec un registre aux extrémités du tuyau d'alimentation en air.
Poêles traditionnels russes
Malgré toute la variété des appareils des poêles russes, il existe plusieurs de leurs principaux types.
Avec un lit
Dans la cabane russe sur les poêles pendant la saison froide, des couchages chauffés ont été aménagés.Alors que l'isolation thermique des murs n'était pas fiable, ils ont essayé de faire de tels lits aussi hauts que possible, où l'air chaud était collecté sous le plafond. A l'étage, il fallait grimper sur une échelle. Ils accueillaient de 2 à 6 personnes.
Four russe traditionnel avec table de cuisson
Plus tard, la conception des bâtiments s'est améliorée. Les lits étaient attachés aux poêles sur le côté, passant à l'intérieur du canal de fumée pour le chauffage. La hauteur du sol ne dépassait pas 0,5 m.
avec poêle
Si un banc chauffant n'est pas fixé au poêle, un poêle en fonte est placé au-dessus du foyer. Il agit comme une surface de cuisson. Les brûleurs couverts (généralement deux) sont coulés en usine dans le poêle. Si nécessaire, le couvercle peut être retiré et installé dans l'ouverture du chaudron avec de la nourriture.
Avec boîte à eau
Une boîte chauffante pour l'eau avec un robinet repliable est intégrée directement dans la maçonnerie. En option, un boîtier en métal riveté ou soudé est monté, où une boîte avec de l'eau est insérée.
Principe de fonctionnement
Il existe de nombreux modèles et variétés de poêles russes. Tous diffèrent par la taille, la forme et le principe de fonctionnement. En règle générale, plus tôt dans un village, il n'y avait pas deux structures identiques. Chacun avait ses propres caractéristiques.
À l'heure actuelle, les appareils peuvent être divisés selon les principes suivants :
- Tailles de four. Il existe des modèles petits, moyens et grands.
- caractéristiques fonctionnelles. Le poêle peut être fabriqué dans la version classique, et également complété par une chaise longue, une plaque de cuisson et une cheminée.
- Forme du produit. Il existe des produits en forme de dôme, en forme de tonneau et à trois centres.
Dans ces vidéos, vous apprendrez à fabriquer un four russe de vos propres mains :
La conception comprend également les éléments suivants :
- six;
- couche;
- pan;
- sauter;
- remblai ;
- fond;
- bouche;
- cuisson insuffisante;
- fenêtre de coffre ;
- salut;
- vyyushka;
- porte;
- soupape;
- tuyau.
En savoir plus sur l'appareil du poêle russe:
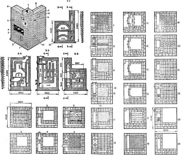
2 id="poryadovka-mini-pechki">Commander un mini-poêle

- 1 rangée - le mur du mini-four russe est aménagé avec des briques entières avec le pansement obligatoire de chaque couture.
- 2-5 rangées - les ventilateurs des foyers principaux et des petits foyers sont disposés, séparément les colonnes sur lesquelles l'arc en brique sera placé. Sur les mêmes rangées, vous pouvez immédiatement fixer les portes au ventilateur.
- 6ème rangée - les briques sont coupées sous un cône directement au-dessus de la grille et une grille séparée est placée dans chaque chambre de combustion.
- 7-8 rangées - les portes sont fixées sur les deux chambres à carburant.
- 9e rangée - le début du rétrécissement du canal de sortie à la sortie du foyer principal. La partition, à son tour, s'agrandit.
- 10e rangée - est construite en dessous de sorte qu'un canal de sortie d'une largeur d'environ 75 à 80 mm doit nécessairement passer le long du mur arrière.
- 11 rangées - la construction du foyer se poursuit et le mur avant est en outre fixé avec des coins.
- 12 rangées - le canal est fermé par une plaque de cuisson en fonte.
- Disposez la 13-16ème rangée complètement selon le dessin et le 15, effectuez les connexions des parois latérales à partir d'une tôle.
- 17e rangée - les connexions des parois latérales sont également dupliquées avec une tôle et une base est faite pour l'overtube. De plus, des rainures sont découpées pour les bandes.
- 18 rangées - le début de la pose de la table de cuisson, traditionnellement réalisée sous la forme d'une arche. Il repose sur des briques à un angle de 10 degrés, qui sont en outre fixées avec du mortier d'argile.
- 19 rangée - le conduit de ventilation est posé et la pose de la cheminée commence.
- 20-21 rangées - disposées selon le motif.
- 22-24 rangées - les briques sont coupées sous le canal préfabriqué, qui devrait se révéler carré.
- 22-25 rangées - la construction de la cheminée se poursuit avec une diminution progressive du dégagement de sorte qu'à la fin, une seule brique est obtenue.
- 27 rangées - selon le dessin
- 28-29 rangées - reliées par un canal horizontal vertical des deux côtés et fermées par une feuille de métal.
- 30-32 rangées - selon le dessin.
Comme vous pouvez le constater, le mini poêle russe "Housekeeper" se construit assez rapidement et simplement. Il n'y a pas de transitions de briques complexes avec une augmentation et une diminution de la section et des canaux, il n'y a pas de chambres séparées, comme dans un four traditionnel, c'est pourquoi il est à la mode de le construire en quelques jours seulement.
Le processus de pose du four Radonezh

Premier pas. Découpez un trou dans le mur pour le four. Enfoncez des goujons de renforcement dans les extrémités du bois (si le mur est fait de ce matériau).
Deuxième étape. Couler le fond de teint.

Procéder à la maçonnerie 1 à 1,5 mois après la disposition de la fondation. C'est durant cette période que le béton acquerra la résistance souhaitée.
Troisième étape. Couvrir la fondation séchée avec un matériau imperméabilisant.
Quatrième étape. Disposez la première rangée du four. Vérifiez la planéité de la maçonnerie avec un niveau. Ne faites pas de coutures plus larges que 3 mm.

Poursuivre la pose du four conformément à la commande.




Les grilles et le ventilateur sont disposés dans la chambre de combustion. La largeur du ventilateur de la fournaise doit être suffisante pour l'afflux de la quantité d'air requise vers le combustible chargé pendant le fonctionnement de l'unité de chauffage.
Disposez la chambre du four et cousez les canaux. Couper l'excès de solution.
Lors de la pose du 26ème rang, faire un chevauchement de 20 mm de chaque côté.
Complétez la pose de la partie principale de la fournaise dans l'ordre et procédez à la pose de la cheminée.
Continuez la disposition de la cheminée conformément au projet précédemment préparé.
Séchez le four fini. Pour gagner du temps, installez un ventilateur dans la chambre de combustion.
Une fois la maçonnerie sèche, effectuez quelques essais. Ne faites pas les premiers feux trop intenses.
Si tout est fait conformément aux instructions, à la commande et aux exigences de base, après 30 à 40 minutes en moyenne, le côté du poêle qui entre dans la pièce se réchauffera. Après environ 1,5 heure, l'appareil se réchauffera uniformément et commencera à chauffer complètement la pièce.
La construction autonome d'un four de chauffage est un processus assez compliqué et long, mais si vous le souhaitez, vous pouvez faire face à un tel événement. Il suffit de suivre la technologie éprouvée, d'utiliser uniquement des matériaux de construction de haute qualité et de respecter le schéma de maçonnerie choisi en tout.
En conséquence, l'unité de chauffage fonctionnera le plus longtemps possible, de manière fiable et efficace, et vous économiserez en outre sur l'aménagement du système de chauffage de votre maison en refusant les services de fabricants de poêles tiers et en faisant tout de vos propres mains.
Vidéo - Fours de chauffage à faire soi-même
Vidéo - Fours de chauffage à faire soi-même
Tout est très bien écrit. De moi-même, j'ajouterai qu'il n'est pas nécessaire de chercher de l'argile réfractaire. Désormais, des mélanges prêts à l'emploi pour la pose de poêles et de cheminées sont vendus sur le marché des matériaux de construction. Tout est déjà mélangé dans la bonne proportion. Même après séchage au four, il y a un point. Faites le premier essai en utilisant uniquement du papier et du carton comme combustible. Le bois de chauffage est hautement indésirable. Ensuite, vous obtiendrez la température requise. Chauffez-le de cette façon pendant pas plus d'une heure. Au fur et à mesure que l'argile sèche, elle peut fumer un peu. Autrement dit, la fumée sera dans la pièce. N'ayez pas peur de cela. L'argile sèchera très rapidement et le poêle fonctionnera comme il se doit.
Je veux suggérer une idée intéressante que j'ai moi-même vécue. À l'intérieur du four, vous pouvez disposer "Gabrodiabase". Cette pierre est un type de granit et est utilisée pour faire des monuments. Les garnitures peuvent être demandées lors des pompes funèbres, après s'être assuré qu'il s'agit bien de gabrodiabase, et non de simple granit. Vous pouvez acheter, mais cette pierre est très chère, car elle peut supporter des températures élevées ! Bonne chance!
Seul à la campagne, j'ai fabriqué deux fois des poêles dans la maison et dans les bains publics. Dans ce dernier cas, la deuxième option s'est avérée relativement réussie, mais là, la conception elle-même est simple. Dans la maison, des poêles en métal doublés de briques servaient de base. J'ai immédiatement évalué assez modestement mes capacités dans la construction d'une structure plus complexe, et pourtant, ayant déjà eu de l'expérience, je pense que oui. C'est-à-dire que pour la construction d'un bon poêle et, qui plus est, d'une cheminée, il est préférable de s'adresser à de bons fabricants de poêles. Au fait, ma sœur a fait exactement cela, et jusqu'à ce qu'ils installent la chaudière, elle a très bien fonctionné pour eux.
Avons-nous répondu à votre question ?
Commande du poêle
Pour que le poêle fonctionne correctement, vous devez le disposer selon le schéma décrit ci-dessous.
- Les 2 premiers rads sont solides, puisqu'ils sont la base. Disposez-les avec de la brique rouge (KK) horizontalement.
- Au troisième rang, vous disposerez déjà la base des canaux verticaux, la chambre à cendres avec une porte et le compartiment de chauffage inférieur. Réalisez la pose de KK, utilisez des produits réfractaires pour la pose du ventilateur.
- La rangée quatre continue la troisième. Disposez le ventilateur avec des briques en argile réfractaire (SHK), rouges - le reste des pièces. Les deuxième et troisième canaux des 3e et 4e rangées doivent être connectés. Une méthode similaire est utilisée pour la pose d'un poêle avec un banc de poêle.
- La rangée cinq fait de gauche à droite.Vous remplissez la chambre à cendres et fermez la porte du ventilateur. Lors de l'installation de la grille, gardez à l'esprit que sous l'influence de températures élevées, le matériau commencera à se dilater. Laissez un petit espace entre celui-ci et la maçonnerie (1,2-1,6 centimètres) et remplissez-le de sable. Utilisez le SHK pour le cendrier, le rouge pour tout le reste.

- Rangée six : vous commencez déjà à créer un centre commercial et une porte pour celui-ci. Installez le four. Pour séparer le TK et le four, utilisez le SHK. Tout le reste est fait à partir du QC. À partir du canal en forme de U, créez 3 canaux verticaux.
- Lors de la disposition de la 7e rangée du ShK, une chambre de combustion est équipée.

- 8 rang : fermez le canal vertical et continuez à créer TK.
- La rangée 9 est située en haut de la porte TC. Les briques de cette rangée doivent être coupées en haut et en bas, afin que le gaz passe mieux du four dans le tuyau de cheminée.
- Créer la ligne 10 est un peu plus difficile. Les briques doivent être coupées de la même manière que dans le cas précédent. TC et four n'ont pas besoin d'être séparés. Disposez la rangée ajustez constamment le niveau, placez la table de cuisson dessus. N'oubliez pas de faire une marge (1,2-1,6 cm) car le fer va se dilater. Posez un coin métallique d'au moins 4,5 * 4,5 centimètres au ras de la paroi extérieure du poêle.
- En disposant la 11e rangée, vous commencerez déjà à former la chambre de cuisson (VK), donc sur toute la longueur, posez le trou qui est apparu à droite avec une brique. Lors de la création d'une série, utilisez QC. Si vous mettez une porte amovible, le VK peut remplir la fonction de four.
- Pour la 12e rangée, prenez KK. Il combinera les 2 canaux gauches. 13 a le même ordre que le précédent, seul le canal doit être divisé en 2 parties. 14 et 15 sont disposés selon le même principe que le treizième.
- Lors de la pose de la 16e rangée, vous devez bloquer le VC avec quatre coins. Le schéma de maçonnerie est similaire à la rangée précédente.
- 17 rangées chevauchent VK. Pour que la vapeur s'échappe, vous devez laisser un trou égal à la moitié de la brique.
- En faisant 18, posez un coin de sécurité qui renforcera les chambres de séchage (CK).
- 19 rangée - la création d'un extrait du VC et la formation de deux SC.
- Les rangées 20 et 21 sont réalisées selon le même schéma.
- Lors de l'exécution de 22 rangées, le schéma des rangées précédentes est répété, seul le plus petit SK doit être recouvert d'une plaque métallique.
- La 23e rangée crée un SC, préparant une place pour une valve sur le capot VK.
- La 24ème rangée combine les canaux 1 et 2, et la 25ème rangée combine le capot VK et le canal 3.
- Dans la 26e rangée du SC, chevauchez un coin et posez le chevauchement dessus. Couverture supérieure avec une maille avec raccords.
- En effectuant la 27ème rangée, bloquez le haut du poêle, sans toucher uniquement le 3ème canal vertical. Augmentez le périmètre de maçonnerie de quatre centimètres. Au 28e rang, formez un côté et augmentez à nouveau le périmètre de quatre centimètres.
- La rangée 29 ramène la maçonnerie à sa taille d'origine.
- En disposant la 30e rangée, formez un tuyau et faites un trou pour la valve dans le four. Après avoir besoin de faire un tuyau de la taille souhaitée. Maçonnerie verticale.
- La dernière étape est la pose des dernières rangées.
Caractéristiques de la pose d'un four à briques de vos propres mains
Quelles sont les nuances que vous devez connaître avant de procéder à la pose du four?
La fondation de la fournaise doit être solide et solide. Mais en même temps, il ne doit en aucun cas être lié à la fondation principale de la maison.
Le fait est que la maison rétrécit avec le temps, ce qui se reflète dans la fondation, il est donc très important de séparer ces deux éléments. Avec les changements saisonniers du sol et le rétrécissement général de la maison, la conception du four peut en souffrir.
La fondation doit dépasser les dimensions du four de 15 à 20 cm de chaque côté. Il peut être en béton ordinaire, en mortier de ciment ou en blocs de béton.
Pour la pose du four, il est nécessaire d'acheter 2 types de briques: céramique solide ordinaire et argile réfractaire (réfractaire), à partir desquelles la chambre de combustion, les canaux de fumée et tous les éléments chauffants seront pliés
Le coût d'un tel matériau est beaucoup plus élevé que le prix de la brique rouge ordinaire, de sorte que seules les surfaces qui seront en contact direct avec le feu en sont généralement posées.
Tous les autres éléments sont posés à partir de briques rouges solides, tout en utilisant une solution basée sur argile de four rouge. La composition d'une telle solution doit nécessairement inclure du ciment résistant à la chaleur. Mais entre la maçonnerie en céramique et les briques en argile réfractaire, il est impératif de maintenir un écart de 5 mm. Lorsqu'elles sont chauffées, les briques en argile réfractaire se dilatent. Par conséquent, afin d'éviter la déformation de la structure du four pendant le fonctionnement, cet espace doit être pris en compte.
Tous les éléments achetés pour le four (grille, porte, plaque de cuisson, four, etc.) sont réglés conformément au schéma général et à la destination du four
Il peut être en béton ordinaire, en mortier de ciment ou en blocs de béton.
Pour la pose du four, il est nécessaire d'acheter 2 types de briques: céramique solide ordinaire et argile réfractaire (réfractaire), à partir desquelles la chambre de combustion, les canaux de fumée et tous les éléments chauffants seront pliés. Le coût d'un tel matériau est beaucoup plus élevé que le prix de la brique rouge ordinaire, de sorte que seules les surfaces qui seront en contact direct avec le feu en sont généralement posées.
Tous les autres éléments sont posés à partir de brique rouge solide, tout en utilisant une solution à base d'argile de four rouge. La composition d'une telle solution doit nécessairement inclure du ciment résistant à la chaleur.Mais entre la maçonnerie en céramique et les briques en argile réfractaire, il est impératif de maintenir un écart de 5 mm. Lorsqu'elles sont chauffées, les briques en argile réfractaire se dilatent. Par conséquent, afin d'éviter la déformation de la structure du four pendant le fonctionnement, cet espace doit être pris en compte.
Tous les éléments achetés pour le four (grille, porte, plaque de cuisson, four, etc.) sont réglés conformément au schéma général et à la destination du four.
Grille
Lors de l'insertion de la porte de la chambre de combustion ou du cendrier, il est nécessaire de l'attacher avec du fil d'acier recuit. Dans ce cas, une extrémité du fil est insérée dans un trou spécialement conçu, et l'autre extrémité est tordue en un faisceau et posée entre les briques, fermement serrée avec du mortier.
Lors de l'installation d'un foyer en fonte ou d'un poêle en fonte, il est nécessaire de poser un cordon d'amiante entre la brique et l'élément métallique pour compenser les différentes dilatations thermiques des matériaux.
La cheminée du poêle peut être en briques de céramique rouge ou vous pouvez utiliser une cheminée en blocs de céramique, qui est achetée prête à l'emploi.
Le revêtement est la dernière étape de la construction d'un four à briques. Pour donner un bel aspect esthétique, le poêle peut être revêtu de briques en céramique rouge, de clinker (sous pierre sauvage), de carreaux décoratifs. Ce revêtement donne un aspect authentique unique au poêle et le protège également des effets négatifs de l'environnement.
Matériaux qui seront nécessaires pour la pose du four.
-
Brique en céramique pleine rouge (M-150.)
M 150
- Brique chamotte (réfractaire).
- Mortier de maçonnerie (sable, terre cuite rouge).
- Matériau de fondation (ciment, graphite, sable).
- Rubéroïde.
- Corde amiante, fil galvanisé.
- Planches pour la création de coffrage.
- Maille de renfort.
- Grille.
- Surface de cuisson (cuisinière).
- Cendrier et porte cendrier (soufflés).
- Porte de fourneau.
- Conduit de cheminée.
- Soupape de cheminée.
Outils nécessaires à la pose du four:
- Niveau bâtiment.
- Pelle à chouette.
- Marqueur de chantier.
- Ruban à mesurer (roulette).
- Pente de chantier.
- Goniomètre.
Construction de la fondation du four
Avant de plier le poêle vous-même dans le pays, vous devrez d'abord poser les fondations. Il est disposé séparément au sol, non relié à la fondation principale de la maison.
Nous mettons la base du four faites-le vous-même étape par étape dans la séquence d'opérations suivante :
- Préparation du mortier de béton marque M200. Dans un conteneur pour mortier, 3,5 seaux de sable et un seau de ciment sont mélangés. Après avoir dilué le mélange sec avec de l'eau, un mélange minutieux est effectué jusqu'à formation d'une masse homogène légèrement fluide. La pierre concassée est versée dans la suspension résultante en une quantité de 5 à 6 seaux, après quoi elle est amenée à l'état d'une solution épaisse homogène. Pour rendre le béton plus plastique, il est permis d'y ajouter un peu de savon liquide ou de liquide vaisselle.
- Fosse à creuser. Pour la fondation, vous devez creuser une fosse de 45 à 60 cm de profondeur dont les dimensions de chaque côté doivent être supérieures aux dimensions du four. Le fond de la tranchée est percuté et les parois latérales sont renforcées avec des coffrages en planches ou en contreplaqué. Ensuite, un coussin de sable de 10 à 15 cm de haut est coulé et un moellon d'une couche de 15 à 25 cm est coulé dessus.Parfois, les murs ne sont pas renforcés avec des coffrages, mais avec des morceaux de matériau de toiture.
- Verser la solution.Au fond de la tranchée, un harnais de renforcement est disposé, pour lequel un harnais de renforcement constitué de barres d'armature soudées ou de tuyaux en acier est utilisé. Le béton est coulé en plusieurs portions. Pour obtenir une bonne densité, la solution est percée vers le bas d'une latte de bois ou d'une pièce de renfort : cela permet à l'air qui s'est accumulé à l'intérieur de sortir. La partie supérieure de la base est renforcée par un treillis d'armature en acier. Au-dessus, une couche de finition de béton de 2 à 4 cm d'épaisseur est formée.
- Nivellement et solidification de la fondation. Une règle est utilisée pour niveler le mortier de béton coulé. Il est nécessaire d'atteindre une horizontalité stricte de la surface supérieure de la base: elle doit être inférieure au niveau du sol fini de 8 à 12 cm.Après cela, la fondation est recouverte d'un film de polyéthylène, la laissant dans cette position pendant environ 7 jours jusqu'à ce que la solution durcisse complètement.

Cuisinière avec poêle - bâtiment multifonctionnel
La plaque est si utile, pratique et ergonomique que la construction d'une structure sans elle perd tout simplement son sens. C'est peut-être pour cette raison que toutes les modifications modernes du poêle russe ont des poêles en fonte - avec un, deux ou même trois brûleurs.
En fait, les modèles avec poêle ne contredisent pas l'une des principales caractéristiques du poêle russe - ils ont deux foyers. Juste une petite chambre de combustion et est responsable du chauffage du poêle. En même temps, pour les fours simples, il a une cheminée séparée, reliée en haut à la cheminée du creuset.
L'une des options populaires pour l'emplacement du poêle est juste en face de l'embouchure du creuset. Le chauffage s'effectue indépendamment du grand foyer, par le foyer inférieur
Pour les conceptions plus complexes, il existe la possibilité d'un four "été" et "hiver": dans le premier cas, un petit four (foyer) fonctionne de manière autonome, et dans le second, il chauffe les murs et un grand four.
Il existe une troisième option pour l'emplacement de la chambre de combustion - dans la structure principale, mais sur le côté ou sur le côté opposé. Une telle solution n'est pas toujours acceptable - par exemple, si le four doit être placé dans un coin. Dans ce cas, il est plus pratique que les deux foyers soient du même côté et situés l'un au-dessus de l'autre.
Une solution d'ingénierie réussie, dans laquelle un petit four avec un poêle en fonte est placé séparément, mais a un mur commun avec la structure principale. Inconvénients : Prend plus de place
Les avantages de la conception avec une table de cuisson sont évidents :
- chauffage autonome avec un degré de transfert de chaleur inférieur;
- processus rapide de chauffage de la fonte et des murs;
- cuisiner toutes sortes de plats sur la cuisinière;
- la possibilité de chauffer ou de conserver des aliments sous une forme chaude;
- consommation de carburant économique - bois de chauffage;
- entretien simple - nettoyer le cendrier.
Sur la cuisinière, lorsqu'il ne fait plus chaud, mais qu'il s'est un peu refroidi, vous pouvez sécher des articles ménagers. Dans le même but, des poêles sont utilisés - de petits évidements dans les parois du four, ainsi qu'un périmètre en brique autour de la surface en fonte.
Pour les résidents d'été, un modèle avec une inondation est beaucoup plus pratique, car il est utilisé plus souvent. Une grande chambre de combustion est généralement utilisée au début du printemps ou à la fin de l'automne, lorsque la saison froide s'installe et que l'ensemble du four doit être chauffé.
Comment choisir un siège
Avant de fabriquer un poêle, vous devez choisir un emplacement pour celui-ci. Pour que le poêle soit efficace, pratique et sûr, il doit être positionné le plus correctement possible à l'intérieur de la maison.Des dessins expliquant comment plier le four de vos propres mains sont disponibles gratuitement sur de nombreuses ressources.
Il existe certaines règles régissant le placement des fours:
- Le meilleur endroit pour installer un poêle de chauffage est la partie centrale de la maison ou la plus grande pièce. Cela rendra le transfert de chaleur aussi efficace que possible, car. l'air chauffé se répandra uniformément dans toute la maison. En raison de la masse du corps, un zonage naturel des locaux en zones locales distinctes est effectué. La construction d'une fournaise de chauffage près d'un des murs extérieurs réduira considérablement l'efficacité du chauffage : une partie de la chaleur sera gaspillée à l'extérieur.
- Le four de cuisson est généralement construit dans la rue sous un auvent, ou dans la cuisine, juste à côté du mur extérieur. Grâce à cette disposition, même en été, la pièce ne sera pas très chaude, car la chaleur ira partiellement à l'extérieur. Pour la même raison, il est souhaitable d'équiper la cheminée dans le coin de la cuisine, entre deux murs extérieurs.
- Le poêle de chauffage et de cuisson a un emplacement spécifique. La partie de celui-ci, où se trouvent la plaque de cuisson et le four, est montée dans la cuisine. La cheminée est réalisée légèrement décalée à l'intérieur des cloisons intérieures entre la cuisine et les autres pièces. Une instruction similaire sur la façon de plier correctement le four de vos propres mains assure la cuisson et le chauffage simultanés de la maison.

Conclusions et vidéo utile sur le sujet
Disposition vidéo du poêle russe avec commande:
Le processus de démantèlement de l'ancien et de construction d'un nouveau four:
Une des options pour un poêle russe avec commande:
Si vous construisez correctement un poêle russe, vous pouvez immédiatement obtenir un appareil de chauffage presque «éternel» et un excellent équipement de cuisine pour cuisiner.Cependant, pour cela, l'appareil doit être entièrement conforme à la commande et la technologie de pose des briques et de mélange du mortier doit être conforme aux normes généralement acceptées.
Et avant de faire un projet de poêle russe, il est préférable de consulter des fabricants de poêles qualifiés.
Veuillez écrire vos commentaires dans la case ci-dessous. Dites-nous comment un poêle russe a été construit dans votre datcha ou votre maison de campagne. Posez des questions, partagez des informations utiles aux visiteurs du site intéressés par le sujet, postez des photos thématiques.









































