- Étape finale
- Entraînement
- Installation indépendante des portes intérieures
- Installation correcte des portes intérieures selon SNiP
- Choisir les matériaux
- En bois
- matériaux artificiels
- Verre
- Fixation du cadre de porte
- Assemblage du cadre de porte
- Précautions, règles de soins
- Comment remplacer une porte : instructions étape par étape
- Portes intérieures à deux vantaux
- Possibilités de montage
- Travaux préliminaires
- des mesures
- Outils et matériaux
- Principales caractéristiques du produit
- Pose de portes intérieures coulissantes
- Pose de toile
Étape finale
Une fois le cadre de porte installé, il est nécessaire de commencer le processus de suspension. Pour ce faire, attachez les boucles. Mettez ensuite la toile.

Le processus est laborieux, si vous l'installez vous-même, vous devriez demander de l'aide. Lorsque vous travaillez par paires, quelqu'un tient la porte, l'autre fixe les charnières. Avant ce processus, il vaut la peine de décider du côté de l'ouverture des portes.

Utilisez ensuite de la mousse de montage pour remplir la distance entre la boîte et l'ouverture. Ainsi, vous augmenterez l'isolation phonique, l'isolation thermique, comblerez les irrégularités de surface, masquerez les défauts. L'avantage de la mousse est la facilité d'utilisation, un effet positif sur la résistance de la structure.

À des fins de protection, du ruban adhésif est utilisé, éventuellement un film. En les utilisant, la mousse ne tombera pas sur la surface de l'ouverture. Fresh peut être nettoyé avec de l'alcool ou un solvant spécial. La consistance dure de la mousse est éliminée mécaniquement. Cela conduit à des dommages à l'apparence du produit.

La touche finale est l'installation de plateaux. Cet élément est coupé au niveau de la hauteur, puis coupé à un angle de 45 degrés. Attaché avec de la colle.





Entraînement
La préparation technologique est divisée en plusieurs étapes.
Mesure et préparation de la porte, faites attention au matériau et à la qualité de la structure de la porte.
Une serrure et des charnières sont fixées au modèle, puis le vantail de la porte est assemblé, les autres éléments nécessaires sont montés.
Ensuite, ils installent les portes de l'appartement au bon endroit, en reliant le cadre de la porte à la toile.
Utilisez de la mousse de montage pour améliorer la qualité de la fixation.
Procéder à l'installation d'accessoires, de plateaux.

Pour effectuer une procédure de haute qualité, un certain nombre de matériaux seront nécessaires:
- préparer les clous, les chevilles;
- mousse de montage;
- ferrures sous forme de poignées, serrures;
- les coins sont nécessaires pour le travail;
- la boîte et le vantail sont la base, la base.

Prenez une perceuse, préparez un perforateur à l'avance. L'utilisation d'une machine circulaire ou fraiseuse est encouragée. Prenez un marteau, un ruban à mesurer, un niveau, un ciseau, un pied de biche. Pour les travaux d'installation, vous devrez utiliser un tournevis et un tournevis, une scie à métaux.

Avant le travail technologique proprement dit, comme on peut le voir sur la photo de l'installation de la porte, la surface de travail est préparée. Il est nécessaire d'enlever l'ancienne structure de la porte, si elle est présente.

Afin de ne pas endommager l'ouverture, il est nécessaire d'utiliser un pied-de-biche, en supprimant un élément inutile avec des mouvements fluides. Cet outil sera également nécessaire lors du retrait de la boîte, de son classement. Si le cadre de la porte est cimenté, utilisez un marteau pour le retirer.

Installation indépendante des portes intérieures
Après avoir terminé les travaux préparatoires et préparé tous les outils nécessaires, vous pouvez commencer à installer les portes intérieures. Parmi les outils, vous aurez besoin d'un marteau, d'un niveau à crémaillère court et d'un pied de biche. De plus, il est nécessaire d'acheter un cylindre avec de la mousse de polyuréthane basse pression pendant la polymérisation. Un exemple est la mousse Macroflex 65. Des cales en bois doivent également être préparées. À ce jour, il existe une technologie éprouvée sur la façon d'installer correctement les portes intérieures. Vous pouvez voir le processus d'installation dans la vidéo.
La première étape consiste à mettre le bloc de porte dans l'ouverture
Au cours de ce processus, il est important de porter une attention particulière au côté sur lequel la structure est installée. Lors de l'installation, il est conseillé d'être là où la porte s'ouvrira. Maintenant, vous devez définir la structure au centre de l'ouverture
Lors du déplacement du bloc de porte vers la droite ou vers la gauche, il est nécessaire d'assurer les mêmes espaces entre la structure et les murs des deux côtés
Vous devez maintenant placer la structure au centre de l'ouverture. En déplaçant le bloc porte vers la droite ou vers la gauche, il faut assurer les mêmes écarts entre la structure et les murs des deux côtés.

À l'étape suivante, vous devrez vous assurer que la position verticale des supports de cadre de porte est correcte. Pour ce faire, vous pouvez utiliser le niveau du rack. Il doit être appliqué par le dessous du cavalier transversal supérieur.Si le niveau n'est pas respecté, il faudra utiliser un pied-de-biche en soulevant avec lui la crémaillère souhaitée et en plaçant des cales en bois sous celle-ci.
Après cela, vous devez fixer le bloc de porte aux cloisons. Pour ce faire, il est nécessaire de percer des trous d'un diamètre de 6 mm dans la partie saillante des linteaux en bois. Ensuite, des chevilles sont martelées dans ces trous. Lors du processus de fixation du bloc de porte, il est nécessaire de temps en temps de vérifier la position de la structure par rapport aux parois latérales.

Après cela, le cadre de la porte et l'ouverture doivent être mouillés avec de l'eau. Cette procédure est réalisée afin d'augmenter la polymérisation de la mousse de montage et son adhérence aux parois de l'ouverture. Ensuite, vous devez à nouveau vous assurer que la position correcte du cadre de porte est maintenue. Pour ce faire, utilisez le niveau du rack. De plus, il est nécessaire de vérifier la présence de joints en carton entre le vantail de la porte et le bateau. Si certains tombent dans le processus d'exécution du travail, ils doivent être renvoyés à leur place.
À l'étape suivante, il est nécessaire de combler les espaces entre le bloc de porte et les cloisons à l'aide de mousse de montage. Après cela, vous devez laisser la mousse saisir et sécher. Cela prendra plusieurs heures. En règle générale, la mousse de polyuréthane durcit complètement en 6 à 10 heures. Soit dit en passant, on dira que la mousse de polyuréthane est un matériau toxique. Pour éviter les conséquences désagréables du contact cutané avec celui-ci, vous pouvez utiliser des gants de protection. De plus, il est nécessaire de protéger la surface des produits avec du ruban adhésif, en collant le bloc de porte autour du périmètre avec celui-ci.

Après cela, vous devez supprimer toutes les aides. Maintenant, ils ne sont plus nécessaires.Ainsi, à l'aide d'un tournevis, les chevilles et les vis autotaraudeuses sont démontées, ce qui fixe les cavaliers dans le cadre de la porte. Ensuite, vous devez retirer les rails eux-mêmes et ouvrir la porte. Les coussinets en carton doivent tomber par terre d'eux-mêmes après l'ouverture de la porte.
Installation correcte des portes intérieures selon SNiP
Parfois lors de l'installation de portes, certaines personnes et de nombreux artisans se demandent comment positionner l'ouverture d'une porte intérieure. La question semble simple, mais en fait, il n'est pas toujours possible d'y répondre correctement. Pour mettre la porte correctement et pour qu'elle s'ouvre dans la bonne direction, vous devez suivre certaines recommandations et codes du bâtiment.
Ils sont les suivants :
- Si la pièce ou une autre pièce (salle de bain, cuisine, toilettes) est de petite taille, les toiles doivent s'ouvrir vers l'extérieur.
- Il y a aussi une autre recommandation, les portes doivent s'ouvrir là où il y a plus d'espace.
- Si la surface de la pièce est grande, les portes, au contraire, doivent s'ouvrir vers la pièce.
Avant de commencer à installer des portes, il convient de vérifier la présence de tous ses composants
Lors de la conception de maisons et de locaux ou lors de réaménagements, les portes doivent être placées de manière à ce que, lorsqu'elles sont ouvertes simultanément, les deux portes ne bloquent pas le passage et ne se bloquent pas l'une l'autre. Si cela ne fonctionne en aucune façon, il est nécessaire de suspendre les portes pour que l'une s'ouvre dans un sens, l'autre dans l'autre. Les modalités d'ouverture sont dictées par les règles de sécurité incendie, ainsi que les règles de secours d'urgence. Si une personne tombe malade, elle ne pourra pas bloquer la toile qui s'ouvre vers l'extérieur.
En raison du respect des normes et des exigences du SNiP, la sécurité est accrue lorsque des personnes se trouvent dans une pièce, non seulement dans une zone résidentielle, mais également dans toute autre. Bien sûr, les exigences de SNiP et GOST lors de l'installation de portes s'appliquent à plus de bâtiments publics que de bâtiments résidentiels, mais, néanmoins, il vaut la peine de les respecter dans les locaux résidentiels.
Choisir les matériaux

Portes intérieures
Lors du choix du matériau d'une porte intérieure pour une installation à faire soi-même, ils sont guidés par sa qualité, sa durabilité et son coût.
En bois
Portes en bois
Les produits en bois sont toujours appréciés des connaisseurs de matériaux naturels. Ils sont élégants, donnent à la pièce un aspect prestigieux, inoffensif pour le corps humain. Ils sont répartis dans les catégories suivantes :
- Chere. Ces modèles sont fabriqués principalement sur commande à partir de bois massif: chêne, aulne, placage de bois précieux. La conception est réalisée classique ou non standard, en tenant compte des souhaits du client. Pour de tels modèles, des éléments décoratifs sculptés avec garniture, des raccords complexes sont utilisés.
- Prix moyen. Pour cette catégorie, les produits en pin qui ont subi le traitement du «vieillissement artificiel» du bois sont populaires. La technologie est appelée "brossage". Un vernissage ultérieur mettra l'accent sur le motif naturel et donnera un aspect respectable à la finition.
- Peu coûteux. Les sections en pin sont fabriquées, recouvertes de placage respectueux de l'environnement, vernies ou stratifiées. Pour le placage, on utilise du cerisier, du noyer, du frêne, de l'aulne et d'autres espèces d'arbres. Dans cette série de marchandises, il y a des échantillons de qualité
Les structures en bois sont sensibles à l'humidité, sujettes au dessèchement, elles ne conviennent donc pas aux pièces très humides.
matériaux artificiels

Portes en éco-placage
Dans cette série de biens, le remplissage de la structure compte. Pour le remplissage utiliser :
- blocs de bois de pin
- carton creux cellulaire
- MDF et aggloméré
Parmi ces matériaux, le MDF se compare favorablement. Il s'agit d'un matériau fibreux dont la structure comprend des résines naturelles. Il est durable, ne craint pas l'humidité, facile à traiter, n'émet pas de composés nocifs.

MDF
Pour recouvrir la garniture utilisée :
- Stratifié. Imite le bois naturel. Diffère par ses propriétés décoratives et protectrices élevées. Inconvénient - à forte humidité ou température, il émet des fumées nocives pour l'homme
- Revêtement PVC. Il possède d'excellentes propriétés de conception, ainsi qu'une résistance aux attaques chimiques. Ils produisent un film de différentes couleurs, dont la couleur ne change pas longtemps pendant le fonctionnement.
- Le placage est naturel. La coupe la plus fine du bois naturel. Instable aux influences mécaniques et à l'environnement. Les produits recouverts de placage naturel sont difficiles à distinguer du bois massif
- Ecovenceur. Dans la fabrication, pour lier les fibres naturelles, on utilise du formaldéhyde, il libère des composés nocifs dangereux pour un organisme vivant.
Le remplissage en carton cellulaire, à volume externe, est complètement fragile, peu fiable, de courte durée.
Verre

Verre
Remplir le cadre de verre est beau, élégant et moderne. Pour que les inserts en verre soient mieux combinés avec l'intérieur, ils peuvent être:
- tonique avec n'importe quelle nuance de couleur
- repeindre
- faire une surface miroir
- décorer un motif de vitrail ou décorer avec un ornement en métal
- appliquer n'importe quel logo
Pour le vitrage, du verre est utilisé, trempé à l'aide d'une technologie spéciale - le triplex, il est donc totalement sûr.
Les portes en verre ont un inconvénient - elles ont une faible isolation phonique.

Comment faire une maison d'enfants de vos propres mains: à partir de bois et d'autres matériaux. Plans cotés | (80 idées de photos et vidéos)
Fixation du cadre de porte
La prochaine étape dans l'installation d'une porte intérieure consiste à sécuriser la boîte. L'espace qui existe entre l'ouverture et le cadre de la porte est généralement rempli de mousse de montage. Ceci est fait pour fixer le bloc de porte et augmenter l'isolation phonique et thermique. La mousse de montage remplit parfaitement même les plus petits défauts, fissures et fissures. Ce matériau est facile à utiliser et s'adapte à tout type de surface.

Avant de combler le vide, il est nécessaire de fermer la boîte pour que la mousse ne pénètre pas dessus. Pour ce faire, il peut être collé avec du ruban adhésif de masquage ou de construction, ou avec un film. S'il y a déjà un peu de mousse à la surface de la boîte, alors tant qu'elle est fraîche, elle peut être facilement lavée avec des solvants ou de l'alcool. Si la mousse a déjà durci, il peut être assez difficile de l'enlever dans cet état - cela n'est possible que mécaniquement, ce qui entraîne des rayures inévitables.
L'une des propriétés de la mousse est qu'elle peut se dilater considérablement. Lors de l'application, cela doit être pris en compte. Parfois, il arrive que le cadre de la porte soit simplement déformé - cela arrive à ceux qui ne savent pas comment insérer correctement le cadre de la porte et la porte intérieure. Pour éviter que cela ne se produise, des entretoises en carton sont généralement utilisées. Ils sont installés entre des racks verticaux. De plus, un carton épais peut être posé entre l'ouverture fermée et la boîte.

Avant de commencer à travailler avec le cylindre, il est recommandé de bien agiter son contenu pendant une minute.Pour que la mousse se connecte mieux à la surface, il est conseillé d'humidifier un peu l'ouverture.
Pour éviter les déformations de la boîte, la mousse est appliquée en deux étapes. À la première étape, l'application est parfaite. Puis, après refroidissement, remplissez ce qui reste. L'excédent de matériau est coupé avec un couteau bien aiguisé.
Ensuite, il ne reste plus qu'à installer les plateaux et les accessoires. Pour ce faire, elles sont coupées à la hauteur du caisson selon un angle de 45° pour les lattes horizontales et universelles. Les fixations peuvent être réalisées sur des clous ou de la colle.
Voici comment insérer un intérieur ou toute autre porte de vos propres mains. Nos instructions détaillées aideront le maître de maison, et sur la vidéo, vous pouvez voir l'ensemble du processus d'installation de A à Z.
Assemblage du cadre de porte
Des technologies bien établies pour l'installation de portes intérieures nous permettent de produire des ensembles de portes sous forme de blocs de porte prêts à l'emploi, y compris des ensembles complets avec des fixations et des ébauches pour assembler un bloc de porte. La première option ne nécessite pas de commentaires.
Examinons en détail la deuxième option, lorsqu'une boîte de taille universelle est incluse avec le vantail :
- Préparons le lieu de travail - recouvrez-le avec le matériau d'emballage du bloc de porte afin de ne pas laisser de rayures sur les surfaces.
- Déterminons le sens d'ouverture des portes et, en conséquence, orientons le haut vers le bas des parties du cadre de la porte.
-
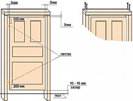
Nous marquons l'élément supérieur de la boîte en fonction de la taille de la toile +7 mm et le coupons avec une scie à métaux à un angle de 45 degrés, comme indiqué sur la figure 1.
-
Nous posons les éléments courts et longs de la boîte conformément à la figure 2. Nous serrons le joint à assembler avec une pince, nous perçons des trous d'un diamètre de 2,5 mm.Nous sortons un élément long de la pince et perçons un trou jusqu'à 4,5 mm (Figure 2).
- D'autre part, nous menons des actions similaires. Nous connectons la structure avec des vis autotaraudeuses du kit ci-joint.
Précautions, règles de soins
La clé d'un travail réussi sur l'installation d'une porte intérieure est le contrôle de tous les paramètres géométriques avant l'achat, l'état extérieur et la configuration. Après paiement de la marchandise, aucune réclamation ne sera acceptée.
Il est conseillé de ne pas permettre de fortes variations de température à l'intérieur des pièces. Surveillez également la ventilation régulière des locaux - en raison du manque d'air frais, l'humidité augmente, ce qui endommage les produits en bois.
La porte ne doit pas être ouverte brusquement, avec force ou de toute autre manière qui cause une violation de l'intégrité du bloc. Bien que la plupart des modèles aient des revêtements spéciaux qui empêchent l'usure, vous devez éviter tout impact mécanique brutal sur la toile, les garnitures et le cadre.
Nettoyez régulièrement les surfaces en bois avec un chiffon humide, une serviette, un chiffon. Un soin aussi simple préservera leur beauté esthétique.
Le contact du bois avec des acides, des alcalis, des solvants et d'autres produits chimiques n'est pas souhaitable. Ils détruisent l'intégrité du matériau.
Évidemment, les instructions étape par étape ci-dessus pour l'installation d'une porte intérieure rendent l'ensemble du processus d'installation très faisable. Suivre les conseils vous permettra de faire face à la tâche avec compétence, et un entretien rapide des nouveaux éléments d'intérieur préservera longtemps leur esthétique et leur fonctionnalité.
Comment remplacer une porte : instructions étape par étape
- Retirez la garniture décorative. Si les charnières sont amovibles, retirez immédiatement l'ancienne porte des charnières.Sinon, dévissez les anciennes vis d'un côté de la charnière (de la porte ou du cadre).
- L'unité de porte peut être installée dans une ouverture murale existante. Pour retirer soigneusement l'ancienne boîte, vous pouvez la scier en morceaux.
- Avant de commencer l'installation d'une porte intérieure, essayons-la dans l'embrasure de la porte pour vérifier ses dimensions et son sens d'ouverture. Analysons l'état de l'ouverture dans le mur. Tout rembourrage supplémentaire doit être retiré. Avant l'avènement de la mousse de construction, les constructeurs utilisaient souvent du câble imbibé de mortier de gypse pour sceller les fissures.
- Si l'ouverture est de 2 à 4 cm plus large que la boîte, nous installerons des extensions à partir de barres ou de planches. S'il est plus large, vous devrez installer une fausse boîte en bois ou en planches.
- Installez le bloc de porte dans l'ouverture préparée et fixez-le avec des cales en bois.
- Vérifions l'horizontalité du linteau supérieur et la verticalité des jambages, les interstices et les angles droits du bloc porte (Fig. 2).
- Nous fixons le bloc de porte à l'aide de mousse de montage. Lors du choix, assurez-vous de vous familiariser avec ses caractéristiques. Vous devez connaître le coefficient de dilatation secondaire de la mousse : plus il est petit, mieux c'est. Enlever l'excédent de mousse après durcissement.
- Réparons la boîte. S'il y a une fausse boîte en bois dans l'ouverture, il suffit d'utiliser des vis. Si l'ouverture dans le mur est en béton, en brique ou en blocs de gypse, nous prenons des clous à cheville.
- Nous installons ou fabriquons un cadre de porte qui fermera l'espace entre le plafond et la poutre supérieure du cadre de porte.
Dessin : Zh. Zhdanova
Après avoir mesuré les diagonales, assurez-vous que A \u003d B, c'est-à-dire que les coins de l'ouverture sont droits
Portes intérieures à deux vantaux
Dans les grands appartements ou les maisons où il y a beaucoup d'espace, les propriétaires préfèrent souvent les doubles portes entre les pièces (battantes ou coulissantes). L'installation des doubles portes de n'importe quelle version est également simple, mais a ses propres spécificités.

Le processus d'installation des doubles portes comprend les étapes suivantes:
- Déballez le kit et déterminez où se trouvent le haut et le bas, le côté brillant de la porte et le mat. Comment les ceintures se tiendront dans l'embrasure de la porte et où chercher. Dans lequel d'entre eux il y aura une poignée et dans quel boulon. Tous marquent et signent.
- Assemblez la boîte et installez les charnières. Il existe de légères différences entre les types de portes. Pour les structures pivotantes, vous devez fabriquer 2 fragments d'une poutre de cadre sciée à 45 ° à partir de chutes de planche (ce sera la plaque supérieure nécessaire pour mesurer l'emplacement des boucles) et la connecter aux supports latéraux.

Réglez la barre transversale (crémone) avant d'insérer les boucles. Sur chaque vantail, coupez les charnières dans la porte elle-même et dans le montant latéral. Retirez le fragment créé précédemment.
- Accrochez la première porte sur les charnières, en l'alignant au niveau, comme pour l'installation d'une porte battante à un vantail. Après cela, accrochez soigneusement le second en l'ajustant conformément au premier, marquez l'emplacement du deuxième faisceau et fixez-le avec des vis autotaraudeuses.
- Après vous être assuré que les deux volets sont positionnés uniformément l'un par rapport à l'autre, moussez les coutures. Une fois solidifiée, la mousse augmente plusieurs fois de volume, il est donc préférable d'utiliser une mousse à faible coefficient de dilatation.
- Avant d'insérer les poignées, fixez la contre-plaque de la gâche dans le cadre de la porte.
- Le solin (rail profilé en relief) est cloué, enduit initialement d'adhésif thermofusible pour une plus grande résistance, et des plateaux sont installés.
L'installation de portes intérieures de vos propres mains n'est pas difficile
Il est important d'effectuer systématiquement toutes les étapes d'installation
Que penses-tu de cela?
Nous tenons compte de votre point de vue
Possibilités de montage
Quel que soit le système de porte coulissante, les méthodes d'installation peuvent être :
-
Portes coulissantes. Des guides sont fixés sur le mur le long duquel la toile roule.
Portes coulissantes. Le guide est monté sur le mur au-dessus de l'ouverture correcte
-
Cassette. Une niche spéciale est faite dans le mur dans laquelle le vantail de la porte est caché. Ils sont aussi parfois appelés !Rétractables.
Porte intérieure coulissante cassette : la toile est dissimulée dans une niche murale
-
En cascade. Ils se composent d'une toile fixe et de plusieurs toiles mobiles. Mobile, si nécessaire, déplacez-vous et cachez-vous derrière une partie fixe.
Portes coulissantes en cascade : un vantail tire l'autre
L'option d'installation la plus simple est les portes de compartiment. Ils peuvent être installés indépendamment, non seulement au stade de la réparation, mais également après celle-ci.
Il est seulement important que l'ouverture soit uniforme et que le mur ait une capacité portante normale. L'inconvénient d'un tel système est que vous ne pouvez rien mettre près du mur à l'endroit où la porte recule.
Il y a encore une chose : une très faible isolation phonique. C'est facile à expliquer : si on regarde du bout, il y a un écart de plusieurs millimètres sur les côtés. Il est nécessaire pour que la toile ne «se mélange» pas le long du mur. Et tous les sons le traversent parfaitement, devenant seulement un peu plus silencieux.
Les portes à cassette sont bonnes car à l'état ouvert, le vantail se trouve dans la niche du mur et n'interfère pas. Le deuxième avantage est que des joints peuvent être installés autour du périmètre de l'ouverture, ce qui donne des performances d'isolation acoustique beaucoup plus élevées. L'inconvénient d'installer une porte coulissante dans une niche est qu'elle ne peut être effectuée qu'au stade de la réparation.Le deuxième inconvénient: pour fabriquer un étui à crayons pour portes coulissantes, ils mettent généralement un faux mur, et cela fait voler des centimètres de surface.
En cascade - l'une des variétés de portes de compartiment. Il a juste plus de guides : selon le nombre de panneaux de porte mobiles. L'installation est peut-être la plus difficile: beaucoup de détails et une grande précision d'installation sont nécessaires. Les systèmes sont classés comme élites et ils économisent rarement sur l'installation : les réparations coûteront plus cher.
Travaux préliminaires
Lors de la construction ou de la réparation, l'un des derniers éléments du bâtiment sont les portes intérieures.
Comment les installer pour qu'ils soient beaux et que le design dure de nombreuses années est montré dans cette instruction :
- lors de la construction d'un nouveau bâtiment ou lors de l'installation d'une nouvelle cloison supplémentaire
- en raison de la nécessité de remplacer la porte existante
des mesures
Nous devons d'abord préparer une ouverture pour l'installation du cadre de porte. Nous n'envisageons pas la construction d'un nouveau bâtiment ici - tout est fait selon le projet et selon la technologie approuvée.
Considérez l'option - comment installer des portes intérieures, si le bâtiment est en service, c'est-à-dire dans votre propre maison, ce qui est beaucoup plus difficile que dans la construction selon un projet fini.
- Nous approuvons la conception générale - une porte battante (voir Installation de portes intérieures battantes. Comment combiner beauté et fonctionnalité), dans quelle direction ouvrir, ou une porte coulissante.
- Nous décidons du design de la porte - rectangulaire ou avec un dessus ovale, plein ou avec un insert en verre (voir photo).Portes intérieures avec vitrail: à propos de la beauté et de l'individualité), couleur de la porte, poignées, charnières, revêtement - nous approuvons nous-mêmes toutes les nuances de la conception globale et des éléments structurels visibles.
-
Nous approuvons la taille de la porte (largeur de bande). Les tailles de porte standard (habituelles) sont comprises entre 70 et 80 cm.Pour acheter une porte, nous utiliserons le tableau.
- Il est nécessaire de retirer d'abord l'ancien bloc de porte et d'évaluer l'ouverture dans le mur en fonction de sa résistance (voir Comment renforcer la porte).
Pas une science très compliquée - comment installer une porte intérieure - nécessite toujours une approche professionnelle.
Outils et matériaux
Pour démonter l'ancienne porte, il vous faudra (voir Démontage des portes intérieures) :
- tournevis cruciforme
- tournevis droit
- un marteau
- arrache-clou
Pour réparer une porte (sceller les gros éclats avec du mortier ciment-sable sur des cloisons en gypse ou en brique), une truelle ou une truelle peut être nécessaire. Avant d'appliquer la solution, il est nécessaire d'enfoncer plusieurs clous 70 × 3 de la moitié de leur longueur dans la zone ébréchée de la cloison en plâtre.
Pour installer le bloc de porte, vous aurez besoin de :
- Perceuse
- Serrer
- Vis, par exemple 80×5
- Un marteau
- Scie à métaux
- Ciseau
- Tournevis
- Cales (bois ou plastique)
- Equerre à angle droit
- Coude 45 degrés
- Niveau ou d'aplomb
- Roulette
- Crayon
Principales caractéristiques du produit
Le bois naturel est le meilleur matériau. Aujourd'hui, il est en outre traité avec des imprégnations et des solutions, ce qui améliore les performances. Il est maintenant possible de choisir du bois naturel ou ses analogues, par exemple le MDF. Souvent, les gens choisissent des combinaisons - le produit lui-même est en bois et recouvert de panneaux MDF sur le dessus. Les races chères sont spectaculaires.Ceux-ci incluent le chêne, l'érable, l'acajou.

Caractéristiques du marquage du cadre de porte pour les charnières
Toutes les conceptions de porte ont des caractéristiques. Le premier est l'apparence. Les modèles sont spectaculaires et décoratifs dans la plupart des cas
Vous pouvez faire attention à la couleur, au motif et aux éléments de décoration. Si vous le souhaitez, vous pouvez faire la finition vous-même, en créant ce que vous aimez.
Le deuxième point est la solidité de la structure. Cela devient possible sous condition d'un traitement de haute qualité. Il garantit une pérennité de service, une résistance aux chocs. En d'autres termes, l'installation d'une porte pleine avec un cadre garantit une protection fiable contre les intrus.
Une caractéristique importante est le caractère naturel du matériau. C'est une caractéristique sérieuse, qui est oubliée lors de l'achat d'une porte. C'est cette caractéristique qui détermine la sécurité de fonctionnement et le respect de l'environnement. Nous ne pouvons parler de respect de l'environnement élevé que dans les cas avec un vantail de porte en bois naturel. Ses analogues, dont le MDF, ne garantissent plus un tel niveau.

Pose de l'huisserie et de la porte
Si vous vous demandez comment installer une porte, sachez qu'une structure en bois sert à la fois de porte intérieure et de porte d'entrée. L'option livrée s'intégrera certainement à l'intérieur en raison de sa polyvalence.
Pose de portes intérieures coulissantes
Récemment, les portes intérieures à charnières non ordinaires sont très demandées, mais les portes coulissantes (curseur), qui glissent le long des rails ou conduisent sur le côté (dans l'ouverture, la trousse à crayons, le mur) sur des rouleaux.

Ils sont de deux types :
- une porte accordéon coulissante, constituée de petites lattes en plastique ou en bois, qui, lorsqu'elles sont facilement déplacées, permettent de gagner de la place;
- une porte encastrée dans une trousse ou un mur, fonctionnant selon la technologie de l'armoire.
Avantages des portes coulissantes :
- design personalisé:
- plus d'espace dans la pièce pour les meubles;
- sécurité;
- ne s'ouvrent pas spontanément dans les courants d'air.
Les inconvénients incluent:
- mauvaise isolation phonique et acoustique, ainsi que la pénétration des odeurs, mais cela n'est pas difficile à éliminer en installant un joint en feutre sur le fronton;
- la difficulté à le réparer et à entretenir la surface où se déplace la porte ;
- le coût élevé de l'installation, mais si l'installation de portes intérieures coulissantes est effectuée à la main, les coûts ne sont pratiquement pas plus élevés que lors de la mise en place de portes battantes.
Pose de toile
Lorsque la boîte est de niveau et fixée, il est temps de passer à l'installation du vantail de la porte. Tout d'abord, les charnières sont vissées sur la porte. Le plus souvent, des charnières amovibles sont proposées pour les portes intérieures, qui ont une tige qui peut être retirée ou fixée dans une charnière. Des charnières monoblocs sont également vendues, mais elles ne sont pratiquement plus utilisées actuellement.

Si des boucles avec une tige intégrée sont utilisées, alors tout est très simple - la toile est facilement mise en place et retirée de la boîte. Pour ce faire, il vous suffit de soulever doucement la porte à une petite hauteur.
S'il ne monte pas (et sur certains modèles de porte, ce n'est vraiment pas facile à faire), alors un type de charnières monobloc et une tige amovible sont utilisés. Pour monter ces types de charnières, elles sont également fixées avec des vis sur le boîtier, puis vissées sur le vantail de la porte. Si la tige peut être retirée de la charnière, elle est simplement retirée et la toile est retirée.

Lorsque les charnières sont installées, vous pouvez procéder à l'accrochage de la toile. Il est préférable d'effectuer cette opération non pas par vous-même, mais avec l'aide de quelqu'un.Une personne tiendra la toile, la seconde installera les charnières monobloc ou dirigera la toile en place (si la charnière est pliable).









































