- L'ordre et les étapes de construction
- Comment faire un égout pluvial
- Caractéristiques du dispositif d'égouts pluviaux
- La structure de l'égout pluvial dans une maison privée
- Comment faire un égout pluvial sans erreurs?
- Options alternatives "pluies" à faire soi-même
- Égout pluvial PET à faire soi-même
- Pose "maille"
- Méthode de sortie naturelle
- Couper
- Le principe du calcul des égouts pluviaux
- Le dispositif et le principe de fonctionnement des égouts pluviaux
- La clé du succès Trouver une entreprise spécialisée dans le développement de projets Approvisionnement en eau et assainissement
- Gamme complète de travaux :
- Développement à distance de ViV Scheme :
- Conception de système et installation d'égouts pluviaux dans une maison privée
- Le but et les spécificités du dispositif d'évacuation des eaux pluviales
- Classement selon le mode de collecte des eaux usées
- Réalisation de travaux d'installation
- Caractéristiques de conception
- maisons aux toits en pente
- maisons à toit plat
- Le processus et les spécificités de l'installation des eaux pluviales
- Construction de l'élément de toiture
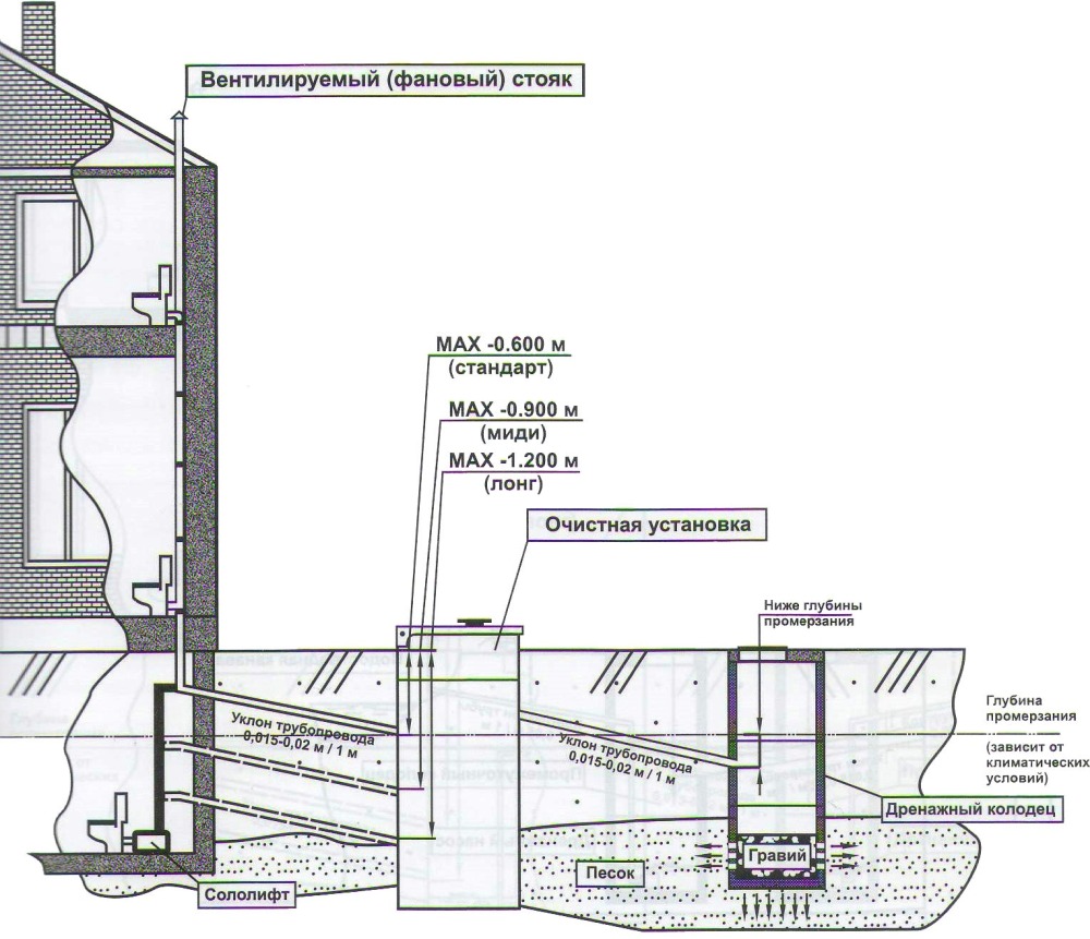
- Appareil souterrain
- Dispositif et technologie d'égout pluvial
- Conception d'un système d'égout pluvial
L'ordre et les étapes de construction

Il faut d'abord réfléchir au projet.Si vous ne souhaitez pas faire appel aux services de professionnels, vous pouvez effectuer vous-même tout le travail constructif et schématique dans l'un des programmes ou même sur une feuille de papier. Ainsi, il devient possible de comprendre plus précisément et de positionner correctement tous les éléments. Après cela, vous devrez acheter du matériel, puis commencer à travailler.
Comment faire correctement un égout pluvial de vos propres mains:
- Installer des bacs sous-toiture, un système de drainage.
- Creusez des tranchées pour le pipeline, comme indiqué dans la vidéo. La profondeur des tranchées doit dépasser d'au moins 15 cm la taille requise pour les tuyaux.Posez un oreiller en pierre concassée au fond des fosses, puis seulement les tuyaux. La pierre concassée contribuera à la neutralisation des forces de soulèvement, restant toujours immobile. Cette qualité permet à tous les appareils installés dans les décombres de ne pratiquement pas ressentir la charge.
- Installer les entrées d'eaux pluviales, les structures en béton et poser le revêtement de finition.
- Connectez le pipeline à un réservoir ou dirigez l'extrémité dans une rivière, un lac pour l'évacuation de l'eau.
Ce sont les principales étapes, mais comme le montre la vidéo, il faudra équiper des bacs le long des voies, un égout linéaire pour la sortie des flux.
Vous pouvez vous passer de structures complexes, même si la pluie n'est pas le phénomène le plus rare dans votre région. Disposant d'une bonne capacité d'absorption du sol, il suffit d'équiper des bacs sous-toiture et de les amener à un tuyau vertical avec leur extrémité. Installez un réservoir (baril) au bas du tuyau, où l'eau s'accumulera. Et puis utiliser le liquide pour l'irrigation et d'autres besoins techniques. Avec une faible absorption du sol, ajoutez une prise d'eau pluviale ponctuelle au point le plus bas du site et creusez-y un baril, des gouttières pour les drains des chemins, les toits sont également amenés dans le baril. Et ça y est, le collecteur d'eaux pluviales est prêt.Il existe des options pour organiser les structures sur la vidéo, et faire le système le plus simple de vos propres mains ne sera pas difficile, même pour un maître de maison novice.
Comment faire un égout pluvial
Un égout pluvial de haute qualité est un système important d'une maison privée. Il permet une évacuation rapide des eaux de fonte ou de pluie, éliminant leur accumulation dans le sol autour du bâtiment.
La présence d'un tel système empêche la destruction prématurée de la fondation, la formation de flaques d'eau dans la cour. Il existe des options budgétaires et plus coûteuses et fiables pour les égouts pluviaux. Vous pouvez installer chacun d'eux vous-même.
Caractéristiques du dispositif d'égouts pluviaux
La fabrication d'égouts pluviaux, comme sur la photo, doit nécessairement commencer par l'élaboration de dessins, la détermination du type de système optimal et la sélection de ses composants. La solution la plus simple est l'installation de caniveaux au sol en béton, qui détourneront les précipitations hors de la zone à équiper. Ce système convient mieux aux petites maisons de campagne.
Un drain pluvial peut être installé assainissement à faire soi-même et souterrain ou avoir un type combiné (sol + souterrain). Il est optimal d'effectuer des travaux sur l'installation de tels systèmes immédiatement après la construction de la maison ou lors de l'aménagement de la cour adjacente à la structure du territoire. Naturellement, enlever l'asphalte ou les tuiles pour faire des égouts pluviaux est peu pratique : la procédure prendra trop de temps et entraînera un gaspillage d'argent important.
La structure de l'égout pluvial dans une maison privée
L'égout pluvial créé dans la maison de campagne ou à proximité d'une maison privée doit consister en un drain de toit et des tuyaux / gouttières sur le territoire. Par conséquent, les principaux éléments du système comprennent :
- gouttières, bouchons et accessoires;
- entonnoirs, tuyaux de drainage, supports de tuyaux;
- entrées d'eau (sous la grille du porche, sous les tuyaux de drainage);
- plateaux, gouttières;
- dessableurs, conduites d'égouts, raccords.
Pour la pose souterraine, il est recommandé d'utiliser des tuyaux en métal-plastique: ils ont une longue durée de vie, sont fiables et abordables. Les descentes pluviales sont généralement en acier et recouvertes d'une peinture protectrice. Les bacs à sable, bacs et gouttières peuvent être en béton, en plastique, en acier.
Comment faire un égout pluvial sans erreurs?
Dans un premier temps, le propriétaire doit établir un schéma détaillé sur lequel seront indiqués les emplacements des éléments. De plus, vous devez calculer le nombre requis de tuyaux, de pièges à sable et d'entrées d'eau. Ensuite, l'installation des égouts pluviaux est effectuée selon les instructions suivantes:
- Creusez des tranchées pour les arrivées d'eau pluviale, les pièges à sable et les tuyaux.
- Préparez un coussin de pierre concassée en tenant compte de la pente des tuyaux vers le collecteur ou vers un autre lieu d'évacuation des eaux.
- Poser des géotextiles le long des tranchées pour protéger les tuyaux du gel.
- Réaliser l'installation d'arrivées d'eaux pluviales, la pose de canalisations, de gouttières enterrées. Vérifiez la qualité de la connexion des éléments.
- Enveloppez les tuyaux avec du géotextile. Couler la pierre concassée dans les tranchées (excluant son entrée dans les bouches d'orage, les dessableurs et les caniveaux).
- Versez du sable/de la terre sur les gravats au-dessus des tuyaux. Au-dessus des entrées d'eaux pluviales et des gouttières, installez des grilles pour empêcher les débris de pénétrer dans les compartiments. Connectez le tuyau de sortie au collecteur ou emmenez-le simplement à l'extérieur du site.
Pour que le système fini puisse faire face aux tâches assignées, il est nécessaire de prendre en compte les caractéristiques de la région lors du choix des éléments.Pour les zones où la pluie est courante tout au long de l'année, il est recommandé d'utiliser des composants d'égout surdimensionnés. Sinon, des problèmes d'évacuation de l'eau peuvent survenir.
Options alternatives "pluies" à faire soi-même
Le désir d'économiser est particulièrement prononcé lors de l'aménagement d'un chalet d'été. Tous les moyens improvisés sont utilisés, d'autant plus que dans la plupart des cas, vous n'avez pas du tout besoin de les payer. Bien entendu, l'utilisation de tels matériaux n'augmente pas la qualité des projets de construction. Cependant, cela réduit considérablement leur coût.
Pour le dispositif des égouts pluviaux, vous pouvez également utiliser divers matériaux improvisés. Il s'agit le plus souvent de :
- bouteilles en plastique;
- pneus de voiture usés;
- divers restes de matériaux de construction;
- polystyrène, etc...
Malgré le fait que tous ces matériaux peuvent difficilement être qualifiés d'appropriés, avec une installation correcte et le respect de toutes les exigences nécessaires, il est possible d'en monter une "eau pluviale" entièrement fonctionnelle. Considérons un tel système sur l'exemple des bouteilles en plastique.
Égout pluvial PET à faire soi-même
La principale raison de l'utilisation de moyens improvisés, comme mentionné ci-dessus, est le coût relativement élevé des composants des systèmes de drainage. De plus, les bouteilles en plastique subissent un traitement spécial au cours du processus de production, ce qui leur permet d'être utilisées comme canalisation de drainage souterraine pendant 50 ans ou plus. Examinons plus en détail la méthode d'installation des égouts pluviaux en PET.
Disons tout de suite :
L'utilisation de bouteilles en plastique n'est possible qu'avec la construction d'un système d'égout interne (souterrain).Cela est dû au fait que sous l'influence du rayonnement ultraviolet, le polyéthylène est non seulement intensément détruit, mais libère également des composés toxiques dans l'atmosphère.
Il existe deux options d'installation :
- la grille;
- retrait naturel.
Chacune de ces options est assez efficace et mérite un examen séparé.
Pose "maille"
Cette option consiste à retirer le fond de l'une des bouteilles et à installer la suivante dans le trou résultant, le goulot en premier. Une telle connexion est assez étroite et assez fiable.
La séquence des travaux d'installation est la suivante:
- Selon le balisage, des tranchées sont creusées sur le territoire du site avec une profondeur d'environ 50 cm, ce chiffre n'est pas obligatoire, car les caractéristiques du sol et la profondeur de l'aquifère peuvent varier considérablement d'une zone à l'autre.
- Un coussin de sable de 20 à 25 cm de haut est posé au fond du fossé et soigneusement compacté.
- Les tuyaux précédemment obtenus sont posés sur le lit ainsi obtenu. Par le haut, le pipeline improvisé doit être isolé avec une sorte d'isolant thermique résistant à l'humidité (dans les cas extrêmes, la sciure de bois convient), puis remplir la tranchée de terre jusqu'à la surface même. Ceci est fait afin d'exclure la possibilité de gel de la conduite de drainage pendant la saison froide.
- En bout de canalisation, un puits de stockage ou d'injection est équipé. S'il n'est pas prévu d'utiliser l'eau collectée pour l'irrigation du site ou à d'autres fins, elle peut être détournée vers un ravin ou un réservoir situé à proximité immédiate.
Méthode de sortie naturelle
Le système fluvial est devenu le prototype de la conception du drainage des eaux pluviales, agencé selon le principe du drainage libre: la ligne de sortie principale, qui a ses propres "affluents", agit comme un canal. Cette option est particulièrement efficace dans les grandes surfaces et dans les zones humides.
La séquence d'installation est la suivante :
- Dans le sens de la section la plus basse, la tranchée principale et ses "affluents" sont creusés en respectant la pente requise. La tranchée principale doit être un peu plus profonde que les autres.
- Un coussin de sable ou de gravier est posé au fond des tranchées creusées, après quoi des bouteilles avec des bouchons bien vissés sont placées dessus.
- La dernière étape est l'isolation thermique des bouteilles et le remblayage des tranchées avec de la terre.
Les avantages d'un tel égout comprennent:
- coût minimal ;
- la possibilité de travaux d'installation indépendants;
- simplicité et longue durée de vie de la structure;
- dans un tel système, le développement de bactéries et l'apparition d'odeurs désagréables sont peu probables.
Quant aux inconvénients de tels systèmes, il est difficile de dire quoi que ce soit de précis. Les bouteilles en plastique peuvent durer 50 ans ou plus, ce qui est tout à fait comparable à la durée de fonctionnement des tuyaux d'usine. Le PET ne pourrit pas et ne s'effondre pas sous l'influence de l'humidité, et le couvre-sol les protège de manière fiable des rayons ultraviolets.
Couper
Conformité obligatoire avec SNiP et normes similaires conformément à GOST pour sa fabrication dans une petite zone. Le non-respect des exigences élémentaires entraînera des défaillances dans son fonctionnement. Ainsi, les principales dispositions sont énoncées dans le SNiP 2.04.03-85 «Égouts. Réseaux et structures externes ».
Pour obtenir le meilleur effet, il est extrêmement important de disposer des informations suivantes, de préférence documentées :
- Plan du réseau d'égouts existant.
- Dessins de travail.
- Un profil de réseau est réalisé en coupe longitudinale.
- Énoncé des travaux à effectuer.
C'est intéressant: vidange à faire soi-même des tuyaux d'égout - algorithme d'assemblage
Le principe du calcul des égouts pluviaux
Les points fondamentaux du calcul du drainage des eaux pluviales comprennent:
- développement du tracé des pipelines ;
- calcul des caractéristiques de débit requises du système.
Pour établir un schéma de la conduite principale de drainage, qui comprend tous les éléments du système, un plan d'implantation détaillé est requis indiquant les hauteurs et les profondeurs de la couche contenant de l'eau. De plus, il doit indiquer :
- emplacement de bâtiments résidentiels et commerciaux;
- emplacements des bâtiments de jardin et des aires de loisirs;
- chemins et trottoirs, le cas échéant.
Une disposition de tuyauterie correctement conçue contient un nombre minimum de coudes. De plus, il faut tenir compte des normes sanitaires et des exigences du SNiP. En raison de la grande complexité de la tâche, il est préférable de confier la préparation de la conception et de la documentation technique, en particulier pour les zones de grande surface et de terrain difficile, à des professionnels.
À la deuxième étape, la capacité de l'égout pluvial est calculée. Pour effectuer de tels calculs, des données statistiques sur les précipitations moyennes dans une zone donnée seront nécessaires. Sur la base de ces données, les diamètres et les longueurs des canalisations principales, le volume requis de puits de stockage et de drainage d'injection et d'autres caractéristiques techniques du système sont déterminés.
Si tous les calculs sont effectués correctement, même de fortes pluies ne provoqueront pas d'inondation du site et la destruction de la partie souterraine de la fondation.
Le dispositif et le principe de fonctionnement des égouts pluviaux
Système d'égout pluvial
Une grande quantité d'eau en surface qui reste après la pluie peut causer de nombreux désagréments : érosion du sol, engorgement du sol, mort des plantes, destruction de la fondation d'un bâtiment, inondation des sous-sols, etc. De tels problèmes surviennent pour diverses raisons : dans la zone donnée, il y a beaucoup de précipitations ; le site est situé en plaine ou il est situé en zone inondable. Les problèmes sont éliminés par l'évacuation rapide de l'eau du territoire à l'aide des égouts pluviaux à la maison.
Pour le créer, les détails suivants sont utilisés :
- Gouttières, entonnoirs, tuyaux de descente. Ils sont nécessaires pour collecter l'eau de la surface du toit et la diriger vers les entrées d'eaux pluviales.
- arrivées d'eau de pluie. Les produits sont conçus pour recevoir l'eau du toit ou du site. Les réservoirs fabriqués en usine sont souvent équipés d'éléments filtrants: un panier pour collecter les gros débris et un bac à sable.
- Bacs de porte. Ce sont des conteneurs pour collecter l'eau directement près des portes d'entrée.
- Tuyaux. Ils sont utilisés dans les installations souterraines pour déplacer le liquide vers le lieu de collecte ou d'élimination. Indispensable en milieu urbain.
- bacs de réception. Détails pour collecter le liquide de la surface de la terre et le diriger vers les entrées d'eaux pluviales. Généralement utilisé par les développeurs individuels dans les zones rurales.
- Pièges à sable. Nécessaire pour isoler une fine masse en vrac d'un liquide. Ils sont installés immédiatement derrière les arrivées d'eaux pluviales, aux endroits où l'eau s'écoule dans le réseau souterrain. Sans de tels filtres, l'égout se bouchera rapidement et tombera en panne.
- Puits de révision. Éléments d'un égout pluvial fermé. Ils sont utilisés pour nettoyer la partie souterraine du système.
- collectionneurs. Conçu pour collecter l'eau de plusieurs tuyaux et bacs et combiner les flux. Ils sont également construits s'il est nécessaire de changer radicalement la direction de l'autoroute.
- Disques. Servir de stockage temporaire des eaux pluviales collectées sur le site.
Le système d'égout pluvial est conditionnellement divisé en deux zones: le drainage des eaux du toit et de la surface du terrain.
Le schéma montre le principe de fonctionnement des égouts pluviaux
Il fonctionne comme suit. L'eau de pluie du toit s'écoule dans les gouttières placées le long du bord inférieur de la couverture du toit. Ils sont montés avec une inclinaison vers les canalisations verticales. À travers eux, le liquide pénètre dans les entrées d'eaux pluviales situées au sol directement sous les colonnes montantes. Ces éléments sont reliés par des canalisations à des bacs dans lesquels s'écoule l'eau de la surface du site. Le liquide collecté est évacué le long de la conduite principale dans l'égout central, à l'extérieur du site, dans un ravin ou un réservoir. Pour éviter que le système ne se bouche, le système d'égout est équipé de pièges à sable pour nettoyer la masse meuble et de grilles pour retenir les branches, les feuilles et autres gros débris.
Les égouts pluviaux des maisons diffèrent entre eux par le volume d'eau qu'ils peuvent traverser, leur conception et leur durée de vie. Il existe de tels types de structures:
- système ouvert. Construit au-dessus du sol. Les éléments structurels sont approfondis et bétonnés, et recouverts de caillebotis par le haut. L'autoroute est très simple et la moins chère en termes d'argent. Il est facile de le fabriquer soi-même sans développer de projet. Un égout pluvial à ciel ouvert est construit dans de petites maisons privées et est souvent utilisé comme élément de décoration paysagère. Pendant le gel, un tel système est inopérant. Il peut être construit à n'importe quel stade de l'aménagement du territoire du site.
- systeme ferme. Dans de telles structures, il existe des entrées d'eaux pluviales dans lesquelles l'eau collectée pénètre par des tuyaux ou des plateaux. Parmi ceux-ci, le liquide est envoyé au lieu d'élimination. Les éléments de drainage pluvial ne sont pas visibles, ils sont cachés sous le sol. Le coût d'un système fermé est assez élevé, la décision de l'utiliser doit donc être justifiée. Il est recommandé de construire un tel système de drainage au stade initial de l'aménagement du site.
- Système mixte. Il est constitué de bacs extérieurs et de canalisations enterrées. Il est utilisé en cas de terrain complexe du site. Il est souvent utilisé pour déposer les eaux pluviales le long du chemin le plus court.
- Système de points. Conçu pour collecter et drainer l'eau des surfaces qui ne laissent pas passer de liquide, par exemple du toit d'une maison ou d'une plate-forme en béton. Le plus souvent, ce sont des puits d'eaux pluviales avec un couvercle amovible et de simples trappes à ordures.
- Système linéaire. Il est créé pour une solution globale au problème - éliminer l'eau de la surface d'une grande surface et la diriger vers le lieu de collecte ou d'élimination. Il se compose de gouttières, de bacs, de pièges à sable et d'un filtre grossier pour la collecte des gros débris. Ils sont montés le long des chemins et des plates-formes.
La clé du succès Trouver une entreprise spécialisée dans le développement de projets Approvisionnement en eau et assainissement
Gamme complète de travaux :

L'organisme de conception assume pleinement toutes les obligations pour la collecte des données initiales et le développement du schéma V&V.
- Les spécialistes de l'organisation de conception, en collaboration avec le client, collectent les données initiales.
- Mise en œuvre du rapport conformément au décret du gouvernement de la Fédération de Russie du 5 septembre 2013N 782 "Sur les projets d'approvisionnement en eau et d'assainissement" Procédure d'élaboration et d'approbation des projets d'approvisionnement en eau et d'assainissement.
- Défense en face-à-face des décisions préliminaires.
- Défense face à face lors d'audiences publiques.
Il est rationnel dans la mise en œuvre de schémas urbains et de schémas de districts municipaux avec un grand nombre de petites agglomérations.
Développement à distance de ViV Scheme :

L'organisme de conception fournit au client des demandes et des questionnaires à remplir, fournit une assistance à distance pour la collecte des données initiales et la protection des décisions prises.
Mise en œuvre du rapport conformément au décret du gouvernement de la Fédération de Russie du 5 septembre 2013 N 782 "Sur les systèmes d'approvisionnement en eau et d'assainissement" Procédure pour le développement et l'approbation des systèmes d'approvisionnement en eau et d'assainissement.
Protection à distance Décisions préalables, par visioconférence.
Protection à distance lors des audiences publiques, par visioconférence.
Rationnel dans la mise en œuvre de schémas de petites agglomérations, afin d'optimiser les coûts.
Conception de système et installation d'égouts pluviaux dans une maison privée
Avant de créer un système de drainage, il est nécessaire d'établir un dessin à l'avance, de préparer des plans pour le territoire et de faire des schémas de conception détaillés. Sinon, vous compliquerez grandement le travail, à coup sûr dans l'une des sections vous ferez une erreur avec la pente. Si vous ne pouvez pas faire un système efficace, alors il vaut mieux ne pas démarrer cette entreprise, sinon vous gaspillerez votre argent, et si vous faites un système d'eaux pluviales trop puissant, vous gaspillerez beaucoup d'argent.
Pour effectuer des calculs avec précision et préparer un projet, vous aurez besoin des données suivantes :
- Quantité moyenne de précipitations ;
- Fréquence des précipitations ;
- Épaisseur de neige en hiver;
- zone de toit ;
- Zone de ruissellement ;
- Caractéristiques du sol sur le site ;
- Dessin de l'emplacement des services publics souterrains ;
- Calcul de la quantité possible d'eaux usées.
Après cela, les calculs sont effectués selon la formule Q \u003d q20 * F * K, dans laquelle:
- Q - la quantité d'eau qui doit être évacuée par les égouts pluviaux ;
- q20 est la quantité de précipitations (nous avons besoin de données pour une certaine zone) ;
- F est la zone à partir de laquelle les précipitations sont supprimées ;
- K - coefficient, qui est affecté par le matériau de revêtement :
- Pierre concassée - 0,4 ;
- Béton - 0 0,85 ;
- Asphalte - 0,95 ;
- Toits des bâtiments - 1.0.
Ces données sont comparées aux exigences du SNiP et décident du diamètre de tuyau requis pour un drainage de haute qualité.
Souvent, le coût élevé des travaux de terrassement pousse les gens à poser les tuyaux à faible profondeur - cela est justifié, il n'est pas particulièrement nécessaire d'enterrer les tuyaux trop profondément. Les puits d'inspection et les collecteurs doivent être enterrés sous la profondeur de congélation du sol, comme indiqué dans les GOST. Vous pouvez les poser plus haut, mais vous devrez isoler les tuyaux avec un matériau calorifuge, par exemple, vous pouvez utiliser des géotextiles. La réduction de la profondeur réduit considérablement le coût d'un dispositif d'égout pluvial.
Il est impossible de négliger les demandes de pente minimale du pipeline ; selon GOST, les normes suivantes sont fournies :
- Les tuyaux d'un diamètre de 15 cm doivent être posés avec une pente d'au moins 0,008 mm par mètre linéaire;
- Les tuyaux d'un diamètre de 20 cm doivent être posés avec une pente d'au moins 0,007 mm par mètre linéaire.
La pente peut varier en tenant compte des caractéristiques du territoire sur le site à proximité de la maison.Par exemple, à la jonction d'une arrivée d'eaux pluviales et d'une conduite, il faut augmenter la vitesse de l'eau, pour cela il faut augmenter la pente de 0,02 mm par mètre linéaire. Dans la zone où se trouve le dessableur, il est nécessaire de réduire le débit, sinon les particules de sable en suspension ne s'attarderont pas et elles seront emportées par le débit d'eau, pour cette raison, l'angle de pente du tuyau est réduit.
Le but et les spécificités du dispositif d'évacuation des eaux pluviales
Les eaux usées pluviales sont un complexe de dispositifs et de canaux qui collectent, filtrent et éliminent l'humidité atmosphérique dans des champs de filtration, des réservoirs spéciaux et des réservoirs. Sa tâche est d'éliminer l'excès d'humidité qui crée de l'inconfort, détruit les structures et raccourcit le cycle de vie des plantes.
Les eaux pluviales sont un réseau linéaire qui comprend des éléments standard tels que :
-
- les prises d'eaux pluviales, représentées par des entonnoirs, des palettes, des bacs linéaires qui recueillent l'eau ;
- gouttières, tuyaux, plateaux transportant l'eau vers des pièges à sable - dispositifs de filtration, et plus loin vers des collecteurs, des fossés, des réservoirs, pour décharger des champs ;
- regards nécessaires pour contrôler le système pluvial ;
filtres, dessableurs qui retiennent les particules de sol, les fibres végétales et les débris qui protègent le réseau de la pollution.

Les eaux pluviales sont un complexe de canaux et de dispositifs qui collectent l'excès d'humidité atmosphérique, la filtrent et l'évacuent d'abord vers un puits collecteur, puis vers des points de déchargement.

Options pour les entrées d'eaux pluviales : à gauche se trouve un bac de porte, au milieu se trouve un entonnoir qui reçoit l'eau du drain, à droite se trouve une gouttière avec un bac à sable
Tous les éléments sont combinés en un système intégral fonctionnant sur une technologie linéaire ou ponctuelle.Si des canaux d'égout pluvial sont posés dans le sol, des tuyaux sont utilisés pour leur construction. Des gouttières et bacs en plastique, en amiante ou en béton sont installés dans les fossés de surface.
Classement selon le mode de collecte des eaux usées
Selon le principe de collecte, selon lequel l'égout pluvial est installé, tous les égouts pluviaux existants sont divisés en deux types.
- Systèmes ponctuels, qui comprennent des entrées d'eaux pluviales installées sous les gouttières des drains internes et externes. Chaque appareil recevant de l'eau atmosphérique est relié à une ligne commune. Selon les spécifications techniques, les entrées d'eau pluviale sont équipées de grilles spéciales et de pièges à sable qui empêchent la pénétration de particules de sol en suspension, de résidus végétaux et de débris dans le système.

Type de point d'eau pluviale : l'entrée d'eau pluviale est installée sous le drain, l'entonnoir de réception d'eau est équipé d'un filtre à mailles et d'un panier à litière interne
- Un type linéaire de drainage des eaux pluviales, qui est un réseau de canaux posés sous terre ou dans des tranchées légèrement enterrées. Les bacs qui recueillent et déplacent l'eau, posés à ciel ouvert, sont également équipés de dessableurs et équipés de grilles. Seuls des caillebotis sont installés sur toute la ligne. Contrairement à un schéma ponctuel, un système d'égout linéaire collecte l'eau non seulement des drains de toit, mais également des chemins, des sites recouverts de béton, pavés de briques de pavage. Ce type d'égout "couvre" et traite plus d'objets.

Un système de drainage linéaire des eaux pluviales peut couvrir une grande surface, évacuer les eaux de ruissellement non seulement du toit, mais également des espaces paysagers, des trottoirs et des côtés de la maison où, en raison des spécificités de la structure en pente, il n'y a pas de drains
En se concentrant sur les différences de conception et le degré de couverture du territoire, le type de système est sélectionné. Cependant, ce ne sont pas des critères de sélection fondamentaux. Fondamentalement, les égouts pluviaux du pays sont organisés en fonction de l'expérience dans l'organisation et l'exploitation des égouts pluviaux disponibles dans une zone particulière. Sur cette base, ils déterminent à la fois le type de canalisation et la profondeur de leur pose.
Réalisation de travaux d'installation
Comme pour toute construction, il y a au tout début tous les travaux préparatoires nécessaires. Lors de la première étape, un plan d'implantation est marqué sur papier et un dessin du futur système de drainage est réalisé, puis les calculs nécessaires des matériaux de construction sont effectués.
Ensuite, la préparation directe des canaux pour le futur drainage commence. Les tranchées doivent être creusées à au moins 10 cm de profondeur et en tenant compte du fait que les grilles décoratives sont installées avec une légère pénétration dans le sol. Une fois les canaux creusés et la fondation créée, ils commencent à couler le mélange de béton. Épaisseur de couche béton d'environ 10 cm. Ensuite, des pièges à sable sont installés dans le béton et des gouttières en plastique sont déjà posées dessus. Pour obtenir un drainage de la plus haute qualité et durable, il est recommandé d'effectuer une étanchéité supplémentaire : posez un matériau d'étanchéité (feutre de toiture ou feutre de toiture) entre les gouttières et le béton.
La dernière étape comprend le raccordement du système de drainage à l'égout. Cela se fait à l'aide d'un tuyau. Pour couronner le tout, des grilles de protection décoratives sont installées.
Caractéristiques de conception
Les égouts pluviaux se composent de deux sections :
- intérieur;
- extérieur.
L'égout pluvial domestique est tout
éléments situés sur le toit et canalisations verticales à travers lesquelles l'eau
déplacés vers des conteneurs de réception. La partie externe est un système
acheminer les eaux usées vers un collecteur de pluie. Composition et conception des extérieurs
les tracés sont presque les mêmes pour tous les systèmes.
La différence réside dans la manière dont l'eau est collectée et déplacée du toit vers le bas.

maisons aux toits en pente
Imeuble
à toit en pente sont équipés d'un système de bacs de réception installés le long
périmètre du toit. L'eau s'y écoule, passe dans les entonnoirs de réception, descend dans les gouttières et
est envoyé aux réservoirs de réception ou à la ligne principale. Tous les systèmes
de ce type sont auto-coulants. Cela signifie que l'installation d'un égout pluvial interne est nécessaire
produire en tenant compte de la pente des plateaux. La réparation et l'entretien de tels systèmes sont simples, car cachés
des éléments manquent. Cependant, placer des composants à haute altitude
rend le travail difficile et fait de la maintenance ou du remplacement une procédure extrêmement dangereuse. Les plateaux ouverts sont souvent remplis de petits
débris emportés par le vent. Les blocages augmentent rapidement et se compactent,
obstruant l'accès aux égouts. Si non produit
nettoyage périodique des gouttières, l'humidité débordera, pénétrera dans
sur les murs et les fenêtres du bas
étages. C'est le seul inconvénient de tels systèmes.
maisons à toit plat
Égout pluvial interne dans un bâtiment à plusieurs étages
à toit plat est une ou plusieurs cheminées d'admission,
relié à une canalisation verticale. Un autre nom est un drain de siphon. Il
passe à l'étage inférieur, quitte la fondation et rejoint
ligne principale. Pour organiser une collecte efficace de l'eau vers les entonnoirs
une déviation est faite. Diamètre de la colonne montante
doit fournir une capacité suffisante pour évacuer la pluie
l'eau a coulé sans tarder.

Parfois plus complexe
structure du siphon interne
systèmes. Les entonnoirs de réception sont reliés à des canalisations horizontales,
situé sous la dalle de plancher. Des tuyaux horizontaux part en forme de L
élément de liaison relié à la colonne montante. Le principe du réseau
changements, la différence réside uniquement dans les problèmes structurels.
Réparation d'égouts pluviaux dans un immeuble à logements
est grandement simplifié s'il est assemblé selon le type de siphon. Tout est possible
des problèmes obstruent la colonne montante. L'entretien, la réparation et le changement de composants dans de telles conditions
l'organisation des éléments est beaucoup plus facile et plus sûre.
Concevoir de tels systèmes
produit en fonction de la configuration globale du bâtiment. Selon les normes du SNiP, pour un
l'entrée a une contremarche, ou pour 250 m2 de toit - une
canalisation verticale
Il est important d'assurer une bonne étanchéité de tous
connexions, sinon des fuites se produiront qui détruiront le matériau des murs ou de la fondation. Colonnes montantes d'égout de grande hauteur
les bâtiments sont la propriété commune, donc les préoccupations concernant l'état de ces
éléments retombent sur les épaules des salariés des sociétés de gestion
Le processus et les spécificités de l'installation des eaux pluviales
Les règles d'exécution des travaux d'installation sur l'installation des égouts pluviaux sont identiques aux principes de pose des conduites d'égout externes conventionnelles. Cependant, si la maison n'est pas équipée de gouttières, il faut commencer par leur dispositif.

Les règles d'installation d'un système d'égout pluvial sont similaires aux règles de pose d'un égout conventionnel
Construction de l'élément de toiture
- Dans les plafonds de la maison, vous devez faire des trous pour les entrées d'eaux pluviales. Après avoir installé les appareils et les avoir fixés au mastic bitumineux, les points de jonction doivent être scellés.
- Installation des conduites d'égout et des colonnes montantes.
- Tous les éléments doivent être fixés aux structures de la maison à l'aide de pinces.

Schéma de la partie toiture du collecteur d'eaux pluviales : 1. gouttière ; 2. coin extérieur de la gouttière ; 3. le coin de la gouttière est interne ; 4. bouchon de gouttière ; 5. connecteur de gouttière ; 6. crochet ; 7. crochet ; 8. entonnoir ; 9. entonnoir de captage ; 10. coude de tuyau ; 11. tuyau de vidange ; 12. tuyau de raccordement ; 13. support de tuyau (pour brique); 14. support de tuyau (pour le bois); 15. coude de vidange ; 16. té de tuyau
Ensuite, des plateaux sont installés si un système de type linéaire est en cours de construction, ou des tuyaux de sortie si l'installation est réalisée selon un schéma de points.
Appareil souterrain
Selon le plan prévu, établi en tenant compte des pentes et de la profondeur des canaux adoptés dans la région, il est nécessaire de creuser une tranchée. S'il est prévu d'isoler le pipeline en formant une coque de géotextile et de pierre concassée autour de celui-ci, ou de disposer un coussin de sable, leur puissance doit également être prise en compte. Voici comment nous procédons :
-
- Le fond de la tranchée est bien percuté avant l'installation. Les grosses pierres rencontrées lors du creusement sont enlevées, les fosses formées après leur enlèvement sont recouvertes de terre.
- Un coussin de sable est coulé au fond, son épaisseur standard est de 20 cm.
- Une fosse est en cours de formation pour l'installation d'un réservoir collecteur. En tant que collecteur, il est plus facile d'utiliser un récipient en plastique prêt à l'emploi, mais si vous le souhaitez, vous pouvez fabriquer vous-même un collecteur en coulant du béton dans un coffrage disposé à l'avance.
Les tuyaux sont posés compactés et équipés de coussins de sable, et des raccords sont utilisés pour les connecter en un seul système.

Les connexions des canaux de drainage souterrains sont réalisées à l'aide de raccords
- Il est recommandé d'inclure des trous d'homme dans les branches droites des eaux pluviales, d'une longueur supérieure à 10 m.
- Des pièges à sable doivent être installés aux points de jonction des collecteurs d'eau atmosphérique et des canalisations.
- Tous les appareils et luminaires sont connectés dans un seul circuit, les jonctions des composants sont scellées.
Avant de remblayer la tranchée, il est nécessaire de réaliser des essais en versant de l'eau dans les arrivées d'eau. À la suite des tests, aucune faiblesse n'a été trouvée? Nous remplissons le système posé dans la tranchée avec de la terre et équipons les gouttières, plateaux, palettes de caillebotis.

Avant de remblayer la tranchée, le système construit doit être vérifié, identifié et éliminé tous les défauts et fuites, le cas échéant.
Il est interdit de déverser le puits collecteur de la ville dans le réseau général d'égout en raison de la présence de produits chimiques et pétroliers dans les effluents. Le propriétaire d'une maison de campagne peut librement connecter un égout pluvial au système d'égouts qui lui appartient, car il n'y a pas de composants dangereux nécessitant un nettoyage fin.

Après le nettoyage dans le dessableur, l'eau pénètre dans les égouts, à partir de là, elle peut être distribuée directement dans le sol, déchargée dans des plans d'eau ou dans le réseau d'égout ordinaire d'une maison privée
L'aménagement paysager de la maison et des environs avec un système de drainage de surface aidera à prolonger la durée de vie des structures, à protéger les propriétaires des flaques d'eau et de la neige fondante et à empêcher la pourriture des racines des plantes.Un simple site d'eaux pluviales à faire soi-même peut être installé par le propriétaire lui-même, mais même si vous contactez les constructeurs, les informations sur les spécificités de son organisation n'interféreront pas. Le propriétaire lui-même pourra suivre les violations, réparer et nettoyer.
Dispositif et technologie d'égout pluvial
Il est préférable de confier l'installation des eaux pluviales à des personnes ayant une vaste expérience dans de tels travaux. Mais si vous devez déjà l'installer vous-même, vous devez vous souvenir de la technologie du processus. Par exemple, lors de l'installation d'un drain, il est nécessaire de prendre en compte le côté sur lequel la pente est réalisée. Il doit être fait dans le sens de l'écoulement de l'eau.

Choses à considérer:
- Outre le matériau, son emplacement est également pris en compte. Par exemple, il vaut mieux abandonner beaucoup de virages et de placement de virages.
- Une connexion étanche permet à l'ensemble du système d'être une protection fiable contre l'excès d'humidité. En l'absence d'étanchéité, l'eau s'infiltrera dans le sol ou s'accumulera aux mauvais endroits, ce qui entraînera l'absurdité totale du drain.
- En pente, la règle principale est de ne pas retenir l'eau. Gardez à l'esprit que l'eau gèle rapidement en hiver. De grandes fluctuations de température le fournissent en grande quantité et le gel le gèle. Cela conduit en outre au colmatage du drain.
- Avant l'installation, le nombre de tous les éléments est pris en compte. Même les éléments de protection contre les débris sont inclus.
Étant donné que le travail se déroule sous l'influence constante de l'humidité, le matériau doit être choisi résistant à cet élément - uniforme et durable. Il est préférable de ne pas utiliser de tuyaux ondulés - ils se boucheront plus souvent que d'habitude. Si l'approvisionnement en eau est long, plusieurs puits doivent être installés pour vérifier les fuites ou les blocages.Cela est nécessaire pour une réparation et un nettoyage en temps opportun.
Conception d'un système d'égout pluvial
L'aménagement des égouts pluviaux, comme d'ailleurs la construction de tout objet, commence par la préparation d'un projet. Cependant, le schéma du système d'égout pluvial est créé en fonction des conditions dans lesquelles il devra fonctionner. Actuellement, il existe les options suivantes pour les dispositifs d'évacuation des eaux pluviales :
- systèmes fermés. Il s'agit d'une version assez compliquée des égouts pluviaux, nécessitant des calculs minutieux et une planification méticuleuse, par conséquent, dans ce cas, la conception est confiée exclusivement à des professionnels.
- systèmes ouverts. Ils sont considérés comme les moins coûteux en finance et l'option la plus simple. Lors de l'élaboration du schéma, la disposition des gouttières ouvertes est prévue, où les eaux usées seront collectées.
- systèmes mixtes. Une option intermédiaire entre les systèmes ouverts et fermés. Il est très populaire dans une situation où il est nécessaire de réduire considérablement le coût de construction d'une installation à grande échelle.
De plus, lors de la conception et de l'élaboration d'un diagramme, il est nécessaire de répondre aux questions suivantes:
- Quelle est la quantité moyenne de précipitations dans une zone où un égout pluvial est prévu ? La réponse à cette question permettra de déterminer les performances du futur système.
- Quelle est la superficie totale des surfaces de captage disponibles sur le site (zones en béton et asphalte, toits des bâtiments, etc.) ? Grâce à ce paramètre, vous pouvez déterminer le nombre d'entrées d'eaux pluviales à installer.
- Quelles sont les caractéristiques du relief ? Comme les plateaux et les tuyaux sont toujours posés selon une certaine pente, il est nécessaire de prendre en compte les différences d'élévation du site d'installation des égouts pluviaux.
- Quel type d'égout pluvial peut-on équiper dans ce cas ? L'égout pluvial interne, collecté à partir de tuyaux posés sous terre, est non seulement l'option la plus chère, mais aussi une option à forte intensité de main-d'œuvre. C'est pourquoi l'avantage doit être donné au drainage externe (ouvert) des eaux de pluie, collectées à partir de bacs ouverts. Dans le même temps, il est logique de placer les plateaux le long des chemins, près du bâtiment lui-même et aux endroits où l'eau coule.
De plus, lors de l'élaboration d'un schéma d'égout pluvial, il est nécessaire de minimiser le nombre de câblages supplémentaires et d'éliminer complètement (si possible) les virages serrés dans le pipeline.







































