- Documents réglementaires de GOST pour l'approvisionnement en eau et SanPiN
- Assainissement interne
- La composition des dessins d'exécution
- Matériaux de tuyauterie et vannes
- Options d'installation pour les conduites d'eau pour les zones suburbaines
- Approvisionnement en eau et assainissement internes - coupe, exigences et règles d'installation
- Qu'est-ce que la plomberie ?
- Caractéristiques principales
- Dispositions générales du document
- Exceptions
- 6.1 Plans système
- Pose de plomberie
- Approvisionnement en eau et assainissement internes : conception, installation et maintenance
- Approvisionnement en eau externe et interne et assainissement des bâtiments
- Exigences relatives à l'approvisionnement en eau interne et à l'assainissement à l'intérieur des bâtiments
- Normes de consommation et SNiP pour l'approvisionnement en eau
- Calcul des réseaux d'eau
- Assainissement interne: normes et règles
- Conclusions et vidéo utile sur le sujet
Documents réglementaires de GOST pour l'approvisionnement en eau et SanPiN
Les normes en vigueur s'appliquent à la rédaction de systèmes pour reconstruction ou en construction pour l'approvisionnement interne en eau chaude et froide, les drains dirigés et les égouts. Lors du processus de conception des systèmes d'alimentation en eau chaude et froide, ainsi que des eaux usées, il est nécessaire de se conformer aux exigences de divers documents réglementaires convenus et approuvés par le ministère de la Construction de Russie.
Les normes en vigueur s'appliquent lors de la conception :
- Systèmes d'extinction automatique d'incendie ;
- Usines de traitement d'eau chaude;
- Systèmes de plomberie des entreprises de lutte contre l'incendie qui produisent ou stockent des explosifs ;
- Points thermiques ;
- Systèmes d'approvisionnement en eau chaude qui fournissent de l'eau aux entreprises industrielles pour des besoins technologiques ;
- Systèmes d'approvisionnement en eau spéciaux industriels.
En outre, l'élaboration de règles peut concerner des projets de systèmes d'approvisionnement en eau pour un équipement technologique.
GOST 2874-82 s'applique à l'eau potable. Réglemente les exigences d'hygiène et contrôle sa qualité. GOST R 51232 et SanPin "Eau potable" régulent la concentration de microéléments et de substances pathogènes dans les liquides.
La canalisation interne est un système d'appareils et de tuyaux qui alimentent en eau divers appareils sanitaires, équipements, bouches d'incendie.
GOST R 53630-2009 réglemente les règles et réglementations concernant les conduites sous pression multicouches pour les systèmes de chauffage et d'alimentation en eau.
Le système d'alimentation en eau dessert un bâtiment ou tout un groupe et dispose en même temps d'un appareil de mesure commun du réseau d'alimentation en eau d'une organisation industrielle ou d'une colonie. Si l'eau sera fournie par des systèmes d'extinction d'incendie externes et que la canalisation sera posée à l'extérieur des bâtiments, il est alors nécessaire de satisfaire aux exigences conformément au SNiP 2.04.02-84.
Assainissement interne
Les égouts internes comprennent les tuyaux et les raccords auxiliaires. Cette communication remplit une fonction très importante - l'évacuation des eaux usées des appareils de plomberie et des entrées de pluie à l'extérieur des bâtiments. Le point final, en règle générale, est une station d'épuration qui filtre l'eau et la rejette dans le plan d'eau le plus proche.Après cela, l'eau peut être réutilisée pour différents besoins.

Le système d'assainissement interne collecte et dévie les eaux usées des appareils consommateurs vers le réseau général
Les principaux types d'eaux usées internes:
- économique;
- égouts dans les entreprises;
- réseau d'égouts combinés (combinés);
- pluie.
Considérez les cas dans lesquels un système d'égout séparé est installé:
- pour les installations dont les eaux usées nécessitent des mesures de traitement supplémentaires ;
- pour les bâtiments disposant d'installations de traitement ;
- pour divers bâtiments industriels, ainsi que pour les bâtiments liés à l'industrie alimentaire (cafés, restaurants, etc.).
Les principales exigences pour les appareils de plomberie et les récepteurs d'eaux usées sont les suivantes :
- au point de rejet, un siphon ou un joint hydraulique doit être situé ;
- chaque toilette doit être munie d'un réservoir de chasse;
- des urinoirs doivent être présents dans les toilettes pour hommes.
L'installation de tous les appareils est soumise à certaines règles décrites dans SNiP. La hauteur des appareils et d'autres paramètres doivent être strictement respectés.
Il convient également de noter que pour l'organisation des connexions dans la structure d'égout, des dispositifs spéciaux sont utilisés - des raccords. Les raccords d'égout se distinguent par leur diversité constructive, qui détermine leur grande popularité et leur fonctionnalité.
Matériaux de tuyauterie autorisés à être utilisés lors de l'installation de communications d'égout sans pression de type interne :
- polymère (généralement des tuyaux en polyéthylène);
- fonte (principalement en fonte grise durable);
- amiante-ciment.

Pour les systèmes d'égouts sans pression, des tuyaux en fonte, en amiante-ciment ou en polymère sont utilisés.
L'installation des tuyaux ci-dessus peut se faire de deux manières:
- ouvert;
- fermé.
La méthode ouverte implique l'utilisation d'éléments spéciaux pour la fixation. Grâce à ces éléments, les tuyaux sont fixés aux surfaces de travail. Il est recommandé d'installer les conduites d'égout dans les endroits où la probabilité de dommages mécaniques est la plus faible. La méthode cachée de pose des communications d'égout implique l'installation de ses éléments structurels de sorte que les tuyaux ne soient pas visibles (sous le sol, dans le mur, etc.).
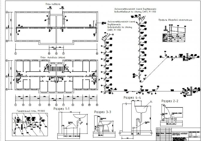
La composition des dessins d'exécution
Système de documentation de projet
pour la construction (en abrégé SPDS) définit les règles de dessin des éléments
plomberie et assainissement, ainsi que la composition globale de l'ensemble. Il est le principal
partie de la documentation de travail de la marque VK. L'ensemble complet de documents tient compte de tous
réseau d'égouts, intérieur et extérieur. Dans ce cas, les deux parties sont affichées dans
dessins différents, car les spécificités de leur travail diffèrent les unes des autres.
Approvisionnement en eau et assainissement SPDS
réseaux internes prend en compte les spécificités de la construction de schémas et de dessins de
lignes. Si nécessaire, ils peuvent être combinés avec de l'eau ou
gazoducs. Tous les symboles utilisés sont également définis par la réglementation,
dont l'écart est inacceptable.
Le colis est composé des documents suivants :
- schémas généraux des conduites d'égouts;
- croquis de structures non standard ;
- dessins d'unités atypiques du complexe;
- des tableaux indiquant la liste des matériaux nécessaires pour créer des réseaux ;
- spécification du matériel utilisé.
Des instructions générales sont également données ici, expliquant ou clarifiant les données des schémas ou des dessins.
Ceux-ci inclus:
- des informations sur les documents sur la base desquels
RD a été développé; - confirmation de la conformité de l'AR avec toutes les
règlements, normes; - liste de la documentation, réglementations techniques,
déterminer l'ordre des travaux; - le niveau de la note pris conditionnellement à zéro ;
- liste des œuvres cachées (souterraines);
- règlements qui ont été utilisés
lors de l'exécution de calculs ; - caractéristiques géologiques du site ;
- exigences particulières pour l'exécution du travail,
isolation thermique.
Sur les schémas techniques des communications sont notés:
- axes des pipelines et distances entre les branches ;
- coordonnées et niveaux de profondeur des puits ou
collectionneurs; - unités technologiques, équipements d'exploitation;
- diamètres des sorties des conduites d'égout;
- repères du niveau des branches, plafonds, contremarches,
d'autres éléments.
L'accent doit être mis sur la capacité et la configuration de toutes les lignes. Ce sont les principaux indicateurs qui déterminent l'efficacité et les paramètres de fonctionnement du complexe
De plus, un point important est la situation géologique, le niveau d'eau du sol, la présence de fluctuations saisonnières ou la possibilité d'inondations. Les impacts sur la partie souterraine du système sont dangereux car ils se manifestent à l'état développé, lorsque tous les problèmes sont déjà survenus. Une conception compétente vous permet de calculer à l'avance tous les dangers et impacts. Les réseaux externes d'approvisionnement en eau et d'assainissement GOST constituent un ensemble de règles selon lesquelles la documentation technique est établie.

Matériaux de tuyauterie et vannes
SNiP pour l'approvisionnement en eau et l'assainissement des réseaux internes indique une liste de matériaux à partir desquels il est recommandé d'installer des canalisations pour l'eau chaude et froide. Ces règles s'appliquent également aux raccords nécessaires à la construction de systèmes d'ingénierie. Les matériaux recommandés incluent :
Polymères :
- polyéthylène;
- chlorure de polyvinyle;
- polypropylène;
- métal-plastique;
- fibre de verre.
Il est recommandé d'utiliser des tuyaux en plastique pour le câblage dissimulé, ils sont murés dans des stroboscopes, recouverts de plinthes, placés dans des canaux lors du coulage du sol. Le câblage ouvert est installé dans des zones où le pipeline n'est pas menacé par des dommages mécaniques.
Conduites d'eau froide
Métaux:
- Cink Acier;
- cuivre;
- bronze;
- laiton.
Tuyaux et raccords pour eau chaude
Les tuyaux et raccords doivent résister :
- pression d'essai non inférieure à 0,68 MPa ;
- pression d'essai de l'eau chaude 0,45 MPa à une température de 90 ;
- la pression de travail n'est pas inférieure à 0,45 MPa pour une température d'eau froide de 20 et chaude - 75.
Des vannes d'arrêt (robinets, vannes d'arrêt) sont installées sur les branches de la ligne principale vers le bâtiment ou les nœuds de section, ainsi que sur la branche s'étendant de la colonne montante à l'appartement. Des raccords avec bouchons pour l'évacuation de l'eau sont installés aux points supérieur et inférieur de la colonne montante. Cela permet de réparer les canalisations.
Options d'installation pour les conduites d'eau pour les zones suburbaines
L'installation des tuyaux peut être effectuée par deux méthodes courantes :
- Connexion en série des consommateurs.
- raccordement collecteur.
En règle générale, la première option convient à une petite maison de campagne. Pour les maisons de campagne dans lesquelles les gens vivent constamment, la première option ne convient pas. Lorsqu'il est connecté en série, chaque transition contribue à une perte de charge. Dans ce cas, le besoin est le câblage du collecteur, ce qui implique le retrait du tuyau du collecteur principal au consommateur. Ainsi, la pression d'eau pour chaque consommateur sera la même.
L'eau est généralement prélevée d'un puits ou d'un puits. Un tuyau est posé à partir du puits en utilisant une méthode fermée (dans le sol). Un tel tuyau est connecté à l'équipement de pompage, mais avant cela, il est nécessaire d'y installer un clapet anti-retour, qui régulera le sens du mouvement de l'eau et ne lui permettra pas de se déplacer dans le sens opposé. Le tuyau d'eau qui transporte l'eau chaude doit être raccordé à un chauffe-eau approprié.
Les systèmes internes d'approvisionnement en eau et d'assainissement sont soumis à certaines règles, qui sont établies par les institutions publiques compétentes. Le respect de ces règles est non seulement recommandé, mais également obligatoire lors de l'installation de ces communications.
Approvisionnement en eau et assainissement internes - coupe, exigences et règles d'installation

Qu'est-ce que la plomberie ?
Conduite d'eau - un système d'approvisionnement continu en eau des consommateurs, conçu pour transporter de l'eau à des fins potables et techniques d'un endroit (généralement des installations de prise d'eau) à un autre - à l'utilisateur de l'eau (locaux de la ville et de l'usine) principalement par des conduites ou des canaux souterrains; au point final, souvent purifiée des impuretés mécaniques dans le système de filtration, l'eau est collectée à une certaine hauteur dans les soi-disant tours de relevage d'eau, d'où elle est déjà distribuée par les conduites d'eau de la ville. Le volume de prélèvement d'eau est déterminé par des compteurs d'eau (appelés compteurs d'eau, compteurs d'eau). La puissance de la pression de l'eau de l'approvisionnement en eau est également utilisée à des fins hydrauliques.
HistoireAqueduc à l'intérieur du Pont du Gard, milieu du Ier s. n.m. e.
Connu dès le 1er millénaire av. e., sont mentionnés dans la Bible (2 Rois, Is. VII, 3, II Chr. XXXII, 30). Dans la Rome antique, les aqueducs étaient appelés aqueducs.Les premiers systèmes d'approvisionnement en eau en Russie sont apparus à Bolgar.
Au XIe ou au début du XIIe siècle, le premier système d'approvisionnement en eau constitué de tuyaux en bois est apparu à la cour de Yaroslav à Novgorod.
Important
Le Kremlin de Moscou a l'eau courante depuis le XVe siècle. Le premier système d'approvisionnement en eau urbain à Moscou (système d'approvisionnement en eau Mytishchi-Moscou) est apparu en 1804.
L'argile, le bois, le cuivre, le plomb, le fer, l'acier ont été utilisés comme matériau de plomberie et, avec le développement de la chimie organique, les polymères ont commencé à être utilisés. Des canalisations de grands diamètres ont également été réalisées en ciment, en béton armé, en amiante-ciment et, ces dernières années, en divers types de plastique.
En raison de la résistance mécanique accrue et de la résistance aux températures élevées dans l'approvisionnement en eau domestique, les conduites d'eau en métal sont les plus largement utilisées - en acier, en acier inoxydable, en fonte, en fonte à haute résistance avec graphite nodulaire (VCSHG) et en cuivre. Des tuyaux en matériaux synthétiques, tels que le polyéthylène de différentes densités, sont également utilisés.
Au XXe siècle, dans les pays développés, les canalisations en cuivre se sont généralisées dans l'approvisionnement en eau des bâtiments en raison d'une combinaison de facteurs qui permettent de longues périodes de fonctionnement sans problème.
De nos jours, les canalisations en polymère se généralisent en raison de la facilité de leur installation et du faible coût des produits en provenance des pays en voie de développement.
En raison de la variété des types de pipelines en polymère eux-mêmes, des méthodes de connexion, leurs performances continuent d'être un sujet de controverse et les prix varient considérablement. Une grande expérience a déjà été accumulée dans l'utilisation de conduites d'eau en polymère.
Ainsi, après une série d'accidents de masse en Amérique du Nord, l'utilisation de pipelines en polybutène a été complètement arrêtée.
Éléments de plomberie
Les conduites d'eau sont internes, situées à l'intérieur des bâtiments et des structures, et externes - posées à l'extérieur des bâtiments et des structures, généralement souterraines.
L'approvisionnement en eau interne est réglementé par le SNiP 2.04.01-85 «Approvisionnement en eau et assainissement internes des bâtiments». Les principaux éléments de la plomberie interne sont :
Conseils
entrée d'un système d'approvisionnement en eau - le pipeline reliant un système d'approvisionnement en eau de la ville avec interne; unité de comptage d'eau - une unité de comptage de la consommation d'eau, dont l'élément principal est un compteur d'eau; installations pour augmenter la pression (pompes de surpression); réseaux de distribution par canalisations ; raccords d'eau et robinets d'arrêt; Bouches d'incendie;
robinets d'arrosage, etc.
Plomberie extérieure
Caractéristiques principales
Les réseaux internes d'approvisionnement en eau et d'assainissement doivent être installés conformément à un projet préétabli. L'élaboration d'un projet est une norme obligatoire, nécessaire à la mise en œuvre d'une installation de communication de haute qualité. L'efficacité d'une communication particulière, ainsi que la durée de son fonctionnement, dépendront de la manière dont l'installation est réalisée.
Des systèmes d'approvisionnement en eau, ainsi que des réseaux d'égouts, sont posés pour assurer l'entretien des maisons privées, des immeubles résidentiels à plusieurs étages, des petites et grandes entreprises, ainsi que des bâtiments administratifs et autres bâtiments.
La méthode d'installation de l'alimentation en eau et des égouts internes peut être de deux types:
- intérieur;
- extérieur;
Les communications posées à l'intérieur des bâtiments, dans la plupart des cas, sont constituées de tuyaux en métal-plastique ou en plastique.Cependant, SNiP vous permet de poser des pipelines à partir d'autres matériaux. Par exemple, pour un réseau d'alimentation en eau, l'utilisation de tuyaux en acier ou en cuivre est autorisée.

Les systèmes de plomberie et d'égout modernes sont souvent montés à partir de tuyaux en polymère, qui présentent de nombreux avantages par rapport aux tuyaux en métal.
De plus, il convient de noter que les tuyaux en acier ont une faible résistance aux effets corrosifs et sont sujets aux blocages dus à des surfaces intérieures insuffisamment lisses. Quant aux produits en cuivre, ils sont peut-être les plus chers et, malgré leurs excellentes caractéristiques techniques, sont installés extrêmement rarement.
Les projets modernes devraient contribuer à l'amélioration des travaux de construction et introduire largement les points suivants:
- automatisation maximale de tous les processus ;
- mécanisation des étapes d'installation à forte intensité de main-d'œuvre;
- normalisation des communications grâce à l'utilisation de tuyaux et d'accessoires pour eux de mêmes tailles (standard);
- réduction des coûts financiers, énergétiques et de main-d'œuvre lors de l'installation de toute communication.
Pour les communications externes, il existe des normes propres prescrites dans le SNiP "alimentation en eau et assainissement externes des bâtiments".
Dispositions générales du document
Tout d'abord, un peu sur la portée de SNiP. Il est pertinent pour les systèmes d'alimentation en eau chaude et froide en cours de conception et à reconstruire (ci-après - alimentation en eau froide et en eau chaude), les égouts internes des bâtiments et les systèmes de drainage.

Le contenu principal de SNiP - règles pour l'installation de l'approvisionnement en eau et de l'assainissement
Quelles informations vous ne trouverez pas dans le texte du document :
- Manuels pour la conception d'unités d'ascenseurs et d'installations pour la préparation et le traitement de l'eau chaude;
- Descriptions des systèmes spécialisés d'eau froide et d'eau chaude, soumis à des documents réglementaires distincts (y compris les systèmes d'ingénierie des établissements médicaux ;
- Schémas de tous les systèmes d'extinction automatique d'incendie et des canalisations d'eau d'incendie des entreprises produisant des substances combustibles et explosives (voir Exigences pour l'approvisionnement en eau d'incendie: un aperçu de la réglementation en vigueur).
Des systèmes internes d'approvisionnement en eau et d'assainissement doivent être prévus pour :
Dans tous les bâtiments érigés dans des zones avec égout central ;

S'il y a un égout central dans votre secteur de la colonie, la maison doit y être raccordée
- Dans les immeubles résidentiels de plus de deux étages ;
- dans les hôtels ;
- Dans les établissements médicaux et les maisons de retraite;
- Dans les sanatoriums, les pensions et les maisons de repos ;
- Dans les jardins d'enfants, les écoles et les camps de vacances pour enfants ;
- Dans les cantines et autres établissements de restauration ;
- Dans les complexes sportifs;
- Dans les laveries et les bains.

Sur la photo - une station de traitement biologique en profondeur des eaux usées
Exceptions
En l'absence d'un système d'égout central, les puisards ou les toilettes à contre-courant (toilettes avec collecte des eaux usées dans un puisard externe) peuvent être équipés de :
- Bâtiments séparés des entreprises avec le nombre de travailleurs impliqués simultanément dans un quart de travail de 25 ou moins ;
- Bâtiments résidentiels ne dépassant pas 2 étages ;

Classique intemporel: placard à contrecoups dans la cour
- Dortoirs jusqu'à deux étages inclus (avec un nombre de résidents ne dépassant pas 50);
- Camps d'été de 240 places ou moins;
- Stades extérieurs, terrains de football, terrains de volley-ball, courts de tennis et tapis roulants ;
- Établissements de restauration ne desservant pas plus de 25 personnes en même temps.
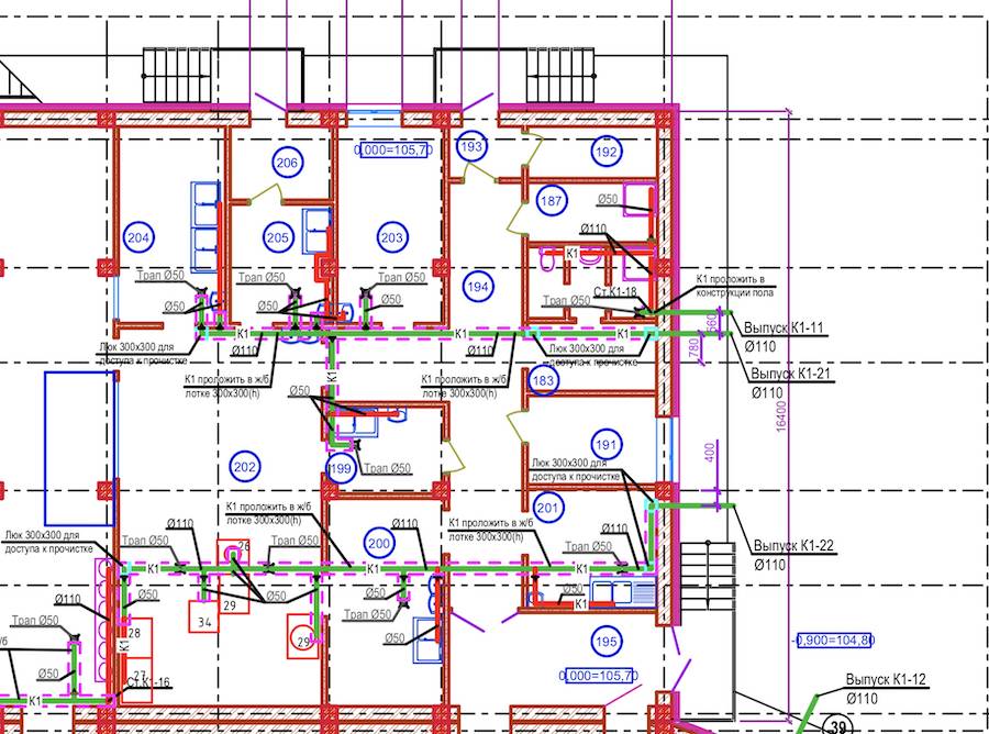
6.1 Plans système
6.1.1
Les plans des systèmes d'approvisionnement en eau (y compris l'approvisionnement en eau chaude), en règle générale,
combiné avec les plans des systèmes d'égouts.
6.1.3
Sur les plans des systèmes, l'équipement des systèmes (par exemple, les pompes, les réservoirs) et les installations
indiquer avec des images graphiques simplifiées, des pipelines et d'autres
éléments de systèmes - symboles graphiques conventionnels.
canalisations,
composé de symboles graphiques conditionnels sur une seule ligne et situés
l'un au-dessus de l'autre dans le même plan, sur les plans des systèmes, ils sont conditionnellement représentés comme parallèles
lignes.
6.1.5
Sur les plans des systèmes appliquer et indiquer :
—
axes de coordination du bâtiment (structure) et la distance entre eux (pour le résidentiel
bâtiments - la distance entre les axes des sections);
—
les structures des bâtiments et les équipements technologiques, auxquels ils apportent
l'eau ou à partir de laquelle les eaux usées sont détournées, ainsi que d'affecter le joint
canalisations ;
—
marques de sols propres des planchers et des plates-formes principales ;
—
contraintes dimensionnelles des installations du système, entrées et sorties d'eau
égouts, conduites principales, colonnes montantes du système (sur plans de sous-sol,
sous-sol technique), appareils sanitaires, robinets d'incendie et d'arrosage,
plateaux et goulottes à axes de coordination ou éléments structuraux ;
—
désignations alphanumériques des pipelines ;
—
désignations d'installations et de colonnes montantes de systèmes sur les étagères des lignes principales;
—
diamètres des conduites, des entrées d'eau et des sorties d'égout.
Sur le
les plans, en outre, indiquent les noms des locaux et les catégories de locaux selon
risque d'explosion et d'incendie. Les noms de salle sont autorisés
catégories de locaux en termes de risque d'explosion et d'incendie doivent être
explication des locaux selon le formulaire 2 GOST
21.501.
6.1.6
Les noms des plans de système indiquent la marque du sol fini du sol ou le numéro
étages.
Exemple — Planifier pour
élév. 0,000 ; Plan d'élévation +3.600 ; Forfait 2 — 9 étages
À
exécution d'une partie du plan dans le nom indiquer les axes qui limitent cette partie
planifier.
Exemple — Planifier pour
élév. 0.000 entre les essieux 1 — 8 et A - D
À
mise en œuvre séparée des plans d'approvisionnement en eau et des plans d'assainissement dans
les noms des plans indiquent également les désignations ou les noms des systèmes.
Exemple — Planification des systèmes
B1, B2 à él. 0,000 ; Assainissement. Plan d'élévation 0,000
6.1.7
Dans les cas nécessaires, des coupes sont effectuées le long du sous-sol technique (sous-sol).
6.1.8
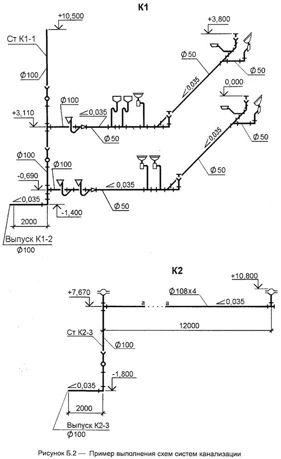
Des exemples de mise en œuvre de plans de système sont présentés dans les figures et (Annexe),
fragment du plan - dans la figure (application).
Pose de plomberie
Il existe plusieurs schémas d'organisation de l'approvisionnement interne en eau:
- Câblage inférieur (au sous-sol) sans installation d'élévateurs à eau. Dans ce cas, les paramètres de pression du réseau extérieur doivent assurer le débit d'eau vers tous les consommateurs.
- Câblage supérieur avec un réservoir d'eau - monté avec une pression insuffisante.
- Câblage inférieur avec l'installation d'une pompe de surpression.
- Schéma en anneau - diffère par l'installation de 2 entrées ou plus, fournit un approvisionnement en eau ininterrompu.
L'eau froide est fournie par des systèmes sans issue et en anneau. Un réseau en anneau à entrées multiples est utilisé dans plusieurs cas :
- dans des immeubles de plus de 400 appartements ;
- lors de l'installation de plus de 12 bouches d'incendie ;
- dans les théâtres et les clubs ;
- dans les cinémas de 300 personnes ou plus ;
- dans des bains pour 200 personnes.
Lors de l'installation d'une conduite d'eau chaude, utilisez:
- système sans issue - pour les bâtiments de faible hauteur;
- système de circulation - pour les immeubles de grande hauteur.
Si la pression créée dans la canalisation externe n'est pas suffisante pour alimenter en eau les étages supérieurs, un réservoir sous pression est installé (au point le plus élevé du bâtiment) ou une pompe de surpression à l'entrée.
Exigences SNiP pour l'installation de la plomberie interne :
- L'entrée du pipeline à travers le mur du sous-sol est réalisée avec un espace de 20 cm, qui est fermé avec un matériau élastique imperméable.
- Les réseaux de distribution sont posés dans les sous-sols, sur les planchers techniques, les greniers, dans les canaux souterrains du premier étage. Selon les structures du bâtiment.
- La pose cachée est effectuée dans des pièces présentant des exigences particulières en matière de finition. Les tuyaux en plastique sont montés cachés et les tuyaux en acier ne sont qu'ouverts.
- Lorsqu'ils sont installés ensemble, l'alimentation en eau froide est installée en dessous de l'alimentation en eau chaude.
- La pente de l'alimentation en eau n'est pas inférieure à 0,002.
- Si des conduites d'eau froide passent dans une pièce où la température descend en dessous de 2, elles doivent être isolées.
- Le processus de conception prévoit des mesures pour réduire le bruit et les vibrations des conduites d'eau.
Approvisionnement en eau et assainissement internes : conception, installation et maintenance

La plomberie et les égouts internes font partie intégrante et importante de toute maison. Un équipement incorrect de ce système peut ne pas avoir le meilleur effet sur le confort d'utilisation de la pièce. Y corriger les erreurs est long, difficile et coûteux. Pour cette raison, la conception et l'installation de systèmes de plomberie et d'égouts nécessitent une attention particulière et une approche responsable.
Problèmes abordés dans le matériel :
- Quelles sont les différences entre l'approvisionnement en eau externe et interne et l'assainissement des bâtiments?
- Quelles réglementations réglementent l'installation et la conception de l'approvisionnement en eau et des égouts internes?
- Que contiennent l'alimentation en eau et les égouts internes SNiP?
- Quelles règles doivent être respectées dans la conception?
- En quoi consistent l'approvisionnement en eau et les égouts internes?
- Comment la plomberie et les égouts internes sont-ils conçus ?
- Comment se passe l'installation de l'approvisionnement en eau et des égouts internes?
- Qui doit effectuer les réparations ?
Approvisionnement en eau externe et interne et assainissement des bâtiments
Lors de la construction de nouveaux bâtiments et de l'amélioration des conditions de vie des bâtiments anciens, l'un des enjeux les plus importants est l'équipement des réseaux d'ingénierie.
En effet, il est difficile d'imaginer un logement moderne confortable sans réseaux internes d'approvisionnement en eau et d'assainissement, et peu importe qu'il s'agisse d'un immeuble d'appartements ou d'une maison dans un chalet d'été
Voici les factures collectées qui affecteront le travail de la MA, HOA, coopérative d'habitation.
Le système de plomberie fournit un approvisionnement stable en eau avec la préservation de ses caractéristiques nécessaires jusqu'au point de puisage dans la maison. Pour effectuer ces tâches, le système est équipé des dispositifs nécessaires : pompes de fond, réservoirs de stockage, filtres.
Le réseau d'assainissement est conçu pour l'évacuation ininterrompue des eaux usées des locaux vers la station d'épuration, suivie d'une épuration appropriée des effluents qui en résultent.
Les maisons privées peuvent être équipées d'une alimentation en eau et d'un égout internes de l'une des manières suivantes:
- via des réseaux centralisés ;
- à l'aide d'installations individuelles.
La première méthode est plus simple, car il vous suffit de connecter la pièce au système général à l'aide d'un pipeline. Une condition préalable sera l'obtention de l'autorisation de se connecter aux réseaux centralisés et des conditions techniques pour l'exécution des travaux.
Les propriétaires de maisons dans des colonies non équipées d'un réseau d'approvisionnement en eau et d'assainissement n'ont d'autre choix que de créer leurs propres installations, y compris des dispositifs de traitement autonomes (fosses septiques) et des installations pour puiser l'eau d'un puits ou d'un puits.
Les systèmes d'évacuation des eaux usées sont classés selon plusieurs critères. Ainsi, selon la méthode de déplacement du liquide, on distingue les systèmes sans pression et sous pression.
- Dans les systèmes sans pression, le liquide se déplace dans les tuyaux eux-mêmes, sans l'aide d'aucun dispositif, ce qui implique de placer le pipeline à un angle approprié.
- Les systèmes sous pression impliquent la présence dans les systèmes de plomberie et d'égout d'installations spéciales - des pompes pour pomper le liquide. De tels systèmes autonomes sont équipés là où il est impossible de fournir la pente nécessaire, par exemple en raison du terrain difficile.
Selon la localisation des installations, les réseaux sont internes et externes. D'après le nom, il est évident que le premier type implique l'emplacement de l'équipement dans le bâtiment et le second - à l'extérieur.
L'équipement et les tuyaux des réseaux internes d'approvisionnement en eau et d'assainissement sont placés dans le bâtiment. Le point de sortie de la canalisation d'égout interne de la fondation de la maison est le dernier. Et l'approvisionnement en eau, au contraire, commence au point où le tuyau pénètre dans le bâtiment.
L'assainissement interne se compose de :
- tuyaux s'étendant des points de prise d'eau ;
- colonne montante d'égout à laquelle les tuyaux s'adaptent;
- point de sortie du tuyau d'égout du bâtiment.
Les réseaux externes incluent des composants tels que :
- Canalisation située à l'extérieur de la maison.
- Puits pour divers besoins (différentiel, rotatif, révision, etc.).
- Station d'épuration (à l'égout).
- Puits équipé ou puits (en cas d'approvisionnement en eau).
- Installations de pompes.
L'équipement de pompage est un élément obligatoire de presque tous les systèmes internes d'approvisionnement en eau et d'assainissement. Les types d'unités de pompage suivants sont utilisés dans les équipements de communication modernes :
- Submersible. Ce sont des pompes à eau.
- Surface. Ils sont situés en surface et prélèvent l'eau à l'aide de tuyaux.
- Fécal ou égout. Il s'agit d'un type spécial d'unités de pompage conçues pour déplacer des masses liquides, y compris des éléments solides.
Exigences relatives à l'approvisionnement en eau interne et à l'assainissement à l'intérieur des bâtiments
Il existe un certain ensemble de règles (SP) auxquelles les réseaux internes d'approvisionnement en eau et d'assainissement doivent obéir. Considérez la liste des exigences de base pour ces structures de pipeline :
- lors de la conception indépendante de systèmes d'approvisionnement en eau et d'assainissement, il est recommandé de les combiner. Cette option d'agencement est considérée comme la plus efficace et permet de réduire les coûts d'exploitation de ces structures de canalisations ;
- l'eau distribuée par le réseau domestique doit obligatoirement respecter toutes les normes sanitaires et hygiéniques. Afin d'atteindre une certaine norme de qualité, l'eau doit passer par plusieurs procédures obligatoires, notamment : purification, clarification, etc. ;
- les eaux techniques ne sont pas utilisées pour la consommation, mais malgré cela, elles doivent également subir toutes les mesures de traitement nécessaires. Le degré de clarification de l'eau est déterminé en fonction de son utilisation ultérieure (c'est-à-dire pour quel processus technologique particulier il sera appliqué);
- pour le transport et la livraison de l'eau au consommateur final, des communications faites de matériaux respectueux de l'environnement doivent être utilisées, dont le matériau ne réagit pas avec l'eau et n'émet pas d'impuretés chimiques étrangères.
- selon SNiP, une mesure nécessaire consiste à prendre en compte le volume de consommation d'eau, ainsi que l'ampleur de la pression du liquide.
Le matériau des tuyaux utilisés pour la plomberie ne doit pas libérer de substances dans l'eau potable qui altèrent sa qualité.
Considérez les indicateurs minimaux de la pression libre du liquide pour différentes situations:
- les structures à un étage doivent avoir une tête libre de 10 m;
- chaque étage suivant doit avoir une augmentation de pression d'au moins 4 m;
- dans les cas où des périodes de consommation d'eau minimale se produisent, la norme est de réduire la pression à chaque étage suivant après le premier de 1 m.
Normes de consommation et SNiP pour l'approvisionnement en eau
Sous le taux de consommation, ils représentent le volume maximal autorisé d'eau de qualité appropriée, nécessaire pour répondre aux besoins des consommateurs ordinaires vivant dans un logement particulier. Les taux de consommation d'eau sont déterminés conformément aux règles et règlements de construction adoptés par les autorités exécutives.
La quantité d'eau consommée dépendra toujours de la qualité et du niveau de vie des personnes.
Ainsi, s'il y a 120 ans, le volume d'eau consommé par Moscovite était de 11 litres d'eau par jour, alors il y a 100 ans, ce chiffre était de 66 litres pour la consommation quotidienne. Aujourd'hui, le volume moyen d'eau par habitant de Moscou est de 700 litres.
La consommation d'eau dépend de :
- Le climat du lieu de résidence;
- Activité professionnelle réalisée.
Pour les habitants des régions du sud, les besoins en eau seront beaucoup plus importants que pour ceux du nord.
Calcul des réseaux d'eau
La principale exigence pour le calcul des conduites d'eau domestiques, industrielles et d'incendie est de garantir la pression d'eau standard dans les appareils. Le calcul est basé sur le débit d'eau maximal par seconde. Si le système dispose de 2 entrées, chacune d'elles est calculée pour un fonctionnement complet lorsque la seconde est éteinte. Avec plusieurs entrées - 50% de consommation de liquide.
La vitesse normative du mouvement de l'eau dans la conduite d'eau froide est de 3 m / s. Le diamètre des tuyaux est choisi en fonction de la fourniture de la pression maximale fournie par le réseau externe. Pour les conduites d'eau chaude, la perte de charge qui se produit dans les conduites d'alimentation et de circulation pour chaque branche du système ne doit pas différer de plus de 10 %. Le diamètre des colonnes montantes de circulation est sélectionné conformément aux exigences du SNiP.
Assainissement interne: normes et règles
L'assainissement interne est un système spécial d'appareils et de canalisations dans un volume limité par les surfaces extérieures des structures adjacentes et des sorties du premier regard. Le système d'assainissement interne assure l'évacuation des eaux usées des appareils sanitaires vers les installations de traitement locales.
Pour tous les types de bâtiments qui sont construits dans des zones d'égouts, il est nécessaire de prévoir des égouts et une alimentation en eau interne.
Comme pour les agglomérations avec des zones sans égouts, les systèmes internes d'approvisionnement en eau devraient être équipés d'installations de traitement locales.
Un tel arrangement devrait être dans:
- hôtels;
- hôpitaux;
- maisons de repos;
- maternités;
- Cliniques ambulatoires;
- Stations sanitaires et épidémiologiques ;
- salles de cinéma;
- écoles;
- Établissements publics de restauration ;
- thermes;
- Installations sportives.
Ces exigences s'appliquent également aux bâtiments résidentiels dont la hauteur est supérieure à deux étages.
L'équipement avec un système d'égouts interne est autorisé dans les bâtiments équipés d'installations internes pour boire et boire. Dans de telles colonies, il peut y avoir des puisards et des placards à jeu sans dispositif d'entrée d'eau.
Il est permis de ne pas introduire de systèmes d'égouts et d'approvisionnement en eau interne dans les cas où il n'y a pas d'eau courante dans l'entreprise exploitante et que le nombre d'employés ne dépasse pas 25 personnes par quart de travail.
Conclusions et vidéo utile sur le sujet
Expérience dans l'aménagement de systèmes d'approvisionnement en eau et d'assainissement dans une maison privée:
Dans le processus de construction ou de réparation des réseaux d'eau et d'égouts, il est nécessaire d'être guidé par des règles, des normes, des standards. Le respect des recommandations technologiques, le respect des standards et des normes est la clé pour construire des communications efficaces et durables.
Vous avez de l'expérience dans l'aménagement d'un réseau interne d'adduction d'eau ou d'égouts ? Veuillez partager des informations avec nos lecteurs, parlez-nous des caractéristiques de la planification routière. Vous pouvez laisser des commentaires dans le formulaire ci-dessous.































