- dangers
- Phase préparatoire
- Caractéristiques de conception du foyer multifonctionnel
- Technologie de fumage
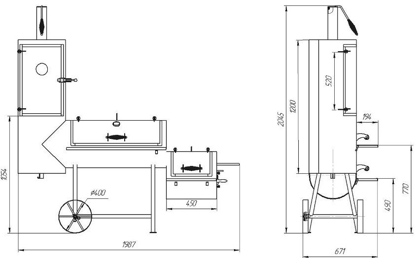
- Tailles de barbecue et de barbecue
- La conception du fumoir à brasero
- Attributs de conception supplémentaires
- Dessin d'un brasier d'un fumoir à partir d'une bouteille de gaz: dessins pour l'autoproduction
- Autres modifications de conception
- Comment faire un barbecue
- Comment améliorer le gril
- Conclusion sur le sujet
- Fabrication de poignées et couvercles
- instructions visuelles
- Coupe de cylindre
- Jambes de barbecue
- Installation du couvercle et de la poignée
- Assemblée
- Particularités
- Technologie de fabrication du mangal
- Marquage et découpe
- Couvercle
- les jambes
- Instruction étape par étape
- Comment faire un fumoir à brasero à partir de 2 bouteilles de gaz de vos propres mains
- Installation d'une cheminée pour un barbecue
- Marquage de la bouteille de gaz pour barbecue
- Caractéristiques de conception de la bouteille de gaz
- Tableau 1 : Dimensions des bouteilles de stockage et de transport de propane
- dangers
- Précautions de sécurité lors de la découpe d'une bouteille de gaz
dangers
Lors de la fabrication d'un gril à partir d'un cylindre conventionnel, il faut tenir compte des dangers potentiels pouvant affecter la qualité du produit, à savoir :
- Un mauvais travail de soudage affectera certainement la résistance du gril. Si vous n'êtes pas compétent en la matière, il est préférable de recourir aux services de professionnels expérimentés.
- En utilisant un revêtement résistant à la chaleur pour votre produit, vous augmenterez considérablement son aspect esthétique.
- La structure finie aura un poids impressionnant, ce qui affectera la facilité de transport.
Tenez compte des nuances ci-dessus lorsque vous préparez votre propre barbecue.
Phase préparatoire
Suivez toujours les règles de sécurité. L'inconvénient d'un réservoir de propane est que les vapeurs de gaz y sont retenues assez longtemps. Même s'il n'y a pas de gaz dans le cylindre pendant une longue période, il peut exploser à la moindre étincelle. Par conséquent, la première étape est le rinçage. Tout d'abord, ouvrez la vanne et purgez le gaz qui pourrait rester dans la bouteille. Ensuite, retournez-le et débarrassez-vous de la condensation.
Coupez soigneusement le robinet de la bouteille de gaz, versez-y de l'eau froide de temps en temps. Ensuite, branchez le tuyau et remplissez la bouteille d'eau en la secouant de temps en temps pour que le gaz s'échappe mieux. Le cylindre doit rester avec de l'eau pendant au moins une journée, seulement après cela, vous devez le vider (faites-le loin des bâtiments résidentiels et non sur le sol). Tout, le conteneur est prêt pour le travail.
Si vous fabriquez un brasero ou un barbecue ouvert, vous n'avez pas besoin de dessins, la conception est assez simple. Et en général, il n'y a pas d'exigences particulières, tout dépend de vos préférences, dans quelles proportions couper le ballon. Mais cela vaut la peine de lire les recommandations:
- Si vous prévoyez d'utiliser un gril et des charbons prêts à l'emploi sur le gril, il est préférable de couper le récipient en deux.
- Lorsque vous utilisez des brochettes et du bois de chauffage comme combustible, vous devez créer une base plus haute.
L'option la plus simple consiste à couper le récipient en deux parties, à souder les pattes à chacune et vous obtenez deux bons barbecues ouverts. Mais la fonctionnalité est limitée et l'apparence n'est pas très attrayante.Et dans tous les cas, vous devez l'installer sur des pieds pour qu'il soit pratique de cuisiner. En option, souder deux tuyaux en travers pour poser la structure au sol. Mais accroupi près du brasero gênant, surtout si vous devez cuisiner beaucoup de nourriture. Par conséquent, il est préférable de fabriquer un brasier à part entière de vos propres mains, avec la fonction d'un fumeur et toutes les petites choses possibles qui sont utiles pendant le fonctionnement. Avant de procéder à la fabrication, considérez une photo des dessins, choisissez l'option la plus attrayante pour vous-même.
Caractéristiques de conception du foyer multifonctionnel
La principale difficulté des foyers combinés réside dans les conditions inégales de préparation des aliments. Par conséquent, un brasier avec un fumoir à partir d'une bouteille de gaz doit être conçu avec cette nuance à l'esprit.
Technologie de fumage
Il existe plusieurs options pour les produits à fumer :
- froid - la fumée est d'abord refroidie à l'intérieur d'un long tuyau, pénètre dans la chambre avec du poisson / de la viande pendant 1 à 3 jours, assurant la sécurité de la délicatesse pendant 2 à 6 mois;
- chaud - le générateur de fumée est situé directement près de la chambre avec les produits, le processus de fumage est fortement réduit, mais les délices sont stockés pendant quelques mois, rien de plus;
- semi-froid - le processus prend 24 à 36 heures, la longueur du tuyau entre le générateur de fumée et la chambre alimentaire de taille moyenne est de 1,5 à 2 m.

Par conséquent, selon la technologie choisie, le fumoir à cylindre aura par défaut, en principe, la même conception. Mais, ses éléments seront espacés les uns des autres à des distances différentes.
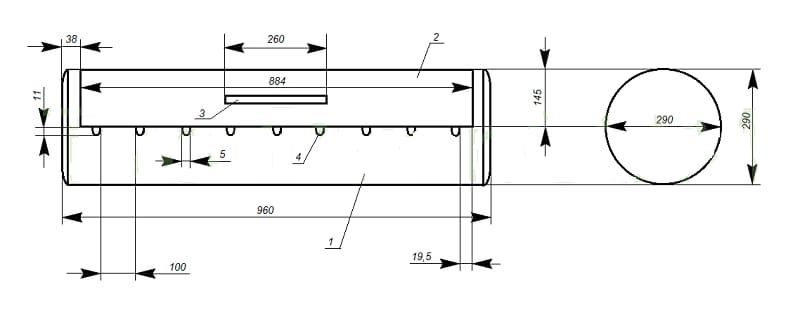
Tailles de barbecue et de barbecue
Brasiers conçus pour la cuisson de la viande en brochettes, appelées barbecues, ont des dimensions :
- longueur - arbitraire, dépend du nombre de brochettes, dont la distance est de 8 à 10 cm;
- hauteur (profondeur) - 15 - 20 cm est considérée comme la distance optimale entre la viande et les charbons;
- largeur - en fonction de la longueur de la brochette (produite par les fabricants 30 - 50 cm), la taille standard est de 25 - 40 cm;
- eh bien, un vrai dessin d'un vrai ballon, pour voir tous les chiffres, cliquez sur l'image pour l'agrandir.
La hauteur par rapport au sol est moins critique, dans la fabrication d'un brasier fixe, elle est généralement de 0,8 à 1,2 m.Le barbecue est frit sur des grilles, la hauteur et la longueur du foyer restent les mêmes, la largeur dépend d'un paramètre similaire du griller lui-même. Pour les grillades, les dimensions du gril sont moins critiques, mais un couvercle est nécessaire pour maintenir la même température à l'intérieur du gril.
Contrairement à un brasier en tôle d'acier et à un baril, un brasier à partir d'une bouteille de gaz présente les avantages suivants:
- épaisseur de paroi 2,5 mm ;
- les cylindres usagés sont peu coûteux;
- des dimensions compactes économiseront l'espace du site;
- le corps est en principe prêt, ce qui réduira la complexité du travail.
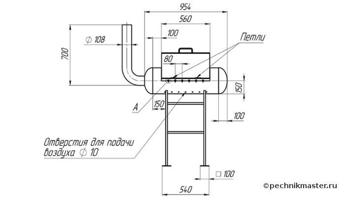
Attention : Pour un foyer multifonctionnel, un cylindre ne suffira pas, car il sera utilisé pour le barbecue. Le générateur de fumée est construit à partir d'un deuxième réservoir de 50 l à usage similaire ou en tôle d'acier
La conception du fumoir à brasero
En raison des nuances ci-dessus, un gril, un barbecue, un barbecue et un fumoir peuvent très bien être combinés dans un même design. Le brasero classique est idéal pour la chambre alimentaire du fumoir avec un couvercle étanche qui ne laisse pas sortir la fumée. Il est nécessaire d'ajouter un générateur de fumée au brasier qui lui est relié directement (fumage à chaud) ou un tuyau (fumage semi-froid et froid) de la longueur requise.
Le foyer étant fixe dans 90% des cas, son élément porteur (pieds, pied) peut être décoré d'éléments torsadés ou forgés, complétés d'un auvent. Une cheminée est nécessaire dans tous les cas.
Attributs de conception supplémentaires
Lors de l'utilisation du brasier conformément à sa destination, des déformations dues à l'échauffement peuvent se produire. De l'intérieur de la base, soudez de petits coins métalliques sur tout le brasier. Grâce à ces saillies, la brochette ou la grille reposera bien sur le brasier. Pour rendre un barbecue fait maison plus stable, soudez des morceaux d'un coin ou des tuyaux aux pieds. Vous pouvez faire plusieurs barres transversales si vous le souhaitez.
Dans le fond et les parois latérales, vous devez faire des trous nécessaires pour créer une traction et drainer le liquide après le lavage ou la pluie. De la partie du réservoir avec laquelle se trouvait la vanne, vous pouvez souder un morceau de tuyau pour éliminer la fumée. Mais cela n'est vrai que si le brasero est utilisé avec le couvercle fermé. Si la cuisson a lieu sans couvercle, cela n'est pas nécessaire. Pour plus de commodité, faites des trous pour les brochettes à la base du brasier. Lors de la cuisson, ils seront utiles, car les brochettes de viande ou de légumes ne se retourneront pas sous leur propre poids. Comme il est assez simple de fabriquer un brasero à partir d'une bouteille de gaz, il ne faut pas négliger ces petites choses utiles.
Pour améliorer l'apparence, vous pouvez peindre toute la structure. Il existe un grand nombre de peintures pouvant résister à des températures allant jusqu'à 800 degrés.
C'est une condition importante, car les peintures ordinaires s'embraseront simplement lorsqu'elles seront chauffées et empoisonneront même les aliments s'ils sont déjà sur le brasier. Avant de peindre, appliquez une couche d'apprêt (il doit également être résistant à la chaleur)
Rouge, noir, argent - c'est la gamme de couleurs disponible pour peintures résistantes à la chaleur. Mais c'est largement suffisant. Il n'est pas difficile de fabriquer un brasero à partir d'un ballon, mais décider quel type de construction choisir est un point important. L'option idéale est de faire un fumoir et un barbecue en un seul design. Voici un couple bonnes idées de photos, ils augmentent lorsqu'on clique dessus :
Comment faire tout cela, regardez la vidéo:
Si vous le souhaitez, vous pouvez créer un brasero fixe en soudant de petites tables sur les côtés et à l'avant. Comme la température est élevée, il est préférable de les fabriquer à partir d'un coin en métal. De telles tables seront pratiques pour enfiler de la viande ou des légumes - vous pouvez y mettre des pots. Et si la fête devrait être longue, vous ne pouvez pas éteindre les braises et placer une bouilloire et des pots de nourriture à proximité afin qu'ils restent chauds plus longtemps.
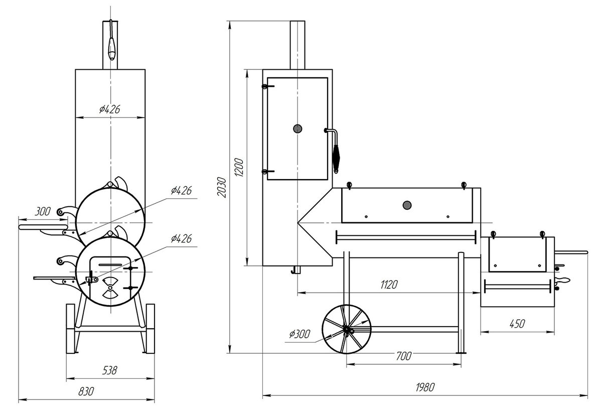
Dessin d'un brasier d'un fumoir à partir d'une bouteille de gaz: dessins pour l'autoproduction
La première chose à faire est de décider de la taille de la future structure. Pour les grillades, il est recommandé d'utiliser des appareils d'un volume d'au moins 20 litres - la conception se révélera alors spacieuse. Le produit d'un volume de 27 litres a une hauteur de 595 mm, ce qui est tout à fait suffisant pour un brasero. Si vous utilisez des dimensions plus grandes, il ne sera pas facile de transporter un tel appareil.
Vous pouvez faire un fumoir, un barbecue, un fumoir ou un brasero traditionnel de vos propres mains. La construction de la première option suscite un intérêt particulier - il est facile de cuisiner de la viande, du poisson et d'autres produits ici. La base est le dessin, pour le représenter correctement, vous devez suivre les conseils:
- Calculez la hauteur et la largeur - pour cela, vous devez vous familiariser avec les dimensions des unités existantes.
- Calculer les dimensions du trou intérieur - sont sélectionnés en fonction de la capacité et du but de la structure.
- Pensez aux trous de soufflage pour l'oxygène - ils devraient être situés en dessous.
- Dessinez une sortie de fumée.
- Dessinez des découpes pour les brochettes sur le schéma.
- Pensez à une étagère en bois.
N'oubliez pas le couvercle pour la pose de nourriture. Il est fabriqué à partir de la partie supérieure de l'appareil, coupé avec une meuleuse et fixé aux boucles ou aux coins. Lors de la fabrication d'un fumoir vertical, il est nécessaire d'envisager des pieds fixes et un couvercle pour le récipient.
Autres modifications de conception
En principe, le brasier de la bouteille de gaz est presque prêt. Il ne reste plus qu'à souder les jambes et à faire des trous dans le cylindre lui-même pour installer des brochettes et fournir de l'air à la zone de combustion du charbon. Commencez par des trous pour les brochettes.
Une des lignes longitudinales appliquées est restée inutilisée. Il est nécessaire d'appliquer des marques supplémentaires le long de celle-ci, en divisant les lignes uniformément en plusieurs segments. La longueur des 8 derniers cm A leurs extrémités, des trous traversants d'un diamètre de 10 mm sont percés à l'aide d'une perceuse et d'une perceuse.
Du côté opposé de l'ouverture pratiquée sur la bande d'acier soudée, il est nécessaire de faire des rainures pour les brochettes. Ils doivent être situés exactement en face des trous réalisés. Les rainures sont faites avec une meuleuse et un disque de coupe.
Maintenant, vous devez faire des trous pour l'alimentation en air à l'intérieur du barbecue. Pour ce faire, 10 et 20 cm doivent être écartés de la soudure de la partie cylindrique du cylindre dans deux directions.Des lignes longitudinales sont tracées le long de celles-ci, en général il y en aura quatre, deux de chaque côté de la couture. Ils partagent également des marques avec une distance de 5 cm.Après cela, les marques sur les deux lignes appariées sont interconnectées. À travers eux, une meuleuse et un disque de coupe traversent des fentes.
Trous et fentes pour brochettes, fentes pour l'air dans le barbecue à partir d'une bouteille de gaz
Il reste à boucher le trou dans lequel le robinet a été vissé. Ici, ils prennent simplement une plaque de 2 à 3 mm d'épaisseur, qui est soudée au trou, échaudée avec une couture continue de tous les côtés.
La vidéo montre la séquence d'opérations pour fabriquer un brasier à partir d'une bouteille de gaz:
En ce qui concerne les jambes, il existe un grand nombre d'options. Le plus simple - les pieds d'un coin en acier. L'essentiel est de choisir avec précision la hauteur d'installation du gril à gaz. Il est idéalement considéré de 60 à 80 cm, c'est-à-dire pratique pour la croissance d'un adulte. Bien qu'il y ait de faibles modifications.
Vous pouvez montrer votre imagination et créer les jambes de la forme originale, décorées de motifs. Vous pouvez leur attacher des jambes, rendre l'appareil mobile, mobile, comme indiqué sur la photo ci-dessous.
La machine à coudre de grand-mère plus une bonbonne de gaz = un brasero "rare" avec des pattes originales
Comment faire un barbecue
En principe, un barbecue à partir d'une bouteille de gaz est fabriqué exactement de la même manière qu'un brasier, mais avec de petits ajouts. Tout d'abord, un gril est installé à l'intérieur. Il est amovible, mais pour cela, il est nécessaire d'installer des étagères de support à l'intérieur du cylindre. Ils sont fabriqués à partir d'un coin en acier 25x25 ou 32x32 mm. La longueur de chaque étagère est de 10 cm, elles sont soudées sur deux côtés opposés de l'ouverture, trois pièces à égale distance l'une de l'autre. Emplacement en hauteur - sous les trous pour la brochette. En conséquence, du côté opposé à cette hauteur.
Deuxièmement, vous devez installer une cheminée. Il y a pas mal d'options ici :
- sur le couvercle;
- sur le côté, avec un trou de raccordement pour un robinet ;
- à côté du couvercle dans la partie cylindrique.
Barbecue à partir d'une bouteille de gaz avec une cheminée latérale
Comment améliorer le gril
Il existe de nombreuses petites choses supplémentaires qui feront de la cuisson de la viande, de la volaille ou du poisson sur un gril de barbecue un processus pratique et facile. Voici quelques-unes de ces petites choses :
- Un écrou est soudé au couvercle de l'appareil ou à sa partie cylindrique, dans laquelle est inséré un thermomètre. Vous pouvez maintenant surveiller la température à laquelle le plat de viande est cuit.
- Un réservoir peut être installé sur la cheminée. Les treillis sont installés les uns sur les autres. Cet accessoire est une excellente conception de fumoir.
- Vous pouvez installer une grille à l'intérieur du brasier, sur toute sa longueur. Ce sera la grille. Sa tâche est de retenir les charbons, mais de laisser les cendres passer à travers elles-mêmes afin qu'elles n'interfèrent pas avec la combustion du bois de chauffage.
Quant au design décoratif, il y a aussi un immense champ d'activité. Ce que les maîtres n'inventent tout simplement pas. Par exemple, voici une telle option sous la forme d'une locomotive à vapeur, comme sur la photo ci-dessous. Certainement, une telle conception décorera le territoire du chalet.
Brasero-barbecue à partir d'une bouteille de gaz en forme de locomotive à vapeur
À partir de la vidéo, vous pouvez apprendre à créer un brasier à partir d'une bouteille de gaz :
Conclusion sur le sujet
Aujourd'hui, trouver des barbecues à partir d'une bouteille de gaz avec des dessins et des dimensions exactes sur Internet n'est pas un problème. Toutes sortes d'options sont proposées avec des conceptions simples et avec des options pratiques supplémentaires. Mais l'essentiel, comme l'a montré la pratique, est le respect exact de la hauteur des brochettes au-dessus des charbons. La distance est petite - la viande va brûler, la distance est augmentée - le plat sera cuit longtemps.
Fabrication de poignées et couvercles
La couverture d'un barbecue fait maison est généralement réalisée au stade de la découpe du cylindre. Ils le fixent également en premier, après avoir préparé et nettoyé le métal. Le plus difficile est de souder correctement les charnières pour que le couvercle se ferme hermétiquement. En règle générale, ils sont fixés au tout début, mais les poignées doivent être soudées à la fin. Vous devez d'abord peindre le brasier, le laisser sécher sous un auvent, et seulement après cela, ils procèdent à la conception finale (Figure 6).
Figure 6. Lorsque vous créez des éléments supplémentaires, vous pouvez faire preuve d'imagination
Si vous voulez que votre brasier soit peint, vous devez d'abord y brûler du bois. Cela aidera à éliminer les gaz résiduels de la surface intérieure et à la dégraisser. Ce n'est qu'alors que la structure peut être traitée avec une peinture résistante à la chaleur.
instructions visuelles
Ainsi, le ballon est complètement prêt et lavé. Maintenant, vous devez le couper en 2 morceaux. L'option la plus simple consiste simplement à couper le ballon en deux moitiés dans le sens de la longueur et à obtenir deux barbecues ouverts classiques.

Le moyen le plus simple est de couper le ballon en deux et de l'utiliser comme un gril ouvert ordinaire.
Si vous faites un barbecue au brasier, vous devez alors «découper» et couper un rectangle qui sera le couvercle du brasier, et la deuxième partie reste comme base. Dessinez un rectangle sur la surface des lignes de coupe, les lignes horizontales passeront approximativement au milieu du ballon ou 5 cm au-dessus de celui-ci, et les lignes verticales (transversales) seront à une distance d'environ 20 cm de ses bords.
Coupe de cylindre
Pour couper le ballon, utilisez un coupe-gaz ou une meuleuse. Marquez les bordures du couvercle : à partir des soudures reliant la base et le fond du récipient, reculez de 5 cm et marquez la ligne le long de laquelle la découpe sera effectuée.Sciez du milieu vers le bord, tout en tenant le disque du broyeur perpendiculaire au ballon.

Il ressemble à un ballon coupé - vierge pour le barbecue
Jambes de barbecue
Pensez à la hauteur de votre brasier, puis commencez à fixer les pieds. Vous devez installer fermement le brasier sur le sol afin qu'il soit pratique de souder le couvercle.

Le moyen le plus simple consiste à attacher les pieds d'une vieille machine à coudre ou un piètement métallique d'un petit bureau au barbecue.
Vous pouvez construire des jambes de tuyau en les boulonnant au fond. Faites 4 trous dans le bas de la base, insérez-y les boulons avec les filets sortis. Fixez-les avec des écrous ou soudez-les pour les fixer. Fixez les écrous des boulons au sommet des pieds et vissez-les à la base de votre brasero.
Installation du couvercle et de la poignée
Pour fixer le couvercle, faites des trous pour les charnières, fixez-les avec des rivets et soudez. Si cela n'est pas fait, le couvercle peut se détacher en raison des températures élevées. Vous pouvez installer un couvercle amovible sans charnières, puis à l'intérieur des bords transversaux du brasier, vous devez fixer des bandes métalliques afin que le couvercle ne tombe pas vers l'intérieur.

Fixez le couvercle au gril avec des charnières de porte soudées
Des boulons peuvent être utilisés pour fixer la poignée au couvercle. Il vous suffit de percer des trous pour eux et de les réparer. Choisissez des poignées simples qui résistent à la chaleur afin qu'elles ne brûlent pas plus tard. Des poignées très confortables peuvent être fabriquées à partir d'une tige métallique en la soudant à la base.

Choisissez des poignées confortables et résistantes à la chaleur pour le barbecue
Vous devez maintenant installer un limiteur sur le couvercle. Faites-le à partir d'un coin ou d'une partie d'un tuyau.Et le couvercle lui-même peut être fixé d'un ou des deux côtés à l'aide de chaînes, déterminant ainsi la valeur maximale possible de son «inclinaison».
Assemblée
-
Vous pouvez constater une déformation de la friteuse lorsque vous cuisinez sur le gril. Pour éviter cela, soudez les coins aux bords longitudinaux intérieurs de la base. Sur le rebord résultant du coin, vous pouvez mettre un barbecue ou une brochette. Pour les pieds hauts du brasier, une fixation supplémentaire est également nécessaire, que vous pouvez facilement fournir si vous soudez un coin autour du périmètre extérieur de la structure, ce qui augmentera sa rigidité.
-
Faites des trous dans le bas du brasier avec une perceuse. Ils sont nécessaires pour déverser facilement les charbons ou drainer l'eau accumulée après la pluie. De plus, le bois de chauffage dans le brasier brûlera mieux si l'air est aspiré par le bas.
-
Dans le trou où se trouvait la vanne, installez un tuyau d'évacuation des fumées et soudez-le. Tout le monde ne fait pas cela, quelqu'un laisse le gril sans cheminée, surtout si vous prévoyez de cuisiner principalement avec le couvercle ouvert.
- Si vous n'avez pas fixé de coin à l'intérieur, vous pouvez, à l'aide d'une meuleuse, faire des coupes sur les côtés de la base dans lesquelles des brochettes seront installées.

Faire des fentes de broyeur dans les parois du récipient pour les brochettes
Particularités
Le brasier des anciennes bouteilles de gaz est divisé en plusieurs types que vous pouvez facilement fabriquer vous-même.
Il existe les variétés suivantes :
- un simple brasier sans couvercle;
- UN BARBECUE;


- fumoir;
- fumeur.

Les trois dernières conceptions faites maison diffèrent considérablement de la première option, vous devez donc vous familiariser plus en détail avec leurs caractéristiques :
Le barbecue est un design simple que vous pouvez facilement créer de vos propres mains. Pour créer un tel brasier, vous devrez couper une partie du récipient, qui sera ensuite articulée et servira de porte. À l'intérieur de la structure, il y a une zone pour les charbons et une grille sur laquelle les produits seront placés.

Le fumoir se distingue des barbecues traditionnels par le fait qu'il possède un foyer. La structure elle-même doit être étanche à l'air afin de remplir ses fonctions. Pour le créer, la moitié du bas est supprimée. Le foyer est fait de tôles de fer. Certaines personnes utilisent un cylindre différent à cette fin. La pièce est soudée et équipée d'un tuyau de cheminée spécial à travers lequel la fumée sera évacuée.

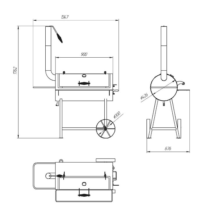
Un fumeur est aussi appelé "locomotive". C'est une structure complexe, qui se caractérise par sa multifonctionnalité. Un tel produit contient toutes les options qui s'offrent à de telles installations : barbecue, barbecue, fumoir, grill.

Les barbecues sont fabriqués à partir de bouteilles de propane et d'oxygène. Les cylindres constituent une excellente base pour créer de nombreux modèles. Ils ont un métal de haute qualité, une forme presque finie et des dimensions standard.
En raison des parois épaisses, les cylindres sont capables de résister à des températures élevées. Ces produits sont donc mieux adaptés à la création de divers fumoirs, barbecues et barbecues.

Avantages d'un brasier d'un ballon:
- Cette conception ne brûlera pas même après un contact prolongé avec une flamme nue.
- Grâce à la configuration optimale et aux parois épaisses, le brasier ne sera pas déformé par des températures élevées.
- Dans un tel barbecue, vous pouvez non seulement cuire des brochettes, mais également cuire des légumes, ainsi que fumer et faire frire.
- Après la cuisson, vous n'avez pas besoin d'éteindre les charbons avec de l'eau. À ces fins, il suffira de fermer le brasier avec un couvercle. Il permet également de ranger le barbecue à l'extérieur. En raison de sa grande taille, vous pouvez cuisiner des portions pour toute l'entreprise.

- Facilité d'installation. Même un débutant peut fabriquer un brasero à partir d'un ballon.
- Le travail prendra plusieurs heures.
- La conception du ballon convient à la mise en œuvre de toutes les idées créatives.

Les brasiers créés à partir de cylindres n'ont pratiquement aucun inconvénient. Certains utilisateurs disent que les inconvénients de la conception sont les grandes dimensions de la structure. Cependant, vous pouvez acheter des produits plus compacts. Une autre catégorie de personnes rapporte que le fond semi-circulaire n'est pas pratique pour allumer du bois de chauffage.
Selon les professionnels, la structure sphérique des parois du brasier n'est pas très adaptée à la friture des brochettes, car une telle configuration limite les processus qui contribuent à la "divulgation" de l'arôme de la viande cuite.

Technologie de fabrication du mangal
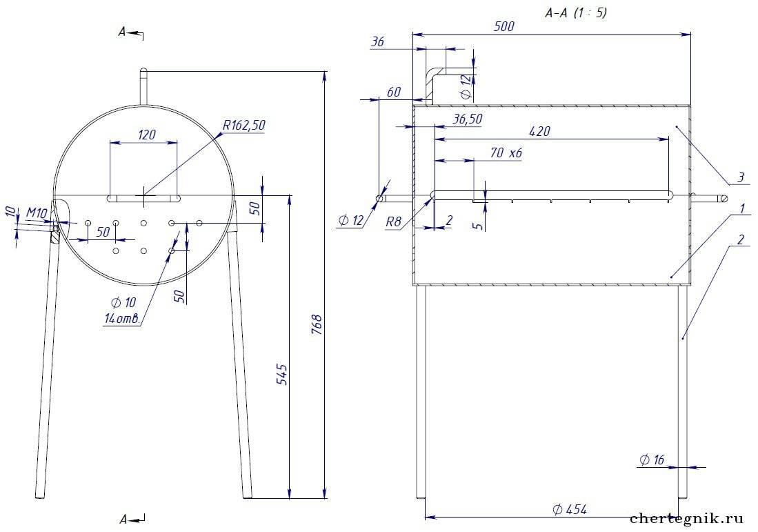
Pendant le lavage du conteneur, un dessin est créé. Il n'est pas difficile de concevoir un brasier à partir d'une bouteille de propane - dans la version la plus simple, le produit se compose de trois éléments : un corps, un couvercle et des pieds. Le schéma d'une locomotive à vapeur à brasier avec une cheminée pour fumer semble plus compliqué. Sur le dessin, marquez les dimensions, déterminez l'emplacement du couvercle, les coupes pour les brochettes, les attaches pour la grille du gril, etc.

Dessin : brasero
Le travail principal comprend trois étapes :
- scier le ballon
- soudage des jambes,
- pose de couverture.
Une étape supplémentaire consiste à décorer le barbecue fini.
Marquage et découpe
Pour diviser le récipient en un brasier et un couvercle, une partie semi-circulaire de la paroi du récipient est découpée. La circonférence d'un réservoir de propane standard d'un volume de 50 litres est de 96 cm.Le marquage est facile : il y a des marques sur le réservoir à partir desquelles vous pouvez commencer.
Un joint soudé s'étend sur toute la longueur - 24 cm de recul dans les deux sens et les limites du trou sont appliquées. Faites immédiatement des encoches pour la fixation des brochettes. Les marques extrêmes sont situées à 3 cm des anneaux de soudure ; intermédiaire - arrangez-vous avec n'importe quelle marche, pour plus de commodité, une distance de 8 cm est recommandée - alors 6 brochettes conviendront. Si vous souhaitez laisser de la place pour la grille du gril, réduisez le pas entre les encoches.

Ensuite, le ballon est scié avec une meuleuse. L'épaisseur de paroi est de 3 mm, il n'est donc pas difficile de couper le récipient. Ils commencent par des lignes longitudinales, puis passent à des marques transversales - sinon vous pouvez vous blesser lorsque le mur s'éloigne de la coupe avec force
Il est important d'utiliser un équipement de protection individuelle - masque, gants
Après avoir coupé le mur avec une meuleuse, des coupes sont faites sous les brochettes. Juste en dessous de la perceuse, des trous sont percés pour le passage de l'air. Les mêmes lacunes sont faites au bas du barbecue. Seuls le fond et le couvercle du cylindre ne sont pas touchés afin que le vent ne souffle pas les braises.
Couvercle
Au deuxième étage, un brasero fait maison est équipé d'un couvercle et d'une poignée. Cette pièce est soudée avec des boucles métalliques - les attaches peuvent tomber en panne sous l'influence de températures élevées. Pour faciliter le travail seul, le couvercle est temporairement fixé avec des rivets. Les boucles sont placées à égale distance les unes des autres.

Le métal est utilisé pour la poignée, car le bois et le plastique peuvent se déformer, brûler ou fondre pendant le fonctionnement.
les jambes
Selon que le brasier est fixe ou portable, la forme des pieds est sélectionnée. Pour la version mobile, ces pièces sont constituées de tuyaux ou d'angles métalliques, avec de larges plates-formes soudées aux extrémités afin que le brasier ne s'enfonce pas sous l'influence de son poids. La hauteur des produits est sélectionnée individuellement; Il a été établi expérimentalement qu'il est plus pratique de placer le brasier sur des pieds de 20 à 30 cm de long.

En règle générale, un barbecue fixe est monté sur une fondation en béton ou en brique. De plus, le design peut être stylisé - par exemple, des roues forgées peuvent être soudées pour donner au brasier l'apparence d'une locomotive à vapeur.

Ce barbecue ballon est prêt. Il ne reste que la touche finale - supports de grille soudés, peinture résistante à la chaleur sur le corps et autres finitions. Pour ajouter la fonction de fumoir au barbecue, une cheminée est soudée sur une paroi latérale et une chambre de combustion sur l'autre. Lorsque le couvercle est fermé, une chambre de fumage est obtenue.
Ainsi, transformer une bouteille de gaz standard en une friteuse universelle n'est pas si difficile, l'essentiel est de respecter les précautions de sécurité lors du travail. Un réservoir de propane vous permettra de mettre en œuvre diverses idées de conception pour le barbecue, ce qui sera un excellent ajout à une escapade de fin de semaine à la campagne.
Instruction étape par étape
Le processus de fabrication du brasier se compose de plusieurs étapes.
Sciage. Le ballon doit être coupé en deux moitiés. Cela doit être fait le long de la soudure, aussi près que possible de celle-ci. Il est préférable de ne pas couper les parois latérales. Ils serviront de bons amortisseurs contre le feu et aideront à maintenir la température.Lors du sciage, essayez de ne pas endommager les anneaux latéraux, car ils serviront de support pour le couvercle.
Scier un ballon
Les jambes. La hauteur des pieds ne dépend que de votre choix. Vous pouvez visser les pieds d'une machine à coudre à l'ancienne ou utiliser des garnitures de tuyaux.
Les pieds peuvent être équipés de roulettes pour faciliter les déplacements
Pour fixer le tuyau, il est nécessaire de percer quatre trous dans le bas du brasier, dans lesquels des boulons sont insérés de manière à ce que le filetage soit à l'extérieur du brasier. Ils peuvent être serrés avec des écrous ou simplement soudés. Les écrous sont soudés au sommet des tuyaux et vissés au barbecue.
Pose de la couverture. Le couvercle du gril est fixé aux charnières, qui sont fixées avec des rivets puis soudées. Vous pouvez rendre la couverture amovible si les auvents sont dirigés dans une direction. Il est impératif de souder les charnières, car sous l'influence de températures élevées, les rivets peuvent simplement s'envoler. Mais pour monter la poignée sur le couvercle du barbecue, seuls des boulons suffiront. Lors du choix d'un matériau de poignée, n'oubliez pas qu'il doit être résistant à la chaleur. De plus, vous pouvez créer un limiteur pour le couvercle à l'aide de chaînes ou d'un coin. Une cheminée peut être installée dans l'ouverture de la vanne.
Le couvercle peut être fixé avec des charnières
Assemblée. Pour éviter que le brasier ne se déforme sous l'influence de la température, certains artisans soudent en outre un coin sur les bords intérieurs. Il renforce le périmètre et donne une plus grande rigidité à la structure. De plus, il servira de support pour le gril et les brochettes. Pour que les cendres n'aient pas besoin d'être ratissées à la main, des trous sont percés au fond du brasier.En l'absence de coins, les fentes pour les brochettes sont découpées avec une meuleuse.
Conseils. Pour plus de fonctionnalité et de commodité, l'espace intérieur du barbecue peut être divisé en deux zones. Dans une partie, faites des supports pour le gril et dans l'autre, des connecteurs pour les brochettes. Installez des pinces supplémentaires à plusieurs niveaux - cela vous aidera à régler la hauteur de la grille au-dessus des charbons.
La touche finale sera la coloration. Ce processus est facultatif et est une affaire personnelle pour chacun.
Faire des encoches pour les brochettes avec un moulin
Comment faire un fumoir à brasero à partir de 2 bouteilles de gaz de vos propres mains
Pour le travail, deux AG-50 d'une capacité de 50 litres seront nécessaires.
Instructions pas à pas pour fabriquer un four à brasero-fumoir à partir de deux bouteilles de gaz:
- Le rebord est coupé par le bas. Le cylindre est nettoyé avec une meule pour meuleuse. Ensuite, ils passent au marquage. Reculez de 24 cm de la couture du milieu dans les deux sens et tracez une ligne à la craie. 3 cm de retrait des coutures circulaires inférieures et supérieures.
- Les charnières de porte sont soudées à la partie découpée et au cylindre sur un côté long. Un espace de 1 cm est laissé. Sur le côté opposé du ballon, une ouverture est découpée pour placer des brochettes par incréments de 10 cm. Des trous sont pratiqués sous la porte pour l'alimentation en air par incréments de 5 cm, avec un diamètre de 1 cm.
- Les pieds d'un profilé métallique de 2 * 4 cm de 80 cm de long sont soudés au cylindre.Les ouvertures pour la cheminée sont découpées avec une meuleuse: une entrée ronde et ovale pour le fumage à chaud et le barbecue, un carré en bas - pour l'amortisseur.
- Pour un générateur de fumée, le deuxième cylindre est coupé en deux, le fond est coupé et soudé à la première moitié. Découpez la porte et les ouvertures. De l'intérieur, à une distance de 15 cm du bas, les coins sont soudés. Ils placent une grille pour la sciure de bois.
- Au fond des petits et grands compartiments le long des trous carrés, un coin en acier est soudé des deux côtés. La longueur est égale à deux côtés de l'ouverture pour une utilisation pratique de l'amortisseur.
- Un tuyau d'un diamètre de 10 cm et d'une longueur de 1,5 m est fixé à la partie supérieure du brasero-fumoir par soudage.Les trous ovales du foyer et du barbecue sont soudés les uns aux autres.
- Passez à la décoration du four. Fixation par soudure des poignées, éléments décoratifs forgés. Poncez et dégraissez la surface. Peint avec une peinture aérosol résistante à la chaleur pouvant supporter 900 0C.
Installation d'une cheminée pour un barbecue
Une cheminée n'est pas un élément essentiel de notre barbecue maison, mais elle donne un aspect plus esthétique et agit comme un régulateur du degré de fumage du produit cuit.
Pour la fabrication de cet élément, un tuyau d'un diamètre extérieur de 90 m convient tout à fait. et 70cm de long. Étant donné que les coins de l'usine ont un virage très doux, vous pouvez souder vous-même le coin pointu en découpant d'abord un segment de tuyau, qui est marqué à partir du point de virage par un carré dans deux directions à 45 degrés autour de la circonférence du tuyau. Après avoir coupé un segment avec une meuleuse, nous plions la plus petite partie à la plus grande, à l'aide d'un coin, nous vérifions l'angle de 90 degrés et les soudons en place. Après cela, nous exposons le tuyau au lieu de soudage, où nous avons installé l'amortisseur, et soudons bien le tuyau en cercle. Il est à noter que chaque couture doit être nettoyée avec un disque de nettoyage. Ainsi, il acquiert un aspect plus esthétique et la qualité de la soudure est clairement visible.
Lorsque le tuyau est soudé, installez un capuchon de protection. Il est fixé avec un boulon de serrage.
Marquage de la bouteille de gaz pour barbecue
Comme nous l'avons déjà écrit ci-dessus, les dimensions de la structure dépendront de la capacité que vous utilisez.Une capacité de 50 litres convient à la fabrication d'un brasero fixe, et une capacité de 27 litres convient à un mini brasero ou à un barbecue portable.

En ce qui concerne le balisage, il n'y a pas de critères clairs ici. L'essentiel est de ne pas couper les coutures d'usine afin que la structure ne perde pas sa rigidité.
Mais si vous ne savez pas comment marquer et souder correctement le brasier : par où commencer et dans quel ordre effectuer toutes les opérations, une simple instruction étape par étape vous sera utile. Les informations nécessaires avec les dimensions peuvent être trouvées dans notre article.
Comme on dit: il vaut mieux voir une fois, et tout sera clair. Mais en général, il n'y a rien de compliqué ici. Le désir principal.
Il y a d'autres nuances auxquelles vous devez faire attention. Vous pouvez fabriquer un brasero de campagne à partir d'une bouteille de gaz de deux types: sans couvercle et avec un couvercle à charnière fixé aux charnières

Dans le premier cas, le récipient peut être coupé en deux, ce qui permet d'obtenir deux brasiers à la fois. Dans le second cas, le marquage est d'abord effectué et un couvercle est découpé le long de celui-ci. Nous l'attachons à deux ou trois boucles. Nous soudons la poignée.
De plus, il est nécessaire de marquer les trous et les rainures pour les brochettes. Si vous allez faire un barbecue, vous devez également déterminer l'emplacement des étagères sous le gril.

Il est également nécessaire de marquer les trous dans la partie inférieure - pour l'admission d'air. Sinon, il ne sera pas possible d'obtenir une combustion normale du bois de chauffage et du charbon.
Caractéristiques de conception de la bouteille de gaz
En 1953, la conception de cylindres pour la gazéification individuelle d'appartements et de maisons a été approuvée. Plus tard, des appareils ont été développés qui ont été installés non pas à l'extérieur, mais à l'intérieur du bâtiment.
Bouteilles de gaz à usage individuel selon GOST 15860-84 :
1 - chaussure; 2 - bas inférieur (sphère inférieure); 3 - ceinture de renfort; 4 - haut bas (sphère supérieure); 5 - une place pour un passeport cylindrique; 6 - collier (boîtier de protection); 7 - soupape; 8 - anneau de col restrictif pour bouteilles sans coquille et avec soupape; 9 - coque; 10 - bague de col pour bouteilles avec coquille et soupape; 11 - vanne d'arrêt; 12 bouchon de sécurité
Pour la conception, les dimensions principales sont importantes pour les artisans, elles peuvent être trouvées dans le tableau ci-joint 1. À l'aide des données, vous pouvez déterminer indépendamment le type et les paramètres du produit que vous avez l'intention de fabriquer vous-même.
Tableau 1 : Dimensions des bouteilles de stockage et de transport de propane
| Tailles de cylindre, mm | Capacité nominale du cylindre, l | |||||
| 2,5 | 5,0 | 12,0 | 27,0 | 50,0 | 80,0 | |
| ré | 200±2,5 | 222±+3,0 | 222±+3,0 | 299±3,0 | 299±3,0 | 299±3,0 |
| D₁ | 200±3,5 | 200±3,5 | 200±3,5 | 270±4,0 | 299±4,0 | 299±4,0 |
| D₂ | 155±5,0 | 155±5,0 | 155±5,0 | 222±5,0 | – | – |
| D₃ | 160±3,5 | 160±3,5 | 160±3,5 | 230±4,0 | – | – |
| S | 2,0±0,3 | 2,0±0,3 | 2,0±0,3 | 3,0+0,3 | 3,0+0,3 | 3,0+0,3 |
| H | 225±2,0 | 285±2,0 | 470±2,5 | 575±3,0 | 960±3,5 | 1400±4,0 |
| H₁ | 136±2,0 | 197±2,5 | 384±2,5 | 474±3,0 | 830±3,5 | 1275±4,0 |
| Masse de gaz liquéfié dans une bouteille, kg | 2,8±0,10 | 4,0±0,12 | 6,0±0,15 | 14,5±0,10 | 22,0±0,15 | 31,5±0,20 |
D'après les données présentées, on peut voir que l'épaisseur de paroi des récipients de grand volume est assez solide, elle est de 3 mm. Pour les appareils où le combustible solide est brûlé, ces murs serviront assez longtemps.
dangers
Lors de la fabrication d'un gril à partir d'un cylindre conventionnel, il faut tenir compte des dangers potentiels pouvant affecter la qualité du produit, à savoir :
- Un mauvais travail de soudage affectera certainement la résistance du gril. Si vous n'êtes pas compétent en la matière, il est préférable de recourir aux services de professionnels expérimentés.
- En utilisant un revêtement résistant à la chaleur pour votre produit, vous augmenterez considérablement son aspect esthétique.
- La structure finie aura un poids impressionnant, ce qui affectera la facilité de transport.
Tenez compte des nuances ci-dessus lorsque vous préparez votre propre barbecue.
Précautions de sécurité lors de la découpe d'une bouteille de gaz
Vous ne pouvez pas commencer immédiatement à couper la pièce.Le gaz combustible reste à l'intérieur, ainsi que l'essence (un gaz sous forme liquide). Si vous commencez un usinage : perçage ou découpage, une étincelle est possible qui provoquera une explosion. Il est nécessaire d'éliminer les restes de substances combustibles de l'intérieur du conteneur.

Dévisser la valve
Il peut être assez difficile de dévisser la valve. Au cours de nombreuses années de fonctionnement, des liaisons assez fortes se forment entre les éléments, on observe souvent la diffusion d'un métal dans un autre. Il est nécessaire de le faire.
- Sécurisez le cylindre d'une éventuelle rotation autour de l'axe. Des ceintures ou du fil épais sont utilisés ici.
- Une clé à gaz (n ° 2) est installée sur la vanne.
- Il peut être prolongé avec un tuyau d'environ 1 m.
- Choisissez une position pour que le levier résultant ait une course d'au moins 40 ... 50 cm.
- Appuyez fortement sur le levier, créez une charge de choc.
Dans la plupart des cas, cette approche est efficace. Pour faciliter l'arrachage de la valve, vous pouvez taper sur le col avec un marteau.

Le ballon est rempli d'eau. Il éliminera toutes les substances combustibles disponibles. Vous pouvez maintenant couper la bouteille de gaz.
Attention! Toutes les procédures doivent de préférence être effectuées loin de la zone résidentielle. Il y a une odeur plutôt désagréable.
















































