Le diamètre du tuyau d'admission peut-il être inférieur à l'entrée de la pompe ?

Installation de conduites d'aspiration et de refoulement [1951 Rogozhkin n.s. - mécanisation de l'approvisionnement en eau des élevages]

Tuyaux pour une station de pompage dans le pays

Les tuyaux utilisés pour la station de pompage dans le pays ont les mêmes exigences que pour les autres options d'utilisation de l'hydrophore

Il convient de prêter attention au diamètre du tuyau. Cependant, les règles de calcul sont communes à toutes les stations que nous avons analysées ci-dessus.

Mais le choix d'un hydrophore pour une résidence d'été doit être discuté séparément. Pour assurer votre vie à la campagne avec un approvisionnement en eau autonome et fiable à tout moment de l'année, vous devez fournir automatiquement de l'eau à n'importe quel point de consommation d'eau. C'est précisément pourquoi une station de pompage est nécessaire, qui sera en mesure de fournir une pression suffisante dans le système d'alimentation en eau dans toutes les conditions, même lorsque la pompe est éteinte.L'essentiel est de choisir l'équipement optimal et de le monter correctement sur votre propre chalet d'été.

Où est-il préférable d'installer une station de pompage dans le pays ? Citons trois options principales pour placer un hydrophore :

  • à proximité immédiate d'un puits ou d'un puits ;
  • dans l'un des locaux commerciaux;
  • directement dans le bâtiment résidentiel.

Lors du choix d'un hydrophore (station de pompage) pour une résidence d'été, vous devez faire attention à des caractéristiques telles que:

  • puissance du moteur;
  • pression d'eau générée ;
  • performances des hydrophores.

De nombreuses stations sont équipées de dispositifs de sécurité qui ressemblent à des capteurs qui peuvent éteindre l'appareil en cas de surchauffe ou le soi-disant "mode sec" lorsqu'il n'y a pas d'eau dans le système.

Cela augmente le coût de la station, mais garantira son utilisation plus sûre dans le pays. Le kit a généralement un clapet anti-retour et un filtre à eau. S'ils ne sont pas disponibles, assurez-vous de les acheter et de les installer dans le circuit hydrophore.

Quelles pourraient être les conséquences : rétrécissement du diamètre du tuyau de chauffage

Le rétrécissement du diamètre du tuyau est hautement indésirable. Lors du câblage autour de la maison, il est recommandé d'utiliser la même taille - vous ne devez pas l'augmenter ou la diminuer. Une exception possible serait seulement une grande longueur du circuit de circulation. Mais dans ce cas, vous devez être prudent.

Le diamètre du tuyau d'admission peut-il être inférieur à l'entrée de la pompe ? De nombreux experts ne recommandent pas de réduire le diamètre des tuyaux, car cela peut nuire à l'ensemble du système de chauffage.

Mais pourquoi la taille se rétrécit-elle lors du remplacement d'un tuyau en acier par un tuyau en plastique ? Tout est simple ici: avec le même diamètre intérieur, le diamètre extérieur des tuyaux en plastique eux-mêmes est plus grand. Cela signifie que les trous dans les murs et les plafonds devront être agrandis sérieusement - de 25 à 32 mm. Mais pour cela, vous aurez besoin d'un outil spécial.Par conséquent, il est plus facile de faire passer des tuyaux plus minces dans ces trous.

Mais dans la même situation, il s'avère que les habitants qui ont effectué un tel remplacement de tuyaux ont automatiquement "volé" à leurs voisins dans cette colonne montante environ 40% de la chaleur et de l'eau passant par les tuyaux. Par conséquent, il faut comprendre que l'épaisseur des tuyaux, remplacés arbitrairement dans un système thermique, ne relève pas d'une décision privée, cela ne peut pas être fait. Si les tuyaux en acier sont remplacés par des tuyaux en plastique, vous devrez élargir les trous dans les plafonds, quoi qu'on en dise.

Il existe une autre option dans cette situation. Lors du remplacement des contremarches dans les anciens trous, il est possible de sauter de nouveaux segments de tuyaux en acier de même diamètre, leur longueur sera de 50 à 60 cm (cela dépend d'un paramètre tel que l'épaisseur du plafond). Et puis ils sont reliés par des raccords avec des tuyaux en plastique. Cette option est tout à fait acceptable.

Exemple de calcul de système de chauffage

En règle générale, un calcul simplifié est effectué sur la base de paramètres tels que le volume de la pièce, le niveau de son isolation, le débit du liquide de refroidissement et la différence de température dans les conduites d'entrée et de sortie.

Le diamètre du tuyau de chauffage à circulation forcée est déterminé dans l'ordre suivant :

la quantité totale de chaleur qui doit être fournie à la pièce est déterminée (puissance thermique, kW), vous pouvez également vous concentrer sur les données tabulaires ;

Le diamètre du tuyau d'admission peut-il être inférieur à l'entrée de la pompe ?

Valeur de puissance thermique en fonction de la différence de température et de la puissance de la pompe

compte tenu de la vitesse de déplacement de l'eau, le D optimal est déterminé.

Calcul de la puissance thermique

Une pièce standard aux dimensions de 4,8x5,0x3,0m servira d'exemple. Circuit de chauffage à circulation forcée, il est nécessaire de calculer les diamètres des tuyaux de chauffage pour le câblage autour de l'appartement. La formule de calcul de base ressemble à ceci :

La notation suivante est utilisée dans la formule :

  • V est le volume de la pièce. Dans l'exemple, c'est 3,8 ∙ 4,0 ∙ 3,0 = 45,6 m 3 ;
  • Δt est la différence entre la température extérieure et intérieure. Dans l'exemple, 53ᵒС est accepté ;

Températures mensuelles minimales pour certaines villes

K est un coefficient spécial qui détermine le degré d'isolation du bâtiment. En général, sa valeur varie de 0,6 à 0,9 (une isolation thermique efficace est utilisée, le sol et le toit sont isolés, au moins des fenêtres à double vitrage sont installées) à 3-4 (bâtiments sans isolation thermique, par exemple, des vestiaires). L'exemple utilise une option intermédiaire - l'appartement a une isolation thermique standard (K = 1,0 - 1,9), accepté K = 1,1.

La puissance thermique totale devrait être de 45,6 ∙ 53 ∙ 1,1 / 860 = 3,09 kW.

Vous pouvez utiliser des données tabulaires.

Tableau de flux de chaleur

Définition du diamètre

Le diamètre des tuyaux de chauffage est déterminé par la formule

Où les désignations sont utilisées :

  • Δt est la différence de température du fluide caloporteur dans les canalisations d'alimentation et de refoulement. Étant donné que l'eau est fournie à une température d'environ 90-95ᵒС et qu'elle a le temps de se refroidir à 65-70ᵒС, la différence de température peut être prise égale à 20ᵒС;
  • v est la vitesse de déplacement de l'eau. Il n'est pas souhaitable qu'il dépasse la valeur de 1,5 m/s, et le seuil minimum admissible est de 0,25 m/s. Il est recommandé de s'arrêter à une valeur de vitesse intermédiaire de 0,8 - 1,3 m/s.

Noter! Un choix incorrect du diamètre du tuyau pour le chauffage peut entraîner une chute de la vitesse en dessous du seuil minimum, ce qui entraînera à son tour la formation de poches d'air. En conséquence, l'efficacité du travail deviendra nulle.

La valeur de Din dans l'exemple sera √354∙(0.86∙3.09/20)/1.3 = 36.18 mm

Si vous faites attention aux dimensions standard, par exemple, du pipeline en PP, il est clair qu'il n'y a tout simplement pas un tel Din. Dans ce cas, sélectionnez simplement le diamètre le plus proche des tuyaux en propylène pour le chauffage

Lire aussi :  Critères de sélection d'une pompe de circulation de chaleur pour une piscine

Dans cet exemple, vous pouvez choisir PN25 avec un ID de 33,2 mm, cela entraînera une légère augmentation de la vitesse du liquide de refroidissement, mais cela restera toujours dans des limites acceptables.

Caractéristiques des systèmes de chauffage à circulation naturelle

Leur principale différence est qu'ils n'utilisent pas de pompe de circulation pour créer une pression. Le liquide se déplace par gravité, après avoir été chauffé, il est forcé vers le haut, puis passe à travers les radiateurs, se refroidit et retourne à la chaudière.

Le diamètre du tuyau d'admission peut-il être inférieur à l'entrée de la pompe ?

Le diagramme montre le principe de la pression de circulation.

Par rapport aux systèmes à circulation forcée, le diamètre des tuyaux pour le chauffage à circulation naturelle doit être plus grand. La base de calcul dans ce cas est que la circulation la pression a dépassé les pertes par frottement et la résistance locale.

Le diamètre du tuyau d'admission peut-il être inférieur à l'entrée de la pompe ?

Exemple de câblage à circulation naturelle

Afin de ne pas calculer à chaque fois la valeur de la pression de circulation, il existe des tableaux spéciaux compilés pour différentes différences de température. Par exemple, si la longueur de la canalisation de la chaudière au radiateur est de 4,0 m et que la différence de température est de 20ᵒС (70ᵒС à la sortie et 90ᵒС à l'alimentation), la pression de circulation sera de 488 Pa. Sur cette base, la vitesse du liquide de refroidissement est sélectionnée en modifiant D.

Lorsque vous effectuez des calculs de vos propres mains, un calcul de vérification est également requis.C'est-à-dire que les calculs sont effectués dans l'ordre inverse, le but de la vérification est d'établir si les pertes par frottement et les résistances locales dépassent la pression de circulation.

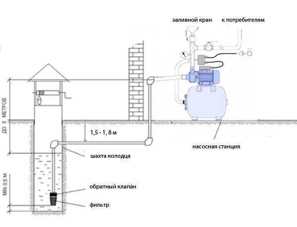
Installation de canalisations d'aspiration et de refoulement

La conduite d'aspiration est disposée à partir de tuyaux métalliques pour raccords à bride ou à douille.

Pour un fonctionnement normal de la canalisation d'aspiration, l'étanchéité de toutes ses connexions est nécessaire. Les joints des tuyaux doivent être très serrés pour empêcher l'entrée d'air dans le tuyau d'aspiration, car même des fuites mineures peuvent provoquer la panne de la pompe. Les joints de bride sont connectés sur des joints en caoutchouc, qui sont placés au centre des trous de tuyau. Lors de l'installation, ne pas corriger la déformation des brides en serrant les boulons, car cela pourrait déformer la pompe.

La conduite d'aspiration traversant la tranchée est posée de la pompe au réservoir sur la distance la plus courte, avec un nombre minimum de tours, à une profondeur de 0,1 à 0,2 m sous le sol gelé.

La longueur horizontale des tuyaux d'aspiration n'est pas recommandée pour être supérieure à 30 m.La pose est effectuée avec une légère élévation douce de la pompe et sans plis dans lesquels des poches d'air pourraient se former.

La hauteur d'aspiration verticale totale ne doit pas dépasser 4 à 6 m.

Le coude du tuyau d'aspiration ne doit pas être raccordé directement à l'orifice d'aspiration d'une pompe centrifuge ou au raccord de cylindre d'une pompe à piston.

Pour éviter une résistance excessive lorsque l'eau pénètre dans la pompe, un tuyau de 200 à 300 mm de long est installé entre le coude et la pompe.

La vanne d'admission, conçue pour empêcher l'eau de s'écouler lors du remplissage ou de l'arrêt de la pompe, doit se tenir à 0,4-0,5 m du fond avec sa partie inférieure.Ceci est fait afin d'éviter qu'il ne soit aspiré par le sable et le limon.

La vanne d'entrée doit être immergée dans l'eau pendant au moins 0,4-0,5 m, en partant du niveau d'eau le plus bas jusqu'aux entrées de la grille. Si l'eau est prélevée à partir d'une source ouverte de faible profondeur, un puits de réception d'une profondeur suffisante doit être aménagé. Dans ce cas, il faut tenir compte du fait que le puits récepteur sera soumis aux dérives du sol. Par conséquent, la profondeur du puits d'admission doit être supérieure de 0,5 à 1 m à la profondeur d'immersion de la partie inférieure de la soupape d'admission de la pompe.

La conduite de refoulement part de la boîte de transition ou du tuyau de refoulement de la pompe centrifuge et se termine dans le réservoir d'eau. La longueur de la canalisation de refoulement horizontalement peut être plus ou moins grande et dépend de la hauteur de refoulement que le moteur est capable de surmonter. Dans les calculs pratiques, 100 m d'injection horizontale équivaut approximativement à 1 m d'injection verticale.

Le diamètre des tuyaux de refoulement ne doit pas être inférieur au diamètre de l'ouverture de refoulement du boîtier adaptateur de la pompe à piston ou du tuyau de refoulement de la pompe centrifuge.

Un clapet anti-retour et un chapeau d'air sont montés sur la conduite de refoulement provenant de la pompe à piston. Ce dernier sert à la fois à absorber les chocs hydrauliques qui se produisent lors du fonctionnement d'une pompe à piston et à égaliser la vitesse de déplacement de l'eau dans la canalisation de refoulement.

La taille du capuchon d'air sur la canalisation de refoulement doit être égale à 10 à 15 fois le volume d'une pompe à eau et le diamètre du capuchon doit être d'environ 2,5 diamètres de piston avec une hauteur de capuchon 1,8 à 3,5 fois supérieure au diamètre du bouchon.

Un verre de jauge est installé pour indiquer le niveau d'eau dans le chapeau d'air, et un manomètre est utilisé pour déterminer la pression.

Le volume normal d'air dans la hotte pendant le fonctionnement de la pompe est d'environ les deux tiers du volume de l'ensemble de la hotte.

Les conduites d'injection sont posées dans des tranchées en ligne droite avec une montée vers le réservoir d'eau. À l'approche d'une structure sous pression d'eau, la canalisation doit créer une transition en douceur de l'eau dans un plan vertical (vers la colonne montante), pour laquelle la connexion avec la colonne montante est établie à l'aide d'un coude spécial.

Comment est l'installation des conduites d'eau

Il convient de noter immédiatement qu'il est plus pratique d'installer immédiatement la pompe et les tuyaux. Dans ce cas, tous les calculs nécessaires doivent être effectués à l'avance, sinon vous risquez de rencontrer de nombreuses difficultés. La descente de la pompe dans le puits doit être douce. De plus, si le prétraitement n'est pas effectué correctement, vous ne pouvez pas recevoir suffisamment d'eau, ce qui est nécessaire pour fournir une maison. Le manque de pression affectera le confort des résidents. De ce fait, ils devront choisir entre faire la lessive, utiliser la douche ou arroser le jardin. Les procédures parallèles simultanées deviendront impossibles.

Les pompes modernes sont le plus souvent équipées d'une version à bride ou filetée pour le raccordement d'un tuyau. Bien que parfois un type de connexion de couplage soit également utilisé. Les experts recommandent de fixer d'abord l'élément élévateur d'eau d'un côté, puis de procéder ensuite à l'installation de la deuxième partie du tuyau. L'abaissement de la structure au sol est fortement déconseillé. Cela peut endommager des composants importants ou déplacer certaines pièces.

Sélection de la taille du boîtier

Très souvent, les décisions concernant la pose d'un autre type de structure de puits sont prises lors du forage d'un trou. Pendant le processus d'approfondissement, il peut être nécessaire d'utiliser des tuyaux de différentes largeurs pour créer un système d'approvisionnement en eau plus fiable et efficace. C'est ce qui conduit au fait que lors de la formation de la structure, des tuyaux de différents diamètres sont utilisés, grâce auxquels la largeur initiale de la colonne d'équipement de fond de trou se dilate ou se rétrécit.

Lire aussi :  Quelle machine mettre sur le climatiseur dans l'appartement: sélection, installation et connexion d'un dispositif de protection

Certaines entreprises de forage de puits proposent initialement des passages étroits à leurs clients, ce qui constitue une meilleure offre sur un marché concurrentiel. Et dans certains cas, le propriétaire de l'installation lui-même décide d'une section réduite du puits, car il est moins cher

Il est important de comprendre que la productivité du puits ne dépend pas entièrement de la largeur du tuyau, car elle est largement déterminée par les paramètres techniques des composants du filtre et la capacité des roches à produire de l'eau.

Dans toutes les options, il est très important qu'il y ait un espace entre le boîtier et le boîtier de l'équipement de pompage, ce qui vous permet de démonter rapidement et facilement la pompe avec le tuyau et d'autres pièces. Le plus souvent, une documentation spécialisée indique que l'équipement de pompage ne doit pas être inférieur de moins de 10 millimètres au diamètre intérieur du tuyau

Cela minimise les dommages causés par les déplacements axiaux, les cordons de soudure, la compression du tuyau sous la pression du sol et d'autres facteurs désagréables.

C'est pourquoi il est recommandé de choisir pour que l'écart soit supérieur à 10 mm.

Complètement et de manière fiable

Lorsque vous décidez quels tuyaux de station de pompage utiliser, vous pouvez faire attention aux options métal-plastique. Ils présentent plusieurs avantages par rapport aux tuyaux en caoutchouc :

  • ne se déforment pas et ne changent pas leurs qualités avec les changements de température;
  • sûr de résister à la pression requise;
  • avoir une plus grande résistance mécanique;
  • ils sont beaucoup plus hygiéniques et mieux adaptés au contact avec l'eau potable.

Certes, pour l'installation de métal-plastique, des compétences particulières seront nécessaires, mais pas du tout compliquées. Des morceaux de tuyau du diamètre requis sont interconnectés à l'aide de raccords serrés avec des clés ordinaires.

Cependant, lors de la pose d'une conduite d'eau, il ne faut pas oublier qu'elle fonctionnera non seulement grâce au bon choix de conduites. D'autres facteurs doivent également être pris en compte. Les tuyaux doivent être posés en dessous du niveau de congélation du sol. Et fournissez également la pente souhaitée - de la pompe au puits, et non l'inverse.

Type de pompe

Le diamètre du tuyau d'admission peut-il être inférieur à l'entrée de la pompe ?Les exigences relatives aux tuyaux dépendent de la pompe qui sera utilisée pour soulever le liquide et le déplacer dans le système d'alimentation en eau. Par conséquent, avant de choisir l'une ou l'autre option, il est nécessaire de préciser quelle pompe est utilisée ou ne sera installée que sur le site. Au total, il existe 2 principaux types de pompe pour un puits. Il peut être manuel ou mécanique. Chaque type peut être subdivisé en sous-classes.

Les pompes à main peuvent avoir un système de piston ou de tuyau. Cette dernière option, en règle générale, est utilisée lorsqu'il est nécessaire de soulever de l'eau à une profondeur de plus de 7 m Piston - il est plus pratique à utiliser dans les puits peu profonds.

Dans le cadre de la pompe à tuyau, il y a un cylindre de pompe, qui doit être fixé tout en bas du système de plomberie. Le kit comprend des flexibles équipés d'un piston et d'un mécanisme à entraînement manuel. Il doit être placé au-dessus du puits.

Les pompes à piston diffèrent légèrement des pompes à tuyau. Mais il y a encore des fonctionnalités d'installation. Un tel dispositif doit être fixé à l'extrémité de la colonne montante. C'est pour cette raison que les pompes à piston ne sont pas recommandées lorsque la profondeur du puits dépasse 7 m.

Les dispositifs mécaniques sont plus complexes, mais faciles à utiliser. Ce groupe est également divisé en plusieurs types. Les pompes mécaniques peuvent être à engrenages, centrifuges et électromagnétiques.

Les centrifugeuses sont considérées comme la meilleure option pour les chalets simples ou les petites maisons. De petites conduites d'eau y sont connectées, mais cela suffit amplement pour un usage domestique. De tels dispositifs sont considérés comme relativement peu coûteux. Ils sont résistants à la rouille car ils sont en acier inoxydable. De plus, les pompes centrifuges peuvent être équipées de plusieurs compléments utiles. Par exemple, ils utilisent souvent un système de protection contre l'allumage en l'absence d'eau. Cela permet de protéger l'appareil contre les dommages et l'usure prématurée.

Caractéristique des pompes de puits électromagnétiques c'est qu'ils durent très longtemps. Il n'y a pas de pièces frottantes qui peuvent s'user avec le temps. Lors de l'installation, une telle pompe peut être immergée directement dans l'eau.

Les pompes hydrauliques sont assez puissantes et peuvent être utilisées pour fournir de grandes quantités d'eau. Mais pour son bon fonctionnement, l'électricité est nécessaire.S'il n'y a pas de lumière dans la maison, l'eau s'éteindra en conséquence. Ce n'est pas toujours pratique, car dans certaines agglomérations, et en particulier dans les zones rurales, les pannes de courant ne sont pas rares.

À propos du raccordement d'un tuyau en polypropylène à une station de pompage

Les situations où il est nécessaire de connecter un tuyau en polypropylène à une station de pompage, le plus souvent, il peut y en avoir deux:

  • Lors du premier raccordement d'une nouvelle station ;
  • Lors du remplacement d'anciens tuyaux métalliques par de nouveaux tuyaux en PEHD.

Dans tous les cas, pour vous connecter à l'alimentation en eau centrale, vous devez effectuer la séquence d'actions suivante :

La première étape consiste à bloquer l'écoulement de l'eau au point de raccordement à l'alimentation en eau centrale.

Ensuite, nous préparons la station de pompage. Lors de la configuration d'une unité de pompage, l'essentiel est de choisir la bonne pression dans le système. Pour ajuster l'équipement, une petite quantité d'eau (environ 2 litres) est versée dans un trou spécial sur la pompe. Vous devez maintenant ouvrir la vanne et mesurer la pression dans le système à laquelle la pompe s'éteint et se rallume.

Si la pression à laquelle l'appareil fonctionne n'est pas dans les limites spécifiées, l'appareil doit être ajusté. C'est très simple à faire :

  • Le couvercle de pression s'ouvre sur le pressostat.
  • Pour régler la pression de coupure de l'appareil, une vis portant la désignation "DR" est utilisée. Il doit être tourné dans le sens de la diminution ou de l'augmentation, selon les résultats.
  • Pour régler la pression de commutation, tournez la vis marquée "P".
  • Après réglage, le capot du relais est mis en place.

Ainsi, la séquence d'actions lors du raccordement d'un tuyau en polypropylène à une station de pompage:

  • Nous assemblons d'abord l'éjecteur.En règle générale, il s'agit d'un ensemble monolithique en fonte à trois sorties.
  • A la sortie inférieure de l'éjecteur, nous montons un filtre grossier en maille de propylène.
  • Au sommet de la structure en fonte se trouve une cloche en plastique. Il est nécessaire de mettre dessus un lecteur d'un diamètre de 32 mm.
  • Ensuite, vous devez assembler la raclette en fonction du diamètre du pipeline. Habituellement, deux pièces avec adaptateurs suffisent pour cela.
  • Un raccord en bronze est installé à la sortie de cet embranchement. Avec lui, une connexion à un tuyau en polyéthylène sera établie.
Lire aussi :  Comment isoler un mur d'un appartement par l'intérieur : les meilleures technologies + workflow

Utilisez des raccords pour connecter l'éjecteur à l'alimentation en eau.

Avant d'abaisser la deuxième extrémité du tuyau en polypropylène, il doit être passé à travers le genou à angle droit. La mousse est utilisée pour sceller l'espace. Après cela, le tuyau peut être connecté à l'adaptateur et, à son tour, doit être connecté à l'extérieur du système d'alimentation en eau.

Vous pouvez maintenant abaisser l'éjecteur dans le puits. La profondeur d'immersion doit être déterminée à l'avance, en tenant compte de la marque sur le dessus du boîtier. Le couvercle est fixé au corps avec du ruban adhésif sanitaire renforcé.

Données: comment calculer le diamètre d'un tuyau de chauffage

Pour calculer le diamètre du pipeline, vous aurez besoin des données suivantes: il s'agit de la perte de chaleur totale de l'habitation, de la longueur du pipeline et du calcul de la puissance des radiateurs de chaque pièce, ainsi que de la méthode de câblage. . Le divorce peut être monotube, bitube, avoir une ventilation forcée ou naturelle.

Faites également attention au marquage des tuyaux en cuivre et en polypropylène de diamètre extérieur. L'interne peut être calculé en soustrayant l'épaisseur de paroi

Pour les tuyaux en métal-plastique et en acier, la taille interne est apposée lors du marquage.

Malheureusement, il est impossible de calculer avec précision la section transversale des tuyaux. D'une manière ou d'une autre, vous devrez choisir parmi plusieurs options. Ce point doit être précisé : une certaine quantité de chaleur doit être délivrée aux radiateurs, tout en assurant un chauffage homogène des batteries. Si nous parlons de systèmes à ventilation forcée, cela se fait à l'aide de tuyaux, d'une pompe et du liquide de refroidissement lui-même. Tout ce qui est nécessaire est de conduire la quantité requise de liquide de refroidissement pendant une certaine période de temps.

Il s'avère que vous pouvez choisir des tuyaux de plus petit diamètre et fournir le liquide de refroidissement à une vitesse plus élevée. Vous pouvez également faire un choix en faveur de tuyaux de plus grande section, mais réduire l'intensité de l'alimentation en liquide de refroidissement. La première option est préférée.

Installation

Les caractéristiques d'installation des tuyaux et des pompes dépendent en grande partie du type de puits. Dans certains cas, l'installation d'appareils conventionnels sera très difficile. Dans de telles situations, il est permis d'utiliser des tuyaux flexibles pouvant remplacer les conduites d'eau. L'essentiel est que ces éléments soient suffisamment solides et sans danger pour l'homme. En aucun cas, ils ne doivent libérer des composés chimiques nocifs dans l'eau. De plus, il convient de s'assurer que les tuyaux sont suffisamment fiables et que toutes les fixations sont de haute qualité. Sinon, la plomberie devra être réparée immédiatement après sa première utilisation.

Les experts recommandent fortement que seules les options conçues et fabriquées à cet effet soient utilisées comme tuyaux de levage. Ne prenez pas de tuyaux en nylon ou de tuyaux d'incendie, car ils tomberont rapidement en panne et pourraient même endommager la pompe.En conséquence, vous devrez dépenser de l'argent pour acheter un nouvel ensemble d'équipements coûteux.

Types de pompes profondes par diamètre

Le plus souvent, pour l'installation d'équipements de pompage conçus pour l'alimentation en eau autonome, des produits de 3 et 4 pouces sont proposés, qui ont respectivement un diamètre de 76 mm et 101 mm. Les pompes de 4" sont plus courantes et sont disponibles dans une grande variété de modèles, tandis que les pompes de 3 mm sont moins populaires. En termes de configuration, de fiabilité et de paramètres techniques, les équipements de pompage minces ne sont en aucun cas inférieurs aux analogues d'un diamètre supérieur à 100 mm. Cependant, ils sont plusieurs fois plus légers et 30% plus longs.

Lors du choix des pompes de forage, il est nécessaire d'être guidé non seulement par le diamètre, mais également par d'autres caractéristiques techniques importantes pouvant répondre aux besoins de l'installation :

  • performance;
  • profondeur d'immersion ;
  • pression;
  • résistance à la pollution;
  • pression maximale ;
  • principe d'opération;
  • système d'aspiration, etc.

Le choix de la pompe doit être effectué avec une combinaison de tous ces facteurs, ce qui aidera à choisir le modèle le plus approprié pour un objet particulier.

CNP fabrique des pompes industrielles de la plus haute qualité qui ne sont pas destinées à être installées chez des particuliers. Nos équipements sont utilisés dans des installations industrielles et autres bâtiments spécialisés. Les pompes se caractérisent par une fiabilité et des performances accrues, ce qui vous permet de répondre aux besoins de toutes les installations autonomes.

Diamètre du tuyau d'aspiration pour la station de pompage

De nombreux paramètres de la station de pompage elle-même affectent les paramètres du tuyau d'admission. Par conséquent, il ne serait pas correct de recommander sans ambiguïté un diamètre spécifique.Un tuyau en pouces est souvent utilisé. Dans tous les cas, un tuyau inférieur à 1″ ne peut pas être placé sur la ligne d'aspiration.

Lors de l'utilisation d'une station de pompage pour augmenter la pression dans le réseau, une surpression est déjà appliquée au tuyau d'aspiration, la pompe n'aspire pas l'eau vers elle-même, le diamètre du tuyau d'alimentation n'est donc pas si critique. Le diamètre du tuyau d'aspiration 1″ est d'environ 25 mm de diamètre intérieur, généralement 32 mm extérieur (pour le plastique).

La pompe est généralement en métal et est conçue pour transférer une partie de l'énergie à l'eau. Et comme il est en fer et qu'il est fait de telle manière que, par exemple, 1 cube d'eau par heure peut être élevé de 100 mètres, peu lui importe sur quelle section de cette centaine de mètres se tenir, soit aspirez ce cube d'une profondeur de 100 mètres, ou éloignez-le de vous jusqu'à une hauteur de 100 mètres, ou aspirez 50 puis poussez 50. Il est fait de fer et s'en fout, sa tâche est de 1 cube, 1 heure, 100 mètres.

Le diamètre du tuyau d'admission peut-il être inférieur à l'entrée de la pompe ?Mais il existe une chose telle que la pression atmosphérique. Et c'est elle qui ne permet pas à l'eau d'être aspirée par une valeur supérieure à elle-même. En général, même si nous créons un vide absolu, l'eau ne montera pas à ce vide à une hauteur supérieure à 10,2 mètres (théoriquement), en pratique, la hauteur d'aspiration est limitée à 7,5-9 mètres.

Ainsi, une pompe de puits pourrait se tenir sur n'importe quelle partie d'une colonne de 100 mètres, mais la pression atmosphérique limite sa course aux 9 premiers mètres

Lors de l'installation de la pompe, il est très important de rester dans ces 9 mètres. Et cela malgré le fait qu'il nous reste encore 90 mètres

L'eau subit une force de frottement qui l'empêche de monter et, par conséquent, réduit encore plus cette même section de 9 mètres.Et cette force dépend simplement du diamètre du tuyau, de la rugosité de ses parois, de la quantité d'eau que vous allez essayer pour pomper à travers la section de tuyau.Par conséquent, le tuyau d'aspiration (tuyau d'admission d'eau pour la station de pompage) est rendu plus large, plus lisse et plus droit.

Évaluation
Site sur la plomberie

Nous vous conseillons de lire

Où remplir la poudre dans la machine à laver et combien de poudre verser