- Types de stations de pompage et distance à la nappe phréatique
- Stations de pompage avec éjecteur intégré
- Stations de pompage avec éjecteur à distance
- Choisir un lieu d'installation
- Schéma de raccordement d'une station de pompage à un puits dans le pays
- Comment calculer le volume d'un accumulateur hydraulique ?
- Purification de l'eau
- Des modèles
- Des astuces
- Quelques précieux conseils
- Démarrage de la station de pompage
- Types de puits et sélection de pompes
- Types de pompes
- Utilisation de systèmes de pompage
- Classement des stations de pompage
- Montage et raccordement d'une station de pompage avec une pompe aspirante
Types de stations de pompage et distance à la nappe phréatique
Il existe des stations de pompage avec un éjecteur intégré et à distance. L'éjecteur intégré est un élément structurel de la pompe, celui à distance est une unité externe séparée, immergée dans le puits. Le choix en faveur de l'une ou l'autre option dépend principalement de la distance entre la station de pompage et la surface de l'eau.
D'un point de vue technique, l'éjecteur est un dispositif assez simple. Son élément structurel principal - la buse - est un tuyau de dérivation à extrémité effilée. En passant par le lieu de rétrécissement, l'eau acquiert une accélération notable. Conformément à la loi de Bernoulli, une zone de basse pression est créée autour d'un courant se déplaçant à une vitesse accrue, c'est-à-dire qu'un effet de raréfaction se produit.
Sous l'action de cette dépression, une nouvelle portion d'eau du puits est aspirée dans la canalisation.En conséquence, la pompe dépense moins d'énergie pour transporter le liquide à la surface. L'efficacité des équipements de pompage augmente, tout comme la profondeur à partir de laquelle l'eau peut être pompée.
Stations de pompage avec éjecteur intégré
Les éjecteurs intégrés sont généralement placés à l'intérieur du corps de pompe ou situés à proximité de celui-ci. Cela réduit l'encombrement de l'installation et simplifie quelque peu l'installation de la station de pompage.
Ces modèles démontrent une efficacité maximale lorsque la hauteur d'aspiration, c'est-à-dire la distance verticale entre l'entrée de la pompe et le niveau de la surface de l'eau dans la source, ne dépasse pas 7-8 m.
Bien sûr, il faut également tenir compte de la distance horizontale entre le puits et l'emplacement de la station de pompage. Plus la section horizontale est longue, plus la profondeur à partir de laquelle la pompe est capable de prélever de l'eau est petite. Par exemple, si la pompe est installée directement au-dessus de la source d'eau, elle pourra soulever de l'eau à une profondeur de 8 m. Si la même pompe est retirée du point de prise d'eau de 24 m, la profondeur de montée de l'eau sera diminuer à 2,5 m.
Outre leur faible efficacité à de grandes profondeurs de la nappe phréatique, ces pompes présentent un autre inconvénient évident: un niveau de bruit accru. Le bruit de la vibration d'une pompe en marche s'ajoute au bruit de l'eau passant à travers la buse d'éjection. C'est pourquoi il est préférable d'installer une pompe avec un éjecteur intégré dans une buanderie séparée, à l'extérieur d'un immeuble résidentiel.
Station de pompage avec éjecteur intégré.
Stations de pompage avec éjecteur à distance
L'éjecteur à distance, qui est une petite unité séparée, contrairement à celle intégrée, peut être situé à une distance considérable de la pompe - il est connecté à la partie de la canalisation immergée dans le puits.
Éjecteur à distance.
Pour faire fonctionner une station de pompage avec un éjecteur externe, un système à deux tuyaux est requis. L'un des tuyaux sert à remonter l'eau du puits jusqu'à la surface, tandis que la seconde partie de l'eau remontée redescend vers l'éjecteur.
La nécessité de poser deux tuyaux impose certaines restrictions sur le diamètre de puits minimal autorisé, il est préférable de le prévoir au stade de la conception de l'appareil.
Une telle solution constructive, d'une part, permet d'augmenter considérablement la distance entre la pompe et la surface de l'eau (de 7-8 m, comme dans les pompes à éjecteurs intégrés, à 20-40 m), mais d'autre part D'autre part, cela conduit à une diminution de l'efficacité du système à 30-35 %. Cependant, ayant la possibilité d'augmenter considérablement la profondeur de la prise d'eau, vous pouvez facilement supporter cette dernière.
Si la distance à la surface de l'eau dans votre région n'est pas trop profonde, il n'est pas nécessaire d'installer une station de pompage directement près de la source. Cela signifie que vous avez la possibilité d'éloigner la pompe du puits sans diminution notable de l'efficacité.
En règle générale, ces stations de pompage sont situées directement dans un immeuble résidentiel, par exemple au sous-sol. Cela améliore la durée de vie de l'équipement et simplifie les procédures de configuration et de maintenance du système.
Un autre avantage incontestable des éjecteurs à distance est une réduction significative du niveau de bruit produit par une station de pompage en fonctionnement. Le bruit de l'eau traversant un éjecteur installé en profondeur ne dérangera plus les habitants de la maison.
Station de pompage avec éjecteur à distance.
Choisir un lieu d'installation
Il n'est pas difficile de fabriquer soi-même une unité de pompage pour une maison privée ou un chalet. Cependant, en même temps, il est nécessaire de résoudre la question de savoir comment et où installer correctement la station de pompage. Le lieu d'installation d'une station de pompage, du choix et de la disposition corrects dont dépendra l'efficacité de l'équipement, doit répondre à certaines exigences.
- Si le forage d'un puits ou l'aménagement d'un puits sur une parcelle personnelle est déjà terminé, la station de pompage est montée le plus près possible de la source d'approvisionnement en eau.
- Afin de protéger les équipements de pompage du gel de l'eau pendant la saison froide, le site d'installation doit être caractérisé par des conditions de température confortables.
- Les groupes de pompage nécessitant un entretien régulier, un accès libre doit être assuré à leur site d'installation.
Sur la base des exigences ci-dessus, un caisson ou une pièce séparée et spécialement équipée est utilisée comme lieu d'installation d'une station de pompage dans une maison de campagne ou dans une maison privée.
Idéalement, une place pour une station de pompage devrait être prévue au stade de la construction d'une maison, en allouant une pièce séparée pour cela
Parfois, ils installent des unités de pompage dans des bâtiments qui existent déjà sur le territoire de l'avant-champ. Chacune de ces options a ses avantages et ses inconvénients, qui doivent être discutés plus en détail.
Placer une station de pompage dans une pièce séparée d'un bâtiment avec un puits foré sous la maison
Le schéma d'installation d'une station de pompage dans le sous-sol d'une maison est une option presque idéale pour localiser un tel équipement. Avec ce schéma d'installation, un accès facile à l'équipement est fourni et le problème de la réduction du niveau de bruit généré lors du fonctionnement de la station est également facilement résolu. Cette option sera plus efficace si la salle des pompes est chauffée.
Placer une station de pompage dans un sous-sol chaud équipé
Si l'unité de pompage est située dans une dépendance, son accès rapide est quelque peu difficile. Mais avec un tel schéma de connexion d'une station de pompage, le problème du bruit provenant du fonctionnement de l'équipement est radicalement résolu.
La station peut être installée sur un support dans un puits suffisamment large et profond
L'installation de la station dans un caisson assurera une protection contre le gel et une isolation phonique complète
Très souvent, les stations de pompage sont montées dans un caisson - un réservoir spécial installé au-dessus de la tête du puits, directement dans la fosse. Un caisson peut être soit un conteneur en plastique ou en métal enfoui dans le sol en dessous de son niveau de congélation, soit une structure souterraine permanente, dont les murs et la base sont en béton ou finis en briques. Il convient de garder à l'esprit que lors de l'installation d'une station de pompage dans un caisson, l'accès aux équipements est assez limité. De plus, si un schéma de raccordement de ce type est utilisé pour une station de pompage, la section de canalisation entre l'équipement de pompage et le bâtiment qu'elle dessert doit être soigneusement isolée ou placée dans le sol à une profondeur inférieure au niveau de congélation.
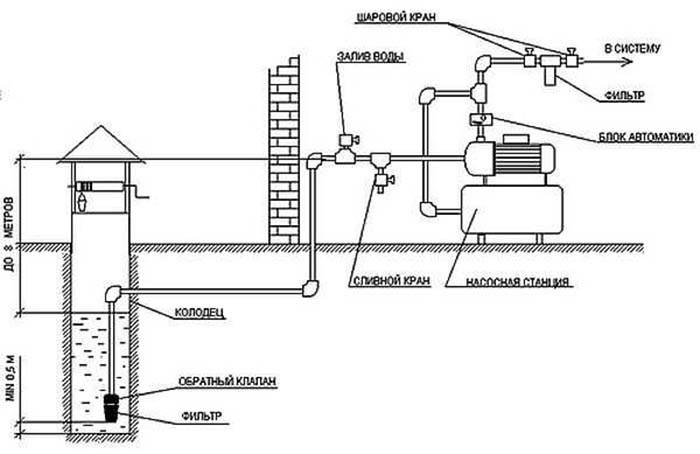
Schéma de raccordement d'une station de pompage à un puits dans le pays
La station de pompage peut être placée à l'intérieur du puits, s'il y a une place pour cela, de plus, des locaux techniques lui sont souvent attribués dans la maison elle-même ou dans la pièce
Faites attention à la profondeur à laquelle le pipeline sera. Le tuyau doit non seulement être isolé, mais également placé sous la profondeur de congélation du sol, de sorte que pendant la saison froide, l'eau qu'il contient ne gèle pas.
Pour que le système fonctionne correctement, vous devez choisir non seulement le type de pompe, mais également la profondeur à laquelle elle fonctionnera. Plus la source d'eau est profonde et éloignée du bâtiment, plus la pompe elle-même doit être puissante. Il devrait y avoir un filtre au bout du tuyau, il est situé entre le tuyau et la pompe, protégeant cette dernière des débris entrant dans le mécanisme.
Les appareils écrivent généralement à quelle profondeur ils sont conçus, mais cela vaut la peine d'en prendre un plus puissant, car le calcul est effectué uniquement du fond du puits à sa surface, sans tenir compte de la distance au bâtiment. C'est facile à calculer: 1 mètre de l'emplacement vertical du tuyau correspond à 10 mètres de son emplacement horizontal, car il est plus facile de fournir de l'eau dans ce plan.
Selon le type et la puissance de la pompe, la pression peut être plus forte ou plus faible. Il peut également être calculé. En moyenne, la pompe fournit 1,5 atmosphères, mais ce n'est pas une pression suffisante pour le fonctionnement normal de la même machine à laver ou de l'hydromassage, le chauffe-eau peut nécessiter une température plus élevée.
Afin de contrôler la pression, l'équipement est équipé d'un baromètre. En fonction du paramètre de pression, la taille du réservoir de stockage est également calculée. Les performances de la station jouent également un rôle important. Ce paramètre indique le nombre de mètres cubes par minute que la pompe est capable de fournir.Vous devez calculer en fonction du pic de consommation d'eau, c'est-à-dire lorsque tous les robinets de la maison sont ouverts ou que plusieurs appareils électriques grand public fonctionnent. Afin de calculer quelle station de pompage convient pour alimenter un puits, vous devez connaître les performances. Pour cela, additionnez le nombre de points d'eau.
Du point de vue de l'alimentation électrique, il est plus pratique d'utiliser les systèmes alimentés par un réseau 22 volts. Certaines stations fonctionnent avec des phases de 380 V, mais de tels moteurs ne sont pas toujours pratiques, car une connexion triphasée n'est pas disponible dans toutes les maisons. La puissance d'une station domestique peut varier, elle est en moyenne de 500 à 2000 watts. Sur la base de ce paramètre, les différentiels et autres appareils sont sélectionnés pour fonctionner en conjonction avec la station. Afin d'éviter que la conception ne surchauffe, de nombreux fabricants installent une automatisation qui éteindra les pompes en cas de charge d'urgence. La protection fonctionne également s'il n'y a pas d'eau dans la source lors de surtensions.
Comment calculer le volume d'un accumulateur hydraulique ?
La taille du réservoir détermine la fréquence à laquelle le moteur de la pompe s'allume. Plus il est grand, moins l'installation fonctionne souvent, ce qui vous permet d'économiser de l'électricité, d'augmenter les ressources du système. Un accumulateur hydraulique trop grand prend beaucoup de place, donc un accumulateur de taille moyenne est généralement utilisé. Il contient 24 litres. C'est suffisant pour une petite maison dans laquelle vit une famille de trois personnes.
Réservoir d'expansion de l'accumulateur de travail de la remorque
Si jusqu'à 5 personnes vivent dans la maison, il est préférable d'installer le réservoir à 50 litres, respectivement, s'il y en a plus de 6, il doit être d'au moins 100 litres.Il convient de noter que les réservoirs standard de nombreuses stations contiennent 2 litres, un tel réservoir hydraulique ne peut faire face qu'aux coups de bélier et maintenir la pression requise, il vaut mieux ne pas économiser d'argent et le remplacer immédiatement par un grand. C'est le nombre d'usagers de l'eau dans la maison qui déterminera quelle station de pompage choisir pour une résidence d'été.
Purification de l'eau
N'oubliez pas que l'eau du puits, même si elle est potable, peut contenir des impuretés, telles que du sable, de petites pierres, divers débris peuvent y pénétrer, qui peuvent être éliminés à l'aide d'un système spécial de purification de l'eau. Les filtres les plus couramment utilisés. Ils sont placés à l'extérieur afin qu'il soit commode de les changer. Ils peuvent avoir différentes fractions et purifier l'eau à des degrés divers. A la sortie, des filtres fins profonds sont utilisés.
Des modèles
- Gilex.
- Vortex.
- Ergus.
- Bison.
- jardina.
- Wilo SE.
- Karcher.
- Pedrollo.
- grundfos.
- Wilo.
- Peuplier.
- Unipompe.
- Aquario.
- Verseau.
- Biral.
- S.F.A.
- Vortex.
- cours d'eau.
- Zota.
- Belamos.
- Pedrollo.
Avant de choisir une station de pompage pour une résidence d'été avec puits, il ne sera pas superflu de savoir comment se passe l'entretien des produits du fabricant sélectionné, existe-t-il des revendeurs les plus proches qui peuvent fournir des pièces de rechange.
Des astuces
- Une fois l'alimentation en eau de la maison établie à l'aide d'une station de pompage, elle doit être entretenue périodiquement. Tout d'abord, il est nécessaire de surveiller en permanence l'état du filtre grossier et, si nécessaire, de le nettoyer. Si cela n'est pas fait, les performances de la station diminueront et l'eau ira par à-coups.Dans le cas où le filtre est complètement bouché, la pompe fonctionnera en mode veille et, par conséquent, la station s'éteindra. La fréquence de nettoyage du filtre dépend de la quantité d'impuretés dans l'eau.
- Il est conseillé de vérifier la pression dans le compartiment à air de l'accumulateur une fois par mois, après une immobilisation, une réparation ou une conservation pour l'hiver. Il devrait être au niveau de 1,2-1,5 atmosphères. Si nécessaire, l'air doit être pompé à l'aide d'un compresseur ou d'une pompe de voiture. Si la station est utilisée exclusivement en période estivale, il est impératif de vidanger l'eau du système avant l'arrivée des gelées.


- Lors de l'installation, il est préférable d'utiliser des tuyaux avec une valeur supérieure à celle calculée. Cela compensera les divers virages, virages, ainsi que l'épaisseur de la fondation, si la station est installée dans la maison.
- Il est préférable de serrer les pièces lors de l'installation ou de la réparation avec une clé. Si cette opération est effectuée à la main, des fuites peuvent apparaître dans le futur.
- Lorsque la station de pompage est connectée, pour la réguler et déterminer le niveau de pression auquel elle s'éteint, il faut verser environ deux litres d'eau dans l'appareil récepteur. Après cela, la pompe est mise en service. Au moment où la station est éteinte, il est nécessaire d'enregistrer le niveau de pression de l'eau. Vous devez également connaître la valeur de la pression lorsque la station démarre automatiquement.


Comment connecter une station de pompage, voir la vidéo suivante.
Quelques précieux conseils
Les connexions filetées doivent être serrées avec une clé, et non à la main, pour assurer l'étanchéité nécessaire.Pour connecter les raccords, les dispositifs de protection et la station de pompage elle-même, il est préférable d'utiliser des tuyaux dont le diamètre est légèrement supérieur à celui calculé afin de compenser la charge accrue due aux coudes dans la conduite principale.
La ligne de recirculation protégera la pompe et augmentera la pression de l'eau dans le système. Un té est nécessaire pour installer la conduite de retour.
Pour protéger la pompe du ralenti, une conduite de recirculation peut être installée. Pour ce faire, des tés sont placés sur les tuyaux d'alimentation et d'aspiration et les tuyaux libres sont reliés par une ligne de retour.
Une vanne doit être placée dessus, ce qui vous permet de contrôler l'intensité du flux inverse. Un tel ajout améliorera la pression, mais réduira quelque peu les performances de l'appareil.
Un support peut être utilisé comme base pour la station de pompage, mais il doit être de niveau sur des coussinets amortisseurs afin que les vibrations soient minimales
La station de pompage est posée sur un socle parfaitement plat, équipé de plots amortisseurs. Cela réduira l'impact des vibrations et réduira également la quantité de bruit.
Environ tous les trois mois, il est nécessaire de vérifier :
- état des joints pour les fuites.
- l'état des filtres pour un nettoyage rapide.
- paramètres de relais pour leur correction;
- l'état du réservoir hydraulique pour déterminer l'emplacement des fuites.
Si le niveau de pression dans le HA n'atteint pas le niveau requis, il est facile de le pomper à l'aide d'un compresseur ou d'une pompe. Sur les grands récipients, un raccord mamelon est prévu à cet effet. Si du liquide s'écoule du trou, la membrane interne est déchirée et doit être remplacée.
Démarrage de la station de pompage
Afin de mettre la station de pompage en service, il est nécessaire de la remplir complètement ainsi que la canalisation d'alimentation en eau.A cet effet, il y a un trou de remplissage spécial dans le corps. Versez de l'eau dedans jusqu'à ce qu'il apparaisse. Nous tournons la fiche en place, ouvrons le robinet à la sortie des consommateurs et démarrons la station. Au début, l'eau va avec l'air - des bouchons d'air sortent, qui se sont formés lors du remplissage de la station de pompage. Lorsque l'eau coule dans un flux régulier sans air, votre système est entré en mode de fonctionnement, vous pouvez le faire fonctionner.
Si vous avez rempli d'eau et que la station ne démarre toujours pas - l'eau ne pompe pas ou arrive par à-coups - vous devez le comprendre. Il y a plusieurs raisons possibles :
- il n'y a pas de clapet anti-retour sur la canalisation d'aspiration descendue dans la source, ou elle ne fonctionne pas ;
- quelque part sur le tuyau, il y a une connexion qui fuit à travers laquelle l'air fuit;
- la résistance du pipeline est trop élevée - vous avez besoin d'un tuyau de plus grand diamètre ou avec des parois plus lisses (dans le cas d'un tuyau métallique);
- le miroir d'eau est trop bas, pas assez de puissance.
Pour éviter d'endommager l'équipement lui-même, vous pouvez le démarrer en abaissant le court tuyau d'alimentation dans une sorte de conteneur (réservoir d'eau). Si tout fonctionne, vérifiez la ligne, la profondeur d'aspiration et le clapet anti-retour.
Types de puits et sélection de pompes
Pour l'approvisionnement en eau autonome, deux types de puits sont utilisés: «pour le sable» et «pour la chaux». Dans le premier cas, le forage est effectué dans un aquifère de sable grossier, dans le second cas, dans des formations calcaires poreuses aquifères. Chaque localité a ses propres caractéristiques en termes d'occurrence de telles couches, mais le point commun est que la profondeur de forage dans le sable est beaucoup plus petite et se situe généralement entre 15 et 35 m.
1. Puits pour le calcaire. 2. Bien sur le sable. 3. Puits abyssin
Il est plus facile de forer des puits de sable, mais leur productivité est faible et, lors de longues interruptions de travail (par exemple, résidence saisonnière), il existe un risque d'envasement du filtre à galons.
Le "cœur" de tout système d'approvisionnement en eau autonome est la pompe. Le puits de sable et le puits de chaux fonctionnent avec des pompes submersibles. La pompe est sélectionnée en fonction de la profondeur du puits et des performances requises du système, ce qui affecte directement son prix.
De nombreux modèles différents de pompes de forage sont produits et parmi eux, il est nécessaire de choisir la meilleure option en termes de caractéristiques techniques et de dimensions.
Il existe un autre type de puits - le puits Abyssin. La différence est que le puits n'est pas foré, mais percé. La section inférieure «de travail» du tuyau a une pointe pointue, qui traverse littéralement le sol jusqu'à l'aquifère. De même que pour un puits à sable, ce tronçon de tuyau a une perforation fermée par un filtre à mailles de galon, et afin de maintenir le filtre en place pendant la perforation, le diamètre à l'extrémité est plus grand que celui du tuyau. Le tuyau lui-même remplit deux fonctions en même temps - le tubage et le transport de l'eau.
Initialement, le puits Abyssin a été conçu pour fonctionner avec une pompe à main. Désormais, pour l'approvisionnement en eau des maisons privées à partir du puits abyssin, on utilise des pompes de surface qui, compte tenu de la profondeur du caisson, peuvent fonctionner avec des puits jusqu'à 10 mètres (et même alors, à condition que le diamètre du tuyau ne soit pas plus de 1,5 pouces). Les avantages de ce type de puits incluent :
- facilité de fabrication (à condition qu'il n'y ait pas d'affleurement rocheux sur le site) ;
- la possibilité d'aménager la tête non pas dans le caisson, mais au sous-sol (sous la maison, garage, dépendance);
- pompes à bas prix.
Défauts:
- courte durée de vie;
- mauvaise performance;
- qualité de l'eau insatisfaisante dans les régions à faible écologie.
Types de pompes
Si les eaux souterraines ont une profondeur supérieure à huit mètres, il est préférable d'acheter des pompes submersibles plus efficaces conçues pour puiser l'eau des puits ou des puits.
Utilisation de systèmes de pompage
Pour l'approvisionnement en eau confortable d'une maison de campagne et d'un jardin, des stations de pompage sont utilisées. Cet équipement, en plus de la pompe, comprend un réservoir de stockage et un système de mise en marche automatique lors de l'utilisation de l'eau. Le réservoir d'eau est rempli au niveau requis, lorsque l'eau est consommée pour les besoins domestiques, l'automatisation allume la pompe et réapprovisionne l'eau dans le réservoir. Le coût des stations de pompage commence à partir de 5 000 roubles.
Classement des stations de pompage
Avant d'écrire la note, les avis des clients ont été analysés, des consultations ont eu lieu avec les vendeurs et les plombiers. La sélection a pris en compte de nombreuses caractéristiques, et les plus importantes étaient les suivantes :
- Le volume de l'accumulateur;
- Tête et profondeur d'aspiration maximales ;
- Du pouvoir;
- Consommation de courant;
- Niveau de bruit;
- Température requise et qualité de l'eau (pure ou avec des impuretés);
- débit;
- La présence d'un convertisseur de fréquence, d'un capteur de pression et d'un éjecteur ;
- Existe-t-il une protection intégrée contre les surcharges, le fonctionnement à sec, les fuites et la surchauffe ?
- Force et stabilité du corps;
- Dimensions et poids;
- Méthode de montage - verticale ou horizontale ;
- Durée de la période de garantie.
La facilité d'utilisation et le rapport qualité-prix étaient également des paramètres importants.L'examen est présenté par 7 dirigeants qui ont été sélectionnés à la suite d'une analyse approfondie de 20 candidats.
Montage et raccordement d'une station de pompage avec une pompe aspirante
Description du montage et composition de la première version de notre station de pompage, nous commencerons par stations de pompage d'aspiration. Cette solution a ses avantages qui, à y regarder de plus près, deviennent automatiquement des inconvénients.
Essayons de "creuser" ceux-ci et d'autres, après avoir examiné plus en détail toutes les caractéristiques d'une station avec une pompe d'aspiration. Le premier avantage significatif de ces stations de pompage est leur large distribution et la capacité de répondre à des "solutions prêtes à l'emploi".
Par "solutions prêtes à l'emploi", nous entendons des kits pré-assemblés constitués d'un récepteur, d'une pompe, d'une tuyauterie entre eux, d'un pressostat, d'un manomètre. De tels kits sont bons dans la mesure où vous n'aurez pas besoin de collecter une partie déjà certaine de la plomberie et des éléments pour assurer l'approvisionnement en eau. Le deuxième avantage d'une telle station est que la pompe et tous les éléments principaux du système sont au-dessus du sol, ce qui facilite grandement leur entretien et leur remplacement.
Les inconvénients d'une station de pompage avec pompe aspirante seront que les caractéristiques déjà incluses dans les stations de pompage pré-assemblées peuvent s'avérer inacceptables pour vous. Ainsi, par exemple, le récepteur sera petit ou la pompe ne fournira pas la hauteur d'aspiration appropriée. De plus, la pompe d'aspiration nécessitera une étanchéité élevée du tuyau d'aspiration, et un clapet anti-retour sera également nécessaire pour maintenir la colonne d'eau du puits à la pompe.
Sinon, vous devrez constamment ajouter de l'eau à la buse pour éviter l'accumulation d'air et maintenir la pompe en marche.
Le montage (schéma) d'une station de pompage avec une pompe aspirante s'effectue selon le principe suivant
Veuillez noter que lors du calcul de la longueur du tuyau d'aspiration, un mètre vertical équivaut à un mètre horizontal (1:4). C'est-à-dire que lors du calcul de la hauteur d'aspiration, lors du choix d'une pompe (station de pompage), il est nécessaire de prendre en compte la longueur du tuyau d'aspiration, à la fois verticalement et horizontalement. La caractéristique de la profondeur de remontée est donnée au conditionnel (8 mètres), pour votre station cet indicateur peut être différent. Voir les spécifications dans le passeport de la station de pompage ou de la pompe. Je tiens également à noter en plus la présence d'un robinet pour remplir d'eau le tuyau d'aspiration
Voir les spécifications dans le passeport de la station de pompage ou de la pompe. Je tiens également à noter en plus la présence d'un robinet pour remplir d'eau le tuyau d'aspiration
La caractéristique de la profondeur de remontée est donnée au conditionnel (8 mètres), pour votre station cet indicateur peut être différent. Voir les spécifications dans le passeport de la station de pompage ou de la pompe. Aussi, en complément, je tiens à signaler la présence d'un robinet pour remplir d'eau le tuyau d'aspiration.
Ce système n'est pas montré dans l'image ci-dessus, mais est montré dans la photo ci-dessous. (entonnoir jaune - tuyau - robinet sur un té)
Naturellement, toutes les connexions doivent garantir une étanchéité maximale et toutes les vannes d'arrêt et de contrôle du système d'alimentation en eau doivent être en bon état.










































