- Quelques problèmes avec le sèche-serviettes
- Causes de pannes et méthodes de dépannage des sèche-serviettes électriques
- 5 raisons pour lesquelles les sécheuses refroidissent
- La principale difficulté du dispositif de séchage
- Que faire
- Schémas typiques d'activation des sèche-serviettes
- Comment comprendre si l'appareil peut être réparé
- Si le sèche-serviettes relié à l'électricité ne fonctionne pas
- Effacer le blocage
- Vérifier l'électricité
- Diagnostic des éléments chauffants avec un multimètre:
- Remplacer le matériel
- Caractéristiques des travaux de réparation
- Que faire si le sèche-serviettes de la salle de bain ne fonctionne pas ?
- Raisons pour lesquelles le sèche-serviettes ne chauffe pas :
- Dépannage selon le type de sèche-serviettes
- Lequel des problèmes permanents peut être résolu de vos propres mains et que faire si un Américain coule
- Pourquoi le sèche-serviettes est-il froid ?
- Dépannage selon le type de sèche-serviettes
- Électrique
- Eau
- De l'eau chaude sort, mais le sèche-serviettes ne chauffe pas
Quelques problèmes avec le sèche-serviettes
Considérez les options dans lesquelles cet appareil ménager tombe en panne et cesse de fonctionner qualitativement:
- absence de système d'approvisionnement en eau chaude;
- après des travaux de réparation, l'appareil s'est obstrué par de la poussière et de la saleté;
- la formation de congestion aérienne;
- tuyaux obsolètes;
- connexion incorrecte ;
- l'eau ne circule pas dans le système;
- usure des joints.
Dans aucune des options ci-dessus, le sèche-serviettes ne chauffe pas, car, par exemple, dans le premier cas, si un système sans issue est installé, ce qui suppose une alimentation en eau chaude de haute qualité lorsque le robinet est ouvert, il est alors préférable d'installer un appareil électrique.
Pour éliminer les blocages procédez comme suit:
- fermez les vannes d'entrée et de sortie de l'appareil et retirez-le ;
- installer des prises ;
- à l'aide d'une brosse ou d'un fil doux, retirez la saleté et les obstructions de l'appareil et des tuyaux ;
- si du sel s'est formé sur les parois de l'appareil, tapotez dessus et enlevez la plaque;
- à l'aide d'un tuyau, rincez d'abord le tuyau d'alimentation, la section de retour et l'appareil lui-même ;
- pour cela, vous pouvez utiliser de l'acide chlorhydrique, qui est rempli avec l'appareil réglé avec les entraînements vers le haut. Après un certain temps, la solution est drainée et l'unité est lavée. L'acide aidera à adoucir les dépôts de sel dur;
- si cette option ne vous aide pas, remplacez l'appareil.
Si le sèche-serviettes de la salle de bain ne chauffe pas, l'une des raisons peut être la formation d'une poche d'air. Pour corriger le problème, purgez l'air. Il existe des modèles avec un robinet automatique ou manuel intégré, et si l'appareil ne dispose pas d'un tel équipement, lors de l'installation, il devient nécessaire d'installer une vanne Mayevsky, à travers laquelle l'air est libéré. Après cette opération, l'appareil commence à chauffer car l'eau circule normalement.
Si le pipeline est obsolète, il peut être obstrué, ce qui entraîne une réduction de la pression, ce qui empêche le bon fonctionnement des appareils de plomberie.Pour nettoyer, fermez le robinet et mettez un bouchon sur la vanne d'eau chaude. Après avoir été tordu, le robinet est ouvert et l'eau sale et les boues sortent par le drain. Mais si cela ne se produit pas, les conduites d'alimentation du sèche-serviettes sont contaminées. Toutes les sections horizontales sont nettoyées à l'aide d'une brosse ou d'un fil métallique. Après cette opération, installez l'appareil en place, ouvrez la vanne, fermez le bouchon et ouvrez la vanne sur la ligne de circulation.
Si le sèche-serviettes ne chauffe pas, il n'y a pas de circulation d'eau, alors ils se tournent vers les services appropriés pour obtenir de l'aide, qui dépannent.
Si l'appareil de plomberie est équipé d'un système rotatif, le joint peut s'user, qui est remplacé par un nouveau utilisant des éléments en fluoroplastique. Un tel appareil ne peut pas être surchargé et des crochets supplémentaires sont donc installés.
Les experts recommandent de choisir un appareil pour un appartement sans système rotatif, et lors de l'installation, ils installent une dérivation, puis pendant la réparation, vous n'aurez pas à éteindre la colonne montante centrale.
À l'entrée, des filtres sont montés pour prolonger la durée de vie de l'appareil de plomberie.
Le sèche-serviettes est un appareil indispensable et pratique pour la salle de bain. Par conséquent, il ne devrait y avoir aucun problème lors de son fonctionnement. Mais si l'échelle ne chauffe pas le porte-serviettes chauffant, vous pouvez alors résoudre le problème vous-même. Mais s'il n'y a pas d'expérience en la matière, des spécialistes sont appelés.
Causes de pannes et méthodes de dépannage des sèche-serviettes électriques
Les sèche-serviettes électriques (souvent appelés radiateurs design) ont une marge de sécurité suffisante, mais, comme toute autre technique, ils peuvent échouer en raison de l'épuisement des ressources, des défauts internes, de la surchauffe ou des surtensions du réseau.
Selon la conception, on distingue deux types de radiateurs électriques de conception - à remplissage solide et à liquide. Le transfert de chaleur dans le premier est assuré par le graphite et d'autres composés, tandis que le second fonctionne en chauffant de l'eau spécialement préparée, de l'antigel ou un mélange d'huiles minérales. Dans les radiateurs de conception à remplissage solide, un radiateur électrique traditionnel en spirale ou tubulaire et un film ou un câble chauffant peuvent être utilisés. Les «serviettes» liquides sont fabriquées à l'aide d'éléments chauffants traditionnels «secs» ou conventionnels.

L'appareil et le schéma de câblage du sèche-serviettes électrique
Afin de trouver la cause de la panne du sèche-serviettes électrique, vous aurez besoin d'un multimètre, d'un jeu de tournevis et d'une clé à molette. La recherche commence par la vérification de l'intégrité du circuit électrique, évoluant progressivement vers les éléments de puissance :
- vérifier la présence de tension secteur dans la prise ;
- "Faire sonner" le cordon d'alimentation avec un multimètre - sa résistance ne doit pas dépasser 1-2 ohms;
- lorsque le poste est raccordé au réseau, la tension aux bornes de son réchauffeur est mesurée. Si le multimètre indique la présence de 220 V, il s'agit d'une preuve indirecte de la défaillance de l'élément chauffant;
- en l'absence de tension d'alimentation aux bornes du réchauffeur, l'état de fonctionnement du groupe de contact ou du relais du thermostat est vérifié - la cause du dysfonctionnement peut être à la fois une brûlure des contacts et une mauvaise connexion électrique;
- si ce n'est pas un thermostat mécanique, mais un thermostat électronique qui est utilisé pour contrôler la température du sèche-serviettes, il est alors plus difficile de trouver la raison du manque de tension sur l'élément chauffant. Tout d'abord, vous devez vérifier le relais de sortie ou les semi-conducteurs de puissance - transistors puissants, thyristors ou triacs de l'étage de sortie. S'ils sont en bon état, les autres composants du circuit sont soumis à vérification. Si vous n'avez aucune expérience dans la réparation d'appareils électroniques, il est préférable de confier ce travail à un spécialiste.

Tout ce dont vous avez besoin pour diagnostiquer et réparer un sèche-serviettes électrique est un multimètre, une clé à molette et un jeu de tournevis.
Remplacer l'élément chauffant d'un porte-serviettes chauffant est facile. Si le type d'appareil est inconnu, avant de le démonter, retournez la bobine afin que le fluide de travail ne s'échappe pas. Puis, à l'aide d'une clé à molette, dévisser l'écrou sur sa collerette, démonter et remettre le réchauffeur. N'oubliez pas de vérifier, s'il y a une fuite de courant sur le boîtier du radiateur de conception. Pour ce faire, une sonde multimètre est connectée à la surface métallique du sèche-serviettes et l'autre est touchée à son tour avec les fils de l'élément chauffant - l'appareil doit présenter une résistance infiniment élevée.

L'épuisement de l'élément chauffant est la principale cause de panne des sèche-serviettes électriques.
Avant d'assembler l'appareil de chauffage, reconstituez le niveau du fluide de travail (s'il y a eu des fuites ou une partie de l'huile a fui pendant le fonctionnement), en laissant de la place pour la dilatation thermique. Après cela, l'intégrité des joints d'étanchéité est vérifiée et, si nécessaire, remplacée par de nouvelles. Ensuite, avec une force suffisante pour assurer l'étanchéité, serrez l'écrou de la bride et vérifiez les performances du réchauffeur dans différents modes.
5 raisons pour lesquelles les sécheuses refroidissent
Les sèche-serviettes ne chauffent pas la salle de bain pour les raisons suivantes :
- Coupez l'alimentation en eau chaude. La prochaine fois que vous l'allumerez, un bouchon d'air pourrait s'être formé.
- La pression de l'eau dans la colonne montante d'eau chaude a augmenté et dans le sèche-serviettes, elle a diminué. Dans cette position, il n'y a pas de circulation de liquide dans le séchoir lui-même, car l'eau ne peut pas s'en échapper.
- Installer un radiateur dans la salle de bain, de vos propres mains, sans connaître les bases de l'ingénierie thermique et de l'hydraulique.
- Le sèche-serviettes ne chauffe pas lorsqu'il est inséré dans le tuyau d'arrivée d'eau chaude avec un circuit ECS en cul-de-sac. Cela se produit souvent lorsque le propriétaire tente lui-même de connecter le sèche-linge sans connaître le système d'alimentation en eau chaude.
- Les déshumidificateurs électriques ne chauffent pas lorsqu'il n'y a pas d'alimentation électrique.
Comment éliminer les urgences et aider les experts.
La principale difficulté du dispositif de séchage
Ce problème peut souvent être rencontré par les résidents d'immeubles de grande hauteur lorsqu'un système de chauffage centralisé est activé à l'automne. À ce moment (lorsque les tuyaux sont remplis d'eau), de l'air peut apparaître dans les tuyaux. Des bouchons similaires apparaissent dans la plupart des cas dans les dernières parties du système de chauffage, qui est considéré comme un sèche-serviettes.
Dès qu'il y a de l'air dans les tuyaux, la circulation de haute qualité de l'eau chaude est interrompue, de sorte que le sèche-linge arrête de chauffer.
Un long sèche-serviettes ordinaire peut affecter considérablement vos habitudes et la bonne qualité d'aération du bain, car beaucoup d'humidité même en sept jours peut apparaître sur la décoration murale de la pièce.
Si vous installez l'appareil serviette de séchage ou déjà installé, vous devez être au courant de toutes ses méthodes et des problèmes éventuels de leur solution.
Que faire
Dans le cas d'un sèche-serviettes électrique, vérifiez le raccordement à la prise, si cela ne résout pas le problème, utilisez un té et branchez l'appareil sur une autre prise.
Avec un sèche-serviettes à eau, les problèmes suivants peuvent survenir :
- Le robinet de la colonne montante est fermé. L'ouverture du robinet résoudra le problème.
- Il n'y a pas de ligne de retour sur la colonne montante, ou elle est située avant le sèche-serviettes. Le problème ne peut être résolu qu'en connectant un appareil électrique.
- L'appareil est monté sur le tuyau du système de chauffage. Le porte-serviettes chauffant ne devient chaud que lorsque le chauffage est allumé.
Veuillez noter : les problèmes énumérés ci-dessus et moyens de les résoudre ne s'applique qu'aux sèche-serviettes neufs qui n'ont pas encore été utilisés.
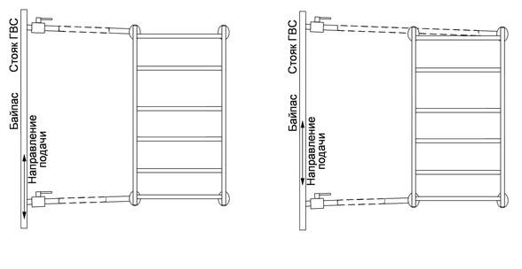
Schémas typiques d'activation des sèche-serviettes
Dans les maisons de l'ancien parc immobilier, une section de la colonne montante, courbée en forme de lettre "C" ou "M", servait à chauffer les salles de bain et les salles de bain. La simplicité d'un tel PS présente cependant un certain nombre d'avantages. Étant connecté en série au circuit ECS, l'appareil assure une température constante, exclut les interférences dans le fonctionnement du système par d'autres résidents et n'affecte pratiquement pas la résistance hydraulique de la ligne.

Un sèche-serviettes en forme de colonne montante, bien qu'il ait un aspect disgracieux, est en même temps l'appareil de chauffage le moins prétentieux.
Avec l'avènement des sèche-serviettes en inox plus esthétiques, il est devenu nécessaire de remplacer les anciens appareils en gênant le moins possible le fonctionnement du système de chauffage. Une situation idéale peut être envisagée lorsque le diamètre intérieur de la colonne montante est égal à la section transversale du contour du nouveau poste.Bien sûr, si le dispositif de chauffage est coupé à l'aide de raccords et d'entraînements du diamètre approprié.

Un remplacement complet du sèche-serviettes le plus simple par un appareil moderne en acier inoxydable n'est possible que si des raccords avec une zone de passage complète sont utilisés - il ne peut être question d'aucune installation de vannes à bille
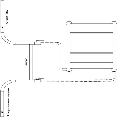
Si des robinets et des raccords sont utilisés pour connecter le sèche-serviettes, ou si le nouveau radiateur est composé de tuyaux d'un diamètre inférieur à celui de la colonne montante, un by-pass doit être utilisé. Étant, en fait, une solution de contournement pour le liquide de refroidissement, ce dispositif le plus simple permet :
- maintenir la circulation du fluide caloporteur à travers la colonne montante même si le poste est relié par des conduites de diamètre minimum ;
- réguler la température de la sous-station ou effectuer son démantèlement sans affecter le système de chauffage général de la maison ou l'alimentation en eau chaude (l'installation de vannes d'arrêt ou d'un dispositif thermostatique est requise);
-
passant par lui-même le flux principal du liquide de refroidissement, le by-pass assure la constance de la température du liquide de refroidissement pour tous les appartements de la maison.
Selon le schéma électrique, un by-pass droit (1), conique (2) et déporté (3) est utilisé
Au fil du temps, les promoteurs ont abandonné l'installation des sous-stations les plus simples, laissant aux locataires le droit de choisir et d'installer un appareil de chauffage. Pour ce faire, ils ont commencé à tirer des conclusions sous le sèche-serviettes sur la colonne montante, tout en assurant un flux normal de liquide de refroidissement via une dérivation directe ou décalée. Je dois dire qu'il n'y a absolument aucune raison de s'inquiéter des performances de tels systèmes - l'eau est garantie de circuler à travers le réchauffeur grâce au principe de la "pompe à gravité".Il est basé sur le fait que le liquide de refroidissement descend et est remplacé par des masses d'eau plus chaude venant d'en haut.

Le thermogramme d'un sèche-serviettes fonctionnant en circulation naturelle indique le haut rendement thermique de la "pompe à gravité"
Pour la même raison, l'installation d'une sous-station est considérée comme la plus efficace, dans laquelle le liquide de refroidissement est fourni à la partie supérieure du dispositif de chauffage et prélevé par le bas. Cette condition peut être assurée à la fois avec des connexions latérales et diagonales.
L'opinion selon laquelle cette dernière méthode présente un avantage en termes de débit et d'efficacité thermique est fortement exagérée. Cependant, l'un des meilleurs schémas est considéré comme celui dans lequel le liquide de refroidissement est fourni au coin supérieur proche et la conduite de retour est connectée au coin inférieur éloigné.

Un raccordement latéral droit ou en diagonale ne causera pas de surprise si le raccordement est réalisé en tenant compte des pentes nécessaires
Dans ce cas, l'opérabilité du PS ne dépend pas de la vitesse et de la direction de l'alimentation en liquide de refroidissement, et le risque d'aération de l'appareil tend vers zéro. La seule condition est que dans ce cas, des pentes d'au moins 3 mm par mètre linéaire soient respectées. m autoroute.
Avec une connexion latérale, peu importe si le PS se trouve entre les points d'alimentation et de retour ou dépasse au-delà de ceux-ci. La seule chose à considérer est une augmentation significative du risque d'aérer l'appareil si sa partie supérieure est au-dessus de la branche le long de laquelle le sèche-serviettes est relié à la colonne montante
Le montage d'un sèche-serviettes au-dessus du point de raccordement dans la conduite principale augmente le risque de poches d'air - dans ce cas, vous devrez installer un évent (robinet Maevsky)
La connexion inférieure de l'appareil de chauffage est considérée comme moins efficace et peut entraîner son fonctionnement instable.

Le fonctionnement des sèche-serviettes avec raccordement inférieur dépend fortement de la pression et de la direction de l'alimentation en liquide de refroidissement, c'est pourquoi plusieurs schémas de raccordement sont utilisés - avec une dérivation directe, décalée ou rétrécie
Ce type d'installation est recommandé uniquement pour à l'alimentation supérieure, ainsi que dans les systèmes à circulation forcée du liquide de refroidissement.
Comment comprendre si l'appareil peut être réparé
Que faire, si ne fonctionne pas chauffe-serviettes dans la salle de bain ? Après avoir déterminé la source du problème, vous devrez réparer l'appareil dès que possible. Mais le faire vous-même n'est recommandé que dans les situations où vous avez les connaissances et les compétences appropriées.
Et s'il n'y en a pas, vous devrez alors contacter d'urgence un spécialiste qui rétablira l'appareil à sa capacité de travail, en éliminant le dysfonctionnement.
Dans d'autres cas, les conséquences peuvent être plus que désastreuses. Des percées sont possibles, grâce auxquelles votre appartement sera rempli d'eau chaude, ainsi que l'eau coulera du plafond voisins du dessous.
Si le sèche-serviettes relié à l'électricité ne fonctionne pas
Les radiateurs électriques sont considérés comme assez fiables, mais ils peuvent aussi tomber en panne.
- Élément chauffant grillé.
- Dysfonctionnement du thermostat.
- Problèmes de câblage.
- obstruction.
Effacer le blocage
Les blocages n'apparaissent que dans les appareils combinés - ils fonctionnent à l'eau chaude et à l'électricité. Pour vérifier s'il y a une prise à l'intérieur, allumez l'appareil et après quelques minutes, vérifiez sa température à côté de l'élément chauffant et dans une autre section de la bobine.Si le réchauffeur est chaud et que le reste du tuyau est froid, il peut y avoir du tartre dedans. Retirez l'équipement afin que le liquide ne fuie pas et nettoyez avec un câble de plomberie.

Instagram @lis_nadya_lis
Instagram @lis_nadya_lis
Vérifier l'électricité
Si le radiateur reste froid, le problème se situe dans la partie électrique. Vous pouvez rechercher un dysfonctionnement de la manière suivante :
- Examinez la prise. S'il n'y a aucun dommage visuel, vérifiez-le avec un tournevis indicateur. Remplacer la douille si nécessaire.
- Certains appareils ont un thermostat. Faites-le tourner. Un clic faible indique un état de fonctionnement.
- Réglez le multimètre pour fixer le niveau de résistance CC et vérifiez la résistance de l'élément chauffant et des fils. Les indicateurs du premier doivent être inférieurs à 1 ohm, le second doit approcher l'infini. Si d'autres chiffres sont affichés, le câblage est modifié.
Diagnostic des éléments chauffants avec un multimètre:
- Démontez l'élément chauffant et débranchez soigneusement les fils qui le relient au système d'alimentation électrique. Le manuel d'utilisation vous y aidera.
- Réglez l'échelle de mesure sur Ω et entrez la valeur maximale.
- Faites sonner séparément tous les fils et l'élément chauffant lui-même.
- Si l'indicateur tend vers zéro, il y a un court-circuit dans le système.
Remplacer le matériel
Le remplacement du radiateur est facile. Vous aurez besoin d'un tournevis et de clés. L'élément chauffant sec est dévissé et un nouveau est installé. S'il entre en contact avec le liquide de refroidissement, la bobine est dévissée, le liquide est versé dans un récipient approprié, le réchauffeur est changé et le liquide de refroidissement est reversé.
Dans l'article, nous avons expliqué pourquoi le sèche-serviettes de la salle de bain ne chauffe pas et que faire dans chacun des cas.Pour réparer l'équipement connecté à l'ECS, procédez dans l'ordre que nous avons décrit.
Caractéristiques des travaux de réparation
Pourquoi le sèche-serviettes de la salle de bain ne fonctionne-t-il pas ? Après avoir décidé de réparer vous-même la panne, vous devrez préparer les outils nécessaires et commencer à réparer l'appareil, dont la progression dépendra du type de panne.
- Sèche-serviette électrique bouché. S'il n'y a pas de circulation dans le sèche-serviettes, dans une telle situation il faudra réaliser un sèche-serviettes froid dans la salle de bain. Il est déconnecté du réseau électrique, puis retiré du mur. Ensuite, il est nécessaire de dévisser la valve et de nettoyer soigneusement l'appareil à l'aide d'un fil métallique, avec un nettoyage supplémentaire de la zone du tuyau au début. À la fin de cette procédure, vous pouvez installer le sèche-serviettes dans sa position d'origine pour vérifier ses performances. Si tout va bien, vous pouvez utiliser l'appareil dans toute sa mesure et profiter de la température optimale dans la salle de bain.
- Conduites d'eau bouchées. Si le sèche-serviettes est froid, bien qu'il y ait de l'eau chaude, dans ce cas, il faudra également retirer l'appareil et vider l'eau restante de celui-ci. Et ensuite, vous devriez faire le nettoyage, comme nous l'avons déjà discuté ci-dessus dans le texte.
- L'apparition d'une poche d'air. Dans une telle situation, il sera nécessaire de libérer l'air de l'appareil à l'aide de la grue Mayevsky. À ces fins, il est nécessaire de retrouver la même grue en démontant partiellement la structure. Pour ce faire, prenez un tournevis et dévissez légèrement le boulon pour que l'air commence à s'échapper. Une fois ce processus terminé, l'eau commencera à couler du robinet, ce qui indiquera que le bouchon d'air a été éliminé avec succès.Au stade final, il vous suffit de remettre tous les éléments structurels à leur place d'origine et de vérifier leur fonctionnement.
Que faire si le sèche-serviettes de la salle de bain ne fonctionne pas ?
Avez-vous fait des réparations dans la salle de bain et installé un nouveau sèche-serviettes, après un certain temps, il a cessé de chauffer ? Ou vous utilisez le sèche-linge depuis longtemps et tout d'un coup il a cessé de chauffer ? Afin de résoudre rapidement le problème et d'éviter l'apparition d'une odeur désagréable d'humidité et le développement de champignons, vous devez en rechercher la cause.
Il convient de rappeler que les systèmes d'alimentation en eau chaude à domicile peuvent être de deux types:
- des impasses.
- Stationnaire.
L'inconvénient du premier est que l'eau chaude est fournie au consommateur directement à partir du réseau. De plus, dès que le robinet est fermé, l'eau dans les tuyaux commence à refroidir. Pour obtenir de l'eau chaude, vous devez vidanger l'eau refroidie de la colonne montante. Les systèmes de circulation d'eau chaude sanitaire sont exempts de cet inconvénient car l'eau chaude circule dans la colonne montante d'alimentation et sort par celle de retour (circulation). Ceci élimine le problème du refroidissement et de la stagnation du liquide.
C'est pourquoi l'installation de sèche-serviettes est effectuée sur la colonne montante de retour. Si la maison ne dispose pas d'un système d'alimentation en eau chaude centralisé, vous pouvez installer le séchage dans le système de chauffage selon un principe similaire.
Raisons pour lesquelles le sèche-serviettes ne chauffe pas :
- il n'y a pas d'eau chaude dans le système. S'il s'agit de systèmes sans issue, dans lesquels l'eau chaude n'est fournie que lorsque le robinet est ouvert, il est préférable d'utiliser les options de séchage électrique ;
- la formation de congestions et de blocages.Si le sèche-serviettes est installé depuis longtemps et que, pour une raison quelconque, il n'a pas chauffé récemment, il doit probablement être nettoyé. Pour cela, fermez le robinet et retirez l'équipement. Il est conseillé de mettre des bouchons sur les tuyaux. Ensuite, à l'aide d'un fil souple muni d'une collerette, passez dans les tuyaux. Vous pouvez enlever les dépôts de sel des parois de l'appareil avec de petits robinets. Au stade final, le sèche-linge doit être soigneusement rincé sous la pression de l'eau. Vous pouvez également rincer les sanitaires avec une solution d'acide chlorhydrique. Pour ce faire, mettez la terre à l'envers et remplissez-la d'une solution. Au bout d'un moment, vidangez la solution et rincez l'équipement. L'acide chlorhydrique ramollit les dépôts durs. Si le nettoyage n'a pas aidé, il reste une chose - le remplacement;
- erreurs d'installation. Si l'installation de l'équipement est récente, mais que l'appareil ne fonctionne pas, la raison peut être que le sèche-serviettes est éloigné de la colonne montante dans la salle de bain. En conséquence, il y a trop de résistance à l'intérieur de l'appareil et l'eau chaude ne peut tout simplement pas y arriver.
- vieux tuyaux. La canalisation du système ECS se bouche avec le temps. Cela peut entraîner une pression insuffisante, et donc le fonctionnement insatisfaisant des appareils de plomberie. Pour nettoyer les canalisations, fermez le robinet et placez un bouchon sur la vidange de la ligne ECS. Visser le bouchon et ouvrir la vanne sur la conduite de circulation. La boue et l'eau doivent passer par le purgeur. Si l'eau chaude ne coule pas dans le drain, cela indique une alimentation bouchée ou le sèche-serviettes lui-même. En règle générale, il est difficile de nettoyer la partie verticale des conduites d'alimentation. La section horizontale est nettoyée de la manière décrite ci-dessus (à l'aide d'une tige métallique et d'une collerette).Après avoir nettoyé les entrées et vous être assuré que le sèche-linge n'est pas bouché, installez l'équipement en place, ouvrez la vanne sur le tuyau d'eau chaude, fermez le bouchon sur le drain et ouvrez la vanne sur la ligne de circulation ;
- sas. Le sèche-serviettes peut ne pas chauffer si un bouchon d'air s'est formé dans le système. Vous pouvez purger l'air avec la grue Mayevsky. Il existe des modèles avec une option de purge d'air automatique ou manuelle. Une fois l'air retiré du système, l'eau commencera à circuler librement et l'équipement atteindra rapidement la température souhaitée.
- Il n'y a pas de circulation d'eau chaude dans le système ECS. Vous pouvez résoudre ce problème en contactant l'autorité compétente.
- l'appareil installé dans le système de chauffage ne fonctionne pas. Dans une telle situation, le sèche-serviettes ne chauffe pas la majeure partie de l'année jusqu'au début de la saison de chauffage - que faire ? Ce problème peut être résolu en transférant l'appareil sur le système ECS ou en le remplaçant par un sèche-linge électrique.
Dépannage selon le type de sèche-serviettes
Dans un sèche-serviettes électrique, vous devez vérifier l'état de fonctionnement de la ligne électrique
Si un sèche-serviettes électrique se refroidit soudainement, vous devez établir un plan d'action, préparer les outils et commencer à réparer.
Pour le travail, vous aurez besoin de:
- clé;
- multimètre ;
- pinces;
- Tournevis;
- ruban FUM ;
- remplissage.
Suite d'actions :
- Vérifiez l'état de la ligne électrique. Mesurez la tension à la prise, les lectures du cordon d'alimentation, les performances du relais du thermostat.
- S'il existe une unité de commande électronique, examinez-la en atelier ou à l'aide d'un programme informatique spécial.
- Dénudez les contacts, connectez la ligne, allumez l'appareil. S'il n'a pas commencé à s'échauffer, il faut en chercher la raison en lui.
- Desserrez les fixations murales, dévissez les écrous latéraux, puis retirez le radiateur en le retournant afin que le liquide de refroidissement ne s'en écoule pas.
- Remplacez l'élément, assurez-vous qu'il n'y a pas de fuite de courant vers le boîtier, faites l'appoint de fluide de travail si nécessaire.
- Vérifiez les performances de la structure assemblée.
- Mettez l'appareil en place, serrez bien toutes les fixations.
L'appareil réparé doit se réchauffer conformément aux indicateurs indiqués dans les instructions d'utilisation.
Dans un ouvrage d'eau, il suffit souvent de prélever de l'air
Il est nécessaire de préparer de tels appareils:
- clé;
- pinces de plomberie;
- nouveaux joints;
- récipient pour recueillir l'eau;
- câble avec une brosse;
- ruban FUM ;
- serpillières.
Dans votre salle de bain, vous pouvez faire ce qui suit :
- Vérifier l'alimentation en eau chaude. Pour ce faire, vous devez entrer dans le sous-sol et regarder la position de la vanne sur la colonne montante. Parfois, pour économiser de l'argent, les personnes à faible revenu fixent arbitrairement le chauffage.
- Purger l'air. Cela se fait à l'aide d'une grue Mayevsky ou en desserrant l'écrou-raccord. Si cela ne vous aide pas, vous devez demander aux voisins d'en haut de le faire, dans l'appartement duquel la ligne est bouclée.
Un exemple de demande d'arrêt de la colonne montante
Si vous ne pouvez pas résoudre le problème par vous-même, vous devez agir officiellement. Vous devez écrire une demande à la société de gestion pour désactiver la colonne montante pour travaux de réparation. La meilleure solution est de pressuriser le circuit avec un équipement spécial.Cette procédure vous permet de vous débarrasser des blocages et des dépôts dans les tuyaux, car elle est réalisée en les rinçant avec des produits chimiques sous pression. Comme cela n'est pas toujours possible, il est souvent nécessaire travailler de ses mains.
Les options sont :
- Démonter la structure et effectuer sa connexion correcte conformément aux recommandations du fabricant.
- Nettoyez la canalisation et le sèche-serviettes avec un câble. Il est conseillé de pré-remplir le système avec des produits chimiques de qualité corrosive.
- Remplacez les raccords par des modèles avec un grand jeu interne afin de ne pas gêner l'écoulement du fluide.
Lequel des problèmes permanents peut être résolu de vos propres mains et que faire si un Américain coule
En cas de corrosion du métal, de coup de bélier, d'installation incorrecte de la batterie ou de défaut d'usine, vous devez contacter le maître. Mais la plupart des problèmes d'écoulement d'eau à la jonction du tuyau principal et du sèche-serviettes sont résolus indépendamment, après avoir coupé l'alimentation en eau. Par exemple:

- S'il y a une petite fuite aux jonctions sous l'écrou-raccord, la raison peut être l'affaiblissement de l'américain - vous devez serrer soigneusement (mais pas trop serrer, afin de ne pas endommager le filetage) l'écrou avec une clé appropriée.
- Si la fuite n'a pas pu être éliminée, dévisser l'américain et vérifier le joint en caoutchouc. Si nécessaire, remplacez la pièce usée par une neuve.
- S'il n'y a pas de joint ou de morceau de caoutchouc à portée de main, à partir duquel une partie appropriée peut être découpée, enroulez un morceau de toile de lin autour du fil, appliquez du mastic sur le dessus et laissez sécher. Visser ensuite l'écrou de serrage en place.
- Si la cause de la fuite d'eau était l'usure de l'acier (au niveau des joints de la soudure du sèche-serviettes ou dans le tuyau lui-même), une solution temporaire à ce problème serait une « pince » faite d'un morceau de métal approprié. Après avoir installé la "pince", elle doit être soudée.
Important! Avant de commencer les travaux, vous devez avertir les voisins d'en bas des situations imprévues possibles (si vous ne parvenez pas à réparer la fuite de vos propres mains, vous pouvez casser le filetage de l'écrou ou endommager le tuyau) et couper l'alimentation en eau dans le appartement
Pourquoi le sèche-serviettes est-il froid ?
Il y a un sèche-serviettes dans chaque maison. Cette pièce empêche l'apparition de moisissures, de champignons et de condensation dans la salle de bain et sert également de sèche-serviettes et autres choses. Mais il arrive parfois que le sèche-serviettes ne chauffe pas ou même devienne froid.
Et il y a plusieurs raisons à cela, dont nous discuterons ci-dessous. Pourquoi le sèche-serviettes est-il froid ? Comme vous le savez, il existe deux types de modèles - électriques et hydrauliques. Et si le manque de chaleur dans le premier cas peut être dû à un manque d'alimentation ou à une panne d'équipement, alors dans le second cas tout est beaucoup plus intéressant.
Le porte-serviettes chauffant ne fonctionne pas après que l'eau chaude ait été coupée assez souvent. Elle n'y arrive que lorsque le robinet est ouvert. Dans de telles situations, il est peu probable que la panne soit corrigée et la meilleure option serait de remplacer l'appareil à eau par un modèle électrique.
Que faire si le sèche-serviettes de la salle de bain ne fonctionne pas ? Après avoir déterminé la source du problème, vous devrez réparer l'appareil dès que possible. Mais le faire vous-même n'est recommandé que dans les situations où vous avez les connaissances et les compétences appropriées.
Et s'il n'y en a pas, vous devrez alors contacter d'urgence un spécialiste qui rétablira l'appareil à sa capacité de travail, en éliminant le dysfonctionnement. Les raisons d'un porte-serviettes chauffant à froid dans la salle de bain peuvent être différentes. Parfois, les appareils cessent de dégager de la chaleur en raison d'une mauvaise connexion à une ligne commune. Le plus souvent, cela se produit lors de la connexion à d'anciennes communications thermiques, où tout le monde change le principe de connexion à la colonne montante, guidé par la raison "C'est tellement pratique pour moi".
Dans de tels cas, vous devrez contacter le Bureau du logement, car il est peu probable que vous puissiez tout réparer vous-même.
L'acide ramollit les sédiments restants et, après vidange, il sera facile de les éliminer.
Dépannage selon le type de sèche-serviettes
Les séchoirs de salle de bain sont disponibles en différents types. Ils diffèrent par leur taille et leur forme, ainsi que par leur conception. Ils peuvent être électrique ou eau. Les dysfonctionnements dans leurs performances peuvent être différents, par conséquent, la réparation des sèche-serviettes électriques ne différera pas de manière significative de la réparation des autres types de structures.
Électrique
La réparation des sèche-serviettes électriques est considérée comme un processus simple si vous le comprenez bien. Les structures contiennent un élément chauffant qui est connecté directement au système d'alimentation électrique de toute la maison ou de l'appartement
Dans un premier temps, il est important de déterminer la cause de la panne, pour laquelle certains outils sont utilisés :
- un testeur représenté par un dispositif de mesure ;
- tournevis indicateur spécial.

A l'aide de ces éléments, le circuit d'alimentation électrique est contrôlé. Pour cela, un indicateur permet de vérifier la phase de l'élément chauffant.Même s'il y a tension de phase, ce n'est pas toujours une raison pour dire que l'alimentation est correcte. Le fait est qu'il y a souvent une rupture dans le conducteur neutre. C'est lui qui peut causer un travail de mauvaise qualité du porte-serviettes chauffant, de sorte que l'échelle peut chauffer, mais pas trop bien, de sorte qu'elle ne répond pas à son objectif principal.
Si des problèmes de tension sont détectés, alors le rebranchement est effectué avec une étude préalable de la notice
Si tous les travaux sont effectués par vous-même, il est important d'agir avec prudence et de prendre également en compte les exigences de sécurité, car vous devez effectuer des actions avec un appareil électrique.

Eau
Le porte-serviettes chauffant à eau froide le plus courant, vous devez donc comprendre la cause de la panne, après quoi elle est efficacement éliminée
Il est généralement assez difficile de déterminer la cause d'une panne, car il est important de comprendre le dispositif de cette conception.
Il peut s'agir d'un système sans issue ou en boucle. Le premier est constitué d'un seul tuyau et n'est considéré comme efficace que pour les petites structures ou diverses installations industrielles. L'eau arrive directement aux gens directement, donc si le robinet est souvent bouché, l'eau deviendra froide. Pour obtenir de l'eau chaude, il faut la vider un peu.
Un système en boucle, autrement appelé système de circulation, ne présente pas cet inconvénient majeur. Il est installé dans divers immeubles d'habitation et autres grands bâtiments. Par conséquent, les appartements disposent à la fois d'un tuyau à travers lequel l'eau chaude circule et d'une conduite de retour pour le processus de circulation du liquide de refroidissement. L'eau se déplace en cercle.C'est dans ce système que l'installation d'un sèche-serviettes est le plus souvent réalisée, et il est installé dans les contremarches.
Si le sèche-serviettes ne fonctionne pas, alors il est important de comprendre le schéma de connexion, qui peut être :
- direct, lorsque le sèche-serviettes agit comme un prolongement direct de l'alimentation en eau ;
- avec un by-pass, et ici vous devez dépenser des fonds importants pour l'achat de composants, et l'eau entre dans le processus de sa circulation, mais l'appareil n'agit pas comme une continuation du système.


Chaque cause de panne a ses propres caractéristiques, par conséquent, la réparation est effectuée avec des actions spécifiques :
- blocages - ils se produisent lors du processus de circulation de l'eau à travers le porte-serviettes chauffant. L'eau est généralement de mauvaise qualité, et elle contient également beaucoup d'impuretés qui entraînent des blocages. Pour éliminer cette situation, il est nécessaire de retirer l'appareil, après quoi il est lavé, et il est également souhaitable de nettoyer les tuyaux du système lui-même. Pour ce faire, vous pouvez appliquer des forces mécaniques ou utiliser des produits chimiques spéciaux pour éliminer les blocages ;
- schéma de connexion incorrect - souvent les gens préfèrent installer eux-mêmes cet appareil de plomberie, mais ils n'ont pas les connaissances, l'expérience et les compétences nécessaires, par conséquent, une installation incorrecte est effectuée. Le plus souvent, la structure est montée à une distance considérable de la colonne montante. Cela conduit à l'apparition d'une résistance à l'eau importante, de sorte qu'elle n'entre tout simplement pas dans l'appareil. Pour éliminer cette situation, il est nécessaire de rapprocher l'appareil de la colonne montante et il est également permis d'installer une pompe à pression spéciale dans le système. C'est lui qui contribue à créer la pression nécessaire ;
- il n'y a pas de circulation d'eau - cette raison est considérée comme la plus difficile et il est impossible de l'éliminer sans un changement complet du système.
S'il y a cette dernière raison, alors pour la corriger, vous devrez obtenir un permis de travail auprès de la société de gestion.


De l'eau chaude sort, mais le sèche-serviettes ne chauffe pas
Pourquoi le sèche-serviettes ne chauffe-t-il pas ? La raison dans la plupart des cas est la présence d'embouteillages et de blocages. La plupart des consommateurs ont installé des sèche-serviettes depuis longtemps et, par conséquent, il est peu probable qu'ils se rendent compte que cet appareil doit être nettoyé régulièrement.
Pourquoi un sèche-serviettes froid dans la salle de bain ? En cas de dysfonctionnement, il y aura peu de saignement. Vous devrez fermer le robinet d'arrivée d'eau, démonter l'appareil, le nettoyer avec un fil muni d'une brosse au bout, puis rincer le système.
L'acide ramollit les sédiments restants et, après vidange, il sera facile de les éliminer.
Après avoir effectué les procédures indiquées, le porte-serviettes chauffant est installé et connecté au système, puis le robinet d'alimentation en eau s'ouvre et l'appareil doit commencer à se réchauffer.











































