- Comment fabriquer soi-même un poêle en fonte à partir d'un ancien bain?
- Fabrication
- Outils et matériaux
- Entraînement
- Fabrication de foyer
- Comment faire une pierre
- Assemblage d'un réservoir pour l'eau de chauffage
- Assemblage de la structure
- Travaux préparatoires : choix du site d'installation et pose des fondations
- Fondation pour le four
- Types d'ouvrages
- ouvert
- Fermé (revêtu de brique ou de pierre)
- Combiné
- La séquence de fabrication d'un poêle pour un bain
- Poêles Potbelly - conceptions éprouvées et simples
- Poêles à ventre à partir d'un cylindre, d'un baril ou d'un tuyau
- vertical
- Horizontal
- De deux barils
- Finition
- Pourquoi construire des fours à partir d'un bain
- Matériaux et outils pour le travail
- Calcul des paramètres de base (avec dessins et dimensions)
- Tuyau
- Filtrer
- literie
- Cheminée
- Galerie photo : schémas d'un poêle à ventre pour un garage
Comment fabriquer soi-même un poêle en fonte à partir d'un ancien bain?
Une fois les travaux préparatoires terminés, livrez le bain de coupe sur le site d'installation et vous pourrez procéder à la construction de la structure prévue.
Effectuez la fabrication à l'aide de cette technologie :
À l'endroit où le poêle fabriqué à partir d'un bain en fonte sera installé de vos propres mains, équipez la fondation.
Installez la partie inférieure du bain sur une fondation sèche.Si vous voulez qu'il soit plus haut, soulevez-le avec des supports et fixez-le à la solution concrète. Pendant que la base durcit et sèche, commencez à fabriquer d'autres pièces.
Vous pouvez faire le four en deux variantes, puis chacun décide par lui-même à quoi s'arrêter. Dans le premier cas, sa façade est entièrement constituée de parois métalliques, dans le second cas, le ventilateur et le foyer sont fermés par un mur de briques, où sont encastrées des portes métalliques ou en fonte.
Sur les parois du demi-cylindre inférieur, fixez les supports pour le montage de la grille. Il est nécessaire de séparer le ventilateur et le foyer, il est donc préférable de le soulever légèrement au-dessus du fond du bain de 15 cm.Fixez les coins métalliques aux parois marquées du produit, posez la grille dessus.
Coupez une feuille de métal pour recouvrir le fond de la chambre de combustion
Ensuite, en fonte, découpez un trou pour le tuyau de cheminée le long du contour prévu du cercle, d'abord de petits trous, puis combinez-les soigneusement avec une meuleuse, amenez l'ouverture résultante avec une lime à la configuration requise.
Lubrifiez la partie du four avec un mastic résistant au feu, recouvrez-la d'une tôle avec une cheminée intégrée. Au-dessus de la feuille, installez la deuxième partie de la baignoire avec un trou pour le tuyau. Il est également traité avec du mastic avant l'installation.
En conséquence, vous placerez la partie supérieure sur le tuyau, augmenterez la cheminée à la hauteur souhaitée.
Vissez les deux parties de la cuve et la tôle située entre elles avec des boulons de 10 mm. Tout d'abord, percez des trous dans les côtés de la baignoire par incréments de 15 à 20 cm, puis fixez tous les éléments à travers eux en une seule structure.
Séparez le ventilateur et la chambre de combustion avec une grille.Posez la grille sur les coins préparés sur les murs.
Procéder aux travaux de maçonnerie. Les murs seront situés sur trois côtés de la future structure, c'est-à-dire derrière et sur les côtés, ou sur tout le périmètre des chambres. Tout d'abord, les lignes de pose sont disposées le long de la fondation, puis les murs sont sortis.
Si vous décidez de fermer la chambre de combustion par l'avant et de la souffler avec un mur de briques, installez la porte du ventilateur dans le mur pas plus bas que le niveau du fond de la baignoire et la porte de la fournaise un peu plus haut que la grille. Pliez les murs au niveau de la chambre de cuisson, élargissez-les vers l'intérieur afin que la brique s'adapte parfaitement à l'extérieur de la structure.
Il est également traité avec du mastic avant l'installation. En conséquence, vous placerez la partie supérieure sur le tuyau, augmenterez la cheminée à la hauteur souhaitée.
Vissez les deux parties de la cuve et la tôle située entre elles avec des boulons de 10 mm. Tout d'abord, percez des trous dans les côtés de la baignoire par incréments de 15 à 20 cm, puis fixez tous les éléments à travers eux en une seule structure.
Séparez le ventilateur et la chambre de combustion avec une grille. Posez la grille sur les coins préparés sur les murs.
Procéder aux travaux de maçonnerie. Les murs seront situés sur trois côtés de la future structure, c'est-à-dire derrière et sur les côtés, ou sur tout le périmètre des chambres. Tout d'abord, les lignes de pose sont disposées le long de la fondation, puis les murs sont sortis.
Si vous décidez de fermer la chambre de combustion par l'avant et de la souffler avec un mur de briques, installez la porte du ventilateur dans le mur pas plus bas que le niveau du fond de la baignoire et la porte de la fournaise un peu plus haut que la grille. Pliez les murs au niveau de la chambre de cuisson, élargissez-les vers l'intérieur afin que la brique s'adapte parfaitement à l'extérieur de la structure.
- Dès que toute la partie inférieure est habillée de maçonnerie, procéder à l'isolation de l'enceinte de cuisson. Pour créer un manteau de fourrure, il est préférable d'utiliser une solution d'argile à faible conductivité thermique. Préparez le mélange, ajoutez-y du sable, après séchage, ajoutez-y de la chaux. Laissez-le infuser.
- Recouvrez le compartiment de cuisson d'un treillis métallique, fixez-le à la maçonnerie sur les côtés et par l'arrière. Au-dessus, appliquez une solution en deux couches, de sorte que l'épaisseur de la couche isolante soit de 5 à 7 cm.
- Il est maintenant temps de s'occuper de l'aspect esthétique du poêle, car il doit non seulement remplir ses fonctions principales, mais également décorer votre site. Vous pouvez le recouvrir de carreaux de céramique en forme de mosaïque, mais pour cela, vous devrez d'abord le casser en petits morceaux. La pose est réalisée à l'aide d'une composition spéciale résistante à la chaleur.
Fabrication
La fabrication d'équipements faits maison commence par l'élaboration d'un dessin d'un four pour un bain de métal. Il faut y indiquer les composants, les dimensions principales. Le processus de fabrication comprend plusieurs étapes principales.
Outils et matériaux
Après avoir dessiné le dessin, vous pouvez vous rendre à la quincaillerie pour les matériaux, les outils:
- meuleuse à disques pour le métal;
- machine à souder avec électrodes ;
- un ensemble d'outils de mesure;
- feuilles de métal;
- coins métalliques;
- portes pour la chambre de combustion, ventilateur;
- accessoires pour la fabrication d'une grille;
- tuyaux de cheminée.
De plus, vous aurez besoin d'un réservoir d'eau en métal, qui doit avoir une vanne de vidange, un trou d'alimentation en eau avec un bouchon.
Entraînement
Avant de procéder à l'assemblage d'équipements de four faits maison, il est nécessaire de couper les tôles en leurs composants de taille. Après cela, il est souhaitable d'effectuer une trempe de l'acier. Cela nécessite plusieurs étapes :
- Allumez les pièces métalliques.
- Laissez le métal refroidir tout seul.
Lorsque la trempe de l'acier est terminée, vous devez vérifier les dimensions des pièces. Ils ne devraient pas beaucoup changer.
Fabrication de foyer
Le foyer peut être fabriqué à partir d'un tuyau métallique de grand diamètre ou à partir de feuilles de métal individuelles. Les deux méthodes doivent être considérées.
Assemblage du foyer à partir de tôles individuelles :
- Découpez des feuilles de métal pour créer le corps.
- Souder séparément les deux parties de la boîte.
- Fixez le renfort entre les pièces.
- Souder les pièces de la boîte ensemble. Dans la partie avant, faites deux trous rectangulaires - l'un au-dessus de la grille, l'autre en dessous.
- Faites des trous dans les trous.
- Percez un trou rond dans le haut de la boîte pour la cheminée.
Assemblage d'un foyer à partir d'un tuyau de grand diamètre :
- Placez le combiné en position verticale. Coupez-le en deux morceaux.
- Fixez le renfort sur la surface de la partie inférieure pour faire une grille.
- Soudez les deux morceaux de tuyau ensemble.
- Coupez deux trous au-dessus de la grille, en dessous. Fixez aux ouvertures de porte.
- Faites un trou dans le haut du foyer fait maison pour la cheminée.
Lorsque la chambre de combustion est prête, vous pouvez commencer à assembler l'appareil de chauffage.
Le cadre du four du tuyau
Comment faire une pierre
Il existe deux méthodes pour fabriquer un poêle. Première méthode de construction :
- Si l'équipement de poêle fait maison est fabriqué à partir d'un tuyau de grand diamètre, vous pouvez placer le radiateur à l'intérieur, au-dessus de la chambre de combustion. Pour ce faire, vous devez couper une porte supplémentaire au-dessus du foyer.
- Soudez les ferrures afin de pouvoir couler des pierres sur la chambre de combustion qui sera chauffée.
- Un réservoir peut être fixé au-dessus de l'ensemble de la structure. Des pierres sont posées à l'intérieur du poêle, la porte est fermée, du bois de chauffage est incendié.
Deuxième méthode de construction :
- Si un réservoir d'eau n'est pas nécessaire, vous pouvez placer le radiateur sur le dessus du poêle, autour de la cheminée.
- Fixez le tuyau d'évacuation des fumées dans le trou réalisé. Sur le contour de la boîte métallique, soudez les parois du radiateur sur le dessus.
Après cela, vous pouvez verser des pierres spéciales à l'intérieur d'un appareil de chauffage fait maison.
Assemblage d'un réservoir pour l'eau de chauffage
Lors de l'assemblage d'un poêle fait maison avec un réservoir d'eau, le récipient est placé au-dessus de la conception générale du poêle. Au-dessus de l'appareil de chauffage, vous devez souder une plaque métallique de 10 mm d'épaisseur. Faites un trou pour la cheminée. Après cela, soudez le réservoir d'eau à partir de tôles séparées. Faites un trou pour le robinet de vidange sur le côté.
Assemblage de la structure
Après avoir assemblé un poêle fait maison, vous devez l'installer correctement dans le bain. Pour ce faire, vous devez tenir compte de certaines règles:
- Choisissez un emplacement pour que le poêle soit éloigné des murs.
- Pour la fondation, vous devez faire une maçonnerie de briques réfractaires.
- Les surfaces adjacentes doivent être recouvertes d'une couche de matériau incombustible, une feuille d'acier réfléchissante.
- Pour améliorer le transfert de chaleur, vous pouvez recouvrir le four d'une couche de brique rouge. Dans ce cas, vous devez laisser une distance entre les surfaces de briques métalliques.
- Pour protéger les visiteurs du bain des brûlures, vous pouvez assembler une clôture en bois. Le bois doit être préalablement imprégné d'imprégnations réfractaires.
Lors de l'installation d'une cheminée, il faut tenir compte du fait que le tuyau deviendra très chaud.Par conséquent, il est nécessaire de réaliser une isolation supplémentaire aux endroits où le pipeline traverse le plafond, le toit.
Travaux préparatoires : choix du site d'installation et pose des fondations
Les pièces découpées à partir de tôles d'acier doivent être vérifiées pour les bavures et les saillies métalliques tranchantes, comme pendant le soudage ils vont interférer
Vous devez également faire attention aux dimensions des éléments coupés.
À choisir un lieu d'installation fournaises, il est à noter que ces unités sont mieux installées dans le coin de la pièce loin des portes et fenêtres de passage. Si un tel poêle est destiné à un bain ou à un hammam, il peut être installé derrière une petite cloison. Cela protégera en outre contre tout contact accidentel avec les surfaces chaudes du four.

Possibilité de bain
Il est préférable de construire les fondations du four avec le bâtiment en construction. Cependant, si la structure de chauffage est prévue pour être installée à l'intérieur, il est nécessaire de démonter le sol jusqu'à la fondation même. Dans ce cas, les grumes ne peuvent être sciées qu'après que la fondation a été érigée à leur niveau.
Au fil du temps, le bâtiment rétrécit, sinon la base du four se fissurera et l'unité se déformera.
Pour poser les fondations d'un four revêtu de briques, vous devez effectuer les étapes suivantes :
Faire un marquage des futures dimensions du four. Il est plus pratique de prendre des notes sur le mur.
Démonter le parquet. Vous devez vous rendre au sol. A ce stade, ne coupez pas les bûches de bois.
Conformément aux marques sur le mur, creusez une fosse de 50 cm de profondeur et de 75 cm de largeur.S'il y a une grande quantité de sable dans le sol, les parois de la fosse peuvent s'effondrer. Pour éviter cela, il est nécessaire de les recouvrir de matériau de toiture ou de polyéthylène.
Le fond de la fosse est soigneusement compacté et nivelé.
Verser du gravier de fraction moyenne à l'intérieur pour faire une couche de 250 mm d'épaisseur.
Posez dessus une imperméabilisation - un matériau de toiture.
Remplissez ensuite une couche de sable égale à 150 mm. Il doit être tassé. A noter que le sable humide se comprime mieux.
A partir de planches ou de dalles OSB, réalisez des coffrages pour béton liquide. S'il est fait de planches, le béton peut couler à travers les fissures ou la terre peut tomber à l'intérieur. Pour éviter cela, la surface intérieure du coffrage peut être recouverte de polyéthylène.
Vous devez maintenant fabriquer un cadre en métal qui renforcera la base en béton. Cela nécessite des fers à béton d'une épaisseur de 8 à 10 mm. Parmi ceux-ci, il est nécessaire de réaliser une structure tridimensionnelle composée de deux réseaux reliés à une distance de 200 mm parallèlement l'un à l'autre. La largeur des cellules ne doit pas dépasser 150x150 mm. Les intersections des barres d'armature peuvent être renforcées par soudure, fil ou pinces en plastique.
Installez le cadre métallique fini à l'intérieur du coffrage. A noter que cette structure doit être placée à une hauteur de 50 mm au-dessus de l'étanchéité. Pour ce faire, vous pouvez, perpendiculairement à la base, enfoncer des piquets en bois ou des pièces de renfort. Fixez-y un cadre métallique. Vous pouvez utiliser des moitiés de briques pour cela, ce qui créera la hauteur souhaitée pour le placement.
Couler le mélange de béton. Pour cela, la marque M 300 ou M 400 convient.
Il convient de noter que tous les éléments de la cage d'armature sont cachés sous une couche de béton. Lors du coulage de la fondation, des bulles d'air se forment, qui doivent être éliminées par abattage ou à l'aide d'un vibrateur profond.
Couvrir le mélange versé avec du polyéthylène
Ceci est nécessaire pour un durcissement uniforme de la fondation.Si cela n'est pas fait, l'humidité s'évaporera de la couche supérieure de béton. Cela peut provoquer la fissuration de la base durcie et perdre sa résistance. Après 8 à 10 jours, la fondation durcira.
Nettoyez la base durcie de la poussière et des débris.
Couvrir avec un matériau imperméabilisant. Pour cela, un matériau de toiture ou un polyéthylène épais convient.
Par le haut, en couche continue, réalisez une maçonnerie de brique rouge réfractaire. Lorsque le niveau de maçonnerie atteint le décalage, ils doivent être sciés de manière à ce que les extrémités en bois reposent sur une base en béton.
Fondation pour le four
Le type de fondation dépend du poids total du four :
- une base en brique convient à un four léger. Les briques sont posées sur chant et liées avec du mortier. La qualité du ciment pour la solution de liant n'est pas inférieure à M300 ;
- pour un four lourd pesant plus de 700 kg, une fondation autonivelante d'une profondeur d'au moins 50 cm est requise.Le coffrage est réalisé et coulé avec du béton liquide avec ou sans filler. Le remplissage sera une brique brisée de fraction fine ou de gravier.

Il est possible de construire un poêle uniquement sur une base solide et résistante à la chaleur.Le dessus de la base est disposé au ras du sol ou en dessous du niveau. sol de 15 cm. Pour protéger la base de l'humidité, le fond et les parois du coffrage sont recouverts d'un matériau de toiture et tous les joints sont enduits de bitume.
Types d'ouvrages
Ils diffèrent par leur structure, leurs principes de travail. Analysons chaque type plus en détail.
ouvert
Les pierres sont posées sur la structure du four, sans être recouvertes de quoi que ce soit. De ce fait, le hammam se réchauffe plus rapidement, atteignant une température allant jusqu'à 100 degrés. Mais l'humidité dans la pièce est faible, donc la chaleur est sèche.

Le produit se compose de trois parties :
- fours;
- compartiments pour pierres;
- récipients avec de l'eau.
Il devrait y avoir peu de pierres, sinon la couche supérieure ne se réchauffera pas bien et le hammam ne sera pas assez chaud.
Pour augmenter le niveau d'humidité et la libération de vapeur d'eau, les pierres chaudes sont simplement versées avec de l'eau. Un ou deux seaux suffiront - cela donnera jusqu'à 15% d'humidité.

Pour augmenter le niveau de sécurité incendie et réduire les risques de brûlures, il est recommandé de construire des briques réfractaires autour des parois du four ou de réaliser une cloison en bois.
Pour le chauffage du sauna, il est important qu'une grande partie de la surface du poêle entre en contact avec l'espace d'air. Cela contribue à un réchauffement plus rapide de l'air dans le hammam.
Fermé (revêtu de brique ou de pierre)

Si le combustible bois est choisi pour le chauffage, des approvisionnements importants devront être préparés à l'avance. Un tel four prend beaucoup de temps pour atteindre la température souhaitée, mais, ayant atteint le niveau souhaité, il offre un bon transfert de chaleur et retient la chaleur pendant une longue période.

Les structures fermées sont idéales pour les grands bains, où il y a non seulement un hammam, une salle de lavage, un dressing, mais aussi une salle de relaxation.
L'un des avantages est les pierres fermées. Il n'y a donc aucun risque de se brûler.
Dans les modèles économiques d'usine, le four a une double enveloppe avec un espace pour l'échange d'air entre les parois.
Combiné
La plupart des fabricants la conception se compose de un caisson haut avec grilles, vannes doubles (fait office de foyer). Un tuyau de cheminée sort du col de la boîte. Des pierres sont également placées dans le cou ici.

Il existe des appareils à vendre avec des types de carburant combinés:
- gaz-bois;
- bois électrique.
Ils n'ont pas besoin d'être surveillés en permanence. Réglez simplement à la température souhaitée.
De par leur conception, ils sont divisés en 3 types :
- Monobloc. Avec échangeur de chaleur, chambre de combustion.Brûleur à gaz de type non amovible, recouvert de tôle d'acier.
- Jumelé. Ils ont deux chambres de combustion séparées pour le bois et le gaz.
- Reconfigurable. Appareil universel. Peut être modifié pour chaque carburant.
Les deux premiers types n'ont pas besoin d'être reconfigurés, puisque vous pouvez passer d'un type de carburant à un autre.

Le gaz est utilisé principal ou liquéfié en bouteilles.
La conception électrique à bois vous permet de chauffer avec succès le bain à l'électricité, avec du bois de chauffage (en option). De plus, le bois de chauffage est considéré comme la principale matière première. Lorsqu'ils brûlent et que la température baisse, le radiateur électrique commence automatiquement à fonctionner. Sur les côtés du produit se trouvent deux éléments chauffants. Ces poêles fonctionnent à partir d'un réseau de 220 W, avec une tension triphasée de 380 V.
Les propriétaires peuvent choisir le combustible qu'ils utilisent pour chauffer le sauna. Mais de telles conceptions sont beaucoup plus chères que de simples poêles à bois.
La séquence de fabrication d'un poêle pour un bain
Nous marquons le tuyau en fonction des dimensions du dessin. À partir d'une feuille de métal à l'aide d'un soudage au gaz ou d'une meuleuse d'angle, nous découpons 6 cercles d'un diamètre de 500 mm.

Parmi les ébauches rondes coupées, nous en sélectionnons deux qui vont à l'intérieur du tuyau avec des écarts minimes entre les bords des crêpes plates et la paroi intérieure du tuyau. Ces deux iront au fond supérieur et inférieur de la chambre de combustion.
Nous marquons la position du couvercle supérieur de la chambre de combustion à une distance de 450 mm de la coupe du tuyau, en utilisant de la craie nous faisons des risques sur la surface intérieure de l'ébauche du tuyau. Nous marquons l'emplacement de la porte de la chambre de combustion, du ventilateur et du réchauffeur. Découpez soigneusement les fenêtres à l'aide d'une "meuleuse" - une meuleuse d'angle. Des fragments rectangulaires découpés sont utilisés pour fabriquer des portes.Pour ce faire, nous soudons les charnières des auvents à l'aide de la soudure électrique aux endroits où les portes sont fixées.

Dans une ébauche ronde de la paroi supérieure de la chambre de combustion, nous découpons quatre trous ronds d'un diamètre de 60 mm et, par soudage électrique, soudons les sections des tubes à flamme utilisés pour chauffer l'appareil de chauffage. Aux extrémités libres des tuyaux soudés, nous installons le flan de la paroi supérieure de l'appareil de chauffage et le soudons. En conséquence, nous obtenons deux crêpes plates reliées par quatre tuyaux.

Nous installons le corps du poêle de sauna en position verticale et plaçons l'ensemble résultant de quatre tubes à flamme et de deux fonds ronds à l'intérieur de l'ébauche du tuyau. En utilisant le soudage électrique, nous soudons la paroi supérieure ronde de la chambre de combustion en place, selon le dessin.

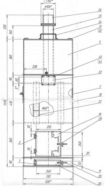
1, 2, 19, 20, 28.29 - portes et éléments du four, ventilateur; 3 - soupape; 7, 8, 9, 10 11, 12, 13 - sections du four et du réchauffeur - parois du ventilateur; 14, 16, 18 - bas; 15 - grille; 17 - trou pour reconstituer l'eau; 21, 24 - trappe de chargement appareils de chauffage; 23 - tuyaux de chauffage de chauffage; 25, 26 - principal tuyau de sortie de gaz; 27 - robinet d'eau chaude ;
Attention! Le soudage du fond supérieur du four doit être effectué en plusieurs passes avec une qualité maximale. Nous retournons le corps du poêle de sauna, l'installons verticalement, de la même manière nous soudons le fond supérieur de la chambre intermédiaire
Ensuite, vous devez installer dans le corps et souder une crêpe ronde de grille faite maison, le fond du poêle et le fond du réservoir d'eau. Pour la fabrication de la grille, vous pouvez choisir entre deux méthodes :
Nous retournons le corps du poêle de sauna, l'installons verticalement et soudons le fond supérieur de la chambre intermédiaire de la même manière.Ensuite, vous devez installer dans le corps et souder une crêpe ronde de grille faite maison, le fond du poêle et le fond du réservoir d'eau. Pour la fabrication de la grille, vous pouvez choisir entre deux méthodes :
- Vous pouvez utiliser l'une des crêpes vierges, après avoir préalablement percé une grille de trous traversants d'un diamètre de 10 mm dans la partie centrale, espacés de 15 à 20 mm les uns des autres. Pour ce faire, il est préférable de choisir le flan le plus «affaibli» en taille - celui avec les plus grands écarts entre la surface intérieure du corps du poêle de sauna et le diamètre extérieur de la «crêpe».
- Une option plus préférable consiste à utiliser des grilles en fonte prêtes à l'emploi de taille appropriée. Pour les installer dans la «crêpe», une meuleuse découpe une fenêtre en fonction de la taille de la grille, qui est fixée avec quatre boulons et une paire de bandes de métal.
Après avoir installé la grille, le bas du poêle est soudé - sa paroi inférieure. Dans le corps du poêle, un flan métallique est installé avec un retrait du bord de 10-15 mm.
Une étape tout aussi importante est l'installation du fond du réservoir d'eau dans la partie supérieure du poêle de sauna. La conception du poêle de sauna en métal prévoit qu'un tuyau d'évacuation des produits de combustion traverse la partie centrale du réservoir et qu'il n'est pas situé coaxialement au corps cylindrique du poêle.
Important! Il est nécessaire de souder la cheminée à la base inférieure du réservoir avec un contrôle supplémentaire de la géométrie de la position relative du tuyau et du fond. Le cordon de soudure est soudé au moins deux fois, seulement après que la paroi inférieure avec la cheminée est installée dans le corps du poêle de sauna et soudée le long du contour
Le cordon de soudure est soudé au moins deux fois, seulement après que la paroi inférieure avec la cheminée est installée dans le corps du poêle de sauna et soudée le long du contour.
Le couvercle supérieur du réservoir d'eau est facilement amovible ; pour sa fixation sur le corps du poêle, vous pouvez utiliser une paire de pinces conventionnelles ou simplement appuyer dessus avec un objet lourd. Un anneau peut être mis sur la cheminée pour sceller l'espace entre le trou dans le couvercle et le tuyau.
Au stade final, les portes de la chambre de combustion, du ventilateur et du réchauffeur sont suspendues. La fenêtre de nettoyage de la chambre intermédiaire entre l'appareil de chauffage et le réservoir d'eau est mieux fixée avec des boulons à l'aide d'un joint.
Poêles Potbelly - conceptions éprouvées et simples
Poêles Potbelly - un succès des années 20 du siècle dernier. Ensuite, ces poêles rivalisaient avec ceux en brique et se tenaient partout, même dans les appartements. Plus tard, avec l'avènement du chauffage centralisé, ils ont perdu de leur pertinence, mais sont utilisés dans les garages, les chalets d'été et pour le chauffage des services publics ou des dépendances.

tôle
Poêles à ventre à partir d'un cylindre, d'un baril ou d'un tuyau
Le matériau le plus approprié pour fabriquer un poêle à ventre pour un garage est un réservoir de propane ou un tuyau à paroi épaisse. Les fûts conviennent également, mais vous devez rechercher un volume pas très important et avec une paroi épaisse. Dans tous les cas, l'épaisseur minimale de la paroi est de 2-3 mm, l'optimale est de 5 mm. Un tel poêle servira pendant plus d'un an.
De par leur conception, ils sont verticaux et horizontaux. Il est plus pratique de chauffer un horizontal avec du bois de chauffage - des bûches plus longues conviennent. Il est plus facile de l'allonger vers le haut, mais la chambre de combustion étant de petite taille, vous devrez couper finement le bois de chauffage.

Un poêle à ventre pour un garage peut être fabriqué à partir d'un cylindre ou d'un tuyau à paroi épaisse
vertical
Tout d'abord, comment fabriquer un four de garage vertical à partir d'un cylindre ou d'un tuyau. Divisez le segment sélectionné en deux parties inégales. Ci-dessous se trouve un plus petit pour la collecte des cendres, au-dessus se trouve le principal pour la pose de bois de chauffage.Voici l'ordre des travaux :
- Découpez les portes. Petit en bas, grand en haut. Nous utilisons les morceaux coupés comme portes, donc nous ne les jetons pas.
-
Nous soudons les grilles à l'endroit choisi. Il s'agit généralement d'armatures en acier de 12 à 16 mm d'épaisseur coupées en morceaux de la longueur souhaitée. Le pas de montage est d'environ 2 cm.
- On soude le fond si ce n'est pas le cas.
- Nous découpons un trou dans le couvercle pour la cheminée, soudons une bande de métal d'environ 7 à 10 cm de haut.Il est préférable de faire le diamètre extérieur du tuyau résultant pour les cheminées standard. Ensuite, il n'y aura aucun problème avec le dispositif de cheminée.
- Le couvercle avec le tuyau soudé est soudé en place.
- En soudant, nous fixons les serrures, les charnières aux pièces découpées-portes et mettons tout cela en place. En règle générale, les poêles à ventre plat fuient, de sorte que les joints peuvent être omis. Mais si vous le souhaitez, une bande de métal de 1,5 à 2 cm de large peut être soudée le long du périmètre des portes.Sa partie saillante comblera un petit espace autour du périmètre.
Dans l'ensemble, c'est tout. Il reste à assembler la cheminée et vous pourrez tester un nouveau poêle pour le garage.
Horizontal
Si le corps est horizontal, le tiroir à cendres est généralement soudé par le bas. Il peut être soudé aux dimensions requises à partir d'une tôle d'acier ou un morceau de canal de taille appropriée peut être utilisé. Dans la partie du corps qui sera dirigée vers le bas, des trous sont pratiqués. Il est préférable de couper quelque chose comme une grille.

Comment faire un poêle à ventre dans le garage à partir d'une bouteille de gaz
Ensuite, dans la partie supérieure du corps, nous fabriquons un tuyau pour la cheminée. Pour ce faire, vous pouvez souder une pièce découpée à partir d'un tuyau d'un diamètre approprié. Après avoir installé un morceau de tuyau et vérifié le joint, le métal à l'intérieur de l'anneau est découpé.
Ensuite, vous pouvez faire les jambes.Les segments d'angle sont les mieux adaptés, auxquels de petits morceaux de métal sont attachés par le bas pour rester stables.
La prochaine étape consiste à installer les portes. Sur le ventilateur, vous pouvez couper un morceau de métal, attacher des boucles et de la constipation. Ici sans aucun problème. Les espaces le long des bords n'interfèrent pas - l'air de combustion les traversera.
Il n'y aura aucune difficulté même si vous fabriquez une porte en métal - souder les charnières n'est pas un problème. Seulement ici, afin de pouvoir réguler au moins légèrement la combustion, la porte doit être un peu plus grande - de sorte que le périmètre de l'ouverture soit fermé.

Comment installer la coulée de four sur un poêle en métal
Il est problématique d'installer la coulée du four. Soudain, quelqu'un veut avoir une porte non pas en acier, mais en fonte. Ensuite, il est nécessaire de souder un cadre à partir d'un coin en acier, d'y fixer un moulage avec des boulons et de souder toute cette structure au corps.
De deux barils
Tous ceux qui ont utilisé un poêle à ventre savent que des radiations très dures proviennent de son corps. Souvent, les murs sont chauffés à une lueur rouge. Alors à côté d'elle c'est impossible. Le problème est résolu par une conception intéressante : deux canons de diamètres différents sont insérés l'un dans l'autre. Les interstices entre les murs sont recouverts de galets, d'argile mélangée à du sable (calciné au feu, recouvert seulement après refroidissement). Le baril intérieur agit comme une chambre de combustion et l'extérieur n'est que le corps.
Ce poêle mettra plus de temps à chauffer. Il ne commencera pas immédiatement à dégager de la chaleur, mais il sera plus confortable dans le garage et une fois le carburant épuisé, il réchauffera la pièce pendant quelques heures supplémentaires, dégageant la chaleur accumulée dans l'onglet.
Finition
La finition au four joue un rôle assez important, mais pas clé. Pourtant, la finition vaut la peine d'être faite pour plusieurs raisons, notamment:
- période de rétention de chaleur plus longue ;
- Prévention des brûlures involontaires ;
- Aspect attrayant du produit.
L'argile, le mélange de sable et bien plus encore peuvent être activement utilisés comme matériau de finition. Souvent, des carreaux de céramique sont également utilisés, ce qui donne au bain une apparence inoubliable et une texture extérieure mémorable.
Si vous envisagez de peindre en plus le four pour lui donner un aspect attrayant, vous devez utiliser des peintures spécialisées résistantes à la chaleur pour le métal !
Pourquoi construire des fours à partir d'un bain
À première vue, l'idée d'un radiateur en fonte fait maison semble plutôt inhabituelle et étrange. Pourquoi fabriquer un poêle à partir d'un bain en fonte de vos propres mains, si vous pouvez acheter un poêle-chaudière en acier fabriqué en usine. En fait, il y a un grain de raison dans une telle entreprise :
- Tout métallurgiste confirmera que la fonte à paroi épaisse est idéale pour l'aménagement de poêles, cheminées, chaudières de différentes conceptions et modèles;
- Une bonne chaudière en fonte coûte de l'argent fabuleux, tandis que la construction d'un poêle à partir d'une vieille baignoire prendra au maximum quelques milliers de roubles et plusieurs jours de travail;
- La section semi-circulaire et la forme du corps du bain sont idéales pour organiser le processus de combustion, il n'y a pas de zones stagnantes ou d'angles vifs entraînant une surchauffe locale des parois de la cuve.
Il est clair que le corps du bol ne doit pas présenter de fissures, d'éclats de métal ou de corrosion. En raison de sa faible usinabilité, de sa fragilité et de sa faible ductilité, la fonte est assez difficile à traiter, couper et souder dans les conditions artisanales d'un garage ou d'un chalet. Par conséquent, pour fabriquer un poêle à partir d'un bain de vos propres mains, une certaine pratique sera nécessaire.Au moins, il faudra beaucoup de temps pour sélectionner le mode afin de souder les parois en fonte du four par soudage électrique.
Matériaux et outils pour le travail
Pour la fabrication d'un tel four, vous devez préparer les outils et les matériaux nécessaires. Puisque scier une baignoire en fonte, en particulier de fabrication soviétique, alors que le métal n'était vraiment pas épargné, n'est pas si facile, et les appareils chinois «jetables» peuvent ne pas être en mesure de faire face à une telle tâche. Pour ce travail, vous avez besoin d'un outil allemand ou russe fiable.
Outils:
Petite meuleuse d'angle - meuleuse.
Le "bulgare" doit être fiable - un outil de mauvaise qualité peut même ne pas être en mesure de faire face à une telle tâche
- Cercles pour couper le métal, 1 mm d'épaisseur et 125 mm de diamètre, ils auront besoin de 3 ÷ 4 pièces, selon l'épaisseur de la fonte.
- Meules - pour le traitement des côtés coupés du métal, des limes.
- Perceuse électrique avec perceuse à métaux Ø 9 ou 11 m (selon les boulons choisis). Il est nécessaire de percer des trous dans les côtés de la baignoire pour relier ses deux parties avec des boulons.
- Truelle et spatule pour les travaux de maçonnerie et de finition.
- Pistolet de construction pour mastic.
- Aplomb et niveau bâtiment.
- Un marteau.
Prix des meuleuses d'angle
meuleuse d'angle
Matériaux:
- La baignoire en fonte.
- Tôle d'au moins 5 mm d'épaisseur.
- Cuisinière en fonte à deux feux. Au lieu de cela, une tôle ordinaire peut être posée.
- Brique pour ériger des murs qui fermeront la partie inférieure du bain, qui sera la chambre de combustion, sur trois voire quatre côtés.
- Grille grille placée dans le four.
- Argile et sable pour mortier de maçonnerie.
- Mélange adhésif résistant à la chaleur prêt à l'emploi pour revêtement mural extérieur en carreaux de céramique.
- Mastic résistant à la chaleur (matériau - silicone résistant à la chaleur).
- Boulons avec écrous et rondelles pour la fixation de la structure.
- "Filet" en treillis métallique pour renforcer la solution d'argile posée sur le dessus du bain, qui servira de chambre de cuisson.
- Carreaux de céramique (éventuellement cassés) pour la décoration.
- Un coin métallique qui peut être nécessaire pour la fabrication de supports - pour l'installation d'une grille qui sépare le foyer et le ventilateur.
- Tuyau de cheminée d'un diamètre d'environ 110 ÷ 120 mm.
Afin d'assurer la sécurité personnelle, le travail doit être effectué avec des lunettes de sécurité, un respirateur et des gants de construction.
Prix du mastic résistant à la chaleur
mastic résistant à la chaleur
Calcul des paramètres de base (avec dessins et dimensions)
Le rendement élevé d'un poêle à ventre ne peut être obtenu que si tous les principaux paramètres de conception sont correctement calculés.
Tuyau
Dans ce cas, le diamètre de cet élément est très important. Le débit de la cheminée doit être inférieur aux performances du four, qui est la principale caractéristique distinctive du poêle à ventre. Cela permettra à l'air chaud de ne pas quitter immédiatement le poêle, mais de s'y attarder et de chauffer l'air ambiant.
Il est très important de faire un calcul précis pour elle. Le diamètre doit être de 2,7 fois le volume du foyer. Dans ce cas, le diamètre est déterminé en millimètres et le volume du four en litres
Par exemple, le volume de la partie four est de 40 litres, ce qui signifie que le diamètre de la cheminée doit être d'environ 106 mm
Dans ce cas, le diamètre est déterminé en millimètres et le volume du four en litres. Par exemple, le volume de la partie four est de 40 litres, ce qui signifie que le diamètre de la cheminée doit être d'environ 106 mm.
Si le poêle prévoit l'installation de grilles, la hauteur du four est prise en compte sans tenir compte du volume de cette partie, c'est-à-dire du haut de la grille.
Filtrer
Il est très important de faire en sorte que les gaz chauds ne refroidissent pas, mais brûlent complètement. De plus, le combustible doit être brûlé par pyrolyse partielle, ce qui nécessite une température extrêmement élevée. Un écran métallique, situé sur trois côtés du poêle, aidera à obtenir un effet similaire.
Vous devez le placer à une distance de 50 à 70 mm des parois du poêle, afin que la majeure partie de la chaleur revienne au poêle. Ce mouvement d'air donnera la chaleur nécessaire et protégera contre le feu.
Un écran métallique, situé sur trois côtés du poêle, aidera à obtenir un effet similaire. Vous devez le placer à une distance de 50 à 70 mm des parois du poêle, afin que la majeure partie de la chaleur revienne au poêle. Ce mouvement d'air donnera la chaleur nécessaire et protégera contre le feu.
L'écran d'un poêle à ventre en brique rouge est capable d'accumuler de la chaleur
literie
Elle doit être. Il y a deux raisons à cela :
- une partie de la chaleur est rayonnée vers le bas ;
- le sol sur lequel repose le poêle est chauffé, ce qui signifie qu'il existe un risque d'incendie.
La litière résout deux de ces problèmes à la fois. Il peut être utilisé comme tôle avec une extension de 350 mm (idéalement 600 mm) au-delà du contour du four lui-même. Il existe également des matériaux plus modernes qui font un excellent travail avec cette tâche, par exemple, une feuille d'amiante ou de carton de kaolin, d'au moins 6 mm d'épaisseur.
La feuille d'amiante peut être utilisée pour la literie sous un poêle à ventre
Cheminée
Malgré tous les calculs, les gaz pénètrent parfois dans la cheminée sans être complètement brûlés. Par conséquent, cela doit être fait d'une manière spéciale. La cheminée se compose de :
- partie verticale (1–1,2 m), qu'il est recommandé d'envelopper avec un matériau calorifuge;
- fraises (partie légèrement inclinée ou complètement horizontale), de 2,5 à 4,5 m de long, qui doivent être à 1,2 m du plafond, qui n'est pas protégé par des matériaux résistants à la chaleur, du sol - de 2,2 m.
La cheminée doit être amenée à l'extérieur
Galerie photo : schémas d'un poêle à ventre pour un garage
Toutes les mesures exactes doivent être indiquées sur le schéma. La cheminée doit nécessairement être amenée dans la rue. Le poêle à ventre peut être rond ou carré. Le volume du four dépend de la présence de grilles. Le schéma du poêle à ventre dépend de le matériel utilisé.














































