Règles pour l'emplacement de la sortie du climatiseur: choisir le meilleur endroit pour l'installation

Où puis-je mettre le climatiseur: choisir le meilleur endroit pour l'installation dans une maison privée et dans un appartement

A quelle distance est-il installé dans la pièce

Nous analyserons les options européennes et soviétiques pour le montage des connecteurs, découvrirons la hauteur par rapport au sol.

Installation Eurostandard

Règles pour l'emplacement de la sortie du climatiseur: choisir le meilleur endroit pour l'installationCe terme est devenu populaire après l'introduction de la définition de "réparation de qualité européenne". Certains utilisateurs sont à l'aise avec l'emplacement suivant des prises et des interrupteurs :

  • interrupteurs à une distance de 90 cm de la surface du sol (en passant et sans lever la main, une personne fixe l'éclairage dans la pièce) ;
  • monter des sources électriques à une hauteur de 3 cm du sol (à cette distance, vous pouvez cacher les fils et utiliser facilement des appareils électroménagers).

Lors du choix des prises euro, vous devez savoir que le diamètre des broches et la longueur entre elles sont supérieurs à ceux des modèles russes. La force actuelle des appareils importés est de 10 à 16 ampères, russe - pas plus de 10. Par conséquent, des appareils plus puissants peuvent être insérés dans de tels connecteurs.

Normes soviétiques

Auparavant, les prises étaient fixées à une hauteur de 90 cm du sol, les interrupteurs - à une distance de 160 cm.Ces indicateurs ne sont pas pires que la norme européenne et présentent de nombreux avantages:

  • la fiche peut être insérée dans la prise électrique sans se baisser ;
  • les petits enfants n'atteignent pas le connecteur, car il est installé en hauteur;
  • un tel emplacement est pratique pour les équipements qui n'ont pas besoin d'être connectés en permanence au réseau (climatiseurs).

Hauteur minimale du sol

Règles pour l'emplacement de la sortie du climatiseur: choisir le meilleur endroit pour l'installationLes règles d'installation des installations électriques et de conception des bâtiments résidentiels ne contiennent pas d'exigences claires pour l'emplacement des prises et des interrupteurs en ce qui concerne les sols, les murs et d'autres éléments.

Les règles d'installation des installations électriques stipulent que la distance entre les appareils et le gazoduc doit être supérieure à 50 cm.Dans la salle de bain, il peut être placé à une distance de 60 cm de l'évier.

A quelle hauteur sont installées les prises ?

L'entreprise commune stipule que les installations électriques doivent être installées n'importe où à une hauteur maximale de 1 mètre.

La distance des prises n'est pas indiquée pour le raccordement de cuisinières électriques et les climatiseurs. Dans les écoles, les jardins d'enfants sont placés à une hauteur de 180 cm du sol. La longueur recommandée à partir du revêtement de sol est de 1 mètre.

La hauteur et la distance sont déterminées par le propriétaire des lieux. Dans certains cas, les règles s'appliquent :

  • les prises ne sont pas placées à moins d'un demi-mètre du gazoduc;
  • dans la cuisine et dans la salle de bain, les installations électriques sont placées à une distance supérieure à 60 cm de la surface du sol, alimentation en eau.

Les prises de courant dans les maisons doivent être protégées par un dispositif spécial qui en bloquera l'accès lorsque les fiches seront débranchées.

Règles pour l'emplacement de la sortie du climatiseur: choisir le meilleur endroit pour l'installationUne fois l'installation des connecteurs pour les appareils électriques et les interrupteurs terminée, le PUE indique la nécessité de travaux concernant la mesure électrique. Ils vous permettront d'identifier les infractions, les éventuels dysfonctionnements et de sécuriser complètement le processus d'utilisation au quotidien.

Pour un placement compétent et pratique des connecteurs et des interrupteurs, il est d'abord recommandé de déterminer dans quelle direction la porte s'ouvre. Ensuite, les interrupteurs sont placés sur le côté des poignées sur les vantaux de porte. Ils le font à une distance de 80 cm à 1 mètre, selon la taille des résidents.

Le placement des installations électriques est lié au type de locaux :

  • dans un long couloir, sur un escalier, des sources sont montées au début du chemin et à la fin ;
  • dans le salon et la chambre, il est confortable que les interrupteurs soient situés à l'entrée de la pièce et à côté du canapé, du lit, afin de simplifier le processus d'utilisation de l'éclairage.

La longueur des installations électriques à partir du sol doit être choisie en tenant compte de l'emplacement à partir duquel elles seront accessibles. Par exemple, à l'entrée de la pièce, une hauteur de 90 cm est choisie, à côté d'un fauteuil, un lit - 60 cm, de sorte qu'il est pratique de tendre la main.

Ajout de réfrigérant et démarrage

Une fois le vide créé dans l'appareil, il est possible de remplir le système de réfrigérant.Dans le cas des climatiseurs split, les unités extérieures sont remplies en usine avec une quantité appropriée suffisante pour la longueur de tuyauterie spécifiée par le fabricant. Si l'unité sera installée avec plus de 10 m, vous devez déterminer la quantité de réfrigérant supplémentaire et l'ajouter avant d'ouvrir les vannes de l'unité extérieure. Le volume par mètre supplémentaire dépend de la capacité du système et du diamètre de la canalisation. Pour un tuyau de 1⁄4 pouce, la quantité de réfrigérant supplémentaire est de 20 g/m.

Après le remplissage de fréon, le climatiseur est démarré à l'aide de la télécommande et le mode de refroidissement est réglé, les lectures de pression sur les manomètres connectés à la vanne de service du climatiseur sont surveillées. La pression mesurée par le manomètre pendant le refroidissement est la pression d'aspiration. Pour le coefficient R410 A, il doit être d'environ 7,5 bar, ce qui correspond à une température d'évaporation du fluide frigorigène de +2 degrés.

Options de connexion du système divisé

La connexion d'une prise conçue pour un système divisé à un réseau commun peut se produire de plusieurs manières.

  1. La première méthode de connexion est effectuée via le distributeur de la pièce dans laquelle le climatiseur sera situé. Dans ce cas, vous n'aurez pas besoin d'utiliser la prise et la fiche de l'appareil. La méthode de connexion est réalisable si le câblage général d'un certain appartement peut supporter la puissance de tous les appareils qui y seront connectés à la fois. Assurez-vous que tous les contacts sont bien connectés, ne se détachent pas et sont bien protégés. Des borniers peuvent être utilisés pour connecter le câble. Le climatiseur est rarement connecté directement au secteur. Utilisez généralement une prise avec un cordon.
  2. Une méthode de connexion cachée est utilisée lors de l'installation d'un système divisé lors d'une révision majeure. Dans de tels cas, à l'aide d'un perforateur, des stroboscopes sont battus dans le mur du côté le moins visible par rapport à l'appareil, dans lequel le câblage est caché. Ce câble est connecté à la sortie du climatiseur. La méthode est optimale en raison de son esthétique et de sa sécurité. Pour vous connecter au réseau, utilisez une installation masquée.
  3. La méthode ouverte est utilisée au moment où le climatiseur est installé à la fin des travaux de réparation. Une extrémité du câblage est connectée au distributeur, l'autre - à la prise. Le câble longe le mur. Pour ne pas trop gâcher la vue, vous pouvez utiliser un canal de câble décoratif. Les nids sont généralement utilisés de type aérien.
  4. Beaucoup de gens se demandent si une prise pour un climatiseur est nécessaire, s'il y en a déjà assez dans la pièce. Si vous souhaitez vous connecter à une prise qui alimente un équipement de faible puissance et qui est située loin du climatiseur, le problème peut être résolu à l'aide d'une boucle. Vous devrez placer la prise à l'endroit où il sera pratique de connecter le climatiseur et étirer un câble de celui-ci au point d'alimentation principal. Cette option est réalisable à condition que le nœud principal soit alimenté par un réseau pouvant supporter une charge nominale élevée, sinon le risque de surcharge et de brûlure du câblage augmente.

Calcul de la charge du réseau

L'emplacement n'est pas le seul facteur à prendre en compte lors de l'installation d'une prise électrique pour un refroidisseur d'air

Il est également important de déterminer correctement la puissance du futur point de connexion.

Pour assurer une alimentation électrique fiable du climatiseur et éliminer le risque d'accident, il est nécessaire de calculer correctement la puissance de la ligne de câblage électrique à laquelle le dispositif de climatisation sera connecté.Pour ce faire, vous devez connaître la consommation électrique maximale du climatiseur (l'indicateur de consommation électrique le plus élevé pendant le fonctionnement). Habituellement, ces informations sont contenues dans la fiche technique de l'appareil.

La puissance d'un appareil domestique de refroidissement par air dépend de la superficie de la pièce réfrigérée et varie entre 800 et 1800 watts. En conséquence, pendant le fonctionnement, cet équipement crée une charge sur le réseau au niveau de 3-10A. Cela signifie qu'une prise de courant standard avec une charge nominale ne dépassant pas 16 A est suffisante pour connecter l'appareil de refroidissement par air domestique au secteur.

L'exception concerne les climatiseurs de grande puissance installés dans de très grandes pièces. Pour de tels appareils, des prises de courant à haute puissance sont achetées ou une connexion directe est établie sans utiliser de prise électrique. Il convient de rappeler que la prise électrique, quel que soit le niveau de puissance, doit être mise à la terre.

Tous les calculs ci-dessus sont pertinents si une ligne séparée est posée sous le climatiseur, à laquelle d'autres appareils électriques ne sont pas connectés. Si la ligne est utilisée pour connecter d'autres appareils électroménagers, la puissance maximale de ces appareils doit être ajoutée à la puissance maximale du climatiseur. Si le total des indicateurs dépasse le niveau de charge admissible sur le réseau, l'inclusion simultanée de ces appareils est interdite. Les experts conseillent de connecter le climatiseur à une ligne séparée, cela évitera de surcharger le câblage.

Lire aussi :  Pourquoi vous ne pouvez pas laver les sols avec une serviette: qui a proposé cette interdiction

Quel câble choisir pour la cuisine

Ensuite, vous devez calculer la section du fil d'alimentation commun du panneau électrique et le câblage sortant de chaque pantographe.Suivez les règles ici :

avec une charge d'appareils jusqu'à 3,5 kW - câble en cuivre VVGng-Ls 3*2,5mm2

avec une charge d'appareils jusqu'à 5,5 kW - câble en cuivre VVGng-Ls 3 * 4mm2

avec une charge totale de tous les appareils jusqu'à 10 kW - câble en cuivre VVGng-Ls 3*6mm2

avec une charge totale de tous les appareils jusqu'à 15 kW - câble en cuivre VVGng-Ls 3*10mm2

Pourquoi la marque VVGnG-Ls devrait être, est détaillée dans l'article ci-dessous :

Même si vous avez une maison avec un ancien système de mise à la terre (sans troisième conducteur de protection), faites toujours le câblage avec un câble à 3 fils. Cela vous évitera des coûts supplémentaires pour la reconstruction et le remplacement des fils à l'avenir.

Dans les cas extrêmes, le troisième fil sera réservé au zéro ou à la phase, en cas d'éventuelle rupture ou autre avarie.

Climatiseurs dans un appartement d'une pièce

Règles pour l'emplacement de la sortie du climatiseur: choisir le meilleur endroit pour l'installationclimatiseur dans l'espace entre le mur et la fenêtre

De nombreux acheteurs se trompent souvent sur la possibilité d'un refroidissement / chauffage de haute qualité de la pièce et de la cuisine avec une seule unité intérieure. Même lorsque l'appareil est placé dans le couloir, qui est à égale distance du reste des locaux, la fraîcheur ou la chaleur n'y circuleront pas suffisamment. Lorsque la cuisinière ou le four est allumé, la fraîcheur disparaîtra instantanément et dans le couloir, il fera toujours très froid au contraire.

Un climatiseur avec une puissance accrue n'est pas non plus une option, car il fonctionnera souvent en mode arrêt-démarrage, ce qui rend la partie principale du système, le compresseur, inutilisable.

Alors comment installer la climatisation dans l'appartement avec une chambre et quel type privilégier ? Il y a trois options ici :

  • installation de deux systèmes séparés séparément dans la cuisine et la chambre ;
  • installation d'un système multi-split avec une unité extérieure et deux unités intérieures ;
  • installation d'un climatiseur gainable (un modèle basse pression suffit dans l'odnushka).

Le seul inconvénient de la première option est la présence de deux modules extérieurs sur la façade du bâtiment. L'installation d'un système de climatisation gainable est tout à fait acceptable, mais cela coûtera beaucoup plus cher. De plus, vous devrez tirer les conduits d'air, les monter dans une fausse mezzanine ou un mur, et surtout, cela ne peut se faire que dans des appartements avec de hauts plafonds.

Avec un climatiseur canalisé, une telle nuisance peut survenir comme la propagation des arômes de la cuisine dans tout l'appartement, car le système de conduits d'air relié à toutes les pièces mélangera l'air qui en est prélevé, puis le distribuera également à toutes les zones. Ce climatiseur est idéal pour plusieurs pièces de l'appartement.

Règles pour l'emplacement de la sortie du climatiseur: choisir le meilleur endroit pour l'installationodnushka standard à Khrouchtchev

Si les fonds sont très limités, vous pouvez installer un système de séparation mural, mais de manière à couvrir au maximum tous les locaux. Dans un appartement avec des zones comme sur la photo, la meilleure option pour installer un climatiseur est généralement au-dessus de la porte de la pièce. L'air sera réfléchi par le mur opposé et pénétrera dans le couloir et la cuisine dans 30% des masses d'air totales circulant dans l'appartement.

En option - l'installation du bloc en face de l'ouverture. Mais dans ce cas, seuls 30 à 40 % de l'air refroidi/chauffé resteront dans la pièce et 60 à 70 % se disperseront dans le reste des zones. Cette disposition du climatiseur convient mieux à une petite pièce, où le changement de température se fait sentir beaucoup plus rapidement et où la divergence des flux est meilleure.

Vous ne devriez pas acheter un climatiseur de fenêtre dans une petite pièce. Même les modèles modernes sont sensiblement bruyants, ce qui est inacceptable pour la zone de couchage. Il est préférable de choisir un climatiseur pour une petite pièce avec moins de puissance.Les appareils jusqu'à 2-2,5 kW sont suspendus dans une pièce d'une superficie allant jusqu'à 15 m².

Un monobloc fenêtre peut remplacer un système split dans la cuisine. Il fonctionne correctement sur des surfaces allant jusqu'à 15-18 m². Mais vous devrez trouver un endroit spécial pour collecter les éclaboussures de condensat, car sous la fenêtre, il peut y avoir un piéton passerelle ou coin salon.

Parfois, la question se pose du placement correct du climatiseur dans une pièce avec un balcon adjacent. Il n'y a aucune dérogation aux règles dans l'installation de l'unité intérieure. Il est recommandé d'accrocher le module extérieur sur la façade ou sur le côté du balcon/loggia. Option de montage à l'intérieur possible, mais seulement s'il n'y a pas de vitrage. Une piste allongée est posée entre les blocs, qui traverse le balcon jusqu'à la rue sous une pente.

Installation en coin du climatiseur

Vous pouvez installer le climatiseur dans le coin de la pièce où une autre méthode est tout simplement impossible en raison des caractéristiques architecturales ou de la taille de la pièce. Certains fabricants proposent des modèles d'angle de systèmes divisés au design très attrayant et aux dimensions compactes. Mais c'est l'emplacement le moins souhaitable du climatiseur dans la cuisine ou la pièce, car dans tous les cas, l'uniformité de la distribution en souffrira et la formation de différentes zones de température ne pourra être évitée.

Dans le même temps, la question se pose parfois de savoir où placer le climatiseur dans la pièce, s'il y a une ouverture de 70 cm de large entre le cadre de la fenêtre et le mur, et qu'il n'y a pas d'autre endroit à choisir. Dans ce cas, le montage en angle est justifié. Lorsque le propriétaire choisit cette option, l'emplacement de la porte doit être pris en compte - vous ne pouvez pas accrocher l'appareil devant lui, car l'air ira dans une autre pièce.

Aspiration du système et de sa connexion

Une fois le système entièrement assemblé, il doit être évacué - c'est-à-dire pour expulser tout l'air qu'il contient. L'aspiration peut se faire de deux manières :

  1. improvisé (par la méthode «zilch») - lorsque le déplacement d'air et le remplissage du système avec du fréon sont réalisés en ouvrant et en fermant séquentiellement les orifices de connexion de la route;
  2. aspiration technologique - pour cela, vous devez connecter une pompe à vide à la route et la laisser fonctionner pendant 5 à 7 minutes.

Une fois toutes les étapes ci-dessus terminées, le système est prêt à fonctionner.

Ainsi, l'auto-assemblage d'un climatiseur à domicile ne nécessite pas de connaissances et de compétences techniques complexes de la part de l'entrepreneur, mais grâce à ces actions, l'entrepreneur a la possibilité d'économiser de l'argent et d'acquérir de nouvelles compétences.

Hauteur des prises dans la cuisine

Dans cette pièce, jusqu'à la moitié, et parfois plus, du nombre total d'appareils électroménagers est concentrée. Dans le même temps, une partie de l'équipement est intégrée ou fixe, une partie fonctionnant exclusivement sur la table. D'où la question emplacement des prises dans la cuisine - schéma et la hauteur de placement - cela vaut la peine d'être considéré séparément.

Le schéma ci-dessus montre l'une des options pour l'emplacement des éléments d'alimentation d'une cuisine de type linéaire. Il convient de noter qu'avec le placement angulaire des meubles et des appareils électroménagers, le principe général de placement est conservé.

Mais pour une cuisine de type îlot, le dispositif d'alimentation électrique est un peu plus compliqué - vous devrez tirer une conclusion à travers le sol, sous le revêtement de sol, ou amener des câbles du plafond afin de fournir des appareils électriques situés à l'écart du murs avec électricité.Pour les appareils installés en permanence - cuisinières, lave-vaisselle, hottes - les prises sont également rendues fixes, cachées (généralement elles sont cachées sur les tables et les armoires). Pour les petits équipements connectés périodiquement, il est pratique de créer une prise semi-cachée qui, dans la position habituelle, est située sous le plateau de la table et, si nécessaire, tourne de haut en bas avec des prises pour fiches.

Naturellement, ces appareils nécessitent une protection de haute qualité contre l'humidité. Cela peut être fait indépendamment en disposant un joint d'étanchéité autour du périmètre du panneau à soulever. Mais il est préférable d'acheter un appareil prêt à l'emploi avec un mécanisme de levage et un panneau de protection.

Pratique est également l'option avec un bloc de prises de courant, généralement caché sous le comptoir, et il convient à la fois à une cuisine en îlot et à une cuisine murale ordinaire.

Dans ce cas, bien sûr, la prise inférieure est située à une distance du plateau qui n'est pas trop pratique pour la connexion, mais cela est compensé par le fait qu'il n'y a pas de «décorations» électriques supplémentaires sur les murs.

Si vous n'utilisez pas les points de connexion cachés dans le plan de travail, les prises dans les armoires peuvent être utilisées pour les appareils à emplacement permanent. Cette option est le plus souvent utilisée pour les équipements de taille moyenne - machines à pain, mijoteuses, robots culinaires, machines à café, etc.

Lire aussi :  Chaleur efficace : construire un poêle-cheminée à faire soi-même

L'appareil peut être connecté en permanence ou uniquement en cas de besoin. Vous pouvez protéger l'équipement de la poussière, de la saleté et de l'humidité en soulevant, battant, glissant ou soulevant-tournant les portes, comme indiqué sur la photo ci-dessus.

Si l'équipement est «caché» dans les armoires inférieures, c'est-à-dire sous le niveau du plateau de table, vous pouvez disposer des étagères coulissantes avec des supports pour le câble de l'appareil électrique, ce qui ne permet pas au fil de passer entre le éléments de travail du meuble et en même temps le maintient dans la bonne position. La prise dans ce cas est placée sur le mur de la cuisine (ou le mur arrière de l'armoire).

De même, vous pouvez créer des étagères coulissantes pour les appareils placés au-dessus du niveau du comptoir.

Si l'option encastrée ne convient pas, la hauteur des prises de la cuisine au-dessus du plan de travail est choisie selon trois critères :

  • Facilité d'utilisation. Une très petite distance au plan de travail rend difficile l'allumage de l'appareil, gêne le nettoyage de la surface;
  • sécurité du réseau électrique. Les prises situées presque à proximité de la surface de travail tombent dans la zone à risque - éclaboussures, mouillage accidentel lors du nettoyage du plan de travail, petits débris peuvent grandement compliquer le fonctionnement de l'appareil et même entraîner un court-circuit;
  • longueur du fil de l'instrument. La plupart des petits équipements relativement stationnaires ont une longueur de câble courte, vous ne devez donc pas élever les prises trop haut.

La distance optimale est considérée comme étant de 15 ... 30 cm du niveau de la table, et pour faciliter la pose des câbles, il est fortement recommandé de placer tous les points sur la même ligne horizontale.

Il peut y avoir trois lignes de ce type: la ligne inférieure pour les gros équipements fixes, celle du milieu pour les prises au-dessus du comptoir, la ligne supérieure pour connecter la hotte et les armoires d'éclairage.

Important: retirer la sortie (ou un groupe de prises) de l'évier d'au moins 50 ... 60 cm aidera à réduire le risque de court-circuit.

La hauteur de la sortie de la hotte est choisie soit au-dessus du niveau de son placement, soit en dessous (sous l'armoire dans laquelle elle est intégrée, ou sous le panneau inférieur de la hotte elle-même.Dans le même temps, la version supérieure de l'emplacement est plus efficace - les particules de graisse et de suie qui se forment pendant la cuisson ne s'accumulent pas sur les éléments externes en plastique de la prise.

Il est assez pratique de disposer un groupe d'appareils électriques au même niveau que les rails.

Dans ce cas, la distance du plan de travail est de 35 ... 50 cm.

Un point intéressant : pour ne pas creuser ou percer le mur pour chaque appareil électrique séparément, vous pouvez utiliser une plaque de montage spéciale. Les prises pour connecter l'équipement et les interrupteurs y sont montées de la manière la plus pratique, et les fils passent à travers les canaux de la barre.

Règles de connexion au réseau

Il existe différentes façons de connecter les climatiseurs. Vous devez les choisir en fonction des paramètres du réseau, des conditions individuelles :

  1. Avec boîte de jonction. La nouvelle prise de courant dans la pièce est connectée à la boîte de jonction au même endroit où le système split sera installé. S'il est décidé d'allumer l'appareil via la boîte, la prise, la prise électrique ne sera pas nécessaire. Des difficultés avec cette option surviendront si la puissance totale des appareils de la pièce est supérieure à ce que le réseau peut supporter. La méthode sans prise implique la présence de contacts de connexion filaires très fiables utilisant des bornes de haute qualité. En raison d'un certain nombre d'inconvénients, cette méthode de connexion est rarement utilisée ; généralement, un cordon avec une fiche ou une prise est utilisé pour allumer l'appareil. Si la boîte de jonction est située loin de l'emplacement futur du climatiseur, vous pouvez connecter la prise à l'aide d'une boucle à partir d'un autre point électrique situé à proximité.
  2. Manière cachée d'allumer. Étant donné qu'avec cette technique, vous devez creuser les murs, il est logique de l'utiliser au stade de la rénovation de l'appartement.À l'aide d'un perforateur, vous devez créer des gouttières dans le mur, poser les fils dans les trous obtenus. Une extrémité du fil est connectée à la boîte de jonction, l'autre à la prise électrique. Ensuite, tous les trous doivent être soigneusement réparés, plâtrés et finis. La prise se fait directement à côté du climatiseur, il sera très pratique de l'allumer. Les fils avec une méthode cachée ne sont pas du tout perceptibles, la connexion est fiable, sûre. Aucun facteur externe ne peut causer des problèmes de câblage.
  3. Ouvrez la voie pour activer. S'il n'est pas possible de faire un câblage caché, il ne reste qu'une seule option - le câblage ouvert. Habituellement, il est effectué si la réparation dans la pièce est déjà terminée. À partir de la boîte de jonction, le câble est posé le long du mur directement vers le climatiseur. Il est permis le long du socle avec un canal de câble, un canal de câble mural est monté (cela est nécessaire pour donner un aspect plus esthétique à la pièce). Si vous le souhaitez, le câble peut être fixé avec de petits clous sans canal de câble.

Règles pour l'emplacement de la sortie du climatiseur: choisir le meilleur endroit pour l'installation

Le climatiseur lui-même a 2 blocs - externe, interne. Les experts installent le bloc externe à l'extérieur de la maison, le bloc interne - dans la pièce. L'unité, qui est située à l'extérieur, est alimentée par l'intérieur, ce dernier est connecté au réseau. Les deux cordons sont toujours inclus avec l'appareil, vous devez acheter la prise vous-même. Pour connecter les deux blocs, procédez comme suit :

  • enlever les panneaux décoratifs ;
  • supprimer la protection des bornes ;
  • démonter les serre-câbles ;
  • insérez les câbles dans les trous désignés ;
  • les extrémités des câbles sont nettoyées de la tresse, fixées avec des cosses;
  • remettre les panneaux décoratifs à leur place d'origine.

Une fois que l'appareil peut être connecté au réseau, utilisez-le.Une installation correcte, fournissant les paramètres réseau nécessaires est une garantie d'utilisation confortable du système split.

Options de climatisation dans une maison privée

Lors de la planification et du calcul du système de climatisation dans une maison privée, ils sont généralement guidés par les mêmes règles que dans les autres pièces - la taille de la zone, les sources de chaleur excessive, le nombre de personnes vivant, etc.

Mais lors de la construction d'une nouvelle maison, il est possible de bien réfléchir à l'emplacement des meubles et des systèmes de ventilation et de climatisation afin que les capteurs de contrôle soient correctement placés et ne désinforment pas le système climatique.

Lors du choix d'un modèle d'équipement pour une maison privée, de nombreuses autres options sont envisagées (de nombreux types de climatisation dans les immeubles d'appartements ordinaires sont difficiles à installer).

Par conséquent, en plus des systèmes split standard, les climatiseurs à canal et à cassette sont souvent montés à l'aide d'un grenier ou d'un grenier. Ils utilisent des systèmes universels plafond-sol ou multi-systèmes (pour les maisons de campagne à partir de 150 m². Systèmes multizones VRF et VRV).

Règles pour l'emplacement de la sortie du climatiseur: choisir le meilleur endroit pour l'installationL'installation d'une unité extérieure dans une maison de campagne se fait souvent sur une zone aveugle, sur une véranda ou sur un toit plat, dans ce cas il vaut mieux choisir des climatiseurs inverter avec un niveau de bruit réduit.

Et enfin, pour choisir où installer correctement le climatiseur afin qu'il soit harmonieux dans l'appartement, plusieurs méthodes de décoration éprouvées vous aideront:

  • décoration du climatiseur;
  • déguisement derrière un paravent décoratif;
  • placement dans une niche ou sur une étagère ouverte.

S'il n'y a pas de niche dans le mur, s'il n'y a pas d'écran ou d'étagère dans le bon ton, des options de conception alternatives simples sont possibles.

Règles pour l'emplacement de la sortie du climatiseur: choisir le meilleur endroit pour l'installationLa méthode de peinture décorative permet d'obtenir une combinaison harmonieuse du climatiseur et de l'intérieur. Le dessin est verni, ne se décolore pas, conserve longtemps son aspect d'origine.

L'impression photographique consiste à coller la façade du climatiseur avec des autocollants individuels pour correspondre à l'environnement. Avec la peinture artistique, le maître peint le corps du climatiseur avec des peintures acryliques ou un pistolet pulvérisateur spécial. Dans tous les cas, le climatiseur sera en harmonie avec le design de la pièce.

Le principe d'installation d'un climatiseur est généralement simple, mais les détails et les petites choses sont importantes, elles aideront l'équipement à fonctionner plus efficacement et nous nous sentirons plus à l'aise.

Types de commutateurs

Les interrupteurs sont des dispositifs de commutation à commande manuelle et sont utilisés pour allumer et éteindre les lumières. Ils ont des conceptions et des fonctions différentes, ce qui a conduit à leur division en types.

Interrupteurs avec détecteur de mouvement intégré

Les interrupteurs avec détecteur de mouvement sont principalement utilisés sur les escaliers et lors de la création de réseaux d'éclairage public. Ils sont assez faciles à utiliser : pour commencer à utiliser ces appareils, il suffit de les installer et de les configurer selon les instructions.

Règles pour l'emplacement de la sortie du climatiseur: choisir le meilleur endroit pour l'installationL'apparence des interrupteurs équipés d'un capteur de mouvement peut différer, mais fonctionnellement, ils sont très similaires

La base des interrupteurs avec capteur de mouvement sont des composants électroniques qui analysent en permanence les changements du niveau d'éclairage d'un objet (appartement, rue ou maison), ainsi que tout mouvement dans la zone de fonctionnement du capteur.

Le principe de fonctionnement des interrupteurs avec un capteur de mouvement

Le fonctionnement d'un interrupteur à capteur de mouvement est basé sur le balayage continu du rayonnement infrarouge (IR), couvert par le champ de vision du capteur (capteur), qui est généralement constitué de matériaux pyroélectriques. Fondamentalement, ces commutateurs sont grand angle de vue et installé sur les plafonds. En plus de surveiller la présence d'objets vivants, ils ont la capacité de modifier l'intensité de l'éclairage et peuvent également être utilisés dans divers systèmes de sécurité internes.

Règles pour l'emplacement de la sortie du climatiseur: choisir le meilleur endroit pour l'installationLe capteur de commutation allume l'éclairage lorsque des objets en mouvement apparaissent dans la zone de son action

Interrupteurs à distance

Le télérupteur est un ensemble composé d'une unité de commande compacte et d'une télécommande (il peut y en avoir plusieurs). L'appareil lui-même est assez similaire en apparence à un simple interrupteur de type plat. Une caractéristique distinctive de l'interrupteur à distance est la facilité d'installation, car pour l'installer, il n'est pas nécessaire d'effectuer des travaux préparatoires (stroboscope ou percer des murs), d'effectuer un câblage caché. Il suffit de trouver un endroit pratique, de prendre quelques vis et du ruban adhésif double face et de fixer l'appareil.

Règles pour l'emplacement de la sortie du climatiseur: choisir le meilleur endroit pour l'installationL'installation d'un interrupteur à distance ne nécessite pas de travaux électriques complexes

Principe fonctionnement des interrupteurs à distance

Le fonctionnement des télécapteurs est basé sur le principe de réception/émission. L'utilisateur appuie sur le bouton d'alimentation de la télécommande, créant ainsi un signal radio, qui reçoit alors un relais qui ferme ou ouvre, selon la commande donnée par la télécommande, un circuit en phase qui alimente la source lumineuse.Selon l'état du circuit, la lumière s'allume et s'éteint. La zone de couverture dépend directement des caractéristiques de conception de l'habitation, ainsi que des matériaux utilisés dans la construction. En général, la zone de couverture des capteurs à distance est de 20 à 25 m.Les émetteurs sont alimentés par des piles conventionnelles de 12 V (généralement suffisantes pour 5 ans).

Vidéo : interrupteur à distance

Commutateurs tactiles

Appareils petits et compacts construits à partir de plusieurs écrans tactiles pour une utilisation facile. Pour utiliser le switch de ce type, il suffit de toucher une fois son écran.

Règles pour l'emplacement de la sortie du climatiseur: choisir le meilleur endroit pour l'installationLes interrupteurs tactiles fonctionnent avec une légère pression du doigt

Ces commutateurs comprennent :

  • écran tactile (un élément qui répond au toucher et initialise l'envoi d'une commande pour un traitement ultérieur) ;
  • puce de contrôle (engagée dans le traitement et la conversion de la commande);
  • partie de commutation (fournit une commutation de puissance).

Grâce à l'utilisation de composants électroniques, il est possible de contrôler à distance des appareils d'éclairage et de connecter des éléments supplémentaires : capteurs de mouvement, de température et de lumière.

Règles pour l'emplacement de la sortie du climatiseur: choisir le meilleur endroit pour l'installationLes interrupteurs tactiles peuvent être équipés d'une télécommande

Vidéo : interrupteur tactile

Avant d'acheter un interrupteur d'un type ou d'un autre, vous devez vous familiariser avec les critères de sélection, qui seront décrits ci-dessous.

Règles et exigences

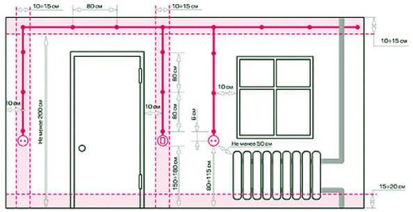
Règles pour l'emplacement de la sortie du climatiseur: choisir le meilleur endroit pour l'installation

Elle est généralement comprise entre 0,8 et 1,8 kW, selon la zone à refroidir. Prise 16 ampères - idéale, mais uniquement pour les petits espaces.

La meilleure option pour un refroidisseur serait d'installer une prise de courant séparée. Assurez-vous d'effectuer la mise à la terre.

Il est préférable de choisir des fils avec du cuivre

Assurez-vous qu'ils peuvent supporter la charge maximale pouvant être appliquée simultanément et qu'ils sont protégés par la machine.

Il n'y a pas de règles spécifiques qui régissent l'emplacement de la prise. Chaque chambre est considérée sur une base individuelle.

L'emplacement des meubles et la communication avec les autres appareils électriques sont importants. Nous sommes habitués au fait que l'intérieur du climatiseur est situé sous le plafond, et comme la prise doit être proche de celui-ci, elle est placée à 0,3 mètre sous le plafond.

Vous avez le droit de placer le point d'alimentation à un endroit différent, mais vous devez également tenir compte de l'endroit où le fil se cachera. Dans la plupart des cas, la longueur du fil est inférieure à 1 mètre.

Laissez-vous guider par ce paramètre lors de l'installation afin de ne pas avoir à utiliser de rallonge.

Connexion réseau

Avant de vous connecter au réseau, connectez unité extérieure et intérieure Conditionneur. Les travaux sont effectués dans l'ordre suivant:

  • le panneau extérieur est retiré ;
  • le capot de protection est retiré des bornes ;
  • le serre-câble est démonté ;
  • le câble est installé dans le trou sur la surface arrière du refroidisseur ;
  • les extrémités du fil du câble sont dénudées et serrées dans les bornes ;
  • le fil est attaché avec une pince;
  • une couverture décorative est installée.

Si une ligne séparée est posée, les recommandations suivantes doivent être respectées lors de l'installation pour alimenter le dispositif de refroidissement :

  • l'accès au câblage doit être assuré pendant les travaux de réparation ;
  • il est nécessaire de poser le fil dans des plans horizontaux ou verticaux;
  • la distance entre les fils adjacents ne doit pas être inférieure à 3 mm;
  • la connexion est effectuée avec des bornes ou des boulons spéciaux.
  • Pour que le climatiseur fonctionne efficacement pendant longtemps, lors du choix d'une prise, il convient de prendre en compte non seulement ses caractéristiques de qualité. Il doit être adapté à la charge utilisée et avoir une connexion fiable au système de refroidissement.

Salon

1. À la porte

Pour l'emplacement des interrupteurs et prises à la porte du salon, les mêmes règles s'appliquent que dans la cuisine : hauteur 75-90 cm, accès libre pour tous les membres de la famille de hauteurs différentes.

Une prise est également nécessaire dans la zone d'entrée : pour un aspirateur ou un radiateur. En moyenne, la hauteur du sol doit être de 30 cm, de la porte - 10 cm.

2. Dans la zone TV

La télévision est un must pour beaucoup dans le salon. Le coin TV a besoin de plusieurs prises. La hauteur moyenne des emplacements est de 130 cm, ils ne seront alors pas visibles derrière l'équipement. Vous aurez besoin de 2 prises électriques et d'une prise TV et Internet.

Design : Studio NW-Intérieur

3. Dans le coin canapé

Lors de la planification des prises dans le salon, vous devez tenir compte de l'emplacement des lampadaires, des appareils électriques, ainsi que des prises supplémentaires pour un ordinateur portable et un téléphone. La hauteur moyenne de l'emplacement est de 30 cm.

Souvent, lors de la planification des prises dans les salons, ils oublient les appareils tels que les climatiseurs, les foyers électriques, les humidificateurs d'air et les consoles de jeux. Considérez les appareils que vous avez, ceux que vous envisagez d'acheter et, en fonction de cela, planifiez le nombre de prises.

4. Sur le bureau

Souvent, le salon est aussi un espace de travail. Dans ce cas, plus de points de vente seront nécessaires. Prévoyez 2-3 pièces à l'endroit où se tiendra le bureau.Il est plus pratique de les placer au-dessus de la table pour ne pas grimper dessous à chaque fois pour l'allumer/éteindre, mais tout le monde n'aime pas cette solution esthétiquement. Si vous avez un ordinateur de bureau, vous pouvez mettre les prises en bas - il est peu probable que vous l'allumiez et l'éteigniez constamment.

Conception : ItalProject

Où est-il préférable d'installer la climatisation dans un appartement de deux pièces

Il n'est pas rare d'entendre une telle question. En partie, j'ai déjà donné la réponse, exprimant mon opinion. A savoir, j'ai dit qu'il est plus efficace d'installer un climatiseur dans une pièce précise, et non dans le couloir. Alors, dans quelles pièces vaut-il mieux installer l'appareil ? Je vais donner quelques recommandations avec lesquelles vous pouvez déterminer le placement des blocs pour un cas spécifique.

"Dvushka" se compose souvent de trois pièces "vivantes" - un salon, une chambre et une cuisine. Déterminez où nous nous reposons et dormons le plus. Je crois que la chambre à coucher à cet égard devrait avoir la priorité. Puisque toute personne passe presque un tiers de sa vie dans un rêve ! Si l'appartement est aussi un lieu de travail, nous déterminons nous-mêmes où nous passons le plus de temps.

On calcule la chambre de deuxième priorité selon le même principe. Si vous avez du mal à choisir, alors je vous suggère de rester dans le salon (où nous avons aussi beaucoup de repos).

Après avoir déterminé les priorités pour les chambres, NOUS CONSIDÉRONS NOS POSSIBILITÉS FINANCIÈRES ET NOS SOUHAITS. Si vous envisagez de vous débrouiller avec un seul climatiseur, nous le mettons en fonction de vos besoins (je le recommande dans la chambre).

Si le budget le permet, alors une bonne solution serait d'installer des "condeys" dans les deux pièces principales (chambre et salon par exemple). Et en même temps, il vaut mieux prendre en compte une petite marge de puissance.Par exemple, si le salon et la chambre ont chacun une superficie de 15 mètres carrés, alors vous pouvez mettre 2,7 kW dans chacun des "neuf" (bien que les "sept" en termes de puissance de 2 kW conviendraient tout à fait pour chacune des chambres !). Ce remplacement ne coûtera pas beaucoup plus cher, mais dans cette situation, la fraîcheur vitale «atteindra» même le couloir et la cuisine.

S'il n'y a pas d'argent du tout, installez des climatiseurs dans chaque pièce à vivre (chambre, salon, cuisine).

Évaluation
Site sur la plomberie

Nous vous conseillons de lire

Où remplir la poudre dans la machine à laver et combien de poudre verser