- Étapes de conception et contenu du projet MKD
- Etude des cahiers des charges et documents du site
- Enquête d'ingénierie
- Préparation et justification des décisions architecturales, urbanistiques et autres
- Conception de systèmes d'ingénierie
- Élaboration de mesures de protection et de sécurité
- Préparation de la documentation du projet
- Quelles sont les exigences pour un chantier de construction?
- Étapes de conception
- Étape #1 - préparation des calculs et des tâches
- Étape #2 - sélection de l'équipement approprié
- Étapes de conception
- Quels documents et enquêtes sont nécessaires pour développer un avant-projet
- Classification des systèmes de climatisation domestiques et industriels
- Système divisé
- Climatiseurs semi-industriels
- Systèmes multisplit
- Multizonal
- Systèmes refroidisseur-ventilo-convecteur
- Normes de conception
- Quelles sont les solutions constructives et d'aménagement de l'espace
- Règlements
- en langage clair
- Règles pour choisir un système de climatisation
- Ventilation locale
- Nomination de ventilation dans la maison
- Étapes de conception du système
- Documents et matériaux graphiques basés sur les résultats du développement du concept architectural
Étapes de conception et contenu du projet MKD
Le projet de construction d'un MKD comprend des sections obligatoires et supplémentaires.Le contenu du document et de chaque section est déterminé par le décret n ° 87 et le développement doit être conforme à GOST R 21.1101-2013.
Etude des cahiers des charges et documents du site
Avant de concevoir, il est nécessaire d'étudier les exigences du client pour le résultat des travaux. Ils sont précisés dans le cahier des charges et le contrat avec l'organisme de conception. Les principaux documents d'urbanisme et de zonage, GPZU, contrat de bail, autres formulaires et formulaires sont également à l'étude. Selon les documents soumis, les conditions et la procédure de réalisation des études techniques et autres enquêtes sont déterminées.
Enquête d'ingénierie
Selon le Code civil de la Fédération de Russie, les études d'ingénierie sont une étape obligatoire dans la conception d'un MKD. Au cours de la recherche, les activités suivantes sont réalisées :
- préparation de la base géologique pour la construction future, c'est-à-dire étude de la composition et de la qualité du sol et du sol, des emplacements de l'ingénierie souterraine et de surface et des communications de transport;
- analyse des conditions climatiques sur le chantier de construction;
- évaluation de l'état du relief et du paysage, détermination de l'emplacement des constructions, emplacements et déplacement des équipements, stockage des matériaux ;
- détermination de l'emplacement des structures d'enceinte (en tenant compte des instructions des autorités municipales).
Toujours à ce stade, des restrictions sur les paramètres de construction en termes de superficie, de nombre d'étages, d'emplacement des zones de protection et sanitaires sont à l'étude. Tous les résultats des études d'ingénierie sont établis sous forme de documents qui seront indiqués dans le contenu du projet.

Un logiciel moderne vous permet de créer une visualisation du futur objet déjà au stade de la conception
Préparation et justification des décisions architecturales, urbanistiques et autres
L'apparence et l'aménagement du futur bâtiment dépendent des décisions que choisiront les architectes et les concepteurs. Le choix des décisions est influencé par la documentation d'urbanisme de la colonie, le nombre d'étages et la superficie de la future maison, la disponibilité des infrastructures urbaines et sociales et d'autres facteurs. Toutes les décisions architecturales, d'aménagement de l'espace et autres doivent être justifiées dans les sections pertinentes du projet.
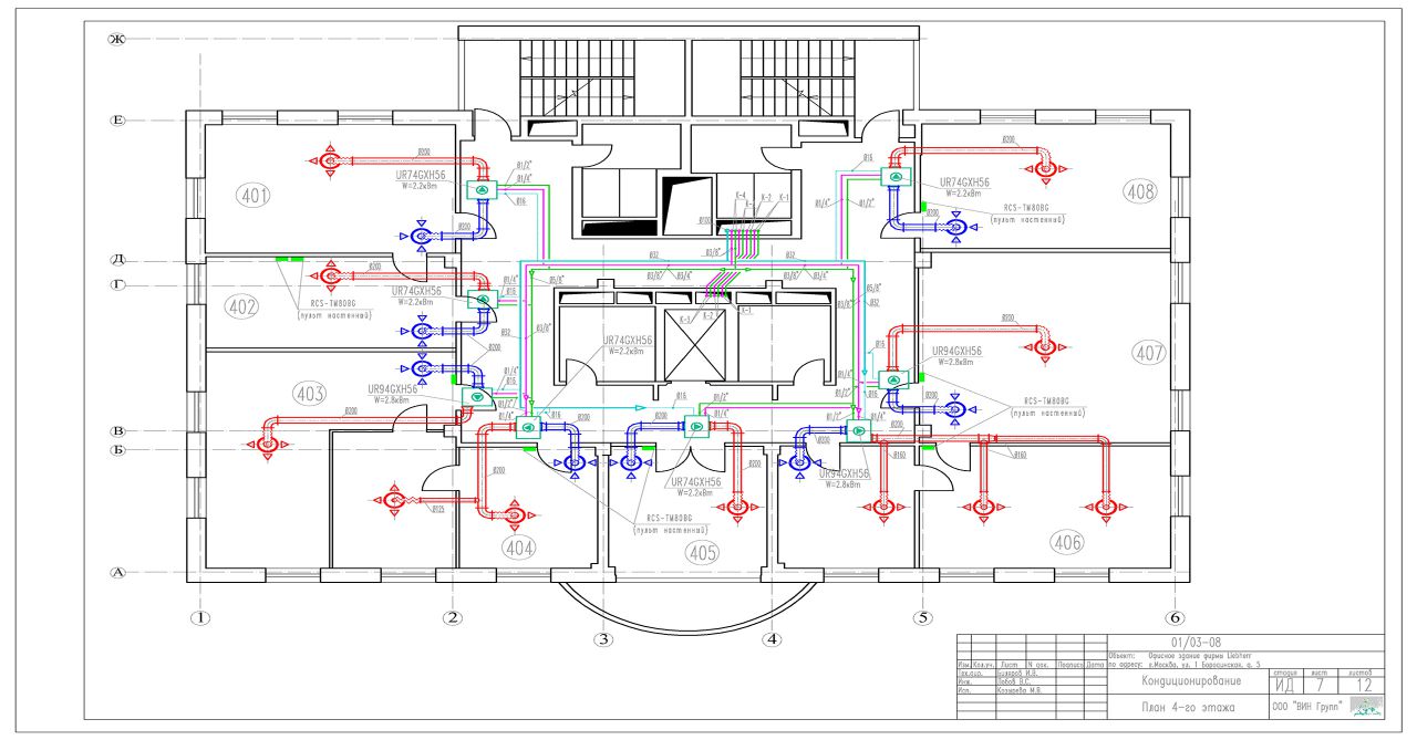
Conception de systèmes d'ingénierie
Pour chaque MKD, des systèmes d'ingénierie sont développés - alimentation en eau et assainissement, alimentation en énergie, alimentation en gaz, ventilation, etc. Les communications d'ingénierie doivent être conformes à l'architecture et à l'aménagement du bâtiment, couvrir tous les locaux résidentiels et auxiliaires. Les indicateurs de connexion admissibles et les limites de consommation sont indiqués dans les spécifications techniques des organismes fournisseurs de ressources, le concepteur doit donc en tenir compte dans les travaux.

Le projet MKD comporte des sections pour tous les systèmes d'ingénierie, des schémas graphiques pour placer des réseaux
Élaboration de mesures de protection et de sécurité
Une exigence obligatoire pour la conception de MKD est le développement d'une section avec des mesures de sécurité incendie et autres. Cela comprend les voies d'évacuation et les échelles de secours, les systèmes d'alarme incendie et d'extinction d'incendie. De plus, des mesures de sécurité devraient être élaborées pour l'entrepreneur qui effectuera les travaux de construction.
Préparation de la documentation du projet
La liste ci-dessus n'est pas une liste complète des étapes de conception. Par exemple, les documents finaux doivent indiquer les exigences en matière de matériaux et de structures de construction, l'emplacement des clôtures, les plans d'organisation de la construction. Toutes les sections du projet contiennent une description textuelle et des éléments graphiques.Le bloc de texte indique les décisions et leur justification, les explications et les recommandations de construction. La partie graphique comprend des schémas, des dessins, des tableaux, d'autres documents et des objets.
Au cours du processus de conception, diverses méthodes de visualisation peuvent être utilisées, notamment pour clarifier les détails individuels du futur objet avec le client. Après avoir rempli toutes les sections du projet conformément au décret n ° 87, celui-ci doit être approuvé par le client. De plus, la documentation est envoyée pour examen afin d'obtenir un permis de construire.

Le contenu de la documentation du projet comprendra des plans d'étage montrant tous les locaux
Quelles sont les exigences pour un chantier de construction?

- Les sources d'eau doivent être situées à proximité du chantier de construction. À condition de construire une entreprise avec approvisionnement en eau, sa zone d'eau doit être d'une longueur et d'une capacité optimales non seulement pour le déchargement, mais également pour le tri des matières premières utilisées.
- Le site choisi ne doit pas être limitrophe à l'endroit où l'exploitation minière est ou sera effectuée. Ce principe s'applique également aux zones d'effondrement liées aux travaux souterrains et aux zones où des glissements de terrain sont possibles.
- La propriété et l'état du sol sur le site doivent permettre une certaine charge de construction. Cet indicateur est pris en compte lors de l'aménagement de la fondation, ce qui implique l'utilisation d'un tel indicateur comme charge inertielle (utilisation de machines vibrantes, marteaux, scieries).
- Le relief doit être aussi pratique que possible, ainsi que le territoire qui lui est adjacent. Cela réduira la quantité d'excavation et l'aménagement sera minime. Le site choisi pour la construction ne doit pas être inondé.Dans ce cas, le niveau de la nappe phréatique doit être bas.
- La configuration et les dimensions du chantier doivent assurer l'emplacement optimal du bâtiment, en fonction du processus de production approuvé. Dans le même temps, toutes les exigences et normes concernant l'expansion éventuelle et le fonctionnement ultérieur de la structure sont prises en compte.
Étapes de conception
L'élaboration d'un plan des travaux nécessaires s'effectue en deux étapes successives, comprenant la préparation de tous les calculs nécessaires, les estimations, les spécifications techniques pour les spécialistes des domaines connexes et la sélection d'une gamme d'équipements modèles appropriés.
Étape #1 - préparation des calculs et des tâches
La préparation consiste à se familiariser avec le bâtiment, son emplacement, les caractéristiques de construction et d'autres facteurs.
Des spécialistes établissent une étude de faisabilité sur la base de laquelle le type de système de climatisation est approximativement sélectionné. Ce dernier est décrit de manière simplifiée.
Le schéma simplifié montre les éléments clés du système de climatisation, les unités de distribution de réfrigérant et les principales unités de climatisation
Le master propose des équipements potentiellement performants qui répondent aux besoins des locaux en termes de caractéristiques de base :
- Puissance;
- performance de froid, de chaleur et d'air.
Après cela, un devis des travaux futurs est établi. Si le projet d'étude de faisabilité satisfait le propriétaire de l'immeuble ou de l'appartement, la phase préparatoire passe à la phase de travaux.
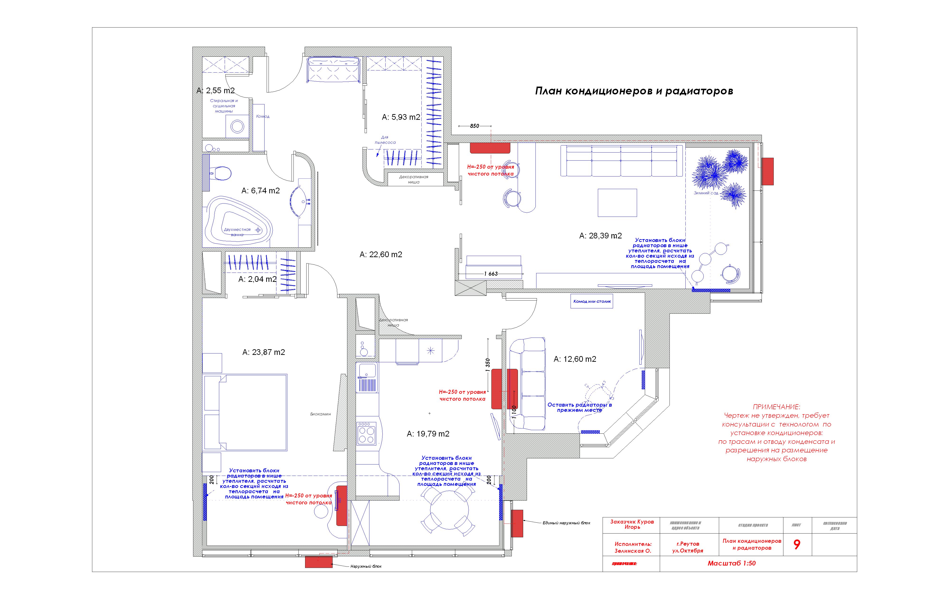
Étape #2 - sélection de l'équipement approprié
A ce stade, la conception est basé sur des calculs précis qui prennent en compte la charge thermique interne et externe, les caractéristiques thermiques de l'objet. Les calculs sont effectués individuellement pour chaque pièce, après quoi la chaleur excédentaire dans chaque zone est connue avec précision. Sur la base de ces données, l'équipement nécessaire pour compenser les charges thermiques est sélectionné.
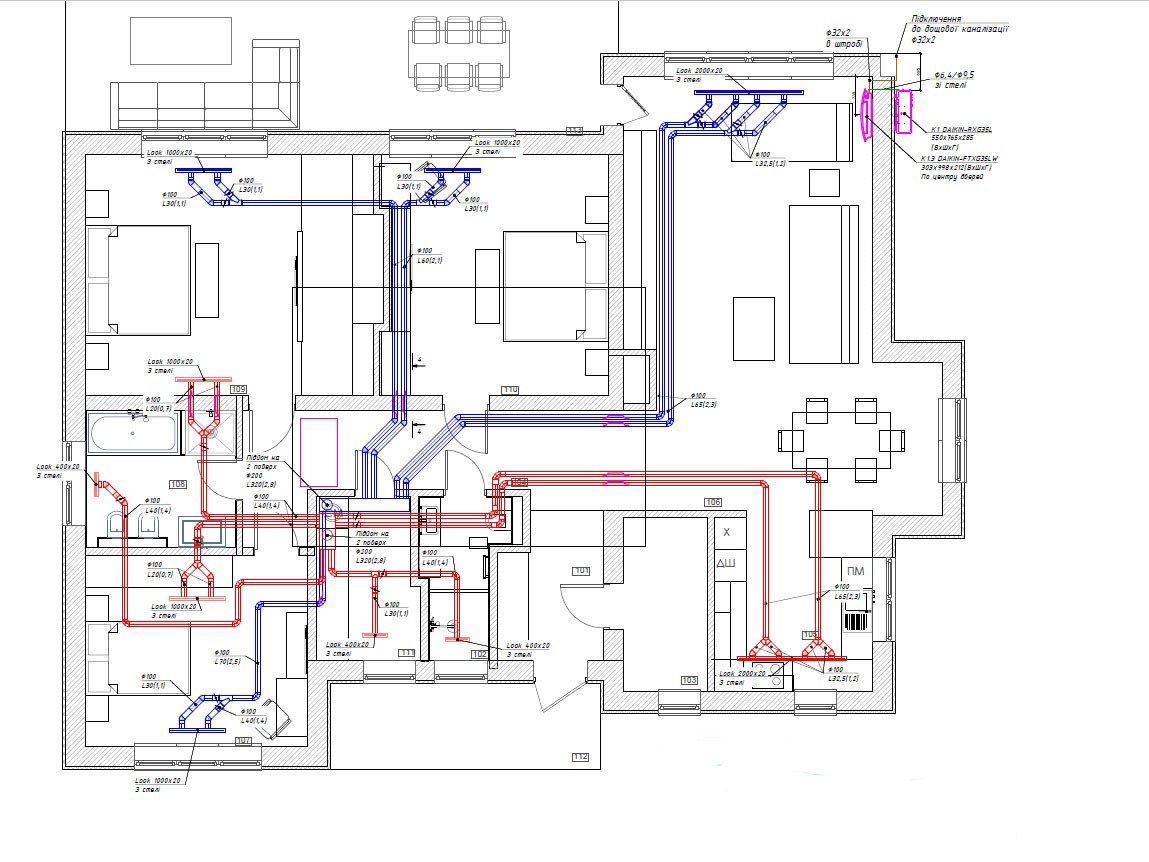
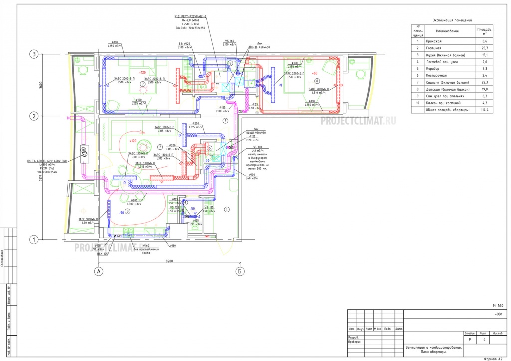
Après le choix des équipements, la conception des sites d'installation des climatiseurs commence, un schéma de la répartition des conduits d'air est fourni, un plan de travail technique est préparé pour l'équipe d'installation, les électriciens.
Tous les matériaux préparés sont transférés au client et au fournisseur d'équipements climatiques. Après l'installation, il est souhaitable d'effectuer la mise en service, ce qui aidera à mettre en place le fonctionnement de l'équipement.
Étapes de conception
La conception de la climatisation comprend deux étapes principales :
- Projet d'étude de faisabilité. À ce stade, l'emplacement des climatiseurs est déterminé, tel que leur sélection, les calculs des indicateurs de chaleur et d'air et d'autres paramètres importants. Sur la base de l'ensemble complet, un schéma primaire est développé et convenu avec le client.
- approbation Après le client du schéma principal, commence la conception opérationnelle du projet, dont le processus consiste à traiter l'aménagement de la pièce, les caractéristiques thermiques de la pièce elle-même et la tâche technologique. Un calcul d'échange d'air direct est effectué pour chaque pièce de la pièce, les indicateurs sont affichés pour la pression requise dans le réseau et la dissipation thermique. Tous les plans nécessaires sont en cours d'élaboration pour les emplacements futurs des équipements d'installation et du câblage du réseau.La sélection finale de la technologie climatique et la préparation des spécifications pour celle-ci et l'ensemble du processus dans les matériaux requis sont effectuées.
Quels documents et enquêtes sont nécessaires pour développer un avant-projet
L'élaboration des croquis et de leurs descriptions doit être basée sur les données initiales du site, pour le bâtiment existant. La liste des documents utilisés dans la conception d'un projet de conception comprend :
- documents de titre pour le site ;
- plans et schémas du terrain sur lequel les travaux de construction seront effectués ;
- plans topographiques et géodésiques, schémas, qui enregistrent les caractéristiques du relief du site, les coordonnées et les hauteurs ;
- documents et matériel graphique sur les bâtiments environnants ;
- résultats des études d'ingénierie sur le site.
S'il existe déjà des objets et des réseaux sur le site, y compris souterrains, ils sont également pris en compte lors de l'élaboration des croquis. Les premières informations sur le site et l'ouvrage seront obtenues au cours d'enquêtes, sondages, inspections.
Pour préparer et justifier des projets de solutions, les informations suivantes seront requises :
- sur les paramètres de construction autorisés sur ce site (ces informations peuvent être trouvées dans le GPZU, les documents d'urbanisme, les règlements techniques);
- sur les exigences architecturales et artistiques pour l'apparence et les façades du bâtiment (ces exigences seront différentes selon les quartiers, les quartiers et les rues de la ville) ;
- sur les interdictions et restrictions existantes sur le site (cela affectera le choix de l'emplacement de l'objet au sol).
Des levés topographiques et des levés géodésiques seront effectués au cours des levés sur le site.Selon leurs résultats, vous pouvez connaître toutes les caractéristiques de la structure du sol et des sols, le terrain, les emplacements exacts des installations souterraines. Les mêmes informations seront nécessaires aux étapes de conception ultérieures, lorsque le choix et la justification des décisions d'objet spécifiques sont faits.

Lors de la préparation des croquis, vous pouvez réaliser simultanément un projet d'aménagement paysager pour le site
Classification des systèmes de climatisation domestiques et industriels
Système divisé
Le climatiseur d'entrée de gamme le plus simple se compose d'unités extérieures et intérieures, ce sont les climatiseurs domestiques les plus courants qui sont parfaits pour les appartements, mais des systèmes plus complexes sont utilisés pour les grandes installations. La puissance de la série domestique ne dépasse généralement pas 7 kW de puissance de réfrigération.
Climatiseurs semi-industriels
Les climatiseurs plus puissants de cette gamme sont déjà considérés comme semi-industriels, car ils sont déjà trop grands pour les appartements, ils conviennent aux petits magasins, bureaux, petites industries et autres locaux où la fabricabilité et l'apparence ne sont pas très importantes. Les climatiseurs semi-industriels ne dépassent souvent pas une puissance de 25 kW, mais il y en a plus.
Systèmes multisplit
Le niveau suivant est déjà multi climatiseurs, à une unité extérieure auquel vous pouvez connecter jusqu'à 5 unités intérieures avec une puissance totale allant jusqu'à 9 kW. Cette technique permet à une seule unité extérieure de couvrir les besoins en froid de tout l'appartement ou d'un petit bureau ou magasin.
Viennent ensuite les multi-systèmes d'un niveau supérieur, vous permettant de connecter jusqu'à 9 unités intérieures à une unité extérieure, la différence de ce système est que le système a une ramification. Les répartiteurs de bloc sont connectés à l'unité extérieure, à laquelle connexion des unités intérieures. Une merveilleuse solution, tant pour les chalets que pour les grands appartements, pour les magasins et les bureaux, comme la puissance est déjà à la hauteur 16kw
Multizonal
Le niveau technologique suivant est celui des systèmes VRV / VRF, le nombre d'unités intérieures peut atteindre jusqu'à 40, pour un système, dont la puissance peut être de 50 à 60 kW, ces systèmes peuvent être combinés selon le fabricant jusqu'à 3-4x, avec une capacité totale de 180-200kW et le nombre de blocs intérieurs jusqu'à 120 ou plus. Le système est idéal pour les grands magasins, les hôtels, les grands immeubles de bureaux et divers autres bâtiments. Le système est de très haute technologie, il peut être connecté à un système de ventilation d'air, il peut être utilisé pour le chauffage des locaux, il peut être connecté à des unités de chauffage à eau chaude, autant de fonctions sont fournies par un seul appareil. Une autre caractéristique est que le système peut récupérer la chaleur et la redistribuer à l'intérieur du bâtiment. Par exemple, les salles de serveurs génèrent toujours de la chaleur, elle peut être collectée et transférée dans des pièces où le chauffage est nécessaire, pendant la période de transition lorsque le soleil éclaire une partie du bâtiment, il devient chaud dedans et il fait froid du côté non éclairé , et le système peut refroidir la partie solaire, transférant la chaleur à l'ombre. C'est un tout nouveau niveau d'efficacité énergétique.
Systèmes refroidisseur-ventilo-convecteur
Tous les systèmes ci-dessus sont des systèmes à évaporation directe, ce sont
signifie que le fréon s'évapore à l'intérieur de chaque unité intérieure et que la circulation du fréon est assurée par le compresseur de l'unité extérieure. À cet égard, il existe un certain nombre de restrictions sur la longueur des canalisations de ces systèmes.Après tout, plus l'itinéraire est grand, plus le compresseur est puissant, ce qui augmente le prix et les coûts d'exploitation et réduit l'efficacité énergétique du système. L'essence des systèmes de refroidissement indirect est que la machine de réfrigération (refroidisseur) refroidit l'eau, mais elle peut déjà être transportée à n'importe quelle distance, et cela ne nécessite pas d'augmentation de la puissance du compresseur, il suffit d'installer une pompe plus puissante, et les consommations énergétiques de la pompe et du compresseur sont incommensurables. La gamme de modèles de refroidisseurs est très large et commence à partir de 6 kW et se termine par des machines de plus de 2 MW.
Normes de conception
Il ne fonctionnera pas de considérer exactement comment les projets de systèmes de ventilation sont préparés dans tous les cas possibles.
Par conséquent, il est important de se concentrer sur des points caractéristiques communs. Les principes sont inscrits dans les trois règlements suivants :
- Couper;
- normes sanitaires et épidémiologiques;
- SanPiN.
Important: les systèmes de ventilation des complexes d'entrepôts et des sols d'usine ne sont pas soumis aux mêmes règles de construction et sanitaires qui sont nécessaires pour la conception des locaux d'habitation. Il est strictement interdit de confondre ces règlements
Tout projet doit répondre aux exigences suivantes :
- pureté de l'air et microclimat;
- fonctionnement à long terme des équipements de ventilation et de climatisation ;
- simplification de la réparation de ces systèmes ;
- activité sonore et vibratoire limitée (même pour la ventilation d'urgence) ;
- sécurité en matière d'incendie, sanitaire et explosive.
Il est interdit de prévoir dans les projets tous ces matériaux et structures, ainsi que leurs combinaisons, qui ne sont pas permis pour ce type de bâtiment ou pour une certaine zone.Tous les matériaux et pièces qui doivent être certifiés sont mentionnés dans les projets uniquement avec des informations sur les certificats. La prise d'air minimale par personne dans les pièces et locaux à prise d'air naturel doit être de 30 mètres cubes. m. Pour les zones qui, pour une raison quelconque, ne sont pas ventilées par les fenêtres, ce chiffre doit être au moins deux fois plus élevé.
Quelles sont les solutions constructives et d'aménagement de l'espace
La base de tout objet de construction capital est la totalité de ses structures porteuses et non porteuses - fondations, plafonds, murs, cloisons, escaliers et cages, éléments souterrains. Les exigences relatives à leur placement dans le volume total du bâtiment doivent être prises en compte dans la documentation du projet. À cette fin, une section spéciale du projet «Solutions constructives et d'aménagement de l'espace» est en cours de remplissage.
L'ensemble des solutions de conception comprend toutes les structures horizontales, verticales et inclinées du bâtiment, qui assurent sa stabilité et sa résistance. Les solutions d'aménagement de l'espace prévoient l'organisation du volume interne du bâtiment, de ses locaux principaux et auxiliaires.
Règlements
Les documents réglementaires de base pour l'élaboration de la documentation du projet sont le Code civil de la Fédération de Russie et le décret du gouvernement de la Fédération de Russie n° 87 (télécharger). En savoir plus ici. Ces actes prévoient l'inclusion obligatoire dans le projet de la section « Solutions constructives et d'aménagement de l'espace ». Le décret n ° 87 (télécharger) contient une liste d'informations qui doivent être indiquées dans les parties textuelles et graphiques de cette section. Il existe également un règlement technique général sur la sécurité des bâtiments et des ouvrages.Il est approuvé par la loi fédérale n ° 384 (télécharger) et doit être utilisé dans le développement de tout type de documentation de projet.
De plus, lors de la conception, il est nécessaire de prendre en compte les exigences de la coentreprise, SNiP. GOST et NPB, y compris :
- SP 118.13330.2012 pour les bâtiments publics ;
- SP 54.13330.2016 pour les immeubles à appartements ;
- SP 56.13330.2011 pour les bâtiments industriels ;
- SP 31-107-2004 concernant la conception de solutions architecturales et constructives (télécharger);
- autres réglementations, en fonction des caractéristiques fonctionnelles et du type d'objet.
Les solutions structurelles et d'aménagement de l'espace doivent être conformes aux exigences de sécurité incendie, sanitaires et hygiéniques, mécaniques et autres, assurer la résistance et la stabilité du bâtiment. Pour vérifier ces critères pour la construction du bâtiment et la reconstruction, le projet fera l'objet d'un examen, après quoi il sera transféré pour la délivrance d'un permis de construire.
en langage clair
L'objectif de la conception de solutions structurelles et d'aménagement de l'espace est de décrire toutes les structures et éléments de support de l'installation, une liste des travaux à venir et des exigences relatives aux caractéristiques des matériaux de construction. Dans cette section, le concepteur doit fournir :
- caractéristiques du sol, du paysage, des niveaux des eaux souterraines sur le site, des conditions climatiques pour la construction de l'exploitation de l'installation ;
- caractéristiques de conception du bâtiment et de tous ses locaux, avec les calculs de charge nécessaires et la réflexion sur les schémas spatiaux ;
- exigences de résistance, de stabilité, d'immuabilité spatiale de l'objet et de ses éléments individuels;
- caractéristiques de la construction des parties souterraines du bâtiment;
- les spécificités de la planification et de l'exploitation des locaux industriels de différents types;
- exigences en matière de protection thermique, de réduction des niveaux de bruit, de vibrations et d'autres impacts négatifs, d'étanchéité et d'autres critères réglementaires ;
- exigences en matière de sécurité incendie et d'économie d'énergie;
- caractéristiques de conception des sols, des plafonds, de la décoration intérieure du bâtiment.
La description de toutes ces nuances s'accompagne de la préparation de schémas, dessins, plans et explications. Sur la base des solutions de conception et d'aménagement de l'espace, une documentation de travail sera préparée pour l'entrepreneur.
Règles pour choisir un système de climatisation
Lors du choix d'un système de climatisation, toutes les options possibles sont prises en compte. Il est recommandé de se concentrer sur trois variétés du système. En particulier, une analyse complète du problème est nécessaire, en tenant compte des différentes options et exigences pour un système particulier.
Une attention particulière doit être portée aux exigences suivantes :
- Sanitaire. Dans ce cas, les paramètres de température et d'humidité établis doivent être maintenus. Le contrôle précis de l'humidité est la principale raison de l'augmentation du coût du système de climatisation. Le système de transport de masse d'air peut être naturel ou forcé. Un système d'échappement ou un équipement de pompage peut être utilisé pour évacuer l'air.
- Architecture et construction. Les climatiseurs peuvent être installés selon différentes méthodes. Le plus populaire d'entre eux est l'installation sur rue ou sur façade d'une unité extérieure avec le raccordement d'une unité intérieure située à l'intérieur du bâtiment. Une option alternative est un système de plafond divisé.Si la structure a de grandes dimensions, il est conseillé d'installer un climatiseur central dans la partie du toit du bâtiment. De plus, les exigences de construction sont associées à la possibilité d'installer des conduits d'air et des éléments de communication.
- Ignifuger. Ces exigences sont classées en plusieurs catégories. Les locaux ordinaires appartiennent à la catégorie "D", les explosifs et les incendies - aux catégories "A" et "B", et les incendies - à la catégorie "C". L'organisation de toutes sortes d'événements est réalisée en tenant compte de l'une ou l'autre catégorie de locaux.
- Opérationnel. Il est nécessaire de choisir un mode de contrôle du système : centralisé au moyen d'une télécommande ou autonome avec changement manuel des paramètres de fonctionnement.
Ventilation locale
La ventilation à alimentation locale comprend des douches à air (flux d'air concentré à une vitesse accrue). Ils doivent fournir de l'air pur aux lieux de travail permanents, réduire la température de l'air ambiant dans leur zone et souffler sur les travailleurs exposés à un rayonnement thermique intense.
La ventilation locale comprend des oasis d'air - des zones de locaux clôturées du reste des locaux par des cloisons mobiles de 2 à 2,5 m de haut, dans lesquelles de l'air à basse température est injecté. La ventilation locale est également utilisée sous la forme de rideaux d'air (au niveau des portails, des poêles, etc.) qui créent en quelque sorte des cloisons d'air ou modifient la direction des flux d'air. La ventilation locale est moins coûteuse que la ventilation générale.Dans les locaux industriels, lorsque des risques (gaz, humidité, etc.) sont dégagés, on utilise généralement un système de ventilation mixte - commun pour éliminer les risques dans tout le volume du local et local (aspiration et refoulement locaux) pour desservir les postes de travail.
Nomination de ventilation dans la maison
Étant à l'intérieur, une personne inhale une grande quantité d'air. Si le système de ventilation n'est pas correctement organisé, l'air peut stagner - sa teneur en oxygène diminue, il devient humide et poussiéreux. Tout cela affecte négativement le bien-être général d'une personne, et chez les personnes souffrant de maladies respiratoires et d'allergies, cela peut provoquer l'apparition de maladies.
Pour éviter la stagnation de l'air, il est nécessaire de ventiler périodiquement la pièce en ouvrant les fenêtres et les portes donnant sur la rue. Ce sont ces actions qui assurent l'entrée d'air frais, et sa sortie s'effectue par les systèmes de ventilation générale de la maison, qui sont obligatoirement organisés dans chaque bâtiment moderne.

Cependant, les fenêtres et les cadres de porte modernes à double vitrage ne fournissent pas un flux d'air suffisant. Il est pratique de les ouvrir en été, mais il est plutôt problématique de les utiliser en hiver sous notre climat. De plus, l'écologie de certaines zones est également très préjudiciable à la santé humaine et il n'existe aucun système de filtration pour une telle ventilation naturelle.
Un système central de ventilation et de climatisation est conçu pour fournir au bâtiment une bonne ventilation.
Étapes de conception du système
La conception de la climatisation des installations industrielles et publiques doit être confiée à des spécialistes qualifiés. L'efficacité et la productivité de la future installation dépendent de la conception correcte du projet.
Au stade initial, les concepteurs étudient l'objet. Assurez-vous d'établir un plan de conditionnement.

Dans ce cas, les effets thermiques internes et externes sont pris en compte, à savoir :
- la présence de liquides, substances ou matériaux chauffés dans la pièce ;
- apport de chaleur de la rue pendant la saison chaude ;
- libération d'énergie thermique par les équipements de travail dans les installations de production ;
- chaleur qu'une personne émet au cours de sa vie;
- exposition au soleil;
- chauffer l'air avec des radiateurs et des lampes.
Tout en été sources d'énergie thermique doivent être neutralisés et en hiver, ils doivent être pris en compte lors de la planification des charges sur les équipements de climatisation.
Le processus de conception se décompose en plusieurs étapes :
- Détermination du renouvellement d'air normal dans chaque pièce.
- Identification des sources d'énergie thermique.
- Compilation d'une liste d'exigences supplémentaires pour le système de climatisation.
- Sélection du projet en tenant compte des conditions d'exploitation du bâtiment.
- Plusieurs options pour la justification économique des décisions de conception.
- Réconciliation du projet avec les exigences initiales.
- Développement détaillé du projet.
- Coordination de la documentation du projet.
Après accord avec le client, le projet est remis aux installateurs qui installeront et raccorderont les équipements de climatisation.
Documents et matériaux graphiques basés sur les résultats du développement du concept architectural
Le concept architectural est un ensemble des matériaux de texte suivants :
- description et justification de l'apparence du bâtiment, caractéristiques de l'aménagement et de l'organisation fonctionnelle, paramètres et caractéristiques de l'objet;
- description des caractéristiques du terrain à bâtir;
- description de la façade et des schémas de couleurs ;
- description et justification du système d'éclairage extérieur de l'objet et du site ;
- description des éléments d'amélioration du site ;
- indicateurs techniques et économiques, calculs des charges d'ingénierie.
Tout aussi importante est la partie graphique, qui comprend le général plan de terrain, croquis et tracé des façades le long des rues, plans d'étage, coupes. La liste exacte des matériaux textuels et graphiques est déterminée par le TOR, les caractéristiques de l'objet conçu.

L'ensemble de documents comprend des croquis et des dessins pour l'apparence du futur bâtiment.





























