- Ce qui est requis pour le calcul
- Programme escargot pour chauffage au sol téléchargement gratuit
- Faire une demande:
- Méthodes de pose des tuyaux de chauffage au sol
- Avantages et inconvénients du chauffage au sol comme chauffage principal
- L'appareil d'un plancher chauffant à l'eau dans la maison
- Distance minimale entre les soudures
- Distance minimale entre les soudures de pipeline
- Conclusion
- Un exemple concret de calcul d'une branche chauffage
- Étape 1 - calcul des pertes de chaleur à travers les éléments structurels
- Étape 2 - chaleur pour le chauffage + perte totale de chaleur
- Étape 3 - la puissance requise du circuit thermique
- Étape 4 - déterminer l'étape de pose et la longueur du contour
- Variétés de tuyaux
- Avantages du chauffage au sol infrarouge
- Caractéristiques des systèmes de plancher électrique
- Données pour le calcul de la longueur du pipeline
- Longueur de tuyau pour circuit
- Étape de chauffage par le sol
- Calculatrice en ligne pour le calcul
Ce qui est requis pour le calcul
Pour que la maison soit chaude, le système de chauffage doit compenser toutes les pertes de chaleur par l'enveloppe du bâtiment, les fenêtres et les portes et le système de ventilation. Par conséquent, les principaux paramètres qui seront nécessaires pour les calculs sont :
- la taille de la maison;
- matériaux de mur et de plafond;
- dimensions, nombre et conception des fenêtres et des portes ;
- puissance de ventilation (volume d'échange d'air), etc.
Il faut également tenir compte du climat de la région (température hivernale minimale) et de la température de l'air souhaitée dans chaque pièce.
Ces données vous permettront de calculer la puissance thermique requise du système, qui est le paramètre principal pour déterminer la puissance de la pompe, la température du liquide de refroidissement, la longueur et la section du tuyau, etc.
La calculatrice publiée sur les sites Web de nombreuses entreprises de construction qui fournissent des services pour son installation aidera à effectuer un calcul d'ingénierie thermique d'un tuyau pour un sol chaud.
Capture d'écran de la page de la calculatrice
Programme escargot pour chauffage au sol téléchargement gratuit
Projet de chauffage au sol

Conception professionnelle de systèmes de chauffage par le sol (chauffage par le sol à eau) pour des bâtiments de diverses utilisations et conceptions (chalet, centre commercial, centre d'affaires, station-service, atelier, etc.) et toutes sources de chaleur conformément aux normes et normes européennes et russes.
Le projet est nécessaire pour l'installation d'un plancher chauffant à l'eau et est un système de passeport, incl. pour la maintenance future du système.
Le projet comprend le calcul de la perte de chaleur du bâtiment, en tenant compte de la zone climatique. Les matériaux, l'épaisseur et la construction des murs, des plafonds, l'isolation des fondations et du toit, le remplissage des ouvertures des portes et des fenêtres, les plans d'étage sont pris en compte. Lors de la conception, toutes les caractéristiques du bâtiment et les souhaits individuels des clients sont pris en compte. Le projet achevé du système de chauffage par le sol comprend les sections principales suivantes :
- résultats de calculs d'ingénierie thermique,
- passeport du système,
- schémas de câblage pour la pose des tuyaux de chauffage au sol, du réseau, du ruban amortisseur, de la disposition du thermostat,
- tables d'équilibrage des capteurs de chauffage au sol,
- spécification des matériaux et des composants.
Dans nos projets, la pose des tuyaux est effectuée par un concepteur expérimenté, et les tuyaux sont posés selon la méthode Thermotech "méandre" ("escargot") et à pas variable avec attribution de zones de bord (soudure). Contrairement à certaines entreprises travaillant sous le "parapluie" de marques célèbres, où la disposition des tuyaux est automatiquement effectuée par un programme informatique "propriétaire" qui utilise un "serpent" primitif avec le même pas. En Europe chaude, le «serpent» est utilisé pour les bâtiments à très faibles pertes de chaleur (jusqu'à 30 W / m2), avec des pertes de chaleur accrues, les concepteurs sont obligés de passer à «l'escargot» et d'utiliser des zones passepoilées le long des murs extérieurs pour compenser les pertes de chaleur accrues. Les programmes ne le font pas encore.

Mais, en règle générale, dans nos conditions climatiques, et avec le retard des normes d'isolation des structures enveloppantes, ainsi que le manque d'isolation thermique externe massivement pratiqué dans la construction individuelle, tout est bien pire avec les pertes de chaleur. C'est bien si la perte de chaleur de la maison se situe dans la valeur de 75-80 W / m2 du sol, mais plus n'est pas rare non plus, mais plutôt le contraire dans les bâtiments privés. Mais nos spécialistes sont engagés depuis longtemps et avec succès dans la conception et la mise en œuvre de systèmes de chauffage par le sol dans les conditions difficiles de la Sibérie et possèdent une expérience considérable dans ce domaine. Cela nous permet de réaliser des projets qui conviennent le mieux à nos conditions climatiques (et à toutes) et aux caractéristiques individuelles d'une installation particulière.

Pour développer un projet de plancher chauffé à l'eau, idéalement, vous avez besoin d'un projet de construction ou, au moins, de plans d'étage, de préférence au format AutoCad. En leur absence, des plans d'étage avec toutes les dimensions dessinées à la main sont nécessaires.De plus, les termes de référence pour la conception sont établis et approuvés.
La conception du système de chauffage par le sol est réalisée en tenant compte des caractéristiques du bâtiment et des souhaits du client. Pour les plafonds faibles ou les systèmes minces, des systèmes de chauffage au sol légers avec des plaques de répartition de chaleur en aluminium ou un système de feuilles peuvent être utilisés dans le projet.
Le résultat de la conception est un ensemble de documentation technique contenant un passeport système avec le résultat de calculs thermiques, des schémas de câblage pour la pose de tuyaux pour le chauffage au sol et la disposition de thermostats d'ambiance, des tableaux d'équilibrage pour les capteurs et une spécification des matériaux, équipements et composants.
Le projet achevé vous permet d'équiper entièrement le système avec des équipements, des composants et des matériaux conformément aux spécifications ci-jointes et d'installer et de mettre en service un système fonctionnel.
Tags: schéma d'étage, calcul de sol, schéma de sol chaud, calcul de sol chaud, calcul de sol chaud, schéma de sol d'eau, schéma de sol chauffé à l'eau, calcul de sol d'eau, calcul d'eau de sol chaud,
Utilisez le chat en ligne sur le site dans le coin inférieur droit de la page
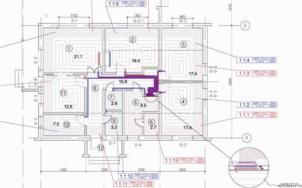
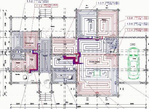
Méthodes de pose des tuyaux de chauffage au sol
Le choix du schéma de pose des tuyaux est assimilé à la forme de la pièce (pièce). Les configurations de serpentin peuvent être divisées en deux principaux types de tuyauterie : parallèle. et en spirale Pose parallèle: dans ce type de pose, la température du sol varie considérablement - la plus élevée sera au début de la bobine et en conséquence la plus basse à la fin. En règle générale, ce schéma est utilisé dans de petites pièces (par exemple, dans les salles de bain).Avec ce schéma, le tuyau le plus chaud, c'est-à-dire l'endroit où le liquide de refroidissement pénètre dans le serpentin, doit être situé dans la zone la plus froide de la pièce (par exemple, sur le mur extérieur) ou dans la zone de plus grand confort (par exemple, dans les salles de bains sans murs extérieurs). Ce schéma permet de poser des canalisations sur des sols en pente (par exemple, vers un siphon de sol) Pose en spirale : dans ce type de pose, la température du sol reste constante dans toute la pièce - des sens d'écoulement opposés alternent, avec la section la plus chaude du tuyau adjacent au plus froid. L'utilisation de ce schéma est recommandée dans les endroits où la différence de température n'est pas souhaitable et, bien sûr, dans les grandes pièces (halls). Ce schéma ne convient pas à la pose sur des sols en pente.
Toute combinaison de types de pose de base est possible. Dans les zones plus froides (près des murs extérieurs), il est recommandé de prendre une plus petite étape de disposition (distance entre les tuyaux) ou de diviser la disposition des tuyaux en zones distinctes de la pièce - plus froides et plus chaudes. La zone la plus froide de la pièce sera toujours la zone le long du mur extérieur et c'est dans cette zone que les tuyaux les plus chauds doivent être situés.
L'étape de disposition des tuyaux (B) est prise en compte en tenant compte du rayon de courbure minimum des tuyaux (il est plus grand pour les tuyaux en polyéthylène).Habituellement, B \u003d 50, 100, 150, 200, 250, 300 et 350 mm sont sélectionnés. La longueur approximative des tuyaux de serpentin pour 1 m². la surface au sol peut être calculée à l'aide de la formule suivante : L=1000/B(mm/m2). La longueur totale des tuyaux (rm) est égale à L / 1000 x F (surface de plancher chauffée m2) Des supports spéciaux sont utilisés pour fixer les tuyaux, avec une distance approximative entre eux de 0,4-0,5 m.
Avantages et inconvénients du chauffage au sol comme chauffage principal
Le principal avantage est le confort. Le sol chaud sous vos pieds crée une sensation de chaleur et de confort beaucoup plus rapide que l'air chaud de la pièce. Il y a aussi d'autres avantages :
- Chauffage uniforme de la pièce. La chaleur provient de toute la surface au sol, tandis que les batteries réchauffent partiellement les murs et ne distribuent la chaleur que dans une certaine zone.
- Le système est complètement silencieux.
- Les éléments chauffants étant enfermés dans une chape, le chauffage a moins d'effet sur le taux d'humidité.
- Vous pouvez choisir une option avec une inertie thermique différente. Le plancher d'eau se réchauffe et se refroidit lentement pendant presque une journée. Le film IR chauffe instantanément la surface du sol et refroidit tout aussi rapidement.
- Le chauffage avec un plancher chauffant à eau est moins cher que les radiateurs. Le coût du chauffage électrique n'est pas si attractif.
- Ils montent des systèmes sur les plus petites plates-formes, même dans les escaliers.
- Les piles ne décorent pas la pièce et ne rentrent pas à l'intérieur. Les éléments chauffants d'un sol calorifugé sont cachés des yeux.
Défauts:
- Aménager un sol chaud est un processus laborieux et long. L'isolation hydraulique et thermique est posée sur la base de base. Placez ensuite le treillis d'armature ou les tapis de pose. Les tubes sont placés, la connexion est faite, la chape en béton est coulée, le substrat est posé et le sol de finition est posé. Cela prend du temps et de l'argent.
- Le chauffage au sol à eau prend au moins 10 cm de hauteur et électrique - de 3 à 5 cm.
- La réparation est très difficile: en cas de dommage, il est nécessaire d'enlever le revêtement, de casser la chape, d'éliminer les défauts et de reposer le sol.
L'appareil d'un plancher chauffant à l'eau dans la maison
Le caloporteur dans le sol est monté sous la forme d'un serpent simple ou double, en spirale. La longueur totale du tuyau dépend du choix de l'emplacement du contour.L'option idéale est les bobines de la même taille. Cependant, en pratique, créer des boucles uniformes est difficile et peu pratique.
Lorsque le sol est réalisé dans toute la maison, les paramètres des locaux sont pris en compte. Dans la salle de bain, la salle de bain, le couloir, qui occupent une surface plus petite par rapport au salon, à la chambre ou à d'autres pièces, il est difficile de créer de longs serpentins. Ils ne nécessitent pas beaucoup de tuyaux pour les chauffer. Leur longueur peut être limitée à quelques mètres.
Certains propriétaires prudents, lorsqu'ils aménagent un circuit d'eau, contournent ces locaux. Cela permet d'économiser du matériel, de la main-d'œuvre et du temps. Dans les petites pièces, il est plus difficile d'installer un sol chaud que dans les pièces spacieuses.
Si le système contourne de tels cagibis, il est important de calculer correctement les paramètres de pression maximale dans le système. Pour ce faire, utilisez une vanne d'équilibrage. Il est conçu pour égaliser la perte de charge dans différents circuits.
Il est conçu pour égaliser la perte de charge dans différents circuits.
Distance minimale entre les soudures
La distance entre les soudures dans les structures métalliques est déterminée dans différentes conditions. Vous trouverez ci-dessous les principaux exemples avec des restrictions de distance.
| Type de coutures et objets à proximité desquels elles se trouvent | Détermination de la distance minimale |
| La distance entre les axes des coutures, qui sont dans le voisinage, mais ne s'accouplent pas les unes avec les autres. | Pas moins que l'épaisseur nominale des pièces à souder. Si le mur mesure plus de 8 mm, la distance doit être de 10 cm et plus. Avec les dimensions minimales de la pièce, la distance doit être d'au moins 5 cm. |
| La distance entre l'arrondi du bas de la pièce et l'axe de la soudure bout à bout. | Il ne prend pas en compte les dimensions exactes, mais la possibilité d'effectuer ultérieurement un contrôle par ultrasons. |
| Joints soudés dans les chaudières. | Lorsqu'elles sont situées dans des chaudières, les soudures ne doivent pas atteindre les supports et entrer en contact avec eux. Il n'y a pas non plus de données exactes ici, mais la distance devrait vous permettre de surveiller l'état de la chaudière pendant le fonctionnement et de ne pas interférer avec le contrôle de la qualité. |
| Distance des trous à souder. | Cela inclut les trous pour le soudage ou l'évasement. Cette distance ne doit pas dépasser 0,9 du diamètre du trou lui-même. |
| Distance de la soudure au raccordement. | Ici, il reste en moyenne une distance d'environ 5 cm.Si nous parlons de grands diamètres, cela peut changer vers le haut. |
| La distance entre les coutures adjacentes au niveau des trous. | La distance minimale doit être de 1,4 diamètres. |
Il existe des règles qui vous permettent de placer les coutures à une distance plus courte, qui sera inférieure à 0,9 du diamètre du trou lui-même. Ceci s'applique aux cas où il est prévu de souder des raccords et des tuyaux. Il y a certaines conditions pour tout cela. Par exemple, avant de percer des trous, les joints soudés doivent être soumis à une analyse radiographique. Les tests par ultrasons peuvent également être utilisés à la place. Le calcul de la tolérance sera effectué à une distance d'au moins une racine carrée du diamètre. Il est nécessaire de faire un calcul préliminaire, qui devrait montrer si le produit répond aux paramètres de résistance spécifiés.
Distance minimale entre les soudures de pipeline
La distance minimale entre les soudures de la canalisation du réseau de chauffage est également réglementée par certains documents. Compte tenu du fait que la réparation des canalisations et l'installation des canalisations par soudage sont plus souvent effectuées par des spécialistes qui travaillent avec des structures critiques, le respect des normes est ici plus pertinent.
| Type de coutures et objets à proximité desquels elles se trouvent | Détermination de la distance minimale |
| Soudage près des joints transversaux en spirale, circonférentiels et longitudinaux de tous les éléments, à l'exception des fils cathodiques. | Ici, vous devez suivre les règles très strictement, car cela est strictement interdit. Seulement s'il y a des fils de cathode prévus par les projets, la distance minimale entre les coutures doit être d'au moins 10 cm. |
| Distance entre les soudures du pipeline de procédé. | Il est calculé en fonction de l'épaisseur de paroi du tuyau lui-même. La distance minimale entre les joints pour les tuyaux d'une épaisseur de paroi jusqu'à 3 mm est de 3 fois l'épaisseur de paroi du tuyau. Si sa taille est supérieure à 3 mm, une distance de deux épaisseurs de paroi de tuyau entre les joints est autorisée. |
| Distance entre le joint et le coude du tuyau. | Si vous devez travailler avec un tuyau qui a un coude, la distance entre le joint et le coude doit être d'au moins la moitié du diamètre du tuyau lui-même. |
Les calculs du pipeline lui-même sont effectués à l'avance afin que tous les coudes, connexions supplémentaires et autres nuances des structures soient conformes aux règles acceptées. Lors des réparations, des erreurs sont souvent commises et les règles ne sont pas toujours respectées, mais cela ne garantit pas que la couture réalisée durera longtemps. Après tout, toutes les tolérances pour les distances entre les coutures sont prises sur la base de l'expérience des travaux antérieurs. La distance minimale entre les soudures du pipeline est déterminée conformément à GOST 32569-2013. Toutes les données concernant l'exploitation, l'installation et la réparation des pipelines technologiques sont indiquées ici.
Conclusion
La pertinence de l'observation des distances concerne surtout les ouvrages critiques qui sont réalisés à l'aide de certaines technologies.La plupart des personnes qui ne soudent qu'à la maison n'ont peut-être même pas entendu parler de ces restrictions. Pour les professionnels travaillant avec une tâche technique spécifique, où toutes les règles doivent être strictement respectées, le calcul de la distance minimale est obligatoire.
Un exemple concret de calcul d'une branche chauffage
Supposons que vous souhaitiez déterminer les paramètres du circuit thermique d'une maison d'une superficie de 60 mètres carrés.
Pour le calcul, les données et caractéristiques suivantes seront nécessaires:
- dimensions de la pièce: hauteur - 2,7 m, longueur et largeur - 10 et 6 m, respectivement;
- dans la maison il y a 5 fenêtres en métal-plastique de 2 m². m;
- murs extérieurs - béton cellulaire, épaisseur - 50 cm, Kt \u003d 0,20 W / mK;
- isolation murale supplémentaire - mousse de polystyrène 5 cm, Kt \u003d 0,041 W / mK;
- matériau du plafond - dalle en béton armé, épaisseur - 20 cm, Kt = 1,69 W / mK;
- isolation des combles - plaques de mousse de polystyrène de 5 cm d'épaisseur ;
- dimensions de la porte d'entrée - 0,9 * 2,05 m, isolation thermique - mousse de polyuréthane, couche - 10 cm, Kt = 0,035 W / mK.
Voyons étape par étape exemple de calcul.
Étape 1 - calcul des pertes de chaleur à travers les éléments structurels
Résistance thermique des matériaux muraux :
- béton cellulaire : R1=0,5/0,20=2,5 m²*K/W ;
- polystyrène expansé : R2=0,05/0,041=1,22 m²*K/W.
La résistance thermique du mur dans son ensemble est de : 2,5 + 1,22 = 3,57 m². m*K/W. La température moyenne dans la maison est de +23°C, la température minimale à l'extérieur est de 25°C avec un signe moins. La différence d'indicateurs est de 48 ° C.
Calcul de la surface totale du mur : S1=2,7*10*2+2,7*6*2=86,4 m². M. Il est nécessaire de soustraire la valeur des fenêtres et des portes de l'indicateur obtenu: S2 \u003d 86,4-10-1,85 \u003d 74,55 mètres carrés. M.
En substituant les indicateurs obtenus dans la formule, on obtient les déperditions pariétales : Qc=74.55/3.57*48=1002 W

Par analogie, les coûts de chauffage sont calculés à travers les fenêtres, les portes et les plafonds. Pour évaluer les pertes d'énergie à travers le grenier, la conductivité thermique du matériau du sol et de l'isolation est prise en compte
La résistance thermique finale du plafond est de: 0,2 / 1,69 + 0,05 / 0,041 \u003d 0,118 + 1,22 \u003d 1,338 mètres carrés. m*K/W. Les déperditions thermiques seront de : Qp=60/1.338*48=2152 W.
Pour calculer les fuites de chaleur à travers les fenêtres, il est nécessaire de déterminer la valeur moyenne pondérée de la résistance thermique des matériaux: une fenêtre à double vitrage - 0,5 et un profilé - 0,56 m². m * K / W, respectivement.
Ro \u003d 0,56 * 0,1 + 0,5 * 0,9 \u003d 0,56 m² * K / W. Ici 0,1 et 0,9 sont la part de chaque matériau dans la structure de la fenêtre.
Perte de chaleur de la fenêtre : Q®=10/0,56*48=857 W.
Compte tenu de l'isolation thermique de la porte, sa résistance thermique sera de : Rd \u003d 0,1 / 0,035 \u003d 2,86 mètres carrés. m*K/W. Qd \u003d (0,9 * 2,05) / 2,86 * 48 \u003d 31 W.
La perte de chaleur totale à travers les éléments enveloppants est de : 1002+2152+857+31=4042 W. Le résultat doit être augmenté de 10% : 4042 * 1,1 = 4446 W.
Étape 2 - chaleur pour le chauffage + perte totale de chaleur
Tout d'abord, nous calculons la consommation de chaleur pour chauffer l'air entrant. Volume de la pièce : 2,7 * 10 * 6 \u003d 162 mètres cubes. M. En conséquence, la perte de chaleur par ventilation sera : (162*1/3600)*1005*1,19*48=2583 W.
Selon les paramètres de la pièce, les coûts de chauffage totaux seront : Q=4446+2583=7029 W.
Étape 3 - la puissance requise du circuit thermique
Nous calculons la puissance optimale du circuit nécessaire pour compenser les pertes de chaleur : N=1,2*7029=8435 W.
Plus loin : q=N/S=8435/60=141 W/m².

En fonction des performances requises du système de chauffage et de la surface active de la pièce, il est possible de déterminer la densité de flux de chaleur pour 1 m². m
Étape 4 - déterminer l'étape de pose et la longueur du contour
La valeur résultante est comparée au graphique de dépendance.Si la température du liquide de refroidissement dans le système est de 40 ° C, un circuit avec des paramètres convient: pas - 100 mm, diamètre - 20 mm.
Si de l'eau chauffée à 50 ° C circule dans la conduite, l'intervalle entre les branches peut être augmenté à 15 cm et un tuyau d'une section de 16 mm peut être utilisé.
Nous considérons la longueur du contour: L \u003d 60 / 0,15 * 1,1 \u003d 440 m.
Séparément, il est nécessaire de prendre en compte la distance entre les capteurs et le système de chauffage.
Comme on peut le voir sur les calculs, au moins quatre boucles de chauffage devront être réalisées pour équiper le plancher d'eau. Et comment poser et réparer correctement les tuyaux, ainsi que d'autres secrets d'installation, nous avons examiné ici.
Variétés de tuyaux
Le plancher est une connexion de tuyaux reliés au collecteur. Des mesures de données correctes constituent la base du calcul de la puissance des équipements thermiques. Pour calculer la distance entre les tuyaux et la longueur nécessaire à la pose, il convient de se familiariser avec les principaux types de structures et leurs caractéristiques. Pour l'installation d'un plancher d'eau chaude, des tuyaux constitués des matériaux suivants sont utilisés:
- Polyéthylène réticulé. Ce matériau est difficile à installer et a un coût assez élevé. Cependant, il présente également de nombreux avantages, par exemple, il a la propriété de mémoire, ne se corrode pas et résiste aux changements de température.
- Cuivre. L'un des matériaux les plus résistants, caractérisé par une résistance élevée, une résistance à la corrosion. L'inconvénient est que le cuivre est assez cher, de tels tuyaux sont difficiles à installer.


- Métal-plastique. Les avantages du matériau sont son économie, sa résistance et sa sécurité, du point de vue de l'écologie.
- Polypropylène. Les tuyaux en polypropylène se caractérisent par un faible coût avec des caractéristiques technologiques élevées, notamment une faible conductivité thermique.


Pour calculer le nombre de tuyaux requis, il est nécessaire de prendre en compte les caractéristiques de pose qui rendront l'opération aussi efficace que possible :
- le diamètre moyen du tuyau est de 16 mm et l'épaisseur de la chape est de 6 cm;
- le pas de ponte moyen dans la spirale de contour est de 10–15 cm;
- la longueur du tuyau dans le circuit de chauffage ne doit pas dépasser 100 mètres, tout en gardant à l'esprit que le tuyau doit sortir et entrer dans le collecteur sans interruption;
- la distance entre le tuyau et le mur doit rester comprise entre 8 et 25 cm ;


- la longueur totale du circuit doit être de 100 mètres avec une surface totale de 20 m2 ;
- entre les longueurs des virages, il convient d'observer la différence ne dépassant pas 15 mètres;
- la pression minimale admissible à l'intérieur du collecteur est de 20 kPa ;
- plus le pipeline est court, moins il est nécessaire d'installer une pompe puissante, car le niveau de perte de charge est réduit;
- la température du liquide de refroidissement à l'entrée ne doit pas différer de la température de sortie de plus de 5 degrés.



Avantages du chauffage au sol infrarouge
Les conceptions modernes de plancher infrarouge présentent un certain nombre d'avantages indéniables. Tout d'abord, ils se distinguent par leur simplicité et leur rapidité d'installation. L'installation des sols ne prend en moyenne pas plus de deux heures. Ils ne nécessitent pas de dispositif d'arrimage. Ces planchers sont faciles à installer sous un tapis, un linoléum ou un stratifié. L'épaisseur du film n'est que de 3 mm, il n'affecte donc pas du tout la hauteur de la pièce et ne réduit pas son volume. Le matériau de revêtement de film est très fiable.
Par rapport aux autres types de chauffage par le sol, la construction infrarouge permet des économies d'énergie importantes. De plus, il existe de nombreuses propriétés physiques positives.Les sols infrarouges aident à ioniser l'air et à éliminer diverses odeurs désagréables. Ils n'affectent absolument pas l'humidité de l'air et ne le dessèchent pas.
Ce type de chauffage par le sol peut être utilisé comme source de chauffage principale ou d'appoint pour les maisons et les appartements. Dans le premier cas, la couverture du film représente au moins 60 à 70% de la surface totale de la pièce. Avec un chauffage supplémentaire, toute zone est couverte, en moyenne, cette valeur est de 30 à 50%. Des planchers infrarouges sont installés dans les couloirs de passage dans toute la zone, à condition qu'il n'y ait pas de mobilier. Dans les pièces meublées, le film est installé au besoin, dans des endroits libres.
Caractéristiques des systèmes de plancher électrique
La technologie de préparation et d'implantation des résistances électriques diffère de la conception des circuits d'eau et dépend du type de résistances choisies :
- les câbles résistifs, les tiges de carbone et les tapis de câbles peuvent être posés « secs » (directement sous le revêtement) et « humides » (sous la chape ou la colle à carrelage) ;
- les films infrarouges au carbone montrés sur la photo sont mieux utilisés comme substrat sous un enduit sans couler de chape, bien que certains fabricants autorisent la pose sous un carrelage.

Les éléments chauffants électriques ont 3 caractéristiques :
- transfert de chaleur uniforme sur toute la longueur;
- l'intensité du chauffage et la température de surface sont contrôlées par un thermostat, guidé par les relevés des capteurs ;
- intolérance à la surchauffe.
La dernière propriété est la plus ennuyeuse. Si sur la section de contour les sols sont forcés avec des meubles sans pieds ou des appareils électroménagers fixes, l'échange de chaleur avec l'air ambiant sera perturbé. Les systèmes de câbles et de films surchaufferont et ne dureront pas longtemps.Toutes les nuances de ce problème sont abordées dans la vidéo suivante :
Les tiges autorégulatrices supportent calmement de telles choses, mais un autre facteur commence à influencer ici - il est irrationnel d'acheter et de poser des radiateurs au carbone coûteux sous les meubles.
Données pour le calcul de la longueur du pipeline
Afin de calculer la longueur des canalisations pour un certain espace de la pièce, les données suivantes seront nécessaires: le diamètre du liquide de refroidissement, l'étape de pose du tuyau de chauffage au sol, la surface chauffée.
Longueur de tuyau pour circuit
La longueur du liquide de refroidissement dépend directement du diamètre extérieur du tuyau. Par conséquent, si vous manquez ce moment de calcul au stade initial, il y aura des difficultés avec la circulation de l'eau, ce qui conduira à son tour à un chauffage par le sol de mauvaise qualité. Il est possible de considérer les normes de section admissibles du tuyau de chauffage par le sol et sa longueur selon le schéma suivant.
| Diamètre extérieur du tuyau | Taille maximale du tuyau |
| 1,6 - 1,7 cm. | 100 - 102 m. |
| 1,8 - 1,9 cm. | 120 - 122m. |
| 2cm | 120 - 125 m. |

Mais comme le circuit doit être en matériau solide, le nombre de circuits pour la zone de chauffage sera affecté par l'étape de pose du plancher chauffé à l'eau.
Étape de chauffage par le sol
Non seulement la longueur du pipeline, mais également la puissance de transfert de chaleur dépendront de l'étape de pose. Par conséquent, avec l'installation correcte des caloporteurs, il sera possible d'économiser sur la consommation d'énergie du chauffage par le sol.
L'étape recommandée pour la pose des tuyaux de chauffage par le sol est considérée comme étant de 20 cm.Cet indicateur est dû au fait que lorsqu'il est utilisé, le sol est chauffé uniformément et les travaux d'installation sont également simplifiés. En plus de cet indicateur, les normes suivantes sont également autorisées : 10 cm, 15 cm, 25 cm et 30 cm.
Donnons un bon exemple, le débit du pipeline à l'étape optimale du plancher chaud.
| étape, voir | Consommation de matériel de travail pour 1 m², m. |
| 10 — 12 | 10 – 10,5 |
| 15 — 18 | 6,7 – 7,2 |
| 20 — 22 | 5 – 6,1 |
| 25 — 27 | 4 – 4,8 |
| 30 — 35 | 3,4 – 3,9 |
Avec une pose plus dense, les spires du produit seront en forme de boucle, ce qui compliquera la circulation du liquide de refroidissement. Et avec une étape d'installation plus importante, le chauffage de la pièce ne sera pas uniforme.
Calculatrice en ligne pour le calcul
Étant donné que le contour du sol chaud doit capturer autant que possible la surface totale de la pièce, il est nécessaire d'établir un schéma de son emplacement. Pour ce faire, vous avez besoin d'une feuille de papier millimétrée et d'un crayon. Le schéma est établi dans l'ordre suivant :
- Sur papier, la surface totale de la pièce est dessinée.
- Les dimensions de l'ensemble du mobilier et de l'équipement électrique au sol sont mesurées.
- Dans l'arrangement approprié, toutes les mesures sont transférées sur papier.
- Il est strictement interdit au liquide de refroidissement de passer près des murs, par conséquent, un retrait de 20 cm est fait sur toute la zone dessinée.

En ombrant toutes les mesures et les retraits appliqués, vous pouvez calculer visuellement la surface de la pièce où se trouveront les liquides de refroidissement.
Ainsi, connaissant toutes les données nécessaires, vous pouvez procéder au calcul direct du matériau de travail du système de chauffage.
La longueur est calculée à l'aide de la formule suivante :
D = P/T ˟ k, où :
D - longueur du tuyau ;
P est la surface chauffée de la pièce ;
T - pas de tuyau pour un plancher d'eau chaude;
k est l'indicateur de réserve, qui est compris entre 1,1 et 1,4.

























