- Les subtilités du fonctionnement d'un four non conventionnel
- Nous récupérons le poêle de nos propres mains
- poêle en métal
- four en briques
- Construction de fours-fusées à faire soi-même
- Poêle à fusée d'une bouteille de gaz
- Four à brique fixe avec banc de cuisson
- Autres conceptions de poêles-fusées
- Recommandations de fabrication
- Four à fusée à ballons
- Maçonnerie de chauffage en brique de type fusée
- Four réactif - qu'est-ce que c'est
- Géographie d'application des unités de chauffage de fusée
- Avantages et inconvénients d'un four à fusée
- Principe de fonctionnement et avantages de conception
- Variétés de fours à fusée
- Fours métalliques simples
- Fours à briques simples
- Fours à fusée complexes
- Comment le faire soi-même ?
- Sélection de l'emplacement
- Préparation de la solution
- Poêle fusée en maçonnerie avec banc de poêle
Les subtilités du fonctionnement d'un four non conventionnel
Le four-fusée est chauffé par analogie avec le générateur de chaleur à combustion supérieur. Il s'avère que l'allumage d'un équipement appelé fusée doit être effectué selon certaines règles:
- la matière première principale pour le four de l'unité ne doit être posée qu'après que la structure s'est bien réchauffée, pour laquelle, d'abord, de la sciure de bois ou du papier est placé et incendié dans le secteur de soufflage;
- ils réagissent nécessairement à l'étouffement du grondement émanant du four - ils mettent une grande quantité de combustible dans la chambre de combustion, qui s'enflammera d'elle-même à partir des résidus de sciure de bois brûlants;
- le processus est étroitement surveillé, c'est-à-dire qu'après la pose du bois de chauffage, le registre est complètement ouvert et, après un certain temps, lorsque l'équipement émet un bourdonnement, il est recouvert pour produire un son semblable à un bruissement;
- au besoin, le registre est recouvert de plus en plus, sinon le four se remplira d'un volume d'air en excès, ce qui perturbera la pyrolyse à l'intérieur du tube de flamme et entraînera la création d'un fort bourdonnement.
Étant donné que le four à jet a été conçu à l'origine pour une utilisation sur le terrain, sa conception est extrêmement simple. Cela vous permet de faire face à la fabrication de l'unité par un maître de maison ordinaire. Mais, malgré l'apparente légèreté, le poêle-fusée est censé être assemblé, en tenant compte du bon rapport de paramètres. Sinon, l'équipement sera improductif.
Nous récupérons le poêle de nos propres mains
Considérez deux schémas pour construire des fours à jet de vos propres mains:
- Du métal;
- De briques.
Chacun des modèles présentés est assez simple, vous n'avez donc pas besoin de compétences particulières pour construire vos propres mains.
poêle en métal
- Pour construire un four à jet de bricolage en métal, vous aurez besoin de seaux, de tuyaux en acier inoxydable et de gravier.
- Au fond du seau pour une installation intérieure, faites un trou pour le tuyau. Un trou est fait à 2-4 cm du fond afin de remplir le fond avec du petit gravier.
- Placez le tuyau à l'intérieur du premier seau. Le tuyau doit avoir 2 coudes - pour la cheminée et le chargement. Le premier est plus long et le second plus court.
- Dans le deuxième seau, un trou est également fait dans le fond, mis sur le premier seau.Insérez la tête de tuyau de manière à ce que la coupe soit à 3-4 cm du bas.
- Versez du gravier dans le fond du seau inférieur afin qu'il atteigne le milieu de la hauteur du récipient. Les gravats stockeront la chaleur et isoleront le conduit de votre poêle à jet.
- Fabriquez un égouttoir pour votre réchaud à jet. Pour ce faire, vous pouvez souder plusieurs tiges métalliques ou utiliser des grilles improvisées, des treillis en acier.
four en briques
Il est très facile d'assembler un poêle à jet à partir de briques de vos propres mains. L'ordre au poêle à jet est élémentaire ici.
- Étendez la première rangée de façon à ce qu'elle recouvre le fond. Il est préférable de le faire sous la forme d'un carré, ce qui vous prendra 4 briques entières et une demie. Une autre brique est placée sur le côté et servira à un chargement plus pratique du combustible dans le four;
- Vient ensuite une rangée pour le poêle de 3 briques pleines et 1 moitiés. Le centre doit être vide. Ce sera le fond de votre chambre de combustion ;
- Disposez 3 autres rangées de briques pour le poêle à jet avec des morceaux entiers dans chacune. Vous devriez vous retrouver avec un trou carré au centre ;
- Un tel schéma prévoit la création d'un poêle à jet avec un canal de chargement vertical à partir de 20-25 briques.
Le four à jet se distingue par sa conception élémentaire dans les modèles les plus simples. Si vous avez besoin de construire rapidement un poêle à partir de matériaux de récupération, une fusée est l'une des meilleures options.
Oui, les poêles à jet ne sont pas sans inconvénients. Mais dites-moi, quel four n'en a pas ?!
Construction de fours-fusées à faire soi-même
Un réchaud à jet est facile à construire soi-même. Vous devez d'abord choisir l'option de conception qui vous convient et faire un dessin. Si nécessaire, vous pouvez utiliser des schémas prêts à l'emploi réalisés par des professionnels.Beaucoup sont captivés par la simplicité de fabrication d'un four à fusée et la possibilité de se passer de l'utilisation de matériaux coûteux. Si nécessaire, un poêle à fusée peut être fabriqué même en 20 à 30 minutes, par exemple à partir d'une boîte en fer. Cependant, si vous faites tout votre possible, il est possible d'obtenir une structure fixe confortable pour la salle de repos dans les bains publics avec un banc chauffant pouvant remplacer un canapé ordinaire. Dans le même temps, la «fusée» ne nécessitera pas d'aménagements complexes, comme avec les poêles à cloche ou russes, qui sont des structures massives.
Poêle à fusée d'une bouteille de gaz
Pour la fabrication de ce four à fusée, vous aurez besoin d'un tel kit.
- Bouteille de gaz usagée d'un volume de 50 litres sous le bouchon.
- Tuyau d'un diamètre de 150 mm pour les chambres de carburant et de chargement.
- Tuyaux de diamètre 70 mm et 150 mm pour la colonne montante (cheminée verticale primaire).
- Chauffage ininflammable.
- Tuyau 100 mm pour la cheminée de sortie.
Coupez le haut du ballon. Les ouvertures pour le foyer et la cheminée sont découpées sur les côtés. Le tuyau sous la chambre de combustion est relié à la colonne montante à un angle de 90 degrés. La cheminée verticale primaire est constituée de deux tuyaux de diamètres différents insérés l'un dans l'autre, l'espace entre lesquels doit être isolé. Le sable calciné peut être utilisé comme élément chauffant. Toutes les parties du poêle fusée sont soigneusement soudées les unes aux autres.
N'oubliez pas de souder le haut coupé de la bouteille de gaz après avoir monté les éléments internes du four à fusée. Si nécessaire, vous pouvez créer une unité de jet plus puissante en utilisant un baril standard de deux cents litres comme bouchon. Dans le même temps, les dimensions de tous les éléments du poêle augmentent.
Four à brique fixe avec banc de cuisson
Pour construire un four à fusée avec un lieu de repos, vous devez suivre une certaine règle: les dimensions de ce modèle dépendent du diamètre et de la section transversale du capuchon recouvert par la colonne montante. Basé sur ceci:
- la hauteur du capuchon est égale à 1,5–2 parties de son diamètre;
- la hauteur de son enrobage d'argile est égale aux 2/3 de la hauteur du bouchon ;
- épaisseur du revêtement d'argile - 1/3 du diamètre du capuchon;
- la surface de la colonne montante représente 5 à 6% de la surface du chapeau;
- l'écart entre le bas inversé de la casquette et le bord supérieur de la contremarche doit être d'au moins 7 cm ;
- la longueur de la section horizontale du four est égale à la hauteur de la cheminée primaire verticale ;
- la surface de la soufflante représente 50 % de la surface de la colonne montante ;
- la cheminée externe a une taille égale à 1,5–2 de la section transversale du capuchon ;
- l'épaisseur du coussin en adobe sous la cheminée horizontale est de 50 à 70 mm;
- l'épaisseur de la solution d'adobe du canapé est de 0,2 à 0,5 du diamètre du capuchon;
- la hauteur de la cheminée doit être surélevée de 4 m au-dessus de la fournaise, ce qui assurera un tirage suffisant dans la fournaise.
Lorsque le bouchon est fabriqué à partir d'un baril de deux cents litres, le banc mesure jusqu'à 6 m de long. Et s'il s'agit d'une bouteille de gaz, la cheminée horizontale ne doit pas dépasser 4 m. Et n'oubliez pas de prendre soin de la qualité du revêtement de la colonne montante. Pour cela, des briques réfractaires légères sont utilisées. Convient et sable de rivière, qui doit être propre.

Poêle avec banc de poêle
Autres conceptions de poêles-fusées
Une "fusée" de petite taille en briques est une autre des options les plus simples pour construire un four d'un tel genre bricolage. Pour son assemblage ne nécessite pas de mortier de ciment. Il suffit de poser les briques les unes sur les autres.Il existe également des modèles de poêle fusée avec une chemise d'eau, qui permettent non seulement de chauffer la pièce, mais également de fournir de l'eau chaude au propriétaire.
Les composants du béton réfractaire ne sont pas bon marché et une bétonnière est nécessaire pour le mélange. Mais sa conductivité thermique est bien inférieure à celle des autres unités. Le nouveau four à fusée a commencé à fonctionner de manière plus stable et il est devenu possible de libérer une partie de la chaleur à l'extérieur sous forme de rayonnement infrarouge à travers du verre résistant à la chaleur. Il s'est avéré un poêle à fusée.
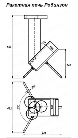
Recommandations de fabrication
Le moyen le plus simple est de fabriquer de vos propres mains un petit four portable - la fusée Robinson, dont le dessin est présenté ci-dessous. Vous aurez besoin de couper des tuyaux profilés, du métal pour les pieds et les supports, ainsi que des compétences en soudage. De plus, le respect des dimensions exactes indiquées sur le dessin n'est pas nécessaire. Vous pouvez prendre des tuyaux d'une section différente, il vous suffit de les réduire ou de les augmenter proportionnellement pour que les pièces s'emboîtent.

Dessin d'un poêle de terrain amélioré "Robinson" avec des buses d'un tuyau profilé, coupé dans le sens de la longueur en 2 parties
Les variantes les plus courantes des grands fours à fusée sont fabriquées à partir de bouteille de gaz ou métal fût de deux cents litres. Il faut comprendre que ces éléments finis servent de calotte extérieure et que les parties internes du poêle doivent être constituées de tuyaux de plus petit diamètre ou disposées en briques réfractaires. De plus, à partir d'un cylindre, vous pouvez créer à la fois un appareil de chauffage fixe avec un petit banc et une unité pouvant être déplacée.
Veuillez noter qu'il est assez difficile de calculer la puissance thermique d'un four de type fusée, il n'y a pas de méthode de calcul unique. Il est plus facile de s'appuyer sur des dessins prêts à l'emploi d'échantillons déjà fonctionnels et de les assembler en fonction de ceux-ci.Il suffit de comparer les dimensions du futur poêle avec les dimensions de la pièce chauffée. Par exemple, la taille d'un cylindre est suffisante pour chauffer une petite pièce, dans d'autres cas il vaut mieux prendre un grand fût. La sélection des pièces internes pour eux est indiquée dans le schéma:

2 options pour les poêles à ventre plat - à partir d'une bouteille de gaz et d'un baril de fer standard
Four à fusée à ballons
En plus de la bouteille de gaz elle-même, pour assembler le poêle, vous aurez besoin de :
- tube profilé 150 x 150 mm pour le foyer et la trémie ;
- des tuyaux en acier d'un diamètre de 70 et 150 mm iront au canal vertical interne;
- le même avec un diamètre de 100 mm pour la cheminée ;
- isolation (fibre de basalte d'une densité d'au moins 100 kg / m³);
- tôle de 3 mm d'épaisseur.
Pour un maître qui possède la soudure, ce travail ne présentera aucune difficulté particulière. Au niveau du cylindre, coupez la partie supérieure le long de la couture, après avoir préalablement tourné la valve et l'avoir remplie d'eau jusqu'en haut. Sur les côtés, des ouvertures sont découpées des deux côtés pour l'installation d'un foyer et d'un raccordement de cheminée. Le tube profilé est inséré et relié à un canal vertical, qui sort par le bas du cylindre. Des travaux supplémentaires sur la fabrication du four à fusée sont effectués conformément au dessin:

À la fin, la partie supérieure doit être soudée en place, puis vérifiez soigneusement la perméabilité de toutes les coutures afin que l'air ne pénètre pas de manière incontrôlable dans le four. Après cela, vous pouvez fixer une cheminée avec une chemise d'eau (le cas échéant) et commencer les tests.
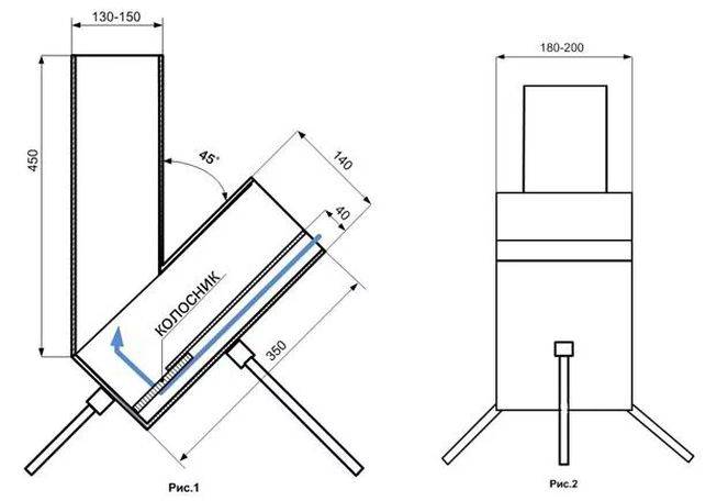
Maçonnerie de chauffage en brique de type fusée
Cette version du poêle nécessitera le coût d'achat de briques en argile réfractaire; une céramique ordinaire pour un poêle à fusée ne fonctionnera pas. La maçonnerie est réalisée sur une solution d'argile réfractaire, elle est également vendue sous forme de mélange de construction prêt à l'emploi.Comment faire un four à fusée stationnaire:
- Vous devez d'abord creuser un trou, tasser le fond et remplir la fondation avec des dimensions de 1200 x 400 mm et une hauteur de 100 mm, comme indiqué sur la photo.
- Après durcissement, la fondation est recouverte d'une feuille de carton de basalte et la chambre de combustion, la trémie à bois de chauffage et le canal vertical sont posés. À partir de l'extrémité de la chambre de combustion, une porte est installée pour nettoyer le cendrier.
- Une fois l'argile sèche, la fosse est remplie et un tuyau présélectionné ou un petit baril d'un diamètre de 450 mm est placé sur le canal vertical. L'espace entre la maçonnerie et les parois du tuyau est rempli d'isolant réfractaire, par exemple laine de basalte, argile expansée, vermiculite.
- Au dernier stade, un capuchon constitué d'un grand fût métallique d'un diamètre de 600 mm est posé sur la structure. Auparavant, une découpe est pratiquée dans sa partie supérieure et un tuyau est placé pour raccorder la cheminée. Lorsque le baril se retournera, il sera juste au fond.
De plus - une question de technologie, vous pouvez sortir la cheminée immédiatement à l'extérieur ou construire un autre banc de poêle avec des tours de fumée. À cette fin, une brique en céramique ordinaire et un mortier d'argile et de sable conviendront déjà. La commande de la maçonnerie d'un four à fusée avec un petit banc est présentée en détail dans la vidéo:
Four réactif - qu'est-ce que c'est

La chaleur domestique provenant d'un poêle à jet ne sera donnée par aucun appareil de chauffage moderne
Un jet, ou, comme on l'appelle aussi, un four à fusée, en fait, n'a rien à voir avec la technologie moderne. La seule chose qui fait ressembler cette unité de chauffage à un véhicule spatial est le flux intense de flammes et le bourdonnement associé au mauvais mode de fonctionnement.Néanmoins, on ne peut pas dire que le four à fusée est un appareil complètement arriéré techniquement. Malgré sa conception simple, il utilise les méthodes de combustion de combustibles solides les plus avancées :
- la combustion pyrolytique des gaz dégagés lors de la distillation sèche des combustibles solides ;
- le mouvement des produits gazeux à travers les canaux du four, qui ne nécessite pas d'éjection forcée due au tirage.

Voici à quoi ressemble un simple réchaud à jet
La "fusée" la plus simple est un morceau incurvé de tuyau de grand diamètre. Le bois de chauffage ou un autre combustible est placé dans une courte section horizontale et incendié. Au début, le radiateur fonctionne comme le poêle à ventre le plus ordinaire, mais ce n'est que jusqu'à ce que la température de la partie verticale la plus longue augmente, qui agit comme une cheminée. Le métal incandescent contribue au réallumage des substances combustibles et à l'apparition d'un vide au sommet de la cheminée. En augmentant le tirage, le flux d'air vers le bois de chauffage augmente, ce qui augmente considérablement l'intensité de la combustion. Afin d'obtenir encore plus d'efficacité de ce dispositif original, l'ouverture du four est équipée d'une porte. Lorsque la section transversale du canal d'air diminue, l'apport d'oxygène au bois de chauffage s'arrête et leur décomposition pyrolytique en hydrocarbures gazeux commence. Mais ils ne brûleront pas complètement dans une installation aussi simple - pour cela, il sera nécessaire d'équiper une zone séparée pour la postcombustion des gaz d'échappement. Soit dit en passant, cela, ainsi que l'isolation thermique de la cheminée, permet à des «fusées» plus complexes de rivaliser avec succès avec d'autres unités à combustible solide.Quant à la conception la plus simple que nous envisageons, elle est souvent utilisée pour cuisiner ou chauffer des aliments. Pour cela, il suffit d'équiper une plate-forme pratique pour une casserole ou une bouilloire sur la section verticale du four.
Géographie d'application des unités de chauffage de fusée
Étant une unité de chauffage et de cuisson simple et pratique, le poêle fusée est largement utilisé dans les versions mobiles et fixes. Le plus souvent, il est utilisé:
- pour chauffer des locaux d'habitation;
- comme équipement de séchage des fruits ;
- pour chauffer les serres;
- assurer des conditions normales de travail dans les ateliers ou les garages ;
- pour maintenir une température positive dans les entrepôts, les blocs utilitaires, etc.
En raison de sa simplicité, de sa simplicité et de sa fiabilité, le réchauffeur à jet jouit d'un respect bien mérité parmi les pêcheurs et les chasseurs, les amateurs de rallye et les survivalistes. Il existe même une version spéciale, dont le but est indiqué par le nom - "Robinson".
Avantages et inconvénients d'un four à fusée
Malgré sa conception simple, le four à fusée présente de nombreux avantages:
- efficacité au niveau des meilleurs exemples d'équipements modernes de chauffage à combustible solide;
- efficacité - pour atteindre la température requise, l'unité à jet consommera quatre fois moins de bois de chauffage qu'un four conventionnel;
- température de chauffage supérieure à 1000 °C ;
- la possibilité d'utiliser tout type de combustible solide, y compris les déchets végétaux secs, les cônes, les aiguilles et les copeaux ;
- exhaustivité de la combustion et respect de l'environnement - pendant le fonctionnement, la température de la flamme augmente tellement que la suie s'enflamme. La fumée d'un poêle-fusée se compose principalement de vapeur d'eau et de dioxyde de carbone ;
- la possibilité de recharger du carburant pour un fonctionnement continu de l'appareil de chauffage ;
- simplicité et fiabilité;
- la présence de structures portatives conçues pour une utilisation mobile.
L'unité de chauffage n'est pas sans inconvénients. Le fonctionnement de l'appareil est associé au risque de pénétration de monoxyde de carbone dans l'habitation. Le poêle ne peut pas être utilisé pour chauffer une grande maison et les tentatives d'installation d'un échangeur de chaleur à eau dans la zone de combustion entraînent une diminution de la production de chaleur et une perturbation du fonctionnement normal. Les inconvénients incluent la faible valeur esthétique du design, qui est cependant une déclaration très ambiguë, car pour les amateurs de style ethnique, le design du poêle est une véritable trouvaille.
Principe de fonctionnement et avantages de conception
Le nom de l'appareil parle de lui-même. En effet, le principe de fonctionnement d'un tel four rappelle le fonctionnement d'un moteur-fusée fonctionnant au combustible solide. Brièvement, il peut être décrit comme suit :
- Le bois de chauffage et le charbon sont placés dans un bunker vertical, après quoi les gaz chauds montent.
- Les gaz pénètrent dans la zone dite de postcombustion - ici, ils subissent une combustion secondaire en raison de l'espace fortement chauffé.
- La post-combustion est facilitée non pas par l'air primaire, mais par l'air secondaire entrant par un canal d'alimentation supplémentaire.
- De plus, les gaz suivent un système complexe de cheminées, qui sont montées dans des structures capitales afin de réchauffer complètement toutes les pièces.

Cette conception offre de nombreux avantages tangibles par rapport à un four conventionnel :
- Les gaz sont complètement brûlés - presque aucun produit de combustion intermédiaire n'est formé. Cela permet, d'une part, d'extraire au maximum l'énergie du carburant. D'autre part, le dioxyde de carbone et l'eau n'obstruent pas les surfaces internes des tuyaux et des cheminées, ce qui les rend beaucoup plus faciles à nettoyer.
- Grâce à un système de cheminées ramifié et plutôt étendu, un poêle est capable de chauffer toute une maison de tailles standard (100-150 m2). De plus, la chaleur du chauffage dure 6-7 heures.
- La conception est sûre, car le risque de pénétration des produits de combustion est exclu - tous les produits intermédiaires sont complètement oxydés par l'air. Ainsi, le monoxyde de carbone ne se forme pas dans le four, il se transforme en dioxyde de carbone.
- Vous pouvez assembler la structure assez rapidement et essentiellement gratuitement - par exemple, un poêle-fusée est construit à partir d'un tuyau ordinaire ou d'une vieille bouteille de gaz vide en quelques heures. Les options les plus simples sont présentées sur la photo.

Le poêle est multifonctionnel: malgré la simplicité de la conception, il est capable non seulement de chauffer la pièce, mais vous permet également de cuisiner des aliments et, si vous le souhaitez, vous pouvez fournir un lieu de couchage chaleureux. La figure montre une option de camping, qui offre la possibilité de cuisiner sur le terrain.

Bien sûr, cette conception présente également certains inconvénients, mais il y en a peu :
- Tout d'abord, une fusée enflammée ne doit pas être laissée sans surveillance - mais à proprement parler, cette règle s'applique à tous les fours. Si les gaz sont trop pressurisés, le chauffage peut augmenter considérablement, provoquant potentiellement un incendie.
- Même le bois à peine humide ne doit pas être placé dans un poêle à jet.En raison de la vapeur d'eau, les produits intermédiaires de la combustion ne pourront pas brûler jusqu'au bout, en conséquence, une poussée inverse se produira et la flamme s'affaiblira.
- Enfin, dans le cas d'un bain, une fusée ne fonctionnera pas. Cela signifie que la conception ne convient pas à un hammam chauffé par rayonnement infrarouge. Une fusée donne un tel rayonnement n'est clairement pas suffisant.
Une description visuelle du dispositif de four à fusée peut être vue ici.
Variétés de fours à fusée
Dans cette section, nous examinerons les types de poêles à fusée les plus courants utilisés sur le terrain et dans des conditions stationnaires.
Fours métalliques simples
Le poêle à jet de bois le plus simple est fabriqué à partir d'un morceau de tuyau métallique de grand diamètre en forme de L. La partie horizontale est courte, c'est un foyer. La chambre de combustion est située dans la partie verticale du tuyau, le bois de chauffage y brûle activement. Une petite plaque métallique est souvent soudée dans la section horizontale, formant un ventilateur. Après s'être réchauffé, le four à fusée entre en mode de fonctionnement, une flamme jaillit de sa section verticale (tube à flamme).
Ces poêles à fusée sont utilisés pour cuisiner en camping ou à l'extérieur - en raison de leur petite surface, ils se caractérisent par un faible dégagement de chaleur et la grande majorité de l'énergie thermique s'échappe par le tube à flamme. Théières, poêles et marmites sont posées sur ce tuyau afin que la flamme ardente assure leur chauffage. Pour maintenir la traction, des supports sont situés dans la partie supérieure du tuyau, sur lesquels sont placés des plats - les produits de combustion peuvent librement sortir.
Afin de rendre plus efficace un four à fusée métallique à partir d'une section de tuyau en forme de L, il est équipé d'un boîtier métallique provenant d'un ancien tonneau.Au bas du baril, vous pouvez voir un ventilateur et un tube à flamme jaillit du haut. Si nécessaire, le volume interne est rempli d'isolant, par exemple de cendres - il ne brûle pas et retient bien la chaleur.
Les plus pratiques sont les fours-fusées métalliques avec des foyers verticaux situés à un angle par rapport au tube à flamme. Souvent, les ouvertures du four sont fermées par des couvercles ; dans ce cas, l'air est aspiré par le ventilateur. Parfois, le foyer a un diamètre plus grand que le tube de flamme afin d'assurer une combustion à long terme.
Fours à briques simples
Un poêle-fusée en brique de petite taille est une autre des options les plus simples pour construire un poêle-fusée à faire soi-même. Pour son assemblage, le mortier de ciment n'est pas nécessaire, il suffit de poser les briques les unes sur les autres pour obtenir à votre disposition une unité de cuisson d'extérieur en brique pratique. Au chapitre à monter soi-même fours-fusées, nous vous suggérons de vous familiariser avec la commande la plus simple pour l'auto-assemblage.
Un poêle fusée en brique à faire soi-même peut être utilisé pour chauffer les ménages. Dans ce cas, une simple commande ne suffit pas - vous devrez construire une version fixe à l'aide d'un mortier de ciment spécial. Il existe de nombreuses commandes pour cela, il vous suffit de choisir l'option appropriée. Soit dit en passant, certaines variantes de ces fours prévoient la présence d'un circuit d'eau.
Avantage des fours à fusée à briques :
- Conception simple ;
- Rétention de chaleur à long terme ;
- La possibilité de créer un canapé chaud et confortable.
Certains modèles sont fabriqués en combinaison, ils utilisent à la fois de l'acier et des briques.
Fours à fusée complexes
Un poêle à jet pour chauffer les ménages ou pour un bain se caractérise par une complexité accrue. Le lien principal ici est toujours la colonne montante (tube de flamme), enfermée dans un boîtier métallique. Sa partie supérieure peut être utilisée pour la cuisson, formant une sorte de surface de cuisson. La chambre de combustion est agrandie pour accueillir une quantité accrue de combustible solide. Les matières premières sont le métal, la brique et l'argile.
Sur la base d'un revêtement d'argile, des fours à fusée profilés de forme irrégulière sont fabriqués, ce qui est bien perçu par la vision humaine.
Il existe des projets de poêles-fusées à bois qui prévoient la présence de modules supplémentaires. Leurs schémas de construction comprennent de petites chaudières pour la préparation d'eau chaude, des plaques de cuisson, des chemises d'eau et même de petits fours. De tels poêles aideront à chauffer les ménages et à créer des conditions de vie confortables pour une personne.
Une chaudière à fusée à chemise d'eau, basée sur un poêle à bois, aidera à réchauffer un bâtiment à plusieurs pièces. Il est équipé d'un circuit d'eau pour chauffer le liquide de refroidissement. Une commodité supplémentaire est créée par des échantillons avec des bancs de poêle - ces bancs de poêle sont créés sur la base de canaux thermiques entre la flamme et les tuyaux de cheminée.
Comment le faire soi-même ?
Avant de fabriquer un four à fusée, vous devez décider du lieu de son installation, avec les dimensions de la future conception, et développer un schéma. La technologie de la maçonnerie elle-même est assez simple, tout constructeur novice peut la maîtriser.
La conception la plus simple d'un poêle à fusée peut être construite à partir de 20 briques dans un chalet d'été et utilisée pour chauffer des aliments apportés de la maison.
Sélection de l'emplacement
Avant de commencer la construction, la première étape consiste à choisir un emplacement.Il est recommandé de placer les fours à briques de type fusée plus près de la porte d'entrée. Dans ce cas, les cendres après le nettoyage n'auront pas besoin d'être transportées dans toute la pièce, ce qui affectera positivement la poussière globale de la pièce.
Il est également souhaitable qu'à la sortie du tuyau, il n'y ait pas de chevrons situés à moins de 40 cm de la cheminée.Et pourtant, le poêle ne doit pas être adjacent au mur extérieur de la maison afin que la chaleur coûteuse ne chauffe pas le rue.
Préparation de la solution
Le mortier de ciment sous l'influence de températures élevées se fissure rapidement, par conséquent, seul un mortier composé d'argile et de sable est utilisé pour la pose d'appareils de chauffage en brique.
Leurs proportions sont déterminées expérimentalement, en fonction de la qualité de l'argile. Le plus souvent dans un rapport de 1:2 ou 1:3, et plus la teneur en matières grasses de l'argile est élevée, moins elle est ajoutée à la solution.
Tout d'abord, l'argile doit être trempée, filtrée, puis du sable est introduit. La solution résultante doit avoir la consistance d'une crème sure épaisse. Vous pouvez vérifier le niveau de sa viscosité de la manière suivante :
- placez un bâton en bois ou un manche de truelle dans le mélange;
- retirer l'outil et bien agiter ;
- vérifier l'épaisseur de la couche adhérente : si moins de 2 mm ajouter de l'argile, plus de 3 mm - sabler.
La préparation du mortier doit être abordée en toute responsabilité, car seul un mélange plastique de la densité requise peut combler toutes les irrégularités des briques et assurer leur forte adhérence.

Commande d'un four fusée pour 20 briques

Un exemple de poêle fusée en brique
Poêle fusée en maçonnerie avec banc de poêle
Un poêle fusée en brique, même équipé d'un banc, est petit. L'ordre indiqué dans les figures (ci-dessous) vous permet d'assembler la structure sans utiliser de produits métalliques. Seules les portes seront en fer.Par la suite, le corps peut être enduit d'argile pour lui donner des formes plus arrondies.
| numéro de ligne | Nombre de briques, pcs. | Description de la maçonnerie | Image |
| 1 | 62 | Formation de la base du four |
(Cliquez pour agrandir) |
| 2 | 44 | La formation de la base des canaux pour chauffer le canapé le long de toute la structure. Fixation d'hypothèques pour le montage d'une porte en fonte | |
| 3 | 44 | Répétition du contour de la deuxième rangée | |
| 4 | 59 | Couverture complète de la chaîne. Le début de la formation d'un canal de fumée vertical et d'un four | |
| 5 | 60 | La construction du canapé |
(Cliquez pour agrandir) |
| 6 | 17 | Suite de la pose du conduit de fumée | |
| 7 | 18 | ||
| 8 | 14 | ||
| 9; 10 | 14 | Formation de canaux de fumée |
(Cliquez pour agrandir) |
| 11 | 13 | ||
| 12 | 11 | Le début de la pose du tuyau de cheminée. De là commence le canal par lequel l'air de la table de cuisson descendra pour se déplacer vers le banc du poêle | |
| 13 | 10 | La fin de la formation de la surface sous la table de cuisson. Pose d'un joint d'amiante recouvert de tôle d'acier. |
(Cliquez pour agrandir) |
| 14; 15 | 5 | Fermeture du canal de la cheminée et formation d'un muret entre le banc et la table de cuisson. |
Après avoir terminé les travaux de maçonnerie, le poêle-fusée fait maison doit être séché, soigneusement, en chauffant à faible intensité. Tout d'abord, pas plus de 20% de la norme de bois de chauffage est déposée dans la chambre de combustion et l'appareil est chauffé deux fois par jour pendant 30 à 40 minutes.
Selon ce schéma, le poêle est chauffé jusqu'à ce que sa surface extérieure soit débarrassée des taches humides. Le séchage, selon les dimensions de l'appareil, peut prendre de trois à huit jours. Pendant ce temps, la pièce doit être bien aérée, surtout en été.
L'accélération du séchage peut entraîner une fissuration de la maçonnerie, c'est-à-dire que l'appareil deviendra impropre à un chauffage supplémentaire.

Vue Prêt


















































