- Avantages de conception
- Installation et entretien d'une fosse septique Tver
- Conseils d'entretien
- Avantages et inconvénients de la fosse septique Tver
- Avantages de la fosse septique Tver
- Inconvénients de la fosse septique Tver
- Principe de sélection du modèle
- Meilleures réponses
- Caractéristiques de l'appareil et principe de fonctionnement
- Choisir une fosse septique pour une résidence d'été
- Caractéristiques de l'appareil, principe de fonctionnement et fonctionnement de la fosse septique Tver
- La structure interne et le principe de fonctionnement sont :
- Avantages et inconvénients de la fosse septique Tver
- Notation des propositions nationales
- eurobion
- Peuplier
- Aster
- Réservoir
- Triton
- Topas
- Tver
- Caractéristiques du dispositif de fosse septique
- Fosse septique "Eurobion"
- Appareil et principe de fonctionnement
- L'appareil de la station Tver
Avantages de conception
Parmi les avantages des fosses septiques pour les chalets et les maisons d'été, produits sous la marque Tver, citons:
- pourcentage élevé de traitement des eaux usées (de 95 à 98%), de ce fait, il n'est pas nécessaire de filtrer le sol. L'eau purifiée peut être drainée dans un réservoir, un sol ou utilisée pour l'irrigation, sans que vous ne soyez dérangé par une odeur désagréable.
- les boîtiers en plastique des fosses septiques Tver sont fabriqués à base de polymères durables, ce qui garantit une longue durée de vie et offre une résistance mécanique élevée de la structure;
- l'entretien des fosses septiques Tver ne pose pas de difficultés.Le compresseur inclus dans le kit est fiable et durable. L'élimination des sédiments insolubles accumulés au fond du réservoir est effectuée, en règle générale, une fois tous les 12 mois (si les conditions de fonctionnement sont respectées). La conception n'impliquant pas la présence de filtres, leur nettoyage régulier n'est pas nécessaire;
- les performances d'une installation autonome sont suffisantes pour nettoyer de grandes émissions d'eau (si le volume est correctement sélectionné);
- l'installation d'une fosse septique et l'installation de l'équipement nécessaire ne causeront pas de difficultés, toutes les données de ce processus contiennent des instructions d'installation détaillées. Le processus de connexion peut être effectué par un non-spécialiste ;
- grâce à la conception complètement étanche, l'installation peut être réalisée sous le niveau de la nappe phréatique, auquel cas elle doit être lestée à l'aide d'ancrages spéciaux à cet effet. En règle générale, toutes les fosses septiques en sont équipées;
- vous ne pouvez pas utiliser une fosse bioseptique, car le bioréacteur de la fosse septique contient des bactéries auto-cicatrisantes qui contribuent à la décomposition de la matière organique. Selon le fabricant, ces micro-organismes seront suffisants pour le fonctionnement de l'appareil pendant toute la période de fonctionnement ;
- l'installation de fosses septiques dans les lieux de résidence saisonnière est autorisée. Grâce à l'utilisation d'une méthode combinée de traitement des eaux usées, les boues activées ne sont pas soumises à de fortes charges, ce qui permet un fonctionnement en cycle intermittent ;
- le processus de nettoyage permet la liaison de composés hautement toxiques contenant du phosphore ;
- le risque de blocage est minime, car la solution d'ingénierie a permis de créer une conception dans laquelle il n'y a ni buses ni tuyaux;
- l'installation du compresseur principal est effectuée à l'extérieur de la fosse septique, ce qui augmente considérablement la durée de vie du mécanisme;
- des écoutilles sont prévues pour nettoyer le réservoir;
- le fabricant donne des garanties pour les systèmes de nettoyage autonomes.
Installation et entretien d'une fosse septique Tver
Pour installer un système de nettoyage, vous pouvez inviter des spécialistes ou le faire vous-même.
Il est très important de choisir le bon endroit pour l'emplacement de l'équipement et de creuser une fosse correspondant à sa taille. Dans ce cas, les dimensions de la tranchée doivent être supérieures de trente centimètres aux dimensions de l'installation.
Le fond de la fosse excavée est recouvert de mortier ciment-sable, la fosse septique est installée et fixée. Après cela, les tuyaux d'égout et l'électricité sont connectés.
Lorsque tout est installé et connecté, la fosse septique devra en outre être recouverte d'un mélange de ciment et de sable, tout en la remplissant simultanément d'eau. Cela protégera la station contre d'éventuels dommages.
Lors de l'installation d'une fosse septique, il est nécessaire de suivre strictement toutes les instructions et de prendre en compte les caractéristiques du site. Il est donc préférable de confier l'installation de tels équipements à des professionnels qui donneront une garantie pour leur travail.
Conseils d'entretien
Une fosse septique, comme tout autre appareil, nécessite un entretien régulier. Pour son bon fonctionnement continu il faut :
- contrôler périodiquement le fonctionnement des compresseurs responsables de la qualité des effluents ;
- retirer annuellement les sédiments accumulés.
Pendant le fonctionnement de la station, il est interdit :
- jeter les couches pour enfants, les produits en caoutchouc et en plastique, les sacs en plastique, divers déchets de construction et autres objets qui ne se décomposent pas sous l'influence des bactéries dans les égouts;
- verser de la peinture, du diluant, de l'essence et d'autres liquides caustiques et toxiques dans le système.
Sous réserve de toutes ces exigences, la fosse septique de Tver fournira au système d'égout le niveau de traitement des eaux usées le plus élevé possible et fonctionnera efficacement pendant de nombreuses années.
Avantages et inconvénients de la fosse septique Tver
Fosse septique Tver
Les fosses septiques de Tver font un excellent travail de traitement des eaux usées, ont une longue durée de vie, ont un prix abordable et sont faciles à installer, elles sont donc très populaires.
Néanmoins, Tver présente à la fois des avantages et des inconvénients, nous les examinerons dans l'ordre.
Avantages de la fosse septique Tver
- Étant donné que le processus de purification se déroule à l'intérieur de la station et avec un degré de purification élevé - jusqu'à 98%, une filtration supplémentaire du sol à l'aide de champs de filtration et d'infiltrateurs n'est pas nécessaire.
- La station est faite de polymères à haute résistance, elle est donc durable en fonctionnement et ne se corrode pas. Selon le constructeur, cette station d'épuration peut fonctionner sans entretien ni réparation supplémentaire pendant plusieurs décennies.
- En raison d'une purification élevée, les eaux usées peuvent être rejetées dans les réservoirs, le sol et également utilisées pour l'arrosage des pelouses et des jardins. Cependant, lors du choix d'un appareil, il est nécessaire de sélectionner correctement le modèle afin qu'il offre les performances requises.
- En raison du fait que Tver contient plusieurs conteneurs, où différentes méthodes de nettoyage sont effectuées, de tels processus débarrassent vraiment les eaux usées des substances nocives. Dans les conteneurs, les processus de biodégradation des substances organiques, les processus de décantation, aérobies et anaérobies ont lieu.
- Un très bon avantage est la capacité à résister à de grandes émissions d'eaux usées, par exemple, avec une vidange en une étape du bain, cela n'affecte pas la qualité de l'installation.
- Un processus d'installation assez simple et la possibilité d'installer dans n'importe quelle condition de sol. Cependant, s'il y a un niveau élevé d'eau souterraine sur le site, Tver, afin d'éviter l'ascension, doit être fixé à l'aide d'"ancres" spéciales fournies dans le kit et même lestées si nécessaire.
- La conception est assez facile à entretenir et les compresseurs fonctionnent longtemps. Si la station d'épuration fonctionne correctement, les boues insolubles sont pompées environ une fois par an.
- Les sédiments à l'intérieur de la structure sont retenus au moyen d'une cloison spéciale. De plus, il n'y a pas de filtres amovibles, ils n'ont donc pas besoin d'être remplacés régulièrement.
- Il n'est pas nécessaire d'acheter des bactéries pour le fonctionnement normal du système, Tver en est déjà équipé - elles suffisent pour toute la période de fonctionnement et peuvent s'auto-réparer.
- Grâce à la méthode de nettoyage combinée, la fosse septique Tver peut fonctionner avec une résidence intermittente - cela n'affectera pas son fonctionnement. La méthode de nettoyage combiné vous permet de créer une faible charge sur les boues activées. Cette propriété distingue par exemple Tver de Topas, qui nettoie aussi parfaitement les canalisations (jusqu'à 98%), mais est gourmande en électricité, donc plus de 4 heures de panne de courant peuvent être critiques pour elle.
- L'installation prévoit l'élimination des composés toxiques contenant du phosphore.
- Étant donné que l'eau ne passe pratiquement pas à travers les buses et les tuyaux, le risque de blocage est très faible.
- Le compresseur principal n'étant pas situé dans la station d'épuration, mais à l'intérieur, cela prolonge considérablement sa durée de vie et permet d'éviter les pannes en cas d'urgence.
- Grâce aux grands et pratiques regards d'égout en plastique, le nettoyage de la fosse septique est assez facile.
Inconvénients de la fosse septique Tver
Cependant, en plus des avantages, Tver présente également des inconvénients :
- Le principal inconvénient de tels systèmes est la dépendance énergétique. Pour que les processus se déroulent aussi efficacement que possible, la fosse septique a besoin d'air pour être fournie par un compresseur aux aérotanks. De ce fait, les bactéries aérobies y travailleront, ce qui, associé aux bactéries anaérobies, augmente considérablement la vitesse et la qualité du traitement des eaux usées. Cependant, contrairement, par exemple, à Topas, Tver peut fonctionner sans électricité pendant presque une journée, mais après cette période, la qualité des drains peut se détériorer, donc à un tel moment, il vaut la peine de limiter au minimum l'utilisation d'une fosse septique .
- Coût d'installation élevé, mais il y a un inconvénient - aucune construction supplémentaire de champs de filtration, de puits de drainage et d'infiltrateurs n'est nécessaire, ce qui peut économiser de l'argent.
La fosse septique Tver a un faible poids et des parois assez minces, ces qualités ne peuvent être attribuées à la fois aux inconvénients et aux avantages, car grâce à sa facilité d'installation, elle est plus facile à installer, et les murs, bien qu'ils puissent se plier, mais pas s'effondrer à la suite d'une exposition au sol.
Principe de sélection du modèle
Ce type de station d'épuration est choisi en fonction du débit journalier et de l'importance de la salve de rejet.Le coût par jour est calculé en fonction du nombre de résidents et de toutes les démarches qu'ils effectuent au quotidien.
Par exemple. Famille de 3 personnes, il y a une machine à laver, un lave-vaisselle, une douche/baignoire, des toilettes, un évier de cuisine. Nous comptons combien de fois un réservoir de vidange peut descendre en moyenne par jour, multiplié par sa capacité, nous trouvons la quantité d'eau évacuée lorsque les toilettes sont placées. Ensuite, nous considérons la quantité d'eau dépensée pour le lavage, la vaisselle, la lessive, la fréquence à laquelle les membres de la famille prennent une douche, un bain, etc. Nous résumons toutes les données et obtenons le nombre de vidanges par jour.

Choisissez la taille selon décharge de volée ou quantité quotidienne draine
Nous calculons maintenant l'amplitude de la décharge de volée. C'est le volume qui installations d'assainissement individuelles peut recycler dans les 2 heures. Le plus souvent, au moins, il s'agit du volume de deux salles de bains ou de la quantité d'eau que la famille dépense pendant la douche du soir/matin + les chasses d'eau + l'eau pour la lessive + la cuisine + la vaisselle. C'est si tous ces processus se déroulent simultanément.
Connaissant ces deux nombres, sélectionnez un modèle. Dans le modèle sélectionné, les deux nombres ne doivent pas être inférieurs. Plus - facilement, moins - l'installation a peu de chances de s'en sortir. En règle générale, le critère principal est une décharge de volée. Car si l'installation ne peut pas faire face à une telle quantité d'eau, l'eau non traitée sortira de la fosse septique. Comme le disent les professionnels, il y aura élimination des boues et, par conséquent, il y aura une odeur et des "charmes" associés.
Meilleures réponses
Nassima :
Nous avons aussi Topas, nous l'aimons beaucoup, un spécialiste vient 4 fois par an, il lave tout. Le limon fertile peut être fertilisé et l'eau purifiée peut être arrosée, mais nous n'utilisons pas ce service. Astuce - lors de l'installation, prenez le superviseur de l'installation, c'est-à-diresous la direction d'un spécialiste, les Tadjiks creuseront un trou et y placeront un conteneur, et le spécialiste connectera le tout. Nous l'avons depuis 6 ans déjà, nous n'avons rien à redire, seulement une fois que le sol a coulé et que le tuyau qui fuyait s'est affaissé, mais tout a été rapidement réparé.
L'avorteur Babouchkine :
J'ai juste trois anneaux enterrés dans le sol
grand-père Mikhey :
J'ai quatre bagues... nous vivons toute l'année. On ne sait pas quand il sera rempli. . les voisins n'ont pas accumulé depuis 5 ans. Quel type de sol avez-vous.
Vladimir Petrov :
J'ai un trou prostl vyklpana deux par deux et deux. Nous l'utilisons depuis dix ans et n'avons jamais nettoyé que des préparations bio. Et nous utiliserons plus
Larissa Brejneva :
Nous avons des topas, eh bien, bien sûr, c'est pratique) une fois par an, nous appelons la voiture pour la pomper, afin de pouvoir la rincer plus tard. auparavant, il y avait aussi des anneaux, mais nous avions de l'argile et pompé une fois toutes les 2 semaines, puisque nous vivions en 5 ohm) la seule chose que nous avons toujours une odeur dans la maison en pleine chaleur, pourquoi personne ne peut le comprendre et le des représentants ont été appelés et ont regardé avec leurs voisins, et l'électricien a tout regardé) le reste du temps, il n'y a pas de problèmes, nous en avons presque tous)
Sanya Tochkine :
Nous avons une fosse septique Topas dans notre maison de campagne et tout fonctionne bien))
Mikhaïl Tinishov :
Unilos travaille sur le site pour les parents depuis la 10e année. Très satisfait. Ils se servent aussi (2 fois par an quelque part). Bien que le site ait un niveau élevé d'eau souterraine - aucun problème. En hiver, cela fonctionne comme sur des roulettes.
Maxime Sidorenkov :
Il n'est même pas correct de comparer Topas et Tank, ce sont 2 systèmes complètement différents en termes de principe de fonctionnement. Pour donner une analogie, alors Topas est MERSEDES et Tank Tavria). J'ai moi-même longtemps souffert d'un choix, du coup j'ai acheté Topas, je ne le regrette presque pas. Travaille depuis 2 ans. septique /
Caractéristiques de l'appareil et principe de fonctionnement
La fosse septique Tver purifie les eaux usées en combinant un traitement mécanique, biologique et chimique. Dans les modèles standard, le réservoir est divisé en 6 zones, chacune remplissant sa propre fonction :
- La fosse septique primaire est une sorte de puisard dans lequel de grosses et lourdes particules d'eaux usées se déposent au fond;
- Bioréacteur - un compartiment conçu pour la décomposition des fractions difficiles à oxyder. Pendant le processus de nettoyage, les fractions solides tombent, s'oxydent et passent dans le compartiment suivant ;
- L'aérotank « digère » les déchets à l'aide de bactéries. Le procédé de nettoyage consiste à mélanger des fractions solides avec des boues dans lesquelles vivent des bactéries. Pour ce faire, les boues sont soulevées du fond de la cuve par un courant d'air pompé par le compresseur. Pour augmenter l'efficacité de la fosse septique, de l'argile expansée est ajoutée à ce compartiment;
- Le clarificateur secondaire élimine les restes d'argile expansée et de limon de l'eau, qui sont renvoyés à la section précédente ;
- Aerotank-bioréacteur comprend les fonctions des deuxième et troisième sections. À l'intérieur, des éléments d'un bioréacteur sont installés à travers lesquels passent des particules lourdes, et un aérateur est placé au fond, les soulevant avec un courant d'air. Ce cycle de l'eau se poursuit jusqu'à ce qu'il ne reste plus d'impuretés solides. Au bas de la section, du calcaire est également coulé, qui absorbe, entre autres, les phosphates;
- Le puisard tertiaire élimine les impuretés calcaires de l'eau déjà propre, après quoi l'eau pénètre dans le tuyau de sortie.
La station d'épuration biologique Tver offre un degré d'épuration allant jusqu'à 98 %, et l'eau peut être rejetée dans des réservoirs ou dans le sol, et également utilisée à des fins domestiques, par exemple pour arroser les plates-bandes.
La fosse septique Tver est capable de remplir toutes les fonctions qui lui sont assignées.
Choisir une fosse septique pour une résidence d'été
La meilleure fosse septique pour une maison est celle qui répond le mieux aux besoins du propriétaire. En principe, vous pouvez acheter du matériel prêt à l'emploi ou créer vous-même un système de nettoyage. L'essentiel est de calculer correctement le volume de l'appareil. Pour ce faire, tous les besoins des personnes vivant dans la maison et la superficie de la pièce sont pris en compte. Dois savoir:
- le nombre de résidents dans la maison;
- consommation moyenne d'eau par membre de la famille ;
- le nombre d'unités de plomberie dans la maison, y compris les appareils de lavage et de vaisselle ;
- caractéristiques du sol, niveau d'eau.
Quelle fosse septique vous convient le mieux, cela devra être décidé en fonction des indicateurs obtenus.
Une fosse septique à chambre unique est conçue pour une consommation d'eau quotidienne d'un mètre cube, ce qui est largement suffisant pour une famille de deux personnes. Mais pour 3 à 5 personnes résidant en permanence dans la maison, vous aurez besoin d'une fosse septique à deux chambres, conçue pour une consommation d'eau par jour jusqu'à 10 mètres cubes. Une consommation supérieure à 10 mètres cubes nécessitera une installation à trois chambres.

Schéma du dispositif d'une fosse septique à chambre unique - Photo 03

Schéma de l'appareil d'une fosse septique à trois chambres - Photo 04
Naturellement, la consommation d'eau individuelle dans chaque famille peut différer des données moyennes, il est donc toujours nécessaire d'ajouter un volume de réserve de consommation d'eau aux indicateurs obtenus.
Après avoir fait de tels calculs, vous vous rapprocherez de la réponse à votre question "Alors, quelle fosse septique est la meilleure?"
Caractéristiques de l'appareil, principe de fonctionnement et fonctionnement de la fosse septique Tver
Lors du choix des modèles de fosses septiques Tver que nous proposons, il est nécessaire d'avoir une idée des caractéristiques de son fonctionnement et de son installation.
Tous les modèles de cette marque se distinguent des appareils similaires par la simplicité de leur conception. Lors du développement de la fosse septique Tver, le fabricant a cherché à créer un appareil assez facile à utiliser qui pourrait fournir le degré maximum de traitement des eaux usées. Le type de matériau artificiel le moins cher a été pris comme base, une composition polymère à haute résistance et très légère - le polypropylène, qui est durable et passif vis-à-vis des milieux corrosifs. Le conteneur a des partitions internes dans lesquelles un flux de travail en plusieurs étapes est effectué.
La structure interne et le principe de fonctionnement sont :
chambre de réception ;
section pour le bioréacteur ;
deux bassins de décantation
deux réservoirs d'aération des premier et deuxième étages.
L'air est fourni par un compresseur externe. Au bas des bassins d'aération, des aérateurs sont installés par lesquels l'air pénètre. Le fond de ces chambres est recouvert d'une couche d'argile expansée, ce qui améliore les bioprocédés se produisant dans les chambres et augmente leur intensité.
Diverses grandes fractions sont collectées dans les réservoirs de décantation, qui pénètrent dans la fosse septique par le système d'égouts. Sous l'influence de bactéries anaérobies, la destruction de ces éléments se produit. Le dernier compartiment remplit une fonction de désinfection. Il contient un réservoir à flotteur avec des réactifs contenant du chlore. Pour une séparation efficace des substances peu solubles qui traversent, des buses spéciales en forme de brosse sont utilisées pour les retarder et augmenter le temps de contact direct avec les micro-organismes de la fosse septique qui les décomposent.
Avantages et inconvénients de la fosse septique Tver

La fosse septique Tver est de conception simple
Avantages de l'appareil :
- le travail au sol lors de l'installation est minimisé;
- étanchéité de la structure;
- la possibilité d'installation dans des zones à haut niveau d'eau souterraine;
- force et résistance à l'usure du corps;
- faible consommation d'énergie;
- durabilité de la fosse septique avec une garantie de 50 ans ;
- les eaux usées passent par un cycle complet de traitement ;
- pas besoin d'installer des filtres supplémentaires ;
- la conception peut accepter et traiter de grands volumes d'eau.
Défauts:
- coût élevé des équipements de traitement ;
- dépendance énergétique;
- le besoin d'ancrage dû au faible volume de la structure.
Remarque : lors du choix de l'équipement de traitement, faites attention à la zone où vous allez l'installer, à la direction et à la force des eaux usées et des eaux souterraines, ainsi qu'aux conditions climatiques.
Notation des propositions nationales
Bien que la production d'installations de traitement pour les systèmes d'égouts locaux en Russie ait récemment commencé, certaines entreprises se sont déjà imposées comme des fabricants fiables. Leur qualité n'est pas inférieure aux normes européennes. De plus, les modèles nationaux sont moins chers que les modèles importés. Selon des enquêtes auprès des consommateurs, plusieurs entreprises sont reconnues comme les meilleurs fabricants de stations d'épuration sur le marché russe.
eurobion
Grâce à l'introduction de la technologie des membranes dans les fosses septiques de sa propre production, la Yubas Production Association s'est taillé une place de choix dans le classement des fabricants nationaux. Leurs systèmes sont considérés comme fiables et fonctionnent correctement même après une longue période d'indisponibilité.

Eurobion en coupe, plan de travail
Peuplier
Ces fosses septiques sont produites par la marque Eco-Grand.Leurs modèles sont réputés pour leur haut niveau de traitement des eaux usées (99%). Le fabricant utilise un schéma non standard dans la production de ses produits. A savoir, le libre accès aux sections primaires simplifie la maintenance du système de traitement. Les déchets peuvent en être retirés par eux-mêmes, sans impliquer d'équipement d'aspiration des boues.

Variétés de fosses septiques Peuplier
Aster
Spécialisé dans la fabrication de fosses septiques. Les produits sont offerts sous la marque Unilos. Garantit un degré élevé de traitement des eaux usées (environ 75%). Produit plusieurs variétés d'installations de traitement selon le degré de complexité. Les stations sont complétées par des compresseurs spéciaux responsables de la qualité du nettoyage. le processus de purification s'effectue en plusieurs étapes.

Septique Astra
Réservoir
Le fabricant russe Triton Plastic est responsable de la qualité de cette gamme de fosses septiques. Cette entreprise produit des fosses septiques plus ou moins performantes :
- Taille compacte avec possibilité de traiter jusqu'à 600 litres par jour.
- Des modèles performants capables de nettoyer environ 1200 litres par jour. En termes de paramètres, leurs produits sont similaires aux stations de recyclage classiques fonctionnant sur une technologie à plusieurs étages.

La gamme d'installations de traitement Fabricant de cuves "Triton Plastic"
Triton
produits de la même société. Ils ont plusieurs configurations et méthodes de nettoyage. Ils peuvent traiter de 450 litres par jour (Mini) à 750 litres par jour.

Dimensions du triton
Topas
Tous les modèles de cette marque consomment peu d'électricité. Les structures se composent de 4 puits. Toutes les étapes de purification, y compris anaérobie, y sont effectuées. Le degré d'épuration des eaux usées est de 98 %.

Topas - vue de dessus
Tver
Ces fosses septiques sont produites par la maison de négoce Engineering Equipment. La particularité de ces structures est que le traitement des eaux usées peut être effectué à la fois chimiquement et biologiquement. Chaque station est équipée d'une technologie de clarification de l'eau à 4 niveaux. Il peut, selon le modèle, traiter 750 à 1500 mètres cubes d'eaux usées en 1 jour.

Tver en section
Bien prouvé sur le marché intérieur et la société Rostock avec le leader.
Quelle est la meilleure des fosses septiques énumérées ci-dessus, c'est à chacun de décider. Il n'y a pas de paramètres et de normes clairs ici. L'essentiel est qu'il satisfasse toutes les demandes des utilisateurs, qu'il soit facile à entretenir / utiliser, qu'il soit peu coûteux et qu'il dure longtemps.
Caractéristiques du dispositif de fosse septique
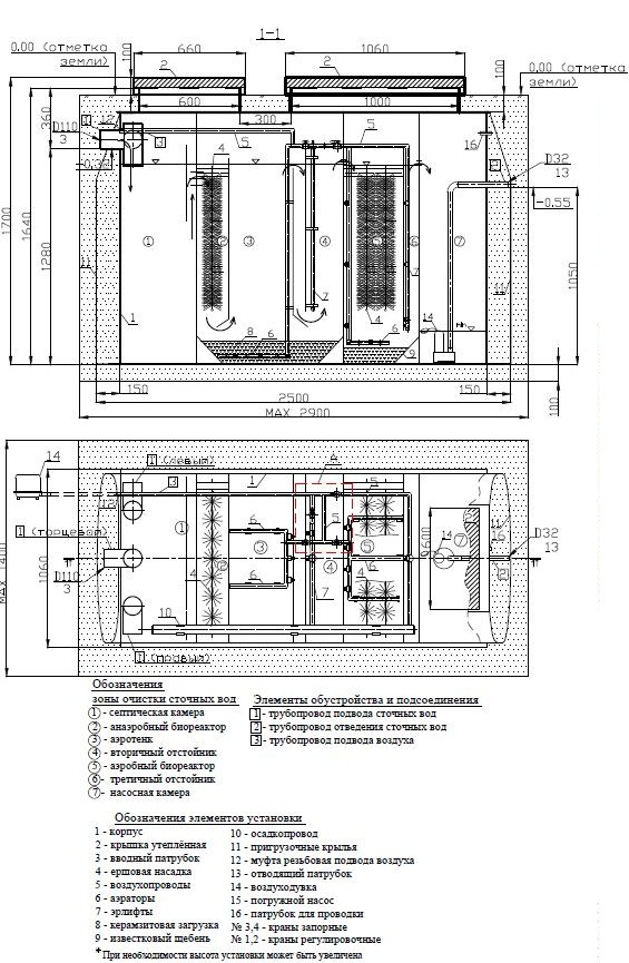
Afin de ne pas se perdre dans l'appareil de la station lors de la maintenance, il n'est pas superflu de connaître les caractéristiques de conception.

Une photo. Septique "Tver". Schéma de l'appareil.
Le schéma ci-dessus montre les éléments structurels suivants en utilisant le modèle Tver-1P comme exemple (une fosse septique pour les personnes, pour le pays et la résidence permanente):
- Chambre septique.
- Bioréacteur anaérobie avec chargement à la brosse.
- Aerotank avec argile expansée, pierre concassée et aérateur.
- Puisard secondaire pour les eaux usées domestiques.
- Bioréacteur aérobie avec chargement à la brosse.
- Puisard tertiaire pour eaux usées domestiques.
Les deux bassins de décantation sont reliés l'un à l'autre par un pont aérien, à l'aide duquel les boues activées sont pompées. De plus, les deux bassins de décantation, l'aérotank et le bioréacteur aérobie sont équipés d'un système de ventilation soutenu par un groupe compresseur.Deux couvercles sont fournis sur le dessus, qui sont nécessaires pour l'inspection visuelle des sections technologiques de la fosse septique, ainsi que pour faciliter l'accès lors de l'entretien.
appareil fosse septique Tver
Fosse septique "Eurobion"
"Eurobion" est un complexe moderne qui élimine les eaux usées traitées de manière à ce que l'eau puisse être utilisée comme engrais sur une parcelle personnelle. Le degré de nettoyage de la fosse septique atteint 98%. Des méthodes d'aération utilisant divers types de bactéries sont utilisées. Ce système n'a pas le puisard habituel, Eurobion n'a pas de dispositif qui stabilise les sédiments. Mais il a plusieurs réservoirs - pour le traitement et le broyage, la collecte et le stockage, il y a un pont aérien qui fait circuler l'eau. Dans la fosse septique, le niveau d'eau est constamment maintenu, seuls les volumes excédentaires sont affichés.
Une autre caractéristique importante de cette fosse septique est qu'elle peut être utilisée avec de longues interruptions de l'écoulement des effluents. Le boîtier est fait de polymères modernes, ne laisse pas passer les odeurs. Pour éliminer les précipitations, la fosse septique doit être nettoyée avec des détergents ordinaires au moins une fois tous les six mois. Il est facile à installer et à entretenir sans faire appel à un équipement spécial.
Pour ceux qui choisissent des fosses septiques biologiques efficaces pour la maison et décident ce qui est le mieux, cet équipement, malgré son coût élevé, peut être le plus approprié. Les utilisateurs parlent positivement d'Eurobion, notant son caractère innovant, mais se plaignent de la dépendance énergétique de la fosse septique.
Appareil et principe de fonctionnement
Depuis plus de vingt ans, la maison de négoce "Engineering Equipment" produit des stations d'épuration et des égouts autonomes. Le même fabricant fabrique des fosses septiques dépendantes de l'énergie Tver, qui peuvent avoir plusieurs options pour drainer les liquides.Grâce à cela, le principe de fonctionnement de la fosse septique peut être réalisé comme suit:
- Utilisation de la chambre de pompage ou de la pompe. À l'aide de tels dispositifs, l'évacuation du liquide de la fosse septique est effectuée à des distances limitées par l'ingénierie et les communications techniques.
- Enlèvement de liquide par gravité dans un réservoir ou une fosse. C'est le principe de fonctionnement le plus simple du système, dans lequel le niveau d'eau dans le réservoir ou la fosse doit toujours être inférieur au point de décharge de la fosse septique. Un tel système peut être installé sans l'intervention de spécialistes.
- Utilisation d'un puits de drainage spécial. Sur les sols sableux, un puits de drainage peut être creusé pour drainer l'eau et assurer ainsi l'écoulement du liquide sans élever le niveau de l'eau jusqu'au point de rejet.
L'appareil de la station Tver
La conception se compose de plusieurs chambres, chacune effectuant son travail spécifique:
- Chambre septique - les liquides d'égout y pénètrent depuis la maison par des tuyaux d'égout. Ici, les éléments sont installés et divisés en légers et durs.
- Le bioréacteur anaérobie est équipé de collerettes et de levures spéciales, grâce auxquelles se déroule le processus de fermentation et de séparation des eaux usées.
- Aerotank - une chambre avec un aérateur, où les liquides sont remplis d'oxygène et transférés dans le compartiment suivant pour traitement.
- Puisard pour suspensions et éléments lourds. Dans celui-ci, ils coulent au fond de la chambre.
- Le bioréacteur anaérobie est un compartiment où se multiplient les microbes anaérobies. Grâce à leur travail, les inclusions organiques et les boues activées situées au fond de la chambre sont dissoutes et absorbées. Après cela, la masse résultante est associée à du phosphore et à des composés liquides.
- Décanteur - une chambre où les mélanges lourds restants sont déposés et le liquide est clarifié.
Les liquides purifiés à 98% sortant du système sont désinfectés à l'aide de flotteurs spéciaux au chlore et de l'eau presque pure s'écoule dans la fosse.















































