- Caractéristiques de fonctionnement
- Fréquence et méthodes de nettoyage
- Ce qui ne peut pas être versé dans une fosse septique Tver
- Caractéristiques de fonctionnement
- Fréquence et méthodes de nettoyage
- Ce qui ne peut pas être versé dans une fosse septique Tver
- Principe d'opération
- Fosse septique Tver prix avec installation clé en main
- Gamme de modèles de fosse septique Tver
- Septic Tver - ses forces et ses faiblesses
- Inconvénients d'une fosse septique comme système de nettoyage
- Règles d'installation d'une fosse septique Tver
- Technologie d'installation d'équipements de traitement
- Inconvénients et fonctionnalités
- Où placer l'installation: règles et réglementations
- Avantages et inconvénients du système de traitement
- Conclusions et vidéo utile sur le sujet
Caractéristiques de fonctionnement
Un processus de traitement aussi complexe et en plusieurs étapes conduit au fait que le système est plus stable, par rapport aux autres, et fonctionne avec diverses défaillances. En général, les stations d'épuration locales réagissent assez mal aux écarts par rapport à la norme. Ils fonctionnent bien dans les conditions suivantes :
- Ils ont besoin d'une alimentation électrique garantie - les installations d'aération doivent fonctionner.
- Ils nécessitent une température positive - à des températures inférieures à +6 ° C, l'activité des micro-organismes se fige et à des températures encore plus basses, ils peuvent mourir. Par conséquent, lors de l'installation, ils sont isolés.
- Ces systèmes exigent la régularité du "réapprovisionnement" en déchets - ils ont besoin de protéines.De telles installations sont donc plus justifiées dans les résidences permanentes. Pour les visites saisonnières, une conservation pour l'hiver est recommandée. La deuxième option consiste à le laisser hiverner en état de marche, mais à le nourrir périodiquement de protéines - au moins une fois par semaine, versez un litre ou deux de kéfir ou versez de la semoule.
Tout cela est vrai pour la fosse septique de Tver, seules les pannes ne sont pas si critiques. Même si les bactéries aérobies meurent sans électricité, les bactéries anaérobies et les réservoirs de sédimentation fonctionneront normalement. Oui, la qualité du nettoyage va baisser, mais l'eau sera toujours plus ou moins propre, et la colonie se rétablira en quelques semaines.
Le gel d'une installation en état de marche d'un système d'égout autonome est généralement peu probable - les drains sont chauds et de la chaleur est dégagée lors des réactions. Dans le cas de la fosse septique de Tver, il y a un autre facteur: un compresseur qui pompe l'air dans les réservoirs aérodynamiques est installé à l'intérieur et entraîne de l'air chaud, chauffant en outre les drains.
Fréquence et méthodes de nettoyage
Toute fosse septique nécessite le pompage des sédiments et l'entretien. Une autre chose est que le moment du pompage peut varier considérablement, ainsi que la liste des travaux nécessaires. L'entretien d'une fosse septique Tver consiste en plusieurs types de travaux:
- Un pompage périodique des boues des bassins d'aération est nécessaire. Vous devez regarder la quantité de limon. S'il y en a trop dans la chambre, il faut le pomper. Afin de pouvoir naviguer par termes, disons qu'en moyenne une telle procédure est requise une fois tous les six mois. Le pompage est automatique ; pour cela, plusieurs robinets doivent être fermés/ouverts dans une certaine séquence. Tout d'abord, fermez le robinet n° 1, puis ouvrez le robinet n° 2 pendant 2 à 3 minutes, puis fermez-le et ouvrez le robinet n° 3. Dans ce cas, les boues en excès s'écouleront dans la deuxième chambre.
-
Enlèvement des dépôts de la première fosse septique. La biomasse provenant de la maison se dépose dans cette chambre. Ce n'est pas du limon et il est préférable de l'enlever avec une machine à eaux usées. Il ne doit pas être convoqué plus d'une fois par an. En principe, vous pouvez vous débrouiller avec une pompe fécale, mais vous devez pomper les déchets dans une fosse à compost où ils doivent "atteindre" pendant au moins six mois.
- Le remplissage du remplissage de calcaire est nécessaire tous les 2-3 ans. Regardez dans l'avant-dernier compartiment, si le calcaire a sensiblement diminué, il est temps de faire l'appoint (un sac ou deux, selon la taille de l'installation).
- Ruff nettoyage. S'il y a une plaque visible - une fois tous les 3-4 mois - ils doivent être lavés avec un jet d'eau froide. S'il y a des collerettes très endommagées (rares), elles peuvent être remplacées.
- Le nettoyage des murs et des cloisons est nécessaire tous les 2-3 ans. Pour ce faire, le système est pompé, les sédiments sont lavés avec une forte pression d'eau (de Karcher, par exemple).
L'entretien du compresseur est également requis, mais il est effectué séparément, selon les activités indiquées dans son passeport.
Ce qui ne peut pas être versé dans une fosse septique Tver
Étant donné que le traitement des jus est dû à l'activité vitale des bactéries, les médicaments antibactériens (antibiotiques), les conservateurs (vinaigre, sel en grande quantité) et les médicaments contenant du chlore leur sont nocifs. L'installation ne réagit presque pas aux poudres et détergents pour vaisselle, mais une grande quantité d'eau de Javel versée à la fois est nocive. Si vous venez de laver votre plomberie avec de l'eau de Javel une ou deux fois par semaine, ce n'est pas grave. Mais si vous effectuez quotidiennement une telle procédure, des problèmes peuvent survenir - les «créatures vivantes» mourront.
Il est impossible de drainer les épluchures de fruits et légumes, le papier dur, les déchets de construction et de grandes quantités de sable dans la station d'épuration. Toutes ces substances ne se décomposent pas du tout par les micro-organismes ou se décomposent insuffisamment.Ils flottent à la surface ou coulent au fond. Si nous parlons de sable et d'autres fragments lourds insolubles, ils se déposent au fond de la première chambre, où ils sont comprimés avec les restes de pollution, se transformant en une masse solide. Cela peut devenir un problème lors du pompage. La machine à eaux usées y fera face, mais lors du pompage manuel la pompe fécale devracassez en quelque sorte cette couche ou grimpez à l'intérieur avec une pelle.
Caractéristiques de fonctionnement
Un processus de traitement aussi complexe et en plusieurs étapes conduit au fait que le système est plus stable, par rapport aux autres, et fonctionne avec diverses défaillances. En général, les stations d'épuration locales réagissent assez mal aux écarts par rapport à la norme. Ils fonctionnent bien dans les conditions suivantes :
- Ils ont besoin d'une alimentation électrique garantie - les installations d'aération doivent fonctionner.
- Ils nécessitent une température positive - à des températures inférieures à +6 ° C, l'activité des micro-organismes se fige et à des températures encore plus basses, ils peuvent mourir. Par conséquent, lors de l'installation, ils sont isolés.
- Ces systèmes exigent la régularité du "réapprovisionnement" en déchets - ils ont besoin de protéines. De telles installations sont donc plus justifiées dans les résidences permanentes. Pour les visites saisonnières, une conservation pour l'hiver est recommandée. La deuxième option consiste à le laisser hiverner en état de marche, mais à le nourrir périodiquement de protéines - au moins une fois par semaine, versez un litre ou deux de kéfir ou versez de la semoule.
Tout cela est vrai pour la fosse septique de Tver, seules les pannes ne sont pas si critiques. Même si les bactéries aérobies meurent sans électricité, les bactéries anaérobies et les réservoirs de sédimentation fonctionneront normalement.Oui, la qualité du nettoyage va baisser, mais l'eau sera toujours plus ou moins propre, et la colonie se rétablira en quelques semaines.
Le gel d'une installation en état de marche d'un système d'égout autonome est généralement peu probable - les drains sont chauds et de la chaleur est dégagée lors des réactions. Dans le cas de la fosse septique de Tver, il y a un autre facteur: un compresseur qui pompe l'air dans les réservoirs aérodynamiques est installé à l'intérieur et entraîne de l'air chaud, chauffant en outre les drains.
Fréquence et méthodes de nettoyage
Toute fosse septique nécessite le pompage des sédiments et l'entretien. Une autre chose est que le moment du pompage peut varier considérablement, ainsi que la liste des travaux nécessaires. L'entretien d'une fosse septique Tver consiste en plusieurs types de travaux:
- Un pompage périodique des boues des bassins d'aération est nécessaire. Vous devez regarder la quantité de limon. S'il y en a trop dans la chambre, il faut le pomper. Afin de pouvoir naviguer par termes, disons qu'en moyenne une telle procédure est requise une fois tous les six mois. Le pompage est automatique ; pour cela, plusieurs robinets doivent être fermés/ouverts dans une certaine séquence. Tout d'abord, fermez le robinet n° 1, puis ouvrez le robinet n° 2 pendant 2 à 3 minutes, puis fermez-le et ouvrez le robinet n° 3. Dans ce cas, les boues en excès s'écouleront dans la deuxième chambre.
- Enlèvement des dépôts de la première fosse septique. La biomasse provenant de la maison se dépose dans cette chambre. Ce n'est pas du limon et il est préférable de l'enlever avec une machine à eaux usées. Il ne doit pas être convoqué plus d'une fois par an. En principe, vous pouvez vous débrouiller avec une pompe fécale, mais vous devez pomper les déchets dans une fosse à compost où ils doivent "atteindre" pendant au moins six mois.
- Le remplissage du remplissage de calcaire est nécessaire tous les 2-3 ans.Regardez dans l'avant-dernier compartiment, si le calcaire a sensiblement diminué, il est temps de faire l'appoint (un sac ou deux, selon la taille de l'installation).
- Ruff nettoyage. S'il y a une plaque visible - une fois tous les 3-4 mois - ils doivent être lavés avec un jet d'eau froide. S'il y a des collerettes très endommagées (rares), elles peuvent être remplacées.
- Le nettoyage des murs et des cloisons est nécessaire tous les 2-3 ans. Pour ce faire, le système est pompé, les sédiments sont lavés avec une forte pression d'eau (de Karcher, par exemple).
L'entretien du compresseur est également requis, mais il est effectué séparément, selon les activités indiquées dans son passeport.
Ce qui ne peut pas être versé dans une fosse septique Tver
Étant donné que le traitement des jus est dû à l'activité vitale des bactéries, les médicaments antibactériens (antibiotiques), les conservateurs (vinaigre, sel en grande quantité) et les médicaments contenant du chlore leur sont nocifs. L'installation ne réagit presque pas aux poudres et détergents pour vaisselle, mais une grande quantité d'eau de Javel versée à la fois est nocive. Si vous venez de laver votre plomberie avec de l'eau de Javel une ou deux fois par semaine, ce n'est pas grave. Mais si vous effectuez quotidiennement une telle procédure, des problèmes peuvent survenir - les «créatures vivantes» mourront.
Il est impossible de drainer les épluchures de fruits et légumes, le papier dur, les déchets de construction et de grandes quantités de sable dans la station d'épuration. Toutes ces substances ne se décomposent pas du tout par les micro-organismes ou se décomposent insuffisamment. Ils flottent à la surface ou coulent au fond. Si nous parlons de sable et d'autres fragments lourds insolubles, ils se déposent au fond de la première chambre, où ils sont comprimés avec les restes de pollution, se transformant en une masse solide. Cela peut devenir un problème lors du pompage.Un camion d'égout peut gérer cela, mais lors du pompage manuel avec une pompe fécale, vous devrez d'une manière ou d'une autre casser cette couche ou grimper à l'intérieur avec une pelle.
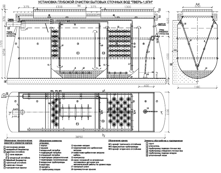
Principe d'opération
Les fosses septiques Tver diffèrent des autres modèles par leur structure. Grâce à 6 chambres responsables de diverses méthodes de nettoyage, 98% de tous les contaminants sont nettoyés. De cette façon, vous pouvez réaliser la possibilité de recycler les eaux usées. Voici les fonctions des différentes caméras :
- Dans la première chambre (c'est là que les eaux usées de votre maison arrivent en premier), seules les plus grosses particules sont nettoyées. Ils coulent au fond.
- Lorsque les eaux usées, dans lesquelles il ne reste plus de contaminants lourds, pénètrent dans la deuxième chambre, elles sont affectées par un bioréacteur. Dans celui-ci, toutes les particules peu solubles se transforment en particules légères.
- Ensuite, les eaux usées sont envoyées au réservoir d'aération du 1er étage, où des substances spéciales leur sont mélangées. Ainsi, l'eau est considérablement purifiée et devient beaucoup plus légère.
- La quatrième chambre est également un «puisard», mais elle remplit une fonction légèrement différente. Sa tâche est de séparer les eaux usées des substances qui ont été mélangées avec elles dans la chambre précédente.
- Une purification plus forte a lieu dans le réservoir d'aération du 2e étage, où les eaux usées sont soumises à une purification en profondeur à l'aide de composés chimiques spéciaux.
- Dans la dernière chambre, la substance se dépose également, car les méthodes de nettoyage nécessaires ont déjà été effectuées.
Le dispositif de la fosse septique Tver
Fosse septique Tver prix avec installation clé en main
Sur son site officiel, le constructeur propose des prix d'équipement avantageux, qui dépendent de la configuration de la structure et de sa modification.Le prix clé en main peut inclure la mise en service, le développement du projet, l'installation et de nombreux autres travaux et services.
Le prix de l'installation elle-même dépend du volume de ses performances. Ainsi, plus la productivité est élevée, plus le coût du système de nettoyage est élevé.
Le constructeur propose :
- Fosse septique Tver-0,35 P d'une capacité de 0,35 mètre cube par jour et une sortie par gravité pour 64 900 roubles.
- Une fosse septique Tver-0,35 PN avec la même capacité, mais le retrait forcé coûte 71 100 roubles.
- La fosse septique Tver-0,75 P a une sortie par gravité et une capacité de 0,75 mètre cube par jour. Le prix de l'appareil est de 82 900 roubles.
- La fosse septique Tver-1PN avec une sortie forcée et une capacité d'un mètre cube par jour coûte 112 300 roubles.
- La fosse septique Tver-25 est le système le plus puissant avec une capacité de 25 mètres cubes par jour. Le prix est d'environ un million de roubles.
Sur le site Web du fabricant, vous pouvez choisir un système de nettoyage adapté à votre maison avec les performances souhaitées et une prise pratique. L'installation et le fonctionnement de telles fosses septiques peuvent être effectués dans n'importe quel sol.
Gamme de modèles de fosse septique Tver
Afin de choisir une station d'épuration adaptée à vos besoins, vous devez vous familiariser avec les variétés existantes de la fosse septique de Tver. La gamme de modèles de l'installation suppose la présence de 44 appareils, qui diffèrent les uns des autres par des capacités et des volumes différents, qui affectent le nombre de personnes pouvant utiliser cette station de traitement des déchets.
Divers modèles suggèrent la présence de certaines caractéristiques qui ne les caractérisent que (chaque lettre du nom du modèle signifie une certaine caractéristique de la station) :
Septic Tver - ses forces et ses faiblesses

À l'heure actuelle, les stations autonomes, dont le fabricant est la société Tver, sont très demandées. De tels systèmes se caractérisent par un coût acceptable, une efficacité traitement des eaux usées, facilité d'installation et longue durée de vie. Cependant, comme d'autres installations modernes, la fosse septique de Tver présente certains inconvénients.
Parmi les qualités positives, il convient de souligner:
Cette installation purifie presque complètement les eaux usées. Ainsi, le degré de purification atteint 98%, l'utilisateur n'a donc pas à installer de système de filtration auxiliaire (toute la procédure de nettoyage est effectuée dans la station elle-même);
La fosse septique Tver est constituée d'une composition polymère à haute résistance, qui ne craint pas la corrosion. Ainsi, le système est capable de servir pendant de nombreuses années, de faire face efficacement aux tâches. Comme le disent les fabricants eux-mêmes, une fosse septique peut fonctionner pendant plusieurs décennies, sans nécessiter de réparations ni d'entretien supplémentaire.
L'eau après nettoyage avec une fosse septique est la plus propre possible, de sorte qu'elle puisse être évacuée dans le sol, les plans d'eau ou réutilisée, par exemple, lorsqu'il est nécessaire d'arroser un jardin ou un potager. L'essentiel est de choisir un appareil d'une puissance telle qu'il fonctionne efficacement avec un volume spécifique d'eaux usées;
Pendant le nettoyage, le liquide passe à travers différents récipients, qui prévoient différentes méthodes de nettoyage. Ainsi, elle se débarrasse des substances nocives ;
Grâce aux caractéristiques de la fosse septique Tver, vous pouvez simultanément jeter une grande quantité d'eau
Par exemple, si vous le souhaitez, un bain entier peut être vidé et l'eau sera vraiment propre ;
Peu importe le type de sol sur le site, vous pouvez installer une fosse septique Tver sans trop de difficulté. Cependant, si l'on s'attend à ce que les eaux souterraines montent dans la zone, le système doit être réparé
Il devra être lesté avec des "ancres" spéciales, qui, en règle générale, sont fournies dans le kit;
Les compresseurs d'équipement ont une longue durée de vie et l'entretien de l'unité est facile. Le bon fonctionnement consiste uniquement à nettoyer les sédiments insolubles, ce qui devrait être fait environ une fois par an ;
La conception ne prévoit pas de filtres amovibles qui doivent être nettoyés de temps en temps. Une cloison spéciale à l'intérieur de la fosse septique est chargée de retenir les sédiments;
Pour décomposer les déchets, vous n'avez pas besoin d'acheter des préparations spéciales. La fosse septique de Tver est bonne car elle comprend un grand nombre de bactéries dans son système, qui elles-mêmes sont restaurées lors du service du système autonome ;
L'installation implique une méthode de nettoyage combinée, vous ne pouvez donc pas utiliser la fosse septique de manière continue, ce qui n'affectera en rien son efficacité;
La fosse septique Tver est capable d'éliminer les composés contenant du phosphore, qui se caractérisent par leur toxicité ;
Le risque de blocage est minimisé, car l'eau ne circule presque pas dans les tuyaux ;
Le compresseur principal est installé dans la maison, pas dans la fosse septique. Ainsi, la durée de vie de l'équipement augmente considérablement;
De grandes trappes d'égout en plastique pratiques vous permettent de nettoyer rapidement et facilement la fosse septique.
Maintenant quelques mots sur les inconvénients :
- Ce système de nettoyage présente un inconvénient majeur en ce qu'il dépend de l'électricité.Le compresseur fournit de l'air, ce qui est essentiel pour une purification efficace de l'eau. Cependant, même si l'électricité est coupée, la fosse septique de Tver pourra fonctionner un jour de plus, mais l'efficacité du nettoyage diminuera.
- Coût élevé. Ici, il faut tenir compte du fait que les structures ne nécessitent pas de champs de filtration et de puits de drainage.
Le poids léger et les parois minces de la structure ne sont ni des avantages ni des inconvénients. En raison de son faible poids, la fosse septique est installée sans problème et les parois, bien que minces, sont en polypropylène de haute qualité. De grandes charges plieront les murs, mais ne les détruiront pas.
Inconvénients d'une fosse septique comme système de nettoyage
Malgré les nombreux avantages d'une fosse septique, il est important de souligner certains inconvénients. Cela aidera les propriétaires de tels appareils dans leur bon fonctionnement :
Cela aidera les propriétaires de tels appareils dans leur bon fonctionnement :
Installation d'une fosse septique Leader
- Le contenu du premier compartiment n'est pas entièrement recyclé. Le sédiment limoneux formé au fond doit être pompé périodiquement au moyen d'une machine spécialisée.
- Si l'aérateur n'est pas utilisé, le nettoyage est moins efficace, car l'oxygène non seulement oxyde les drains, mais sert également de nourriture aux bactéries.
- La fosse septique n'élimine pas les nitrates des égouts, donc lorsque l'eau de sortie est utilisée pour l'irrigation, ces éléments peuvent pénétrer dans le sol et le polluer.
- Ne pas vidanger l'eau acide et salée dans la fosse septique. Cela entraîne la mort des bactéries et leur récupération peut prendre jusqu'à 2 semaines.
- Si la fosse septique n'est pas utilisée en hiver, les bactéries peuvent geler.
- Une fosse septique nécessite une utilisation régulière, car les bactéries ont besoin de nourriture.
Publié: 25.10.2014
Règles d'installation d'une fosse septique Tver
Les travaux d'installation sont effectués en tenant compte d'un certain nombre d'exigences:
- Les conduites d'égout sous-marines ont un diamètre de 10 cm et la profondeur de pose est de 30 cm.
- Dans une tranchée préalablement préparée pour les tuyaux, un dispositif de sortie d'air du compresseur est posé simultanément.
- Les fosses septiques de Tver sont montées sous terre, en utilisant de la pierre concassée avec du sable comme fondation.
- La formation de fuites d'eaux usées dans le sol et les fondations à travers le système de drainage est exclue.
- Une fois l'installation de l'unité dans la fosse terminée, celle-ci est nivelée au niveau de l'horizon. Cela empêchera les débordements et assurera une bonne circulation de l'eau dans le système.
Conseils! Contrairement aux fosses septiques conventionnelles situées loin de la maison, Tver est installé dans le respect de l'écart minimum par rapport à la sortie d'égout. En installant l'unité près de la sortie, il est possible d'assurer la profondeur optimale du tuyau d'entrée. Lors du choix des produits Tver, les tuyaux d'alimentation sont placés à la hauteur maximale, ce qui contribue à l'élimination de l'eau propre sans l'utilisation de systèmes de pompage, c'est-à-dire par gravité.

Technologie d'installation d'équipements de traitement
Les travaux commencent par la préparation d'une fosse pour une fosse septique. Ses dimensions doivent dépasser les dimensions d'installation de 0,3 à 0,4 m. Le fond de la fosse est nivelé et compacté. Un coussin de sable ou de gravier compacté d'environ 15 cm de haut est posé dessus.
Maintenant, nous nous connectons à la fosse septique. Nous posons des tuyaux diamètre 100 mm avec pente pas moins de 0,02 ou 2 cm par mètre linéaire. Il est souhaitable de poser l'autoroute sans virages.

L'emplacement correct de la fosse septique à l'intérieur de la fosse est surveillé en permanence à l'aide d'un niveau
S'ils sont toujours là, ils doivent être effectués à l'intérieur du puits de révision.Le diamètre de la structure doit être de 70 cm, le rayon du plateau doit être de 30 cm.
Si le tracé du pipeline traverse des sols en soulèvement, ils devront être excavés profondeur 40 cm de bord inférieur du tuyau et remplacez-le par du sable compacté. Les endroits où les tuyaux d'égout sont raccordés aux tuyaux de dérivation sont scellés.
L'assainissement domestique doit être équipé d'une ou deux colonnes montantes d'égout. Sans cela, le bon fonctionnement de la fosse septique est impossible.
La colonne montante de ventilation de l'assainissement sortant par le toit ne doit en aucun cas être raccordée au système de ventilation interne. Il est raccordé au réseau d'égouts de l'immeuble.
À l'intérieur de la tranchée, à côté du tuyau d'alimentation, un conduit d'air du compresseur est posé. Il doit être posé avec une légère pente vers la fosse septique. C'est également là que se trouve le câble d'alimentation. De même, nous équipons la ligne de sortie.
Sa pente dépend de la méthode d'eau traitée choisie. Par exemple, s'il part par gravité, la pente du tuyau est choisie non inférieure à 0,01, c'est-à-dire 1 cm par mètre linéaire.
Si le pompage forcé de liquide est sélectionné, la pente doit être "inverse". C'est-à-dire que lorsque la pompe s'arrête, l'eau doit retourner dans la fosse septique. Une fois les travaux d'aménagement des canalisations terminés, vous pouvez procéder à l'installation du boîtier de l'appareil.

Toutes les connexions sont faites aussi soigneusement et soigneusement que possible. Il ne devrait y avoir aucune fuite, sinon la structure perdra son étanchéité
Le conteneur est descendu dans la fosse et soigneusement installé sur la base. À l'aide d'un niveau, vous devez vérifier l'installation horizontale. Si des violations sont constatées, elles doivent être corrigées en versant du sable sous le bord de la coque.
Ensuite, l'ancrage du réservoir est effectué. À cette fin, il existe des protubérances porteuses spéciales aux extrémités du corps.Ensuite, toutes les communications, y compris l'électricité, sont connectées à l'appareil.
Maintenant, vous devez remplir le corps au niveau des déversoirs avec de l'eau propre. Simultanément au remplissage, le corps doit être remblayé avec du sable propre sans inclusions d'argile. Le remblayage est effectué de tous les côtés sur une hauteur d'environ 30 cm.
Il est important de contrôler la bonne installation à l'aide d'un niveau. Le corps doit être strictement horizontal.
Ensuite, vous pouvez procéder à l'isolation de la fosse septique.
La partie supérieure de l'appareil est recouverte de tout isolant. Le plus souvent, la laine minérale est utilisée à ces fins. Il est fixé sur le corps, après quoi la fosse septique est remblayée avec de la terre.
Pour un essai, les eaux usées sont fournies à la fosse septique tandis que le compresseur est allumé en même temps. Une condition importante pour le fonctionnement est la température positive de l'air extérieur. Au stade final de l'installation, l'équipement standard et supplémentaire nécessaire est installé dans la fosse septique.

Au stade final de l'installation, l'équipement standard et supplémentaire nécessaire est installé dans la fosse septique.
La température des drains utilisés pour le premier démarrage ne doit pas être inférieure à 12ºС, sinon l'appareil ne "fonctionnera pas". Ensuite, vous devez démarrer le système d'aération et, en suivant les instructions, régler l'apport de la quantité d'air requise aux compartiments d'équipement correspondants.
Si tout a été fait correctement, après 3 ou 4 semaines, le liquide à la sortie de la fosse septique atteindra le degré de purification souhaité.
Pour le vérifier, il faudra prélever plusieurs fois des échantillons et les analyser. Extérieurement, le liquide doit être transparent, inodore, incolore et aucune inclusion visible.Si le degré d'épuration est insuffisant, le fonctionnement de la fosse septique doit être ajusté.
Il est peu probable qu'il soit possible de le faire par vous-même, il est préférable d'inviter les spécialistes du service de l'entreprise qui fabrique l'équipement de traitement.
Inconvénients et fonctionnalités
Les fosses septiques de Tver présentent des inconvénients inhérents à tous les appareils de cette classe:
- Dépendance totale à l'électricité. Pour le fonctionnement normal de la fosse septique, il est nécessaire que de l'air soit fourni au réservoir d'aération. En conséquence, en l'absence d'électricité, le compresseur ne pourra pas effectuer ce processus. Mais en même temps, Tver fonctionnera encore au moins un jour avant que sa productivité ne commence à décliner.
- Prix relativement élevé mais en même temps il faut garder à l'esprit que le système d'égouts, où la fosse septique est installée, n'a pas besoin de champs de drainage et d'un puits de drainage, ce qui justifie considérablement le coût de Tver.
Passons aux fonctionnalités. Le corps de la structure a des parois minces, mais du polypropylène à haute résistance est utilisé pour leur fabrication. Le boîtier peut se plier, mais il ne perdra pas son étanchéité. D'autre part, les parois minces rendent la structure plus légère, de sorte que sa livraison et son installation sont grandement simplifiées.
Lors du transport, les dimensions jouent un rôle décisif, pas le poids.
Où placer l'installation: règles et réglementations
Les fosses septiques font partie des objets potentiellement dangereux pour l'environnement. Une autorisation est nécessaire pour leur installation. de SES. Pour l'obtenir, vous devez élaborer un projet de placement d'équipement, qui doit tenir compte de toutes les exigences et normes applicables.
Si tout est conforme aux normes, l'autorisation sera obtenue.Le projet prend en compte non seulement l'emplacement de l'installation, mais également ses volumes.
Le dernier indicateur ne doit pas être inférieur au volume de stock maximal sur trois jours. L'endroit où est installée la fosse septique doit être éloigné le plus possible du puits ou du puits, s'il y en a sur le site.
Bien que les équipements de traitement soient hermétiquement fermés, il est théoriquement possible qu'une situation d'urgence se produise, à la suite de quoi le ruissellement pourrait pénétrer dans l'aquifère.

Selon les normes, la distance entre la fondation d'un bâtiment résidentiel et une fosse septique doit être d'au moins 5 m, mais une exception est faite pour les COV avec pompage forcé des effluents traités
Pour éviter de tels problèmes, la réglementation réglemente la distance entre la station d'épuration et le puits ou puits pour chaque type de sol. Le minimum est de 20 mètres.
En moyenne, s'il y a un sol limoneux, sablonneux ou sablonneux sur le site, cette distance varie de 50 à 80 m. Certaines règles s'appliquent lorsque pose de conduites d'eau. Ils doivent être placés à une distance d'au moins 10 m de la fosse septique.
Cela élimine complètement le risque de pollution de l'eau en cas de dépressurisation d'une canalisation. Autre nuance: lors du choix d'un site pour l'installation d'une fosse septique, vous devez vous rappeler que par rapport à la source d'eau, le niveau de son emplacement doit être inférieur.
De plus, il faut tenir compte des normes réglementant la distance entre la station d'épuration et le lieu de résidence des personnes. De la fondation de la maison à la fosse septique doit être d'au moins 5 m.
Cependant, une trop grande distance entre les objets est hautement indésirable, car une longue canalisation d'égout risque davantage de se bloquer.
Il est important de choisir la bonne longueur de la structure.En cas d'utilisation d'une modification de la fosse septique Tver avec pompage forcé de l'eau de process, vous pouvez la placer plus près de chez vous
La colonne montante de ventilation dans de tels cas est installée à l'entrée de la branche d'égout externe et est fixée au mur de la maison. Le tuyau d'égout d'entrée peut être d'environ 1 m.
Le type de décharge et la longueur du tuyau sortant dépendent des conditions géologiques et hydrogéologiques d'une zone particulière. Dans tous les cas, le réseau d'égouts extérieur doit être équipé de puits de révision.
La fosse septique est potentiellement dangereuse pour l'environnement, elle doit donc être placée conformément aux exigences de la réglementation en vigueur (+)
Il faut se rappeler que lors du choix de l'emplacement de la fosse septique, les intérêts non seulement du propriétaire du terrain, mais également de ses voisins doivent être pris en compte. Par conséquent, la distance entre l'installation et la clôture ne peut pas être inférieure à 2 m.
Si une route à trafic assez intense est posée à proximité, la fosse septique ne peut pas être installée à moins de 5 m.La distance entre la fondation des dépendances à quelque fin que ce soit et la fosse septique ne doit pas être inférieure à 1 m.
Les professionnels conseillent de prévoir l'installation d'équipements de traitement sur un site au sol meuble, ce qui facilitera grandement l'excavation. De plus, il faut veiller à assurer le libre accès à l'appareil pour son entretien régulier.
Toutes les exigences ci-dessus doivent être prises en compte lors du choix d'un emplacement pour une fosse septique.
Avantages et inconvénients du système de traitement
Les fosses septiques de Tver présentent des avantages et des inconvénients, comme tout appareil technique. Cependant, le nombre d'avantages l'emporte de manière significative, grâce à quoi ces installations de traitement sont largement et avec succès utilisées.
Avantages de conception :
- La purification complète de l'eau a lieu dans un réservoir - aucun dispositif de filtration supplémentaire n'est requis.
- Une fosse septique d'une capacité correctement sélectionnée nettoie 98% des eaux usées - cette eau peut être déversée sur le terrain, dans un réservoir et utilisée pour les besoins domestiques.
- Le corps de la fosse septique est en matériau polymère à haute résistance qui n'est pas sujet à la corrosion et à l'érosion, ce qui garantit une longue durée de vie de l'appareil.
- Il n'est pas nécessaire d'utiliser constamment des bioactivateurs - les bactéries de la fosse septique sont restaurées d'elles-mêmes et se multiplient activement.
- La purification des phosphates toxiques et des composés azotés est fournie.
- Les boues solides sont pompées une fois par an ou moins.
- La fosse septique Tver peut être utilisée même avec un fonctionnement intermittent - grâce à la méthode de nettoyage combinée, le cycle intermittent ne crée pas une charge importante sur les boues activées et, en l'absence d'alimentation électrique, la fosse septique passe en mode veille.
- Dans une fosse septique, le liquide ne se déplace pas dans les tuyaux ou les tuyaux, il n'y a donc aucun risque de boucher le système.
- La conception résiste sereinement aux rejets en salve d'eaux usées sans perte de qualité de traitement.
- De grandes trappes d'inspection facilitent les inspections de routine du système, l'entretien et le pompage des boues solides.
- Le compresseur est situé à l'intérieur - il est pratique pour l'entretien et prolonge considérablement la durée de vie de l'unité.
- Les dimensions globales compactes et le poids léger vous permettent d'installer vous-même la fosse septique Tver, sans l'intervention d'équipements spéciaux.
Défauts:
- Dépendance énergétique du système ;
- Le prix élevé du complexe.
Cependant, le coût plutôt élevé d'une fosse septique est déjà rentable lors de l'installation - il n'est pas nécessaire de construire des puits d'absorption ou de dépenser de l'argent pour aménager un champ de filtration.

L'installation de la station de traitement Tver est souvent réalisée seule. Cela permet des économies importantes. Le coût d'une telle conception ne dépasse pas le montant qui devrait être dépensé pour l'achat et l'installation d'un système de traitement basé sur une simple fosse septique.
Conclusions et vidéo utile sur le sujet
Le dispositif et le principe de fonctionnement de la fosse septique Tver:
L'appareil et le fonctionnement de la fosse septique Tver, ses avantages par rapport aux autres systèmes. Conseils de conservation hivernale :
La fosse septique Tver, en raison de sa polyvalence, est utilisée pour les maisons privées et les chalets d'été situés dans des zones avec tout type de sol. Des conceptions plus productives conviennent à l'élimination des eaux usées des petits sites de production et des installations de stockage, éloignées des communications centrales.
Partagez avec les lecteurs votre expérience d'utilisation de la fosse septique Tver. Veuillez nous parler des caractéristiques de son entretien et de son fonctionnement. Participez aux discussions et posez les questions qui vous intéressent - la zone de commentaires se trouve ci-dessous.










































