Registre de cheminée à faire soi-même - dessins et procédure de fabrication

Amortisseur de cheminée à faire soi-même: comment fabriquer un amortisseur pour un tuyau - point j

Les principaux types de robinets-vannes

Portail pivotant. On l'appelle aussi le "papillon des gaz", qui est une plaque métallique montée sur un axe rotatif. L'axe, à son tour, est monté à l'intérieur du tuyau de cheminée. Cet appareil a un disque rotatif amovible, mais avec une utilisation prolongée, il peut devenir inutilisable. Cependant, le schéma du mécanisme rotatif vous permet de le réparer et de le remplacer de vos propres mains.L'avantage de ce type d'appareil est sa facilité d'utilisation. Ce type de portail ne nécessite pas une surveillance constante de la part du propriétaire de la maison.

En raison de la complexité de la conception à faire soi-même, le mécanisme rotatif est moins souvent utilisé lors de la pose d'une cheminée ou d'un poêle.

La conception de la porte est nécessaire pour les poêles à bois et les appareils de chauffage fonctionnant à tout combustible solide.

Par conséquent, pour une chaudière à gaz, la solution la plus pratique serait d'installer un mécanisme rotatif. La température des gaz d'échappement est moins basse que lors du fonctionnement du combustible solide, de sorte que le fonctionnement d'un tel mécanisme sera plus pratique.

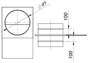
Vanne sur la cheminée isolée

Mais il vaut mieux refuser d'installer un mécanisme rotatif dans le bain. Le fait est qu'il laissera partiellement passer la vapeur lorsqu'il sera fermé. Et sous forme ouverte, un tel mécanisme est difficile à nettoyer.

Fabriqué en acier inoxydable, le mécanisme de glissière ne couvrira pas complètement la cheminée, mais en même temps il exclura la possibilité d'extraire les flammes à travers le cendrier dans la pièce.

Il existe trois options pour installer la porte.

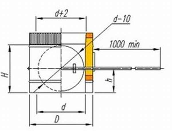
  1. Installation d'un clapet dans un insert de cheminée. Pour ce faire, le portail est monté à une distance de 1 mètre de l'appareil de chauffage, ce qui garantit un fonctionnement simple.
  2. L'option "tuyau à tuyau" consiste à combiner la vanne avec d'autres éléments de la structure de chauffage sans utiliser de fixations supplémentaires.
  3. Installation d'un robinet-vanne dans une conduite de ventilation. Mais cette option est généralement utilisée pour protéger le moteur du ventilateur de la surchauffe pendant son fonctionnement.

Mais même si le kit fini est livré sans cet élément, le portail peut être facilement fabriqué de vos propres mains en choisissant vous-même l'option de mécanisme la plus optimale.

Avantages et inconvénients

Comme toute solution d'ingénierie, la porte présente un certain nombre d'avantages et d'inconvénients.

Avantages:

  • Capacité à contrôler la traction ;
  • L'économie de carburant;
  • Les amortisseurs aident à garder la chaleur à l'intérieur.

Moins :

  • Les appareils rendent difficile le nettoyage des cheminées;
  • Si elle n'est pas installée correctement, la vanne peut se coincer et nuire au mouvement des gaz ;
  • Pour un réglage correct, il est nécessaire d'avoir certaines connaissances dans le domaine des systèmes de désenfumage.

Différences entre portail coulissant et portail rotatif

Un registre rétractable vous permet de régler la section de travail de la cheminée, un registre rotatif - ouvrez ou fermez uniquement le tuyau. Bien sûr, certaines astuces sont possibles - comme fixer le porc dans une position intermédiaire de différentes manières, mais l'équipement d'usine ne le prévoit pas. De plus, la porte rotative complique le nettoyage mécanique de la canalisation.

Pourquoi avez-vous besoin d'installer une porte

La vanne installée assure le fonctionnement le plus efficace de l'équipement de chauffage. Il joue le rôle d'un registre régulateur dont l'utilisation permet un recouvrement partiel de la section de cheminée. Ainsi, le robinet-vanne permet de bloquer le canal de fumée après le foyer.

Le tirage est ajusté de cette manière : en fermant le registre, vous pouvez réduire ou augmenter le diamètre de la cheminée.

Le robinet-vanne est nécessaire pour contrôler la combustion dans l'insert de cheminée. Son installation assure la régulation des fumées et des débits d'air dans les structures de la cheminée.

Types d'amortisseurs pour la cheminée

  1. Système rétractable. Il est réalisé sous la forme d'une plaque horizontale, en raison de son mouvement, la section transversale du tuyau de cheminée diminue ou augmente, ajustant le tirage.L'obturateur lisse est équipé d'un trou de petit diamètre, ce qui permet un mouvement facile et serré dans les rainures de guidage. Ce type de registre est plus courant et est utilisé dans les cheminées dont les tuyaux sont en brique ou en acier.
  2. Système rotatif (double paroi, papillon). C'est une structure qui tourne autour de son axe, ferme ou ouvre le canal de fumée. Il se présente sous la forme d'une plaque lisse, divisée en deux par un axe et fixée dessus. Réglable en tournant les deux parties en cercle. Il est utilisé dans les cas où, pour une raison quelconque, il est impossible d'installer un amortisseur rétractable. L'inconvénient de la conception rotative est que la soudure qui fait tourner la plaque peut se briser ou brûler pendant l'utilisation.

Les matériaux des amortisseurs varient, mais sont le plus souvent en acier inoxydable ou en fonte. Ils sont durables, solides, résistants aux températures élevées et la principale différence est le poids. Les vannes en fonte sont très lourdes, ce qui complique leur installation, de sorte que les vannes à vanne ne sont insérées que dans des tuyaux en brique. Les registres en acier inoxydable, au contraire, sont polyvalents, légers et sont utilisés dans divers types d'appareils de chauffage.

Types de robinets-vannes

Il existe deux principaux types de robinets-vannes - rétractables et rotatifs (papillon). Les caractéristiques de conception ressortent clairement du nom: le premier type fonctionne grâce au mouvement perpendiculaire de la plaque métallique par rapport au tuyau de cheminée.

Nous vous conseillons de lire : Comment fabriquer soi-même un pare-étincelles sur une cheminée ?

Pour améliorer le tirage, le registre recule et dépasse presque complètement la cheminée, et pour réduire le débit, il glisse à nouveau dans le tuyau.

Barrière escamotable

Le registre de cheminée de type coulissant le plus populaire. Il se compare favorablement à d'autres variétés de fiabilité de fonctionnement et de facilité d'utilisation. La porte escamotable est une plaque avec une surface lisse et uniforme, dans laquelle se trouve un trou longitudinal spécial. Il passe par les rainures de la cheminée.

Ce type de vanne est installé strictement horizontalement. Pour modifier la force de tirage dans la cheminée, il suffit de déplacer le registre dans la direction souhaitée, en augmentant ou, au contraire, en réduisant la section transversale du tuyau.

Cette option convient aux tuyaux en acier, mais convient mieux aux poêles en brique. Son installation ne nécessite pas de connaissances particulières ni d'efforts considérables.

Certains modèles ont une petite zone de découpe. Cela garantit la sécurité de la structure: même si cette vanne est complètement fermée, le mouvement du monoxyde de carbone dans celle-ci se poursuivra.

Portillon rotatif

Une autre variété est la porte rotative. C'est une plaque en métal, qui est fixée dans la partie centrale du guide par soudure.

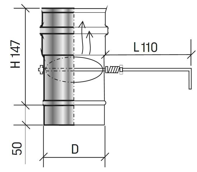
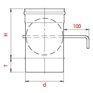
Dimensions et principe de fonctionnement du portail rotatif

Sa part principale se trouve à l'intérieur de la cheminée, mais la pointe doit toujours rester à l'extérieur. Dans le contexte de la rotation de cette plaque par rapport à son propre axe, le tirage dans la cheminée est régulé.

L'inconvénient de ce type est la nécessité d'une fixation par soudure. C'est cet endroit qui est le point faible de la structure : le registre s'ouvrira si la monture se détend.

La porte rotative se distingue par sa faible fiabilité. Mais ce chiffre peut varier en fonction de la matière à partir de laquelle il a été fabriqué.Le plus souvent, ils s'y tournent pour une installation dans des cheminées en acier. Et aussi il est installé dans les cas où il n'y a pas assez d'espace pour étendre la vanne classique.

Portail en fonte

La porte en fonte a trouvé une application assez large dans le cadre de fours de différents types, cheminées. L'inconvénient de tels produits est leur masse importante. Dans le même temps, la fonte elle-même est utilisée depuis longtemps dans la fabrication de vannes pour fours. Cela s'explique par sa grande fiabilité, sa durabilité et sa résistance.

Lire aussi :  Comment conserver une fosse septique pour l'hiver: instructions étape par étape

Gamme de modèles de portails en fonte

Porte de type acier

Un assemblage de porte en acier inoxydable n'est pas l'option la moins chère. Mais la conception se caractérise par une haute qualité et d'excellentes performances. Ses avantages sont les suivants :

  • maintenir l'efficacité du four;
  • petite masse;
  • longue durée de vie;
  • non sujet à la corrosion des métaux ;
  • ne permet pas l'accumulation de suie.

Ces portes peuvent avoir une conception différente selon les caractéristiques du four. Ils sont pertinents pour les cheminées en acier ou en brique.

Pose de vanne

L'installation de tout type de portail est effectuée lors des premières étapes de l'installation du système de chauffage. L'installation de la structure sur la cheminée n'est pas du tout difficile. Vous pouvez le faire de trois manières :

  • Près de la cheminée insert. L'appareil est connecté au tuyau de cheminée à une distance d'un mètre des radiateurs. Une telle installation pratique de l'amortisseur vous permet de contrôler librement le fonctionnement du portail.
  • « Tuyau à tuyau » Cette méthode consiste à fixer le registre à glissière à la cheminée sans utiliser de colliers supplémentaires.La vanne est solidement maintenue en raison d'un ajustement serré au tuyau de cheminée.
  • dans le conduit de ventilation. Cette option d'installation est principalement utilisée pour refroidir le moteur du ventilateur.

Lors de la construction de poêles et de cheminées, le registre est le plus souvent installé de la première manière. Les robinets-vannes sont utilisés pour les cheminées rondes et carrées. Les produits à plateau tournant sont le plus souvent installés dans des cheminées de section transversale en forme de cercle.

Installer une porte dans un four à briques

Le robinet-vanne est assez souvent utilisé pour les fours à briques. Il est installé au stade de la construction de la cheminée. La vanne est placée sur le premier mètre du tuyau. Cette disposition de la porte facilite le réglage de la poussée. Pour installer un tel portail, vous devez :

  • deux rangées de briques de cheminée sont en cours de pose;
  • dans la deuxième rangée, une ouverture de la taille requise est coupée;
  • le registre est installé ;
  • dans n'importe quelle brique de la même rangée, un évidement pour une poignée rotative est perforé;

Ensuite, pose des rangées suivantes

Dans ce cas, il convient de prêter attention à l'étanchéité de l'ajustement à l'endroit où le portail est installé. Toutes les fissures doivent être remplies de coulis.

Lors de l'utilisation d'un tel amortisseur, toutes les mesures de sécurité doivent être prises en compte. Pendant le fonctionnement du four, en aucun cas le tiroir ne doit être fermé. Une telle action entraînera la pénétration de monoxyde de carbone dans la pièce. Certains modèles ont un élément de fixation spécial qui empêche la fermeture complète de l'ouverture du tuyau.

Faire une porte de vos propres mains

Si la vanne n'est pas incluse dans le kit du système de cheminée, vous pouvez l'acheter séparément ou la fabriquer vous-même.La conception de tels appareils est assez simple, par conséquent, presque tout le monde peut construire une porte coulissante s'ils ont les compétences nécessaires pour travailler avec une meuleuse et une machine à souder:

Dans un premier temps, des mesures du futur produit sont effectuées

Ici, il est particulièrement important de dimensionner correctement l'ouverture du tuyau de cheminée, en tenant compte de chaque millimètre. La taille du côté intérieur du cadre doit correspondre à la section transversale du tuyau

La valeur externe des côtés peut être déterminée en ajoutant vingt-cinq centimètres aux indicateurs internes.
Le cadre est en acier inoxydable durable. Les étagères de ses coins doivent mesurer quatre centimètres. Tous les joints du cadre sont reliés par soudage.
Après cela, un trou est fait dans lequel l'essieu sera inséré. Pour faire pivoter la plaque en biais, les trous du cadre sont percés en diagonale. Pour un virage droit, il est nécessaire de faire des trous au centre des côtés parallèles du cadre.
Ensuite, les douilles sont soudées par soudage. Ils sont fabriqués à partir d'un tuyau ne dépassant pas douze centimètres et demi de long. La tige installée à travers les douilles doit tourner librement.
Une plaque est découpée dans une feuille d'acier inoxydable à l'aide d'une meuleuse. Sa taille doit correspondre à la section transversale du tuyau de cheminée. Tous les bords de l'amortisseur sont meulés avec une meuleuse avec un disque.
La plaque finie doit être insérée dans le cadre et fixée avec une machine à souder à l'axe, en laissant un espace entre le cadre de plus d'un centimètre.
Sur un côté du cadre, un limiteur est installé pour fixer la plaque dans la position requise.
Une poignée est attachée à l'axe avec laquelle vous pouvez ouvrir et fermer l'amortisseur.

Pour la plaque, on utilise de l'acier de deux ou trois millimètres d'épaisseur. Toutes les parties du portail doivent être fabriquées dans le même matériau résistant à la chaleur.L'extrémité du manche peut être décorée d'un manche en bois.

L'efficacité et la sécurité du fonctionnement des unités de chauffage dépendent de la qualité du registre à glissière et de son installation correcte. Par conséquent, lors de l'achat ou de l'auto-fabrication d'un produit, il est nécessaire de déterminer avec précision les paramètres de la cheminée et les caractéristiques techniques du système de chauffage.

Fabrication de bricolage

La simplicité de la conception de la plaque de registre pour la cheminée vous permet de le faire vous-même afin de réguler davantage le tirage.

Option 1. Fabrication d'une vanne rotative en acier inoxydable

Nous proposons des instructions détaillées pour la fabrication de l'amortisseur déjà avec le chauffage du poêle fini, une fois la conception terminée, mais le mécanisme de la porte n'a pas été fourni.

Pour fabriquer et installer une porte de vos propres mains, vous aurez besoin des matériaux suivants:

  • meuleuse, coupe et meule abrasive;
  • perceuse;
  • robinet;
  • huile pour lubrifier le robinet lors du filetage;
  • un marteau;
  • vice;
  • pinces;
  • soudage;
  • cœur;
  • électrodes pour acier inoxydable;
  • boussole;
  • roulette;
  • marqueur permanent.

À partir des matériaux, vous devez immédiatement préparer:

  • tôle d'acier inoxydable de 1,5 à 2 mm d'épaisseur.
  • tube en acier inoxydable d'un diamètre intérieur de 6 mm;
  • 2 boulons 8mm,
  • clou (ou tige métallique).

Lorsque tous les outils et matériaux sont préparés, vous pouvez commencer à travailler.

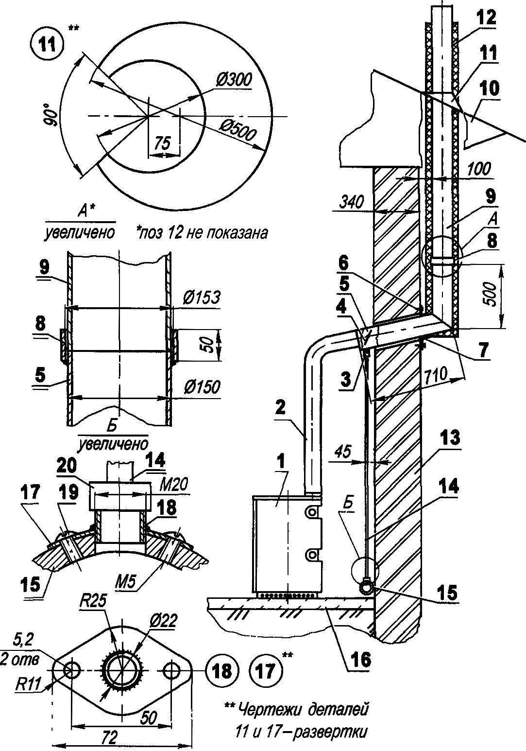
  1. Mesurez le diamètre intérieur du tuyau et marquez-le sur la feuille d'acier inoxydable à l'aide d'un compas.
  2. Maintenant, à l'aide d'une meuleuse, coupez un cercle selon le balisage.
  3. Nous essayons l'amortisseur découpé, si nécessaire, nous l'affinons avec une meule jusqu'à ce qu'il pénètre clairement dans le tuyau.
  4. Prenez le tube en acier inoxydable préparé et fixez-le au cercle fini. Mesurez avec un marqueur à la taille de l'amortisseur. Nous le rendons plus petit que le diamètre intérieur de 3 mm de chaque côté.
  5. Nous coupons le tuyau avec une meuleuse avec une molette de coupe.
  6. Nous forons un trou intérieur dans le tube de 6,8 mm pour le filetage. Lors du forage, il est nécessaire de lubrifier périodiquement la surface interne du tube avec de l'huile de machine.
  7. Nous avons coupé un filetage de 8 mm des deux côtés du tube avec un taraud, sans oublier de lubrifier le taraud au passage. Pour enlever les copeaux coupés, il est nécessaire de faire un demi-tour de retour tous les demi-tours de taraud sur le filetage.
  8. Maintenant, vous devez faire trois trous dans l'amortisseur. Marquez immédiatement avec un marqueur.
  9. Serrez le tube et l'amortisseur dans le collier et soudez le tube à l'amortisseur à travers ces trous (rivets de soudure). Nous commençons à souder à partir du trou central, puis nous relâchons n'importe quelle pince et la soudons dans le trou libéré.
  10. Nous faisons des marquages ​​pour les futurs trous sur le fumeur. Afin de faire correspondre clairement l'axe des trous, enveloppez le tuyau avec un ruban à mesurer et mesurez le centre horizontalement et verticalement. Perçage Faire des marquages
  11. Nous assemblons l'amortisseur dans le tube Étape 7
  12. Nous créons un gabarit pour le support de l'amortisseur Étape 8
  13. Nous transférons le balisage sur une tôle. Vous pouvez utiliser une boussole Étape 9
  14. Nous marquons le milieu pour les trous du loquet, coupons et perçons selon le balisage.
  15. Nous soudons au tuyau Nous soudons le dispositif de retenue

Option 2. Réalisation d'un portail escamotable horizontal en inox

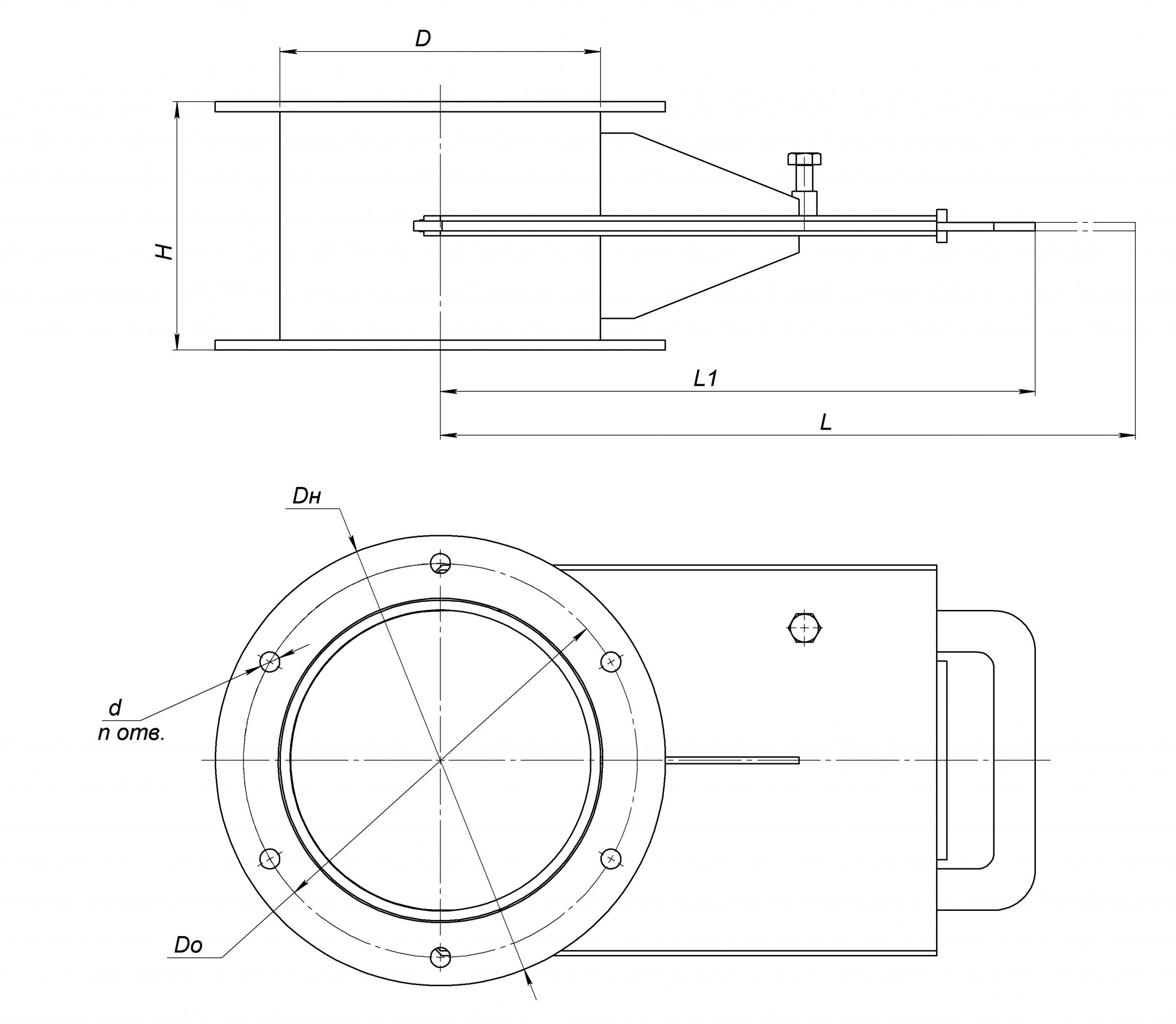
Pour cette option, il est nécessaire d'acheter un robinet-vanne en acier inoxydable prêt à l'emploi. Le dessin représente un cadre à l'intérieur duquel le mécanisme se déplace.

  1. Disposez 2 rangs de poêle ou cheminée selon le schéma de commande utilisé.
  2. Sur la rangée où la vanne sera installée, nous découpons des rainures dans la brique. Ce sont de petites rainures dans lesquelles l'élément métallique va entrer. Il est préférable d'utiliser une meuleuse d'angle avec une roue pour ces travaux. Mais s'il n'y a pas un tel outil professionnel, vous pouvez vous débrouiller avec un fichier.
  3. L'amortisseur est installé.
  4. Dans la brique latérale, il est nécessaire de découper un évidement pour la poignée de l'amortisseur, car elle devra être nettoyée de la suie pendant le fonctionnement Nous fermons la porte avec un certain nombre de briques
  5. La rangée de briques suivante est posée et tous les espaces formés sont bien scellés.
Lire aussi :  Quel chauffage au sol est le meilleur pour les carreaux : le pour et le contre des différentes solutions + un aperçu des meilleurs fabricants

Comme vous pouvez le voir, la fabrication de la porte ne nécessite pas beaucoup de temps et beaucoup d'expérience. En même temps, c'est un détail très important qui augmentera considérablement l'efficacité de la chaudière ou du foyer.

Comment faire une vanne de cheminée de vos propres mains?

De nombreux propriétaires s'intéressent à la question: comment fabriquer des vannes dans des tuyaux ronds? Pour une cheminée ronde ou carrée, vous pouvez fabriquer une vanne de vos propres mains. Pour les structures rondes, une vanne rotative est la mieux adaptée, mais vous pouvez également en utiliser une horizontale.

Le robinet-vanne peut être fabriqué à la main, car sa conception est très simple. L'autoproduction de cet élément façonné de la structure de la cheminée est pertinente si les magasins les plus proches ne disposent pas d'une vanne de la section requise.

Le processus étape par étape pour fabriquer une vanne de cheminée ressemble à ceci:

  • Tout d'abord, il est nécessaire de préparer un cadre dans lequel la plaque coulissante sera située. Il est recommandé de fabriquer un cadre en acier inoxydable résistant à la chaleur. La largeur des étagères des coins en acier doit être comprise entre 3,5 et 4,5 cm.Les coins sont assemblés à l'aide d'un équipement de soudage.
  • À la deuxième étape, vous devez faire un trou pour l'essieu. Il convient de rappeler que si vous devez faire tourner le volet avec un virage "droit", il est recommandé de percer un trou à un point correspondant au centre des côtés parallèles du cadre. Et pour les appareils qui tournent en biais, le trou est fait en diagonale.
  • Ensuite, vous devez installer des bagues spéciales pouvant être fabriquées à partir de tuyaux ordinaires. La taille du manchon doit être d'environ un demi-pouce, ce qui correspond à 1,25 cm. Un équipement de soudage doit être utilisé pour installer les tubes. Les bagues ne doivent pas gêner le mouvement de l'axe de la barre.

  • Ensuite, la pièce est sélectionnée pour la plaque de porte. Pour ce faire, vous avez besoin d'une feuille d'acier inoxydable d'épaisseur appropriée, à partir de laquelle vous devez découper une pièce qui s'adapte à la section de votre cheminée. Il est à noter que l'épaisseur de l'amortisseur peut être supérieure à 1 mm (par exemple 2 ou 3 mm).
  • À la cinquième étape, la plaque finie est insérée dans le cadre et soudée à son axe. Les experts conseillent de laisser un petit espace entre le cadre et la plaque (au moins 1 mm).
  • L'élément restrictif est fixe, ce qui est nécessaire pour maintenir la plaque de porte dans la position souhaitée.
  • Et, enfin, il ne reste plus qu'à fixer une poignée à l'axe, ce qui est nécessaire pour régler la position de la vanne.

Erreurs courantes et problèmes d'installation

Pour installer le papillon des gaz, il est nécessaire de faire un marquage sur le tuyau afin de percer des trous selon la conception soudée de l'amortisseur.

Pour ce faire, vous devez mesurer le tuyau avec un ruban centimétrique et faire des marques pour les futurs trous. Après vous être assuré que les marques sont symétriques, percez les trous pour le futur bouton rotatif avec une perceuse.

Le papillon des gaz est installé comme suit :

  1. Le cercle en acier de l'amortisseur avec un tube soudé est inséré dans le tuyau de cheminée.
  2. À travers les trous percés dans le tuyau, une tige métallique est enfilée dans un petit tube dont l'extrémité est fixée à l'aide d'un boulon et d'un écrou.
  3. L'extrémité de la tige est pliée avec une pince à bouton rotatif.

L'installation d'une porte coulissante dans une cheminée en briques se produit pendant le processus de pose. Pour ce faire, après 6 à 8 rangées de briques, une couche de mortier de maçonnerie en ciment est appliquée, sur laquelle un cadre en fil de fer est installé avec le côté ouvert vers l'interprète. Vous devez mettre la vanne dans le cadre et l'amener à l'état fermé.

D'en haut, le cadre est recouvert de mortier et les briques continuent d'être disposées selon le schéma standard.

Registre de cheminée à faire soi-même - dessins et procédure de fabrication

À ce jour, il existe deux manières principales d'installer un portail sur une cheminée :

  1. Installation dans un insert de cheminée. Cette option d'installation implique la localisation du produit portail à proximité immédiate de l'équipement de chauffage. En règle générale, dans ce cas, la distance entre la porte et l'appareil de chauffage est de 1 mètre. Cette disposition est très pratique pour régler la vanne.
  2. Connexion avec d'autres éléments du système de chauffage. Dans ce cas, il n'est pas nécessaire d'utiliser des éléments de fixation supplémentaires, cette option est donc assez courante. Une telle installation peut également être appelée "tuyau à tuyau".

Les options ci-dessus pour l'utilisation d'amortisseurs pour les cheminées et les systèmes de ventilation sont utilisées partout. Il convient de noter qu'aujourd'hui, vous pouvez trouver une grande variété de poêles et de cheminées qui diffèrent les uns des autres d'un point de vue constructif. Une telle variété de dispositifs de chauffage a également influencé la gamme des registres coulissants.

  • Installation d'une vanne dans une zone isolée. Sous l'influence de la dilatation thermique, l'amortisseur peut se bloquer ;
  • Installer une pièce en fonte dans une cheminée métallique (la fonte pèse beaucoup);
  • L'utilisation d'acier trop fin pour la fabrication des vannes, ou d'acier inoxydable à faible teneur en nickel. Un tel produit se déforme rapidement sous l'influence de gaz chauds et peut brûler;
  • Installer une porte avec une surface non lisse;
  • Installation d'une vanne sans trou pour l'évacuation du monoxyde de carbone ;
  • Installation de poignées qui ne permettent pas de suivre la position de la vanne (s'applique aux éléments rotatifs).

Variétés de robinets-vannes

Étant donné que les cheminées sont différentes, nos robinets-vannes sont également différents les uns des autres. Fondamentalement, cette différence réside dans la forme et dans le mode de fonctionnement. Il existe plusieurs types de robinets-vannes :

  1. Vanne à glissière horizontale qui se rétracte. C'est le type de robinet-vanne le plus courant. À l'intérieur de la structure se trouve une plaque rétractable, c'est grâce à elle que la section transversale est régulée. Le plus souvent, cette conception est utilisée pour les cheminées en briques. Pour qu'en position fermée de l'élément, le canal de fumée ne se chevauche pas à 100%, de petits trous sont pratiqués dans la plaque. Ceci est fait pour une raison, car la technologie de création correspond à la sécurité incendie.La particularité de la porte horizontale est la simplicité de conception et la facilité d'installation, ainsi que l'efficacité du travail.
  2. Portail pivotant. Il a également un deuxième nom - "papillon des gaz". Le design est fondamentalement différent de la version précédente. Il se présente sous la forme d'un tuyau de dérivation à l'intérieur duquel se trouve une plaque métallique. Seulement, il ne s'étend pas, mais se situe sur un axe de rotation. L'appareil est équipé d'un disque rotatif amovible, qui devient inutilisable avec le temps. Cependant, en raison du schéma du mécanisme rotatif, il est facile de réparer et de remplacer la pièce vous-même. La vanne est située à l'intérieur du tuyau de cheminée. Le principe de fonctionnement consiste à faire pivoter la plaque à l'intérieur. L'avantage de cette conception de robinet-vanne est qu'il est facile à utiliser. Le propriétaire de la maison n'aura pas besoin de surveiller en permanence la position de la porte.

La deuxième option étant plus difficile à mettre en œuvre, ce registre de cheminée à faire soi-même n'est pas fabriqué. Le plus souvent, c'est la première option qui est créée - une vanne horizontale. Je voudrais noter quelques nuances supplémentaires. Un robinet-vanne est nécessaire pour les poêles à bois et autres équipements de chauffage fonctionnant aux combustibles solides. Si nous parlons de chaudières à gaz et de celles fonctionnant au combustible liquide, l'amortisseur est davantage nécessaire pour protéger la structure de la cheminée de la pénétration des précipitations atmosphériques, des débris et des animaux.

Si nous parlons d'installer une porte rotative pour un bain, il vaut mieux ne pas le faire. Pourquoi? Pendant le fonctionnement, la structure laissera passer partiellement la vapeur lorsqu'elle sera fermée. Et le nettoyage à l'air libre est difficile à réaliser.

Il existe trois façons d'installer le portail :

  1. Installation du produit dans l'insert de cheminée.A cet effet, il est installé à une distance de 100 cm de l'appareil de chauffage (poêle, cheminée, chaudière), ce qui simplifie le fonctionnement.
  2. La méthode tuyau à tuyau est basée sur la combinaison du robinet-vanne avec le reste des éléments du système de chauffage, sans l'utilisation de fixations supplémentaires.
  3. Installation de la vanne directement dans le tuyau de ventilation. Le but d'une telle manipulation est complètement différent. La vanne est plus nécessaire pour protéger les canaux de la pénétration d'objets étrangers, de débris, de pluie et d'animaux. Ceci est fait pour protéger le moteur du ventilateur.
Lire aussi :  Ce que vous devez savoir lors du choix d'une pompe

Il existe deux options pour savoir comment procéder si vous devez installer une vanne. La première consiste simplement à acheter un kit et à faire l'installation vous-même selon les instructions du fabricant. La seconde consiste à fabriquer soi-même un registre de cheminée. Nous examinerons les options pour créer à la fois un dispositif rotatif et un dispositif horizontal.

Fonctions, but et caractéristiques

Étant le principal régulateur de tirage à l'intérieur de la cheminée, le registre régule la combustion du combustible. Pour réduire le tirage et réduire l'intensité de la flamme dans le four, il suffit de recouvrir le tiroir. Pour augmenter la traction, au contraire, il faut l'ouvrir.

En fait, la porte est une plaque métallique ordinaire qui permet de régler la poussée.

Il peut être installé aussi bien dans des systèmes de chaudière à simple paroi que dans des systèmes de chaudière à double paroi.

Si le foyer avec le poêle n'est pas utilisé, pendant cette période, le robinet-vanne doit être en position fermée.

Mais sur le site d'une cheminée bien isolée, au contraire, il n'est pas recommandé d'installer une vanne. Surtout quand il s'agit de tuyaux à double circuit.Lorsque le métal des tuyaux intérieur et extérieur se dilate, la porte coulissante peut se coincer.

Ainsi, les principales tâches du robinet-vanne sont :

  1. La fonction du régulateur de tirage dans la cheminée.
  2. Chevauchement partiel de la section du conduit de cheminée.
  3. Régulateur d'intensité de flamme dans le four.

Le robinet-vanne est une plaque métallique mince, réglable manuellement à l'aide d'une poignée spéciale. Ce dernier est situé à l'extérieur du conduit de cheminée afin que l'utilisateur puisse régler manuellement la position de la plaque.

Selon la conception et le type d'amortisseur, il est installé à l'aide d'un cadre métallique spécial ou inséré dans le tuyau et fixé avec une tige axiale.

Le registre dans la cheminée remplit les fonctions suivantes :

  • augmente la puissance de traction dans des conditions météorologiques difficiles;
  • augmente l'intensité de la combustion dans le four en augmentant le débit d'oxygène ;
  • réduit le tirage avec un fort grondement dans la cheminée lors de vents forts;
  • économise du carburant en réduisant l'intensité de la combustion;
  • empêche les fuites de chaleur une fois que le radiateur s'est réchauffé.

Comment faire un robinet-vanne de vos propres mains

Considérez comment créer les deux options pour les vannes de cheminée - rétractables et rotatives. Chacun d'eux a ses propres nuances de fabrication et d'installation. Commençons par la vue rétractable.

Préparation des matériaux et des outils

Pour créer le modèle le plus simple d'un portail escamotable, l'acier galvanisé convient. Il est léger, grâce à sa surface lisse, il est facilement nettoyé de la suie et, si nécessaire, la partie mobile peut être facilement remplacée.

L'acier millimétré ne convient pas, car il se plie facilement et, s'il est déformé, il sera difficile de faire glisser la plaque dans la cheminée. L'épaisseur minimale de la feuille est de 1,5 mm, et de préférence de 2 à 2,5 mm

Les principaux outils sont une machine à souder, des électrodes, une meuleuse, des cisailles à métaux (nous choisissons en fonction de l'épaisseur de la tôle), une perceuse avec un disque de meulage, des forets à métaux, une lime. Il est préférable de travailler sur un établi avec un étau. Entre autres, vous aurez besoin d'une feuille de papier pour le gabarit, d'un ruban à mesurer, d'un marqueur.

Rédaction d'un schéma (dessin)

Le dimensionnement doit être pris au sérieux, car même quelques millimètres peuvent provoquer un dysfonctionnement de la cheminée. Pour connaître les dimensions du cadre, vous devez mesurer avec un mètre ruban section du canal de la cheminée - il correspondra aux dimensions de l'intérieur du cadre. A cette valeur, ajoutez 20-30 mm sur trois côtés et calculez le côté extérieur du cadre.

Dessin d'un amortisseur avec un fil de fer. Un cadre en fil de fer est plus difficile à fixer à la maçonnerie qu'un profil avec des côtés plats et larges.

Pour que la valve glisse facilement, sans effort, sa largeur doit être légèrement inférieure à la largeur du cadre (en tenant compte des côtés extérieurs). Pour simplifier les calculs, il est nécessaire de dessiner un schéma de conception et de désigner toutes les dimensions possibles, de sorte qu'à l'avenir, tout en travaillant avec du métal, vous puissiez naviguer par eux.

Pour les tuyaux métalliques, ils combinent généralement la conception d'un amortisseur plat avec un fragment de cheminée situé perpendiculairement.

Dimensions de conception pour un tuyau rectangulaire. Le registre doit bloquer complètement la cheminée, mais en même temps avoir de petits trous pour la pénétration d'air percés avec une perceuse, ou un espace

Pour les cheminées en briques, un cadre plat en fil de fer ou un profilé avec une vanne se déplaçant le long de guides (deux côtés parallèles) est suffisant.

Marquage et découpe de pièces

Après avoir déterminé les dimensions exactes, nous découpons le cadre du portail.Si la cheminée est petite (par exemple, dans un bain public ou dans une cuisine d'été), vous pouvez utiliser un fil épais en le pliant en forme de lettre P.

Un cadre plus détaillé est un profil d'angle solide. Pour le fabriquer, nous coupons une bande de tôle d'acier et la plions à un angle de 90º. Pour donner au profil la forme souhaitée, aux endroits où les coins sont marqués, nous coupons l'un des plans. Lors du pliage, nous obtenons un cadre. Nous soudons les endroits des plis.

Ensuite, découpez l'obturateur lui-même. Il devrait être d'environ 5 à 10 mm plus étroit que la largeur du cadre. Nous ajustons la longueur de sorte qu'à l'état fermé, seul un petit fragment de la valve regarde. Vous pouvez le décorer de différentes manières : sous la forme d'une oreille avec un trou ou juste un bord plié.

Nous nettoyons les bords de la porte coupée avec un disque afin que le processus de fermeture / ouverture se déroule facilement et silencieusement. Les détails ne peuvent pas être peints.

Étapes d'installation de la vanne

La photo montre les étapes d'installation d'un portail fabriqué en usine. Par le même principe, un appareil fait maison est monté.

Galerie d'images
Photo de
Conformément au schéma du dispositif de four, nous déterminons l'emplacement d'installation de la porte coulissante et marquons les briques à couper

Nous sortons les briques qui servent de base au montage de l'amortisseur et les coupons à la taille du cadre du portail avec une meuleuse

Nous utilisons du mortier de maçonnerie pour fixer la vanne. Nous l'appliquons sur le site d'installation, puis sur les bords du cadre par le haut

La vanne "se tenait" au même niveau que le reste des briques, il n'y a donc pas d'obstacles pour la maçonnerie supplémentaire, cela se fait de la manière habituelle - selon le schéma de commande

Étape 1 - déterminer l'emplacement d'installation

Étape 2 - couper des briques autour du périmètre du trou

Étape 3 - planter la porte sur la solution

Étape 4 - maçonnerie au-dessus de la porte

La hauteur d'installation de l'amortisseur dépend en grande partie de la conception du poêle, dans les poêles de sauna, elle est plus basse, dans les poêles de chauffage domestique, elle est plus élevée. La hauteur minimale est de 0,9 à 1 m du sol, la hauteur maximale est d'environ 2 m.

Les principales fonctions du portail coulissant

Le but principal de la porte coulissante est d'assurer le fonctionnement stable du système de chauffage grâce à une bonne traction. L'achat de tuyaux pour la cheminée prévoit l'ensemble complet de ceux avec une porte de production. Si la valve n'était pas incluse, le produit peut être créé à la main.

Le registre aide à diriger le flux d'air, accompagnant la libre sortie des produits de combustion, de sorte qu'il n'y ait pas de fumée dans les locaux.

Registre de cheminée à faire soi-même - dessins et procédure de fabricationFonctionnalité de chevauchement

Vous pouvez réguler la force de traction en augmentant le débit du tuyau, en poussant ou en tournant la couche, ou en la fermant, en ramenant le disque à sa position d'origine.

Une fois que tout à l'intérieur du four a brûlé, la porte est poussée jusqu'au bout, bloquant complètement le tuyau. Ne fermez pas la cheminée avant que les charbons ne soient refroidis, car les produits de combustion continuent à s'échapper pendant un certain temps et il y a un risque d'étouffement.

Évaluation
Site sur la plomberie

Nous vous conseillons de lire

Où remplir la poudre dans la machine à laver et combien de poudre verser