- Types de systèmes de désenfumage
- Échange d'air naturel
- Algorithme de démarrage du système de désenfumage
- Comment installer un système d'échappement à combustion
- Calcul de la température de combustion des produits retirés du couloir
- Dispositif
- Où est installé le désenfumage ?
- Où les SDU sont-ils nécessaires ?
- Où les SDU ne sont-ils pas nécessaires ?
- Utilisation chez les particuliers
- Démarrage du système de protection incendie depuis le lieu d'affectation.
- Installation d'un système de désenfumage
- Installation SDU
- Vérification du fonctionnement du CDS
- Service
- Qu'est-ce qu'un système de désenfumage ?
- Tâches du CDS
- Comment fonctionne un système de désenfumage ?
- Types de désenfumage
- Que prend-on en compte lors de la conception d'un CDS ?
Types de systèmes de désenfumage
Un système d'évacuation des fumées d'une pièce est installé s'il existe un risque élevé d'incendie et de remplissage de l'espace clos avec des émissions volatiles toxiques.
Son installation est rationnelle s'il est impossible d'évacuer les produits de combustion par une ventilation banale, ou même avec une fenêtre ouverte, le mouvement de masse d'air pollué vers les fenêtres sera trop lent.
Galerie d'images
Photo de
Des systèmes qui éliminent la fumée, les émanations et les toxines en suspension dans l'air sont installés dans les bâtiments publics, industriels et commerciaux
Les systèmes d'évacuation des fumées sont construits partout où l'organisation et le fonctionnement de la ventilation naturelle sont impossibles: ce sont les cages d'escalier, les stations de métro, les ascenseurs, les mines et les objets similaires qui n'ont pas de communication directe avec la rue
Ce type de système est conçu pour fournir les conditions d'évacuation des personnes présentes dans le bâtiment en cas d'urgence ou d'incendie.
Le système de désenfumage fait partie intégrante du désenfumage et fonctionne en tandem avec le système de pressurisation de l'air
Le système qui élimine la fumée et les cendres est équipé de ventilateurs puissants qui captent et éliminent l'air de la pièce avec une concentration de fumées dangereuse pour les personnes.
Les ventilateurs du système sont équipés de clapets anti-retour pour empêcher le mouvement inverse de la fumée et des produits de décomposition thermique.
Un système d'évacuation des fumées bien conçu doit entièrement faire face à l'élimination des produits de combustion en suspension dans l'air, assurant une évacuation en toute sécurité jusqu'à l'arrivée du ministère des Urgences
La conception des systèmes d'évacuation des fumées est influencée par les exigences en matière d'air pur, la destination du bâtiment, les normes de vibration, les données météorologiques locales, la sécurité de fonctionnement
Application des systèmes d'évacuation des fumées
Domaine d'utilisation des cheminées
Application de désenfumage
Partie de désenfumage
Ventilateur d'extraction de fumée
Dispositif d'extraction de fumée
Configuration requise pour l'appareil
Facteurs de conception
Selon la méthode d'élimination de l'air enfumé des locaux, les systèmes peuvent être divisés en deux types:
- Statique.
- Dynamique.
Leur fonctionnalité est configurée sur des processus fondamentalement différents.Le CDS statique au moment de la détection d'incendie coupe la ventilation et l'alimentation en oxygène de l'extérieur et bloque la fumée dans une pièce, empêchant sa propagation.
S'il y a une possibilité de remplir la pièce de gaz toxiques lors d'un incendie, vous ne devez pas économiser sur un système d'évacuation des fumées (+)
Dans le même temps, la température dans la pièce atteint des niveaux critiques de 1000 degrés Celsius. Si des personnes sont évacuées du bâtiment par cette pièce, cela est dangereux et peut entraîner des intoxications, des brûlures et des difficultés d'évacuation.
Les CDS dynamiques fonctionnent différemment. Il y a une augmentation de la circulation de l'air due au fonctionnement de ventilateurs puissants et à l'élimination du monoxyde de carbone, ce qui empêche l'accumulation de fumée. Le niveau de fumée est réduit, mais la concentration de monoxyde de carbone se produit toujours. La température de l'air continue également d'augmenter. L'objectif principal du CDS dynamique est de gagner du temps pour l'évacuation. Elle excelle dans ce but.
Si nous parlons de critères de prix, alors les CDS statiques sont moins chers que les CDS dynamiques. C'est un de ces cas où il vaut mieux ne pas lésiner sur la sécurité. Lors de l'utilisation de systèmes dynamiques, les chances d'éviter l'empoisonnement par des toxines volatiles sont plus élevées. Il convient de noter que les deux types de systèmes sont autorisés pour l'installation par les règles de sécurité incendie.
Même la ventilation la plus simple augmente considérablement les chances de survie en cas d'incendie. C'est précisément en raison du manque de SDU dans les anciens immeubles de grande hauteur qu'il est nécessaire de les moderniser. Il en va de même pour les bâtiments anciens adaptés aux besoins de stockage et de production.
Échange d'air naturel
Une condition nécessaire à l'échange d'air naturel est les puits d'alimentation et d'évacuation et les conduits d'air, qui remplissent la fonction d'équilibrer l'entrée et la sortie des extraits. La création de poussée par différence de chaleur dans la pièce et à l'extérieur est réalisée avec les exigences générales d'étanchéité et d'adéquation des débits. Dans le même temps, les exigences des normes de sécurité sanitaire et technique sont prises en compte.
Vous devez faire attention à des choses comme :
- nombre d'étages,
- position relative des structures environnantes,
- effets sonores,
- propreté de l'environnement.
En été, il arrive que l'ordre naturel de ventilation cesse de fonctionner en raison du manque de gouttes et de pression. Par conséquent, une ventilation forcée est nécessaire. La version classique se compose de trois sorties :
- afflux;
- Capot;
- Complexe d'alimentation et d'échappement pour l'extraction des suspensions.
Selon la nature de l'échange d'air, il y a :
- ventilation locale;
- usage général.
La première classe comprend les appareils de bureau et de fenêtre. La deuxième catégorie comprend les systèmes qui créent le mouvement des gaz sur toute la surface de l'objet. Desktop et fortochny - sans canal. Dans le second cas, nous entendons des dispositifs de canal avec circulation à travers des canaux spéciaux. Le type de canal peut être à la fois séparé et monobloc dans un cas. Fonctionnellement, ces types sont divisés en récupération et recirculation (ils ont une recirculation).
Autres variétés :
- chauffé;
- avec refroidissement mixte en été ;
- avec climatisation.
Algorithme de démarrage du système de désenfumage
Le type de départ de ventilation incendie dépend du type de bâtiment :
- Le CDS et le backwater dans la zone d'incendie sont les premiers à fonctionner. Après cela, tous les autres capteurs sont démarrés.
- Dans les grands locaux publics et industriels, où les installations SDU sont nombreuses, le lancement des réseaux individuels s'étale dans le temps.

Cet algorithme permet de réduire la charge simultanée sur le réseau. En abaissant la charge, la précision du fonctionnement des appareils est obtenue.
L'algorithme de déclenchement influe sur le choix de l'équipement. Les modules suivants peuvent être utilisés pour contrôler les vannes et les supports actionnés :
- commande d'adresse ;
- moniteur;
- commander et surveiller.
La dernière version de l'équipement gère non seulement, mais contrôle également le lancement, la fonctionnalité du CDS.
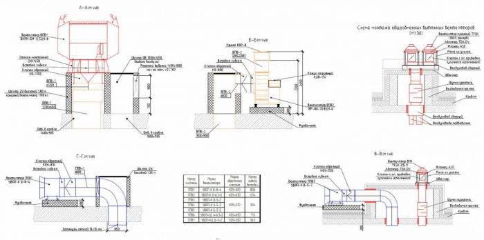
Comment installer un système d'échappement à combustion
En plus de la menace d'empoisonnement, la fumée provoque la désorientation et la panique lors de l'évacuation. Il existe des endroits spécialement désignés où le système de désenfumage doit fonctionner. Ils comprennent tout d'abord :
- Escaliers et paliers.
- Foyer.
- Couloirs, passages et galeries.
- Entrées.
En plus de l'objectif d'évacuation, le SDU permet aux pompiers d'entrer dans le bâtiment. Cela leur permet de trouver la source d'inflammation, de la localiser et de l'éliminer. Ceci est principalement bénéfique pour le propriétaire du bâtiment, car cela permet de minimiser les dommages éventuels dus au feu.
Les travaux d'installation commencent par la pose des cheminées et de la ventilation. Cette étape consiste à monter des modules individuels. Tout d'abord, des pinces spéciales sont installées dans le plafond, auquel chaque module est fixé.

Les branches sont installées au besoin. En règle générale, il s'agit d'éléments à un ou deux canaux. Un tel branchement doit être installé dans chaque zone où, selon la réglementation, des masses d'air doivent circuler.Les ouvertures des canaux sont fermées par une grille spéciale. Les cheminées transportent les produits de la combustion vers de plus grands conduits de fumée.
Chaque puits de fumée mène à un ventilateur d'extraction, qui est installé directement sur le toit du bâtiment. Les ventilateurs sont montés directement à la sortie des conduits de fumée. Ils sont montés dans le strict respect des préconisations du constructeur.
Au-dessus du ventilateur, il y a une petite section de puits qui mène à une trappe de toit. Les écoutilles doivent être installées conformément aux recommandations du fabricant.

Parallèlement aux cheminées, des tuyaux de pressurisation de l'air sont montés. Ils peuvent être montés à côté des cheminées
Veuillez noter que les bouches d'aération ne doivent pas être situées côte à côte. Si vous ne suivez pas cette règle, l'efficacité du système chutera fortement. Câblage au-dessus de la cheminée
Il doit s'agir d'un câble triphasé avec une tension de 380 volts. Il est connecté à l'électronique. Ceci est nécessaire pour l'ouverture automatique des trappes et des vannes du système. Le câble ne doit pas entrer en contact avec les parties chauffées de la cheminée et à proximité de celles-ci. Le plus souvent, le câble est fixé au dessus de la branche parallèle du boost d'air
Le câblage est tiré sur la cheminée. Il doit s'agir d'un câble triphasé avec une tension de 380 volts. Il est connecté à l'électronique. Ceci est nécessaire pour l'ouverture automatique des trappes et des vannes du système. Le câble ne doit pas entrer en contact avec les parties chauffées de la cheminée et à proximité de celles-ci. Le plus souvent, le câble est fixé au-dessus de la branche parallèle de la pression d'air.
Cela protège contre un court-circuit qui se produit lorsque le fil est fondu. Un câblage incorrect entraîne une défaillance de l'ensemble du système de désenfumage.La dernière étape des travaux d'installation est la connexion d'un système d'alarme ou de capteur. Dans les bâtiments de grandes surfaces, le zonage est effectué. Des unités de contrôle distinctes sont responsables de chaque section. Il existe des systèmes où la ventilation et le désenfumage doivent être démarrés manuellement.
Calcul de la température de combustion des produits retirés du couloir
Considérez la distance entre le feu et la vanne la plus proche
Distance entre la pièce où se trouve le siège du feu et le volet de désenfumage
Configuration du couloir
AngulaireRectilinéaireCirculaire
Épaisseur maximale de la couche de fumée, m Superficie du couloir, m2 Longueur du couloir, m Type de feu
Les incendies régulés par échange d'air sont entendus comme des incendies qui se produisent avec une teneur limitée en oxygène dans l'environnement gazeux de la pièce et un excès de substances et de matériaux combustibles. La teneur en oxygène dans la pièce est déterminée par les conditions de sa ventilation, c'est-à-dire la zone des ouvertures d'alimentation ou le débit d'air entrant dans la salle d'incendie à l'aide de systèmes de ventilation mécanique.
Les incendies régulés par la charge calorifique s'entendent comme des incendies qui se produisent avec un excès d'oxygène dans l'air du local et le développement d'un incendie dépend de la charge calorifique. Ces feux dans leurs paramètres se rapprochent des feux en espace ouvert.
Feu à ventilation contrôléeFeu à charge contrôlée
Sélection d'une option de saisie de valeur
Saisir la valeur Calculer la valeur
Charge calorifique réduite spécifique, liée à la surface au sol de la pièce, kg/m2
Charge calorifique réduite spécifique, rapportée à la surface de la surface réceptrice de chaleur des structures de construction enveloppantes de la pièce, kg/m2
Masse de la charge calorifique de la pièce, kg
Surface au sol de la chambre, m2
Volume de la pièce, m3
La surface totale des ouvertures de la pièce, m2
Substances et matériaux dans la charge calorifique
Ajouter
Dispositif
Le besoin, la composition et l'agencement d'une telle variété assez complexe de systèmes de ventilation d'alimentation et d'extraction sont régis par les règles et réglementations suivantes:
- SP 60.13330 "SNiP 41-01-2003*", réglementant les exigences relatives au chauffage, à la ventilation de l'environnement aérien des bâtiments (telle que modifiée le 10 février 2017), qui comprenait un bloc de nouvelles exigences pour les systèmes de protection contre la fumée.
- SP 7.13130.2013, qui établit les exigences PB pour de tels systèmes.
- NPB 239-97 sur la vérification de la résistance au feu des conduits d'air.
- NPB 241-97 sur les clapets coupe-feu pour les systèmes de ventilation.
- NPB 253-98, qui établit des normes de sécurité pour les ventilateurs des systèmes d'évacuation des fumées.
- NPB 250-97 sur les exigences pour les ascenseurs d'incendie installés dans les bâtiments, les structures à des fins diverses.
- Directives du ministère des Situations d'urgence de 2008 sur le calcul des paramètres de désenfumage. Ce document n'est pas un guide, mais est appliqué avec succès dans la conception.
Selon ces normes, l'installation de tels systèmes - systèmes de ventilation d'alimentation et d'évacuation, qui sont contrôlés automatiquement ou en mode manuel, est requise à partir des compartiments / locaux coupe-feu suivants des objets protégés :
- Halls / couloirs de bâtiments publics ou résidentiels au-dessus de 28 m.
- Tunnels, couloirs d'étages enterrés et souterrains non insolés, bâtiments de tout usage, si des locaux avec une présence constante de personnes s'y ouvrent.
- Couloirs de plus de 15 m sans éclairage dans les entrepôts industriels de la catégorie de risque d'explosion A–B2 à partir de deux étages ; ateliers de catégorie B3 ; complexes publics de six étages ou plus.
- Couloirs communs des immeubles avec cages d'escalier sans fumée.
- Couloirs d'immeubles d'habitation sans éclairage naturel, si la distance entre l'entrée de l'appartement le plus éloigné et l'escalier non-fumeur H1 est supérieure à 12 m.
- Atriums des complexes publics supérieurs à 28 m ; passages/atriums avec portes/balcons au-dessus de 15 m.
- Escaliers L2 des hôpitaux en présence de lanternes qui s'ouvrent automatiquement lorsque les détecteurs de fumée des installations/systèmes APS se déclenchent.
- Locaux industriels, entrepôts avec postes de travail, sans éclairage naturel ou avec lui à travers des fenêtres / lanternes qui ne sont pas équipées d'entraînements automatiques pour l'ouverture.
- Locaux non pourvus d'insolation : tout public avec présence massive de personnes ; plus de 50 m². m.avec des travaux en présence de substances combustibles ; locaux commerciaux; armoires de plus de 200 m². M.
Il est acceptable de concevoir l'évacuation du flux de fumée à travers le couloir desservant des pièces jusqu'à 200 m². m., s'ils sont destinés à un usage industriel et appartiennent aux catégories d'incendie et d'explosion B1 à B3 ou sont destinés au stockage de matériaux combustibles.
Il n'est pas nécessaire de concevoir/installer des systèmes d'évacuation des fumées à partir des pièces suivantes :
- Moins de 200 m². m., s'ils sont protégés par des systèmes fixes d'extinction d'incendie, à l'exception des catégories A, B.
- Avec systèmes AUPT poudre/gaz.
- Depuis les couloirs, si toutes les pièces qui leur sont adjacentes sont équipées d'évacuation des fumées.
Les appareils, systèmes de désenfumage et d'amenée d'air sont de plusieurs types avec le dispositif suivant :
- Fenêtres, lanternes pour l'éclairage des locaux avec entraînement incitatif, ouverture en mode manuel et automatique.
- Evacuation des fumées des chambres, foyers, halls, couloirs.
- Ventilation d'alimentation conçue pour le flux d'air forcé dans les escaliers intérieurs, les vestibules, les cages d'ascenseur des ascenseurs de passagers / de fret des bâtiments et des structures, déplaçant / éliminant les produits de combustion d'y pénétrer avec une forte pression d'air.
Les systèmes d'évacuation des fumées/d'alimentation en air forcé en cas d'incendie comprennent :
- Amortisseurs de fumée, également appelés extracteurs de fumée.
- Ventilateurs pour éliminer le flux de fumée dense.
- Mines, canaux principaux, conduits de désenfumage coupe-feu.
- Ventilateurs à air pulsé, le plus souvent montés sur le toit des bâtiments/structures.
- Clapets coupe-feu montés sur le système d'extraction de l'échange d'air général des locaux pour limiter / exclure la propagation du feu par les conduits de ventilation.
L'efficacité de la protection des bâtiments/structures en cas d'incendie, la possibilité d'effectuer une évacuation rapide et sûre des personnes, la limitation de la propagation du feu, des effets thermiques, des produits de combustion dépendent directement du synchronisme du fonctionnement conjoint des fumées systèmes d'échappement / entrée forcée d'air propre ; par conséquent, le dispositif, les principes de leur travail doivent être conçus de manière à ce qu'ils se complètent le plus possible.
Où est installé le désenfumage ?
Il existe des bâtiments et des locaux où des systèmes d'évacuation des fumées sont nécessaires. Parfois, vous pouvez vous en passer.
Où les SDU sont-ils nécessaires ?
Les systèmes doivent être installés :

- Dans les passages (atriums), dans les entrepôts avec racks, si la hauteur est supérieure à 5,5 m, et les matériaux pouvant prendre feu sont stockés à l'intérieur.
- Dans les halls et les couloirs des bâtiments de plus de 9 étages, l'exception concerne les bâtiments industriels où ils travaillent avec des substances combustibles. Ils ont besoin de SDU.
- Les matériaux pouvant s'enflammer sont stockés dans des zones de production et de stockage où des personnes sont constamment présentes. Des systèmes d'évacuation des fumées sont nécessaires pour tout entrepôt en bois, ainsi que pour un bâtiment construit à partir de tout autre matériau combustible.
- Dans le sous-sol ou les sous-sols de tout bâtiment où des personnes se trouvent constamment dans ces pièces. Le premier exemple est le sous-sol d'un immeuble résidentiel, où se trouvent des magasins, des ateliers, des bureaux, etc.. Cependant, si l'accès est fourni directement sur la rue, le désenfumage n'est pas nécessaire.
- Les couloirs de plus de 15 mètres de long et dotés de fenêtres ouvrant vers l'extérieur ne sont pas fournis. Le SDU n'est pas requis pour les bâtiments industriels où il n'y a pas de substances combustibles. Il n'est pas nécessaire d'installer le système lorsque les locaux menant aux couloirs ne sont pas destinés au travail permanent des personnes et que les portes sont étanches à la fumée et au gaz.

Les CDS sont obligatoires pour les écoles, hôpitaux, gymnases et autres bâtiments publics. Une telle ventilation est nécessaire pour les pièces qui n'ont pas de fenêtres extérieures ouvrantes :
- pour les bureaux, les parquets des commerces, quelle que soit leur surface, pour les vestiaires de plus de 200 m2 ;
- pour les locaux dont la superficie dépasse 50 m2 : archives, bibliothèques, salles de lecture, auditoriums, restaurants, salles de cours, etc.
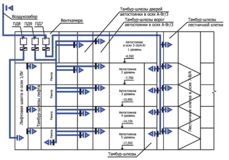
L'installation d'un désenfumage est une condition obligatoire pour toutes les pièces ayant accès à un escalier sans fumée.Il s'agit d'un ouvrage interne destiné à évacuer les personnes en cas d'incendie dans les bâtiments d'une hauteur supérieure à 28 m (sur 9 étages). Le SDU est un attribut obligatoire des parkings couverts, ainsi que des rampes en anneau fermé.
Où les SDU ne sont-ils pas nécessaires ?

Dans certaines pièces, un système d'évacuation des fumées peut ne pas être installé. Cela s'applique tout d'abord aux bâtiments déjà équipés de systèmes d'extinction d'incendie autonomes de type eau, mousse ou poudre. Il y a des exceptions: ce sont les parkings, les services de voiture.
Utilisation chez les particuliers
La réglementation ne prévoit pas l'installation de désenfumage dans le secteur privé. On pense que des fenêtres ouvertes suffisent à évacuer la fumée des bâtiments de faible hauteur. Cependant, il existe une exception : il s'agit d'objets non résidentiels. Par exemple, des hôtels privés, des cliniques, des pensions ou des écoles.

Étant donné que le nombre de personnes dans un immeuble résidentiel est généralement faible, le système de ventilation habituel fait entièrement face à son devoir lors d'un incendie. Il permet aux résidents de quitter librement les lieux et le bâtiment. Dans ce cas, seule l'installation d'une alarme incendie est requise.
Une alternative est un système électronique qui peut contrôler l'ouverture des portes et des fenêtres lorsque des capteurs sont déclenchés. Dans ce cas, la tâche principale est le choix des capteurs. Certains modèles étant caractérisés par un seuil bas, un tel système peut ne pas être très efficace. Par conséquent, le choix des appareils doit être aussi correct que possible.
Démarrage du système de protection incendie depuis le lieu d'affectation.
Alors, faut-il ou non faire glisser les fils de démarrage à distance des armoires de commande jusqu'au poste de sécurité ?
Pour une plus grande fiabilité, cela ne ferait pas de mal.
Mais dans chaque système de sécurité, il existe un panneau de commande correspondant pour les systèmes d'ingénierie, qui permet, au moins en appuyant sur un bouton, d'activer toute la gamme d'outils système.
Frontier est allé le plus loin en créant la télécommande "Border-PDU".
Malheureusement, il est rare de trouver un tel panneau dans l'établissement.
Il en coûte 7500r et cet argent est susceptible d'être économisé.
Le fait est qu'il est possible de contrôler formellement toutes les sorties et tous les systèmes d'ingénierie à partir du clavier du contrôleur de réseau.
Mais être ne signifie pas apparaître - il est peu probable que le personnel de service ordinaire puisse gérer quoi que ce soit.
Contrôler quelque chose à partir du panneau S2000M est fantastique.
Mais à partir du tableau de bord, le contrôle "Frontier-2OP" est mis en œuvre de manière très pratique.
Nous vivons donc dans des formalités continues.
Installation d'un système de désenfumage
Avant la conception et les calculs, assurez-vous d'étudier les recommandations du ministère des Urgences. Ces documents contiennent des tableaux de propriétés de différents matériaux, des formules de calcul de tous les paramètres de désenfumage.

La puissance du système doit être suffisante pour la pièce dans laquelle il est installé. La vitesse maximale de circulation de l'air est clairement limitée : elle est de 1 m/s. Cette exigence s'explique par le fait qu'un fort débit d'air contribue à une augmentation de la source d'inflammation. Ce paramètre est ajusté en changeant les sections des vannes. Il y a une exigence de surface : au moins un appareil pour 600-800 m2. Étant donné que le système utilise une ventilation forcée, il n'y a pas de restrictions sérieuses concernant l'installation de conduits d'air. Il est permis de faire plus de 2 tours de conduits de fumée.
Installation SDU
Étant donné que la fumée crée la panique dans les zones destinées à l'évacuation des personnes, rend difficile le travail des pompiers, les systèmes sont montés dans des endroits spécialement désignés. Ceux-ci inclus:
- plates-formes et volées d'escaliers;
- galeries, couloirs, passages ;
- entrées.
L'installation commence par l'assemblage des conduits de cheminée et de la ventilation. Tout d'abord, des pinces spéciales sont fixées au plafond, puis des modules individuels leur sont séquentiellement fixés. Tous les joints sont scellés. Selon la réglementation, dans chaque zone, il est nécessaire d'installer des branchements - des éléments à un ou deux canaux. Leurs ouvertures sont fermées par des grilles.

Chacune de ces cheminées passe dans des conduits de fumée, qui sont grands. Les derniers éléments sont amenés sur le toit, où les ventilateurs sont montés dans le système (à la sortie). Une petite zone libre est laissée entre les appareils et la trappe à fumée dans la mine. Les modèles à ventilateur vertical n'ont pas besoin de trappes de protection.
En parallèle, des conduits d'air de retenue sont montés. Ils peuvent être situés à proximité des cheminées, mais les ouvertures de ces tuyaux ne doivent pas être situées à proximité. Un câble d'alimentation triphasé avec une tresse non combustible est tiré sur la branche de reflux. L'électronique est connectée au câblage, ce qui permet l'ouverture automatique des vannes et des trappes.
Vérification du fonctionnement du CDS

Cette opération est obligatoire et elle est effectuée deux fois : immédiatement après la fin de l'installation et lors de la vérification du système par les autorités de contrôle. Ce processus implique des tests séquentiels de chaque partie de la conception. À l'avenir, des inspections programmées seront effectuées par les autorités de contrôle.
En cas de panne du CDS, le propriétaire est tenu d'assurer la réparation rapide de l'équipement. Le travail préventif est effectué par des représentants de l'organisation qui a installé le système. Si un équipement défectueux entraîne la mort de personnes, le propriétaire de l'immeuble sera tenu pénalement responsable, la raison en est une violation des normes de sécurité incendie.
Service
Des tests réguliers des performances du CDS sont obligatoires. En cas de violation des règles de fonctionnement, des corps étrangers peuvent pénétrer dans les tuyaux de ventilation, les ordures laissées par les artisans qui ont mal fait le travail ne sont pas exclues. Si la litière s'accumule beaucoup, un problème peut survenir : dans ce cas, l'alimentation en air sera difficile ou s'arrêtera complètement. Pour ces raisons, des examens préventifs réguliers et approfondis sont le seul moyen de prévenir la mort en cas d'urgence.

Faites ce qui suit sur une base mensuelle :
- vérifier le fonctionnement, ainsi que l'état technique de l'alarme ;
- inspecter toutes les connexions, évaluer le fonctionnement des équipements, des vannes ;
- effectuer des diagnostics de tous les appareils ;
- dépanner.
Lors d'événements trimestriels, l'inspection et le nettoyage de tous les éléments du système, la vérification de son fonctionnement à partir d'une source d'alimentation de secours et l'inspection des câbles pour d'éventuels dommages s'ajoutent à ces étapes. Toutes les étapes sont documentées : les résultats de chaque contrôle, selon le planning de travail, sont consignés dans le journal de bord.
Le désenfumage est un élément extrêmement important du complexe de protection incendie. La vidéo suivante vous expliquera comment fonctionne le système d'évacuation des fumées :
Qu'est-ce qu'un système de désenfumage ?
SDU - ventilation à plusieurs niveaux, est un ensemble d'équipements d'urgence et de conduits d'air qui résolvent un problème - ils aident à évacuer la fumée de la pièce le plus rapidement possible. De tels systèmes sont installés dans des bâtiments résidentiels publics à plusieurs étages, mais ils sont très rarement montés dans des maisons privées.

Tâches du CDS
Les systèmes de désenfumage doivent remplir plusieurs fonctions à la fois. Elles sont:
- minimiser la fumée sur les voies d'évacuation;
- empêcher la propagation de la flamme ;
- réduire rapidement la température dans les pièces en proie au feu;
- surveiller en permanence le niveau de fumée, signaler un incendie ;
- fournir un microclimat optimal dans d'autres pièces où il n'y a pas de feu.
Après avoir détecté une zone avec de la fumée, les SDU transfèrent automatiquement tous les éléments du système en mode de fonctionnement. Ils maintiennent la concentration minimale d'oxygène nécessaire à la possibilité d'une évacuation rapide des personnes.
Comment fonctionne un système de désenfumage ?

Le deuxième nom de SDU est désenfumage. Il se compose d'un échappement et d'un afflux, qui doivent compenser l'air enfumé évacué. Jusqu'en 2009, de tels systèmes n'étaient pas installés dans les bâtiments, cependant, en raison de l'incidence accrue d'incendies graves, depuis 2013, leur installation est devenue obligatoire.
Un système de désenfumage fonctionne comme n'importe quel autre système de ventilation. Les masses chaudes montent, l'air froid descend. Cela crée une traction naturelle. Pour augmenter sa puissance, des ventilateurs spéciaux sont utilisés dans le SDU, dont les tâches sont d'éliminer la fumée et de la remplacer rapidement par de l'air pur.
Le travail du SDU peut être conditionnellement divisé en plusieurs étapes:
- après l'apparition d'une source d'incendie, un détecteur de fumée se déclenche ;
- ce signal est envoyé au tableau de commande des systèmes de sécurité incendie, puis la ventilation s'arrête, les vannes coupe-feu se ferment ;
- en cas de détection d'incendie, les vannes de désenfumage s'ouvrent en même temps ;
- les ventilateurs sont inclus dans les travaux: ceux qui éliminent la fumée et les dispositifs de contre-pression (injection d'air).

Le système d'évacuation des fumées s'allume automatiquement lorsque l'alarme incendie se déclenche. Après être passé en mode de fonctionnement, il commence à éliminer les produits de combustion, empêchant leur propagation à d'autres pièces. Les ventilateurs anti-refoulement sont des dispositifs qui fournissent de l'air frais aux couloirs, plates-formes, ascenseurs d'évacuation et autres endroits conçus pour sauver les personnes qui se trouvent dans le bâtiment au moment de l'incendie.
Types de désenfumage
Les systèmes de désenfumage sont statiques et dynamiques.
- Les CDS statiques sont destinés uniquement à la localisation de la source d'incendie. Dans ce cas, l'équipement effectue un arrêt d'urgence de la ventilation du bâtiment, empêchant la pénétration de produits de combustion et de fumée dans d'autres pièces. L'inconvénient des systèmes est leur faible efficacité, car ils ne sont pas en mesure de garantir l'élimination de l'air enfumé de la pièce, un grave danger pour les personnes, car la température dans la source d'inflammation peut atteindre 1000 °.
- Les CDS dynamiques sont dépourvus des défauts des systèmes statiques. Ils assurent le désenfumage et l'apport d'air frais dans les locaux de l'installation. Dans ce cas, des ventilateurs spéciaux sont utilisés. Il peut y avoir plusieurs appareils - pour l'échappement et l'afflux. Cependant, il existe une autre option - un appareil qui fonctionne alternativement pour éliminer la fumée et fournir de l'air frais.La tâche principale de ces systèmes est de fournir des conditions relativement normales pour l'évacuation d'urgence des personnes.

Le choix d'un système d'évacuation des fumées dépend uniquement des caractéristiques de l'objet - structurelles et architecturales. Les CDS statiques sont beaucoup moins chers, mais la ventilation dynamique est plus susceptible d'éviter l'empoisonnement par les toxines. Si nous parlons de règles de sécurité incendie, l'installation des deux types est autorisée.
Que prend-on en compte lors de la conception d'un CDS ?
Plusieurs facteurs doivent être pris en compte avant de commencer les calculs. Ceux-ci inclus:
- les caractéristiques les plus importantes du bâtiment : surface, nombre d'étages, plan d'évacuation en cas d'incendie ;
- caractéristiques des vitrages : nombre de fenêtres, leur emplacement, surface totale ;
- perméabilité à la fumée des matériaux de construction, isolation thermique, façade.
La méthode de calcul étant complexe, cette étape nécessite l'intervention de spécialistes compétents. L'entreprise n'a le droit de développer le projet que dans un seul cas: si ses employés ont reçu une licence du ministère des Situations d'urgence de la Fédération de Russie. Le plan établi doit également être approuvé par le ministère des Situations d'urgence.














































