Choisir un système de chauffage pour un chalet : comment mieux chauffer son logement ?

Chauffage économique d'une maison privée: choisir le système le plus économique

Comment fonctionne le système

Si vous envisagez de conduire indépendamment la chaleur dans les locaux, il est utile de comprendre la conception et le principe de fonctionnement du chauffage de l'eau. Trois composants de tout régime :

  • installation qui génère de l'énergie thermique et la transfère à l'eau ;
  • tuyauterie;
  • radiateurs situés dans des pièces chauffées.

Choisir un système de chauffage pour un chalet : comment mieux chauffer son logement ?
L'une des façons d'organiser le chauffage dans une habitation sur 2 étages est un câblage d'épaule à deux tuyaux

Le principe de fonctionnement du système est basé sur le transfert de chaleur de la source aux appareils de chauffage au moyen d'un fluide de travail liquide - de l'eau ordinaire, capable d'absorber une grande quantité d'énergie (capacité thermique spécifique - 4,18 kJ / kg • °С). Dans certains cas, un liquide antigel est utilisé - une solution aqueuse d'éthylène glycol ou de propylène glycol. Comment cela peut-il arriver:

  1. En brûlant des hydrocarbures ou en consommant de l'électricité, l'appareil chauffe l'eau à une température de 40 à 90 degrés.
  2. Le liquide de refroidissement chaud se déplace dans les tuyaux à l'aide d'une pompe ou naturellement (par convection) vers les radiateurs à eau.
  3. Un échange de chaleur a lieu entre les appareils de chauffage et l'air des pièces - l'eau qui traverse la batterie se refroidit de 10 à 20 ° C, l'atmosphère de la pièce se réchauffe. De plus, la surface chaude du radiateur émet un rayonnement thermique infrarouge.
  4. Le liquide de refroidissement refroidi est renvoyé par la canalisation vers le générateur de chaleur, où il est à nouveau chauffé à la température requise.
  5. L'excès d'eau formé lors de la dilatation thermique pénètre dans un récipient spécial. Lorsque la température dans le système baisse, le fluide se contracte à nouveau et quitte le vase d'expansion.

Choisir un système de chauffage pour un chalet : comment mieux chauffer son logement ?
Cycle de fonctionnement du chauffage - l'eau est chauffée par une installation de chaudière, elle est envoyée par des tuyaux vers des radiateurs, où elle dégage de la chaleur dans l'air ambiant

Avant de chauffer, rappelez-vous une règle : l'efficacité du chauffage est pratiquement indépendante du volume d'eau dans le système. Cet indicateur n'affecte que le taux de réchauffement / refroidissement à la maison lors du démarrage ou de l'arrêt du générateur de chaleur.

Voici quelques fonctionnalités vraiment importantes :

  • différence de température à l'entrée et à la sortie de l'appareil de chauffage domestique, le maximum autorisé est de 25 degrés;
  • puissance de la source - doit être sélectionnée en fonction du calcul des pertes de chaleur à travers les murs extérieurs + chauffage de l'air pour la ventilation ;
  • consommation de liquide de refroidissement - le volume d'eau traversant les appareils de chauffage pendant 1 heure;
  • la résistance hydraulique du réseau de canalisations, ainsi que des radiateurs, ne doit idéalement pas dépasser 1 bar (10 m de colonne d'eau).

Une explication concernant le volume total de liquide de refroidissement dans les tuyaux sera donnée par l'expert Vladimir Sukhorukov dans sa vidéo :

Choisir un vecteur énergétique

Le principal critère de sélection est le coût des vecteurs énergétiques, selon le pays et la région de résidence. Si le gaz naturel est le leader incontesté de la Fédération de Russie, la situation est différente dans les autres États de l'ex-URSS - le bois de chauffage, les briquettes et le charbon occupent la première place. N'oubliez pas l'électricité fournie à moitié prix la nuit.

Lors du choix du bon type de carburant, il convient de prendre en compte cinq facteurs (en plus du prix):

  • efficacité (efficacité) de l'équipement de chauffage utilisant ce vecteur énergétique;
  • facilité d'utilisation;
  • à quelle fréquence les unités devront être entretenues, les prix pour appeler le maître ;
  • exigences de stockage.

Vous trouverez ci-dessous un tableau comparatif indiquant les prix des différents vecteurs énergétiques et combien coûte un kilowatt de chaleur reçu en conditions réelles. Superficie du bâtiment - 100 m², région - région de Moscou.

Selon les chiffres indiqués dans le tableau, il est beaucoup plus facile de trouver une option appropriée (ou plusieurs). Il suffit de faire un ajustement pour le coût de l'énergie dans votre région. Pour les autres nous donnerons 4 conseils aux critères de sélection:

  1. Il est plus pratique d'utiliser des équipements de chauffage au gaz et à l'électricité. Pas besoin de stocker quoi que ce soit, d'entretenir constamment et de gâcher le nettoyage des chauffe-eau.
  2. La combustion du charbon et du bois est le mode de chauffage le plus économique. Pour économiser de l'argent, vous devrez payer avec la main-d'œuvre - scier, transporter, charger la chambre de combustion, nettoyer la cheminée. Brûler des briquettes et des granulés est plus confortable, mais le prix de la chaudière et du combustible lui-même augmente. De plus, vous aurez besoin de stockage pour l'entreposage.
  3. Le gasoil ou le gaz liquéfié est la meilleure solution pour disposer d'un chauffage autonome et en même temps confortable lorsque d'autres sources d'énergie ne sont pas disponibles. Moins - un coût décent de carburant et l'installation d'un réservoir de carburant.
  4. Une option éprouvée est la combinaison de 2-3 vecteurs énergétiques. Un exemple courant : combustible solide + électricité au tarif de la nuit.

Le carburant qu'il est préférable d'utiliser dans des conditions spécifiques est décrit en détail dans un document séparé. Nous vous recommandons également de regarder la vidéo et d'écouter des conseils d'experts utiles :

Choisir un schéma de chauffage pour une chaudière de chauffage dans une maison privée

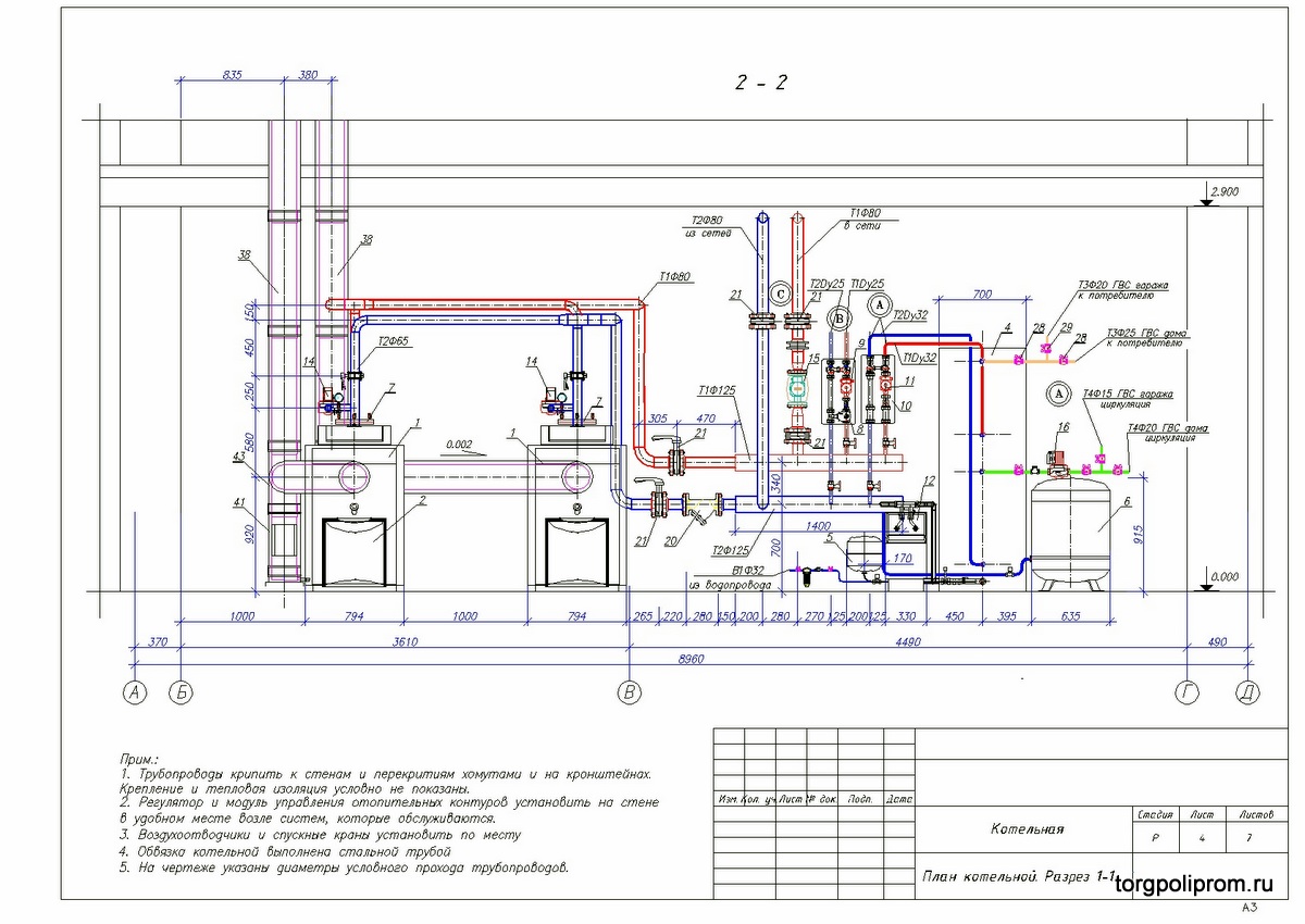
La chaudière elle-même n'est qu'un élément du système de chauffage. Sans tuyaux et radiateurs à travers lesquels circule le liquide de refroidissement, son travail est inutile. Par conséquent, le câblage de chauffage doit être fourni à l'avance, avant d'acheter une unité qui fournit de la chaleur. La tâche est facilitée par le fait que le circuit de chauffage de tous les types de chaudières présente plus de similitudes que de différences.

Schéma de gravité

Le plus souvent, un tel schéma est utilisé pour le raccordement à une chaudière à combustible solide ou liquide. Si nous abordons la question strictement, en tenant compte de la préservation de l'efficacité, les chaudières à gaz modernes n'impliquent pas la circulation par gravité du liquide de refroidissement. De nombreux modèles de murs et de sols à commande électronique ont déjà une pompe de circulation intégrée qui entraîne de force l'eau ou l'antigel à travers les tuyaux et les radiateurs.Dans des conditions de coupures de courant fréquentes, une telle chaudière sera inactive.

Choisir un système de chauffage pour un chalet : comment mieux chauffer son logement ?Vue générale du schéma gravitaire

Cependant, dans de nombreuses habitations, les circuits gravitaires continuent de fonctionner en conjonction avec une chaudière à gaz non volatile de type simple à commande mécanique. Avec l'utilisation de tuyaux de chauffage de grand diamètre, une pression d'eau suffisante est créée dans le système pour démarrer le brûleur à gaz. Dans les anciens systèmes, des tuyaux d'une section de 100 à 150 mm ont été prélevés, qui entouraient les pièces autour du périmètre. Le transfert de chaleur d'une telle conception est faible, mais il est lui-même fiable et durable. Lors de l'installation de radiateurs, le diamètre des tuyaux d'alimentation doit être d'au moins 40 mm pour réduire la résistance hydrodynamique.

Dans les systèmes gravitationnels, un élément indispensable c'est le vase d'expansion. Si l'eau du système atteint des températures élevées, son excès pénètre dans le réservoir en raison de l'augmentation du volume. Le réservoir assure le système contre les fuites et la dépressurisation en cas d'augmentation brutale de la pression. Dans les systèmes ouverts, le réservoir est toujours situé en haut.

Le schéma gravitationnel est monotube. Cela signifie que le liquide de refroidissement traverse séquentiellement tous les radiateurs, puis revient par le «retour». Pour l'installation de batteries avec un tel système, des dérivations sont utilisées - des conduites de dérivation avec vannes d'arrêt, grâce auxquelles il est possible de démonter et de remplacer les batteries sans arrêter la chaudière ni vidanger le liquide de refroidissement. De plus, une grue Mayevsky est placée sur chaque radiateur pour purger l'air qui s'accumule à l'intérieur du câblage.

Choisir un système de chauffage pour un chalet : comment mieux chauffer son logement ?Grue Mayevsky

Circuit à circulation forcée

Le seul inconvénient de ce type de câblage de chauffage est la dépendance à la présence de tension dans le réseau électrique domestique.Outre la chaudière, le deuxième nœud important d'un tel schéma est la pompe de circulation, qui s'écrase dans le «retour» avant de le renvoyer à la chaudière. Les pompes modernes sont silencieuses, productives et consomment de l'électricité de la même manière qu'une ampoule à incandescence. Mais grâce à un tel dispositif, il devient possible de faire un choix en faveur d'un système à deux tuyaux. Dans ce cas, le tuyau de liaison traverse toutes les pièces chauffées de la maison. De là, un flux séparé d'eau chaude est fourni à chaque batterie, et à partir de là, le liquide de refroidissement refroidi est évacué dans le «retour», qui est le tout deuxième tuyau du circuit. Cela vous permet de répartir uniformément la chaleur sur tous les radiateurs et de maintenir la même température même dans les pièces les plus éloignées de la chaudière.

Lire aussi :  Chauffage individuel dans un appartement : les meilleures options pour un immeuble à appartements

Le vase d'expansion, en présence d'une pompe de circulation, est rendu obligatoirement fermé afin qu'une certaine pression puisse être créée dans le système. En cas de dépassement des valeurs normales, une soupape de surpression d'urgence est fournie.

Choisir un système de chauffage pour un chalet : comment mieux chauffer son logement ?Représentation visuelle d'un schéma à deux tuyaux

Dans les deux schémas, une unité d'appoint doit être fournie à travers laquelle le liquide de refroidissement est versé dans le système. Si de l'eau est utilisée, un tuyau de dérivation du réseau d'approvisionnement en eau est coupé pour remplir les canalisations en installant à l'entrée du système filtration. Lors de l'utilisation d'antigel, une vanne d'admission avec vannes d'arrêt est disposée et l'injection est effectuée à l'aide d'un submersible pompe "bébé" ou autre pompage équipement.

Réduction des pertes de chaleur

Afin d'obtenir le système de chauffage le plus efficace et le plus rentable, il est nécessaire d'adopter une approche plus responsable de la question de la réduction des pertes de chaleur. Rappelons-nous ce qu'une personne ordinaire fait si elle gèle. Elle fait du thé chaud, sort un chandail chaud et des chaussettes en laine du placard. Autrement dit, il se réchauffe autant que possible. Il s'avère qu'une personne ne permet pas à sa chaleur naturelle de sortir.

La même chose devrait être faite avec la maison. Il est nécessaire de réduire au maximum les pertes de chaleur, et pour cela, vous devrez utiliser une approche intégrée, c'est-à-dire isoler la maison à la fois à l'extérieur et à l'intérieur de la pièce. L'essentiel est que vous puissiez le faire vous-même, sans l'aide de spécialistes et sans frais financiers supplémentaires.

Choisir un système de chauffage pour un chalet : comment mieux chauffer son logement ?Choisir un système de chauffage pour un chalet : comment mieux chauffer son logement ?

Façons

Il est possible d'augmenter la résistance au transfert de chaleur des structures. Pour commencer, celles qu'il est plus rentable d'isoler. Par exemple, si les murs du bâtiment sont initialement chauds, il est alors moins coûteux d'augmenter l'épaisseur du matériau isolant sur le toit, sur le sol et également de choisir des fenêtres plus économes en énergie.

Chaque projet spécifique peut avoir ses propres solutions :

  • vous pouvez utiliser des fenêtres "chaudes", qui seront protégées de l'extérieur par des volets roulants;
  • il est possible d'installer un système de ventilation automatique moderne avec une certaine quantité d'air et de récupération de chaleur;
  • la récupération de la chaleur résiduelle peut être utilisée.

Choisir un système de chauffage pour un chalet : comment mieux chauffer son logement ?Choisir un système de chauffage pour un chalet : comment mieux chauffer son logement ?

Améliorer l'efficacité

Pour améliorer l'efficacité du chauffage domestique, vous pouvez introduire une variété de technologies modernes qui réduisent la consommation de carburant dans le système de chauffage. Il existe un grand nombre de méthodes de tuyauterie seules de la chaudière aux radiateurs.Il existe des équipements de chauffage de différentes conceptions et toutes sortes d'équipements supplémentaires, qui peuvent augmenter considérablement l'efficacité de l'ensemble du système de 10 à 15%, voire plus. Mais en même temps, vous devez peser soigneusement le pour et le contre.

Eau

Le chauffage de l'eau est un système fermé dans lequel l'eau chaude circule en continu. La chaudière agit comme un élément chauffant. Des radiateurs sont installés dans chaque pièce. De la chaudière, l'eau circule à travers les tuyaux le long du circuit et, en passant par les radiateurs, dégage de la chaleur.

Les avantages d'un système d'eau dépendent du type de combustible utilisé par les chaudières. S'il y a une conduite de gaz à proximité, il est plus sage d'acheter une chaudière à gaz. Le carburant au gaz est considéré comme le plus économique. Cependant, de telles structures nécessitent un entretien régulier par des services spécialisés. Pour les zones non gazéifiées, il est préférable d'acheter des chaudières à combustible solide.

Il est déconseillé d'utiliser du combustible liquide pour une chaudière, car il est coûteux et un réservoir spécial dans le sol sera nécessaire pour le stocker.

Consommation de carburant

Exemple n ° 1. Calcul de la consommation de carburant en système de chauffage de l'eau: le gaz servira de combustible, car c'est le plus courant. Pour le calcul, vous aurez besoin de la puissance de l'unité et de la surface du logement chauffé. La puissance de la chaudière pour un bâtiment privé est déterminée en fonction du prorata : 1 kW pour 10 m². Pour une pièce de 100 m², une chaudière de 10 kW est nécessaire.

Pour calculer la consommation de combustible, il faut multiplier la puissance de la chaudière par 24 heures et par 30 jours. En conséquence, nous obtenons 7200 kW / h. Étant donné que l'unité ne fonctionne pas toujours à pleine capacité, ce nombre doit être divisé par 2. La consommation mensuelle de carburant est d'environ 3600 kW / h.La période de chauffage dure environ 7 mois. La consommation de carburant pour la période de chauffage est de 3600 * 7 = 25200 kW / h.
Sachant que 1 m³ de fioul génère 10 kWh d'énergie, on obtient : 25200/10 = 2520 m³.

Nous traduisons la valeur résultante en un équivalent monétaire: le coût du gaz pour 1 m³ en moyenne dans le pays est de 4,97 roubles. En conséquence, chauffage au gaz pour l'année : 4,97 * 2520 = 12524,40 roubles.

Avantages et inconvénients

Les principaux avantages d'un système de chauffage à eau sont :

  • chauffage opérationnel même d'une grande pièce;
  • silence de travail;
  • assurer la même température dans toutes les pièces;
  • l'économie de carburant;
  • facilité d'entretien et de réparation;
  • augmentation du temps de fonctionnement.

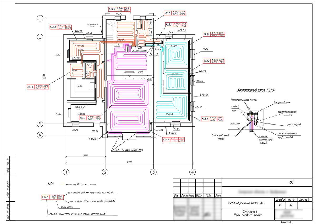
Système à deux tubes avec câblage inférieur

Ensuite, nous considérerons les systèmes à deux tuyaux, qui se distinguent par le fait qu'ils assurent une répartition uniforme de la chaleur même dans les plus grands ménages avec de nombreuses pièces. C'est le système à deux tuyaux qui est utilisé pour chauffer les bâtiments à plusieurs étages, dans lesquels il y a beaucoup d'appartements et de locaux non résidentiels - ici, un tel système fonctionne très bien. Nous envisagerons des projets pour des maisons privées.

Système de chauffage à deux tubes avec câblage inférieur.

Un système de chauffage à deux tubes se compose d'un tuyau d'alimentation et d'un tuyau de retour. Les radiateurs sont installés entre eux - l'entrée du radiateur est connectée au tuyau d'alimentation et la sortie au tuyau de retour. Qu'est-ce que ça donne ?

  • Répartition uniforme de la chaleur dans tout le local.
  • Possibilité de contrôler la température ambiante en éteignant complètement ou partiellement les radiateurs individuels.
  • Possibilité de chauffer des maisons privées à plusieurs étages.

Il existe deux principaux types de systèmes à deux tubes - avec câblage inférieur et supérieur.Pour commencer, nous considérerons un système à deux tuyaux avec un câblage inférieur.

Le câblage inférieur est utilisé dans de nombreuses maisons privées, car il vous permet de rendre le chauffage moins visible. Les conduites d'alimentation et de retour passent ici l'une à côté de l'autre, sous les radiateurs ou même dans les planchers. L'air est évacué par des robinets Mayevsky spéciaux. Schémas de chauffage en privé maison en polypropylène fournissent le plus souvent un tel câblage.

Avantages et inconvénients d'un système à deux tubes avec câblage inférieur

Lors de l'installation d'un chauffage avec un câblage inférieur, nous pouvons cacher les tuyaux dans le sol.

Voyons quelles sont les caractéristiques positives des systèmes à deux tubes avec câblage inférieur.

  • La possibilité de masquer les tuyaux.
  • La possibilité d'utiliser des radiateurs avec une connexion inférieure - cela simplifie quelque peu l'installation.
  • Les pertes de chaleur sont minimisées.

La possibilité de rendre au moins partiellement le chauffage moins visible attire de nombreuses personnes. Dans le cas du câblage inférieur, nous obtenons deux tuyaux parallèles qui affleurent le sol. Si vous le souhaitez, ils peuvent être amenés sous les planchers, offrant cette possibilité même au stade de la conception du système de chauffage et de l'élaboration d'un projet de construction d'une maison privée.

Lire aussi :  Choisir un système de chauffage de chalet

Si vous utilisez des radiateurs avec une connexion inférieure, il devient possible de masquer presque complètement tous les tuyaux dans les sols - les radiateurs sont connectés ici à l'aide de nœuds spéciaux.

Quant aux inconvénients, ils sont la nécessité d'une évacuation manuelle régulière de l'air et la nécessité d'utiliser une pompe de circulation.

Caractéristiques du montage d'un système à deux tubes avec câblage inférieur

Attaches en plastique pour tuyaux de chauffage de différents diamètres.

Afin de monter système de chauffage pour Dans ce schéma, il est nécessaire de poser les tuyaux d'alimentation et de retour autour de la maison. À ces fins, il existe des attaches en plastique spéciales en vente. Si des radiateurs à raccordement latéral sont utilisés, nous faisons un robinet du tuyau d'alimentation au trou latéral supérieur, et prenons le liquide de refroidissement à travers le trou latéral inférieur, en le dirigeant vers le tuyau de retour. Nous avons placé des bouches d'aération à côté de chaque radiateur. La chaudière dans ce schéma est installée au point le plus bas.

Il utilise une connexion diagonale des radiateurs, ce qui augmente leur transfert de chaleur. La connexion inférieure des radiateurs réduit la production de chaleur.

Un tel schéma est le plus souvent fermé, à l'aide d'un vase d'expansion scellé. La pression dans le système est créée à l'aide d'une pompe de circulation. Si vous avez besoin de chauffer une maison privée à deux étages, nous posons des tuyaux aux étages supérieur et inférieur, après quoi nous créons une connexion parallèle des deux étages à la chaudière de chauffage.

Description de l'installation d'un système de chauffage à deux tuyaux de vos propres mains

Lors de l'organisation du chauffage, il est nécessaire de prendre en compte non seulement la chaudière à utiliser, comme indiqué dans les sections précédentes, mais également le type de câblage. Il existe deux types de câblage : monotube et bitube. Un système monotube n'est qu'un circuit ou, simplement, un tuyau qui traverse tous les appareils de chauffage - les batteries. Quant au bitube, deux colonnes montantes sont installées ici. L'un est l'alimentation en liquide de refroidissement et le second, le soi-disant retour - le retour du liquide de refroidissement vers le réchauffeur.

Choisir un système de chauffage pour un chalet : comment mieux chauffer son logement ?

Il semblerait qu'il n'y ait pas de différence, mais en fait elle est significative.Tout d'abord, avec un schéma à deux tuyaux, il est possible de réguler le transfert de chaleur sur chaque radiateur. Vous avez peut-être vu un robinet posé sur un tuyau menant à un radiateur. En le bloquant, vous pouvez réduire ou augmenter la quantité de chaleur provenant du radiateur. Dans le langage courant, s'il fait chaud à la maison, on ferme le robinet, s'il fait froid, alors on l'ouvre. En conséquence, nous ajustons le mode de confort thermique dans la pièce.

En ce qui concerne les caractéristiques techniques, avec un chauffage bitube, la température est maintenue uniformément sur tout le circuit, mais avec un chauffage monotube, il y a une perte de chaleur sur chaque radiateur suivant.

Dans les bâtiments à plusieurs étages, un système exclusivement à deux tuyaux est utilisé.

Pour installer un tel système à la maison, vous devrez acheter:
  • La chaudière de chauffage peut être à gaz, à combustible liquide, à combustible solide ou électrique.
  • Vase d'expansion.
  • Pompe de circulation. Il est réglé si vous montez en circulation forcée.
  • Un ensemble de tuyaux de la longueur requise.
  • Radiateurs.
Le schéma général d'un système de chauffage à deux tuyaux ressemble à:

Choisir un système de chauffage pour un chalet : comment mieux chauffer son logement ?

Selon le type de maison, vous pouvez choisir parmi plusieurs options de chauffage. Si la maison est à un étage, un système de montage horizontal est bien adapté. Les tuyaux sont posés horizontalement. Si la maison a plusieurs étages, une colonne montante verticale est installée. Plusieurs colonnes montantes sont montées, qui sont situées verticalement, et un radiateur est connecté à chaque colonne montante.

Il existe des différences d'installation en fonction de l'emplacement de la chaudière et du vase d'expansion. Vous pouvez installer ces éléments au sous-sol et au grenier. Dans la première version, des tuyaux sont posés dans les interstices entre le sol et les appuis de fenêtre.Dans la deuxième version, les tuyaux sont posés sous le plafond, et à partir d'eux, il y a déjà un câblage vers les radiateurs.

Et la dernière chose que vous devez choisir est de savoir si votre système aura une circulation naturelle ou avec une pompe. Cela affectera directement l'installation des tuyaux.

Ainsi, lorsque vous avez choisi le type de système de chauffage, dessiné son schéma et acheté tout le matériel nécessaire, vous pouvez procéder à l'installation.

Que comprennent ces emplois ?

La première étape consiste à installer une chaudière de chauffage et à installer des tuyaux pour l'alimentation en eau des radiateurs. Ensuite, un vase d'expansion avec un robinet de vidange et un tuyau de commande est installé. Maintenant, vous pouvez poser l'autoroute. Avec l'autoroute principale, l'inverse est posé. La pompe s'y écrase. Et la dernière étape est l'installation de radiateurs. La tuyauterie vers le radiateur peut être différente. Vous trouverez ci-dessous plusieurs options pour un tel câblage.

Choisir un système de chauffage pour un chalet : comment mieux chauffer son logement ?

Il est recommandé d'installer des robinets sur les radiateurs à l'entrée et à la sortie. En cas de panne de radiateur, à l'aide de robinets, vous pouvez couper l'alimentation en eau du radiateur inactif sans éteindre tout le système. De plus, il est nécessaire d'installer une grue Mayevsky. Avec son aide, l'air est purgé au démarrage et son aération.

Une fois le système monté, tout est installé, vous pouvez lancer un essai. Il est nécessaire de vérifier la fonctionnalité. La première étape consiste à fermer tous les robinets installés.

L'eau est fournie au système progressivement, le circuit d'alimentation en eau des radiateurs est rempli en premier. Sur le tout premier radiateur, la soupape d'admission et la soupape Mayevsky s'ouvrent, à travers lesquelles l'air est purgé. Dès que seule de l'eau (sans bulles d'air) s'écoule du robinet Mayevsky, il doit être fermé et la vanne de sortie ouverte.Des actions similaires sont effectuées sur chaque radiateur de chauffage.

En conséquence, vous remplirez le système d'eau, en en éliminant l'air et il sera prêt pour un travail à part entière.

2 Système avec circulation forcée des fluides - optimal selon les normes actuelles

Lors du développement d'un projet de chauffage moderne pour une maison à deux étages, les auteurs du document incluront très probablement un circuit de chauffage avec une pompe de circulation. Les systèmes avec circulation naturelle du fluide dans les tuyaux ne correspondent pas au concept d'intérieur moderne. De plus, la circulation forcée offre de meilleures performances pour le chauffage de l'eau, en particulier dans les maisons privées de grande surface.

La circulation forcée facilite beaucoup la relation avec l'emplacement des éléments du système de chauffage les uns par rapport aux autres, mais il existe toujours des règles générales pour la tuyauterie de la chaudière, le raccordement préférentiel des radiateurs et la pose des communications de tuyaux. Malgré la présence d'une pompe de circulation dans le circuit, lors de l'installation du câblage, ils essaient de minimiser la résistance des tuyaux, leurs connexions et leurs transitions afin de réduire la charge sur le dispositif de pompage de liquide et d'éviter les turbulences de fluide dans les endroits difficiles.

L'utilisation de la circulation forcée dans le circuit de tuyauterie vous permet d'obtenir les avantages opérationnels suivants :

  • la vitesse élevée du mouvement du liquide assure un chauffage uniforme de tous les échangeurs de chaleur (batteries), grâce auquel un meilleur chauffage des différentes pièces est obtenu;
  • l'injection forcée du liquide de refroidissement supprime la restriction de la zone de chauffage totale, vous permettant d'établir des communications de n'importe quelle longueur ;
  • un circuit avec une pompe de circulation fonctionne efficacement à basse température du liquide (moins de 60 degrés), ce qui facilite le maintien de la température optimale dans les pièces d'une maison privée ;
  • la basse température du liquide et la basse pression (moins de 3 bars) permettent l'utilisation de tuyaux en plastique peu coûteux pour l'installation d'un système de chauffage;
  • le diamètre des communications thermiques est beaucoup plus petit que dans un système à circulation naturelle, et leur pose cachée est possible sans observer les pentes naturelles;
  • la possibilité de faire fonctionner des radiateurs de chauffage de tout type (la préférence est donnée aux batteries en aluminium) ;
  • faible inertie de chauffage (pas plus d'une demi-heure s'écoule entre le démarrage de la chaudière et l'atteinte de la température maximale par les radiateurs) ;
  • la possibilité de fermer le circuit à l'aide d'un vase d'expansion à membrane (bien que l'installation d'un système ouvert ne soit pas non plus exclue);
  • la thermorégulation peut être effectuée à la fois dans l'ensemble du système et zonale ou ponctuelle (pour réguler la température sur chaque appareil de chauffage séparément).
Lire aussi :  Comment faire un registre de chauffage de vos propres mains: instructions de montage et d'installation

Un autre avantage du système de chauffage forcé d'une maison privée à deux étages est le choix arbitraire d'un lieu d'installation de la chaudière. Habituellement, il est monté au rez-de-chaussée ou au sous-sol, s'il y a un sous-sol, mais le générateur de chaleur n'a pas besoin d'être spécialement approfondi et le niveau de son emplacement par rapport au tuyau de retour doit être calculé. L'installation au sol et au mur de la chaudière est autorisée, ce qui offre un large choix de modèle d'équipement approprié en fonction des préférences personnelles du propriétaire.

Choisir un système de chauffage pour un chalet : comment mieux chauffer son logement ?

Un système de chauffage avec une pompe de circulation se trouve le plus souvent dans les projets modernes.

Malgré la perfection technique du chauffage à circulation forcée de fluide, un tel système présente des inconvénients. Premièrement, il s'agit du bruit qui se forme lors de la circulation rapide du liquide de refroidissement à travers les tuyaux, s'intensifiant particulièrement aux endroits où les virages serrés et serrés du pipeline se rétrécissent. Souvent, le bruit d'un liquide en mouvement est le signe d'une puissance (performance) excessive de la pompe de circulation applicable à un circuit de chauffage donné.

Deuxièmement, le fonctionnement du chauffage de l'eau dépend de l'électricité, qui est nécessaire au pompage constant du liquide de refroidissement par la pompe de circulation. La disposition du circuit ne contribue généralement pas au mouvement naturel du liquide, par conséquent, lors de longues pannes de courant (s'il n'y a pas d'alimentation sans coupure), le boîtier reste sans chauffage.

Comme un circuit à circulation naturelle, le chauffage d'une maison à deux étages avec pompage forcé du liquide de refroidissement se fait avec un câblage monotube et bitube. La façon dont ces schémas semblent corrects sera discutée plus tard.

Pourquoi est-il rentable de chauffer sa maison soi-même ?

En matière de chauffage, les propriétaires de maisons de campagne ont eu plus de chance que les citadins. Après tout, les propriétaires de chalets peuvent allumer le chauffage de leur maison à tout moment de l'année, car ils ne dépendent pas d'un système de chauffage centralisé. D'autres avantages et bénéfices incluent :

  • la possibilité d'allumer le chauffage dans la maison aux moments où cela est nécessaire.
  • la possibilité de régler la température au niveau souhaité.
  • la possibilité d'auto-sélection de l'option de chauffage (combustible solide, électricité, gaz).

Cependant, ici, la question principale se pose - comment chauffer économiquement une maison et quelle méthode de chauffage est considérée comme la plus rentable? C'est ce que nous devons comprendre.

Appareils de chauffage

La dernière étape, mais non la moins importante, dans la sélection du système est le choix des appareils de chauffage. Les fabricants modernes n'attirent tout simplement pas les clients potentiels. C'est le prix, le design et un large éventail de choix.

Les radiateurs sont :

  • fonte,
  • aluminium,
  • acier,
  • bimétallique.

Assurez-vous de vérifier auprès du vendeur les certificats de ses produits. Souvent, sur les forums, vous pouvez lire sur l'achat d'appareils de mauvaise qualité. Calculer correctement le nombre de sections pour l'appareil ou leur marquage aidera à l'organisation de la conception. Je vous conseille de ne pas économiser sur ce calcul.

Choisir un système de chauffage pour un chalet : comment mieux chauffer son logement ?

Je dois souvent recalculer des appareils qui sont sélectionnés "à l'œil". Le calcul et l'ajustement du schéma existant sont plus coûteux, sans parler des dépenses en matériel de démantèlement. Et je ne parle même pas du besoin de réparations après l'installation de nouveaux équipements.

Si vous envisagez une régulation automatisée du système, faites attention aux appareils de chauffage avec vannes thermostatiques intégrées. Cela aidera à réduire un peu les coûts.

Le chauffage intelligent permet non seulement d'économiser de l'argent, mais prend également soin de maintenir la température à un niveau donné.

Ordre de montage

Un système monotube est assemblé comme suit :

  • Dans la buanderie, la chaudière est installée au sol ou accrochée au mur. À l'aide d'équipements à gaz, le système de chauffage monotube le plus fiable et le plus efficace d'une maison à deux étages peut être installé. Le schéma de connexion dans ce cas sera standard et vous permettra de faire tout le travail, si vous le souhaitez, même par vous-même.
  • Des radiateurs de chauffage sont accrochés aux murs.
  • À l'étape suivante, les colonnes montantes «d'alimentation» et «inverse» sont montées au deuxième étage.Ils sont situés à proximité immédiate de la chaudière. En bas, le contour du premier étage rejoint les contremarches, en haut - le second.
  • Vient ensuite la connexion aux lignes de la batterie. Une vanne d'arrêt (sur la section d'entrée de la dérivation) et une vanne Mayevsky doivent être installées sur chaque radiateur.
  • A proximité immédiate de la chaudière, un vase d'expansion est monté sur la conduite "retour".
  • Également sur le tuyau "retour" près de la chaudière sur le by-pass avec trois robinets, une pompe de circulation est connectée. Un filtre spécial coupe devant sur le bypass.

Choisir un système de chauffage pour un chalet : comment mieux chauffer son logement ?

À l'étape finale, le système est testé sous pression afin d'identifier les dysfonctionnements et les fuites de l'équipement.

Comme vous pouvez le voir, le système de chauffage monotube d'une maison à deux étages, dont le schéma est aussi simple que possible, peut être un équipement très pratique et pratique.

Cependant, si vous souhaitez utiliser une conception aussi simple, lors de la première étape, il est important d'effectuer tous les calculs nécessaires avec une précision maximale.

En pensant à l'installation du chauffage, il est d'abord déterminé quel type de combustible sera utilisé

Mais parallèlement à cela, il est extrêmement important de décider de l'indépendance du chauffage prévu. Ainsi, un système de chauffage sans pompe, qui n'a pas besoin d'électricité pour fonctionner, sera véritablement autonome. Tout ce dont vous avez besoin est une source de chaleur et une tuyauterie bien placée pour un fonctionnement efficace.

Pour un fonctionnement efficace, vous n'avez besoin que d'une source de chaleur et d'une tuyauterie correctement située.

Le circuit de chauffage est un ensemble d'éléments destinés à chauffer l'habitation en transférant de la chaleur à l'air.Le type de chauffage le plus courant est un système qui utilise des chaudières ou des chaudières connectées à l'alimentation en eau comme source de chauffage. L'eau, traversant le réchauffeur, atteint une certaine température, puis va dans le circuit de chauffage.

Dans les systèmes avec un liquide de refroidissement, qui est utilisé comme eau, la circulation peut être organisée de deux manières :

Choisir un système de chauffage pour un chalet : comment mieux chauffer son logement ?

Les chaudières (chaudières) sont utilisées comme source de chaleur pour chauffer l'eau. Leur principe de fonctionnement repose sur la transformation du type d'énergie défini pour eux en chaleur, suivie de son transfert vers le fluide caloporteur. Selon le type de source de chaleur, l'équipement de la chaudière peut être à gaz, à combustible solide, électrique ou à fioul.

Selon le type de raccordement des éléments du circuit, le système de chauffage peut être monotube ou bitube. Si tous les appareils du circuit sont connectés en série les uns par rapport aux autres, c'est-à-dire que le liquide de refroidissement traverse tous les éléments dans l'ordre et retourne à la chaudière, un tel système est alors appelé système monotube. Son inconvénient majeur est un chauffage inégal. Cela est dû au fait que chaque élément perd une certaine quantité de chaleur, de sorte que la différence de température de la chaudière peut être importante.

Un système de type bitube implique une connexion parallèle de radiateurs à une colonne montante. Les inconvénients d'un tel raccordement comprennent une complication de conception et une consommation de matière doublée par rapport à un système monotube. Mais la construction d'un circuit de chauffage pour les grands locaux à plusieurs étages n'est réalisée que par une telle connexion.

Choisir un système de chauffage pour un chalet : comment mieux chauffer son logement ?

Un système de circulation gravitaire est sensible aux erreurs commises lors de l'installation du chauffage.

Évaluation
Site sur la plomberie

Nous vous conseillons de lire

Où remplir la poudre dans la machine à laver et combien de poudre verser