- Comment tout fonctionne ?
- Exemple de fonctionnement cyclique des équipements NSU
- Où pouvez-vous faire des systèmes combinés?
- Où pouvez-vous faire des systèmes combinés?
- 4 Schémas éprouvés pour connecter un plancher chauffant à l'eau
- Pose de chaudière de chauffage
- Le concept général de l'unité de mélange
- Pourquoi cette conception est-elle importante ?
- Comment fonctionne l'unité de mélange
- Restrictions et réglementations
- 6 Conseils d'experts
- Comment assembler un collecteur
- Peigne en tube de polypropylène
- Outils et matériaux
- processus d'assemblage
- Schéma de connexion directe
- Le but de l'utilisation du collecteur
- La structure du système à deux circuits
- Comment ça marche
- Soupapes de sécurité pour chauffage au sol
- Schéma avec un kit thermostatique pour une boucle
Comment tout fonctionne ?
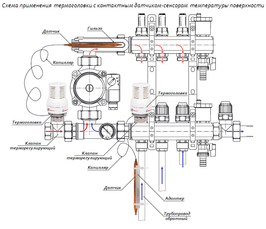
Alimentation en liquide de refroidissement dans une plage de température donnée au collecteur de chauffage au sol fournies par les paramètres du nœud de mixage. Le cycle principal de circulation des fluides au sein du système TP consiste en des cycles de circulation dans chacune des branches. Dans le même temps, le NSU mélange le liquide de refroidissement chaud du circuit de chauffage primaire dans les volumes nécessaires pour reconstituer la perte de chaleur totale pour le chauffage de toutes les pièces. C'est-à-dire que plus le liquide de refroidissement est refroidi intensément dans les branches du plancher chaud, plus sa quantité est ajoutée à la circulation interne de l'ensemble du circuit secondaire.Le volume du liquide chaud renouvelé change automatiquement - du réglage unique maximum de la vanne d'équilibrage 8 (Fig. 3 et 5) à l'arrêt complet. Dans la plage allant du débit maximum au débit minimum, la régulation est effectuée par la vanne thermostatique 1, qui reçoit des impulsions de commande de son capteur à distance (Fig. 5, pos. 1a), qui contrôle la température du départ T11 vers le collecteur d'alimentation.
Important! Les fonctions de contrôle de la vanne thermostatique 1 affectent directement le fonctionnement du système de chauffage.La vanne d'équilibrage 8, quant à elle, ne sert qu'à faire correspondre les pertes de charge totales dans les circuits secondaires du TP avec les pertes de charge dans les appareils de chauffage du primaire. circuit
Dans le même temps, tous les consommateurs du circuit primaire doivent être soumis à un réglage similaire en termes de pertes de charge afin que la répartition de l'énergie thermique se fasse conformément à leurs demandes, et non selon le chemin de moindre résistance hydraulique. L'importance et le degré d'un tel équilibrage sont clairement illustrés à la figure 6.
Figure 6
Simultanément à l'aspiration du liquide de refroidissement chaud renouvelable T1 par la vanne thermostatique 1 (Fig. 3 et 5), la pompe 3 aspire également le débit refroidi T21 par la vanne d'équilibrage 2 (circuit secondaire). En traversant la pompe, les flux caloporteurs sont mélangés, de sorte que le liquide à la température définie par les réglages NSU est déjà fourni à l'alimentation T11 du collecteur de chauffage par le sol.
Exemple de fonctionnement cyclique des équipements NSU
Le fonctionnement conjoint de la pompe, de la vanne d'équilibrage du circuit secondaire et du thermostat est le suivant.Par exemple, dans le système TP, il existe un gradient thermique entre l'alimentation et le retour du TP Δt=10С, et la température calculée dans le collecteur d'alimentation est de 50С. Supposons que le système fonctionne en régime permanent, lorsque le débit de liquide de refroidissement résultant du mélange du circuit primaire T1 et du collecteur de retour du plancher chaud T21 a une température égale à celle calculée. Avec des réglages corrects de l'équilibreur 2 et un certain degré d'ouverture du thermostat 1, cela n'est possible que si de l'eau à une température de 40C provient du retour T21.
Si le liquide de refroidissement commence à couler, refroidi à 39 ° C ou moins, le débit résultant après que la pompe est refroidi en conséquence. Ce déséquilibre est capté par une sonde déportée 1a qui donne l'ordre d'ouvrir encore plus la vanne thermostatique 1. En conséquence, le débit d'eau chaude du circuit de chauffage primaire T1 augmente et la température dans le collecteur d'alimentation T11 revient à sa valeur maximale. calculé 50C.
Progressivement, une surchauffe au-dessus de 40C commence à s'écouler du retour T21, ce qui entraîne des processus inverses - la vanne thermostatique 1 est recouverte et le volume de mélange de T1 diminue. Ainsi, les cycles thermiques dans le système TP changent constamment dans le mode de maintien du gradient Δt=10С, avec l'alimentation t=50С.
Figure 7
Où pouvez-vous faire des systèmes combinés?
La superficie et le nombre d'étages dans notre exemple sont très conditionnels. Il est également nécessaire de coordonner leurs modes de fonctionnement.
C'est une chose: connecter le système de chauffage par radiateur à la chaudière, lorsque toutes les fonctionnalités pour cela sont déjà installées dans la chaudière. Ils proposent de réaliser des conduites d'alimentation et de retour en polypropylène dans une couche de sable sous la chape le long de la fondation. Il peut s'agir d'un tube simple ou d'un tube double.
Dans certaines situations, lorsque tous les radiateurs sont fermés et que le chauffage au sol fonctionne, la pompe de la chaudière et la pompe du chauffage au sol fonctionnent en série, interférant l'une avec l'autre. Installation de chauffage combiné dans un système avec une chaudière à gaz Le moment le plus difficile du processus d'installation du chauffage combiné est la nécessité de fournir un caloporteur à partir du collecteur pour le chauffage au sol et des radiateurs à différentes températures via deux tuyaux. En fonction de la température à la sortie du circuit sous plancher, la vanne mélangeuse s'ouvre ou se ferme, augmentant ou diminuant la quantité de liquide de refroidissement chaud provenant de l'alimentation du circuit de recirculation.
Ceci est nécessaire pour assurer l'étanchéité de tous les joints réalisés. Thermopompe à air principale source de chaleur Thermopompe à air Avant de considérer les aspects positifs et négatifs des appareils de chauffage existants, parlons un peu de l'air.
Où pouvez-vous faire des systèmes combinés?
Le collecteur est monté dans un matériau de boîte spécial - acier galvanisé, qui correspond à sa taille. Peu importe le type de liquide de refroidissement ou de source de chaleur.
Désignation des principaux éléments du schéma: chaudière à gaz murale avec pompe de circulation intégrée et vase d'expansion; séparateur hydraulique séparateur thermo-hydraulique ou interrupteur hydraulique ; collecteur collecteur collecteur pour le raccordement des circuits de chauffage ; unité de circulation du circuit de chauffage du radiateur ; unité de mélange du chenil de l'eau theople du plancher ; thermostat de sécurité. La vanne thermostatique à trois voies du second type est différente en ce qu'elle assure la régulation du débit du seul flux chaud.Dans les systèmes plus complexes, le régulateur est également guidé par une sonde météo, effectuant un changement préventif de la puissance de chauffage.
4 Schémas éprouvés pour connecter un plancher chauffant à l'eau
En conséquence, les caloporteurs sont mélangés de la manière suivante: le liquide du tuyau de retour est alimenté en continu et le liquide chaud n'est alimenté qu'en cas de besoin. Dans ce cas, les structures de plancher seront durables, fiables et durables.
Un dispositif spécial sensible à la température est utilisé. Chauffage avec une chaudière à combustible solide Le chauffage combiné avec une chaudière à combustible solide est un système gravitaire fermé avec un dispositif de stockage de chaleur.
Nous combinons le chauffage. Chauffage au sol + radiateurs. Une solution simple
Pose de chaudière de chauffage

Lorsque les travaux d'installation de la chaudière sont terminés, la pompe est installée. Après cela, les vannes d'arrêt sont installées. Ils sont nécessaires pour la réparation des équipements et à des fins préventives.
Lorsque ce travail est terminé, vous pouvez faire l'installation tuyaux de chauffage au sol et créer une chape. Des fixations profilées sont utilisées pour la fixation des tuyaux de chaud le genre. Ils sont fixés au sol avec des vis.
Les coudes de tuyau doivent être faits avec soin. Les coudes dans la canalisation doivent être exclus. Si la pose d'un sol chaud est censée être sous un carrelage, l'épaisseur de la chape en béton doit être de 4 cm.
Une chape plus fine est réalisée sous le stratifié. L'isolation thermique n'est pas posée, afin de ne pas réduire le transfert de chaleur du sol chaud.
Ceci termine l'installation du chauffage par le sol. Il ne reste plus qu'à effectuer une vérification de l'état du système.Le test dure plusieurs heures pour s'assurer que les travaux d'installation ont été effectués correctement et que le système installé fonctionne efficacement.
Le concept général de l'unité de mélange
Pour que la tâche soit effectuée facilement, l'interprète doit comprendre le but, les principes de fonctionnement de la structure achevée. Cette règle s'applique également à l'installation de l'unité de mélange.
Pourquoi cette conception est-elle importante ?
Considérez quel type de travail fait l'unité de mélange du chauffage par le sol.
Tout d'abord, il est nécessaire de préciser que la température du liquide circulant à travers les contours du sol chaud est deux fois inférieure à celle des systèmes de chauffage standard avec radiateurs et convecteurs.
Dans le système habituel à haute température, de l'eau chauffée à 70-80 degrés et plus est utilisée. Pour les modes de fonctionnement spécifiés, ils ont été créés auparavant et sont en cours de création de réseaux de chaleur, des chaudières de chauffage sont en cours de production.
La température du fluide admise dans un système de chauffage classique n'est pas adaptée au chauffage par le sol. Cela est dû à de tels facteurs:
- Sur la base de la zone d'échange de chaleur active (c'est presque tout le sol) et de la capacité thermique impressionnante de la chape avec des tuyaux posés pour le chauffage au sol, on peut supposer que +35 degrés de température de l'eau suffisent pour chauffer la pièce .
- La perception confortable du chauffage de surface pieds nus a un cadre caractéristique - il est optimal que le pied repose sur le sol chauffé à un maximum de 30 degrés. Si le sol est chaud, les pieds sont désagréables et inconfortables.
- Les finitions de sol standard ne conviennent pas à une chaleur élevée par le bas.Une température élevée provoque une déformation du sol, l'apparition de fissures entre les pièces, la rupture de l'emboîtement, des vagues et des bosses à la surface du revêtement, etc.
- Les températures élevées peuvent considérablement endommager la chape en béton dans laquelle les tuyaux de chauffage par le sol sont montés.
- Un fort chauffage affecte négativement les tuyaux des circuits posés. Lors de l'installation, ces éléments sont fixés rigidement et ne se dilatent pas sous l'influence des effets thermiques. Si de l'eau chaude est constamment dans les tuyaux, la tension commencera à monter dans ceux-ci. Au fil du temps, ce phénomène va rapidement abîmer les canalisations et provoquer des fuites.
En raison de la popularité croissante du chauffage au sol, les fabricants ont commencé à proposer des chaudières avec un principe de fonctionnement similaire. Mais de nombreux experts notent l'inutilité d'acheter un chauffe-eau spécial. Tout d'abord, un sol chaud "propre" est souvent utilisé dans certaines zones et associé à un sol standard. Deuxièmement, au lieu de deux chaudières, il est préférable de définir clairement l'emplacement d'un sol chaud et classique et de placer une unité de mélange à la frontière.
Un autre facteur expliquant la faisabilité d'utiliser une unité de mélange. Lors de l'installation à chaud planchers, il faut assurer la bonne circulation du fluide dans chaque contour du plancher, et en effet ils font parfois plus de 8 mètres de long, se plient plusieurs fois, tournent brusquement.
Comment fonctionne l'unité de mélange
Le liquide chauffé, lorsqu'il pénètre dans le collecteur du plancher chauffant, pénètre immédiatement dans la vanne dans laquelle le thermostat est stocké. Si l'eau des tuyaux est très chaude, la vanne s'ouvre et laisse entrer de l'eau froide dans le liquide chauffé, en les mélangeant à la température optimale.
Le collecteur du système est équipé de deux fonctions principales.En plus de mélanger l'eau afin d'obtenir la température requise, il fait circuler le liquide. Pour cela, le système est équipé d'un équipement de circulation spécial. Lorsque l'eau circule constamment dans les tuyaux, elle chauffe uniformément tout le sol. Pour une meilleure fonctionnalité, le collecteur est équipé de :
- Vannes d'arrêt;
- vannes de vidange;
- Bouches d'aération.
Si un plancher chaud est installé dans une seule pièce, une pompe doit également être installée ici. Pour que la boîte ne prenne pas beaucoup de place, une niche est d'abord faite pour elle dans le mur. Si le chauffage au sol va se répandre dans toutes les pièces, il est plus rationnel de créer un meuble collecteur commun.
Restrictions et réglementations
Commençons par le fait qu'un plancher chauffant à l'eau ne s'applique pas aux systèmes de chauffage à haute température. Selon la réglementation, il est impossible de dépasser et de chauffer la température du liquide de refroidissement au dessus de 55C.
En pratique, le chauffage se produit jusqu'à un maximum de 35 ou 45 degrés.
Dans le même temps, ne confondez pas la température du liquide de refroidissement avec la température de la surface du sol. Elle peut être de 26 à 31 degrés maximum.
où vous êtes constamment (hall, chambre, cuisine) - c'est 26C
dans les chambres avec séjour temporaire (salle de bain, hall d'entrée séparé, loggia) - 31C
De plus, n'oubliez pas la pompe de circulation. Le chauffage au sol est toujours un circuit indépendant séparé. La pompe peut être intégrée à la chaudière ou montée à l'extérieur de celle-ci.
Avec l'aide d'une pompe, il est plus facile de répondre à une autre exigence concernant la différence de température. Par exemple, entre l'alimentation et le retour, la différence ne doit pas dépasser 10 degrés.
Mais lors du choix d'une pompe, n'en faites pas trop avec le débit de liquide de refroidissement. La valeur maximale autorisée ici est de 0,6 m/s.
6 Conseils d'experts
Pour que le sol chaud réchauffe bien la pièce et ne cause pas de difficultés pendant le fonctionnement, vous devez suivre certaines règles. Les principales nuances concernent la mise en œuvre des travaux d'installation. C'est pourquoi chaque maître doit adhérer aux recommandations suivantes:
- Pour une petite pièce, il n'est pas du tout nécessaire d'acheter des unités coûteuses, il est préférable de privilégier un collecteur en plastique abordable.
- L'armoire de protection doit être installée de manière à ce que le maître puisse connecter librement les tuyaux.
- Lors du choix de l'unité de mélange optimale, il est nécessaire de prendre en compte non seulement la superficie de la pièce, mais également la fréquence de fonctionnement, ainsi que le budget.
- Seule l'unité qui est équipée d'une pompe de circulation puissante aura une grande efficacité. Il convient de noter que le prix d'un tel équipement est assez élevé.
- Si les pièces à connecter ont des diamètres différents, il est nécessaire de préparer à l'avance les raccords d'adaptation.
- Il est recommandé aux débutants d'acheter un ensemble de collection prêt à l'emploi, équipé de tous les éléments et accessoires nécessaires.
Malgré la nuance qu'au départ l'assemblage du collecteur semble être un produit assez compliqué, il peut être fabriqué à la main. Lors de l'achat d'un tel élément du système de chauffage, il est nécessaire d'étudier attentivement les instructions, grâce auxquelles tous les travaux d'installation seront effectués beaucoup plus rapidement et sans erreurs.
Comment assembler un collecteur
L'assemblage du collecteur commence par l'acquisition de tous les éléments nécessaires. Ensuite, vous pouvez commencer à fabriquer le peigne.
Instructions pour assembler un collecteur d'un sol chaud
Peigne en tube de polypropylène
En usine, l'élément collecteur principal est en métal.Et de leurs propres mains, ils le fabriquent à la fois en fer et en plastique. L'une des étapes les plus importantes du processus de fabrication est le calcul correct du diamètre.

Schéma d'installation des tuyaux en polypropylène
Le matériau le plus facile à utiliser pour fabriquer un peigne pour chauffage au sol est le plastique, car il ne nécessite pas de soudure.
Outils et matériaux
Pour gagner du temps et accélérer le lancement du système de plancher chauffant à eau, vous devez préparer à l'avance les outils suivants:
- fer à souder et ciseaux conçus pour souder et couper des tuyaux en polypropylène;
-
clés.
Vous aurez également besoin de certains matériaux.

Équipement pour le système de plancher chauffant à eau
- Tuyau en polypropylène du diamètre souhaité. Dans ce cas, un tuyau est nécessaire avec lequel l'installation du chauffage par radiateur est effectuée.
- Tés.
- Grue Mayevsky - 2 pièces Leur installation nécessite l'utilisation d'adaptateurs et d'angles métalliques.
- Raccords filetés en plastique en quantité égale au nombre de circuits du système de chauffage.
- Raccord.
Au lieu des robinets Mayevsky, des bouches d'aération automatiques peuvent être installées. Des bouches d'aération sont nécessaires pour évacuer l'air du système. Si vous négligez leur installation, si de l'air pénètre dans les tuyaux, l'efficacité du chauffage diminuera considérablement.
processus d'assemblage
Un peigne à part entière pour un sol chaud est composé de deux parties identiques reliées l'une à l'autre. Vous ne pouvez fabriquer l'élément principal du collecteur de vos propres mains qu'en apprenant à utiliser un fer à souder, car des éléments individuels devront être soudés à ces deux parties.Cependant, même un amateur est capable de maîtriser le travail avec un fer à souder, mais cela ne fait toujours pas de mal d'apprendre en premier.
Collecteur de chauffage au sol IVAR
Schéma de conception du contrôle manuel et automatique des unités de mélange
Une partie du peigne est constituée de tees. De plus, les tés peuvent être simplement soudés les uns aux autres ou reliés les uns aux autres à l'aide de segments d'un tuyau en polypropylène. Si vous le faites selon la deuxième option, il n'y aura plus de difficultés à connecter un circuit supplémentaire à l'avenir.
Et la première option ne le permettra plus, même si dans ce cas l'aspect du peigne sera plus esthétique. Par conséquent, il est toujours préférable d'utiliser des segments de tuyau. Rappelons que le nombre de tees doit correspondre au nombre de circuits.
La prochaine étape des travaux consistera à souder les raccords aux tés. Mais d'abord, ils doivent être préparés en vissant les raccords. Pour exclure la possibilité de fuite du liquide de refroidissement, un ruban fumigène ou un câble est enroulé sur le filetage des raccords. S'il y a plus de tés que de contours, les raccords avec raccords y sont également soudés, mais les raccords supplémentaires sont fermés avec des bouchons.
Au stade final, il est nécessaire de souder un coin d'une extrémité du peigne en le retournant. Un accouplement y est également soudé, cependant, pas un raccord n'y est déjà vissé, mais un adaptateur qui permet l'installation d'une grue Mayevsky, qui peut être remplacée par un évent automatique. L'autre extrémité de l'appareil reste libre, car le tuyau de la chaudière de chauffage y sera connecté à l'avenir.

Instructions de connexion peignes
De la même manière, un autre peigne est fabriqué, ou plutôt sa deuxième partie, car un dispositif à part entière se compose de deux de ces éléments.L'un d'eux remplit les fonctions d'alimentation en liquide de refroidissement et l'autre le prend dans les tuyaux. Dans ce cas, l'alimentation, en règle générale, est placée en haut et le retour - en bas. Pour plus de commodité, ils peuvent être peints en rouge et bleu.
Schéma de connexion directe
Vous avez une chaudière, après quoi tous les raccords de sécurité + une pompe de circulation sont montés. Dans certaines versions murales de chaudières, la pompe est initialement intégrée dans son corps.
Pour les copies extérieures, vous devrez l'installer séparément. De cette chaudière, l'eau est d'abord dirigée vers le collecteur de distribution, puis parcourt les boucles. Après cela, après avoir terminé le passage, il retourne par la conduite de retour au générateur de chaleur.
Avec ce schéma, la chaudière est directement ajustée à la température souhaitée des échangeurs de chaleur eux-mêmes. Vous n'avez pas de radiateurs ou de radiateurs supplémentaires ici.
Quelles sont les principales caractéristiques auxquelles il convient de prêter attention ? Premièrement, avec une telle connexion directe, il est souhaitable d'installer une chaudière à condensation. Dans de tels circuits, le fonctionnement à des températures relativement basses pour le condenseur est tout à fait optimal.
Dans ce mode, il atteindra son efficacité maximale.
Dans de tels schémas, le fonctionnement à des températures relativement basses pour le condenseur est tout à fait optimal. Dans ce mode, il atteindra son efficacité maximale.
Si vous utilisez une chaudière à gaz conventionnelle, vous direz bientôt adieu à votre échangeur de chaleur.
La deuxième nuance concerne les chaudières à combustible solide. Une fois installé, pour un raccordement direct au plancher chauffant, il vous faudra également un ballon tampon.
Il est nécessaire de limiter le régime de température. Chaudières à combustibles solides directement très difficiles à réguler la température.
Le but de l'utilisation du collecteur
Le collecteur est un appareil avec lequel le flux de liquide de refroidissement est réparti sur les circuits individuels du plancher d'eau, puis renvoyé pour le chauffage. L'assemblage du collecteur ressemble à deux tuyaux avec des trous auxquels les circuits du système sont connectés.
La présence d'un collecteur de distribution dans le schéma d'organisation du chauffage par le sol permet de contrôler le volume du flux de liquide de refroidissement. L'un des tuyaux collecteurs est un tuyau d'alimentation, l'eau chaude y pénètre et les entrées des circuits de plancher d'eau y sont connectées.
La conduite de retour des circuits est raccordée à la conduite de retour du collecteur. Les ouvertures sur lesquelles un tel raccordement est réalisé sont généralement équipées de raccords filetés, raccords ou autres.
Le collecteur se compose d'un certain nombre d'éléments tels que le collecteur lui-même (1 et 2), un adaptateur pour la grue Mayevsky (3); robinet de vidange (4); bouche d'aération (5); soupape (6); support (7); eurocône (8)
Divers dispositifs sont également installés ici, à l'aide desquels il est possible de réguler le débit du liquide de refroidissement. La version la plus simple d'un collecteur de production industrielle est un tuyau avec un connecteur appelé eurocône. C'est un nœud assez pratique et fiable, mais il ne vous permet pas de contrôler le débit d'eau.
Pour utiliser efficacement un tel appareil, vous devrez également acheter et installer un certain nombre d'éléments.
Le collecteur fabriqué en RPDC est un peu plus compliqué. En plus des connexions aux sorties, des robinets de soupape sont installés ici; aucun moyen automatique de contrôle du débit n'est prévu. C'est une excellente option peu coûteuse pour un plancher d'eau dans une petite zone avec deux ou trois contours de même longueur.
Un tel système ne nécessite pas de gestion complexe.Mais sur de grandes surfaces, ce type de collecteur devra être complété par une automatisation.
De plus, l'entraxe entre les sections d'alimentation et de retour des appareils chinois ne respecte pas les normes adoptées en Europe, ce qui peut poser des problèmes lors de sa connexion à des appareils de fabrication européenne.
Les vannes à bille de ces appareils sont sensibles à une eau de mauvaise qualité, au fil du temps, elles commencent à fuir. Pour résoudre le problème, il suffit de remplacer les joints toriques, mais il faut tenir compte du fait que le besoin de telles réparations se présentera périodiquement.
Si le fonctionnement du système de plancher d'eau est censé être automatisé, il est logique d'acheter au moins un collecteur avec vannes de régulation.
Des servomoteurs peuvent être installés sur ces vannes, connectés à des thermostats dans les pièces. Cela assurera un contrôle automatique du flux de caloporteur en fonction des données sur la température de l'air dans une pièce particulière.
Pour automatiser le fonctionnement du système de plancher chauffant à l'eau, des débitmètres sont installés sur l'alimentation du capteur (indiqué par un cadre) et des connecteurs pour les servomoteurs sont installés sur le retour (bouchons bleus en bas)
Le plus difficile à gérer est un système de plancher d'eau dans lequel les circuits individuels varient considérablement en longueur, mais c'est généralement le cas dans les systèmes complexes. Dans une telle situation, le meilleur choix serait un collecteur, sur l'alimentation duquel des débitmètres sont installés, et sur le retour - des prises conçues pour le montage de servocommandes.
À l'aide de débitmètres, il sera possible de régler l'intensité du débit de liquide de refroidissement, et des servocommandes associées à des thermostats vous permettront de régler la température appropriée sur chaque circuit.
S'il n'y a pas besoin de régulation automatique, vous pouvez acheter un collecteur d'alimentation avec des débitmètres et un collecteur de retour avec des vannes à vannes conventionnelles.
Il arrive qu'il ne soit pas possible de choisir un collecteur avec le nombre de prises de raccordement correspondant au projet. Ensuite, vous pouvez prendre l'appareil "avec une marge". Et les trous supplémentaires sont simplement fermés avec des bouchons.
Cette solution peut être utile si vous avez besoin ultérieurement d'ajouter quelques boucles supplémentaires au système de plancher d'eau.
La structure du système à deux circuits
Les planchers chauffants peuvent être électriques, mais ils sont plus souvent fabriqués dans des maisons déjà utilisées, lorsque le tapis central ou le film infrarouge doit être posé sous la couche de finition. Si la maison vient d'être construite, la préférence est généralement donnée au système d'eau et il est monté directement dans le projet de sol en béton. Il peut y avoir d'autres options, mais celle-ci est la meilleure.

Si la maison vient d'être construite, la préférence est donnée à un plancher chauffant à l'eau

Le choix du chauffage au sol
Les principaux éléments d'un tel schéma de chauffage:
- canalisation d'alimentation en eau (principale ou autonome);
- chaudière à eau chaude;
- radiateurs de chauffage muraux;
- système de tuyauterie pour chauffage au sol.

Équipement de chauffage au sol
La chaudière est capable de chauffer l'eau jusqu'à l'ébullition, et celle-ci, comme vous le savez, est de 95 degrés Celsius. Les batteries peuvent supporter de telles températures sans problème, mais pour un sol chaud, cela est inacceptable - même si l'on considère que le béton absorbera une partie de la chaleur. Il serait impossible de marcher sur un tel sol, et aucun revêtement décoratif, à l'exception de la céramique, ne peut supporter un tel échauffement.
Que faire si l'eau doit être prélevée sur le système de chauffage général, mais qu'elle est trop chaude ? Ce problème est résolu par l'unité de mélange. C'est dans celui-ci que la température descend à la valeur souhaitée, et le fonctionnement des deux circuits de chauffage en mode confort deviendra possible. Son essence est incroyablement simple: le mélangeur prélève simultanément de l'eau chaude de la chaudière et refroidie du retour, et l'amène aux valeurs de température spécifiées.

Pompe et mélangeur pour chauffage au sol, ens.
Chauffage au sol du chauffage central
Comment ça marche
Si nous imaginons brièvement le travail d'un système de chauffage à double circuit, cela ressemblera à quelque chose comme ça.
-
Le liquide de refroidissement chaud passe de la chaudière au collecteur, qui est notre unité de mélange.
- Ici, l'eau passe à travers une soupape de sécurité avec un manomètre et un capteur de température, que vous pouvez voir sur la photo ci-dessous. Ils régulent la pression et la température de l'eau dans le système.
-
S'il fait trop chaud, le système se déclenche pour fournir de l'eau froide et dès que la température de liquide de refroidissement requise est atteinte, le registre se ferme automatiquement.
- De plus, le collecteur assure la circulation de l'eau le long des circuits, pour lesquels une pompe de circulation est présente dans la structure de l'ensemble. Selon la conception du système, celui-ci peut être équipé d'éléments supplémentaires : by-pass, vannes, purgeur d'air.
Ce qui affecte la consommation d'énergie d'un sol chaud
Soupapes de sécurité pour chauffage au sol
Les mélangeurs collecteurs peuvent être assemblés à partir de pièces séparées, mais il est plus facile d'acheter un assemblage complet. Les variations peuvent être très différentes, mais la principale chose qui les distingue est le type de soupape de sécurité utilisée.Le plus souvent, des options à deux ou trois entrées sont utilisées.
Table. Principaux types de vannes
| Type de soupape | Caractéristiques distinctives |
|---|---|
bidirectionnel | Cette vanne a deux entrées. Au-dessus se trouve une tête avec un capteur de température, en fonction des lectures desquelles l'alimentation en eau du système est régulée. Le principe est simple : de l'eau chaude, chauffée par une chaudière, est mélangée à de l'eau froide. La vanne à deux voies protège de manière assez fiable le circuit de chauffage par le sol contre la surchauffe. Il a une petite bande passante, ce qui, en principe, ne permet aucune surcharge. Cependant, pour les surfaces supérieures à 200 m2, cette option n'est pas adaptée. |
Trois façons | La version à trois temps est plus polyvalente, combinant des fonctions d'alimentation avec des fonctions de réglage. Dans ce cas, l'eau chaude n'est pas mélangée à de l'eau froide, mais, au contraire, de l'eau froide est mélangée à de l'eau chauffée. Un servomoteur est généralement connecté au thermostat de vanne - un dispositif avec lequel la température dans le système peut être rendue dépendante de la température ambiante. L'alimentation en eau froide est dosée par un registre (robinet de remplissage) sur le tuyau de retour. Les vannes à trois voies sont utilisées dans les grandes maisons avec plusieurs circuits séparés, car elles ont une grande capacité. Mais c'est aussi leur inconvénient : au moindre écart entre les volumes d'eau chaude et refroidie, le sol peut surchauffer. L'automatisation résout ce problème. |
Schéma avec un kit thermostatique pour une boucle
Ce système de chauffage est mis en œuvre à l'aide de petits kits d'installation thermique. Ils ont été conçus à l'origine pour n'attacher qu'une seule boucle.
Ici, vous n'avez pas besoin de clôturer des collecteurs complexes, des groupes de mélange, etc. Il est conçu pour chauffer des pièces d'une superficie maximale de 15 à 20 m2.
Il ressemble à une petite boîte en plastique dans laquelle sont montés :
limiteur de température du liquide de refroidissement
limiteur réagissant à la température ambiante dans une pièce chauffée
Bouches d'aération
L'eau chaude coule directement dans la boucle de chauffage au sol sans collecteurs ni régulateurs. Cela signifie que sa température initiale atteint un maximum de 70 à 80 degrés et que le refroidissement se produit uniquement dans la boucle elle-même.
Le plus souvent, les gens utilisent de tels kits dans 3 cas :
12
Afin de ne pas tirer une seule boucle du premier au deuxième étage, et d'y utiliser des bouches d'aération, vous pouvez utiliser cette solution peu coûteuse.
3
Encore une fois, comme alternative, vous pouvez utiliser un kit thermostatique.
Dans les trois cas, il vous suffit de le raccorder directement au radiateur, à la colonne montante ou au collecteur de chauffage le plus proche. En conséquence, vous obtenez automatiquement une boucle de chauffage au sol finie.
Inconvénients de ce kit :
faible confort - si vous chauffez correctement la chaudière, votre sol sera constamment surchauffé
Bien sûr, vous pouvez également fournir de l'eau refroidie à partir du réservoir tampon, mais nous arrivons ensuite au schéma n ° 1 précédemment considéré. Ce kit est conçu pour être raccordé spécifiquement à un système à haute température, avec alimentation PÉRIODIQUE d'eau chaude au sol chaud.
Une portion d'eau était servie, la tête thermique bloquait le débit. Ensuite, l'eau s'est refroidie dans la boucle, la portion suivante a été servie, et ainsi de suite. Si le liquide de refroidissement est à basse température, aucun kit n'est nécessaire.
À propos, il peut être connecté non seulement au chauffage par le sol, mais également à un système de murs chauds ou à des radiateurs de chauffage séparés.
Vous trouverez plus de détails sur le fonctionnement du système dans le passeport du produit - téléchargement.
le deuxième inconvénient est que le kit ne fonctionnera efficacement que dans un système à deux tuyaux
Dans un monotube il sera assez difficile de s'adapter. Vous devrez installer un by-pass et une vanne d'équilibrage.
Avantages :
l'installation la plus simple de tous les schémas ci-dessus
Applicabilité - dans de petites pièces avec un séjour rare de personnes. En gros, ce sont des salles de bains, un couloir, une loggia.
Pour comprendre lequel des régimes est le meilleur et le plus adapté à votre cas, vous pouvez comparer tous leurs inconvénients et avantages, réunis dans un tableau général.
Après avoir pesé le pour et le contre, vous pouvez choisir celui qui correspond le mieux à vos besoins et à vos capacités. Alors n'hésitez pas à procéder à l'installation ou à inviter des spécialistes pour effectuer des travaux de réparation.







































