- Choisir une option de travail
- Quels tuyaux conviennent au chauffage par le sol
- Coefficient de dilatation thermique linéaire (thermique) pour certains matériaux courants tels que : l'aluminium, le cuivre, le verre, le fer, etc. Possibilité d'impression.
- Avantages des tuyaux en polypropylène
- Influence du diamètre du tuyau sur l'efficacité d'un système de chauffage dans une maison privée
- Sélection de section de tuyau : tableau
- Détails
- Raccordement de tubes profilés sans soudure
- Exemple de calcul de système de chauffage
- Calcul de la puissance thermique
- Définition du diamètre
- Caractéristiques des systèmes de chauffage à circulation naturelle
- Installation tenant compte de l'indice de dilatation linéaire
- Joints de dilatation de tuyaux
- Compensateur de Kozlov
- Conclusion
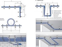
Choisir une option de travail
Actuellement, il existe les trois manières suivantes d'agencer le revêtement extérieur :
- Haut + bas. Le tuyau d'injection est monté à la hauteur la plus élevée possible. Le pipeline inférieur est posé presque à la surface du sol dans la zone de la plinthe. Excellent pour la circulation naturelle du fluide de travail.
- câblage du bas. Les deux tuyaux sont installés au fond des chambres. L'option est utilisée uniquement avec circulation forcée du caloporteur. Le pipeline est presque invisible à l'œil, car il est situé dans la zone du socle et est souvent décoré en dessous.
- Pose de radiateur.La canalisation d'injection, qui a une grande section transversale, est tirée entre les appareils de chauffage directement sous les rebords de fenêtre. Cela se fait d'un talon à l'autre. Le tuyau de descente est posé dans la zone du sol. En conséquence, moins de tuyaux sont nécessaires. Le système devient moins cher. Il est possible de connecter des appareils de chauffage en parallèle ou en série.
La pose extérieure des communications, bien que plus simple, est moins attrayante du point de vue esthétique.
Quels tuyaux conviennent au chauffage par le sol

Tuyaux en polymère pour la pose sous la chape
Naturellement, le chauffage au sol moderne est monté en plastique, mais il peut être différent et avoir des caractéristiques différentes. La pose de tuyaux de chauffage dans une maison privée sous une chape remplace les systèmes de radiateurs traditionnels. Pour sélectionner un matériau, vous devez déterminer les critères de sélection :
La pose de tuyaux de chauffage dans une maison privée sous une chape est réalisée uniquement par segments entiers, sans raccordements. Sur cette base, il s'avère que le matériau doit se plier et que la direction du flux de liquide de refroidissement doit changer sans l'utilisation de raccords. Les produits en polypropylène monocouche et polychlorure de vinyle ne relèvent pas de cette caractéristique ;
résistance à la chaleur.
Tous les tuyaux en polymère pour le chauffage extérieur et la pose cachée peuvent supporter un chauffage jusqu'à 95 degrés, de plus, la température du liquide de refroidissement dépasse rarement 80 degrés. Dans un sol chaud, l'eau chauffe jusqu'à un maximum de 40 degrés;
Pour la pose de tuyaux de chauffage dans la chape, seuls des produits renforcés sont utilisés, ils sont également appelés métal-plastique. Bien que la couche de renfort ne soit pas uniquement métallique. Chaque matériau a un certain allongement thermique. Ce coefficient indique de combien le contour s'allonge lorsqu'il est chauffé d'un degré.La valeur est déterminée pour une section d'un mètre. Un renforcement est nécessaire pour réduire cette valeur ;
Après la pose des tuyaux de chauffage dans la chape, ils ne seront plus accessibles. En cas de fuite, le sol devra être démonté - il s'agit d'un processus de sciage qui prend du temps. Les fabricants de tuyaux en polymère donnent une garantie sur leurs produits pendant 50 ans.
Les tuyaux en polymère renforcé se composent de cinq couches :
- deux couches de plastique (interne et externe);
- couche de renfort (située entre les polymères);
- deux couches de colle.
La dilatation linéaire thermique est la propriété d'un matériau d'augmenter en longueur lorsqu'il est chauffé. Le coefficient est indiqué en mm/m. Il montre de combien le contour augmentera lorsqu'il est chauffé d'un degré. La valeur du coefficient indique la quantité d'allongement par mètre.
Tuyau PEX renforcé d'aluminium
Il convient de mentionner immédiatement les types de renforcement. Il pourrait être:
- feuille d'aluminium (AL), 0,2–0,25 mm d'épaisseur. La couche peut être pleine ou perforée. La perforation est la présence de trous, comme dans une passoire ;
- les fibres de verre sont de fines fibres de plastique, d'acier, de verre ou de basalte. Dans le marquage sont désignés FG, GF, FB ;
- L'éthylène alcool vinylique est un élément chimique qui modifie la composition du plastique. Marqué avec Evon.
Avant de poser des tuyaux de chauffage dans une maison privée, il convient de veiller à ce qu'ils aient une couche de renforcement avec du papier d'aluminium ou de l'alcool éthylène vinylique. Étant donné que l'une des exigences lors du choix d'un matériau est l'élasticité du contour. Les produits renforcés de fibre de verre ne peuvent pas être pliés ; des raccords et des raccords sont utilisés pour modifier le sens du flux de liquide de refroidissement, ce qui est inacceptable dans notre cas.
Regardons les types de matériaux utilisés pour la production de tuyaux métal-plastique:

polypropylène. Ces produits sont marqués PRR / AL / PRR. La dilatation linéaire thermique est de 0,03 mm/m ;
polyéthylène réticulé. Il diffère du polyéthylène basse densité et haute densité conventionnel en ce qu'il subit une étape de production supplémentaire appelée réticulation. Sur celui-ci, le nombre de liaisons entre les molécules augmente, ce qui confère au produit les caractéristiques nécessaires. Il est marqué PEX/AL/PEX et possède un coefficient d'allongement linéaire thermique de 0,024 mm/m, inférieur à celui du propylène.
Nous examinerons séparément les produits en polyéthylène réticulé renforcé d'éthylène-alcool vinylique, car il est préférable de poser ces tuyaux de chauffage dans le sol. Ils sont labellisés PEX/Evon/PEX. Cette méthode de renforcement vous permet de faire d'une pierre deux coups. Premièrement, il réduit la dilatation linéaire du matériau à 0,021 mm/m, et deuxièmement, il crée une couche protectrice qui réduit la perméabilité à l'air des parois du tuyau. Ce chiffre est de 900 mg par 1 m 2 par jour.
Le fait est que la présence d'air dans le système entraîne non seulement des processus de cavitation (apparition de bruit, coup de bélier), mais provoque également le développement de bactéries aérobies. Ce sont des micro-organismes qui ne peuvent exister sans air. Leurs déchets se déposent sur les parois intérieures et ce que l'on appelle l'envasement se produit, tandis que le diamètre intérieur du tuyau diminue. Pour les tuyaux en polypropylène avec renfort en feuille d'aluminium, la perméabilité à l'air des parois est nulle.
Coefficient de dilatation thermique linéaire (thermique) pour certains matériaux courants tels que : l'aluminium, le cuivre, le verre, le fer, etc. Possibilité d'impression.
| Matériel | Coefficient de dilatation thermique linéaire | |
| (10-6 m/(mK)) / ( 10-6 m/(mC)) | (10-6 po/(poF)) | |
| Thermoplastique ABS (acrylonitrile butadiène styrène) | 73.8 | 41 |
| ABS - verre renforcé de fibres | 30.4 | 17 |
| Matériau acrylique, pressé | 234 | 130 |
| diamant | 1.1 | 0.6 |
| Diamant technique | 1.2 | 0.67 |
| Aluminium | 22.2 | 12.3 |
| Acétal | 106.5 | 59.2 |
| Acétal, renforcé de fibre de verre | 39.4 | 22 |
| Acétate de cellulose (CA) | 130 | 72.2 |
| Butyrate d'acétate de cellulose (CAB) | 25.2 | 14 |
| Baryum | 20.6 | 11.4 |
| Béryllium | 11.5 | 6.4 |
| Alliage cuivre-béryllium (Cu 75, Be 25) | 16.7 | 9.3 |
| Béton | 14.5 | 8.0 |
| ouvrages en béton | 9.8 | 5.5 |
| Bronze | 18.0 | 10.0 |
| Vanadium | 8 | 4.5 |
| Bismuth | 13 | 7.3 |
| Tungstène | 4.3 | 2.4 |
| Gadolinium | 9 | 5 |
| Hafnium | 5.9 | 3.3 |
| Germanium | 6.1 | 3.4 |
| Holmium | 11.2 | 6.2 |
| Granit | 7.9 | 4.4 |
| Graphite pur | 7.9 | 4.4 |
| Dysprosium | 9.9 | 5.5 |
| Bois, sapin, épicéa | 3.7 | 2.1 |
| Bois de chêne, parallèle au grain | 4.9 | 2.7 |
| Bois de chêne, perpendiculaire au grain | 5.4 | 3.0 |
| Bois, pin | 5 | 2.8 |
| Europium | 35 | 19.4 |
| Fer, pur | 12.0 | 6.7 |
| Fer, fonte | 10.4 | 5.9 |
| Fer, forgé | 11.3 | 6.3 |
| Matériel | Coefficient de dilatation thermique linéaire | |
| (10-6 m/(mK)) / ( 10-6 m/(mC)) | (10-6 po/(poF)) | |
| Or | 14.2 | 8.2 |
| Calcaire | 8 | 4.4 |
| Invar (un alliage de fer et de nickel) | 1.5 | 0.8 |
| Inconel (alliage) | 12.6 | 7.0 |
| Iridium | 6.4 | 3.6 |
| Ytterbium | 26.3 | 14.6 |
| Yttrium | 10.6 | 5.9 |
| Cadmium | 30 | 16.8 |
| Potassium | 83 | 46.1 — 46.4 |
| Calcium | 22.3 | 12.4 |
| Maçonnerie | 4.7 — 9.0 | 2.6 — 5.0 |
| Caoutchouc dur | 77 | 42.8 |
| Quartz | 0.77 — 1.4 | 0.43 — 0.79 |
| Carreaux de céramique (tuiles) | 5.9 | 3.3 |
| Brique | 5.5 | 3.1 |
| Cobalt | 12 | 6.7 |
| Constantan (alliage) | 18.8 | 10.4 |
| Corindon, fritté | 6.5 | 3.6 |
| Silicium | 5.1 | 2.8 |
| Lanthane | 12.1 | 6.7 |
| Laiton | 18.7 | 10.4 |
| Glace | 51 | 28.3 |
| Lithium | 46 | 25.6 |
| Caillebotis en acier moulé | 10.8 | 6.0 |
| Lutétium | 9.9 | 5.5 |
| Feuille acrylique coulée | 81 | 45 |
| Matériel | Coefficient de dilatation thermique linéaire | |
| (10-6 m/(mK)) / ( 10-6 m/(mC)) | (10-6 po/(poF)) | |
| Magnésium | 25 | 14 |
| Manganèse | 22 | 12.3 |
| Alliage cuivre-nickel 30% | 16.2 | 9 |
| Cuivre | 16.6 | 9.3 |
| Molybdène | 5 | 2.8 |
| Métal Monel (alliage nickel-cuivre) | 13.5 | 7.5 |
| Marbre | 5.5 — 14.1 | 3.1 — 7.9 |
| Stéatite (stéatite) | 8.5 | 4.7 |
| Arsenic | 4.7 | 2.6 |
| Sodium | 70 | 39.1 |
| Nylon, universel | 72 | 40 |
| Nylon, Type 11 (Type 11) | 100 | 55.6 |
| Nylon, Type 12 (Type 12) | 80.5 | 44.7 |
| Nylon coulé, Type 6 (Type 6) | 85 | 47.2 |
| Nylon, Type 6/6 (Type 6/6), composé de moulage | 80 | 44.4 |
| néodyme | 9.6 | 5.3 |
| Nickel | 13.0 | 7.2 |
| Niobium (Colombium) | 7 | 3.9 |
| Nitrate de cellulose (CN) | 100 | 55.6 |
| Alumine | 5.4 | 3.0 |
| Étain | 23.4 | 13.0 |
| Osmium | 5 | 2.8 |
| Matériel | Coefficient de dilatation thermique linéaire | |
| (10-6 m/(mK)) / ( 10-6 m/(mC)) | (10-6 po/(poF)) | |
| Palladium | 11.8 | 6.6 |
| Grès | 11.6 | 6.5 |
| Platine | 9.0 | 5.0 |
| Plutonium | 54 | 30.2 |
| Polyallomère | 91.5 | 50.8 |
| Polyamide (PA) | 110 | 61.1 |
| Chlorure de polyvinyle (PVC) | 50.4 | 28 |
| Fluorure de polyvinylidène (PVDF) | 127.8 | 71 |
| Polycarbonate (PC) | 70.2 | 39 |
| Polycarbonate - renforcé de fibre de verre | 21.5 | 12 |
| Polypropylène - renforcé de fibres de verre | 32 | 18 |
| Polystyrène (PS) | 70 | 38.9 |
| Polysulfone (PSO) | 55.8 | 31 |
| Polyuréthane (PUR), rigide | 57.6 | 32 |
| Polyphénylène - renforcé de fibres de verre | 35.8 | 20 |
| Polyphénylène (PP), insaturé | 90.5 | 50.3 |
| Polyester | 123.5 | 69 |
| Polyester renforcé de fibre de verre | 25 | 14 |
| Polyéthylène (PE) | 200 | 111 |
| Polyéthylène - téréphtalium (PET) | 59.4 | 33 |
| Praséodyme | 6.7 | 3.7 |
| Soudure 50 - 50 | 24.0 | 13.4 |
| Prométhium | 11 | 6.1 |
| Rhénium | 6.7 | 3.7 |
| Rhodié | 8 | 4.5 |
| Ruthénium | 9.1 | 5.1 |
| Matériel | Coefficient de dilatation thermique linéaire | |
| (10-6 m/(mK)) / ( 10-6 m/(mC)) | (10-6 po/(poF)) | |
| Samarium | 12.7 | 7.1 |
| Conduire | 28.0 | 15.1 |
| Alliage plomb-étain | 11.6 | 6.5 |
| Sélénium | 3.8 | 2.1 |
| Argent | 19.5 | 10.7 |
| Scandium | 10.2 | 5.7 |
| Mica | 3 | 1.7 |
| Alliage dur K20 | 6 | 3.3 |
| Hastelloy C | 11.3 | 6.3 |
| Acier | 13.0 | 7.3 |
| Acier inoxydable austénitique (304) | 17.3 | 9.6 |
| Acier inoxydable austénitique (310) | 14.4 | 8.0 |
| Acier inoxydable austénitique (316) | 16.0 | 8.9 |
| Acier inoxydable ferritique (410) | 9.9 | 5.5 |
| Verre d'affichage (miroir, feuille) | 9.0 | 5.0 |
| Verre pyrex, pyrex | 4.0 | 2.2 |
| Verre réfractaire | 5.9 | 3.3 |
| Mortier de construction (chaux) | 7.3 — 13.5 | 4.1-7.5 |
| Strontium | 22.5 | 12.5 |
| Antimoine | 10.4 | 5.8 |
| Thallium | 29.9 | 16.6 |
| Tantale | 6.5 | 3.6 |
| Tellure | 36.9 | 20.5 |
| Terbium | 10.3 | 5.7 |
| Titane | 8.6 | 4.8 |
| Thorium | 12 | 6.7 |
| Thulium | 13.3 | 7.4 |
| Matériel | Coefficient de dilatation thermique linéaire | |
| (10-6 m/(mK)) / ( 10-6 m/(mC)) | (10-6 po/(poF)) | |
| Uranus | 13.9 | 7.7 |
| Porcelaine | 3.6-4.5 | 2.0-2.5 |
| Polymère phénolique-aldéhyde sans additifs | 80 | 44.4 |
| Fluoroéthylène propylène (FEP) | 135 | 75 |
| Chlorure de polyvinyle chloré (CPVC) | 66.6 | 37 |
| Chrome | 6.2 | 3.4 |
| Ciment | 10.0 | 6.0 |
| Cérium | 5.2 | 2.9 |
| Zinc | 29.7 | 16.5 |
| Zirconium | 5.7 | 3.2 |
| Ardoise | 10.4 | 5.8 |
| Plâtre | 16.4 | 9.2 |
| Ébonite | 76.6 | 42.8 |
| Résine époxyde, caoutchouc moulé et produits non chargés en ces matières | 55 | 31 |
| Erbium | 12.2 | 6.8 |
| Éthylène-acétate de vinyle (EVA) | 180 | 100 |
| Éthylène et acrylate d'éthyle (EEE) | 205 | 113.9 |
| Éther vinyle | 16 — 22 | 8.7 — 12 |
- T(oC) = 5/9
- 1 pouce = 25,4 mm
- 1 pied = 0,3048 m
Avantages des tuyaux en polypropylène
Vous pouvez économiser sur le chauffage domestique en installant un système de chauffage composé de tuyaux en polypropylène. Après tout, les produits polymères et leur installation coûtent moins cher que les pièces métalliques.
Concept de construction
Cela vous permet de poser des communications techniques durables à faible coût, car les tuyaux en PP dans des conditions standard dureront 50 ans. Ils diffèrent également :
- Poids léger, ce qui simplifie le processus d'installation et réduit la charge sur les structures de support du bâtiment.
- Bonne ductilité pour éviter la rupture lorsque l'eau gèle à l'intérieur des pièces tubulaires.
- Faible colmatage grâce aux parois lisses.
- Résistant aux hautes températures.
- Assemblage facile avec un équipement de soudage spécial.
- Excellentes propriétés d'insonorisation. Par conséquent, le bruit de l'eau en mouvement et des coups de bélier n'est pas entendu.
- Conception soignée.
- Faible conductivité thermique, ce qui permet de ne pas utiliser de matériau isolant.
Contrairement aux tuyaux XLPE, les tuyaux en polypropylène ne peuvent pas être pliés en raison de leur élasticité accrue. La flexion de la communication est réalisée à l'aide de ferrures.
Le polypropylène a également une expansion linéaire élevée. Cette propriété rend difficile la pose dans les structures du bâtiment. Après tout, la dilatation des tuyaux peut entraîner une déformation du matériau principal et de finition des murs. Pour réduire cette propriété lors d'une installation ouverte, des compensateurs sont utilisés.
Influence du diamètre du tuyau sur l'efficacité d'un système de chauffage dans une maison privée

C'est une erreur de s'appuyer sur le principe « plus c'est mieux » lors du choix d'une section de pipeline. Une section de tuyau trop grande entraîne une diminution de la pression dans celui-ci, et donc de la vitesse du flux de liquide de refroidissement et de chaleur.
De plus, si le diamètre est trop grand, la pompe peut tout simplement ne pas avoir une capacité suffisante pour déplacer un si grand volume de liquide de refroidissement.
Important! Un plus grand volume de liquide de refroidissement dans le système implique une capacité thermique totale élevée, ce qui signifie que plus de temps et d'énergie seront consacrés à son chauffage, ce qui affecte également l'efficacité, pas pour le mieux.
Sélection de section de tuyau : tableau
La section de tuyau optimale doit être la plus petite possible pour une configuration donnée (voir tableau) pour les raisons suivantes :
Cependant, n'en faites pas trop: outre le fait qu'un petit diamètre crée une charge accrue sur les vannes de raccordement et d'arrêt, il n'est pas non plus en mesure de transférer suffisamment d'énergie thermique.
Pour déterminer la section de tuyau optimale, le tableau suivant est utilisé.
Photo 1. Un tableau dans lequel les valeurs sont données pour un système de chauffage standard à deux tuyaux.
Détails
Types de renfort avec aluminium :
1. appliquer une couche avec une feuille d'aluminium sur le dessus du tuyau.
2. une feuille d'aluminium est appliquée à l'intérieur du tuyau.
3. effectuer un renforcement avec de l'aluminium perforé.
Toutes les méthodes sont le collage de tuyaux en polypropylène et d'une feuille d'aluminium. Cette méthode est inefficace, car le tuyau peut se délaminer, ce qui altère la qualité des produits.
Le processus de renforcement en fibre de verre est plus fonctionnel et durable. Cette méthode suppose que à l'intérieur et à l'extérieur du tuyau il reste du polypropylène et de la fibre de verre est posée entre eux. Le tuyau de renfort a trois couches. Ces tuyaux ne sont pas soumis à des changements thermiques.
Comparaison du taux d'expansion avant et après la procédure de renforcement :
1. Les tuyaux simples ont un coefficient de 0,1500 mm/mK, soit dix millimètres par mètre linéaire, avec une variation de température de soixante-dix degrés.
2. Les produits de tuyaux renforcés avec de l'aluminium changent la valeur à 0,03 mm / mK, d'une autre manière, elle est égale à trois millimètres par mètre linéaire.
3. Pendant le renforcement de la fibre de verre, l'indicateur tombe à 0,035 mm/mK.
Les produits de tuyaux en polypropylène avec une couche renforcée de fibre de verre seront utilisés dans divers domaines.
Caractéristiques du renforcement des tuyaux en polypropylène. Le matériau de renforcement est une feuille pleine ou perforée, qui a une épaisseur de 0,01 à 0,005 centimètres. Le matériau est posé sur le mur à l'extérieur ou à l'intérieur du produit. Les couches sont reliées avec de la colle.
La feuille se dépose en une couche continue, qui devient une protection contre l'oxygène. Une grande quantité d'oxygène forme de la corrosion sur les appareils de chauffage.
La couche de renforcement en fibre de verre est composée de trois couches, la couche intermédiaire étant en fibre de verre. Il est soudé avec des couches de polypropylène adjacentes.
C'est ainsi que se forme le produit le plus durable, doté d'un faible indice de dilatation linéaire.
Attention! La fibre de verre, en tant que matériau de renfort, présente plus d'avantages, elle est monolithique et ne se délamine pas, contrairement au renfort en aluminium.Tous les produits en polypropylène : renforcés et non renforcés, sont flexibles, car ils ont un indice d'élasticité élevé
Tous les produits en polypropylène : renforcés et non renforcés, sont flexibles, car ils ont un indice d'élasticité élevé.
La propriété rend l'assemblage des canalisations un processus simple, réduit le coût du temps d'installation, car avant la pose, il n'est pas nécessaire de dénuder la couche de renfort en aluminium.
Raccordement de tubes profilés sans soudure
L'amarrage des tubes profilés peut être réalisé sans l'utilisation d'équipement de soudage. Comment connecter des tubes profilés sans soudure :
- utilisation du système crabe;
- raccord de montage.
Le système de crabe pour tuyaux se compose de supports d'accostage et d'éléments de fixation. Dans ce cas, la connexion est réalisée à l'aide d'écrous et de boulons et, dans la forme finale, forme une structure profilée en forme de «X», «G» ou «T». Avec une telle connexion, de 1 à 4 tuyaux peuvent être joints, mais uniquement à angle droit. En termes de résistance, ils ne sont pas inférieurs aux coutures soudées.
L'amarrage des raccords est utilisé lorsqu'il est nécessaire de se brancher à partir du tuyau principal. Il existe plusieurs types de connecteurs de tuyaux qui vous permettent de monter des ébauches dans diverses configurations. Les principaux sont :
- Embrayage;
- coin;
- tee;
- traverser.

Les systèmes de crabe sont le plus souvent utilisés dans l'installation de structures de rue simples, telles qu'une serre ou un auvent.
Exemple de calcul de système de chauffage
En règle générale, un calcul simplifié est effectué sur la base de paramètres tels que le volume de la pièce, le niveau de son isolation, le débit du liquide de refroidissement et la différence de température dans les conduites d'entrée et de sortie.
Le diamètre du tuyau de chauffage à circulation forcée est déterminé dans l'ordre suivant :
la quantité totale de chaleur qui doit être fournie à la pièce est déterminée (puissance thermique, kW), vous pouvez également vous concentrer sur les données tabulaires ;
La valeur de la puissance calorifique en fonction de la différence de température et de la puissance de la pompe
compte tenu de la vitesse de déplacement de l'eau, le D optimal est déterminé.
Calcul de la puissance thermique
Une pièce standard aux dimensions de 4,8x5,0x3,0m servira d'exemple. Circuit de chauffage à circulation forcée, il est nécessaire de calculer les diamètres des tuyaux de chauffage pour le câblage autour de l'appartement. La formule de calcul de base ressemble à ceci :
La notation suivante est utilisée dans la formule :
- V est le volume de la pièce. Dans l'exemple, c'est 3,8 ∙ 4,0 ∙ 3,0 = 45,6 m 3 ;
- Δt est la différence entre la température extérieure et intérieure. Dans l'exemple, 53ᵒС est accepté ;
Températures mensuelles minimales pour certaines villes
K est un coefficient spécial qui détermine le degré d'isolation du bâtiment. En général, sa valeur varie de 0,6 à 0,9 (une isolation thermique efficace est utilisée, le sol et le toit sont isolés, au moins des fenêtres à double vitrage sont installées) à 3-4 (bâtiments sans isolation thermique, par exemple, des vestiaires). L'exemple utilise une option intermédiaire - l'appartement a une isolation thermique standard (K = 1,0 - 1,9), accepté K = 1,1.
La puissance thermique totale devrait être de 45,6 ∙ 53 ∙ 1,1 / 860 = 3,09 kW.
Vous pouvez utiliser des données tabulaires.
Tableau de flux de chaleur
Définition du diamètre
Le diamètre des tuyaux de chauffage est déterminé par la formule
Où les désignations sont utilisées :
- Δt est la différence de température du fluide caloporteur dans les canalisations d'alimentation et de refoulement.Étant donné que l'eau est fournie à une température d'environ 90-95ᵒС et qu'elle a le temps de se refroidir à 65-70ᵒС, la différence de température peut être prise égale à 20ᵒС;
- v est la vitesse de déplacement de l'eau. Il n'est pas souhaitable qu'il dépasse la valeur de 1,5 m/s, et le seuil minimum admissible est de 0,25 m/s. Il est recommandé de s'arrêter à une valeur de vitesse intermédiaire de 0,8 - 1,3 m/s.
Noter! Un choix incorrect du diamètre du tuyau pour le chauffage peut entraîner une chute de la vitesse en dessous du seuil minimum, ce qui entraînera à son tour la formation de poches d'air. En conséquence, l'efficacité du travail deviendra nulle.
La valeur de Din dans l'exemple sera √354∙(0.86∙3.09/20)/1.3 = 36.18 mm
Si vous faites attention aux dimensions standard, par exemple, d'un pipeline en PP, il est clair qu'il n'y a tout simplement pas un tel Din. Dans ce cas, sélectionnez simplement le diamètre le plus proche des tuyaux en propylène pour le chauffage
Dans cet exemple, vous pouvez choisir PN25 avec un ID de 33,2 mm, cela entraînera une légère augmentation de la vitesse du liquide de refroidissement, mais cela restera toujours dans des limites acceptables.
Caractéristiques des systèmes de chauffage à circulation naturelle
Leur principale différence est qu'ils n'utilisent pas de pompe de circulation pour créer une pression. Le liquide se déplace par gravité, après avoir été chauffé, il est forcé vers le haut, puis passe à travers les radiateurs, se refroidit et retourne à la chaudière.
Le diagramme montre le principe de la pression de circulation.
Par rapport aux systèmes à circulation forcée, le diamètre des tuyaux pour le chauffage à circulation naturelle doit être plus grand. La base de calcul dans ce cas est que la pression de circulation dépasse les pertes par frottement et les résistances locales.
Exemple de câblage à circulation naturelle
Afin de ne pas calculer à chaque fois la valeur de la pression de circulation, il existe des tableaux spéciaux compilés pour différentes différences de température. Par exemple, si la longueur de la canalisation de la chaudière au radiateur est de 4,0 m et que la différence de température est de 20ᵒС (70ᵒС à la sortie et 90ᵒС à l'alimentation), la pression de circulation sera de 488 Pa. Sur cette base, la vitesse du liquide de refroidissement est sélectionnée en modifiant D.
Lorsque vous effectuez des calculs de vos propres mains, un calcul de vérification est également requis. C'est-à-dire que les calculs sont effectués dans l'ordre inverse, le but de la vérification est d'établir si les pertes par frottement et pression de circulation de la résistance locale.
Installation tenant compte de l'indice de dilatation linéaire
Lors de l'installation d'une canalisation pour l'alimentation en eau chaude et le chauffage (y compris le système "plancher chaud"), il est nécessaire de prendre en compte l'allongement de la canalisation dû à l'exposition à des températures élevées.
Le choix optimal de produits pour l'installation du pipeline est constitué de tuyaux renforcés avec une couche interne en fibre de verre ou en aluminium. Le renforcement - une couche de feuille ou de fibre de verre - absorbe une partie de l'énergie thermique du liquide de refroidissement et réduit le coefficient de dilatation thermique du polymère. De ce fait, la nécessité de compenser les changements physiques sera également réduite.
Règles d'installation des tuyaux, en tenant compte de la dilatation linéaire:
un petit espace doit être laissé entre le pipeline et le mur de la pièce, car
les tuyaux peuvent dévier de leur axe lorsqu'ils sont chauffés et aller par vagues;
il est particulièrement important de laisser de petits espaces dans les coins des locaux où les tuyaux sont reliés par des raccords tournants ou des brides ;
sur de longues sections du pipeline, des joints de dilatation spéciaux sont installés, qui fixent simultanément le pipeline dans son plan, mais lui permettent de se déplacer dans le sens de l'installation;
il est souhaitable de réduire le nombre de joints rigides afin de donner de la flexibilité à la canalisation.Dans certains systèmes d'eau chaude et de chauffage à base de produits renforcés et non renforcés, vous pouvez voir différentes méthodes de soi-disant
auto-compensation de la dilatation thermique due à la déformation élastique du polypropylène
Dans certains systèmes d'eau chaude et de chauffage basés sur des produits renforcés et non renforcés, vous pouvez voir différentes méthodes de ce qu'on appelle. auto-compensation de la dilatation thermique due à la déformation élastique du polypropylène.

Le plus souvent, des sections de compensation en forme de boucle sont utilisées - des tours d'anneau avec une fixation mobile sur le mur. La boucle obtenue à la suite d'une telle installation se contracte et se dilate lorsque le liquide de refroidissement est chauffé / refroidi, sans affecter la position et la géométrie de la canalisation dans d'autres sections.

Joints de dilatation de tuyaux
En plus de l'auto-compensation, il est possible d'empêcher la déformation des tuyaux due à la dilatation thermique à l'aide de dispositifs supplémentaires - des compensateurs mécaniques. Ils sont installés sur les sections en forme de L et de U des canalisations et constituent des supports coulissants à travers lesquels passe la canalisation.


Les compensateurs de dilatation spéciaux sont divisés en plusieurs types:
- Axial (soufflet) - dispositifs sous la forme de deux brides, entre lesquelles se trouve un ressort qui compense la compression et la dilatation de la section de canalisation. Attaché à un support.
- Cisaillement - utilisé pour compenser la déviation axiale de la section de canalisation lors de la dilatation thermique.
- Pivot - sont installés sur les sections du virage de l'autoroute pour réduire la déformation.
- Universel - combiner les dilatations dans toutes les directions, en compensant la rotation, le cisaillement et la compression du tuyau.
Compensateur de Kozlov
Il existe également un nouveau type d'appareil, nommé d'après son développeur - le compensateur Kozlov. Il s'agit d'un appareil plus compact qui ressemble à une section d'un pipeline en polypropylène.

À l'intérieur du compensateur se trouve un ressort qui absorbe l'énergie de dilatation des tuyaux à l'intérieur du site, se rétrécissant lorsque l'eau est chauffée et se dilatant lorsqu'elle refroidit. L'avantage du compensateur Kozlov par rapport aux autres types d'appareils est une installation plus facile et plus simple, ainsi qu'une réduction de la consommation d'armatures.
Contrairement à la section en forme de boucle, lors de l'installation du compensateur Kozlov, il suffit de connecter la section de tuyau de manière bridée ou soudée.
L'expansion linéaire des tuyaux en polypropylène se produit à la suite d'une exposition à différentes températures, à la suite de quoi un changement de dimensions plus ou moins évident se produit. En pratique, elle peut se traduire à la fois par une augmentation de taille en cas d'augmentation de température, et par une diminution en cas de diminution de température.
Étant donné que les matériaux polymères ont un coefficient d'allongement linéaire accru par rapport aux métaux, lors de la conception de systèmes de chauffage, d'alimentation en eau froide et chaude, ils calculent les allongements ou les raccourcissements des canalisations en cas de chute de température.
Conclusion
Travailler avec des tuyaux en polypropylène n'est pas particulièrement difficile.Auparavant, toute installation du système de chauffage avait un schéma prêt à l'emploi et des calculs thermiques. À l'aide du schéma établi, vous pourrez non seulement calculer le nombre de tuyaux requis pour votre circuit de chauffage, mais également placer correctement les appareils de chauffage dans la maison.
L'utilisation de tuyaux en polypropylène à la maison vous permet de réinstaller le radiateur à tout moment. La présence de vannes d'arrêt appropriées vous permettra d'allumer et d'éteindre les radiateurs à tout moment. Cependant, pendant le processus d'installation, certaines règles et instructions doivent être suivies.

- évitez d'utiliser une combinaison de fragments de tuyaux individuels constitués de matériaux différents lors de l'installation.
- Une tuyauterie excessivement longue sans le nombre approprié de fixations peut s'affaisser avec le temps. Cela s'applique aux petits objets chauffés, où il y a une puissante chaudière autonome, respectivement, l'eau dans la canalisation a une température élevée.
Lors de l'installation, essayez de ne pas surchauffer le tuyau, les raccords et les raccords. La surchauffe conduit à une mauvaise qualité de soudure. Le polypropylène fondu bout, obscurcissant le passage interne du tuyau.
La condition principale pour la durabilité et la qualité de la canalisation du système de chauffage est la résistance des connexions et la tuyauterie correcte. N'hésitez pas à installer des robinets et vannes devant chaque radiateur. En installant un système d'automatisation et en ajustant le mode de chauffage, à l'aide de robinets, vous pouvez allumer et éteindre mécaniquement le chauffage dans la pièce.
Oleg Borisenko (expert du site).
En effet, la configuration de la pièce peut nécessiter un raccordement combiné de radiateurs.Si la conception du radiateur le permet, plusieurs radiateurs peuvent être montés dans un circuit en les connectant de différentes manières - côté, diagonale, bas.Les raccords filetés modernes sont généralement des produits de haute qualité avec des paramètres de filetage cohérents. Cependant, pour assurer l'étanchéité des raccords filetés, divers joints sont utilisés qui diffèrent par leurs caractéristiques. Le matériau d'étanchéité doit être sélectionné en fonction des caractéristiques de conception du système de chauffage et de son emplacement (dissimulé, ouvert), car les produits d'étanchéité peuvent être conçus pour ajuster (serrer) les joints filetés, ou ils peuvent être à usage unique qui ne permet pas déformation après durcissement Sélectionnez un mastic pour sceller les raccords filetés aidera le matériau de ce
- Projet de bricolage et calcul d'une cheminée en brique
- Comment poser et isoler les tuyaux de chauffage dans le sol ?
- Pourquoi avez-vous besoin d'un socle pour les tuyaux de chauffage?
- Choisir des registres nervurés, des radiateurs et des tuyaux de chauffage
- Comment cacher un tuyau de chauffage ?











































