- Comparateur de prix d'installation
- Types de circulation forcée du caloporteur dans le chauffage
- Pourquoi les gens choisissent-ils un système à deux circuits ?
- Classification des systèmes de chauffage de l'eau selon le principe de fonctionnement
- avec circulation naturelle
- Circuit à circulation forcée
- Méthodes de montage
- Chauffage du collecteur
- Les pré-requis techniques
- Le principe de fonctionnement du CO fermé
- Caractéristiques du processus d'installation
- Panneaux solaires. Principe de fonctionnement du système de chauffage solaire
- Avantages et inconvénients
- Caractéristiques de construction
- Pente du tuyau
- pression de gravité
- Obstacles possibles
- Type de gravité
- La pose de canalisations
- Méthode 1. Avec un tuyau
- Méthode 2. Avec deux tuyaux
- Méthode 3. Faisceau
Comparateur de prix d'installation
Les adeptes des réseaux de chauffage monotube aiment rappeler le bon marché de ce type de câblage. La réduction des coûts par rapport au schéma à deux canalisations est justifiée par la moitié du nombre de canalisations. Nous affirmons ce qui suit: "Leningrad" coûtera moins cher qu'un système sans issue dans un cas - si vous soudez le chauffage en polypropylène.
Prouvons notre affirmation par des calculs - prenons comme exemple une habitation à un étage mesurant 10 x 10 m = 100 m² (en plan). Mettons la disposition du "Leningrad" sur le dessin, comptons les raccords avec des tuyaux, puis faisons une estimation similaire du câblage sans issue.

Un collecteur de retour commun traversant le couloir maintient le diamètre de la ligne annulaire petit. S'il est retiré, la section du tuyau passera à Ø25 mm (interne)
Ainsi, pour un appareil de chauffage monotube, il vous faudra :
- Tuyau DN20 au collecteur (Ø25 mm extérieur) - 40 m ;
- tr. DN25 Ø32 mm pour retour - 10 m ;
- tr. DN10 Ø16 mm pour raccordements - 8 m ;
- tee 25 x 25 x 16 (taille extérieure) - 16 pièces;
- té 25 x 25 x 20 - 1 pc.

Sur la base de la disposition suivante, nous découvrirons le besoin de tuyaux et de raccords pour un réseau à deux tuyaux :
- tr. DN15 Ø20 mm - 68 mètres (secteur) ;
- tr. DN10 Ø16 mm - 22 m (raccordements radiateur) ;
- té 20 x 20 x 16 mm - 16 pcs.
Trouvons maintenant les prix actuels des raccords et tuyaux de plomberie en 3 matériaux : polypropylène renforcé PP-R, métal-plastique PEX-AL– PEX et polyéthylène réticulé PEX de fabricants renommés. Les résultats des calculs seront entrés dans le tableau :

Comme vous pouvez le voir, les coûts des tés et des tuyaux en polypropylène sont presque les mêmes pour les deux schémas - celui de l'épaule s'est avéré plus cher de seulement 330 roubles. Pour les autres matériaux, le câblage à deux tubes l'emporte définitivement. La raison réside dans les diamètres - les prix des tuyaux de plus grande section augmentent fortement par rapport aux tailles "courantes" de 16 et 20 mm.
Vous pouvez prendre de la plomberie moins chère d'autres fabricants et effectuer le calcul - il est peu probable que le rapport change. Notez que nous avons sauté les coudes à 90° pour les coudes de tuyaux et autres petits articles car nous ne connaissons pas le nombre exact. Si vous calculez soigneusement tous les matériaux, le coût de "Leningradka" augmentera encore plus. Un expert démontrant des calculs sur vidéo est arrivé à des conclusions similaires :
Types de circulation forcée du caloporteur dans le chauffage
L'utilisation de systèmes de chauffage à circulation forcée dans les maisons à deux étages est utilisée en raison de la longueur des lignes du système (plus de 30 m). Cette méthode est réalisée à l'aide d'une pompe de circulation qui pompe le liquide du circuit. Il est monté à l'entrée du réchauffeur, là où la température du liquide de refroidissement est la plus basse.
Avec un circuit fermé, le degré de pression que la pompe développe ne dépend pas du nombre d'étages et de la superficie du bâtiment. La vitesse d'écoulement de l'eau devient plus grande, par conséquent, lors du passage dans les canalisations, le liquide de refroidissement ne se refroidit pas beaucoup. Cela contribue à une répartition plus uniforme de la chaleur dans tout le système et à l'utilisation d'un générateur de chaleur en mode économe.
Le vase d'expansion peut être situé non seulement au point le plus élevé du système, mais également à proximité de la chaudière. Pour parfaire le circuit, les concepteurs y ont introduit un collecteur accélérateur. Maintenant, s'il y a une panne de courant et l'arrêt subséquent de la pompe, le système continuera à fonctionner en mode convection.
- avec un tuyau
- deux;
- collectionneur.
Chacun peut être monté par vous-même ou inviter des spécialistes.
Variante du schéma avec un tuyau
Des vannes d'arrêt sont également montées à l'entrée de la batterie, ce qui sert à réguler la température dans la pièce, ainsi que nécessaire lors du remplacement de l'équipement. Une vanne de purge d'air est installée sur le dessus du radiateur.
Soupape de batterie
Pour augmenter l'uniformité de la distribution de chaleur, des radiateurs sont installés le long de la ligne de dérivation. Si vous n'utilisez pas ce schéma, vous devrez sélectionner des batteries de différentes capacités, en tenant compte de la perte de caloporteur, c'est-à-dire plus loin de la chaudière, plus il y a de sections.
L'utilisation de vannes d'arrêt est facultative, mais sans elle, la maniabilité de l'ensemble du système de chauffage est réduite. Si nécessaire, vous ne pourrez pas déconnecter le deuxième ou le premier étage du réseau pour économiser du carburant.
Pour s'éloigner de la répartition inégale du caloporteur, des schémas à deux tuyaux sont utilisés.
- impasse;
- qui passe;
- collectionneur.
Options pour les schémas sans issue et de dépassement
L'option associée permet de contrôler facilement le niveau de chaleur, mais il est nécessaire d'augmenter la longueur de la canalisation.
Le circuit collecteur est reconnu comme le plus efficace, ce qui permet d'amener un tuyau séparé à chaque radiateur. La chaleur est répartie uniformément. Il y a un inconvénient - le coût élevé de l'équipement, à mesure que la quantité de consommables augmente.
Schéma de chauffage horizontal du collecteur
Il existe également des options verticales pour fournir le caloporteur, qui se trouvent avec le câblage inférieur et supérieur. Dans le premier cas, le drain avec l'alimentation en caloporteur traverse les étages, dans le second, la colonne montante monte de la chaudière au grenier, où les tuyaux sont acheminés vers les éléments chauffants.
Disposition verticale
Les maisons à deux étages peuvent avoir une superficie très différente, allant de quelques dizaines à des centaines de mètres carrés. Elles se différencient également par l'emplacement des pièces, la présence de dépendances et de vérandas chauffées, la position par rapport aux points cardinaux. En vous concentrant sur ces facteurs et sur de nombreux autres, vous devez décider de la circulation naturelle ou forcée du liquide de refroidissement.
Un schéma simple de circulation du liquide de refroidissement dans une maison privée avec un système de chauffage à circulation naturelle.
Les schémas de chauffage avec circulation naturelle du liquide de refroidissement se distinguent par leur simplicité.Ici, le liquide de refroidissement se déplace seul dans les tuyaux, sans l'aide d'une pompe de circulation - sous l'influence de la chaleur, il monte, pénètre dans les tuyaux, est réparti sur les radiateurs, se refroidit et pénètre dans le tuyau de retour pour revenir à la chaudière. Autrement dit, le liquide de refroidissement se déplace par gravité, obéissant aux lois de la physique.
Schéma d'un système de chauffage fermé à deux tuyaux d'une maison à deux étages à circulation forcée
- Chauffage plus uniforme de toute la maison;
- Sections horizontales sensiblement plus longues (selon la puissance de la pompe utilisée, elle peut atteindre plusieurs centaines de mètres) ;
- La possibilité d'une connexion plus efficace des radiateurs (par exemple, en diagonale);
- Possibilité de monter des raccords et des coudes supplémentaires sans risque de chute de pression en dessous de la limite minimale.
Ainsi, dans les maisons modernes à deux étages, il est préférable d'utiliser des systèmes de chauffage à circulation forcée. Il est également possible d'installer un by-pass, qui vous aidera à choisir entre circulation forcée ou naturelle afin de sélectionner l'option la plus optimale. Nous faisons un choix vers des systèmes coercitifs, car plus efficaces.
La circulation forcée présente quelques inconvénients - il s'agit de la nécessité d'acheter une pompe de circulation et du niveau de bruit accru associé à son fonctionnement.
Pourquoi les gens choisissent-ils un système à deux circuits ?
Un tel aménagement présente des avantages qu'il convient de mentionner afin de comprendre pourquoi les propriétaires l'optent. Ceux-ci inclus:
- Connexion parallèle des radiateurs. Cela vous permet de maintenir différentes températures dans une même pièce. Cela permet au système d'être utilisé dans des bâtiments à plusieurs étages.De plus, si un ou plusieurs radiateurs tombent en panne, le système continuera à fonctionner. Avec un système à circuit unique, cela n'est pas possible.
- Possibilité de connecter un grand nombre de radiateurs. La température de l'eau entrant dans chaque radiateur sera la même quelle que soit la distance qui la sépare de la chaudière.
- La possibilité d'installer un thermostat. Le système surveille lui-même la température et s'allume automatiquement en cas de besoin. Le propriétaire n'a qu'à régler la plage de température.
- Petites pertes de chaleur. La quasi-totalité de la chaleur produite n'est pas perdue, mais sert à chauffer la pièce. Dans les systèmes à circuit unique, il est gaspillé.
Parmi les inconvénients: beaucoup notent la grande longueur des tuyaux et le coût élevé de l'installation d'un chauffage à double circuit dans une maison privée. En fait, un système à deux circuits n'est pas plus cher que son homologue monotube en raison du petit diamètre des tuyaux eux-mêmes. Et les avantages sont bien plus importants.
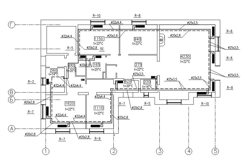
Classification des systèmes de chauffage de l'eau selon le principe de fonctionnement
Selon le principe de fonctionnement, le chauffage a une circulation naturelle et forcée du liquide de refroidissement.
avec circulation naturelle
Utilisé pour chauffer une petite maison. Le liquide de refroidissement se déplace dans les tuyaux en raison de la convection naturelle.
Photo 1. Schéma d'un système de chauffage de l'eau à circulation naturelle. Les tuyaux doivent être installés en légère pente.
Selon les lois de la physique, un liquide chaud monte. L'eau, chauffée dans la chaudière, monte, après quoi elle descend à travers des tuyaux jusqu'au dernier radiateur du système. En refroidissant, l'eau entre dans le tuyau de retour et retourne à la chaudière.
L'utilisation de systèmes fonctionnant à l'aide de la circulation naturelle nécessite la création d'une pente - cela simplifie le mouvement du liquide de refroidissement. La longueur du tuyau horizontal ne peut pas dépasser 30 mètres - la distance entre le radiateur le plus à l'extérieur du système et la chaudière.
De tels systèmes attirent par leur faible coût, aucun équipement supplémentaire n'est requis, ils ne font pratiquement pas de bruit lorsqu'ils fonctionnent. L'inconvénient est que les tuyaux ont besoin d'un grand diamètre et doivent être posés aussi uniformément que possible (il n'y a presque pas de pression de liquide de refroidissement en eux). Il est impossible de chauffer un grand bâtiment.
Circuit à circulation forcée
Le schéma utilisant la pompe est plus compliqué. Ici, en plus des batteries de chauffage, une pompe de circulation est installée qui déplace le liquide de refroidissement à travers le système de chauffage. Il a une pression plus élevée, donc:
- Il est possible de poser des tuyaux avec des coudes.
- Il est plus facile de chauffer de grands bâtiments (même plusieurs étages).
- Convient aux petits tuyaux.
Photo 2. Schéma d'un système de chauffage à circulation forcée. Une pompe est utilisée pour déplacer le liquide de refroidissement à travers les tuyaux.
Souvent, ces systèmes sont fermés, ce qui élimine la pénétration d'air dans les réchauffeurs et le liquide de refroidissement - la présence d'oxygène entraîne la corrosion des métaux. Dans un tel système, des vases d'expansion fermés sont nécessaires, qui sont complétés par des soupapes de sécurité et des dispositifs de purge d'air. Ils chaufferont une maison de toute taille et sont plus fiables en fonctionnement.
Méthodes de montage
Pour une petite maison composée de 2-3 pièces, un système monotube est utilisé. Le liquide de refroidissement se déplace séquentiellement à travers toutes les batteries, atteint le dernier point et retourne par le tuyau de retour à la chaudière. Les batteries se connectent par le bas.L'inconvénient est que les pièces éloignées se réchauffent moins bien, car elles reçoivent un liquide de refroidissement légèrement refroidi.
Les systèmes à deux tuyaux sont plus parfaits - un tuyau est posé sur le radiateur éloigné et des robinets sont fabriqués à partir de celui-ci vers le reste des radiateurs. Le liquide de refroidissement à la sortie des radiateurs pénètre dans le tuyau de retour et se dirige vers la chaudière. Ce schéma chauffe uniformément toutes les pièces et vous permet d'éteindre les radiateurs inutiles, mais le principal inconvénient est la complexité de l'installation.
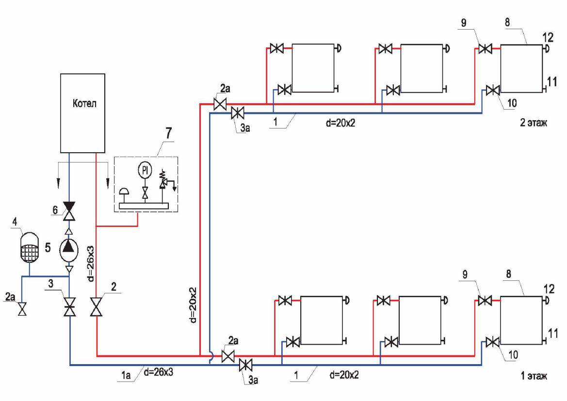
Chauffage du collecteur
Le principal inconvénient d'un système à un et deux tubes est le refroidissement rapide du liquide de refroidissement; le système de raccordement au collecteur ne présente pas cet inconvénient.
Photo 3. Système de chauffage du collecteur d'eau. Une unité de distribution spéciale est utilisée.
L'élément principal et la base du chauffage du collecteur est une unité de distribution spéciale, communément appelée peigne. Raccords de plomberie spéciaux nécessaires à la distribution du liquide de refroidissement par des conduites séparées et des anneaux indépendants, une pompe de circulation, des dispositifs de sécurité et un vase d'expansion.
L'ensemble collecteur pour un système de chauffage à deux tubes se compose de 2 parties :
- Entrée - il est connecté à un appareil de chauffage, où il reçoit et distribue du liquide de refroidissement chaud le long des circuits.
- Sortie - connectée aux tuyaux de retour des circuits, il est nécessaire de collecter le liquide de refroidissement refroidi et de l'alimenter en chaudière.
La principale différence entre le système de collecteur est que toute batterie de la maison est connectée indépendamment, ce qui vous permet de régler la température de chacune ou de l'éteindre. Parfois, un câblage mixte est utilisé : plusieurs circuits sont connectés indépendamment au collecteur, mais à l'intérieur du circuit, les batteries sont connectées en série.
Le liquide de refroidissement fournit de la chaleur aux batteries avec des pertes minimales, l'efficacité de ce système augmente, ce qui vous permet d'utiliser une chaudière de moins de puissance et de dépenser moins de carburant.
Mais le système de chauffage des capteurs n'est pas sans inconvénients, notamment :
- Consommation de tuyaux. Vous devrez dépenser 2 à 3 fois plus de tuyau que lors de la connexion de batteries en série.
- La nécessité d'installer des pompes de circulation. Nécessite une haute pression dans le système.
- Dépendance énergétique. Ne pas utiliser là où il peut y avoir des pannes de courant.
Les pré-requis techniques
Concevoir des systèmes de chauffage modernes est un processus responsable. Dans un tel schéma, la cheminée joue un rôle important. Il est utilisé pour s'assurer que tous les produits de combustion sortent à l'extérieur.
Il y a certaines exigences pour les cheminées :
- Les joints et joints doivent être traités avec des matériaux résistants au feu.
- La cheminée doit être étanche au gaz.
- Sa taille doit correspondre à la puissance du générateur de chaleur.
- La section transversale de la cheminée peut être déterminée conformément aux normes de la liste des actes SNiP 41-01-2003 "Chauffage, ventilation, climatisation", ainsi que SP 7.13130.2013 "Chauffage, ventilation, climatisation".
- La longueur et le diamètre de la cheminée elle-même doivent être entièrement conformes aux recommandations des fabricants de chaudières.
- Il doit être placé verticalement.
- Au-dessus du toit, la cheminée ne peut pas dépasser de plus de 50 centimètres. Si la distance entre le faîtage et le tuyau est inférieure à trois mètres, le tuyau peut être situé au même niveau que le faîte.
- Il doit également être protégé des diverses précipitations atmosphériques à l'aide de buses, par exemple des parapluies ou des déflecteurs.
- La pose d'une cheminée à travers les pièces d'habitation n'est pas autorisée.
Divers matériaux sont utilisés pour la fabrication des cheminées. Ils peuvent être en brique ou en métal, moins souvent - en céramique. Si la brique est utilisée, la conception a lieu avant même la construction de la maison. De nos jours, les cheminées en acier inoxydable sont le plus souvent utilisées, car il s'agit d'un matériau assez durable. C'est pour cette raison qu'un tuyau en céramique est le moins susceptible d'être installé, car il est assez fragile.
Le principe de fonctionnement du CO fermé
Un système de chauffage fermé (sinon - fermé) est un réseau de canalisations et d'appareils de chauffage dans lequel le liquide de refroidissement est complètement isolé de l'atmosphère et se déplace de force - à partir de la pompe de circulation. Tout SSO doit inclure les éléments suivants :
- unité de chauffage - chaudière à gaz, à combustible solide ou électrique;
- groupe de sécurité composé d'un manomètre, d'une soupape de sécurité et d'une soupape d'air ;
- appareils de chauffage - radiateurs ou contours de chauffage par le sol;
- canalisations de raccordement;
- une pompe qui pompe de l'eau ou du liquide non gelant à travers des tuyaux et des batteries ;
- filtre à grosses mailles (collecteur de boue);
- vase d'expansion fermé équipé d'une membrane (caoutchouc "poire");
- robinets d'arrêt, vannes d'équilibrage.
Schéma type d'un réseau de chauffage fermé d'une maison à deux étages
L'algorithme de fonctionnement d'un système de type fermé à circulation forcée ressemble à ceci:
- Après montage et test de pression, le réseau de canalisations est rempli d'eau jusqu'à ce que le manomètre indique une pression minimale de 1 bar.
- Le purgeur d'air automatique du groupe de sécurité évacue l'air du système pendant le remplissage.Il est également engagé dans l'élimination des gaz qui s'accumulent dans les tuyaux pendant le fonctionnement.
- L'étape suivante consiste à allumer la pompe, à démarrer la chaudière et à réchauffer le liquide de refroidissement.
- En raison du chauffage, la pression à l'intérieur du SSS augmente à 1,5–2 bar.
- L'augmentation du volume d'eau chaude est compensée par un vase d'expansion à membrane.
- Si la pression monte au-dessus du point critique (généralement 3 bars), la soupape de sécurité libère l'excès de liquide.
- Une fois tous les 1 à 2 ans, le système doit subir une procédure de vidange et de rinçage.
Le principe de fonctionnement du ZSO d'un immeuble est absolument identique - le mouvement du liquide de refroidissement à travers les tuyaux et les radiateurs est assuré par des pompes de réseau situées dans une chaufferie industrielle. Il existe également des vases d'expansion, la température est contrôlée par un groupe de mélange ou d'élévateur.
Le fonctionnement d'un système de chauffage fermé est expliqué dans la vidéo :
Caractéristiques du processus d'installation
La pompe doit être installée dans la zone où la température est la plus basse, c'est-à-dire sur le "retour" près de la chaudière.
S'il est installé sur la ligne «d'alimentation», les pièces en polymère du compresseur tomberont rapidement en panne en raison d'une surchauffe.
Et si le liquide de refroidissement bout, la circulation s'arrêtera complètement (ce qui aggravera encore la surchauffe), car la pompe est incapable de pomper de la vapeur.
Avant la pompe, un filtre grossier (filtre à boue) est installé, et après - un manomètre. Un autre manomètre est généralement installé après la chaudière dans le cadre du groupe de sécurité.
Comme le vase d'expansion d'un système à circulation forcée est fermé, il n'est pas nécessaire de l'installer au point le plus haut du circuit.Habituellement, il est également connecté au "retour" quelque part près de la chaudière.
En cas de blocage dans le circuit, il est nécessaire de prévoir une dérivation avec une vanne de dérivation, à travers laquelle la pompe pompera le liquide de refroidissement "à travers elle-même", c'est-à-dire dans un petit cercle, en contournant le circuit. Si cela n'est pas fait, une zone de haute pression se formera avant le blocage, ce qui accélérera considérablement l'usure de la pompe.
Afin de ne pas gâcher la dérivation, vous pouvez installer une pompe avec la possibilité de régler en douceur le régime moteur et un régulateur automatique.
5
Plus il y a de tuyaux, mieux c'est !
Les avantages et les inconvénients des systèmes décrits ci-dessus nous amènent à deux conclusions. Premièrement, si vous avez besoin d'un schéma de chauffage optimal pour une maison de trois étages à circulation forcée, vous ne trouverez rien de mieux que le câblage du collecteur. Mais dans les maisons à un étage, l'option à deux tuyaux est considérée comme le schéma optimal. Dans ce cas, il est possible de minimiser la consommation des appareils et de rester avec un réseau d'apport de chaleur sensible à la régulation. Un système monotube coûtera moins cher, mais il n'économisera pas de carburant en régulant la température dans les batteries. Par conséquent, plus il y a de tuyaux, mieux c'est.

Système fermé à deux tubes
Passons maintenant à la version fermée ou ouverte de l'assemblage. Dans le cas à deux tuyaux, un système de chauffage ouvert à circulation forcée ne permet pas de réaliser d'importantes économies de carburant. Un vase d'expansion ouvert dégage de la chaleur dans l'atmosphère et ne permet pas d'accélérer la circulation à des vitesses décentes. Une autre chose est un schéma fermé à deux circuits. Cela demande un peu plus d'efforts lors de l'installation, mais la possibilité d'augmenter la pression et d'accélérer la circulation du liquide de refroidissement à un niveau acceptable offre une chance de réaliser de bonnes économies de carburant.Après tout, si le liquide de refroidissement traverse les tuyaux sous haute pression, il pénètre dans la chaudière alors qu'il est encore chaud.
Panneaux solaires. Principe de fonctionnement du système de chauffage solaire
Le chauffage solaire peut également être inclus dans la liste où toutes les nouvelles technologies pour le chauffage domestique sont présentes.Dans ce cas, non seulement les panneaux photovoltaïques, mais aussi les capteurs solaires peuvent être utilisés pour le chauffage. Les panneaux photovoltaïques sont pratiquement tombés en désuétude, car les batteries de type collecteur ont un indicateur d'efficacité beaucoup plus élevé.
Chauffage les derniers systèmes de chauffage pour une maison privée, qui sont alimentés par l'énergie solaire, comprennent des composants tels qu'un collecteur - un appareil composé d'une série de tubes, ces tubes sont fixés à un réservoir rempli de liquide de refroidissement.
Schéma de chauffage avec capteurs solaires
Selon leurs caractéristiques de conception, les capteurs solaires peuvent être des variétés suivantes : à vide, à plat ou à air. Parfois, un composant tel qu'une pompe peut être inclus dans ces systèmes de chauffage modernes d'une maison de campagne. Il sera conçu pour assurer une circulation obligatoire le long du circuit de refroidissement. Cela contribuera à un transfert de chaleur plus efficace.
Pour que la technologie de chauffage solaire soit la plus efficace, certaines règles doivent être respectées. Premièrement, ces nouvelles technologies de chauffage d'une maison de campagne ne peuvent être utilisées que dans les régions ensoleillées au moins 15 à 20 jours par an. Si cet indicateur est inférieur, de nouveaux types de chauffage supplémentaires d'une maison privée doivent être installés. La seconde règle veut que les collecteurs soient placés le plus haut possible.Vous devez les orienter de manière à ce qu'ils absorbent autant de chaleur solaire que possible.
L'angle le plus optimal du collecteur par rapport à l'horizon est considéré comme étant de 30 à 45 0 .
Pour éviter les pertes de chaleur inutiles, il est nécessaire d'isoler tous les tuyaux qui relient l'échangeur de chaleur aux capteurs solaires.
Ainsi, on voit que le développement de la technologie ne s'arrête pas, et les nouveautés en matière de chauffage domestique sont autant une nécessité que la modernisation des équipements que nous utilisons au quotidien.
Les innovations dans le système de chauffage utilisent quelque chose de complètement nouveau et inhabituel pour nous - l'énergie thermique provenant de différentes sources.
Les types modernes de chauffage d'une maison privée étonnent parfois l'imagination, cependant, à l'époque moderne, chacun de nous peut déjà acheter ou fabriquer un tel chauffage moderne pour une maison de campagne ou une maison privée de ses propres mains. Les nouveaux systèmes de chauffage d'une maison privée sont des systèmes efficaces qui continuent de développer le domaine des équipements de chauffage, et nous espérons que toutes les options les plus efficaces sont encore à venir.
Le système de chauffage d'une maison nouvellement construite est à la base de nombreuses autres activités dans les maisons privées. Après tout, c'est le chauffage qui est la condition dans laquelle il est possible d'effectuer des travaux de finition internes et la construction et l'installation de communications. Ce processus est particulièrement nécessaire lorsque la construction d'une maison est retardée et que toutes les activités liées aux travaux internes tombent pendant la saison froide.
Le schéma de chauffage de la maison avec une chaudière à gaz.
De nombreux propriétaires sont obligés de les différer du fait que les maisons ne disposent pas encore d'un système de chauffage adéquat.Par conséquent, même au stade de la construction d'une maison, et encore mieux avant, il est nécessaire d'examiner attentivement toutes les options liées à l'organisation du système de chauffage dans la maison. En fonction du style dans lequel votre maison sera décorée et de la fréquence à laquelle vous comptez utiliser la structure finie, il est nécessaire de sélectionner les matériaux de construction et, par conséquent, de déterminer quel système de chauffage convient à ces conditions spécifiques. Les systèmes de chauffage traditionnels et modernes pour les maisons privées peuvent être sélectionnés.
Avantages et inconvénients
En raison de l'utilisation d'une pompe, un système de chauffage à circulation forcée présente une gamme assez large d'avantages:
- La possibilité d'utiliser des tuyaux de n'importe quel diamètre - la qualité du système n'est pas liée au diamètre des tuyaux, car la pompe garantit une vitesse constante de déplacement du liquide de refroidissement et le même chauffage de toutes les zones du système, quel que soit le taille des produits utilisés. Cela permet d'assurer un fonctionnement ininterrompu du système même avec des tuyaux à faible coût de diamètre réduit.
- Installation simplifiée - il n'est pas nécessaire de maintenir strictement un certain angle de pose des tuyaux, comme c'est le cas avec un système à circulation naturelle, ce qui permet de faire soi-même l'installation des équipements.
- Contrôle indépendant de la température - il est possible de régler une température spécifique dans chaque pièce séparée d'une maison à un étage, quelle que soit la température de la pièce voisine.
- Pas de fluctuations de température - grâce à la pompe, il n'y a pas de fluctuations de température importantes dans le système, ce qui augmente considérablement la durée de vie de tous les appareils et composants.
Tuyaux de chauffage dans une maison privée
Parmi les principaux inconvénients :
Dépendance du chauffage à l'alimentation électrique - en raison de l'utilisation d'une pompe de circulation, le système de chauffage nécessite un raccordement obligatoire au secteur.
Conseils. Vous pouvez protéger la pompe contre les coupures de courant d'urgence en utilisant une alimentation sans interruption.
Niveau sonore inconfortable - le fonctionnement de l'unité de pompage s'accompagne d'un bruit peu agréable.
Sans aucun doute, le système de chauffage à circulation forcée est supérieur à bien des égards à l'option avec mouvement naturel du liquide de refroidissement. C'est pourquoi il est le plus souvent choisi pour les maisons à un étage
Mais pour que ce choix n'apporte que des résultats positifs, il est important d'organiser correctement le chauffage, étudiez donc attentivement les schémas disponibles pour l'appareil système - ils sont tous devant vous
Caractéristiques de construction

Pour organiser le mouvement du fluide par gravité, procédez comme suit :
La chaudière de chauffage est située le plus bas possible - au rez-de-chaussée ou au sous-sol. Le collecteur de distribution est surélevé - sous le plafond ou dans le grenier du bâtiment.
Ainsi, l'eau reçoit la hauteur maximale autorisée pour ce bâtiment. Ce qui crée la charge gravitationnelle maximale possible du liquide de refroidissement dans les tuyaux.
Montez les appareils avec de larges espaces internes. Tuyaux de diamètre accru - pas moins de 40 mm de section transversale. Radiateurs à large passage interne - batteries fonte traditionnelles. Si nécessaire installation de dispositifs de verrouillage - mettre des vannes à bille qui, en position ouverte, rétrécissent au minimum la lumière interne.
- La pose des tuyaux est effectuée avec un nombre minimum de tours, d'angles, sans bobines et sans spirales.
- Les lignes d'alimentation et de retour sont posées avec une pente.
Attention! Les principes énumérés ci-dessus vous permettent d'organiser la pression naturelle de l'eau et son mouvement à la vitesse requise. Listons les appareils qui assemblent un circuit de chauffage gravitaire:. Nous listons les appareils à partir desquels un circuit de chauffage gravitaire est assemblé:
Nous listons les appareils à partir desquels un circuit de chauffage gravitaire est assemblé:
- Chaudière de chauffage - peut fonctionner sur différents types de combustibles - gaz, bois, charbon, électricité.
- Les radiateurs - appareils de chauffage direct - diffusent de la chaleur dans l'espace de la pièce.
- Tuyau principal d'alimentation et de retour.
- Le collecteur de distribution est situé au-dessus de la chaudière. L'eau chauffée dans la chaudière y pénètre, puis elle se déplace (distribuée) dans le tuyau principal.
- Vase d'expansion - pour le stockage temporaire du liquide de refroidissement, qui se dilate et augmente de volume lorsqu'il est chauffé. Il est situé au point le plus élevé du système, est effectué à l'air libre.
- Vannes à bille pivotantes - à l'entrée et à la sortie des radiateurs de chauffage.
- Un robinet pour évacuer l'eau (également un robinet à tournant sphérique) se trouve au point le plus bas du système.
Examinons maintenant de plus près comment ils fournissent la pression maximale possible.
Pente du tuyau
Pour la circulation naturelle du liquide de refroidissement, un certain nombre de mesures sont prises pour faciliter son mouvement à l'intérieur des radiateurs et des tuyaux. L'une de ces mesures consiste à poser les conduites d'alimentation et de retour en légère pente. La taille de la pente est choisie - 2-3 ° par mètre linéaire.
Les degrés de pente indiqués ne violent pas visuellement la géométrie de la pose des tuyaux, mais assurent le mouvement de l'eau par gravité. Ils vous permettent également de vidanger le liquide du système si vous devez remplacer la batterie, réparer.
pression de gravité

La pression gravitationnelle résulte de la différence de pression de l'eau dans différents segments du pipeline.
Dans un système avec mouvement naturel du liquide de refroidissement, la pression gravitationnelle est créée en chauffant l'eau et en l'élevant à la hauteur du grenier ou du deuxième étage de la maison. Cela garantit un fonctionnement par gravité et chauffage.
La valeur de la pression gravitationnelle est déterminée par la hauteur de la montée de l'eau et la différence de température.
Attention! Plus le chauffage du liquide de refroidissement dans la chaudière est fort, plus la différence de pression sera grande et plus l'eau se déplacera rapidement dans les tuyaux.
Obstacles possibles
Pour une circulation naturelle efficace, ils essaient de réduire le nombre de facteurs qui entravent la pression gravitationnelle.

Le schéma est organisé avec un nombre minimum de virages et de virages. Au lieu de coudes de tuyau à angle droit, des virages en douceur sont effectués dans la mesure du possible. Pour que l'eau ne rencontre pas d'obstacles, le rétrécissement des espaces et des vannes est supprimé.
Les sections internes des radiateurs doivent être suffisamment grandes. La conséquence de larges espaces est une augmentation du volume du liquide de refroidissement, ainsi que l'inertie de l'opération de chauffage.
Type de gravité
Un tel schéma de chauffage pour une maison à un étage est l'option classique la plus simple. Il présente à la fois des avantages et des inconvénients. Le schéma de chauffage par gravité d'une maison à un étage est basé sur la disposition de la maison. Le cercle de circulation doit envelopper toute la structure. Les inconvénients de ce système comprennent des tuyaux massifs. Sans eux, la circulation du liquide de refroidissement sera inefficace. Dans ce cas, vous ne devez pas utiliser de radiateurs de chauffage ni remplacer les tuyaux par des tuyaux plus fins. Cela conduira à la diminution maximale du débit et à l'arrêt de la circulation de l'eau.Ainsi, la température dans le logement diminuera considérablement. Pour cette raison, le schéma de chauffage par gravité le plus simple pour une maison à un étage comprend une chaudière et un drain qui enchevêtrent toute la maison. Vous pouvez également augmenter la surface du radiateur. Pour ce faire, non pas un, mais deux gros robinets sont lancés. Beaucoup sont intéressés par la question de savoir comment organiser vous-même la connexion. Pour ce faire, vous aurez besoin d'instructions pour le câblage du système d'eau. Grâce à elle, tous les travaux peuvent être effectués par une seule personne, même si elle a peu d'expérience en construction. Dans le même temps, le système doit être tolérant aux pannes et bon marché. 
La pose de canalisations
Le schéma du système de chauffage d'une maison à un étage, en plus des équipements de chauffage et des radiateurs de chauffage, prévoit la présence obligatoire de tuyaux qui servent à transporter le liquide de refroidissement de la chaudière aux panneaux de chauffage.
Il existe trois schémas communs au total, dont chacun sera décrit en détail ci-dessous.
Méthode 1. Avec un tuyau
La méthode d'installation la plus simple, la plus efficace et la plus couramment utilisée.
Le schéma d'un système de chauffage monotube pour une maison à un étage est conçu comme suit:
- Un tuyau principal d'un diamètre d'au moins 32 mm est installé le long du périmètre des murs de la maison. Il doit être monté à un angle de sorte que le liquide de refroidissement, sous l'action de la gravité, retourne indépendamment à la chaudière pour un chauffage ultérieur. (Voir aussi Tuyauterie : fonctions.)

Sur le photo - schéma monotube systèmes de chauffage pour une petite maison
- Des panneaux chauffants sont fixés à l'anneau résultant à l'aide de tuyaux d'un diamètre inférieur (20 mm). Il est conseillé de les connecter via des vannes d'arrêt avec thermostats.Ainsi, vous avez la possibilité de régler la température de chaque radiateur de chauffage séparément.
Dans la partie supérieure du panneau de chauffage, il est nécessaire de prévoir l'installation d'une vanne d'air, qui empêchera «l'aération» du système de chauffage, ce qui affecte négativement l'efficacité du système de chauffage.

Radiateur de chauffage relié au tuyau principal
Un tel système de chauffage domestique présente de nombreux aspects positifs:
- son installation ne pose pas de difficultés même aux artisans inexpérimentés;
- pour installer un tel système, vous devez acheter le nombre minimum possible de tuyaux et d'autres pièces;
- toute l'énergie thermique n'est consommée qu'à l'intérieur, ses pertes improductives sont exclues;
- si vous utilisez un système de chauffage à circulation forcée - une maison à un étage ou un appartement en ville - une telle solution permettra au système de fonctionner même en cas de courte panne de courant.
Méthode 2. Avec deux tuyaux
Dans ce cas, comme son nom l'indique, un tuyau est utilisé pour fournir de l'eau chaude et un autre tuyau est utilisé pour le transporter jusqu'à la chaudière.
Le schéma d'un système de chauffage à deux tuyaux d'une maison à un étage est monté dans l'ordre suivant:
- deux tuyaux parallèles sont tendus dans toute la maison - ils peuvent être installés de manière ouverte, cachés sous le revêtement de sol, murés dans un mur ou décorés d'une boîte;
- les radiateurs de chauffage et autres équipements similaires, pour ainsi dire, «s'écrasent» dans les canalisations, créant des cavaliers.

Schéma d'un système de chauffage à deux tuyaux pour une petite maison
L'eau chaude chauffera ces pièces plus efficacement si les panneaux de chauffage sont plus proches de la chaudière.Pour équilibrer le circuit, des vannes d'arrêt sont souvent utilisées, contrôlées manuellement ou à l'aide de contrôleurs de température.
Les inconvénients d'une telle solution sont évidents :
- consommation accrue de pièces nécessaires à l'installation de chauffage;
- le risque de défaillance de segments individuels du réseau en raison du gel du liquide de refroidissement (cela se produit souvent si les vannes sont complètement ouvertes, limitant l'accès de l'eau aux radiateurs de chauffage les plus proches de la chaudière).
Méthode 3. Faisceau
Il est très efficace en termes de contrôle de la température dans les pièces individuelles, mais le plus coûteux et le plus difficile à installer. Un tel système est plus souvent utilisé pour fournir de la chaleur à de grands bâtiments résidentiels, où une circulation forcée de l'eau dans le pipeline est assurée.
Les instructions d'installation sont les suivantes :
- dans la chaufferie ou tout autre endroit approprié, deux collecteurs sont installés, reliés à des tuyaux alimentant et évacuant le liquide de refroidissement;
- à partir de ces collecteurs, il y a une paire de tuyaux vers chaque radiateur de chauffage de la maison.

Schéma de tuyauterie radiale
Les avantages de ce système ont déjà été évoqués, et quant aux inconvénients, ils sont évidents :
- pour l'installation, il est nécessaire d'acheter un grand nombre de pièces et d'autres équipements;
- il est nécessaire de décider où cacher les pipelines entrants et sortants.












































