- Schémas et méthodes de connexion
- Pose en bas
- Montage diagonal et latéral
- Comment calculer la puissance ?
- Options de solutions techniques
- Sèche-serviettes sur un circuit de chauffage séparé
- Raccordement de la structure au circuit de chauffage principal
- Raccordement eau chaude
- Méthodes et subtilités de montage des porte-serviettes chauffants
- Supports amovibles et télescopiques
- Supports monoblocs
- Types de raccords
- Processus d'installation de l'appareil à eau
- Installation d'un sèche-serviette électrique
- Ordre de connexion
- Schéma 1
- Options autorisées pour l'exécution du schéma n ° 1
- Schéma de raccordement dans un immeuble à appartements
- Technologie de connexion sèche-serviettes
- Matériaux et outils
- Étapes d'installation d'un sèche-serviettes à eau
- Branchement d'un sèche-serviette électrique
Schémas et méthodes de connexion
L'installation d'un sèche-serviettes à eau peut être réalisée en trois versions - connexion inférieure, diagonale et insert latéral. Chaque méthode a ses propres caractéristiques et avantages de connexion.
Pose en bas
La connexion du sèche-serviettes par le bas est principalement utilisée dans l'installation de structures complexes et de grande taille. Pour le fonctionnement efficace de l'appareil, une pression d'eau suffisamment importante dans le système est nécessaire.
Les avantages de la connexion inférieure incluent :
- fonctionne quelle que soit la direction de l'alimentation en eau dans le pipeline;
- vous permet de masquer les tuyaux additionnés sans détruire la finition du mur.
Connexion inférieure du sèche-serviettes
Le schéma de connexion inférieur nécessite l'installation d'une grue Mayevsky pour purger l'air du système.
Il est possible de réaliser une installation de haute qualité d'un sèche-serviettes de cette manière, sous réserve des conditions suivantes :
- le sèche-serviettes doit être situé au-dessus de la sortie inférieure;
- la pente recommandée des conduites de sortie et d'entrée par mètre n'est pas inférieure à 3 millimètres;
- le point de raccordement à l'appareil doit être au-dessus de la sortie supérieure de la colonne montante avec un by-pass rétréci ou décalé ;
- pour assurer une bonne circulation, il est nécessaire d'installer un diamètre de tuyau supérieur à 32 millimètres, une section plus petite est autorisée si le séchoir est proche de la colonne montante.
Il ne doit pas y avoir de protubérances ni d'évidements sur le tronçon horizontal du pipeline. Toutes les irrégularités sont convoquées négativement dans le processus de circulation du liquide de refroidissement.
Montage diagonal et latéral
Ces options de connexion sont plus efficaces. Cela est dû au fait que lorsque le liquide de refroidissement pénètre dans la partie supérieure de I et que l'eau refroidie quitte le bas du sèche-serviettes, une circulation complète du liquide dans le système est créée.
L'avantage de la connexion latérale et diagonale du sèche-serviettes est :
- assurer un bon processus de travail à n'importe quelle vitesse de circulation de l'eau dans le pipeline;
- n'importe quelle direction du liquide de refroidissement dans la colonne montante est autorisée ;
- après avoir coupé l'eau, il n'est pas nécessaire de purger l'air du sèche-linge;
- possibilité d'installation à distance de la colonne montante.
Pour le fonctionnement qualitatif de tels régimes, il est nécessaire de prendre en compte :
- le point de raccordement inférieur au sèche-serviettes doit être plus haut que la sortie de la canalisation du liquide de refroidissement refroidi.Et le point le plus haut de l'appareil se situe sous la sortie d'alimentation en eau;
- la pente minimale des tuyaux reliés au séchoir est de 3 millimètres par mètre d'alimentation ;
- l'utilisation de tuyaux d'une section inférieure à 32 mm est autorisée avec une petite distance de l'appareil à la colonne montante;
- sur la canalisation d'alimentation, tout coude est exclu.
Connexion diagonale et latérale du sèche-serviettes
Pour améliorer la circulation du débit d'eau dans le système pour tout schéma de raccordement, il est recommandé d'isoler les tuyaux d'alimentation.
Comment calculer la puissance ?
Le sèche-serviettes est très coûteux en termes de consommation d'énergie, mais en même temps, il présente un coefficient de transfert de chaleur élevé. Selon la taille et les matériaux, quelle surface peut être chauffée par un sèche-serviettes électrique. Comment choisir le bon modèle ?
Pour calculer la quantité d'énergie qu'il consomme par mois, vous devez effectuer des calculs simples : 100 W d'énergie sont nécessaires pour 1 m2. Cela signifie que la puissance d'un sèche-serviettes dans une salle de bain de 4 m2 devrait être d'environ 400 à 560 watts.
Vous pouvez connaître la consommation d'électricité de l'appareil à l'aide de la formule :
- ErI = Pnom x Ks *t, où : Рnom est la puissance de l'appareil ;
- Кс - coefficient de demande, pour un sèche-serviettes électrique est de 0,4;
- T est le temps de fonctionnement de l'appareil.
La capacité d'un sèche-serviette de bain se trouve dans sa fiche technique. Les heures de travail par jour sont déterminées individuellement.
Après avoir déterminé les indicateurs de la journée, vous pouvez calculer la consommation d'électricité du sèche-serviettes électrique par mois ou par an, en multipliant simplement le nombre obtenu par le nombre de jours.
Comme son nom l'indique, la principale propriété de consommation qui distingue un sèche-serviettes électrique rotatif est la possibilité de faire tourner la bobine.Le sèche-linge peut pivoter de 180 degrés par rapport au mur. De plus, dans différents modèles, cette fonction est mise en œuvre de différentes manières: quelque part, tout le sèche-serviettes chauffant tourne et quelque part, seules ses parties individuelles.
Les modifications pivotantes sont faciles à utiliser et indispensables dans les espaces confinés, par exemple s'il y a une niche derrière le sèche-linge, que cet appareil ferme. De plus, si la structure rotative a la possibilité d'une rotation indépendante des sections de l'hôtel, il est plus pratique de sécher plusieurs choses à la fois.
Les modèles modernes sont généralement divisés en trois groupes :
- l'eau;
- électrique;
- combiné.
Le principe de fonctionnement des sèche-serviettes électriques est basé sur le chauffage d'un élément chauffant, qui transfère de l'énergie à un caloporteur, qui chauffe la surface de l'appareil. Les modèles électriques sont remplis d'huile minérale ou d'eau sans oxygène spécialement préparée (la rouille du métal ne se développe pas sans oxygène). Cette dernière option est moins courante.
Les appareils combinés combinent deux circuits: pour l'alimentation en eau chaude et pour l'électricité. De tels dispositifs ne sont pas très populaires en raison de leur coût élevé.
On pense traditionnellement qu'une puissance plus élevée d'un appareil de chauffage apporte plus de confort. Ce n'est pas vrai. Les salles de bains sont généralement de petite taille et si vous choisissez un sèche-serviettes trop puissant, vous risquez de rencontrer le problème de températures ambiantes excessivement élevées, ce qui, à son tour, affectera le montant des factures d'électricité.
La puissance requise doit être calculée sur la base des indicateurs recommandés par SNiP 2.04.01.-85
Dans ce cas, faites toujours attention aux conditions de fonctionnement spécifiques et à la fonction du sèche-serviettes.
Lors de l'achat d'un appareil, assurez-vous de prendre en compte la superficie de la pièce. Un modèle trop puissant causera beaucoup de soucis en période chaude. Si la puissance n'est pas suffisante, un champignon peut se développer dans la salle de bain.Il existe des formules simples pour calculer la puissance des appareils électroménagers. Ainsi, pour maintenir la température à 18 degrés pendant 1 m². espace de vie nécessite 100 watts d'énergie thermique. Cependant, la salle de bain est une pièce très humide. De plus, après le bain, une personne gèle beaucoup plus rapidement, il est donc conseillé de maintenir une température plus élevée - 25 degrés. Dans ce cas, 140 W / 1 m².
Nous vous proposons de vous familiariser avec le dispositif d'un réservoir de chasse d'eau avec une alimentation en eau inférieure
Si l'on suppose que l'appareil non seulement sèche les serviettes, mais chauffe également la salle de bain, le calcul de puissance ressemblera à ceci: la surface de la pièce doit être multipliée par 140. La valeur résultante deviendra décisive lors du choix d'un modèle spécifique.
Par exemple, pour une petite salle de bain de 3,4 m². un appareil d'une puissance d'environ 500 W (3,4x140 \u003d 476) suffit.
Habituellement, plus les tubes sont horizontaux, plus l'appareil est puissant, mais ce n'est pas toujours le cas. Avant le choix final, vous devez vous familiariser avec la documentation technique de chaque modèle qui vous plaît et vous arrêter à celui qui convient le mieux en termes de paramètres.
Options de solutions techniques
L'installation d'un sèche-serviettes dans une maison privée peut être réalisée de plusieurs manières - raccordement au système de chauffage principal, installation sur un circuit séparé ou raccordement à l'alimentation en eau chaude. Chaque option a ses propres avantages et inconvénients.
Sèche-serviettes sur un circuit de chauffage séparé
Cette option d'installation convient à tout modèle de sèche-serviettes à eau. L'appareil est connecté sur un circuit fermé séparé avec le groupe de pompage.
L'avantage d'utiliser cette méthode d'installation est :
- assurer le chauffage de la salle de bain sans utiliser de radiateurs;
- utilisation pratique quelle que soit la saison;
- la possibilité d'installer n'importe quelle conception d'un sèche-serviettes à eau, ce qui vous permet de mettre en œuvre toutes les solutions de conception.
Sèche-serviettes sur un circuit de chauffage séparé
Les inconvénients du raccordement d'un appareil de séchage de serviettes à une branche de chauffage séparée incluent souvent la complexité des travaux d'installation. Pour installer l'appareil, un équipement supplémentaire est nécessaire, qui comprend une pompe, une sortie de collecteur séparée et une automatisation.
Raccordement de la structure au circuit de chauffage principal
Cette méthode de connexion du sèche-serviettes au système de chauffage est moins coûteuse. Mais pour une utilisation pratique de l'appareil, une installation supplémentaire d'un limiteur de température est recommandée. Cela est dû au fort échauffement du liquide de refroidissement dans le circuit d'alimentation, qui provoque souvent une gêne lorsque l'on touche le sèche-linge avec les mains.
L'utilisation de l'option de raccordement d'un sèche-serviettes au circuit de chauffage principal a ses avantages :
- la possibilité d'utiliser l'appareil comme chauffage principal de la salle de bain;
- faibles coûts d'installation ;
- application pour tous les modèles avec caloporteur liquide.
L'inconvénient de cette installation est considéré comme l'arrêt de l'appareil pendant la période estivale avec le système de chauffage.
Raccordement eau chaude
Ce type d'installation consiste à raccorder un radiateur sèche-serviettes à une alimentation centrale en eau chaude. L'option est assez économique, car elle ne nécessite pas l'installation d'appareils supplémentaires et est utilisée avec succès dans les appartements.
Les avantages de ce type de connexion incluent :
- utilisation ininterrompue avec alimentation en eau chaude toute l'année ;
- facilité de travail d'installation, pas de frais supplémentaires.
Le raccordement d'un radiateur sèche-serviettes à l'eau chaude a ses inconvénients :
- pour l'installation, il est permis d'utiliser uniquement certains modèles de séchoirs en acier inoxydable de forme standard;
- possibilité limitée d'utilisation comme chauffage principal de la salle de bain.
La puissance des modèles de sèche-linge conçus pour être raccordés à l'eau chaude ne dépasse pas 200 watts. L'installation dans une pièce sans radiateurs ni chauffage au sol n'est donc pas pratique.
Méthodes et subtilités de montage des porte-serviettes chauffants
De la qualité de l'installation de la bobine, sa fonctionnalité et sa durée de vie dépendent. Le montage des sèche-serviettes au mur, si l'appareil est de type électrique, s'effectue de deux manières :
- caché - les fils sont cachés dans le mur, sous les matériaux de finition;
- ouvert - l'appareil est branché sur une prise de courant.

Les normes SNiP établissent des règles pour le montage d'appareils électriques dans des pièces très humides. Le serpentin doit être suspendu à une distance d'au moins 60 cm des sources d'eau, que ce soit une baignoire, une douche, un lavabo. La distance entre le sol et l'appareil doit être d'au moins 1,2 mètre.
Points à considérer lors de l'installation :
- Le serpentin est une boucle de compensation, qu'il est déconseillé de raccorder à un système de chauffage commun, alimentation en eau, afin de ne pas perturber leur bon fonctionnement.
- Le chauffage n'est allumé que pendant la saison froide, il est donc recommandé de connecter le sèche-serviettes au système d'alimentation en eau chaude, ce qui garantira le fonctionnement de l'appareil toute l'année.
- Les éléments de différents métaux ne doivent pas être utilisés dans la même conception, cela entraînerait de la corrosion. Des joints en téflon installés aux points de contact entre les pièces les délimiteront et contribueront à éviter des conséquences désagréables.
- Pour les appartements, il est recommandé d'acheter des produits de fabricants nationaux, fabriqués conformément à GOST, qui conviendront certainement aux buses.
Il faudra démonter le sèche-serviettes de style soviétique avec une partie de la contremarche.
Les structures d'eau ont plusieurs méthodes de connexion:
- diagonale;
- supérieur inférieur;
- latéral.
Supports amovibles et télescopiques

Pour l'installation de porte-serviettes chauffants, ce sont les fixations les plus appropriées qui répondent aux exigences de GOST. Le support est simple, le support est télescopique en une seule pièce et de nombreux autres peuvent être achetés dans les quincailleries. L'apparence du produit est un anneau sur une jambe, qui peut être divisé. La première partie de la structure est vissée sur la sortie de la bobine - aucune autre action n'est requise avec cet élément.
La jambe est fixée au mur au moyen d'ancres, de vis, de vis autotaraudeuses. Ensuite, il vous suffit de connecter les deux parties. Les supports sont en laiton, et pour améliorer les performances, protéger contre les facteurs externes, augmenter leur attractivité, ils sont nickelés et chromés.

Les supports télescopiques fixent non seulement le sèche-serviettes au mur, mais vous permettent également de régler l'écart entre eux. Bien possibilité de simplifier l'installation des appareils - Fixations télescopiques amovibles.
Supports monoblocs
Ces attaches, comme leurs homologues détachables, sont constituées d'un anneau et d'une patte. La différence est que les deux pièces sont soudées ensemble, ce qui cause des inconvénients lors du montage de structures lourdes. Les supports non détachables sont rarement utilisés.
Types de raccords
Ferrures - éléments de support en acier, laiton chromé. Cela fait partie du système de canalisations, qui est monté sur les entrées et les sorties d'eau chaude. Ils sont sélectionnés en fonction de la configuration de l'appareil à installer, du lieu de son installation, des exigences des normes concernant l'emplacement des objets.

De par leur conception, les raccords sont :
- Les coudes sont utilisés pour changer la direction des sorties d'eau chaude et froide.
- Les traverses sont fixées aux tuyaux principaux, offrant deux sorties supplémentaires pour la fixation des appareils.
- Les tés sont installés sur le tuyau principal, créant une sortie supplémentaire sur celui-ci. Ils sont utilisés lors de l'installation de la bobine, si elle n'y était pas auparavant.
- Les angles vous permettent de faire pivoter la sortie, l'entrée de 90 degrés.
- Les collecteurs créent une branche supplémentaire.
- Les raccords sont utilisés pour connecter deux tuyaux de même diamètre.
- Les bouchons ferment hermétiquement les tuyaux.
- Le raccord est destiné à une fixation de flexibles.
- Les stubs sont utilisés pour brancher les fils inutiles.
- Les réflecteurs protègent les connexions de l'humidité, jouent un rôle décoratif.
- Les prises ferment les prises inutilisées.
- Les adaptateurs sont conçus pour connecter deux tuyaux de diamètres différents.
- Les excentriques compensent la longueur de canalisation manquante.
- "American" - une connexion détachable sous la forme d'un écrou-raccord.
Processus d'installation de l'appareil à eau
Tout d'abord, il doit être correctement assemblé
De plus, il est important de suivre les règles de base pour l'installation d'un sèche-serviettes. Des vannes d'arrêt avec raccords amovibles sont installées sur la tuyauterie
À l'avenir, ils assureront le remplacement en douceur de l'ancien modèle par un modèle plus moderne.

La structure assemblée peut être fixée n'importe où dans la salle de bain. L'essentiel dans cette affaire est de lui fournir des tuyaux d'alimentation en eau. La procédure de connexion comprend :
Installation de dérivation à l'aide de tuyaux et de tés spéciaux. Ici, vous aurez besoin de trois vannes supplémentaires. Deux d'entre eux sont installés en haut et en bas du sèche-serviettes et un sur la canalisation elle-même pour arrêter l'alimentation en eau.

À l'aide de supports spéciaux, la structure est fixée au mur. Ensuite, les vannes et la dérivation sont connectées à l'aide de bagues spéciales.
La dernière étape consistera à remplir l'appareil avec de l'eau provenant du système central d'approvisionnement en eau. Pour ce faire, ouvrez les trois robinets.
Installation d'un sèche-serviette électrique
L'installation d'équipements électriques dans un environnement humide nécessite de prendre des mesures de protection pour une utilisation en toute sécurité. Il s'agit d'un RCD séparé, d'une mise à la terre et la hauteur d'installation de la prise du sèche-serviettes est d'au moins 70 cm du sol. Le raccordement se fait en installant ce dernier à l'intérieur ou à l'extérieur de la salle de bain.
La prise électrique doit être protégée par un boîtier étanche et un couvercle avec un joint en caoutchouc.Il est permis de placer l'appareil sur un mur avec une charge minimale d'humidité, mais pas en bordure de la rue. Cela est dû à la différence de températures, à cause de laquelle la possibilité de condensation dans le siège est élevée.
L'option la plus fiable est la pose de communications viabilisées dans le corps du mur.

Câblage caché avec prise
Pour ce faire, formez des stroboscopes et des évidements pour la sortie, à travers des trous pour faire sortir cette dernière. Remplir les vides avec du plâtre et des matériaux de finition protégera le câblage du contact avec l'humidité. Un montage extérieur avec un haut degré d'isolation est également acceptable. Le câble pour l'installation d'un sèche-serviettes est placé à une hauteur de plus de 10 cm du sol, de sorte qu'il entraîne plus tard un court-circuit.
Ordre de connexion
Le câble, la machine et la prise sont sélectionnés avec une faible marge de puissance par rapport à l'équipement connecté. Ainsi, par exemple, 1,8 kW est divisé par 220 V, ils obtiennent 8,2 A. Le câble doit être avec un noyau en cuivre d'une section d'au moins 1 mm². En ce qui concerne les meubles, ils supportent 750 mm, un angle - 300 mm, un sol - 200 mm.
Des porte-serviettes chauffants suspendus sont appliqués sur la zone autorisée pour l'installation, la position des supports est marquée. Des trous de montage sont percés et l'équipement est fixé au mur. Les modèles de sol fixes sont fixés à la base de la même manière. L'étape suivante consiste à se connecter à l'alimentation. La prise doit être à une distance de 25-35 cm du côté de l'appareil.

L'emplacement correct de la sortie de la sécheuse dans la salle de bain
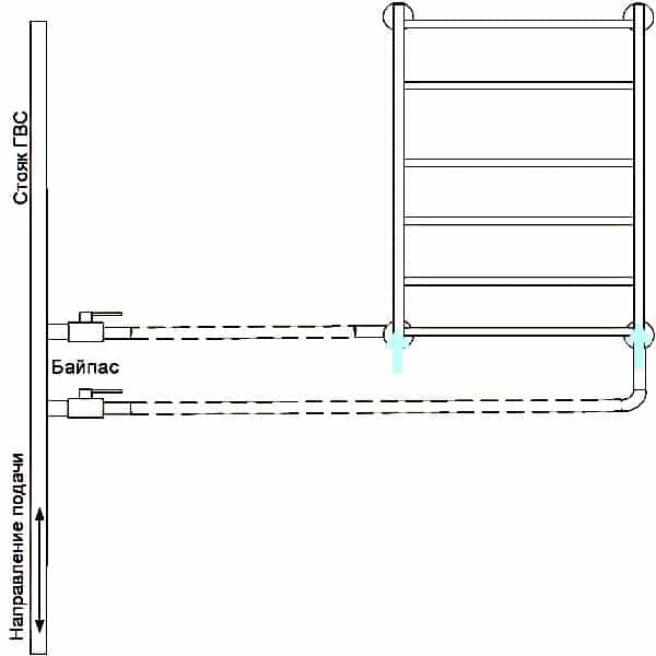
Schéma 1
(Connexion latérale ou diagonale, dérivation non biaisée sans restriction)
Ce schéma fournit l'alimentation en liquide de refroidissement à la partie supérieure et la libération du liquide de refroidissement refroidi vers la colonne montante par le bas.La circulation à travers le porte-serviettes chauffant n'est assurée que par la pression gravitationnelle de l'eau qui s'y refroidit.
Raccordement côté échelle, fonctionnant en circulation naturelle, sans étranglement et sans déplacement du by-pass
Liaison diagonale de l'échelle, travaillant sur la circulation naturelle, sans étranglement et sans déplacement du contournement
L'option diagonale pour connecter un sèche-serviettes n'a aucun avantage par rapport à l'option latérale.
Raccordement latéral du sèche-serviettes en U/M, fonctionnant en circulation naturelle, sans étranglement et sans dérivation déportée
Ce schéma de câblage est universel :
- Fonctionne avec n'importe quel sens d'alimentation dans la colonne montante.
- Ne dépend pas du débit de circulation dans la colonne montante.
- Il n'est pas nécessaire de purger l'air du sèche-serviettes après avoir coupé l'eau.
- Distance de la colonne montante - jusqu'à 4-5 mètres.
Conditions pour que le régime fonctionne :
- La sortie inférieure de la colonne montante doit être en dessous du bas du sèche-serviettes ou à égalité avec lui, et la sortie supérieure de la colonne montante doit être au-dessus du haut de l'appareil ou à égalité avec lui.
- Avec une alimentation plus faible, il ne devrait absolument pas y avoir de rétrécissement entre les tarauds. Cela interférera avec le fonctionnement du sèche-serviettes jusqu'à l'inopérabilité complète ! Au niveau de l'alimentation supérieure, il est permis de rétrécir la dérivation d'un pas du diamètre de la colonne montante (cette option sera discutée en détail un peu plus tard), mais cela n'est pas nécessaire pour le fonctionnement de l'appareil.
La connexion selon ce schéma avec une alimentation par le bas dans la colonne montante est très critique pour la qualité de l'installation. Tout rétrécissement entre les robinets, qui se produit par exemple lorsque la technologie de soudage du polypropylène est violée, nuit à son travail. Il s'agit d'une surchauffe de la buse, dépassant le temps de chauffage du tuyau et du raccord, poussant le tuyau dans le raccord avec une force excessive sans contrôle de profondeur.Des constrictions peuvent survenir lorsqu'il y a coutures soudées sur la contremarche entre branches ou en présence de déplacements de la colonne montante par rapport à son axe entre les branches.
Pourquoi le rétrécissement/déplacement entre les robinets à l'alimentation inférieure interfère-t-il avec le fonctionnement du sèche-serviettes ? Parce qu'il crée une perte de charge supplémentaire due au mouvement de l'eau dans la colonne montante (à la sortie inférieure - plus qu'en haut), ce qui contrecarre la circulation naturelle, qui repousse l'eau dans la colonne montante par la sortie inférieure.
Remarque importante : étant donné que la circulation naturelle est assurée par le refroidissement de l'eau dans l'appareil, avec ce raccordement, il y aura toujours une différence de température entre le haut et le bas du sèche-serviettes. Cependant, dans un appareil bien monté, il n'est que de 3-4 ° C, ce qui ne peut pas être ressenti à la main - au-dessus d'un certain seuil, la température est perçue comme «tout aussi chaude». Si la différence est plus grande, soit une erreur a été commise lors de l'installation, soit la température a été surestimée. systèmes d'eau chaude
Essayez de mesurer la température de l'eau chaude dans le système, ainsi que la température du haut et du bas du sèche-serviettes
Si la différence est plus grande, soit une erreur d'installation a été commise, soit la température du système d'alimentation en eau chaude a été surestimée. Essayez de mesurer la température de l'eau chaude dans le système, ainsi que la température du haut et du bas du sèche-serviettes.
Options autorisées pour l'exécution du schéma n ° 1
Connexion latérale (exemple correct)
L'ensemble du sèche-serviettes chauffant est placé verticalement strictement entre les sorties, les pentes correctes des tuyaux d'alimentation sont respectées et aucune condition de travail n'est violée.
Connexion latérale (exemple d'une conception conditionnellement autorisée)
Le porte-serviettes chauffant est situé au-dessus de la sortie supérieure. Vous devrez purger l'air du coin supérieur gauche de l'instrument. Un radiateur ordinaire ne permettra pas que cela se fasse sans des astuces très gênantes (par exemple, desserrer l'écrou-raccord de la sortie d'eau supérieure), l'air se tiendra au-dessus de la ligne pointillée et l'appareil ne fonctionnera pas.
Pour le fonctionnement complet de cette option, il est obligatoire d'installer une vanne d'air strictement dans le coin supérieur pour l'alimentation en eau. Seuls quelques modèles de sèche-serviettes vous permettent de le faire, notamment la marque Sunerzha de la série "+" ("Bohemia +", "Galant +", etc.).
La vanne d'air dans le coin opposé au point de raccordement d'eau ne peut pas purger tout l'air de l'appareil !
Schéma de raccordement dans un immeuble à appartements
Le but de construire loin d'être parfait "Khrouchtchev" était principalement des motifs idéologiques - de cette manière, il était possible de réaliser la réinstallation des casernes et des appartements communaux. Pour chauffer les zones résidentielles nouvellement construites, seul le chauffage centralisé a été utilisé. En règle générale, dans la salle de bain, le radiateur était combiné à un porte-serviettes chauffant. Cette approche avait à la fois des forces et des faiblesses.
Avantages :
- Le porte-serviettes chauffant fournissait une chaleur supplémentaire.
- Il n'a été allumé que pour l'hiver, en parallèle du chauffage. Lorsque la chaleur est arrivée, l'appareil s'est éteint.
Défauts:
- Conception encombrante.
- Il fallait payer un supplément pour l'utiliser.

Ce schéma de raccordement d'un sèche-serviettes au système de chauffage prévoyait la présence d'un pipeline supplémentaire au sous-sol. En conséquence, l'ascenseur et la chute à déchets ont dû être sacrifiés.
Deux options ont été utilisées pour commuter le sèche-serviettes sur le circuit de chauffage et le placer dans le logement :
Dans des salles de bains séparées. Dans ce cas, le site d'installation était un site adjacent cloison entre toilettes et salle de bain chambre. Du sous-sol, le tuyau d'alimentation a été amené dans l'appartement au premier étage. Plus loin, après avoir passé toute l'entrée, par l'appartement du dernier 5ème étage, elle s'est retrouvée dans un appartement voisin. Après avoir traversé tous les étages, le tuyau est redescendu dans le sous-sol. Les vannes d'arrêt dans les appartements n'étaient utilisées sous aucune forme: seules les sections du sous-sol des conduites d'alimentation et de retour étaient équipées de vannes.
Dans les salles de bains adjacentes. Ici, le porte-serviettes chauffant a été placé sur le mur près du lavabo.
Il est important de comprendre que cette méthode de connexion était considérée comme la plus difficile en raison des inconvénients de la pièce combinée.
Les séries les plus courantes de "Khrouchtchev", où les porte-serviettes chauffants ont été commutés non pas avec une alimentation en eau chaude, mais avec un système de chauffage, sont:
- 1-434С - années de construction 1958-1964.
- 1-434 - années de construction 1958-1967.
- 1-335 - années de construction 1963-1967.
Technologie de connexion sèche-serviettes
Le processus d'installation d'un sèche-serviettes dépend du type d'appareil. Les sèche-serviettes à eau nécessitent une approche particulière de la connexion. La connexion d'appareils électriques est assez simple.
Matériaux et outils
Avant de brancher le sèche-serviettes, vous devez vous familiariser avec le schéma de raccordement proposé par le fabricant dans la notice. Vérifiez également l'ensemble complet de l'appareil acheté.
Pour installer la sécheuse, vous aurez besoin des outils et matériaux suivants :
- niveau de construction ;
- crayon;
- roulette;
- un marteau;
- Clé à molette;
- Tournevis;
- fer à souder et couteau pour tuyaux en PVC;
- la grue de Mayevsky ;
- deux tees;
- Embrayage;
- attaches, supports;
- Tuyaux en PVC d'un diamètre de 32 mm;
- câble ou ruban d'étanchéité ;
- raccord.
Si un cavalier doit être installé, deux vannes à bille supplémentaires doivent être achetées.
Étapes d'installation d'un sèche-serviettes à eau
Le sèche-serviettes est le plus souvent raccordé à un système d'alimentation en eau chaude. Vous pouvez installer l'appareil vous-même, en suivant le schéma de connexion sélectionné et le guide étape par étape :
- couper l'alimentation en eau;
- marquez à l'aide du niveau du bâtiment les zones de fixation de séchage sur la surface du mur, en respectant la distance requise par rapport à la colonne montante et la pente de la tuyauterie de 5 à 10 millimètres;
- installez et fixez le porte-serviettes chauffant;
- monter le cavalier en installant des tés et des vannes à bille aux extrémités du tuyau ;
- à l'aide de raccords coudés et droits, raccordez et ajustez la direction des sorties d'alimentation et de retour du liquide de refroidissement ;
- installez le robinet de Mayevsky sur le sèche-serviettes.
Toutes les connexions sont scellées avec du câble ou du ruban adhésif spécial. Avant d'alimenter le système en eau, ainsi qu'après le démarrage du liquide de refroidissement, l'étanchéité des joints est vérifiée.
Branchement d'un sèche-serviette électrique
Ce type de sèche-serviettes peut être installé dans n'importe quelle pièce, quel que soit l'emplacement de la conduite d'eau chaude ou de chauffage. Le processus d'installation de l'appareil consiste à fixer la structure à l'emplacement sélectionné et à la connecter au réseau.
Sèche-serviettes électrique correctement branché
L'installation d'un sèche-serviettes électrique dans une salle de bain ou dans une autre pièce à forte humidité s'effectue en tenant compte du respect des normes de sécurité :
- la connexion doit être effectuée via un câble à trois conducteurs ;
- la mise à la terre doit être présente ;
- seul le câblage isolé caché est autorisé ;
- RCD est requis.
Exigences pour l'installation de sèche-serviettes avec chauffage électrique :
- distance du sol - au moins 20 centimètres;
- les meubles doivent être placés en respectant une distance de 75 centimètres;
- il doit y avoir un espace de 30 centimètres entre le mur et le sèche-linge ;
- distance de la salle de bain et du lavabo - au moins 60 centimètres.
La sortie doit être à une distance de sécurité de la surface du sèche-serviettes chaude.
Raccordement d'un sèche-serviettes dans une maison de campagne
Pour assurer le fonctionnement du sèche-linge pour serviettes de bain dans une maison de campagne, différentes méthodes de connexion sont utilisées. Si le chauffage est effectué au chalet, une excellente option serait un insert dans le circuit du système de chauffage. Mais avec une telle installation, il ne faut pas oublier que l'appareil ne fonctionnera que pendant la saison froide.
Si une utilisation régulière du sèche-serviettes est prévue, la conception électrique serait la meilleure option. Un tel séchage peut être activé et désactivé selon les besoins.
Le raccordement des appareils à eau dans une maison de campagne est effectué selon les schémas standard. Le plus souvent, lorsqu'il est connecté à un circuit de chauffage, un raccordement latéral ou diagonal est utilisé.
















































