Bien installer une cheminée dans une maison en bois : exigences réglementaires + étapes d'installation

Installation et installation d'une cheminée et d'une cheminée dans une maison en bois

insert de cheminée

Il est très important lors de la construction du foyer d'atteindre sa position horizontale idéale. La chambre de combustion des foyers ouverts est placée à l'aide de briques réfractaires et des foyers fermés - en métal

La chambre de combustion dans les foyers ouverts est placée à l'aide de briques réfractaires et dans les foyers fermés - en métal.

Pour les chambres de combustion métalliques, la fenêtre en verre résistant au feu est prévue. Les foyers à foyer fermé sont plus efficaces et pratiques à utiliser, ils vous permettent de contrôler le processus de combustion.

Cela affecte non seulement l'efficacité de la structure de chauffage, mais également sa sécurité.

La maçonnerie doit être réalisée à des températures positives pour assurer la fiabilité et la résistance de la structure.

La première rangée doit être parfaitement droite. Le résultat du travail en dépend directement.

Exigences d'installation et types de foyers

En raison du risque d'incendie des bâtiments en bois, les cheminées et les poêles sont soumis à des exigences de sécurité particulières. Cependant, cela ne limite pas la liste des modèles pouvant être utilisés.

L'installation d'une cheminée dans une maison en bois à chaque étape s'accompagne d'un rapprochement des travaux effectués avec les règles de PB et SNiP. Pour donner une image complète des modèles adaptés aux maisons en bois, il est nécessaire de répartir les foyers et poêles autorisés selon plusieurs critères.

Par emplacement

Dans une maison en rondins, il est permis, sous réserve de l'isolation des matériaux combustibles, d'installer et d'orienter le foyer de manière quasi arbitraire. L'interdiction est introduite uniquement pour des raisons d'utilisation rationnelle de l'espace.

Bien installer une cheminée dans une maison en bois : exigences réglementaires + étapes d'installationbâtiment massif

  • Les modèles de cheminées d'angle ont la propriété de gagner de la place. Ils sont installés à la jonction de deux murs, masquant la ligne de démarcation. C'est pourquoi il y a un effet visuel d'augmentation de l'espace.
  • Les cheminées encastrées, curieusement, sont souvent utilisées dans les bâtiments en bois. Pour le zonage partiel de la pièce, un mur de briques avec une niche pour une cheminée est en cours de construction. L'épaisseur du mur est comparable à la taille de la chambre de combustion. Un conduit de cheminée est réalisé à l'intérieur de ce mur. Comme le montre la description, les murs du foyer et les matériaux combustibles n'ont pas d'éléments communs.
  • Les modèles muraux impliquent nécessairement la présence d'un portail. Il est composé de différents matériaux, en fonction des fonctions que le futur foyer combine. S'il s'agit d'un appareil purement décoratif, un portail en cloison sèche est créé.Si une cheminée dans une maison en bois est installée pour le chauffage, le portail est constitué de briques réfractaires.

Bien installer une cheminée dans une maison en bois : exigences réglementaires + étapes d'installation

Option murale avec un beau portail

Les modèles insulaires ou isolés se distinguent par le fait qu'ils n'ont pas de frontières communes avec les murs de la maison. La seule difficulté dans l'agencement est une cheminée suspendue, qui n'est pas si facile à monter de manière sûre.

Par type de carburant

Cette section est très importante pour ceux qui décident de concevoir un poêle dans une maison en bois. Après tout, beaucoup ont tendance à penser que certains types de carburant sont strictement interdits d'utilisation. Notez que ces réflexions ont un fondement dans le cas d'une conception avec un foyer ouvert. Cependant, les modèles modernes avec une porte à fermeture hermétique offrent au consommateur de nombreuses options qui seront sûres en termes d'incendie.

  • À condition que la maison en bois soit correctement isolée, qu'une fondation appropriée soit prévue pour la cheminée, qu'une cheminée soit érigée et que toutes les règles d'installation soient respectées en général, vous pouvez utiliser des cheminées classiques en brique et conçues pour l'utilisation de bois de chauffage ou d'autres types de combustible solide (briquettes, charbon).
  • Les foyers électriques ont gagné le droit de porter le titre des appareils les plus sûrs. Dans les bâtiments en bois, ils peuvent être utilisés sans restriction, car au lieu d'une flamme vivante, il existe un système d'imitation bien conçu. Cependant, n'oubliez pas les règles de fonctionnement des éléments chauffants.

Bien installer une cheminée dans une maison en bois : exigences réglementaires + étapes d'installation

Foyer électrique complet pour la maison

  • Une autre option qui n'est pas soumise à des règles strictes est une cheminée bio. Ces modèles se caractérisent par l'absence de cheminée, bien que la flamme dans le foyer soit naturelle. L'alcool ou des compositions à base de celui-ci ont été utilisés comme carburant.C'est pourquoi ce type d'appareil tire son nom.
  • Les foyers à gaz sont simples à installer, car ils ne comportent que quelques éléments structurels. Les exigences pour de tels foyers coïncideraient avec les exigences pour les modèles à combustible solide, s'il n'y avait pas le danger lié au fonctionnement de tout équipement à gaz. Ainsi, le foyer au gaz est en tête en termes de nombre de conditions d'installation restrictives dans les maisons en rondins.

Selon le matériau utilisé dans la fabrication

Les cheminées à combustible solide peuvent être entièrement revêtues de briques réfractaires. Le mot "complètement" signifie que même la chambre de combustion dans laquelle la combustion du combustible a lieu est faite de briques réfractaires. La pose s'effectue sur commande. Cette méthode suppose un certain algorithme pour la formation de chaque ligne. La cheminée d'un tel poêle est nécessairement en brique, ce qui est dicté par des considérations de sécurité.

Bien installer une cheminée dans une maison en bois : exigences réglementaires + étapes d'installation

Cheminée de type cassette

Il existe des foyers en métal ou en fonte prêts à l'emploi qui doivent être intégrés dans une niche spécialement préparée. Les portails pour les foyers finis peuvent être construits de vos propres mains à partir de briques, de cloisons sèches, de pierre et de bois. Un tel dispositif de cheminée n'impose pas d'exigences sur le matériau de la cheminée, mais s'il est constitué d'un tuyau métallique, ils essaient de le voiler sous un cadre décoratif.

Montage

Si la maison est gazéifiée, en règle générale, un branchement du tuyau est fait pour le poêle et d'autres appareils.

Dans la plupart des maisons, des conduits de ventilation supplémentaires sont fournis dans la cuisine. Si des appareils ne leur sont pas connectés, par exemple une hotte aspirante, vous pouvez connecter complètement le foyer.

Bien installer une cheminée dans une maison en bois : exigences réglementaires + étapes d'installation
Cheminée dans la cuisine

Il est important de comprendre que toutes les opérations impliquant une alimentation en gaz centralisée sont effectuées soit en présence d'employés du service de gaz de la ville (district), soit par eux-mêmes. Il est impératif que lors de l'appel de maîtres d'autres organisations, il soit nécessaire d'informer le service de gaz des travaux à venir

Ce n'est qu'avec une installation autorisée que vous pouvez être sûr de la sécurité.

Lire aussi :  Examen du système fractionné Ballu BSAG-07HN1_17Y : candidature chinoise au leadership dans le segment budgétaire

Préparation de la salle

Bien installer une cheminée dans une maison en bois : exigences réglementaires + étapes d'installation

L'étape la plus importante dans l'installation d'un four à métaux est la préparation d'un lieu pour son placement. Il y a plusieurs raisons à cela. Premièrement, l'emplacement des fenêtres et des portes doit être pris en compte afin que le rayonnement thermique émis par les parois du four soit correctement réparti dans toute la pièce. Deuxièmement, il est nécessaire de prévoir un endroit pour le stockage du carburant. Il doit être situé de manière à ce qu'il vous soit facile de le livrer à destination.

Troisièmement, il est extrêmement important d'assurer la sécurité incendie. C'est peut-être la chose la plus élémentaire à faire, alors arrêtons-nous là-dessus plus en détail.

La protection des locaux contre l'incendie est assurée en plusieurs étapes :

  • il est nécessaire de respecter la distance minimale entre le poêle et les murs et les meubles. Elle doit mesurer au moins 50 centimètres. N'oubliez pas qu'un boîtier métallique dégage un rayonnement thermique plutôt dur et puissant, et que les murs en bois s'enflamment facilement même avec la protection dont il sera question ci-dessous. Assurez-vous également d'un accès libre à la chambre de combustion - gardez à l'esprit que vous aurez besoin d'un endroit où vous pourrez vous déplacer en toute sécurité, en vous penchant, lors de la pose de bois de chauffage ou d'un autre combustible. Selon la norme, 130 centimètres suffisent pour cela ;
  • la surface du sol et des murs qui se trouvent à proximité immédiate du poêle doit être isolée avec des matériaux résistants au feu. Dans le premier cas, une chape en béton, un carreau de céramique ou une tôle métallique peuvent jouer avec succès ce rôle. Le sol doit être protégé non seulement sous le poêle, mais également autour de celui-ci à une distance de 50 à 70 cm Quant aux murs, ils peuvent être recouverts de feuilles d'amiante. Superizol est également bon. Si vous organisez une telle protection de haute qualité, la distance entre le poêle et le mur peut être inférieure à celle indiquée ci-dessus - 20 centimètres suffiront. Si le poêle est placé de manière à ce que les meubles en soient trop proches, il est nécessaire de les protéger avec les mêmes feuilles d'amiante;
  • la distance au plafond doit également être maintenue en tenant compte des exigences de sécurité. il doit être d'au moins 120 centimètres;
  • la conception de certains fours prévoit l'installation non seulement d'une cheminée, mais également de canaux spéciaux passant à l'intérieur des murs. Ceci est fait pour chauffer les pièces voisines. Les parois de ces canaux doivent également être constituées de matériaux de haute qualité résistant aux températures élevées;
  • le dernier point concerne la sécurité générale non liée à l'incendie. Pendant le fonctionnement du four, ses parois sont chauffées, leur température varie de 500 à 600 degrés. Les toucher en ce moment est lourd de brûlures très graves. Par conséquent, s'il y a des animaux ou de jeunes enfants dans la maison, il est nécessaire de clôturer la structure avec une sorte de clôture. Naturellement, il est absolument impossible de mettre un tel poêle dans une chambre d'enfant.

En ce qui concerne le processus de pose des carreaux, il y a aussi quelques règles ici :

si le sol est en béton, vous pouvez y poser directement de la céramique. S'il est en bois, il est nécessaire de réaliser une doublure en contreplaqué ou en plaques de plâtre entre la surface et le carreau. Une feuille de verre-magnésite convient également à cet effet. La couche doit être fermement fixée au sol avec des vis autotaraudeuses, apprêtée et attendre que la composition sèche complètement. Ce n'est qu'après cela que vous pourrez poursuivre vos travaux;
pour la pose, vous aurez besoin d'un adhésif pour carrelage, ainsi que d'un niveau de construction. Le niveau doit être utilisé afin d'obtenir l'apparence parfaite de la finition. Ce moment est particulièrement important lors de la pose de la première rangée de carreaux - si une irrégularité se produit à ce stade, cela entraînera une déformation de l'ensemble du revêtement

L'adhésif pour carrelage doit être appliqué avec une truelle crantée - cela donnera l'uniformité nécessaire à la couche adhésive, ce qui est également important pour la pose;
ne soyez pas trop paresseux pour utiliser des croix spéciales placées aux joints des carreaux. Cela aidera à garder les coutures droites.

Les croix sont retirées deux jours après la fin de l'installation. Ensuite, les coutures sont remplies de coulis décoratif. Cependant, la dernière étape est facultative ;
le carreau est fixé au mur à l'aide d'un mastic spécial résistant à la chaleur. Comme pour les revêtements de sol, n'oubliez pas d'utiliser un niveau à bulle lors de l'installation pour vérifier l'uniformité.

Variétés de fondations pour le four

Le choix du type de fondation pour l'installation ultérieure d'un four à fer est effectué en tenant compte de ses caractéristiques et de ses caractéristiques d'installation.

Facteurs de choix :

  1. Estimation des travaux de construction - le prix des matériaux et les prix des artistes interprètes ou exécutants.
  2. Caractéristiques du sol et des fondations - le poids total de la structure et le type de matière du sol.
  3. La zone de la fondation du four - elle affecte le type et la masse totale de la structure.

Bien installer une cheminée dans une maison en bois : exigences réglementaires + étapes d'installation

Tous les types de fondations sont classés en deux grands groupes :

  1. Sur poteaux et pieux.
  2. Bases en béton.

Dans certains cas, les équipements de fournaise peuvent être montés directement sur le sol, sans oublier les règles de sécurité.

Tuyauterie du four

Dans de rares cas, le chauffage d'une pièce avec un poêle est dû aux courants de convection. L'état même de l'appareil implique l'utilisation la plus efficace de l'énergie libérée. Par conséquent, le système de chauffage est alimenté par un caloporteur, qui peut être de l'eau circulant dans des tuyaux ou de l'air se déplaçant sous l'influence de la convection forcée. La connexion des canaux de liquide de refroidissement au four s'appelle la tuyauterie.

Certains des problèmes liés à l'installation d'un poêle-cheminée se concentrent précisément dans l'installation incorrecte de la ligne. Avec le chauffage de l'eau, la circulation est assurée par une pompe ou elle est réalisée par convection naturelle

Dans le second cas, il est important d'observer une certaine pente de la ligne, car une pente inverse entraînera une stagnation du fluide. Dans un système de chauffage fermé (1er cas), la pente n'a pas d'importance, mais le système impose des exigences strictes en matière d'étanchéité

Même une petite quantité d'air piégé arrêtera la circulation.

Bien installer une cheminée dans une maison en bois : exigences réglementaires + étapes d'installation
Schéma de raccordement du circuit de chauffage

Attacher le conduit n'est pas difficile, mais poser la ligne sous les panneaux ou le revêtement avec des cloisons sèches est un processus laborieux. La fournaise, qui utilise l'air comme caloporteur, est équipée d'un système de ventilation qui entraîne l'air le long de la ligne. En ajustant l'alimentation avec des registres, il est possible de diriger sélectivement la chaleur vers différentes pièces.

Comment installer une cheminée dans une maison en bois, le processus d'installation correct et la vidéo

Beaucoup de gens demandent comment installer poêle cheminée à bois domicile. Pour ce faire, il convient de considérer et d'effectuer correctement chacune des étapes de ces travaux.

Lire aussi :  Réparation de baignoire en fonte à faire soi-même: dommages courants et leur élimination

Cheminée dans une maison en bois

Conditionnellement, les étapes peuvent être divisées en:

  • préparatoire (planification de l'emplacement du foyer);
  • installation d'une base résistante à la chaleur sous le foyer;
  • installation d'une chambre de combustion d'une conception de cheminée;
  • travaux de parement;
  • installation du système de cheminée avec la mise en œuvre de toutes les mesures de sécurité.

Si vous ne savez pas comment installer correctement une cheminée dans une maison en bois, suivez la mise en œuvre étape par étape de tous les travaux d'installation de cheminée ci-dessus et vous pourrez alors obtenir le résultat souhaité.

Et pour ceux qui veulent apprendre plus en détail comment installer une cheminée dans une maison en bois, une revue vidéo de cette procédure est disponible ci-dessous.

Noter! L'exécution de tous ces types de travaux nécessite le respect de toutes les exigences de sécurité, ainsi que la possession de connaissances et de compétences professionnelles particulières. Il est préférable d'inviter un spécialiste, mais si vous décidez toujours de faire l'installation vous-même, lisez les recommandations de base avant d'installer une cheminée dans une maison en bois. Il est préférable d'inviter un spécialiste, mais si vous décidez toujours de faire l'installation vous-même, avant d'installer une cheminée dans une maison en bois, lisez les recommandations de base

Il est préférable d'inviter un spécialiste, mais si vous décidez toujours de faire l'installation vous-même, lisez les recommandations de base avant d'installer une cheminée dans une maison en bois.

La disposition de la cheminée dans la pièce

Assurez-vous de tenir compte du fait que le foyer ne doit pas être placé dans l'alignement des ouvertures de porte ou de fenêtre. Il est également interdit d'installer une cheminée dans des pièces dont la superficie est inférieure à 20 m2.

Base résistante à la chaleur et installation du foyer

Afin de préparer la pièce pour l'installation d'une cheminée, il est nécessaire de retirer le revêtement de sol à l'endroit que vous avez choisi pour l'installation et d'y réaliser une chape en béton.

Schéma de base en béton

Noter! Si vous avez entrepris la construction d'un foyer mural, le mur lui-même doit être sécurisé en le recouvrant d'un matériau incombustible. La meilleure option pour cela peut être une brique. S'il n'est pas possible de se débarrasser du revêtement de sol, une base incombustible est installée sur le sol

S'il n'est pas possible de se débarrasser du revêtement de sol, une base incombustible est installée sur le sol.

La surface de la base doit être parfaitement plane pour que le foyer puisse être installé en position horizontale. Pour le réparer, vous pouvez utiliser de la colle ou du mastic résistant à la chaleur.

Tous les murs adjacents au foyer doivent être remplacés par du béton cellulaire ou de la brique.

Avant d'installer le foyer, des briques en argile réfractaire ou une tôle d'acier doivent être posées en dessous, et il est recommandé de placer de la laine de basalte entre le plafond et le sol.

Pose de briques sous le foyer

Dans les travaux d'installation sur l'installation du foyer, vous aurez besoin de:

  • forets à métaux;
  • perceuse;
  • pistolet à mastic;
  • broyeur avec un disque pour le métal.

Pour effectuer correctement, vous aurez besoin des compétences appropriées.

Revêtement et installation du système de cheminée

L'installation de parement a ses propres exigences

Il est très important qu'il n'entre pas en contact avec l'insert de cheminée.Si vous utilisez des matériaux inflammables pour la finition, il est impératif de créer une sorte de ceinture de protection en béton armé. Matériaux de revêtement :

Matériaux de revêtement :

L'option la plus courante consiste à effectuer un plâtrage. Pour ce faire, la surface doit être appliquée avec une double couche de mortier pour enduit. En conséquence, la couche résultante devrait avoir une épaisseur d'environ cinq centimètres. Après séchage, la surface peut être peinte.

Installation de système de cheminée

Le mastic résistant à la chaleur est utilisé pour fixer les carreaux de céramique. Vous devez surveiller l'emplacement du revêtement et l'aligner avec une barre en bois en le tapotant sur le carreau. Le résultat obtenu est conservé une journée avant de pouvoir laver et nettoyer les carreaux.

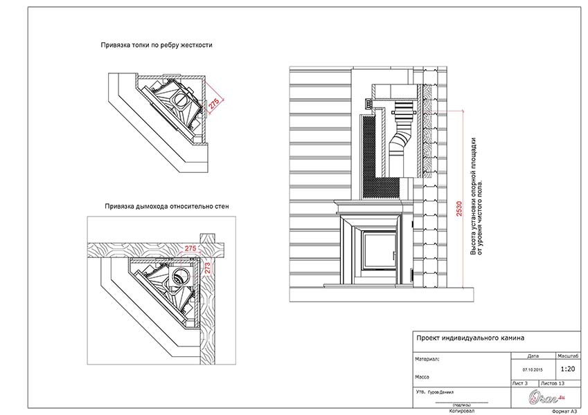
Le système de cheminée est fait de matériaux incombustibles. À l'intérieur, vous pouvez recouvrir de laine d'aluminium. Le plafond en bois doit être sécurisé en installant une housse de protection sur le foyer. La distance entre le caisson et la cheminée doit être d'au moins 30 cm.

Règles pour aménager une cheminée de vos propres mains

Avant d'assembler correctement le foyer afin qu'il soit aussi fiable et durable que possible, vous devez tenir compte d'un certain nombre de règles visant à atteindre ces objectifs :

  • Lors de l'aménagement d'une cheminée en brique, vous devez créer une fondation séparée pour celle-ci;
  • La partie active du four ne peut être revêtue que de briques en argile réfractaire, qui ne doivent pas entrer en contact avec des briques ordinaires;
  • Lors du montage de la porte et du cendrier, il est nécessaire de poser un cordon d'amiante et de laisser un petit espace nécessaire à la dilatation thermique des éléments métalliques;
  • L'intérieur du foyer ne nécessite pas de plâtrage;
  • La paroi arrière du foyer doit de préférence être placée légèrement inclinée.

Un élément distinct est les règles de sécurité incendie, dont le respect minimise le risque d'incendie:

  • Tout au long du canal de la cheminée, des déblais spéciaux doivent être installés pour augmenter le degré de sécurité incendie;
  • Lorsque vous placez la cheminée à proximité du mur, il est impératif de poser une couche de matériau réfractaire entre eux d'une épaisseur d'au moins 20-25 mm ;
  • Lors de l'installation d'une cheminée sur un plancher en bois, il est nécessaire de poser une tôle ou un revêtement en céramique sous la structure afin qu'ils dépassent du périmètre de la cheminée d'au moins 30-35 mm;
  • Au point où le tuyau traverse le sol ou le plafond, une couche de 15 cm de matériau thermo-isolant résistant à la chaleur doit être installée ;
  • Une seule cheminée peut être utilisée pour le foyer.

Le fonctionnement du foyer s'effectue également selon certaines règles :

  • Il est fortement déconseillé de chauffer le foyer à la température maximale ;
  • Pour un fonctionnement normal, le foyer doit être régulièrement nettoyé des dépôts de suie et des cendres ;
  • Tous les objets inflammables doivent être retirés du foyer à une distance d'au moins 70 cm ;
  • Seul le type de combustible pour lequel la conception a été conçue peut être utilisé dans le foyer.

Installer un foyer au bois dans un appartement

Installer une cheminée dans un appartement est plus difficile (et parfois totalement impossible) que dans une maison individuelle. La raison en est que de nombreux immeubles d'appartements sont construits sans tenir compte de l'installation de cheminées.

Il n'y a que trois exceptions :

  • dernier étage d'un immeuble de grande hauteur ;
  • l'un des étages d'une maison à deux étages (dans ce cas, comme dans le précédent, il est possible de faire soi-même une cheminée interne);
  • immeuble de grande hauteur, qui dispose d'une cheminée collective, permettant l'installation d'une cheminée dans chacun des appartements.
Lire aussi :  Aménager un puits dans le pays de vos propres mains: instructions étape par étape + conseils d'artisans expérimentés

Dans les trois cas, avant de commencer les travaux, vous devez obtenir l'autorisation d'installer un foyer. Contactez d'abord les pompiers. Un spécialiste de l'organisation se rendra sur place pour vérifier l'état de la cheminée, comment elle répond aux exigences de sécurité incendie. Le coût de l'examen est de 1000 roubles.

Contactez ensuite l'expertise en bâtiment, qui émettra une conclusion si les plafonds peuvent supporter le poids de la cheminée. L'expertise développera également un projet d'installation d'une cheminée (coût - à partir de 6 000 roubles). Le projet préparé, le passeport technique et le titre de propriété doivent être soumis au département du logement et des services communaux de l'administration du district, dont la commission non départementale délivrera l'autorisation d'installer une cheminée.

Dans un appartement d'un immeuble à plusieurs étages, vous pouvez installer une cheminée pesant jusqu'à 700 kg et uniquement avec un foyer fermé. Dans le même temps, la superficie de la pièce doit être d'au moins 20 mètres carrés afin d'assurer un bon échange d'air.

L'installation du foyer doit être confiée à un spécialiste du foyer. Ils pourront prendre en compte beaucoup de moments précis

En particulier, lors de l'installation, il est important d'assurer la circulation de l'air en prévoyant un écart technologique dans la conception du foyer. Il est nécessaire de respecter la distance entre le four et le mur afin qu'il ne surchauffe pas pendant le fonctionnement et n'éclate pas

En cas d'installation incorrecte, la garantie du foyer n'est pas valable.Il faut se rappeler que toute cheminée, quel que soit le matériau, nécessite un entretien régulier. Un spécialiste doit être invité 2 fois par an : en début et en fin de saison de chauffage. La suie accumulée sur les parois de la cheminée nuit au tirage et finit par détruire le matériau, car il s'agit d'une substance agressive.

Types de foyers: quels modèles peuvent être installés dans les maisons en bois

Si nous prenons le matériau de base comme base, un tel logement peut être équipé des types de foyers suivants:

  • de la brique de four

    . Les structures se distinguent par de grandes dimensions et une masse importante, elles nécessitent la pose d'une fondation séparée qui n'est pas combinée avec la base des murs. La brique présente une capacité thermique élevée, elle est capable de chauffer la pièce pendant une longue période et de manière uniforme. L'épaisseur de la maçonnerie la plus proche du mur doit dépasser 25 cm, elle est isolée de l'arbre par une couche de laine de basalte, de vermiculite ou de perlite;

  • avec foyer en métal

    - acier ou fonte. Souvent, les structures comprennent une porte vitrée, ce qui se situe entre un poêle fonctionnel et une cheminée. L'efficacité des variantes modernes peut atteindre 80%, les avantages de la solution sont la compacité, l'accessibilité et la rapidité d'installation. Les foyers métalliques sont introduits dans les cheminées décoratives en pierre artificielle ou naturelle, bois, brique, les cheminées sont masquées avec un revêtement en plaques de plâtre;

  • pierre

    . Il est moins courant en raison de la complexité de l'agencement et de la nécessité d'une fondation, il est installé dans des pièces spacieuses.

Bien installer une cheminée dans une maison en bois : exigences réglementaires + étapes d'installation
Une solution métallique urbaine incarnée dans une maison de campagne spacieuse.Les critères de forme et d'emplacement nous permettent de distinguer plusieurs groupes:

  • coin

    . De compacité différente, ils sont optimaux pour les petites maisons;

  • isolé

    . Habituellement, ils ont une conception autonome, ils sont de forme carrée, ronde, rectangulaire, le foyer peut être ouvert ou fermé. Les produits nécessitent de l'espace libre, ils ordonnent souvent leur placement au centre du salon;

  • droit

    . Ils sont divisés en mur et encastrables, les premiers sont montés contre le mur, les seconds servent généralement à desservir deux pièces.

Bien installer une cheminée dans une maison en bois : exigences réglementaires + étapes d'installation
Une cheminée encastrée soignée avec un écran en verre dans un salon spacieux

  • combustible solide classique

    . Ils utilisent du charbon, du bois de chauffage, ils sont généralement conçus avec un bûcher. Les structures doivent isoler tous les étages et les surfaces adjacentes ;

  • électrique

    complété par l'imitation du feu réel. Les greniers des maisons en bois, les étages supérieurs sont équipés de cheminées coupe-feu, les produits n'ont pas besoin de cheminée et de leur propre fondation;

  • cheminées bio

    fonctionner à l'éthanol, effectuer uniquement des tâches esthétiques;

  • cheminées à gaz

    , comme les classiques, impliquent l'installation d'un foyer à part entière et d'un système de cheminée.

Bien installer une cheminée dans une maison en bois : exigences réglementaires + étapes d'installation
La conception lumineuse, qui n'est pas typique de la décoration intérieure des maisons en bois, fait écho à l'habillage d'une cheminée à combustible solide. Les variations électriques sont capables de chauffer la pièce, tandis que les bio-cheminées alternatives ne le sont pas.

Avantages et inconvénients

Une cheminée dans une maison de campagne est un élément de décor qui crée un design unique de la pièce et un design attrayant. Un autre avantage est qu'il fournit une source de chauffage supplémentaire pour la maison. Les inconvénients, en règle générale, sont dus à la disposition du four:

  1. Difficultés liées à l'installation et à l'aménagement de la zone du foyer.La construction d'une cheminée à foyer ouvert n'est possible que si cette possibilité a été prévue au stade initial de la construction de la maison et qu'une fondation séparée a été coulée sous la structure. Il est nécessaire de respecter la séquence d'installation, y compris la livraison progressive de la structure pour acceptation par les autorités d'enregistrement.
  2. Vérification de la chambre de combustion et du canal de la cheminée par un employé du ministère des Situations d'urgence, effectuée avant le raccordement de la cheminée. Le travail avec l'exécution de tous les documents peut être retardé de plus d'un an.
  3. Caractéristiques des structures en bois - le rétrécissement complet de la maison ne peut survenir qu'après 6-7 ans. La construction de la cheminée ne peut être faite qu'après la fin de ce temps.
  4. Restrictions associées à la taille de la pièce. Les dimensions du portail augmentent en fonction du matériau choisi. Un foyer peut être construit dans une pièce d'au moins 25 m².

À propos de la sortie de la cheminée et des cheminées

Si possible, il est préférable de fabriquer une cheminée en brique pour les fours en acier. Dans ce cas, en superposant le tuyau en acier avec des briques, une surface supplémentaire pour chauffer la pièce est obtenue. La brique se réchauffera à partir de la température des gaz sortants et dégagera progressivement de la chaleur dans la pièce. Cette conception protégera les propriétaires des brûlures en touchant le tuyau. La surface intérieure du tuyau en acier est lisse, ce qui réduit le risque de dépôt rapide d'une épaisse couche de suie et de nettoyage fréquent des canaux.

Près de la dalle de plancher, vous pouvez passer à des tuyaux sandwich ou à de simples tuyaux en acier. Un trou est fait dans la dalle de plancher, une section de la cheminée y est aspirée. Ensuite, cet endroit est enveloppé d'une couche de laine minérale ou d'un autre matériau calorifuge et fermé par une couche de garniture décorative.

Toutes les pièces après une certaine distance sont fixées au mur à l'aide de pinces à vis autotaraudeuses.Pour sortir par le toit, vous devrez y faire un trou et installer un couplage spécial ou l'envelopper d'une couche d'isolation thermique. De l'intérieur, le trou est scellé avec de la mousse de montage ou des mastics résistants à la chaleur. De l'extérieur, une couche de mastic et le revêtement principal du toit sont utilisés.

Évaluation
Site sur la plomberie

Nous vous conseillons de lire

Où remplir la poudre dans la machine à laver et combien de poudre verser