Comment la fosse septique Tver est installée: un aperçu de la technologie d'installation

Fosse septique "Tver": dispositif, principe de conception et installation

Installation et entretien d'une fosse septique Tver

Comment la fosse septique Tver est installée: un aperçu de la technologie d'installationPour installer un système de nettoyage, vous pouvez inviter des spécialistes ou le faire vous-même.

Il est très important de choisir le bon endroit pour l'emplacement de l'équipement et de creuser une fosse correspondant à sa taille. Dans ce cas, les dimensions de la tranchée doivent être supérieures de trente centimètres aux dimensions de l'installation.

Le fond de la fosse excavée est recouvert de mortier ciment-sable, la fosse septique est installée et fixée. Après cela, les tuyaux d'égout et l'électricité sont connectés.

Lorsque tout est installé et connecté, la fosse septique devra en outre être recouverte d'un mélange de ciment et de sable, tout en la remplissant simultanément d'eau.Cela protégera la station contre d'éventuels dommages.

Lors de l'installation d'une fosse septique, il est nécessaire de suivre strictement toutes les instructions et de prendre en compte les caractéristiques du site. Il est donc préférable de confier l'installation de tels équipements à des professionnels qui donneront une garantie pour leur travail.

Conseils d'entretien

Une fosse septique, comme tout autre appareil, nécessite un entretien régulier. Pour son bon fonctionnement continu il faut :

  • contrôler périodiquement le fonctionnement des compresseurs responsables de la qualité des effluents ;
  • retirer annuellement les sédiments accumulés.

Pendant le fonctionnement de la station, il est interdit :

  • jeter les couches pour enfants, les produits en caoutchouc et en plastique, les sacs en plastique, divers déchets de construction et autres objets qui ne se décomposent pas sous l'influence des bactéries dans les égouts;
  • verser de la peinture, du diluant, de l'essence et d'autres liquides caustiques et toxiques dans le système.

Sous réserve de toutes ces exigences, la fosse septique de Tver fournira au système d'égout le niveau de traitement des eaux usées le plus élevé possible et fonctionnera efficacement pendant de nombreuses années.

Installation et entretien d'une fosse septique

Montage de l'appareil

L'instruction de la fosse septique "Tver", fournie avec l'appareil lui-même, décrit en détail le processus d'installation. Pour installer l'équipement, vous aurez besoin de:

  • le sable;
  • ciment sec;
  • source de courant.

L'installation de fosses septiques "Tver" peut se faire indépendamment ou avec la participation de spécialistes.

Pour installer l'équipement par vous-même, vous avez besoin de:

  1. creuser une fosse légèrement plus grande que les dimensions de l'appareil;
  2. faire un talus de sable au fond de la fosse. Le sable est soigneusement compacté et renversé avec de l'eau;

Comment la fosse septique Tver est installée: un aperçu de la technologie d'installation

Fosse avec un coussin de sable équipé pour une fosse septique

  1. installer une fosse septique;

Comment la fosse septique Tver est installée: un aperçu de la technologie d'installation

Descente de la fosse septique dans la fosse

  1. ancrer l'équipement nécessaire pour rendre l'appareil stable à tout moment de l'année. Les ancres sont généralement fournies sous forme d'ensemble ;

Comment la fosse septique Tver est installée: un aperçu de la technologie d'installation

L'ancrage contribuera à donner à la structure la stabilité nécessaire

  1. connecter la fosse septique aux tuyaux entrants et sortants, ainsi qu'à l'alimentation électrique;

Comment la fosse septique Tver est installée: un aperçu de la technologie d'installation

Raccordement de l'appareil aux tuyaux et à l'alimentation électrique

  1. vérifier les performances de l'équipement;
  2. recouvrir un peu plus de la moitié de la fosse septique d'un mélange de sable et de ciment pour éviter d'abîmer la coque lors des mouvements de sol printaniers et automnaux ;

Comment la fosse septique Tver est installée: un aperçu de la technologie d'installation

dispositif de remblayage

  1. isoler le dessus de la fosse septique. Pour cela, vous pouvez utiliser n'importe quel matériau, par exemple la laine minérale;

Comment la fosse septique Tver est installée: un aperçu de la technologie d'installation

La partie supérieure du produit doit être isolée

  1. faire le remblai final. L'installation de la fosse septique "Tver" est considérée comme terminée.

Comment la fosse septique Tver est installée: un aperçu de la technologie d'installation

Remblai final

Les travaux d'installation de l'équipement doivent être effectués avec soin et précaution. Permettre même un léger désalignement lors de l'installation peut entraîner un fonctionnement incorrect de l'appareil.

Entretien de l'appareil

L'entretien de la fosse septique de Tver consiste à effectuer un entretien préventif régulier et un nettoyage complet des équipements.

Travail préventif

Habituel travail de prévention l'équipement comprend :

élimination des boues en excès des chambres. Pour cela, des pompes fécales ou des équipements spécialisés sont utilisés. Les boues pompées peuvent être utilisées comme engrais;

Comment la fosse septique Tver est installée: un aperçu de la technologie d'installation

Élimination des boues avec une machine à puisard

nettoyage du filtre. Dans le bioréacteur de l'équipement, il y a des filtres à brosse qui nécessitent un nettoyage régulier. Ils s'enlèvent facilement et se lavent bien avec de l'eau courante ordinaire. Ensuite, les filtres sont installés en place. Il y a des situations où les poutres supportant les filtres pourrissent.Dans ce cas, un remplacement complet des éléments métalliques est nécessaire ;

Comment la fosse septique Tver est installée: un aperçu de la technologie d'installation

Retrait des filtres pour le rinçage

reconstitution des bactéries et du calcaire.

Il est recommandé d'effectuer des travaux préventifs une fois tous les 2-3 ans, en fonction de l'intensité d'utilisation de l'équipement.

Réalisation d'un nettoyage complet

Pour effectuer un nettoyage complet de la fosse septique, vous aurez besoin de :

  • pompe fécale ou équipement d'égout;
  • nettoyeur haute pression.

Les travaux de nettoyage s'effectuent comme suit :

  1. Retirez le capot supérieur de l'équipement. Cela donne accès à trois robinets situés à l'intérieur de l'appareil ;
  2. en position de travail, les vannes d'extrémité sont fermées et celle du milieu est ouverte. À travers la valve médiane, l'oxygène est fourni au compartiment. Pour démarrer le pompage des boues des compartiments voisins, il est nécessaire de fermer la vanne du milieu et d'ouvrir une à une les vannes d'extrémité. Le temps de fonctionnement moyen d'une grue est de 15 à 20 minutes. Après cette procédure, les boues des compartiments adjacents se déplaceront vers le compartiment central, d'où elles doivent être éliminées par une pompe ou une machine ;

Comment la fosse septique Tver est installée: un aperçu de la technologie d'installation

Équipement ouvert pour un nettoyage complet

  1. en outre, les filtres ruff sont retirés du bioréacteur et soigneusement lavés. Les éléments métalliques de support sont remplacés ;
  2. Le nettoyeur haute pression sert à nettoyer les parois de la fosse septique. Après cela, l'excès de liquide est éliminé par une pompe ;

Comment la fosse septique Tver est installée: un aperçu de la technologie d'installation

Vidange d'une fosse septique

  1. l'équipement retiré est installé à sa place. Les bactéries et le calcaire sont remblayés ;

Comment la fosse septique Tver est installée: un aperçu de la technologie d'installation

Installation des filtres

  1. le robinet du milieu s'ouvre et le couvercle se ferme.

Le nettoyage complet de la fosse septique est effectué au moins une fois tous les 5 à 7 ans.

Caractéristiques de conception

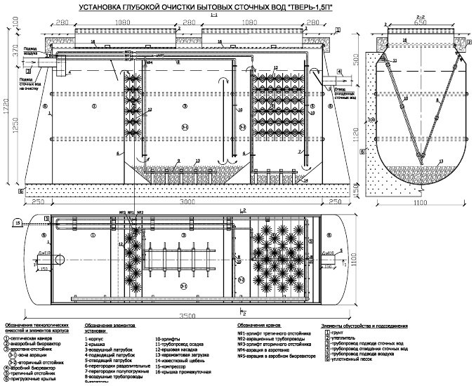
Le dispositif de la fosse septique de Tver (illustré dans la figure ci-dessous) permet d'éliminer les fractions lourdes des eaux usées, de détruire les structures de diverses formations et assure également un traitement biologique accéléré.

Comment la fosse septique Tver est installée: un aperçu de la technologie d'installationSchéma de conception simplifié d'une fosse septique

Désignations indiquées :

  • A - réacteur biologique ;
  • B - bassins de décantation ;
  • C - réacteur biologique avec aérateur ;
  • D - aérateurs;
  • E - calcaire;
  • F - sable;
  • G - sol;
  • H - réservoir d'aération.

Le premier décanteur est une fosse septique, c'est dans celle-ci qu'a lieu la séparation des fractions lourdes qui se déposent au fond. Certains d'entre eux se dissolvent au bout d'un moment et entrent dans la chambre suivante.

Les eaux purifiées à partir des fractions lourdes entrent dans l'aérotank, où elles sont activement saturées en oxygène, ce qui crée des conditions favorables pour les bactéries qui décomposent les déchets biologiques

Vidéo associée :

La capacité de la fosse septique Tver est divisée en plusieurs compartiments, leur but et leur principe de fonctionnement sont les suivants :

  • réservoir de stockage, les drains y pénètrent, les mélanges insolubles qu'ils contiennent se déposent au fond. Au bout d'un certain temps, certains d'entre eux se dissolvent et passent au compartiment suivant ;
  • chambre aux propriétés anaérobies. Il sert à la destruction mécanique des fractions solides qui ne se sont pas déposées au fond. Cela se produit lors du passage à travers des éléments structurels spéciaux, ainsi qu'en raison de la fermentation sous l'influence de micro-organismes aux propriétés anaérobies;
  • le compartiment aérotank sature le contenu en oxygène, ce qui permet aux micro-organismes aérobies de se multiplier intensément;
  • la chambre de décantation sert à retenir les fractions lourdes, grâce auxquelles la décomposition biologique des substances organiques contenues dans le drain est accélérée ;
  • le compartiment du réacteur biologique aérobie contribue au processus d'absorption des matières organiques par les micro-organismes.De plus, du fait de la dissolution progressive du calcaire contenu au fond, des composés toxiques sont liés, dont le phosphore et l'azote ;
  • le puisard du «calmener» complète l'étape de nettoyage; à la sortie de celui-ci, l'eau est purifiée à au moins 95%. Dans le même compartiment se trouvent des flotteurs pour la désinfection, qui contiennent des réactifs chlorés.

Une description technique complète des modèles (volume, performances, équipements, etc.), ainsi que leur comparatif et prix, vous seront fournis par les concessionnaires régionaux, qui vous conseilleront également quelle fosse septique sera la plus optimale.

Principe d'opération

  • Principe de fonctionnement1
  • Caractéristiques de fonctionnement2
    • Fréquence et méthodes de nettoyage2.1
    • Ce qui ne peut pas être versé dans une fosse septique Tver2.2
  • Gamme de modèles3
  • Principe de sélection du modèle4
  • Installation d'une fosse septique Tver5
    • Isoler ou non 5.1
    • Ordre de travail5.2
    • Option d'installation au niveau élevé de la nappe phréatique5.3
    • Que faire avant le lancement5.4

La fosse septique Tver combine les trois technologies possibles de traitement des eaux usées. Dans le premier compartiment - de réception -, un nettoyage mécanique a lieu, comme il est d'usage pour les fosses septiques classiques. Dans les deux autres - aération et traitement des eaux usées par des micro-organismes aérobies, comme dans les usines d'aération (AU) et dans deux - traitement par anaérobie (sans oxygène), et il y a aussi un biofiltre à la sortie, qui complète la purification. C'est un système tellement complexe, mais selon les assurances des fabricants, 98% d'eau purifiée en sort et elle peut être déversée directement sur le sol ou détournée dans un réservoir.

Lire aussi :  Loi d'Ohm pour une chaîne complète et pour une section de chaîne : options de formule, description et explication

Comment la fosse septique Tver est installée: un aperçu de la technologie d'installation

Fosse septique Tver de l'intérieur

La fosse septique de Tver diffère des autres installations pour un dispositif d'égout autonome par sa disposition horizontale - des compartiments disposés successivement dans lesquels de l'eau est versée. Son appareil peut être vu sur la photo ci-dessous.

Comment la fosse septique Tver est installée: un aperçu de la technologie d'installation

Le dispositif de la fosse septique Tver

La procédure de nettoyage est la suivante :

  • L'effluent pénètre dans le premier réservoir - une fosse septique. Dans celle-ci, comme dans une fosse septique classique, les particules lourdes se déposent au fond, les légères contenant de la graisse montent.
  • De cette chambre, par le trop-plein supérieur, les eaux usées pénètrent dans le deuxième compartiment - un bioréacteur anaérobie. Dans cette chambre se trouvent des collerettes sur lesquelles se multiplient des colonies de micro-organismes. Ici, les bactéries traitent les particules difficiles à oxyder. En parallèle, la contamination restante continue de se déposer/flotter.
  • Après le traitement, les eaux usées entrent dans l'aéroréservoir avec des bactéries aérobies. La pompe leur fournit de l'air pour assurer leur activité vitale. Au fond de cette chambre se trouve de l'argile expansée, qui brise l'air en petites bulles. Les boues activées accumulées au fond, qui traitent les eaux usées, sont mélangées à l'eau par des courants de bulles d'air. Les bactéries convertissent activement les résidus organiques, le degré de purification devient encore plus élevé.
  • Le compartiment suivant est un puisard où les contaminants se déposent/flottent. Les boues décantées, du fait de la structure originelle des parois, retombent dans l'aéroréservoir.
  • L'eau déjà suffisamment pure du puisard entre dans le deuxième réservoir aérodynamique avec des collerettes, où la purification est terminée. Il y a des gravats calcaires, qui lient le phosphore. Il est difficile de l'enlever par d'autres moyens et peu de gens s'en inquiètent.
  • La dernière étape est le troisième bassin de décantation, où les boues se décantent à nouveau et l'eau propre est séparée.
  • Une cartouche de chlore est installée à la sortie de la fosse septique de Tver. Il s'agit d'un dispositif cylindrique en matériau poreux.A l'intérieur, c'est un mélange de chlore et de sable. Après cela, l'eau peut être déversée sur le relief - elle n'a ni couleur ni odeur.

Pour ne pas dire que le processus est simple, il y a beaucoup de nuances, mais le résultat du nettoyage n'est pas mauvais et l'installation ne nécessite pas d'attention quotidienne, elle fonctionne de manière stable.

Le processus de construction d'une fosse septique économique à partir d'anneaux en béton est décrit ici.

Avantages et inconvénients du système de traitement

Les fosses septiques de Tver présentent des avantages et des inconvénients, comme tout appareil technique. Cependant, le nombre d'avantages l'emporte de manière significative, grâce à quoi ces installations de traitement sont largement et avec succès utilisées.

Avantages de conception :

  • La purification complète de l'eau a lieu dans un réservoir - aucun dispositif de filtration supplémentaire n'est requis.
  • Une fosse septique d'une capacité correctement sélectionnée nettoie 98% des eaux usées - cette eau peut être déversée sur le terrain, dans un réservoir et utilisée pour les besoins domestiques.
  • Le corps de la fosse septique est en matériau polymère à haute résistance qui n'est pas sujet à la corrosion et à l'érosion, ce qui garantit une longue durée de vie de l'appareil.
  • Il n'est pas nécessaire d'utiliser constamment des bioactivateurs - les bactéries de la fosse septique sont restaurées d'elles-mêmes et se multiplient activement.
  • La purification des phosphates toxiques et des composés azotés est fournie.
  • Les boues solides sont pompées une fois par an ou moins.
  • La fosse septique Tver peut être utilisée même avec un fonctionnement intermittent - grâce à la méthode de nettoyage combinée, le cycle intermittent ne crée pas une charge importante sur les boues activées et, en l'absence d'alimentation électrique, la fosse septique passe en mode veille.
  • Dans une fosse septique, le liquide ne se déplace pas dans les tuyaux ou les tuyaux, il n'y a donc aucun risque de boucher le système.
  • La conception résiste sereinement aux rejets en salve d'eaux usées sans perte de qualité de traitement.
  • De grandes trappes d'inspection facilitent les inspections de routine du système, l'entretien et le pompage des boues solides.
  • Le compresseur est situé à l'intérieur - il est pratique pour l'entretien et prolonge considérablement la durée de vie de l'unité.
  • Les dimensions globales compactes et le poids léger vous permettent d'installer vous-même la fosse septique Tver, sans l'intervention d'équipements spéciaux.

Défauts:

  • Dépendance énergétique du système ;
  • Le prix élevé du complexe.

Cependant, le coût plutôt élevé d'une fosse septique est déjà rentable lors de l'installation - il n'est pas nécessaire de construire des puits d'absorption ou de dépenser de l'argent pour aménager un champ de filtration.

L'installation de la station de traitement Tver est souvent réalisée seule. Cela permet des économies importantes. Le coût d'une telle conception ne dépasse pas le montant qui devrait être dépensé pour l'achat et l'installation d'un système de traitement basé sur une simple fosse septique.

Gamme de modèles de fosse septique Tver

Afin de choisir une station d'épuration adaptée à vos besoins, vous devez vous familiariser avec les variétés existantes de la fosse septique de Tver. La gamme de modèles de l'installation suppose la présence de 44 appareils, qui diffèrent les uns des autres par des capacités et des volumes différents, qui affectent le nombre de personnes pouvant utiliser cette station de traitement des déchets.

Divers modèles suggèrent la présence de certaines caractéristiques qui ne les caractérisent que (chaque lettre du nom du modèle signifie une certaine caractéristique de la station) :

Modifications des installations de traitement "Tver"

Les exécutions de fosses septiques Tver sont classées en fonction de leurs performances - la quantité d'eaux usées que l'installation est capable de traiter pendant la journée. Choisissez le volume requis du réservoir en tenant compte du nombre de personnes résidant en permanence dans la maison.

Les performances des modifications des stations Tver présentées sur le marché commencent à partir de 0,35 mètre cube. m par jour - cela convient pour 1-2 personnes. Viennent ensuite les versions Tver-0.5P et Tver-0.75P - pour 2-3 résidents, Tver-0.85P - pour 3-5 résidents, Tver-1P - pour 4-6 résidents, etc.

La lettre "P" dans la désignation signifie que la fosse septique est fabriquée dans un boîtier en plastique.

Le volume de traitement quotidien maximal pour une fosse septique avec un corps en plastique a une modification de Tver-3P. Cette conception peut servir jusqu'à 18 personnes.

Les fosses septiques les plus performantes appartiennent à la classe professionnelle, leur corps est en acier. La productivité de telles structures est de 4,5 à 500 mètres cubes. m par jour.

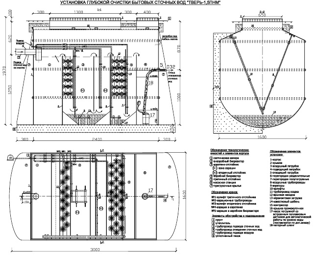
Des modèles avec compartiments de pompe sont disponibles. La section avec la pompe peut être la dernière dans le sens du mouvement du liquide à travers la fosse septique. Ces modifications portent la lettre "H" à la fin du code de désignation - par exemple, Tver-1.5PN.

Les groupes de pompage sont utilisés pour forcer l'évacuation de l'eau purifiée vers la décharge ou vers le puits, lorsque le niveau de la conduite d'évacuation est supérieur à celui qui sort de la fosse septique.

Il existe des modèles avec un compartiment de pompe, qui est situé devant la chambre de réception - le puisard primaire. La pompe à eaux usées pompe les eaux usées dans la chambre septique dans le cas où la conduite principale quittant la maison est située assez bas sous terre - en dessous de 60 cm du niveau de la surface.

Les fosses septiques avec pompe sont marquées de la lettre "H" au début du code de désignation - Tver-1NP.

Il existe également des installations combinées - leur désignation porte le code NPN. Par exemple, les performances de Tver-2NPN.

Comment la fosse septique Tver est installée: un aperçu de la technologie d'installationL'option d'utiliser une fosse septique avec un compartiment de pompe est optimale si le site a un niveau d'eau souterraine très élevé. Creuser un fossé de drainage profond dans ce cas n'a pas de sens. Le rejet d'eau purifiée se produit à la surface du sol (+)

Si la question du choix d'une fosse septique est toujours d'actualité, nous vous suggérons de lire l'article - Quelle fosse septique est la meilleure pour la maison : comparaison stations d'épuration populaires

Comment déterminer l'absorption d'eau du sol

Avant d'installer une nouvelle fosse septique, il est conseillé de savoir dans quelle mesure le sol de la région absorbe l'eau. Le mode d'évacuation des effluents traités en dépend largement. Les experts recommandent d'effectuer un test d'absorption d'eau, qui est assez simple à réaliser par vous-même.

Cela aidera également à déterminer le niveau des eaux souterraines, ce qui est très important dans la disposition de telles structures.

Pour effectuer le test, nous effectuons séquentiellement les étapes suivantes. Tout d'abord, nous forons un trou ou creusons un trou avec une profondeur inférieure au niveau de congélation du sol. En moyenne, il est d'environ 1,5 mètre. En sortant une décharge de l'excavation, nous essayons de déterminer le type: lisier, sable, etc. Pendant le creusement, de l'eau peut apparaître dans le trou. Cela signifie que la première couche saturée d'eau de la surface de la lumière du jour a été exposée.

Lire aussi :  Comment faire un sol chauffant infrarouge de vos propres mains: installation et connexion du sol en film

Comment la fosse septique Tver est installée: un aperçu de la technologie d'installation

Habituellement, à une telle profondeur, l'eau perchée est ouverte, ce qui apparaît pendant une période de fortes précipitations et de fonte des neiges. S'il apparaît à une profondeur supérieure à 1 m, le conteneur devra être installé à 15-20 cm au-dessus du niveau recommandé.Le fond de la fosse devra être rempli d'une chape en béton et, sans attendre que le mortier durcisse, installer des boucles de montage dans la chape. Ils sont nécessaires pour ancrer le conteneur - pour le fixer à la dalle de béton avec un câble, ce qui l'empêchera de flotter pendant les inondations.

Si un sol argileux est apparu au fond, la masse d'eaux usées nettoyées devra être détournée dans la gouttière. Le loam et le loam sableux ne permettent pas le passage de l'eau, il faudra donc aménager un pipeline assez long pour l'évacuation et acheter une pompe pour stimuler le mouvement du fluide à travers celui-ci.

Si le fond et les parois de votre ouvrage d'exploration sont composés de sables avec de fines couches de loam sableux et de loam, vous devez déterminer les qualités de filtration du sol. Pour ce faire, vous devez verser de l'eau dans la fosse ou le puits, en fixant le volume de liquide et le temps qu'il a fallu pour l'absorber.

Il est possible que le liquide ne soit pas complètement absorbé, mais reste immobile à un certain niveau. Cela signifie qu'il ne descendra pas en dessous ou qu'il sera absorbé trop lentement. Nous effectuons l'opération de coulée 5 ou 6 fois afin d'obtenir des données plus objectives sur l'absorption d'eau. Chaque fois, nous déterminons le volume du liquide rempli et le taux de son absorption.

Il se peut qu'il y ait de l'eau au fond de la fosse. Si elle ne part pas même après quelques heures, on peut supposer qu'il en sera ainsi pour toujours. Cela signifie que sous la couche de sable que vous avez découverte, il y a une couche argileuse qui ne laissera pas passer la composante liquide des effluents.

Les propriétés de filtration doivent être prises en compte lors du choix du mode d'élimination des effluents traités. Par exemple, cela n'a aucun sens d'équiper un puits filtrant sur des roches argileuses, car le liquide ne le quittera pas.Il ne peut pas être construit si la distance entre le fond conditionnel du filtre de sol et le toit de l'aquifère en dessous est inférieure à un mètre.

Pour un appareil à base d'argile, les champs de filtration ne conviennent pas, qui sont un système de tuyaux avec des trous à travers lesquels l'eau purifiée s'infiltre dans le sol environnant. Ils sont posés dans des sols sableux qui absorbent bien le liquide évacué du système. Par analogie avec le dispositif du puits d'absorption, il doit y avoir au moins un mètre entre le fond des tuyaux perforés et le réservoir saturé d'eau.

Comment la fosse septique Tver est installée: un aperçu de la technologie d'installation

Le principe de fonctionnement de la fosse septique Tver et sa conception

À Tver, les processus de traitement des eaux usées sont les plus complets, ceci est réalisé grâce aux processus suivants :

  • Les impuretés plus lourdes se déposent au fond par décantation naturelle (impuretés dont la densité est supérieure à celle de l'eau).
  • En raison de l'apparition de processus anaérobies, la structure de grandes formations dans un environnement sans air est détruite sous l'action de bactéries.
  • À l'aide de processus aérobies de l'eau sous l'action de micro-organismes (des conditions optimales pour leur activité vitale sont créées en raison de l'afflux d'oxygène de l'air dans l'arotink), un traitement biologique des eaux usées à partir d'inclusions organiques est effectué.

Conception et principe de fonctionnement

La conception du système est multi-chambre - il est divisé par des cloisons dans les chambres suivantes :

  • Septique (puisard), c'est aussi une chambre de réception pour les eaux usées entrant dans le tuyau d'égout de la maison. Dans celui-ci, le processus de décantation au fond et la décantation ultérieure des fractions insolubles ont lieu. Au fil du temps, les déchets lourds se dissolvent partiellement et passent à l'étape suivante de purification.

  • bioréacteur anaérobie.Dans celui-ci, la destruction mécanique des effluents se produit en raison de leur passage à travers les éléments structurels du conteneur (ruffs), et une imperméabilisation partielle se produit en raison du processus de fermentation sous l'influence de micro-organismes anaérobies.
  • Aérotank. Grâce à l'aérateur situé dans la chambre, les eaux usées sont saturées en oxygène, ce qui permet d'accélérer le processus de reproduction des micro-organismes aérobies présents dans les eaux usées en tant que microflore naturelle. D'autres eaux saturées en oxygène entrent dans la phase ultérieure de traitement.
  • Puisard. Avant que l'effluent n'entre dans le bioréacteur aérobie, il passe à travers un réservoir de décantation, qui retient les suspensions lourdes, ce qui a un effet positif sur la décomposition ultérieure des composés organiques.
  • Bioréacteur aérobie. Deux processus s'y déroulent simultanément : premièrement, les inclusions organiques contenues dans les eaux usées sont activement absorbées à l'aide de bactéries aérobies en multiplication active, et deuxièmement, il y a du calcaire au fond de la section, qui, lorsqu'il est dissous dans l'eau, aide à neutraliser très composés toxiques contenant de l'azote et du phosphore.
  • Sédateur plus calme. Dans cette chambre, une clarification supplémentaire du liquide se produit en raison de la sédimentation naturelle des fractions plus lourdes au fond. Ce n'est qu'à la fin de ce processus que de l'eau purifiée à 95-98% quitte la fosse septique de Tver. Dans cette chambre, des flotteurs contenant des réactifs chlorés sont en outre installés, qui désinfectent l'eau.

Inconvénients et fonctionnalités

Les fosses septiques de Tver présentent des inconvénients inhérents à tous les appareils de cette classe:

  1. Dépendance totale à l'électricité. Pour le fonctionnement normal de la fosse septique, il est nécessaire que de l'air soit fourni au réservoir d'aération.En conséquence, en l'absence d'électricité, le compresseur ne pourra pas effectuer ce processus. Mais en même temps, Tver fonctionnera encore au moins un jour avant que sa productivité ne commence à décliner.
  2. Prix ​​relativement élevé, mais il faut tenir compte du fait que le système d'égouts, où la fosse septique est installée, n'a pas besoin de champs de drainage et d'un puits de drainage, ce qui justifie considérablement le coût de Tver.

Passons aux fonctionnalités. Le corps de la structure a des parois minces, mais du polypropylène à haute résistance est utilisé pour leur fabrication. Le boîtier peut se plier, mais il ne perdra pas son étanchéité. D'autre part, les parois minces rendent la structure plus légère, de sorte que sa livraison et son installation sont grandement simplifiées.

Lors du transport, les dimensions jouent un rôle décisif, pas le poids.

Où placer l'installation: règles et réglementations

Les fosses septiques font partie des objets potentiellement dangereux pour l'environnement. Leur installation nécessite l'autorisation du SES. Pour l'obtenir, vous devez élaborer un projet de placement d'équipement, qui doit tenir compte de toutes les exigences et normes applicables. Si tout est conforme aux normes, l'autorisation sera obtenue. Le projet prend en compte non seulement l'emplacement de l'installation, mais également ses volumes.

Le dernier indicateur ne doit pas être inférieur au volume de stock maximal sur trois jours. L'endroit où est installée la fosse septique doit être éloigné le plus possible du puits ou du puits, s'il y en a sur le site. Bien que les équipements de traitement soient hermétiquement fermés, il est théoriquement possible qu'une situation d'urgence se produise, à la suite de quoi le ruissellement pourrait pénétrer dans l'aquifère.

Comment la fosse septique Tver est installée: un aperçu de la technologie d'installation

Pour éviter de tels problèmes, la réglementation réglemente la distance entre la station d'épuration et le puits ou puits pour chaque type de sol. Le minimum est de 20 mètres. En moyenne, s'il y a un sol limoneux, sablonneux ou sablonneux sur le site, cette distance est de 50 à 80 m Certaines normes s'appliquent lors de la pose de conduites d'eau. Ils doivent être placés à une distance d'au moins 10 m de la fosse septique.

Cela élimine complètement le risque de pollution de l'eau en cas de dépressurisation d'une canalisation. Autre nuance: lors du choix d'un site pour l'installation d'une fosse septique, vous devez vous rappeler que par rapport à la source d'eau, le niveau de son emplacement doit être inférieur. De plus, il faut tenir compte des normes réglementant la distance entre la station d'épuration et le lieu de résidence des personnes. De la fondation de la maison à la fosse septique doit être d'au moins 5 m.

Cependant, une trop grande distance entre les objets est hautement indésirable, car une longue canalisation d'égout risque davantage de se bloquer.

Il est important de choisir la bonne longueur de la structure. Dans le cas de l'utilisation d'une modification de la fosse septique Tver avec pompage forcé de l'eau industrielle, celle-ci peut être placée plus près de la maison. La colonne montante de ventilation dans de tels cas est installée à l'entrée de la branche externe de l'égout et est fixée au mur de la maison

Le tuyau d'égout d'entrée peut mesurer environ 1 m.Le type de décharge et la longueur du tuyau de sortie dépendent de la situation géologique et hydrogéologique d'une zone particulière. Dans tous les cas, le réseau d'égouts extérieur doit être équipé de puits de révision.

Lire aussi :  Gradateur DIY : appareil, principe de fonctionnement + instruction pour fabriquer soi-même un gradateur

La colonne montante de ventilation dans de tels cas est installée à l'entrée de la branche d'égout externe et est fixée au mur de la maison. Le tuyau d'égout d'entrée peut être d'environ 1 m.Le type de décharge et la longueur du tuyau sortant dépendent des conditions géologiques et hydrogéologiques d'une zone particulière. Dans tous les cas, le réseau d'égouts extérieur doit être équipé de puits de révision.

Comment la fosse septique Tver est installée: un aperçu de la technologie d'installation

Il faut se rappeler que lors du choix de l'emplacement de la fosse septique, les intérêts non seulement du propriétaire du terrain, mais également de ses voisins doivent être pris en compte. Par conséquent, la distance entre l'installation et la clôture ne peut pas être inférieure à 2 m. Si une route à trafic suffisamment important est posée à proximité, la fosse septique ne peut pas être installée à moins de 5 m. La distance de la fondation des dépendances pour tout destination de la fosse septique ne doit pas être inférieure à 1 m.

Les professionnels conseillent de prévoir l'installation d'équipements de traitement sur un site au sol meuble, ce qui facilitera grandement l'excavation. De plus, il faut veiller à assurer le libre accès à l'appareil pour son entretien régulier. Toutes les exigences ci-dessus doivent être prises en compte lors du choix d'un emplacement pour une fosse septique.

Élimination des boues activées excédentaires

Avec une quantité suffisante de nutriments, l'augmentation de la biomasse des bactéries aérobies se produit de manière très intensive. Dans ce cas, beaucoup de boues activées se forment. Des ponts aériens sont installés dans les clarificateurs secondaires et tertiaires pour évacuer son excédent.

Un airlift est une pompe à jet qui soulève le fluide avec de l'air comprimé. La conception est très simple - elle se compose de deux tubes et d'un compresseur. L'un des tuyaux transporte de l'air sous pression. Il est amené au fond du deuxième tuyau, descendu dans l'eau.

Une émulsion air-eau se forme - un liquide rempli de bulles d'air. Sa gravité spécifique est inférieure à la gravité spécifique de la conduite d'eau environnante.Pour cette raison, il monte à travers le tuyau - une eau plus dense expulse simplement un mélange air-eau plus léger. Les suspensions contenues dans l'eau font également partie de l'émulsion et montent avec succès.

Deux ponts aériens installés dans la fosse septique de Tver, avec le liquide, soulèvent les boues activées en excès des sections du bassin d'aération et du puisard tertiaire. Le mélange est pompé à travers la conduite de boues vers la chambre septique. Le cycle se ferme.

Comment la fosse septique Tver est installée: un aperçu de la technologie d'installation

La programmation

Les fosses septiques de Tver sont de volumes différents, pour une quantité différente de drains. Chaque modèle a des modifications qui ont une désignation de lettre différente :

  • P - boîtier en plastique (sans lettre, le boîtier est en métal).
  • H - il y a un compartiment de pompe pour le pompage forcé de l'eau traitée (une option nécessaire pour les niveaux élevés des eaux souterraines et un schéma avec un puits intermédiaire). S'il y a deux lettres H, alors il y a deux pompes. Le marquage NPN indique qu'il existe un compartiment spécial pour l'installation de la pompe (dans un autre cas, elle est suspendue).
  • M - profondeur d'insertion accrue. En standard, l'entrée est située à une profondeur de 30 cm, dans cette modification, elle peut être abaissée à un niveau de 60 cm.Dans cette modification, la position des murs change également, la hauteur des regards des regards ne pas changer.

Les dimensions, le volume et le prix de certains modèles de fosses septiques Tver sont résumés dans le tableau.

0,35P / 0,35PN 350 l/jour jusqu'à 2 1.4*1.1*1.65m 938$/980$ 100 litres
0,5P 500 l/jour jusqu'à 3 1.65*1.1*1.67m 995$ 150 litres
0,5 PN 500 l/jour jusqu'à 3 2*1.1*1.67m 1110$ 150 litres
13h00 500 l/jour jusqu'à 3 1.65*1.1*1.97m 1165$ 150 litres
0,5 PNM 500 l/jour jusqu'à 3 2*1.1*1.97m 1285$ 150 litres
0,75P 750 l/jour jusqu'à 3 2.25*.086*1.67m 1150$ 250 litres
0,75 PNM 750 l/jour jusqu'à 3 2.65*.086*1.97m 1550$ 250 litres
0,75 NPNM 750 l/jour jusqu'à 3 3.05*.086*1.97m 1685$ 250 litres
0,85P 850 l/jour jusqu'à 5 2.1*1.1*1.67m 1250$ 280 litres
0,85 NP 850 l/jour jusqu'à 5 2.1*1.1*1.67m 1385$ 280 litres
0,85 NPN 850 l/jour jusqu'à 5 2.5*1.1*1.67m 1540$ 280 litres
1 lun 1000 l/jour 3 à 5 3*1.1*1.67m 1780$ 350 litres
1 PNM 1000 l/jour 3 à 5 3*1.1*1.97m 1805$ 350 litres
1 NPNM 1000 l/jour 3 à 5 3.35*1.1*1.97m 1980$ 350 litres
1.2P 1200 l/jour jusqu'à 5 2.88*1.1*1.67m 1555$ 400 litres
13h20 1200 l/jour jusqu'à 5 2.8*1.1*1.97m 1790$ 400 litres
1.2 MNP 1200 l/jour jusqu'à 5 3.6*1.1*1.67m 1845$ 400 litres
1.5P 1500 l/jour 5 à 7 3.5*1.1*1.67m 1780$ 500 litres
1,5 NPR 1500 l/jour 5 à 7 4.1*1.1*1.67m 2120$ 500 litres
2 lun 2000 l/jour 7 à 10 4.5*1.3*1.67m 2410$ 650 litres
2 PNM 2000 l/jour jusqu'à 12 4.5*1.3*1.67m 2570$ 650 litres
3P 3000 l/jour jusqu'à 15 4*1.6*1.67m 2535$ 800 litres
3 NPNM 3000 l/jour jusqu'à 15 5*1.6*1.97m 3030$ 800 litres
4P 4000 l/jour jusqu'à 20 4*1.3*1.67m 4190$ 1200 litres
6P 6000 l/jour du 22 au 30 4*1.6*1.67m 5000$ 2000 litres

Préparation pour l'installation d'une fosse septique

Après avoir décidé du mode d'évacuation des effluents traités, vous devez équiper un site pour leur réception : un fossé de drainage, un puits de filtration ou un champ. Autre point important : la préparation du site pour l'entrée des effluents dans la fosse septique. Si la sortie d'égout du bâtiment est suffisamment profonde, il peut être nécessaire d'équiper une station de pompage. Le liquide contaminé s'y écoulera par gravité.

Le schéma illustré sur la figure avec une station d'égout n'est utilisé que dans le cas d'une position trop profonde de la sortie d'égout du bâtiment

De plus, la pompe fécale le pompera dans la fosse septique pour le nettoyage. L'équipement de pompage n'est pas nécessaire si la sortie d'égout n'est pas trop profonde. Dans la plupart des cas, vous n'aurez pas besoin d'équipement spécial pour l'installation d'une fosse septique Tver. Son poids est petit. Le plus grand bâtiment avec un "gréement" complet sous forme d'argile expansée, de calcaire, etc.pèse environ 390 kg, ce qui lui permet d'être descendu dans la fosse par plusieurs personnes.

Bien sûr, il est plus confortable de travailler avec un équipement spécial, mais si nécessaire, vous pouvez vous en passer. La profondeur d'installation de la fosse est petite. Pour les modèles standards, il n'est que de 1,65 m, ce qui facilite grandement le travail. C'est pourquoi la marque Tver est volontairement choisie pour une installation dans des zones à fort GWL. Vous pouvez creuser une fosse en utilisant un équipement spécial ou par vous-même.

Règles d'installation

L'achat d'une fosse septique Tver n'est pas un problème, même s'il n'y a pas de magasins spécialisés dans le domaine de résidence, vous pouvez passer une commande via le site Web. Mais il ne suffit pas d'acheter l'installation, il faut la mettre en service. Voyons comment installer la fosse septique Tver.

Travaux d'installation

Pour installer une fosse septique Tver, vous devrez effectuer les opérations suivantes :

  • effectuer des travaux de terrassement en préparant une fosse et des tranchées pour les canalisations ;
  • faire un coussin de sable absorbant les chocs, poser une dalle en béton armé;
  • installer une fosse septique en nivelant le corps;
  • ancrage en fixant la coque avec des sangles sur la plaque;
  • connecter les communications - pipelines et alimentation électrique ;
  • la fosse est remplie d'un mélange spécialement préparé de sable et de ciment;
  • le premier démarrage de l'installation.

Malgré le fait que l'installation d'une fosse septique Tver n'est pas considérée comme une affaire trop compliquée, le fabricant ne recommande pas de faire le travail vous-même. Il est préférable de confier l'installation à des spécialistes. Le fait est qu'il est nécessaire non seulement d'effectuer correctement toutes les opérations, mais également de prendre en compte les conditions locales - le type de sol, la topographie du site, etc.

Comment la fosse septique Tver est installée: un aperçu de la technologie d'installation

Comment avance ton travail?

La fosse septique très efficace Tver assure un nettoyage complet des effluents d'eaux usées domestiques pollués.

Comment la fosse septique Tver est installée: un aperçu de la technologie d'installation

Méthodes

La haute qualité de la fosse septique est assurée par le fait que la station utilise le principe du traitement en plusieurs étapes. Les effluents qui pénètrent à l'intérieur sont traités selon les méthodes suivantes :

Règlement. Une méthode naturelle de purification de l'eau des inclusions non dissoutes qui ont un poids différent de celui de l'eau.

Comment la fosse septique Tver est installée: un aperçu de la technologie d'installation

Nettoyage aux boues activées. Aussi une méthode biologique, mais des bactéries aérobies sont utilisées pour son déroulement. Ces micro-organismes contribuent à la décomposition de la matière organique en eau, dioxyde de carbone et nitrite.

Évaluation
Site sur la plomberie

Nous vous conseillons de lire

Où remplir la poudre dans la machine à laver et combien de poudre verser