- Ventilation dans une chaufferie avec une chaudière à gaz
- Pour chaudière à combustible solide
- Tuyau d'échappement en acier inoxydable
- Exigences d'échange d'air
- Faut-il ventiler une chaufferie chez un particulier, et pourquoi ?
- Les principales règles et exigences pour la ventilation de la chaufferie conformément au SNiP (+ vidéo)
- Calcul d'échange d'air avec formule et exemple (+ vidéo avec des explications plus détaillées)
- Projet de chaudière
- Types de cheminées
- Brique
- tuyau galvanisé
- cheminée coaxiale
- Céramique
- Acier inoxydable
- Vérification du fonctionnement du système de ventilation
- Critères et normes
- Options pour les conduits de gaz pour une maison de campagne
- Guide de sélection
- Cheminée de chaudière à combustible solide
- Types de systèmes
- Approvisionnement naturel
- Forcé
Ventilation dans une chaufferie avec une chaudière à gaz
Pour les équipements au gaz, les documents réglementaires indiquent le taux de renouvellement d'air minimum de 3 fois par heure. Mais en fait, ils tiennent compte de la conception, de l'appareil et des caractéristiques du modèle. Si le brûleur est de type ouvert, calculez la quantité d'oxygène consommée. Pour générer 1 kW d'énergie thermique, il faut 0,12 m³ de gaz. Pour un équipement d'une puissance de 24 kW, ce chiffre sera de 2,88 m³. La consommation moyenne d'oxygène est 10 fois supérieure, 28,8 m³ par heure.
La ventilation efficace d'une chaufferie à gaz se fait selon les règles suivantes :
- Le tuyau d'alimentation pour l'alimentation est installé au bas du mur opposé à l'appareil de chauffage.
- L'échappement est monté au-dessus de la chambre de combustion.
- Un clapet anti-retour est installé dans l'air d'alimentation pour empêcher un changement de direction du flux d'air.
- La hotte d'une chaudière à gaz dans une maison privée a un diamètre plus grand que les canaux.
Ce dernier est nécessaire pour répartir le débit du conduit de ventilation d'alimentation entre la bouche d'évacuation et la cheminée de l'installation de chauffage. Sinon, moins de pression sera créée dans la chambre de combustion, ce qui entraînera une diminution de la puissance. Lisez tout sur les systèmes d'extraction de fumée ici.

Disposition des éléments de ventilation et des fenêtres dans la chaufferie
Pour chaudière à combustible solide
Une caractéristique de l'apport de chaleur à combustible solide est l'entrée périodique de produits de combustion dans la pièce. Cela se produit pendant le chargement du combustible, l'élimination des cendres. Par conséquent, pour le chauffage avec une chaudière à combustible solide, le taux de renouvellement d'air est augmenté de 10 à 15 % par rapport à une chaudière à gaz.
À considérer :
- La sortie du canal de circulation est installée verticalement dans le plafond au-dessus de la zone de formation de suie.
- La distance minimale entre celui-ci et la cheminée est de 0,5 m.
- Protection contre les courants d'air de la cheminée. Il est nécessaire de le nettoyer périodiquement de la suie, de vérifier l'intégrité.
Pour la convection artificielle de l'air, des ventilateurs standard sont installés. Leur puissance fournit un débit égal à la somme du débit du conduit d'évacuation et de la cheminée.
La longueur de l'élément vertical pour le mouvement de convection des masses d'air doit être d'au moins 3 mètres. Le tuyau d'admission est situé au-dessus de la chambre de combustion et du cendrier.
Tuyau d'échappement en acier inoxydable
Les cheminées en acier sont disponibles en différentes versions.Un tuyau à simple paroi est placé dans une maçonnerie. Un schéma similaire est également utilisé pour la restauration d'un canal qui fonctionnait avec une chaudière à combustible solide. Il est assemblé à partir de sections d'usine prêtes à l'emploi, chacune d'entre elles se compose d'une coque extérieure et d'une coque intérieure. L'espace entre eux est rempli de matériau d'isolation thermique. De telles structures sont destinées à être installées dans la maison ou de l'extérieur. Les canaux de construction spécialisés ne sont pas nécessaires.
Pour protéger la structure des processus destructeurs de l'acide, qui apparaît à partir du soufre contenu dans les gaz d'échappement, un métal inoxydable spécial est utilisé. Le coût de structures similaires est plus élevé que celui de la brique et de la céramique, mais elles présentent de bonnes qualités. Ils sont montés à partir de certains modules, les parois sont parfaitement planes et lisses, faciles à nettoyer, non sujettes à l'accumulation de condensat. Le poids léger ne nécessite pas d'appareil de base. Pour nettoyer les canaux qui se trouvent à l'intérieur, il est démonté en composants.

Le matériau n'est pas inflammable, résistera à la température de la fumée sortante. L'équipement d'usine prend en compte l'achat prévu de tés, de coudes, ce qui permet de créer n'importe quelle configuration à l'angle requis. Faire une cheminée dans une maison déjà construite ne nécessite pas de modifications sérieuses, même si cela n'est pas prévu par le projet. Peut être fixé au mur. Le diamètre du canal intérieur est choisi pour correspondre à la taille du trou pour la sortie de la chaudière à gaz.
Le placement externe d'une structure à simple paroi entraîne une formation très élevée de condensat, qui interfère avec le tirage normal. Pour éviter de mauvaises conséquences, il est placé dans un canal en brique ou un modèle sandwich avec isolation thermique est utilisé.Afin de réduire le coût de ces produits, en plus de l'acier inoxydable, de l'acier revêtu de zinc est utilisé. Le tube interne a une épaisseur de 0,5 à 0,6 mm. Les appareils à deux étages sont plus économiques que les autres hottes métalliques en raison d'une bonne isolation thermique, ils ne nécessitent pas la construction d'un canal de brique externe.
Le pôle de ventilation s'accumule dans cet ordre :
- commencez par le segment inférieur en installant un tuyau dans un autre;
- suggérer un grand nombre d'écoutilles furtives;
- les supports pour le montage mural sont installés après 1,5 m;
- la longueur des tronçons horizontaux ne peut excéder 1 mètre sans ventilation mécanique.

Lors de l'achat d'un modèle à double circuit, une attention particulière est portée au matériau des tuyaux. Pour l'intérieur, seul l'inox est autorisé, le métal galvanisé ne convient pas. A une température d'un peu plus de 400°, il commence à s'oxyder, des fumées toxiques apparaissent
Une humidité élevée aggrave la situation. Une conception similaire est très facile à réaliser de vos propres mains. Pour l'isolation, utilisez du coton à base de basalte, du sable d'argile expansée, du polyuréthane
A une température d'un peu plus de 400°, il commence à s'oxyder, des fumées toxiques apparaissent. Une humidité élevée aggrave la situation. Une conception similaire est très facile à réaliser de vos propres mains. Pour l'isolation, on utilise du coton à base de basalte, du sable d'argile expansé, du polyuréthane.
Exigences d'échange d'air
Lors de la conception de la ventilation dans les cuisines équipées de cuisinières à gaz, il est nécessaire de respecter les exigences des normes sanitaires et de sécurité incendie (GOST, SNiP, SanPiN et SP). L'approvisionnement en gaz des appartements et des chalets est une aubaine incontestable, car il peut réduire considérablement les factures de services publics. Mais il y a un certain nombre de points.
Les deux options de livraison : le gaz principal transporté par des tuyaux et le GPL provenant d'un réservoir ou d'une bouteille de gaz sont une source de danger. Il est impossible de négliger la réglementation et d'oublier les règles de sécurité.
La conception et l'installation de cuisines avec cuisinières à gaz sont réglementées par plusieurs documents à la fois. De plus, il existe toutes sortes de recommandations basées sur les normes données.
Si l'évacuation et l'alimentation en air d'une cuisine gazéifiée ne sont pas organisées correctement, la pièce peut devenir une source de problèmes graves associés à un feu ouvert et à une éventuelle explosion de "combustible bleu".
Les cuisinières à gaz peuvent être installées à la fois dans les maisons privées et dans les immeubles d'habitation. La hauteur du bâtiment ne peut pas dépasser 10 étages. Dans le même temps, les locaux pour eux doivent avoir une fenêtre et être bien éclairés par la lumière naturelle du soleil.
Si l'évacuation de l'air dans la cuisine avec une cuisinière à gaz est insuffisante, lorsque le brûleur s'atténue ou que le tuyau se casse, le gaz s'accumule dans la pièce et explose tôt ou tard
Une cuisine pour l'installation d'une cuisinière à gaz doit:
- être avec des plafonds de 2,2 m et plus ;
- avoir une ventilation avec alimentation / évacuation d'air naturel;
- avoir une fenêtre qui a un châssis ouvrant soit en haut d'une imposte ou d'une fenêtre.
La capacité cubique d'une pièce avec un poêle à gaz domestique doit être au minimum (et de préférence plus):
- 8 m3 - avec deux brûleurs ;
- 12 m3 - avec trois brûleurs ;
- 15 m3 - avec quatre brûleurs.
Dans certains cas, il est permis de s'écarter légèrement de ces normes, mais uniquement si ces écarts sont convenus avec les inspecteurs du ministère des Situations d'urgence et d'autres organismes de réglementation.
Afin d'éviter les problèmes avec le poêle, l'air dans la cuisine doit être suffisant pour brûler le gaz, et il doit également être constamment remplacé par une nouvelle rue
Lors de l'organisation de l'échange d'air dans la cuisine, il est important de s'assurer que l'air neuf provient exclusivement de la rue. Cela empêchera les masses d'air de pénétrer dans la cuisine avec un excès d'odeurs et d'humidité, ainsi qu'une faible teneur en oxygène.
Seuls les réchauds à gaz méthane ou propane-butane ne suffisent pas à fonctionner.
Le taux de renouvellement d'air pour une cuisine avec une cuisinière à gaz est de 100 m3 / heure. Dans le même temps, dans la plupart des immeubles d'habitation, les conduits de ventilation d'une largeur de 130 à 150 mm du système de ventilation générale sont conçus pour un débit allant jusqu'à 180 m3/heure.
Il suffit de fournir le débit d'air requis depuis l'extérieur. Dans une maison particulière, tout dépend du projet. Ici, il est nécessaire de regarder un exemple spécifique, à quoi le système de ventilation existant est conçu.
Faut-il ventiler une chaufferie chez un particulier, et pourquoi ?
Oui, dans les chaufferies des maisons privées, il est impératif d'organiser une ventilation répondant aux normes du SNiP.
Dans cette pièce, le système de ventilation assurera les fonctions suivantes :
- Fournir une alimentation en oxygène pour une combustion normale. S'il n'y a pas assez d'oxygène, tout carburant ne brûlera pas complètement. En conséquence, moins de chaleur est dégagée, plus de combustible est dépensé pour maintenir la température souhaitée dans les locaux résidentiels, l'usure de la chaudière est accélérée et les fumées s'accumulent à l'intérieur de la cheminée.
- Éliminer le monoxyde de carbone. Tous les produits de combustion ne peuvent pas être évacués par la cheminée - en petite quantité, ils peuvent pénétrer dans la pièce. Si la ventilation ne permet pas un échange d'air suffisant, la concentration de monoxyde de carbone peut atteindre des niveaux critiques et pénétrer dans d'autres pièces.
- Retirez le gaz si possible.Au fil du temps, la conduite de gaz vers la chaudière peut perdre son étanchéité et du gaz peut s'accumuler dans la pièce. Si cela n'est pas remarqué, une explosion ou un empoisonnement est possible.
C'est-à-dire qu'une ventilation de four correctement équipée donne l'effet suivant:
- réduit le risque d'incendie ou d'explosion;
- réduit le risque d'empoisonnement naturel ou au monoxyde de carbone;
- la chaudière fonctionne à plein rendement, sans dépasser les charges (ce qui signifie qu'elle peut durer plus longtemps sans réparation) ;
- la température dans la maison est maintenue sans charge excessive sur la chaudière et sans dépasser la consommation de combustible.
Les principales règles et exigences pour la ventilation de la chaufferie conformément au SNiP (+ vidéo)
Avez-vous besoin d'un système de ventilation - découvert. Maintenant sur les principales règles et exigences pour son agencement.
Schéma simplifié de ventilation de la chaufferie
La chaufferie peut être équipée dans de tels locaux:
- Module de construction ou de bloc autoportant.
- Annexe.
- Chambre à l'intérieur de la maison.
- Cuisine (admissible si la puissance de la chaudière ne dépasse pas 30 kW).
- Grenier.
Lors de la construction de maisons privées, les fours sont généralement installés dans une pièce séparée au rez-de-chaussée, à côté d'un garage ou d'une autre pièce.
Les exigences et les normes relatives à l'aménagement des chaufferies dans les maisons privées sont réglementées dans le SNiP 42-02-2002.
Parmi les principales exigences :
- Exigences pour la pièce, si la chaudière est placée dans une pièce séparée: volume - à partir de 7,5 m³, surface - à partir de 6 m², hauteur sous plafond - à partir de 2,5 m.
- Les chaudières d'une capacité de plus de 30 kW - doivent être installées uniquement dans une pièce séparée. Chaudières avec moins de puissance - peuvent être placées dans la cuisine.
- Lors de l'installation de la chaudière dans la cuisine, sa superficie doit être supérieure à 15 m²
- La chaufferie doit avoir une porte séparée sur la rue.
- La section transversale des ouvertures d'entrée: de la rue - à partir de 8 cm² pour chaque 1 kW de puissance de la chaudière, d'une pièce adjacente (par exemple - de la cuisine, à travers le mur) - à partir de 30 cm² pour chaque 1 kW de puissance.
Calcul d'échange d'air avec formule et exemple (+ vidéo avec des explications plus détaillées)
Il est nécessaire de choisir les sections des conduits de ventilation et la puissance du ventilateur d'extraction en fonction du renouvellement d'air souhaité.
Pour calculer la bonne quantité d'air, vous devez savoir :
Le taux d'échange d'air. Selon SNiP - pour les chaufferies, il est de 3 (c'est-à-dire qu'en 1 heure dans la chaufferie, l'air doit être complètement renouvelé 3 fois).
Le volume de la pièce. Pour mesurer, vous devez multiplier la hauteur par la largeur et multiplier par la longueur (toutes les valeurs sont prises en mètres).
Combien d'air la chaudière a-t-elle besoin pour la combustion
Pour les chaudières à gaz (peu importe - avec une chambre de combustion ouverte ou fermée) dans les maisons privées, une grande précision n'est pas nécessaire, vous pouvez donc prendre 10 "cubes" d'air pour 1 "cube" de gaz pour les calculs. Pour le carburant diesel - 12.
Donnons un exemple - calculons le système de ventilation d'une chaufferie dans une pièce séparée attenante à la maison:
- Nous calculons le volume de la pièce. Par exemple, prenons les dimensions 2,5 x 3,5 x 2,5 = 21,875 m³. Pour un calcul plus précis, vous pouvez soustraire le volume (taille) de la chaudière elle-même du volume «total».
- Nous regardons dans les caractéristiques de notre chaudière quelle quantité de gaz elle peut brûler au maximum en 1 heure. Par exemple, nous avons un modèle Viessmann Vitodens 100 (35 kW), avec une consommation maximale de 3,5 "cubes". Cela signifie que pour une combustion normale à charge maximale, la chaudière a besoin de 3,5 x 10 = 35 m³/h d'air. Cette caractéristique n'est pas couverte par la règle environ trois fois, nous l'ajoutons donc simplement au résultat.
Maintenant, nous effectuons le calcul en utilisant tous les indicateurs :
21.875 x 3 (trois changements d'air) + 35 = 100 m³/h
Juste au cas où vous auriez besoin de faire une réserve - en moyenne jusqu'à + 20-30% de la valeur résultante :
100 + 30% = 130 m³/h (arrondi au supérieur) doivent être fournis et évacués par le système de ventilation de la chaufferie à charge maximale sur la chaudière. Par exemple, nous avons pris la marge maximale (30%), en fait, vous pouvez vous limiter à 15-20%.
Projet de chaudière
La conception d'une chaufferie pour une maison privée est l'étape la plus importante de sa construction. Il est impossible de le réaliser seul - des concepteurs expérimentés qui disposent de tous les permis nécessaires pour ce type d'activité doivent s'occuper du projet.
Au cours du processus de conception, calcul d'ingénierie thermique du bâtiment et la sélection de l'équipement nécessaire, des dessins d'exécution sont en cours d'élaboration. Toutes les solutions techniques sont décrites dans la notice explicative. C'est cet ensemble de documents qui est ensuite soumis pour approbation aux autorités compétentes.

Chaudière à gaz au sous-sol
Au stade de la conception, le type de chaufferie est également sélectionné. Les principaux critères de sélection sont les suivants :
- Type de vecteur énergétique : sélectionné en fonction des conditions du chantier. Quelque part, il est moins cher d'utiliser du gaz, mais quelque part, il faut se contenter de bois de chauffage.
- Mode chauffage : si, par exemple, la maison est utilisée comme habitation occasionnelle, les concepteurs peuvent prévoir un contrôle logiciel du système de chauffage. Dans ce cas, le régime de température peut être contrôlé à la discrétion du propriétaire: en son absence, il suffira de maintenir une température de +10 degrés et, à son arrivée, la maison se réchauffera à +20 degrés confortables.
- Emplacement de la chaufferie : en cas de nouvelle construction, il est conseillé de prévoir une chaufferie séparée dans le projet.Dans une maison déjà construite, il n'est pas toujours possible de trouver un endroit approprié pour installer un équipement de chaudière, vous devez donc construire un bâtiment ou une extension supplémentaire.
Après une étude approfondie des problèmes ci-dessus, vous pouvez procéder à la conception.
Pour chauffer une maison de campagne, il existe différents types de chaudières de chauffage. Il vous suffit de choisir le type de carburant. À cet égard, les chaudières de chauffage combiné sont une option gagnant-gagnant. combinant deux types de carburant. Découvrez les caractéristiques de la conception et du fonctionnement de tels systèmes.
Vous trouverez ici un exemple détaillé de calcul de la puissance d'une chaudière de chauffage.
Un poêle ordinaire, qu'il soit suédois, néerlandais ou russe, ne peut chauffer qu'une petite maison. Mais que se passe-t-il s'il y a beaucoup de grandes pièces dans la maison ? Chauffage du four à l'eau circuit résoudra le problème de chauffage de la maison. Tout sur l'agencement de ce système est ici.
Types de cheminées
Les tuyaux sont fabriqués à partir de différents matériaux, que nous examinerons plus en détail.
Brique
Les cheminées en briques classiques pour une chaudière à gaz sont toujours en demande, quels que soient leurs nombreux inconvénients et leurs mauvaises performances thermiques. Dans le même temps, ils respectent les normes et règles sanitaires, qui stipulent :
- Le tuyau est fait de briques d'argile réfractaire.
- Pour la construction des murs, une solution d'argile ou de colle spéciale est utilisée.
- Pour améliorer le tirage, la cheminée s'élève au-dessus du niveau du faîte du toit.
Les normes réglementent la hauteur du tuyau par rapport au faîte du toit, en fonction de la distance entre eux
- La maçonnerie assure l'étanchéité.
- Au trou intérieur, la déviation n'est pas supérieure à 3 mm par 1 m.
- Pour protéger contre les précipitations, un déflecteur est installé sur la tête du tuyau.
De plus, la cheminée peut avoir une conception mono qui, en raison de faibles caractéristiques thermiques, est réparée tous les 5 à 7 ans.
tuyau galvanisé
Un dispositif sandwich est aujourd'hui l'option de conception de cheminée la plus efficace. L'avantage incontestable de ces cheminées est leur résistance aux environnements agressifs et aux diverses influences mécaniques.
Le produit se compose de deux tuyaux de tailles différentes, l'un inséré dans l'autre. La laine de basalte est généralement utilisée comme charge entre eux.
cheminée coaxiale
Actuellement, les chaudières à gaz utilisent des chambres de combustion de type fermé. Ici, l'admission d'air et le désenfumage sont réalisés par un tuyau coaxial. Il s'agit d'un appareil original, introduit relativement récemment, mais déjà très populaire parmi les utilisateurs.
La solution non standard réside dans l'admission d'air par un tuyau qui évacue les produits de combustion. Il s'avère qu'un tuyau remplit deux fonctions en raison des caractéristiques de conception.
Une cheminée coaxiale est un tuyau dans un tuyau
Et sa différence caractéristique par rapport aux tuyaux ordinaires est la suivante ... Un tuyau plus petit (60-110 mm) est situé dans un tuyau de plus grand diamètre (100-160 mm) de manière à ce qu'ils ne se touchent pas.
Dans le même temps, la structure est un tout en raison des cavaliers sur toute la longueur et est un élément rigide. Le tuyau intérieur sert de cheminée et le tuyau extérieur sert d'air frais.
L'échange d'air à différentes températures crée une traction et définit la masse d'air dans un mouvement dirigé.L'air de la pièce n'est pas utilisé pendant le fonctionnement de la chaudière, maintenant ainsi le microclimat dans la pièce.
Céramique
Une telle cheminée est une structure composite, comprenant :
- Conduit de fumée en matériau céramique.
- Couche isolante ou lame d'air.
- Surface extérieure en béton Claydite.
Cette conception complexe est due à plusieurs raisons. Premièrement, le tuyau de cheminée est trop fragile pour être laissé sans protection.
Un tuyau en céramique est toujours situé à l'intérieur d'un bloc solide.
Deuxièmement, la céramique a une conductivité thermique élevée et nécessite donc une isolation fiable. Le tube intérieur de section circulaire a une surface lisse, tandis que sur le tube extérieur, des rugosités sont autorisées qui n'affectent pas l'intégrité du produit.
En règle générale, ces cheminées sont disponibles dans des longueurs de 0,35 à 1 m, selon le fabricant. La connexion des tuyaux intérieur et extérieur se fait au moyen d'un verrou, qui est un amincissement de la taille externe d'une extrémité et une expansion du tuyau intérieur de l'autre côté.
La surface extérieure en béton d'argile expansée est de forme carrée avec un trou rond à l'intérieur. De plus, ce produit offre une place pour un radiateur, qui est maintenu par des cavaliers métalliques. En même temps, ils sont fixés sur la surface extérieure et constituent une fixation fiable pour ce tuyau.
Acier inoxydable
Une cheminée à gaz en acier semble être plus fiable qu'une cheminée en brique. Ils sont résistants à la corrosion, insensibles aux fluctuations de température, ils ne sont pas affectés par l'augmentation de l'humidité de l'air et les environnements agressifs.
Cheminée en acier inoxydable
De plus, ces tuyaux en acier inoxydable présentent un certain nombre d'avantages:
- Longue période de fonctionnement.
- Multifonctionnalité.
- Coût relativement faible.
- Grande force.
- Réalisation probable d'un produit de toute complexité.
Pour les cheminées constituées de ce matériau, un assemblage de modules est caractéristique, ce qui permet le remplacement d'un segment endommagé si nécessaire. L'installation des cheminées se fait à l'aide de coudes spéciaux qui leur permettent de s'intégrer harmonieusement dans certains éléments du toit.
Vérification du fonctionnement du système de ventilation
Ventilation de la chaufferie dans le mur
Vous pouvez vérifier vous-même le fonctionnement de la ventilation. Pour ce faire, apportez simplement un morceau de papier de cahier ou une serviette dans le conduit de ventilation. S'il y a traction, la feuille sera fixée à la grille. Si cela ne se produit pas, des erreurs de calcul ont peut-être été commises ou les exigences n'ont pas été respectées lors de l'installation des systèmes d'échange d'air. Bien que la cause puisse être le colmatage des conduits d'air.
Si la chaudière se trouve dans la cuisine avec une porte intérieure sans fente spéciale en bas et que les conduits de ventilation pour l'entrée et la sortie d'air sont installés dans des pièces différentes, il n'y aura pas de courant d'air avec les portes fermées. Pour éviter la stagnation de l'air dans la pratique, des grilles de ventilation de porte en plastique sont utilisées. Ils peuvent être ronds ou rectangulaires. Selon le matériau, le prix d'achat peut être différent.
Le fonctionnement sûr de l'appareil de chauffage dépend de la ventilation. Par conséquent, il convient de prendre au sérieux la conception et le choix du type de ventilation. Faites les bons calculs et l'installation. Si les connaissances et l'expérience ne suffisent pas, il vaut mieux recourir aux services de spécialistes
Il est important que la superficie de la pièce corresponde aux équipements installés.Le sol de la chaufferie doit être en matériaux incombustibles
Il est préférable d'utiliser une chape de ciment.
Critères et normes
Il existe des normes de ventilation pour une chaudière à gaz et une pièce avec. Le type de chambre de combustion de l'appareil est important - fermé ou ouvert.
Les chaudières à chambre de combustion fermée doivent être équipées d'un conduit coaxial. Deux processus s'y déroulent de manière synchrone: l'air de la rue pénètre dans le brûleur et les résultats de la combustion sont éliminés.

La ventilation dans une pièce avec une chaudière à gaz est montée en tenant compte des critères suivants:
- Le nombre maximum d'unités d'équipement à gaz pour le raccordement à la cheminée est de 2. Dans le même temps, leur distance et leur position n'ont pas d'importance.
- Les produits de combustion pénètrent dans les cheminées à une distance d'au moins 50 cm à différents niveaux. Lors de l'alimentation à partir d'un seul niveau, une coupe est placée dans la cheminée, ayant une hauteur de 50 cm ou plus.
- Étanchéité absolue de tout le système de ventilation. Même les fuites minimes de carburant et de suie doivent être exclues.
- Les coutures aux joints des cheminées sont recouvertes d'un scellant résistant à la chaleur.
- Tous les éléments du système sont équipés d'une isolation thermique. Il s'agit d'une mesure essentielle de prévention des incendies.
- La ventilation est équipée de sorte qu'une sortie se forme dans un triple échange d'air, il y a une alimentation avec une sortie et un volume d'air est ajouté pour la combustion.
Pour les appareils à chambre de combustion ouverte, les principaux critères sont reflétés dans SNiP 2.04. 05-91. Si leur puissance ne dépasse pas 30 kW, ils peuvent être montés dans la cuisine, seulement il ne devrait pas y avoir de cuisinière.

Et les modèles avec un compartiment fermé dans ces pièces sont autorisés à être utilisés.
Si la puissance de l'appareil est supérieure à 30 kW, une extension distincte est créée pour lui - une chaufferie.Il a les exigences suivantes :
La présence de deux options d'échange d'air: forcée et naturelle.
Superficie - au moins 15 m².
La plus petite hauteur de plafond est de 2,4 m, selon les normes, il s'agit d'un indicateur de 6 m, mais s'il est inférieur, une valeur de correction de 0,25 est appliquée pour chaque mètre de descente.
Pour 1 mètre cube, la superficie des fenêtres atteint 300 cm².
La présence d'une entrée indépendante. Dans le prolongement, vous pouvez aménager une porte menant au secteur résidentiel.
Le site d'installation de l'équipement est recouvert de matériaux incombustibles, tels que des feuilles de métal ou de panneaux d'amiante.
Si un équipement avec un brûleur ouvert est installé, la longueur minimale de la cheminée est de 4 m, le nombre de tours dans les coins ne dépasse pas 3
C'est une condition importante pour la formation de la traction.
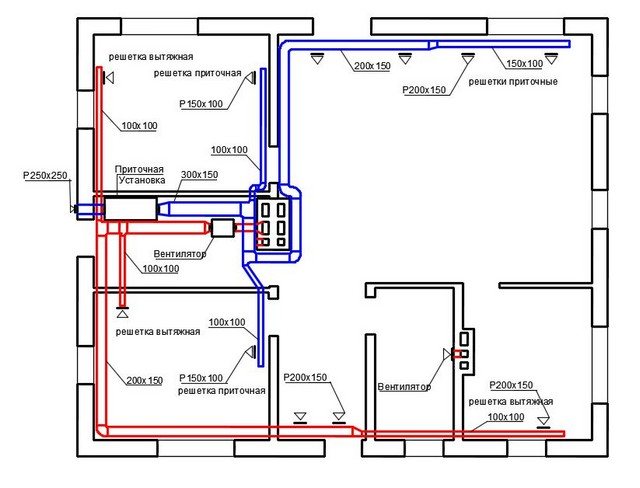
Schématiquement, la ventilation de la chaufferie se présente comme suit :

Des canaux de circulation d'air doivent être créés au stade de la construction. Leur diamètre minimum est de 20 cm.Après les calculs finaux, des ventilateurs et de petites grilles avec manchons d'adaptation peuvent être montés.
Options pour les conduits de gaz pour une maison de campagne
Pour évacuer les produits de combustion à température relativement basse (jusqu'à 120 ° C) émis par les chaudières à gaz, les types de cheminées suivants conviennent:
- sandwich modulaire en acier inoxydable à trois couches avec isolation incombustible - laine de basalte;
- un canal constitué de tuyaux en fer ou en amiante-ciment, protégé par une isolation thermique;
- les systèmes isolés en céramique tels que Schiedel ;
- bloc de briques avec un insert de tuyau en acier inoxydable, recouvert de l'extérieur d'un matériau calorifuge;
- idem, avec un manchon interne en polymère de type FuranFlex.
Dispositif sandwich à trois couches pour le désenfumage
Expliquons pourquoi il est impossible de construire une cheminée en brique traditionnelle ou de mettre un tuyau en acier ordinaire relié à une chaudière à gaz. Les gaz d'échappement contiennent de la vapeur d'eau, qui est un produit de la combustion des hydrocarbures. Au contact des parois froides, l'humidité se condense, puis les événements se déroulent comme suit :
- Grâce à de nombreux pores, l'eau pénètre dans le matériau de construction. Dans les cheminées métalliques, le condensat coule le long des murs.
- Étant donné que les chaudières à gaz et autres chaudières à haut rendement (au diesel et au propane liquéfié) fonctionnent périodiquement, le gel a le temps de capter l'humidité et de la transformer en glace.
- Les granules de glace, de plus en plus grosses, décollent la brique de l'intérieur et de l'extérieur, détruisant progressivement la cheminée.
- Pour la même raison, les parois d'un conduit de fumée en acier non isolé plus près de la tête sont couvertes de glace. Le diamètre de passage du canal diminue.
Tuyau en fer ordinaire isolé avec de la laine de kaolin incombustible
Guide de sélection
Étant donné que nous avons initialement entrepris d'installer une version peu coûteuse de la cheminée dans une maison privée, adaptée à une installation à faire soi-même, nous recommandons d'utiliser un sandwich de tuyau en acier inoxydable. L'installation d'autres types de tuyaux est associée aux difficultés suivantes:
- L'amiante et les tuyaux en acier à paroi épaisse sont lourds, ce qui complique le travail. De plus, la partie extérieure devra être gainée d'isolant et de tôle. Le coût et la durée de la construction dépasseront certainement l'assemblage d'un sandwich.
- Les cheminées en céramique pour chaudières à gaz sont le meilleur choix si le développeur en a les moyens. Les systèmes tels que Schiedel UNI sont fiables et durables, mais trop chers et hors de portée du propriétaire moyen.
- Des inserts en acier inoxydable et en polymère sont utilisés pour la reconstruction - revêtement de canaux en briques existants, précédemment construits selon d'anciens projets. Clôturer spécialement une telle structure n'est ni rentable ni inutile.
Variante de conduit avec insert en céramique
Une chaudière à gaz suralimentée peut également être raccordée à une cheminée verticale conventionnelle en organisant l'apport d'air extérieur par une canalisation séparée. La solution technique doit être mise en œuvre lorsqu'un conduit de gaz a déjà été réalisé dans une maison privée, amené sur le toit. Dans d'autres cas, un tuyau coaxial est monté (illustré sur la photo) - c'est l'option la plus économique et la plus correcte.
Il convient de noter le dernier moyen le moins cher de construire une cheminée: faites de vos propres mains un sandwich pour une chaudière à gaz. Un tuyau en acier inoxydable est pris, enveloppé dans de la laine de basalte de l'épaisseur requise et gainé d'une toiture galvanisée. La mise en œuvre pratique de cette solution est illustrée dans la vidéo :
Cheminée de chaudière à combustible solide
Le mode de fonctionnement des appareils de chauffage au bois et au charbon implique le dégagement de gaz plus chauds. La température des produits de combustion atteint 200 ° C ou plus, le canal de fumée se réchauffe complètement et le condensat ne gèle pratiquement pas. Mais il est remplacé par un autre ennemi caché - la suie déposée sur les parois intérieures. Périodiquement, il s'enflamme, faisant chauffer le tuyau jusqu'à 400-600 degrés.
Les chaudières à combustible solide conviennent aux types de cheminées suivants :
- acier inoxydable à trois couches (sandwich);
- tuyau à simple paroi en acier inoxydable ou en acier noir à paroi épaisse (3 mm);
- céramique.
Le conduit de gaz en brique de section rectangulaire 270 x 140 mm est garni d'un tuyau inox ovale
Il est contre-indiqué de poser des tuyaux en amiante sur les chaudières, les poêles et les cheminées TT - ils se fissurent à haute température. Un simple canal de brique fonctionnera, mais en raison de la rugosité, il sera obstrué par de la suie, il est donc préférable de le recouvrir d'un insert en acier inoxydable. Le manchon polymère FuranFlex ne fonctionnera pas - la température de fonctionnement maximale n'est que de 250 ° C.
Types de systèmes
Approvisionnement naturel
Une telle ventilation est utilisée dans les petites maisons privées équipées d'appareils de chauffage de faible puissance. Des ouvertures pour l'arrivée d'air propre de l'extérieur sont équipées aux extrémités opposées de la chaufferie. Par exemple, si la chaudière est installée en face de la porte, l'ouverture d'évacuation est équipée au-dessus de l'appareil à gaz afin que l'air se déplace d'en bas à travers toute la pièce et monte jusqu'à la hotte. La fenêtre peut être sur n'importe quel mur.
S'il y a une fenêtre dans la chaufferie, il est nécessaire d'aérer régulièrement la pièce en ouvrant la fenêtre. Pour un apport constant d'air frais de l'extérieur, il est recommandé de faire un trou dans le mur d'un diamètre d'au moins 150–200 mm. Pour percer un mur, vous avez besoin d'un perforateur ou d'une perceuse avec une buse à couronne (vous pouvez en apprendre davantage sur les caractéristiques importantes de l'installation de la ventilation dans le mur de vos propres mains, ainsi que voir le schéma de pose ici).
S'il y a déjà un puits de ventilation dans le mur, une grille est installée sur la partie de celui-ci qui pénètre dans la pièce et à l'autre extrémité (tuyau amené sur le toit) - un capuchon qui protège le tuyau de l'eau et des petits débris entrer dedans (quelles sont les caractéristiques de l'installation manuelle des bouches de ventilation?).
Toutes les ouvertures, tant à l'intérieur qu'à l'extérieur de la pièce, doivent être équipées de grilles, car sans grille, les déchets, l'eau et les petits rongeurs peuvent pénétrer dans le système de ventilation.
Forcé
La ventilation artificielle est utilisée lorsque la ventilation naturelle de la pièce ne suffit pas. Il sera nécessaire d'installer un ventilateur de gaine ou un système combiné avec plusieurs filtres (pour filtrer les petits débris, la poussière), un élément chauffant à eau (réchauffeur) et des ventilateurs dans la chaufferie.
Le système fonctionne comme ceci : l'air entre dans la chambre et les produits de combustion sont évacués à la vitesse nécessaire à l'échange d'air. Avant d'acheter un ventilateur, vous devez calculer ses performances. Selon les exigences du SNiP, en 1 heure, l'air de la chaufferie doit changer au moins 3 fois. Par exemple, si le volume de la chaufferie est de 10 m³, alors 10 x 3 = 30 m³ / h est la performance minimale du ventilateur.
ici







































