- Ventilation correcte du sauna : exigences techniques
- Variantes et dispositions des conduits de ventilation
- Comment faire de la ventilation dans le bain de vos propres mains
- Recommandations pour l'agencement de la ventilation du bain
- Le système de ventilation dans le bain : qu'est-ce que ça peut être ?
- Vidéo utile
- Ventilation naturelle dans le bain
- Ventilation forcée
- Types de ventilation forcée
- Ventilation d'échappement
- Ventilation forcée
- Ventilation d'alimentation et d'extraction
- Schémas standard des systèmes de ventilation
- Schéma mécanique
- aération naturelle
- Système de ventilation d'alimentation et d'extraction
- Une bonne ventilation du sauna ou du bain
- Les principales lois d'une bonne ventilation dans le sauna
- Les trois schémas de ventilation de sauna les plus simples
- Comment faire des conduits de ventilation?
- PRÉPARATION À L'INSTALLATION DU FOUR ÉLECTRIQUE
Ventilation correcte du sauna : exigences techniques
Les conduits d'alimentation et d'évacuation du hammam doivent être conçus de manière à créer un équilibre d'air. Les masses ne doivent pas stagner ou se retirer rapidement, le débit et le débit doivent être réglables de manière à pouvoir prévoir la direction des flux. La formation de courants d'air est inacceptable.
Pour décider comment assurer correctement l'échange d'air dans le sauna, il est nécessaire de le concevoir correctement dès les premières étapes: au moins un mur du hammam doit délimiter la rue - un trou d'échappement y sera percé. Sous la porte menant directement à la zone chauffée, il est nécessaire de prévoir un espace de deux centimètres.
Toutes les heures, au moins 4 changements d'air complets doivent avoir lieu dans la pièce, les flux doivent être dirigés de la zone de loisirs vers les sites utilitaires, les salles de bains. Le système est conçu pour que l'air passe du hammam à la salle de lavage avec toilettes, puis au vestibule et déjà à la rue.
La sortie du conduit d'évacuation doit être au-dessus du niveau du toit. L'entrée, à son tour, est disposée à un niveau ne dépassant pas 50 cm du sol à proximité immédiate du four sur le mur opposé au conduit d'évacuation. L'introduction de l'échange d'air forcé s'accompagne de l'installation d'une grille de ventilation, elle est située à 2 mètres au-dessus du niveau du sol.
Si un chauffe-eau à gaz est utilisé en conjonction avec un hammam, un conduit d'évacuation séparé est installé pour celui-ci. Il est conseillé, si possible, de réutiliser l'air chaud généré dans le hammam : par exemple, il peut être dirigé pour chauffer les pièces attenantes au sauna.
Variantes et dispositions des conduits de ventilation
Dans le bain, vous pouvez utiliser différentes options pour l'emplacement des communications de ventilation, permettant une circulation d'air naturelle et l'utilisation d'un ventilateur.

Diverses options pour le dispositif de ventilation diffèrent par l'emplacement des canaux, mais offrent une efficacité d'échange d'air élevée
L'un des schémas proposés d'échange d'air naturel, prévoyant les options suivantes pour le placement des conduites de ventilation, garantira une acceptation confortable des procédures de bain:
-
Le canal d'entrée est réalisé au-dessus du niveau du sol derrière le poêle. Le tuyau d'échappement est placé dans la zone du plafond de la pièce du côté opposé du hammam. Cette variante de disposition des trous assure le chauffage de l'air froid entrant dans le hammam au contact d'un four chauffé. Les masses d'air enveloppant le poêle montent progressivement vers la partie supérieure du hammam, circulent le long du plafond et diminuent progressivement en sortant par la ligne d'échappement.
-
Le canal d'alimentation est situé à 0,3 m au-dessus du niveau du sol dans la zone opposée au four chauffé. En même temps, les masses d'air entrent et sortent par le ventilateur entrouvert du poêle de sauna chauffé pendant le fonctionnement et la cheminée. Cette méthode permet un échange d'air dans la pièce uniquement pendant le fonctionnement de la fournaise.
- L'ouverture du canal d'entrée est faite derrière le four au-dessus du niveau du sol à 0,2–0,3 m de sa surface. La fonction du canal de sortie est assurée par les interstices des planches du plancher ventilé. Les masses d'air froid entrant dans la pièce sont chauffées, au contact du poêle chauffé, et se dirigent vers le plafond. L'air froid situé dans la zone du sol est déplacé à travers les interstices entre les panneaux et sort du bâtiment.
Pour obtenir un régime de température favorable et une humidité confortable, les systèmes d'échange d'air prévoient l'installation d'un ventilateur:
- Le canal d'entrée est situé derrière l'appareil de chauffage au-dessus du niveau du sol à une distance de 0,3 m et la sortie se trouve dans la zone opposée au-dessus du sol à 0,2 m.Le ventilateur d'extraction est monté dans le canal de sortie et assure l'échange d'air dans la pièce.
- Le conduit de ventilation d'échappement et l'entrée sont situés dans le même mur dans ses parties supérieure et inférieure. Sur la ligne d'alimentation, située à 0,3 m au-dessus du niveau du sol, un ventilateur de la capacité requise est monté.
-
L'ouverture d'alimentation est réalisée à une distance de 0,3 m de la marque inférieure derrière l'appareil de chauffage et est équipée d'un ventilateur. La hotte est réalisée dans la partie inférieure du mur opposé à une distance de 0,2 m de la surface. L'air frais entrant pendant la circulation est chauffé par un poêle chauffé et distribué en douceur dans tout le hammam. En se refroidissant progressivement, les masses d'air descendent au sol et quittent la pièce par le conduit d'évacuation.
Par exemple, pour déterminer le renouvellement d'air nécessaire dans un hammam d'une superficie de 10 m2, ayant une hauteur de 2 mètres, il faut multiplier le volume par le coefficient de renouvellement d'air égal à 5 (nous avons déjà dit plus haut que l'air du hammam doit être complètement renouvelé 5 fois par heure). La valeur de performance du ventilateur résultante est de 10 x 2 x 5 = 100 m3/h.
Comment faire de la ventilation dans le bain de vos propres mains
Donnée initiale. Les caractéristiques architecturales de la baignoire ne permettent pas à l'air de pénétrer par les fissures du sol, des portes, des fenêtres ou de la fournaise. Il est nécessaire de faire des trous pour l'entrée et la sortie d'air. Il n'y a pas de revêtement mural intérieur et extérieur, les bains publics sont construits en bois scié.
Étape 1. Décidez de l'emplacement des canaux d'entrée et de sortie.
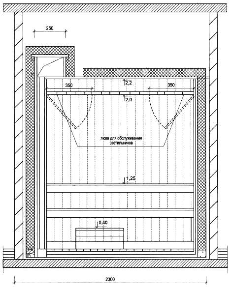
Nous avons déjà mentionné qu'il est préférable de placer le canal d'entrée près du poêle à une distance d'environ 20 centimètres du niveau du sol. Canal de sortie en diagonale sous le plafond.Cette position des ouvertures d'entrée et de sortie assurera la répartition des flux d'air dans tout le volume de la pièce. De plus, l'air d'admission ne refroidira pas le revêtement de sol. Les chaînes doivent être facilement accessibles. Il existe des recommandations pour faire un trou de sortie dans le plafond. Nous sommes opposés à une telle décision, l'air humide causera certainement de gros dommages à l'ensemble du système de fermes.
Ouverture d'évacuation sous le plafond
Étape 2 Achetez ou fabriquez vos propres grilles et vannes.
Ils peuvent être de différentes tailles et formes géométriques : rondes, carrées ou rectangulaires. Dans le même temps, tenez compte des matériaux du futur revêtement des murs extérieurs et intérieurs, réfléchissez à la manière dont les grilles décoratives y seront fixées.
Grille d'aération en bois pour baignoire
Et encore une chose - de l'extérieur du bain, les trous doivent également être fermés. De plus, la fermeture doit être aussi étanche que possible, pour empêcher l'humidité de la pluie ou de la neige de pénétrer sur les couronnes des maisons en rondins.
Étape 3. Faites des trous dans les murs.
Grille d'aération
Opération la plus chronophage, il faut travailler manuellement. Pré-dans les endroits marqués, vous devez percer des trous autour du périmètre. Plus ils sont proches les uns des autres, plus il est facile de creuser le bois plus tard. Lorsque les trous sont percés, prenez un ciseau, un ciseau et un marteau dans vos mains et commencez à détruire les ponts en bois restant entre les trous. Les trous de ventilation doivent être faits 1-2 cm autour du périmètre plus que le tuyau inséré. Le fait est qu'alors ce tuyau doit être isolé pour éviter l'apparition de condensat sur les structures en bois.
Bit
Utilisez uniquement un ciseau pointu et un ciseau - le bois devra être coupé à travers les fibres, c'est assez difficile.Si l'épaisseur de la poutre est de 20 centimètres, il est préférable de faire la moitié de la profondeur du trou de l'intérieur du bain et la seconde moitié de l'extérieur. Si vous avez une grande expérience de l'utilisation d'une scie à essence, vous pouvez percer un trou. Mais nous vous avertissons immédiatement qu'il est très dangereux de travailler avec une scie à essence dans de telles conditions. Vous devrez couper avec le bout du pneu, tout en saisissant l'arbre avec la partie inférieure de la chaîne, la scie sera retirée de vos mains. Cette façon d'utiliser la scie est strictement interdite par les règles de sécurité, rappelez-vous ceci.
S'il est nécessaire de diluer l'entrée dans le mur et dans la baignoire, achetez un tuyau avec un coude. Il est conseillé d'utiliser des tuyaux non ronds, mais rectangulaires, ils prennent moins de place sous le revêtement des parois intérieures du hammam.
Un tuyau en aluminium rectangulaire est utilisé pour créer des conduits de ventilation
Assurez-vous de sceller les joints du coude et du tuyau avec du silicone et enveloppez-les de ruban adhésif pour plus de fiabilité.
Scotch métallisé
Étape 4. Posez du papier d'aluminium ou une pellicule plastique et de la laine minérale autour du périmètre des trous, la couche de laine doit être dense, sans lacunes. Il ne sera pas possible de rendre les bords du trou absolument uniformes, assurez-vous soigneusement que l'étanchéité n'est pas endommagée par les saillies pointues du bois.
Étape 5. Insérez les tuyaux dans les trous de la maison en rondins. Ils doivent entrer avec peu d'effort, assez étroitement. Afin d'augmenter la fiabilité de l'étanchéité et de la fixation, assurez-vous de parcourir le périmètre du trou et du tuyau avec de la mousse. La mousse de montage élimine tous les espaces invisibles d'isolation thermique entre le tuyau et le mur et la fixe fermement dans la position souhaitée.
Nous recommandons de mousser les trous et après revêtement mural, la mousse éliminera les espaces entre le mur et le pare-vapeur. Pendant l'expansion de la mousse, le pare-vapeur s'appuiera fermement autour du trou irrégulier, tous les petits dommages éventuels se refermeront automatiquement.
Grille d'aération
Le tuyau vers la hotte peut ne pas être isolé, de l'air chaud en sort. Mais nous conseillons, au cas où, de faire toutes les opérations pour elle. Tout d'abord, vous perdrez un peu de temps et d'argent. Deuxièmement, vous ferez une protection supplémentaire et fiable contre la pénétration de l'humidité atmosphérique dans les structures en bois.
Lorsque les deux trous sont préparés, vous pouvez commencer à tapisser les murs et installer des grilles décoratives avec des paramètres de débit réglables.
Volets décoratifs
Recommandations pour l'agencement de la ventilation du bain
Pour améliorer l'échange d'air à l'intérieur des salles de bain et prolonger la durée de vie des structures en bois, les experts conseillent de penser à aménager un plancher ventilé. Pour ce faire, les lames de revêtement de sol doivent être posées avec un certain espace entre les éléments. Il peut atteindre jusqu'à 10 mm. De petites ouvertures d'alimentation, appelées évents, sont aménagées dans les fondations du bâtiment.

Les sols ventilés sont facilement reconnaissables aux espaces entre les éléments. Cette conception contribue au séchage rapide des pièces en bois, ce qui prolonge considérablement leur durée de vie.
De petits évents sont également réalisés dans les murs opposés pour aider à activer l'échange d'air.
Note importante. Ces trous doivent être protégés par un treillis métallique, sinon il est possible que des rongeurs s'installent dans le bain
Il est conseillé d'abaisser le niveau du ventilateur du poêle sous le plancher.Ainsi, en cours de chauffage, le ventilateur fonctionnera également comme une hotte d'évacuation.
Si vous envisagez de vous équiper d'une ventilation forcée, il est important de choisir le bon équipement. Il ne faut pas oublier que seuls des appareils spéciaux résistants à l'humidité et à la chaleur peuvent être installés dans le bain.
Il est souhaitable qu'il y ait la possibilité de réglementer leur pouvoir. De cette façon, il sera possible de réagir avec la plus grande souplesse possible aux conditions changeantes. Par exemple, en hiver, avec un écart de température important, la motricité sera très bonne.
L'appareil pourra fonctionner à puissance minimale, tandis qu'en été avec une différence minimale, il devra fonctionner avec une plus grande efficacité. De plus, vous devez sélectionner avec précision le type de ventilateur. Il peut s'agir d'un canal, qui est placé à l'intérieur du conduit, ou radial. Dans ce dernier cas, le dispositif est monté en sortie de gaine de ventilation.
Un autre point important est les conduits de ventilation. Selon le type de système et les souhaits du propriétaire, ils peuvent être différents. Les plus fiables et durables sont les produits dits solides. Ils sont fabriqués en acier galvanisé ou en plastique spécial.
Les conduits d'air flexibles sont une option légèrement moins fiable, mais plus facile à installer. Ils sont fabriqués sous la forme d'un tuyau ondulé avec un cadre métallique interne.

Il est souhaitable d'équiper les ouvertures de ventilation de stores et de grilles réglables. Ce dernier peut ressembler à ceci. Il facilite grandement le réglage de l'intensité du flux d'air.
L'installation de la ventilation du bain n'est pas particulièrement difficile. Tout d'abord, faites tous les trous nécessaires et montez les conduits de ventilation. Si nécessaire, des ventilateurs sont montés à l'intérieur ou à l'extérieur du boîtier. Cela dépend du type d'appareil.Ensuite, les appareils électriques sont connectés au réseau. La façon dont ils sont connectés dépend du mode dans lequel le ventilateur fonctionnera.
L'équipement peut s'allumer automatiquement lorsque la concentration d'humidité et de dioxyde de carbone dans l'air augmente. Vous pouvez l'allumer simultanément avec l'éclairage, à l'aide du détecteur de mouvement ou en appuyant sur une touche distincte.
L'extinction peut être effectuée à l'aide d'une minuterie, puis elle interviendra après un temps prédéterminé ou à l'extinction de l'éclairage.
Le système de ventilation dans le bain : qu'est-ce que ça peut être ?
Les systèmes de ventilation dans les bains sont divisés à la fois selon plusieurs paramètres :
- forcé ou naturel ;
- évacuation, alimentation ou alimentation et évacuation ;
- locale ou publique.
Expliquons que forcée diffère de naturelle par la présence de ventilateurs qui font entrer ou sortir de force l'air, local diffère de l'échange général par son caractère local, par exemple, la cheminée au-dessus du poêle est une ventilation locale, et les évents font partie de l'échange général .
En ce qui concerne l'alimentation, l'évacuation et leur combinaison, ce sont des indications sur quel air est dirigé où : l'évacuation chasse l'air d'évacuation, l'air d'alimentation entraîne l'air frais et leur combinaison crée un échange d'air équilibré à l'intérieur de la pièce.
Ce sont des termes généraux pour toute ventilation, mais notre tâche est de considérer un bain public qui a ses propres spécificités. Nous vous conseillons de vous familiariser avec la dépendance de la ventilation au type de bain (8 types).
Vidéo utile
Regardez une courte vidéo, comme l'une des options pour organiser la ventilation dans le bain:
Ventilation naturelle dans le bain
Il fonctionne sur les principes de la physique, qui disent que le chauffage rend l'air plus léger et le fait monter.Et une augmentation du volume d'air froid accélère le mouvement de l'air chaud. Connaissant cette propriété, vous ne pouvez installer aucun appareil, il y a suffisamment de trous de ventilation, dont l'emplacement fera que certains d'entre eux fournissent de l'air et d'autres - évacuent.
Et dans le bain il y a un poêle, et c'est une circonstance très favorable pour la direction de la circulation de l'air. Si l'entrée de ventilation naturelle est située près du sol à côté du ventilateur, le poêle lui-même aspirera de l'air frais, sans aucun ventilateur. De plus, élever le plancher fini juste au-dessus du trou sous le foyer contribue à améliorer la traction.
L'ouverture d'échappement est généralement réalisée du côté opposé au mur avec l'ouverture d'alimentation, mais ce n'est pas la seule option.
Ventilation forcée
Si les ventilateurs sont placés dans les mêmes trous, vous ne pouvez pas avoir peur du calme ou d'autres conditions météorologiques qui nuisent à la circulation de l'air dans le bain.
En principe, il n'y a pas de grande différence entre la ventilation naturelle et forcée dans le circuit lui-même, il s'agit seulement de savoir dans quels trous se trouvent les ventilateurs. Parce qu'on ne peut pas les mettre partout, en renforçant uniquement l'échappement ou uniquement l'inflow. Mais en créant une grande différence entre l'entrée et la sortie, nous modifions la pression dans la pièce. Ceci est facilement détecté par la façon dont la porte claque. La tâche consiste à créer un équilibre entre la sortie et l'entrée, et l'air pendant les procédures de bain doit circuler lentement, sans provoquer de courant d'air. Et lors du séchage, un courant d'air n'a que du bon.
IMPORTANT! La direction dans laquelle le ventilateur entraîne l'air dépend de l'emplacement de ses pales, il est donc important de s'assurer qu'il n'y a pas de ventilateur d'extraction dans l'ouverture d'alimentation et vice versa.
Types de ventilation forcée
Il existe les types de ventilation forcée suivants (selon la destination des ventilateurs) :
- échappement;
- la fourniture;
- alimentation et évacuation.
Parlons plus en détail de chacun.
Ventilation d'échappement
Dans la conception de la ventilation par aspiration, il y a un ventilateur d'extraction. Il est installé sur la sortie d'évacuation du système de ventilation. Il y a aussi un trou d'approvisionnement dans ce type de système. Ce sont généralement des conduits d'air avec des grilles de ventilation, des fenêtres avec des bouchons, un espace sous la porte, etc. La ventilation par aspiration réduit la pression de l'air dans le hammam (crée un vide), ce qui est compensé par l'apport d'air frais extérieur.
La ventilation par aspiration élimine efficacement les gaz nocifs, les odeurs désagréables et l'excès d'humidité. Cela est particulièrement vrai dans les douches, les salles de lavage, les chambres avec piscine, les salles de bain d'une baignoire.

Le dispositif de ventilation par aspiration est simple. Habituellement, il comprend un ventilateur et un conduit de ventilation. Parfois, lorsqu'une hotte puissante est utilisée, le système est complété par un silencieux.
Ventilation forcée
La ventilation d'alimentation copie presque entièrement le système d'extraction. Mais le ventilateur n'est pas installé pour évacuer l'air usé, mais pour fournir de l'air frais extérieur.
Lorsque le système d'alimentation fonctionne, la pression dans la pièce augmente, respectivement, l'air évacué est aspiré par les bouches d'aération, les portes, les bouches d'aération, les interstices du sol, du plafond et des murs.

Les ventilateurs d'alimentation fonctionnent pour aspirer de l'air extérieur frais (et froid en hiver !).Pour éviter que cela ne fasse baisser la température dans le hammam, le système de ventilation est équipé d'aérothermes spéciaux. Les filtres sont utilisés pour purifier l'air d'alimentation.
Ventilation d'alimentation et d'extraction
Il s'agit d'un système combiné composé d'un appareil alimentation en air forcé et l'extraction mécanique. En plus des ventilateurs, il peut être équipé de récupérateurs, filtres, silencieux. Il est possible de rendre la ventilation de soufflage et d'extraction entièrement mécanique en l'équipant d'une unité de contrôle automatique.
La conception de la ventilation d'alimentation et d'extraction est la plus complexe
Il est très important au stade de sa conception de calculer l'échange d'air dans la salle de bain. La quantité d'air déplacé doit être égale à la quantité d'air frais
C'est idéal. Mais parfois, cet équilibre est délibérément violé afin de créer des flux d'air dans la direction souhaitée. Par exemple, s'il y a une salle de bain dans les bains publics, afin d'empêcher les odeurs désagréables de pénétrer dans d'autres pièces, une sous-pression est créée artificiellement. En installant une hotte à forte puissance. Après cela, l'air de la chambre à haute pression sera automatiquement dirigé vers la zone à basse pression. Autrement dit, allez à la salle de bain, et non au hammam, aux douches, aux lavabos.
Schémas standard des systèmes de ventilation
Schéma mécanique
C'est à la fois le plus cher, mais aussi le plus efficace. Pour l'ensemble complet, vous aurez besoin de vannes de ventilation pour le sauna, de filtres, de diffuseurs, d'un dispositif de neutralisation du bruit et d'autres composants.
aération naturelle
Ce type de ventilation du sauna et du hammam est considéré comme le plus facile à organiser de vos propres mains.Mais cela ne peut être dit que du processus de son installation, car un échange d'air suffisant ne peut être organisé qu'après des calculs précis. De plus, un tel système présente un certain nombre de points négatifs. Par exemple, cela dépend de la vitesse du vent et de sa direction.

Système de ventilation d'alimentation et d'extraction
Un tel extrait dans le sauna peut à juste titre être considéré comme la meilleure solution d'ingénierie. Il combine : efficacité, faible coût et il est facile de le faire soi-même.
Une bonne ventilation du sauna ou du bain
L'accès à l'air frais et le maintien d'une température constante et élevée ne peuvent être obtenus que grâce à la présence d'une ventilation dans le sauna finlandais. Il ne peut pas exister sans extraction et afflux.
L'extrait dans le sauna est nécessaire pour en éliminer le dioxyde de carbone, et l'afflux crée toutes les conditions pour que l'oxygène pur pénètre dans la pièce.
Avant de commencer à construire, vous devez connaître les règles et réglementations immuables pour le créer dans le bain.
- Après 25 à 30 minutes de sauna, il devient souvent difficile de respirer, la tête commence à tourner et à faire mal. La raison en est qu'il y a un changement incorrect d'air moisi rempli de vapeur et de sueur humaine. Selon le SNIP, l'air dans ces espaces clos doit être renouvelé au moins 5 à 6 fois par heure. Dans le même temps, sa vitesse peut être d'au moins 20 mètres cubes pendant 60 minutes.
- La cheminée ne doit pas être très étroite. Il est préférable de faire en sorte que son diamètre soit le même que celui de l'alimentation.
- Les ouvertures d'admission ne peuvent être placées qu'en bas. La hauteur autorisée à partir du sol ne peut pas être inférieure à 20 cm Installez-le strictement derrière le poêle.Sinon, l'air froid n'aura pas le temps de se réchauffer, ce qui entraînera des courants d'air et des sensations inconfortables pour les personnes séjournant dans un espace aussi clos.
- Pour savoir quels tuyaux avec quelle section vous devez acheter, vous devez tenir compte de certaines normes et règles: pour 1 mètre cube de la pièce équipée, il doit y avoir un tuyau d'une section d'au moins 24 centimètres.
- Les ouvertures d'admission et d'échappement ne doivent pas se faire face.
- Il est impératif de réfléchir à la possibilité de régler le débit d'air, de le réduire ou de l'augmenter. Cela peut être fait par des vannes qui sont installées dans les évents du bain.
- Souvent dans le sauna, un espace est laissé entre le bas de la porte et le sol en raison de l'absence de seuil ou de sa très faible hauteur. Il est nécessaire pour l'échappement naturel dans le sauna finlandais.
Le modèle de débit d'oxygène ne semblera correct que s'il y a plus d'une hotte dans la pièce en question
En faisant attention à l'endroit où se trouve l'afflux, strictement du côté opposé à une hauteur allant jusqu'à un méta, le premier trou d'échappement est équipé. La seconde doit se faire directement sous le plafond
L'essentiel à ce stade des travaux est de connecter les deux trous avec un seul boîtier menant à la cheminée ou à un conduit d'évacuation commun.

Considérez le principe de fonctionnement du sauna finlandais:
- Avant de démarrer le hammam, il doit être bien ventilé, ce qui rafraîchira l'air.
- Fermez les sorties et les portes à l'aide de vannes, ce qui permettra à l'air du hammam de se réchauffer assez rapidement.
- La vanne d'admission reste ouverte. Ceci est fait afin d'éviter la décharge d'air.
- Après avoir attendu que la pièce se réchauffe complètement, nous surveillons la bonne ventilation du sauna. Pour ce faire, ouvrez légèrement le canal inférieur. Ainsi commence le mouvement progressif de l'oxygène. Dans le même temps, il ne faut pas oublier que le canal supérieur ne doit pas être ouvert afin de ne pas manquer d'air bien chauffé du bain. L'air frais et frais, après être entré par le conduit d'alimentation, se réchauffe lentement à cause du four et commence immédiatement à déplacer progressivement l'air qui a déjà stagné.
Un tel système pour les personnes ne sera pas perceptible si son installation préliminaire est effectuée correctement, en respectant tous les conseils et recommandations des spécialistes. En y étant, les vacanciers ne ressentiront même pas d'inconfort et profiteront d'une température agréable et d'une humidité confortable.
Un rôle tout aussi important est joué par le poêle, qui est équipé soit dans le hammam, soit dans une pièce séparée. Il est en métal et doublé de brique à l'extérieur. Exécute les fonctions suivantes dans le sauna :
- Chauffe la surface totale de la pièce.
- Réchauffe l'eau.
- Produit de la vapeur.
Lors du choix de cet appareil, vous devez être guidé par les critères suivants :
- Taille - idéale si le four est petit, ce qui économisera de l'espace.
- Doit être fiable et sécurisé.
- Avoir la capacité de chauffer rapidement.
- Avoir un faible coût.
- Il doit avoir une longue durée de vie afin de résister en permanence aux charges lourdes et aux changements de température.
- Lors du choix d'un poêle, considérez tout d'abord sa puissance et sa taille par rapport à la taille du sauna.
Les principales lois d'une bonne ventilation dans le sauna
Le sauna est équipé d'une ventilation combinée ou entièrement mécanique.Ce dernier étant un plaisir très coûteux, la plupart des pièces chaudes sont équipées selon le principe de l'évacuation forcée de l'air d'échappement. Le flux frais pénètre naturellement dans le sauna par la différence de pression qui en résulte (rue/pièce).
La ventilation combinée dans un sauna est avantageuse en ce qu'il est possible de s'éloigner de la disposition croisée obligatoire des évents (comme dans le schéma de ventilation naturelle standard) et de les placer en tenant compte des caractéristiques de conception de la pièce. Il convient également de noter que l'air chaud et froid doivent être bien mélangés afin de ne pas provoquer une chute de température trop brutale dans le hammam au niveau du sol et du plafond.
Pour un sauna, la ventilation doit être soumise à plusieurs lois contraignantes׃
- La taille de l'évent d'évacuation doit être supérieure ou égale à la taille de l'évent d'alimentation
- La section des ouvertures de ventilation est proportionnelle au volume de la pièce : 24 cm = 1 cu. m de sauna
- Ne placez pas les évents d'entrée et de sortie alignés les uns avec les autres
- Pour contrôler l'intensité du flux d'air dans le sauna, les ouvertures de ventilation doivent être équipées de vannes
Les trois schémas de ventilation de sauna les plus simples
N° 1. schéma de vitesse
La bouche d'alimentation est située près du sol (20 cm au-dessus de son niveau) strictement derrière le poêle, tandis que la sortie d'évacuation équipée d'un ventilateur est disposée sur le mur opposé de la même manière dans la position la plus basse (20 cm du sol).
L'air froid, ayant pénétré dans la pièce, est instantanément chauffé par un four chauffé au rouge et monte jusqu'au plafond, puis se refroidit progressivement, tombe et ressort.
Un tel système de ventilation fournit à la pièce un mélange uniforme de "vents" froids et chauds et contribue au réchauffement profond du corps humain.
N° 2. Schéma pour l'emplacement interne du sauna
Si, pour l'organisation de la ventilation, la pièce n'a qu'un seul mur extérieur (trois autres sont adjacents à d'autres pièces), cette version du schéma résoudra le problème.
Les ouvertures d'entrée et de sortie sont situées du même côté (mais strictement à l'opposé du four) ׃ en bas elles permettent un apport d'air frais (à 20 cm du sol), en haut - l'extraction forcée des mines (à 20 cm du le plafond).
Le poêle chauffe rapidement un flux d'air froid, qui frappe la partie la plus chaude du radiateur avec un bang. Rafraîchissant la pièce en cercle, les gaz d'échappement pénètrent directement dans "l'étreinte" de la hotte.
Numéro 3. Schéma d'échauffement doux
L'entrée d'air frais est située derrière le poêle, mais à un niveau plus élevé (50-60 cm) que le schéma n°1 suggère. La sortie à impulsion forcée est située en standard sur le mur opposé près du sol (à 20 cm du zéro).
Le vent froid se réchauffe et monte sous le plafond, puis se refroidit, "tombe" et ressort. Une telle ventilation fonctionne plus lentement, mais elle offre aux visiteurs un chauffage doux et uniforme dans le sauna.
Comment faire des conduits de ventilation?
L'installation de la ventilation dans le bain s'effectue comme suit:
- À certains endroits, des trous sont faits d'une taille telle que le tuyau ou la boîte y passe librement.
- L'espace autour du tuyau est scellé afin de ne pas violer l'étanchéité de la pièce.
- A l'extérieur, les trous sont recouverts de grilles.
- À l'intérieur, des amortisseurs spéciaux ou des grilles réglables sont installés.
Cela semble simple, mais il y a quelques points à garder à l'esprit.Par exemple, les trous de ventilation peuvent être non seulement ronds, mais également carrés ou rectangulaires avec approximativement la même surface de section. Dans les bains en bois, des boîtes en bois sont placées à la place des tuyaux en plastique ou en acier.
Dans ce cas, choisir un trou rectangulaire semble logique, car une telle boîte est plus facile à fabriquer à partir de planches ordinaires.
Il est préférable de planifier la ventilation au stade de la conception afin de ne pas avoir à marteler le mur fini. Les ouvertures de ventilation donnant sur la rue doivent être en outre protégées par des filets de protection contre les insectes. La section transversale de l'ouverture de ventilation d'alimentation dans la baignoire est calculée sur la base de la norme : 24 m². cm de section pour chaque mètre cube du volume de la pièce ventilée.
De cette façon, pour un bain d'un volume de 12 mètres cubes. M. vous avez besoin d'un trou d'une superficie de 284 mètres carrés. voir S'il est censé faire un trou rond, son rayon est calculé par la formule inverse de l'aire d'un cercle. Nous divisons l'indicateur résultant par 3,14 (le nombre "pi"), du résultat nous extrayons la racine carrée.
Dans notre exemple, nous obtenons un rayon d'environ 9,5 cm et son diamètre est de 19 cm.Le respect précis des dimensions dans ce cas n'est pas pertinent, donc un tuyau d'une section de 200 mm est tout à fait approprié. Ou vous pouvez prendre deux tuyaux de 100 mm. Si la section de ventilation est carrée, les dimensions approximatives seront de 17X17 cm.
La ventilation naturelle présente des avantages indéniables. Son installation est simple et relativement peu coûteuse, son fonctionnement ne nécessite pas de frais d'électricité ni l'installation d'appareils spéciaux. La conception simple garantit l'absence de pannes et une longue durée de vie du système de ventilation.

De l'intérieur, des grilles spéciales sont installées sur les ouvertures de ventilation, dans lesquelles les écarts peuvent être ajustés, cela vous permet de régler l'intensité des flux d'air
En hiver, en raison de la différence de température importante à l'intérieur du hammam et à l'extérieur, le tirage peut augmenter sensiblement. Cela peut causer un léger inconfort en raison de l'arrivée d'air trop rapide. De plus, les odeurs, qui ne sont pas toujours agréables, peuvent également pénétrer dans les bains publics de l'extérieur. Le contrôle du débit de ventilation résout ce type de problème.
PRÉPARATION À L'INSTALLATION DU FOUR ÉLECTRIQUE
la tension du four électrique et du tableau de commande correspond à la tension du secteur ; le panneau de commande correspond à la puissance et au modèle du four électrique ;
la puissance du four électrique correspond au volume du hammam. Le volume ne doit pas être inférieur au volume minimum pour la fournaise sélectionnée (voir Instructions);
la limite de courant du fusible et la section du câble d'alimentation sont suffisantes pour la puissance du four. (voir instructions);
l'emplacement de la fournaise électrique vous permet de prévoir des espaces ignifuges autour de la fournaise conformément au schéma d'installation;
l'unité de commande du four (thermostat et minuteur de bain) est située sur le côté librement accessible. Si nécessaire, il est possible de transférer le panneau de commande par un électricien qualifié du côté désiré de la fournaise selon les instructions.










































