- Processus de fabrication des installations
- Comment faire une table vibrante avec vos propres dessins de mains
- Fabrication d'éléments de structure
- lit
- Éléments élastiques
- Excentrique
- Éléments structurels de base
- Comment le faire soi-même ?
- Table vibrante universelle - caractéristiques de conception
- Instructions pas à pas pour fabriquer une table vibrante à vibration horizontale
- Matériaux et outils nécessaires pour assembler une table vibrante : prix et spécifications
- Fabriquer une table vibrante
- lit
- plate-forme de table
- Installation du moteur
- entraînement fait maison
- Quel est l'appareil, les exigences pour son fonctionnement
- Avis aux artisans
- Autres options pour fabriquer son propre vibromasseur à la maison
- Vidéo : vibrateur interne d'un moteur de pompe à eau
- Vidéo: vibrateur profond d'une tondeuse
- Instructions pour la fabrication de tables vibrantes
- Fréquence et cycle d'utilisation du moteur vibrant
Processus de fabrication des installations
L'étape la plus difficile dans la conception d'une table vibrante maison à la maison est la sélection d'un moteur électrique approprié. Une bonne option est le moteur de la machine à laver, dont le seul inconvénient est la fragilité due à l'usure des roulements ou à la déconnexion de l'essieu.
Avant de procéder à la fabrication de l'installation, il est nécessaire de trouver un dessin de la table vibrante dans la littérature spécialisée ou sur Internet. Il est recommandé d'effectuer d'autres travaux conformément à celle-ci.
- La base est faite d'un canal ou d'un coin. La taille peut être arbitraire, les experts considèrent 700x700 mm comme standard. Lors de la planification de la surface de l'espace de travail, n'oubliez pas qu'elle doit correspondre à la puissance du moteur électromécanique utilisé.
- Soutien. Les pieds de la table vibrante sont des tuyaux métalliques. Ils sont soudés à la base à l'aide d'une machine à souder. Pour assurer une stabilité maximale, des plaques métalliques sont fixées aux pieds, qui sont ensuite fixés avec du mortier de béton. S'il est nécessaire de déplacer la table vibrante, vous ne devez pas le faire. Ensuite, la stabilité dépendra de la qualité du revêtement de sol. La hauteur de la table est choisie arbitrairement, mais elle doit assurer la commodité de l'assistant. Le moteur doit être situé à une certaine distance du sol.
- Les ressorts sont situés dans chaque coin et au centre de la structure et y sont soudés. Ils peuvent être extraits d'un cyclomoteur ou d'une voiture et coupés en deux. Ils assureront la vibration du plateau lors du fonctionnement du moteur électrique. Des plaques leur sont soudées, fixées sur une tôle dont l'épaisseur doit être d'au moins 8 mm. Si une base plus fine est utilisée, une déformation de la pièce de travail peut se produire.
- Le moteur est fixé à un carré soudé en travers de la table vibrante sur ressorts. Les oscillations de faible amplitude à haute fréquence sont fournies par un excentrique constitué d'une rondelle métallique posée sur l'arbre du moteur.Sur le côté, un trou y est percé et un filetage est créé par 8. Le réglage de l'amplitude est obtenu en vissant ou en dévissant le boulon, qui est fixé dans la rondelle avec un écrou de commande.
Vous pouvez simplifier le travail et acheter un moteur déséquilibré dans le magasin. À cet effet, le vibrateur IV-99 E 220 V est excellent.Son coût est de 6000 roubles et il fait parfaitement face à la tâche. Il ne sera pas superflu d'acheter un potentiomètre à courant alternatif, qui permettra, en modifiant la tension, d'ajuster la fréquence d'oscillation pour chaque type de mélange de béton utilisé.
L'utilisation de tables vibrantes pour la fabrication de dalles de pavage présente de nombreux avantages. Ce n'est pas seulement la résistance et la haute qualité des produits, mais aussi des économies importantes : des mélanges durs avec une petite quantité de ciment peuvent être utilisés sans perte de qualité. Les performances d'une table vibrante maison atteignent 50 à 60 m2 de carreaux par jour. Ce montant est suffisant pour gérer avec succès une entreprise de production et de vente de produits pour le pavage des trottoirs.
Comment faire une table vibrante avec vos propres dessins de mains
Comment faire une table vibrante avec vos propres mains, dessins, schémas, description.
Le but principal de la table vibrante
La vibration de la table vous permet d'expulser l'excès d'air de la solution de béton, ce qui améliore à son tour les propriétés de résistance du produit en béton.
De quels nœuds la structure est-elle constituée :
• socle (cadre métallique) • plateau (plan de travail de la table) • ressorts (section ronde ou rectangulaire) • vibreur (plate-forme vibreur monophasé)
BASE
Préparez le matériel nécessaire :
• tuyau métallique rectangulaire 25x50x3 (mm) GOST 8645-68 • tuyau métallique carré 50x50x3 (mm) GOST 8639-82 • tuyau métallique 63,5x3,5 (mm) GOST 8734-75 • épaisseur de tôle 4 (mm) GOST 19903- 74
Et alors, comment faire une table vibrante de vos propres mains selon le dessin présenté?
À partir des tuyaux, nous découperons des ébauches de la longueur requise. Nous coupons des ébauches carrées dans de la tôle et perçons quatre trous traversants dans chacun (aux coins). Nous soudons toutes les pièces ensemble et obtenons une base rigide, que nous fixons à la surface du sol avec une connexion d'ancrage.
PLAN DE TRAVAIL
Préparez le matériel nécessaire :
• tube métallique rectangulaire 25x50x3 (mm) • tube métallique 63,5x3,5 (mm) • coin métallique à étagère égale laminé à chaud 25x25x3 (mm) GOST 8509-93 • tôle 3 épaisseur (mm) • tôle 5 épaisseur (mm )
D'après le dessin

Préparez les ébauches et soudez-les ensemble. Le coin, soudé autour du périmètre de la table, sera sa limite et conservera sa forme pendant le fonctionnement du mécanisme.
Du bas de la table, nous souderons une plaque métallique avec des trous de montage pour le vibrateur.
RESSORTS
Nous choisissons parmi une gamme standard de fabricants GOST 18793-80, dont la rigidité est prise en fonction des charges opérationnelles.
VIBREUR
Nous choisissons parmi la gamme de modèles des fabricants nationaux, vous pouvez utiliser la marque IV-99E
Caractéristiques:
• tension de fonctionnement, V - 220 ; consommation de courant, A - 1,9 ; consommation d'énergie, W - 250 ; poids, kg - 14,5
Le schéma de câblage se trouve dans le manuel d'instructions du vibrateur.
Ordre de montage :
1. Nous fixons la base au sol.
2. Nous insérons des ressorts dans les tuyaux aux coins.3. Nous fixons le vibrateur du bas du comptoir.4. Nous installons le plateau sur les ressorts avec les tuyaux vers le bas.
Comment faire une table vibrante de vos propres mains, des dessins et une description détaillée de la conception à portée de main, il ne reste plus qu'un désir et allouer du temps libre.
Fabrication d'éléments de structure
Avant de fabriquer vous-même une table vibrante, vous devez établir un dessin détaillé. Ainsi, il sera possible de calculer la quantité de matériau et de prendre en compte les nuances de la conception au stade du développement.
Vous pouvez utiliser des dessins prêts à l'emploi de la table vibrante. Pendant le fonctionnement, respectez scrupuleusement les dimensions spécifiées.
lit
Pour fabriquer la base, 4, 6 ou 8 tuyaux métalliques sont installés verticalement. Entre eux, ils sont soudés avec des bandes transversales ou des coins. Pour le travail, une zone plane est sélectionnée. Les bords supérieur et inférieur des tuyaux doivent être dans le même plan horizontal. Pour ce faire, utilisez le niveau du bâtiment d'eau.
En partie basse, des pièces de tôle sont fixées aux pieds. Des trous y sont pratiqués pour la fixation au revêtement de sol. D'autre part, des verres de chutes de tuyaux ou des supports pour fixer des oreillers élastiques sont installés sur les jambes.
Un boîtier est monté sur l'un des côtés, conçu pour monter l'unité de commande. La hauteur de l'emplacement est choisie de manière à ce que l'opérateur ne se penche pas vers les boutons pendant le fonctionnement.
La table vibrante est fixée au revêtement de sol. Pour éviter le déplacement de l'équipement lors du pilonnage des mélanges de construction, les pieds sont solidement fixés au sol avec des ancrages. Sous l'action des vibrations, les raccords filetés se dévissent spontanément. Pour éliminer cela, une rondelle de blocage est installée sous l'écrou d'ancrage.
Éléments élastiques
Dans la partie supérieure du cadre, des pièces à ressort sont installées. La méthode de fixation est choisie en fonction du type d'élément. Des ressorts métalliques sont montés dans des verres.les oreillers automobiles sont vissés avec une connexion filetée. A ce stade, plusieurs règles sont suivies :
- La longueur des ressorts doit être la même. Une surface supérieure inclinée fera glisser les moules pendant le fonctionnement. Il sera impossible d'utiliser la table vibrante.
- Lors de la fixation des éléments élastiques, des contre-écrous sont installés.
- La hauteur des ressorts doit être suffisante pour que la surface supérieure et le cadre n'entrent pas en contact l'un avec l'autre sous l'influence du poids des mélanges de construction sur la table vibrante.
Excentrique
Les mouvements oscillants sont transmis à la table vibrante à partir d'un moteur avec un excentrique sur l'arbre du rotor. C'est une pièce avec un centre de gravité déplacé. Lorsque l'induit du moteur électrique tourne, des vibrations se forment sous l'action de la force centrifuge. La force des vibrations transmises à la table vibrante est modifiée en déplaçant le centre de gravité. Vous pouvez faire les détails vous-même :
- Découpez 2 ovales dans une tôle de 8 à 10 mm d'épaisseur.
- Connectez les pièces les unes aux autres. Dans ce cas, une pince ou un étau est utilisé.
- Percez des trous pour la fixation à l'arbre du rotor. Les trous ne sont pas situés au centre des pièces, mais avec un décalage.
- Un compas trace une ligne à la même distance du trou fait.
- Percez plusieurs trous le long de la ligne. Ils sont nécessaires pour faire de la fixation des ovales une connexion filetée.
Après cela, les pièces sont installées sur l'induit du moteur électrique. Pendant le fonctionnement, le centre de gravité de l'excentrique est modifié en déplaçant un arbre par rapport à l'autre.
Éléments structurels de base
En fait, la table se compose de trois grands éléments : une base, un plateau vibrant avec des supports mobiles correspondants et un entraînement qui crée une force pour la vibration.

Si nous considérons la conception plus en détail, nous pouvons distinguer:
- cadre de puissance du produit. Il se compose de quatre racks reliés par des poutres longitudinales. Pour la fabrication de ces éléments, du métal laminé est utilisé - un tuyau profilé, un coin, un canal, etc.
- comptoir. Une dalle plate (généralement en tôle) doit être munie de côtés. Cela est nécessaire pour que les formulaires sur lesquels la solution est installée ne «se déplacent» pas de la table pendant les vibrations;
- prise pour l'alimentation électrique ;
- respectivement la fiche du fil d'alimentation ;
- interrupteur à bascule pour allumer le vibreur ;
- amortisseurs (ressorts). Ces dispositifs adoucissent les secousses lors des vibrations du plateau, rendent les vibrations plus uniformes et douces ;
- vibrateur électromécanique.
Intéressant : en fonction de la puissance du vibrateur et des dimensions de la table, l'appareil peut être utilisé pour compacter non seulement des dalles de pavage, mais également des blocs de différentes tailles.
Les dimensions du mécanisme peuvent être variées. Considérant que le "point de référence" principal dans les calculs est la taille du formulaire, il est préférable de faire de la longueur/largeur du tableau un multiple de la longueur/largeur des formulaires les plus couramment utilisés. Dans le même temps, n'oubliez pas une petite marge: bien que les formulaires soient placés sur le comptoir aussi étroitement que possible, il devrait y avoir un petit espace entre eux.

Comment le faire soi-même ?
L'achat d'une table vibrante coûte cher, même si son achat vous aidera à démarrer plus rapidement. Et pourtant, nous allons le faire nous-mêmes et nous avons besoin pour cela de l'outil suivant :
- Machine de soudage. Pour de tels travaux, un onduleur de 190 A convient.
- Bulgare.Il est souhaitable d'avoir deux variétés, 230 mm et 120 mm de diamètre de disque. Un grand sera pratique à couper, un petit ajustera les pièces et meulera ensuite la soudure.
- Électrodes, ruban à mesurer, crayon et craie, perceuse, ainsi que boulons, écrous, perceuses, perceuses et autres outils pouvant être nécessaires au travail.
Donc, vous devez d'abord souder les pieds de la table. Le moyen le plus simple de les fabriquer à partir d'une pipe professionnelle. Un tuyau professionnel convient, avec une épaisseur de paroi métallique d'au moins 2 mm, de préférence 3 mm. La base est mieux cuite en fonction de la surface du plateau de table, qui doit être calculée individuellement, en tenant compte de la puissance du moteur et des formes qui seront posées à la fois.

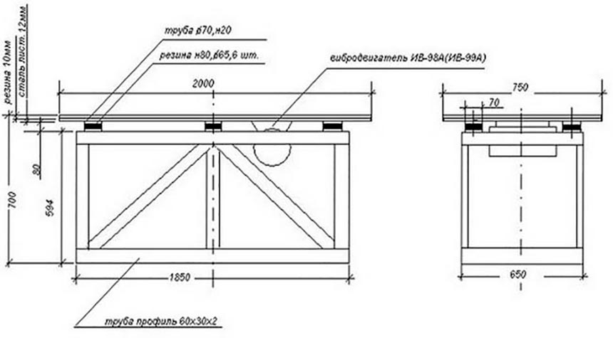
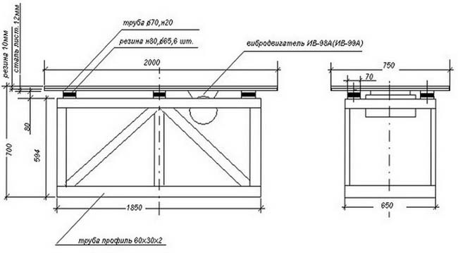
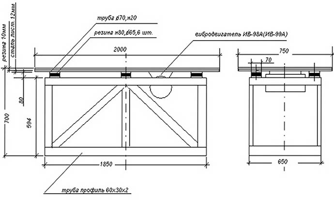
Schéma de la table vibrante
Nous soudons les jambes d'en bas et au-dessus des tuyaux professionnels. Il est conseillé d'acheter des pieds réglables qui, à l'avenir, aideront à niveler la table. Du haut de la table, le long du périmètre, il est recommandé de souder la base sous les ressorts. Au moins 4 ressorts, mais il vaut mieux en mettre 6-8. Comme base, il est préférable d'utiliser des garnitures de tuyaux ronds d'un diamètre interne approprié. Le ressort doit entrer librement.
Quant aux ressorts, leur rigidité est sélectionnée individuellement, en fonction de la charge sur la table, plus le poids du comptoir lui-même. Beaucoup de gens recommandent de prendre les amortisseurs d'un cyclomoteur, mais s'ils ne sont pas à portée de main, vous pouvez vous rendre dans n'importe quel magasin de voitures et acheter ce dont vous avez besoin.
Ensuite, faites un comptoir. À partir du bas, le long du périmètre, un cadre est également cuit en dessous, de préférence à partir d'un tuyau profilé. Aux endroits où les ressorts se touchent, coupez également un tuyau rond pour que le ressort ne sorte pas. Au centre du cadre de la table, à partir du bas, deux barres transversales sont soudées, des trous du diamètre requis y sont pratiqués pour les boulons d'installation du moteur.Un cadre est soudé de l'extérieur afin que, pendant le travail, les «formulaires» remplis de béton ne dépassent pas le bord de la table. Vous pouvez cuisiner point par point, en utilisant le coin le plus fin ou un tuyau professionnel 20 n 20 pour la bordure.Pour le plan de travail lui-même, vous pouvez utiliser une tôle d'acier de 2-3 mm d'épaisseur.
Ensuite, nous affinons le moteur. Le plus simple est d'y souder un excentrique. Il est compris comme un boulon ordinaire, qui est soudé sur l'arbre avec une tête. Prenez le boulon plus longtemps, mais de sorte que pendant la rotation, il ne repose pas contre le plateau de la table. Sur le boulon, après soudage, individuellement, vissez les écrous. En augmentant ou en diminuant leur nombre, vous ajusterez la vibration et le niveau de vibration.

Dessin de table vibrante
Quant au moteur, il est recommandé d'utiliser un modèle d'une puissance d'au moins 1000 watts. Il n'y aura pas de charge dessus, le plus important est qu'il mette rapidement le couvercle en résonance à partir de la rotation. Assurez-vous de le connecter via le bouton que vous placez sur la surface du boîtier. Avant l'installation, dessinez de vos propres mains des dessins approximatifs d'une table vibrante pour dalles de pavage, sur la base desquels vous assemblez.
Table vibrante universelle - caractéristiques de conception
La plate-forme vibrante (table) est un dispositif technique qui comprend les composants suivants :
- Cadre de support réalisé sous la forme d'un cadre métallique. La structure du châssis soudé doit être rigide et massive pour assurer la stabilité de l'ensemble.
-
Une plate-forme de travail sous la forme d'un plateau en acier situé horizontalement et idéalement lisse. La fixation mobile de la plaque au cadre est réalisée à l'aide de quatre ressorts rigides.
- Le mécanisme d'entraînement est fixé rigidement sur le fond de la plaque d'acier.Le moteur de la table vibrante fait tourner une charge fixe excentrique, transmettant les vibrations de la surface de travail.
- Un dispositif de démarrage, qui est un bouton de démarrage (mode vibration) et un bouton d'arrêt (position d'arrêt) assemblés dans un boîtier commun. Le schéma de connexion utilise également un relais thermique et de courant qui protège le moteur vibrant des surcharges.
Une caractéristique de conception importante de la table vibrante est :
- assurer des vibrations uniformes du plateau;
- faible amplitude des oscillations.
Instructions pas à pas pour fabriquer une table vibrante à vibration horizontale
La première chose à laquelle vous devez faire attention avant de commencer à travailler est la taille du comptoir. On pense que la taille minimale de la surface doit être de 600x600, car avec des côtés plus étroits, les formes tomberont en cours de mouvement.
De plus, une conception étroite aura moins de stabilité.
À bien des égards, la taille de la table vibrante est déterminée par le volume de production requis. Nous pouvons dire qu'il existe une relation directe ici - plus il faut créer d'éléments à la fois, plus la surface du comptoir doit être grande. Naturellement, une grande vibropresse nécessitera un moteur plus puissant et les matériaux à partir desquels la structure sera assemblée doivent être très durables.

Base de table vibrante et fixation de balourd
Quant à la hauteur de la table vibrante, tout ici dépend des données individuelles de la personne qui doit y travailler. La taille standard, parfaitement adaptée à une personne de taille moyenne, est considérée comme étant de 90 à 100 cm.
Matériaux et outils nécessaires pour assembler une table vibrante : prix et spécifications
Afin d'assembler indépendamment la structure, vous aurez besoin d'une meuleuse, d'une machine à souder, d'une perceuse, ainsi que de la capacité de les manipuler.Considérez une liste des matériaux nécessaires qui peuvent être trouvés parmi les matériaux pratiques.

Un exemple de mise en place d'une table vibrante pour la fabrication de dalles de pavage avec une buse de moulage
Pour le comptoir, vous pouvez utiliser du contreplaqué ou une feuille de métal de taille appropriée. Dans ce cas, la feuille de contreplaqué doit avoir une épaisseur de 14 mm. Cela vous permettra de transmettre plus de vibrations en raison de la faible épaisseur, mais en même temps de fournir la résistance structurelle nécessaire. De plus, vous pouvez ainsi réduire considérablement le niveau de bruit pendant le fonctionnement de l'appareil. Si une tôle est utilisée, son épaisseur doit être comprise entre 5 et 10 mm.
Le coût d'une feuille de contreplaqué de l'épaisseur requise, en placage de bouleau, sera d'environ 650 roubles avec une taille standard de 1525 × 1525 mm. Mais une tôle laminée à chaud de 5 mm d'épaisseur coûtera plus cher, environ 1000 roubles.

Les balourds sont utilisés pour exciter des oscillations dans le mécanisme de vibration de la table vibrante
Coins métalliques de dimensions 50×50 mm. Ils seront nécessaires pour créer la bordure du plateau de table et pendant le fonctionnement de la table vibrante ne permettront pas aux formes de production de dalles de pavage s'éloigner de la surface à cause des vibrations. Leur coût sera d'environ 140 roubles pour 1 r.m.
Canal pour le montage du moteur (environ 210 roubles / m.p.). Il devra être soudé au centre de l'arrière du plateau, des trous pré-percés qui serviront aux boulons retenant le moteur.
Tubes métalliques pour pieds de table. En règle générale, des éléments de 2 mm d'épaisseur et de taille 40 × 40 sont utilisés à cette fin. Le prix sera de 107 roubles pour 1 r.m.

La fiabilité des fixations de tous les éléments de la table vibrante garantit le bon fonctionnement de l'appareil, la qualité des produits fabriqués et la durée de vie
Tuyaux pour former les parties supérieure et inférieure du cadre. Étant donné que la charge principale tombera sur ces éléments, il vaut la peine de choisir un matériau assez résistant - 40 × 20 et 2 mm d'épaisseur pour la partie supérieure et au moins 20 × 20 de la même épaisseur pour le bas. Le coût sera de 84 roubles/m.p. et 53 roubles / m.p. respectivement.
Plaques métalliques à utiliser comme semelles pour soutenir les pieds. Pour cela, des pièces métalliques d'une taille d'au moins 50 × 50 et d'une épaisseur de 2 mm conviennent.
Vous aurez également besoin d'une plaque pour l'installation d'équipements électriques et de ressorts, conçus pour fournir des vibrations. Il est tout à fait possible d'acheter ces éléments au démontage automatique. De nombreuses critiques indiquent que l'option idéale consiste à utiliser des ressorts de cyclomoteurs, dont le coût, avec une hauteur de 113 mm et un diamètre de 54 mm sera d'environ 500 roubles. Ils sont installés dans les coins de la table et, avec une grande surface, un autre est également monté au centre.

La table vibrante pour la fabrication de dalles de pavage peut être fabriquée à partir de matériaux improvisés sans investissements financiers importants
Fabriquer une table vibrante
Pour que l'appareil fonctionne longtemps et efficacement, les recommandations suivantes doivent être suivies lors de l'assemblage de la structure:
- Avant de commencer le processus, tous les éléments métalliques doivent être recouverts d'un matériau anti-corrosion pour éviter la rouille.
- Seule une couture est utilisée pour relier les éléments (pas de soudure par points).
- Lors de la création d'une structure pliable (sur des boulons), un serrage régulier des joints pendant le fonctionnement est nécessaire.
- Le moteur vibrant ne doit en aucun cas entrer en contact avec le sol ou le sol. Pour éviter cela, l'appareil doit d'abord être testé et, si nécessaire, apporter des modifications à la conception.
- La surface de travail de la table vibrante doit être plate et non inclinée, ce qui assurera une répartition uniforme des fractions dans tout le produit. Pour ce faire, les pieds de l'unité sont fixés au sol ou au sol avec des ancrages ou du bétonnage.
- Il est recommandé de placer le moteur au centre de masse de la structure métallique.
lit
La hauteur optimale du support fixe est considérée comme étant de 0,8 à 0,85 m, ce qui, associé à des amortisseurs et à une plate-forme vibrante, rend ce paramètre égal à 0,9 à 1 m. Pour les personnes d'une hauteur de 155 à 190 cm, ce sont conditions de travail assez confortables.

Une pratique courante consiste à assembler le lit dans l'ordre suivant :
- 2 cadres de la taille sélectionnée sont soudés ;
- 4 pieds leur sont soudés;
- les diagonales peuvent être soudées pour fournir une résistance supplémentaire ;
- une plaque est soudée aux crémaillères pour y placer une prise et un interrupteur à bouton-poussoir.
plate-forme de table
Le plateau est constitué d'une seule feuille de métal d'une épaisseur d'au moins 5 mm. Si la feuille est plus mince, elle doit être renforcée par le bas avec un cadre de support ou une plate-forme en bois, contreplaqué ou aggloméré. Les dimensions courantes sont de 60x60 cm, mais elles sont déterminées individuellement, en fonction des besoins de production et de la puissance du moteur.
Un coin de 25x25 mm (32x32) est soudé le long du périmètre afin de créer un rebord de clôture afin que les moules ne tombent pas de la surface pendant le fonctionnement. Pour enlever l'excédent de béton, des rainures doivent être prévues sur les côtés.
Installation du moteur
Pour installer le moteur de vibration sur la face inférieure de la plaque, 2 canaux sont soudés avec des trous pour la fixation des pattes. Pour créer des oscillations horizontales, ils sont soudés verticalement et des oscillations verticales - horizontalement. Un point important est d'empêcher l'humidité de pénétrer dans le moteur depuis la surface du site de moulage. Cela peut entraîner un court-circuit, un incendie et une panne de l'ensemble de l'unité.
entraînement fait maison
La construction artisanale la plus simple pouvant être achevée en moins d'une heure est une feuille de contreplaqué avec un moteur déséquilibré fixé par le bas, monté sur 2 pneus de voiture d'un camion reliés par des vis. Le caoutchouc dense à partir duquel ils sont fabriqués agit comme un lit et un amortisseur. Les performances d'un tel appareil seront faibles, vous devrez constamment surveiller que les coffrages avec la solution ne tombent pas de la surface, mais il fera face à la tâche de compacter le béton et d'éliminer les bulles d'air.
Quel est l'appareil, les exigences pour son fonctionnement
Le processus de solidification du béton, accompagné de petites fluctuations fréquentes, se poursuit par la libération de bulles d'air, le compactage de la structure en béton et une augmentation de la densité et de la résistance du matériau. Pour assurer ce mode, une table vibrante est utilisée. C'est une surface qui fait des mouvements oscillatoires fréquents (environ 3000/min).
Des coffrages remplis de béton sont installés sur cette surface et un traitement vibratoire est effectué. Le mode compacte considérablement la structure du béton, ce qui affecte considérablement la qualité des dalles de pavage, dont les conditions de fonctionnement nécessitent une grande résistance.
Il existe différents types d'appareils, des grands industriels avec une source de vibration hydraulique pour le traitement de gros blocs de béton, aux plus petits électriques qui créent des vibrations à l'aide d'un excentrique monté sur un arbre de moteur électrique. Étant donné que seule la deuxième option est disponible à la maison, nous ne considérerons pas le dispositif d'entraînement hydraulique.

La fréquence et l'amplitude des vibrations sont des caractéristiques qui déterminent la texture du matériau traité. Ils sont mis en place de manière empirique, il est trop difficile de calculer toutes les nuances à l'avance, car trop de variables interviennent dans le processus.
Par conséquent, la conception de la table doit prévoir la possibilité d'un certain ajustement de l'amplitude d'oscillation.
Découvrez sur notre site comment poser des chemins dans le pays à partir de dalles de pavage. Parlons des étapes successives du travail effectué.
Pour savoir quelle tuile est la meilleure - vibrocast ou vibropressed, et comment faire un choix, lisez notre revue spéciale.
Et dans cet article, vous trouverez de nombreuses informations utiles sur la préparation du site pour pose de dalles de pavage.
Avis aux artisans
Lors du compactage du béton avec un vibrateur profond, les recommandations appropriées doivent être suivies.
- Le mortier fraîchement coulé peut contenir environ 50 % d'air. Le pourcentage dépend de la marque de ciment et de son degré de mobilité. Ces vides doivent être éliminés à l'aide d'un vibrateur profond.
- Un vibrateur alimenté par batterie doit atteindre tous les endroits de la fondation coulée, sinon les vides restants causeront des problèmes à l'avenir.
- N'oubliez pas qu'il est impossible d'arrêter de verser la fondation dans tous les cas, vous devez donc surveiller en permanence le fonctionnement du vibrateur afin qu'il ne se casse pas à un moment imprévu.
- Pour éviter la formation de vides d'air dans la solution, la fondation doit être coulée à faible hauteur.
- Il est recommandé d'immerger la pointe de l'appareil dans la solution uniquement verticalement et de ne pas effectuer de mouvements horizontaux.
- Vous devez toujours exercer un contrôle sur la distance entre les points d'immersion. Il ne doit pas dépasser 10 fois le diamètre de la pointe elle-même.
- Lors du coulage d'une fondation en couches, la pointe doit être immergée dans chaque couche précédente d'au moins dix centimètres afin d'assurer la plus forte adhérence de toutes les couches.
- Si vous maintenez le vibrateur trop longtemps à un moment donné, le béton peut se décoller. Le temps de fonctionnement de l'appareil est de 5 à 15 secondes. La fréquence dépend de la marque de ciment et de la puissance du dispositif de vibration.
- La pointe de travail ne doit pas toucher les parois du coffrage ni la structure de renfort.
- Retirez soigneusement la pointe en effectuant des mouvements lents de «haut en bas» afin que l'air de la rue ne pénètre pas à l'endroit où il se trouvait.
- S'il n'y a pas de bulles sur toute la surface du béton, le travail a été effectué correctement.
- Le vibrateur d'usine ne doit pas être allumé "inactif", car cela endommagerait l'appareil et raccourcirait sa durée de vie.
Autres options pour fabriquer son propre vibromasseur à la maison
Bien que la fabrication d'une perceuse ou d'un marteau perforateur soit la plus courante, il existe d'autres options pour assembler un vibrateur profond à la maison.Il suffit de choisir la source de vibration adéquate et d'y adapter un vibrotip adapté.
Vidéo : vibrateur interne d'un moteur de pompe à eau
Le principal avantage des vibrateurs à béton fabriqués à partir d'outils improvisés est que vous n'avez pas à dépenser d'argent pour l'appareil, et une fois le travail terminé, il est démonté et les composants peuvent être utilisés aux fins prévues.
Vidéo: vibrateur profond d'une tondeuse
Afin de couler indépendamment une fondation monolithique, un vibrateur d'une perceuse ou d'un perforateur, assemblé à la maison à partir de moyens improvisés, est parfait. Un tel outil ne convient pas à la construction à grande échelle, mais il sera tout simplement indispensable dans la construction de structures pour une résidence d'été ou une maison de campagne. Il convient de noter qu'avec la longueur de l'appareil, qui dépassera un mètre, vous aurez besoin d'un assistant pour travailler. Lors de l'assemblage d'un vibrateur à la maison, il est nécessaire de rendre tous les joints aussi fiables que possible, car la solution concrète crée une forte pression sur l'appareil et est capable de contrer activement les vibrations vibratoires.
Instructions pour la fabrication de tables vibrantes
Si vous n'êtes pas prêt à dépenser de l'argent pour une unité qui vous sera utile une fois, mais que le désir d'économiser de l'argent sur l'achat de dalles de pavage est élevé, vous devriez essayer de fabriquer une table vibrante de vos propres mains. Ce qu'il faut pour fabriquer une table vibrante de vos propres mains:
- dessin;
- quatre tuyaux en acier ;
- coin (canal);
- tôles métalliques pour la fabrication de comptoirs;
- meuleuse ou ciseaux électriques pour travailler avec des éléments métalliques;
- moteur vibrant pour 220 V de la puissance requise et quatre boulons pour le fixer ;
- Machine de soudage;
- perceuse.
Dans le cas où vous avez tout ce dont vous avez besoin en stock, vous pouvez commencer à fabriquer une table vibrante de vos propres mains.
- Les dimensions optimales de la base de la table sont de 70 cmx70 cm, cependant, chaque artisan a le droit de fabriquer une table de dimensions qui répondent à ses besoins. Plus le volume de production est important, plus la surface de la table vibrante est large et plus le moteur est puissant. La base est facile à fabriquer à partir d'un coin métallique (50 × 50 mm suffisent) ou d'un canal. Ses éléments individuels peuvent être reliés par soudage électrique ou boulons. Dans ce dernier cas, la conception sera pliable. Ceci est utile si vous allez le déplacer d'un objet à un autre. Cependant, les boulons ont tendance à se desserrer, donc la rigidité de la structure va diminuer.
- Il est nécessaire de fixer des pieds en tubes d'acier à la base finie. Pour donner de la stabilité à l'unité, des plaques métalliques leur sont soit soudées, soit enterrées dans le sol et coulées avec du mortier de ciment. La première option est utilisée si une structure mobile est requise. Dans le second cas, la table sera fixe.
Lors de la réalisation des jambes, trois points doivent être pris en compte :
- le moteur vibrant ne doit pas toucher le sol ;
- la hauteur des jambes doit être telle qu'il soit commode pour le maître de travailler sans se baisser;
- les 4 pieds doivent avoir exactement la même taille, sinon le plateau de table sera incliné et le mélange de béton s'écoulera pendant les vibrations.
Après avoir préparé la base, il est temps de commencer à fabriquer le comptoir. Pour ce faire, six ressorts en acier doivent être fixés à chaque coin, ainsi qu'au centre de la base. Vous pouvez les acheter au marché automobile. Les ressorts d'un cyclomoteur, coupés en deux parties, sont parfaits pour fabriquer une table vibrante.Les ressorts d'amortisseurs ou de soupapes de moteur automobile conviennent également.
En tant que surface de travail vibrante, une tôle d'acier avec des côtés est souvent utilisée, à laquelle un moteur de vibration est fixé par le bas. L'endroit où il doit être fixé est marqué sur le dessin. Les formulaires sont placés sur le comptoir dans lequel le béton est coulé. Une autre option pour la conception de la surface de travail est un cadre en acier avec une feuille d'OSB, d'aggloméré ou de contreplaqué à l'intérieur.
Vous pouvez connecter le plateau et le lit de différentes manières :
- souder le ressort avec une extrémité à la surface de travail et avec l'autre extrémité à la base (connexion monobloc);
- fixez une extrémité du ressort par soudure électrique sur le plateau et insérez l'autre extrémité dans un verre d'une hauteur égale au tiers du ressort, monté sur le lit;
- vous pouvez échanger les lieux de fixation du ressort et l'emplacement des verres.
Le moteur de vibration est fixé sur la table sans bouger. Si vous utilisez les modèles IV-98 ou IV-99, les vibrations seront très fortes. La surface de travail dans ce cas doit être en tôle d'acier d'une épaisseur d'au moins 10 mm ou être lestée (lests en béton).
Ce n'est pas nécessaire si vous prenez le moteur électrique le plus ordinaire et y installez un excentrique fait maison au lieu d'une poulie. Cependant, vous pouvez en couper des parties individuelles ou y percer plusieurs trous, ce qui le déséquilibrera.
Le moteur vibrant peut être positionné de trois manières :
- dans un plan horizontal (la vibration se révélera alors horizontale) ;
- dans le plan vertical (avec vibrations horizontales);
- à un angle de 45 degrés par rapport au plan de travail (pour obtenir des vibrations dans tous les plans).
Comme vous pouvez le voir, la conception est simple et il est tout à fait possible de fabriquer une table vibrante de ses propres mains. Il y aurait un désir.
Fréquence et cycle d'utilisation du moteur vibrant
Tout d'abord, il est nécessaire de déterminer la fréquence de vibration du moteur. Il peut varier de 750 à 3000 tr/min. Il peut également être nécessaire d'avoir une haute fréquence avec une petite amplitude, ou une basse fréquence de vibration avec une grande amplitude. Dans la construction, en règle générale, des moteurs à vibration avec une fréquence de vibration élevée de 2 à 3 000 tours par minute sont utilisés. Dans ce cas, cela dépend beaucoup de la taille et du poids de l'installation.

Plus la fréquence est élevée, plus la structure de l'installation est soumise à des contraintes de fatigue, par conséquent, l'acier du cadre porteur doit être plus résistant et plus épais. Si la limite de fréquence autorisée est dépassée, la structure se déformera rapidement. Dans ce cas, il faut aussi tenir compte du cycle de fonctionnement de l'installation. Avec une charge lourde et une utilisation fréquente de l'unité de vibration, il n'est pas recommandé d'utiliser un moteur avec une fréquence supérieure à 1500 tr/min.














































