- Quelques conseils utiles
- Qu'est-ce qu'une station de surpression ?
- Caractéristiques de l'installation d'un appareil de pression dans l'alimentation en eau
- Schéma de connexion - recommandations
- Comment installer une pompe pour augmenter la pression de l'eau
- Equipement technique pour augmenter la pression de l'eau dans l'appartement
- Principaux paramètres de sélection de la pompe
- Vidéo - Options pour résoudre le problème de la basse pression dans le robinet
- Objet et types d'unités
- Quand une pompe haute pression est-elle nécessaire ?
- Mesures alternatives de surpression
- Les meilleurs modèles de pompes à eau pour augmenter la pression dans un appartement
- Pompe de surpression Wilo
- Pompe de surpression Grundfos
- Pompe refroidie par air Comfort X15GR-15
- Station de pompage Dzhileks Jumbo H-50H 70/50
- Jemix W15GR-15A
- Comment installer une pompe de surpression d'eau automatique avec un accumulateur hydraulique ?
- Ce que vous devez faire avant de choisir une pompe pour augmenter la pression de l'eau dans une maison privée
Quelques conseils utiles
Une pompe de surpression n'est pas toujours nécessaire pour résoudre le problème de faible pression d'eau dans le système. Pour commencer, cela ne fait pas de mal de diagnostiquer l'état des conduites d'eau. Leur nettoyage ou leur remplacement complet permet de rétablir une pression normale sans équipement supplémentaire.
Pour comprendre que le problème réside dans le mauvais état des conduites d'eau, il suffit parfois de demander aux voisins qui habitent des appartements au même étage ou plus haut. S'ils ont une pression normale, vous devrez presque certainement nettoyer les tuyaux.
Si le tableau est le même pour tout le monde, il peut y avoir des problèmes plus graves affectant l'ensemble du système de plomberie de la maison et même de la zone. Dans les immeubles de grande hauteur, l'eau ne coule parfois tout simplement pas aux étages supérieurs. Cela nécessite un équipement puissant et assez coûteux.
Il est logique de coopérer avec d'autres locataires pour partager les coûts. C'est une bonne idée d'exiger que l'organisme qui reçoit le paiement pour l'approvisionnement en eau résolve le problème, puisque c'est lui qui doit assurer l'approvisionnement en eau du consommateur.
Le manque d'eau aux étages supérieurs est une violation des exigences de sécurité incendie
Lors de la communication avec le fournisseur de services d'eau, il convient de prêter attention à ce point et de mentionner la possibilité de litiges en raison du non-respect de la loi
Il est préférable de confier l'installation d'équipements dans un immeuble à appartements à un plombier à temps plein de la société de gestion. Il connaît également mieux le système et sera tenu responsable en cas de fuites ou de pannes causées par une mauvaise installation des équipements.
Qu'est-ce qu'une station de surpression ?
Il s'agit d'un dispositif centrifuge simplifié pour améliorer la pression de l'eau, il fonctionne avec un accumulateur hydraulique attaché et un pressostat, qui a pour fonction de contrôler l'ensemble du système. Avec le soutien d'un tel système, de l'eau est prélevée, qui est introduite dans le réservoir.Même si le pressostat éteint la pompe, le consommateur a toujours la possibilité d'utiliser l'eau préparée, ce qui est confortable en cas d'arrêts fréquents. La pression diminuera alors. Dès qu'il tombe à la marque de réglage, le relais fonctionnera à nouveau et la pompe se mettra en marche. On peut comprendre que plus le réservoir est grand, plus la charge est faible, plus sa durée de fonctionnement est longue.
Caractéristiques de l'installation d'un appareil de pression dans l'alimentation en eau
L'emplacement d'installation de l'équipement de surpression dépend de la situation spécifique. Pour assurer le fonctionnement normal du robinet et de la pomme de douche, il suffit de le monter à la sortie du réservoir de stockage. Pour les appareils plus gourmands en pression (lave-linge, lave-vaisselle, chauffe-eau), il est préférable d'installer la pompe devant eux.
Cependant, installer plusieurs pompes à faible puissance à la fois n'est pas la meilleure option. Dans ce cas, il vaut la peine d'installer des modèles plus puissants capables de stabiliser la pression à des débits élevés.
L'installation d'une pompe pour augmenter la pression dans l'alimentation en eau d'un appartement ou d'une maison privée s'effectue dans l'ordre suivant:
Commencez par marquer le tuyau sur lequel l'équipement sera installé, en tenant compte de la longueur de l'appareil et des raccords.
Ensuite, l'alimentation en eau est coupée dans la pièce.
Après cela, aux endroits marqués, le tuyau est coupé.
Aux extrémités du pipeline, un filetage externe est coupé.
Ensuite, des adaptateurs avec un filetage interne sont montés sur le tuyau.
Les raccords du kit avec la pompe sont vissés dans les adaptateurs installés
Pour une meilleure étanchéité, enroulez du ruban FUM autour du filetage.
Un dispositif d'augmentation est monté, alors qu'il faut suivre les instructions de la flèche sur le corps de l'appareil, indiquant le sens d'écoulement de l'eau.
Après cela, du panneau électrique à l'appareil, vous devez étirer un câble à trois conducteurs et, de préférence, créer une prise séparée, et il est préférable de connecter l'appareil via un RCD séparé.
Ensuite, la pompe doit être mise en marche et son fonctionnement vérifié, en faisant attention à l'absence de fuites au niveau des joints. Resserrez les raccords si nécessaire.
Une installation correcte de l'appareil fournira des besoins en eau pendant de nombreuses années. Respecter les recommandations suivantes lors de l'installation des équipements :
- pour que la pompe fonctionne plus longtemps, il est préférable d'installer un filtre mécanique à son entrée. Ainsi, vous pouvez protéger l'appareil contre la pénétration de particules indésirables ;
- il est préférable d'installer l'appareil dans une pièce sèche et chauffée, car les basses températures peuvent geler le liquide dans l'appareil, ce qui le désactivera ;
- les vibrations dues au fonctionnement de l'équipement, au fil du temps, peuvent desserrer les fixations, provoquant une fuite, vous devez donc parfois vérifier les connexions pour détecter les fuites.
Un appareil correctement sélectionné et correctement installé peut résoudre le problème de la basse pression dans l'alimentation en eau.
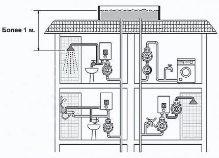
Schéma de connexion - recommandations
Lors de la détermination de l'emplacement pour l'emplacement optimal de la pompe, il est guidé par les considérations suivantes :
- Pour le bon fonctionnement des appareils électroménagers sous forme de chaudière, lave-linge ou lave-vaisselle, la pompe est placée directement devant eux.
- Si la maison dispose d'un réservoir de stockage situé dans les combles, un téléavertisseur est placé à sa sortie.
- Comme pour l'installation d'unités de circulation, en cas de panne ou d'enlèvement d'une pompe électrique pour des travaux de réparation et d'entretien, une dérivation avec un robinet à boisseau sphérique d'arrêt est prévue en parallèle.
- Lors de l'installation d'une pompe dans des immeubles d'habitation, elle est susceptible de laisser les résidents sans eau dans la colonne montante, augmentant considérablement le volume de sa consommation lorsque la pompe est allumée. Dans cette situation, il est nécessaire de prévoir le placement de réservoirs de stockage dans l'appartement, qui sont plus pratiques à accrocher au plafond.
- Beaucoup, lors de l'installation d'unités plus puissantes dans une ligne, n'obtiennent pas le résultat souhaité indiqué dans les données du passeport. Ne connaissant pas les lois de l'hydrodynamique, ils ne tiennent pas compte de l'augmentation des pertes hydrauliques dans le pipeline avec une augmentation du volume de liquide pompé - pour les réduire, il est nécessaire de changer les tuyaux pour un diamètre plus grand.
Riz. 14 Installation de pompes de surpression dans l'alimentation en eau interne
Les électropompes de surpression sont généralement installées dans des appartements ou des maisons privées lors de l'utilisation de réseaux publics d'alimentation en eau, dont les services ne remplissent pas leurs obligations de créer une pression de travail dans le système. Les unités domestiques à rotor humide standard augmentent la pression de 0,9 atm en moyenne.Pour obtenir un chiffre plus élevé, il est nécessaire d'installer une pompe électrique centrifuge, une station de pompage ou une installation avec contrôle de fréquence de la vitesse de rotation de la roue (le meilleur, mais option trop chère).
Comment installer une pompe pour augmenter la pression de l'eau
La connexion du surpresseur de circulation et la préparation au fonctionnement de dispositifs de pompage de conception plus complexe, équipés d'un accumulateur hydraulique, diffèrent considérablement.
Raccordement du booster de circulation
Installation de l'unité de circulation pour l'augmentation de la pression eau dans un immeuble produit dans l'ordre suivant :
- Une meuleuse ou un appareil spécial pour tuyaux en plastique sur la conduite d'entrée découpe un morceau de tuyau correspondant à la taille d'installation de l'appareil;
- En fonction du matériau de la canalisation, des raccords de raccordement sont montés. Si des tuyaux métalliques sont utilisés, un joint soudé ou des entraînements filetés sont utilisés ; si les tuyaux sont en plastique, un fer à souder spécial est utilisé ;
- À l'aide des écrous inclus dans le kit de livraison, le produit est monté dans le coffre.
L'installation d'un module de pompe aspirante avec un accumulateur hydraulique est un processus beaucoup plus laborieux. Pour commencer, nous listons les principaux modules disponibles dans un système d'injection type :
- Module auto-amorçant ;
- capacité de stockage;
- Système de contrôle automatique ;
- Filtre primaire qui empêche divers contaminants fins abrasifs de pénétrer dans le système ;
- Raccords de plomberie, canalisations et tuyaux flexibles.
Pour empêcher la sortie d'eau du boîtier de la pompe lorsque l'alimentation est coupée, une vanne d'arrêt est prévue devant le tuyau d'entrée. Dans les immeubles de grande hauteur, la conduite d'alimentation agit comme une source d'eau; dans le secteur privé, il s'agit le plus souvent de son propre puits ou puits.
La méthode de connexion de l'unité d'injection dans le secteur privé
- L'installation doit être installée à proximité immédiate de la prise d'eau ;
- La température sur le site d'installation ne doit pas descendre en dessous de +5 C;
- Le contact des modules d'installation avec les murs n'est pas autorisé ;
- Le lieu d'installation doit permettre l'entretien et la réparation des unités.
Il existe plusieurs options les plus courantes pour installer une station de pompage avec un accumulateur hydraulique:
- Directement dans la maison;
- Au sous-sol ou sous-sol;
- Dans le puits;
- Dans un caisson ;
- Dans un bâtiment spécial isolé.
Chacune de ces options a ses propres avantages et inconvénients, de sorte que le choix de l'installation dépend principalement de la disposition du site et des caractéristiques du bâtiment. Après avoir choisi le site d'installation, procédez à l'installation de la station, qui comprend les principales étapes suivantes :
Activités préparatoiresqui inclut:
un) Aménagement d'un site pour l'installation d'équipements. La fondation doit être solide et assurer une fixation fiable de l'appareil ;
b) Creuser des tranchées pour la pose de canalisations;
c) Fournir de l'énergie
2. Installation du système de prise d'eau. Selon la modification de la pompe utilisée, il y a :
un) schéma standard, avec une unité de pompe de surface et un éjecteur intégré. Dans ce cas, la conception est un tuyau en polypropylène, avec un clapet anti-retour connecté via un raccord spécial avec un filtre grossier intégré;
b) Utilisation d'un éjecteur externe. Avec cette conception, un clapet anti-retour avec un filtre grossier est installé sur le tuyau d'entrée de l'éjecteur;
c) Avec pompe submersibleéquipé d'une passoire. Dans ce cas, il suffit de raccorder le clapet anti-retour et la conduite d'alimentation.
3. Installation de modules de surface. A ce stade, il convient de rappeler que la connexion de chaque élément suivant doit être réalisée à l'aide de vannes à bille et de clapets anti-retour.Cette conception offrira la possibilité d'entretenir et de réparer des modules de pompe individuels sans recourir à l'évacuation de l'eau de toute la ligne ;
4. Démarrage initial de la station est faite après remplissage avec de l'eau à travers un col spécial situé sur le panneau supérieur de la chambre de travail.
Avant de démarrer un générateur élévateur, assurez-vous que la terre est présente et en bon état !
Equipement technique pour augmenter la pression de l'eau dans l'appartement
Lorsque la cause des problèmes de pression est cachée à l'extérieur de l'appartement et que le contact avec la société de gestion ne fonctionne pas, vous ne pouvez sortir de la situation qu'en appliquant des méthodes mécaniques pour augmenter la pression. Vous devrez installer une pompe avec un accumulateur hydraulique.
Si le système de tuyauterie de l'appartement ne présente aucun défaut et que tout est causé par une faible pression fournie à la maison, le raccordement de la pompe sera le seul moyen de sortir de la situation. Un argument supplémentaire en faveur de cette solution est la pression plus élevée aux étages inférieurs.
Système de pompe de surpression
En cas de manque de pression d'eau dans l'appartement, une pompe ou une station de pompage est installée dans le système immédiatement après le compteur. Ils vous permettent d'augmenter le niveau de pression de l'eau fournie directement aux principaux consommateurs, tels qu'un lave-linge, un lave-vaisselle, une salle de bain, etc.
La pompe pour augmenter la pression directement dans l'appartement est de petite taille. Ses dimensions ne peuvent pas dépasser un bidon d'un litre. Dans le cas où il y a un gros problème de pression, une pompe plus massive est installée.
Pompe de suralimentation puissante
La station de pompage est la même pompe, mais équipée en plus d'un accumulateur hydraulique. Ce réservoir accumule de l'eau en lui-même et la restitue par la suite.Cela élimine le besoin de démarrer constamment la pompe lors de l'ouverture du robinet pendant une courte période, par exemple pour remplir la bouilloire. La pompe et l'accumulateur peuvent agir en un seul faisceau. Dans ce cas, il y a une plate-forme au-dessus du réservoir sur laquelle la pompe est vissée. Dans la plupart des cas, tous les équipements sont achetés séparément et montés ensemble directement dans l'appartement.
Station de pompage pour montée en pression
Principaux paramètres de sélection de la pompe
Pour obtenir un niveau de pression d'eau suffisant dans l'appartement, sans créer de problèmes pour les appareils électroménagers, vous devez choisir la bonne pompe
Tout d'abord, vous devez faire attention à ses indicateurs:
- débit d'eau minimum pour allumer ;
- alimentation maximale ;
- pression de fonctionnement ;
- section des éléments de liaison.
Le débit d'eau minimum à mettre en marche est très important. Le fait est que les pompes insensibles ne peuvent fonctionner que si le mélangeur est ouvert à pleine puissance. Par la suite, en essayant de réduire le débit, la pompe s'arrête. Idéalement, la pompe automatique lui permettrait de démarrer à un débit de 0,12-0,3 l/min. Un appareil insensible ne pompera pas la pression lorsque la cuvette des toilettes est remplie, car il est relié par une fine armature et rempli d'un petit jet d'eau.
Vidéo - Options pour résoudre le problème de la basse pression dans le robinet
Le débit maximal indique la quantité d'eau que la pompe peut pomper pendant une certaine période de temps. Il peut être déterminé en litres par seconde ou minute, ainsi qu'en mètres cubes par heure. Il est tout à fait possible d'acheter une pompe faible, alors le volume d'eau pompée ne sera pas suffisant pour le fonctionnement normal de tous les équipements et autres points de consommation.Pour calculer les performances optimales de la pompe, il est nécessaire de déterminer le volume de consommation de tous les points de prise d'eau. Pour ce faire, l'utilisation de données tabulaires sera utile. Il est nécessaire de résumer les indicateurs de tous les consommateurs, en ajoutant une réserve de marche de 10 à 30%.
Tableau 1. Consommation d'eau des différents points de prise d'eau.
| Nom du point d'eau | Consommation d'eau moyenne l/s |
|---|---|
| Robinet de salle de bain | 0,1-0,2 |
| Toilette | 0,1 |
| robinet de cuisine | 0,1-0,15 |
| Lave-vaisselle | 0,2 |
| Machine à laver | 0,3 |
| Bidet | 0,08 |
Le paramètre de pression maximale est sélectionné individuellement, en fonction du manomètre connecté à la canalisation dans l'appartement. Un indicateur de 2 à 4 atmosphères est considéré comme optimal. Autrement dit, vous devez choisir une pompe qui crée un niveau de pression insuffisant par rapport à la norme.
Pompe compacte pour augmenter la pression dans l'appartement
Le dernier critère clé de sélection est la section des éléments de liaison. Étant donné que la pompe coupe dans la canalisation, il est idéal que tous les raccords correspondent aux dimensions des tuyaux existants. L'incompatibilité nécessitera l'achat d'adaptateurs supplémentaires, qui s'accompagnent de coûts inutiles.
Objet et types d'unités
Quel que soit l'endroit d'où provient l'eau - du réservoir le plus proche, d'un puits spécialement équipé, d'un puits, elle peut être automatiquement fournie au site à l'aide d'une pompe conventionnelle.
Mais pour le fonctionnement normal des appareils électroménagers, la pression de l'eau dans le système doit être d'au moins 2,5 atmosphères et en même temps ne pas dépasser 6 atmosphères. Et ce paramètre ne peut être atteint qu'en installant un système de maintien de pression constante. À cette fin, une variété de pompes à eau à haute pression sont utilisées.
Quand une pompe haute pression est-elle nécessaire ?
Un dispositif pour augmenter et maintenir la pression de l'eau dans un système autonome est utilisé lorsque la pression est si basse qu'il n'est pas possible d'utiliser de l'eau pour faire fonctionner les appareils ménagers.
L'installation d'une pompe est acceptable, mais pas particulièrement recommandée pour stabiliser les paramètres de pression dans le circuit de l'appartement si les résidents connaissent un réel manque d'eau.

Ce type de pompe à eau est conçu pour augmenter la pression dans une alimentation en eau équipée individuellement, si la puissance de la pompe de relevage de l'eau n'est pas suffisante pour assurer une pression normale.
L'utilisation de l'appareil sera pertinente si la pression dans le système n'est pas supérieure à 1 - 1,5 atmosphères. De petite taille, l'appareil peut être installé à la fois sur une canalisation commune et sur la sortie d'une unité domestique séparée. Par exemple, en se connectant à un tuyau alimentant en eau une chaudière ou une machine à laver.
Dans le premier cas, vous devrez acheter un appareil puissant avec de bonnes performances, dans le second vous pourrez vous débrouiller en installant une petite pompe automatique de faible puissance.
L'unité peut être actionnée par :
- Commande manuelle - suppose un fonctionnement continu de l'appareil, indépendamment du fait que l'eau soit actuellement fournie, mais à condition que l'appareil soit éteint manuellement. Ils sont utilisés dans l'aménagement de "planchers chauds", où le maintien de la pression dans les circuits de chauffage au niveau souhaité est constamment requis.
- Mode automatique - l'appareil est allumé par le système d'automatisation, par exemple, lorsqu'un robinet est ouvert.Le travail est régulé par un capteur de débit spécial : au moment où le robinet est fermé, la pompe s'arrête de fonctionner.
La fonction principale du système de contrôle est d'allumer l'unité lorsque la pression chute et de l'éteindre lorsqu'elle atteint le paramètre défini. Après tout, une diminution de la pression dans la conduite et son augmentation excessive détruisent les joints de tuyauterie et ont un effet néfaste sur le fonctionnement des appareils électroménagers.
Mesures alternatives de surpression
Cependant, l'installation d'une pompe destinée à stimuler la pression sera totalement inutile si la source a un faible débit. Cela n'aidera pas, et si le système est bloqué de temps en temps. La meilleure solution dans cette situation serait l'utilisation d'une station de pompage auto-amorçante.
La station de pompage est complétée sur la base de la catégorie de pompes du même nom, équipées d'injecteurs ou sans eux. De plus, il est complété par un accumulateur hydraulique destiné à stocker l'eau. Cela ressemble à un réservoir ordinaire, seule une membrane en caoutchouc avec de l'air est posée à l'intérieur. Exploite un ensemble d'équipements et d'accessoires de pressostat d'eau.

Pendant le fonctionnement de la station pendant la période d'alimentation en eau ininterrompue, la pompe remplit le réservoir de stockage avec de l'eau, d'où elle consomme ensuite
L'installation d'une station de pompage auto-amorçante est également efficace dans le cas où la pression au sous-sol de la maison est normale, mais pas du tout sur celles situées au-dessus.
L'eau accumulée peut être utilisée à l'avenir, qu'il y ait ou non de l'eau dans le système, ce qui est particulièrement important en cas d'interruptions fréquentes de son approvisionnement. Un inconvénient important de telles installations est l'encombrement de la conception dû à la présence d'un réservoir hydraulique et au bruit de l'équipement pendant le fonctionnement.
Au lieu d'un réservoir hydraulique, vous pouvez utiliser un réservoir de stockage conventionnel, dans lequel de l'eau sera accumulée pendant la période de livraison avec une pression normale. Vous pouvez l'installer sur un viaduc élevé ou sur le toit de la maison, et utiliser la réserve lors des interruptions.
L'une des options pour éliminer le problème de manque de pression consiste à installer un réservoir de stockage. Il est situé au point le plus haut possible, le plus souvent dans un grenier isolé.
Les meilleurs modèles de pompes à eau pour augmenter la pression dans un appartement
Pompe de surpression Wilo
Si vous devez installer une pompe fiable pour augmenter la pression de l'eau dans l'appartement, vous devez faire attention aux produits Wilo. En particulier, le modèle PB201EA est de type refroidi à l'eau et l'arbre est en acier inoxydable.
Pompe à rotor noyé Wilo PB201EA
Le corps de l'unité est en fonte et traité avec un revêtement spécial anti-corrosion. Les raccords en bronze offrent une longue durée de vie. Il convient également de noter que l'unité PB201EA a un fonctionnement silencieux, une protection automatique contre la surchauffe et une longue ressource moteur. L'équipement est facile à monter, cependant, il convient de rappeler que seule une installation horizontale de cet appareil est possible. Wilo PB201EA est également conçu pour pomper de l'eau chaude.
Pompe de surpression Grundfos
Parmi les modèles d'équipements de pompage, les produits Grundfos doivent être mis en avant. Toutes les unités ont une longue durée de vie, supportent bien des charges assez importantes et garantissent également un fonctionnement ininterrompu à long terme des systèmes de plomberie.
Station de pompage auto-amorçante Grundfos
Le modèle MQ3-35 est une station de pompage qui peut résoudre les problèmes de pression d'eau dans les tuyaux. L'installation est contrôlée automatiquement et ne nécessite pas de contrôle supplémentaire. La conception de l'unité comprend :
- accumulateur hydraulique;
- moteur électrique;
- pressostat ;
- unité de protection automatique ;
- pompe auto-amorçante.
De plus, l'unité est équipée d'un capteur de débit d'eau, ce qui garantit une grande efficacité de fonctionnement. Les principaux avantages de la station sont une résistance élevée à l'usure, une longue durée de vie et un fonctionnement silencieux.
Veuillez noter que l'unité MQ3-35 est conçue pour l'alimentation en eau froide. Les pompes de surpression sont également équipées de réservoirs de stockage relativement petits, mais suffisants pour les tâches domestiques.
Une station de pompage Grundfos en fonctionnement dans un système d'approvisionnement en eau
Pompe refroidie par air Comfort X15GR-15
Pour que la pompe de circulation pour l'alimentation en eau fonctionne à la fois en mode manuel et automatique, nous vous conseillons de faire attention au modèle de l'unité Comfort X15GR-15. Le corps de cet appareil est en acier inoxydable, de sorte que l'appareil n'a pas peur de l'humidité et peut fonctionner dans toutes les conditions.
Pompe refroidie par air Comfort X15GR-15
Une turbine est installée sur le rotor, ce qui assure un excellent refroidissement de l'air. L'unité a une taille compacte, ne nécessite pas d'entretien particulier et consomme également de l'électricité de manière économique. Si nécessaire, il peut être utilisé pour pomper des courants d'eau chaude. Les inconvénients de l'installation incluent le fonctionnement bruyant de l'unité d'alimentation.
Station de pompage Dzhileks Jumbo H-50H 70/50
La station de pompage Jambo 70/50 H-50H est équipée d'une unité de pompe centrifuge, d'un accumulateur horizontal et d'un pressostat sueur. La conception de l'équipement comprend un éjecteur et un moteur électrique asynchrone, qui assurent un fonctionnement stable de l'installation.
Jumbo 70/50 H-50H
Le boîtier de la station de pompage d'eau domestique a un revêtement anti-corrosion. L'unité de contrôle automatique assure un fonctionnement simple de l'équipement et la protection intégrée contre la surchauffe élimine la possibilité d'endommager l'unité. Les inconvénients de l'unité incluent le travail bruyant et il n'y a pas non plus de protection contre le fonctionnement "à sec". Pour que l'appareil fonctionne correctement, il est recommandé de l'installer dans une pièce bien ventilée et à basse température.
Jemix W15GR-15A
Parmi les modèles de pompes de surpression à rotor refroidi par air, il convient de souligner Jemix W15GR-15A. Le corps de l'unité a une résistance accrue, car il est en fonte. Les composants de la conception du moteur électrique sont en alliage d'aluminium et les éléments d'entraînement sont en plastique particulièrement résistant.
Jemix W15GR-15A
L'équipement de pompage se caractérise par des performances élevées et peut également être utilisé dans des zones humides. Le contrôle manuel et automatique du fonctionnement de l'unité est possible. Si nécessaire, l'unité peut être raccordée à l'alimentation en eau chaude. Les inconvénients importants incluent le chauffage rapide des éléments de l'appareil et le bruit.
Comment installer une pompe de surpression d'eau automatique avec un accumulateur hydraulique ?
L'installation d'une pompe avec un accumulateur hydraulique n'est pas très difficile.Cela nécessitera approximativement les mêmes compétences et appareils que ceux nécessaires pour installer un autre type d'équipement de pompage. Schématiquement, la conception de la pompe de gavage peut être représentée sous la forme des étapes suivantes :
- Sélection d'un site pour un accumulateur hydraulique et une pompe.
- Installation d'un accumulateur hydraulique.
- Installation de tuyaux pour inclure l'équipement pour l'approvisionnement en eau.
- Tenture.
- Renforcement de la pompe et de l'accumulateur.
- Contrôle automatique du fonctionnement de l'équipement.
Selon l'essentiel, une pompe et un accumulateur hydraulique avec un pressostat assument une variation de la station. Pour mettre en œuvre la conception d'un tel système de dispositifs, il faut d'abord trouver une position pour placer le réservoir. Certains artisans remplacent l'accumulateur hydraulique par une membrane de grande capacité, par exemple par un réservoir en plastique de 200 litres. A la place d'un relais, la cuve est munie d'un compteur à flotteur pour assurer son remplissage automatique selon le critère de besoin. Ce type de réservoir est déterminé le plus haut possible : dans le grenier ou au dernier étage.
Immédiatement, il faut penser non seulement aux volumes, mais aussi à la configuration du réservoir. Le réservoir plat et petit prendra moins de place que le modèle tubulaire classique. Bien qu'il n'y ait pas de conditions spécialisées pour la configuration du réservoir. Lors du choix d'une position pour le réservoir, il est nécessaire de calculer l'accès au réservoir / accumulateur ou la probabilité d'un simple démontage de ce composant. Cela est nécessaire pour l'exécution de travaux de maintenance technologique, de réparation ou de changement d'appareil.
Les accumulateurs hydrauliques sont apportés prêts à être installés, mais le réservoir doit être préparé.Il réalise des trous pour l'écoulement, ainsi que la prise d'eau. Vous pouvez, en plus, faire une vanne d'arrêt indépendante pour déverser de l'eau en cas d'urgence. Les tuyaux de dérivation pour l'alimentation en eau du réservoir et son acheminement dans le système d'alimentation en eau sont installés sur un tuyau.
Dans les circonstances modernes, pour l'installation d'un système d'alimentation en eau, il est plus logique d'utiliser des tuyaux en plastique faciles à installer et durables. Afin d'éviter que de l'air ne soit aspiré dans le réservoir depuis la pompe, et également pour éviter que de l'eau n'y pénètre lorsque l'équipement est éteint, des vannes opposées doivent être installées sur les deux buses. Par la suite, des tuyaux sont installés, avec le support desquels le réservoir est connecté au système de plomberie.
Une fois le réservoir ou l'accumulateur installé et les conduites d'eau requises posées, l'installation d'une pompe d'aspiration peut commencer. En règle générale, un tel appareil est livré non assemblé. Il est d'abord collecté, puis procède à l'installation. Si la décision est prise de fixer la pompe dans le mur, vous devez d'abord faire des marquages pour les fixations. Ensuite, il est suspendu et raccordé à l'alimentation en eau. En général, ce n'est pas une procédure très compliquée.
Un point important est le sens de l'eau dans l'appareil. Il est marqué dans le cas avec des marques spéciales. La pompe doit être installée de manière à ce que le mouvement de l'eau se fasse du réservoir vers les points d'eau. De même, le schéma d'installation et de mise en marche de la pompe ressemble à ceci: un accumulateur hydraulique - une pompe - un consommateur. Ensuite, la pompe est renforcée. Toutes les connexions doivent être soigneusement scellées. Après cela, vous devez vérifier le fonctionnement de l'ensemble du système.
Ce que vous devez faire avant de choisir une pompe pour augmenter la pression de l'eau dans une maison privée
La pression peut être spécifiée dans différentes unités. C'est-à-dire, par exemple, dans la documentation technique d'une pompe, la pression peut être indiquée en MPa, dans les articles - en kPa, et sur les tableaux de bord - en mm l'eau. Art.
Il est peu probable que vous ayez besoin de connaître la pression exacte dans l'approvisionnement en eau, vous pouvez donc utiliser le rapport suivant, avec lequel il vous sera plus facile d'évaluer les performances de l'approvisionnement en eau de votre maison privée :
1 bar ≈ 1 atm ≈ 10 m d'eau Art. ≈ 100 kPa ≈ 0,1 MPa.
Les normes fixent l'exigence de pression d'eau du robinet pour les résidents d'une maison ou d'un appartement privé - 4 bars. Avec cette valeur, tous les appareils électroménagers d'un immeuble privé ou d'appartements pourront bien fonctionner.
Malheureusement, peu de résidents de maisons privées ont une pression du robinet à ce niveau. Le plus souvent, les écarts sont importants. Tout écart par rapport à la norme est nocif pour le système d'approvisionnement en eau. Ainsi, une pression supérieure à 6-7 bars peut entraîner une dépressurisation au niveau des joints de tuyaux. Un saut à 10 bars est lourd d'urgence.
La solution au problème de pression d'eau insuffisante ou accrue dans une maison privée consiste à installer un réducteur qui égalise la pression dans le câblage interne du système d'alimentation en eau, ce qui élimine la possibilité de coup de bélier. Si vous ne faites pas d'erreur au stade de la sélection et de l'installation de la boîte de vitesses, la pression dans le système sera toujours optimale.
Une situation plus compliquée est un manque systématique de pression dans l'approvisionnement en eau d'une maison privée. Il est nécessaire d'identifier la cause de ce problème. Ils mènent une étude simple afin de déterminer quelle pression dans l'approvisionnement en eau de votre maison privée est normale et comment elle change au cours de la journée. Après recherche, la situation deviendra plus claire.
La pression peut être mesurée avec un manomètre. Il est peu coûteux, nous vous recommandons donc de l'acheter et de l'installer sur la route d'introduction de votre maison privée. Ce sera encore mieux si vous achetez une passoire à eau grossière avec un manomètre intégré. Il suffit d'enregistrer les lectures de l'instrument 3 à 4 fois par jour à certaines heures (y compris les heures de pointe). Ensuite, il sera possible d'analyser les indicateurs de pression d'eau dans votre maison privée et de tirer des conclusions préliminaires.

Vous pouvez demander à quelqu'un que vous connaissez ou acheter votre propre manomètre portable. Il ne sera pas difficile de le connecter : vous pouvez le faire avec une connexion flexible pour prises d'eau du robinet ou des becs si le raccordement vissé est adapté. En fait, vous pouvez même assembler de vos propres mains un manomètre simple mais assez précis.
Pour assembler le manomètre, vous aurez besoin d'un tube en plastique d'environ 2000 mm de long. Le diamètre du tube doit être tel qu'une connexion étanche soit obtenue avec un raccord vissé sur le bec du robinet, en remplacement de l'embout séparateur.
Vous pouvez déterminer avec précision la pression de l'eau dans une maison privée de la manière simple suivante :

Tout d'abord, vous devez connecter le tube (verticalement) au robinet (ou à une autre sortie d'eau). Ensuite, ouvrez l'eau et nivelez le niveau de liquide : il doit y avoir une ligne horizontale avec le point de raccordement (sans espace d'air au robinet - voir la figure de gauche). Vous pouvez maintenant mesurer la hauteur de la section d'air du tube (ho).
L'étape suivante consiste à fermer le trou supérieur du tube avec un bouchon (afin que l'air ne s'échappe pas) et à ouvrir complètement le robinet. L'eau va monter. Après stabilisation de la position, il faut mesurer la valeur expérimentale de la colonne d'air (heuh).
Maintenant, nous pouvons calculer la pression :
Rdans =Psur ×(ho/heuh)
Où Rdans- la pression dans l'alimentation en eau en un point donné ; Rsur est la pression initiale dans le tube. Il est permis de le prendre comme atmosphérique, c'est-à-dire - 1,0332 atm; hoet Heuh est la valeur obtenue expérimentalement de la hauteur de la colonne d'air.
Il se peut que la pression en plusieurs points différents du pipeline d'une maison privée soit différente. C'est la preuve de la formation de rouille ou de calcaire sur les tuyaux. Dans ce cas, il est nécessaire de remplacer la tuyauterie.

Il est possible que les filtres utilisés dans l'alimentation en eau de votre maison privée soient très sales ou trop vieux. Pour dépanner, vous devez effectuer une maintenance préventive appropriée.

Lire le matériel connexe :
Communications dans une maison privée
















































