- Installation
- Qu'est-ce qu'un bon électricien ?
- Hauteur des prises dans la cuisine
- Emplacement des prises et interrupteurs selon les règles
- Caractéristiques de l'installation d'interrupteurs et de prises dans la cuisine
- Hauteur des prises et interrupteurs : normes ou bon sens ?
- Règles de localisation officielles
- Eurostandard : mythes et réalité
- Emplacement optimal
- Couloir et couloir
- Salle de bains
- Cuisine
- Salon
- Chambre
- Enfants
- Bureau ou bureau
- Prises et interrupteurs dans les salles de bain
- Euronorme
- Recommandations de montage
- Que faut-il retenir lors de l'installation d'électriciens selon la norme européenne ?
- Conclusions et recommandations précieuses
Installation
L'installation de prises dans la salle de bain à partir de zéro doit être effectuée sur la base des recommandations:
- avant l'installation, la ligne est équipée d'une machine séparée pour l'arrêt d'urgence ;
- chaque prise a une connexion séparée avec un fil séparé ;
- la prise est complétée par un câble de mise à la terre et équipée d'un couvercle ;
- l'appareil ne doit pas être situé à moins de 60 cm des sources d'eau;
- l'installation est effectuée sans réparation, de sorte que la prise doit être équipée d'un câble séparé, qui est connecté au tableau de distribution via la machine.
Vous aurez besoin des outils suivants pour l'installation :
- indicateur pour mesurer la tension;
- Tournevis cruciforme;
- un couteau ou un outil spécial pour enlever l'isolant;
- niveau;
- perceuse;
- pinces.
Ensuite, le processus d'installation commence. Classiquement, il se décompose en 4 grandes étapes :
- Percer des trous dans lesquels des chevilles sont installées. Ils sont nécessaires pour sécuriser l'appareil.
- Préparez ensuite le câblage. Les pointes sont nettoyées de la couche isolante avec un couteau ou un outil de nettoyage spécial.
- Après cela, les boulons sont installés dans les trous préparés. Ensuite, ils sont connectés à la prise et fixés au mur dans une boîte avec des chevilles. Les appareils résistants à l'humidité sont équipés de trous prêts à l'emploi, qui sont équipés de bouchons en caoutchouc. Ils sont raccordés au câblage avant d'être raccordés au secteur.
- La dernière étape consiste à installer le boîtier à l'endroit prévu et à fournir de l'électricité.
Si une prise encastrée doit être installée, dans un premier temps, vous devez faire un trou dans le mur en fonction du diamètre de la boîte. Après cela, il doit être installé sur un mur en plaques de plâtre avec des vis et des fils spéciaux connectés.
L'installation d'une prise supplémentaire est effectuée selon un algorithme similaire, mais avec une légère différence. Il existe 2 voies d'entrée de câble :
- pose d'une nouvelle ligne de câble électrique à partir du blindage, installation d'un disjoncteur séparé;
- installation d'un transformateur, dans ce cas, la mise à la terre s'effectue à partir du point électrique le plus proche.
Le reste des étapes sont les mêmes que pour l'installation initiale. Lors de l'installation d'équipements supplémentaires, il est nécessaire de faire des trous supplémentaires dans le revêtement de parement; pour cela, des forets et des couronnes spécialement conçus sont utilisés.
Lors de l'installation, respectez les consignes de sécurité :
- l'installation est effectuée dans un appartement hors tension;
- vérifiez les fils avec un indicateur avant de vous connecter ;
- ne pas permettre le contact avec des fils nus.
En suivant des règles d'installation simples, vous pouvez connecter indépendamment la prise dans la salle de bain sans trop d'effort.
Les prises dans les salles de bains peuvent et doivent être installées.
Pour se conformer aux exigences de sécurité, les prises électriques sont installées uniquement dans la troisième zone de la pièce à une certaine hauteur et distance des sources d'eau, avec un degré de protection IPx4 et supérieur, elles doivent être équipées d'une mise à la terre, un dispositif automatique ou RCD est installé pour couper l'électricité en cas de fuite de courant
Le choix de la prise se fait en tenant compte des appareils qui y sont connectés et de leur puissance totale. Pour le petit électroménager : un fer à friser, un rasoir, vous pouvez utiliser des prises 8 A. Pour les appareils puissants, comme un lave-linge et des chauffe-eau, il vous faudra des prises 16 A. En respectant les consignes d'installation et d'installation ci-dessus, toute personne sans des connaissances et des compétences spéciales peuvent connecter indépendamment l'appareil.
Qu'est-ce qu'un bon électricien ?
Les problèmes techniques et de sécurité d'un système électrique dans une maison ou d'un électricien dans un appartement sont généralement cités par les électriciens professionnels comme le critère le plus important pour évaluer ce système. C'est certainement vrai, mais le confort, la praticité et la polyvalence de l'aménagement du système électrique sont également d'une grande importance.
Afin de répondre à la fois aux exigences de fonctionnalité et de sécurité, le concepteur doit concevoir avec soin l'ensemble du système en fonction des exigences des codes et des réglementations, tout en tenant compte des souhaits du client. Il s'agit d'une étape très importante dans les mécanismes de planification d'une rénovation majeure ou de la construction d'un appartement ou d'une maison.Avant de concevoir, vous devez d'abord savoir comment tel ou tel espace de votre maison sera équipé (chambres, salle de bain, cuisine, etc.).
Hauteur des prises dans la cuisine
Dans cette pièce, jusqu'à la moitié, et parfois plus, du nombre total d'appareils électroménagers est concentrée. Dans le même temps, une partie de l'équipement est intégrée ou fixe, une partie fonctionnant exclusivement sur la table. Par conséquent, la question de l'emplacement des prises dans la cuisine - la disposition et la hauteur de placement - doit être considérée séparément.
Le schéma ci-dessus montre l'une des options pour l'emplacement des éléments d'alimentation d'une cuisine de type linéaire. Il convient de noter qu'avec le placement angulaire des meubles et des appareils électroménagers, le principe général de placement est conservé.
Mais pour une cuisine de type îlot, le dispositif d'alimentation électrique est un peu plus compliqué - vous devrez tirer une conclusion à travers le sol, sous le revêtement de sol, ou amener des câbles du plafond afin de fournir des appareils électriques situés à l'écart du murs avec électricité. Pour les appareils installés en permanence - cuisinières, lave-vaisselle, hottes - les prises sont également rendues fixes, cachées (généralement elles sont cachées sur les tables et les armoires). Pour les petits équipements connectés périodiquement, il est pratique de créer une prise semi-cachée qui, dans la position habituelle, est située sous le plateau de la table et, si nécessaire, tourne de haut en bas avec des prises pour fiches.
Naturellement, ces appareils nécessitent une protection de haute qualité contre l'humidité. Cela peut être fait indépendamment en disposant un joint d'étanchéité autour du périmètre du panneau à soulever. Mais il est préférable d'acheter un appareil prêt à l'emploi avec un mécanisme de levage et un panneau de protection.
Pratique est également l'option avec un bloc de prises de courant, généralement caché sous le comptoir, et il convient à la fois à une cuisine en îlot et à une cuisine murale ordinaire.
Dans ce cas, bien sûr, la prise inférieure est située à une distance du plateau qui n'est pas trop pratique pour la connexion, mais cela est compensé par le fait qu'il n'y a pas de «décorations» électriques supplémentaires sur les murs.
Si vous n'utilisez pas les points de connexion cachés dans le plan de travail, les prises dans les armoires peuvent être utilisées pour les appareils à emplacement permanent. Cette option est le plus souvent utilisée pour les équipements de taille moyenne - machines à pain, mijoteuses, robots culinaires, machines à café, etc.
L'appareil peut être connecté en permanence ou uniquement en cas de besoin. Vous pouvez protéger l'équipement de la poussière, de la saleté et de l'humidité en soulevant, battant, glissant ou soulevant-tournant les portes, comme indiqué sur la photo ci-dessus.
Si l'équipement est «caché» dans les armoires inférieures, c'est-à-dire sous le niveau du plateau de table, vous pouvez disposer des étagères coulissantes avec des supports pour le câble de l'appareil électrique, ce qui ne permet pas au fil de passer entre le éléments de travail du meuble et en même temps le maintient dans la bonne position. La prise dans ce cas est placée sur le mur de la cuisine (ou le mur arrière de l'armoire).
De même, vous pouvez créer des étagères coulissantes pour les appareils placés au-dessus du niveau du comptoir.
Si l'option encastrée ne convient pas, la hauteur des prises de la cuisine au-dessus du plan de travail est choisie selon trois critères :
- Facilité d'utilisation. Une très petite distance au plan de travail rend difficile l'allumage de l'appareil, gêne le nettoyage de la surface;
- sécurité du réseau électrique.Les prises situées presque à proximité de la surface de travail tombent dans la zone à risque - éclaboussures, mouillage accidentel lors du nettoyage du plan de travail, petits débris peuvent grandement compliquer le fonctionnement de l'appareil et même entraîner un court-circuit;
- longueur du fil de l'instrument. La plupart des petits équipements relativement stationnaires ont une longueur de câble courte, vous ne devez donc pas élever les prises trop haut.
La distance optimale est considérée comme étant de 15 ... 30 cm du niveau de la table, et pour faciliter la pose des câbles, il est fortement recommandé de placer tous les points sur la même ligne horizontale.
Il peut y avoir trois lignes de ce type: la ligne inférieure pour les gros équipements fixes, celle du milieu pour les prises au-dessus du comptoir, la ligne supérieure pour connecter la hotte et les armoires d'éclairage.
Important: retirer la sortie (ou un groupe de prises) de l'évier d'au moins 50 ... 60 cm aidera à réduire le risque de court-circuit.
La hauteur de la sortie de la hotte est choisie soit au-dessus du niveau de son placement, soit en dessous (sous l'armoire dans laquelle elle est intégrée, ou sous le panneau inférieur de la hotte elle-même. Dans ce cas, l'emplacement supérieur est plus de succès - les particules de graisse et de suie ne s'accumulent pas sur les éléments extérieurs en plastique de la sortie, ce qui se produit pendant le processus de cuisson.
Il est assez pratique de disposer un groupe d'appareils électriques au même niveau que les rails.
Dans ce cas, la distance du plan de travail est de 35 ... 50 cm.
Un point intéressant : pour ne pas creuser ou percer le mur pour chaque appareil électrique séparément, vous pouvez utiliser une plaque de montage spéciale. Les prises pour connecter l'équipement et les interrupteurs y sont montées de la manière la plus pratique, et les fils passent à travers les canaux de la barre.
Emplacement des prises et interrupteurs selon les règles
Ancien standard et nouvelles tendances de la mode.En équipant une nouvelle maison, ou en changeant le câblage d'un vieil appartement, les propriétaires se posent la question : « A quelle hauteur les prises et les interrupteurs doivent-ils être ? Les représentants de l'ancienne génération préféreront peut-être l'emplacement des interrupteurs à l'ancienne, au niveau des épaules, et la hauteur des prises n'est pas inférieure au niveau de la ceinture.
Les jeunes, qui sont soumis aux tendances des concepts à la mode, seront guidés par la norme européenne lors de la résolution de ce problème. Il convient de mentionner tout de suite que la soi-disant "norme européenne" n'existe pas dans les règles officielles régissant la connexion et l'emplacement de ces appareils électriques à l'intérieur, il n'y a que quelques restrictions sur leur placement, concernant la sécurité incendie et électrique.
Caractéristiques de l'installation d'interrupteurs et de prises dans la cuisine
Lorsqu'il s'agit d'installer une prise et un interrupteur dans la cuisine, dans cette situation, une attention particulière doit être portée au problème. Dans la cuisine, en règle générale, il existe un très grand nombre d'appareils électroménagers différents.
De plus, c'est dans cette pièce qu'il y a un grand nombre de zones qui peuvent être dangereuses : feu ouvert, poêles qui chauffent, grande quantité d'eau. Il est nécessaire de porter une attention particulière à la sécurité dans cette situation.
N'utilisez pas de rallonges ou d'adaptateurs dans la cuisine, des fils supplémentaires, qui provoquent très souvent un court-circuit et un feu très vif difficile à éliminer.
Comment placer les prises et les interrupteurs dans la cuisine: conseils de concepteur vidéo
Dans la cuisine, la hauteur des prises et des interrupteurs doit être basée sur les caractéristiques de la pièce, les appareils électriques et autres qui s'y trouvent, ainsi que sur de nombreuses autres nuances.
Il y a quelques règles générales que tout le monde devrait connaître :
- La surface où vous cuisinez, ainsi que l'évier, sont les zones les plus dangereuses, vous ne pouvez pas les monter à proximité, car cela peut entraîner de graves problèmes.
- L'installation d'une prise qui assure le fonctionnement normal et complet des appareils électroménagers dans la cuisine doit être effectuée à côté de cette technique ou au-dessus de sa surface.
- Très souvent, les gens peuvent faire la même erreur - ils ont des prises derrière les appareils, où il est très difficile, et parfois pas du tout réaliste d'en obtenir.
- Lors du choix d'un emplacement pour une prise, il est impératif de prendre en compte la hauteur du comptoir. Ceci est nécessaire afin de fournir un accès maximal à la prise, pendant laquelle il n'y aura aucun inconvénient.
Emplacement peu pratique des prises et des commutateurs vidéo
Quelle est la hauteur de l'emplacement des interrupteurs et des prises dans l'appartement - c'est une question très importante qui doit être étudiée en détail. Si vous enfreignez certaines règles et normes, cela peut devenir non seulement un inconfort à l'avenir, mais également un problème sérieux. Un emplacement incorrect de la prise peut entraîner un court-circuit, puis un incendie. De plus, cela peut provoquer de nombreux désagréments, vous devez donc suivre les règles et traiter ce problème avec beaucoup de soin. Si vous ne pouvez pas concevoir de manière indépendante l'emplacement des appareils dans une pièce particulière, utilisez les services de spécialistes qui vous aideront à résoudre ce problème plutôt important et délicat.
Hauteur des prises et interrupteurs : normes ou bon sens ?
Presque tout, même une petite réparation cosmétique des locaux comprend, sinon un remplacement complet du câblage électrique existant, du moins sa modernisation partielle. Une telle modernisation consiste généralement à restaurer des sections de câblage inutilisables, ainsi qu'à transférer des points existants et à ajouter de nouveaux points. Et si la pose directe des fils, le «liage» des boîtes de jonction, l'assemblage des panneaux électriques, etc. sont des tâches réservées aux spécialistes, le choix des emplacements pour placer les prises et les interrupteurs est l'apanage des propriétaires des lieux.
Lorsqu'il s'agit de planifier l'emplacement des produits d'installation électrique, les propriétaires ont une question : existe-t-il des normes obligatoires pour un tel cas ?
En tant que tel, il n'y a pas de normes rigides et obligatoires pour la hauteur des prises et des interrupteurs - ni en Russie ni en Europe. Par conséquent, ils peuvent être installés à n'importe quelle distance du sol. Cependant, quatre conditions doivent être remplies :
- Il devrait y avoir une possibilité physique non seulement d'installer un "point" à l'endroit choisi, mais également d'y connecter des fils.
- La sécurité de fonctionnement de la prise ou de l'interrupteur doit être assurée - le bon sens suggère qu'il vaut mieux ne pas installer ces produits à proximité de sources d'eau, de forte chaleur et, de plus, de feu ouvert.
- La prise montée (enfin, ou l'interrupteur) doit être pratique à utiliser - l'interrupteur sous le canapé est tout aussi inapproprié que la prise au plafond.
- Il est hautement souhaitable de pouvoir accéder rapidement au "point". Cela s'applique tout d'abord aux prises électriques, souvent "cachées" derrière des meubles ou des appareils électroménagers.
Si vous ne tenez pas compte des locaux "spécialisés" (tels qu'une cuisine, une salle de bain ou une salle de bain), la condition qui détermine généralement le choix de l'emplacement et la hauteur d'installation du "point" est le respect du paragraphe n ° 3. Autrement dit, là où c'est pratique - nous le mettons là. C'est ainsi qu'est apparue la fameuse "norme européenne", qui n'est pas du tout - c'est en fait juste la hauteur d'installation la plus fréquemment choisie :
- Pour les prises - 20-40 cm du niveau du sol;
- Pour les interrupteurs - de manière optimale à 80-100 cm du niveau du sol.

Hauteur des prises et interrupteurs
Ces chiffres sont dictés par les considérations suivantes : si l'emplacement du point électrique est trop bas, il y a de grandes chances de le remplir d'eau lors du nettoyage humide des sols. Et souvent, il n'est pas très pratique de l'utiliser - il faut se baisser très bas. Si la prise est montée à plus de 40 cm du sol, les cordons d'alimentation des appareils électriques qui y sont inclus deviennent trop visibles, ce qui est plutôt inesthétique et, du point de vue de la plupart des concepteurs, c'est généralement criminel.

Pour les interrupteurs, la hauteur d'installation est choisie de manière à ce que la touche d'alimentation tombe "sous le bras" - pour la personne moyenne, c'est juste un peu moins d'un mètre du sol.
Une exception concerne les chambres d'enfants, dans lesquelles il est généralement recommandé que tous les produits d'installation électrique alimentés par un réseau 220 V soient situés à une hauteur d'au moins 1,6 m du niveau du sol ; toutefois, cette règle n'est pas obligatoire pour le secteur résidentiel privé.

Règles de localisation officielles
La prise et l'interrupteur peuvent être installés n'importe où, à l'exception des endroits dangereux - bains, cuisines et autres pièces où il y a du gaz et de l'eau.Plusieurs documents ont été publiés pour réglementer l'emplacement de ces points dans les zones dangereuses :
- GOST R 50571.11-96 ;
- PS 31-110-2003 ;
- Règles pour le dispositif des installations électriques.
Assurez-vous de lire ces documents si vous effectuez vous-même des réparations. Les services du logement peuvent vérifier la conformité de votre appartement aux normes si vous avez un accident, un court-circuit. Et s'il s'avère que vous avez enfreint les règles établies, ils peuvent imposer une amende ou refuser de payer la somme assurée.
Eurostandard : mythes et réalité
Dans de nombreux articles thématiques ou sur des forums, vous pouvez trouver le terme "norme européenne". Ce n'est pas un concept tout à fait correct, car différents pays européens ont leur propre cadre réglementaire concernant le placement des prises et des interrupteurs.

La hauteur généralement acceptée des prises selon la norme européenne atteint 30 à 40 cm de la ligne du sol. Les interrupteurs sont placés à une hauteur de 0,8 à 1 m.Si vous y réfléchissez, vous pouvez trouver ses avantages dans cet agencement - il n'y a pas de cordons ni de câbles suspendus aux murs, le câblage est moins visible. Et le placement bas des interrupteurs vous permet de ne pas lever les mains pour allumer et éteindre la lumière.

Gardez à l'esprit que la taille de la prise euro et la distance entre les trous pour les broches sont supérieures à celles des homologues domestiques. Les produits importés sont conçus pour un courant allant jusqu'à 16 A, et les nôtres - jusqu'à 10 A. Par conséquent, des appareils électriques plus puissants peuvent être utilisés avec des prises européennes.

Emplacement optimal

Dans chaque pièce, les résidents utilisent souvent ou constamment divers appareils électriques.Pour que tous les éléments intérieurs soient à leur place et que les prises ne soient pas cachées derrière un placard ou un canapé, vous devez dessiner un plan pour chaque pièce avec les dimensions indiquées et déterminer où iront les meubles, les appareils électroménagers et l'éclairage. Il est également nécessaire de tenir compte des codes et règlements du bâtiment afin d'assurer la sécurité incendie et le bon fonctionnement du câblage électrique.
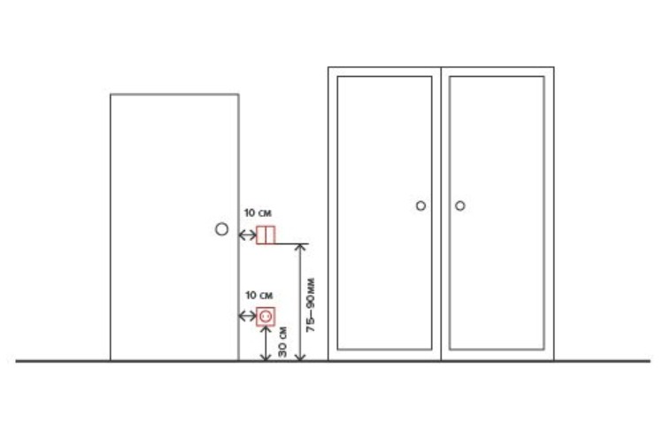
Couloir et couloir

L'éclairage dans le couloir est mieux connecté à l'aide d'interrupteurs séparés. Le plus souvent, dans cette pièce, ils utilisent des sèche-chaussures ou un aspirateur. Par conséquent, deux prises seront suffisantes, situées dans le coin à une hauteur de 30 cm du sol et 10 voir de la porte ou des meubles. S'il est nécessaire d'installer des appareils électriques supplémentaires dans le couloir, le circuit devient plus compliqué.

Salle de bains

Dans la salle de bain, une machine à laver, une cabine de douche et un chauffe-eau peuvent être branchés en permanence sur des prises. Souvent, vous devez utiliser un sèche-cheveux ou un rasoir. Pour les gros équipements, des sources d'énergie distinctes seront nécessaires, qui, selon les règles, ne doivent pas être situées à moins de 60 cm de la source d'eau et du sol. Vous devriez acheter des prises spéciales étanches à l'humidité avec un couvercle et un marquage IP44 - elles ont une bride en plastique spéciale à l'intérieur pour évacuer l'eau lorsqu'elle frappe.

Un ventilateur d'extraction forcée est généralement connecté à un interrupteur d'éclairage - si une personne entre dans la salle de bain, la hotte commence à fonctionner.
Cuisine

La cuisine est en tête du nombre d'appareils électriques fonctionnant en permanence. La liste principale des équipements constamment inclus dans le réseau:
- frigo;
- Lave-vaisselle;
- cuisinière électrique;
- four micro onde;
- télévision;
- capot;
- bouilloire électrique;
- Machine à laver.
Par conséquent, vous avez besoin d'au moins huit prises pour un travail constant et d'au moins cinq pour les petits appareils électroménagers, comme un mixeur, un moulin à café ou un hachoir à viande.

La principale difficulté est l'emplacement correct des prises pour les appareils encastrés - elles ne peuvent pas être placées derrière les appareils électriques, il est donc préférable de déplacer les sources d'énergie au-delà des armoires de cuisine adjacentes. Des alimentations électriques séparées doivent être installées pour la table de cuisson et le four - une double prise ne supportera pas la charge.
Salon

Cette pièce est utilisée pour les loisirs et le divertissement du ménage, elle dispose d'une télévision, d'un centre audio, d'un routeur Wi-Fi, d'un système split, de points d'éclairage locaux. Ces appareils sont connectés en permanence, les prises pour eux, conformément aux règles de sécurité, sont montées à une hauteur de 30 cm du sol et à au moins 10 cm des ouvertures de porte et de fenêtre.

Pour un système divisé, la prise doit être placée en haut, près du site d'installation de l'unité intérieure - cela évitera les fils disgracieux sur les murs.
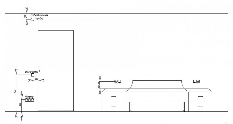
Chambre

Les tables de chevet ont généralement des téléphones ou des tablettes qui nécessitent une recharge supplémentaire. Par conséquent, la meilleure solution serait de placer quelques prises près du lit, à une distance de 15 à 20 cm du plateau de la table.
Il est pratique de regarder vos films et programmes préférés lorsque vous êtes allongé dans votre lit, de sorte que le téléviseur est généralement accroché au mur en face de la tête du lit. Vous pouvez cacher la prise derrière le panneau de l'écran.

Enfants

Un petit enfant a besoin d'une prise pour une veilleuse, mais il convient de considérer que dans quelques années, vous aurez besoin de sources d'énergie pour les consoles de jeux et pour charger votre téléphone, votre tablette, votre téléviseur et votre ordinateur. Et s'il y a plusieurs enfants, la charge sur le réseau électrique augmente.
Pour les chambres d'enfants, il est conseillé d'acheter des prises sécurisées avec couvercles ou fiches et de les disposer de manière à ce que le bébé n'atteigne pas les fils suspendus.

Bureau ou bureau

Le bureau comprend généralement un ordinateur, un moniteur, des équipements périphériques, un téléphone et une lampe de table. Pour un travail confortable, vous aurez besoin d'au moins 6 prises avec un parasurtenseur, et afin de cacher un vilain désordre de fils, vous devez monter des accessoires électriques à une hauteur de 25-30 cm au-dessus du sol et retirer les fils sous le câble canaliser.

Prises et interrupteurs dans les salles de bain
Relativement récemment, les prises dans les salles de bains n'étaient pas du tout installées. Tout d'abord, il n'y avait aucun équipement nécessitant une connexion séparée. Les machines à laver à l'ancienne pourraient être connectées via une rallonge depuis n'importe où dans l'appartement. Et deuxièmement, il n'y avait pas de prises de haute qualité protégées de l'humidité.
À l'heure actuelle, une salle de bains moderne ne peut être imaginée sans prises. De plus, souvent leur installation ne se limite pas à une seule unité. Seule une machine à laver nécessite un point séparé connecté à une ligne séparée, protégée par son propre RCD. Les unités puissantes ne pourront tout simplement pas fonctionner longtemps avec une rallonge conventionnelle. En règle générale, la hauteur des prises dans ce cas est inférieure à 1 mètre, ce qui permet, si nécessaire, de déconnecter très rapidement le lave-linge du secteur.
Une prise séparée sera nécessaire pour un chauffe-eau électrique, car dans de nombreux foyers, c'est à l'aide d'une chaudière que le problème de l'eau chaude est résolu.Une ligne séparée avec un RCD lui est également attribuée, et la prise elle-même est située directement à côté de l'appareil lui-même. Les blocs de prises peuvent être installés au-dessus du comptoir. Ils alimentent un rasoir électrique, un sèche-cheveux et d'autres petits appareils électroménagers.
Une limitation sérieuse dans leur installation est la distance obligatoire de 60 cm des sources d'eau. Comme mesure de sécurité supplémentaire, l'installation implique l'installation et la connexion d'une mise à la terre, ainsi que l'utilisation d'une barrière contre l'humidité.
Contrairement aux prises, les interrupteurs ne sont jamais montés à l'intérieur des salles de bains. Ils sont installés devant l'entrée de la pièce à une hauteur de 80 cm et plus. La pose des câbles s'effectue directement à partir du panneau électrique sous la forme d'une ligne séparée de manière cachée. Cela évite les dommages accidentels et le contact avec l'eau. Avant l'installation, un plan est préalablement établi dans lequel toutes les distances sont mesurées et appliquées avec une précision maximale.
Euronorme
La hauteur de l'interrupteur par rapport au sol selon la norme européenne est de 90 cm, les prises sont de 30 cm.Cependant, la normalisation en tant que telle n'a jamais existé et ce concept est entré dans nos vies avec le concept de réparation de qualité européenne, remplaçant la « norme soviétique ». Bien sûr, cela a ses avantages et ses inconvénients :
- De plus - les prises ne "frappent" pas et n'interfèrent avec rien, et les interrupteurs sont situés au niveau de la main abaissée - ils peuvent être allumés sans aucun effort et sans même regarder. La hauteur de l'interrupteur à partir du sol est de 90 cm.
- Moins - pour insérer la fiche dans la prise, vous devrez vous pencher et l'interrupteur ne doit être bloqué par rien.
Recommandations de montage
Si vous voulez faire du câblage et connecter les prises avec un interrupteur de manière indépendante sans l'intervention d'une aide extérieure, vous devez alors suivre les conseils ci-dessus et un certain nombre de règles qui vous permettront de terminer tous les travaux sans problème et, surtout, en toute sécurité:
- la première étape sera la préparation d'un schéma de plan, qui reflétera la future disposition de la pièce, alors qu'il doit être établi aussi précisément que possible afin que vous puissiez ensuite acheter la quantité de câble nécessaire. Ce n'est pas très agréable quand, au plus fort du travail, il n'y a soudainement pas assez de câble, ou vice versa - il y aura beaucoup de câbles inutilisés ;
- il faut aussi marquer sur les murs toutes les prises qui seront nécessaires. Dans ce cas, la hauteur de l'emplacement des divers appareils doit être prise en compte;
- les appareils pour appareils fixes (comme un ordinateur ou un réfrigérateur) doivent être montés de manière à être à la fois accessibles et cachés derrière les appareils ;
- peu importe ce que vous installez, une prise ou un interrupteur, il ne faut pas confondre l'ordre de branchement des contacts ! Ceci est particulièrement important lors de la connexion d'une prise à trois broches dotée de contacts de mise à la terre ;
- les prises sont installées sur la base d'un courant de 6A, soit une pièce pour 10 m2 de surface de pièce. Dans la cuisine de n'importe quelle zone, deux prises sont installées;
- les prises ou les interrupteurs ne peuvent pas être installés sous ou au-dessus de l'évier ;
- le schéma de câblage doit être choisi de manière à éliminer complètement les surcharges du réseau ;
- les prises fréquemment utilisées doivent être placées à une hauteur de 30 cm, tout en tenant compte du fait qu'elles peuvent facilement atteindre le cordon de l'aspirateur de n'importe où dans la pièce.
Que faut-il retenir lors de l'installation d'électriciens selon la norme européenne ?
- Les prises doivent être installées selon une formule simple : une prise pour 10 mètres carrés.
- Une prise de courant dans la salle de bain est autorisée, mais elle doit être à plus de 60 centimètres de la baignoire ou de la douche. Toutes les prises doivent être étanches et connectées à des systèmes sans interruption.
- La mise à la terre est un must.
- Les prises ne doivent en aucun cas être installées sous ou au-dessus des éviers.
- Le système de câblage doit contenir le moins de points de contact possible. Tous les points de contact doivent être situés dans le tableau et fermés sur les barres de phase et de neutre.
Selon la norme européenne, le diamètre de la prise d'une prise domestique doit être supérieur de 0,8 mm à celui des prises traditionnelles. Cela assure un contact plus étroit et réduit l'accumulation de chaleur en cas de surcharge.
Conclusions et recommandations précieuses
Où et comment placer les interrupteurs et les prises doivent être déterminés uniquement sur la base de la sécurité et, bien sûr, du confort. À ce jour, il n'y a pas de normes prescrites qui indiqueraient l'emplacement de l'emplacement des prises électriques et des interrupteurs. Surtout leur nombre dans une pièce séparée.
La planification est l'étape de calcul du nombre de mécanismes qu'une personne utilisera de façon continue, peu importe les locaux. Plus 1-2 prises supplémentaires sur le dessus pour des appareils supplémentaires. Les exigences les plus strictes ne sont imposées qu'aux maîtres qui installent des appareils électriques dans l'appartement. Ces personnes doivent être des spécialistes ayant une bonne expérience.
Mais s'il a été décidé d'effectuer tous les travaux par eux-mêmes, vous devez vous familiariser avec tous les types d'équipements électriques. La gamme de produits étant très large, cela signifie qu'il existe un équipement pour chaque besoin.Il peut s'agir d'une prise audio permettant de brancher une acoustique, un centre musical ou une prise pour un téléphone fixe, ainsi que pour un câble Ethernet.
La hauteur de l'installation détermine les conditions confortables de vie dans la maison, sa sécurité, son aménagement paysager et sa beauté.













































