Comment connecter une chaudière à gaz Ariston: recommandations pour l'installation, le raccordement, la configuration et le premier démarrage

Comment allumer le chauffage sur la chaudière Ariston. démarrer la chaudière de vos propres mains: une classe de maître avec des photos étape par étape. caractéristiques générales des chaudières ariston

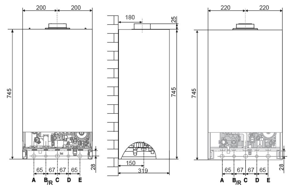
montage mural

Initialement, j'ai installé un angle coaxial sur la chaudière et mesuré la distance entre le bord de la chaudière et le centre du coin - elle, comme indiqué dans les instructions, était de 105 mm.

La distance entre le centre du coin et le haut de la chaudière est de 105 mm

Vous pouvez fixer immédiatement la pince étroite, sans oublier de mettre le joint d'étanchéité.

Avant de serrer le collier, il est nécessaire d'insérer un joint d'étanchéité

Ma maison est gainée à l'extérieur d'un revêtement en vinyle, j'ai donc immédiatement décidé de faire le balisage afin que le trou pour le tuyau s'adapte entièrement sur une bande de revêtement.

Certains sites suggèrent de faire d'abord un trou pour la cheminée, puis de visser la plaque de montage. J'ai décidé de visser la barre en premier. Comme mentionné ci-dessus, le kit est livré avec deux chevilles à clous. Ils sont conçus pour monter la chaudière sur un mur en brique ou en béton. Puisque la maison a été construite à partir de panneaux sandwich, j'ai vissé la barre avec des vis à bois de toiture.

La barre est mise à niveau horizontalement et fixée avec cinq vis autotaraudeuses galvanisées.

Plus loin dans le mur, un trou traversant d'un diamètre de 10 mm a été percé. Centre les trous correspondaient au centre du tuyau coaxial. Le trou pour les tuyaux a été découpé des deux côtés à l'aide d'une scie sauteuse électrique.

Après avoir coupé le trou et suspendu la chaudière, vous pouvez installer une cheminée coaxiale

Il est préférable d'installer la cheminée ensemble - l'un pousse le tuyau de l'extérieur, l'autre met le joint isolant intérieur (en plastique dur) et la pince (il est plus pratique de visser immédiatement les vis dans la pince).

Tuyau installé, colliers serrés

En raison du fait que le joint isolant extérieur est assez élastique, il s'adapte suffisamment au revêtement.

Tuyau coaxial après installation

C'est là que je termine. Ensuite, nous devrons souder des tuyaux en polypropylène, connecter des tuyaux en polypropylène avec des tuyaux en métal-plastique et installer des robinets supplémentaires sur le système de chauffage.Ce n'est qu'après cela que vous pourrez démarrer Ariston.

À suivre…

Mode d'emploi des chaudières à gaz Ariston

Avant d'acheter une chaudière à gaz Ariston, vous devez comprendre que si l'acheteur ne comprend pas son installation, il est préférable de contacter des spécialistes expérimentés et de leur confier tous les travaux. Après tout, même avec les instructions les plus détaillées, ce n'est pas un fait que l'affaire se terminera avec succès. Dans ce cas, il y a toutes les chances d'endommager l'équipement, après quoi vous devrez faire appel à des réparateurs, ce qui entraînera des coûts supplémentaires.

Il est très important d'éloigner les enfants de l'équipement. Pour ce faire, après, il est nécessaire d'avoir une conversation avec eux et de leur expliquer dans un langage accessible que rien ne peut être tordu et posé sur l'appareil, seul un adulte doit le faire

Si la famille part, par exemple, en vacances, après l'arrêt de la chaudière, il est également nécessaire de fermer tous les tuyaux d'alimentation en gaz et en eau. Ce n'est qu'après cela que l'équipement est déconnecté du réseau.

Si un affichage est fourni sur un modèle, tous les indicateurs qu'il affiche doivent être strictement contrôlés. Il peut afficher des dysfonctionnements ou des écarts par rapport au fonctionnement normal qui se sont produits pendant le processus de chauffage.

L'un des points les plus importants dans les instructions pour les équipements à gaz est la sécurité. Avant de connecter la chaudière, vous devez d'abord vous familiariser avec elle.

Comment connecter une chaudière à gaz Ariston: recommandations pour l'installation, le raccordement, la configuration et le premier démarrage

Comment installer une chaudière murale

Avant l'installation, déballez le générateur de chaleur et vérifiez que l'appareil est complet. Assurez-vous que les fixations d'origine s'adaptent à vos murs. Par exemple, des fixations spéciales sont nécessaires pour le béton cellulaire, les chevilles ordinaires ne conviennent pas.

Nous suivons l'ordre de travail suivant :

  1. Marquez le contour de l'unité de chauffage sur le mur.Assurez-vous que les empreintes technologiques des structures du bâtiment ou d'autres surfaces sont respectées : 0,5 m du plafond, du bas - 0,3 m, sur les côtés - 0,2 m. Habituellement, le fabricant fournit un schéma avec les dimensions dans le manuel d'instructions.
  2. Pour une chaudière turbo à chambre fermée, nous préparons un trou pour une cheminée coaxiale. Nous le forons avec une pente de 2–3 ° vers la rue afin que le condensat résultant s'écoule. Le processus d'installation d'un tel tuyau est décrit en détail par nous séparément.
  3. Le générateur de chaleur est livré avec un gabarit d'installation en papier avec des trous pré-percés. Fixez le croquis au mur, alignez-le avec le niveau du bâtiment, fixez le schéma avec du ruban adhésif.
  4. Les points de perçage doivent être poinçonnés immédiatement. Retirez le gabarit et faites des trous de 50 à 80 mm de profondeur. Assurez-vous que la perceuse ne va pas sur le côté, cela se produit sur les cloisons en briques.
  5. Installez des bouchons en plastique dans les trous, vissez les crochets de suspension à la profondeur maximale à l'aide d'une pince. Avec l'aide d'une deuxième personne, accrochez soigneusement la machine.

Lorsque vous marquez des trous dans un mur en rondins de bois, assurez-vous que la fixation se trouve sur la crête du rondin. Les crochets se vissent directement dans l'arbre, sans bouchons en plastique.

Allumer la chaudière à gaz

Une condition préalable au service de garantie d'une chaudière à gaz est la mise en œuvre de la première inclusion exclusivement par un maître du service de gaz. Si l'utilisateur respecte toutes les instructions et précautions de sécurité pour l'auto-démarrage, vous pouvez également compter sur la fiabilité et la durabilité du système de chauffage.

La première mise en service de la chaudière murale s'effectue strictement après avoir vérifié les points suivants.

Tout d'abord, vous devez vous assurer que les tuyaux de gaz sont étanches avec la vanne de gaz fermée et ouverte.Si dans les 10 minutes suivant le raccordement de tous les tuyaux, aucun débit de gaz n'est enregistré, on peut affirmer que le système est étanche.

Le gaz fourni à partir de la canalisation principale doit être conforme aux exigences spécifiées dans les instructions de la chaudière. Lors du transfert de l'unité vers le traitement d'un mélange liquéfié, il est nécessaire de changer les buses à l'avance.

Vous devez également vérifier le niveau de pression dans le système. Il doit être tel que recommandé. Les tuyaux d'admission d'air et d'échappement de dioxyde de carbone doivent être vérifiés pour les blocages.

Comment connecter une chaudière à gaz Ariston: recommandations pour l'installation, le raccordement, la configuration et le premier démarrage
Parfois, les utilisateurs sont confrontés au problème d'une mauvaise circulation de la pompe. Souvent, la cause est une faible tension secteur. Ce problème est résolu en installant un stabilisateur

Assurez-vous que la pièce avec la chaudière dispose d'un système de ventilation en état de marche. De plus, le pressostat de fumées de sécurité est contrôlé.

Après avoir effectué les travaux préliminaires, la procédure de démarrage de la chaudière suit :

  • La chaudière à gaz est connectée au réseau, l'alimentation en gaz de l'appareil est ouverte;
  • Vérifiez que toutes les vannes sont ouvertes à l'entrée et à la sortie du liquide de refroidissement vers l'unité ;
  • Appuyez sur le bouton ou tournez l'interrupteur sur le tableau de bord de la chaudière, selon la méthode d'activation spécifiée dans les instructions.

Vous pouvez régler la température à l'aide des boutons correspondants. Fonctionnant en mode automatique, la chaudière allume indépendamment le brûleur s'il est nécessaire de chauffer l'eau du système. Si la chaudière est à double circuit, en cas d'ouverture d'eau chaude, le brûleur s'allume automatiquement pour le chauffage.

Il est recommandé de régler tous les paramètres de la chaudière sur l'écran de la chaudière après la première mise en service. Les instructions indiquent généralement la séquence des actions nécessaires.

Lire aussi :  Réparation de vanne de chaudière à gaz: comment réparer l'unité en corrigeant les dysfonctionnements caractéristiques

Le système de verrouillage coupe l'alimentation en gaz si le brûleur ne s'allume pas dans les dix secondes environ. Lors du premier démarrage, il peut être nécessaire de retirer la serrure de contact en raison de la présence d'air dans la conduite de gaz. Vous devez attendre que l'air soit déplacé par le gaz. Le verrou est supprimé au redémarrage de l'appareil.

Pour démarrer une chaudière à gaz au sol, vous devez effectuer les mêmes procédures préparatoires que pour une chaudière murale. Avant de démarrer directement, il faut ventiler la chaufferie, s'assurer que tous les robinets des tuyaux de chauffage sont ouverts et qu'il y a du tirage dans la cheminée. Vous pouvez vérifier la traction avec morceau de papier.

Comment connecter une chaudière à gaz Ariston: recommandations pour l'installation, le raccordement, la configuration et le premier démarrage
Il existe deux options pour éteindre la chaudière à gaz au sol. Il est possible d'éteindre uniquement le brûleur principal ou le brûleur principal avec la veilleuse

Allumer la chaudière au sol :

  • La porte de l'appareil est ouverte, la position du bouton de commande de la chaudière est vérifiée en position d'arrêt.
  • Le robinet de gaz s'ouvre.
  • Le bouton de commande est réglé sur la position d'allumage piézo.
  • Ensuite, vous devez appuyer sur la poignée pendant 5 à 10 secondes pour que le gaz passe à travers les tuyaux et déplace l'air. Le bouton d'allumage piézo est enfoncé.
  • Ensuite, la présence d'une flamme dans le brûleur est vérifiée. Si le brûleur ne s'allume pas, la procédure est répétée.

Après l'allumage du brûleur principal, la température de chauffage peut être réglée à l'aide du bouton de commande.

Premier démarrage et réglage de la chaudière

Lorsque les travaux d'installation et de raccordement sont terminés, vous pouvez procéder à la configuration et au test de l'équipement.

Exécution de la première manche

L'action initiale qui accompagne le premier démarrage d'une chaudière à gaz de marque Ariston consiste à remplir d'eau le circuit de chauffage.Dans ce cas, il est nécessaire de régler les vannes d'air des radiateurs sur l'état de fonctionnement (ouvert).

Les mêmes actions visant à purger l'air de l'installation s'appliquent à la pompe de circulation de la chaudière. Lorsque le circuit est rempli d'eau, l'air est évacué du système, la pression d'eau sur le manomètre atteint 1 - 1,5 atmosphères, la vanne sur la conduite d'alimentation est fermée.

Le premier démarrage d'une chaudière à gaz s'accompagne généralement d'opérations préparatoires liées au remplissage de l'installation en eau, à la purge d'air, à la vérification de l'étanchéité des conduites de gaz

À l'étape suivante de la mise en service d'une chaudière à gaz, des actions liées à l'alimentation en gaz sont effectuées.

La procédure est approximativement la suivante :

  • ouvrir les portes et les fenêtres de la salle de travail ;
  • éliminer la présence de sources de feu ouvert ;
  • vérifier l'étanchéité du circuit du brûleur et du système de commande.

Le test d'étanchéité de l'unité de commande et du brûleur s'effectue en ouvrant brièvement (pas plus de 10 minutes) la vanne d'arrêt principale de la conduite de gaz. Dans ce cas, l'électrovanne et le registre manuel de la chaudière sont mis en position fermée. Avec cette position du système, le débitmètre de gaz doit afficher un résultat nul (pas de fuite).

Manipulations de réglage avec le panneau de commande

L'équipement de chauffage au gaz moderne est équipé d'un panneau de commande où l'utilisateur peut définir les paramètres de fonctionnement souhaités de l'unité. Ensuite, nous examinerons de plus près comment installer une chaudière à gaz domestique de la marque Ariston.

Le contrôle pendant le fonctionnement de la chaudière, ainsi que le contrôle dans le premier mode de démarrage avec les réglages nécessaires, est effectué via le panneau de commande de l'utilisateur Ariston

En fait, les actions de l'utilisateur sur le panneau de contrôle sont évidentes ici :

  1. Allumez l'appareil en activant le bouton ON/OFF.
  2. Marquez les paramètres du mode de fonctionnement sur l'écran.
  3. Marquez les fonctions du mode service sur l'écran.

Ensuite, les paramètres du gaz sont vérifiés, pour lesquels le panneau avant de la chaudière est démonté, la plaque du panneau de commande est abaissée et des manipulations de test sont effectuées avec la connexion du manomètre de mesure aux prises de pression.

Ces opérations sont l'apanage des spécialistes du service gaz. L'exécution indépendante n'est pas recommandée, car il est nécessaire de connaître clairement la fonctionnalité de l'équipement.

Disposition du clavier de la télécommande Ariston : 1 - écran d'information ; 2 – Régulation de la température ECS ; 3 – touche de sélection de mode (Mode) ; 4 - Fonction « Confort » ; 5 – Touche MARCHE/ARRÊT ; 6 - Mode "Auto" ; 7 - touche de réinitialisation "Réinitialiser" ; 8 - régulation de la température du circuit de chauffage

La chaudière est ensuite démarrée en mode test via la fonction système « Ramoneur ». Pour entrer en mode test, activez le bouton Reset et maintenez-le enfoncé pendant au moins 5 secondes. Le mode test est quitté en réactivant le bouton de réinitialisation.

Test de puissance maximale/minimale

Ce type de test prévoit également un échantillonnage de contrôle de la pression à des points spécialisés de l'équipement, suivi d'une mesure des paramètres sur un manomètre. Il est nécessaire de déconnecter le tube de compensation de la chambre de combustion. Encore une fois, le mode « Ramoneur » est utilisé, activé via le panneau de commande.

De même, la chaudière est testée pour le niveau de puissance minimum. Certes, la vis de réglage du modulateur est également utilisée s'il est nécessaire de corriger la valeur de la pression de fonctionnement minimale de la chaudière. A cette occasion, une vidéo est postée ci-dessous, où pour une raison quelconque le modulateur s'appelle un moteur.

Mise en service des équipements

Le processus de démarrage de l'appareil prévoit les actions suivantes de l'utilisateur :

  1. Activez le bouton MARCHE/ARRÊT.
  2. Sélectionnez le mode veille.
  3. Maintenez le bouton Mode enfoncé pendant 3 à 10 secondes.
  4. Attendre le cycle de purge (environ 7 minutes).
  5. Ouvrez le robinet de gaz de la conduite.
  6. Activez le mode de fonctionnement ECS avec le bouton "Mode".

Si toutes les actions ont été effectuées par un maître d'une entreprise spécialisée, il vérifie alors la conformité de la pression de gaz pendant le fonctionnement de l'unité et rédige un acte approprié.

Et donne également des instructions sur le fonctionnement en toute sécurité des équipements à gaz et met la chaudière sous garantie.

Caractéristiques

Presque toutes les chaudières à gaz de la marque Ariston ont une capacité de 15 à 30 kW. Ainsi, chaque client pourra choisir les indicateurs nécessaires à la taille de son appartement ou de sa maison. Il convient également de noter d'autres caractéristiques distinctives de ces équipements à gaz:

avec une efficacité maximale, les chaudières ont un haut niveau d'efficacité;
toutes les chaudières murales ont des instructions et des désignations russes sur l'équipement lui-même, de sorte que les citoyens n'ont aucun problème à contrôler l'unité;
la plupart des modèles de ce fabricant sont parfaitement capables de gérer l'eau dans le système et la basse pression;
une attention particulière à cet équipement doit être accordée aux personnes chez qui des surtensions se produisent souvent. Les chaudières Ariston peuvent facilement faire face à de tels sauts dans le réseau;
tous les modèles sont très faciles à utiliser

Pour commencer à utiliser la chaudière, vous n'avez pas besoin d'étudier les instructions pendant longtemps, toutes les fonctionnalités de fonctionnement sont intuitives et accessibles même pour ceux qui installent une telle unité pour la première fois.

Dans certains cas, la chaudière ne peut pas simultanément chauffer l'eau et fournir un chauffage suffisant, cela s'applique aux modèles économiques. Dans ce cas, une personne doit penser à installer une chaudière supplémentaire.

Comment connecter une chaudière à gaz Ariston: recommandations pour l'installation, le raccordement, la configuration et le premier démarrage

Suppression des poches d'air dans le système

Mieux vaut commencer avec des piles. Pour éliminer les embouteillages, une grue Mayevsky est généralement installée dessus. Nous l'ouvrons et attendons que l'eau coule. Avez-vous exécutez? Nous fermons. Ces manipulations doivent être effectuées avec chaque appareil de chauffage séparément.

Comment démarrer la chaudière de vos propres mains photo

Une fois l'air évacué des batteries, la pression dans le système diminue et l'aiguille du manomètre baisse. À ce stade des travaux, la solution à la question du démarrage de la chaudière consiste à réalimenter le système en liquide.

Maintenant, le plus difficile est que le démarrage des chaudières à gaz nécessite une évacuation de l'air de la pompe de circulation. Pour ce faire, la chaudière doit être un peu démontée. Nous retirons le capot avant et recherchons un objet cylindrique avec un couvercle brillant au milieu, qui a une fente pour un tournevis. Après l'avoir trouvée, nous mettons la chaudière en marche - nous l'alimentons en électricité et réglons les régulateurs de chauffage de l'eau en position de travail.

Lire aussi :  Comment entretenir les chaudières à gaz pour qu'elles durent longtemps ?

Libérer l'air de la pompe de circulation lors du démarrage de la photo de la chaudière

La pompe de circulation s'allumera immédiatement - vous entendrez un léger bourdonnement et un fort gargouillement et de nombreux sons incompréhensibles. C'est bon. Tant que la pompe est aérée, il en sera ainsi. Nous prenons un tournevis et dévissons lentement le couvercle au milieu de la pompe - dès que l'eau commence à s'infiltrer par dessous, nous le tordons.Après deux ou trois manipulations de ce type, l'air sortira complètement, les sons incompréhensibles s'atténueront, l'allumage électrique fonctionnera et commencera à fonctionner. Nous vérifions à nouveau la pression et, si nécessaire, ajoutons de l'eau au système.

En gros, tout. Pendant que le système se réchauffe, vous pouvez faire une étude détaillée des instructions (si, bien sûr, vous ne l'avez pas déjà fait) et déboguer le système, ce qui implique de démarrer la chaudière. Tout est simple ici - les batteries les plus proches de la chaudière doivent être vissées et les plus éloignées doivent être exploitées au maximum. Un tel débogage est effectué au moyen de vannes de régulation installées sur le tuyau reliant l'alimentation au radiateur de chauffage.

Capacité réduite de l'échangeur de chaleur obstrué

Souvent, l'accumulation de tartre ou de saleté sur les parois intérieures de l'échangeur de chaleur est la cause de problèmes d'eau chaude. Si l'eau du robinet ne subit pas de filtration préliminaire (nettoyage grossier) et que la température de l'eau chaude est trop élevée, les parois de l'échangeur de chaleur sont recouvertes de tartre et de saleté au fil du temps, leur conductivité thermique et leur section d'écoulement diminuent. Chaque fois que l'utilisateur augmente de plus en plus la température ECS sur la chaudière pour obtenir le résultat souhaité sur le mélangeur. À mesure que la température augmente, le tartre s'accumule encore plus rapidement et finit par température ECS de la chaudière à maximum et l'eau ne chauffe pas suffisamment. Ce processus a un effet particulièrement négatif sur une chaudière avec un échangeur de chaleur bithermique. Les échangeurs de chaleur à plaques se prêtent bien au rinçage.

Recommandations pour allumer la chaudière à gaz Baxi

Si vous vous demandez comment allumer la chaudière à gaz au sol Baxi, vous devez suivre une certaine technologie. Dans un premier temps, vous devez ouvrir le robinet de gaz, généralement situé sous l'équipement lui-même.

Il est important de s'assurer que le système a la bonne pression, ce n'est qu'alors que l'alimentation peut être fournie à l'appareil. Ensuite, vous devez appuyer sur le bouton "Démarrer" et régler l'appareil sur le mode "Hiver" ou "Été"

Le panneau comporte des boutons spéciaux avec lesquels vous pouvez régler les valeurs de température souhaitées dans les circuits de la chaudière et de l'eau chaude. Cela allumera le brûleur principal. Si vous avez acheté une chaudière à gaz, comment l'allumer, vous devez demander avant de déballer la marchandise. Après avoir effectué toutes les actions ci-dessus, vous devez vous assurer que la chaudière fonctionne, cela sera indiqué par un symbole spécial de flamme brûlante sur l'écran.

Les principaux modèles de chaudières "Ariston"

Vous trouverez ci-dessous des produits populaires évalués positivement par les experts et les propriétaires.

Pour faciliter l'évaluation, les principales caractéristiques sont données sous forme de tableau standard. Pour chaque chaudière murale à gaz à double circuit "Ariston 24", les instructions du fabricant et la documentation qui l'accompagne contiennent des informations détaillées sur le produit.

BCS 24FF

Choix Valeurs Remarques
Type, puissance gaz Chaudière à convection "Ariston" 24 kW à double circuit.
Efficacité, % 93,7 Consommation par heure - 1,59 kg (2 mètres cubes) de gaz liquéfié (naturel).
Productivité, l/min 13,5 (9,6) A +25 °C (+35 °C).
Équipement Contrôle électronique, système de diagnostic automatique, contrôle de la combustion, arrêt en cas de surchauffe.

Uno 24FF

Choix Valeurs Remarques
Type de gaz Convection, double circuit, 24 kW.
Efficacité, % 92,5
Productivité, l/min 13,9 (10) A +25 °C (+35 °C).
Équipement Régulation électronique sans affichage, contrôle de la combustion, arrêt en cas de surchauffe.

Genre

Choix Valeurs Remarques
Type de gaz Chambre fermée, double circuit, de 23,7 à 30 kW de puissance dans différents modes.
Efficacité, % 94,5 Consommation par heure - 1,59 kg (2 mètres cubes) de gaz liquéfié (naturel).
Productivité, l/min 14,5 (11,6) A +25 °C (+35 °C).
Équipement Commande électronique, pompe de circulation, système de diagnostic automatique, vase d'expansion.

Egis Plus

Choix Valeurs Remarques
Type de gaz Convection, double circuit à chambre fermée, jusqu'à 28,7 kW.
Efficacité, % 94,5 Consommation par heure - 1,59 kg (2 mètres cubes) de gaz liquéfié (naturel).
Productivité, l/min 13,6 (9,7) A +25 °C (+35 °C).
Équipement Régulation électronique, vase d'expansion, arrêt en cas de surchauffe.

Auto-assemblage de chaudières murales à gaz

Installation à faire soi-même d'une chaudière à gaz - nous le faisons bienCependant, tous les fabricants d'équipements de chauffage au gaz n'autorisent pas l'installation de leurs appareils de chauffage par eux-mêmes :

  • les entreprises Ariston, Viessmann, Bosch et plusieurs autres obligent les acheteurs à installer une chaudière à gaz murale exclusivement par des employés de centres certifiés;
  • certains fabricants, tels que BAXI, Ferroli, Electrolux, plus fidèles à ce problème, n'interdisent pas l'installation non autorisée d'appareils muraux. Mais dans tous les cas, pour les activités de mise en service lors de l'aménagement de la structure de chauffage, des services seront nécessaires auprès de spécialistes autorisés à connecter des équipements de gaz et électriques.

Remplir le système de chauffage avec de l'eau

Le démarrage d'une chaudière à gaz commence par le remplissage d'eau du système de chauffage. Ici, tout est simple - les chaudières modernes à double circuit ne nécessitent pas l'installation d'une unité d'alimentation spéciale du système.Il est déjà intégré à la chaudière et est équipé d'un robinet spécial qui, en règle générale, est situé au bas de la chaudière à proximité du tuyau de raccordement à l'eau froide. Ouvrez le robinet d'appoint et remplissez lentement le système avec de l'eau.

Démarrage de la chaudière - comment remplir le système d'eau

Un point très important dans le fonctionnement de tout équipement de chaudière est la pression du fluide. Pour contrôler ce paramètre du système de chauffage, presque toutes les chaudières sont équipées d'un manomètre. Lors du processus de remplissage des systèmes avec de l'eau, il est nécessaire de surveiller la pression et après qu'elle atteigne 1,5-2 atm, le remplissage du système devra être arrêté. En principe, l'indicateur de la pression de travail de la chaudière, selon le fabricant et le modèle, peut varier - par conséquent, voir le chiffre exact de la pression de travail dans les instructions de la chaudière.

Comment connecter une chaudière à gaz Ariston: recommandations pour l'installation, le raccordement, la configuration et le premier démarrage

Premier démarrage d'une chaudière à gaz à faire soi-même

Caractéristiques

Presque toutes les chaudières à gaz de la marque Ariston ont une capacité de 15 à 30 kW. Ainsi, chaque client pourra choisir les indicateurs nécessaires à la taille de son appartement ou de sa maison. Il convient également de noter d'autres caractéristiques distinctives de ces équipements à gaz:

avec une efficacité maximale, les chaudières ont un haut niveau d'efficacité;
toutes les chaudières murales ont des instructions et des désignations russes sur l'équipement lui-même, de sorte que les citoyens n'ont aucun problème à contrôler l'unité;
la plupart des modèles de ce fabricant sont parfaitement capables de gérer l'eau dans le système et la basse pression;
une attention particulière à cet équipement doit être accordée aux personnes chez qui des surtensions se produisent souvent. Les chaudières Ariston peuvent facilement faire face à de tels sauts dans le réseau;
Tous les modèles sont très faciles à utiliser.Pour commencer à utiliser la chaudière, vous n'avez pas besoin d'étudier les instructions pendant longtemps, toutes les fonctionnalités de fonctionnement sont intuitives et accessibles même pour ceux qui installent une telle unité pour la première fois.

Pour commencer à utiliser la chaudière, vous n'avez pas besoin d'étudier les instructions pendant longtemps, toutes les fonctionnalités de fonctionnement sont intuitives et accessibles même pour ceux qui installent une telle unité pour la première fois.

Dans certains cas, la chaudière ne peut pas simultanément chauffer l'eau et fournir un chauffage suffisant, cela s'applique aux modèles économiques. Dans ce cas, une personne doit penser à installer une chaudière supplémentaire.

Comment connecter une chaudière à gaz Ariston: recommandations pour l'installation, le raccordement, la configuration et le premier démarrage

Premier démarrage et réglage de la chaudière

Lorsque les travaux d'installation et de raccordement sont terminés, vous pouvez procéder à la configuration et au test de l'équipement.

Exécution de la première manche

L'action initiale qui accompagne le premier lancement d'une chaudière à gaz de marque Ariston est l'eau. Dans ce cas, il est nécessaire de régler les vannes d'air des radiateurs sur l'état de fonctionnement (ouvert).

Les mêmes actions visant à purger l'air de l'installation s'appliquent à la pompe de circulation de la chaudière. Lorsque le circuit est rempli d'eau, l'air est évacué du système, la pression d'eau sur le manomètre atteint 1 - 1,5 atmosphères, la vanne sur la conduite d'alimentation est fermée.

Caractéristiques générales des chaudières Ariston

La description des unités à gaz Ariston doit commencer par les caractéristiques de leur partie principale - le brûleur. Cet élément sert à brûler du combustible et à transférer de l'énergie thermique au système de chauffage.

Types de brûleurs de chaudière :

  • ordinaire
  • modulation

Le brûleur modulant est plus pratique à utiliser. Il prévoit un contrôle automatique de la puissance en fonction de la température de l'appareil.

Selon le type d'élimination des produits de combustion, les brûleurs sont divisés en:

  • type fermé
  • Type ouvert

Les unités avec un brûleur de type fermé sont plus sûres à utiliser. Les produits de combustion du gaz naturel dans ce cas n'entrent pas dans la pièce. L'utilisation n'est pas obligatoire. Un tuyau coaxial est simplement connecté à l'appareil et ressorti.

La conception du tuyau coaxial prévoit la présence de deux couches, ce qui assure l'évacuation simultanée des déchets et le flux d'air de la rue dans le brûleur.

L'équipement avec un brûleur ouvert prévoit l'utilisation obligatoire d'une cheminée pour évacuer les produits de combustion.

Quels sont les avantages des chaudières à gaz Ariston

Récemment, la popularité de la marque Ariston a considérablement augmenté grâce aux chaudières à gaz de haute qualité, et ce n'est pas en vain. fonctionne silencieusement et consomme le moins de carburant possible. Cela permettra aux propriétaires de l'unité d'économiser sur les factures de services publics et, en même temps, d'apporter confort et chaleur à la maison.

Le client recevra un appareil de haute qualité qui assure l'approvisionnement en eau et le chauffage de la maison 24 heures sur 24, même avec une grande surface allant jusqu'à 500 mètres carrés. N'oubliez pas non plus la durabilité du service de chaque chaudière. Les conditions indiquées dans la garantie sont beaucoup plus modestes qu'elles ne le sont en réalité. En termes de dimensions, l'équipement est beaucoup plus compact que les autres marques, ce qui signifie qu'il peut être installé absolument n'importe où, même dans un petit appartement avec un espace limité.

Caractéristiques générales des chaudières Ariston

La description des unités à gaz Ariston doit commencer par les caractéristiques de leur partie principale - le brûleur. Cet élément sert à brûler du combustible et à transférer de l'énergie thermique au système de chauffage.

Types de brûleurs de chaudière :

  • ordinaire
  • modulation

Le brûleur modulant est plus pratique à utiliser. Il prévoit un contrôle automatique de la puissance en fonction de la température de l'appareil.

Selon le type d'élimination des produits de combustion, les brûleurs sont divisés en:

  • type fermé
  • Type ouvert

Les unités avec un brûleur de type fermé sont plus sûres à utiliser. Les produits de combustion du gaz naturel dans ce cas n'entrent pas dans la pièce. L'utilisation n'est pas obligatoire. Un tuyau coaxial est simplement connecté à l'appareil et ressorti.

La conception du tuyau coaxial prévoit la présence de deux couches, ce qui assure l'évacuation simultanée des déchets et le flux d'air de la rue dans le brûleur.

L'équipement avec un brûleur ouvert prévoit l'utilisation obligatoire d'une cheminée pour évacuer les produits de combustion.

Caractéristiques des modèles de chaudières Ariston

Une caractéristique distinctive des chaudières Ariston est leur haute qualité. Après tout, le nom de l'entreprise est traduit du grec par "le meilleur".

Ses produits sont particulièrement appréciés des consommateurs à revenu moyen. Les chaudières à gaz de cette marque sont achetées pour le chauffage des locaux jusqu'à 500 m². Les produits de l'entreprise sont universels. Le passage au combustible liquéfié s'effectue uniquement en remplaçant le brûleur.

Les appareils à gaz muraux à double circuit sont pratiques à utiliser. Il est représenté par trois lignes, chacune avec ses propres modifications.

Pour toutes modifications de chaudières, le commun est :

  • petite taille.
  • alimentation en eau chaude, en l'absence de son alimentation centralisée.

Différentes modifications diffèrent par leur structure, la chose commune est leur faible coût et leurs performances de haute qualité.

Équipement de base des unités d'Ariston :

  • double .
  • module de commande électronique.
  • contrôle du monoxyde de carbone.
  • soutien du microclimat dans le bâtiment ou dans un appartement séparé.
  • contrôle du gel de l'eau à l'intérieur du système.

Examinons plus en détail les types d'équipements Ariston existants.

Comment connecter une chaudière à gaz Ariston: recommandations pour l'installation, le raccordement, la configuration et le premier démarrage

Genre Ariston

  • Sont délivrés avec le double échangeur de chaleur. Toutes les modifications sont à double circuit et sont montées au mur.
  • Ce modèle est considéré comme le plus fonctionnel de tous les appareils Ariston. Il dispose d'un écran LCD, d'un panneau de contrôle avec des boutons. Ariston Genus peut être configuré pour fonctionner hors ligne pendant une semaine entière.
  • L'écran affiche des informations de base sur l'état de l'appareil et une liste des erreurs possibles. Le brûleur est modulant, c'est-à-dire entièrement contrôlé par l'électronique. Cette fonction augmente le confort d'utilisation de ce modèle d'appareil à gaz, en raison du contrôle minimum par le consommateur.

La gamme Ariston Genus comprend des modèles Evo et Premium plus chers.

Le modèle Evo est un appareil à gaz à deux circuits avec un brûleur des deux types : ouvert et fermé.

Chaudières à condensation Genus Premium. Ils sont utilisés pour le chauffage des bâtiments résidentiels et des bâtiments commerciaux. Gamme de puissance de 24 kW à 35 kW.

Comment connecter une chaudière à gaz Ariston: recommandations pour l'installation, le raccordement, la configuration et le premier démarrage

Classe Ariston

  • Appareil de petite taille.
  • Il s'agit d'une chaudière à deux circuits et d'un aspect gracieux. Les dimensions réduites n'ont en rien altéré sa fonctionnalité.
  • Vase d'expansion pour 8 litres. L'eau chaude est chauffée assez rapidement

Modification existante :

  • Evo est disponible en chambres de combustion ouvertes et fermées. Puissance avec un brûleur ouvert - 24 kW, avec un fermé - 24 - 28 kW.
  • Appareil à condensation Premium Evo. Possède des fonctions avancées de confort et de congélation
  • Unité de condensation simple de qualité supérieure.

Comment connecter une chaudière à gaz Ariston: recommandations pour l'installation, le raccordement, la configuration et le premier démarrage

Ariston Egis

  • Installé principalement dans des pièces jusqu'à 200 m².
  • Le modèle d'appareil à gaz Ariston le plus répandu dans notre pays. Il chauffe l'eau avec un échangeur de chaleur en acier inoxydable et un échangeur de chaleur en cuivre est utilisé pour le chauffage.
  • L'appareil compact, se distingue par sa rentabilité et peut être utilisé dans des conditions météorologiques compliquées. Par exemple, à des températures très négatives.
  • L'appareil est équipé d'un brûleur à gaz modulant, qui permet un contrôle électronique du fonctionnement de la chaudière.

Ce modèle est adapté pour travailler dans des conditions climatiques difficiles. Résiste normalement aux changements de pression de gaz. L'appareil est équipé d'un collecteur dans lequel s'écoule le condensat. Cela garantit un fonctionnement à des températures inférieures à 50 degrés.

Comment connecter une chaudière à gaz Ariston: recommandations pour l'installation, le raccordement, la configuration et le premier démarrage

Tableaux avec codes à trois chiffres, descriptions et valeurs de réglage

Les valeurs ajoutées dans les champs blancs sont les valeurs utilisées dans ma chaudière. S'il n'y a pas de corrections, alors j'ai les mêmes valeurs que celles imprimées dans le tableau. Pour agrandir, cliquez sur la photo du tableau.

Comment connecter une chaudière à gaz Ariston: recommandations pour l'installation, le raccordement, la configuration et le premier démarrageComment connecter une chaudière à gaz Ariston: recommandations pour l'installation, le raccordement, la configuration et le premier démarrageComment connecter une chaudière à gaz Ariston: recommandations pour l'installation, le raccordement, la configuration et le premier démarrage

Les appareils à gaz à double circuit rendent notre vie plus confortable et plus agréable. Ils sont assez pratiques à utiliser, adaptés au chauffage des maisons de campagne et des petits appartements. Ils sont utilisés pour chauffer des bâtiments industriels ou des entrepôts, dont la superficie ne dépasse pas 500 m².

Les avantages des chaudières Ariston sont qu'en plus de chauffer les bâtiments en hiver, elles chauffent toute l'année l'eau utilisée dans la vie quotidienne. C'est assez pratique et ne nécessite pas l'installation d'équipements supplémentaires.

Évaluation
Site sur la plomberie

Nous vous conseillons de lire

Où remplir la poudre dans la machine à laver et combien de poudre verser