Douche d'été à faire soi-même - construction étape par étape d'une structure de cadre

Bain de cadre à faire soi-même: instructions étape par étape avec des recommandations utiles

6. Cabine de douche en polycarbonate

Le polycarbonate est couramment utilisé pour créer des serres. Par conséquent, pour beaucoup, ce matériau est associé à l'effet de serre et, par conséquent, aux inconvénients. Cette opinion est erronée. Pour créer des douches, il existe un type spécial de polycarbonate opaque. Le plus durable sera le bâtiment, qui est fait de profilés métalliques. Travailler avec eux n'est pas plus difficile qu'avec des poutres en bois. Un tube profilé d'une section de 40 × 20 mm et d'une épaisseur de paroi de 2 mm convient à la construction d'un cadre. Vous aurez également besoin d'un coin en acier 50 × 50 mm.Le nombre de profils est déterminé en fonction de la superficie de la future douche. La seule chose à considérer lors de la coupe est que les grilles doivent être 10 à 15 cm plus grandes que la hauteur de douche estimée. Cela est nécessaire pour que vous puissiez les bétonner et ne pas perdre en hauteur. Le plan de travail ressemblera à ceci :

  • Le montage du cadre doit être effectué sur une surface plane. Deux drains latéraux et deux traverses superposées sont posés au sol. Le niveau vérifie leur rectitude. Par soudage, les pièces sont reliées les unes aux autres. Le deuxième mur est assemblé de la même manière.
  • Les structures finies après soudage doivent être installées verticalement à la distance requise les unes des autres et reliées les unes aux autres par deux profilés transversaux. Gardez un angle de 90 degrés entre les murs. Il est nécessaire de fixer les bandes transversales uniquement d'un côté, d'autre part la porte sera soudée.
  • Une fois le cadre assemblé, un trou de la taille requise est creusé. La couche supérieure de sol d'une profondeur de 10-15 cm est enlevée, la chape en béton est nivelée et coulée. Dès que la chape est coulée et nivelée, il est nécessaire d'installer le cadre assemblé sur le dessus afin que les poteaux, qui étaient à l'origine plus longs, soient immergés dans le béton. Le niveau vérifie la verticalité de la structure installée et s'ajuste si nécessaire. Si la longueur des pieds dépassait la hauteur de la chape en béton, il est nécessaire de les marteler dans le sol jusqu'à ce qu'ils soient complètement immergés.
  • Pour collecter l'eau, vous pouvez installer une palette en acier spéciale ou prévoir des fossés de drainage lors du bétonnage.
  • Pour cette conception, il est préférable d'utiliser des réservoirs d'eau en plastique de forme plate. Ils sont faciles à installer et, de plus, ils élimineront le besoin d'aménager le toit.
  • Séparément, vous devez souder le cadre de la porte et souder les charnières au cadre. Il est plus pratique de recouvrir immédiatement la porte séparément des murs.
  • En gainant les murs, fixez le polycarbonate directement sur les profilés à l'aide de vis autotaraudeuses.

La gamme de couleurs du polycarbonate, qui est utilisé pour le revêtement des cabines de douche, est très diversifiée. Par conséquent, le design peut s'avérer très attrayant. L'entretien de cette matière est très simple, et le soir elle vous protégera du vent frais.

Choisir un emplacement sur le site et aménager une base pour une douche extérieure

Lors de la construction d'une douche d'été dans le pays, une attention particulière est portée au choix de l'emplacement. Il convient de considérer certains facteurs:

  • L'eau doit bien se réchauffer. Par conséquent, la structure est montée dans un endroit ensoleillé. Les arbres et les bâtiments jetteront une ombre sur la cabane, ce qui affectera négativement le chauffage solaire.
  • Lors du choix d'un lieu, il convient de tenir compte de vos préférences. Ainsi, la structure peut être placée près de la maison, dans le jardin ou près de la piscine, s'il y en a une sur le site.
  • Il est préférable d'installer une cabine de douche sur une surface plane, près de laquelle se trouve un endroit pour l'évacuation de l'eau. Sinon, vous devrez faire un câblage complexe.
  • La structure doit être située près de la maison.

Pour faire le bon choix, vous devez inspecter attentivement votre site. Il convient également de considérer les caractéristiques de la construction de l'âme. Tout d'abord, cela concerne la nécessité de construire une base pour la cabine.

Douche d'été à faire soi-même - construction étape par étape d'une structure de cadre
Il est logique d'installer une douche extérieure uniquement dans un endroit ensoleillé et ouvert

La fondation d'une douche extérieure est agencée lorsqu'il s'agit d'une structure fixe qui a un poids important. Tout d'abord, cela s'applique aux bâtiments en briques, blocs et autres matériaux. Une option populaire est l'arrangement fondation carrelée, qui servira simultanément de sol dans la cabine. Le processus de construction ressemble à ceci :

  • Marquage et nettoyage de l'endroit des fourrés et des débris.
  • La fosse éclate. Si nous parlons de la construction d'une cabane en briques, une fosse de 15 cm de profondeur suffira.
  • Un coussin de sable d'une hauteur maximale de 5 cm est posé sur le fond et soigneusement compacté.
  • Le béton est coulé. La surface doit être soigneusement nivelée pour éviter la nécessité d'une chape.

De plus, pour la construction d'une douche d'été, vous pouvez utiliser une fondation en colonnes et en bandes. Dans le premier cas, à l'aide d'une perceuse, des trous sont pratiqués à une profondeur de 1 m, dans lesquels installation de piliers de soutien. Si des tuyaux creux sont utilisés à cet effet, ils sont coulés avec du mortier de béton.

Douche d'été à faire soi-même - construction étape par étape d'une structure de cadre
La fondation doit fournir trous de vidange et approvisionnement en eau

Quant à la fondation en bande, nous parlons ici d'une structure peu profonde. Pour l'agencement, vous avez besoin d'une tranchée de 40 cm de profondeur et de 20 cm de largeur.Lors de la coulée, le renforcement est effectué avec plusieurs barres de renforcement. Cela donnera à la structure durabilité et résistance.

cadre en bois

Douche d'été à faire soi-même - construction étape par étape d'une structure de cadre

Pour la fabrication de âme d'été de taille de l'arbre 1x2 mètres, vous aurez besoin de :

  • poutre avec une section de 100x100mm;
  • poutre avec une section de 40x40mm;
  • planche 40x100mm;
  • angle en métal galvanisé 40x40mm;
  • les vis à bois;
  • cheville d'un diamètre de 20 mm;
  • colle PVA;
  • blocs de béton 400x200x200 ;
  • hydroisol;
  • biosécurité ou peinture sur bois;
  • polycarbonate coloré;
  • Pierre concassée;
  • le sable.

Lieu d'installation nous choisissons une douche d'été dans un espace ouvert avec accès à la lumière du soleil. Nous faisons des marquages ​​pour une conception de 2x1 mètre, divisons-la en deux parties.

Douche d'été à faire soi-même - construction étape par étape d'une structure de cadreSchéma de balisage

Sur le côté droit, nous creusons un trou de 1x1 mètre, de 40 à 50 cm de profondeur, y versons de la pierre concassée.

Douche d'été à faire soi-même - construction étape par étape d'une structure de cadre

Ceci est fait pour que l'eau pénètre dans le sol, et ne reste pas à la surface, sous la forme d'une flaque.

La fondation d'une douche d'été pour une résidence d'été. Nous marquons le site d'installation de six blocs de support. Ils doivent être installés aux angles et au milieu du périmètre à une distance de 1 mètre des angles. Sous chaque bloc on creuse un trou de 30 cm de profondeur, on s'endort au fond et on compacte 10 cm de sable.

Cela est nécessaire pour que les blocs ne "marchent" pas beaucoup lorsque la température baisse, en particulier dans les sols soulevés.

Dans le renfoncement restant, nous installons les blocs verticalement, saupoudrons les côtés de sable.

Douche d'été à faire soi-même - construction étape par étape d'une structure de cadre

Les blocs doivent être à la même hauteur. Utilisez un niveau et un tableau pour vérifier. Nous posons une couche d'imperméabilisation sur les blocs, cela protégera l'arbre de l'humidité et de la pourriture.

cadre d'été âme à faire soi-même pour donner le bois est également facile à fabriquer. Nous coupons la poutre sur mesure. Cela devrait donner: 6 pièces de 2,5 mètres, 4 pièces de 2 mètres, 6 pièces de 1 mètre. Sur les flans, nous faisons des contre-dépouilles et des trous pour les chevilles, comme indiqué sur la photo.

Douche d'été à faire soi-même - construction étape par étape d'une structure de cadreConnexion dans le faisceau inférieur

Assemblage de la garniture inférieure

Douche d'été à faire soi-même - construction étape par étape d'une structure de cadre

Nous exposons des racks

Douche d'été à faire soi-même - construction étape par étape d'une structure de cadre

Pour la fixation, nous utilisons des supports temporaires.

Douche d'été à faire soi-même - construction étape par étape d'une structure de cadre

Nous complétons le cadre avec le cerclage supérieur, de même avec le bas.

Douche d'été à faire soi-même - construction étape par étape d'une structure de cadre

Ensuite, installez deux boîtes sous la porte

Douche d'été à faire soi-même - construction étape par étape d'une structure de cadre

Sol. Pour le sol, nous utilisons une planche bordée d'une section de 40x100 mm, coupée en une longueur de 1 mètre. Il doit d'abord être traité avec une raboteuse. Nous fixons les ébauches rabotées avec des clous à la poutre de la garniture inférieure.

Douche d'été à faire soi-même - construction étape par étape d'une structure de cadre

Entre les planches, nous faisons un espace de 1 à 2 cm pour l'évacuation de l'eau et la ventilation.

Revêtement.Nous produisons des revêtements de murs, de toits et de portes en polycarbonate coloré, après avoir préalablement découpé les feuilles sur mesure. Bien qu'il ne soit pas transparent, il transmet bien la lumière et vous n'avez pas besoin de connecter l'électricité pour l'éclairage. Nous fixons les feuilles avec des vis à bois avec des rondelles en caoutchouc.

Douche d'été à faire soi-même - construction étape par étape d'une structure de cadreSchéma de fixation en polycarbonate

Il est recommandé de peindre à l'avance toutes les ébauches en bois, avant l'installation, avec une peinture à séchage rapide de la couleur du polycarbonate.

Douche d'été à faire soi-même - construction étape par étape d'une structure de cadre

Conception, dessins et dimensions d'une douche d'été à partir d'un tuyau profilé

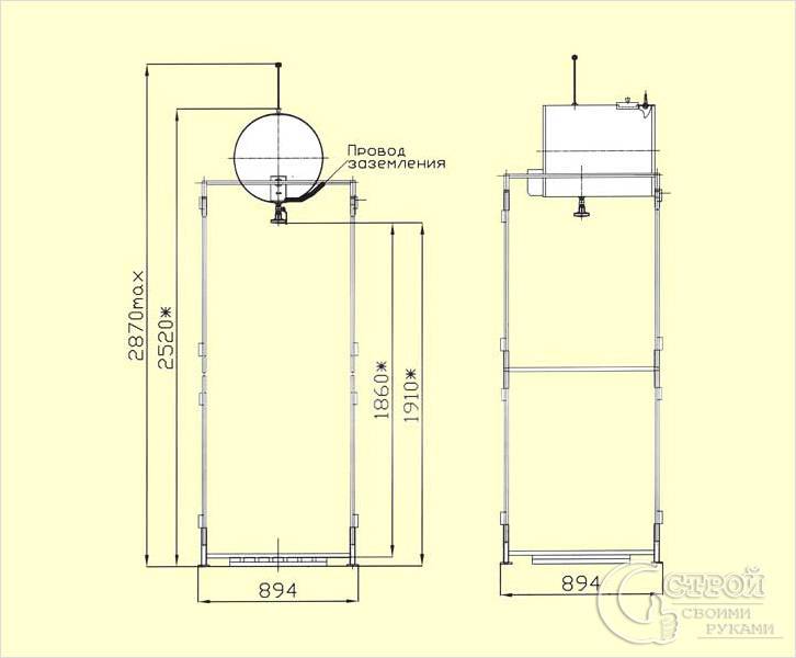
prendre une douche tube profilé pour les boulons selon les dessins peuvent être fabriqués même par un maître novice. Les dimensions moyennes de la structure sont de 1000 * 1000 * 2200 mm. De telles dimensions créent des conditions confortables pour les procédures d'hygiène. Vous pouvez augmenter la largeur si vous le souhaitez, mais vous ne devez pas la réduire. Vous devez vous concentrer sur la zone du site. S'il n'y a pas assez d'espace, il vaut mieux rester sur une cabine compacte, s'il y a assez d'espace, vous pouvez choisir un design plus grand.

Important! La hauteur d'une douche de campagne à partir d'un tuyau profilé de 2200 mm est optimale - vous devez tenir compte de la chute de l'arrosoir du plafond et des dimensions de la palette.

Le schéma d'une douche de campagne à partir d'un tuyau profilé comprend toutes les mesures nécessaires. Il est préférable de travailler selon les dessins.

Douche d'été à faire soi-même - construction étape par étape d'une structure de cadrePour une cabine de douche, il est impératif de prévoir une fondation de qualité

Le type optimal de fondation supporte, sur des dalles en béton armé, des colonnes. Les sols sont en blindage, sans isolation, les murs aussi. Assurez-vous d'équiper le toit - un panneau préfabriqué en acier zingué ou tout autre convient.

Fondation pour douche extérieure

La douche à ossature capitale est placée sur une fondation stable. Le plus souvent, la pile (colonne) est utilisée à ces fins.Beaucoup moins souvent, une fondation en bande ou une chape peu profonde continue est utilisée sous la cabine - elles sont plus laborieuses, moins ventilées et conviennent mieux à une douche en brique.

Ainsi, pour les pieux, faites un marquage rectangulaire sur la zone choisie, qui doit d'abord être bien nivelée. Ensuite, avec une perceuse de jardin, creusez des trous de 1 à 1,5 m de profondeur dans les coins du site.

Prenez des tuyaux en métal ou en amiante-ciment d'un diamètre de 9 à 10 cm comme supports.Vous pouvez également acheter des pieux vissés avec des capuchons spéciaux pour une construction rapide. Vissez des pieux ou creusez des tuyaux dans le sol de manière à ce qu'ils s'élèvent à environ 30 cm au-dessus de l'horizon et soient au même niveau. Pour des cabines plus larges, 6 supports peuvent être nécessaires.

Lorsque vous travaillez avec des tuyaux, périodiquement, après avoir ajouté de la terre, tassez soigneusement le tout avec une barre de petite section, tandis que pour une plus grande fiabilité, les tuyaux peuvent également être coulés avec du béton. Fixez les capuchons métalliques aux extrémités des tuyaux avec trous de montage bois ou faire des trous pour les boulons sous le bois.

Une autre bonne alternative consiste à utiliser un coffrage adapté pour couler 4 à 6 colonnes en béton aux angles du site et, si nécessaire, au milieu des côtés larges. Cela facilitera même le montage du cadre.

Comment organiser un système qui remplit automatiquement le réservoir d'eau

Douche d'été à faire soi-même - construction étape par étape d'une structure de cadre

La plupart des résidents d'été ont envie de nager dans l'âme après les fouilles. La procédure a un effet positif sur la santé humaine. Bien sûr, vous pouvez acheter une douche toute faite. Mais cela augmentera les coûts de construction.

Il est moins cher de faire sa propre douche, sans l'aide de spécialistes. L'eau doit couler selon une certaine pente. N'oubliez pas d'imperméabiliser votre douche.À l'aide d'un film imperméabilisant, vous pouvez empêcher l'apparition d'une odeur désagréable. Pour ce faire, vous devez poser une grille spéciale. La profondeur recommandée de la fosse de drainage est de 2 m.

Pour économiser de la chaleur, il est nécessaire d'installer un toit en polycarbonate au-dessus du réservoir. Cela créera un effet de serre. Un élément obligatoire du réservoir est un capteur qui informe l'utilisateur du niveau d'eau. En l'absence d'eau, ils peuvent brûler. Par conséquent, ce paramètre doit être surveillé en permanence. Pour équiper le sol de la douche, il est nécessaire d'installer un tuyau d'évacuation.

Et s'il n'y a pas d'eau courante dans la maison ? Pour remplir le réservoir, vous devez transporter de l'eau dans des seaux. C'est beaucoup trop laborieux. Avant de construire une douche, pensez à l'alimentation en eau. Si vous avez de l'eau courante, vous pouvez remplir le réservoir assez rapidement. Ouvrez simplement le robinet et attendez que le récipient soit rempli à un certain niveau.

Les propriétaires de maison avancés ont mis au point un schéma qui automatise ce processus. Cela peut être fait en utilisant le système de flotteur. Il est impératif de prévoir l'installation d'un système destiné à évacuer l'excédent d'eau. Selon la loi de la physique, le sommet est l'eau la plus chaude. Par conséquent, la prise d'eau s'effectue par le haut. Au bas du réservoir, vous pouvez installer un tuyau pour évacuer l'eau dans les égouts.

Douche pour les paresseux en 15 minutes

S'il n'est pas possible de souder un cadre métallique ou de tordre un cadre en bois pour un stand, il existe une solution intéressante. Considérez quoi et comment vous pouvez faire une douche dans le pays de vos propres mains, si seuls les matériaux les plus simples sont disponibles. Cette option convient également aux vacances d'été dans la forêt.

Douche d'été à faire soi-même - construction étape par étape d'une structure de cadre

Pour créer une douche, il vous faut :

  • Bouteille en plastique de 5 litres ;
  • rideau de douche ou pellicule plastique;
  • fil de pêche;
  • tuyau et bec d'un arrosoir;
  • ruban adhésif.

Il est important de choisir un endroit pour la douche, Qui va il y a 3 arbres à proximité, ils feront office de cadre

Douche d'été à faire soi-même - construction étape par étape d'une structure de cadre

Vous devez commencer à faire une douche avec un réservoir d'eau. Pour ce faire, découpez un trou dans le bouchon de la bouteille et insérez le tuyau. Il peut être enveloppé avec du ruban adhésif, fixer un arrosoir.

Vissez le bouchon, fixez la bouteille à l'arbre et jetez le tuyau sur la bouteille pour que l'eau ne coule pas comme ça.

Douche d'été à faire soi-même - construction étape par étape d'une structure de cadre

Il ne reste plus qu'à envelopper les arbres avec du fil de pêche, accrocher un rideau ou un film. La douche est prête.

Douche d'été à faire soi-même - construction étape par étape d'une structure de cadre

L'eau de la bouteille se réchauffera rapidement à cause des rayons du soleil, car son volume est faible. L'inconvénient est que cette quantité d'eau ne suffit que pour 1 personne.

Avantages et inconvénients d'une douche d'été

Aujourd'hui, pour aménager un chalet d'été et à la maison, une douche d'été de différentes conceptions est utilisée. Chacun d'eux a ses propres avantages et inconvénients. Ceci doit être pris en compte lors du choix d'un design. Les options populaires incluent :

  • Film douche. La conception se compose d'éléments en métal et en bois, qui sont resserrés avec un film. L'inconvénient d'une telle âme est sa fragilité. Quant aux pros, vous pouvez souligner ici la facilité d'installation et la mobilité. Si vous le souhaitez, il peut être facilement réorganisé d'un endroit à un autre. Souvent, les coins métalliques sont utilisés pour la construction.

  • Construction de cadre. La douche est un produit stable et monolithique qui a une longue durée de vie. La conception est bien ventilée et l'eau chauffe rapidement. Il est facile à appliquer et s'enlève également rapidement. En ce qui concerne les lacunes, il convient de souligner la vulnérabilité aux facteurs environnementaux négatifs. Pendant le fonctionnement, la conception perd son aspect attrayant.
Lire aussi :  Comment organiser une fosse septique à partir de pneus de vos propres mains: instructions étape par étape

Douche d'été à faire soi-même - construction étape par étape d'une structure de cadre
L'une des solutions les plus durables est une douche extérieure en polycarbonate.

Ainsi, après avoir analysé tout cela, nous pouvons noter plusieurs avantages principaux d'une douche d'été :

  • rentabilité;
  • facilité d'installation;
  • praticité.

Quant aux lacunes, parmi elles on peut distinguer la limitation d'utilisation. Le fait est que dans de telles structures, le chauffage de l'eau est le plus souvent réalisé à partir de l'énergie solaire. Par conséquent, ils ne peuvent pas être utilisés pendant la saison froide ou par mauvais temps.

Fond de plateau et égouttoir

Douche d'été à faire soi-même - construction étape par étape d'une structure de cadre

La palette est la partie la plus importante de la structure en construction. Il peut être acheté dans n'importe quel magasin de plomberie spécialisé ou fabriqué indépendamment à partir de matériaux improvisés, à savoir:

  • briques;
  • chape en béton monolithique;
  • blocs de béton d'argile expansée.

Douche d'été à faire soi-même - construction étape par étape d'une structure de cadre

Palette de brique et les blocs de béton d'argile expansée est assez simple à construire, sous réserve de l'acquisition de matériel de bonne qualité. Une chape monolithique est une structure plus complexe qui nécessite la connaissance de la bonne disposition de la « tarte sexuelle ».

Étanchéité

Douche d'été à faire soi-même - construction étape par étape d'une structure de cadre

Une bonne étanchéité de la douche évitera des phénomènes désagréables tels que les fuites, l'humidité, l'apparition d'infections fongiques et la reproduction de colonies de moisissures. Une approche compétente de cette procédure prévoit la mise en œuvre de travaux d'étanchéité non seulement dans la cabine, mais dans toute la zone de la salle de bain. Les zones les plus vulnérables sont celles qui sont en contact direct avec l'eau.

Il faut leur accorder la plus grande attention

Douche d'été à faire soi-même - construction étape par étape d'une structure de cadre

L'étanchéité de la cabine est réalisée avec des matériaux en rouleau, pénétrants ou bitumineux.De plus, les imprégnations pénétrantes ne sont utilisées que pour les structures réalisées à base de béton ou de matériaux sable-ciment. La zone du stand est complètement isolée selon le schéma.

Douche d'été à faire soi-même - construction étape par étape d'une structure de cadre

Les isolateurs en rouleau sont appliqués sur la surface du sol avec un chevauchement sur le mur d'au moins 200 mm. Nous vous recommandons de vous familiariser avec la vidéo thématique sur l'étanchéité de la cabine de douche :

Raccordement à l'eau

La principale erreur que commettent les débutants est de bloquer les communications dans le mur. Le fait est qu'aucun matériau, qu'il soit en métal ou en polypropylène renforcé, n'est garanti contre les fuites, en particulier dans les lieux de soudure et d'assemblage des coudes. Une approche compétente de la fourniture de plomberie à la cabine de douche consiste à poser des tuyaux dans une niche spéciale, qui sera cachée par un couvercle en plaques de plâtre décoré avec un matériau de finition.

Douche d'été à faire soi-même - construction étape par étape d'une structure de cadre

Pour réduire les pertes de chaleur, la niche est isolée avec des isolants thermiques en laine minérale ou un isolant en cellulose. Les extrémités du pipeline sont retirées de la niche et coupées à la longueur souhaitée. Ils sont filetés ou des raccords filetés sont vissés pour la fixation avec des brides de mélangeur.

Raccordement à l'égout

La première chose qu'ils font lorsqu'ils créent eux-mêmes une cabine de douche est de libérer de l'espace. Ce processus consiste à se débarrasser de l'ancienne salle de bain. Après cela, le drain est installé et raccordé au réseau d'égouts. Les points importants de ce processus sont: l'installation correcte d'une canalisation d'égout avec une pente de 3 ° pour assurer l'évacuation normale des eaux usées; le raccordement de la sortie du drain dans le plan horizontal doit être réalisé avec un angle minimum par rapport au tuyau d'égout.

Douche d'été à faire soi-même - construction étape par étape d'une structure de cadre

Lorsqu'ils sont utilisés comme coudes de tuyaux ondulés, ils peuvent être pliés jusqu'à 120°. Cependant, afin d'éviter le colmatage de la canalisation de sortie pendant le fonctionnement de la cabine, le nombre de coudes doit être minimisé et plus encore, les virages avec des angles négatifs doivent être évités.

Décoration de douche

Donc, l'essentiel du travail est fait, voyons maintenant comment terminer la douche à cadre de vos propres mains. Début des travaux à guider dès l'acquisition et l'installation de la citerne.

Ce dernier peut être monté de deux manières :

  • Plus précisément, sur les racks de la cabine et le harnais - dans ce cas, le réservoir remplit une double fonction, puisqu'il aide également au toit de la cabine. souligner que de tels réservoirs peuvent être achetés dans des magasins spécialisés. En effet, la taille du cadre dans ce cas doit correspondre à la taille du réservoir.
  • Sur le toit de la cabine - cette option est plus polyvalente, car elle vous permet d'installer un conteneur de n'importe quelle forme, mais vous devez d'abord terminer le toit. Pour ce faire, il est possible d'utiliser des planches ou du carton ondulé.

A la fin de l'installation du réservoir, allez gainer le châssis.

Si la base est en bois, il est alors possible d'utiliser comme revêtement:

  • planches;
  • Garniture;
  • aggloméré, etc...

Si la structure est en fer, elle peut être gainée des matériaux suivants:

  • platelage ;
  • polycarbonate;
  • Plexiglas, etc...

Étant donné que le prix de tous les matériaux est différent, le choix dépend du budget prévu pour la construction de la douche, de vos propres préférences et de l'extérieur environnant du chalet d'été.

Le processus de placage n'est pas difficile. La seule chose est que vous devez d'abord couper le matériau, après quoi vous le fixez sur les supports avec des vis autotaraudeuses.

A ce stade, dans la plupart des cas, une porte est installée, qui est un cadre fait du même matériau que le cadre. Le cadre est gainé séparément, après quoi il est fixé à la cabine à l'aide d'auvents.

A la fin des travaux, il est impératif de réaliser une palette en treillis bois. Il sera confortable de se tenir debout dessus pendant le bain, de plus, tous les espaces entre les planches permettront à l'eau de s'écouler sur la dalle de ciment, puis d'aller dans la fosse de vidange.

Voici une douche à cadre à faire soi-même dans la maison de campagne et construite. Il ne reste plus qu'à remplir le réservoir d'eau et à le vérifier en action.

4. Les moyens les plus simples d'organiser une douche d'été

Il arrive que le chalet d'été soit très rarement visité, et non pas pour le travail, mais plutôt pour les loisirs. Dans ce cas, la douche peut être la conception la plus simple que vous puissiez même emporter avec vous.

  • Douche portative. Cette conception ressemble à un grand coussin chauffant et est faite du même matériau. Après avoir rempli le récipient d'eau, il est tordu avec une buse spéciale, au bout de laquelle se trouve un mini-arrosoir. À l'extrémité opposée, il y a une boucle pour laquelle il est pratique d'accrocher le conteneur à un arbre ou à un crochet. En plaçant le récipient dans un endroit bien éclairé, l'eau va chauffer très rapidement. Le volume d'une telle "douche" est de 10-15 litres. Cela implique des restrictions sur la durée de la réception des procédures d'eau et le nombre de personnes qui peuvent l'utiliser. Mais c'est une option très pratique et peu coûteuse pour une personne.
  • Support de douche - est un tuyau en fer sur pieds, qui est équipé d'une pomme de douche et d'un trou pour connecter un tuyau.Un tel rack est pratique en ce qu'il peut être placé dans n'importe quel endroit pratique et, si nécessaire, amené dans une buanderie pour le stockage. Son inconvénient est l'absence de réservoir d'eau. Autrement dit, s'il n'y a pas d'eau chaude et de pression normale dans le système sur le site, vous devrez alors prendre une douche froide.
  • Utilisation du système de douche. Le support de douche est une barre métallique à laquelle sont fixés la douche de tête et le robinet. Afin de ne pas se soucier de l'aménagement d'une pièce spéciale pour son placement, beaucoup fixent le système de douche directement au mur de la maison ou de la dépendance. Pour cela, l'eau est extraite du mur. Le mur du bâtiment est protégé de l'humidité. Vous pouvez le recouvrir de carreaux, de parements ou d'autres matériaux disponibles. Pour plus de commodité, vous pouvez séparer l'espace avec un rideau et placer une palette en bois ou un tapis en caoutchouc sur le sol.

Gardez à l'esprit qu'il s'agit d'une option pour une utilisation rare. Au moment où vous ne serez pas dans le pays, le système peut être retiré et la prise fermée avec une prise spéciale.

Lire aussi :  Installation et raccordement d'un sèche-serviettes - analyse de la technologie de travail

Tous les types de douches ci-dessus sont bons car ils ne nécessitent pas la disposition d'une fondation et d'un drain. Mais l'inconvénient est évident - la possibilité de leur utilisation dépend entièrement des conditions météorologiques.

Isolation douche d'été

Pourquoi isoler une simple douche d'été si elle est utilisée en saison chaude ? Le fait est que la réalisation de travaux d'isolation thermique étendra considérablement durée de vie de cette structure. L'essentiel est de mener avec compétence l'isolation autour du périmètre. Pour cette utilisation :

Laine minérale.Il s'agit d'un matériau respectueux de l'environnement qui est très facile à installer. Les tapis sont posés dans le cadre, après quoi il est gainé de l'intérieur. Pour empêcher l'humidité de pénétrer dans le matériau, celui-ci est recouvert d'un film imperméable.

Douche d'été à faire soi-même - construction étape par étape d'une structure de cadre
Cadre de douche préparé pour l'installation de l'isolation

Laine de verre. Si vous le souhaitez, il peut être utilisé pour l'isolation âme dans le jardin

Bien sûr, lorsque vous travaillez avec, vous devez être prudent et respecter scrupuleusement les instructions d'installation.

Mousse imperméable. C'est un matériau moderne qui convient parfaitement pour réchauffer une douche extérieure

Pour ce faire, il suffit d'utiliser des plaques d'une épaisseur de 5 cm, elles s'insèrent dans le cadre, au-dessus duquel les murs intérieurs sont finis.

Sélection de l'emplacement

Lors du choix d'un lieu pour une douche à partir d'un tuyau profilé il faut tenir compte de l'emplacement des arbres, des sources d'eau et de la façon dont l'eau s'écoulera. Vous devez placer le stand à l'écart des plantes et des arbres, car ils bloqueront la lumière du soleil ou pourraient se faner si le drain pénètre dans le sol.

De plus, vous ne devez pas faire de stand près de la maison, car cela peut également bloquer la lumière, à cause de quoi l'eau ne se réchauffera pas bien, et aussi si le drain entre dans le sol, la fondation sera emportée par le drain.

La salle de douche doit être placée à côté des murs de la maison uniquement lorsque l'eau ne sera pas fournie par le réservoir, mais également par les conduites d'eau provenant de la maison. Si le chauffage n'est pas nécessaire, cette option peut convenir.

La cabine ne doit pas être placée dans les basses terres, car cela rendrait difficile l'évacuation de l'eau. Il est préférable de placer la douche sur une colline ou une surface plane.Si vous plantez des plantes près de la structure qui aiment l'humidité, mais ne se dessèchent pas à cause de la solution de savon pénétrant dans le sol, cela créera une source supplémentaire d'absorption d'humidité.

Douche d'été à faire soi-même - construction étape par étape d'une structure de cadre
Un exemple de douche d'été correctement positionnée

Réservoir

Les réservoirs pour les douches sont chauffés et sans elle.

Pour un conteneur équipé d'une résistance électrique, un câble d'alimentation doit être prévu. Les cabines équipées de réservoirs chauffés peuvent être placées n'importe où dans le chalet et utilisent toujours de l'eau chaude, peu importe les caprices de la météo. Leurs inconvénients sont le prix élevé, les coûts d'électricité supplémentaires, la nécessité d'une alimentation par câble et des exigences de sécurité accrues.

Les réservoirs sans chauffage sont beaucoup moins chers, ils sont absolument sûrs, mais une douche d'une telle capacité n'est placée que dans un endroit ensoleillé. Il vaut mieux ne pas prendre un tonneau, mais un réservoir noir rectangulaire, de petite hauteur et à fond plat, correspondant autant que possible à la zone du haut de la cabine. Ainsi, l'eau chauffera plus uniformément et plus rapidement, et la charge sur le cadre sera répartie uniformément. Si le réservoir est trop haut, une entrée de flotteur peut être fournie pour "écoper" l'eau de la couche supérieure chaude.

Choisissez un récipient d'une taille telle que le volume d'eau chaude soit suffisant pour tout le monde (le débit journalier est de 40 litres d'eau par personne). De plus, le volume de tout réservoir ne doit pas dépasser 200 litres, sinon il y aura un risque de déformation de la cabine de douche.

Quant au matériau, vous pouvez choisir un réservoir en métal (acier inoxydable) ou en plastique. Les premiers sont plus lourds, plus chers, mais leur durée de vie est beaucoup plus longue, ils ne craignent pas les dommages. Les seconds sont confortables, légers, moins chers, mais pas aussi solides et peuvent sentir en plein soleil.

Fixer le réservoir au haut de la cabine à l'aide de barres ou de larges courroies en les clouant. Pour les conteneurs ordinaires, vous pouvez toujours construire un petit cadre de «serre» séparé en haut, en le recouvrant d'un film transparent afin que l'eau se réchauffe plus rapidement et se refroidisse plus lentement.

Remplissez le récipient manuellement (pas très pratique), à ​​l'aide d'une pompe ou selon le schéma le plus courant - à travers un tuyau en caoutchouc ou un tube en plastique à partir d'un robinet d'eau. Il est conseillé d'installer une vanne spéciale qui coupera l'eau en temps opportun après avoir rempli le récipient.

Au fond du réservoir, prévoyez une ouverture pour un tuyau avec un robinet et un arrosoir, qui est scellé avec des inserts en caoutchouc. Il est préférable d'acheter toutes les pièces en un seul ensemble (arrosoir, différents écrous, raclette, robinet, joints et rondelles en silicone).

Voilà tous les points principaux sur la construction d'une douche d'été à ossature capitale. Comme vous pouvez le voir, toute personne économique qui est amie avec des outils fera face à ce travail.

Nous vous souhaitons une construction réussie et une baignade agréable !

Nikolai Prilutsky,

Nous construisons une douche d'été dans le pays de nos propres mains

Un maître de maison sans expérience ni compétences peut faire une douche dans le pays de ses propres mains. Avantages de la conception - rentabilité, praticité, facilité d'installation. Parmi les inconvénients, on note l'utilisation limitée due au chauffage du liquide au moyen de l'énergie solaire. Le moins est éliminé en installant des éléments chauffants.

Choisir un endroit pour installer une douche d'été

La construction de la douche commence par la définition de la zone d'installation.

Douche d'été à faire soi-même - construction étape par étape d'une structure de cadre

Les nuances suivantes sont prises en compte :

  • Eclairage du site. Si rien ne bloque la structure, l'eau dans le baril se réchauffera plus rapidement, la moisissure ne se formera pas à l'intérieur de la cabine.
  • Commodité. La structure n'est pas placée à côté des toilettes ou de la fosse à compost.Le plus souvent, il est situé près de la maison, de la piscine.
  • La planéité du paysage, la proximité du réseau d'aqueduc et du drain.

Choisir un réservoir de stockage d'eau

Douche d'été à faire soi-même - construction étape par étape d'une structure de cadre

Recommandations professionnelles :

  1. Les conteneurs métalliques se réchauffent plus rapidement au soleil, ils sont facilement équipés de tuyaux de dérivation et de sorties. Le plastique dure plus longtemps, ne rouille pas, a un faible poids.
  2. Les réservoirs sont peints en noir pour accélérer le chauffage.
  3. La structure est scellée. Les tuyaux de branchement et les branchements sont construits à partir de tubes étroits. S'ils prennent un tonneau en fer, ils construisent un couvercle pour que les débris et la poussière ne pénètrent pas à l'intérieur.

Travail préparatoire

Construire une douche à la campagne de leurs propres mains commencer par l'arrangement fosse de drainage ou système de sortie d'eau.

Dans le premier cas, ils creusent un trou de 0,6 m de profondeur, avec des côtés de 1 m.En présence de sol sablonneux, l'eau partira bien, mais il y a un risque de glissements de terrain constants. Par conséquent, les murs sont renforcés avec une grille de montage, une ardoise plate ou un revêtement en bois est construit. La dernière option n'est pas rationnelle, dans 3 à 5 ans, elle pourrira, vous devrez retirer les anciennes planches et monter une nouvelle structure.

Le fond de la fosse est recouvert de gravier, de briques brisées. Le drainage augmentera l'absorption d'humidité et la douche sera toujours sèche.

Douche d'été à faire soi-même - construction étape par étape d'une structure de cadre

Pour un aspect plus esthétique, il est recommandé de remplacer les briques cassées et le gravier par des galets design spéciaux, qui sont utilisés pour former des allées dans le jardin.

La deuxième option est la disposition du système de drainage dans un trou creusé à proximité. Pour ce faire, le cadre de la cabine de douche est placé sur des poteaux, une fosse de 15 à 20 cm de profondeur est équipée en dessous et elle est recouverte d'un drainage. Dans ce cas, la fosse doit être légèrement inclinée sur le côté, où une gouttière est montée, le long de laquelle l'eau s'écoulera dans un trou creusé à proximité ou sous des buissons.

Douche d'été à faire soi-même - construction étape par étape d'une structure de cadre

Évaluation
Site sur la plomberie

Nous vous conseillons de lire

Où remplir la poudre dans la machine à laver et combien de poudre verser