- Un exemple de calcul des dimensions du four
- Comment faire une chaudière à huile usée de vos propres mains
- Option numéro 1
- Option numéro 2: une chaudière basée sur un poêle à ventre
- Autoproduction
- Dessins et schéma de montage
- Fours goutte à goutte sous pression
- Instructions étape par étape à faire soi-même pour fabriquer une fournaise à l'huile usée à partir d'un cylindre
- Faire une palette pour travailler et installer une cheminée d'un poêle à mazout de vos propres mains
- Connexion de la structure dans le bain
- Les règles de sécurité
- Instructions d'utilisation du four
- La conception et le principe de fonctionnement de l'appareil de chauffage
Un exemple de calcul des dimensions du four
Comme mentionné ci-dessus, la consommation de carburant est d'environ 1 ... 2 litres par heure. Dans le même temps, la chaleur rayonnée est d'environ 11 kWh par litre. Ainsi, le four peut produire 11 ... 22 kW par heure. Pour calculer le volume requis du four, en tenant compte du temps de combustion, nous acceptons:
- le volume de la pièce (garage) - 7x4x2,5 \u003d 70 mètres cubes, superficie 28 m²;
- nous estimons qu'il faut au moins 500 W pour chaque mètre carré d'une pièce de type garage (100 W de base, nous inscrivons des coefficients pour tous les murs extérieurs, un toit et une fondation non isolés, une grande ouverture d'entrée, une structure métallique) ;
- en conséquence, une surface de 28 carrés nécessite 14 kW d'énergie par heure.
En forçant légèrement le poêle à la puissance minimale (en augmentant le tirage), nous obtiendrons la température requise dans la pièce. Mais la consommation de carburant augmentera à environ 1,5 ... 1,6 litre par heure.Par conséquent, pour une durée de combustion d'au moins 6 heures, le volume du four doit être de 10 litres. Cela correspond à 0,001 mètre cube, c'est-à-dire que le conteneur doit avoir une taille, par exemple, 10x10x10 cm.En réalité, le volume du four dépasse le volume de combustible requis de 1,5 ... 2 fois, c'est-à-dire les dimensions doit être de 20x10x10 cm ou plus, pour un mini poêle, il convient. Généralement pris avec une marge solide, c'est-à-dire 50x30x15 cm, cela permet de ne pas rajouter de carburant à chaque allumage.
Important: avec de grandes tailles de four, il devient nécessaire d'éteindre le feu dans le four pendant l'extraction avant que le combustible ne brûle complètement. Le processus de trempe est montré dans la vidéo ..
La longueur du tuyau est de 40 cm, respectivement, son diamètre est de 10 cm.L'aire de la surface latérale du cylindre est égale à sa hauteur multipliée par la circonférence de la base (diamètre multiplié par le nombre π ), dans notre cas 40x3,14x10 \u003d 1256 cm2. En conséquence, la superficie de tous les trous est d'un dixième du total - 125,6 cm2. Étant donné que la surface d'un trou d'un diamètre de 10 mm est égale à πx0,52=3,14x0,25=0,78 cm², un tel tuyau nécessitera 125,6/0,78=160 trous.
Noter! La valeur acceptée - la surface des trous est de 10% de la surface totale de la surface latérale du tuyau - conditionnellement! Le nombre de trous dans la fabrication dépend, entre autres, de la résistance du produit et est généralement nettement inférieur !
Considérant que le cylindre élargi est un rectangle de 31x40 cm et que les trous doivent être placés en damier, nous devrons faire 12 rangées verticales de 13 ou 14 trous chacune. Le marquage des rangées verticales est simple - divisez la circonférence supérieure ou inférieure de la base du tuyau en 12 parties de n'importe quelle manière géométrique et tracez des lignes de forage verticales.
La distance entre les rangées sera de 3,3 cm.Le marquage des rangées verticales est un peu plus difficile, car il est nécessaire de décaler le point de marquage supérieur (ou inférieur) toutes les deux rangées de la moitié de la distance entre les trous. Considérant que nous devons faire des trous non sur le bord du tuyau, nous ajoutons 1 au nombre de trous prévu et calculons le pas: pour 13 trous, ce sera 40 / (13 + 1) \u003d 2,85 cm, pour 14 - 40 / (14 + 1) \u003d 2,6 cm.
Important : lors du perçage, l'axe du foret doit être dirigé vers l'axe du tuyau !
Comment faire une chaudière à huile usée de vos propres mains
Il existe différentes options de conception pour les chaudières à huile usée. Ils sont même vendus en magasin.
Option numéro 1
Pour fabriquer une simple chaudière à mazout de vos propres mains, vous aurez besoin des pièces et équipements suivants:
- pompe à huile et pompe de circulation ;
- brûleur spécial et compresseur d'air;
- chaudière prête à l'emploi, qui a un vase d'expansion intégré;
- des tronçons de canalisations pour équiper les autoroutes.
Étapes de fabrication :
- Les gaz d'échappement sont introduits dans la chambre d'évaporation forcée par un tuyau résistant à l'huile à l'aide d'une pompe à huile directement depuis le réservoir de carburant. Pour fabriquer une telle chambre d'évaporation, vous devez prendre un morceau de tuyau solide et épais qui pourra résister à des températures atteignant 400 degrés.
- Un petit tube doit être placé au centre de cette chambre, il sert à y amener de l'air soufflé par un ventilateur.
- Les vapeurs, enrichies par l'afflux de masses d'air, brûlent dans la chambre de travail, chauffant ainsi le liquide de refroidissement qui circule dans les conduites.
Composants de la chaudière (toutes les dimensions sont en centimètres)
Pour effectuer une installation de haute qualité de tous les éléments du système, vous aurez besoin d'une machine à souder, ainsi que de compétences pour la manipuler.
Une telle chaudière fournira une puissance de 5 à 10 kilowatts. Cela suffit pour réchauffer complètement une pièce jusqu'à 40 mètres carrés. M.
Option numéro 2: une chaudière basée sur un poêle à ventre
Le moyen le plus simple de chauffer une chaudière est de fabriquer une chaudière à ventre rond. Il sera composé de deux compartiments, le premier contiendra l'huile usagée remplie.
La combustion du combustible se fera par étapes. Tout d'abord, le carburant brûle dans le premier compartiment à une température modérée. Dans le second, il y aura combustion de produits mélangés à l'air, qui ont été obtenus grâce à la combustion d'huiles usées. La température dans le deuxième compartiment sera d'environ 800 degrés.
Le schéma général de l'appareil d'un poêle à ventre pour l'entraînement
Lors de la fabrication d'une telle chaudière, il est nécessaire de fournir une alimentation en air supplémentaire aux deux chambres de combustion. Un trou est fait dans le réservoir inférieur pour cela - il servira à verser du carburant, ainsi qu'à l'accès à l'air. Pour contrôler l'alimentation en air, le trou est équipé d'un registre. L'air entrera dans la chambre supérieure par de petits trous d'un diamètre d'environ 10 mm. Ils doivent être percés dans le tuyau, d'où les produits de combustion seront fournis à partir de la première chambre, il reliera les deux compartiments.
Pour fabriquer une chaudière, vous aurez besoin de:
- Machine à souder (minimum 200 ampères).
- Perforateur et broyeur. Le broyeur doit être pris avec des roues de nettoyage et de coupe, ainsi qu'un diamètre de cercle d'au moins 125 mm. Pour un perforateur, le diamètre du foret doit être pris au moins 13 mm.
- Marteau de forgeron.
- Porter.
- Un marteau.
- Rivets.
- Ciseau.
- Coin jambe.
- Pinces.
- Lunettes de sécurité pour le soudage.
Processus de fabrication de la chaudière
- Tout d'abord, vous devez souder le réservoir, qui servira de récipient inférieur, où se trouvera l'huile usée. Il doit être en tôle de fer.
- Ensuite, dans la chaudière, vous devez percer un trou nécessaire à l'alimentation en air.
- Ensuite, vous devez installer une vanne, elle régulera l'alimentation en air. Vous pouvez le fixer avec des rivets.
- Au lieu d'un tuyau de cheminée, vous pouvez mettre un tuyau avec des trous conçus pour la circulation de l'air.
- Faire une chambre avec un couvercle amovible conçu pour le deuxième compartiment.
- Connectez la chambre préparée au tuyau avec des trous, où la combustion secondaire aura lieu.
- Connectez la chambre supérieure à la chambre inférieure, il ne devrait y avoir aucun espace.
- La conception pour la stabilité doit être fixée avec un coin.
- Raccordez le tuyau de cheminée en position verticale.
- Pour allumer la chaudière, faites le plein d'huile usagée, puis mettez le feu avec du papier ordinaire.
Ce sont de bonnes options pour un appareil de chauffage à faire soi-même pour une maison privée, qui sont disponibles à la vente pour beaucoup.
Autoproduction
N'importe qui peut faire la conception la plus simple. Il existe de nombreux schémas sur la façon de procéder, ils peuvent être utilisés pour comprendre l'ensemble du processus de production.
Il sera plus intéressant d'envisager un four à huile usée suralimenté. Il y a aussi suffisamment de dessins, mais la conception est plus complexe et nécessite donc des connaissances supplémentaires dans ce domaine.
Son principal avantage est qu'il ne jettera pas d'énergie dans la rue en grande quantité, mais une extraction lente de la chaleur sera organisée.La deuxième différence notable est la présence d'un tiroir à huile, qui facilite son nettoyage. Dans des conteneurs plus simples (complètement fermés), cela est extrêmement difficile à faire.
Le diamètre des tuyaux et le volume du réservoir de mazout doivent être choisis en fonction de la quadrature de la pièce chauffée.
Pour un garage moyen avec des dimensions de 3x6 m, vous aurez besoin de pièces des tailles suivantes :
- tuyau profilé 75 × 75 × 4 cm;
- boîte à combustible 55×55×4 cm.
Pour l'autoproduction, vous devez effectuer les actions suivantes étape par étape :
- Découpez les éléments du tiroir. Les tuyaux de post-combustion doivent être coupés à un angle de 45°.
- Dans un profil plus petit, un trou pour la boîte est découpé avec une meuleuse et les côtés sont soudés sur les côtés. Une poignée est attachée à la boîte.
- La structure est soudée et un trou pour la cheminée est percé par le haut.
Pour un fonctionnement plus efficace et une extraction maximale de la chaleur, il est recommandé de fixer une rallonge sous la forme d'un tuyau de 3 mètres au poêle. Il brûlera le carburant. Mais pour un degré de sécurité plus élevé, il est recommandé de recouvrir les murs du garage près du poêle avec des tôles, de ramasser toutes les étagères en bois et les substances combustibles.
Dans cette vidéo, vous découvrirez la construction d'une fournaise à l'huile usée :
À la dernière étape, il suffit d'allumer le combustible et d'ajuster le fonctionnement du poêle. Dans le même temps, la tâche principale est de minimiser l'émission de fumée noire, car cela indique qu'il n'y a pas assez d'air dans le système. Pour définir ce paramètre, vous devez percer plusieurs trous et vérifier le nombre d'émissions. Mais un grand nombre de trous peut faire du mal. De la fumée peut s'échapper dans la pièce. Par conséquent, le nombre de trous doit être ajusté correctement.
Faire un compte-gouttes est également assez difficile, mais une telle tâche est tout à fait réalisable. Souvent, pour la production d'un four goutte à goutte, un cylindre d'un diamètre de 220 à 300 mm est utilisé pour l'exploitation minière. Il a des parois assez épaisses pour ne pas brûler longtemps. Un tuyau en acier d'un diamètre de 5 mm ou plus peut également convenir.
Une option idéale à ces fins consiste à utiliser un tuyau chromé résistant à la chaleur d'un diamètre de 3 mm ou plus. Mais la production ne sera bon marché que si le tuyau est déjà disponible. Cela ne vaut pas la peine d'acheter cela spécifiquement, car la fabrication sera coûteuse.
Tous les autres détails peuvent également être trouvés dans le ménage ou le marché de la radio. Par exemple, un ventilateur Zhiguli est bien adapté à la suralimentation. Les tuyaux métalliques et autres éléments sont disponibles dans les points de collecte de ferraille.
La technologie de production du four goutte à goutte est la suivante:
- Le bol pour la flamme est fabriqué à partir d'un tuyau ou d'un récipient en acier fini. La palette ne doit pas être trop grande, car le tuyau doit être retiré par la trappe.
- Dans le cas, à l'aide d'un broyeur, les ouvertures pour la cheminée et la trappe de nettoyage sont découpées.
- Une postcombustion est en cours de fabrication. Vous n'avez pas besoin de faire tous les trous en même temps. Il est préférable de faire un tiers du montant maximum défini dans le dessin et de compléter tout le reste pendant le processus de configuration.
- Un couvercle et un conduit d'air sont soudés à la postcombustion. Dans ce dernier, un ventilateur est monté.
- L'appareil est assemblé, réglé et son fonctionnement est vérifié.
Pour que l'appareil soit vraiment fiable, il est préférable de le placer dans un boîtier en acier. Il doit être soudé à partir de tuyaux profilés. Pour régler la température, il est nécessaire de prévoir la possibilité de modifier la quantité de carburant fournie, ainsi que de souffler le ventilateur.
Les utilisateurs expérimentés ont appris à ajuster la quantité de carburant brûlé par œil. Si l'huile est fournie en gouttes, moins de 1 litre par heure brûle, et si un petit courant est observé, alors plus de 1 litre. Pour installer un réglage facile de l'alimentation en air, vous pouvez acheter un PWM bon marché sur le marché chinois.
Après avoir assemblé toute la structure, il est nécessaire de vérifier son fonctionnement. La procédure ne diffère pas des recommandations précédentes. Il est nécessaire d'obtenir la fumée la plus propre possible et en même temps de ne pas en faire trop avec les trous de l'allumeur.
Si une personne a une certaine expérience, il n'est pas difficile de fabriquer même un poêle à ventre complexe utilisant du combustible usé. Si un maître novice ne s'est jamais intéressé à ce domaine, la conception la plus simple à partir de matériaux improvisés fera l'affaire.
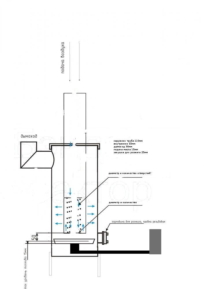
Dessins et schéma de montage
La fabrication du four commence par la chambre basse. Il est combiné dans le poêle avec un réservoir de carburant, sur le couvercle duquel des trous spéciaux sont pratiqués pour la baie minière et pour le tuyau reliant la première chambre à la seconde.
Selon les dimensions indiquées sur la figure, des parties de la chambre de combustion primaire sont découpées, les bords sont meulés et soudés. Les murs sont fabriqués à partir d'une ébauche de tuyau.
Les coins leur sont soudés, qui deviendront des jambes, une feuille de métal est soudée au fond. Un trou de 10 cm est découpé au centre, et un autre de 6 cm sur le côté, plus près du bord. Si vous le souhaitez, faites un couvercle amovible - il est plus facile de nettoyer le réservoir.
Dans un tuyau de 36 cm de long et 10 cm de diamètre, jusqu'à 50 trous d'un diamètre de 9 mm sont percés uniformément sur toute la surface du tuyau afin que le débit d'air soit le même de chaque côté.
Un tuyau percé de trous est soudé perpendiculairement au couvercle du réservoir.Un volet d'air est réalisé sur le réservoir inférieur. Fixez-le avec des boulons ou des rivets. A travers ce trou, la fournaise sera allumée et l'exploitation minière sera comblée.
Le tank du haut se fait de la même manière que celui du bas. Dans la plaque, qui est fixée au fond du réservoir, un trou d'un diamètre de 10 cm est pratiqué, décalé vers l'un des bords. Un morceau de tuyau de grand diamètre à partir du trou est soudé au trou en dessous, juste assez pour pouvoir être posé sur la chambre de combustion supérieure perforée.
Le couvercle du réservoir supérieur étant exposé aux températures les plus élevées, il est recommandé de le réaliser en métal d'une épaisseur minimale de 6 mm. Au sommet du réservoir, un trou est fait pour la cheminée, qui est opposé au trou du fond. Une plaque de métal épaisse est placée entre eux - un cutter. Il est inséré plus près du trou de la cheminée.
Un tuyau est soudé au couvercle supérieur, qui est ensuite relié à la cheminée. Pour améliorer la stabilité de la structure, une entretoise est soudée à partir d'un tuyau ou d'un coin. Vous pouvez peindre le four avec de la peinture pour métal qui peut résister à des températures élevées.
Fours goutte à goutte sous pression
Un poêle sous pression est le même appareil de chauffage, uniquement équipé d'un ventilateur. Il est situé plus près de la deuxième chambre de combustion. Le ventilateur assure un chauffage uniforme de la pièce.
L'assemblage d'un four goutte à goutte est difficile. Les appareils de chauffage industriels sont équipés du même mécanisme. Les modèles de ce type réduisent la quantité de carburant utilisée.
Les artisans modernes ont appris à combiner le mécanisme goutte à goutte avec la suralimentation. Cependant, il est fortement déconseillé d'assembler une telle unité sans les compétences appropriées.
Instructions étape par étape à faire soi-même pour fabriquer une fournaise à l'huile usée à partir d'un cylindre
L'appareil peut être fabriqué à partir d'anciens éléments en utilisant les dessins fournis de la fournaise à l'huile usée. Pour ce processus, vous aurez besoin d'une bouteille de gaz d'une capacité de 50 litres. Vous devez également préparer :
- un tuyau d'un diamètre de 80-100 mm et d'une longueur de 4 m;
- coin en acier pour la fabrication du support et des éléments internes de l'échangeur de chaleur;
- tôle d'acier pour la réalisation du fond de la chambre haute et du bouchon ;

Pour le processus de fabrication d'une fournaise à l'huile usée, vous aurez besoin d'une bouteille de gaz d'une capacité de 50 litres
- disque de frein;
- tuyau de carburant ;
- pinces;
- soupape d'un demi-pouce ;
- boucles;
- tuyau d'alimentation en huile d'un demi-pouce.
Une bouteille de gaz vide est utilisée pour fabriquer le boîtier. Il est nécessaire de dévisser la valve dessus, après quoi il faut la laisser toute la nuit dans la rue pour ventiler le gaz restant. Un trou est percé au bas du produit. Pour éviter la formation d'étincelles, la perceuse doit être humidifiée avec de l'huile. À travers le trou, le ballon est rempli d'eau, qui s'écoule ensuite, éliminant le gaz restant.
Deux ouvertures sont découpées dans le ballon. Celui du haut sera utilisé pour la chambre de combustion, où sera installé l'échangeur de chaleur. Celui du bas fait office de brûleur avec un plateau. La partie supérieure de la chambre est spécialement agrandie. Si nécessaire, il peut être rempli d'autres options de combustible sous forme de bois de chauffage ou de briquettes pressées.

Un réchaud à bouteille de gaz sera plus économique et efficace que d'autres matériaux
De plus, le fond du compartiment supérieur de l'appareil est en tôle d'une épaisseur de 4 mm. Un brûleur est fabriqué à partir d'un morceau de tuyau de 200 mm de long, comme indiqué sur le dessin d'un poêle à mazout. De nombreux trous sont percés autour de la circonférence du produit, qui sont nécessaires pour que l'air pénètre dans le carburant.Ensuite, meulez l'intérieur du brûleur. Cela éliminera la possibilité d'accumulation de suie sur les extrémités et les surfaces inégales.
Le brûleur du four pour l'exploitation minière à partir d'une bouteille de gaz est soudé au fond de la chambre supérieure. En l'absence de réserves minières, le bois peut être déposé sur le plateau formé.
Faire une palette pour travailler et installer une cheminée d'un poêle à mazout de vos propres mains
Selon le dessin du poêle, le bac à huile usée est constitué d'un disque de frein automobile en fonte, qui présente de bonnes performances de résistance à la chaleur. Dans sa partie inférieure, un cercle en acier est soudé, qui forme le fond. Un couvercle est réalisé dans la partie supérieure, par l'ouverture duquel l'air pénètre dans le four.

Pour la fabrication de la palette, un disque de frein automobile en fonte est utilisé.
La prochaine étape de la fabrication d'un réchaud à mazout à partir d'une bouteille de gaz consiste à fabriquer un raccord à partir d'un tuyau de 10 cm de long qui relie le brûleur et le puisard. Grâce à cet élément, il sera beaucoup plus facile d'entretenir le poêle. Vous pouvez retirer la casserole et nettoyer le fond du brûleur. Pour assurer l'alimentation en huile, un tube métallique est inséré dans le trou du boîtier, qui est saisi par soudure. Une vanne d'urgence est installée sur la conduite.
La structure de la cheminée est constituée d'un tuyau d'un diamètre de 100 mm. L'une de ses extrémités est soudée au trou de la partie supérieure centrale du corps et l'autre est sortie dans la rue.
Après avoir regardé la vidéo "Four pour travailler à partir d'une bouteille de gaz", vous pouvez vous familiariser avec la séquence d'actions dans la fabrication de l'appareil.
Connexion de la structure dans le bain
La conception du poêle comprend une partie de la cheminée avec de nombreux trous (généralement jusqu'à 50). Cette partie de l'unité s'appelle le brûleur.Dans un tel brûleur, les vapeurs d'huile sont mélangées à l'oxygène entrant dans la cheminée sous l'influence du tirage. En raison de leur mélange, le processus de combustion commence à être beaucoup plus propre et plus intense avec la libération d'une énorme quantité de chaleur.
La palette était fabriquée à partir d'un disque de frein automobile en fonte. La fonte a une bonne résistance à la chaleur, j'ai donc décidé de la prendre.
C'est à partir de ce disque que je ferai une palette
Fond soudé au fond.
Le cercle d'acier est le fond
J'ai soudé un couvercle sur le dessus. Vous pouvez y voir la contrepartie du brûleur et l'ouverture. L'air pénètre dans le poêle par l'ouverture. Je l'ai fait large - c'est mieux ainsi. Avec une ouverture étroite, le tirage d'air peut ne pas être assez fort pour empêcher l'huile de pénétrer dans le puisard.
Ensuite, j'ai fait un embrayage. Elle relie la casserole et le brûleur dans mon poêle. Avec un embrayage, l'entretien du poêle sera beaucoup plus facile. Si nécessaire, je peux retirer la casserole et nettoyer le brûleur par le bas.
Ensuite, j'ai fait un embrayage
Le raccord a été fabriqué à partir d'un tuyau de 10 centimètres, en le coupant simplement le long du bord longitudinal. Je n'ai pas soudé l'ouverture dans l'accouplement - cela n'est pas nécessaire.
L'ancêtre de ces poêles était connu de l'ancienne génération de kérogaz. Il différait considérablement des autres conceptions par sa sécurité et son efficacité. Étant donné que les vapeurs de carburant ont été brûlées dans une chambre spéciale, tout le volume n'a pas chauffé et n'a pas créé de danger d'inflammation et d'incendie.
Le principe de fonctionnement du four à huile usée est à peu près le même. Il se compose de deux conteneurs situés l'un au-dessus de l'autre, entre lesquels se trouve une chambre de combustion avec des trous pour l'admission d'air.L'exploitation minière est versée dans le réservoir inférieur, dont les vapeurs brûlent activement dans la chambre médiane, et les produits de combustion, la fumée et d'autres substances pénètrent dans la chambre supérieure reliée à la cheminée, d'où ils sont évacués naturellement.
La chaudière à eau chaude est située en haut du four. Il est fixe, a des robinets pour prendre l'eau dans le bain et pour démarrer le circuit de chauffage. Le hammam est chauffé à partir d'un mur de briques qui va à l'intérieur. Pour que l'effet soit maximal, il est nécessaire de rendre la distance entre le four et la boîte à briques assez petite pour réduire les pertes de chaleur, mais également suffisante pour que l'air pénètre.
Il existe une autre option pour fabriquer une structure pour l'exploitation minière, combinée à un four à briques. Seul le réservoir inférieur est fabriqué. La chambre de combustion a la forme d'un coude légèrement incurvé à 90°. Une plaque verticale est soudée à l'extrémité, qui communiquera avec la partie interne (four) d'un four à briques conventionnel. Les gaz chauds formés lors de la combustion de l'exploitation minière pénètrent dans le four à briques et le chauffent.
La conception ultérieure n'est pas différente de la conception habituelle: une chaudière à eau est installée, un circuit de chauffage à circulation naturelle ou forcée, des vannes d'arrêt, etc. sont connectés. Une telle option compacte est optimale pour ceux qui ont déjà un four fini et qui souhaitent uniquement l'adapter à la combustion minière.
La meilleure option : créer un circuit de chauffage fermé avec un mélangeur d'eau chaude. Le caloporteur est chauffé dans un échangeur de chaleur installé à l'intérieur de la chaudière ou, alternativement, sur la cheminée.Un tel système vous permet de couper le média de l'eau pour les besoins domestiques, de fournir une température plus uniforme dans le système et permet d'ajuster assez précisément la température dans les locaux.
La possibilité d'économiser de l'argent sur la zone la plus coûteuse est très attrayante pour tout propriétaire, et l'intégration de tous les éléments dans un seul système contribue à une gestion plus pratique et efficace du chauffage domestique. De plus, le processus de recyclage des huiles usées est difficile et la capacité de les brûler avec un maximum d'avantages sera la meilleure option pour traiter les substances inutiles.
Les règles de sécurité
Un poêle à ventre au travail avec des appareils supplémentaires nécessite une attention particulière.
Afin de ne pas endommager l'équipement et de ne pas endommager la pièce, vous devez vous rappeler quelques règles:
- Ne laissez pas l'appareil sans surveillance pendant une longue période, comme la nuit.
- Avant utilisation, il est préférable de bétonner l'endroit sous le four.
- Couvrir les murs avec des matériaux incombustibles.
- Ne placez pas l'appareil dans un courant d'air afin que le feu ne se propage pas aux matériaux combustibles. Au moment de l'allumage, la flamme brûle fortement et perce les trous du tuyau.
- Jusqu'à ce que les vapeurs d'huile commencent à brûler, il est impossible de l'ajouter.
Instructions d'utilisation du four
Avant le premier test, vous devez vous assurer que l'appareil est stable. Séquençage :
- remplir le récipient inférieur de carburant aux 2/3 du volume ;
- versez un peu d'essence dessus;
- ouvrir le registre ;
- allumez une allumette et allumez une mèche, un journal ;
- attendez que l'essence chauffe l'huile et que les vapeurs commencent à brûler;
- fermer le registre lorsque la pièce se réchauffe.
La consommation d'huile à faible combustion sera d'environ 0,5 litre par heure. Avec une forte combustion - 1,5 litre par heure.
La conception et le principe de fonctionnement de l'appareil de chauffage
Il est basé sur le principe de fonctionnement du kérogaz. Il s'agit d'un appareil de chauffage qui utilise du kérosène et de la vapeur d'air pour générer de l'énergie thermique.
Le réchauffeur se compose des blocs suivants :
- Compartiment inférieur. Tôle d'acier soudée de 4 mm. A certainement une forme ronde. L'air entre par le registre, qui est nécessaire au processus de combustion. Si la porte est complètement fermée, la combustion s'arrêtera progressivement.
- Couvrir avec un trou.
- Compartiment du milieu. Il s'agit d'un tuyau perforé. Des trous sont nécessaires pour un flux d'air illimité. Pour la fabrication de cette pièce et d'autres pièces, du métal de 5,5 mm et plus d'épaisseur est utilisé.
- Compartiment supérieur.
- Cheminée. Sert à éliminer les produits de combustion. Longueur du tuyau - à partir de 4 mètres, de manière optimale - 5 à 7 mètres. Les sections inclinées jusqu'à 45 ° C sont autorisées, ce qui augmente l'efficacité des équipements de chauffage. Mais plus la pente est grande, plus la suie se déposera. Il ne doit pas y avoir de sections horizontales, la partie supérieure est dirigée uniquement verticalement. Pour la fabrication de cette partie du four, des matériaux ignifuges sont utilisés - étain, cuivre, acier inoxydable. La cheminée est installée dans la partie supérieure du corps. Il est souhaitable qu'il soit séparé - cela simplifie la maintenance.
Les pièces sont soudées ensemble avec une couture continue.

Schéma du four
L'efficacité du chauffage est augmentée par le système de soufflage. De plus, de petits tuyaux sont soudés à la partie supérieure du tuyau reliant les chambres supérieure et inférieure. Cela augmente le transfert de chaleur et la chambre supérieure chauffe moins. De plus, des nervures verticales sont parfois soudées sur le module supérieur.
La configuration fonctionne comme ceci. L'huile est versée dans le compartiment inférieur et incendiée à l'aide d'une mèche. Après l'ébullition de la couche supérieure, la vapeur s'allume.Une turbulence est créée, remplaçant la manette des gaz et faisant tourbillonner les gaz. Ainsi, les vapeurs brûlantes pénètrent dans le perforé, où l'oxydation se produit sous l'action de l'oxygène. Dans cette chambre, la température atteint 800°C ou plus. L'azote devient plus actif que l'oxygène, de nombreux composés toxiques d'azote et de carbone apparaissent.

Modèle de four standard et amélioré avec ailettes et tubes soudés
Dans la partie supérieure, les résidus de pyrolyse sont finalement brûlés. Ici, la température chute brusquement, l'azote perd son activité et est déplacé par l'oxygène. Par conséquent, de l'azote gazeux inoffensif, de la vapeur sort de l'appareil de chauffage, des composés solides de monoxyde de carbone se déposent partiellement à l'intérieur de la cheminée.




































