- Le principe de fonctionnement des chaudières à pyrolyse et leurs caractéristiques
- Comment fonctionne une chaudière en pratique ?
- Le principe de fonctionnement de la chaudière à combustion longue
- Exigences d'installation et de conception : recommandations d'experts
- Instructions étape par étape pour la fabrication
- Description et principe de fonctionnement de la chaudière à pyrolyse
- Dispositif de chaudière
- Chaudière à eau chaude au bois à monter soi-même. Souder une chaudière à bois - à monter soi-même
- Classification
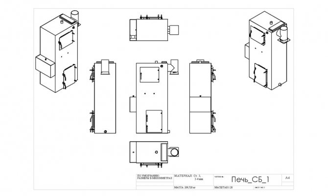
- Dessin : vue générale, workflow
- Différences de l'appareil par rapport aux chaudières conventionnelles
- processus d'assemblage
- Dispositif d'alimentation en air
- Logement (fournaise)
- Cheminée
- Nous connectons le boîtier et le dispositif d'alimentation en air
- Disque dissipateur de chaleur
- hotte à convection
- Couvercle
- les jambes
- Chaudière à pyrolyse à faire soi-même: règles et nuances
- Pour terminer
Le principe de fonctionnement des chaudières à pyrolyse et leurs caractéristiques
En créant des chaudières à pyrolyse de leurs propres mains, les gens ont tendance à économiser de l'argent dans leur portefeuille. Si l'équipement à gaz est assez bon marché, les unités à combustible solide sont tout simplement incroyables à leur prix. Un modèle plus ou moins décent d'une capacité de 10 kW coûtera 50 à 60 000 roubles - il est moins cher de conduire du gaz si un gazoduc passe à proximité. Mais s'il n'y en a pas, il existe deux solutions: acheter du matériel d'usine ou le fabriquer vous-même.
Il est possible, mais difficile, de fabriquer soi-même une chaudière à pyrolyse à longue durée de vie.Commençons par comprendre pourquoi la pyrolyse est nécessaire. Dans les chaudières et poêles conventionnels, le bois est brûlé de manière traditionnelle - à haute température, avec dégagement de produits de combustion dans l'atmosphère. La température dans la chambre de combustion est d'environ + 800-1100 degrés et dans la cheminée - jusqu'à + 150-200 degrés. Ainsi, une partie substantielle de la chaleur s'envole simplement.
La combustion directe du bois est utilisée dans de nombreux appareils de chauffage :

Les chaudières à pyrolyse à combustibles solides peuvent utiliser plusieurs types de combustibles, dont les déchets issus du travail du bois et de la transformation agricole.
- chaudières à combustible solide;
- Poêles-cheminées;
- Cheminées avec circuits d'eau.
Le principal avantage de cette technique est qu'elle est simple - il suffit de créer une caméra combustion et organiser l'évacuation des produits de combustion à l'extérieur de l'équipement. Le seul régulateur ici est la porte du ventilateur - en ajustant le dégagement, nous pouvons ajuster l'intensité de la combustion, affectant ainsi la température.
Dans une chaudière à pyrolyse, assemblée de vos propres mains ou achetée dans un magasin, le processus de combustion du combustible est quelque peu différent. Le bois de chauffage y est brûlé à basse température. On peut dire que ce n'est même pas une combustion, mais une lente combustion lente. Le bois se transforme en même temps en une sorte de coke, tout en libérant des gaz de pyrolyse combustibles. Ces gaz sont envoyés à la post-combustion, où ils brûlent en dégageant une grande quantité de chaleur.
S'il vous semble que cette réaction ne donnera pas d'effet spécial, alors vous vous trompez profondément - si vous regardez dans la postcombustion, vous verrez une flamme rugissante de couleur jaune vif, presque blanche.La température de combustion est légèrement supérieure à +1000 degrés, et plus de chaleur est libérée dans ce processus qu'avec une combustion au bois standard.
Pour qu'une chaudière à pyrolyse auto-assemblée puisse montrer une efficacité maximale, du bois de chauffage à faible teneur en humidité est nécessaire. Le bois mouillé ne permettra pas à l'équipement d'atteindre sa pleine capacité.
La réaction de pyrolyse nous est familière depuis le cours de physique de l'école. Dans un manuel (et peut-être dans une salle de laboratoire), beaucoup d'entre nous ont vu une réaction intéressante - le bois a été placé dans un flacon en verre scellé avec un tube, après quoi le flacon a été chauffé sur un brûleur. Après quelques minutes, le bois a commencé à s'assombrir et des produits de pyrolyse ont commencé à sortir du tube - ce sont des gaz combustibles qui pourraient être incendiés et observer la flamme jaune-orange.
La chaudière à pyrolyse à faire soi-même fonctionne de la même manière :

Sur une charge de combustible, les chaudières à pyrolyse fonctionnent pendant environ 4 à 6 heures. Ainsi, un approvisionnement important et régulièrement renouvelé en bois de chauffage doit être assuré à l'avance.
- Le bois de chauffage est allumé dans le foyer jusqu'à ce qu'une flamme stable apparaisse ;
- Après cela, l'accès à l'oxygène est bloqué, la flamme s'éteint presque complètement ;
- Le ventilateur soufflant démarre - une flamme à haute température apparaît dans la postcombustion.
Le dispositif de la chaudière à pyrolyse est assez simple. Les principaux éléments ici sont : une chambre de combustion dans laquelle le bois de chauffage est stocké et une chambre de post-combustion dans laquelle les produits de pyrolyse sont brûlés. La chaleur est transférée au système de chauffage via un échangeur de chaleur
Dans le schéma de la chaudière à pyrolyse, une attention particulière lui est accordée
Le fait est que les échangeurs de chaleur dans les chaudières à pyrolyse à faire soi-même sont disposés différemment que dans les équipements à gaz.Les produits de combustion avec l'air passent ici par de nombreux tuyaux métalliques lavés par l'eau. Pour augmenter l'efficacité, l'eau de la chaudière lave non seulement l'échangeur de chaleur lui-même, mais également tous les autres nœuds - une sorte de chemise d'eau est créée ici, qui évacue l'excès de chaleur des éléments chauds de la chaudière.
Comment fonctionne une chaudière en pratique ?
Il convient de considérer l'utilisation pratique de l'équipement dans un processus étape par étape:
- Chargement du bois de chauffage - pose sur la grille de la partie supérieure de la chambre.
- Allumage du carburant et démarrage de la pompe à fumée.
- Formation de gaz de bois à une température de 250-850 °C.
- La transition du gaz de bois vers la région inférieure du four.
- Combustion au gaz de bois avec apport d'air supplémentaire.
En outre, la chaleur reçue dans la région inférieure de la chambre à combustible est utilisée pour chauffer le liquide de refroidissement. Le caloporteur peut être à la fois de l'eau et de l'air.
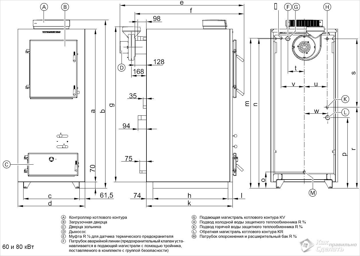
1 – caméra active ; 2 - entrée d'eau; 3 - air secondaire ; 4 - cheminée; 5 - tuyau de sortie; 6 - papillon des gaz; 7 - sortie d'eau; 8, 9 – capteurs ; 10-thermostat ; 11 – porte de la chambre passive ; 12 - air primaire ; 13 - caméra passive ; 14 - pompe à air; 15 - circuit échangeur de chaleur ; 16 - buse; 17 - porte de chambre active
Si vous faites attention à toutes les conceptions existantes de chaudières domestiques à combustible solide, la principale alternative à la chaudière à pyrolyse est la conception traditionnelle. Il s'agit d'une version similaire d'une chaudière à bois, où une chambre de combustion non divisée fonctionne et le principe de l'alimentation en air inférieure de la chambre de combustion fonctionne.
Mais un tel système est considéré comme moins efficace et non économique en raison de la combustion rapide du carburant.
Il s'agit d'une version similaire d'une chaudière à bois, où une chambre de combustion non divisée fonctionne et le principe de l'alimentation en air inférieure de la chambre de combustion fonctionne. Mais un tel système est considéré comme moins efficace et non économique en raison de la combustion rapide du carburant.
La chaudière à pyrolyse est capable de produire une efficacité de 85 à 95 % dans des conditions de charge à 100 %. Cependant, le rendement chute fortement si la charge est inférieure à 50 %. C'est pourquoi les fabricants d'équipements de pyrolyse recommandent aux utilisateurs d'utiliser l'équipement avec une charge maximale.
Une approche similaire est également valable pour les structures artisanales, à condition qu'elles respectent pleinement le schéma de pyrolyse classique et les exigences de fonctionnement.
Pour la « pyrolyse », les exigences opératoires, il faut le préciser, sont assez sévères :
- équipement obligatoire avec une pompe à air;
- l'humidité admissible du carburant n'est pas supérieure à 25-35 % ;
- la charge sur l'équipement n'est pas inférieure à 50 % ;
- température de retour du caloporteur non inférieure à 60 °С ;
- chargement uniquement avec un grand réseau de combustible.
Il convient également de noter le coût élevé des systèmes industriels de pyrolyse. C'est probablement pourquoi l'option de bricolage est si populaire.
Le principe de fonctionnement de la chaudière à combustion longue
Dans les unités à combustible solide conventionnelles, un signet suffit pour 6 à 7 heures de combustion. En conséquence, si la prochaine portion de ressources n'est pas ajoutée au four, la température dans la pièce commencera immédiatement à diminuer. Cela est dû au fait que la chaleur principale dans la pièce circule selon le principe de la libre circulation des gaz. Lorsqu'il est chauffé par la flamme, l'air monte et sort.
La ressource thermique d'une chaudière à combustion longue est suffisante pour environ 1 à 2 jours à partir d'une pose de bois de chauffage. Certains modèles peuvent garder au chaud jusqu'à 7 jours.
Comment cette rentabilité et cette efficacité sont-elles atteintes ?

Schéma de fonctionnement de la chaudière
D'une chaudière classique, une chaudière à combustion longue TT se distingue par la présence de deux chambres de combustion à la fois. Dans le premier, le carburant lui-même brûle en standard, et dans le second, les gaz libérés au cours du processus.
Un rôle important dans ce processus est joué par l'apport rapide d'oxygène, qui est fourni par le ventilateur.
Ce principe a été mis en œuvre relativement récemment. En 2000, la société lituanienne Stropuva a présenté pour la première fois cette technologie, qui a immédiatement gagné le respect et la popularité.

Chaudière maison à combustion longue
Aujourd'hui, c'est le moyen le moins cher et le plus pratique de chauffer une maison de campagne, où la gazéification n'est pas fournie et où il y a des pannes de courant.
Ces unités fonctionnent sur le principe de la combustion du carburant de tête. En standard, dans tous les fours, le foyer est situé en bas, ce qui vous permet de prélever l'air froid du sol, de le chauffer et de le soulever.
Le principe de fonctionnement de cette chaudière est quelque peu similaire à la pyrolyse. Ici, la chaleur principale n'est pas libérée par la combustion de combustible solide, mais par les gaz libérés à la suite de ce processus.
Le processus de combustion lui-même se déroule dans un espace clos. À travers un tube télescopique, le gaz libéré pénètre dans la deuxième chambre, où il est complètement brûlé et mélangé à de l'air froid, qui est pompé par le ventilateur.

Chaudière longue durée TT (schéma)
Il s'agit d'un processus continu qui se produit jusqu'à ce que le carburant brûle complètement. La température lors d'une telle combustion est atteinte très élevée - environ 1200 degrés.
Comme mentionné ci-dessus, cette chaudière a deux chambres : la principale est grande et petite. Le carburant lui-même est placé dans une grande chambre. Son volume peut atteindre 500 mètres cubes.
Tout combustible solide peut servir de ressource pour la combustion : sciure, charbon, bois de chauffage, palettes.
Une alimentation en air constante est assurée par un ventilateur intégré. L'avantage de cette méthode est que le combustible solide est consommé extrêmement lentement.
Cela augmente considérablement l'efficacité d'un tel appareil de chauffage. Pourquoi le bois de chauffage brûle-t-il si lentement par rapport à un poêle standard ?
L'essentiel est que seule la couche supérieure brûle, car l'air est soufflé par un ventilateur d'en haut. De plus, le ventilateur n'ajoute de l'air qu'après que la couche supérieure a complètement brûlé.
Il existe aujourd'hui sur le marché de nombreux modèles qui fonctionnent sur le même principe, mais, selon les dimensions, le matériau d'exécution, les options supplémentaires, ont une efficacité et une économie différentes.

Les chaudières Universal TT fonctionnent avec absolument n'importe quel combustible, ce qui simplifiera grandement leur fonctionnement pour les propriétaires. Une option plus économique est une chaudière à bois longue durée TT. Il fonctionne exclusivement au bois et ne peut être chargé avec aucune autre option de combustible.
Exigences d'installation et de conception : recommandations d'experts
Le haut niveau de risque d'incendie de cette unité de génie thermique implique le respect d'un certain nombre d'exigences pour l'installation d'une chaudière à pyrolyse :
- L'équipement de la chaudière doit être placé dans une pièce séparée spécialement conçue à cet effet.
- Pour un fonctionnement sûr, il est nécessaire de construire un trou de ventilation d'une superficie de 100 mètres carrés. cm.
- La chaudière doit être installée sur une fondation en brique ou en béton.
- La protection des chambres de combustion en tôle d'acier doit être équipée.
- Il doit y avoir un espace libre entre les meubles, les murs et l'enveloppe de la chaudière d'au moins 200 mm.
- Il est nécessaire de prendre des mesures pour isoler la cheminée. Si cette condition n'est pas remplie, la perte de chaleur est inévitable. De plus, le manque d'isolation thermique fiable entraînera une usure accrue de l'appareil en raison de l'apparition de dépôts de carbone et de condensation.
chaudière à pyrolyse
Instructions étape par étape pour la fabrication
Le processus de création d'un appareil de chauffage est assez simple et se déroule en plusieurs étapes successives.
Tout d'abord, le corps de la structure est constitué:
- Deux tuyaux de grand diamètre (50 et 45 cm) sont insérés l'un dans l'autre et reliés par un anneau métallique.
- À partir d'une feuille pré-préparée, un cercle de métal d'un diamètre de 45 cm est découpé, avec lequel le fond d'un tuyau plus petit situé à l'intérieur de la structure est soudé. En conséquence, nous obtenons un fût d'un diamètre de 45 cm, avec un contour de chemise d'eau chaude soudé de 2,5 cm de large.
-
Un trou rectangulaire est découpé au fond du "baril". Hauteur - jusqu'à 10 cm, largeur - environ 15. Il sera utilisé comme porte de cendrier. Une trappe est soudée, une porte avec des charnières attachées et une vanne est installée.
-
Un trou rectangulaire est découpé dans la partie supérieure du circuit pour l'alimentation en combustible solide. La taille est sélectionnée individuellement, la condition principale est la commodité du chargement du bois de chauffage. La trappe est soudée. Une porte équipée de charnières et d'un loquet est installée. Il est réalisé en double: une couche d'amiante est posée entre les tôles individuelles, les points de contact sont scellés avec un cordon d'amiante.Grâce à de telles manipulations, la perte de chaleur de la chaudière est réduite.
-
Au niveau supérieur, un tuyau d'échappement est équipé qui élimine les gaz d'échappement dans la cheminée.
- À deux endroits (haut et bas) du circuit d'eau, des tuyaux de dérivation d'un diamètre de 4 à 5 cm sont soudés, nécessaires pour connecter la chaudière à un autre système de chauffage. Un fil est coupé, pour lequel un lerk est utilisé.
- Inspection des cordons de soudure, si nécessaire - élimination des défauts.
Après avoir créé le corps métallique de la chaudière à combustible solide, vous pouvez procéder à la fabrication et à l'installation du répartiteur d'air :

Le répartiteur d'air peut être réalisé sous la forme d'une galette avec des canaux soudés
- Un cercle de métal est découpé. Son diamètre doit être inférieur de plusieurs centimètres à celui interne de la chaudière. Un trou rond est découpé au centre du cercle, correspondant en taille au tuyau de distribution d'air (5 à 6 centimètres).
- Un tube métallique est inséré dans le trou découpé.
- Par le bas, des canaux ou des coins disposés en forme de lames sont soudés sur la "crêpe". Avec une épaisseur appropriée des pales, une turbine de ventilateur est parfois utilisée.
- Une petite boucle est soudée sur le dessus. Il peut être utilisé pour monter et descendre le distributeur. Il est également équipé d'un registre qui régule l'intensité de l'alimentation en air de la zone d'incendie.
-
Montage du répartiteur d'air sur le boîtier. Un cercle est découpé dans une tôle dont le diamètre est égal au corps extérieur. Un trou de 6 à 8 cm est découpé au centre.La partie inférieure du répartiteur d'air est insérée dans la chaudière, la partie supérieure est enfilée à travers le trou réalisé. Après cela, le cercle est soudé à la chaudière et sert en outre de couvercle supérieur.
C'est l'un des moyens les plus simples de fabriquer une chaudière à combustible solide.Il existe des circuits compliqués utilisés dans les modèles industriels et domestiques.
Description et principe de fonctionnement de la chaudière à pyrolyse
Une chaudière à pyrolyse est l'un des types de sources de chauffage pour un bâtiment résidentiel. Comme carburant, vous pouvez utiliser:
- Bois de chauffage ordinaire (différents types de bois);
- briquette pressée;
- Déchets de bois;
- Sciure de bois (pressée et en vrac).
Leur utilisation est assez populaire dans de nombreuses régions russes, elles remplacent de plus en plus les chaudières à bois conventionnelles.
Malgré la similitude avec la chaudière à combustible solide habituelle, le principe de fonctionnement de la chaudière à pyrolyse est légèrement différent. Pourquoi sont-ils si populaires et bons, et est-il possible de fabriquer une chaudière à pyrolyse de vos propres mains, essayons de le comprendre.
La conception de la chaudière est assez simple, elle est divisée en deux chambres :
- Chambre de chargement et de combustion du bois de chauffage, où il est pyrolisé ;
- Chambre brûlant des gaz de pyrolyse.
Les deux chambres sont séparées par une grille sur laquelle est placé du bois de chauffage. Le mouvement de l'air dans la chambre se produit de haut en bas. Cette méthode de décomposition à deux composants du bois de chauffage est plus efficace, bien qu'il existe une pyrolyse chaudières à chambre de combustion à gaz au dessus.
Chaudière à pyrolyse à combustion longue - le principe de fonctionnement de la combustion du combustible
Une telle chaudière fonctionne sur le principe de la combustion du combustible par pyrolyse. Sinon, le processus peut être appelé distillation sèche. À une température dans la chambre avec une vapeur atteignant 800 ° -900 ° C, manquant d'oxygène, la décomposition thermique du bois de chauffage en: charbon et gaz de pyrolyse se produit.
- De la première chambre, le gaz résultant entre dans l'autre, où il s'enflamme lorsqu'il est mélangé avec de l'oxygène, portant la température à 1100°-1200°C.
- Les gaz combustibles chauffent l'échangeur de chaleur, d'où l'eau chaude pénètre dans le système de chauffage et les produits de la combustion des gaz sortent par la cheminée.
Ainsi, nous pouvons dire que l'énergie principale pour le liquide de refroidissement est obtenue non lors de la combustion du bois, et en brûlant leurs gaz.
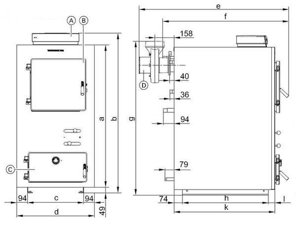
Dispositif de chaudière
La différence fondamentale entre une chaudière standard et une chaudière à pyrolyse est que dans la première version, il y a 1 chambre de combustion, et dans la seconde - 2, entre lesquelles il y a une grille, le combustible lui-même et les résidus solides brûlent dans la chambre inférieure, et gaz de pyrolyse dans la partie supérieure. C'est cette organisation des chambres de combustion qui vous permet d'optimiser le processus, d'augmenter le temps de combustion du carburant et de maximiser l'efficacité.
Photo 2 Schéma du dispositif de la chaudière à pyrolyse
Parmi les caractéristiques de la chaudière à pyrolyse figure la résistance aérodynamique accrue dans la cheminée due à l'absence d'air et à la réaction du carbone avec le gaz de pyrolyse. Le tirage forcé est assuré par un ventilateur électrique, en effet, c'est pour cette raison que les chaudières à pyrolyse appartiennent à la catégorie des équipements volatils.
C'est intéressant: Stabilisateur de tension pour chaudière à gaz - sélection, installation
Chaudière à eau chaude au bois à monter soi-même. Souder une chaudière à bois - à monter soi-même
La simplicité du processus réside également dans la disponibilité des matériaux et des outils de travail. Compétences en soudure requises. Alors ce qu'il faut :
- Un ancien baril de carburant ou une boîte auto-soudée. Les conteneurs sont pré-brûlés à partir des restes d'huiles - ils sont remplis de bois de chauffage et la future chaudière est fondue.
Le futur bâtiment doit être hermétiquement scellé - ceci est vérifié au stade de la combustion. S'il y a des défauts mineurs sous forme de trous, ils sont soudés et le baril est rempli d'eau - il ne devrait y avoir aucune fuite.
Tôle, métal à paroi épaisse. Un échangeur de chaleur en sera fait. Soit dit en passant, les anciens radiateurs en fonte obsolètes constituent une alternative de remplacement. Cinq ou six sections suffiront pour le cas.

Tubes profilés. Ils seront nécessaires à la fabrication de la cheminée et au montage du châssis sur lequel sera montée la chaudière. Le diamètre et l'épaisseur des parois doivent être impressionnants afin de supporter le poids de la chaudière remplie de combustible et d'eau.
Les grilles, volets, portes sont achetés. Si la pièce est impressionnante ou si l'objet est à deux étages, une pompe de circulation est nécessaire - sans elle, le support ne montera pas à une hauteur et il y a un risque de dégivrage du système par temps froid. Il n'est pas mauvais d'installer un manomètre et un thermomètre sur la chaudière finie afin de contrôler la pression et la température du support.
Pour la tuyauterie, des tuyaux et des radiateurs en métal-plastique seront nécessaires - les chaudières à bois avec circuit d'eau sont inacceptables sans cela.
Classification
Les chaudières ont des différences dans l'emplacement des chambres pour les gaz de postcombustion :
- première position ;
- avec la position basse.
Les chaudières à chambre haute sont plus encombrantes, il faut plus de matériel pour assembler la cheminée. Mais ils devront être nettoyés beaucoup moins fréquemment, car les particules du combustible brûlé n'entrent pas dans la chambre pour les gaz de post-combustion.
Dans les chaudières à section inférieure, le combustible est situé dans la partie supérieure et les gaz sont évacués vers la partie inférieure et y brûlent. C'est pratique, mais vous devrez souvent enlever les petites particules de bois de la chambre de récupération des gaz.
Selon la dépendance énergétique, les chaudières sont :
- sans électricité : chaudières à tirage naturel ;
- à tirage forcé.
Les chaudières non volatiles impliquent l'inclusion d'une cheminée haute (au moins 5-6 mètres) dans la conception pour augmenter la traction et assurer un vide suffisant dans la chambre de combustion.
L'efficacité de chauffage de ces chaudières sera quelque peu inférieure à celle des chaudières à tirage forcé.
Les appareils à air pulsé sont équipés d'un ou deux ventilateurs, qui peuvent fonctionner en mode d'injection d'air ou d'évacuation des gaz brûlés.
Dans certains modèles de chaudières, une méthode combinée est utilisée avec la participation de dispositifs d'injection et d'évacuation de gaz pour augmenter la puissance.
Référence! Les mécanismes qui pompent les gaz d'échappement sont constitués d'alliages spéciaux résistants à la chaleur (austénitiques), leur coût est bien supérieur à celui des soufflantes.
Méthode de chauffage :
- Chauffage de l'eau - les conduites d'eau sont reliées à l'échangeur de chaleur de la chaudière, à travers lequel le fluide de travail chauffé est distribué dans différentes pièces.
- Chauffage à air - au lieu de l'eau, on utilise de l'air, qui reçoit de la chaleur à travers le même échangeur de chaleur et est distribué par des conduits d'air. L'efficacité est inférieure à celle de la méthode de l'eau, elle est utilisée sur les sites de production, les entrepôts.

Photo 1. Chaudière à pyrolyse avec échangeur de chaleur, conçue pour le chauffage de l'eau, fonctionnant au bois.
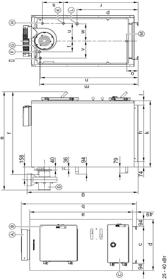
Dessin : vue générale, workflow
Il existe de nombreuses options pour l'exécution de la chaudière à pyrolyse. La vue la plus simple selon le dessin est disposée de cette manière.
- Chambre de combustion de la chaudière.
- Section gazéification.
- Section de post-combustion des gaz.
- Grille grilles.
- Échangeur de chaleur (tuyaux d'entrée/sortie).
- Conduite d'évacuation des gaz (cheminée).
- Souffler des trous.
- La porte du compartiment pour la pose de carburant.

Des contrôles de température peuvent être inclus dans la chaudière. capteurs et dispositifs de contrôle et maintenir des conditions de fonctionnement normales.
Ainsi que le matériel de la chaudière pour automatiser le fonctionnement de l'ensemble du complexe de chauffage.
L'essence de ce qui se passe à l'intérieur de la chaudière à pyrolyse est caractérisée par les processus suivants :
- Le flux d'air provenant de l'extérieur entre dans le compartiment de gazéification avec le combustible qui s'y trouve.
- Une partie de l'oxygène soutiendra le processus de combustion (couvant). Les gaz, qui sont des produits de combustion, pénètrent dans la chambre de combustion de la chaudière par la tuyère et y sont oxydés en présence d'oxygène secondaire, qui pénètre avec l'air extérieur.
- Une partie des gaz de pyrolyse est réduite en présence de carbone du combustible en monoxyde de carbone et oxyde d'azote, tout en consommant une partie de l'énergie. Le mélange passe dans la section de post-combustion des gaz et s'y oxyde avec la restitution de l'énergie qu'il a emportée.

Photo 2. Dessin d'une chaudière à pyrolyse à combustion longue, un appareil assemblé à partir de celle-ci peut chauffer une grande maison.
Les mélanges gazeux impliqués dans la réaction de pyrolyse sont évacués à l'extérieur par la cheminée en contournant l'échangeur de chaleur de la chaudière.
Attention! Étant donné que le fonctionnement des chaudières à pyrolyse est associé à une grande quantité d'énergie générée à l'intérieur de l'équipement et à la libération possible de divers types de gaz nocifs, il est recommandé de construire des chaudières par vous-même uniquement avec une compréhension complète de tous les processus physiques et chimiques. qui se produisent pendant son fonctionnement. Phases de température :
Phases de température :
- séchage, pyrolyse du bois - 450°C ;
- combustion du gaz de bois et de l'air secondaire - 560°C ;
- soufflage de flamme et récupération de chaleur - 1200 °C ;
- élimination des produits de combustion restants - 160 °C.
Différences de l'appareil par rapport aux chaudières conventionnelles

Y compris le bois (bois de chauffage), les briquettes combustibles spéciales (granulés) et les déchets industriels. L'une des principales différences entre les chaudières est l'utilisation de divers types de combustibles solides, presque toutes les substances pouvant brûler.
La durée du processus de combustion du combustible est beaucoup plus longue que celle des chaudières conventionnelles. 8-10 heures ou plus. Il existe des modèles de chaudières avec un grand compartiment pour le bois de chauffage, la durée de fonctionnement continu peut aller jusqu'à 24 heures. Cela signifie que la chambre de combustion est remplie de nouvelles portions de carburant 1 à 2 fois par jour.
Important! En raison de la décomposition presque complète des matériaux solides, les pyrochaudières sont moins nocives pour l'environnement.
processus d'assemblage
Le processus de création d'une chaudière comprend plusieurs étapes. Lors de la fabrication de chaque élément, il convient de prendre en compte les conditions de fonctionnement particulières du produit fabriqué.
Dispositif d'alimentation en air
Nous coupons un segment d'un tuyau à paroi épaisse d'un diamètre de 100 mm, dont la longueur sera égale à la hauteur du four. Souder un boulon au fond. Dans la tôle d'acier, nous découpons un cercle du même diamètre que le tuyau ou plus grand. Nous forons un trou dans le cercle, suffisant pour le passage d'un boulon soudé au tuyau. Nous connectons le cercle et le tuyau d'air en vissant l'écrou sur le boulon.
En conséquence, nous obtiendrons un tuyau d'alimentation en air dont la partie inférieure peut être fermée avec un cercle métallique en mouvement libre. Pendant le fonctionnement, cela vous permettra de réguler l'intensité de la combustion du bois de chauffage et, par conséquent, la température de la pièce.
A l'aide d'un broyeur et disque pour le métal nous effectuons des coupes verticales dans le tuyau d'une épaisseur d'environ 10 mm.À travers eux, l'air s'écoulera dans la chambre de combustion.
Logement (fournaise)
Le boîtier nécessite un cylindre à fond étanche d'un diamètre de 400 mm et d'une longueur de 1000 mm. Les dimensions peuvent être différentes, en fonction de l'espace libre disponible, mais suffisantes pour la pose de bois de chauffage. Vous pouvez utiliser un baril prêt à l'emploi ou souder le fond à un cylindre en acier à paroi épaisse.
Parfois, les chaudières de chauffage sont fabriquées à partir de bouteilles de gaz pour une durée de vie plus longue.
Cheminée
Dans la partie supérieure du corps, nous formons un trou pour l'évacuation des gaz. Son diamètre doit être d'au moins 100 mm. Nous soudons un tuyau au trou à travers lequel les gaz d'échappement seront évacués.
La longueur du tuyau est choisie en fonction des considérations de conception.
Nous connectons le boîtier et le dispositif d'alimentation en air
Au fond du boîtier, nous découpons un trou d'un diamètre égal au diamètre du tuyau d'alimentation en air. Nous insérons le tuyau dans le corps pour que le ventilateur dépasse le fond.
Disque dissipateur de chaleur
Dans une tôle d'une épaisseur de 10 mm, nous découpons un cercle dont la taille est légèrement inférieure au diamètre du corps. Nous y soudons une poignée en renfort ou en fil d'acier.
Cela simplifiera grandement le fonctionnement ultérieur de la chaudière.
hotte à convection
Nous fabriquons un cylindre en tôle d'acier ou coupons un morceau de tuyau dont le diamètre est supérieur de plusieurs centimètres au diamètre extérieur du four (corps). Vous pouvez utiliser un tuyau d'un diamètre de 500 mm. Nous connectons ensemble le boîtier de convection et le foyer.
Cela peut être fait à l'aide de cavaliers métalliques soudés à la surface intérieure du boîtier et à la surface extérieure du four, si l'écart est suffisamment grand.Avec un espace plus petit, vous pouvez souder le boîtier au four sur tout le périmètre.
Couvercle
Dans une tôle d'acier, nous découpons un cercle du même diamètre que le foyer ou un peu plus. Nous y soudons des poignées à l'aide d'électrodes, de fil ou d'autres moyens improvisés.
Considérant que pendant le fonctionnement de la chaudière, les poignées peuvent devenir très chaudes, il vaut la peine de prévoir une protection spéciale à partir d'un matériau à faible conductivité thermique.
les jambes
Pour assurer une longue combustion, nous soudons les jambes au fond. Leur hauteur doit être suffisante pour surélever la chaudière à bois d'au moins 25 cm au-dessus du sol. Pour ce faire, vous pouvez utiliser une location différente (canal, coin).
Félicitations, vous avez fabriqué une chaudière à bois de vos propres mains. Vous pouvez commencer à chauffer votre maison. Pour ce faire, il suffit de charger du bois de chauffage et d'y mettre le feu en ouvrant le couvercle et le disque dissipateur de chaleur.
Chaudière à pyrolyse à faire soi-même: règles et nuances
Chaudière à pyrolyse à faire soi-même
Pour installer une chaudière à pyrolyse de vos propres mains, tout en conservant toutes ses qualités de travail, il est nécessaire de s'appuyer sur des dessins et des calculs précis. Une chaudière mal assemblée, montée selon un schéma incompétent, non seulement remplira mal ses fonctions, mais constituera également une menace pour la sécurité de l'environnement et pour vous en premier lieu.
Règles de montage de la chaudière à pyrolyse à faire soi-même:
- Votre première priorité, avant de commencer le montage, est la familiarisation obligatoire avec les dessins, plans et schémas. Ils vous aideront à déterminer la quantité de matériel nécessaire au travail et à vous éviter d'éventuelles urgences;
- Vérifiez la présence d'éléments fondamentaux, sans lesquels il est impossible d'assembler la chaudière à pyrolyse de vos propres mains.Ce sont: des régulateurs, des ouvertures d'aération, des canaux de fumée, des tuyaux d'évacuation de l'eau, une chambre de combustion, des tuyaux d'alimentation en eau et un ventilateur;
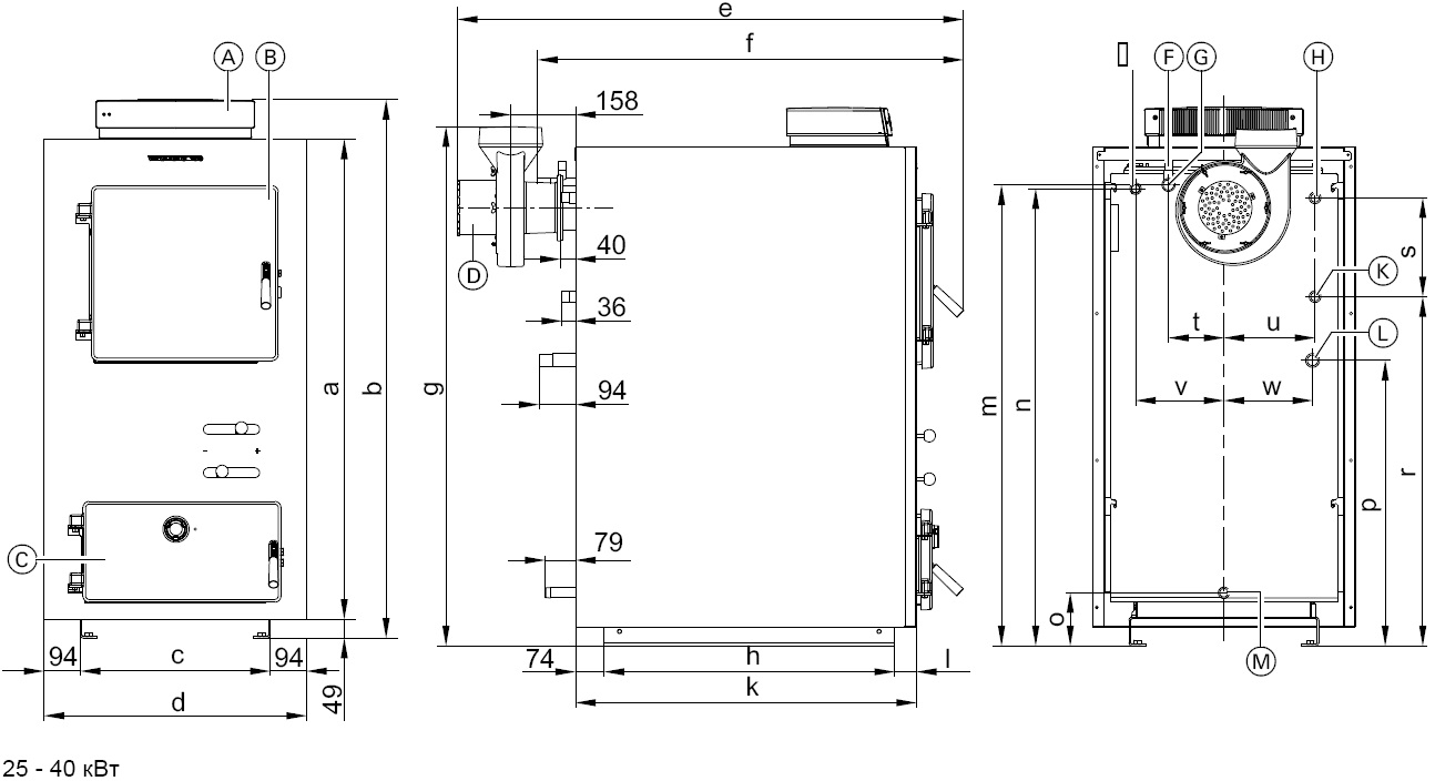
- Sachez que si vous êtes censé chauffer une maison de campagne standard, une chaudière à pyrolyse d'une capacité de 40 kW vous convient tout à fait, et si vous êtes propriétaire d'un tout petit chalet, alors une chaudière de 30 kW suffit. Cela n'a aucun sens d'installer des chaudières super puissantes, car un petit appareil isolera parfaitement les locaux, tandis que d'énormes unités coûteront beaucoup d'argent et nécessiteront des coûts importants;
- Il ne sera pas superflu de préparer les outils nécessaires à l'installation de la chaudière. Pour ne pas avoir à courir à nouveau à la quincaillerie, préparez tout de suite tout ce dont vous avez besoin. Pour installer une chaudière à pyrolyse de vos propres mains, vous aurez besoin d'une telle boîte à outils: une meuleuse, des meules, une machine à souder, une perceuse électrique, des tuyaux de différents diamètres, des électrodes, un ventilateur, des bandes d'acier, un capteur de température, des tôles
Veuillez noter que l'assemblage d'une chaudière à pyrolyse de vos propres mains est un processus long et laborieux, alors préparez-vous à d'éventuelles difficultés. Cependant, en préparant soigneusement le processus, vous réduisez considérablement le risque de problèmes inattendus.
Une fois toutes les règles suivies, le schéma souhaité est sélectionné, il est temps de procéder à l'assemblage direct. Lors de l'assemblage de l'appareil par étapes, suivez les nuances suivantes:
- Contrairement aux chaudières conventionnelles, le trou pour mettre le bois de chauffage dans le foyer doit être situé légèrement plus haut;
- Assurez-vous de vérifier la présence d'un étrangleur qui fixe l'alimentation en air de la chaudière. Ses dimensions optimales sont de 70 ml de section et une longueur dépassant les dimensions du corps ;
- Le disque soudé au limiteur doit être en acier inoxydable et situé au bas de toute la structure ;
- Il est préférable que l'entrée de combustible solide soit de forme rectangulaire. Pour une chaudière à pyrolyse, cette forme est optimale ;
- La porte doit se fermer hermétiquement et en toute sécurité ; une doublure spéciale est nécessaire pour fixer fermement la fermeture ;
- Prévoyez à l'avance, puis n'oubliez pas de faire un trou spécial avec lequel vous retirerez les cendres accumulées;
- Le tuyau du liquide de refroidissement ne doit pas être droit, mais légèrement incurvé. Cette forme est nécessaire pour augmenter l'apport de chaleur;
- L'emplacement de la vanne doit être pratique et accessible. Grâce à lui, vous contrôlerez le processus d'entrée de l'air dans le four;
- Premier départ. Après avoir terminé le montage et l'installation de la chaudière à pyrolyse de vos propres mains, effectuez un test de fonctionnement de l'appareil. À l'aide d'un équipement spécial, vérifiez le fonctionnement sans erreur à toutes les étapes et assurez-vous que le monoxyde de carbone ne s'accumule pas dans la chaudière. Ce n'est qu'après cela que vous pourrez mettre complètement la chaudière en marche.
Pour terminer
Les chaudières à gaz sont des structures assez complexes. Afin de les fabriquer de vos propres mains, vous devez avoir des compétences dans la fabrication de telles unités et, en plus, des dessins détaillés d'une conception particulière. Les schémas des chaudières à pyrolyse présentés ici ne reflètent que les principes généraux de leur conception et peuvent servir de base à l'élaboration de tels dessins de vos propres mains, sur la base de calculs de leurs paramètres, en tenant compte de la puissance requise, du temps de combustion et d'autres Critères. Mais ce n'est pas si facile à faire.Il est préférable de trouver et d'utiliser des dessins prêts à l'emploi de chaudières à pyrolyse faites maison fonctionnant selon l'un ou l'autre schéma qui vous intéresse. Nous essaierons d'en examiner certains dans les articles suivants de cette section.








































